

melkrundveehouderij
Januari 2024 – Totaal
Agrifirm NWE B.V.
T 088 488 29 29
E exlanadvies@agrifirm.com I www.agrifirm.nl
www.agrifirm.nl/exlan
www.facebook.com/agrifirm @agrifirm
www.youtube.com
Linkedin.com/agrifirm
Vestiging Meppel Noordeinde 31a Postbus 1033 7940 KA Meppel
T 088 488 29 10
Vestiging Oss Waalkade 33 Postbus 300 5340 AH Oss
T 088 488 21 02
Omgevingsregeling bijlage V 1 januari 2024
Code Systeem Leverancier
HA1.1 Grupstal met drijfmest Nauwelijks nog toegepast
HA1.2 Ligboxenstal met giergoot Nauwelijks nog toegepast
HA1.3 Ligboxenstal met spoelsysteem
HA1.4 Ligboxenstal met spoelsysteem
HA1.5
HA1.6 Profielvloer
C1
nog toegepast
Deze systemen vallen in kolom A van Tabel 4.818 van het Besluit activiteiten leefomgeving en mogen enkel worden toegepast in dierenverblijven die zijn opgericht voor 1 juli 2015 (uitgezonderd overgangsrecht).
Deze systemen vallen in kolom B van Tabel 4.818 van het Besluit activiteiten leefomgeving en mogen enkel worden toegepast in dierenverblijven die zijn opgericht voor 1 januari 2018.
Deze systemen vallen in kolom C van Tabel 4.818 van het Besluit activiteiten leefomgeving en mogen ook worden toegepast bij dierenverblijven die zijn oprichting na 1 januari 2018.
Deze systemen kunnen in nieuwe situaties niet meer worden toegepast.
Omgevingsregeling bijlage V 1 januari 2024
Code Systeem
HA1.21 Groen Loopvloersysteem
HA1.22 Patent Comfort Vloer G6
HA1.23
Beton
HA1.26
Deze systemen vallen in kolom A van Tabel 4.818 van het Besluit activiteiten leefomgeving en mogen enkel worden toegepast in dierenverblijven die zijn opgericht voor 1 juli 2015 (uitgezonderd overgangsrecht).
Deze systemen vallen in kolom B van Tabel 4.818 van het Besluit activiteiten leefomgeving en mogen enkel worden toegepast in dierenverblijven die zijn opgericht voor 1 januari 2018.
Deze systemen vallen in kolom C van Tabel 4.818 van het Besluit activiteiten leefomgeving en mogen ook worden toegepast bij dierenverblijven die zijn oprichting na 1 januari 2018.
Deze systemen kunnen in nieuwe situaties niet meer worden toegepast.
Concrelit Profielvloer C1
Milieugegevens
Code Nummer systeembeschrijving
Emissiefactor
HA1.5 OW 2009.11.V1 11,0 NH3
Melk- en kalfkoeien; ligboxenstal met dichte geprofileerde hellende vloer
Bouwgegevens
Status
Definitieve erkenning
Producent Afmetingen breedte/dikte Prijs / m2 Opmerkingen
Concrelit 113 x 17 cm 115 cm werkende breedte
Eigenschappen
€ - Vloer wordt niet meer geproduceerd
Kelder, Geen kelder, Primair mestscheiden, Mest-nabewerken, Plaatvloer, Roostervloer, Kelderafsluiting, Regelmatige afstort, Eind afstort, Vlak, Hellend, Deels Rubber, ihw-Gestort, Trilbeton, Zelfverdichtend beton, Asfalt, Mestschuifrobot, Mestschuif.
Concrelit Profielvloer C3
Milieugegevens
Code Nummer systeembeschrijving
HA1.6 OW 2009.22.V1
Emissiefactor
11,0 NH3
Melk- en kalfkoeien; ligboxenstal met dichte hellende vloer met rubber toplaag
Bouwgegevens
Producent Afmetingen breedte/dikte
Concrelit 113 x 17 cm 115 cm werkende breedte
Eigenschappen
Status
Definitieve erkenning
Prijs / m2
€ -
Opmerkingen
Vloer wordt niet meer geproduceerd
Kelder, Geen kelder, Primair mestscheiden, Mest-nabewerken, Plaatvloer, Roostervloer, Kelderafsluiting, Regelmatige afstort, Eind afstort, Vlak, Hellend, (Deels) Rubber, ihw-Gestort, Trilbeton, Zelfverdichtend beton, Asfalt, Mestschuifrobot, Mestschuif.
Den Boer Beton Sleufvloer Klassiek
Beton Agrifloor
Code Nummer systeembeschrijving Emissiefactor
HA1.7 OW 2010.14.V1, OW 2010.24.V1 11,8 NH3
Melk- en kalfkoeien; Ligboxenstal met sleufvloer
Bouwgegevens
Producent Afmetingen breedte/dikte
Status
Definitieve erkenning
Prijs / m2 Opmerkingen
Den Boer Beton 110 x 16 cm € - Vloer wordt niet meer geproduceerd
Eigenschappen
Kelder, Geen kelder, Primair mestscheiden, Mest-nabewerken, Plaatvloer, Roostervloer, Kelderafsluiting, Regelmatige afstort, Eind afstort, Vlak, Hellend, Deels Rubber, ihw-Gestort, Trilbeton, Zelfverdichtend beton, Asfalt, Mestschuifrobot, Mestschuif.
Zeus Swaans Patent Comfort sleuvenvloer G5Groene vlag met klep
Milieugegevens
Code Nummer systeembeschrijving Emissiefactor Status
HA1.8 OW 2010.30.V1 6,0 NH3 Inactief
Ligboxenstal met roostervloer met bolle rubber toplaag en afdichtflappen in roosterspleten waarvoor voor 12 april 2017 een omgevingsvergunning is of, als deze vergunning niet nodig was, die rechtmatig in gebruik is genomen voor die datum
Bouwgegevens
Producent Afmetingen breedte/dikte
Prijs / m2 Opmerkingen
Den Boer Beton € - Vloer wordt niet meer geproduceerd
Eigenschappen
Kelder, Geen kelder, Primair mestscheiden, Mest-nabewerken, Plaatvloer, Roostervloer, Kelderafsluiting, Regelmatige afstort, Eind afstort, Vlak, Hellend, Deels Rubber, ihw-Gestort, Trilbeton, Zelfverdichtend beton, Asfalt, Mestschuifrobot, Mestschuif.
Groene vlag zonder klep
Milieugegevens
Code Nummer systeembeschrijving
Emissiefactor
HA1.9 OW 2010.31.V1 7 NH3
Ligboxenstal met roostervloer met bolle rubber toplaag
Bouwgegevens
Producent Afmetingen breedte/dikte
Oostbeton BV
Jelle Nauta 110 x 16 cm 86,5 x 20 cm
Eigenschappen
Status
Definitieve erkenning
Prijs / m2 Opmerkingen
Prijs op aanvraag Incl. roostervloer
Kelder, Geen kelder, Primair mestscheiden, Mest-nabewerken, Plaatvloer, Roostervloer, Kelderafsluiting, Regelmatige afstort, Eind afstort, Vlak, Hellend, Deels Rubber, ihw-Gestort, Trilbeton, Zelfverdichtend beton, Asfalt, Mestschuifrobot, Mestschuif.
Swaans Patent Comfort vloer G1
Milieugegevens
Code Nummer systeembeschrijving
HA1.10 OW 2010.32.V1
Emissiefactor Status
11,8 NH3
Inactief
Melk- en kalfkoeien: Ligboxenstal met geprofileerde vloer met hellende sleuven en regelmatige mestafstorten waarvoor voor 20 juli 2018 een omgevingsvergunning is verleend, of, als deze vergunning niet nodig was, die rechtmatig in gebruik is genomen voor die datum.
Bouwgegevens
Producent Afmetingen breedte/dikte
Prijs / m2 Opmerkingen
Swaans Beton - € -
Vloer wordt niet meer geproduceerd
Eigenschappen
Kelder, Geen kelder, Primair mestscheiden, Mest-nabewerken, Plaatvloer, Roostervloer, Kelderafsluiting, Regelmatige afstort, Eind afstort, Vlak, Hellend, Deels Rubber, ihw-Gestort, Trilbeton, Zelfverdichtend beton, Asfalt, Mestschuifrobot, Mestschuif.
HCI Welzijnsvloer W2
Concrelit Profielvloer C5
Milieugegevens
Oostbeton Berkel D-2 Emissiearme Duurzaamheidsvloer
Code Nummer systeembeschrijving Emissiefactor Status
HA1.11 OW 2010.33.V1 12,2 NH3
Inactief
Melk- en kalfkoeien: Ligboxenstal met geprofileerde vloer met hellende sleuven en regelmatige mestafstorten waarvoor voor 20 juli 2018 een omgevingsvergunning is verleend, of, als deze vergunning niet nodig was, die rechtmatig in gebruik is genomen voor die datum.
Bouwgegevens
Producent Afmetingen breedte/dikte
Concrelit
HCI Beton
Oostbeton BV
Eigenschappen
Prijs / m2
Opmerkingen
Vloer wordt niet meer geproduceerd
Kelder, Geen kelder, Primair mestscheiden, Mest-nabewerken, Plaatvloer, Roostervloer, Kelderafsluiting, Regelmatige afstort, Eind afstort, Vlak, Hellend, Deels Rubber, ihw-Gestort, Trilbeton, Zelfverdichtend beton, Asfalt, Mestschuifrobot, Mestschuif.
Anders Beton Eco-Vloer
Milieugegevens
Code Nummer systeembeschrijving
HA1.12
OW 2010.34.V1
Emissiefactor
7 NH3
Melk- en kalfkoeien: met roostervloer met cassettes in roosterspleten
Bouwgegevens
Producent Afmetingen breedte/dikte
Anders Beton 115 x 18 cm
Status
Definitieve erkenning
Prijs / m2 Opmerkingen
€ 169,50 af fabriek
€ 10,-/m2 transportkosten
Ook in 6 ton aslast Ook in renovatiemaat
Eigenschappen
Kelder, Geen kelder, Primair mestscheiden, Mest-nabewerken, Plaatvloer, Roostervloer, Kelderafsluiting, Regelmatige afstort, Eind afstort, Vlak, Hellend, Deels Rubber, ihw-Gestort, Trilbeton, Zelfverdichtend beton, Asfalt, Mestschuifrobot, Mestschuif.
HCI Welzijnsvloer W4
Milieugegevens
Code Nummer systeembeschrijving
HA1.13 OW 2010.35.V1
Emissiefactor
7 NH3
Status
Definitieve erkenning
Melk- en kalfkoeien: Ligboxenstal met geprofileerde vloer met hellende sleuven en regelmatige mestafstorten met afdichtflappen
Bouwgegevens
Producent Afmetingen breedte/dikte
HCI Beton 120 x 18 cm
58 x 18 cm
29 x 18 cm
Eigenschappen
Prijs / m2
€ 95,-
Opmerkingen
Ook 6 ton aslast en renovatiemaat
Melkrobotbalken tot 3,5m
Kelder, Geen kelder, Primair mestscheiden, Mest-nabewerken, Plaatvloer, Roostervloer, Kelderafsluiting, Regelmatige afstort, Eind afstort, Vlak, Hellend, Deels Rubber, ihw-Gestort, Trilbeton, Zelfverdichtend beton, Asfalt, Mestschuifrobot, Mestschuif.
Concrelit Profielvloer C6
Milieugegevens
Code Nummer systeembeschrijving
Emissiefactor
HA1.13 OW 2010.35.V1 7 NH3
Status
Definitieve erkenning
Melk- en kalfkoeien: Ligboxenstal met geprofileerde vloer met hellende sleuven en regelmatige mestafstorten met afdichtflappen
Bouwgegevens
Producent Afmetingen breedte/dikte
Concrelit 115 x 16 cm (117 cm werkende breedte) 37 x 16 cm ( 41 cm werkende breedte)
Eigenschappen
Prijs / m2 Opmerkingen
Prijzen op aanvraag
Kelder, Geen kelder, Primair mestscheiden, Mest-nabewerken, Plaatvloer, Roostervloer, Kelderafsluiting, Regelmatige afstort, Eind afstort, Vlak, Hellend, Deels Rubber, ihw-Gestort, Trilbeton, Zelfverdichtend beton, Asfalt, Mestschuifrobot, Mestschuif.
Swaans Patent Comfortvloer G2
Milieugegevens
Code Nummer systeembeschrijving
HA1.14 OW 2010.36.V1
Emissiefactor Status
10,3 NH3 Inactief
Melk- en kalfkoeien: Ligboxenstal met geprofileerde vloer met hellende sleuven en regelmatige mestafstorten met afdichtkleppen waarvoor voor 20 juli 2018 een omgevingsvergunning is verleend, of, als deze vergunning niet nodig was, die rechtmatig in gebruik is genomen voor die datum.
Bouwgegevens
Producent Afmetingen breedte/dikte Prijs / m2 Opmerkingen
Swaans Beton 85 x 19 cm (werkende breedte 87 cm) € -
Eigenschappen
G2 mestspleet elke 170 cm
G2.2 mestspleet elke 87 cm
Kelder, Geen kelder, Primair mestscheiden, Mest-nabewerken, Plaatvloer, Roostervloer, Kelderafsluiting, Regelmatige afstort, Eind afstort, Vlak, Hellend, Deels Rubber, ihw-Gestort, Trilbeton, Zelfverdichtend beton, Asfalt, Mestschuifrobot, Mestschuif.
Gietasfaltvloer
Milieugegevens
Code Nummer systeembeschrijving Emissiefactor Status
HA1.15 OW 2012.01.V1
11,7 NH3 Inactief
Melk- en kalfkoeien: Ligboxenstal met V-vormige vloer met gietasfalt in combinatie met een gierafvoerbuis en met mestschuif waarvoor voor 20 juli 2018 een omgevingsvergunning is verleend, of, als deze vergunning niet nodig was, die rechtmatig in gebruik is genomen voor die datum.
Bouwgegevens
Producent Afmetingen breedte/dikte
Prijs / m2 Opmerkingen
Herakles - € -
Vloer wordt niet meer geproduceerd
Eigenschappen
Kelder, Geen kelder, Primair mestscheiden, Mest-nabewerken, Plaatvloer, Roostervloer, Kelderafsluiting, Regelmatige afstort, Eind afstort, Vlak, Hellend, Deels Rubber, ihw-Gestort, Trilbeton, Zelfverdichtend beton, Asfalt, Mestschuifrobot, Mestschuif.
Chemische luchtwasser
Milieugegevens
Code Nummer systeembeschrijving Emissiefactor Status
HA1.16 OW 2012.02.V1
5,1 NH3
Inactief
Melk- en kalfkoeien: Mechanisch geventileerde stal met een chemisch luchtwassysteem waarvoor voor 20 juli 2018 een omgevingsvergunning is verleend, of, als deze vergunning niet nodig was, die rechtmatig in gebruik is genomen voor die datum
Bouwgegevens
Producent Afmetingen breedte/dikte Prijs / m2 Opmerkingen
Winstal L 6,5m, H 2,8m, B 2,8m € - Systeem niet meer leverbaar
Eigenschappen
Kelder, Geen kelder, Primair mestscheiden, Mest-nabewerken, Plaatvloer, Roostervloer, Kelderafsluiting, Regelmatige afstort, Eind afstort, Vlak, Hellend, Deels Rubber, ihw-Gestort, Trilbeton, Zelfverdichtend beton, Asfalt, Mestschuifrobot, Mestschuif.
HCI Welzijnsvloer W5
Milieugegevens
Code Nummer systeembeschrijving
HA1.17 OW 2012.04.V1
Emissiefactor
8 NH3
Status
Definitieve erkenning
Melk- en kalfkoeien: Ligboxenstal met V-vormige vloer van geprofileerde vloerelementen in combinatie met een gierafvoerbuis (OW 2012.04.V1)
Bouwgegevens
Producent Afmetingen breedte/dikte
HCI Beton 250 x 14 cm
Prijs / m2
Opmerkingen
€ 95,- Voerstoep mogelijk Ook in 6 ton aslast
Eigenschappen
Kelder, Geen kelder, Primair mestscheiden, Mest-nabewerken, Plaatvloer, Roostervloer, Kelderafsluiting, Regelmatige afstort, Eind afstort, Vlak, Hellend, Deels Rubber, ihw-Gestort, Trilbeton, Zelfverdichtend beton, Asfalt, Mestschuifrobot, Mestschuif.
Swaans Patent Comfortvloer G3
Milieugegevens
Code Nummer systeembeschrijving
Emissiefactor Status
HA1.18 OW 2012.05.V1 11 NH3
Definitieve erkenning
Melk- en kalfkoeien: Ligboxenstal met roostervloer met hellende groeven of hellend gelegd, voorzien van afdichtkleppen in de roosterspleten
Bouwgegevens
Producent Afmetingen breedte/dikte
Swaans Beton 80 x 19 cm
Prijs / m2
Opmerkingen
€ 145,- Hellend gelegd
€ 7/m2 meerprijs aflopende ingezaagd profiel
G3.3 uit productie
Eigenschappen
Kelder, Geen kelder, Primair mestscheiden, Mest-nabewerken, Plaatvloer, Roostervloer, Kelderafsluiting, Regelmatige afstort, Eind afstort, Vlak, Hellend, Deels Rubber, ihw-Gestort, Trilbeton, Zelfverdichtend beton, Asfalt, Mestschuifrobot, Mestschuif.
Swaans Patent Comfortvloer G3.3 (TPE toplaag)HCI Welzijnsvloer W3
Milieugegevens
Code Nummer systeembeschrijving
HA1.19 OW 2012.08.V1
Emissiefactor Status
10,1 NH3 Inactief
Melk- en kalfkoeien: Ligboxenstal met geprofileerde hellende vloer met perforaties waarvoor voor 6 mei 2020 een omgevingsvergunning is verleend, of, als deze vergunning niet nodig was, die rechtmatig in gebruik is genomen voor die datum
Bouwgegevens
Producent Afmetingen breedte/dikte
Prijs / m2 Opmerkingen
HCI Beton 120 x 18 cm € - Vloer wordt niet meer geproduceerd
Eigenschappen
Kelder, Geen kelder, Primair mestscheiden, Mest-nabewerken, Plaatvloer, Roostervloer, Kelderafsluiting, Regelmatige afstort, Eind afstort, Vlak, Hellend, Deels Rubber, ihw-Gestort, Trilbeton, Zelfverdichtend beton, Asfalt, Mestschuifrobot, Mestschuif.
Qwinpro Welzijnsvloer
Milieugegevens
Code Nummer systeembeschrijving
HA1.20 OW 2013.01.V1
Emissiefactor
7 NH3
Status
Definitieve erkenning
Melk- en kalfkoeien: Ligboxenstal met geprofileerde vloer met hellende sleuven en regelmatige mestafstorten met afdichtingen
Bouwgegevens
Producent Afmetingen breedte/dikte
Prijs / m2 Opmerkingen
Qwinpro 120-95-70 x 18 cm € - Vloer wordt niet meer geproduceerd
Eigenschappen
Kelder, Geen kelder, Primair mestscheiden, Mest-nabewerken, Plaatvloer, Roostervloer, Kelderafsluiting, Regelmatige afstort, Eind afstort, Vlak, Hellend, Deels Rubber, ihw-Gestort, Trilbeton, Zelfverdichtend beton, Asfalt, Mestschuifrobot, Mestschuif.
Oostbeton Berkel D-1 Emissiearme Duurzaamheidsvloer
Milieugegevens
Code Nummer systeembeschrijving
HA1.20 OW 2013.01.V1
Emissiefactor
7 NH3
Status
Definitieve erkenning
Melk- en kalfkoeien: Ligboxenstal met geprofileerde vloer met hellende sleuven en regelmatige mestafstorten met afdichtingen
Bouwgegevens
Producent Afmetingen breedte/dikte
Oostbeton BV 120 x 18 cm 58 x 18 cm
Eigenschappen
Prijs / m2
€ 100,€ 125,-
Opmerkingen
Mix van trilbeton en gietbeton Ook in renovatiemaat Kettingsleuf + €2,50/m1
Kelder, Geen kelder, Primair mestscheiden, Mest-nabewerken, Plaatvloer, Roostervloer, Kelderafsluiting, Regelmatige afstort, Eind afstort, Vlak, Hellend, Deels Rubber, ihw-Gestort, Trilbeton, Zelfverdichtend beton, Asfalt, Mestschuifrobot, Mestschuif.
Den Boer Beton combinatie sleuvenvloer met groene vlag in de doorsteken en wachtruimte
Code Nummer systeembeschrijving
Emissiefactor
HA1.21 OW 2013.03.V1 11 NH3
Status
Definitieve erkenning
Melk- en kalfkoeien:Ligboxenstal met sleufvloer met in doorsteken, wachtruimte en doorlopen een roostervloer met bolle rubber toplaag en afdichtflappen in roosterspleten
Bouwgegevens
Producent Afmetingen breedte/dikte
Prijs / m2 Opmerkingen
Den Boer Beton 110 x 16 cm € - Vloer wordt niet meer geproduceerd
Eigenschappen
Kelder, Geen kelder, Primair mestscheiden, Mest-nabewerken, Plaatvloer, Roostervloer, Kelderafsluiting, Regelmatige afstort, Eind afstort, Vlak, Hellend, Deels Rubber, ihw-Gestort, Trilbeton, Zelfverdichtend beton, Asfalt, Mestschuifrobot, Mestschuif.
Swaans Patent Comfort Vloer G6
Code Nummer systeembeschrijving
HA1.22 OW 2013.04.V1
Emissiefactor
6 NH3
Status
Definitieve erkenning
Melk- en kalfkoeien: Ligboxenstal met geprofileerde vloer met hellende sleuven met urineafvoergat of met regelmatige mestafstorten met afdichtkleppen
Bouwgegevens
Producent Afmetingen breedte/dikte
Swaans Beton 85-120 x 21 cm Werkende breedte 89-124 cm
Eigenschappen
Prijs / m2
€ 100,-
Opmerkingen
Aaneengesloten gelegd of los Mestschuif met vingers Ook 6 ton aslast Ook renovatie
Kelder, Geen kelder, Primair mestscheiden, Mest-nabewerken, Plaatvloer, Roostervloer, Kelderafsluiting, Regelmatige afstort, Eind afstort, Vlak, Hellend, Deels Rubber, ihw-Gestort, Trilbeton, Zelfverdichtend beton, Asfalt, Mestschuifrobot, Mestschuif.
Anders Beton ERGO-Vloer
Milieugegevens
Code Nummer systeembeschrijving
Emissiefactor Status
HA1.23 OW 2013.05.V1 7 NH3 Definitieve erkenning
Melk- en kalfkoeien: Ligboxenstal met geprofileerde vloer met hellende sleuven, aaneengesloten of met regelmatige mestafstorten met afdichtflappen.
Bouwgegevens
Producent Afmetingen breedte/dikte
Prijs / m2 Opmerkingen
Anders Beton € - Vloer wordt niet meer geproduceerd
Eigenschappen
Kelder, Geen kelder, Primair mestscheiden, Mest-nabewerken, Plaatvloer, Roostervloer, Kelderafsluiting, Regelmatige afstort, Eind afstort, Vlak, Hellend, Deels Rubber, ihw-Gestort, Trilbeton, Zelfverdichtend beton, Asfalt, Mestschuifrobot, Mestschuif.
Concrelit Profielvloer C10
Milieugegevens
Code Nummer systeembeschrijving
HA1.24 OW 2013.06.V1
Emissiefactor
10,3 NH3
Status
Inactief
Melk- en kalfkoeien: Ligboxenstal met vloer met geprofileerde rubber matten met hellend profiel en regelmatige mestafstorten met afdichtflappen waarvoor voor 6 mei 2020 een omgevingsvergunning is verleend, of, als deze vergunning niet nodig was, die rechtmatig in gebruik is genomen voor die datum.
Bouwgegevens
Producent Afmetingen breedte/dikte
Concrelit 113 x 18 cm (117 cm werkende breedte)
Eigenschappen
Prijs / m2 Opmerkingen
37 x 18 cm (41 cm werkende breedte) € -
Vloer wordt niet meer geproduceerd
Kelder, Geen kelder, Primair mestscheiden, Mest-nabewerken, Plaatvloer, Roostervloer, Kelderafsluiting, Regelmatige afstort, Eind afstort, Vlak, Hellend, Deels Rubber, ihw-Gestort, Trilbeton, Zelfverdichtend beton, Asfalt, Mestschuifrobot, Mestschuif.
Opti-Cow Floor
Milieugegevens
Code Nummer systeembeschrijving
HA1.25
OW 2013.07.V1
Emissiefactor
8 NH3
Status
Definitieve erkenning
Melk- en kalfkoeien: Ligboxenstal met hellende vloer met geprofileerde rubber matten en centrale giergoot
Bouwgegevens
Producent Afmetingen breedte/dikte
Opti-Cow Oostbeton BV
Eigenschappen
Rubber 19 mm dik
Betonplaat 3 m breed 195 mm dik
Betonplaat 4 m breed 215 mm dik
Voor renovatie sparing mogelijk
Prijs / m2
Rubber € 63,Montage € 10,Prefab € 90,- tot € 99,-
Opmerkingen
Betonvloer in het werk gestort of prefab beton
Kelder, Geen kelder, Primair mestscheiden, Mest-nabewerken, Plaatvloer, Roostervloer, Kelderafsluiting, Regelmatige afstort, Eind afstort, Vlak, Hellend, Deels Rubber, ihw-Gestort, Trilbeton, Zelfverdichtend beton, Asfalt, Mestschuifrobot, Mestschuif.
Swaans Patent Comfort Vloer G3.1
Milieugegevens
Code Nummer systeembeschrijving Emissiefactor Status
HA1.26 OW 2014.02.V1 8 NH3
Definitieve erkenning
Melk- en kalfkoeien: Ligboxenstal met roostervloer met hellende groeven of hellend gelegd met afdichtkleppen in roosterspleten en vernevelsysteem
Bouwgegevens
Producent Afmetingen breedte/dikte
Swaans Beton 80 x 19 cm
Prijs / m2 Opmerkingen
Vloer wordt niet meer geproduceerd
Eigenschappen
Kelder, Geen kelder, Primair mestscheiden, Mest-nabewerken, Plaatvloer, Roostervloer, Kelderafsluiting, Regelmatige afstort, Eind afstort, Vlak, Hellend, Deels Rubber, ihw-Gestort, Trilbeton, Zelfverdichtend beton, Asfalt, Mestschuifrobot, Mestschuif.
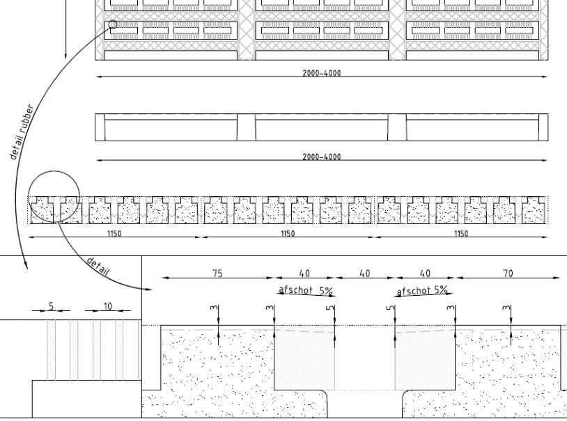
Proflex Meadowfloor
Milieugegevens
Code Nummer systeembeschrijving
HA1.27
OW 2015.05.V1
Emissiefactor Status
6 NH3
Definitieve erkenning
Melk- en kalfkoeien: Ligboxenstal met roostervloer met rubber matten en composietnokken met hellend profiel en cassettes in roosterspleten
Bouwgegevens
Producent Afmetingen breedte/dikte
Proflex
Betonproducten 1,15 x 18 cm (+ 2 cm rubber)
Eigenschappen
Prijs / m2
€ 175,- (incl.rooster) Incl. montage
Renovatie op aanvraag
Opmerkingen
Kan ook op bestaande roosters Ook in 6 ton aslast tot 3m
Betonspl 44mm, mestspl 40mm Bij renovatie 39mm vs 35mm
Kelder, Geen kelder, Primair mestscheiden, Mest-nabewerken, Plaatvloer, Roostervloer, Kelderafsluiting, Regelmatige afstort, Eind afstort, Vlak, Hellend, Deels Rubber, ihw-Gestort, Trilbeton, Zelfverdichtend beton, Asfalt, Mestschuifrobot, Mestschuif.
Oostbeton Berkel D-4 Emissiearme Duurzaamheidsvloer
Milieugegevens
Code Nummer systeembeschrijving Emissiefactor Status
HA1.28 OW 2015.06.V1 9,9 NH3
Inactief
Melk- en kalfkoeien: Ligboxenstal met geprofileerde hellende vloer met holtes voor gieropvang en -afvoer aan zijkant waarvoor voor 1 januari 2019 een omgevingsvergunning is verleend, of, als deze vergunning niet nodig was, die rechtmatig in gebruik is genomen voor die datum.
Bouwgegevens
Producent Afmetingen breedte/dikte
Prijs / m2 Opmerkingen
Oostbeton BV 137,5 x 16,5 x 19,5 cm € -
Vloer wordt niet meer geproduceerd
Eigenschappen
Kelder, Geen kelder, Primair mestscheiden, Mest-nabewerken, Plaatvloer, Roostervloer, Kelderafsluiting, Regelmatige afstort, Eind afstort, Vlak, Hellend, Deels Rubber, ihw-Gestort, Trilbeton, Zelfverdichtend beton, Asfalt, Mestschuifrobot, Mestschuif.
HCI Easyfix Welzijnsroostervloer
Milieugegevens Code
HA1.29 OW 2017.06.V1
8 NH3
Melk- en kalfkoeien: Ligboxenstal met roostervloer met bolle rubber toplaag
Bouwgegevens
Producent Afmetingen breedte/dikte
HCI Beton 99 x 16 cm (excl. 20mm rubber)
Prijs / m2
€ 120,- (incl. rooster)
€ 80,- (excl. rooster)
€ 10,- montage
Definitieve erkenning
Opmerkingen
Leverbaar voor alle soorten spleetroosters
Eigenschappen
Kelder, Geen kelder, Primair mestscheiden, Mest-nabewerken, Plaatvloer, Roostervloer, Kelderafsluiting, Regelmatige afstort, Eind afstort, Vlak, Hellend, Deels Rubber, ihw-Gestort, Trilbeton, Zelfverdichtend beton, Asfalt, Mestschuifrobot, Mestschuif.
Den Boer beton sleufvloer plus
Code Nummer systeembeschrijving
HA1.30 OW 2018.02.V1
Emissiefactor
8,1 NH3
Status
Inactief
Melk- en kalfkoeien: Ligboxenstal met sleufvloer met geprofileerde rubber tegels waarvoor voor 20 juli 2023 een omgevingsvergunning is verleend, of, als deze vergunning niet nodig was, die rechtmatig in gebruik is genomen voor die datum.
Bouwgegevens
Producent Afmetingen breedte/dikte
Prijs / m2 Opmerkingen
Den Boer Beton - € -
Vloer wordt niet meer geproduceerd
Concept wordt doorgezet als Blue-label (Oostbeton)
Eigenschappen
Kelder, Geen kelder, Primair mestscheiden, Mest-nabewerken, Plaatvloer, Roostervloer, Kelderafsluiting, Regelmatige afstort, Eind afstort, Vlak, Hellend, Deels Rubber, ihw-Gestort, Trilbeton, Zelfverdichtend beton, Asfalt, Mestschuifrobot, Mestschuif.
Zeus Beton AgriFloor Type 2
Code Nummer systeembeschrijving
HA1.31 OW 2018.03.V1
Emissiefactor
9,1 NH3
Status
Inactief
Melk- en kalfkoeien: Ligboxenstal met vlakke betonnen vloerplaten met sleuven, voorzien van profiel met 1% hellende groeven richting een centrale giergoot met giergaten en mestverwijdering waarvoor voor 1 december 2022 een omgevingsvergunning is verleend, of, als deze vergunning niet nodig was, die rechtmatig in gebruik is genomen voor die datum.
Bouwgegevens
Producent Afmetingen breedte/dikte
Prijs / m2
Zeus Beton € -
Eigenschappen
Opmerkingen
Vloer wordt niet meer geproduceerd
Kelder, Geen kelder, Primair mestscheiden, Mest-nabewerken, Plaatvloer, Roostervloer, Kelderafsluiting, Regelmatige afstort, Eind afstort, Vlak, Hellend, Deels Rubber, ihw-Gestort, Trilbeton, Zelfverdichtend beton, Asfalt, Mestschuifrobot, Mestschuif.
V3 Groove vloer
Code Nummer systeembeschrijving
HA1.32 OW 2018.06.V1
Emissiefactor
7,1 NH3
Status
Inactief
Melk- en kalfkoeien: Ligboxenstal met geprofileerde rubber oplegsleufvloer met hellende sleuven met gierafvoergaatjes waarvoor voor 1 januari 2024 een omgevingsvergunning is verleend, of, als deze vergunning niet nodig was, die rechtmatig in gebruik is genomen voor die datum.
Bouwgegevens
Producent Afmetingen breedte/dikte
Prijs / m2 Opmerkingen
V17 Agro Breedte variabel, dikte rubber 3 cm € 117,Incl. montage
Eigenschappen
Ook geschikt voor renovatie Voerstoep mogelijk Mestschuif met vingers
Kelder, Geen kelder, Primair mestscheiden, Mest-nabewerken, Plaatvloer, Roostervloer, Kelderafsluiting, Regelmatige afstort, Eind afstort, Vlak, Hellend, Deels Rubber, ihw-Gestort, Trilbeton, Zelfverdichtend beton, Asfalt, Mestschuifrobot, Mestschuif.
Proflex Meadowfloor CL
Milieugegevens
Code Nummer systeembeschrijving
HA1.33
OW 2018.07.V1
Emissiefactor
9,0 NH3
Status
Inactief
Melk- en kalfkoeien: Ligboxenstal met dichte geprofileerde vloer met rubbermatten en composietnokken met hellend profiel waarvoor voor 1 januari 2024 een omgevingsvergunning is verleend, of, als deze vergunning niet nodig was, die rechtmatig in gebruik is genomen voor die datum.
Bouwgegevens
Producent Afmetingen breedte/dikte
Prijs / m2 Opmerkingen
Proflex Betonproducten Breedte variabel, dikte rubber 4 cm € -
Eigenschappen
Vloer wordt niet meer geproduceerd
Kelder, Geen kelder, Primair mestscheiden, Mest-nabewerken, Plaatvloer, Roostervloer, Kelderafsluiting, Regelmatige afstort, Eind afstort, Vlak, Hellend, Deels Rubber, ihw-Gestort, Trilbeton, Zelfverdichtend beton, Asfalt, Mestschuifrobot, Mestschuif.
Milieugegevens
Code Nummer systeembeschrijving
HA1.34 OW 2019.01.V1
Emissiefactor
8,3 NH3
Status
Inactief
Melk- en kalfkoeien: Ligboxenstal met vlakke vloer met rubber sleufvloer, vlakke langssleuven en geprofileerd rubber (hellende Vvorm), groeven en nopjes tussen de langssleuven met vingermestschuif 1 januari 2024 een omgevingsvergunning is verleend of waarvoor tussen 1 januari 2024 en 26 april 2024 een omgevingsvergunning voor een milieubelastende activiteit is verleend, of, als een vergunning niet nodig was, die rechtmatig in gebruik is genomen voor 26 april 2024
Bouwgegevens
Producent Afmetingen breedte/dikte
Prijs / m2 Opmerkingen
V17 Agro Breedte variabel, dikte rubber 2,5 cm € 117,Incl. montage
Eigenschappen
Ook geschikt voor renovatie Voerstoep mogelijk Mestschuif met vingers
Kelder, Geen kelder, Primair mestscheiden, Mest-nabewerken, Plaatvloer, Roostervloer, Kelderafsluiting, Regelmatige afstort, Eind afstort, Vlak, Hellend, Deels Rubber, ihw-Gestort, Trilbeton, Zelfverdichtend beton, Asfalt, Mestschuifrobot, Mestschuif.
CowToilet
Milieugegevens
Code Nummer systeembeschrijving
HA1.35 OW 2021.05.V1
8,4 NH3
Voorlopige erkenning
Melk- en kalfkoeien: Ligboxenstal met urineopvangstation waarvoor voor 1 januari 2024 een omgevingsvergunning is verleend of waarvoor tussen 1 januari 2024 en 2 juni 2024 een omgevingsvergunning voor een milieubelastende activiteit is verleend, of, als een vergunning niet nodig was, die rechtmatig in gebruik is genomen voor 2 juni 2024
Bouwgegevens
Producent Afmetingen breedte/dikte
Prijs / koe Opmerkingen
Hanskamp € 1.000,-
Eigenschappen
1 CowToilet heeft een capaciteit voor 25 koeien
Kelder, Geen kelder, Primair mestscheiden, Mest-nabewerken, Plaatvloer, Roostervloer, Kelderafsluiting, Regelmatige afstort, Eind afstort, Vlak, Hellend, Deels Rubber, ihw-Gestort, Trilbeton, Zelfverdichtend beton, Asfalt, Mestschuifrobot, Mestschuif.
Zeraflex Floor
Milieugegevens
Code Nummer systeembeschrijving
HA1.36
OW 2021.06.V1
Emissiefactor
6,4 NH3
Status
Voorlopige erkenning
Melk- en kalfkoeien: Ligboxenstal met een indrukbare drainerende loopvloer voorzien van een mestschuif, waarbij de urine en mest direct worden gescheiden en apart worden opgeslagen, waarvoor voor 1 januari 2024 een omgevingsvergunning is verleend of waarvoor tussen 1 januari 2024 en 2 oktober 2024 een omgevingsvergunning voor een milieubelastende activiteit is verleend, of, als een vergunning niet nodig was, die rechtmatig in gebruik is genomen voor 2 oktober 2024
Bouwgegevens
Producent Afmetingen breedte/dikte
BVPro, A&S techniek
Eigenschappen
990 x 990 x 37 cm
480 x 990 x 37 cm
Prijs / m2 Opmerkingen
€ -
Vloer wordt niet meer geproduceerd
Kelder, Geen kelder, Primair mestscheiden, Mest-nabewerken, Plaatvloer, Roostervloer, Kelderafsluiting, Regelmatige afstort, Eind afstort, Vlak, Hellend, Deels Rubber, ihw-Gestort, Trilbeton, Zelfverdichtend beton, Asfalt, Mestschuifrobot, Mestschuif.
Cowrubber
Milieugegevens
Code Nummer systeembeschrijving Emissiefactor
HA1.37
OW 2021.07.V1
8,9 NH3
Status
Voorlopige erkenning
Melk- en kalfkoeien:Ligboxenstal voorzien van geprofileerde rubberen oplegmatten met ruitprofiel onder 2% afschot naar een centrale giergoot en frequente mestverwijdering met vaste mestschuif, waarvoor voor 1 januari 2024 een omgevingsvergunning is verleend of waarvoor tussen 1 januari 2024 en 2 oktober 2024 een omgevingsvergunning voor een milieubelastende activiteit is verleend, of, als een vergunning niet nodig was, die rechtmatig in gebruik is genomen voor 2 oktober 2024
Bouwgegevens
Producent Afmetingen breedte/dikte
Prijs / m2
Opmerkingen
Cowrubber € 46,- rubber incl. montage Prijs excl. betonvloer Excl. plaat voor afschot
Eigenschappen
Kelder, Geen kelder, Primair mestscheiden, Mest-nabewerken, Plaatvloer, Roostervloer, Kelderafsluiting, Regelmatige afstort, Eind afstort, Vlak, Hellend, Deels Rubber, ihw-Gestort, Trilbeton, Zelfverdichtend beton, Asfalt, Mestschuifrobot, Mestschuif.
Lely Sphere
Milieugegevens
Code Nummer systeembeschrijving Emissiefactor Status
HA1.38 OW 2021.08.V1
3 NH3
Definitieve erkenning
Melk- en kalfkoeien: Natuurlijk geventileerde ligboxenstal met een roostervloer voorzien van inlays met urineafvoergaatjes in de roosterspleten, frequent bevochtigen en schoonzuigen van de vloer door een mestverzamelrobot en een mechanische kelderluchtafzuiging met een chemisch luchtwassysteem (95% emissiereductie).
Bouwgegevens
Producent Afmetingen breedte/dikte
Prijs / koe Opmerkingen
Lely Ca. € 1.500,-
Eigenschappen
Kelder, Geen kelder, Primair mestscheiden, Mest-nabewerken, Plaatvloer, Roostervloer, Kelderafsluiting, Regelmatige afstort, Eind afstort, Vlak, Hellend, Deels Rubber, ihw-Gestort, Trilbeton, Zelfverdichtend beton, Asfalt, Mestschuifrobot, Mestschuif.
Milieugegevens
Code Nummer systeembeschrijving
HA1.39
OW 2022.01.V1
Emissiefactor
6,2 NH3
Status
Voorlopige erkenning
Melk- en kalfkoeien: Ligboxenstal met V-vormige vloer van geprofileerde vloerelementen in een helling van 3,5% in combinatie met een gierafvoerbuis, waarvoor voor 1 januari 2024 een omgevingsvergunning is verleend of waarvoor tussen 1 januari 2024 en 9 maart 2026 een omgevingsvergunning voor een milieubelastende activiteit is verleend, of, als een vergunning niet nodig was, die rechtmatig in gebruik is genomen voor 9 maart 2026
Bouwgegevens
Producent Afmetingen breedte/dikte
Prijs / m2
HCI Beton 250 x 14 € 95,-
Eigenschappen
Opmerkingen
Voerstoep mogelijk Ook in 6 ton aslast
Kelder, Geen kelder, Primair mestscheiden, Mest-nabewerken, Plaatvloer, Roostervloer, Kelderafsluiting, Regelmatige afstort, Eind afstort, Vlak, Hellend, Deels Rubber, ihw-Gestort, Trilbeton, Zelfverdichtend beton, Asfalt, Mestschuifrobot, Mestschuif.
Roostervloeren
Milieugegevens
Overige huisvestingsystemen
Dichte vloeren Asfalt vloeren PotstallenLeverancier
Anders Beton Meerseweg 135A B-2321 Hoogstraten-Meer (België)
+32(0) 3315 7272 www.andersbeton.com
Concrelit stalvloeren Pluggematen 8 8331 TV Steenwijk 0521 5149 22 www.concrelit.nl
Jelle Nauta 06 4615 8904 jellenauta@kpnplanet.nl
HCI Betonindustrie Kruisbergseweg 13 7255 AG Hengelo 0575 4681 81 www.hcibeton.nl
Opti-Cow De Finnen 14B 9001 XW Grou 0566 6003 33 www.debestestalvloer.nl www.opticow.com
Proflex Betonproducten Houtzagerijstraat 22 5451 HZ Mill 0485 4547 12 www.proflexbetonproducten.com
Swaans Beton Industrieweg 60 5591 JL Heeze 0402 2600 01 www.swaansbeton.nl
V17 Agro Weverstraat 44 6862 DR Oosterbeek 06 1032 7577 www.v17agro.nl
Zeus Beton Energieweg 1 7772 TV Hardenberg 0523 2641 34 www.zeusbeton.nl
Hanskamp AgroTech Broekstraat 17 7009 ZB Doetinchem 0314 3937 97 www.hanskamp.nl
BvPro David Livingstonestraat 21 7825 AE Emmen 06 2094 2285 www.zeraflex.com
Lely Cornelis van der Lelylaan 1 3147 PB Maassluis 088 1228 221 www.lely.com
A & S techniek
Elingsloane 31 9251 MN Burgum 0511 4824 01 www.aenstechniek.nl
Oostbeton Steinkampsweg 1 7151 JB Eibergen 0544 4686 90 www.oostbeton.nl
Cowrubber Canterlandseweg 67 9061 CA Gytsjerk 06 3028 4280 www.cowrubber.nl
Filterfloor Lemsterpad 54 A1 8531 AA Lemmer 06 1229 8548 www.filterfloor.nl
JOZ Industrieweg 5 1617 KK Westwoud 0228 5665 00 www.joz.nl
Blue Label 06 5154 0953 www.bleu-label.nl