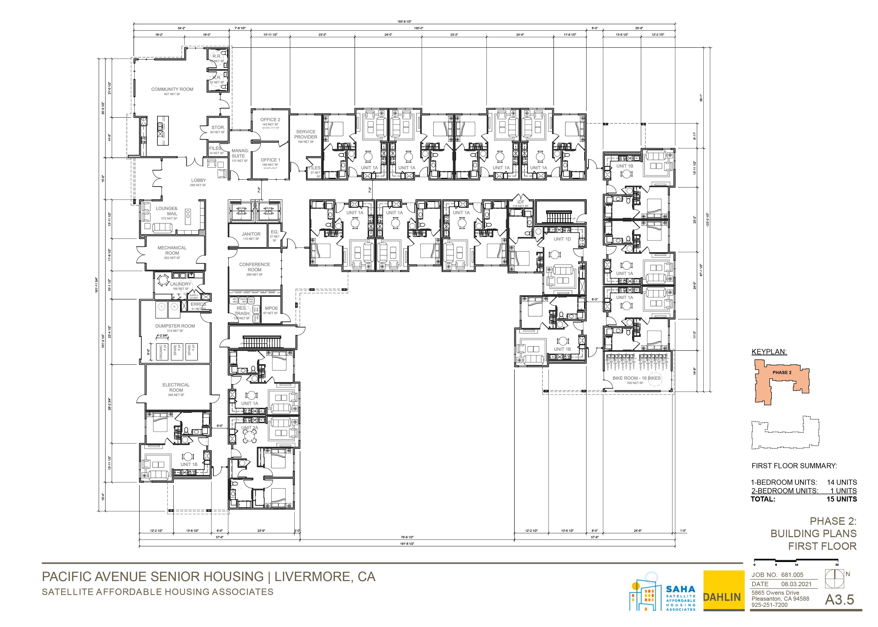
This is a Senior Housing Multi-Family development with Affordability requirements Livermore, CA. I was involved with the entitlement phase of the project and helped to develop all aspects of the buildng design.
Skills used: architectural design, colors and materials selection, code research, team coordination, consultant coordination, SketchUp, Trimble Layout, AutoCAD, Photoshop, InDesign