PORTAFOLIO 2023-1

Page 1

PROFESORES:

PORTAFOLIO
ENRRIQUE SANTILLANA VANESSA S A T O M I W O N G2 0 2 2 4 2 0 1 F A C U L T A D D E A R Q U I T E C T U R A C A R R E R A D E A R Q U I T E C T U R A - Á R E A D E D I S E Ñ O A R Q U I T E C T Ó N I C O C I C L O 2 0 2 3 - 1

SATOMI WONG

Estudiante de Arquitectura

Satomiwongr@gmail.com

@abi.ag__

EDUCACIÓN

2 0 1 0 - 2 0 1 6

Educación Primaria

C o l e g i o M a r í a d e l o s Á n g e l e s

2 0 1 7 - 2 0 2 1

Educación Secundaria

C o l e g i o M a r í a d e l o s Á n g e l e s

2 0 1 3 - 2 0 2 2

Educación Idioma Ingles Avanzado

B r i t a n i c o

2 0 2 2 - 2 0 2 3

Educación Idioma Japonés

P e r u a n o J a p o n e s

HABILIDADES TÉCNICAS

S k e t c h U p

W o r d 2 0 1 8

C a n v a

E x c e l

A u t o c a d

A d o b e P h o t o s h o p

TABLA DE CONTENIDOS

TER
MOVILIARIO
DE CONTEINERS ANALISIS DE LA IMAGEN FINAL CONTEINER DE EMERGENCIA PAG 5 RIBA 1 2 3, 4, 5 PAG 6 PAG 7 PAG 9 PAG. 12 PAG 18 PAG 19 ODS 3, 5, 9 10, 11, 13, 15 RIBA 1 2 3, 4, 5 ODS 3, 5, 9 10, 11, 13, 15 RIBA 1, 2, 3 4, 5 ODS: 3 5 9, 10, 11 13 15 RIBA 2, 4 5 ODS 3 5, 11 RIBA 2, 4, 5 ODS: 3 5 11 RIBA 1, 2 3 4, 5 ODS: 3 5 9, 10, 11 13 15 RIBA 1, 2 3 4, 5 ODS 3 5, 9, 10, 11, 13 15
CATALOGO
CONJUNTO

C o m o p r i m e r e j e r c i c i o s e n o s p r e s e n t o u n t e r r e n o e n l a l o c a l i d a d d e p u n t a h e r m o s a , l a c u a l n o s e e n c u e n t r a e n c o n d i c i o n e s d e s e r h a b i t a d a E l o b j e t i v o e s d i s e ñ a r u n h y p e r o b j e t o c a p a s d e h a b i t a r y c o n t r i b u i r e n l a c o m u n i d a d , h a b i t a n t e s d e e s t e l u g a r . C o n e l o b j e t i v o d e e n t e n d e r e l e s p a c i o y l a f u n c i ó n . P o r l a c o m p l i c i d a d d e e s t e t r a b a j o s e n o s u n e c o n c o m p a ñ e r o s d e c i c l o s s u p e r i o r e s

TERRAFORMACIÓN
5 RIBA 1 2, 3, 4 5 ODS 3, 5, 9 10, 11, 13, 15

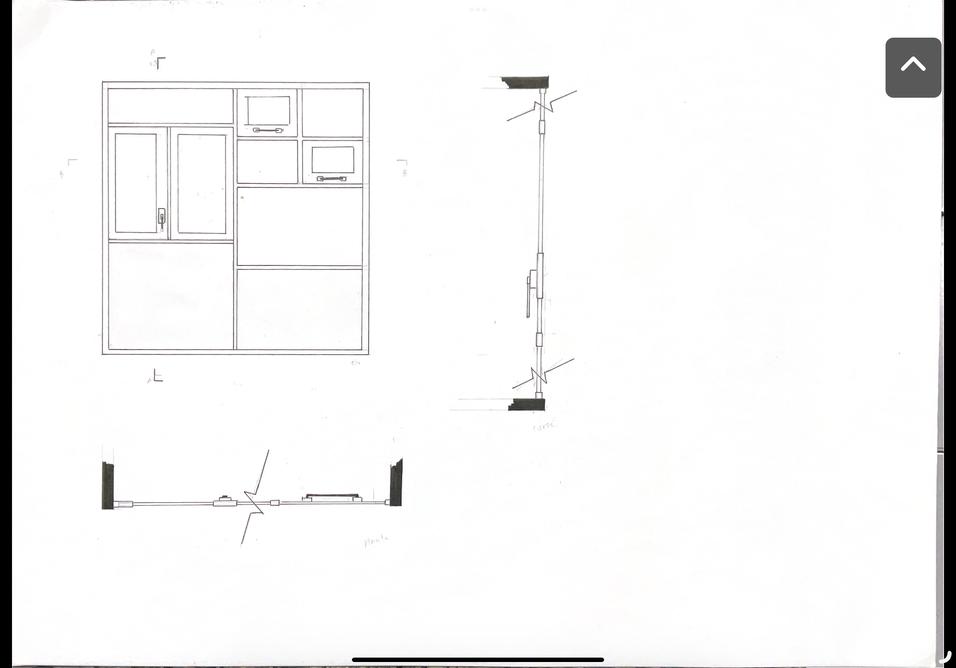
C o m o p r i m e r t r a b a j o s e n o s a s i g n ó l a e l a b o r a c i ó n d m o b i l i a r i o c o n e l f i n d e c r e a r u n a e s p a c i a l i d a d y c o

MOVILIARIOEXTRA

CA
ALIME
6 RIBA 1 2, 3, 4 5 ODS 3, 5, 9 10, 11, 13, 15
Sillaplegable Camaconvertible

DETALLE DE MANPARA

Como el espacio era bastante reducido, nos dimos cuenta de que era necesario diseñar mobiliario convertible. De esta forma, conseguimos maximizar el espacio disponible y hacer que el contenedor pareciera más grande de lo que realmente era. Así, creamos un ambiente que no solo era funcional, sino también acogedor y confortable, para que las personas pudieran sentirse a gusto mientras estaban dentro.

CORTE B-B ESC 1/20
CORTE FUGADO C-C
PLANTA
7
RIBA 1 2, 3, 4 5 ODS: 3, 5, 9 10 11, 13, 15

D e s p u é s d e a n a l i z a r c u i d a d o s a m e n t e l a s n e c e s i d a d e s y p r o b l e m a s d e l a s p e r s o n a s e n r e l a c i ó n c o n e l u s o d e l e s p a c i o , l l e g u é a l a c o n c l u s i ó n d e q u e e s t e d e b í a s e r m á s a d a p t a b l e y f l e x i b l e s e g ú n l a h o r a o l a s n e c e s i d a d e s d e l m o m e n t o E s p o r e s o q u e p r o p o n g o n o u n o , s i n o d o s e s q u e m a s : u n o p a r a e l d í a y o t r o p a r a l a n o c h e . A l s e p a r a r e l e s p a c i o d e t r a b a j o y e l d e d e s c a n s o , s e e v i t a l a c o m b i n a c i ó n d e e s t o s d o s á m b i t o s , l o q u e p o d r í a t e n e r u n i m p a c t o n e g a t i v o e n l a s a l u d

A d e m á s , p r o p o n g o u n a c o m b i n a c i ó n i n n o v a d o r a d e l á r e a d e a l i m e n t a c i ó n y e l e s p a c i o d e r e u n i o n e s M e h e i n s p i r a d o e n l a s c a s a s a s i á t i c a s , d o n d e s e c o m e e n e l p i s o p a r a c r e a r u n a m b i e n t e

m á s r e l a j a d o y c ó m o d o . E s t e e n f o q u e n o s ó l o p e r m i t e a h o r r a r e s p a c i o , s i n o q u e t a m b i é n p r o m u e v e u n a c u l t u r a d e c o l a b o r a c i ó n y c r e a t i v i d a d t e n i e n d o e s t e e s p a c i o , l a g e n t e p u e d e r e u n i r s e a l r e d e d o r d e u n a m e s a b a j a y d i s f r u t a r d e u n a c o m i d a m i e n t r a s d i s c u t e n i d e a s y e s t r a t e g i a s .

ESC. 1/25

AXONOMETRÍA
8

ONJUNTO HABITACIONAL EMERGENCIA

ués de diseñar el interior de los nedores, procedimos a la rucción de un conjunto ubicado en Hermosa, debido a los desastres ales recientes, muchas personas n quedado sin hogar y necesitan un seguro donde vivir. Para tizar la comodidad y privacidad de familias que vivirán en este nto habitacional, hemos diseñado tal de 12 contenedores, los cuales distribuidos de manera óptima aprovechar al máximo el espacio nible sin sacrificar la calidad de de los residentes.

9 RIBA 1, 2, 3 4 5 ODS: 3, 5 9 10 11, 13, 15
10

DIAGRAMAS

Mi propuesta es un edificio de tres pisos con forma de pirámide. En el primer piso, se podrían ubicar seis contenedores, en lugar de solo uno, lo que permitiría una mejor distribución del espacio y una mayor cantidad de áreas comunes para los residentes. Además, en el segundo y tercer piso, se podrían colocar tres contenedores cada uno, lo que permitiría una mayor cantidad de espacios privados para los residentes. Esto proporcionaría una mejor calidad de vida para los residentes, ya que tendrían un espacio más grande para vivir y disfrutar.

Otra ventaja de esta propuesta es que habría tres zonas sociales para los residentes, una en cada piso. Esto permitiría a los residentes tener una mayor variedad de opciones para socializar y pasar tiempo juntos. Además, en el primer piso, se podría diseñar un pasillo interior que llevara a una zona común, donde se podrían realizar diferentes actividades para los residentes.

11

LA IMAGEN, ANALISIS 2D PT.1

En esta actividad, cambiamos de tema y nos adentramos en el mundo de las bellas artes. Comenzamos por buscar una fotografía en blanco y negro de un fotógrafo famoso para analizarla a través de sus líneas y colores.

A continuación, elegimos a un pintor famoso del movimiento cubista o abstracto y replicamos su obra de arte con el fin de encontrar nuevas líneas de análisis. Para ello, nos fijamos en los materiales utilizados, la técnica empleada y los elementos presentes en la obra. Una vez que analizamos estas obras de arte, trabajamos en la creación de nuestra propia obra.

Utilizamos nuestra creatividad para diseñar una pieza única que incorporara elementos de las obras que habíamos estudiado. Esta actividad nos permitió explorar nuestra creatividad y mejorar nuestra comprensión y análisis de las obras de arte.

12 RIBA 2, 4, 5 ODS: 3, 5 11

VIVIAN MAIER

V i v i a n M a i e r ( f e b r e r o 1 , 1 9 2 6 - a b r i l 2 1 , 2 0 0 9 ) n a c i ó e n E s t a d o s U n i d o s , N u e v a Y o r k , p e r o v i v i ó e n F r a n c i a u n a g r a n p a r t e d e s u j u v e n t u d . E n 1 9 5 1 , r e g r e s a a l o s E s t a d o s U n i d o s y e m p i e z a a t r a b a j a r c o m o n i ñ e r a . E n s u t i e m p o l i b r e , V i v i a n t o m a b a f o t o g r a f í a s , d e j a n d o u n l e g a d o d e 1 0 0 , 0 0 0

n e g a t i v o s , l a m a y o r í a t o m a d o s e n t r e C h i c a g o y N u e v a Y o r k .

L a f o t ó g r a f a d e d i c ó s u v i d a e n t e r a a t r a b a j a r c o m o n i ñ e r a a p e s a r d e e l l o , e n f r e n t ó d i f i c u l t a d e s e c o n ó m i c a s . S i n e m b a r g o , l o s ú l t i m o s t r e s n i ñ o s a l o s q u e c u i d ó l a c o n s i d e r a r o n c o m o u n a s e g u n d a m a d r e y l a a p o y a r o n e n e s t e a m b i t o .

S u e s t i l o f o t o g r á f i c o s e c a r a c t e r i z ó p o r r e t r a t a r a l a s o c i e d a d u r b a n a e s t a d o u n i d e n s e d e l c i c l o X X ; a d e m á s , d e s u e s t i l o d e v i d a E n l a s o b r a s d e M a i e r s e e n c u e n t r a n d i f e r e n t e s i m á g e n e s , d e s d e n i ñ o s j u g a n d o h a s t a p e r s o n a s r i c a s b o m b e r o s , v a g a b u n d o s , e t c . E l l a r e t r a t ó c a d a e s e n c i a d e C h i c a g o y N u e v a Y o r k , p o r e s t o f u e r e c o n o c i d a c o m o l a c r o n i s t a . U n a r e s p e t a b l e f i g u r a p a r a l a v i d a d e V i v i a n f u e J e a n n e B e r t r a n d . L a c a b e z a d e f a m i l i a d e s u h o g a r e n 1 9 3 0 , d o n d e v i v í a c o n s u m a d r e J e a n n e y V i v i a n e r a n m u y p a r e c i d a s , l a s d o s v i v i e r o n u n a v i d a m u y p a r e c i d a . D e l m i s m o m o d o , B e r t r a n d t a m b i é n s e d e d i c a b a a l a f o t o g r a f í a s i e n d o e l l a l a i n s p i r a c i ó n d e M a i e r p a r a t e n e r u n a p a s i ó n p o r l a f o t o g r a f í a .

MAS FOTOGRAFIAS:

FOTOGRAFIA

April 20, 1956. Chicago IL

UNE 25 96 SEPTEMBER 25 959 NEW YORK NY CH CAGO L
13
COPIA A LAPIZ ANALISIS NEGRO - BLANCO ANALISIS NEGRO - BLANCO
1 4
ANALSIS NEGRO - BLANCO - GRIS

ANALISIS COLORES NO-SATURADOS

ANALISIS COLORES SATURADOS

LÍNEAS DE COLORES

Después de realizar una extensa búsqueda tanto en fotografía como en pintura, finalmente decidí por Vivian Maier. Sus fotografías son no solo fascinantes, sino también conmovedoras emocionalmente, por eso la elegí. En cuanto a la pintura, Ad Reinhardt capturó mi atención de manera más significativa. Además, sus pinturas tienen un parecido sorprendente con mis líneas de análisis. Aunque mi elección inicial podría haber sido una pintura de Henri Matisse, debo decir que encuentro el trabajo de Reinhardt igualmente hermoso en su propia manera única.

15

AD REINHARDT

Ad Reinhardt, pintor, escritor y crítico asociado al expresionismo abstracto, defendía una forma absoluta de abstracción y creía en un arte puro y equilibrado. Nacido el 24 de diciembre de 1913 en Buffalo, Nueva York, mostró interés por el arte desde temprana edad. Ingreso a la Universidad de Columbia a estudiar historia del arte.

Su obra representó los fundamentos de la evolución del expresionismo abstracto al minimalismo y al arte conceptual.

Reinhardt rechazó el expresionismo abstracto por considerarlo demasiado emocional y egocéntrico, buscando en cambio una forma absoluta de abstracción. Su obra evolucionó hacia la abstracción gestual y su serie de pinturas de un solo color, especialmente el negro, se convirtió en su sello distintivo. Además de su trabajo como pintor, Reinhardt también se destacó como escritor y crítico. En sus escritos teóricos estableció conexiones entre su obra y filosofías complejas como el neoplatonismo, la teología de la negación y el budismo zen.

El artista, falleció el 30 de agosto de 1967 a los 53 años debido a un ataque cardíaco masivo en su estudio de Nueva York. Aunque a menudo fue pasado por alto por sus contemporáneos, se convirtió en una figura profética para la siguiente generación, influyendo en artistas como Frank Stella, Donald Judd y Mark Rothko. Su obra representa los fundamentos de la evolución del expresionismo abstracto al minimalismo y al arte conceptual.

MAS PINTURAS:

UNTITLED, 1943–1943

COPIA SEGUN LINEAS

UNTITLED - 938 STUDY FOR A PAINTING - 1938
16

Finalmente, quedé con esta imagen de análisis, donde las líneas más gruesas son las más pronunciadas en la foto y las punteadas son las que no se ven a simple vista. Hay cosas que me gustaría cambiar de este análisis, como la cantidad de líneas, ya que no considero que sean suficientes para un correcto análisis. De igual manera, el grosor de las líneas no es adecuado en algunas de ellas, lo que puede llegar a ser confuso.

17
ANALISIS DE LINEAS FINAL

LA ESCULTURA, ANALISIS 3D PT.2

Luego de realizar el análisis de la imagen con la pintura, comenzamos el proceso de creación de la escultura. A partir de una imagen bidimensional, logramos obtener un objeto tridimensional y, posteriormente, un lugar arquitectónico. A través de la escultura, podemos apreciar diferentes perspectivas, ya sean de t l ió l t t t

ar que la arquitectura no solo se ve como a de arte y expresión. Cada detalle de la xtura, es una muestra de la creatividad y involucrados en su creación. Además, la rar y experimentar con el espacio de una una experiencia única e inolvidable. En e arte que no solo sirve para construir car ideas y emociones a través de la

ESCULTURA FINAL

PRIMERA ESCULTURA

La escultura es una forma de arte que puede ser trabajada en diferentes tamaños, desde pequeñas piezas del tamaño de una palma de la mano hasta enormes estructuras monumentales. En mi proyecto, decidí enfocarme en la creación de esculturas pequeñas y realicé alrededor de cuatro piezas. De todas ellas, las que más destacaron fueron las que marcaron el inicio de mi proyecto. Durante el proceso creativo, comencé utilizando las líneas existentes de las esculturas, pero luego decidí cambiarlas para darle más sentido a la pieza y lograr una mayor cohesión con el resto de mi trabajo.

SEGUNDA ESCULTURA

18 RIBA 2 4 5 ODS 3 5, 11

EL CAMINO

Como trabajo final se nos asigna la creación de un centro de arte y cultura ubicado en Punta Hermosa. Este deberá tener los siguientes espacios: hall, cafetería, sala de reuniones, sala de lectura y archivo, baños, vivienda del guardián, un contenedor de actividades pasadas y un mirador, que consideramos como espacios públicos. Además, se incluirán un aula, una galería de exposiciones, exposiciones externas, un depósito y talleres de pintura, grabado y diseño gráfico. También se considera el espacio para el personal que trabaja en este lugar, por lo que se plantean los siguientes espacios: pool de secretarios, oficina del gestor y sala de reuniones.

19 RIBA 1, 2, 3 4 5 ODS: 3, 5 9 10 11 13, 15 PLANTA 1
CORTE LONG TUDINAL CORTE TRANSVERSAL 20 PLANTA 2 PLANTA 3 PLANTA 4 PLANTA 5

PERSPECTIVA INTERIOR

TEXTO DESCRIPTIVO

El proceso de elaboración de “El Camino” fue un proceso largo y difícil. Durante la etapa de creación, me encontré en una situación complicada en la que no solo me faltaba inspiración, sino que también sentía que estaba encerrada en las líneas de análisis, lo que me hacía sentir como si estuviera en una prisión creativa. Sin embargo, mi inspiración llegó gracias a una canción: Duvet de bôa, una de mis canciones favoritas. Esta canción me transmitió una sensación de calma y fue a partir de ahí que empecé a trabajar en "El Camino", un lugar donde la gente pudiera pasear y ser feliz, disfrutar de los pequeños momentos, como tomar un café o ver el atardecer, y por supuesto, dar largas caminatas por la galería.

Guiándome por las líneas de análisis, elaboré varias esculturas hasta encontrar una que me gustara. Con la escultura final lista, comencé a trabajar en la arquitectura del lugar, analizando la escultura y las líneas de análisis y marcando las posibles entradas y los diferentes espacios que podrían ir dentro de ella. Buscando inspiración, me pregunté a mí misma: ¿Qué me gustaría ver al entrar? ¿Debería estudiar arquitectura para hacerlo mejor? Fue así como llegué a la idea de diseñar algo simple para los visitantes, un lugar donde pudieran ir después de nadar en el mar, pasear por el malecón y charlar con amigos y familiares en un ambiente agradable y familiar.

En resumen, aunque el proceso de elaboración de "El Camino" fue estresante y complicado, mi inspiración llegó a través de la música y logré crear un espacio arquitectónico y escultórico que invita a la gente a disfrutar de los pequeños momentos de la vida y a pasar un buen rato en un ambiente tranquilo y acogedor.

PROCESO:

21
22

CURSOS MATRICULADOS

DIBUJO III

SECCIÓN: 323

JP: Pizarro Velasquez, Diego RIBA: 2 y 5

CASA ENTRE MEDIANERAS

A r q u i t e c t o s : V a l l r i b e r a A r q u i t e c t e s

Á r e a : 2 0 3 m ²

A ñ o : 2 0 2 0

C A S A S - M A T A R Ó , E S P A Ñ A

E C 1

A l t e n e r c o n o c i m i e n t o s p r e v i o s d e A u t o C A D n o s e d i f i c u l t o t a n t o e s t a p a r t e d e l c u r s o , d e i g u a l f o r m a s t u v e m u c h o s e r r o r e s , l o s c u a l e s a h o r a m e d o y c u e n t a m u c h o m á s r á p i d o . C o m o n o c o l o c a r l a c a n t i d a d n e c e s a r i a d e c o t a s y e n l o s c o r t e s m e f a l t a r o n p u n t o s m u y n e c e s a r i o s p a r a p o d e r e n t e n d e r e l p r o y e c t o

DOCENTE: Rossado Espinoza, Veronica Paola

S e n o s i n t r o d u c e a l p r o g r a m a d e R e v i t y t o d o l o q u e a g l o m e r a a l p r o g r a m a c o m o l a r e a l i d a d v i r t u a l . R e v i t , a l i g u a l q u e A u n t o C A D e s u n s o f t w a r e d e d i s e ñ o y m o d e l a d o 3 D c o n l a d i f e r e n c i a q u e e s e s t e s e p u e d e c r e a r m o d e l o s 3 D i n t e l i g e n t e s , l o s c u a l e s l u e g o s e p u e d e n g e s t i o n a r

CASA CAOBA

E C 2

A r q u i t e c t o s : P A E , R u b é n G ó m e z G a ñ á n Á r e a : 1 0 0 m ²

A ñ o : 2 0 2 3

C A S A S - A N A P O I M A , C O L O M B I A

D e s p u é s d e i n t r o d u c i r n o s l a s c o s a s b á s i c a s y c o m p l i c a d a s d e R e v i t , n o s d e j a n a n u e s t r a m e r c e d , y c o n u n p o c o d e a y u d a , a m o d e l a r l a C a s a C a o b a .

A l p r i n c i p i o , n o d i s f r u t a b a e l u s o d e R e v i t , y a q u e e r a m u y c o m p l e j o s y d i f e r e n t e a l o q u e h a b í a v i s t o , c o m o S k e t c h U p o A u t o C A D , p e r o a h o r a p i e n s o m u y d i f e r e n t e . E s u n p r o g r a m a m u y v e r s á t i l y c r e a t i v o , a d e m á s m e a y u d o a v e r l a s d i f e r e n t e s f o r m a s c o n s t r u c t i v a s .

HISTORIA DEL ARTE

DOCENTE: Nuñez Noriega, Amada

SECCIÓN: 324

ODS 1, ODS3 Y ODS6

RIBA: 1 2 Y 3

ARCO DE CONSTANTINO

R o m a , I t a l i a

TBG2

E l A r c o d e C o n s t a n t i n o , c o n s t r u i d o e n e l a ñ o 3 1 5 d C , e s u n o d e l o s p o c o s a r c o s r o m a n o s q u e s o b r e v i v e n S e u t i l i z a b a p a r a c e l e b r a r v i c t o r i a s e n b a t a l l a y e s t á u b i c a d o e s t r a t é g i c a m e n t e e n l a

V i a T r i u m p h a l i s . E s t e a r c o c o n m e m o r a l a v i c t o r i a d e C o n s t a n t i n o I e n l a b a t a l l a d e l P u e n t e M i l v o y d e s t a c a p o r s u a s p e c t o a r q u i t e c t ó n i c o i m p o n e n t e . L a d r i l l o s d e m á r m o l B l o q u e s d e m a r m o l

Materialidad:

P i e d r a l a b r a d a

Elementos Arquitectónicos:

E l A r c o d e C o n s t a n t i n o c u e n t a c o n u n a a l t u r a d e 2 1 m e t r o s , a s í c o m o 2 5 , 9 m e t r o s d e a n c h o y p o c o m á s d e 7 m e t r o s d e p r o f u n d i d a d . C u e n t a c o n u n t o t a l d e t r e s a r c o s ; e l c e n t r a l t i e n e 1 1 m e t r o s y m e d i o d e a l t o y 6 m e t r o s y m e d i o d e a n c h o . L o s a r c o s l a t e r a l e s , p o r s u p a r t e , t i e n e n 7 , 4 m e t r o s d e a l t o y 3 , 4 m e t r o s d e a n c h o .

En los arcos:

L a s p i e z a s d o v e l a s s e l e s d o m i n a l a s d e a r r a n q u e y c e n t r a l ; e n l a p a r t e s u p e r i o r s e e n c u e n t r a l a c l a v e ; e l l a d o e x t e r i o r s e l l a m a e x t r a d ó s e i n t e r i o r i n t r a d ó s ; l a L u z e s e l p u n t o m á s b a j o d e l a r c o , d e e s t e s e d e f i n e e l á p i c e ( p a r t e m á s a l t a ) y l a f l e c h a e l p u n t o d o n d e e m p i e z a e l á p i c e .

E l A r c o c o n s t a d e m u c h o s d e t a l l e s e n s u e x t e r i o r , m u c h o s d e e l l o s f u e r o n e x t r a c c i o n e s d e o t r o s m o n u m e n t o s y a d a p t a d a s a e s t e , a s í c o m o : l a s e s c u l t u r a s d e l o s b a r b a r o s o e s c e n a s d e s a c r i f i c i o s E n t r e l o s r e l i e v e s , s e e n c u e n t r a n u n g r a n n ú m e r o d e b u s t o s d e d i o s e s d e l a r e l i g i ó n r o m a n a . S i n e m b a r g o , n o t o d a s l a s p i e z a s f u e r o n e x t r a í d a s d e o t r o s m o n u m e n t o s , t a m b i é n a l g u n a s f u e r o n d i s e ñ a d a s p a r a e s t e c o m o : l o s t o n d o s y f r i s o s a m b i e n t a d o s e n l a s b a t a l l a s y v i c t o r i a s d e C o n s t a n t i n o

RELIEVES ARCO DE MARCO AURELION TONDOS DEL MONUMENTO DE ADRIANO ESCULTURAS DE LOS BÁRBAROS RELIEVE DEL FORO DE TRAJANO FRISOS
TONDOS PLINTOS ENJUNTAS ENJUNTAS

IGLESIA DE SANTA SOFIA

E s t a m b u l , T u r q u i a

L a I g l e s i a d e S a n t a S o f í a , u b i c a d a e n E s t a m b u l , T u r q u í a , e s u n m a g n í f i c o e j e m p l o d e l a a r q u i t e c t u r a b i z a n t i n a C o n s t r u i d a e n e l s i g l o

V I , h a s i d o t e s t i g o d e i n n u m e r a b l e s e v e n t o s h i s t ó r i c o s y h a s i d o r e c o n o c i d a c o m o

P a t r i m o n i o d e l a H u m a n i d a d . C o n s u i m p r e s i o n a n t e c ú p u l a c e n t r a l y s u s i n t r i n c a d o s

m o s a i c o s , S a n t a S o f í a e s u n s í m b o l o e m b l e m á t i c o d e l a c i u d a d y a t r a e a v i s i t a n t e s d e t o d o e l m u n d o

L a i g l e s i a p a s o p o r d i f e r e n t e s h e c h o s

h i s t ó r i c o s , a d e m á s d e m u c h a s r e m o d e l a c i o n e s L a c o n s t r u c c i ó n s e e m p e z ó e n e l a ñ o 3 6 0 b a j o e l

m a n d a t o d e C o n s t a n t i n o I I . E n 4 0 4 y 5 3 2 s e

i n c e n d i a y s e v u e l v e a c o n s t r u i r .

c o l u m n a a l b a r b a

L a d r i l l o s d e a r c i l l a d e R h o d a s

M a r m o l

A r g a m a s a g r u e s a

Cristo Pantocrátor:

Cúpula : L a e s t r u c t u r a p o s a e n d o s e x e d r a s , a s í m i s m o , d o s e x e d r a s m á s p e q u e ñ a s a b i e r t a s e n l o s á n g u l o s c r e a d o s p o r e l e j e l o n g i t u d i n a l d e f i n i d o p o r e l n a r t e x .

Nartex : E s e l v é s t i b u l o e n t r e e l a t r i o y e l t e m p l o , r e u n i e n d o a q u i e n e s n o e r a n b i e n v e n i d o s a l t e m p l o c o m o : c a t e c ú m e n o s , j u d í o s , l e p r o s o s y p e n i t e n t e s E s t a t e n í a u n a d o b l e a l t u r a y e s t a b a

Semicupulas: F u n c i o n a n d e c o n t r a f u e r t e s p a r a l a c ú p u l a c e n t r a l , s e c o n s i d e r a q u e l a c u p u l a " f l o t a " g r a c i a s a l a s s e m i c u p u l a s

Atrio : L a e n t r a d a i m p e r i a l e s t á e n e l c e n t r o d e l a t r i o y e s t á p r o t e g i d a p o r u n a e n o r m e p u e r t a d e b r o n c e L a e s t r u c t u r a , t i e n e u n a p l a n t a r e c t a n g u l a r d e 7 0 m e t r o s d e a n c h o p o r 7 5 m e t r o s d e l a r g o , o r i e n t a d a h a c i a J e r u s a l é n C o m b i n a l a t r a d i c i ó n o c c i d e n t a l d e t r e s n a v e s c o n l a o r i e n t a l d e u n a p l a n t a c e n t r a l i z a d a e n f o r m a d e c r u z g r i e g a , d e s t a c a d a p o r u n a g r a n c ú p u l a q u e e n f a t i z a l a c e n t r a l i z a c i ó n y e l e j e l o n g i t u d i n a l d e l e d i f i c i o .

E l m o s a i c o d e l " D e e s i s " e s u n o d e l o s m e j o r e s d e l a i g l e s i a . S e e n c u e n t r a e n e l e n d o n á r t e x y m u e s t r a a C r i s t o e n e l c e n t r o T a m b i é n i n c l u y e a l a v i r g e n M a r í a y J u a n e l B a u t i s t a i m p l o r a n d o l a i n t e r v e n c i ó n d e C r i s t o e n e l j u i c i o f i n a l .

C r i s t o , r e p r e s e n t a d o c o m o e l p a n t o c r á t o r b i z a n t i n o , l l e v a u n a t ú n i c a p ú r p u r a c o n u n a f r a n j a v e r t i c a l d e o r o y u n m a n t o a z u l , d e s t a c a n d o s u d i v i n i d a d , r e a l e z a y h u m a n i d a d

Arcangel Gabriel

A p e s a r d e l d a ñ o , e l m o s a i c o c o n s e r v a d e t a l l e s i m p r e s i o n a n t e s . E l á n g e l v i s t e d o s t ú n i c a s y s u s g r a n d e s a l a s d e p l u m a s b l a n c a s , r o j a s y v e r d e s l l e g a n c a s i h a s t a s u s p i e s . S o s t i e n e u n b a s t ó n e n s u m a n o d e r e c h a y u n a b o l a d e c r i s t a l e n l a i z q u i e r d a S u r o s t r o a n g e l i c a l , c o n d e t a l l e s m e t i c u l o s o s , s e c o n s i d e r a u n o d e l o s m á s h e r m o s o s e n l o s m o s a i c o s d e S a n t a S o f í a .

María con el niño Jesús E n e l m o s a i c o , l a v i r g e n M a r í a y e l n i ñ o J e s ú s e s t á n e n u n t r o n o , a c o m p a ñ a d o s p o r l o s e m p e r a d o r e s J u s t i n i a n o y C o n s t a n t i n o . L o s e m p e r a d o r e s o f r e c e n C o n s t a n t i n o p l a y l a I g l e s i a , s i m b o l i z a n d o s u r e c o n o c i m i e n t o d e l a s u p e r i o r i d a d d i v i n a y s u d e v o c i ó n h a c i a l a s f i g u r a s r e l i g i o s a s .

TBG3

UNAJOYADEL BARROCOITALIANO

H a H n a ¿ s á t p r e po ó S r e m s

o mma U m c s t Me r s e a a r s r y ue r s omp ñ r s ¿ e s u po a c r a meu o osob e B r ge a u d e ó Wa De ó e mu t n o o ue n r ut t s uto p o a a o Co sd r d u od o me re qut t s e ba r m n

A e b s a a a e n m as a q e u a empe n u n eem n o c n t u o c n u ó e o a a omo o m a s as n eo os aq e e ab r n m o t n a a e o a n n r a e e a r o L us ba m a uos s m n o a d s e p c s ue sa e a qut t r u e e e o t amp t os u e n e s a o o r n s om m n o

m e a ad a A d e urn - I A r d Qu a 6 8– 7 s o r s a o a a o y u m r ts e a u e u e s s r s a o s s om o a s d s e u mb e o e e e e m e n o o o e m s b o e e o r o o

Ga L r zo e n n ó 7 e d mb e e 98 Ná s I y f ó 8d o emb d 6 0 n oma Qu t e a t

observanMiralasventanasquetiene.Sobreellasse lasestatuas unóculocentral.Ambos sonlasfuentesdeluz,lacualcaesobrelacapilla dondeestálaesculturadeSanAndrés.

¡Muchísimas gracias!Te pasaste.

Sí. murostieneunafachadasalienteflanqueadapor ordencóncavos.Estácompuestaporpilastrasde clásico dintel.También,comoremateun creandofrontóntriangularperopartidoporsubase, asíunefectoclaroscurogracias laluz.

compuestoAsimismo,tieneunpórticosaliente porunaescalinataconvexa, doscolumnas,unentablamentoconvexo escudounfrontóncurvopartidoporel contraponedelafamiliaPamphili.Este elaccesoalaiglesiaconsualalateral.Así,“invita”aentrar las personasquepasanpormediodeesas alascomounabrazo.

Porúltimo,encontramoselementos decorativoscomolosmármolesdedistintos esculturascolores,estucos,doradosyblancoscon deángeles.Locualrealzaaúnmás subelleza.

Tedejounasfotosqueimprimíde laiglesia.¡Suerteentuexposición!

E n g o s q u e r e l a i z a r u n a i n f o d e l c i n q u e c e n t o y q u a t e n o s d e j o l a l a b o r d e a n a l i z a r : u n a e s c u l t u r a , p i n t u r a y a r q u i t e c t u r a . E s p o r e s t o q u e e l e g i m o s l o s s i g u i e n t e s t e m a s . . .

C i n q u i c e n t o

E s c u l t u t a : L a p i e t á

P i n t u r a : L a V i g e n

E l n i ñ o J e s u s y

S a n t a A n a

A r q u i t e c t u r a : L a

B a s i l i c a d e S a n

P e d r o

Q u a t t r o c e n t o

E s c u l t u t a : E l D a v i d P i n t u r a : E l n a c i m i e n t o d e V e n u s

A r q u i t e c t u r a : S a n t a M a r i a d e F i o r e

P o r o t r o l a d o , s e n o s a s i g n a l a e l a b o r a c i ó n d e u n c o m i c a m b i e n t a d o e n

e l B a r r o c o E n e s t e , t e n í a m o s q u e

n o m b r a r a u n p i n t o r y u n a d e s u s o b r a s

¡Wow,qué espectacular trabajo!
Cam aBarba
TBG4 INFOGRAFIA TBG5 COMIC BARROCO

OBRAS PICTÓRICAS ANTIGUAS Y

SU IMPACTO EN LA ACTULIDAD TBG6

A l o l a r g o d e l a h i s t o r i a , h a n s u r g i d o m o v i m i e n t o s a r t í s t i c o s y d e s t a c a d o s a r t i s t a s q u e h a n d e j a d o u n a p r o f u n d a h u e l l a e n e l m u n d o d e l a r t e S u s o b r a s m a e s t r a s s o n f u e n t e d e e s t u d i o e i n s p i r a c i ó n h a s t a h o y A t r a v é s d e e l l a s , e x p l o r a m o s d i f e r e n t e s m o m e n t o s a r t í s t i c o s y s u c a p a c i d a d d e c a p t u r a r e m o c i o n e s y e s e n c i a h u m a n a e n d i s t i n t o s c o n t e x t o s .

L A D A N Z A ( 1 9 1 0 )

A R O U N D ( 2 0 1 8 )

M a t i s s e u t i l i z a t r e s c o l o r e s : a z u l , a n a r a n j a d o y

v e r d e

F o r m a s s i m p l i f i c a d a s p a r a c r e a r u n p a t r ó n d e r i t m o y m o v i m i e n t o e n s u o b r a

L o s p e r s o n a j e s p a r e c e n s a l i r d e l l i e n z o

C r e a n d o u n a s e n s a c i ó n d e b a i l e e n m o v i m i e n t o

L a s c u r v a s y c o n t r a c u r v a s d e l o s b r a z o s

a c e n t ú a n e l d i n a m i s m o .

L a c o m p o s i c i ó n t r a n s m i t e u n a a t m ó s f e r a a l e g r e

y a r m o n i o s a d e b a i l e .

L a D a n z a d e H e n r i M a t i s s e , f u e u n a d e l a s p i n t u r a s m á s r e v o l u c i o n a r i o s d e l a é p o c a , p o r e l m o v i m i e n t o r e a l i s t a d e l o s p e r s o n a j e s d o n d e e s t o s p a r e c i e r a q u e s e s a l e n d e l c u a d r o ; t a m b i é n , l a t e n s i ó n d e e s t o s , l a f u e r z a y o b v i a m e n t e l a d e s n u d e s A r o u n d d e J e f f r e y C h e u n g , a u n q u e n o t u v o e l m i s m o i m p a c t o q u e M a t i s s e , t i e n e m u c h o s p u n t o s a d e s t a c a r m u y p a r e c i d o s a l o s d e M a t i s s e . L a d e s n u d e s , e l c u a l n o s d a u n s e n t i d o d e l i b e r t a d ; l o s c o l o r e s , C h e u n g u s a c o l o r e s m u y a l e g r e s . A m b o s q u e r í a n r e f l e j a r l a f e l i c i d a d y l a l i b e r t a d .

Análisis formal V a n G o g h u t i l i z a p i n c e l a d a s g r u e s a s y e n é r g i c a s , r e v e l a n d o l a t e x t u r a y e l g e s t o d e l a r t i s t a L a o b r a m u e s t r a u n a c o m p o s i c i ó n s i m p l e p e r o e f e c t i v a , c o n o b j e t o s o r d e n a d o s y s i m é t r i c o s . L a s f o r m a s g e o m é t r i c a s d i s t i n t i v a s t r a n s m i t e n s o l i d e z y e s t a b i l i d a d e n e l e s p a c i o . L a l u z c á l i d a y v i b r a n t e p r o v i e n e d e u n a v e n t a n a , c r e a n d o c o n t r a s t e s y s o m b r a s A p e s a r d e l a a p a r e n t e t r a n q u i l i d a d , l a o b r a r e f l e j a l a v i s i ó n s u b j e t i v a y e m o c i o n a l d e l a r t i s t a , c o n p i n c e l a d a s i n t e n s a s y c o l o r e s e x p r e s i v o s . " L a h a b i t a c i ó n d e V a n G o g h e n A r l é s " e s u n a r e p r e s e n t a c i ó n v í v i d a y p e r s o n a l d e u n e s p a c i o

c o t i d i a n o .

E l v i d e o j u e g o C U B E : E s c a p e A r l e s , e s t a i n s p i r a d o c o m p l e t a m e n t e d e u n o d e l o s p i n t o r e s m a s i m p o r t a n t e d e l a s u l t i m a s d o s d é c a d a s , V a n G o g h E s a s í c o m o a l o l a r g o d e l a h i s t o r i a e n c o n t r a m o s p i s t a s , p i n t u r a s y n o s a d e n t r a m o s a l a m e n t e d e

V a n G o g h . P i n t a n d o y b u s c a n d o p i s t a s c o n e l f i n d e , e s c a p a r d e l a p i n t u r a .

V e m o s c o m o l a c u l t u r a m o d e r n a d e h o y e n d í a , c o m o l o s v i d e o j u e g o s , m ú s i c a , m o d a , e t c s e i n s p i r a d e e s t a s i c ó n i c a s p i n t u r a s , l a s c u a l e s t o d o s a m a m o s y t e n e m o s u n g r a n r e f e r e n t e

Análisis formal Henri Matisse (1869-1954) Pintor y abogado Frances Arte Fauvista
E L D O R M I T O R I O D E A R L É S ( 1 8 8 8 ) C U B E : S C A P E A R L E S
Jeffrey Cheung Pintor, skate, músico y act vista ch no-estadounidense Arte queer Van Gogh (1853-1890) P ntor Frances Noimpresionismo Rusty lake (2015) Negocio y d seña videojuegos Ámsterdam, Pises Ba os Suspenso y terror OTROS IMPACTOS EN EL ARTE: La Cosecha (1888) Vincent van Gogh Wo dgate Vista (2005) David Hockney G r before a Mirror (1932) Pab o Picasso La Venus en el espejo (1649) Diego Velázquez

EL DEPARTAMENTO IDEAL

OE1, OE2

ÁREASCOMUNES

SECCIÓN: 321

Áreas

RIBA: 2, 4

M e d i a n t e u n a e n c u e s t a r e a l i z a d a a 2 0 0 i n d i v i d u o s , j ó v e n e s y a m a n t e s d e l o s a n i m a l e s , l o s c u a l e s v i v e n e n L i m a m e t r o p o l i t a n a o l e s g u s t a r í a v i v i r , e n A b r i l d e l

2 0 2 3 .

CARACTERISTICASANALIZADAS

T po de entrega N° de pisos Antigüedad N° de cuartos conecciónes Sala de reuniones Petfriendly piscina

92m² 98% S 11% PETFRIENDLY Personas

entrevistadas 200

L a s p e r s o n a s p r e f i e r e n d e p a r t a m e n t o s c o n 3 h a b i t a c i o n e s

E l c u r s o d e E s t a d í s t i c a , t i e n e c o m o f i n a l i d a d a p r e n d e r y u t i l i z a r l a s t é c n i c a s d e e s t a d í s t i c a d e s c r i p t i v a y c o n e s t o m é t o d o s y t é c n i c a s d e p r o g r a m a s d e c o m p u t a d o r a ( R s t u d i o y e x c e l ) , u t i l i z a d o s p a r a r e a l i z a r a n á l i s i s d e r e c o p i l a c i ó n d e d a t o s p a r a t o m a r d e c i s i o n e s .

San M gu No Noespesifica Sí Zonadeparri las P scina Sa adereun ones Juegosinfantiles GYM 200 150 100 50 0
Sala de cine GYM N° Baños Prec o Zona de parr llas Ecoam gable Coc na Área Precio Modelo Tipo de coc na Juegos nfantiles
N°DEDORMITORIOS 26% 32% 40% 2% 2 3 4 1
comunes ofertadas
Área de la mayoría de departamentos Personas prefieren zona de parrillas Noespecfíca 89%
Profesora: Depaz Apentegui, Rosario Del Pilar

CONSTRUCCIÓN I

Profesora: Lagos Cano, Blanca

SECCIÓN: 321

OE9, OE11

RIBA: 2, 3

CONSTRUCCIÓN SOSTENIBLE

AGENDAS MUNDIALES

T e m a s p r i o r i t a r i o s e n E u r o p a y E E U U , d e s a f í o s e n p a í s e s e n v í a s d e d e s a r r o l l o , l a a p r o b a c i ó n d e l C ó d i g o d e C o n s t r u c c i ó n S o s t e n i b l e e n 2 0 1 5 , d e f i c i e n c i a s e n e l a p o y o i n s t i t u c i o n a l , e m p r e s a s c o m p r o m e t i d a s c o n l a r e d u c c i ó n d e l i m p a c t o a m b i e n t a l y e l o b j e t i v o d e a v a n z a r h a c i a l a s o s t e n i b i l i d a d c o n l a

A g e n d a 2 0 3 0

A g e n d a d e l a U n i ó n E u r o p e a p a r a l a e d i f i c a c i ó n s o s t e n i b l e -

G B C e P r o g r a m a d e N a c i o n e s U n i d a s p a r a e l M e d i o

A m b i e n t e ( P N U M A –

U N E P ) I n t e r n a t i o n a l I n i t i a t i v e f o r a S u s t a i n a b l e B u i l t E n v i r o n m e n t – i i S B E

CERTIFICADOS

A g e n d a d e l a c o n s t r u c c i ó n s o s t e n i b l e

B u s c a m e j o r a r l a s c o n d i c i o n e s d e v i d a , r e d u c i e n d o l a s e m i s i o n e s d e g a s e s d e e f e c t o i n v e r n a d e r o , a h o r r a n d o m a t e r i a l e s , e n e r g í a y a g u a

E v a l ú a l a e f i c i e n c i a e n e r g é t i c a , e l u s o e f i c i e n t e d e l a g u a y l a r e d u c c i ó n d e e m i s i o n e s d e g a s e s d e e f e c t o i n v e r n a d e r o e n e d i f i c i o s .

PROCESOS CONSTRUCTIVOS E IMPACTO

La Demolición:

A g e n d a 2 0 3 0 “ L a v i s i ó n d e

P e r ú q u e q u e r e m o s ”

S e b a s a e n l a

c o n s t r u c c i ó n y c r e a c i ó n d e e s p a c i o s q u e t e n g a n u n i m p a c t o p o s i t i v o

s o b r e l a s a l u d y l a p r o d u c t i v i d a d . A s i

e n f o c á n d o s e m a s e n l a s a l u d m e n t a l

S e e n f o c a e n c o n s e r v a c i ó n y r e s t a u r a c i ó n d e e c o s i s t e m a s , s e e n f o c a e n e s p a c i o s a b i e r t o s

E s l a d e s t r u c c i ó n d e u n a c o n s t r u c c i ó n D o n d e l o s r e s i d u o s n o s o n m u y a m i g a b l e s c o n e l m e d i o a m b i e n t e I n e r t e s N o p e l i g r o s o s P e l i g r o s o s

Se plantea:

T i p o s d e r e s i d u o s :

Gestión de los residuos o r g a n i z a l o s á m b i t o s m á s i m p o r t a n t e s d e l a c o n s t r u c c i ó n

Residuos reciclados Á r i d o s r e c i c l a d o s C o n s t r u c c i ó n s o s t e n i b l e

Movimiento de tierras:

Reciclaje de los residuos, p r o c e s o s i m p l e p e r o r e q u i e r e e v a l u a c i ó n , y a q u e s o n m a t e r i a l e s u t i l i z a d o s E l m o v i m i e n t o d e t i e r r a s e s c r u c i a l e n l a c o n s t r u c c i ó n . C o n s i s t e e n l i m p i a r e l t e r r e n o d e v e g e t a c i ó n y d e s e c h o s p a r a d e j a r l o l l a n o . E s i m p o r t a n t e t e n e r c u i d a d o a l h a c e r l o p a r a n o d a ñ a r e l s u e l o . D e s p u é s , s e e x c a v a p a r a c o l o c a r l o s c i m i e n t o s

Impacto

M A S p o l v o M E N O S v e g e t a c i ó n a f e c t a l a c a l i d a d d e l a i r e , d e b i d o a l o s g a s e s d e l m o v i m i e n t o d e l a t i e r r a

QUINCHA

R I A

L a q u i n c h a s e u s a b a e n l a é p o c a p r e h i s p á n i c a e n l a c o s t a L a p a l a b r a " q u i n c h a " v i e n e d e l q u e c h u a y s i g n i f i c a " c a ñ i z o , s e t o o b a r r e r a " . D i e g o M a r o t o c r e ó l a q u i n c h a e n 1 6 6 6 , u n m a t e r i a l m á s l i g e r o y f l e x i b l e q u e u t i l i z a b a c a ñ a y c a l p a r a t e c h o s . D e s p u é s d e l t e r r e m o t o d e 1 7 4 6 , l a g e n t e e m p e z ó a c o n f i a r m á s e n l a q u i n c h a p o r s u f l e x i b i l i d a d .

E n s i s m o s :

L a q u i n c h a e s u n a t é c n i c a t r a d i c i o n a l u t i l i z a d a m a y o r m e n t e p o r d i v e r s a s c u l t u r a s i n d í g e n a s d e A m é r i c a L a t i n a d e c o n s t r u c c i ó n p a r a e j e c u t a r m u r o s , b a s a d a e n u n e n t r a m a d o d e m a d e r a c o n u n r e l l e n o d e b a r r o m e z c l a d o c o n f i b r a s v e g e t a l e s ; p o r e s t o e s c o n s i d e r a d o u n s i s t e m a d e c o n s t r u c c i ó n “ m i x t o ” .

Qu ncha húmeda Qu ncha seca

L a q u i n c h a s e c o m p o n e d e f i b r a s f l e x i b l e s y d u r a d e r a s q u e a y u d a n a c o n t r o l a r e l b a r r o y p r e v e n i r s u r e t r a c c i ó n E l b a r r o , q u e n o t i e n e u n p a p e l e s t r u c t u r a l e n l a q u i n c h a , p u e d e s e r h e c h o c o n d i f e r e n t e s t i p o s d e s u e l o y p r o p o r c i o n e s , y p o r l o g e n e r a l t i e n e u n a a l t a c a n t i d a d d e p a j a p a r a r e d u c i r s u p e s o y a u m e n t a r s u e l a s t i c i d a d . L a e s t r u c t u r a , h e c h a d e m a d e r a c o n n u d o s t r i a n g u l a r e s y u n a t r a m a j u n t o c o n e l r e l l e n o d e f i b r a s , p r o p o r c i o n a u n a b u e n a r e s i s t e n c i a s í s m i c a C o m p o r t a m i e n t o t é r m i c o : A l f i n a l i z a r l a e s t r u c t u r a , e l e s p e s o r d e m u r o a l c a n z a d e 1 0 c m a 1 6 c m , a d e m á s p o r c a d a u n o s e c a l c u l a q u e s i u n p a n e l t i e n e u n e s p e s o r d e 9 4 c m t i e n e u n a t r a n s m i t a n c i a t é r m i c a d e 2 , 6 4 W / m 2 K , l o q u e s i g n i f i c a q u e p o r c a d a m e t r o c u a d r a d o d e s u p e r f i c i e d e l m u r o y p o r c a d a g r a d o K e l v i n d e d i f e r e n c i a d e t e m p e r a t u r a e n t r e s u s c a r a s , s e t r a n s m i t i r á n a p r o x i m a d a m e n t e 2 , 6 4 v a t i o s d e c a l o r p u d i e n d o l l e g a r h a s t a 1 , 5 1

W / m 2 K

P R O C E D I M I E N T O C O N S T R U C T I V O

A n t e s d e l a e l a b o r a c i ó n d e l a q u i n c h a :

S e d i s e ñ a l a v i v i e n d a a a r m a r S e p r e p a r a e l t e r r e n o S e r e t i r a l o s e l e m e n t o s e x t r a ñ o s d e l t e r r e n o ( l i m p i e z a ) . S e n i v e l a e l t e r r o r a 1 . 5 0 m , d e l m i s m o m o d o s e e x c a v a o s e r e l l e n a . U n a v e z e l t e r r e n o e s t á n i v e l a d o s e d e f i n e e l d i á m e t r o d e l a c o n s t r u c c i ó n , e l t r a z a d o , d e l m i s m o m o d o s e d e f i n e e l a n c h o y p r o f u n d i d a d d e l a z a n j a , 4 0 c m d e a n c h o y 6 0 c m d e p r o f u n d i d a d

3 S O B R E C I M I E N T O

Deben de ser de una pieza entre las columnas

30cm minimo

Se usa encofrado

Proporciones 1 bolsa de cemento x 4 carretillas planas de hormigón, piedras medianas 3"

4 . A R M A D O D E T E C H O

Dependiendo la zona en la que se encuentra la estructura o el diseño, elije el tipo de techo. Se construye una estructura de madera sobre las vigas, llamada tímpano.

Cubierta

Calamina

Se colocan parantes verticales, empotrados a las vigas solares en la parte superior, en intervalos no mayores a 1.20m.

V E N T A J A S L i g e r o , f á c i l y r á p i d o d e a r m a r S i s t e m a f l e x i b l e S e a d a p t a a l a s m a t e r i a l e s l o c a l e s S e p u e d e p r e f a b r i c a r R e s i s t e n t e a l o s s i s m o s y v e n t a r r o n e s

D E S V E N T A J A S : S u s c e p t i b l e a l a h u m e d a d

R e q u i e r e m a n t e n i m i e n t o N o s e p u e d e u s a r e n e d i f i c a c i o n e s g r a n d e s N o e s e s t é t i c a

N o s e p u e d e i m p l e m e n t a r e n c i u d a d e s

A las columnas de madera, de 4” por 4”, se les reviente con una capa de brea o pintura.

Colocan 24 clavos de 4 pulgadas, 6 por cada lado, solo en la parte la cual va empotrada en el cimiento

Se vacía el cimiento corrido

3 d í a s d e s p u é s . . .

travesaños, maderas colocadas transversalmente a las columnas, por debajo de la viga solera Cerramiento de paredes, se colocan cañas, de forma vertical, una a lado de la otra, trenzándolas

"se debe poner las tuberías de electricidad"

"el barro deberá ser preparado 48 horas antes"

Se cubre las paredes interiores y exteriores

Proporciones

1 lata de paja por casa 6 latas de tierra

H I S T O
R T A M I E N T O E S T R U C T U R A L
A N T E C E D E N T E S C O M P O
1 2 3 4 5
L A N A T A D O D E C O L U M N A S 1 .
P
2 . V I G A S O L E R A O C O L L A R

MODULO DE QUINCHA

Se nos ha asignado la elaboración de un módulo de quincha con pilotes de concreto, paredes de quincha y techo a dos aguas de palma. Se requerirán planos arquitectónicos y una maqueta conceptual, así como la coordinación con el equipo de construcción. A pesar de los desafíos, estamos seguros de que podemos realizar el proyecto con éxito.

MAQUETA FINAL:

DETALLES:

Pilotes de concreto Techo a dos aguas

Plano de techos Planos de cimentación

LABORATORIO 7 COLUMNAS

L a s c o l u m n a s e n c o n s t r u c c i ó n s o n e l e m e n t o s r e s i s t e n t e s q u e s o p o r t a n

f u e r z a s d e c o m p r e s i ó n y f l e x i ó n , t r a n s m i t i e n d o c a r g a s d e s d e l a

e s t r u c t u r a a l a c i m e n t a c i ó n . S o n i n d i s p e n s a b l e s e n l a m a y o r í a d e l a s o b r a s y p r o y e c t o s d e c o n s t r u c c i ó n , y p u e d e n s e r d e f o r m a c u a d r a n g u l a r o c i r c u l a r . L a c o l u m n a e n c o n s t r u c c i ó n e s c l a v e p a r a s o s t e n e r l a e d i f i c a c i ó n y e s u n e l e m e n t o c l a v e e n t o d a o b r a .

NORMAS:

e 0 2 0 L a s e d i f i c a c i o n e s d e b e n r e s i s t i r l a s c a r g a s d e l u s o p r e v i s t o s i n c a u s a r e s f u e r z o s n i d e f o r m a c i o n e s q u e e x c e d a n l o s l í m i t e s e s t a b l e c i d o s e n l a n o r m a d e d i s e ñ o e s p e c í f i c a d e c a d a m a t e r i a l e s t r u c t u r a l .

T I P O S D E E M P A L M E

E m p a l m e p o r s o l d a d u r a E m p a l m e p o r a c o p e E m p a l m e p o r t r a s l a p e

C O L O C A C I O N Y A R M A D O

R e c u b r i m i e n t o : 7 c m

C o l u m n a s ( s i s t e m a d e p ó r t i c o s )

R e c u b r i m i e n t o : 4 c m

M u r o s p o r t a n t e s : 2 c m

E S T R I B O S e l e m e n t o s d o b l a d o s e n f o r m a r e c t a n g u l a r o c u a d r a d a y s e u t i l i z a n p a r a a b r a z a r y c o n f i n a r a l a s b a r r a s l o n g i t u d i n a l e s d e l a s c o l u m n a s , m a n t e n i é n d o l a s e n s u l u g a r .

FISICA PARA ARQUITECTURA

DOCENTE: Castillo Ruiz, Oscar Eduardo

SECCIÓN: 322

LA FÍSICA DEL CAPITAL GATE

Exposición

El rascacielos Capital Gate se construyó entre 2007 y 2011.

Se encuentra en Abu Dhabi, en Emiratos Árabes Unidos

Su diseño arquitectónico estuvo a cargo del estudio RMJM

Cuenta con una inclinación de 18 grados hacia el oeste, lo que le convierte en el edificio más inclinado del mundo.

Tiene una superficie útil:

Mide 53.100 m2

ODS7, ODS9, ODS13

RIBA: 2 Y 3

TENSIÓN

La tensión es una fuerza donde una cuerda tensada tira de cualquier objeto físico, donde la fuerza de la tensión es dirigida por la del cable o soga.

La parte superior de la estructura sobresale 33 metros hacia uno de los lados

Capital Gate es de 160 metros, que cuentan con un total de 35 pisos

Se crea un refuerzo adicional de acero para soportar la mayor cantidad de inclinación.

DATOS GENERALES:

35 pisos Área de Oficinas Área de Hotel Cuarto de maquinas Área total construida: 53 100m2

EQUILIBRIO:

Cuando un cuerpo esta sometido a un sistema de fuerzas, que la resultante de todas las fuerzas y el momento resultante sean cero, entonces el cuerpo está en equilibrio.

Primera ley de Newton

Un cuerpo sobre el que no actúa una fuerza neta se mueve con velocidad constante (que puede ser cero) y cero aceleración.

Fricción

Al interacturar dos cuerpos, las fuerzas que se ejercen mutuamente son iguales a la magnitud y opuestas en la dirección .

Para la fase inicial, se hace uso de una columna inclinada 18° en su eje.

Para el área de la cimentación se usó pilotes para soportar la carga de toda la estructura.

TA TB TA =TB
"TODA ACCIÓN GENERA UNA REACCIÓN"

Turn static files into dynamic content formats.

Create a flipbook
Issuu converts static files into: digital portfolios, online yearbooks, online catalogs, digital photo albums and more. Sign up and create your flipbook.