













































![]()





































































































































HSS31/2x31/2x1/4



DETAIL AT BEAM-COLUMN INTERSECTIONS SEE TYPICAL BASE PLATE DETAIL AND TYPICAL ANCHOR ROD DETAIL CONCRETE WALL SHOWN, SEE PLAN FOR ACTUAL SUPPORT CONDITIONS AND RELEVANT TYPICAL
DRILL & EPOXY INTO (E) SOG W/ HILTI-HIT HY-200 ADHESIVE (8" EMBED)
ASSUMED NOTE: EPOXY ANCHOR INSTALLATION REQUIRES SPECIAL INSPECTIONS



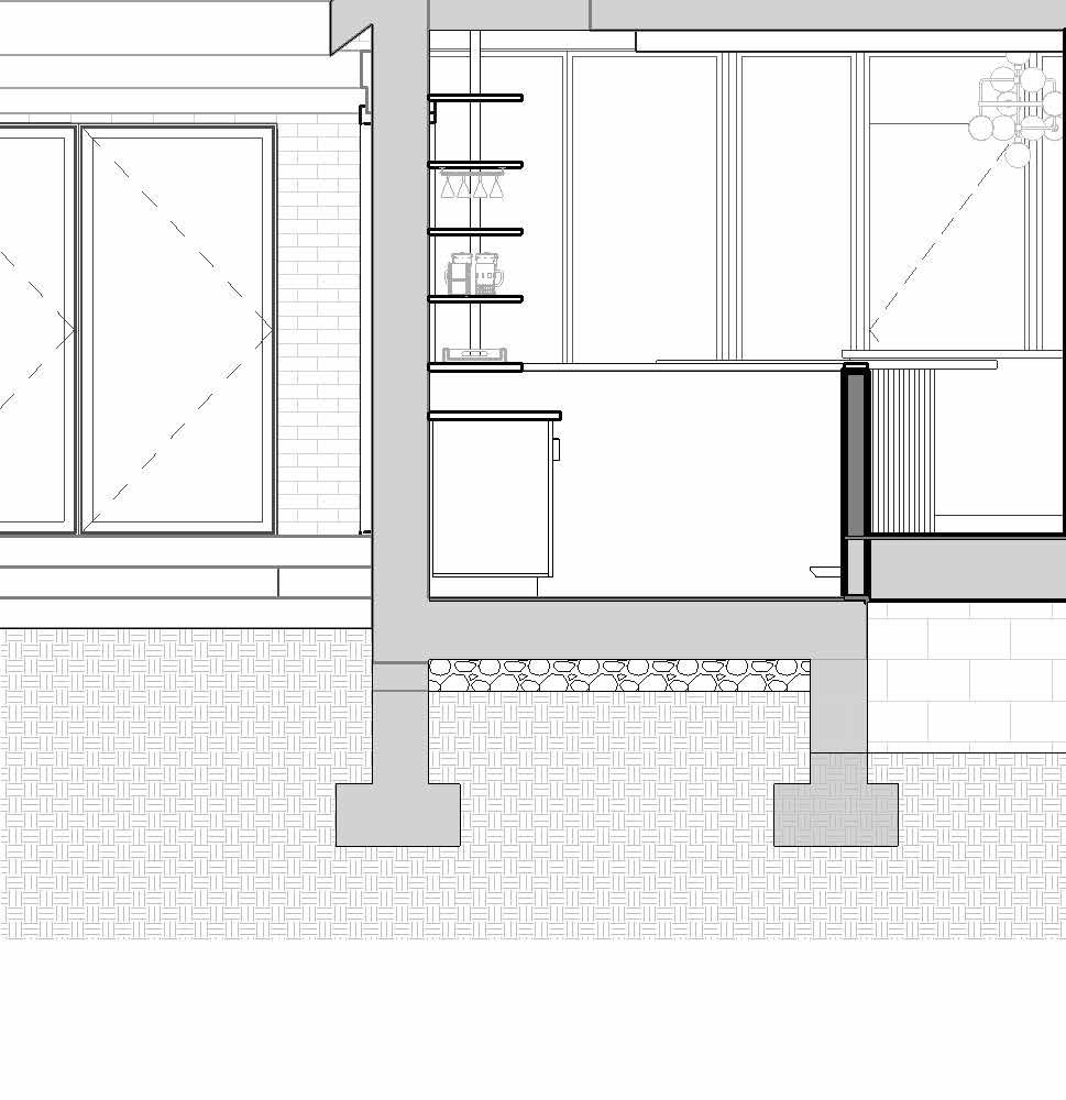
(E) BRICK VENEER W12x35 COL PER PLAN (E) 1/2" SHEATHING
3/4" ANCHOR RODS, DRILL & EPOXY INTO (E) SOG W/ HILTI-HIT HY-200 ADHESIVE (8" EMBED) 8" EMBED 6" 1'4" ASSUMED 1' 4" ASSUMED NOTE: EPOXY ANCHOR INSTALLATION REQUIRES SPECIAL INSPECTIONS W12x22
1/2"x3" LAG SCREWS @ 32" OC INTO (E) DBL TOP PL, PROVIDE MIN 3/4" EDGE DISTANCE TO DBL TOP PL
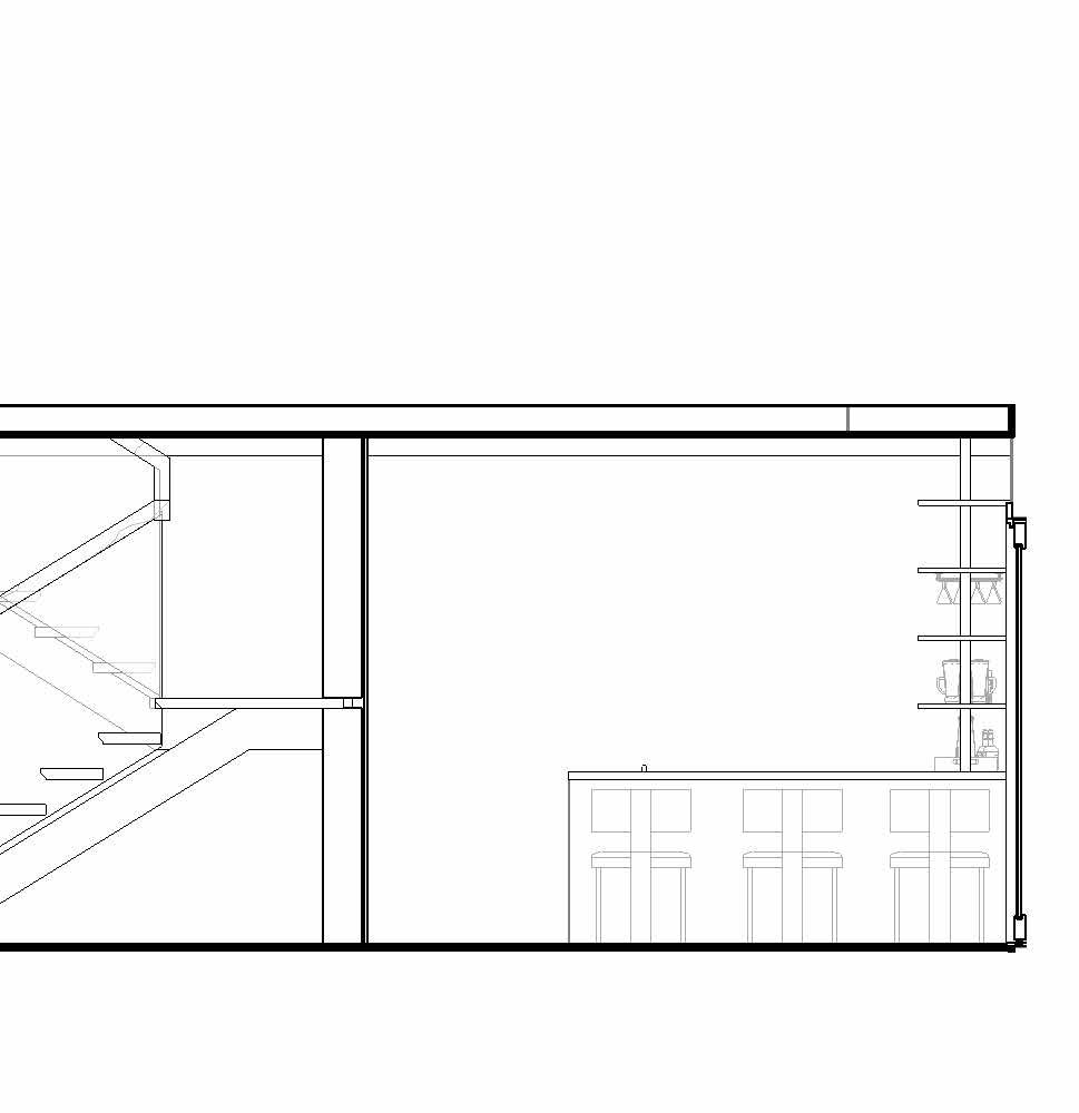
NOTE: ALL (E) FRAMING SHOWN AS A SCHEMATIC ONLY, NOTIFY EOR OF ACTUAL CONDITIONS PRIOR TO CONSTRUCTION SINGLE ANGLE LINTEL, COORD FINAL ELEVATION OF LINTEL W/ ARCH
ADD 2x BLOCKING TO CONNECT NEW 2-2x4 TO (E) ROOF DIAPHRAGM, FASTEN TO NEW 2-2x NAILER ON STL BM & (E) ROOF DIAPHRAGM W/ SIMPSON A35 CLIP ANGLES @ 24" OC W12x35


















































































































































































































































































































































































































































































































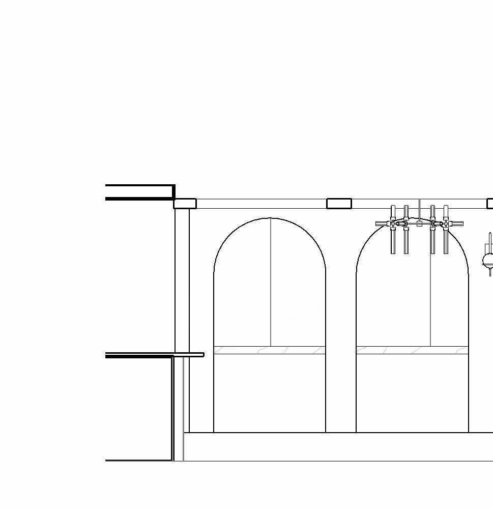
RUBBER SETTING BLOCK GLASS RUBBER GASKET
SOLID GREY FILL INDICATES EXISTING CONSTRUCTION TO REMAIN; G.C. TO FIELD VERIFY ALL EXISTING FRAMING AND INSULATION

NEW 1/2" GWB SHEATHING ON EXISTING 2x WOOD STUDS - G.C. TO FIELD VERIFY ALL EXISTING FRAMING
(1) LAYER 1/2" M.R. GWB ON 2x6 WOOD STUDS SPACED

