Revista Mandu'a - #509 - Octubre 2025

Page 1


INFORMACIÓN,

ADMINSTRACIÓN Y PLANTA INDUSTRAL:

Cnel. Rafael Franco 888 - Fdo. de la Mora, zona Norte - B° Laguna Satï - Py. Tel: (021) 500162 ventas@trafopar.com.py - trafopar@trafopar.com.py

Suc. Ciudad del Este: Ruta Internacional - Km. 6,5 - Py (0981) 559 595 (0983) 605 363

PLANTA INDUSTRIAL - ALTO PARANÁ: Transformadores Paranaenses TECNOTRAFO. Ruta Internacional N° 2, Calle Km 12, lado Acaray N° 1900 - B° Las Palmeras. Tel: (021) 338 3524 (0986) 793 283| contacto@trafosparanaenses.com.py.

Mandu’a - 3

Mandu’a es la Revista de la construcción más leída del Paraguay. Mensualmente ofrece noticias, tendencias, notas técnicas, guías de precios de materiales, costeo de obra y proveedores de la construcción. La suscripción es gratuita para los profesionales de la construcción de todo el país.

Editorial

El Gran Hospital de Asunción

Notas Expo Osaka 2025

Proyecto nacional

Biblioteca del Congreso

Proyecto internacional

Facultad de Ingeniería de Bolzano

Industria & innovación

Puertas automáticas Easy SOS

Patas niveladoras

Guías de precios de la construcción

EQUIPO

Gerencia y Administración: Estela Villalba

Dirección editorial: Yerutí Arza

Costeo: Carlos Gómez

Publicidad: Rubén Cabrera, Víctor Hugo Franco, Néstor Raimondo.

Impresión: Artes Gráficas

Castillo S.A.

Fundador: Mauri Arza.

CONTACTO

Ramón I. Cardozo c/ Andrés Gill Lambaré - Paraguay (021) 905 100 / (0981) 917 683 mandua@mandua.com.py www.mandua.com.py

EL GRAN HOSPITAL DE ASUNCIÓN: ENTRE MUROS NUEVOS Y VIEJAS DUDAS

El Gran Hospital de Asunción debería ser motivo de orgullo nacional. Un proyecto de esta envergadura, ubicado en la Costanera Sur y pensado como hito de modernización sanitaria, representa la esperanza de miles de paraguayos que hoy dependen de una red hospitalaria insuficiente y sobrecargada. Sin embargo, lo que podría ser un símbolo de progreso amenaza con convertirse en un caso emblemático de cómo la urgencia y la política suelen imponerse a la transparencia.

La Dirección Nacional de Contrataciones Públicas (DNCP) ratificó la adjudicación al Consorcio GHA, pese a que la oferta seleccionada supera en casi un 27 % el precio de referencia. Un sobrecosto millonario que, en un país con hospitales distritales aún en mantenimiento básico y regiones enteras esperando nuevas instalaciones, no pasa desapercibido. El Consorcio Yvága, que presentó una oferta mucho más cercana al valor estimado, denunció que los criterios de experiencia fueron modificados a último momento, un detalle que bastó para excluirlo de la competencia.

No es la primera vez que escuchamos esta historia: proyectos necesarios, expectativas ciudadanas y, de pronto, la sombra de la desconfianza. El debate no es solo económico, sino ético. ¿Puede un hospital nacer con sobrecostos y sospechas sin que eso afecte a la credibilidad de las instituciones que lo impulsan? ¿No es precisamente en el campo de la salud pública donde el Estado debería dar las señales más claras de responsabilidad y eficiencia?

Otros países han demostrado que sí es posible hacer las cosas mejor. Chile, por ejemplo, define desde el inicio criterios claros y los mantiene invariables durante todo el proceso; Canadá introduce un período de pausa antes de cerrar las adjudicaciones, para que las impugnaciones se resuelvan de forma justa; y en los países nórdicos cada documento, cada modificación, cada decisión es publicada y accesible, de modo que la ciudadanía pueda seguir el proceso con la misma claridad con que se revisa un balance contable. Son prácticas simples, pero poderosas, que evitan arbitrariedades y refuerzan la legitimidad de las obras públicas.

En Paraguay, en cambio, seguimos tropezando con las mismas piedras. La consecuencia no es solo un contrato más caro: es la erosión de la confianza pública en un momento en que la inversión en salud debería unirnos, no dividirnos. Porque construir hospitales no se trata únicamente de levantar paredes y techos, sino de asegurar que los recursos se usen con honestidad, que las decisiones respondan al bien común y que cada guaraní invertido se traduzca en un servicio digno para la ciudadanía.

El Gran Hospital de Asunción tiene todo para convertirse en un hito de infraestructura sanitaria. Pero si arranca envuelto en denuncias de direccionamiento y sobreprecio, corre el riesgo de ser recordado no por su capacidad de salvar vidas, sino por haber nacido bajo el signo de la duda. Y ese es un lujo que un país con tantas carencias en salud no se puede permitir.

NOTAS

EXPO OSAKA 2025: ARQUITECTURA QUE

CONECTA CULTURAS Y PROYECTA FUTUROS

Las Exposiciones Mundiales, también conocidas como Expos, son eventos internacionales de gran escala que se celebran cada varios años en distintas ciudades del mundo. En ellas, los países participantes presentan pabellones temporales donde muestran lo mejor de su cultura, ciencia e innovación, convirtiéndose en verdaderos laboratorios urbanos y vitrinas culturales.

- Revista Mandu’a

Este 2025, la ciudad japonesa de Osaka acoge la Expo en la isla artificial de Yumeshima, bajo el lema “Diseñando la sociedad futura para nuestras vidas”. Durante seis meses —del 13 de abril al 13 de octubre de 2025—, más de 150 pabellones nacionales, temáticos y corporativos invitan a reflexionar sobre cómo la arquitectura y el diseño pueden aportar soluciones a desafíos globales como la sostenibilidad, la resiliencia y la convivencia entre culturas. El evento proyecta recibir 28 millones de visitantes, y a mediados de septiembre ya superaba los 18,5 millones, con récords diarios de hasta 200.000 personas, confirmando su atractivo internacional.

En este recorrido, destacan propuestas arquitectónicas de gran interés, tanto por los nombres de los arquitectos que las firman como por las ideas que transmiten. A continuación, presentamos una selección de los pabellones más notables que sintetizan las tendencias globales de esta edición.

JAPÓN: EL CÍRCULO DE LA VIDA

El país anfitrión presenta un pabellón diseñado por el estudio Nikken Sekkei, una de las firmas más influyentes de Asia. La propuesta se organiza en torno a un espacio circular que simboliza la relación armónica entre humanidad y naturaleza. El diseño aprovecha la luz natural, la ventilación pasiva y la modulación de espacios para crear ambientes cambiantes a lo largo del día. Se trata de una arquitectura que invita a percibir el tiempo y la naturaleza como aliados inseparables de la vida contemporánea.

FINEGLASS ES LA SOLUCION.

El mejor equipo de profesionales a su servicio y una planta industrial trabajando las 24hs. para acompañar sus proyectos con agilidad y eficacia.

VIDRIOS TEMPLADOS

(DVH)

Reduce la condensación de humedad sobre el vidrio evitando que se empañe. Manufacturado con Float de color ó reflectivo, brinda control solar y disminuye el resplandor de la excesiva luminosidad.

BARANDAS

Y PISOS

CON VIDRIO TEMPLADO LAMINADO Para proyectos enfocados a la seguridad y bienestar.

Vidrios de seguridad para cada ambiente de tu hogar.
Virgen del Rosario 563 casi Beatriz Benítez. Itauguá.

PORTUGAL: MEMORIA MARÍTIMA

El pabellón portugués, a cargo del arquitecto japonés Kengo Kuma y su equipo, se levanta como un homenaje al océano. La estructura utiliza materiales reciclados, redes de pesca y cuerdas, evocando la tradición artesanal y la memoria marítima del país. Es un proyecto que combina impacto visual con un mensaje claro de economía circular: el mar como recurso vital, espacio de encuentro y llamado de atención frente a la crisis ambiental.

FRANCIA: BIOCLIMÁTICA MULTISENSORIAL

El estudio Coldefy, con sede en Lille, diseñó el pabellón francés bajo criterios de arquitectura bioclimática. El edificio integra estrategias pasivas de eficiencia energética y utiliza materiales de bajo impacto ambiental. Su interior propone una experiencia multisensorial donde ciencia, cultura y tecnología se entrelazan, mostrando la capacidad de la arquitectura para crear espacios que educan e inspiran al mismo tiempo.

POLONIA: MIGRACIÓN COMO METÁFORA

La firma WXCA Architects desarrolló el pabellón polaco con una envolvente de madera inspirada en el vuelo de aves migratorias. El diseño recurre a módulos prefabricados que facilitan su desmontaje y reutilización, en coherencia con los principios de economía circular. Es una obra que conecta identidad nacional, biodiversidad y migración, entendida tanto como fenómeno natural como humano.

FILIPINAS: RESILIENCIA INSULAR

El estudio Budji+Royal Architecture + Design concibió un pabellón que refleja la relación entre agua, comunidad y territorio. Inspirado en las islas flotantes, utiliza materiales naturales y un lenguaje formal que comunica resiliencia frente a tifones y fenómenos extremos. Es una propuesta que transforma vulnerabilidad en fortaleza y que expone la capacidad de adaptación de la arquitectura insular.

TENDENCIAS EN COMÚN

Si bien cada pabellón responde a una identidad nacional particular, emergen tendencias claras que marcan el pulso de la Expo Osaka 2025:

• Sostenibilidad: materiales reciclados, estructuras desmontables y estrategias pasivas como norma general.

• Naturaleza como inspiración: el mar, la biodiversidad, los climas extremos y los paisajes originan metáforas y soluciones arquitectónicas.

• Experiencia participativa: los pabellones no se contemplan, se recorren e interactúan, convirtiendo al visitante en protagonista.

• Temporalidad con legado: las estructuras están pensadas para ser efímeras, pero dejan aprendizajes sobre diseño, cultura y sostenibilidad.

PARAGUAY: IDENTIDAD PROYECTADA Paraguay también dejó su huella con una propuesta cargada de identidad cultural. El pabellón nacional se convirtió en un punto de encuentro gracias a dos elementos emblemáticos: el ñandutí y el tereré.

A través de talleres liderados por la maestra Elena Iwatami, el encaje tradicional se transmitió a públicos de todas las edades, generando un puente intercultural entre Paraguay y Japón.

Al mismo tiempo, el tereré se convirtió en aliado frente al calor, reforzando la promoción de la yerba mate en un mercado con alto potencial de crecimiento. Con ello, Paraguay no solo presentó su patrimonio, sino que lo posicionó en clave contemporánea: identidad, diseño y proyección internacional en diálogo con la arquitectura global.

FÁBRICA

R u t a P a t i ñ o K m . 4 0 . 5 Ce l . : 0 9 7 1 2 0 3 3 2 3

R u t a D 0 2 7 y S a n C aye t a n o San Lorenzo - Ex Ruta 1, Km 14,5 Ce l . : 0 9 8 5 1 8 4 3 9 0

BIBLIOTECA DEL CONGRESO

Proyecto: Est arquitectura.

Arquitectos a cargo: Carlos Jiménez, Diego Molina y Luís Ibarra.

Construcción: Consorcio Ateneo – Itasa.

Fotografías: Laura Dos Santos.

Superficie: 5.700 m².

Año: 2015.

Ubicación: Asunción.

- Revista Mandu’a

Descripción elaborada por el equipo del proyecto.

La biblioteca fue construida para proveer servicios de investigación, estudios y escritos según las necesidades de los miembros del Congreso Nacional, de sus asesores y del público en general.

Posee un completo archivo documental de las actividades legislativas en el segundo nivel, y un fondo general multidisciplinar con énfasis en ciencias sociales y jurídicas en el primero.

Planta Nivel 1,31.
Corte A-A’
- Revista Mandu’a

El edificio cuenta además de los salones de libros y archivos, con una amplia sala de lectura para la ciudadanía, una zona especializada en niños, y un auditorio para actividades culturales, lanzamientos y conferencias, y zona de restauración de documentos y otros. El edificio con vocación urbana, integra de manera difuminada espacios públicos, intermedios y privados promoviendo la integración con el entorno, y la participación de la ciudadanía, convocada a atravesarlo.

Implantada en terreno de singular geometría, enclavada en el Barranco fundacional de la ciudad que conserva su naturaleza mineral casi inalterada, la biblioteca prolonga la antigua Loma Cavará, hoy Plaza Comuneros, a su cubierta verde que contiene una gran linterna de iluminación cenital para la sala de lectu-ra de triple altura, y que sirve también de acceso superior. Este espacio principal puede ser abordado tanto desde la Plaza Comuneros como desde el Parque Bicentenario, y su vocación integradora de la ciudad formal y el borde costero materializa el vínculo a través de una escalera helicoidal de presencia protagónica.

- Revista Mandu’a

Mientras desde la ciudad la biblioteca se mimetiza con el paisaje, a través de su cubierta de césped que es también acceso, y que resulta la continuación de la Plaza Comuneros.

Desde la bahía presenta una larga logia recorrible peatonalmente, sobre la que se eleva la planta alta del edificio, que como un muelle costero, articula las relaciones espaciales y morfológicas del entorno histórico, convocando en un futuro al Almacén Viola a sumarse a la sinergia de espacios públicos y privados creada, de modo a que esta galería hoy limitada por una pared provisoria, sea atravesada hacia el Almacén y el Barranco.

Más que representarse a sí mismo, el ediicio asume así su rol activador del entorno natural y construido para promover nuevas dinámicas urbanas, inte-gradas a través de una actividad cultural de prestigio.

FACULTAD DE INGENIERÍA DE BOLZANO

Proyecto: Olivieri Office.

Fotografías: Jesús Granada.

Área: 20.000m².

Año: 2024.

Ubicación: Bolzano, Italia.

- Revista Mandu’a

Descripción elaborada por el equipo del proyecto.

La nueva Facultad de Ingeniería de la Universidad Libre de Bolzano (UniBZ) es fruto de un concurso promovido por el NOI Techpark Südtirol/ Alto Adige, ganado en 2018 por el estudio italiano Olivieri Office, con oficinas en Génova y Trento. El edificio se encuentra en el extremo noroeste del NOI Techpark.

El conjunto cuenta con siete plantas sobre rasante y un sótano, alcanzando los 30 metros de altura y una superficie total de 20.000 metros cuadrados. El proyecto parte de un bloque compacto del que se sustraen volúmenes estratégicamente, generando una arquitectura porosa con amplios vacíos que dan lugar a terrazas y patios.

Sección Longitudinal.

Planta Baja.
- Revista Mandu’a

La composición del edificio se configura a partir de dos elementos principales: una base transparente, con grandes superficies vidriadas, reforzadas por muros de hormigón visto, y un volumen superior revestido con una segunda piel de paneles triangulares de chapa expandida pintada al polvo.

La elección del aluminio para la fachada no solo responde a criterios funcionales y estéticos, sino que también rinde homenaje a la historia industrial del lugar, tradicionalmente ligado a este metal.

La envolvente del edificio está compuesta por un sistema de paneles metálicos fijos y móviles que regulan la entrada de luz y protegen del sol. Estos paneles se controlan mediante sensores de luminosidad y viento, o de forma manual.

Las terrazas albergan 600 metros cuadrados de muros verdes, con 86 especies de plantas herbáceas y arbustivas que favorecen la biodiversidad y reducen la radiación solar.

El diseño sigue estrictos criterios de eficiencia energética, incorporando estrategias pasivas de control climático. Además, los pavimentos interiores se realizan con piedra artificial obtenida del reciclaje de residuos de pórfido de canteras locales.

PUERTAS AUTOMÁTICAS EASY SOS

Acceso seguro y evacuación eficiente.

La puerta automática Easy SOS de Manusa ofrece una solución avanzada en accesos para espacios públicos, al combinar la comodidad de una puerta corredera automática con la seguridad de un sistema antipánico abatible en situaciones de emergencia. Este diseño está especialmente pensado para lugares de gran afluencia, como hospitales, aeropuertos, estaciones o centros comerciales.

Su doble funcionalidad es uno de los principales beneficios: en el uso diario, opera como corredera automática, optimizando el flujo de personas y la accesibilidad. Sin embargo, en caso de emergencia, las hojas pueden abrirse manualmente hacia el exterior con un simple empuje, permitiendo una evacuación amplia, rápida y segura.

El diseño está disponible en versiones enmarcadas, ideales para zonas de tránsito intensivo, o completamente acristaladas, que ofrecen una estética moderna y transparente sin comprometer la seguridad.

Además, el mecanismo permite un repliegue lateral, maximizando el espacio libre y favoreciendo una evacuación fluida.

Contar con puertas equipadas con sistemas antipánico resulta crucial para salvar vidas. En situaciones críticas, los segundos son determinantes, y disponer de una salida intuitiva y confiable asegura el cumplimiento de las normativas de seguridad vigentes, al mismo tiempo que protege a los usuarios.

En definitiva, la puerta Easy SOS de Manusa no solo mejora la operatividad diaria de cualquier edificio, sino que también representa un valor agregado en términos de seguridad, prevención y protección.

Para más información y asesoramiento, contacte con ShoppinGlass en su local de Itapé 216 c/ Solar Guaraní, Lambaré, o a través de los teléfonos (021) 906-951/2 – (021) 328 0572 – (0971) 543 246. También puede visitar la web: www.shoppinglass.com.py.

PATAS NIVELADORAS

Seguridad y precisión en andamios.

Las patas niveladoras o regulables para andamios son componentes esenciales en la construcción y el mantenimiento de estructuras. Su función principal es ajustar la altura y nivelar el andamio, permitiendo que la base se apoye de manera segura incluso en terrenos irregulares, escaleras, banquetas o superficies desniveladas.

Fabricadas en metal, son resistentes, fáciles de transportar y compatibles con distintos tipos de andamios. Su versatilidad las convierte en un recurso indispensable en obras de construcción como en trabajos, donde la precisión y la estabilidad resultan claves para evitar accidentes.

La característica central de estas piezas es el ajuste de altura, que asegura un soporte estable para la estructura. Un andamio correctamente nivelado reduce el riesgo de vuelcos o colapsos, protegiendo a los trabajadores y garantizando la integridad de la obra.

Además, el uso adecuado de patas niveladoras contribuye al cumplimiento de las normativas de seguridad y construcción, fortaleciendo la eficiencia en cada proyecto.

Cada pata cuenta con especificaciones técnicas —capacidad de carga y rango de regulación— que deben conocerse y respetarse para garantizar un uso seguro. De este modo, se logra un entorno de trabajo estable y alineado con las exigencias actuales de la industria.

Para más información y asesoramiento, visite los locales de Mba’aporã o comuníquese a los siguientes números:

• Casa Central: (021) 291859 / (0982) 298379.

•Sucursal Luque: (0974) 571277.

MANO DE OBRA

MANO DE OBRA

Trabajos preliminares

Demoliciones

De mampostería con recuperación

1 De 0,45 m

2 De 0,30 m

3 De 0,15 m

De mampostería sin recuperación

1 De 0,45 m

2 De 0,30 m

3 De 0,15 m

Demoliciones varias

1 De techo de teja con recuperación

2 De techo de teja sin recuperación

3 De techo de chapa

4 De techo bovedilla

5 De cielorraso armado (desmontar)

6 De losa de Hº Aº

7 De piso/revoque/revestimiento

8 De contrapiso (cuando no hay piso)

9 Sacar zócalo

10 Sacar azulejos

13 Sacar mamparas (Durlock, Duratec, etc.)

14 Sacar Aire Acondicionado

14 Desmontar electricidad (boca)

16

Preparacion de obra

1 Limpieza de terreno (no incluye corte ni destronque de árboles)

Destronque de árboles

1 Árbol chico

2 Árbol mediano

4000

3 Árbol grande un 528.000

4 Árbol extragrande

Casilla de obrador

1

2

2

3 Tendido

1 Losa

2 Losa + columna + viga

3 Losarap montaje y hormigonado

4 Pre Losa montaje y hormigonado

Cadenas

1 Cadena 13x30 PB m 77.000

2 Cadena 20x40 PB

ESCALERAS

1 Tramo compensado a=1.20 m c/ escalón

2 Tramo recto a= 1.20 m cada escalón, un

PISOS

1 Piso rodillado espesor 12 cm

2 Piso rodillado espesor 10 cm

3 Piso rodillado espesor 08 cm

4 Piso allanado espesor 15 cm (Incluye Alquiler máquina)

5 Piso allanado espesor 12 cm (Incluye Alquiler máquina)

6 Piso allanado espesor 10 cm (Incluye Alquiler máquina)

7 Piso allanado espesor 08 cm (Incluye Alquiler máquina)

Fundaciones

1 Cimiento PBC sin excavación

2 Hormigón ciclópeo sin excavación

Mamposteria y muros

Nivelación con ladrillo común

1 De 0,15 m armada

2 De 0,30 m

3 De 0,30 m

4 De 0,45 m

Panderete

1 De 0,07 - 0,10 m

Elevación 0,15 m con ladrillo común

1 De 0,15 m

2 De 0,15 m armada

3 De 0,15 m,1 cara vista

4 De 0,15 m,1 cara vista y lijada

5 De 0,15 m,1 cara vista con ladrillo laminado

Elevación 0,20 m con ladrillo común

1 De 0,20 m

2 De 0,20 m,1 cara vista y lijada

3 De 0,20 m,1 cara vista con ladrillo laminado

Elevación 0,30 m con ladrillo común

1 De 0,30

2 De 0,30 m armada

3 De 0,30 m,1 cara vista

4 De 0,30

5 De 0,30 m,1 cara vista con ladrillo laminado

6 De 0,30 m, 2 caras vistas con ladrillo laminado

1 De

Pilar 40x40 cm, Visto con ladrillo común m

con piedra

Muro de piedra 0,40 m 1 cara vista

Muro de ladrillo convocó 2 caras vistas

Elevación con ladrillos huecos

De 0,20 m, 1 cara vista

De 0,24 m

De 0,30 m, 1 cara vista

Elevación estructural con ladrillo portante

De 0,15 m

De 0,30 m

con bloques de hormigón

De 0,15 m

De

De

Servicios para mampostería

Lijada de mampostería para visto

Lijada de pilar o

Aislación hidrófuga

Horizontal sin asfalto (1:3), sin alisada

De 0,15 m

De 0,30 m

Horizontal en “U” con asfalto

De 0,15 m

De 0,30 m

Aislación Hidrófuga

MANO DE OBRA

Dinteles

1 En mampostería c/ 2 varillas m 11.000

2 Sobre aberturas c/4 varillas m 15.000

3 Colocación de dintel prefabricado m 15.000

4 Dintel zuncho de bloque m 31.000

5 Colocación de perfil de hierro m 15.000

Contrapisos (no incluye alisada)

1 Apisonado de Hº cascotes 8 cm m² 15.000

2 Apisonado de Hº cascotes 10 cm m² 18.000

3 Apisonado de Hº cascotes 10 cm, c/ pendiente m² 21.000

4 Apisonado de Hº cascotes 20 cm m² 26.000

5 Apisonado sobre losa Hº Aº e=7cm m² 14.000

6 Apisonado sobre losa Hº Aº e=6cm m² 13.000

7 Apisonado de Hº cascotes con varilla m² 21.000

8 Hº Aº e=7cm

Revoque de paredes

Revoques

1 Común, fratachado o peinado m² 22.000

2 Común, fratachado y filtrado

3 Común, fratachado y filtrado; h=+5.00 m

4 Común, fratachado o peinado; h=+5.00 m m² 30.000

5 Fino o filtrado sobre revoque peinado existente m² 11.000

6 A 2 capas (grueso + fino) m² 30.000

7 A la lona o bolseado m² 13.000

8 Salpicado m² 22.000

9 Base para revestidos

Azotadas hidrófugas para adherencia:

10 Espesor = 1 cm x ladrillo

11 Espesor = 0,5 cm x ladrillo

12 Espesor = 0,5 cm x ladrillo en h=+ 5,00 m

13 Espesor = 1 cm x ladrillo en h=+ 5,00 m exterior

14 Azotada p/ impermeable

Revoque de cielorrasos

1 Azotada para adherencia por losa de Hº Aº, 0,5 cm

2 A 1 capa fratazado y filtrado sin azotada

3 A 1 capa fratazado y filtrado con azotada

4 A 2 capas (grueso + fino),con azotada

5 A 2 capas sin azotada

6 Azotada o base planchada de metal desplegado

Revoque de vigas/pilares/aristas

1 Revoque de arista o canto

2 Revoque de babetas o buñas

3 De mochetas con 2 aristas (0,15x0,15)

4 De goterón en alero

5 De losa de Hº Aº

22.000

10.000

7.000

10.000

13.000

10.000

8.000

33.000

9 Revoque

1 De teja española con tejuelón; incluye: maderamen, aislante, caballete y bocateja

2 Idem

3

4 De teja española sobre machimbre: maderamen, aislante,

5

6 De teja francesa vana

7 De chapa galv. s/ estruc. de tirantes 2x6”

9 De chapa de fibrocemento acanalada autoportante

13.000

10.000

15.000

21.000

6 De ductos m 21.000

7 De vigas de Hº Aº de 15x20 ó 20x30 cm (incluye azotada + aristas)

8 De vigas de Hº Aº de 20x40 ó 30x50 cm (incluye azotada + aristas) por cara

46.000

Montaje de maderamen c/ tirantes 2x5” o 2x6” cepillados

Techo metálico (tinglado), preparación y montaje

(incluye armazón de madera) 1

Sobre carpeta existente

1 Cerámica esmaltada P I 5 m² 34.000

2 Cerámica esmaltada en baño m² 31.000

3 Cerámica esmaltada en escalón m 39.000

4 Cerámica porcellanato m² 37.000

5 Piso calcareo m² 26.000

Carpeta o base

1 Para alfombra o cerámica e=2cm m² 18.000

2 Alisada de cemento e=3cm m² 24.000

3 Para alfombra o cerámica en escalones un 18.000

4 Regleado rústico m² s/c

5 Alisada sobre contrapiso m² 7.500

6 Banquina p/ placard (contrapiso + carpeta hidrófuga) m 33.000

7 Baldosa calcárea o canto rodado m² 26.000

8 Mosaico granítico m² 26.000

9 Pulido de mosaico granítico

10 Layota nacional o esmaltada

11 Veredita calcárea

12 Ladrillo común

13 Tejuelita

14 Baldosones de hormigón, 40x40 cm

26.000

26.000

21.000

15 Piso de HºAº rodillado de 12 cm m² 36.000

16 Plancha de granito o mármol

44.000

17 Plancha de mosaico granitico m² 39.000

18 Parquet a bastón roto o tipo colonial clavado

53.000

19 Parquet de lapacho tarugado m² 59.000

20 Parquet de machimbre curupa’y, 1 x 3” pulido y lustrado m² 67.000

21 Piso de madera rasqueteado y encerado m² 60.000

22 Alfombra multipiso m² 18.000

20 Piso vinílico 30x30 m² 23.000

21 Piedra losa rompecabeza con junta tomada

22 Piedra losa rectangular

39.000

39.000

23 Piedra losa 30x30, 30x40 y 40x40 m² 39.000

24 Piedra ardosia m² 39.000

25 Piedra laja m² 39.000

26 Piedra rústica roja Misiones m² 39.000

27 Piedra triturada esparcida a mano m² 7.000

28 Adoquín de piedra m² 42.000

Varios

1 Colocación tapa metálica en cámara de inspección un 44.000

2 Colocación rejilla en cámara de inspección un 44.000

Empedrado

1 Empedrado, h=0,20 m sin cordón m² 17.000

2 Empedrado, h=0,40 m sin cordón m² 28.000

3 Colocación de cordón Hº Prefabricado m 13.000

Calcáreo

Cerámico

Mármol

Cámara séptica (1,00x1,60x1,20 m) con excavación

990.500 25 Pozo absorvente (Ø: 1.50 m x altura 3,00 m) con excavación un 1.650.000

Desagües para baño 1 Baño completo standard

Baño completo con bañera un 380.000

Baño de servicio un 222.000 4 Baño social un 159.000 5 Para pileta de lavar y lavarropas un 159.000 6 Para pileta de cocina (incluye desengrasador y caja sifonada) un 126.000

Agua corriente

1 Caño PVC 1” (incluye excavación, colocación y protección) m 16.000 2 Idem anterior de 3/4 m 13.000 3 Idem anterior de ½ m 8.000 4 Instalación de canilla de patio, + 5 ml de cañería un 64.000 Instalación agua fría

Para baño

Para baño de servicio

5 Para pileta de cocina un 126.000

Instalación agua caliente y fría

1 Para pileta de cocina un 254.000

2 Para baño completo un 697.000

Colocación de artefactos

Sanitarios y Grifería

1 Baño completo 115,500 x 4 un 462.000

2 Baño de servicio 100.500 x 2 un 234.000

3 Baño social 117.000 x 2 un 234.000

4 Pileta de cocina un 122.000

5 Pileta de lavar un 122.000

6 Bañera común un 314.000

7 Bañera hidromasaje un 524.000

8 Accesorios de baño (jabonera, percha, etc) un 22.000

9 Colocación de calefón un 175.000

9 Colocación de ducha eléctrica un 33.000

Instalación eléctrica

1 Boca de luz un 53.000

Trabajo de Albañilería

1 Pilar de mampostería para medidor de 0,45x0,45x1,70 m no incluye cimiento ni nivelación un 480.000

2 Registro eléctrico c/ drenaje y tapa de 30x30x40 cm un 105.000

3 Idem anterior 40x40x70 cm un 131.000

4 Colocación caja aire acondicionado un 72.000

Puesto de medición provisorio 1

1 Monofásico 12 bocas

2 Trifásico 14 bocas

Puesto de medición definitivo 2

1 Monofásico 14 bocas

2 Trifásico hasta 3A 18 bocas

Tablero principal o seccional

1 Colocación de caja embutida en mampostería hasta 40x50 cm 3 bocas

2 Disyuntor TM de corte principal o seccional o de circuito unipolar 2 bocas

3 Idem anterior tripolar 3 bocas

4 Instalación de interruptor diferencial 6 bocas

Líneas subterráneas

(Incluye excavación a una profundidad de 0,50 m en tierra firme y sin piedra, instalación de eléctroducto con protección mecánica y cableado)

1 Monofásica de 4 a 10 mm m 7.000

2 Trifásica de 4 a 10 mm m 13.000

3 Trifásica de 16 a 25 mm m 21.000

Línea embutida en mampostería (incluye colocación de electroducto y cableado)

1 Monofásica de 4 mm m 7.000

2 Monofásica de 6 mm m 7.000

3 Monofásica de 10 mm m 8.000

4 Trifásica de 4 a 10 mm m 11.000

5 Trifásica de 16 a 25 mm m 13.000

Líneas aéreas

1 Monofásica de 4 a 10 mm m 3.000

2 Trifásica de 4 a 10 mm m 7.000

3 Trifásica de 16 a 25 mm m 9.000

Electroductos embutidos en mampostería sin cableado

1 De 5/8” m 3.000

2 De 1/2” m 3.000

3 De 3/4” m 3.000

4 De 1” m 3.000

Lámparas y tomas de corriente (Embutidos en mampostería hasta 5m del tablero)

1 Una lampara con su interruptor 1 boca

2 Una lámp. c/ 2 llaves de comb. de escalera 2 bocas

3 Una Toma corriente 1 bocas

4 Por llave de 4 vías o intermedia adicional 1 boca

Circuitos independientes

1 Circuito para aire acondicionado sin montaje de aparato ni abertura de mampostería hasta 5 m del tablero (mismo que recorran cañerías con otros circuitos)

4 bocas

2 Circuito p/ calefón o ducha eléctrica idem anterior 4 bocas

3 Circuito monof. p/ motobomba c/ cable de 4mm hasta 5 m del tablero 4 bocas

Colocaciones

1

3 Tubo fluorecente doble un 16.200

4 Apliques y arañas un 16.200

Carpinteria de aluminio

Colocación de premarco de aluminio:

1 Chico 1 m² un 64.000

2 Mediano 3m² un 92.000

3 Grande 4 m² un 125.000

4 Extra grande 5 m² un 150.000

Carpintería de madera

Colocaciones

4 Puerta persiana o vidriera chica hoja 46.000

5 Puerta tablero un 96.000

6 Puerta tablero principal incluye hoja, manijón y visor un 128.000

7 Ventana persiana o vidriera 0,65 x 1,00 mt hoja

Carpintería metálica

Colocaciones de:

1 De marco de chapa doblada de 0,80x2,10 m un 66.000

2 De marco de chapa doblada de 1,50x1,20 m un 88.000

3 De marco de chapa doblada con relleno un 88.000

4 De marco metálico - ángulo un 66.000

5 De guías metálicas y taparrollo p/ cortina de enrollar un 264.000

6 De reja de hierro entre marcos un 44.000

7 De reja de hierro aplicada a la pared un

8 Portón de hierro

9 Balancín chico 40x40 cm sin revoque

44.000 10 Balancín mediano 1,00x1,50 m sin revoque

11 Balancín grande 2,00x1,80 m sin revoque

Pintura de pared

1

3

4

19.000 7 Al esmalte sintético interior/ exterior con enduido

Repintado de pared

1 Al látex interior o exterior

2 Al látex interior o exterior altura + de 5m

11.000 Enduído

1 De pared m² 12.000

2 De abertura de madera

Techo

1 Tejuelita a la cal y maderamem c/ esmalte sintético

17.000 2 Tejuelón y maderamem barnizado

3 Tejuelita o tejuelón barnizado y maderamem con esmalte sintético

4 Pintura de alero de 0,60 m m 20.000

Cielorrasos

1 Al látex con fijador sin enduido

2

3

4 Barnizado de machimbre

Aberturas de madera 1 Marco y hoja con esmalte sintético

2 Marco y hoja con barniz

Aberturas metálicas

1 Marco y hoja c/ cromato y esmalte sintético

2 Rejas, barandas y balancines c/ cromato y esmalte sint

3 Tejido de metal

Canaletas y bajadas

1 Con base p/ galvanizado y esmalte sintético m 10.000

Ladrillo visto, hormigón y piedra

1 Limpieza, curado y siliconado o barnizado m² 15.000

2 Limpieza, curado y siliconado o barnizado en altura m² 17.000

3 Limpieza, curado y pintura a la cal m²

en silleta

1 Moldura doble m 63.000

Parrilla con boca 1,00 m, un 1.980.000 5 Colocación balaustre sencillo m s/c 6 Tanque de fibra de vidrio

Tanque de fibra de vidrio

Jornal de mercado

1 Capataz - día 208,800 h 31.375 2 Oficial - día 167,000 h 26.000 3 Medio oficial - día 135,700 h 20.875

Ayudante - día 94,000 h 14.875

Honorario técnicos

Losa fck=21MPa

COSTEO DE OBRA

TRABAJOS PRELIMINARES

Relleno y Compactación

Tierra gorda, m3

Mano de obra, m3 1,00 44.000 44.000

Total por: m3

Cartel de Obra (de 1.40x2.80m con marco metálico y lona. A retirar y sin colocación)

Cartel de obra, un

Vallado de Obra

Chapa cincalum Nº 28, un 0,50

2.44x0,90,

Puntal de eucalipto pulg/

Clavo con cabeza de un

plomo,

Encadenado Inferior 13x20 en PB

Encadenado 13x30 cm

ESTRUCTURAS DE HORMIGON ARMADO

Zapata fck=18 MPa

Columna fck=21 MPa

Escalera de HºAº fck=21MPa15 escalones de 0.30x1.10m y 1 descanso

Viga fck=21MPa

Losa Rap h=12+5=17cm, luz hasta 4,80m (1:2:3,5)

Losa Rap h=20+4=24cm, luz hasta 4,70 m (1:2:3,5) Cemento

Cimiento PBC sin cal (1:12) m3

Cimiento de H° de Cascotes - Tierra Gorda

Losa Listalosa

Cemento

Piso HºAº fck=21MPa - Tráfico ligero 10 cm Cemento tipo 1,

Cimiento de H° de Cascotes - Arena Lavada

Ciclópeo (1:3:6)

1” a 7”, kg 0,40 18.000 7.200

kg 0,35 19.850

SIKAFLEX Sellador de pomo 0,33 57.000 18.810 juntas - 300ml,

MAMPOSTERIAS

De Nivelación

Con ladrillo común y junta de 2 cm

De 0.30 m de ancho (1:2:8) con cemento Tipo 1

Ladrillo común, un

tipo 1, kg

lavada,

De 0.30 m armada (1:4) con cemento Tipo 1

Ladrillo común, un 122 700 85.400 Cemento tipo 1, kg 16,0 1.100 17.600

FUNDACIONES

Cimiento PBC con cal (1/2:1:4) Piedra

De 0.45 m de ancho (1:2:8) con cemento Tipo 1

Ladrillo común, un

COSTEO DE OBRA

De Elevación

Con ladrllo común y junta de 2 cm

De 0.15 m (1:2:10) con cemento tipo 1

Ladrillo común,

De 0.15 m (1:2:10) con cemento tipo 1 - A la vista

Con Ladrillos Cerámicos Huecos y junta de 1,5

De 0.15 m (1:2:8) con cemento tipo 1

Ladrillo 6 tubos de 1ra, un

12x18x25 cm Ita Yby,

De 0.15 m (1:2:8) 1 cara vista con cemento tipo 1

Ladrillo 6 tubos de 1ra, un 20,0 1.298

12x18x25 cm Ita Yby,

De 0.20 m (1:2:10) con cemento tipo 1

Ladrillo

De 0.20 m (1:2:10) con cemento tipo 1 - A la vista

Ladrillo

De 0.30 m (1:2:10) con cemento tipo 1

Ladrillo común,

De 0.07 m (1:2:10) con cemento tipo 1 y junta de 1.5 cm Ladrillo

De 0.20 m (1:2:8) m con cemento tipo 1

Ladrillo hueco un

18x18x25 Ita Yby

De 0.20 m (1:2:8) con cemento tipo 1

Ladrillo 6 tubos de 1ra, un

8x18x25 cm Ita Yby

De 0.15 m (1:2:8) con cemento tipo 1

6x12x25 cm Ita Yby,

Elevaciones Varias

Sardinel de Ladrillos Comunes Ladrillo común,

De Elevación

Sardinel de Ladrillos Laminados

Ladrillo laminado Ita Yby un 14,0 1.265 17.710

1ra A, 6x12x25 cm

Cemento tipo 1,

Ladrillo Convocó

Ladrillo

de 1ra, 19x19x10 cm Yoayu

tipo 1,

Muro de Piedra Bruta de 30 cm (1/2:1:4)

AISLACION

COSTEO DE OBRA

Horizontal 0.30 con asfalto Cemento tipo 1,

Horizontal 0.15 con asfalto

Cemento tipo 1, kg 1,00 1.100 1.100 Arena lavada, m3 0,02 65.000

Vertical con Panderete 0.15 m Ladrillo común, un 27,0

De Losa con Piso de Tejuelita Prensada

Pilar de Ladrillo Común 30x30 (1:1:6)

Pilar de Ladrillo Común 30x30 (1:1:6) - A la vista

Ladrillo común un

Muralla de Ladrillo Común (e=0.15m, h=2.00m, con pilares de 0.30 x 0.30 cada 2.00m)

De Losa Para Baño

DINTELES

De Varilla Sobre Abertura

De Hormigón Prefabricado

0.30x0.30 m a la vista,

COSTEO DE OBRA

CONTRAPISOS

De 7 cm (1/4:1:4:6)

De 10 cm (1/4:1:4:6)

De 20 cm en Losa Sanitaria

TECHOS

Teja Española sobre Tejuelón c/ Madera de Ybyrapyta

Teja

Machimbre

REVOQUES

De Paredes

A 1 Capa, Espesor 1.5 cm (1:4:16) con hidrófugo

Cemento

A 1 Capa, Espesor 1.5 cm (1:4:16) s/ hidrófugo, m2 29.850

Salpicado (1:3)

Cemento tipo 1, kg 3,00 1.100 3.300

Arena lavada, m3 0,01 65.000 650

Ceresita hidrófugo, kg 0,25

Azotada Impermeable (1:3), Espesor 0.5 cm

Cemento tipo 1, kg 2,70 1.100 2.970

Chapa N° 28 s/ estructura de caños metálicos

Chapa N° 28 s/ Estructura de Varillas torsionadas

Varilla

De Cielorrasos (1:4:12) Cemento

Chapa de Fibrocemento Ondulada 6 mm

Mosaico Graníto Lavado (para exterior 30x30cm)

TECHO METÁLICO CON CHAPA TRAPEZOIDAL

Separación entre correas 1,20 m

Varios incluye pintura, electrodo, aguarras, discos Chapa trapezoidal N°27 0.40 mm 1.05 x

de 1 1/4

(ancho util 0.98)

Cerámica Esmaltada

TECHO METÁLICO CON CHAPA TERMOACUSTICA

Con cabriada de 40 x 12 cm. No incluye pilares.

Chapa con isopor 30 mm Galva/Marfil Econml

C 100x38 1.80mm

Entrepiso de Madera

Tirante de ybyrapyta

PISOS

Baldosa Calcárea

Baldosa

Mosaico Granítico (base gris 30x30cm)

Cemento tipo 1, kg 8,00 1.100 8.800

Cal triturada, kg 7,00 1.225 8.575

Arena lavada, m3 0,03 65.000 1.950

Pastina base gris, kg 0,75 6.000 4.500

Mano de obra pulido, m2 1,00 26.000 26.000

Ceramica 45x45cm

Layota 28x28cm

Plancha para Revestido de Escalera

Piedra Losa Rompecabeza

COSTEO DE OBRA

Piedra losa Blanca Cuadrada Pulida

Piedra losa

pulida,

Alisada de Cemento

Baldosones de Hormigón (40x40x3cm)

Baldosón

Carpeta para Piso Cerámico o Alfombra Cemento

Calcáreo Base Gris

Alfombra (2mm sin carpeta)

Alfombra multipiso, m2 1,10

Madera 3/4 x 3”, Zocalo de cedro,

Alfombra

Cerámica Esmaltada

Mosaico Granítico (base blanca pulido 10x30cm) Zócalo

Empedrado

Piedra bruta blanca, m3 0,20 150.000 30.000 Arena lavada, m3 0,15 65.000 9.750

Ripio de piedra, tn 0,07 70.000 4.900 Mano de

Hormigón Armado 12

ZOCALOS

Layota 28x10cm

CIELORRASO

De machimbre c/ armazón de madera, no incluye corniza

Liston de cedro 1x2”, ml 10,0

Machimbre

REVESTIDOS

“No incluye la base previa”

Piso Pared Cecafi Cecafi 32 x57cm m2

Porcelanato 60 x 60 cm

Piso Pared 31 x 31 cm

Ladrillejo

Ladrillejo de 1ra Yoayu

Piedra Laja Fina (1 a 2 cm de espesor)

Piedra laja fina, m2 1,05 50.000 52.500 Cemento tipo 1, kg 3,00 1.100 3.300 Cal triturada, kg 2,50

DESAGÜE CLOACAL Y PLUVIAL

Boca Desagüe Abierta 20x20x20cm

Ladrillo común, un

Boca Desagüe Abierta 30x30x30cm

Ladrillo

Boca Desagüe Abierta 40x40x40cm

Ladrillo

Registro 30x30x30cm

Ladrillo común,

Registro 40x40x40cm Ladrillo común, un

Registro 60x60x50cm

Caño

Caño PVC 100mm Caño

Caño de Hormigón 50cm, Roto Comprimido

Caño de Hormigón 60cm, Roto Comprimido

COSTEO DE OBRA

Caño de 80cm Hº Aº Vibrado Simple - Macho/Hembra

Caño de 80 cm, un 1,00 399.500 399.500

Mano de obra, ml 1,00 70.000 70.000 Total por: ml 469.50

Pozo Ciego (Diámetro=1.50 m y h=3.00 m)

Ladrillo común,

Cámara Séptica (1x1.60x1.20m)

Ladrillo común,

Rejilla de Piso Sifonada

Caja sifonada cuadrada

Desagüe Cloacal p/ Baño Completo (hasta el primer registro)

Caño 100 mm Titan, ml 2,00 14.000 28.000

Caño de PVC 50 mm, ml 2,00 11.250 22.500

Caño PVC 40 mm, ml 4,00 7.450

Codo 90º p/ desagüe 100mm un 1,00 11.150 11.150

Codo 90º p/ desagüe , buje largo 40mm, un 2,00 1.550 3.100

Codo 45º p/ desagüe un 2,00 1.600 3.200 secundario 40mm,

Caja sifonada

150x150x50mm, un 2,00 72.000 144.000 c/ rejilla aluminio

Adhesivo 75 gr, un 2,00 9.200 18.400

Limpiador 200 cc, un 1,00 27.000 27.000

Mano de obra, un 1,00 317.000 317.000

Total por: un 604.150

Desagüe Cloacal p/ Baño de Servicio

(hasta el primer registro)

Caño 100 mm, ml 2,00 14.000 28.000

Caño PVC 50 mm, ml 1,00 11.250 11.250

Caño PVC 40 mm, ml 3,00 7.450 22.350

Codo 90º p/ desagüe un 1,00 11.150 11.150 primario 100mm,

Codo 45º p/ desagüe un 1,00 9.450 9.450 primario 100mm,

Codo 45º p/ desagüe un 1,00 4.000 4.000 primario 50mm,

Codo 90º p/ desagüe un 1,00 1.550 1.550 secundario, buje largo 40mm

Codo 45º p/ desagüe un 2,00 1.600 3.200 secundario 40mm,

Ramal de reducción 45º un 1,00 16.500 16.500 simple p/ desagüe primario 100x50mm, Caja sifonada cuadrada un 1,00 72.000 72.000 nº 25, 150x150x50mm, Prolongador un 1,00 7.950 7.950 150x150mm p/ caja

Anillo de sellado p/ un 3,00 5.000 15.000 desagüe 100 mm, Anillo de sellado p/ desague 50mm un 2,00 2.900 5.800 Adhesivo

Desagüe Cloacal

Para Baño Social

(hasta el primer registro)

Caño

Caño

Caño PVC 40 mm, ml 2,00 7.450 14.900

Codo 90º p/ desagüe un 1,00 11.150 11.150 primario 100mm,

Codo 45º p/ desagüe un 1,00 9.450 9.450 primario 100mm,

Codo 45º p/ desagüe un 1,00 4.000 4.000 primario 50mm,

Codo 90º p/ desagüe un 1,00 1.550 1.550 secundario, buje largo 40mm

Codo 45º p/ desagüe un 2,00 1.600 3.200 secundario 40mm,

Ramal de reducción 45º un 1,00 16.500 16.500 simple p/ desagüe primario 100x50mm,

Caja sifonada cuadrada un 1,00 72.000 72.000 nº 25, 150x150x50mm,

Anillo de sellado p/ un 2,00 2.900 5.800 desagüe 50 mm,

Anillo de sellado p/ un 3,00 5.000 15.000 desagüe 100 mm,

Adhesivo 75 gr, un 1,00 9.200 9.200 Limpiador 200 cc, un 1,00 27.000 27.000

Mano de obra, un 1,00 159.000 159.000

Total por: un 388.000

Desagüe para Pileta de Lavar y Lavarropas

Caño PVC 50 mm, ml 2,00 11.250 22.500

Caño PVC 40 mm, ml 3,00 7.450 22.350

Codo 90º p/ desagüe un 2,00 1.550 3.100 secundario, buje largo 40mm

Codo 45º p/ desagüe un 2,00 1.600 3.200 secundario 40mm,

Caja sifonada cuadrada un 1,00 72.000 72.000 nº 25, 150x150x50mm,

Adhesivo 75 gr, un 0,50 9.200 4.600

Limpiador 200 cc, un 0,50 27.000 13.500

Mano de obra, un 1,00 159.000 159.000 Total por: un

Desagüe para Pileta de Cocina

Caño PVC 50 mm, ml 3,00

Codo 90º p/ desagüe un 2,00 4.500 9.000 primario 50mm,

Ramal de reducción 45º un 1,00 16.500 16.500 simple p/ desagüe primario 100x50mm,

Desengrasador redondo un 1,00

67.000 nº 70, 250x172x50,

Adhesivo 75 gr, un 0,50 9.200 4.600 Limpiador 200 cc, un 0,50

Mano de obra, un 1,00

por: un

AGUA CORRIENTE

Caño PVC de 1” Caño

Caño PVC de 3/4”

Caño PVC roscable ml 1,00 12.850 12.850

Mano de obra, ml 1,00

por: ml

Caño PVC de 1/2”

Caño PVC roscable, ml 1,00 9.850 9.850

Mano de obra, ml 1,00 8.000 8.000

Total por: ml 17.850

Instalación Agua Fría en Baño Completo

Caño 1/2” roscable, ml 9,00 9.850 88.650

Codo 90º roscable, 1/2”, un 6,00 1.660 9.960

Llave de paso de 1/2” un 2,00 87.700 175.400 cromada FV Linea Clásica

Tapon roscable macho ½”un 4,00 690 2.760

Tee 3/4”x1/2” IPS, un 4,00 3.400 13.600

Adhesivo 75 gr, un 0,60 9.200 5.520

Cinta teflon 18mmx25m, un 2,00 9.600 19.200

Mano de obra, un 1,00 412.000 412.000

Total por: un 727.090

Instalación Agua Caliente y Fría en Baño Completo

Caño de 1/2” p/ agua calienteml 9,00 10.350

FV Linea Clásica, Tapón roscable macho ½”un

Instalacion Agua Caliente y Fría en Baño Completocon FV Allegro un 1.657.510

Instalación Agua Fría en Baño de Servicio

roscable, 3/4x1/2,

bajada de un

embutir p/ cisterna nº 4, Tapón roscable macho ½” un

bronce sin campana,

Instalación Agua Fría en Baño Social Caño 1/2” roscable, ml 4,00 9.850 39.400 Codo 90º

Linea Clásica, Adhesivo 75gr,

Instalación Agua Fría en Baño Social - FV Allegro

Total por: un 361.680

Instalación Agua Fría p/ Pileta de Lavar y Lavarropas

COSTEO DE OBRA

Caño 1/2” roscable, ml 3,00 9.850 29.550

Codo 90º roscable, 1/2”, un 3,00 1.660 4.980

Tee 90º p/ desagüe un 1,00 4.000 4.000 secundario, 40mm,

Tapon roscable macho ½”un 2,00 690 1.380

Llave de paso de 3/4” un 1,00 84.000 84.000 bronce sin campana,

Adhesivo 75gr, un 0,20 9.200 1.840

Cinta teflon 18mmx25m, un 1,00 9.600 9.600 Mano de obra, un 1,00 191.000 191.000

Total por: un 326.350

Instalación Agua Fría para Pileta de Cocina

Caño 1/2” roscable, ml 2,00 9.850 19.700

Codo 90º roscable, 1/2”, un 3,00 1.660 4.980

Tapón roscable macho ½”un 1,00 690 690

Llave de paso 1/2” un 1,00 58.000 58.000 bronce sin campana,

Adhesivo 75gr, un 0,20 9.200 1.840

Cinta teflón 18mmx25m, un 1,00 9.600 9.600

Mano de obra, un 1,00 126.000 126.000

Total por: un 220.810

Instalación Agua Caliente y Fría p/ Pileta de Cocina

Caño de 1/2” p/ agua calienteml 6,00

Caño roscable 1/2”, ml 6,00 9.850 59.100

Codo de 1/2” galv, un 6,00 7.700 46.200

Tee 1/2” galv, un 2,00 6.150 12.300

Unión doble 1/2” galv, un 2,00 19.700 39.400

Alma doble 1/2” galv, un 4,00 7.700 30.800

Llave de paso 1/2” FV cromoun 2,00 66.500 133.000

Prolongador FV 1/2”x1 un

cromo sin campana,

Sellador p/ caño 125cc un

Mano de obra, un

COLOCACION DE ARTEFACTOS SANITARIOS

Baño Completo - Frío y Caliente - No incluye bañera

Juego con cisterna bajajuego 1,00 2.211.250 2.211.250

Deca Ravena Crema, Griferia FV Linea Clásica juego 1,00 2.086.000 2.086.000 (Ducha, bidet y lavatorio)

Soporte

Conexión

Baño Completo con Bañera Común

Instalación de baño un 1,00 7.604.143 7.604.143 completo sin bañera, Bañera 1,60x0,70 m, un

Baño Completo con Bañera Hidromasaje

Instalación de baño un 1,007.604.1437.604.143 completo sin bañera,

Bañera hidro 1.70x0.70 m un 1,00 7.746.000 7.746.000

Baño Completo - Frío solo Juego p/ baño completo juego 1,00 1.306.000

c/ cisterna alta Deca Ravena

Tubo bajada de

embutir p/ cisterna nº 4, Botiquin 44x58x11cm

Baño de Servicio Juego para baño con juego

cisterna alta, Tubo de bajada de

embutir p/ cisterna nº 4, Botiquín Astra,

lavatorio

Bajada p/ lavatorio,

Canilla p/ lavatorio FV un

Canilla de 1/2” cromo un

para bajo ducha FV, Conexión cromo ½ x 30 cmun

fijar artefactos,

Baño Social - Standard

Juego para baño social juego 1,00

con cisterna alta Deca Ravena,

Canilla para

Imperatriz,

Prolongador

para lavatorio,

fijar artefactos, Cemento blanco,

Baño Social - Superior

por: un 2.530.183

Pileta de Cocina - Acero Inoxidable - Frío Solo

Pileta 1 bacha, un 1,00 276.000 276.000 Canilla FV pico móvil frío solo un 1,00

Mesada de Granito para Cocina

Granito natural m2 2,28

Pileta de Cocina - Acero Inoxidable - Frío y Caliente

Pileta 2 bachas,

Pileta de Lavar y Lavarropas

Pileta granítica 1 bacha un 1,00 95.000 95.000 1,20x0,60 m,

Canilla 1/2” bronce FV, un 2,00

p7

por: un

Mesada de Mármol para Baño Social (0.70x0.60m)

Mármol blanco,

de soportes, juego 1,00 40.000 40.000

de mármol, m2

Mesada de Mármol para Baño Completo (1.00x0.60m)

Mármol blanco, m2 0,60 680.000 408.000 Moldura pecho paloma, ml 2,20 50.000

INSTALACION ELECTRICA

Pilar de Mampostería 0.45x0.45x1.70m

No incluye cimiento y nivelación

Ladrillo común, un

Cemento tipo 1, kg 30,0

triturada, kg 60,0

de obra, un

Total por: un

Registro eléctrico 30x30x70cm

Ladrillo común, un

Cemento tipo 1, kg

Mano de obra, un 1,00

Total por: un 220.550

Registro eléctrico 40x40x70cm

Ladrillo común, un 67,0

Cemento tipo 1, kg

COSTEO DE OBRA

Arena lavada, m3 0,07 65.000 4.550

Tapa registro de metal, un 1,00 72.800 72.800 Mano de obra, un 1,00 131.000 131.000 Total por: un 301.400

Puesto de Medición Provisorio

Monofásico con limitadora hasta 40 A

Nicho

Pipeta

Trifásico con limitadora hasta 45 A

Nicho

Caño acero 1” x 3m ml 2,00 15.000

Trifásico c/ acometida de 3m y limitadora hasta 45 A Caño galv.

Jabalina cobre 5/8 x 2m un 1,00 27.000 27.000 Abrazadera p/ jabalina un 1,00 3.000 3.000

Caja precintable, un 1,00 14.500 14.500

Disyuntor TM 3x30A

Puesto de Medición Definitivo

(Con línea subterránea o embutido en mampostería)

Monofásico c/ acometida 3m y limitadora hasta 40 A

Caño

Línea Subterránea

Monofásica con cable de 4 a 10mm Caño

Línea Monofásica Embutida en Mampostería con Cable de 4 a 10 mm

Tablero Principal con 6 llaves TM

embutida,

colocación llaves, 6,00 204.000 Total por: un 549.700

Tablero principal con 6 llaves TM (llaves europeas) Total por: un

Bocas de Lámparas y Tomas de Corriente

(Incluye colocación de electroducto y cableado hasta 5m del tablero principal)

Una Lámpara con su Interruptor

Caja de llave plastica, un 1,00

Caño corrugado 3/4”, ml

Una Lámpara con 2 Llaves de Combinación

Caja de llave plástica, un 2,00

Caja metálica

Circuitos Independientes

(Hasta 5m del tablero principal en cañerías ya instaladas para otros circuitos)

Circuito para Calefón/AA/Ducha Eléctrica

Caja p7 llave TM unipolar un

Línea Embutida para AA sin cableado

Línea de teléfono con su toma Total por: un 153.873

Línea de Timbre con su pulsador

chicharra

Toma para Antena de TV o Audio

CARPINTERIA DE MADERA

Marco Recto (de 0.15cm p/ puerta de 2.10m de alto)

De Ybyrapyta de 0.70 m de ancho

Puerta de 2.10 m de alto Placa de eucalipto (0.80x2.10m)

Puerta placa, un 1,00 180.000 180.000 Ficha 5 agujeros, par 1,50 10.000 15.000

COSTEO DE OBRA

Cerradura externa c/ manija un 1,00 120.000 120.000

Mano de obra, c/hoja 1,00 92.000 92.000 Total por: un 411.500

Placa c/ cerradura para baño (0.80 x 2.10m)

Puerta placa de eucalipto un 1,00 180.000 180.000

Ficha 5 agujeros, par 1,50 10.000 15.000

Tornillo 1x7, un 30,0 150 4.500

Cerradura p/ baño c/manija un 1,00 45.000 45.000

Mano de obra, c/hoja 1,00 92.000 92.000 Total por: un 336.500

Tablero (0.80x2.10m)

Puerta tablero común, un 1,00 950.000 950.000

Ficha 5 agujeros, par 1,50 10.000 15.000

Tornillo 1x7, un 30,0 150 4.500

Cerradura externa c/ manijaun 1,00

Mano de obra, c/hoja 1,00 96.000 96.000

por: un 1.185.500

Tablero - Punta Diamante (0.80x2.10m)

Puerta de cedro c/ molduras un 1,00 1.550.000 1.550.000

Ficha 5 agujeros, par 1,50 10.000 15.000

Tornillo 1x7, un 30,0 150 4.500

Cerradura p/ puerta de entrada un 1,00 190.000 190.000

Mano de obra, c/hoja 1,00 96.000 96.000 Total por: un 1.855.500

Vidriera Sencilla (1.50x2.10m - 3 hojas de abrir)

Puerta vidriera, m2 3,15 300.000 945.000

Ficha 5 agujeros, par 3,00 10.000 30.000

Tornillo 1x7, un 60,0 150 9.000

Falleba de arrimar un 1,00 25.500 25.500

Pasador 150 mm un 2,00 18.000 36.000

Varilla p/ falleba 1.20 un 2,00 24.500 49.000

Mano de obra, c/hoja 3,00 46.000 138.000

Total por: un 1.232.500

Persiana (1.50x2.10m - 3 hojas de abrir)

Puerta (varilla 45 cm) m2 3,15 450.0001.417.500

Ficha 5 agujeros par 3,00 10.000 30.000

Tornillo 1x7, un 60,0 150 9.000

Falleba de arrimar un 1,00 25.500 25.500

Pasador 150 mm un 2,00 18.000 36.000

Varilla p/ falleba 1.20 un 2,00 24.500 49.000

Mano de obra, c/hoja 3,00 46.000 138.000

Total por: un 1.705.000

Ventana de 1.20 m de alto

Vidriera (1.50x1.20m - 3 hojas de abrir)

Ventana vidriera m2 1,80 220.000 396.000

Ficha 5 agujeros, par 2,00 10.000 20.000

Ficha 3 agujeros, un 1,00 9.000 9.000

Tornillo 1x7, un 52,0 150 7.800

Falleba de arrimar un 1,00 25.500 25.500

Pasador 150 mm un 2,00 18.000 36.000

Varilla p/ falleba 1.20 un 1,00 24.500 24.500

Mano de obra, c/hoja 3,00 36.000 108.000

Total por: un 626.800

Vidriera (2.00x1.20m - 4 hojas de abrir)

Total por: un 841.600

Vidriera (1.00x0.80m)

Total por: un 324.000

Persiana (1.50x1.20m - 3 hojas de abrir)

Ventana persiana fija, m2 1,80 450.000 810.000

Ficha 5 agujeros, par 2,00 10.000 20.000

Ficha 3 agujeros, un 1,00 9.000 9.000

Tornillo 1x7, un 52,0 150 7.800 Falleba de arrimar un 1,00 25.500 25.500 Pasador de 150 mm cromoun 2,00 18.000 36.000

Varilla p/ falleba 1.20 un 1,00 24.500 24.500 Mano de obra, c/hoja 3,00 36.000

Total por: un 1.040.800

Persiana (2.00x1.20m - 4 hojas de abrir) Total por: un 1.393.600

Colocación de Contramarco

CARPINTERIA METALICA

Puerta Metálica Tipo Reja (0.80x2.10 m) Puerta, marco y herrajes, un

Cortina Metálica (2.40x2.60 m)

Reja de Hierro Artística Sencilla (1.50x1,20 m)

Reja artística sencilla, m2 1,80

Portón Metálico (1.00x1.50 m)

Portón

Cemento tipo 1,

Portón Cochera (3.00x2.00 m)

Portón con cerradura, m2 6,00

Cemento tipo 1, kg 5,00 1.100 5.500 Arena lavada, m3 0,03 65.000 1.950 Mano de obra, c/ hoja 2,00 200.000 400.000

Portón Cochera (4.40x4.00 m)

Escalera Metálica Recta

Escalera metálica, un

PINTURAS

o Tejuelón al Barniz

Tejuela a la Cal y Maderamen con Esmalte Sintético

de Cielorraso a la Cal

Barnizado de Machimbre

COSTEO DE OBRA

Abertura de Madera con Esmalte

Ladrillo

Abertura de Madera con Barníz

Parrilla (boca de 1.00 m)

Ladrillo

Cemento

Abertura Metálica con Esmalte

y cenicero graduable,

Canalata y Bajada con Esmalte Sintético

Balaustre Sencillo

Tratamiento de Ladrillo Visto

Tanque de Agua en Fibra de Vidrio 1000 lt

VARIOS

Moldura Doble

Tanque de Agua en Fibra de Vidrio 500 lt

Moldura Sencilla Cemento

Estufa (Boca de 1.00

PROYECTOS MANDU’A

Descripción general:

Todas las construcciones se realizan en Asunción o alrededores sobre un terreno seco con una capacidad portante de 3 Kg/cm2, que no requiere movimiento de suelo. El análisis de costo incluye los gastos generales (10%) y beneficio de la empresa (15%). Se excluyen los gastos complementarios correspondientes a los Honorarios Profesionales por Proyecto y Dirección de Obras. No se consideran los gastos por Permiso Municipal, de conexión y consumo por servicios de

agua y eléctricidad. Tampoco se considera el valor del predio. Los precios de materiales y de mano de obra corresponden a los publicados por nuestra revista, en cuya guía de costeo de obra se desarrolla cada uno de los ítems. Los precios de mano de obra se basan en consultas realizadas con contratistas y profesionales de construcción. No incluyen cargas sociales, seguro de accidentes, etc.

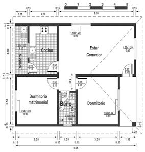
Casa Mandu’a - Vivienda Modelo 1

Descripción: Vivienda económica con una superficie de 67,7 m2

Desarrollo de la Obra

• Fundación: Piedra bruta colocada. Nivelación: Mampostería de 0,30 con ladrillos comunes. • Aislación: Horizontal de muros realizada en cajón con asfalto sólido diluido en caliente. • Mampostería de elevación: Ladrillo hueco de 6 agujeros. En baños y paredes con instalación hidráulica, de ladrillo común. • Dinteles: Envarillado continuo de 2 varillas y de 4 varillas sobre aberturas.

• Techo: Tejas españolas prensadas 1ª B, con tejuelones, maderamen de yvyrapyta, aislación con cartón asfáltico, con terminación de boca teja, mojinete y tapa doble. • Carpintería de madera: Marcos de yvyrapyta, aberturas de madera de guatambú, mueble de cocina revestido con laminado plástico. • Revestidos: Azulejos esmaltados lisos 15x15, en cocina, lavadero y baños, con una altura de 1,80 m. • Revoques: Base con azotada impermeable de 0,5 cm y revoque con aditivo hidrófugo, en interior a 1 capa y exterior en la faja perimetral de 0,50 m. Incluye vértice de mampostería y borde de aberturas. • Instalación eléctrica: Monofásica, llaves termomagnéticas brasileñas, Placas, picos de luz y tomas argentinas. Sin artefactos. • Instalación sanitaria: Cañería hidráulica de agua fría, cloacal y pluvial, de PVC. Loza de baño brasileña, con cisterna alta. Pileta de lavar de granito reconstituido.

MODELO 1 - VIVIENDA PLANILLA DE COSTOS

Elevación 0.15m con ladrillo hueco 6 tubos, 1

Techo: teja española, tejuelón, aislante,

Limpieza final y retiro de escombros

y

Pileta de cocina de acero inoxidable, 1 bacha. Las canaletas y bajadas, de chapa galvanizada Nº 26. • Pintura: Interior y exterior a la cal con fijador y color. Mampostería a la vista con protección a base de silicona, previa limpieza con ácido muriático. Carpintería de madera y maderamen de techo al barniz. Carpintería metálica y canaletas con esmalte sintético.

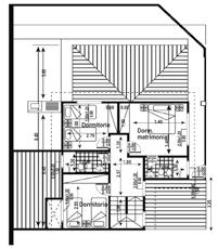
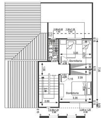
Dúplex Mandu’a Vivienda Modelo 2

Descripción: Conjunto de 3 viviendas, cada una de 121,5 m2, con estructura de losa prefabricada con paredes portantes y disminuyendo pilares y zapatas.

Desarrollo de la Obra

• Fundación: De piedra bruta colocada, con encadenado inferior de HºAº y zapatas de Hº Aº como base de pilares.

• Estructura: Losa cerámica a la vista que se apoya en paredes portantes, con algunos pilares y vigas de HºAº. Nivelación y Dinteles sobre aberturas y techo. • Revestidos: Idem modelo 1. • Aislación: Horizontal idem modelo 1. De baño en planta alta con alisada e impermeabilizante de base asfáltica. • Mampostería de elevación: Ladrillo laminado a la vista en fachada; ladrillo común en baños, área de servicio y paredes con instalación hidráulica; ladrillo hueco de 6 agujeros en interiores y medianeras. • Carpintería de Madera: Marcos de yvyrapyta, aberturas de cedro, placard de guatambú, mueble de cocina revestido con laminado plástico. • Carpintería Metálica: Balancines de ángulos, rejas artísticas sencillas y portón de cochera de chapa doblada. • Pisos: Contrapiso de cascotes, baldosa calcárea de base gris en área de servicio, layota nacional en cochera y parrilla. Cerámica esmaltada sobre carpeta alisada de 30x30 en planta baja, área social, escalera y cocina. De 20x20 en baños. Veredita tipo ka’a. Alfombra de 5 mm sobre carpeta de base en planta alta. • Zócalos: Calcáreo, cerámica esmaltada, layotas, en su caso y madera donde lleva alfombra. • Revoques: Común filtrado por ladrillos comunes con azotado de adherencia en ladrillhidrófugo en exteriores y áreas húmedas. • Instalación eléctrica: Monofásica, llaves TM brasileñas, placas, picos de luz y tomas argentinas.

PROYECTOS MANDU’A

PLANILLA DE COSTOS

Revoque 1 capa , 1.5 cm

Revoque 1 capa con hidrófugo en

: teja española

tejuelón, vigas y

Sin artefactos. • Instalación Sanitaria: Cañería para agua fría, cloacal y pluvial de PVC, para agua caliente de polipropileno, loza de baño brasileña, cisterna baja en baño social y en planta alta, alta en baño de servicio, pileta de lavar de granito reconstituido y de acero inoxidable de 2 bachas en la cocina. Canaletas y bajadas de chapa Nº 26. • Pintura: Mampostería a la vista con protección a base de silicona, previa limpieza con ácido muriático. Area de servicio y exteriores revocados a la cal con color. Paredes interiores al latex. Carpintería de madera, techo de tejas y losa con cerámica a la vista al barniz. Carpintería metálica y canaletas con esmalte sintético. os huecos, con azotada impermeable (0,5 cm) y común filtrado con aditivo .

Planta Baja
Planta Alta

Dúplex Mandu’a - Vivienda Modelo 3

Descripción: 2 viviendas iguales en Duplex, cada una de 150,3 m2

Sistema constructivo y materiales

Estructura: La losa prefabricada utilizada es de una marca del mercado, utilizada con el mismo criterio adoptado en el Modelo 2.

Desarrollo de la Obra

• Fundación: Idem modelo 2. • Estructura: Se utiliza el sistema Listalosa con cielorraso ranurado a la vista, sin revoque, que descansa sobre paredes portantes, reforzados con algunos pilares y vigas de Hº Aº. • Fundación, nivelación, aislación, mampostería, dinteles, techos, revoques, Instalación Sanitaria y

Pintura: Idem al modelo 2. • Carpintería de Madera: Marcos de lapacho, aberturas, placards y mueble de cocina de cedro, éste último con puertas tablero; mesada de granito natural.

• Carpintería Metálica: Balancines metálicos. Rejas artísticas y portón de cochera de chapa doblada y varillas. • Pisos: Contrapiso de Hº de cascotes, baldosa calcárea de base gris en área de servicio, layota nacional en cochera y parrilla. Granito reconstituído pulido de base gris en área social, estudio y planta alta, y en planchas en la escalera. Cerámica esmaltada sobre carpeta alisada en cocina y baños. Vereda de mosaicos de canto rodado de color 30x30. • Zócalos: Calcáreo, cerámica esmaltada, cerámica roja y granito reconstituido. • Revestidos: Azulejo esmaltado liso 20x30 en baños y cocina. De 15x15 en lavadero y baño de servicio. • Instalación Eléctrica: Monofásica, llaves TM europeas, placas, picos de luz y tomas de procedencia uruguaya. Sin artefactos.

PLANILLA DE COSTOS

1

,

MODELO 3 / VIVIENDA DUPLEX, SUPERFICIE 150,30 m²

Cámara

Edificio para la Renta Vivienda Modelo 4

Descripción: Edificio de 2 plantas que puede ampliarse a 3, comprende 2 departamentos en Planta Alta, cada uno de 60 m2 y con 2 dormitorios. En planta baja 2 salones comerciales de 34,30 m2 de área interior. Entrada vehicular cubierta.

Desarrollo de la obra

• Fundación: Se utilizan Zapatas de Hº Aº donde actúan cargas puntuales y bajo las paredes, vigas del mismo material. • Estructura: De Hº Aº tipo tradicional, las losas descansan sobre vigas y pilares del mismo ancho que las paredes. En planta alta se utiliza un encadenado general a la altura de asiento de tirantes. • Aislación, mampostería de elevación, dinteles, techo y carpintería de madera, pisos, zócalos, revestidos, revoques, instalación sanitaria: idem al modelo 2. • Carpintería Metálica: Cortina de enrollar de tablillas metálicas con puerta de escape. Balancines, portones de acceso peatonal y de cochera de chapa doblada. Baranda sencilla de escalera. • Instalación Eléctrica: Idem. modelo 3. • Pintura: Paredes interiores y exteriores del frente y contrafrente al latex. Paredes exteriores medianeras y cielorraso a la cal. Abertura de madera, maderamen y tejuelones del techo al barniz. Carpintería metálica con esmalte sintético.

Planta Baja
Planta Alta

PROYECTOS MANDU’A

PLANILLA DE COSTOS

Revoque 1 capa sin hidrófugo en

Revoque 1

Techo : teja española , tejuelón, vigas y tirantes Yvyrapyta

Baldosa calcárea base gris 20

Casa Mandua 4 básica

Limpieza final y retiro de escombros (0.8 %)

Planta Baja

Planta Alta

Galpón tipo tinglado - Vivienda Modelo 5

Descripción: Galpón tipo tinglado, con una superficie de 268,8 m2, con oficina y vestuario. La oficina incluye un baño privado y el vestuario dos boxes de baño, para ducha e inodoro, respectivamente. Consta de patio posterior y retiro en el frente, cumpliendo la norma municipal que exige un 25% de superficie sin construir.

La obra está prevista para un terreno plano y limpio de 12x30 m situado entre linderos.

Desarrollo de la Obra

• Fundación: Pilares asentados sobre zapatas de hormigón ciclópeo y cimiento corrido de P.B.C para asiento de paredes. • Estructura: Realizada con pilares de HºAº y vigas encadenadas conformando 2 anillos de unión. • Aislación, mampostería de elevación, dinteles, carpintería de Madera: Idem. modelo 1. • Techo: Tipo tinglado parabólico, estructura metálica reticulada fabricada de varillas torsionadas pintadas con antióxido. Cubierta de chapa galvanizada ondulada, aireada con extractores eólicos. • Carpintería Metálica: Balancines metálicos de ángulos y perfiles “T”. Portones de chapa doblada en el acceso vehicular y la salida al patio. Escalera metálica recta de acceso al entrepiso de madera. • Pisos: En el patio del frente y dentro del depósito, donde pueden circular vehículos, el piso es de hormigón armado con juntas de dilatación. En la oficina se utilizan baldosa calcárea de base gris y cerámica esmaltada sobre una carpeta alisada, en baños y vestuarios. Vereda de baldosita calcárea tipo ka’a con ranuras antideslizantes. Contrapiso de hormigón de cascotes. • Zócalos: Calcáreo en la oficina. • Revestidos: Azulejo esmaltado liso 15x15 en baños y vestuario. • Revoques: Sobre ladrillos huecos, azotada de adherencia con hidrófugo y revoque común filtrado y sobre ladrillos comunes sólo este último. Las paredes perimetrales llevan revoque a un solo lado.

• Instalación Eléctrica: Trifásica, llaves termomagnéticas europeas, placas, picos

MODELO 5 / GALPON TIPO TINGLADO,

PLANILLA DE COSTOS

PROYECTOS MANDU’A

de luz y tomas uruguayos, sin artefactos. Instalación Sanitaria: Cañería hidráulica de agua fría, cloacal y pluvial, lozas de baño, canaletas y bajadas idem modelo 1. Cisterna baja en baño de oficina y alta en el vestuario. • Pintura: Paredes revocadas, interiores o exteriores, a la cal. Paredes de ladrillo hueco a la vista con tratamiento correspondiente para el efecto. Carpintería de madera y entrepiso de machimbre pintadas con barniz. Carpintería metálica y caños de bajada con esmalte sintético.

Bolsa de subcontratistas

* La Bolsa de Subcontratistas es una colaboración de la revista con los profesionales y trabajadores de la construcción, teniendo un pequeño costo los anuncios en recuadro. La calidad del servicio, así como la relación contractual, escapa a nuestro compromiso con los apreciados lectores.

Agrimensura

Aire acondicionado

Instalación / Reparación

Bracho, Javier 0981 879749 / 0985 464491

Brítez, Santiago 0981 117524

González, Pedro 644661 / 0982 450866

Maciel, Pablo 0971 939890 / 0981 651205

Ojeda, Hugo 623766 / 0981 868289

Solis, Gabriel 0981 486233

Velázquez, Santiago 0981 843738

Aislación térmica

Duarte, Eleno 0983 338939

Marín, Dionisio 0983 731450

Alambrados

Bentrom, Román 991255

Riveros, Mario 0992 993007 / 0985 887621

Albañilería

Julio Cristaldo Cel.: 0986 188 514

Benítez, Ramón 0982 370231

Bogarín, Lidio 0971 947177

Bruno, Alejandro 0994 314460

Cabral, Andrés 0982 896561

Cáceres, Carlos 0982 132349

Cazal, Alexis 0981 343423

Esquivel, Rogelio 0981 456697

Fernández, Antonio 515629 / 0981 465940

Garcete, Palermo 0981 965660

Gill, Enrique 642559 / 0981 303974

Giménez, Pablo 0981 951645

Godoy, Eladio 0983 333622

González, Aníbal 0985 222147

González, Benito 0982 248256

Jara, Vidal 0981 434787 / 0981 876489

Jiménez, Antonio 514989 / 0981 660190

López, Osvaldo 0981 836904

Maidana, Sinforiano 0983 380486

Marín, Dionisio 0983 731450

Moreno, Ramón 0981 785546

Ocampos, Higinio 0984 926892

Ortega, Mildesis 0984 369 652 / 0981 594 893

Paniagua, Derlis 0981 182465

Peralta, Raúl 0981 501323

Rando, Gerardo 0985 766 650

Ramírez, Amado 374276 / 0981 485609

Riveros, Carlos 0981 521771

Rojas, Juan 0971 950157

Ruiz, Saturnino 0984 273997

Sosa, Edgar 0984 928914

Vera, Néstor 0981 103889

Animación y perspectiva

Abbate, Alejandra 0982 886227

González, Jorge 0986 552 000 / 0991 880 133

Pérez, Rafael 0981 476743

Aprobación de planos municipales

Benítez, Oscar 0971 340345

Chaparro, Miguel 0961 586457

Fernández, María 0981 932043

Rolón, Oscar 0981 445601

Robledo, Gustavo 0981 939512

Azulejos - colocación

Armando, José 0995 639335

Benitez, Alfredo 0981 520214

Benitez, Antonio 0981 945353

Ferreira, Gustavo 285663 / 0981 881211

Figueredo, Miguel 0981 479221

Godoy, Eladio 0983 333622

González, Benito 0982 248256

Jiménez, Antonio 514989 / 0981 660190

Medina, Antonio 0983 247516

Moragas, Carmelo 0985 268 497 / 0981 547 754

Noguera, Higinio 0981 564472

Ortíz, Vidal 509475

Palacios, Leonardo 0983 207676

Vázquez, Ever 0981 655799

Canaletas

Altamirano, Vicente 0981 851077

Arzamendia, Hugo 0981 126471

Canto rodado (carga en

obra)

Figueredo, Catalino 0981 763438

Figueredo, Miguel 0981 479221

Carpintería

Aquino, Miguel 0986 858685

Bordón, Marcial 0971 277041

Franco, Marcos 0982 279166

Olmedo, Miguel 0981 526079

Carpinteros de obra / techistas

Benítez, Aniano 0984 478256

Cáceres, Carlos 0982 132349

González, Aníbal 0985 222147

Jara, Oscar 780642 / 0981 184687

Mora, Pascual 0981 963459

Sosa, Carlos 0992 299951

Valdovinos, Pedro 0981 234113 Cascadas

Acevedo, Patricio 0981 412542

Aguilera, Gabriel 0985 101795

Cepillado en obra

Jara, Oscar 780642 / 0981

Circuito cerrado Cabrera, Arnaldo

Colocación de empapelados

Coronel,

Colocación de Losarap

Alarcón, Julio 501130 /0983 367 697

Gill, Enrique 642559 / 0981 303974

Cielorrasos - Durlock/PVC/Yeso

Agüero, Benjamín 0985 740977

Agüero, Jorge 0985 417456

Bentolilla, Esteban 480203 / 0981 385207

Careaga, Víctor 373410 / 0971 936858

Colocación de Parquet

García, Juan 0981 571424

Sosa, Carlos 0992 299951

Colocación de Piedra revestidos / molduras

Aveiro, Gerónimo 0985 242563

Figueredo, Miguel 0981 479221

Martínez, Diego 0984 560 841

Ortíz, Eduardo 0971 379011

Quiñónez, Expédito 0983 356501

Ríos, Francisco 0981 417309

Rojas, Juan 0971 950157

BOLSA DE SUBCONTRATISTAS

Colocacion de Pisos vinílicos / alfombras

Careaga, Víctor 373410 / 0971 936858

Coronel, Derlis 295479 / 0981 154662

Coronel, Julián 295479 / 0984 580876

Pavón, César 327 6331 / 0982 354987

Sánchez, Alberto 443477 / 0981 503266

Cómputo métrico

Benítez, Oscar 0971 340345

González, Jorge Arq 0986 552000 / 0991 880133

Nuñez, Andrea 0982 170442

Russo, Walter Ing 0991 789561

Vallejos S, Cristina Arq 0982 975371 / 0981 561645

Constructores de obra

Acosta Riveros, Jorge A 0991 978 642

Agüero, Teófilo 524755 / 0983 942516

Añazco, Carlos 0981 457301

Benítez, Aniano 0984 478256

Benítez, Juan 751724 / 0981 488904

Benítez, Ramón 0982 370231

Caballero, Oscar 0972 131247

Cabral, Andrés 0982 896 561

Cáceres, Carlos 0982 132349

Cantero, Domingo 0981 244946

Dávalos,Hermes 0981 942718

Escobar, Gustavo 0981 163551

Espinoza, Mauricio 0982 781445

Fernández, Antonio 515629 / 0981 465940

Ferreira, Wilfrido 0981 400128 / 0981 786614

Figueredo, Miguel 0981 479221

Garcete, Palermo 0981 965660

Gill, Enrique 642559 / 0981 303974

Giménez, Leonardo 0981 530453

González, Aníbal 0985 222147

González, Miguel H 0961 889646

González, Rumildo 0971 350004

Gutiérrez, De los Santos 0981 390538

Hucedo, Carlos 0982 178592

Jara, Vidal 0981 434787 / 0981 876489

Jiménez, Antonio 514989 / 0981 660190

Maciel, Milciades 0981 943482

Maidana,Sinforiano 0983 380486

Meza, Esteban 0992 383232

Moreno, Ramón 0981 785546

Narváez, Arsenio 0981 939452

Noguera, Higinio 0981 564472

Ortiz Barrios, César 642239 / 0983 358854

Ortíz, Vidal 509475 / 0971 720887

Oviedo, Richard 0981 291070

Paniagua, Derlis 0981 182465

Quiñónez, Expedito 0983 356501

Quiroga, Pedro 0985 938774

Rando, Gerardo 0985 766 650

Recalde, César 0981 170159

Riveros, Carlos 0981 521771

Riveros, Mario 0992 993007 / 0985 887621

Robledo,Gustavo 0981 939512

Rodríguez, Buenaventura 0972 509828

Rojas, Bernardo 302692 / 0981 531143

Rojas, Juan 0971 950157

Romero, Melchor 0983 470631

Ruiz, Saturnino 0984 273997

Sánchez, Benito 0983 488540

Sánchez, Ricardo 0981 145907

Sánchez, Yisenia 0976 123426 / 0985 297794

Sosa, Edgar 0984 928914

Valdovinos, Pedro 0981 234113

Vega, Augusto 310352 / 0971 972699

Velázquez, Jorge 0983 507243

Velázquez, Santiago 0981 843738

Vera, Néstor 0981 103889

Contratistas de hormigón

Acosta Riveros, Jorge A 0991 978 642

Arévalos, Guillermo 752601 / 0981 485307

Benítez, Oscar 0971 340345

Cabral, Andrés 0982 896561

Esquivel, Rogelio 0981 456697

Fernández, Antonio 515629 / 0981 465940

Fernández, Silvino 755284 / 0981 549523

Figueredo, Miguel 0981 479221

Garcete, Palermo 0981 965660

Giménez, Leonardo 0981 530453

González, Aníbal 0985 222147

González, Miguel H 0961 889646

González, Rumildo 0971 350004

Maidana, Sinforiano 0983 380486

Meza, Esteban 0992 383232

Ocampos, Higinio 0984 926892

Olmedo, Julio 0981 652772

Ortega, Mildesis 0984 369652 / 0981 594893

Paniagua, Derlis 0981 182465

Peralta, Raúl 0981 501323

Recalde, César 0981 170159

Torres, Arístides 0981 865518

Velázquez, Santiago 0981 843738

Vera, Néstor 0981 103889

Cortinas

Aguilera, Gabriel 0985 101795

Ayala, Ever 0983 711979

Maldonado, María Estela 0981 561631

Urbieta, Mónica 0981 476743

Demolición

Caballero, Oscar 0972 131247

Herrera, Cristino 0981 976488 / 0984 894128

Vallejos, Cándido 0991 233001

Villalba, Javier 0985 491498

Destronque de árboles

Herrera, Cristino 0981 976488 / 0984 894128

Vera, Néstor 0981 103889

Dibujantes técnicos

Arnedo, Ana Arq 0981 655014

Jacobo, Nora 0971 534417

Maidana, María B. 0991 988215

Martínez, Francisco 0786 230619 / 0975 681680

Montiel, Gustavo 586343 / 0982 488928

Rodriguez, Buenaventura 0972 509828

Rolón, Manuel 0986 909404

Rolón, Oscar 0981 445601

Digitalización de planos

Abbate, Alejandra 0982 886227

Aponte, Andrea 0971 190781

Arnedo, Ana Arq 0981 655014

Arza, Andrea Arq 0981 966786

Coronel, Renzo 0971 362856 / 0986 656577

Escobar, Gustavo 0981 163551

Ferreira, José 0981 915492

González, Jorge 0986 552 000 / 0991 880133

Maidana, María B. 0991 988215

Montiel, Gustavo 586343 / 0982 488928

Nuñez, Andrea 0982 170442

Nuñez, Miguel 0982 634026

Quintana, Jorge 290680 / 0981 426037

Robledo, Gustavo 0981 939512

Rolón, Manuel 0986 909404

Rolón, Oscar 0981 445601

Sánchez, Yisenia 0976 123426 / 0985 297794

Toledo, Milena 0981 201561

Divisorias interiores / Mamparas

Bentolilla, Esteban 480203 / 0981 385207

Careaga, Víctor 373410 / 0971 936858

Pavón, César 327 6331 / 0982 354987

Dorado a la hoja

Chávez, Ada 0981 838274

Drenaje

Caballero, Rodrigo 0981 257702

Velázquez, Santiago 0981 843738

Electricistas

Aquino, Roberto 521610/ 0971 313847

Benítez, Cándido 0981 496207

Bracho, Javier 0981 879749 0985 464491

Brítez, Santiago 0981 117524

Cáceres, Isidro 0981 927945

Chaparro, Miguel 0961 586457

Castillo, Marco 0981 578068

Coronel, Derlis 295479 / 0984 580876

Coronel, Julián 295479 / 0981 154662 Ever Pereira 0983 460 494

Delgadillo, Alberto 0981 844429

Delgadillo, Francisco 0982 335870

Díaz, Carlos 572156 / 0982 464967

Duarte, Gustavo 0983 191182

Esquivel, Rogelio 0981 456697

Galarza, Ramón 0981 230273

Garcete, Palermo 0981 965660

Giménez, Carlos 0981 741087

Giménez, Flaminio 0971 227480 / 0983 841240

González, Pedro 644661 / 0982 450866

Hucedo, Carlos 0982 178592

León, Cañete 0983 800938 / 0981 561409

Maciel, Pablo 0971 939890 / 0981 651205

Martínez, Gerardo 0981 493190

Montanía, Ylber 0981 474025

Núñez, Cayo 0983 404670

Otello Roa, Félix 780691 / 0972 822577

Paniagua, Derlis 0981 182465

Parini, Fernando 0983 657565

Ramírez, Dario 0992 863100 / 0991 677208

Ramírez, Roberto 944740 / 0981 494624

Rolón, Carlos 0982 751296

Ruiz, Carlos 0981 896430

Sanabria, Jorge 0984 154375

Sartorio, Jorge 0981 939172

Solis, Gabriel 0981 486233

Toñánez, Sebastián 0981 912516

Valenzuela, Luis 0982 127968 / 0985 942676

Vallejos, Cándido 0991 233001

Villaverde, Silvino 0992 396855

Empedrados y adoquinados

Santacruz, Pablo Ing 0981 105004

Fumigación

Herrera, Cristino 0981 976488 / 0984 894128

Herrería / estructuras metálicas

Arzamendia, Hugo 0981 126471

Bordón, Marcial 0971 277041

Bracho, Javier 0981 879749 / 0985 464491

Cazal, Mario 0982 878501

Delvalle, Christian 0981 853884

Garcete, Palermo 0981 965660

Herrera, Edgar 0982 272468

Maldonado, María Estela 0981 561631

Orrego, Cándido 0984 958981

Hojalatero

Cazal, Alexis 0981 343423

Impermeabilización

Duarte, Eleno 0983 338939

López, Ramón 0981 569767

Marín, Dionisio 0983 731450

Martínez, Braulio 0981 193232

Ramírez, Amado 374276 / 0981 485609

Ruffinelli, Miguel 0981 449955

Velázquez, Santiago 0981 843738

Jardineros

Aguilera, Gabriel 0985 101795

Basualdo, Javier 0982 311208

Duarte, Tomás 0985 941909

Villaverde, Silvino 0992 396855

Limpieza

de patios

Bentrom, Román 991255 Herrera, Cristino 0981 976488 / 0984 894128

Riveros, Mario 0985 887621

Mesadas de cocina / bañoMarmolería

Jimenez, Miguel Angel 0981 541146

Montaje de transformadores y motores

Benítez, Genaro 0981 496837

Díaz, Carlos 572156 / 0982 464967

Mancuello, Fernando 0991 201918 Morales, Gustavo 0981 893881

Motoserrista

/ poda de árboles

Basualdo, Javier 0982 311208

Bentrom, Román 991255

Duarte, Tomás 0985 941909

Riveros, Mario 0992 993007 / 0985 887621

Muros verdes / jardines verticales

Arzamendia,

Pintores

Ángel 942329 /

Bogarín, Héctor 0985 959921

Borja, Francisco 0991 820078

Bruno, Alejandro 0994 314460

Careaga, Víctor 373410 / 0971 936858

Cazal, Alexis 0981 343423

Garcete, Palermo 0981 965660

Gauto, Miguel 0981 938415

Giménez, Hernando 0981 419674

Giménez, José 0993 353888 / 0981 604638

Giménez, Leonardo 0981 530453

Godoy, Pedro 0981 596914

González, Aníbal 0985 222147

Herrera, Edgar 0982 272468

Ibarra, Jorge 0961 842883

López, Ramón 0981 569767

Marín, Dionisio 0983 731450

Martínez, Diego 0984 560 841

Medina, Germán 0982 320250

Mereles, Néstor 0985 653204

Miranda, Félix 0981 514763

Morínigo, Miguel 973372 / 0981 474261

Noguera, Higinio 0981 564472

Ojeda, Darío 0971 223440

Oviedo, Richard 0981 291070

Paniagua, Derlis 0981 182465

Ramírez, Amado 374276 / 0981 485609

Ramírez, Ladislao 0981 766680

Reyes, Luis 0981 231612

Riveros G., Carlos 0981 521771

Riveros, Mario 0992 993007 / 0985 887621

Rojas, Bernardo 302692 / 0981 531143

Romero, Melchor 0983 470631 Sosa, Edgar 0984 928914 Vallejos, Cándido 0991 233001

Pintura texturada

Arévalos, Alberto 0971 208038 Giménez, Hernando 0981 419674

López, Ramón 0981 569767

Morínigo, Miguel 973372 / 0981 474261

Piris, Crispín 0982 360759

Piscinas - Construcción

Urbieta, Mónica 0981 476743

Piscinas

- Limpieza y Mantenimiento

Piseros

Caballero, Rodrigo 0981 257702

Fernández, José 0982 627836

Giménez, Leonardo 0981 530453

Godoy, Eladio 0983 333622

González, Benito 0982 248256

Jiménez, Antonio 0981 660190

Maciel, Milciades 0981 943482

Martínez, Diego 0984 560 841

Medina, Antonio 0983 247516

Moragas, Carmelo 0985 268497

Noguera, Higinio 0981 564472

Palacios, Leonardo 0983 207676

Rando, Gerardo 0985 766 650

Riveros, Carlos 0981 521771

Rojas, Juan 0971 950157

Samaniego,Jorge 0982 986 757 0994 759925

Pisos técnicos (sobre elevados)

Agüero, Benjamín 0985 740977

Plomeros

Agüero, Benjamín 0985 740977

Aguilera, Gabriel 0985 101795

Alcaráz, Andrés 0971 956096

Altamirano, Vicente 0981 851077

Báez, Raimundo 0981 609001

Bracho, Javier 0985 464491

Caje, Rodolfo A. 0984 234423

Cazal, Mario 0982 878501

Chávez, Jorge 0981 823284

Escobar, Carlos 0971 357473

Fariña, Antonio 0971 231175

Ferreira, Gustavo 0981 881211

Garcete, Palermo 0981 965660

Giménez, Pablo 0981 951645

Herrera, Edgar 0982 272468

Hucedo, Carlos 0982 178592

López, Víctor M. 0971 760390

Medina, Alfredo 0981 468756

Medina, Germán 0982 320250

Moragas, Carmelo 0985 268497

Moragas, Victorino 0981 892513

Noguera, Higinio 0981 564472

Núñez, Cayo 0983 404670

Ortiz, Vidal 509475

Paniagua, Derlis 0981 182465

Rando, Gerardo 0985 766 650

Riveros G., Carlos 0981 521771

Riveros, Mario 0992 993007

Romero, Melchor 0983 470631

Ruíz, Carlos 0981 896430

Vallejos, Cándido 0991 233001

Villalba, Javier 0985 491498

Villaverde, Silvino 0992 396855

Ploteo de planos

Coronel, Renzo 0986 656577 Prevención

Seguridad

Seguridad

Caje, Rodolfo A. 0984 234423

Manchini, César 0981 245725

Proyecto arquitectónico

Abbate, Alejandra 0982 886227

Aponte, Andrea 0971 190781

Arnedo, Ana Arq 0981 655014

Coronel, Renzo 0971 362856

Fernández, María Arq 0981 932043

Martínez, Liz Arq 0981 926697

Nuñez, Andrea 0982 170442

Pérez, Rafael 0981 476743

Pulidor de parquet

Fernández, José 0982 627836

Pulidor de piso granítico y de H˚

Caballero, Rodrigo 0981 257702 Fernández, José 0982 627836

Refrigeración / AA / camaras frigorificas/ heladeras

Brítez, Santiago 0981 117524

Galarza, Ramón 0981 230273

Hucedo, Carlos 0982 178592

León, Cañete 0983 800938

Ruiz, Carlos 0981 896430

Sartorio, Jorge 0981 939172

Reparación / instalación de electrobombas para pozos

Escobar, Carlos 644497 / 0971 357473

Moragas, Carmelo 0985 268497

Restauración

Aparici, Mari

Montanía, Higinio

de muebles

Topógrafos Guillén,

ABERTURAS

Madera

Puerta placa

De 0,60 - 0,70 y 0,80 m

De cedro

De eucalipto/cupay

De 0,90 m

De cedro

De eucalipto

Puertas con cabezal recto

Tablero standard de eucalipto

Persiana fija

Vidriera cuadrille

Vidriera sencilla

Tablero, punta diamante moldura c/ cedro de 1ra

Ventanas

Persiana fija

vidriera cuadrille

vidriera sencilla

Marco de yvyrapyta : cepillado, lijado y con 1 rebaje

De 15 cm, recto

Metálicas

Puerta ciega 2.10m de alto

De 0.80 m

De 0.90 m

Puerta placa 2.10m de alto

De 0.80 m

De 0.90 m un

Ventana corrediza con reja 1.10m de alto

De 1.20 m ancho

De 150 m ancho un 515.000

Ventana corrediza con reja 0.76m de alto

De 1.20 m ancho un 460.000

De 150 m ancho un 480.000

Ventana proyectante con reja 0.60 x 0.40m un 160.000

Balancín 0.60 x 0.40m un 105.000

ACONDICIONADORES DE AIRE

ALAMBRES

Liso

Andamios Martillete Vallados

AISLANTES TERMOACÚSTICOS

CASARINO

01 Lana de roca c/ alu, 6 x 1,20 m x 50 mm un 550.000

02 Lana de roca s/ alu, 8 x 1,20 m x 50 mm un 480.000

03 Poliestireno Extruido 25mm - placa 0,60 x 1,20 m un 90.000

Diámetro 20mm

Bolsa de 50 lt. Bolsa de 25 lt.

Bolsa de 2 lt.

Diámetro 30mm

Bolsa de 50 lt.

Lana de roca

Sin aluminio 1,20 x 8 m x 50 mm

Con aluminio 1,20 x 6 m x 50 mm

BIODIGESTORES

Autolimpiable, No Incluye Colocación

BARRERAS DE ESPUMA

Arcilla Expandida

MARSTA E.A.S.

021 421 031 - 021 482 268

CÁLCULO ESTRUCTURAL

CAÑOS Y ACCESORIOS

PVC - Tubos de 6 m

Tubo liviano para desague (blanco)

De 40 mm un 44.700

De 50 mm un 67.500

De 75 mm un 144.000

De 100 mm un 155.000

De 150 mm un 363.500

Tubo cloacal blanco

De

De

Tubo roscable blanco agua fría

De 1/2” un

Tubo soldable p/ 10kg

De 32 mm, un 57.000

De 25 mm, un 30.000

De 20 mm, un 21.000

Tubo para agua caliente, roscable, 4 capas

De 1/2” un 62.000

CODOS PVC

Codo

De

INDUSTRIA PROCESADORA DE VIDRIOS TEMPLADOS

INDUSTRIAL Virgen del Rosario 563 casi Beatriz Benítez. Itauguá. OFICINA COMERCIAL Oscar Bottana 100 esq. Cacique Caracará. Asunción. Tel. 0985 335000 ventas@fineza.com.py

PROCESADORA DE VIDRIOS TEMPLADOS

INDUSTRIA

CERÁMICA ROJA

Fábrica - Ruta Patiño Km. 40,5

Cel.: 0971 203 323 SHOWROOM

Ruta Departamental DO 27 y San Cayetano. San Lorenzo Ex Ruta 1, Km 14,5

Metálicas

ZINC

Chapa Ondulada No 28

CHAPAS

CIELORRASOS

TEL.:

906 951/2

906 951

CONTENEDORES

CONTENEDORES MARÍTIMOS

DEPOSITOS DE MADERA

Alfajias , cepilladas

Ybyrapyta hasta 2 m de largo ml 10.000

Eucalipto hasta 2 m de largo ml 7.000

Vigas pulg2/m - De ybyrapyta

1,0 - 1,9 m

pulg/m 4.500

2,0 - 2,9 m pulg/m 4.500

3,0 - 3,9 m pulg/m 4.700

4,0 - 4,9 m pulg/m 5.000

5,0 - 5,9 m pulg/m 5.500

6,0 - 6,9 m pulg/m

Tabla y puntales para encofrado

Tabla de eucalipto de 1” pulg/m 600

Puntal de eucalipto de 3x3” pulg/m 650

Tirantesde ybyrapyta / kurupa’y

1,0 -1,9 m pulg/m 2.800

2,0 -2,9 m pulg/m 2.900

3,0 - 3,9 m pulg/m 3.400

4,0 - 4,4 m pulg/m 3.500

4,5 - 4,9 m pulg/m 3.700

5,0 - 5,9 m pulg/m 3.800

6,0 - 6,9 m pulg/m 4.200

Machimbres

eucalipto 1/2 x 3”

pino 1/2

Yoayu de 1ra A, un 904

Ita Yvy de 1ra A, un 1.111

Ita yvy de 1ra B, un 891

De 8x18x25 cm, 6 tubos, 19 x m2

Ita Yvy de 1ra A, un 1.353

De 12x18 x25 cm, 6 tubos, 19 o 28 un x m2

Ita yvy de 1ra A un 1.650

Ita Yvy de 1ra requemado un 1.518 Yoayu de 1ra un 1.404 Yoayu de 1ra requemado un 1.278

De 18x18x25 cm, 9 tubos , 19 un x m2

Ita Yvy de 1ra A un 2.585

Ita Yvy de 1ra requemado un 2.299

Ladrillo estructural

Ita Yvy 14x19x14 cm un 2.233 Ita Yvy 14x19x29 cm un

Irene 1ra A

laminadito 5x11x25 cm

laminado

convoco, recto o inclinado 25un x m2

española prensada de 1ra

DEPÓSITOS DE MATERIALES

Ladrillos

Ladrillo común

Tobatí, un 800

Prensado 3 agujeros Ita yvy de 1a, 5x11x23 cm un 1.012

Laminado rústico Ita yvy de 1a, 5x11x23 cm un 935

Laminado Yoayu de 1a un 1265 Yoayu laminadito 5x11 x 23 cm un 949

Prensado 3 agujeros Yoayu de 1a, 5x11,5x23,5 cm un 1.044

Ladrillo hueco

Teja FRANCESA Yoayu-

MANDU’ARA

De 1ra B

De 2DA

Tejuelones - 9 un x m2

Yoayu de 1ra A

Yoayu de 1ra B un 2.321

Ita Yvy de 1ra A un 2.706

Ita Yvy de 1ra B un 2.376

Tejuelitas - 30 un x m2

Ita Yvy de 1ra B un 600

Yoayu 1ra B un 658

Layotas

De 18x18 cm, 28 un x m2

Yoayu 1ra

De 30x30 cm, lisa, 10 un x m2

Ita Yvy de 1ra

Ita Yvy de 1ra B un 1.760

De 30x30 cm, rugosa, 12 un x m2

Ita Yvy de 1ra un 1.969

Ita Yvy de 1ra B un 1.826

De 28x28 cm, lisa, 12 un x m2

Yoayu de 1ra A

Yoayu de 1ra B

Ita Yvy de 1ra B

De 28x28 cm, rugosa, 12 un x m2

Yoayu de 1ra A un 1.666

Yoayu de 1ra B

Zocalos de layota de 1ra A -10 cm de ancho

Yoayu de 28 cm un 2.530

Ita Yvy de 1ra - 28 cm un 2.244

Ita Yvy de 1ra B- 28 cm un 1.562

Varios

Plástico para techo 200 micrones m2 4.000

Pileta granÍtica - 1 bacha 1,00x0,50 m un 95.000

Pileta granÍtica - 2 bacha 1,40x0,50 m un 125.000

Cascotillo cerámico m3

Asfalto para aislación 3,6 lt un 60.000

Poste de Karanday un 120.000

Fábrica - Ruta Patiño Km. 40,5 Cel.: 0971 203 323 SHOWROOM

Ruta Departamental DO 27 y San Cayetano. San Lorenzo Ex Ruta 1, Km 14,5

DIVISORIAS SANITARIAS

TEL.: 021 906 951

(021) 906 951/2

CEL.: 0971 543 246

(021) 328 0572/3

CEL 0971 543 246

CDE: 061 570 501

ELECTRICIDAD

Columna de entrada (Materiales varios)

01 Aislador roldana B.T. 72x72mm, un 5.000

01 Aislador retención 0,50 un 5.000

02 Bulón p/ madera 3/8 x 3” un 1.600

03 Caño de acero ¾” x 3 m, un 8.500

04 Caño de acero 1” x 3 m, un 15.000

05 Caño galvanizado 2” x 5,8 m, un 358.000

06 Caño galvanizado 2 ½” x 5,8m, un 600.000

07 Cruceta p/ pre emsamblado 2” monofásica un 3.000

08 Cruceta p/ pre emsamblado 2 ½” Trifásica. un 3.500

09 Curva galvanizada 1 ¼”, un 22.500 10 Fondo de madera monofásico, un 5.500 11 Fondo de madera trifásico, un 6.790 12 Tapa monofásica Ande, un 25.000 13 Tapa trifásica Ande, un 30.000 14 Unión reducción 2” x 1”, un 9.500 15 Unión reducción 2 ½” x 1 ¼”, un 31.000 16 Curva galvanizada 1”, un 24.970

Cinta aisladora

01 Cinta auto soldable 19mm x 2 mts un 10.000 02 Cinta aisladora Millión 19mm x 20 mts un 12.000

Tablero de embutir transparente

01 Para 8 TM, un 37.000 02 Para 12 TM, un 46.000 03 Para 24 TM, un 107.000

Llaves termo magnéticas

Unipolares

Disyuntor TM 1x 50A, DIN un 13.000

Tripolares

Disyuntor TM 3x 20A, DIN un 33.000

Disyuntor TM 3x 32A, DIN un 39.000

Disyuntor TM 3x 40A, DIN un 40.000

Disyuntor TM 3x 63A, DIN un 42.000

Caño corrugado nacional

De 1”, m 3.500

Caño plástico negro nacional (electroducto)

De 3/4”, m 2.500 02 De 1”, m 3.250

Tinglado

FERRETERÍA

01

HERRERÍA

Aberturas

Barandas de balcón

01 De hierro sencilla 1,00m, pasamanos de 60x25mm en chapa doblada Nº14 colocación incluida dentro del radio urbano de Asunción

Balancines sin colocación - A partir de 1 m2 01 Balancín fabricado con ángulo 5/8 y T 3/4x1/8, hoja de 0,20 m,

02 Balancín fabricado con ángulo 3/4 y T 7/8 x 1/8,

03 Balancín de 60x60 cm,

Cortinas metálicas de enrollar - A partir de 10 m2 01 Fabricación y montaje de cortinas automatizadas con láminas de acero galvanizado

Fabricación y montaje de cortinas manuales con láminas de

03 Cubrerrollo de chapa N° 18 con puerta trampa

Escaleras

01 Caracol diámetro 1,20 m, estructura de hierro con baranda, peldaños, con 1 mano antióxido y colocación incluida, por metro de altura,

Escalera marinera

Parrilla

01 Parrilla graduable de hierro enlozada con cenicero y carbonera de 1,20x0,50 m con tapa calor, un 1.595.000

02 Campana de 1,20x0,60 m para parrilla con colocación, un 418.000

03 Tubo de campana en chapa negra Nº 18, ml 78.650

Reja para ventana

01 Reja artística sencilla, con marco de ángulo de 3/4 x 1/8”, varilla de 10mm y dibujo rombo con planchuela de 3/4 x 3/16, m2 198.000

02 Idem anterior reja artística dibujada, m2 253.000

Portones (ver Portón a control remoto)

HERRAJES

Varios

01 Falleba de arrimar cromada, un 25.500

02 Ficha de 3 agujeros brasileña, reforzada, par 9.000

03 Ficha de 5 agujeros brasileña, reforzada, par 10.000

04 Pasador a palanca de embutir cromado de 150 mm un 18.000

05 Pasador a palanca de embutir cromado de 200 mm, un 25.000

06 Tirafondo galvanizado de 3/8x5”, un 1.500

07 Tornillo 1x7” caja de 144, un 150

08 Varilla de hierro para falleba de 1,20 m, un 24.500

09 Varilla de hierro para falleba de 1,50 m, un 30.000

HIDRÓFUGOS

Pennsylvania

1 Ceresita, 20 kg, kg 6.150

Chapa galvanizada

Canaleta embutida N° 24

Desarrollo 60 cm,

Desarrollo 50 cm,

Canaleta moldurada 40 cm

Chapa N° 24

Canaleta moldurada 33 cm

Chapa N° 26

Chapa N° 28

HORMIGÓN

Hormigón Elaborado

* Comprende elaboración, transporte, bombeo, toma de muestras y rotura en laboratorio. Precios al contado

1

2

3

4

6

7

8

9

MANDU’ARA

IMPERMEABILIZACIONES

LABORATORIO DE ENSAYOS

LOSA PREFABRICADA

Vigueta de Hº pretensado y ladrillo (Losa Rap)Puesto en obra

Losas Alveolares Pretensadas – STR

Vigueta de cerámica armada con cielo raso de hormigón visto incluido, a retirar de fábrica. (Listalosa)

Precios referenciales para sobrecarga de uso de 300Kg/M2

Incluye flete y montaje con grúas en zona Gran Asunción

- Revista Mandu’a

- Revista Mandu’a

MAMPARAS

01 Mampara ciega

y herrajes p/ puerta simple, un

TEL.: 021 906 951

(021) 906 951/2 (021) 328 0572/3

CEL 0971 543 246

CEL.: 0971 543 246 CDE: 061 570 501

MALLA ELECTRO SOLDADA

Garelli

1 De diámetro 4,2 mm, para cubrir 15 m2 un 120.000

MEMBRANAS ASFÁLTICAS

Con Aluminio rollo de 10 m

1 De 3 mm PRIMER un 498.000

2 De 4 mm PRIMER un 624.000

3 De 4 mm CASARINO

Sin Aluminio rollo de 10 m

un 679.000

1 De 3 mm SUPERFLEX un 299.000

2 De 4 mm PRIMER un 500.000

3 De 4 mm PRIMER c/ alma geotextil un 570.000

Mapethene sin Aluminio rollo de 10 m Industria Italiana

1 Mapethene 3 mm un 554.000

2 Mapethene 4 mm un 657.000

3 Mapethene gravilla gris un 583.000 Base para membranas

1 Bitumex, base solvente balde de 18 lts. un 381.000

2 Imprimación primera base al agua de 18 lts. un 144.000 Membrans autoadhesivas

1 De 10 cm x 10 m un 30.000

2 De 15 cm x 10 m un 45.000

3 De 30 cm x 10 m un 90.000

4 De 45 cm x 10 m un 135.000

5 De 90 cm x 10 m un 270.000

6 De 90 cm x 10 m color cerámico y gris un 301.000

(974)

PERFILES

PERFORACIÓN DE POZOS

PIEDRAS

fundaciones y hormigón

05

PINTURAS

Para

de Piedra

Piedra para borde de piscinas

01

PILOTES

PISOS Y REVESTIMIENTOS

03 Cargado en obra, m2 110.000

Alto Tránsito - Antideslizante para exterior - Equipa

01 De 30x30 cm, gris m2 65.000

02 De 40x40 cm, gris m2 73.000

03 De 30x30 cm, rojo ocre m2 68.000

04 De 40x40 cm, rojo ocre m2 74.000

Vereditas

01 Vainilla 20x20, Ka’a, roja, negra, gris m2 40.000

Baldosones de Hormigón - Linea Gris

01 De 40x40x2,5 cm, m2 37.000

02 De 40x40x4 cm, m2 42.000

03 De 40x40x4 cm, armada m2 63.000

04 De 60x40x4 cm, m2 50.000

Bordes 40x40 cm

01 Travertino o Naútico, ml 93.500

02 Atérmico cargado in situ ml 165.000

Varios

1 Oxido rojo/amarillo, kg 25.000

2 Oxido negro/azul/verde, kg 37.500

1 Pastina gris kg 25.000

2 Pastina blanca kg 37.500

Equipa

Piso Para Deck Ecológico WPC

01 Tabla 2,20 X 0,14m un 544.000.

02 Colocación M2 80.000

03 Cotonera de terminación Ml 70.000

Ripado Para Revestido

01 De 0,21 X 2,20 M un 220.000

02 De 0,21 X 3 M un 300.000

PERFILES WPC

Largo: 3.00 mt

01 De 50 x 50 mm un 180.000

02 De 90 x 40 mm un 300.000

Hormigón

Dinteles Garelli

PREVENCIÓN DE INCENDIOS REVESTIMIENTOS ACÚSTICOS

PUERTAS AUTOMÁTICAS

TEL.: 021 906 951

(021) 906 951/2

CEL.: 0971 543 246

(021) 328 0572/3

CEL 0971 543 246

CDE: 061 570 501

TEL.: 021 906 951

(021) 906 951/2

CEL.: 0971 543 246

(021) 328 0572/3

CEL 0971 543 246

CDE: 061 570 501

REFUERZO PARA REVOQUES

Casarino

Para refuerzo de revoques en rollo de 50 m²

SANITARIOS

azulejos, ceramica y pisos

MANDU’ARA

Piletas de acero inoxidable

Tramontina

De 0,80x0,50 m , 1 bacha, lado derecho un 210.000

De 1,00x0,50x0,13 m , 1 bacha, lado derecho un 276.000

De 1,00x0,50x0,13 m , 1 bacha central un 371.000

De 1,20 x 0,50x0,13m , 2 bachas, un 485.000

Sopapa Astra, un Bañeras

De 1,60 x 0,70 x 0.40 m, acrílica, un 1.400.000

De 1,70 x 0,70 x 0.40 m, acrílica, un 1.600.000

De 1,80 x 0,80 m con hidro, ASTRA un 9.200.000

De 1,70 m, italiana con hidro, un 7.000.000

Botiquín

Astra embutido blanco A33-BR1 un 200.000

Astra de sobreponer, A34 - BR1 un 220.000

ASTRA 44 x 58 x 11 cm - colgante un 560.000

Astra Brasilia LB12/S1 un 400.000

Grifería

Para baño

FV - Linea Allegro cromo

Ducha, 103/15, un 1.050.000

Bidet , 295/15 un 884.000

Lavatorio, 207/15 un 765.000

FV - Clásica 20

Ducha, 103/20 un 811.000

Bidet, 293/20 un 639.000

Lavatorio, 207/20 un 636.000

FV - linea 61 - plus Ducha, 103/61 un 958.000

Bidet, 295/61 un 829.000

Lavatorio, 207/61, un 760.000

Llave de paso con campana de 1/2” FV

Línea clásica 479/20, un 87.700

Linea 479/61, un 120.000

Linea Allegro 479/15, un 129.000

Para cocina / agua fria y caliente FVEmbutida

Línea clásica, 403/20 jgo 479.000

Externa

Línea clásica , 409/20 jgo 850.000

Línea 61, 409/61 jgo 935.000

Línea clásica , 416/20 jgo De mesada

Línea 61, 416/61 jgo 775.000

Línea clásica , 416/20 pico alto jgo 714.000

Llave de paso FV

De 1/2” , cromo sin campana 475/13, un 66.500

De 1/2” , cromo con campana 479/20, un

De 3/4” , cromo sin campana 475/19, un 101.000

De 3/4” , cromo con campana 479/20, un 130.000

FV bronce 1/2” 471 un 58.000

FV bronce 3/4” 471 un 84.000

Para agua fría - Para lavatorio - canilla FV

cromo :

Pico alto 221 un 115.000

226/15 un 235.000

226/61, un 271.000

01

VARILLAS

Turn static files into dynamic content formats.

Create a flipbook
Issuu converts static files into: digital portfolios, online yearbooks, online catalogs, digital photo albums and more. Sign up and create your flipbook.