Revista Mandu'a - #492 - Abril 2024

Page 1

INFORMACIÓN, OPINIÓN Y CULTURA AL SERVICIO DE LA CONSTRUCCIÓN

LA BRECHA ENTRE MEGAPROYECTOS Y SERVICIOS BÁSICOS / ENSAYO HORNEROS - BAUEN / GUÍAS DE PRECIOS

ABRIL 2024

Nº 492

AÑO 41

10.520 SUSCRIPTORES

45 añ

Mandu’a es la Revista de la construcción más leída del Paraguay. Mensualmente ofrece noticias, tendencias, notas técnicas y guías de precios de materiales, mano de obra, costeo de obra y proveedores de la construcción.

La suscripción es gratuita para los profesionales de la construcción de todo el país.

Editorial

El Estado ausente deja que el capital devore a consumidores.

Notas

La brecha entre megaproyectos y necesidades básicas.

Proyecto nacional Ensayo Horneros.

Proyecto internacional Jardín infantil Golondrina.

Industria & innovación

Maestría en Sustentabilidad en Diseño y Construcción.

Ripados de WPC.

Láminas Impermeabilizantes Eco-Responsables Revestech.

Chapas de policarbonato PoliGlass.

Guías de precios de la construcción.

Contacto

Ramón I. Cardozo c/ Andrés Gill Lambaré - Paraguay (021) 905 100 / (0981) 917 683

mandua@mandua.com.py

www.mandua.com.py

EQUIPO - Gerencia: Estela Villalba. Dirección editorial: Yerutí Arza. Administración: Estela Villalba. Costeo: Carlos Gómez. Publicidad: Víctor Hugo Franco. Sofía Franco. Néstor Raimondo. Rubén Cabrera. Impresión: Artes Gráficas Castillo S.A. - Fundador: Mauri Arza.

INDICE 10 12 16 22 27 28 29 30 31 - Revista Mandu’a 8
Revista Mandu’a - 9

EL ESTADO AUSENTE DEJA QUE EL CAPITAL DEVORE A CONSUMIDORES

Cuando se habla de seguridad, se alude al Estado ausente. En los lugares donde los delincuentes gobiernan, el Estado ha perdido su rol de mantener la convivencia en base a las normas establecidas, el respeto y el orden.

La ausencia reguladora, con poder coercitivo, del Estado, sin embargo, no se da solamente en el ámbito de la seguridad ciudadana, aunque allí es donde se manifiesta con más fuerza. Hay también muchos otros espacios en los que se nota y causa un impacto negativo la falta de las instituciones que protejan al ciudadano de abusos diversos.

La defensa del consumidor es uno de los eslabones más frágiles de los gobiernos que se han sucedido. El capitalismo voraz que solo corre detrás del lucro a cómo dé lugar comete todo tipo de desbordes porque el Estado no cumple su esperado rol de proteger a los ciudadanos de sus atropellos.

A modo de ejemplificar, miremos solamente algunos sectores. El “seguro” médico es uno de ellos. Cuando se trata de problemas de salud menores, funciona en cierto modo, pero al aparecer enfermedades complejas, e incluso no tan complejas, cobran, por lo general, lo que quieren. Para muestra, baste un botón: en tiempos de la pandemia, un seguro médico pasó a dos asegurados una liquidación de 2.200.000 guaraníes por cada Remdesivir utilizado en ellos. Afuera, solo costaba 700.000 según verificaron.

No hay una ley que proteja al asegurado. La ley de defensa del consumidor es letra muerta aquí. Nadie defiende al asegurado que tiene que lidiar con la voracidad de las prestadoras de servicios pagados de salud.

La falta de seguridad también se manifiesta en el área de los medicamentos que no tienen el porcentaje de la droga que la caja dice tener. Lo evidencia el hecho de que algunos médicos, en actos de sinceridad dicen al paciente: “Si podés, no retires del IPS, comprá.” O “si comprás de laboratorios argentinos o alemanes, mejor todavía.” Más claro, agua.

Notablemente, los ganaderos lograron que se montara un laboratorio de control obligatorio de calidad para los productos veterinarios. Sin embargo, para los fármacos destinados a humanos no hay tal control que garantice la eficacia de las drogas.

En el rubro de los alimentos, ¿quién garantiza su inocuidad, es decir que tarde o temprano no hagan daño a la salud? ¿Quién controla los supermercados y afines? ¿Dónde está el Estado para defender a los ciudadanos?

¿Y quién defiende a los productores a los que los supermercados -que son grandes capitales- pagan por sus productos hasta 90 días después de la entrega de la mercadería? Ganan dinero con el dinero ajeno.

Debe quedar claro que el capitalismo, con la libertad de mercado convertida en libertinaje, no debería tener carta blanca para agredir y poner en peligro a los ciudadanos. Es el Estado el que debe arbitrar las medidas para la defensa de productores y consumidores.

EDITORIAL
- Revista Mandu’a 10
Revista Mandu’a - 11

NOTAS

LA BRECHA ENTRE MEGAPROYECTOS Y NECESIDADES BÁSICAS

Los megaproyectos viales en Paraguay brillan, pero junto a ellos, la cruda realidad: precaria infraestructura básica. Esta contraposición evidencia la brecha entre la inversión en infraestructura y la falta de atención a necesidades básicas. ¿Qué nos revela esta disparidad sobre las prioridades gubernamentales y las verdaderas urgencias de la población?

Dos Realidades: Megaproyectos vs. Servicios Básicos en una Imagen Generada por IA. - Revista Mandu’a 12

La inauguración del Puente Héroes del Chaco ha sido recibida con gran pompa y alabanza por parte de las autoridades, presentándola como un hito de progreso y desarrollo para el país. Sin embargo, detrás de esta celebración se esconde una realidad mucho más compleja y preocupante: la creciente disparidad entre las inversiones millonarias en megaproyectos de infraestructura y la crónica desatención de los servicios básicos que afectan a una parte significativa de la población.

El Puente Héroes del Chaco, con un millonario sobrecosto y un historial de controversias que se remonta a sus fases de planificación y construcción, se erige imponente sobre el río Paraguay. Sin embargo, a sus costados yacen asentamientos informales, hogar de familias que viven en condiciones deplorables, con acceso limitado o nulo a servicios esenciales como agua potable, saneamiento y vivienda adecuada. Este duro constraste es un poderoso recordatorio de la desconexión entre las prioridades gubernamentales y las necesidades reales de la población.

VENTANAS: - 1.800 x 2.100 mts - 900 x 2.100 mts - 1.000 x 1.000 mts - 1.200 x 1.000 mts - 1.060 x 1.050 mts - 1.600 x 1.100 mts PUERTAS: CIELO RASO
contamos con:
SEGUINOS: vidrioscasamarco www.casamarco.com.py SHOWROOM R.I. Pi ant ta c/ J an Ba sta Ri arola Telf: (021)506-104 506-124 (R.A.) WhatsApp: (0972) 759-000 entas @casamarco.com.p FABRICA MADAME LYNCH Madame L nch c/ Moises Bertoni Telf: (021) 521-025 WhatsApp: (0984) 991-030 informe@casamarco.com.p FABRICA LAMBARÉ A da. Caciq e Lambaré esq. J an Ba sta Ri arola Telef: (021) 328-5531/2 WhatsApp: (0984) 991-031 fabricalambare@casamarco.com.p R ta Mcal Es garribia Km / Telef: (0228) 632-490 (R.A.) WhatsApp: (0986) 521-418 entasfabrica@casamarco.com.p Armamos tus aberturas de aluminio DVH
Y PERFILES Revista Mandu’a - 13
Además
MEDIDAS ESTÁNDAR
HERRAJES

NOTAS

La reciente noticia sobre los asentamientos junto al nuevo puente es solo la punta del iceberg de una crisis más profunda en el desarrollo urbano de Paraguay. Según datos de la Municipalidad de Asunción, alrededor de 65 familias ocupan terrenos adyacentes al puente.

Por su parte, en otros puntos del país se repite la misma situación. Muchas de las familias y comunidades afectadas fueron trasladadas debido a crecidas del río Paraguay, encontrándose hoy atrapadas en un ciclo de pobreza y marginalización, sin acceso a oportunidades básicas de desarrollo.

El arquitecto y urbanista Gonzalo Garay, en una entrevista para el diario UH, ha señalado acertadamente que estas situaciones son el resultado de una política deficiente y la falta de instituciones dedicadas exclusivamente al desarrollo urbano.

A lo largo de los años, se han presentado oportunidades para abordar estas problemáticas, como el proyecto de la Franja Costera en 1996, que, a pesar de contar con financiamiento disponible, fue desechado por motivaciones políticas.

CONTROVERSIAS RODEARON LAS OBRAS DEL PUENTE HÉROES DEL CHACO

La construcción del Puente Héroes del Chaco no ha estado exenta de controversias y sobrecostos. Desde su inicio, ha sido objeto de críticas debido a retrasos en la ejecución, cambios no autorizados en el diseño y una gestión cuestionable de los recursos públicos.

El hecho de que la obra haya terminado costando un 17,6% más de lo presupuestado inicialmente, con un sobrecosto de casi 20 millones de dólares, es un ejemplo flagrante de la falta de transparencia y la posible corrupción que rodea a estos proyectos.

- Revista Mandu’a 14

Mientras tanto, las comunidades indígenas afectadas por la construcción del puente luchan por recuperar sus tierras ancestrales, que fueron expropiadas sin su consentimiento y en violación de sus derechos constitucionales e internacionales. Estas comunidades, lejos de beneficiarse del progreso representado por el puente, se ven marginadas y desplazadas en su propio territorio.

La inauguración del Puente Héroes del Chaco debería ser una oportunidad para reflexionar sobre las prioridades de inversión y desarrollo en Paraguay. La ostentación de megaproyectos de infraestructura no puede ser un sustituto para abordar las necesidades básicas de la población. Es hora de que las autoridades reconozcan la importancia de un enfoque equitativo y sostenible en

el desarrollo, que priorice el bienestar de todos los ciudadanos, especialmente de aquellos más vulnerables y marginados.

La desatención de servicios básicos como vivienda adecuada, saneamiento y acceso a tierras, reflejada en los asentamientos precarios junto al puente y las demandas de comunidades indígenas, no puede ser ignorada en favor de proyectos faraónicos. Paraguay necesita una inversión inteligente y responsable, que aborde las necesidades reales de su población y promueva un desarrollo inclusivo y sostenible para todos. Es fundamental que las autoridades tomen medidas concretas para abordar estas disparidades y trabajar en la construcción de un futuro más equitativo y próspero para todos los paraguayos.

Revista Mandu’a - 15
El Presidente, la Primera Dama y la Ministra del MOPC en la inauguración del nuevo puente.

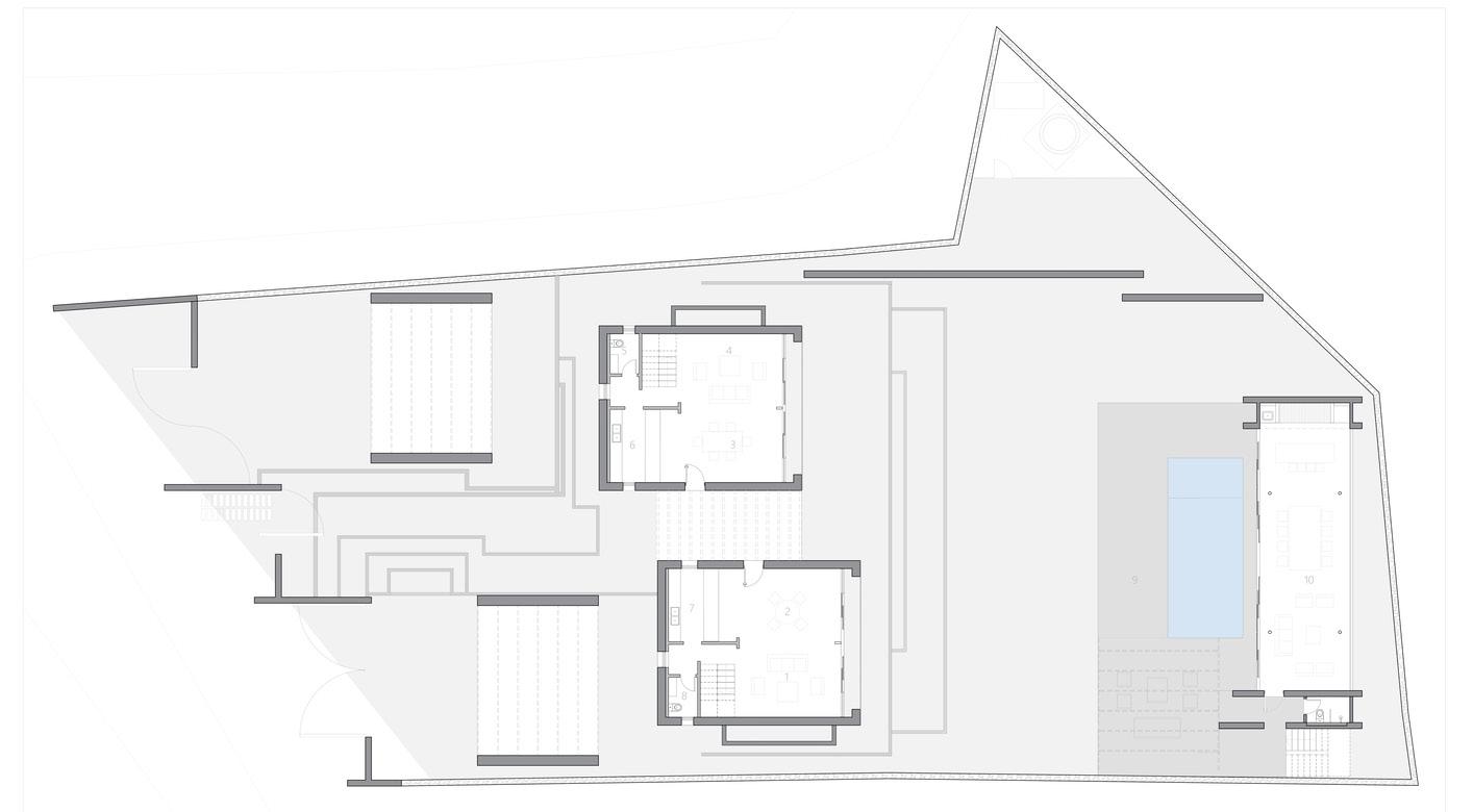
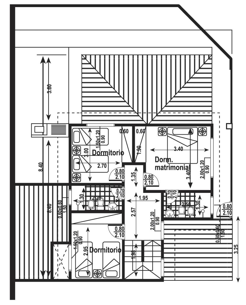
ENSAYO HORNEROS

Proyecto: BAUEN.

Arquitectos a cargo: Aldo Cristaldo Kegler, José Cáceres.

Colaboradores: Dina Agüero, Jaia Vida, Romina Irala, Saúl Acosta.

Fotografías: Darío Mereles, Daniel Ojeda.

Superficie: 467 m².

Año: 2022.

Ubicación: San Bernardino.

PROYECTO NACIONAL
- Revista Mandu’a 16

Descripción elaborada por el equipo del proyecto.

“Allá, si el barro está blando, canta su gozo sincero. Yo quisiera ser hornero y hacer mi choza cantando.

Pues como su casa es centro de todo amor y destreza, la saca de su cabeza y el corazón pone adentro.

La trabaja en paja y barro, lindamente la trabaja, que en el barro y en la paja es arquitecto bizarro.”

El Hornero – Leopoldo Lugones

“Para el hornero, construir es proteger” decía un renombrado ornitólogo cuando consultado sobre el estilo de vida de esta constructiva ave. En el mismo afán, las familias construyen sus casas, con el objetivo de crear un hogar en donde la vida se desarrolla. Un espacio para crecer y recibir a los miembros de la familia.

Revista Mandu’a - 17
PROYECTO INTERNACIONAL
18
- Revista Mandu’a

Con los dos volúmenes que emergen desde el terreno natural, se ejemplifica con claridad que la solidez volumétrica no es sinónimo de pesadez. Con la materialidad, como el aluminio y el vidrio, se logra crear una atmósfera ligera tanto en fachada, como la sensación fenomenológica en el interior de ellas.

Un par de volúmenes racionales, que albergan un programa predominantemente habitacional, los cuales en conjunto con elementos horizontales crean un lenguaje formal dinámico y a la vez, armonioso.

El dominio en el uso del tapial permite ver al proyecto y al paisaje como un todo, ya que gracias a la materialidad y su textura natural permiten una relación la cual la arquitectura está totalmente adaptada al sitio y no transmite una sensación invasiva al contexto natural donde se implantan Los Horneros.

Corte

Planta Alta.

Planta Baja.

PROYECTO NACIONAL
- Revista Mandu’a 20

Cabe destacar la orientación Suroeste en la que se ubica dicho proyecto, es la que posibilita que podamos considerar como un diseño arquitectónico ecológico y sostenible. Desde su concepción, con esta orientación, se busca la disminución de refrigeración y luz artificial durante la mayor parte del día, ideal para una ciudad veraniega como la de San Bernardino.

En sus ambientes interiores, como resultado conjunto entre la materialidad alternativa, como lo es el tapial, y su orientación mencionada, posibilitan un microclima interno agradable y confort para los usuarios. También mencionar la espacialidad y funcionalidad habitacional que albergan Los Horneros, permitiendo fluidez y dinamismo en sus recorridos entre ambas viviendas y su entorno natural, y paralelamente ofrece una percepción de refugio más íntimo y familiar.

Revista Mandu’a - 21

JARDÍN INFANTIL GOLONDRINA

Proyecto: Pedro Lomboy Castillo.

Fotografías: Raúl Goycoolea.

Superficie: 1.549 m².

Año: 2023.

Ubicación: Valparaíso, Chile.

PROYECTO INTERNACIONAL
- Revista Mandu’a 22

Descripción elaborada por el equipo del proyecto.

El proyecto se emplaza en el sector de Porvenir Bajo, sobre los acantilados en la Ladera poniente del Cerro Playa Ancha en la ciudad Puerto de Valparaíso, Chile. Comparte la manzana con el Club Deportivo del sector completando un polígono de equipamiento inserto en la población Eleuterio Ramírez, en un entorno de alta vulnerabilidad social. El proyecto surge de la necesidad de reponer un establecimiento existente desde 1978, afectado por un avanzado deterioro estructural, así como obsolescencia normativa y funcional.

La propuesta formal plantea un cuerpo rectangular formado por 4 pabellones en dos niveles, con un vacío central que da lugar al Patio General. El área docente conforma los pabellones norte y oriente, dando lugar a las aulas principales, salas de extensión y salón multiuso privilegiando una óptima iluminación natural y vista al mar desde el segundo piso.

Revista Mandu’a - 23

Corte A-A

Planta Baja

PROYECTO INTERNACIONAL
- Revista Mandu’a 24

En el pabellón poniente se ubica el acceso principal, áreas de recepción, distribución, oficinas administrativas y en el pabellón sur se proyecta el área de servicios que comprende cocinas y complementarios tales como, accesos de servicios, bodegas, duchas y servicios higiénicos.

El programa arquitectónico se basa en el Programa Arquitectónico

PAM, presentando una mejora en el estándar de metros cuadrados por alumno e incorpora recintos complementarios como salas de extensión para arte, música y actividades de estimulación entre otras, también incorpora salón multiuso que acoge diversos usos, tales como comedor, gimnasia y juego, así como actividades extensivas a la comunidad actos, presentaciones y reuniones.

Revista Mandu’a - 25

En los recintos interiores se seleccionaron colores suaves proporcionando ambientes iluminados y neutros para los distintos usos propios de la actividad. Así mismo se incorpora mobiliario en obra y elementos de juego insertos en la arquitectura, tales como muro de escalada y muro de juego con el propósito de fomentar la estimulación motora de los lactantes a través del arte y el juego.

La estrategia de eficiencia energética propone diseño pasivo para el máximo aprovechamiento de la luz natural en aulas, circulaciones cerradas para minimizar las perdidas térmicas y bajo requerimientos de mantención de fachadas a través de la materialidad y color. Así mismo incorpora energía solar para generación de agua caliente y energía eléctrica.

PROYECTO INTERNACIONAL - Revista Mandu’a 26

EDiseño y Construcción

Diseño y Construcción Maestría Sustentabilidad en

Resolución Cones N° 801/2016

Resolución Cones N° 801/2016

ABRIENDO CAMINOS HACIA UN FUTURO SUSTENTABLE

Enfoque en diseñar y construir de manera sustentable.

Enfoque en diseñar y construir de manera sustentable.

Inicio del programa planificado para Junio de 2024.

n respuesta a la creciente necesidad de profesionales capacitados en el diseño y la construcción sustentable, la Universidad Católica Nuestra Señora de la Asunción presenta con orgullo su Maestría en Sustentabilidad en Diseño y Construcción. Respaldada por la resolución CONES N° 801/2016.

El objetivo es formar Magísteres especializados en técnicas y disciplinas de vanguardia, con el fin de contribuir significativamente a un mercado laboral cada vez más exigente. A través de un enfoque integral, los participantes adquieren las habilidades necesarias para diseñar y construir con un mínimo impacto ambiental, considerando factores críticos como el clima, la gestión energética y el análisis de materiales.

El programa aborda diversas áreas temáticas, desde la sustentabilidad del hábitat construido hasta la gestión de residuos de materiales en obra.

Cada curso está diseñado para proporcionar una comprensión profunda de las soluciones innovadoras en el campo de la construcción sustentable.

Dirección de Posgrado e Investigación Centro Interdisciplinario del Agua y el Territorio

Dirección de Posgrado e Investigación Centro Interdisciplinario del Agua y el Territorio

Dirección de Posgrado e Investigación Centro Interdisciplinario del Agua y el Territorio

Dirección de Posgrado e Investigación Centro Interdisciplinario del Agua y el Territorio

La duración de 18 meses, más la tesis, permite a los participantes equilibrar sus estudios con sus compromisos profesionales y personales.

Para ser admitido en el programa, se requiere que los aspirantes sean egresados de Arquitectura, Ingeniería u otras disciplinas afines. Este programa representa una oportunidad única para aquellos que desean liderar el cambio hacia un futuro más sustentable en la industria de la construcción.

Para obtener más información e inscripciones, los interesados pueden comunicarse al O974 301216 o dpi.fcyt@uc.edu.py. Únanse a esta iniciativa y sean parte del movimiento hacia un mundo construido de manera más consciente y respetuosa con el medio ambiente.

INDUSTRIA & INNOVACIÓN
Revista Mandu’a - 27

RIPADOS DE WPC

La solución ecológica y versátil para tus proyectos de construcción

Con más de cuatro décadas en el mercado, EQUIPA se complace en presentar los Ripados de WPC (Wood Plastic Composite). Este producto combina materiales sostenibles con un diseño versátil y duradero, ofreciendo una solución óptima para proyectos residenciales y comerciales.

Los Ripados de WPC están fabricados con un 55% de polvo de madera de reforestación, un 35% de polvo y un 10% de resina plástica, lo que garantiza una alta resistencia al clima y al ambiente. Esta característica los convierte en una elección ideal tanto para aplicaciones en interiores como en exteriores.

Disponibles en medidas estándar de 0.22 x 2.20 ml. y 0.22 x 3 m, pueden utilizarse para revestir una variedad de superficies, incluyendo paredes, puertas y cielos rasos. Para áreas propensas a la humedad, se recomienda su instalación sobre perfiles de aluminio, permitiendo una adecuada ventilación y previniendo problemas de condensación.

Los beneficios de los Ripados de WPC son numerosos: requieren un mantenimiento mínimo, no necesitan pintura y son resistentes a plagas como el kupii. Además, ofrecen la estética natural de la madera con la facilidad de instalación de un material moderno.

Para una instalación exitosa, es esencial asegurar la nivelación y aplomado de la superficie. Se sugiere fijar los ripados con tornillos y tarugos en puntos estratégicos, como extremos y centro. En el caso de cielos rasos, se recomienda la construcción de un bastidor de aluminio o caño de chapa, protegido con pintura antioxidante, para una fijación estable en cuatro puntos.

Para mayor información contacte con la firma Equipa SRL a los números de teléfono 021 605333 y 0983 879000. Visite el Show Room ubicado en Lillio Nº 1460 c/ Dr. Roque Gaona. O visite la página web www.equipa. com.py.

INDUSTRIA & INNOVACIÓN - Revista Mandu’a 28
LÁMINAS IMPERMEABILIZANTES ECO-RESPONSABLES REVESTECH

Una solución rápida y eficaz para cubiertas.

Eureka se enorgullece de ofrecer las soluciones avanzadas de impermeabilización de Revestech. Destacando la línea EcoDry, estas láminas revolucionarias ofrecen una forma eficiente y sostenible de resolver los desafíos de impermeabilización en una amplia gama de aplicaciones.

Con EcoDry, la impermeabilización de cubiertas se convierte en un proceso rápido y eficaz. Su instalación adherida elimina la necesidad de herramientas especiales o productos adicionales, lo que ahorra tiempo y recursos. Además, su versatilidad permite su aplicación directa sobre sistemas existentes sin la necesidad de retirarlos en la mayoría de los casos.

EcoDry 50 es ideal para la impermeabilización bajo pavimentos en cubiertas pequeñas transitables, así como para baños y áreas húmedas interiores. Compuesta por una membrana polimérica de poliolefinas termoplásticas de alto rendimiento, esta lámina eco-responsable ofrece una solución duradera y resistente.

Por otro lado, EcoDry 120 es una lámina multicapa diseñada para aplicaciones más exigentes, como la impermeabilización de piscinas y cubiertas exteriores transitables y no transitables. Su composición innovadora garantiza una protección efectiva contra la humedad, mientras que su capacidad de desolidarización proporciona una base sólida para cualquier acabado.

Con EcoDry, Revestech demuestra su compromiso con la innovación y la sostenibilidad, ofreciendo soluciones de impermeabilización de vanguardia que cumplen con los más altos estándares de calidad y rendimiento.

Para más información, visitar el local en Gral. Caballero 355 c/ Padre Fidel Maíz, Fernando de la Mora, o llamar a los teléfonos (021) 524 087, (0985) 777 917 y (0981) 480 753. Asimismo, contactar a comercial@eureka.com.py y visitar la web de la empresa.

INDUSTRIA & INNOVACIÓN Revista Mandu’a - 29

CHAPAS DE POLICARBONATO POLIGLASS

Una alternativa ligera, duradera y estética.

Los techos para estacionamiento de policarbonato son una opción cada vez más popular entre los propietarios de vehículos que buscan una alternativa ligera y duradera a los techos convencionales de metal. Este material traslucido y resistente es conocido por su alta resistencia a impactos, su capacidad para soportar condiciones climáticas extremas y su resistencia a los rayos UV.

Una de las principales ventajas de los techos de policarbonato es su peso ligero. En comparación con los techos de metal. Además, su resistencia a los impactos los hace ideales para su uso en áreas propensas a la caída de objetos, como zonas de construcción en altura o zonas urbanas con árboles altos.

Otra ventaja importante de los techos de policarbonato es su transparencia. Además, su resistencia a los rayos UV protege el interior del vehículo y la pintura exterior de la decoloración y el deterioro causados por la exposición prolongada al sol.

Los techos de policarbonato también son fáciles de instalar. Además, su superficie lisa facilita la limpieza y el mantenimiento, lo que puede ayudar a prolongar su vida útil y mantener su aspecto estético durante más tiempo.

En resumen, los techos de policarbonato son una excelente alternativa ligera, duradera y estéticamente atractiva a los techos convencionales de metal. Con sus numerosas ventajas, este material transparente y resistente se está convirtiendo rápidamente en la elección preferida de muchos propietarios de vehículos que buscan protegerlos del clima y de los rayos del sol.

Para más información, visitar el local de ShoppinGlass en Itapé 216 c/ Solar Guaraní, Lambaré, o llamar al teléfono (021) 906-951/2 - (021) 328 0572 - (0971) 543 246. Así mismo pueden visitar la web de la empresa www.shoppinglass.com.py.

INDUSTRIA & INNOVACIÓN
- Revista Mandu’a 30
Mano de Obra Costeo de Obra Proyectos Modelo Mandu’a Bolsa de subcontratistas Mandu’ara 32 38 55 63 67
MANDU’A www.mandua.com.py
Revista Mandu’a - 31
GUÍAS
GUÍAS

MANO DE OBRA

MANO DE OBRA - Revista Mandu’a 32
Trabajos preliminares Demoliciones De mampostería con recuperación 1 De 0,45 m m² 32.000 2 De 0,30 m m² 24.000 3 De 0,15 m m² 18.000 De mampostería sin recuperación 1 De 0,45 m m² 20.000 2 De 0,30 m m² 17.000 3 De 0,15 m m² 11.000 Demoliciones varias 1 De techo de teja con recuperación m² 26.000 2 De techo de teja sin recuperación m² 15.000 3 De techo de chapa m² 9.000 4 De techo bovedilla m² 30.000 5 De cielorraso armado (desmontar) m² 21.000 6 De losa de Hº Aº m² 47.000 7 De piso/revoque/revestimiento m² 10.000 8 De contrapiso (cuando no hay piso) m² 5.000 9 Sacar zócalo m 2.000 10 Sacar azulejos m² 8.000 11 Sacar artefactos sanitarios un 39.000 12 Sacar marcos y balancines un 34.400 13 Sacar mamparas (Durlock, Duratec, etc.) m² 26.000 14 Sacar Aire Acondicionado un 85.000 14 Desmontar electricidad (boca) un 5.000 15 Abrir vano en mampostería de 0,15 m m² 26.000 16 Abrir vano en mampostería de 0,30 m m² 39.000 Preparacion de obra 1 Limpieza de terreno (no incluye corte ni destronque de árboles) m² 4000 Destronque de árboles 1 Árbol chico un 110.000 2 Árbol mediano un 352.000 3 Árbol grande un 528.000 4 Árbol extragrande un 726.000 Casilla de obrador 1 Casilla habitable, baños y vestuarios m² 198.000 2 Barraca para depósito m² 84.000 Vallados, cercos, alambrados 1 Vallado de obra (armado) m² 31.000 2 Vallado de obra (desarmado) m² 11.000 3 Tendido de alambre de púas (5 hilos) m 11.000 4 Colocación poste de hormigón armado un 17.000 5 Colocación ángulo de metal cantonera m 9.000
trabajos 1 Desmonte manual de suelo blando m³ 39.000 2 Desmonte manual de suelo duro m³ 61.000 3 Destape de terreno h=20 cm m² 14.000 4 Destape de suelo vegetal m² 7.000 5 Relleno y compactación manual m³ 44.000 6 Relleno y nivelación manual m³ 34.000 7 Replanteo y marcación m² 3.000 8 Retiro de tierra o acarreo hasta 50 m m³ 39.000 9 Carga de contenedor un 160.000 10 Carga de camión un 213.000 11 Bandeja de protección, (armar) m² 30.000 12 Montaje de torre para montacargas m 79.000 13 Desmontaje torre para montacargas m 45.000 Excavaciones (sin acarreo) 1 Para cimiento m³ 39.000 2 Para zapata m³ 42.600 3 Para pozo ciego m³ 55.000 4 Para tubulones m³ 44.000 5 Excavaciones varias suelo blando m³ 39.000 6 Excavaciones varias suelo duro m³ 55.000 7 Excav. p/ submuración m³ 67.000 Estructuras de Hº armado Fundación 1 Zapata m³ 650.000 2 Viga de fundación 20x40 cm m³ 750.000 3 Tubulones Hº Ciclópeo con excavación m³ 360.000 4 Tubulones Hº Aº con excavación m³ 5 Muro Pantalla de Hº Aº m³ 950.000 Pilotes 1 Pilote Ø 40 cm, m 61.000 2 Pilotín manual Ø 20 cm, m 31.000 3 Desmochado pilote Ø 40 cm x unidad un 132.000 4 Cabezales de pilotes m³ 627.000 PILARES (sueltos, cuando no hay losa) 1 Pilar hasta 30x30 cm m 100.000 2 Pilar x m3 m³ 950.000 3 Pilar visto/viga vista m³ 913.000 4 Pilar suelto x m3, altura hasta 6,00 m m³ 950.000 Vigas 1 Viga hasta 30x50 m 110.000 2 Viga hasta 30x50 m³ 850.000
Otros
DE OBRA Revista Mandu’a - 33 Losas 1 Losa sola m³ 800.000 2 Losa + columna + viga m³ 800.000 3 Losarap montaje y hormigonado m² 80.000 4 Pre Losa montaje y hormigonado m² 30.000 Cadenas 1 Cadena 13x30 PB m 77.000 2 Cadena 20x40 PB m 79.000 ESCALERAS 1 Tramo compensado a=1.20 m c/ escalón un 125.000 2 Tramo recto a= 1.20 m cada escalón, un 96.000 PISOS 1 Piso rodillado espesor 12 cm m² 35.000 2 Piso rodillado espesor 10 cm m² 32.000 3 Piso rodillado espesor 08 cm m² 30.000 4 Piso allanado espesor 15 cm (Incluye Alquiler máquina) m² 85.000 5 Piso allanado espesor 12 cm (Incluye Alquiler máquina) m² 55.000 6 Piso allanado espesor 10 cm (Incluye Alquiler máquina) m² 46.000 7 Piso allanado espesor 08 cm (Incluye Alquiler máquina) m² 41.000 Fundaciones 1 Cimiento PBC sin excavación m³ 94.000 2 Hormigón ciclópeo sin excavación m³ 187.000 Mamposteria y muros Nivelación con ladrillo común 1 De 0,15 m armada m² 39.000 2 De 0,30 m m² 46.000 3 De 0,30 m armada m² 53.000 4 De 0,45 m m² 57.000 Panderete 1 De 0,07 - 0,10 m m² 21.000 Elevación 0,15 m con ladrillo común 1 De 0,15 m m² 30.000 2 De 0,15 m armada m² 34.000 3 De 0,15 m,1 cara vista m² 39.000 4 De 0,15 m,1 cara vista y lijada m² 46.000 5 De 0,15 m,1 cara vista con ladrillo laminado m² 48.000 Elevación 0,20 m con ladrillo común 1 De 0,20 m m² 36.000 2 De 0,20 m,1 cara vista y lijada m² 44.000 3 De 0,20 m,1 cara vista con ladrillo laminado m² 44.000 Elevación 0,30 m con ladrillo común 1 De 0,30 m m² 46.000 2 De 0,30 m armada m² 55.000 3 De 0,30 m,1 cara vista m² 60.000 4 De 0,30 m,1 cara vista y lijada m² 54.300 5 De 0,30 m,1 cara vista con ladrillo laminado m² 61.000 6 De 0,30 m, 2 caras vistas con ladrillo laminado m² 69.000 Elevación 0,45 m con ladrillo común 1 De 0,45 m m² 56.000 2 De 0,45 m de submuración m² 64.000 Sardinel 1 Sardinel con ladrillo común m 46.000 2 Sardinel con ladrillo laminado m 46.000 Pilar 1 Pilar 30x30 cm, ladrillo común m 33.000 2 Pilar 30x30 cm, ladrillo común visto m 39.000 3 Pilar 30x30 cm, ladrillo laminado visto m 39.000 4 Pilar Ø 30 cm, premoldeado c/ armadura m 60.000 5 Pilar 40x40 cm, ladrillo común m 39.000 5 Pilar 40x40 cm, Visto con ladrillo común m 53.000 Elevación con piedra 1 Muro de piedra 0,40 m m² 72.800 2 Muro de piedra 0,40 m 1 cara vista m² 85.000 3 Muro de piedra m³ 131.000 4 Muro de contención 0,50 m m³ 146.000 Convoco 1 Muro de ladrillo convocó 2 caras vistas m² 33.000 Elevación con ladrillos huecos 1 De 0,10 m m² 22.000 2 De 0,15 m m² 24.000 3 De 0,15 m, 1 cara vista m² 28.000 4 De 0,20 m m² 34.000 5 De 0,20 m, 1 cara vista m² 36.000 6 De 0,24 m m² 37.000 7 De 0,30 m m² 39.000 8 De 0,30 m, 1 cara vista m² 41.000 Elevación estructural con ladrillo portante 1 De 0,15 m m² 64.000 2 De 0,20 m m² 70.000 3 De 0,30 m m² 83.000 Elevación con bloques de hormigón 1 De 0,10 m m² 26.000 2 De 0,15 m m² 26.000 3 De 0,20 m m² 33.000 4 De 0,30 m m² 53.000 5 De 0,40 m m² 61.000 Servicios para mampostería 1 Lijada de mampostería para visto m² 3.000 2 Lijada de pilar o capitel para visto m² 3.036 3 Colocación de marco para puerta o ventana un 75.600 Aislación hidrófuga Horizontal sin asfalto (1:3), sin alisada 1 De 0,15 m m 5.000 2 De 0,30 m m 7.000 Horizontal en “U” con asfalto 1 De 0,15 m m 10.000 2 De 0,30 m m 15.000 Aislación Hidrófuga 1 De losa/techo plano m² 69.000 2 Rebaje de losa p/ baño o cocina m² 30.000 3 Pintura asfáltica + trama sobre base m² 16.000
MANO
MANO DE OBRA - Revista Mandu’a 34 Dinteles 1 En mampostería c/ 2 varillas m 11.000 2 Sobre aberturas c/4 varillas m 15.000 3 Colocación de dintel prefabricado m 15.000 4 Dintel zuncho de bloque m 31.000 5 Colocación de perfil de hierro m 15.000 Contrapisos (no incluye alisada) 1 Apisonado de Hº cascotes 8 cm m² 15.000 2 Apisonado de Hº cascotes 10 cm m² 18.000 3 Apisonado de Hº cascotes 10 cm, c/ pendiente m² 21.000 4 Apisonado de Hº cascotes 20 cm m² 26.000 5 Apisonado sobre losa Hº Aº e=7cm m² 14.000 6 Apisonado sobre losa Hº Aº e=6cm m² 13.000 7 Apisonado de Hº cascotes con varilla m² 21.000 8 Hº Aº e=7cm m² 33.000 Revoques Revoque de paredes 1 Común, fratachado o peinado m² 22.000 2 Común, fratachado y filtrado m² 22.000 3 Común, fratachado y filtrado; h=+5.00 m m² 30.000 4 Común, fratachado o peinado; h=+5.00 m m² 30.000 5 Fino o filtrado sobre revoque peinado existente m² 11.000 6 A 2 capas (grueso + fino) m² 30.000 7 A la lona o bolseado m² 13.000 8 Salpicado m² 22.000 9 Base para revestidos m² 22.000 Azotadas hidrófugas para adherencia: 10 Espesor = 1 cm x ladrillo m² 10.000 11 Espesor = 0,5 cm x ladrillo m² 7.000 12 Espesor = 0,5 cm x ladrillo en h=+ 5,00 m m² 10.000 13 Espesor = 1 cm x ladrillo en h=+ 5,00 m exterior m² 13.000 14 Azotada p/ impermeable m² 10.000 Revoque de cielorrasos 1 Azotada para adherencia por losa de Hº Aº, 0,5 cm m² 8.000 2 A 1 capa fratazado y filtrado sin azotada m² 33.000 3 A 1 capa fratazado y filtrado con azotada m² 42.000 4 A 2 capas (grueso + fino),con azotada m² 46.000 5 A 2 capas sin azotada m² 42.000 6 Azotada o base planchada de metal desplegado m² 13.000 Revoque de vigas/pilares/aristas 1 Revoque de arista o canto m 10.000 2 Revoque de babetas o buñas m 15.000 3 De mochetas con 2 aristas (0,15x0,15) m 21.000 4 De goterón en alero m 24.000 5 De losa de Hº Aº m² 35.000
m 21.000
cm (incluye
m 37.000
(incluye azotada + aristas) por cara m 46.000 9 Revoque de pilares 4 caras y aristas m 39.000 10 Revoque de pilares 3 caras y aristas m 33.000
6 De ductos
7 De vigas de Hº Aº de 15x20 ó 20x30
azotada + aristas)
8 De vigas de Hº Aº de 20x40 ó 30x50 cm
con tejuelón;
maderamen, aislante, caballete y bocateja m² 85.000 2 Idem anterior
m² 92.000
maderamen, aislante, caballete y bocateja m² 79.000 4 De teja española sobre machimbre: maderamen, aislante, caballete y bocateja m² 85.000 5 De teja francesa sobre machimbre m² 79.000 6 De teja francesa vana m² 53.000 7 De chapa galv. s/ estruc. de tirantes 2x6” m² 26.000 8 De chapa de fibrocemento acanalada m² 26.000 9 De chapa de fibrocemento acanalada autoportante m² 39.000 10 Colocación de machimbre sobre tirantes m² 30.000 11 Bovedilla c/ tirantes 2x6”, tejuelitas y hormigón pobre m² 85.000 12 De paja m² 46.000 13 Montaje de maderamen c/ tirantes 2x5” o 2x6” cepillados m² 33.000 14 Montaje de vigas m 47.000 15 Techo metálico (tinglado), preparación y montaje m² 39.000 16 Cabriadas de madera, preparación y montaje m 172.000 17 Cabriadas de madera, y planchuelas preparación y montaje m 238.000 Cielorrasos (incluye armazón de madera) 1 De metal desplegado, sin revoque m² 37.000 2 De machimbre de 1/2 x 3” m² 39.000 3 De machimbre de 1 x 3” m² 44.000 4 Cornisa ml 3.000 Revestidos 1 De azulejo m² 32.000 2 De azulejo, 10x10 cm m² 32.000 3 De azulejo (Listel o faja) m 13.000 4 De ladrillejo m² 45.000 5 De ladrillejo (ladrillo cortado) m² 72.000 6 De ladrillejo h= +5m m² 49.000 7 Piedra lajón a escuadra m² 70.000 8 Piedra roja rompecabeza m² 37.000 9 Piedra blanca rompecabeza m² 37.000 10 Piedra arenisca blanca o roja pulida en PB m² 67.000 11 Piedra arenisca blanca o roja pulida en PA m² 72.000 12 Piedra abuchada m² 60.000 13 Piedra laja aserrada m² 32.000 14 Piedra Wasmosy m 100.000 15 Empapelado m² 24.000 4 Asfalkote + velo sobre base m² 16.000 5 Membrana asfáltica m² 15.000 Aislación vertical 1 Azotada hidrófuga, pintura asfáltica m² 39.000
Techos 1 De teja española
incluye:
con limatón
3 De teja española con tejuelita incluye:
MANO DE OBRA Revista Mandu’a - 35 Pisos Sobre carpeta existente 1 Cerámica esmaltada P I 5 m² 34.000 2 Cerámica esmaltada en baño m² 31.000 3 Cerámica esmaltada en escalón m 39.000 4 Cerámica porcellanato m² 37.000 5 Piso calcareo m² 26.000 Carpeta o base 1 Para alfombra o cerámica e=2cm m² 18.000 2 Alisada de cemento e=3cm m² 24.000 3 Para alfombra o cerámica en escalones un 18.000 4 Regleado rústico m² s/c 5 Alisada sobre contrapiso m² 7.500 6 Banquina p/ placard (contrapiso + carpeta hidrófuga) m 33.000 7 Baldosa calcárea o canto rodado m² 26.000 8 Mosaico granítico m² 26.000 9 Pulido de mosaico granítico m² 26.000 10 Layota nacional o esmaltada m² 26.000 11 Veredita calcárea m² 26.000 12 Ladrillo común m² 21.000 13 Tejuelita m² 22.000 14 Baldosones de hormigón, 40x40 cm m² 26.000 15 Piso de HºAº rodillado de 12 cm m² 36.000 16 Plancha de granito o mármol m² 44.000 17 Plancha de mosaico granitico m² 39.000 18 Parquet a bastón roto o tipo colonial clavado m² 53.000 19 Parquet de lapacho tarugado m² 59.000 20 Parquet de machimbre curupa’y, 1 x 3” pulido y lustrado m² 67.000 21 Piso de madera rasqueteado y encerado m² 60.000 22 Alfombra multipiso m² 18.000 20 Piso vinílico 30x30 m² 23.000 21 Piedra losa rompecabeza con junta tomada m² 39.000 22 Piedra losa rectangular m² 39.000 23 Piedra losa 30x30, 30x40 y 40x40 m² 39.000 24 Piedra ardosia m² 39.000 25 Piedra laja m² 39.000 26 Piedra rústica roja Misiones m² 39.000 27 Piedra triturada esparcida a mano m² 7.000 28 Adoquín de piedra m² 42.000 Varios 1 Colocación tapa metálica en cámara de inspección un 44.000 2 Colocación rejilla en cámara de inspección un 44.000 Empedrado 1 Empedrado, h=0,20 m sin cordón m² 17.000 2 Empedrado, h=0,40 m sin cordón m² 28.000 Agua corriente 1 Caño PVC 1” (incluye excavación, colocación y protección) m 16.000 2 Idem anterior de 3/4 m 13.000 3 Idem anterior de ½ m 8.000 4 Instalación de canilla de patio, + 5 ml de cañería un 64.000 Instalación agua fría 1 Para baño completo un 412.000 2 Para baño de servicio un 286.000 3 Para baño social un 159.000 3 Colocación de cordón Hº Prefabricado m 13.000 Zócalos 1 Cemento alisado m 8.000 2 Calcáreo o granítico m 13.000 3 Cerámico m 13.000 4 Layota m 13.000 5 Mármol o granito natural m 26.000 6 Parquet m 13.000 7 Alfombra m 13.000 Desagües Cloacal 1 Caño PVC 40 mm m 14.000 2 Caño PVC 50 mm m 14.000 3 Caño PVC 100 mm m 23.000 4 Caño PVC 150 mm m 31.000 5 Caño material vidriado 4” m 26.000 6 Caño hº centrifugado 30 cm m 26.000 7 Caño hº centrifugado 40 cm m 33.000 8 Caño hº centrifugado 50 cm m 34.000 9 Caño hº centrifugado 60 cm m 45.000 10 Caño hº armado 80 cm m 70.000 11 Caño hº armado 100 cm m 83.000 12 Registro 20X20 cm un 87.000 13 Registro 30X30 cm un 113.000 14 Registro 40X40 cm un 120.000 15 Registro 50x50 cm un 146.000 16 Registro 60x60 cm un 156.600 17 Rejilla corrida 0,20 m m 45.000 18 Rejilla de piso sifonada de 15x15 cm un 69.000 19 Rejilla de patio 30x30 cm un 66.000 20 Boca desague abierta 30x30 cm un 66.000 21 Boca desague abierta 40x40 cm un 66.000 22 Registro desengrasador con tapa de metal un 121.000 23 Cámara de drenaje 60x60 cm un 132.000 24 Cámara séptica (1,00x1,60x1,20 m) con excavación un 990.500 25 Pozo absorvente (Ø: 1.50 m x altura 3,00 m) con excavación un 1.650.000 Desagües para baño 1 Baño completo standard un 317.000 2 Baño completo con bañera un 380.000 3 Baño de servicio un 222.000 4 Baño social un 159.000 5 Para pileta de lavar y lavarropas un 159.000 6 Para pileta de cocina (incluye desengrasador y caja sifonada) un 126.000

(Incluye excavación a una profundidad de 0,50 m en tierra firme y sin piedra, instalación de eléctroducto con protección mecánica y cableado)

Línea embutida en mampostería (incluye colocación de electroducto y cableado) 1

de 4 mm

DE OBRA - Revista Mandu’a 36 2 Trifásica de 4 a 10 mm m 7.000 3 Trifásica de 16 a 25 mm m 9.000 Electroductos embutidos en mampostería sin cableado 1 De 5/8” m 3.000 2 De 1/2” m 3.000 3 De 3/4” m 3.000 4 De 1” m 3.000 Lámparas y tomas de corriente (Embutidos en mampostería hasta 5m del tablero) 1 Una lampara con su interruptor 1 boca 2 Una lámp. c/ 2 llaves de comb. de escalera 2 bocas 3 Una Toma corriente 1 bocas 4 Por llave de 4 vías o intermedia adicional 1 boca Circuitos independientes 1 Circuito para aire acondicionado sin montaje de aparato ni abertura de mampostería hasta 5 m del tablero (mismo que recorran cañerías con otros circuitos) 4 bocas 2 Circuito p/ calefón o ducha eléctrica idem anterior 4 bocas 3 Circuito monof. p/ motobomba c/ cable de 4mm hasta 5 m del tablero 4 bocas Colocaciones 1 Aire acondicionado un 230.000 2 Ventilador de techo un 95.000 3 Tubo fluorecente doble un 16.200 4 Apliques y arañas un 16.200 Carpinteria de aluminio Colocación de premarco de aluminio: 1 Chico 1 m² un 64.000 2 Mediano 3m² un 92.000 3 Grande 4 m² un 125.000 4 Extra grande 5 m² un 150.000 Carpintería de madera Colocaciones de: 1 De marco mayor de 1,00 m un 111.000 2 De marco menor de 1,00 m un 83.000 3 Puerta placa un 92.000 4 Puerta persiana o vidriera chica hoja 46.000 5 Puerta tablero un 96.000 6 Puerta tablero principal incluye hoja, manijón y visor un 128.000 7 Ventana persiana o vidriera 0,65 x 1,00 mt hoja 36.000 8 Ventana balancín un 40.000 9 Contramarco m 10.000 10 Pergolado m² 83.000 Carpintería metálica Colocaciones de: 1 De marco de chapa doblada de 0,80x2,10 m un 66.000 2 De marco de chapa doblada de 1,50x1,20 m un 88.000 4 Para pileta de lavar un 191.000 5 Para pileta de cocina un 126.000 Instalación agua caliente y fría 1 Para pileta de cocina un 254.000 2 Para baño completo un 697.000 Colocación de artefactos Sanitarios y Grifería
Baño completo 115,500 x 4 un 462.000 2 Baño de servicio 100.500 x 2 un 234.000 3 Baño social 117.000 x 2 un 234.000 4 Pileta de cocina un 122.000 5 Pileta de lavar un 122.000 6 Bañera común un 314.000 7 Bañera hidromasaje un 524.000 8 Accesorios de baño (jabonera, percha, etc) un 22.000 9 Colocación de calefón un 175.000 9 Colocación de ducha eléctrica un 33.000 Instalación eléctrica 1 Boca de luz un 53.000 Trabajo de Albañilería 1 Pilar de mampostería para medidor de 0,45x0,45x1,70 m no incluye cimiento ni nivelación un 480.000 2 Registro eléctrico c/ drenaje y tapa de 30x30x40 cm un 105.000 3 Idem anterior 40x40x70 cm un 131.000 4 Colocación caja aire acondicionado un 72.000 Puesto de medición provisorio 1 1 Monofásico 12 bocas 2 Trifásico 14 bocas Puesto de medición definitivo 2 1 Monofásico 14 bocas 2 Trifásico hasta 3A 18 bocas Tablero principal o seccional 1 Colocación de caja embutida en mampostería hasta 40x50 cm 3 bocas 2 Disyuntor TM de corte principal o seccional o de circuito unipolar 2 bocas 3 Idem anterior tripolar 3 bocas 4 Instalación de interruptor diferencial 6 bocas Líneas subterráneas
MANO
1
1 Monofásica de 4
10
m 7.000 2 Trifásica de 4 a 10 mm m 13.000 3 Trifásica de 16 a 25 mm m 21.000
a
mm
Monofásica
m 7.000
Monofásica
m 7.000 3 Monofásica de 10
m 8.000 4 Trifásica de 4
10
m 11.000 5 Trifásica de 16 a 25 mm m 13.000 Líneas aéreas 1 Monofásica de 4 a 10 mm m 3.000
2
de 6 mm
mm
a
mm

2 Rejas, barandas y balancines

3 Tejido de metal

Canaletas y bajadas

1 Con base p/ galvanizado y esmalte sintético

Ladrillo visto, hormigón y piedra

1 Limpieza, curado y siliconado o barnizado

2 Limpieza, curado y siliconado o barnizado

Salario Mínimo

El salario mínimo mensual legal que rige desde el 1 de julio de 2023, según Decreto N.º 9584/23 es de Gs. 2.680.373. El documento establece un reajuste de 5,1 % respecto al salario anterior —ajustado por última vez un año atrás—, y el jornal mínimo (diario) en Gs. 103 091 para el sector privado.

El ajuste del salario mínimo en Paraguay, desde la promulgación de la Ley 5764/16, se establece sobre la base de la variación interanual del Índice de Precios al Consumidor (IPC) y su impacto en la economía nacional, al mes de junio de cada año.

MANO DE OBRA Revista Mandu’a - 37 9 Balancín chico 40x40 cm sin revoque un 44.000 10 Balancín mediano 1,00x1,50 m sin revoque un 77.000 11 Balancín grande 2,00x1,80 m sin revoque un 98.000 12 Portón cochera de 3,00x1,50 m un 185.000 13 Baranda de escaleras m 23.000 14 Pasamanos,} m 18.000 15 Escalera metálica m 61.000 16 Puerta metálica corta fuego un 175.000 17 Puerta metálica mosquitera un 106.000 18 Tinglado, preparación y montaje m² 55.000 Pintura Pintura de pared 1 A la cal blanca m² 9.000 2 A la cal color m² 11.000 3 Al látex interior/exterior con enduido m² 24.000 4 Al látex interior/exterior sin enduido m² 17.000 5 Al látex exterior con enduido en altura m² 29.000 6 Al látex exterior sin enduido en altura m² 19.000 7 Al esmalte sintético interior/ exterior con enduido m² 23.000 Repintado de pared 1 Al látex interior o exterior m² 9.000 2 Al látex interior o exterior altura + de 5m m² 11.000 Enduído 1 De pared m² 12.000 2 De abertura de madera m² 15.000 Techo 1 Tejuelita a la cal y maderamem c/ esmalte sintético m² 17.000 2 Tejuelón y maderamem barnizado m² 17.000 3 Tejuelita o tejuelón barnizado y maderamem con esmalte sintético m² 17.000 4 Pintura de alero de 0,60 m m 20.000 Cielorrasos 1 Al látex con fijador sin enduido m² 13.000 2 Al látex con enduido m² 27.000 3 A la cal m² 10.000 4 Barnizado de machimbre m² 15.000 Aberturas de madera 1 Marco y
sintético m² 26.000 2 Marco y
con barniz m² 20.000 Aberturas
m² 17.000
hoja con esmalte
hoja
metálicas 1 Marco y hoja c/ cromato y esmalte sintético
c/
m² 24.000
m² 17.000
cromato y esmalte sint
m
10.000
m² 15.000
en altura m² 17.000 3 Limpieza, curado y pintura a la cal m² 12.000 4 Pintura texturada m² 24.000 Pintura en silleta 1 Hasta 30 m de altura m² 22.000 2 Desde 30 a 70 m de altura m² 35.000 Varios 1 Moldura doble m 63.000 2 Moldura sencilla m 49.000 3 Estufa con boca 1,00 m un 1.849.000 4 Parrilla con boca 1,00 m, un 1.980.000 5 Colocación balaustre sencillo m s/c 6 Tanque de fibra de vidrio 500 l un s/c 7 Tanque de fibra de vidrio 1000 l un s/c 8 Limpieza final de obra m2 3.000 Jornal de mercado 1 Capataz - día 208,800 h 31.375 2 Oficial - día 167,000 h 26.000 3 Medio oficial - día 135,700 h 20.875 4 Ayudante - día 94,000 h 14.875 Honorario técnicos 01 Dibujante h 28.000 02 Dibujante por lámina un 418.000 03 Calculista m2 20.000 04 Cómputo métrico m2 4.000 05 Presupuesto de obra m2 8.000 06 Copias Plotter por lámina un 11.000 3 De marco de chapa doblada con relleno un 88.000 4 De marco metálico - ángulo un 66.000 5 De guías metálicas y taparrollo p/ cortina de enrollar un 264.000 6 De reja de hierro entre marcos un 44.000 7 De reja de hierro aplicada a la pared un 61.000 8 Portón de hierro 1,00x1,50 m un 106.000

COSTEO DE OBRA

TRABAJOS PRELIMINARES

(de 1.40x2.80m con marco metálico y lona. A retirar y sin colocación)

ESTRUCTURAS DE HORMIGON ARMADO

COSTEO DE OBRA
Relleno y Compactación Tierra gorda, m3 1,00 64.000 64.000 Mano de obra, m3 1,00 44.000 44.000 Total por: m3 108.00 Cartel de
Cartel de obra, un 1,00 450.000 450.000 Total por: un 450.000 Vallado de Obra Chapa cincalum Nº 28, un 0,50 109.000 54.500 2.44x0,90, Puntal de eucalipto pulg/ 10,0 650 6.500 Clavo con cabeza de un 0,40 600 240 plomo, MO (armado), m2 1,00 31.000 31.000 MO (desarmado), m2 1,00 11.000 11.000 Total por: m2 103.240
Obra
Zapata fck=18 MPa Cemento tipo 1, kg 300 1.100 330.000 Arena lavada, m3 0,70 65.000 45.500 Piedra triturada de IV, tn 1,40 120.000 168.000 Varilla conformada, kg 65 10.000 650.000 Alambre negro de atar, kg 0,30 25.000 7.500 Mano de obra, m3 1 650.000 650.000 Total por: m3 1.851.000 Columna fck=21 MPa Cemento tipo 1, kg 300 1.100 330.000 Arena lavada, m3 0,70 65.000 45.500 Piedra triturada de IV, tn 1,40 120.000 168.000 Varilla conformada, kg 95 10.000 950.000 Alambre negro de atar, kg 0,40 25.000 10.000 Clavo 1” a 7”, kg 0,40 18.000 7.200 REOPLAST Fluidificante kg 3,50 19.850 69.475 Mano de obra m3 1 800.000 800.000 Total por: m3 2.380.175 Viga fck=21MPa Cemento tipo 1, kg 300 1.100 330.000 Arena lavada, m3 0,70 65.000 45.500 Piedra triturada de IV, tn 1,40 120.000 168.000 Varilla conformada, kg 90 10.000 900.000 Alambre negro de atar, kg 0,40 25.000 10.000 Clavo 1” a 7”, kg 0,40 18.000 7.200 REOPLAST kg 3 19.850 59.550 Mano de obra, m3 1 800.000 800.000 Total por: m3 2.320.250 Losa fck=21MPa Cemento tipo 1, kg 350 1.100 385.000 Arena lavada, m3 0,70 65.000 45.500 Piedra triturada de IV, tn 1,30 120.000 156.000 Varilla conformada, kg 80 10.000 800.000 Alambre negro de atar, kg 0,40 25.000 10.000 Clavo 1” a 7”, kg 0,30 18.000 5.400 REOPLAST kg 4 19.850 79.400 Mano de obra, m3 1 800.000 800.000 Total por: m3 2.281.300 Encadenado Inferior 13x20 en PB Cemento tipo 1, kg 10 1.100 11.000 Arena lavada, m3 0,02 265.000 1.300 Piedra triturada de IV, tn 0,04 120.000 4.800 Varilla conformada, kg 3,20 10.000 32.000 Alambre negro de atar, kg 0,10 25.000 2.500 Clavo 1” a 7”, kg 0,10 18.000 1.800 Mano de obra, 1 60.000 Total por: ml 113.400 Encadenado 13x30 cm Cemento tipo 1, kg 12 1.100 13.200 Arena lavada, m3 0,02 65.000 1.300 Piedra triturada de IV, tn 0,05 120.000 6.000 Varilla conformada, kg 3,60 10.000 36.000 Alambre negro de atar, kg 0,10 25.000 2.500 Clavo 1” a 7”, kg 0,10 18.000 1.800 Mano de obra, ml 1 77.000 77.000 Total por: ml 137.800 Encadenado 30x30 cm Cemento tipo 1, kg 27 1.100 29.700 Arena lavada, m3 0,06 65.000 3.900 Piedra triturada de IV, tn 0,13 120.000 15.600 Varilla conformada, kg 4,00 10.000 40.000 Alambre negro de atar, kg 0,10 25.000 2.500 Clavo 1” a 7”, kg 0,10 18.000 1.800 Mano de obra, 1 77.500 Total por: ml 171.000 Escalera de HºAº fck=21MPa15 escalones de 0.30x1.10m y 1 descanso Cemento tipo 1, kg 350 1.100 385.000 Arena lavada, m3 0,70 65.000 45.500 Piedra triturada de IV, tn 1,40 120.000 168.000 Varilla conformada, kg 110 10.0001.100.000 Alambre negro de atar, kg 5 25.000 125.000 Clavo 1” a 7”, kg 0,40 18.000 7.200 REOPLAST kg 4 19.850 79.400 Mano de obra, C/ES 17 125.0002.125.000 Total por: total 4.035.100 - Revista Mandu’a 38

FUNDACIONES

Cemento tipo 1, kg 22,8 1.100 25.080 Arena lavada, m3 0,04 65.000 2.600 Piedra triturada de V, tn 0,09 120.000 10.800 Varilla conformada, kg 1,80 10.000 18.000 Alambre negro de atar, kg 0,06 25.000 1.500 Viguetas y ladrillos, m2 1 78.500 78.500 Mano de obra, m2 1 80.000 80.000 Total por: m2 216.480
Losa Rap h=12+5=17cm, luz hasta 4,70m (1:2:3,5)
Cemento tipo 1, kg 24,2 1.100 26.620 Arena lavada, m3 0,05 65.000 3.250 Piedra triturada de V, tn 0,11 120.000 12.600 Varilla conformada, kg 1,80 10.000 18.000 Alambre negro de atar, kg 0,06 25.000 1.500 Viguetas y ladrillos, m2 1 85.500 85.500 Mano de obra, m2 1 80.000 80.000 Total por: m2 227.470 Losa Listalosa Cemento tipo 1, kg 18 1.100 19.800 Piedra triturada de V, tn 0,08 120.000 9.600 Arena lavada, m3 0,03 65.000 2.145 Varilla conformada, kg 1,87 10.000 18.700 Vigueta listalosa, m2 1 125.000 125.000 MO colocación un 1 45.155 45.155 Total por: m2 220.400 Piso HºAº fck=21MPa - Tráfico ligero 10 cm Cemento tipo 1, kg 35 1.100 38.500 Arena lavada de rio, m3 0,07 65.000 4.550 Piedra triturada de IV, tn 0,13 120.000 15.600 Varilla conformada, kg 5 10.000 50.000 Varilla lisa, kg 1 11.500 11.500 Alambre negro de atar, kg 0,40 25.000 10.000 Clavo 1” a 7”, kg 0,40 18.000 7.200 REOPLAST kg 0,35 19.850 6.948 SIKAFLEX Sellador de pomo 0,33 57.000 18.810 juntas - 300ml, PAVIDUR Endurecedor kg 1,23 7.300 8.979 superficial, Mano de obra, m2 1 36.000 36.000 Total por: m2 208.087
Losa Rap h=20+4=24cm, luz mayor a 4,70 m (1:2:3,5)
Cimiento PBC con cal (1/2:1:4) Piedra bruta blanca, m3 1,20 150.000 180.000 Cemento tipo 1, kg 46 1.100 50.600 Cal triturada, kg 30 1.225 36.750 Arena lavada, m3 0,30 65.000 19.500 Mano de obra PBC, m3 1 94.000 94.000 MO excavación, m3 1 39.000 39.000 Total por: m3 419.850 Cimiento PBC sin cal (1:12) m3 353.920 Cimiento de H° de Cascotes - Tierra Gorda Tierra gorda, m3 0,60 64.000 38.400 Cemento tipo 1, kg 80 1.100 88.000 Cascotillo cerámico, m3 0,80 99.500 79.600 MO excavación, m3 1 39.000 Mano de obra PBC, 1 65.000 Total por: m3 310.000 Cimiento de H° de Cascotes - Arena Lavada Arena lavada, m3 0,60 65.000 39.000 Cemento tipo 1, kg 200 1.100 220.000 Cascotillo cerámico, m3 0,80 99.500 79.600 MO excavación, m3 1,00 39.000 39.000 Mano de obra PBC, 1,00 65.000 Total por: m3 442.600 Hormigón Ciclópeo (1:3:6) Piedra bruta blanca, m3 0,40 150.000 60.000 Cemento tipo 1. kg 225, 1.100 247.500 Arena lavada, m3 0,40 65.000 26.000 Piedra triturada de IV, tn 1,05 120.000 126.000 Mano de obra, m3 1,00 187.000 187.000 MO excavación, m3 1,00 39.000 39.000 Total por: m3 685.500
De Nivelación Con ladrillo común y junta de 2 cm De 0.30 m de ancho (1:2:8) con cemento Tipo 1 Ladrillo común, un 122 700 85.400 Cemento tipo 1, kg 14,1 1.100 15.510 Cal triturada, kg 13,3 1.225 16.293 Arena lavada, m3 0,10 65.000 6.500 Mano de obra, m2 1,00 46.000 46.000 Total por: m2 169.703 De 0.30 m armada (1:4) con cemento Tipo 1 Ladrillo común, un 122 700 85.400 Cemento tipo 1, kg 16,0 1.100 17.600 Arena lavada, m3 0,10 65.000 6.500 Varilla conformada, kg 1,60 10.000 16.000 Mano de obra, m2 1,00 53.000 53.000 Total por: m2 178.500 De 0.45 m de ancho (1:2:8) con cemento Tipo 1 Ladrillo común, un 187 700 130.900 Cemento tipo 1, kg 23,1 1.100 25.410 Cal triturada, kg 21,9 1.225 26.828 Arena lavada, m3 0,16 65.000 10.400 Mano de obra, m2 1,00 57.000 57.000 Total por: m2 250.538
Revista Mandu’a - 39
MAMPOSTERIAS
COSTEO DE OBRA

COSTEO DE OBRA

De Elevación

Con ladrllo común y junta de 2 cm

De

De Elevación

Con Ladrillos Cerámicos Huecos y junta de 1,5 cm

De

0.15 m (1:2:10)
1 Ladrillo común, un 65 700 45.500 Cemento tipo 1, kg 5,74 1.100 6.314 Cal triturada, kg 5,53 1.225 6.774 Arena lavada, m3 0,05 65.000 3.250 Mano de obra, m2 1,00 30.000 30.000 Total por: m2 91.838 De 0.15 m (1:2:10) con cemento tipo 1 - A la vista Ladrillo común, un 65,0 700 45.500 Cemento tipo 1, kg 5,74 1.100 6.314 Cal triturada, kg 5,53 1.225 6.774 Arena lavada, m3 0,05 65.000 3.250 Mano de obra, m2 1,00 39.000 39.000 Total por: m2 100.838 De 0.20 m (1:2:10) con cemento tipo 1 Ladrillo común, un 95 700 66.500 Cemento tipo 1, kg 8,80 1.100 9.680 Cal triturada, kg 8,50 1.225 10.413 Arena lavada, m3 0,09 65.000 5.850 Mano de obra, m2 1 36.000 36.000 Total por: m2 128.443 De 0.20 m (1:2:10) con cemento tipo 1 - A la vista Ladrillo común, un 95 700 66.500 Cemento tipo 1, kg 8,80 1.100 9.680 Cal triturada, kg 8,50 1.225 10.413 Arena lavada, m3 0,09 65.000 5.850 Mano de obra, m2 1 44.000 44.000 Total por: m2 136.443 De 0.30 m (1:2:10) con cemento tipo 1 Ladrillo común, un 122 700 85.400 Cemento tipo 1, kg 11,8 1.100 12.980 Cal triturada, kg 11,4 1.225 13.965 Arena lavada, m3 0,10 65.000 6.500 Mano de obra, m2 1,00 46.000 46.000 Total por: m2 164.845
0.07
1.5
Ladrillo común, un 30 700 21.000 Cemento tipo 1, kg 0,90 1.100 990 Cal triturada, kg 0,85 1.225 1.041 Arena lavada, m3 0,01 65.000 520 Mano de obra, m2 1,00 21.000 21.000 Total por: m2 44.551
con cemento tipo
De
m (1:2:10) con cemento tipo 1 y junta de
cm
0.15
1 Ladrillo 6 tubos de 1ra, un 20 1.298 25.960 12x18x25 cm Ita Yby, Cemento tipo 1, kg 1,80 1.100 1.980 Cal triturada, kg 1,70 1.225 2.083 Arena lavada, m3 0,01 65.000 845 Mano de obra, m2 1,00 24.000 24.000 Total por: m2 54.868 De 0.15 m (1:2:8) 1 cara vista con cemento tipo 1 Ladrillo 6 tubos de 1ra, un 20,0 1.298 25.960 12x18x25 cm Ita Yby, Cemento tipo 1, kg 1,80 1.100 1.980 Cal triturada, kg 1,70 1.225 2.083 Arena lavada, m3 0,01 65.000 650 Mano de obra, m2 1,00 28.000 28.000 Total por: m2 58.673 De 0.20 m (1:2:8) m con cemento tipo 1 Ladrillo hueco un 19,0 2.200 41.800 18x18x25 Ita Yby Cemento tipo 1, kg 2,80 1.100 3.080 Cal triturada, kg 2,70 1.225 3.308 Arena lavada, m3 0,02 65.000 1.235 Mano de obra, m2 1,00 34.000 34.000 Total por: m2 83.423 De 0.20 m (1:2:8) con cemento tipo 1 Ladrillo 6 tubos de 1ra, un 41,0 1.177 48.257 8x18x25 cm Ita Yby Cemento tipo 1, kg 5,40 1.100 5.940 Cal triturada, kg 5,10 1.225 6.248 Arena lavada, m3 0,04 65.000 2.405 Mano de obra, m2 1,00 34.000 34.000 Total por: m2 96.850 De Elevación a la Vista Con ladrilllo cerámico laminado y junta de 1,5 cm De 0.15 m (1:2:8) con cemento tipo 1 Ladrillo de 1ra A, un 45,0 1.265 56.925 6x12x25 cm Ita Yby, Cemento tipo 1, kg 5,60 1.100 6.160 Cal triturada, kg 5,30 1.225 6.493 Arena lavada, m3 0,04 65.000 2.470 Mano de obra, m2 1,00 39.000 39.000 Total por: m2 111.048 - Revista Mandu’a 40
m (1:2:8) con cemento tipo

AISLACION

Sardinel de Ladrillos Comunes Ladrillo común, un 16,0 700 11.200 Cemento tipo 1, kg 2,10 1.100 2.310 Cal triturada, kg 0,90 1.225 1.103 Arena lavada, m3 0,01 65.000 650 Mano de obra, ml 1,00 46.000 46.000 Total por: ml 61.263 Sardinel de Ladrillos Laminados Ladrillo laminado Ita Yby un 14,0 1.265 17.710 1ra A, 6x12x25 cm Cemento tipo 1, kg 2,10 1.100 2.310 Cal triturada, kg 0,90 1.225 1.103 Arena lavada, m3 0,01 65.000 650 Mano de obra, ml 1,00 46.000 46.000 Total por: ml 67.773 Ladrillo Convocó Ladrillo convocó recto un 25,0 2.644 66.100 de 1ra, 19x19x10 cm Yoayu Cemento tipo 1, kg 8,00 1.100 8.800 Cal triturada, kg 4,00 1.225 4.900 Arena lavada, m3 0,05 65.000 3.250 Mano de obra, m2 1,00 33.000 33.000 Total por: m2 116.050 Muro de Piedra Bruta de 30 cm (1/2:1:4) Piedra bruta blanca, m3 0,30 150.000 45.000 Cemento tipo 1, kg 12,0 1.100 13.200 Cal triturada, kg 14,0 1.225 17.150 Arena lavada, m3 0,10 65.000 6.500 Mano de obra, m2 1,00 72.000 72.000 Total por: m2 153.850 Pilar de Ladrillo Común 30x30 (1:1:6) Ladrillo común, un 35,0 700 24.500 Cemento tipo 1, kg 10,0 1.100 11.000 Cal triturada, kg 4,00 1.225 4.900 Arena lavada, m3 0,03 65.000 1.950 Mano de obra, ml 1,00 33.000 33.000 Total por: ml 75.350 Pilar de Ladrillo Común 30x30 (1:1:6) - A la vista Ladrillo común un 35,0 700 24.500 Cemento tipo 1, kg 10,0 1.100 11.000 Cal triturada, kg 4,00 1.225 4.900 Arena lavada, m3 0,03 65.000 1.950 Mano de obra, ml 1,00 39.000 39.000 Total por: ml 81.350 Muralla de Ladrillo Común (e=0.15m, h=2.00m, con pilares de 0.30 x 0.30 cada 2.00m) Cimiento PBC con cal, m3 0,12 419.850 50.382 Nivelación 0.30 m, m2 0,40 169.703 67.881 Aislación horizontal ml 1,30 18.844 24.497 0,15 m con asfalto, Elevación de 0,15 m con m2 1,40 100.838 141.174 ladrillo común a la vista Pilar de ladrillo común ml 2,00 75.350 150.700 0.30x0.30 m a la vista, Total por: ml 434.634
Elevaciones Varias
Horizontal 0.30 con asfalto Cemento tipo 1, kg 1,80 1.100 1.980 Arena lavada, m3 0,03 65.000 1.950 Negrolin, lt 1,00 12.888 12.888 Mano de obra, ml 1,00 15.000 15.000 Total por: ml 31.818 Horizontal 0.15 con asfalto Cemento tipo 1, kg 1,00 1.100 1.100 Arena lavada, m3 0,02 65.000 1.300 Negrolin, lt 0,50 12.888 6.444 Mano de obra, ml 1,00 10.000 10.000 Total por: ml 18.844 Vertical con Panderete 0.15 m Ladrillo común, un 27,0 700 18.900 Cemento tipo 1, kg 5,00 1.100 5.500 Arena lavada, m3 0,30 65.000 19.500 Negrolin, lt 2,00 12.888 25.776 Betocem hidrófugo, l 0,25 6.060 1.515 Mano de obra, m2 1,00 35.500 35.500 Total por: m2 106.691 De Losa con Piso de Tejuelita Prensada Cascotillo cerámico, m3 0,07 99.500 6.965 Cemento tipo 1, kg 10,0 1.100 11.000 Cal triturada, kg 5,00 1.225 6.125 Arena lavada, m3 0,07 65.000 4.550 Membrana asfáltica 4 m2 1,10 17.500 19.250 mm Casarino, Bitumex, lt 0,25 12.888 3.222 Tejuelita Yoayu de 1ra un 26,0 473 12.298 Mano de obra (piso), 1,00 10.000 Mano de obra m2 1,00 69.000 Total por: m2 142.410 De Losa Para Baño Cemento tipo 1, kg 7,00 1.100 7.700 Arena lavada, m3 0,02 65.000 1.300 Negrolin, lt 1,50 12.888 19.332 Betocem hidrófugo, l 0,25 6.060 1.515 Mano de obra, m2 1,00 30.000 30.000 Total por: m2 59.847 COSTEO DE OBRA Revista Mandu’a - 41

COSTEO DE OBRA

Espesor

cm (1:4:16) con hidrófugo

TECHOS

DINTELES De Varilla Sobre Abertura Cemento tipo 1, kg 3,00 1.100 3.300 Arena lavada, m3 0,05 65.000 3.250 Varilla conformada, kg 0,80 10.000 8.000 Mano de obra, 1,00 5.000 Total por: ml 19.550 De Hormigón Prefabricado Dintel 1m x 14cm, un 1,00 30.100 30.100 Mano de obra, ml 1,00 15.000 15.000 Total por: ml 45.100 CONTRAPISOS De 7 cm (1/4:1:4:6) Cemento tipo 1, kg 4,00 1.100 4.400 Cal triturada, kg 5,00 1.225 6.125 Arena lavada, m3 0,03 65.000 1.950 Cascotillo cerámico, m3 0,07 99.500 6.965 Mano de obra, m2 1,00 15.000 15.000 Total por: m2 34.440 De 10 cm (1/4:1:4:6) Cemento tipo 1, kg 5,00 1.100 5.500 Cal triturada, kg 6,00 1.225 7.350 Arena lavada, m3 0,04 65.000 2.600 Cascotillo cerámico, m3 0,09 99.500 8.955 Mano de obra, m2 1,00 18.000 18.000 Total por: m2 42.405 De 20 cm en Losa Sanitaria Cemento tipo 1, kg 7,00 1.100 7.700 Cal triturada, kg 10,0 1.225 12.250 Arena lavada, m3 0,05 65.000 3.250 Cascotillo cerámico, m3 0,09 99.500 8.955 Mano de obra, 1,00 1 7.500 Total por: m2 49.655
A 1 Capa,
Cemento tipo 1, kg 1,50 1.100 1.650 Cal triturada, kg 4,00 1.225 4.900 Arena lavada, m3 0,02 65.000 1.300 Betocem hidrófugo, l 0,25 6.060 1.515 Mano de obra, m2 1,00 22.000 22.000 Total por: m2 31.365 A 1 Capa, Espesor 1.5 cm (1:4:16) s/ hidrófugo, m2 29.850 Salpicado (1:3) Cemento tipo 1, kg 3,00 1.100 3.300 Arena lavada, m3 0,01 65.000 650 Ceresita hidrófugo, kg 0,25 6.150 1.538 Mano de obra, m2 1,00 22.000 22.000 Total por: m2 27.488 Azotada Impermeable (1:3), Espesor 0.5 cm Cemento tipo 1, kg 2,70 1.100 2.970 Arena lavada, m3 0,01 65.000 650 Ceresita hidrófugo, kg 0,30 6.150 1.845 Mano de obra, m2 1,00 7.000 7.000 Total por: m2 12.465 De Cielorrasos (1:4:12) Cemento tipo 1, kg 1,60 1.100 1.760 Cal triturada, kg 5,10 1.225 6.248 Arena lavada, m3 0,01 65.000 650 MO azotada adherencia, m2 1,00 8.000 8.000 MO revoque 1 capa , m2 1,00 33.000 33.000 Total por: m2 49.658
REVOQUES De Paredes
1.5
Teja Española sobre Tejuelón c/ Madera de Ybyrapyta Teja española Yoayu un 28,0 1.809 50.652 Tejuelón de 1ra Ita Yby un 10,0 2.288 22.880 Tirante 2x5” pulg/ 20,0 3.700 74.000 Viga 4x8” de ybyrapyta,pulg/ 3,80 5.000 19.000 Liston de 1 1/2 x 2”, ml 0,22 5.000 1.100 Cemento tipo 1, kg 1,30 1.100 1.430 Cal triturada, kg 2,60 1.225 3.185 Arena lavada, m3 0,03 65.000 1.950 Clavo 2”, kg 0,25 18.000 4.500 Bitumex, lt 0,50 12.888 6.444 MO montaje viga, ml 0,20 47.000 9.400 Mano de obra, m2 1,00 85.000 85.000 Total por: m2 279.541 Teja Española sobre Tejuelita Teja de 1ra Yoayu, un 28,0 1.809 50.652 Tejuelita Ita Yby de 1ra un 30,0 473 14.190 Tirante 2x5” de pulg/ 20,0 3.700 74.000 Alfajia de ybyrapyta ml 4,00 10.000 40.000 Cemento tipo 1, kg 1,30 1.100 1.430 Cal triturada, kg 2,60 1.225 3.185 Arena lavada, m3 0,03 65.000 1.950 Clavo 2”, kg 0,25 18.000 4.500 Negrolin, lt 0,50 12.888 6.444 Mano de obra, m2 1,00 79.000 79.000 Total por: m2 275.351 Teja Francesa, Marsellesa o Romana s/ Machimbre Teja francesa de 1ra A un 16,0 2.720 43.520 Yoayu Machimbre de m2 1,05 37.000 38.850 ybyrapyta de 1x3”, Tirante 2x5” Ybyrapyta pulg/m 24,0 3.700 88.800 Liston de cedro 1x2”, ml 2,00 5.000 10.000 Liston de cedro 1x1”, ml 2,50 5.000 12.500 - Revista Mandu’a 42

PISOS

Clavo, kg 0,25 18.000 4.500 Negrolin, lt 0,50 12.888 6.444 Alambre negro de atar, kg 0,10 25.000 2.500 Mano de obra, m2 1,00 79.000 79.000 Total por: m2 286.114
Teja de cemento King, un 10,0 7.500 75.000 Machimbre de m2 1,05 37.000 38.850 ybyrapyta 1x3”, Tirante de ybyrapyta pulg/ 24,0 3.700 88.800 Liston de cedro 1x1”, ml 2,50 5.000 12.500 Liston de cedro 1x2”, ml 2,00 5.000 10.000 Negrolin, lt 0,50 12.888 6.444 Mano de obra, m2 1,00 79.000 79.000 Total por: m2 310.594
Caño C 30x50 x1.20 mm, ml 1,05 9.500 9.975 Caño 20x30 x1.20 mm, ml 1,05 6.170 6.479 Tornillo autorroscable 2” un 4,00 500 2.000 Chapa Nº 28, 2.44x0,90 mun 0,50 109.000 54.500 Electrodo, kg 0,05 32.000 1.600 Mano de obra, m2 1,00 26.000 26.000 Total por: m2 100.554 Chapa N° 28 s/ Estructura de Varillas torsionadas Varilla torsionada, kg 6,00 11.000 66.000 Chapa Nº 28, 2.44x0,90 mun 0,50 109.000 54.500 Gancho para tinglado, un 3,00 1.000 3.000 Electrodo, kg 0,07 32.000 2.240 Pintura antióxido, lt 0,05 35.277 1.764 Mano de obra, m2 1,00 70.000 70.000 Total por: m2 197.504 Chapa de Fibrocemento Ondulada 6 mm Chapa, un 0,40 96.000 38.400 Tirante 2x5” de pulg/m 5,00 3.700 18.500 Clavo 2” a 7”, kg 0,03 18.000 540 Mano de obra, m2 1,00 26.000 26.000 Total por: m2 83.440 Entrepiso de Madera Tirante de ybyrapyta pulg/m 20,0 3.700 74.000 Machimbre ybyrapyta 1x3”m2 1,10 37.000 40.700 Clavo, kg 0,25 18.000 4.500 Mano de obra, m2 1,00 30.000 30.000 Total por: m2 149.200
Teja de Cemento Doble Romana King s/ Machimbre
Chapa N° 28 sobre Estructura de Caños Metálicos
Calcárea Baldosa base gris 20x20,m2 1,05 40.000 42.000 Cemento tipo 1, kg 4,00 1.100 4.400 Cal triturada, kg 3,00 1.225 3.675 Arena lavada, m3 0,03 65.000 1.950 Pastina base gris, kg 0,20 6.000 1.200 Mano de obra, m2 1,00 26.000 26.000 Total por: m2 79.225 Mosaico Granítico (base gris 30x30cm) Mosaico granítico, m2 1,05 63.000 66.150 Cemento tipo 1, kg 8,00 1.100 8.800 Cal triturada, kg 7,00 1.225 8.575 Arena lavada, m3 0,03 65.000 1.950 Pastina base gris, kg 0,75 6.000 4.500 Mano de obra pulido, m2 1,00 26.000 26.000 Mano de obra, m2 1,00 26.000 26.000 Total por: m2 141.975 Total por: m2 139.375 Mosaico Granítico (base blanca 30x30cm) m2 149.325 Mosaico Graníto Lavado (para exterior 30x30cm) Mosaico granito lavado, m2 1,05 58.000 60.900 Cemento tipo 1, kg 8,00 1.100 8.800 Cal triturada kg 2,50 1.225 3.063 Arena lavada, m3 0,03 65.000 1.950 Pastina base gris, kg 0,75 6.000 4.500 Mano de obra, m2 1,00 26.000 26.000 Total por: m2 105.213 Cerámica Esmaltada Cecafi 32x57cm, m2 1,05 34.000 35.700 Mezcla adhesiva, kg 3,50 1.198 4.193 Pastina base blanca, kg 0,20 6.000 1.200 Mano de obra, m2 1,00 34.000 34.000 Total por: m2 75.093 Ceramica 45x45cm Piso Cecafi m2 1,05 40.600 42.630 Mezcla adhesiva, kg 2,00 1.198 2.396 Pastina base blanca, kg 0,20 6.000 1.200 Mano de obra, m2 1,00 34.000 34.000 Total por: m2 80.226 Porcelanato 60x60cm Porcelanato, m2 1,05 105.000 110.250 Mezcla adhesiva, kg 2,00 1.198 2.396 Pastina base blanca, kg 0,20 6.000 1.200 Mano de obra, m2 1,00 34.000 34.000 Total por: m2 147.846
Revista Mandu’a - 43
Baldosa
COSTEO DE OBRA

COSTEO DE OBRA

Layota 28x28cm Layota de 1ra A Yoayu, un 12,0 1.666 19.992 Cemento tipo 1, kg 4,00 1.100 4.400 Cal triturada, kg 3,00 1.225 3.675 Arena lavada, m3 0,03 65.000 1.950 Mano de obra, m2 1,00 26.000 26.000 Total por: m2 56.017 Plancha para Revestido de Escalera Plancha granítica base grisml 5,00 420.000 2.100.000 Mano de obra, un 17,0 18.000 306.000 Total por: gl 2.406.000 Piedra Losa Rompecabeza Piedra losa blanca, m2 1,05 35.000 36.750 Cemento tipo 1, kg 6,00 1.100 6.600 Cal triturada, kg 4,00 1.225 4.900 Arena lavada, m3 0,03 65.000 1.950 Mano de obra, m2 1,00 39.000 39.000 Total por: m2 89.200 Piedra losa Blanca Cuadrada Pulida Piedra losa blanca m2 1,00 95.000 95.000 cuadrada pulida, Cemento tipo 1, kg 6,00 1.100 6.600 Cal triturada, kg 4,00 1.225 4.900 Arena lavada,, m3 0,03 65.000 1.950 Mano de obra, m2 1,00 39.000 39.000 Total por: m2 147.450 Alisada de Cemento Cemento tipo 1, kg 10,0 1.100 11.000 Arena lavada, m3 0,01 65.000 650 Oxido rojo, kg 0,02 25.000 500 Mano de obra, m2 1,00 24.000 24.000 Total por: m2 36.150 Baldosones de Hormigón (40x40x3cm) Baldosón de hormigón, m2 1,10 37.000 40.700 Cemento tipo 1, kg 6,00 1.100 6.600 Arena lavada, m3 0,03 65.000 1.950 Cal triturada, kg 4,00 1.225 4.900 Mano de obra, m2 1,00 26.000 26.000 Total por: m2 80.150 Carpeta para Piso Cerámico o Alfombra Cemento tipo 1, kg 5,00 1.100 5.500 Arena lavada, m3 0,02 65.000 1.300 Betocem hidrófugo, l 0,25 6.060 1.515 Mano de obra, m2 1,00 18.000 18.000 Total por: m2 26.315 Alfombra (2mm sin carpeta) Alfombra multipiso, m2 1,10 13.000 14.300 Cemento de contacto, lt 0,20 23.000 4.600 Solvente 700 cc, un 0,10 12.000 1.200 Mano de obra, m2 1,00 18.000 18.000 Total por: m2 38.100 Empedrado Piedra bruta blanca, m3 0,20 150.000 30.000 Arena lavada, m3 0,15 65.000 9.750 Ripio de piedra, tn 0,07 70.000 4.900 Mano de obra, m2 1,00 17.000 17.000 Total por: m2 61.650 Hormigón Armado 12 cm Cemento tipo 1, kg 35,0 1.100 38.500 Arena lavada, m3 0,06 65.000 3.900 Piedra triturada de IV, tn 0,20 120.000 24.000 Varilla conformada, kg 8,00 10.000 80.000 Mano de obra, m2 1,00 36.000 36.000 Total por: m2 182.400 ZOCALOS Cemento Alisado Cemento tipo 1, kg 1,00 1.100 1.100 Arena lavada, m3 0,01 65.000 650 Mano de obra, ml 1,00 8.000 8.000 Total por: ml 9.750 Calcáreo Base Gris Zócalo 10x25 cm, ml 1,05 19.000 19.950 Cemento tipo 1, kg 0,50 1.100 550 Cal triturada, kg 0,50 1.225 613 Arena lavada, m3 0,01 65.000 650 Mano de obra, ml 1,00 13.000 13.000 Total por: ml 34.763 Madera 3/4 x 3”, Zocalo de cedro, ml 1,05 6.500 6.825 Tarugo plástico Nº 8, un 2,00 5.700 11.400 Mano de obra, ml 1,00 13.000 13.000 Total por: ml 31.225 Alfombra Alfombra multipiso 2 m2 0,10 13.000 1.300 Mano de obra, ml 1,00 13.000 13.000 Total por: m2 14.300 Cerámica Esmaltada Cecafi 32x57 cm, m2 0,20 34.000 6.800 Mezcla adhesiva, kg 0,30 1.198 359 Mano de obra, ml 1,00 13.000 13.000 Total por: ml 20.159 Mosaico Granítico (base blanca pulido 10x30cm) Zócalo granítico, m2 1,05 30.000 31.500 Cemento tipo 1, kg 0,50 1.100 550 Cal triturada, kg 0,50 1.225 613 Arena lavada, m3 0,01 65.000 650 Mano de obra pulido, m2 0,10 26.000 2,600 Mano de obra, ml 1,00 13.000 13.000 Total por: ml 48.913 - Revista Mandu’a 44

CIELORRASO

De machimbre c/ armazón de madera, no incluye corniza

DESAGÜE CLOACAL Y PLUVIAL

REVESTIDOS

“No incluye la base previa”

Piso Pared Cecafi

Mosaico Granitico (base gris pulido 10x30cm) ml 44.713 Layota 28x10cm Zócalo de layota, un 3,50 2.530 8.855 Cemento tipo 1, kg 0,50 1.100 550 Cal triturada, kg 0,50 1.225 613 Arena lavada, m3 0,01 65.000 650 Mano de obra, ml 1,00 13.000 13.000 Total por: ml 23.668
Liston de cedro 1x2”, ml 10,0 5.000 50.000 Machimbre eucalipto ½ x 3” m2 1,10 37.000 40.700 Clavo kg 0,25 18.000 4.500 Mano de obra, m2 1,00 35.500 35.500 Total por: m2 130.700
Cecafi 32 x57cm m2 1,05 34.000 35.700 Mezcla adhesiva, kg 3,50 1.198 4.193 Pastina base blanca, kg 0,20 6.000 1.200 Mano de obra, m2 1,00 32.000 32.000 Total por: m2 73.093 Porcelanato 60 x 60 cm Porcelanato 60 x 60 cm, m2 1,05 105.000 110.250 Mezcla adhesiva, kg 3,50 1.198 4.193 Pastina base blanca, kg 0,20 6.000 1.200 Mano de obra, m2 1,00 32.000 32.000 Total por: m2 147.643 Piso Pared 31 x 31 cm Forte Habana 31 x 31 cm,m2 1,05 47.000 49.350 Mezcla adhesiva, kg 3,50 1.198 4.193 Pastina base blanca, kg 0,20 6.000 1.200 Mano de obra, m2 1,00 32.000 32.000 Total por: m2 86.743 Ladrillejo Ladrillejo de 1ra Yoayu un 50,0 765 38.250 Cemento tipo 1, kg 5,00 1.100 5.500 Arena lavada, m3 0,02 65.000 1.300 Mano de obra, 1,00 15.000 Total por: m2 60.050 Piedra Laja Fina (1 a 2 cm de espesor) Piedra laja fina, m2 1,05 50.000 52.500 Cemento tipo 1, kg 3,00 1.100 3.300 Cal triturada, kg 2,50 1.225 3.063 Arena lavada, m3 0,02 65.000 1.300 Mano de obra, m2 1,00 45.000 45.000 Total por: m2 105.163
Boca Desagüe Abierta 20x20x20cm Ladrillo común, un 50,0 700 35.000 Cemento tipo 1, kg 5,00 1.100 5.500 Arena lavada, m3 0,04 65.000 2.600 Cal triturada, kg 5,00 1.225 6.125 Rejilla de hierro 20x20cm un 1,00 37.000 37.000 Mano de obra, un 1,00 79.300 79.300 Total por: un 165.525 Boca Desagüe Abierta 30x30x30cm Ladrillo común, un 65,0 700 45.500 Cemento tipo 1, kg 7,00 1.100 7.700 Arena lavada, m3 0,05 65.000 3.250 Cal triturada, kg 7,00 1.225 8.575 Rejilla de hierro 30x30cm un 1,00 75.000 75.000 Mano de obra, un 1,00 79.300 79.300 Total por: un 219.325 Boca Desagüe Abierta 40x40x40cm Ladrillo común, un 160 700 112.000 Cemento tipo 1, kg 13,5 1.100 14.850 Cal triturada, kg 13,5 1.225 16.538 Arena lavada, m3 0,08 65.000 5.200 Rejilla de hierro 40x40cm un 1,00 100.000 100.000 Mano de obra, 1,00 60.000 Total por: un 308.588 Registro 30x30x30cm Ladrillo común, un 65,0 700 45.500 Cemento tipo 1, kg 7,00 1.100 7.700 Arena lavada, m3 0,05 65.000 3.250 Cal triturada, kg 7,00 1.225 8.575 Tapa Hº 30x30x3 cm, un 1,00 35.000 35.000 Mano de obra, un 1,00 113.000 113.000 Total por: un 213.025 Registro 40x40x40cm Ladrillo común, un 160, 700 112.000 Cemento tipo 1, kg 13,5 1.100 14.850 Cal triturada, kg 13,5 1.225 16.538 Arena lavada, m3 0,08 65.000 5.200 Tapa Hº 40x40x3 cm. un 1,00 40.000 40.000 Mano de obra, 1,00 120.000 Total por: un 308.588 Registro 60x60x50cm Ladrillo común, un 195, 700 136.500 Cemento tipo 1, kg 14,0 1.100 15.400 Cal triturada, kg 14,0 1.225 17.150 Arena lavada, m3 0,10 65.000 6.500 Tapa Hº 60x60x4 cm, un 1,00 85.000 85.000 Mano de obra, un 1,00 156.600 156.600 Total por: un 417.150
Revista Mandu’a - 45
COSTEO DE OBRA

COSTEO DE OBRA

Caño PVC 40mm Caño desagüe PVC, ml 1,00 7.450 7.450 Mano de obra, ml 1,00 14.000 14.000 Total por: ml 21.450 Caño PVC 50mm Caño desagüe PVC, ml 1,00 11.250 11.250 Mano de obra, ml 1,00 14.000 14.000 Total por: ml 25.250 Caño PVC 100mm Caño desagüe PVC, ml 1,00 26.000 26.000 Mano de obra, ml 1,00 23.000 23.000 Total por: ml 49.000 Caño de Hormigón 50cm, Roto Comprimido Caño de 50 cm, un 1,00 148.800 148.800 Mano de obra, ml 1,00 34.000 34.000 Total por: ml 182.800 Caño de Hormigón 60cm, Roto Comprimido Caño de 60 cm, un 1,00 267.750 267.750 Mano de obra, ml 1,00 45.000 45.000 Total por: ml 312.750 Caño de 80cm Hº Aº Vibrado Simple - Macho/Hembra Caño de 80 cm, un 1,00 399.500 399.500 Mano de obra, ml 1,00 70.000 70.000 Total por: ml 469.50 Pozo Ciego (Diámetro=1.50 m y h=3.00 m) Ladrillo común, un 1.100 700 770.000 Cemento tipo 1, kg 150 1.100 165.000 Arena lavada, m3 0,50 65.000 32.500 Mano de obra, un 1,00 1.650.000 1.650.000 Total por: un 2.617.500 Cámara Séptica (1x1.60x1.20m) Ladrillo común, un 420 700 294.000 Cemento tipo 1, kg 100 1.100 110.000 Cal triturada, kg 50 1.225 61.250 Arena lavada, m3 1,50 65.000 97.500 Varilla conformada, kg 2,50 10.000 25.000 Mano de obra, un 1,00 990.500 990.500 Total por: un 1.578.250 Rejilla de Piso Sifonada Caja sifonada cuadrada un 1,00 72.000 72.000 nº 25, 150x150x50mm Mano de obra, un 1,00 69.000 69.000 Total por: un 141.000 Desagüe Cloacal p/ Baño Completo (hasta el primer registro) Caño 100 mm Titan, ml 2,00 14.000 28.000 Caño de PVC 50 mm, ml 2,00 11.250 22.500 Caño PVC 40 mm, ml 4,00 7.450 29.800 Codo 90º p/ desagüe 100mm un 1,00 11.150 11.150 Codo 90º p/ desagüe , buje largo 40mm, un 2,00 1.550 3.100 Codo 45º p/ desagüe un 2,00 1.600 3.200 secundario 40mm, Caja sifonada 150x150x50mm, un 2,00 72.000 144.000 c/ rejilla aluminio Adhesivo 75 gr, un 2,00 9.200 18.400 Limpiador 200 cc, un 1,00 27.000 27.000 Mano de obra, un 1,00 317.000 317.000 Total por: un 604.150 Desagüe Cloacal p/ Baño de Servicio (hasta el primer registro) Caño 100 mm, ml 2,00 14.000 28.000 Caño PVC 50 mm, ml 1,00 11.250 11.250 Caño PVC 40 mm, ml 3,00 7.450 22.350 Codo 90º p/ desagüe un 1,00 11.150 11.150 primario 100mm, Codo 45º p/ desagüe un 1,00 9.450 9.450 primario 100mm, Codo 45º p/ desagüe un 1,00 4.000 4.000 primario 50mm, Codo 90º p/ desagüe un 1,00 1.550 1.550 secundario, buje largo 40mm Codo 45º p/ desagüe un 2,00 1.600 3.200 secundario 40mm, Ramal de reducción 45º un 1,00 16.500 16.500 simple p/ desagüe primario 100x50mm, Caja sifonada cuadrada un 1,00 72.000 72.000 nº 25, 150x150x50mm, Prolongador un 1,00 7.950 7.950 150x150mm p/ caja Anillo de sellado p/ un 3,00 5.000 15.000 desagüe 100 mm, Anillo de sellado p/ desague 50mm un 2,00 2.900 5.800 Adhesivo 75 gr, un 1,00 9.200 9.200 Limpiador 200 cc, un 1,00 27.000 27.000 Mano de obra, un 1,00 222.000 222.000 Total por: un 466.400 Desagüe Cloacal Para Baño Social (hasta el primer registro) Caño 100 mm, ml 2,00 14.000 28.000 Caño PVC 50 mm, ml 1,00 11.250 11.250 Caño PVC 40 mm, ml 2,00 7.450 14.900 Codo 90º p/ desagüe un 1,00 11.150 11.150 primario 100mm, Codo 45º p/ desagüe un 1,00 9.450 9.450 primario 100mm, Codo 45º p/ desagüe un 1,00 4.000 4.000 primario 50mm, - Revista Mandu’a 46
Codo 90º p/ desagüe un 1,00 1.550 1.550 secundario, buje largo 40mm Codo 45º p/ desagüe un 2,00 1.600 3.200 secundario 40mm, Ramal de reducción 45º un 1,00 16.500 16.500 simple p/ desagüe primario 100x50mm, Caja sifonada cuadrada un 1,00 72.000 72.000 nº 25, 150x150x50mm, Anillo de sellado p/ un 2,00 2.900 5.800 desagüe 50 mm, Anillo de sellado p/ un 3,00 5.000 15.000 desagüe 100 mm, Adhesivo 75 gr, un 1,00 9.200 9.200 Limpiador 200 cc, un 1,00 27.000 27.000 Mano de obra, un 1,00 159.000 159.000 Total por: un 388.000 Desagüe para Pileta de Lavar y Lavarropas Caño PVC 50 mm, ml 2,00 11.250 22.500 Caño PVC 40 mm, ml 3,00 7.450 22.350 Codo 90º p/ desagüe un 2,00 1.550 3.100 secundario, buje largo 40mm Codo 45º p/ desagüe un 2,00 1.600 3.200 secundario 40mm, Caja sifonada cuadrada un 1,00 72.000 72.000 nº 25, 150x150x50mm, Adhesivo 75 gr, un 0,50 9.200 4.600 Limpiador 200 cc, un 0,50 27.000 13.500 Mano de obra, un 1,00 159.000 159.000 Total por: un 300.250 Desagüe para Pileta de Cocina Caño PVC 50 mm, ml 3,00 11.250 33.750 Codo 90º p/ desagüe un 2,00 4.500 9.000 primario 50mm, Ramal de reducción 45º un 1,00 16.500 16.500 simple p/ desagüe primario 100x50mm, Desengrasador redondo un 1,00 67.000 67.000 nº 70, 250x172x50, Adhesivo 75 gr, un 0,50 9.200 4.600 Limpiador 200 cc, un 0,50 27.000 13.500 Mano de obra, un 1,00 126.000 126.000 Total por: un 270.350 AGUA CORRIENTE Caño PVC de 1” Caño PVC roscable, ml 1,00 27.850 27.850 Mano de obra, ml 1,00 16.000 16.000 Total por: ml 43.850 Caño PVC de 3/4” Caño PVC roscable ml 1,00 12.850 12.850 Mano de obra, ml 1,00 13.000 13.000 Total por: ml 25.850 Caño PVC de 1/2” Caño PVC roscable, ml 1,00 9.850 9.850 Mano de obra, ml 1,00 8.000 8.000 Total por: ml 17.850 Instalación Agua Fría en Baño Completo Caño 1/2” roscable, ml 9,00 9.850 88.650 Codo 90º roscable, 1/2”, un 6,00 1.660 9.960 Llave de paso de 1/2” un 2,00 87.700 175.400 cromada FV Linea Clásica Tapon roscable macho ½”un 4,00 690 2.760 Tee 3/4”x1/2” IPS, un 4,00 3.400 13.600 Adhesivo 75 gr, un 0,60 9.200 5.520 Cinta teflon 18mmx25m, un 2,00 9.600 19.200 Mano de obra, un 1,00 412.000 412.000 Total por: un 727.090 Instalación Agua Caliente y Fría en Baño Completo Caño de 1/2” p/ agua calienteml 9,00 10.350 93.150 Caño 1/2” roscable, ml 9,00 9.850 88.650 Codo de 1/2” galvanizadoun 24,0 7.700 184.800 Curva transposición ½ x1/2un 4,00 18.000 72.000 Tee de 1/2” galvanizado un 8,00 6.150 49.200 Unión reducción 1/2x3/8 galv, un 2,00 10.700 21.400 Alma doble 1/2” galv, un 10,0 7.700 77.000 Buje de 3/4x1/2” galv, un 2,00 8.100 16.200 Llave de paso de 1/2” un 2,00 87.700 175.400 FV Linea Clásica, Tapón roscable macho ½”un 9,00 690 6.210 Sella rosca 90 cc IPS, un 1,00 45.900 45.900 Cinta teflón 18mmx25m, un 5,00 9.600 48.000 Mano de obra, un 1,00 697.000 697.000 Total por: un 1.574.910 Instalacion Agua Caliente y Fría en Baño Completocon FV Allegro un 1.657.510 Instalación Agua Fría en Baño de Servicio Caño 1/2” roscable, ml 6,00 9.850 59.100 Codo 90º roscable, 1/2”, un 6,00 1.660 9.960 Codo reducción 90º un 1,00 3.350 3.350 roscable, 3/4x1/2, Alma doble roscable un 3,00 875 2.625 Tee 90º p/ desagüe 40mm, un 3,00 4.000 12.000 Union sencilla roscable 1/2”un 2,00 1.700 3.400 Tubo bajada de un 1,00 13.500 13.500 embutir p/ cisterna nº 4,
Revista Mandu’a - 47
COSTEO DE OBRA

COSTEO DE OBRA

COLOCACION DE ARTEFACTOS

Baño Completo - Frío y Caliente - No incluye bañera

Tapón roscable macho ½” un 4,00 690 2.760 Llave de paso 1/2” un 2,00 58.000 116.000 bronce sin campana, Adhesivo 75gr, un 0,40 9.200 3.680 Cinta teflon 18mmx25m, un 1,00 9.600 9.600 Mano de obra, un 1,00 286.000 286.000 Total por: un 521.975 Instalación Agua Fría en Baño Social Caño 1/2” roscable, ml 4,00 9.850 39.400 Codo 90º roscable, 1/2”, un 6,00 1.660 9.960 Alma doble roscable un 4,00 875 3.500 Tee 90º p/ desagüe un 2,00 4.000 8.000 secundario, 40mm, Tapón roscable macho ½”un 2,00 690 1.380 Llave de paso 1/2” FV un 1,00 87.700 87.700 Linea Clásica, Adhesivo 75gr, un 0,20 9.200 1.840 Cinta teflon 18mmx25m, un 1,00 9.600 9.600 Mano de obra, un 1,00 159.000 159.000 Total por: un 320.380 Instalación Agua Fría en Baño Social - FV Allegro Total por: un 361.680 Instalación Agua Fría p/ Pileta de Lavar y Lavarropas Caño 1/2” roscable, ml 3,00 9.850 29.550 Codo 90º roscable, 1/2”, un 3,00 1.660 4.980 Tee 90º p/ desagüe un 1,00 4.000 4.000 secundario, 40mm, Tapon roscable macho ½”un 2,00 690 1.380 Llave de paso de 3/4” un 1,00 84.000 84.000 bronce sin campana, Adhesivo 75gr, un 0,20 9.200 1.840 Cinta teflon 18mmx25m, un 1,00 9.600 9.600 Mano de obra, un 1,00 191.000 191.000 Total por: un 326.350 Instalación Agua Fría para Pileta de Cocina Caño 1/2” roscable, ml 2,00 9.850 19.700 Codo 90º roscable, 1/2”, un 3,00 1.660 4.980 Tapón roscable macho ½”un 1,00 690 690 Llave de paso 1/2” un 1,00 58.000 58.000 bronce sin campana, Adhesivo 75gr, un 0,20 9.200 1.840 Cinta teflón 18mmx25m, un 1,00 9.600 9.600 Mano de obra, un 1,00 126.000 126.000 Total por: un 220.810 Instalación Agua Caliente y Fría p/ Pileta de Cocina Caño de 1/2” p/ agua calienteml 6,00 10.350 62.100 Caño roscable 1/2”, ml 6,00 9.850 59.100 Codo de 1/2” galv, un 6,00 7.700 46.200 Tee 1/2” galv, un 2,00 6.150 12.300 Unión doble 1/2” galv, un 2,00 19.700 39.400 Alma doble 1/2” galv, un 4,00 7.700 30.800 Llave de paso 1/2” FV cromoun 2,00 66.500 133.000 Prolongador FV 1/2”x1 un 1,00 38.000 38.000 cromo sin campana, Sellador p/ caño 125cc un 0,40 45.900 18.360 Cinta teflón 18mmx25m, un 2,00 9.600 19.200 Mano de obra, un 1,00 254.000 254.000 Total por: un 712.460
SANITARIOS
Juego con cisterna bajajuego 1,00 2.211.250 2.211.250 Deca Ravena Crema, Griferia FV Linea Clásica juego 1,00 2.086.000 2.086.000 (Ducha, bidet y lavatorio) Termocalefón 80 lt, un 1,00 1.650.000 1.650.000 Soporte para calefón, par 2,00 4.040 8.080 Botiquin 44x58x11cm un 1,00 560.000 560.000 Conexión cromada ½”x30un 7,00 37.000 259.000 Prolongador 1/2x1 FV, un 7,00 38.000 266.000 Roseta FV cromada, un 7,00 6.400 44.800 Enchufe de PVC un 1,00 2.663 2.663 Tornillo de bronce p/ un 8,00 5.700 45.600 fijar artefactos, Cemento blanco, kg 1,00 5.500 5.500 Masilla común, kg 0,25 13.000 3.250 Mano de obra, un 1,00 462.000 462.000 Total por: un 7.604.143 Baño Completo con Bañera Común Instalación de baño un 1,00 7.604.143 7.604.143 completo sin bañera, Bañera 1,60x0,70 m, un 1,00 968.000 968.000 Mano de obra, un 1,00 314.000 314.000 Total por: un 8.886.143 Baño Completo con Bañera Hidromasaje Instalación de baño un 1,007.604.1437.604.143 completo sin bañera, Bañera hidro 1.70x0.70 m un 1,00 7.746.000 7.746.000 Mano de obra, un 1,00 524.000 524.000 Total por: un 15.874.143 Baño Completo - Frío solo Juego p/ baño completo juego 1,00 1.306.000 1.306.000 c/ cisterna alta Deca Ravena Tubo bajada de un 1,00 13.500 13.500 embutir p/ cisterna nº 4, Botiquin 44x58x11cm un 1,00 560.000 560.000, - Revista Mandu’a 48
Ducha eléctrica Corona, un 1,00 127.500 127.500 Brazo cromo p/ ducha 1/2x35 cm un 1,00 12.500 12.500 Sopapa cromo FV p/ lavatorio, un 2,00 66.700 133.400 Bajada p/ lavatorio, un 2,00 17.300 34.600 Griferia FV p/ bidet agua fria un 1,00 370.000 370.000 Canilla p/ lavatorio FV econo un 1,00 45.000 45.000 Canilla 1/2” cromo p/ un 1,00 30.000 30.000 bajo ducha FV, Conexión cromada 1/2x3 cm, un 3,00 37.000 111.000 Enchufe de PVC un 1,00 2.663 2.663 Tornillo de bronce p/ un 8,00 5.700 45.600 fijar artefactos, Cemento blanco, kg 2,00 5.500 11.000 Mano de obra, un 1,00 462.000 462.000 Total por: un 3.264.763 Baño de Servicio Juego para baño con juego 1,00 490.000 490.000 cisterna alta, Tubo de bajada de un 1,00 13.500 13.500 embutir p/ cisterna nº 4, Botiquín Astra, un 1,00 220.000 220.000 Ducha eléctrica Corona, un 1,00 127.500 127.500 Brazo cromado p/ ducha un 1,00 12.500 12.500 Sopapa FV cromada p/ un 1,00 66.700 66.700 lavatorio Bajada p/ lavatorio, un 1,00 17.300 17.300 Canilla p/ lavatorio FV un 1,00 45.000 45.000 Canilla de 1/2” cromo un 1,00 30.000 30.000 para bajo ducha FV, Conexión cromo ½ x 30 cmun 2,00 37.000 74.000 Enchufe de PVC un 1,00 2.663 2.663 Tornilo de bronce p/ un 6,00 5.700 34.200 fijar artefactos, Cemento blanco, kg 1,00 5.500 5.500 Mano de obra, un 1,00 234.000 234.000 Total por: un 1.372.863 Baño Social - Standard Juego para baño social juego 1,00 1.113.800 1.113.800 con cisterna alta Deca Ravena, Canilla para lavatorio un 1,00 270.000 270.000 Imperatriz, Enchufe de PVC un 1,00 2.663 2.663 Conexión cromo 1/2x30 cm un 2,00 37.000 74.000 Prolongador FV cromo ½ x1 un 2,00 38.000 76.000 Sopapa cromada FV un 1,00 66.700 66.700 para lavatorio, Roseta FV cromada, un 2,00 6.400 12.800 Tornilo de bronce p/ un 6,00 5.700 34.200 fijar artefactos, Cemento blanco, kg 0,50 5.500 2.750 Masilla común, kg 0,25 13.000 3.250 Mano de obra, un 1,00 234.000 234.000 Total por: un 1.890.163 Baño Social - Superior Total por: un 2.530.183 Pileta de Cocina - Acero Inoxidable - Frío Solo Pileta 1 bacha, un 1,00 276.000 276.000 Canilla FV pico móvil frío solo un 1,00 200.000 200.000 Mano de obra, un 1,00 122.000 122.000 Total por: un 598.000 Pileta de Cocina - Acero Inoxidable - Frío y Caliente Pileta 2 bachas, un 1,00 485.000 485.000 Griferia externa FV, un 1,00 850.000 850.000 Mano de obra, un 1,00 122.000 122.000 Total por: un 1.457.000 Pileta de Lavar y Lavarropas Pileta granítica 1 bacha un 1,00 95.000 95.000 1,20x0,60 m, Canilla 1/2” bronce FV, un 2,00 49.000 98.000 Sopapa p7 pileta granito un 1,00 15.000 15.000 Mano de obra, un 1,00 122.000 122.000 Total por: un 330.000 Mesada de Granito para Cocina Granito natural m2 2,28 550.0001.254.000 Moldura pecho paloma, ml 3,20 50.000 160.000 Zócalo de granito, m2 0,50 550.000 275.000 MO agujereado de pileta un 1,00 60.000 60.000 MO colocación mesada un 3,80 50.000 190.000 MO colocación zócalo, ml 5,00 40.000 200.000 Total por: un 2.139.000 Mesada de Mármol para Baño Social (0.70x0.60m) Mármol blanco, m2 0,42 680.000 285.600 Moldura pecho paloma, ml 1,90 50.000 95.000 Juego de soportes, juego 1,00 40.000 40.000 Zócalo de mármol, m2 0,07 620.000 43.400 MO agujereado de pileta un 1,00 60.000 60.000 MO colocación mesada un 1,00 50.000 50.000 MO colocación zocalo ml 0,70 40.000 28.000 Total por: un 602.000 Mesada de Mármol para Baño Completo (1.00x0.60m) Mármol blanco, m2 0,60 680.000 408.000 Moldura pecho paloma, ml 2,20 50.000 110.000 Juego de soportes, juego 1,00 40.000 40.000 Zócalo de mármol, m2 0,10 620.000 62.000 MO agujereado pileta un 1,00 60.000 60.000
OBRA Revista Mandu’a - 49
COSTEO DE

COSTEO DE OBRA

INSTALACION ELECTRICA

MO colocación mesada un 1,00 50.000 50.000 MO colocación zocalo ml 1,00 40.000 40.000 Total por: un 770.000
Pilar de Mampostería 0.45x0.45x1.70m No incluye cimiento y nivelación Ladrillo común, un 170, 700 119.000 Cemento tipo 1, kg 30,0 1.100 33.000 Cal triturada, kg 60,0 1.225 73.500 Arena lavada, m3 0,25 65.000 16.250 Revoque fratazado, m2 3,06 22.000 67.320 Mano de obra, un 1,00 480.000 480.000 Total por: un 789.070 Registro eléctrico 30x30x70cm Ladrillo común, un 50,0 700 35.000 Cemento tipo 1, kg 6,00 1.100 6.600 Cal triturada, kg 12,0 1.225 14.700 Arena lavada, m3 0,05 65.000 3.250 Tapa registro de metal, un 1,00 56.000 56.000 Mano de obra, un 1,00 105.000 105.000 Total por: un 220.550 Registro eléctrico 40x40x70cm Ladrillo común, un 67,0 700 46.900 Cemento tipo 1, kg 13,0 1.100 14.300 Cal triturada, kg 26,0 1.225 31.850 Arena lavada, m3 0,07 65.000 4.550 Tapa registro de metal, un 1,00 72.800 72.800 Mano de obra, un 1,00 131.000 131.000 Total por: un 301.400 Puesto de Medición Provisorio Monofásico con limitadora hasta 40 A Nicho monofásico, un 1,00 9.240 9.240 Poste de caranday 6 m, un 1,00 120.000 120.000 Curva galvanizada 1”, un 4,00 24.970 99.880 Caño acero 3/4”x3m ml 2,00 8.500 17.000 Aislador roldana BT 72 x 72un 4,00 2.900 11.600 Bulón 3/8x4”, un 4,00 900 3.600 Pipeta de 1”, un 2,00 1.200 2.400 Jabalina de cobre 5/8 x 2mun 1,00 27.000 27.000 Abrazadera p/ jabalina un 1,00 3.000 3.000 Caja precintable, un 1,00 14.500 14.500 Disyuntor TM 1x10A un 1,00 16.500 16.500 Cable de 4 mm, ml 40,0 5.964 238.560 Mano de obra, boca 1,00 636.000 636.000 Total por: un 1.199.280 Trifásico con limitadora hasta 45 A Nicho trifasico un 1,00 10.010 10.010 Poste de caranday 6 mt un 1,00 120.000 120.000 Curva galvanizada 1 un 4,00 24.970 99.880 Caño acero 1” x 3m ml 2,00 15.000 30.000 Aislador roldana BT 72x72 un 8,00 2.900 23.200 Bulón 3/8x4”, un 8,00 900 7.200 Pipeta de 1” un 2,00 1.200 2.400 Jabalina cobre 5/8 x 2m un 1,00 27.000 27.000 Abrazadera p/ jabalina un 1,00 3.000 3.000 Caja precintable, un 1,00 14.500 14.500 Disyuntor TM 3x30A un 1,00 110.000 110.000 Cable de 4 mm, ml 80,0 5.964 477.120 Mano de obra, boca 1,00 742.000 742.000 Total por: un 1.666.310 Puesto de Medición Definitivo (Con línea subterránea o embutido en mampostería) Monofásico c/ acometida 3m y limitadora hasta 40 A Caño galvanizado un 1,00 500.000 500.000 Curva galvanizada 1 un 2,00 24.970 49.940 Cruceta monofasica 2”, un 1,00 5.500 5.500 Unión reducción galv. 2” a 1”, un 1,00 9.500 9.500 Aislador roldana BT 72x72un 2,00 2.900 5.800 Bulón 3/8x4”, un 2,00 900 1.800 Puerta ANDE un 1,00 10.000 10.000 Fondo de madera monofasico un 1,00 4.000 4.000 Jabalina de cobre 5/8”x2mun 1,00 27.000 27.000 Abrazadera p/ jabalina un 1,00 3.000 3.000 Caja precintable, un 1,00 8.850 8.850 Cable de 4 mm, ml 25,0 5.964 149.100 Disyuntor TM 1x10A un 1,00 16.500 16.500 Mano de obra, un 1,00 742.000 742.000 Total por: un 1.532.990 Monofásico c/ acometida 3m y limitadora hasta 40 A (Llaves europeas) un 1.548.060 Trifásico c/ acometida de 3m y limitadora hasta 45 A Caño galv. 2 1/2”x6m, un 1,00 565.000 565.000 Curva galvanizada 1 un 2,00 24.970 49.940 Cruceta trifasica 2 1/2”, un 1,00 12.000 12.000 Unión reducción galv. un 1,00 11.500 11.500 2 1/2” a 1 1/4”, Aislador roldana BT 72x72un 4,00 2.900 11.600 Bulón 3/8x4”, un 4,00 900 3.600 Puerta ANDE trifasica, un 1,00 12.000 12.000 Fondo de madera trifasicoun 1,00 4.000 4.000 Jabalina de cobre 5/8” x 2un 1,00 27.000 27.000 Abrazadera p/ jabalina un 1,00 3.000 3.000 Caja precintable un 1,00 14.500 14.500 - Revista Mandu’a 50

Monofásica Embutida en Mampostería con

Una Lámpara con 2 Llaves de Combinación

Principal con 6 llaves TM

TM Steck,

con

llaves TM (llaves europeas)

de Lámparas y Tomas de Corriente

colocación de electroducto y cableado hasta 5m del tablero principal)

Lámpara con su Interruptor

Circuitos Independientes

(Hasta 5m del tablero principal en cañerías ya instaladas para otros circuitos)

para Calefón/AA/Ducha Eléctrica

Cable de 6 mm, ml 45,0 8.778 395.010 Interruptor TM 3x20A un 1,00 151.250 151.250 Mano de obra, un 1,00 954.000 954.000 Total por: un 2.214.400
Monofásica con cable de 4 a 10mm Caño negro plástico ml 1,00 750 750 Cable de 4 mm, ml 2,00 5.964 11.928 Ladrillo común, un 5,00 700 3.500 Cemento tipo 1, kg 0,50 1.100 550 Mano de obra, un 1,00 7.000 7.000 Total por: ml 23.728 Trifásica con cable de 4 a 10mm Caño negro plástico 1”, ml 1,00 1.000 1.000 Cable de 6 mm, ml 4,00 8.778 35.112 Ladrillo común, un 5,00 700 3.500 Cemento tipo 1, kg 0,50 1.100 550 Mano de obra, un 1,00 13.000 13.000 Total por: ml 53.162 Línea
de 4
10
Caño corrugado 5/8”, ml 1,00 350 350 Cable de 4 mm, ml 2,00 5.964 11.928 Mano de obra, un 1,00 7.000 7.000 Total por: ml 19.278 Tablero
Caja p/ tablero principal un 1,00 80.000 80.000 12
Disyuntor TM 1x10A un 5,00 16.500 82.500 Disyuntor TM 1x50A un 1,00 24.200 24.200 MO colocación caja un 1,00 159.000 159.000 embutida, MO colocación llaves, 6,00 204.000 Total por: un 549.700 Tablero principal
Total por: un 643.200 Bocas
(Incluye
Una
Caja de llave plastica, un 1,00 3.300 3.300 Caja metálica conexión un 1,00 1.400 1.400 Caño corrugado 3/4”, ml 5,00 400 2.000 Cable de 2 mm, ml 11,0 3.129 34.419 Llave unipolar + tapa, un 1,00 7.700 7.700 Cinta aisladora PVC 20m un 0,01 5.000 50 Mano de obra, un 1,00 53.000 53.000 Total por: un 101.869
Tomacorriente un 101.869
Línea Subterránea
Cable
a
mm
6
Un
Caja de llave plástica, un 2,00 3.300 6.600 Caja metálica conexión un 1,00 1.400 1.400 Caño corrugado 5/8”, ml 5,00 350 1.750 Cable de 1 mm, ml 20,0 1.698 33.960 Llave combinación + un 2,00 12.870 25.740 Cinta aisladora PVC 20m un 0,01 5.000 50 Mano de obra, un 1,00 106.000 106.000 Total por: un 175.500
Caja p7 llave TM unipolar un 1,00 8.850 8.850 Llave para calefón 25 un 1,00 27.720 27.720 Jabalina de cobre 5/8”x2mun 1,00 27.000 27.000 Abrazadera p/ jabalina un 1,00 3.000 3.000 Cable de 4 mm, ml 13,0 5.964 77.532 Cinta aisladora PVC 20m un 0,01 5.000 50 Mano de obra, un 1,00 212.000 212.000 Total por: un 356.152 Línea Embutida para AA sin cableado Caja para llave TM unipolarun 1,00 8.850 8.850 Tapa ciega cuadrada, un 1,00 1.500 1.500 Caño corrugado 3/4”, ml 2,00 400 800 Mano de obra, 2,00 4.734 Total por: un 15.884 Circuitos de Comunicación (Incluye colocación de electroducto y cableado hasta 5m del tablero) Línea de teléfono con su toma Total por: un 153.873 Línea de Timbre con su pulsador Caja de llave plástica, un 1,00 3.300 3.300 Caja metálica conexión un 1,00 1.400 1.400 Caño corrugado 5/8”, ml 10,0 350 3.500 Cable de 1 mm, ml 32,0 1.698 54.336 Llave timbre + tapa, un 1,00 20.570 20.570 Cinta aisladora PVC 20m un 0,01 5.000 50 Timbre chicharra un 1,00 19.000 19.000 externa 220V, Mano de obra, un 1,00 106.000 106.000 Total por: un 208.156 Toma para Antena de TV o Audio Caño corrugado 5/8”, ml 5,00 350 1.750 Cable p/ TV 2x0,35 mm ml 6,00 4.397 26.382
Revista Mandu’a - 51
Circuito
COSTEO DE OBRA

COSTEO DE OBRA

CARPINTERIA DE MADERA

Caja de llave plastica, un 1,00 3.300 3.300 Toma TV cable + tapa, un 1,00 27.720 27.720 Mano de obra, un 1,00 106.000 106.000 Total por: un 165.152
Marco Recto (de 0.15cm p/ puerta de 2.10m de alto) De Ybyrapyta de 0.70 m de ancho Marco de ybyrapyta, ml 5,10 55.000 280.500 Tirafondo galv. 3/8x5”, un 5,00 1.500 7.500 Cemento tipo 1, kg 1,00 1.100 1.100 Arena lavada, m3 0,01 65.000 650 Mano de obra, un 1,00 111.000 111.000 Total por: un 400.750 De Ybyrapyta de 0.80 m de ancho un 407.750 De Ybyrapyta de 1.50 m de ancho un 450.120 Marco Recto (de 0.15cm p/ ventana de 1.20m de alto) De Ybyrapyta de 1.50 m de ancho Marco de ybyrapyta, ml 5,80 55.000 319.000 Tirafondo galv. 3/8x5”, un 8,00 1.500 12.000 Cemento tipo 1, kg 1,00 1.100 1.100 Arena lavada, m3 0,01 65.000 650 Mano de obra, un 1,00 111.000 111.000 Total por: un 443.750 De Ybyrapyta de 2.00 m de ancho un 499.620 Puerta de 2.10 m de alto Placa de eucalipto (0.80x2.10m) Puerta placa, un 1,00 180.000 180.000 Ficha 5 agujeros, par 1,50 10.000 15.000 Tornillo 1x7, un 30,0 150 4.500 Cerradura externa c/ manija un 1,00 120.000 120.000 Mano de obra, c/hoja 1,00 92.000 92.000 Total por: un 411.500 Placa c/ cerradura para baño (0.80 x 2.10m) Puerta placa de eucalipto un 1,00 180.000 180.000 Ficha 5 agujeros, par 1,50 10.000 15.000 Tornillo 1x7, un 30,0 150 4.500 Cerradura p/ baño c/manija un 1,00 45.000 45.000 Mano de obra, c/hoja 1,00 92.000 92.000 Total por: un 336.500 Tablero (0.80x2.10m) Puerta tablero común, un 1,00 950.000 950.000 Ficha 5 agujeros, par 1,50 10.000 15.000 Tornillo 1x7, un 30,0 150 4.500 Cerradura externa c/ manijaun 1,00 120.000 120.000 Mano de obra, c/hoja 1,00 96.000 96.000 Total por: un 1.185.500 Tablero - Punta Diamante (0.80x2.10m) Puerta de cedro c/ molduras un 1,00 1.550.000 1.550.000 Ficha 5 agujeros, par 1,50 10.000 15.000 Tornillo 1x7, un 30,0 150 4.500 Cerradura p/ puerta de entrada un 1,00 190.000 190.000 Mano de obra, c/hoja 1,00 96.000 96.000 Total por: un 1.855.500 Vidriera Sencilla (1.50x2.10m - 3 hojas de abrir) Puerta vidriera, m2 3,15 300.000 945.000 Ficha 5 agujeros, par 3,00 10.000 30.000 Tornillo 1x7, un 60,0 150 9.000 Falleba de arrimar un 1,00 25.500 25.500 Pasador 150 mm un 2,00 18.000 36.000 Varilla p/ falleba 1.20 un 2,00 24.500 49.000 Mano de obra, c/hoja 3,00 46.000 138.000 Total por: un 1.232.500 Persiana (1.50x2.10m - 3 hojas de abrir) Puerta (varilla 45 cm) m2 3,15 450.0001.417.500 Ficha 5 agujeros par 3,00 10.000 30.000 Tornillo 1x7, un 60,0 150 9.000 Falleba de arrimar un 1,00 25.500 25.500 Pasador 150 mm un 2,00 18.000 36.000 Varilla p/ falleba 1.20 un 2,00 24.500 49.000 Mano de obra, c/hoja 3,00 46.000 138.000 Total por: un 1.705.000 Ventana de 1.20 m de alto Vidriera (1.50x1.20m - 3 hojas de abrir) Ventana vidriera m2 1,80 220.000 396.000 Ficha 5 agujeros, par 2,00 10.000 20.000 Ficha 3 agujeros, un 1,00 9.000 9.000 Tornillo 1x7, un 52,0 150 7.800 Falleba de arrimar un 1,00 25.500 25.500 Pasador 150 mm un 2,00 18.000 36.000 Varilla p/ falleba 1.20 un 1,00 24.500 24.500 Mano de obra, c/hoja 3,00 36.000 108.000 Total por: un 626.800 Vidriera (2.00x1.20m - 4 hojas de abrir) Total por: un 841.600 Vidriera (1.00x0.80m) Total por: un 324.000 Persiana (1.50x1.20m - 3 hojas de abrir) Ventana persiana fija, m2 1,80 450.000 810.000 Ficha 5 agujeros, par 2,00 10.000 20.000 Ficha 3 agujeros, un 1,00 9.000 9.000 Tornillo 1x7, un 52,0 150 7.800 Falleba de arrimar un 1,00 25.500 25.500 Pasador de 150 mm cromoun 2,00 18.000 36.000 Varilla p/ falleba 1.20 un 1,00 24.500 24.500 Mano de obra, c/hoja 3,00 36.000 108.000 Total por: un 1.040.800 Persiana (2.00x1.20m - 4 hojas de abrir) Total por: un 1.393.600 - Revista Mandu’a 52

CARPINTERIA METALICA

hasta 1 m2

PINTURAS

Colocación de Contramarco Contramarco cedro 45 mmml 1,00 6.000 6.000 Clavo 1/2” o 3/4”, kg 0,10 25.000 2.500 Mano de obra, ml 1,00 10.000 10.000 Total por: ml 18.500
Balancín
Balancín fabricado con m2 1,00 180.000 180.000 ángulo de 5/8 y T 3/4x1/8”, Cemento tipo 1, kg 1,00 1.100 1.100 Arena lavada, m3 0,01 65.000 650 Mano de obra, un 1,00 77.000 77.000 Total por: un 258.750 Balancín más de 2 m2 , m2 269.750 Balancín de 0.60x0.60 m un 143.550 Balancín de 0.60x1.10 m un 197.550 Balancín de 1.00x0.80 m un 222.750 Puerta Metálica Tipo Reja (0.80x2.10 m) Puerta, marco y herrajes, un 1,00 530.000 530.000 Cemento tipo 1, kg 1,50 1.100 1.650 Arena lavada, m3 0,02 65.000 1.300 Mano de obra, un 1,00 66.000 66.000 Total por: un 598.950 Cortina Metálica (2.40x2.60 m) Total por: un 4.346.000 Reja de Hierro Artística Sencilla (1.50x1,20 m) Reja artística sencilla, m2 1,80 250.000 450.000 Cemento tipo 1, kg 3,00 1.100 3.300 Arena lavada, m3 0,01 65.000 650 Mano de obra, un 1,00 44.000 44.000 Total por: un 497.950 Baranda Metálica de Escalera ml 299.750 Portón Metálico (1.00x1.50 m) Portón de rejas, m2 1,50 280.000 420.000 Cemento tipo 1, kg 2,00 1.100 2.200 Arena lavada, m3 0,03 65.000 1.950 Mano de obra, un 1,00 106.000 106.000 Total por: un 530.150 Portón Cochera (3.00x2.00 m) Portón con cerradura, m2 6,00 270.0001.620.000 Cemento tipo 1, kg 5,00 1.100 5.500 Arena lavada, m3 0,03 65.000 1.950 Mano de obra, c/ hoja 2,00 200.000 400.000 Total por: un 2.027.450 Portón Cochera (4.40x4.00 m) Portón con cerradura, m2 17,6 270.0004.752.000 Cemento tipo 1, kg 10,0 1.100 11.000 Arena lavada, m3 0,05 65.000 3.250 Mano de obra, c/ hoja 2,00 200.000 400.000 Total por: un 5.166.250 Escalera Metálica Recta Escalera metálica, un 4,00 330.000 1.320.000 Cemento tipo 1, kg 5,00 1.100 5.500 Arena lavada, m3 0,05 65.000 3.250 Mano de obra, un 1,00 175.000 175.000 Total por: un 1.503.750
Pintura de Pared a la Cal Cal triturada, kg 0,50 1.225 613 Colorante un 0,05 11.500 575 Fijador Inatix, lt 0,60 4.800 2.880 Lijas, un 0,25 750 188 Mano de obra, m2 1,00 9.000 9.000 Total por: m2 13.255 Pintura de Cielorraso a la Cal Cal triturada, kg 0,50 1.225 613 Colorante 100 cc, un 0,05 11.500 575 Fijador Inatix, lt 0,60 4.800 2.880 Lijas, un 0,25 750 188 Mano de obra, m2 1,00 10.000 10.000 Total por: m2 14.255 Al Látex Interior con Enduido Lijas, un 0,25 750 188 Sellador acrilico , lt 0,05 7.777 389 Látex para interior, lt 0,30 16.714 5.014 Enduido para interior, kg 1,20 4.840 5.808 Mano de obra, m2 1,00 24.000 24.000 Total por: m2 35.399 Al Látex Interior sin Enduido Total por: m2 22.591 Al Látex Exterior con Enduido Lijas, un 0,25 750 188 Sellador acrilico lt 0,05 7.777 389 Látex para exterior, lt 0,30 16.714 5.014 Enduido para exterior, kg 1,20 5.320 6.384 Mano de obra, m2 1,00 24.000 24.000 Total por: m2 35.975 Al Látex Exterior sin Enduido Total por: m2 22.591 Enduido Enduido para interior, kg 1,20 4.840 5.808 Lijas, un 0,50 750 375 Mano de obra, m2 1,00 12.000 12.000 Total por: m2 18.183 Tejuela o Tejuelón al Barniz Acido muriático, lt 0,07 9.060 634 Barniz sintético brillante, lt 0,25 36.944 9.236 Mano de obra, m2 1,00 17.000 17.000 Total por: m2 26.870
Revista Mandu’a - 53
COSTEO DE OBRA

COSTEO DE OBRA

Moldura Sencilla

Tejuela a la Cal y Maderamen con Esmalte Sintético Cal triturada, kg 0,20 1.225 245 Esmalte sintético lt 0,30 32.750 9.825 Mano de obra, m2 1,00 17.000 17.000 Total por: m2 27.070 Barnizado de Machimbre Aceite de linaza, un 0,20 15.400 3.080 Barniz sintético brillante, lt 0,25 36.944 9.236 Mano de obra, m2 1,00 15.000 15.000 Total por: m2 27.316 Abertura de Madera con Esmalte Aceite de linaza, un 0,15 15.400 2.310 Esmalte sintético lt 0,30 32.750 9.825 Aguarrás, un 0,10 12.260 1.226 Lijas, un 1,00 750 750 Mano de obra, m2 1,00 24.000 24.000 Total por: m2 38.111 Abertura de Madera con Barníz Aceite de linaza, un 0,15 15.400 2.310 Barníz sintético brillante, lt 0,25 36.944 9.236 Lijas, un 0,30 750 225 Mano de obra, m2 1,00 20.000 20.000 Total por: m2 31.771 Abertura Metálica con Esmalte Antióxido, lt 0,13 35.277 4.410 Esmalte sintético lt 0,30 32.750 9.825 Aguarrás, un 0,10 12.260 1.226 Lijas, un 1,00 750 750 Mano de obra, m2 1,00 17.000 17.000 Total por: m2 33.211 Canalata y Bajada con Esmalte Sintético Antióxido, lt 0,20 35.277 7.055 Esmalte sintético lt 0,10 32.750 3.275 Aguarrás, un 0,10 12.260 1.226 Lijas, un 0,50 750 375 Mano de obra, ml 1,00 10.000 10.000 Total por: ml 21.931 Tratamiento de Ladrillo Visto Acido muriático, lt 0,07 9.060 634 Silicona, lt 0,20 10.500 2.100 Mano de obra, m2 1,00 15.000 15.000 Total por: m2 17.734 VARIOS
Ladrillo común, un 12,0 700 8.400 Arena lavada, m3 0,10 65.000 6.500 Cemento tipo 1, kg 12,0 1.100 13.200 Cal triturada, kg 20,0 1.225 24.500 Mano de obra, ml 1,00 63.000 63.000 Total por: ml 115.600
Moldura Doble
Cemento tipo 1, kg 5,00 1.100 5.500 Cal triturada, kg 3,00 1.225 3.675 Arena lavada, m3 0,02 65.000 1.300 Mano de obra, ml 1,00 49.000 49.000 Total por: ml 59.475 Estufa (Boca de 1.00 m) Ladrillo común, un 620, 700 434.000 Ladrillo refractario, un 80,0 6.148 491.840 Cemento tipo 1, kg 150, 1.100 165.000 Arena lavada, m3 1,00 65.000 65.000 Arena refractaria, kg 3,00 3.000 9.000 Varilla conformada, kg 3,00 10.000 30.000 Mano de obra, un 1,00 1.849.000 1.849.000 Total por: un 3.043.840 Parrilla (boca de 1.00 m) Ladrillo común, un 750, 700 525.000 Cemento tipo 1, kg 150, 1.100 165.000 Arena lavada, m3 1,00 65.000 65.000 Varilla conformada, kg 6,00 10.000 60.000 Parrilla enlozada con un 1,00 2.200.000 2.200.000 carbonera y cenicero graduable, Mano de obra, un 1,00 1.980.000 1.980.000 Total por: un 4.995.000 Balaustre Sencillo Balaustre sencillo h=42 cmun 5,00 4.840 24.200 Ladrillo común, un 12,0 700 8.400 Varilla conformada, kg 0,50 10.000 5.000 Cemento tipo 1, kg 1,00 1.100 1.100 Cal triturada, kg 1,00 1.225 1.225 Arena lavada, m3 0,01 65.000 650 Mano de obra, ml 1,00 16.000 16.000 Total por: ml 56.575 Tanque de Agua en Fibra de Vidrio 1000 lt Ladrillo común, un 100, 700 70.000 Cemento tipo 1, kg 12,0 1.100 13.200 Cal triturada, kg 10,0 1.225 12.250 Arena lavada, m3 0,05 65.000 3.250 Dintel 1mx14cm, un 2,00 30.100 60.200 Tanque Fibrac, un 1,00 767.000 767.000 Mano de obra, un 1,00 85.000 85.000 Total por: un 1.010.900 Tanque de Agua en Fibra de Vidrio 500 lt Ladrillo común, un 100, 700 70.000 Cemento tipo 1, kg 12,0 1.100 13.200 Cal triturada, kg 10,0 1.225 12.250 Arena lavada, m3 0,30 65.000 19.500 Piedra triturada de IV, tn 0,30 120.000 36.000 Varilla conformada, kg 3,00 10.000 30.000 Tanque Fibrac, un 1,00 460.000 460.000 Mano de obra, un 1,00 75.000 75.000 Total por: un 715.950 - Revista Mandu’a 54

PROYECTOS MANDU’A

Descripción general:

Todas las construcciones se realizan en Asunción o alrededores sobre un terreno seco con una capacidad portante de 3 Kg/cm2, que no requiere movimiento de suelo. El análisis de costo incluye los gastos generales (10%) y beneficio de la empresa (15%). Se excluyen los gastos complementarios correspondientes a los Honorarios Profesionales por Proyecto y Dirección de Obras. No se consideran los gastos por Permiso Municipal, de conexión

y consumo por servicios de agua y eléctricidad. Tampoco se considera el valor del predio. Los precios de materiales y de mano de obra corresponden a los publicados por nuestra revista, en cuya guía de costeo de obra se desarrolla cada uno de los ítems. Los precios de mano de obra se basan en consultas realizadas con contratistas y profesionales de construcción. No incluyen cargas sociales, seguro de accidentes, etc.

Casa Mandu’a - Vivienda Modelo 1

Descripción: Vivienda económica con una superficie de 67,7 m2

Desarrollo de la Obra

• Fundación: Piedra bruta colocada. Nivelación: Mampostería de 0,30 con ladrillos comunes.

• Aislación: Horizontal de muros realizada en cajón con asfalto sólido diluido en caliente. • Mampostería de elevación: Ladrillo hueco de 6 agujeros. En baños y paredes con instalación hidráulica, de ladrillo común. • Dinteles: Envarillado continuo de 2 varillas y de 4 varillas sobre aberturas.

• Techo: Tejas españolas prensadas 1ª B, con tejuelones, maderamen de yvyrapyta, aislación con cartón asfáltico, con terminación de boca teja, mojinete y tapa doble. • Carpintería de madera: Marcos de yvyrapyta, aberturas de madera de guatambú, mueble de cocina revestido con laminado plástico. • Revestidos: Azulejos esmaltados lisos 15x15, en cocina, lavadero y baños, con una altura de 1,80 m. • Revoques: Base con azotada impermeable de 0,5 cm y revoque con aditivo hidrófugo, en interior a 1 capa y exterior en la faja perimetral de 0,50 m. Incluye vértice de mampostería y borde de aberturas. • Instalación eléctrica: Monofásica, llaves termomagnéticas brasileñas, Placas, picos de luz y tomas argentinas. Sin artefactos. • Instalación sanitaria: Cañería hidráulica de agua fría, cloacal y pluvial, de PVC. Loza de baño brasileña, con cisterna alta. Pileta de lavar de granito reconstituido.

PROYECTOS MANDU’A
CONSTRUCCION BASICA Uni. Cant. Costo Unitario Total Gs Replanteo y marcación m² 67 ,70 3.100 209.870 Cimiento PBC (1:12) m³ 13 ,50 353.920 4.777.920 Nivelación 0.30 m m² 12 ,55 169.703 2.129.766 Aislación horizontal 0.15 con asfalto ml 43 ,00 18.844 810.292 Elevación 0.15 m con ladrillo común m² 20 ,00 91.838 1.836.765 Elevación 0.15 m con ladrillo hueco 6 tubos m² 42 ,60 54.868 2.337.356 Elevación 0.15m con ladrillo hueco 6 tubos, 1 cara vista m² 102 ,00 58.673 5.984.595 Sardinel con ladrillo común ml 36 ,00 61.263 2.205.450 Pilar de ladrillo común 30 x 30 a la vista ml 2 ,50 81.350 203.375 Dintel sobre aberturas / envarillado de mamposteria ml 47 ,00 19.550 918.850 Techo: teja española, tejuelón, aislante, vigas y tirantes de yvyrapyta m² 94 ,00 279.541 26.276.854 Contrapiso de 10 cm con H° de cascotes m² 65 , 00 42.405 2.756.325 Revoque 1 capa , 1.5 cm sin hidrófugo m² 115 ,50 29.850 3.447.675 Revoque 1 capa con hidrófugo en exteriores m² 111 ,00 31.365 3.481.515 Azotada impermeable 0.5 cm m² 226 , 50 12.465 2.823.323 Azulejo 20 x 20 cm m² 11 , 70 147.643 1.727.423 Baldosa calcárea base gris 20 x 20 cm m² 61 , 50 79.225 4.872.338 Piso cerámico esmaltado 20 x 30 cm m² 3 ,50 75.093 262.826 Carpeta para piso cerámico m² 3 ,50 26.315 92.103 Zócalo calcáreo base gris ml 64 , 80 34.763 2.252.610 Desague cloacal global 1 , 00 2.792.163 Instalación hidraúlica global 1 , 00 1.760.175 Instalación desague pluvial global 1 ,00 4.896.550 Colocación artefactos sanitarios y griferias global 1 ,00 4.192.763 Instalación eléctrica global 1 ,00 6.864.870 Carpintería metálica global 1 ,00 900.250 Carpintería de madera global 1 ,00 9.813.150 Pinturas global 1 ,00 9.886.015 Vidrios doble incoloro de 3 mm, colocado m² 5 ,00 550.000 111.063.164 Revista Mandu’a - 55
MODELO 1 - VIVIENDA
PLANILLA DE COSTOS

Pileta de cocina de acero inoxidable, 1 bacha. Las canaletas y bajadas, de chapa galvanizada Nº 26. • Pintura: Interior y exterior a la cal con fijador y color. Mampostería a la vista con protección a base de silicona, previa limpieza con ácido muriático. Carpintería de madera y maderamen de techo al barniz. Carpintería metálica y canaletas con esmalte sintético.

Dúplex Mandu’a

Vivienda Modelo 2

Descripción: Conjunto de 3 viviendas, cada una de 121,5 m2, con estructura de losa prefabricada con paredes portantes y disminuyendo pilares y zapatas.

Desarrollo de la Obra

• Fundación: De piedra bruta colocada, con encadenado inferior de HºAº y zapatas de Hº Aº como base de pilares.

• Estructura: Losa cerámica a la vista que se apoya en paredes portantes, con algunos pilares y vigas de HºAº. Nivelación y Dinteles sobre aberturas y techo.

• Revestidos: Idem modelo 1. • Aislación: Horizontal idem modelo 1. De baño en planta alta con alisada e impermeabilizante de base asfáltica. • Mampostería de elevación: Ladrillo laminado a la vista en fachada; ladrillo común en baños, área de servicio y paredes con instalación hidráulica; ladrillo hueco de 6 agujeros en interiores y medianeras. • Carpintería de Madera: Marcos de yvyrapyta, aberturas de cedro, placard de guatambú, mueble de cocina revestido con laminado plástico. • Carpintería Metálica: Balancines de ángulos, rejas artísticas sencillas y portón de cochera de chapa doblada. • Pisos: Contrapiso de cascotes, baldosa calcárea de base gris en área de servicio, layota nacional en cochera y parrilla. Cerámica esmaltada sobre carpeta alisada de 30x30 en planta baja, área social, escalera y cocina. De 20x20 en baños. Veredita tipo ka’a. Alfombra de 5 mm sobre carpeta de base en planta alta. • Zócalos: Calcáreo, cerámica esmaltada, layotas, en su caso y madera donde lleva alfombra. • Revoques: Común filtrado por ladrillos comunes con azotado de adherencia en ladrillhidrófugo en exteriores y áreas húmedas. • Instalación eléctrica: Monofásica, llaves TM brasileñas, placas, picos de luz y tomas argentinas.

PROYECTOS MANDU’A
Limpieza final y retiro de escombros (0,8 %) 111.063.164 888.505 Imprevistos , mermas y roturas (3 %) 111.063.164 3.331.895 Costo de obra básica 115.283.565 Gastos generales y beneficios 25% 115.283.565 28.820.891 Casa 1 Básica TOTAL 144.104.456 CONSTRUCCION OPCIONAL Cerca frontal Un 1 ,00 2.272.633 Vereda Un 1 ,00 3.620.400 Caminero de acceso Un 1 ,00 394.815 Pozo ciego 1.50 x 3.00 m Un 1 ,00 2.617.500 Cámara séptica 1.00 x 1.60 x 1.20 m Un 1 ,00 1.578.250 Mueble cocina Un 1 ,00 6.550.000 Sardinel con ladrillo común ml 36 , 00 61.263 2.205.450 Limpieza y protección de sardinel ladrillo visto m² 9 ,00 9.000 81.000 Costo de obra opcional 19.320.048 Imprevistos , mermas y roturas (3%) 19.320.048 579.601 Costo de obra opcional 19.899.649 Gastos generales y beneficios 25% 19.899.649 4.974.912 Casa 1 opcional TOTAL 24.874.561 Superficie 67,70 m2 GS Por m² Casa 1 básica 144.104.456 2.128.574 Casa 1 opcional 24.874.561 367.423 CASA 1 ( BASICA+OPCIONAL) 168.979.017 2.495.997 - Revista Mandu’a 56

PLANILLA DE COSTOS

Sin artefactos. • Instalación Sanitaria: Cañería para agua fría, cloacal y pluvial de PVC, para agua caliente de polipropileno, loza de baño brasileña, cisterna baja en baño social y en planta alta, alta en baño de servicio, pileta de lavar de granito reconstituido y de acero inoxidable de 2 bachas en la cocina. Canaletas y bajadas de chapa Nº 26. • Pintura: Mampostería a la vista con protección a base de silicona, previa limpieza con ácido muriático. Area de servicio y exteriores revocados a la cal con color. Paredes interiores al latex. Carpintería de madera, techo de tejas y losa con cerámica a la vista al barniz. Carpintería metálica y canaletas con esmalte sintético. os huecos, con azotada impermeable (0,5 cm) y común filtrado con aditivo .

PROYECTOS MANDU’A
Planta Baja Planta Alta
CONSTRUCCIÓN BÁSICA Un. Cant. Costo Unitario Total G. Replanteo y marcación m² 90 ,00 3.100 279.000 Zapata m³ 1 ,00 1.851.000 1.851.000 Columna m³ 0 ,50 2.380.175 1.190.088 Vigas m³ 0 ,65 2.320.250 1.508.163 Encadenado inferior 13 x 20 cm en PB ml 55 ,00 83.400 4.587.000 Encadenado 13 x 30 cm ml 55 ,00 137.800 7.579.000 Escalera de H° A° total 1 ,00 4.035.100 Losa rap m² 35 ,00 216.480 7.576.800 Cimiento PBC colocada con cal ( 1/2 : 1 : 4 ) m³ 17 ,60 419.850 7.389.360 Nivelación 0.30 m m² 11 ,60 169.703 1.968.549 Elevación 0.15 ladrillo común m² 52 ,00 91.838 4.775.589 Elevación 0.15 ladrillo hueco 6 tubos m² 61 ,50 54.868 3.374.351 Elevación 0.20 ladrillo hueco m² 43 ,00 83.423 3.587.168 Elevación 0.15 ladrillo laminado m² 84 ,40 111.048 9.372.409 Sardinel con ladrillo común ml 5 ,50 61.263 336.944 Aislación horizontal 0.15 con hidrófugo y asfalto ml 52 ,00 18.844 979.888 Aislación de losa para baño m² 3 ,00 59.847 179.541 Dintel sobre aberturas / envarillado de manpostería ml 18 ,00 19.550 351.900 Contrapiso de H° de cascotes 10 cm m² 70 ,00 42.405 2.968.350 Contrapiso en losa sanitaria 20 cm m² 2 ,50 49.655 124.138 Revoque 1 capa , 1.5 cm sin hidrófugo m² 240 ,00 29.850 7.164.000 Revoque 1 capa con hidrófugo en exteriores m² 189 ,00 31.365 5.927.985 Azotada impermeable 0.5 cm m² 189 ,00 12.465 2.355.885 Revoque de cielorraso a 1 capa m² 15 ,00 49.658 744.863 Techo : teja española , tejuelón, vigas y tirantes m² 93 ,00 279.541 25.997.313 Piso pared 32x57 m² 42 ,00 73.093 3.069.906 Baldosa calcárea base gris 20 x 20 cm m² 10 ,50 79.225 831.863 Piso cerámico esmaltada 20 x 30 m² 62 ,50 75.093 4.693.313 Piso de layota 28 x 28 cm m² 15 ,60 56.017 873.865 Piso de alfombra 4 mm m² 24 ,00 38.100 914.400 Carpeta para piso cerámico m² 86 ,50 26.315 2.276.248 Zócalo calcáreo base gris ml 14 ,00 34.763 486.675 Zócalo de madera ml 30 ,00 31.225 936.750 Zócalo de cerámica esmaltada ml 34 ,00 20.159 685.420 Desague cloacal y pluvial global 1 ,00 7.200.238 Agua corriente global 1 ,00 3.530.675 Colocación artefactos sanitarios global 1 ,00 11.795.169 Instalación eléctrica global 1 ,00 8.079.221 Carpintería de madera global 1 ,00 22.413.610 Carpintería metálica global 1 ,00 3.162.350 Vidrios global 1 ,00 980.000 Pinturas global 1 ,00 14.466.480 Casa 2 básica 192.600.563 Limpieza final y retiro de escombros (0.8 %) 192.600.563 1.540.805 Imprevistos mermas y roturas (3%) 192.600.563 5.778.017 Costo de obra básica 199.919.384 Gastos generales y beneficios 25% 199.919.384 49.979.846 CASA 2 BASICA TOTAL 249.899.230 CONSTRUCCIÓN OPCIONAL Uni. Cant. Costo Unitario Total Gs. Muralla de ladrillo común ml 6 ,00 434.634 2.607.803 Revoque 1 capa con hidrófugo exteriores m² 24 ,00 31.365 752.760 Contrapiso de H° de cascotes 10 cm m² 33 ,80 42.405 1.433.289 Vereda cerámica vainilla m² 28 ,00 96.679 2.707.012 Piso de layota 28 x 28 m² 5 ,76 56.017 322.658 Mueble de cocina ml 4 ,15 1.200.000 4.980.000 Alacena de cocina ml 4 ,15 850.000 3.527.500 Placard Estándar m² 14 ,00 1.450.000 20.300.000 Verja de hierro sencilla un 3 ,75 220.000 825.000 Portón de hierro 1.00 x 1.50 m un 1 ,00 530.150 Pozo ciego 1.50 x 3.00 m un 1 ,00 2.617.500 Cámara séptica 1.00 x 1.60 x 1.20 m un 1 ,00 1.578.250 Pintura a la cal con color m² 24 ,00 13.255 318.120 Abertura metálica con esmalte m² 10 ,50 27.316 286.818 Parrilla con boca un 1 ,00 4.995.000 Casa mandua 2 opcional 47.781.859 Imprevistos , mermas y roturas (3%) 47.781.859 1.433.456 Costo de obra opcional 49.215.315 Gastos generales y beneficios 25% 49.215.315 12.303.829 Casa 2 opcional costo final 61.519.144 SUPERFICIE 121,50 m² GS POR m² Casa 2 básica 249.899.230 2.056.784 Casa 2 opcional 61.519.144 506.330 Casa 2 BASICA+OPCIONAL 311.418.374 2.563.114 MODELO 2 / VIVIENDA DUPLEX, SUPERFICIE 121,50 m² Revista Mandu’a - 57

Dúplex Mandu’a

Descripción: 2 viviendas iguales en Duplex, cada una de 150,3 m2

Sistema constructivo y materiales

Estructura: La losa prefabricada utilizada es de una marca del mercado, utilizada con el mismo criterio adoptado en el Modelo 2.

Desarrollo de la Obra

• Fundación: Idem modelo 2. • Estructura: Se utiliza el sistema Listalosa con cielorraso ranurado a la vista, sin revoque, que descansa sobre paredes portantes, reforzados con algunos pilares y vigas de Hº Aº. • Fundación, nivelación, aislación, mampostería, dinteles, techos, revoques, Instalación Sanitaria y Pintura: Idem al modelo 2. • Carpintería de Madera: Marcos de lapacho, aberturas, placards y mueble de cocina de cedro, éste último con puertas tablero; mesada de granito natural.

• Carpintería Metálica: Balancines metálicos. Rejas artísticas y portón de cochera de chapa doblada y varillas. • Pisos: Contrapiso de Hº de cascotes, baldosa calcárea de base gris en área de servicio, layota nacional en cochera y parrilla. Granito reconstituído pulido de base gris en área social, estudio y planta alta, y en planchas en la escalera. Cerámica esmaltada sobre carpeta alisada en cocina y baños. Vereda de mosaicos de canto rodado de color 30x30. • Zócalos: Calcáreo, cerámica esmaltada, cerámica roja y granito reconstituido. • Revestidos: Azulejo esmaltado liso 20x30 en baños y cocina. De 15x15 en lavadero y baño de servicio.

• Instalación Eléctrica: Monofásica, llaves TM europeas, placas, picos de luz y tomas de procedencia uruguaya. Sin artefactos.

PLANILLA DE COSTOS

PROYECTOS MANDU’A
- Vivienda Modelo 3
C0NSTRUCCIÓN BÁSICA UNI. CANT. Costo Unitario Total Gs. Replanteo y marcación m² 158 ,00 3.100 489.800 Zapata m³ 0 ,80 1.851.000 1.480.800 Pilar listalosa m² 8 ,00 127.538 1.020.300 Viga listalosa m² 18 ,40 119.822 2.204.729 Losa listalosa m² 47 ,50 220.400 10.469.000 Cálculo estructural para losa un 1 ,00 450.000 450.000 Flete de viguetas un 1 ,00 150.000 150.000 Escalera de H° A° Total 1 ,00 4.035.100 4.035.100 Cimiento PBC colocada con cal ( 1/2 :1:4 ) m³ 15 ,40 419.850 6.465.690 Nivelación 0.30 m m² 16 ,50 169.703 2.800.091 Elevación 0.15 ladrillo común m² 109 ,50 91.838 10.056.288 Elevación 0.15 ladrillo hueco m² 80 ,80 54.868 4.433.294 Elevación 0.15 ladrillo laminado m² 126 ,00 111.048 13.991.985 Sardinel con ladrillo común ml 5 ,50 61.263 336.944 Aislación horizontal 0.15 con hidrófugo y asfalto ml 52 ,00 18.844 979.888 Aislación de losa para baño m² 8 ,20 59.847 490.745 Dintel sobre aberturas / envarillado de manpostería ml 32 ,00 19.550 625.600 Contrapiso de H° de cascotes 10 cm m² 117 ,80 42.405 4.995.309 Contrapiso en losa sanitaria 20 cm m² 6 ,80 49.655 337.654 Revoque 1 capa sin hidrófugo ( 1:4:16 ) interiores m² 381 ,00 29.850 11.372.850 Revoque 1 capa con hidrófugo ( 1:4:16 ) exteriores m² 126 ,00 31.365 3.951.990 Azotada impermeable 0.5 cm m² 60 ,00 12.465 747.900 Revoque de cielorraso a 1 capa m² 6 ,00 49.658 297.945 Techo : teja española , tejuelón, vigas y tirantes de Ybyrapyta m² 129 ,00 279.541 36.060.789 Piso pared Forte Havana 31x31 m² 26 ,00 86.743 2.255.318 Porcelanato 60x60 m² 19 ,00 147.643 2.805.217 Piso pared Cecafi 32x57 m² 14 ,00 73.093 1.023.302 Baldosa calcárea base gris 20x20 cm m² 9 ,00 79.225 713.025 Mosaico granítico base gris m² 78 ,00 141.975 11.074.050 Cerámica esmaltada 30 x 30 cm m² 21 ,00 80.226 1.684.746 Carpeta para piso cerámico m² 21 ,00 26.421 554.846 Piso de layota 28 x 28 cm m² 14 ,82 56.017 830.172 Plancha granítica para revestido de escalera gl 1 ,00 2.406.000 2.406.000 Zócalo calcáreo base gris ml 12 ,00 34.763 417.150 Zócalo granítico base gris ml 88 ,00 68.113 5.993.900 Zócalo de cerámica esmaltada ml 11 ,00 20.159 221.753 Zócalo layota 28 x 10 cm ml 4 ,50 23.668 106.504 Desagüe cloacal y pluvial global 1 ,00 11.678.725 Agua corriente global 1 ,00 5.721.135 Colocación artefactos sanitarios global 1 ,00 26.421.082 Instalación eléctrica global 1 ,00 12.736.168 Carpintería de madera global 1 ,00 32.847.150 Carpintería metálica global 1 ,00 2.903.600 Vidrios global 1 ,00 1.733.000 Pinturas global 1 ,00 27.723.563 Casa 3 básica 270.095.098 Limpieza final y retiro de escombros (0.8 %) 270.095.098 2.160.761 Imprevistos, mermas y roturas (3%) 270.095.098 8.102.853 Costo de obra básica 280.358.712 Gastos generales y beneficios (25 % ) 280.358.712 70.089.678 Casa 3 básica TOTAL 350.448.390 CONSTRUCCIÓN OPCIONAL UNI. CANT. Costo unitario Total Gs. Muralla de ladrillo común ml 23 434.634 9.996.576
- Revista Mandu’a 58
MODELO 3 / VIVIENDA DUPLEX, SUPERFICIE 150,30 m²

Edificio para la Renta

Vivienda Modelo 4

Descripción: Edificio de 2 plantas que puede ampliarse a 3, comprende 2 departamentos en Planta Alta, cada uno de 60 m2 y con 2 dormitorios. En planta baja 2 salones comerciales de 34,30 m2 de área interior. Entrada vehicular cubierta.

Desarrollo de la obra

• Fundación: Se utilizan Zapatas de Hº Aº donde actúan cargas puntuales y bajo las paredes, vigas del mismo material. • Estructura: De Hº Aº tipo tradicional, las losas descansan sobre vigas y pilares del mismo ancho que las paredes. En planta alta se utiliza un encadenado general a la altura de asiento de tirantes. • Aislación, mampostería de elevación, dinteles, techo y carpintería de madera, pisos, zócalos, revestidos, revoques, instalación sanitaria: idem al modelo 2. • Carpintería Metálica: Cortina de enrollar de tablillas metálicas con puerta de escape. Balancines, portones de acceso peatonal y de cochera de chapa doblada. Baranda sencilla de escalera. • Instalación

Eléctrica: Idem. modelo 3. • Pintura: Paredes interiores y exteriores del frente y contrafrente al latex. Paredes exteriores medianeras y cielorraso a la cal. Abertura de madera, maderamen y tejuelones del techo al barniz. Carpintería metálica con esmalte sintético.

PROYECTOS MANDU’A
Planta Baja
Revoque 1 capa con hidrófugo exteriores m² 92 ,00 31.365 2.885.580 Contrapiso de H° de cascotes 10 cm m² 42 ,00 42.405 1.781.010 Mosaico granito lavado para exterior base gris m² 42 ,00 105.213 4.418.925 Mueble de cocina ml 6 ,00 1.250.000 7.500.000 Placard standard m² 15 ,60 1.200.000 18.720.000 Verja de hierro sencilla un 8 ,00 220.000 1.760.000 Portón de hierro 1.00 x 1.50 m un 1 ,00 530.150 Pozo ciego 1.50 x 3.00 m un 1 ,00 2.617.500 Cámara séptica 1.00 x 1.60 x 1.20 m un 1 ,00 1.578.250 Pintura a la cal con color m² 92 ,00 13.255 1.219.460 Pintura abertura metálica con esmalte m² 19 ,00 33.211 631.002 Parrilla con boca un 1 ,00 4.995.000 Casa 3 opcional 58.633.453 Imprevistos, mermas y roturas (3%) 58.633.453 1.759.004 Costo de obra opcional 60.392.457 Gastos generales y beneficios (25 % ) 60.392.457 15.098.114 Casa 3 opcional costo final 75.490.571 Casa 3 básica costo final 350.448.390 Casa 3 opcional TOTAL 75.490.571 SUPERFICIE 150,50 m² GS POR m² CASA 3 BÁSICA 350.448.390 2.331.659 Casa 3 OPCIONAL 75.490.571 502.266 CASA 3 BÁSICA+OPCIONAL 425.490.571 2.833.925 Revista Mandu’a - 59
Planta Alta

PLANILLA DE COSTOS

PROYECTOS
MANDU’A
Planta Baja Planta Alta
BÁSICA UNI. CANT. Costo Unitario Total Gs. Replanteo y marcación m² 242 ,00 3.100 750.200 Excavación para zapata m³ 27 ,00 42.000 1.134.000 Zapata m³ 8 , 05 1.851.000 14.900.550 Columna m³ 4 ,02 2.380.175 9.568.304 Vigas m³ 6 ,99 2.320.250 16.218.548 Losa m³ 12 ,39 2.281.300 28.265.307 Encadenado 13 x 30 cm ml 97 ,20 137.800 13.394.160 Escalera de H° A° total 1 ,20 4.035.100 4.842.120 Nivelación 0.30 m m² 21 ,81 169.703 3.701.212 Elevación 0.15 ladrillo común m² 66 ,50 91.838 6.107.244 Elevación 0.15 ladrillo hueco m² 415 ,80 54.868 22.813.907 Elevación 0.20 ladrillo hueco m² 198 ,80 83.426 16.584.393 Aislación horizontal 0.15 c/ hidrófugo y asfalto ml 55 ,50 18.844 1.045.842 Aislación de losa para baño m² 28 ,90 59.847 1.729.578 Dintel sobre aberturas / envarillado de manpostería ml 35 ,00 19.550 684.250 Contrapiso de 7 cm m² 107 ,00 34.440 3.685.080 Contrapiso de H° de cascotes 10 cm m² 101 ,00 42.405 4.282.905 Contrapiso en losa sanitaria 20 cm m² 24 ,50 49.655 1.216.548 Revoque 1 capa sin hidrófugo en interiores m² 882 ,00 29.850 26.327.700 Revoque 1 capa con hidrófugo en exteriores m² 480 ,00 31.365 15.055.200 Azotada impermeable 0.5 cm m² 112 ,00 12.465 1.396.080 Revoque de cielorraso a 1 capa m² 117 ,00 49.658 5.809.928 Techo : teja española , tejuelón, vigas y tirantes Yvyrapyta m² 149 ,00 279.541 41.651.609 Azulejo 15 x 15 cm m² 41 ,00 73.093 2.996.813 Baldosa calcárea base gris 20 x 20 cm m² 66 ,00 79.225 5.228.850 Piso cerámica esmaltada 20 x 30 m² 154 ,70 75.093 11.616.887 Piso de layota 28 x 28 cm m² 26 ,50 56.017 1.484.451 Carpeta para piso cerámico m² 154 ,70 26.315 4.070.931 Zócalo calcáreo base gris ml 54 ,00 34.763 1.877.175 Zócalo de cerámica esmaltada ml 146 ,00 20.159 2.943.272 Zócalo de layota 28 x 10 cm ml 18 ,60 23.668 440.216 Desague cloacal y pluvial global 11.728.188 Agua corriente global 3.836.430 Colocación artefactos sanitarios global 8.382.052 Instalación eléctrica global 25.850.277 Carpintería de madera global 31.249.640 Carpintería metálica global 13.486.700 Vidrios global 1.217.800 Pinturas global 29.370.940 Casa Mandua 4 básica 396.945.283 Limpieza final y retiro de escombros (0.8 %) 396.945.283 3.175.562 Imprevistos, mermas y roturas (3%) 396.945.283 11.908.358 Costo de obra básica 412.029.204 Gastos generales y beneficios ( 25 %) 412.029.204 103.007.301 Casa 4 Básica TOTAL 515.036.505 CONSTRUCCION OPCIONAL UNI. CANT. Costo Unitario Total Gs. Contrapiso de H° de cascotes 10 cm m² 36 ,00 42.405 1.526.580 Vereda cerámica vainilla m² 36 ,00 78.275 2.817.900 Mueble de cocina bajo mesada ml 3 ,00 1.200.000 3.600.000 Alacena de cocina ml 3 ,00 850.000 2.250.000 Placard stantard m² 16 ,32 1.450.000 23.664.000 Pozo ciego 1.50 x 3.00 m un 1 ,00 2.617.500 Cámara séptica 1.00 x 1.60 x1.20 m un 1 ,00 1.578.250 Casa Mandua 4 opcional 38.354.230 Imprevistos , mermas y roturas (3 %) global 0,03 38.354.230 1.150.627 Costo de obra opcional 39.504.857 Gastos generales y beneficios (25 %) 39.504.857 9.876.214 Casa 4 opcional TOTAL 49.381.071 SUPERFICIE 236 m² GS POR m² CASA 4 BASICA 515.036.505 2.182.358 Casa 4 OPCIONAL 49.381.071 209.242 CASA 4 BASICA+OPCIONAL 564.417.576 2.391.600 MODELO 4 / EDIFICIO PARA RENTA, SUPERFICIE 236 m² - Revista Mandu’a 60
CONSTRUCCIÓN

Descripción: Galpón tipo tinglado, con una superficie de 268,8 m2, con oficina y vestuario. La oficina incluye un baño privado y el vestuario dos boxes de baño, para ducha e inodoro, respectivamente. Consta de patio posterior y retiro en el frente, cumpliendo la norma municipal que exige un 25% de superficie sin construir.

La obra está prevista para un terreno plano y limpio de 12x30 m situado entre linderos.

Desarrollo de la Obra

• Fundación: Pilares asentados sobre zapatas de hormigón ciclópeo y cimiento corrido de P.B.C para asiento de paredes. • Estructura: Realizada con pilares de HºAº y vigas encadenadas conformando 2 anillos de unión. • Aislación, mampostería de elevación, dinteles, carpintería de Madera: Idem. modelo 1. • Techo: Tipo tinglado parabólico, estructura metálica reticulada fabricada de varillas torsionadas pintadas con antióxido. Cubierta de chapa galvanizada ondulada, aireada con extractores eólicos. • Carpintería Metálica: Balancines metálicos de ángulos y perfiles “T”. Portones de chapa doblada en el acceso vehicular y la salida al patio. Escalera metálica recta de acceso al entrepiso de madera. • Pisos: En el patio del frente y dentro del depósito, donde pueden circular vehículos, el piso es de hormigón armado con juntas de dilatación. En la oficina se utilizan baldosa calcárea de base gris y cerámica esmaltada sobre una carpeta alisada, en baños y vestuarios. Vereda de baldosita calcárea tipo ka’a con ranuras antideslizantes. Contrapiso de hormigón de cascotes. • Zócalos: Calcáreo en la oficina. • Revestidos: Azulejo esmaltado liso 15x15 en baños y vestuario. • Revoques: Sobre ladrillos huecos, azotada de adherencia con hidrófugo y revoque común filtrado y sobre ladrillos comunes sólo este último. Las paredes perimetrales llevan revoque a un solo lado.

• Instalación Eléctrica: Trifásica, llaves termomagnéticas europeas, placas, picos

PLANILLA DE COSTOS

PROYECTOS MANDU’A
- Vivienda Modelo 5
Galpón tipo tinglado
CONSTRUCCION BASICA UNI. CANT. Costo Unitario Total Gs. Replanteo y marcación m² 268 ,80 3.100 833.280 Columna m³ 6 ,00 2.380.175 14.281.050 Encadenado 13 x 30 cm ml 168 ,00 137.800 23.150.400 Cimiento PBC con cal ( 1/2:4 ) m³ 34 ,00 419.850 14.274.900 Hormigón ciclópeo ( 1:3:6 ) m³ 4 ,32 685.500 2.961.360 Nivelación 0.30 m m² 24 ,12 169.703 4.093.224 Elevación 0.15 ladrillo comun m² 22 ,50 91.838 2.066.361 Elevación 0.20 con ladrillo hueco m² 5 ,60 128.443 719.278 Elevación 0.30 con ladrillo hueco m² 4 ,50 164.845 741.803 Elevación 0.07 ladrillo hueco m² 5 ,00 44.551 222.756 Elevación 0.15 ladrillo hueco 6 tubos m² 106 ,00 54.868 5.815.955 Elevación 0.20 ladrillo hueco m² 373 ,00 83.423 31.116.593 Aislación horizontal 0.15 con asfalto ml 76 ,40 18.844 1.439.682 Dintel sobre aberturas / envarillado de manposterÍa ml 24 ,00 19.550 469.200 Contrapiso de H° de cascotes 10 cm m² 21 ,50 42.405 911.708 Revoque 1 capa , 1.5 cm sin hidrófugo m² 565 ,00 29.850 16.865.250 Azotada impermeable 0.5 cm m² 480 ,00 12.465 5.983.200 Estructura para tinglado m² 270 ,00 197.504 53.326.040 Extractor eólico + sombrero un 3 ,00 450.000 1.350.000 Entrepiso de madera m² 27 ,00 149.200 4.028.400 Azulejo 15 x 15 cm m² 18 ,50 73.093 1.352.221 Baldosa calcárea base gris 20 x 20 cm m² 16 ,50 79.225 1.307.213 Piso cerámico esmaltada 20 x 30 m² 8 ,80 96.679 850.775 Piso de hormigón armado 12 cm m² 290 ,20 182.400 52.932.480 Carpeta para piso cerámico m² 8 ,80 26.421 232.507 Zocalo calcáreo base gris ml 16 ,00 34.763 556.200 Desague cloacal y pluvial global 12.400.675 Agua corriente global 1.899.755 Colocación artefactos sanitarios global 3.263.026 Instalación eléctrica global 11.179.330 Carpintería de madera global 4.003.000 Carpintería metálica global 13.903.850 Vidrios global 2.488.000 Pinturas global 20.649.635 Casa Mandua 5 basica 311.669.104 Limpieza final y retiro de escombros (0.8 %) 311.669.104 2.493.353 Imprevistos, mermas y roturas (3%) 311.669.104 9.350.073 Costo de obra básica 323.512.530 Gastos generales y beneficios 323.512.530 80.878.133 Casa 5 básica TOTAL 404.390.663 CONSTRUCCI0N OPCIONAL UNI. CANT. Costo Unitario Total Gs. Contrapiso de 10 cm m² 36 ,00 42.405 1.526.580 Vereda cerámica m² 36 ,00 78.275 2.817.900 Pozo ciego un 1 ,00 2.617.500 Cámara séptica un 1 ,00 1.578.250 Muralla de ladrillo común ml 30 ,00 434.634 13.039.013 Revoque a 1 capa común m² 65 ,00 29.850 1.940.250 Pintura a la cal m² 65 ,00 13.255 861.575 Casa Mandua 5 opcional 24.381.068 Imprevistos , mermas y roturas (3 % ) 24.381.068 731.432 Costo de obra opcional 25.112.500 Gastos generales y beneficios 25% 25.112.500 6.278.125 casa 5 opcional TOTAL 31.390.624 SUPERFICIE 268,80 m² GS POR m² CASA 5 BASICA 404.390.663 1.504.430 Casa 5 OPCIONAL 31.390.624 116.781 CASA 5 BASICA+OPCIONAL 435.781.287 1.621.210 MODELO 5 / GALPON TIPO TINGLADO, SUPERFICIE 268,80 m² Revista Mandu’a - 61

de luz y tomas uruguayos, sin artefactos. Instalación Sanitaria: Cañería hidráulica de agua fría, cloacal y pluvial, lozas de baño, canaletas y bajadas idem modelo 1. Cisterna baja en baño de oficina y alta en el vestuario. • Pintura: Paredes revocadas, interiores o exteriores, a la cal. Paredes de ladrillo hueco a la vista con tratamiento correspondiente para el efecto. Carpintería de madera y entrepiso de machimbre pintadas con barniz. Carpintería metálica y caños de bajada con esmalte sintético.

PROYECTOS MANDU’A
- Revista Mandu’a 62

* La Bolsa de Subcontratistas es una colaboración de la revista con los profesionales y trabajadores de la construcción, teniendo un pequeño costo los anuncios en recuadro. La calidad del servicio, así como la relación contractual, escapa a nuestro compromiso con los apreciados lectores.

Aire acondicionado

Instalación / Reparación

Bracho, Javier 0981 879749 / 0985 464491

Brítez, Santiago 0981 117524

González, Pedro 644661 / 0982 450866

Maciel, Pablo 0971 939890 / 0981 651205

Ojeda, Hugo 623766 / 0981 868289

Solis, Gabriel 0981 486233

Velázquez, Santiago 0981 843738

Aislación térmica

Duarte, Eleno 0983 338939

Marín, Dionisio 0983 731450

Alambrados

Bentrom, Román 991255

Riveros, Mario 0992 993007 / 0985 887621

Albañilería

Benítez, Ramón 0982 370231

Bogarín, Lidio 0971 947177

Bruno, Alejandro 0994 314460

Cabral, Andrés 0982 896561

Cáceres, Carlos 0982 132349

Cazal, Alexis 0981 343423

Esquivel, Rogelio 0981 456697

Fernández, Antonio 515629 / 0981 465940

Garcete, Palermo 0981 965660

Gill, Enrique 642559 / 0981 303974

Giménez, Pablo 0981 951645

Godoy, Eladio 0983 333622

González, Aníbal 0985 222147

González, Benito 0982 248256

Jara, Vidal 0981 434787 / 0981 876489

Jiménez, Antonio 514989 / 0981 660190

López, Osvaldo 0981 836904

Maidana, Sinforiano 0983 380486

Marín, Dionisio 0983 731450

Moreno, Ramón 0981 785546

Ocampos, Higinio 0984 926892

Ortega, Mildesis 0984 369 652 / 0981 594 893

Paniagua, Derlis 0981 182465

Peralta, Raúl 0981 501323

Rando, Gerardo 0985 766 650

Ramírez, Amado 374276 / 0981 485609

Riveros, Carlos 0981 521771

Rojas, Juan 0971 950157

Ruiz, Saturnino 0984 273997

Sosa, Edgar 0984 928914

Vera, Néstor 0981 103889

Animación y perspectiva

Abbate, Alejandra 0982 886227

González, Jorge 0986 552 000 / 0991 880 133

Pérez, Rafael 0981 476743

Aprobación de planos municipales

Benítez, Oscar 0971 340345

Chaparro, Miguel 0961 586457

Fernández, María 0981 932043

Rolón, Oscar 0981 445601

Robledo, Gustavo 0981 939512

Azulejos - colocación

Armando, José 0995 639335

Benitez, Alfredo 0981 520214

Benitez, Antonio 0981 945353

Ferreira, Gustavo 285663 / 0981 881211

Figueredo, Miguel 0981 479221

Godoy, Eladio 0983 333622

González, Benito 0982 248256

Jiménez, Antonio 514989 / 0981 660190

Medina, Antonio 0983 247516

Moragas, Carmelo 0985 268 497 / 0981 547 754

Noguera, Higinio 0981 564472

Ortíz, Vidal 509475

Palacios, Leonardo 0983 207676

Vázquez, Ever 0981 655799

Canaletas

Altamirano, Vicente 0981 851077

Arzamendia, Hugo 0981 126471

Canto rodado (carga en obra)

Figueredo, Catalino 0981 763438

Figueredo, Miguel 0981 479221

Carpintería

Aquino, Miguel 0986 858685

Bordón, Marcial 0971 277041

Franco, Marcos 0982 279166

Olmedo, Miguel 0981 526079

Carpinteros de obra / techistas

Benítez, Aniano 0984 478256

Cáceres, Carlos 0982 132349

González, Aníbal 0985 222147

Jara, Oscar 780642 / 0981 184687

Mora, Pascual 0981 963459

Sosa, Carlos 0992 299951

Valdovinos, Pedro 0981 234113

Cascadas

Acevedo, Patricio 0981 412542

Aguilera, Gabriel 0985 101795

Cepillado en obra

Jara, Oscar 780642 / 0981 184687

Circuito cerrado

Cabrera, Arnaldo 0981 334508

Maciel, Pablo 0981 651205

Colocación de aberturas

Franco, Marcos 0982 279166

García, Juan 0981 571424

Gill, Enrique 642559 / 0981 303974

, Carlos 0992 299951

Colocación de empapelados

Coronel, Derlis 295479 / 0981 154662

Julián 295479 / 0984 580876

BOLSA DE SUBCONTRATISTAS Revista Mandu’a - 63
Sosa
Coronel,
Gill, Enrique 642559 / 0981 303974 Cielorrasos - Durlock/PVC/Yeso Agüero, Benjamín 0985 740977 Agüero, Jorge 0985 417456 Bentolilla, Esteban 480203 / 0981 385207 Careaga, Víctor 373410 / 0971 936858 Colocación de Parquet García, Juan 0981 571424 Sosa, Carlos 0992 299951 Colocación de Piedra revestidos / molduras Aveiro, Gerónimo 0985 242563 Figueredo, Miguel 0981 479221 Martínez, Diego 0984 560 841 Ortíz, Eduardo 0971 379011 Quiñónez, Expédito 0983 356501 Ríos, Francisco 0981 417309 Rojas, Juan 0971 950157 Agrimensura
Colocación de Losarap Alarcón, Julio 501130 /0983 367 697
Bolsa de subcontratistas

Colocacion de Pisos vinílicos / alfombras

Careaga, Víctor 373410 / 0971 936858

Coronel, Derlis 295479 / 0981 154662

Coronel, Julián 295479 / 0984 580876

Pavón, César 327 6331 / 0982 354987

Sánchez, Alberto 443477 / 0981 503266

Cómputo métrico

Benítez, Oscar 0971 340345

González, Jorge Arq 0986 552000 / 0991 880133

Nuñez, Andrea 0982 170442

Russo, Walter Ing 0991 789561

Vallejos S, Cristina Arq 0982 975371 / 0981 561645

Constructores de obra

Acosta Riveros, Jorge A 0984 557649

Agüero, Teófilo 524755 / 0983 942516

Añazco, Carlos 0981 457301

Benítez, Aniano 0984 478256

Benítez, Juan 751724 / 0981 488904

Benítez, Ramón 0982 370231

Caballero, Oscar 0972 131247

Cabral, Andrés 0982 896 561

Cáceres, Carlos 0982 132349

Cantero, Domingo 0981 244946

Dávalos,Hermes 0981 942718

Escobar, Gustavo 0981 163551

Espinoza, Mauricio 0982 781445

Fernández, Antonio 515629 / 0981 465940

Ferreira, Wilfrido 0981 400128 / 0981 786614

Figueredo, Miguel 0981 479221

Garcete, Palermo 0981 965660

Gill, Enrique 642559 / 0981 303974

Giménez, Leonardo 0981 530453

González, Aníbal 0985 222147

González, Miguel H 0961 889646

González, Rumildo 0971 350004

Gutiérrez, De los Santos 0981 390538

Hucedo, Carlos 0982 178592

Jara, Vidal 0981 434787 / 0981 876489

Jiménez, Antonio 514989 / 0981 660190

Maciel, Milciades 0981 943482

Maidana,Sinforiano 0983 380486

Meza, Esteban 0992 383232

Moreno, Ramón 0981 785546

Narváez, Arsenio 0981 939452

Noguera, Higinio 0981 564472

Ortiz Barrios, César 642239 / 0983 358854

Ortíz, Vidal 509475 / 0971 720887

Oviedo, Richard 0981 291070

Paniagua, Derlis 0981 182465

Quiñónez, Expedito 0983 356501

Quiroga, Pedro 0985 938774

Rando, Gerardo 0985 766 650

Recalde, César 0981 170159

Riveros, Carlos 0981 521771

Riveros, Mario 0992 993007 / 0985 887621

Robledo,Gustavo 0981 939512

Rodríguez, Buenaventura 0972 509828

Rojas, Bernardo 302692 / 0981 531143

Rojas, Juan 0971 950157

Romero, Melchor 0983 470631

Ruiz, Saturnino 0984 273997

Sánchez, Benito 0983 488540

Sánchez, Ricardo 0981 145907

Sánchez, Yisenia 0976 123426 / 0985 297794

Sosa, Edgar 0984 928914

Valdovinos, Pedro 0981 234113

Vega, Augusto 310352 / 0971 972699

Velázquez, Jorge 0983 507243

Velázquez, Santiago 0981 843738

Vera, Néstor 0981 103889

Contratistas de hormigón

Acosta Riveros, Jorge A 0984 557649

Arévalos, Guillermo 752601 / 0981 485307

Benítez, Oscar 0971 340345

Cabral, Andrés 0982 896561

Esquivel, Rogelio 0981 456697

Fernández, Antonio 515629 / 0981 465940

Fernández, Silvino 755284 / 0981 549523

Figueredo, Miguel 0981 479221

Garcete, Palermo 0981 965660

Giménez, Leonardo 0981 530453

González, Aníbal 0985 222147

González, Miguel H 0961 889646

González, Rumildo 0971 350004

Maidana, Sinforiano 0983 380486

Meza, Esteban 0992 383232

Ocampos, Higinio 0984 926892

Olmedo, Julio 0981 652772

Ortega, Mildesis 0984 369652 / 0981 594893

Paniagua, Derlis 0981 182465

Peralta, Raúl 0981 501323

Recalde, César 0981 170159

Torres, Arístides 0981 865518

Velázquez, Santiago 0981 843738

Vera, Néstor 0981 103889

Cortinas

Bentolilla, Esteban 480203 / 0981 385207

Decoración y muebles

Aguilera, Gabriel 0985 101795

Ayala, Ever 0983 711979

Maldonado, María Estela 0981 561631

Urbieta, Mónica 0981 476743

Demolición

Caballero, Oscar 0972 131247

Herrera, Cristino 0981 976488 / 0984 894128

Vallejos, Cándido 0991 233001

Villalba, Javier 0985 491498

Destronque de árboles

Herrera, Cristino 0981 976488 / 0984 894128

Vera, Néstor 0981 103889

Dibujantes técnicos

Arnedo, Ana Arq 0981 655014

Jacobo, Nora 0971 534417

Maidana, María B. 0991 988215

Martínez, Francisco 0786 230619 / 0975 681680

Montiel, Gustavo 586343 / 0982 488928

Rodriguez, Buenaventura 0972 509828

Rolón, Manuel 0986 909404

Rolón, Oscar 0981 445601

Digitalización de planos

Abbate, Alejandra 0982 886227

Aponte, Andrea 0971 190781

Arnedo, Ana Arq 0981 655014

Arza, Andrea Arq 0981 966786

Coronel, Renzo 0971 362856 / 0986 656577

- Revista Mandu’a 64
BOLSA DE SUBCONTRATISTAS
Escobar, Gustavo 0981 163551 Ferreira, José 0981 915492 González, Jorge 0986 552 000 / 0991 880133 Maidana, María B. 0991 988215 Montiel, Gustavo 586343 / 0982 488928 Nuñez, Andrea 0982 170442 Nuñez, Miguel 0982 634026 Quintana, Jorge 290680 / 0981 426037 Robledo, Gustavo 0981 939512 Rolón, Manuel 0986 909404 Rolón, Oscar 0981 445601 Sánchez, Yisenia 0976 123426 / 0985 297794 Toledo, Milena 0981 201561 Divisorias interiores / Mamparas Bentolilla, Esteban 480203 / 0981 385207 Careaga, Víctor 373410 / 0971 936858 Pavón, César 327 6331 / 0982 354987 Dorado a la hoja Chávez, Ada 0981 838274 Drenaje Caballero, Rodrigo 0981 257702 Velázquez, Santiago 0981 843738 Electricistas Aquino, Roberto 521610/ 0971 313847 Benítez, Cándido 0981 496207 Bracho, Javier 0981 879749 0985 464491 Brítez, Santiago 0981 117524 Cáceres, Isidro 0981 927945 Chaparro, Miguel 0961 586457 Castillo, Marco 0981 578068 Coronel, Derlis 295479 / 0984 580876 Coronel, Julián 295479 / 0981 154662

Delgadillo, Alberto 0981 844429

Delgadillo, Francisco 0982 335870

Díaz, Carlos 572156 / 0982 464967

Duarte, Gustavo 0983 191182

Esquivel, Rogelio 0981 456697

Galarza, Ramón 0981 230273

Garcete, Palermo 0981 965660

Giménez, Carlos 0981 741087

Giménez, Flaminio 0971 227480 / 0983 841240

González, Pedro 644661 / 0982 450866

Hucedo, Carlos 0982 178592

León, Cañete 0983 800938 / 0981 561409

Maciel, Pablo 0971 939890 / 0981 651205

Martínez, Gerardo 0981 493190

Montanía, Ylber 0981 474025

Núñez, Cayo 0983 404670

Otello Roa, Félix 780691 / 0972 822577

Paniagua, Derlis 0981 182465

Parini, Fernando 0983 657565

Ramírez, Dario 0992 863100 / 0991 677208

Ramírez, Roberto 944740 / 0981 494624

Rolón, Carlos 0982 751296

Ruiz, Carlos 0981 896430

Sanabria, Jorge 0984 154375

Sartorio, Jorge 0981 939172

Solis, Gabriel 0981 486233

Toñánez, Sebastián 0981 912516

Valenzuela, Luis 0982 127968 / 0985 942676

Vallejos, Cándido 0991 233001

Villaverde, Silvino 0992 396855

Empedrados y adoquinados

Santacruz, Pablo Ing 0981 105004

Fumigación

Herrera, Cristino 0981 976488 / 0984 894128

Herrería / estructuras metálicas

Arzamendia, Hugo 0981 126471

Bordón, Marcial 0971 277041

Bracho, Javier 0981 879749 / 0985 464491

Cazal, Mario 0982 878501

Delvalle, Christian 0981 853884

Garcete, Palermo 0981 965660

Herrera, Edgar 0982 272468

Maldonado, María Estela 0981 561631

Orrego, Cándido 0984 958981

Hojalatero

Cazal, Alexis 0981 343423

Hornos, chimeneas, estufas, parrillas, tatacuá

Acevedo A., Patricio 0981 412542

Caballero, Rodrigo 0981 257702

Vázquez, Ever 0981 655799

Impermeabilización

Duarte, Eleno 0983 338939

López, Ramón 0981 569767

Marín, Dionisio 0983 731450

Martínez, Braulio 0981 193232

Ramírez, Amado 374276 / 0981 485609

Ruffinelli, Miguel 0981 449955

Velázquez, Santiago 0981 843738

Jardineros

Aguilera, Gabriel 0985 101795

Basualdo, Javier 0982 311208

Duarte, Tomás 0985 941909

Villaverde, Silvino 0992 396855

Limpieza de patios

Bentrom, Román 991255

Herrera, Cristino 0981 976488 / 0984 894128

Riveros, Mario 0985 887621

Mesadas de cocina / bañoMarmolería

Jimenez, Miguel Angel 0981 541146

Montaje de transformadores y motores

Benítez, Genaro 0981 496837

Díaz, Carlos 572156 / 0982 464967

Mancuello, Fernando 0991 201918

Morales, Gustavo 0981 893881

Motoserrista / poda de árboles

Basualdo, Javier 0982 311208

Bentrom, Román 991255

Duarte, Tomás 0985 941909

Riveros, Mario 0992 993007 / 0985 887621

Muros verdes / jardines verticales

Arzamendia, Hugo 0981 126471

Perforación de Pozo Artesiano

Escobar, Carlos 644497/ 0971 357473 Pilotes

Ferrari , Fernando 424827 / 0981 488666

Pintores

Amarilla, Ángel 942329 / 0983 366647

Areco, Lucio 0981 765896

Armando, José 0995 639335

Ayala, Julio César 0981

Bogarín, Héctor 0985 959921

Borja, Francisco 0991 820078

Bruno, Alejandro 0994 314460

Careaga, Víctor 373410 / 0971 936858

Cazal, Alexis 0981 343423

Garcete, Palermo 0981 965660

Gauto, Miguel 0981 938415

Giménez, Hernando 0981 419674

Giménez, José 0993 353888 / 0981 604638

Giménez,

BOLSA DE SUBCONTRATISTAS Revista Mandu’a - 65
408638
Leonardo 0981 530453 Godoy, Pedro 0981 596914 González, Aníbal 0985 222147 Herrera, Edgar 0982 272468 Ibarra, Jorge 0961 842883 López, Ramón 0981 569767 Marín, Dionisio 0983 731450 Martínez, Diego 0984 560 841 Medina, Germán 0982 320250 Mereles, Néstor 0985 653204 Miranda, Félix 0981 514763 Morínigo, Miguel 973372 / 0981 474261 Noguera, Higinio 0981 564472 Ojeda, Darío 0971 223440 Oviedo, Richard 0981 291070 Paniagua, Derlis 0981 182465 Ramírez, Amado 374276 / 0981 485609 Ramírez, Ladislao 0981 766680 Reyes, Luis 0981 231612 Riveros G., Carlos 0981 521771 Riveros, Mario 0992 993007 / 0985 887621 Rojas, Bernardo 302692 / 0981 531143 Romero, Melchor 0983 470631 Sosa, Edgar 0984 928914 Vallejos, Cándido 0991 233001 Pintura texturada Arévalos, Alberto 0971 208038 Giménez, Hernando 0981 419674 López, Ramón 0981 569767 Morínigo, Miguel 973372 / 0981 474261 Piris, Crispín 0982 360759 Piscinas - Construcción y reparación Caballero, Rodrigo 0981 257702 López, Enrique 0972 215229 / 0982 301956 Martínez, Diego 0984 560 841 Russo, Walter 0991 789561 Urbieta, Mónica 0981 476743 Piscinas - Limpieza y Mantenimiento López, Enrique 0972 215229 / 0982 301956 Moragas, Carmelo 0985 268497 Moragas, Modesto 0971 239680 Noguera, Higinio 0981 564472 Piseros Benítez, Alfredo 0981 520214 Benitez, Antonio 0981 945353 Bogarín, Lidio 0971 947177 Bruno, Alejandro 0994 314460

Caballero, Rodrigo 0981 257702

Fernández, José 0982 627836

Giménez, Leonardo 0981 530453

Godoy, Eladio 0983 333622

González, Benito 0982 248256

Jiménez, Antonio 0981 660190

Maciel, Milciades 0981 943482

Martínez, Diego 0984 560 841

Medina, Antonio 0983 247516

Moragas, Carmelo 0985 268497

Noguera, Higinio 0981 564472

Palacios, Leonardo 0983 207676

Rando, Gerardo 0985 766 650

Riveros, Carlos 0981 521771

Rojas, Juan 0971 950157

Samaniego,Jorge 0982 986 757 0994 759925

Pisos técnicos (sobre elevados)

Agüero, Benjamín 0985 740977

Plomeros

Agüero, Benjamín 0985 740977

Aguilera, Gabriel 0985 101795

Alcaráz, Andrés 0971 956096

Altamirano, Vicente 0981 851077

Báez, Raimundo 0981 609001

Bracho, Javier 0985 464491

Caje, Rodolfo A. 0984 234423

Cazal, Mario 0982 878501

Chávez, Jorge 0981 823284

Escobar, Carlos 0971 357473

Fariña, Antonio 0971 231175

Ferreira, Gustavo 0981 881211

Garcete, Palermo 0981 965660

Giménez, Pablo 0981 951645

Herrera, Edgar 0982 272468

Hucedo, Carlos 0982 178592

López, Víctor M. 0971 760390

Medina, Alfredo 0981 468756

Medina, Germán 0982 320250

Moragas, Carmelo 0985 268497

Moragas, Victorino 0981 892513

Noguera, Higinio 0981 564472

Núñez, Cayo 0983 404670

Ortiz, Vidal 509475

Paniagua, Derlis 0981 182465

Rando, Gerardo 0985 766 650

Riveros G., Carlos 0981 521771

Riveros, Mario 0992 993007

Romero, Melchor 0983 470631

Ruíz, Carlos 0981 896430

Vallejos, Cándido 0991 233001

Villalba, Javier 0985 491498

Villaverde, Silvino 0992 396855

Ploteo de planos

Coronel, Renzo 0986 656577

Prevención contra incendios

Caje, Rodolfo A. 0984 234423

Manchini, César 0981 245725

Proyecto arquitectónico

Abbate, Alejandra 0982 886227

Aponte, Andrea 0971 190781

Arnedo, Ana Arq 0981 655014

Coronel, Renzo 0971 362856

Fernández, María Arq 0981 932043

Martínez, Liz Arq 0981 926697

Nuñez, Andrea 0982 170442

Pérez, Rafael 0981 476743

Pulidor de parquet

Fernández, José 0982 627836

Pulidor de piso granítico y de H˚

Caballero, Rodrigo 0981 257702

Fernández, José 0982 627836

Refrigeración / AA / camaras frigorificas/heladeras

Brítez, Santiago 0981 117524

Galarza, Ramón 0981 230273

Hucedo, Carlos 0982 178592

León, Cañete 0983 800938

Ruiz, Carlos 0981 896430

Sartorio, Jorge 0981 939172

Reparación / instalación de electrobombas para pozos

Escobar, Carlos 644497 / 0971 357473

Moragas, Carmelo 0985 268497

Restauración de muebles

Aparici, Mari 0981 500065

Montanía, Higinio 0981 530480

Retiro de escombros

Paredes, Oscar 0981 486756

Revoque exterior en altura balancinero

Benítez, Silverio 0982 787131 0971 681339

Seguridad industrial

Manchini, César 0981 245725

Seguridad ocupacional

López, Angélica 0981 129715

Mendoza, Ludwin 0982 568046

Servicios informáticos Compra - Venta

Cabrera, Arnaldo 0981 334508

Tasaciones urbanas y rurales

Sotomayor A, Edgar Arq 0981 818880

Termocalefones - Instalación y mantenimiento

Moragas, Carmelo 0985 268497

Moragas, Victorino 0981 892513

Topógrafos

Guillén, Fabio 0981 973903

Kuebler, Edwin 0991 393727

López, Juan Manuel Ing 0981 433805

Recalde, César 0981 170159

Trabajos en autocad

Ferreira, José 0981 915492

Jacobo, Nora 0971 534417

Maciel, Shirley 0981 249598

Maidana, María B. 0991 988215

Martínez, Liz Arq 0981 926697

Montiel, Gustavo 0982 488928

Navarro, Eduardo 0972 265312

Quintana, Jorge 0981 426037

Recalde, César 0981 170159

Robledo, Gustavo 0981 939512

Toledo, Milena 0981 201561

Ventilación industrial

Ojeda, Hugo 0981 868289

Vidriero y polarizados

Laneri, Gabriel 0981 787717

Vitrales

Astigarraga, M. Teresa 0981 460109

- Revista Mandu’a 66
BOLSA DE SUBCONTRATISTAS
Rafael Brito de Lima / LV Obras 0981 454665

Mandu’ara

*Lista de precios de materiales y servicios de la construcción ordenada por orden alfabético. Los precios incluyen el I.V.A. Todos los valores incluidos en esta edición son meramente indicativos, siendo los mismos resultando de un análisis de los precios los vigentes en el mercado. Mandu’a no se hace responsable de los mismos.

ABERTURAS

MANDU’ARA
68 - ABERTURAS 68 - ACOND. DE AIRE 68 - ALAMBRES 68 - ALQUILER Y VENTA DE EQUIPOS Y MÁQUINAS 72 - AISLANTES ACÚSTICOS 72 - AISLANTES TÉRMICOS 73 - ASCENSORES 73 - CAL 73 - CÁLCULO ESTRUCTURAL 75 - CARPINTERÍA DE ALUMINIO 75 - CEMENTO BLANCO 75 - CEMENTO GRIS 75 - CERÁMICA ROJA 76 - CERCO ELÉCTRICO 76 - CONDUCTORES ELÉCTRICOS 76 - CLIMATIZACIÓN 76 - CONSTRUCCIÓN EN SECO 77 - CORTINAS 77 - CHAPAS 77 - CIELORRASOS 78 - CONTENEDORES
INDICE
80 - DIVISORIAS SANITARIAS 80 - DRENAJES 81 - ELECTRICIDAD 81 - ESTRUCTURAS 82 - ESTUDIO DE ARQUITECTURA & CONSTRUCCIÓN 82 - FERRETERÍA 82 - FUMIGACIONES 82 - FUNDACIONES 82 - GAVIONES 82 - HERRAMIENTAS 83 - HERRERÍA 83 - HERRAJES 83 - HIDRÓFUGOS 84 - HIERROS 84 - HORMIGÓN 85 - IMPERMEABILIZANTES 85 - LABORATORIO DE ENSAYOS 85 - LOSA PREFABRICADA 86 - MÁRMOL Y GRANITO 86 - MAMPARAS 86 - MALLA ELECTRO SOLDADA 87 - MEMBRANAS ASFÁLTICAS 87 - MEMBRANA LIQUIDA 87 - METAL DESPLEGADO 87 - OBRADORES Y OFICINAS 87 - PERFILES 88 - PIEDRAS 88 - PILOTES 88 - PINTURAS 89 - PISOS Y REVESTIMIENTOS 90 - PISOS SOBREELEVADOS 90 - PISOS VINÍLICOS 90 - PORTONES A CONTROL REMOTO 91 - PLANOS 92 - PUERTAS AUTOMÁTICAS 92 - REVESTIMIENTOS ACÚSTICOS 93 - SEGUROS 93 - SELLADORES 93 - TERMOCALEFONES 93 - TOPOGRAFÍA 94 - VARILLAS 94 - VIDRIOS
Madera Puerta placa De 0,60 - 0,70 y 0,80 m De cedro un 350.000 De eucalipto/cupay un 180.000 De 0,90 m De cedro un 380.000 De eucalipto un 220.000 Puertas con cabezal recto Tablero standard de eucalipto un 950.000 Persiana fija m2 450.000 Vidriera cuadrille m2 350.000 Vidriera sencilla m2 300.000 Lisa m2 220.000 Tablero, punta diamante moldura c/ cedro de 1ra m2 1.550.000 Ventanas Persiana fija m2 450.000 vidriera cuadrille m2 350.000 vidriera sencilla m2 220.000 Marco de yvyrapyta : cepillado, lijado y con 1 rebaje De 15 cm, recto ml 55.000 Metálicas Puerta ciega 2.10m de alto De 0.80 m un 530.000 De 0.90 m un 560.000 Puerta placa 2.10m de alto De 0.80 m un 430.000 De 0.90 m un 445.000 Ventana corrediza con reja 1.10m de alto De 1.20 m ancho un 500.000 De 150 m ancho un 515.000 Ventana corrediza con reja 0.76m de alto De 1.20 m ancho un 460.000 De 150 m ancho un 480.000 Ventana proyectante con reja 0.60 x 0.40m un 160.000 Balancín 0.60 x 0.40m un 105.000 Revista Mandu’a - 67
MANDU’ARA ALAMBRES Liso 01 Acerado Nº 17/15, rollo 1000m un 780.000 02 Galvanizado Nº 9, 12, 14 kg 17.000 03 Galvanizado Nº 20 kg 16.800 04 Negro de atar Nº 18 kg 18.000 De púa 01 Nº 16, rollo de 400 un 300.000 Tejido de Alambre Romboidal x m2 Malla Calibre 14 Calibre 12 Calibre 10 1’’ 27.000 54.000 1 1/2’’ 15.000 30.000 2’’ 11.000 22.000 S/C
VENTA
EQUIPOS Y MÁQUINAS Equipos por día 01 Alisadora de H° (Honda-Lifan) 192.500 02 Amoladora o cortadoras para cerámica de 9” (Bosch) 66.000 03 Andamio ER (alt. 1,50 largo 1.80 - ancho 1.10 mts ) 3.960 04 Andamio Acrow (alt. 1,85 largo 2.50 - ancho 1.20 mts ) 4.180 05 Aparejo con roldana 22.000 06 Balancín para trabajo en altura 38.500 07 Bomba de agua sumergible de 1 HP monofásica 134.000 08 Bomba de agua sumergible de 1,5 o 2 HP monofá- sica 176.000 09 Bomba de agua sumergible de 2 - 3 - 4 y 5 HP trifásica 242.000 10 Carretilla 37.500 11 Carro cuna 29.150 12 Cerco metálico - altura 2,10m - largo 2,40m 5.000 13 Cinturón de seguridad de cuero o nylon 11.000 14 Compresor de aire de 140 lt o 200 lt 550.000 15 Cortadora de hormigón 310.000 16 Escalera doble de madera (3-3.5-4-4.5 mts) 29.700 17 Escalera extendible de aluminio 48.300 18 Escalera extendible de fibra de vidrio 58.300 19 Escalera para andamio 18.000 20 Estabilizador para módulos 3.125 21 Generador de corriente monofásica -5 y 6 KVA 198.000 22 Hidrolavadora 110.000 23 Hormigonera 90 lts monofásica 66.000 24 Hormigonera 130 lts monofásica 88.000
Brascola/Casarino Brascoflex ultrafix blanco De 80 gr un 11.000 De 410 gr un 58.000 Adhesivo Epoxi aralbras Estructural 4kg un 118.000 Nautico 2kg un 325.000
DE AIRE 2 1/2’’ 10.000 2 3/4’’ 9.000 Postes de madera Yvyrapyta - Altura 2,20 m 01 De 2x3” un 14.850 02 De 3x3” un 17.820 Postes de hormigón (ver rubro Prefabricados) - Revista Mandu’a 68
ALQUILER Y
DE
ADHESIVOS
ACONDICIONADORES
MANDU’ARA 25 Hormigonera 400 lts monofásica 137.500 26 Hormigonera 400 lts trifásica 137.500 27 Mangote para Hº 35 mm 55.000 28 Martillete eléctrico de 11 kg. 198.000 29 Martillete eléctrico de 16 kg. 230.000 30 Martillete eléctrico de 30 kg. 330.000 31 Motobomba de agua naftera 5 HP 149.600 32 Motobomba de agua naftera 6,5 HP 149.600 33 Policorte Maxicorte p/ disco de 12 “ 121.000 34 Prolongador tipo industrial trifásico 15.500 35 Puntal metálico de 3 m 300 36 Puntal metálico 4 mts 400 37 Rodillo compactador 980.000 38 Roto percutor especial Bosch 217.800 39 Roto Percutor chico Bosch 148.500 40 Rueda para andamio 3.125 44 Tablón de madera p/ andamio 2.900 45 Tablón de metal p/ andamio 4.400 46 Taladro Chico 60.500 47 Destornillador 154.000 48 Vibrador de Hº Aº con motor separado 107.800 49 Vibrador portatil c/ mangote de 35mm y 3,5 mts BOSCH 88.000 Máquinas 01 Camión volquete eje sencillo, 5 Tn h 150.000 02 Camión volquete eje sencillo 10 Tn h 300.000 03 Camión volquete hasta 15 Tn h 450.000 04 Camión grúa con carreta hasta 8 tn h 375.000 05 Pala cargadora h 325.000 06 Retro pala h 275.000 07 Minipala (BOBCAT) h 200.000 08 Minicargador c/ operador h 165.000 09 Montacarga trifásico de 3,5 y 5 HP h 108.000 10 Retro sobre oruga h 450.000 11 Compactador pata de cabra h 375.000 Revista Mandu’a - 69

Calidad y garantía en todos nuestros servicios. Asesoramiento profesional personalizado. Excelente atención al cliente.

MANDU’ARA RNNGE renta R ALQUILER DE EQUIPOS PARA LA CONSTRUCCIÓN Andamios Martillete Vallados 0982 624 009 0981 675 149 Corochiré
c/Cap Jow Von Sastrow (Zona Multiplaza Km 5)
Py
- Revista Mandu’a 70
4065
As.
MANDU’ARA Revista Mandu’a - 71
MANDU’ARA MINI CARGADOR Modelo: 2200 R ROW RETROEXCAVADORA Modelo: MBL-X 920 ® S.A.E Vende y alquila equipos para obras 0987 218 980 021 505 900 Motor Yanmar Capacidad de Operación: 998 kg Potencia Bruta: 72 HP Par Motor: 294 N/m Tercera vía para accesorios Transmisión 4x4 Potencia Bruta: 92HP Cabina: Climatizada Peso Operativo: 7.620Kg. 0982 620 227 modular.comercial@tecnimet com AISLANTES ACÚSTICOS CASARINO AISLANTES TÉRMICOS Pro Alpine 30mm - 49 x 49 cm 42.000 Pro Piramide 30mm - 49 x 49 cm 49.000 Premiun Alpine 30mm - 61 x 61 cm 141.398 Placa Poliestireno Extruido 1,20m x 60cm 88.000 Lana de roca s/alu 1,20m x 8m x 50mm 530.000 Placa Ondusec 1,20m x 2,40m 96.500 Espuma de Polietileno 20m2 Doble alu 5 mm 394.500 Doble alu 10 mm 532.000 Aluminizado 5 mm 125.000 Aluminizado 10 mm 220.000 Poliestireno Extruido 1,20m x 60cm 88.000 Arcilla Expandida 2215 de 50lts - diametro 20mm 74.500 3222 de 50lts - diametro 30mm 74.500 - Revista Mandu’a 72
MANDU’ARA ASCENSORES ARENA Y TIERRA Arena lavada m³ m³ 65.000 Arena lavada, carga de 5m³ un 325.000 Arena refractaria kg 2.750 Tierra gorda m³ 64.000 Tierra gorda, carga de m³ un 320.000 CAL Inpacal 01 Cal hidratada azul, 20 kg un 25.500 02 Cal triturada, 40 kg un 45.000 03 Cal viva molida, 20 kg un 24.500 MARSTA E.A.S. 021 421 031 - 021 482 268 CÁLCULO ESTRUCTURAL PVC - Tubos de 6 m Tubo liviano para desague (blanco) De 40 mm un 44.700 De 50 mm un 67.500 De 75 mm un 144.000 De 100 mm un 155.000 De 150 mm un 363.500 Tubo cloacal blanco De 100 mm un 84.000 De 150 mm un 294.000 Tubo roscable blanco agua fría De 1” un 167.000 De 3/4” un 77.000 De 1/2” un 59.000 Tubo soldable p/ 10kg De 32 mm, un 57.000 De 25 mm, un 30.000 De 20 mm, un 21.000
Revista Mandu’a - 73
CAÑOS Y ACCESORIOS

Tubo para agua caliente, roscable, 4 capas

PVC para desagüe primario

MANDU’ARA De 1 1/2”, un 482.000 De 2” un 670.000 De 2 1/2”, un 827.000 Accesorios hierro galvanizado Alma doble 1/2”, un 7.700 Alma doble 3/4”, un 10.000 Buje 3/4” x 1/2”, un 8.100 Buje 1/2” x3/8”, un 7.740 Codo 1/2” x 90° MH, un 7.700 Codo reducción 3/4”x 1/2”, un 9.800 Curva transposición 1/2”x 1/2” un 18.000 Tapón macho 1/2”, un 7.000 Tee 1/2” x 90°, un 6.150 Tee reducción 3/4” x 1/2”, un 18.610 Unión doble plana 1/2”, un 19.700 Unión reducción 1/2 x 3/8” un 10.700 Unión sencilla 1/2”, un 8.530 Columnas para tendido 01 De 6,00 m/150 un 479.799 02 De 7,50 m/150 un 727.591 03 De 7,50 m/200 un 727.591 04 De 9,00 m/150 un 1.165.660
De 1/2” un 62.000 CODOS PVC
De 50 mm x 45° un 4.000 De 50 mm x 90° un 4.500 De 100 mm x 45° un 9.450 De 100 mm x 90° un 11.150 Codo PVC
desagüe secundario De 40 mm x 45° un 1.600 De 40 mm x 90° (buje largo) un 1.550
cuadrada con rejilla inox 100 x 100 x 50/40 mm un 46.800 150 x 150 x 50 mm un 72.000 150 x 185 x 75 mm un 119.000 Accesorios PVC Alma doble roscable 1/2” un 875 Anillo de sellado p/ desague 50mm un 2.900 Anillo de sellado p/ desague 75mm un 4.600 Anillo de sellado p/ desague 100mm un 5.000 Buje largo reducción p/ desague 50x40 mm un 2.450 Buje corto soldable 50x40 mm un 4.170 Codo 90° roscable 1/2” un 1.660 Codo reducción 90° roscable 3/4”x 1/2” un 3.350 Desengrasador 250 mm salida 50 un 67.000 Desengrasador 250 mm salida 75 un 98.000 Prolongador p/desengrasador 250x200 mm un 39.000 Prolongador p/caja sifonada 150x150 mm un 7.950 Ramal Y 40 x 45 p/desague secundario un 6.000 Ramal “Y” 100x50 mm p/desague un 16.500 Ramal “Y” 100x100 mm un 28.500 Tapon macho roscab p/desague secund de 1/2” un 690 Tee roscable de 1/2” un 2.600 Tee 3/4” a 1/2” IPS un 3.400 Tee 40x40 mm x 90° p/ desague primario un 4.000 Tee 50x50 mm x 90° p/ desague primario un 7.100 Tee 100x100 mm x 90° desague primario un 18.700 Tubo de descarga de EXTERNA p/cisterna un 13.500 Tubo de descarga embutida ASTRA p/ cisterna un 15.300 Tubo desague plástico Astra p/ lavatorio un 14.000 Tubo descarga externa Astra p/ lavatorio un 17.300 Union sencilla roscable 1/2” un 1.700 Hierro galvanizado - caños de 6ml De 1/2” un 163.000 De 3/4” un 214.000 De 1” un 342.000 De 1 1/4” un 392.000 - Revista Mandu’a 74
Codo
para el
Caja sifonada

CARPINTERIA DE MADERA

Con puertas placas lisas, exterior cedro, interior cupay, lustre natural, herrajes, interior revestido, cajones, estantes y colgadores , colocados

MANDU’ARA CARPINTERÍA DE ALUMINIO CEMENTO GRIS 01 Yguazú, 50 kg CEMENTO BLANCO 01 Cemento blanco
de cocina
colgante con puertas
exterior con formica;
y colocación ml 850.000 Idem anterior mueble bajo mesada ml 1.200.000
y colocación ml 1.250.000 Idem anterior mueble bajo mesada ml 1.500.000 Placares
Muebles
Alacena
placas lisas, revestido
herrajes
Alacena colgante con puertas placas lisas, revestido exterior en cedro interior en cupay, lustre natural herrajes
ml
1.450.000
Revista Mandu’a - 75

CERCO ELÉCTRICO

Cerco

de 4 hilos con hastes de hierro 5/8”

CONDUCTORES ELÉCTRICOS Conductores flexibles con hilos de cobre electrolítico blando Aislación en PVC antillama 70oC

MANDU’ARA
01 De alambre
0,70 mm ml 12.000 02 De cabo de acero de 1,6 mm ml 24.000 Cerco de cuchillas galvanizadas colocado 01 Tipo medialuna ml 38.000 02 Tipo circular 8 puntas diam. 30 cm ml 44.000 03 Idem anterior de diam 45 cm ml 49.000 04 Electrificador: incluye central, batería, control remoto, sirena, con instalación un 850.000
CABLES O CONDUCTORES
Sección mm2 Multifilar Alambre PVC Cable PVC Inpacord 2 conductores Inpaplomo 2 conductores Inpaplomo 3 conductores 0,50 993 1.052 1.088 2.146 2.563 3.683 0,75 1.388 1.411 1.508 2.978 3.421 4.988 1,00 1.698 1.780 1.835 3.732 4.515 6.657 1,50 2.432 2.597 2.743 5.040 5.963 8.926 2,00 3.129 3.403 3.536 6.589 7.784 11.637 CLIMATIZACIÓN CONSTRUCCIÓN EN SECO CASARINO 01 Ondusec 1 x 2,4 m un 96.500 02 Poliestireno Extruido - placa 0,60 x 1,20 m un 88.000 03 Lana de roca s/ alu, 8 x 1,20 m x 50 mm un 530.000 2,50 3.889 4.058 4.381 8.118 9.492 14.208 4,00 5.964 6.434 6.805 12.636 14.256 21.351 6,00 8.778 9.324 9.778 18.462 20.519 30.963 10,00 15.573 15.485 16.409 - 37.677 56.627 - Revista Mandu’a 76
eléctrico
de
INPACO Precios por metro IVA incluido
MANDU’ARA CORTINAS CHAPAS Chapa Galvalume por metro 01 Nº 29 m U$S 3,22 02 Nº 28 m U$S 3,64 03 Nº 27 m U$S 4,32 Chapa termoacústica en medidas estandar 01 de 3,66 m un U$S 55,92 02 de 4,27 m un U$S 65,25 03 de 4,88 m, un U$S 74,56 04 de 6,10 m, un U$S 93,21 Policarbonato 01 Alveolar 6 mm m2 88.000 02 Mano de obra, colocación m2 66.000 03 Estructura metálica con caño 20x30” p/ montaje del policarbonato m2 99.000 Metálicas ZINC Aluminizada de 0,90 cm ancho (Cincalum) Chapa Ondulada No 28 01 De 8 pies (2.44m largo) un 109.000 02 De 12 pies (3.66m largo) un 136.000 ventas5@mvaceros.com.py +(595) 974 502 500 +(595) 986 174225 CALIDAD DE ACEROS PARA SUS OBRAS www.mvaceros.com.py CHAPAS TERMOACÚSTICAS CHAPAS TRAPEZOIDALES CHAPAS ONDULADAS CHAPAS COLONIALES ÁNGULOS PLANCHUELAS BABETAS FRONTAL Y LATERAL PLANCHUELAS VARILLAS IPN > UPN PERFILES PLEGADOS PARA PUERTAS ARTÍCULOS DE FERRETERÍA CAÑOS CHAPAS LISAS CIELORRASOS TEL.: 021 906 951 - CEL.: 0971 543 246 CDE: 061 570 501 Butterfly Persianas & Cortinas (021) 906 951/2 - (021) 328 0572/3 CEL 0971 543 246 TEL.: 021 906 951 CEL.: 0971 543 246 CDE: 061 570 501 (021) 906 951/2 (021) 328 0572/3 CEL 0971 543 246 TEL.: 021 906 951 CEL.: 0971 543 246 CDE: 061 570 501 (021) 906 951/2 (021) 328 0572/3 CEL 0971 543 246 Revista Mandu’a - 77

DEPÓSITOS DE MATERIALES

MANDU’ARA
Alfajias , cepilladas Ybyrapyta hasta 2 m de largo ml 10.000 Eucalipto hasta 2 m de largo ml 7.000 Vigas pulg2/m - De ybyrapyta 1,0 - 1,9 m pulg/m 4.500 2,0 - 2,9 m pulg/m 4.500 3,0 - 3,9 m pulg/m 4.700 4,0 - 4,9 m pulg/m 5.000 5,0 - 5,9 m pulg/m 5.500 6,0 - 6,9 m pulg/m Tabla y puntales para encofrado Tabla de eucalipto de 1” pulg/m 600 Puntal de eucalipto de 3x3” pulg/m 650 Tirantesde ybyrapyta / kurupa’y 1,0 -1,9 m pulg/m 2.800 2,0 -2,9 m pulg/m 2.900 3,0 - 3,9 m pulg/m 3.400 4,0 - 4,4 m pulg/m 3.500 4,5 - 4,9 m pulg/m 3.700 5,0 - 5,9 m pulg/m 3.800 6,0 - 6,9 m pulg/m 4.200 Machimbres De eucalipto 1/2 x 3” m2 37.000 De pino 1/2 x 4” m2 39.000 De eucalipto 1 x 4” m2 75.000
Ladrillos Ladrillo
Tobatí, un 650 Prensado 3 agujeros Ita yvy de 1a, 5x11,5x23,5 cm un 946 Laminado rústico Ita yvy de 1a, 5x11,5x23,5 cm un 825 Laminado Yoayu de 1a un 1265 Yoayu laminadito 5x11 x 23 cm un 949 Prensado 3 agujeros Yoayu de 1a, 5x11,5x23,5 cm un 1.044 Ladrillo hueco De 6x12x25 cm, 2 caras vistas, 3 tubos, 52 un x m2, Yoayu de 1ra A, un 904 Ita Yvy de 1ra A, un 1.012 Ita yvy de 1ra B, un 792 De 8x18x25 cm, 6 tubos, 20 x m2 Ita Yvy de 1ra A, un 1.177 De 12x18 x25 cm, 6 tubos, 19 o 28 un x m2 Ita yvy de 1ra A un 1.298 Ita Yvy de 1ra B un 1.254 Yoayu de 1ra un 1.404 Yoayu de 1ra requemado un 1.278 De 18x18x25 cm, 9 tubos , 20 un x m2 Ita Yvy de 1ra A un 2.200 Ita Yvy de 1ra B un 1.716 Ladrillo estructural Ita Yvy 14x19x14 cm un 1.661 Ita Yvy 14x19x29 cm un 2.937 Ita Yvy 14x19x45 cm un 4.543 Ladrillo sapp de 1a - H5- 12 un x m2 - 7x30x25 cm Ita Yby un 1.606 Yoayu un 1.860 Ladrillo laminado recto - 6x12x25 cm, 52 un x m2
CONTENEDORES
DEPOSITOS DE MADERA
común
- Revista Mandu’a 78
Irene 1ra A un 1.155 Yoayu laminadito 5x11x25 cm un 949 Ladrillo laminado curvo, 15 un x ml Irene de 1ra un 1.950 Yoayu de 1ra B un 2.169 Ladrillo convoco, recto o inclinado 25un x m2 Ita Yvy 19x19x11 cm un 2.013 Irene, 18x18x12 cm un 2.650 Irene, 25x25x12 cm un 4.555 Yoayu 19x19x10 cm un 2.644 Ladrillejos 52 un x m2 Yoayu 1ra un 765 Yoayu 2da un 626 Ladrillo refractario 30 un x m2 , 6x12x25 cm Ita Yvy de 1ra un 5.071 Yoayu 1ra un 6.148 Ladrillo klinker 44 un x m2 , 10x20x3,5 cm Ita Yvy de 1ra un 1.804 Yoayu 1ra un 2.397 TEJAS Teja española prensada de 1ra Yoayu-26 un x m2 De 1ra A un 1.809 De 1ra B un 1.682 De 1ra fogueada un 1.455 De 1ra requemada un 1.328 De 2da un 1.328 De 1ra A extrusada un 1.303 Teja ROMANA o portuguesa YoayuDe 1ra A un 2.277 De 1ra B un 2.024 Teja FRANCESA YoayuDe 1ra B un 2.720 De 2DA un 1.898 Tejuelones - 9 un x m2 Yoayu de 1ra A un 2.574 Yoayu de 1ra B un 2.321 Ita Yvy de 1ra A un 2.288 Ita Yvy de 1ra B un 2.046 Tejuelitas - 30 un x m2 Ita Yvy de 1ra B un 473 Yoayu 1ra B un 658 Layotas De 18x18 cm, 28 un x m2 Yoayu 1ra un 582 De 30x30 cm, lisa, 10 un x m2 un Ita Yvy de 1ra un 1.914 Ita Yvy de 1ra B un 1.760 De 30x30 cm, rugosa, 12 un x m2 un Ita Yvy de 1ra un 1.969 Ita Yvy de 1ra B un 1.826 Revista Mandu’a - 79
MANDU’ARA

Cascotillo cerámico

Asfalto para aislación 3,6 lt

Poste de Karanday

DIVISORIAS SANITARIAS DRENAJES CASARINO Manta geotextil 200 g (Casarino) m2 12.000 TEL.: 021 906 951 CEL.: 0971 543 246 CDE: 061 570 501 (021) 906 951/2 (021) 328 0572/3 CEL 0971 543 246 De 28x28 cm, lisa, 12 un x m2 Yoayu de 1ra A un 1.666 Yoayu de 1ra B un 1.540 Ita Yvy de 1ra un 1.573 Ita Yvy de 1ra B un 1.452 De 28x28 cm, rugosa, 12 un x m2 Yoayu de 1ra A un 1.666 Yoayu de 1ra B antideslizante un 1.540 Ita Yvy de 1ra un 1639 Ita Yvy de 1ra B un 1.518 Zocalos de layota de 1ra A -10 cm de ancho Yoayu de 28 cm un 2.530 Ita Yvy de 1ra - 28 cm un 2.233 Ita Yvy de 1ra B- 28 cm un 1.507 Varios Plástico para techo 200 micrones m2 4.000 Pileta granÍtica - 1 bacha 1,00x0,50 m Pileta granÍtica - 2 bacha 1,40x0,50 m
MANDU’ARA
- Revista Mandu’a 80

ELECTRICIDAD

ESTRUCTURAS

MANDU’ARA
Columna de entrada (Materiales varios) 01 Aislador roldana B.T. 72x72mm, un 3.000 01 Aislador retención 0,50 un 3.500 02 Bulón p/ madera 3/8 x 3” un 1.000 03 Caño de acero ¾” x 3 m, un 8.500 04 Caño de acero 1” x 3 m, un 15.000 05 Caño galvanizado 2” x 5,8 m, un 125.000 06 Caño galvanizado 2 ½” x 5,8m, un 210.000 07 Cruceta p/ pre emsamblado 2” monofásica un 3.000 08 Cruceta p/ pre emsamblado 2 ½” Trifásica. un 3.500 09 Curva galvanizada 1 ¼”, un 8.500 10 Fondo de madera monofásico, un 6.000 11 Fondo de madera trifásico, un 6.000 12 Tapa monofásica Ande, un 8.500 13 Tapa trifásica Ande, un 10.000 14 Unión reducción 2” x 1”, un 9.500 15 Unión reducción 2 ½” x 1 ¼”, un 11.500 16 Curva galvanizada 1”, un 24.970 Cinta aisladora 01 Cinta auto soldable 3M 19mm x 2 mts un 7.500 02 Cinta aisladora Millión 19mm x 2 mts un 5.500 Tablero de embutir transparente 01 Para 8 TM, un 25.000 02 Para 12 TM, un 31.500 03 Para 24 TM, un 80.000 Puente plaqueta 2x4 Ciega 1 módulo 2 módulos 3 módulos Línea Duomo marfil o blanco 5.019 5.019 5.019 5.019 Línea Loft marfil o blanco 6.750 6.750 6.750 6.750 Línea Habitat 2.990 2.990 2.990 Interruptores Línea Habitat Línea Duomo Interruptor unipolar 3.750 6.350 Tomacorriente universal sin tierra 3.750 6.350 Llaves termo magnéticas Unipolares 01 Disyuntor TM 1x 10A, DIN un 8.000 02 Disyuntor TM 1x 40A, DIN un 10.500 03 Disyuntor TM 1x 50A, DIN un 10.500 Tripolares 01 Disyuntor TM 3x 20A, DIN un 28.000 02 Disyuntor TM 3x 32A, DIN un 28.000 03 Disyuntor TM 3x 40A, DIN un 30.000 04 Disyuntor TM 3x 63A, DIN un 30.000 Caño corrugado nacional 01 De 1/2”, m 290 02 De 5/8”, m 365 03 De 3/4”, m 465 04 De 1”, m 590 Caño plástico negro nacional (electroducto) 01 De 3/4”, m 890 02 De 1”, m 1.290 Varios 01 Apliques desde un 80.000 02 Arañas desde un 150.000 03 Faroles desde un 100.000 04 Caja de conexión metal 3x3, un 1.450 05 Caja de llave metal 4x2, un 1.450 06 Caja común americana p/ 1 TM, un 8.850 07 Caja común americana p/ 3 TM, un 14.500 08 Caja c/ riel Nº 1, un 8.850 09 Caja c/ riel Nº 3, un 14.500 10 Cinta nylon 30m (pasa cable), un 19.800 11 Jabalina cobre 5/8x2,00 m, un 25.000 12 Abrazadera p/jabalina 5/8 reforzado, un 5.000 13 Tapa ciega 4x4 llave doble blanca un 2.000 14 Tapa ciega p/ conexión blanca, un 1.000 15 Chicharra externa 220V Perlex, un 12.500 16 Interruptor diferencial 4x40A, un 95.000 17 Llave PANAN 25A p/ calefón un 10.000
TInglado Metálico 01 Hasta 10 m de luz, m2 132.000 02 De 10 m a 15 m de luz, m2 134.000 03 De 15 m a 20 m de luz, m2 139.000 04 De 20 m a 25 m de luz, m2 142.000 Tinglado de HoAo 01 Material + mano de obra m2 280.000 Revista Mandu’a - 81
MANDU’ARA ESTUDIO DE ARQUITECTURA & CONSTRUCCIÓN FERRETERÍA 01 Balde albañil de plástico, un 10.000 02 Cemento de contacto, lt 23.500 03 Kerosene, lt 10.000 04 Masilla común kg 15.000 05 Solvente para cemento de contacto, lt 15.000 Clavos 01 Clavo con cabeza de plomo, un 400 02 Clavo de 2” a 5“, kg 18.000 03 Clavo 1/2’’ a 3/4’’ kg 25.000 FUMIGACIONES HERRAMIENTAS GAVIONES 01 Fenoina, insecticida y fungicida p/maderas (Casarino) LT. 32.000 FUNDACIONES - Revista Mandu’a 82

HERRERÍA

de balcón

De hierro sencilla 1,00m, pasamanos de 60x25mm en chapa doblada Nº14 colocación incluida dentro del radio urbano de Asunción

diámetro 1,20 m, estructura de hierro

01 Reja artística sencilla, con marco de ángulo de 3/4 x 1/8”, varilla de 10mm y dibujo rombo con planchuela de 3/4 x 3/16,

Idem anterior reja artística dibujada, m2

(ver Portón a control remoto)

HERRAJES

HIDRÓFUGOS

MANDU’ARA
Aberturas Barandas
01
m2 235.950 02 Idem de hierro dibujada, m2 272.250 Balancines sin colocación - A partir de 1 m2 01 Balancín fabricado con ángulo 5/8 y T 3/4x1/8, hoja de 0,20 m, m2 165.000 02 Balancín fabricado con ángulo 3/4 y T 7/8 x 1/8, m2 231.000 03 Balancín de 60x60 cm, un 110.000 04 Balancín de 60x40 cm un 82.500 Cortinas metálicas de enrollar - A partir de 10 m2 01 Fabricación y montaje de cortinas automatizadas con láminas de acero galvanizado m2 750.000 02 Fabricación y montaje de cortinas manuales con láminas de acero galvanizado m2 650.000 03 Cubrerrollo de chapa N° 18 con puerta trampa ml 400.000 Escaleras 01 Caracol
con baranda, peldaños, con 1 mano antióxido y colocación incluida, por metro de altura, ml 858.000 02 Escalera marinera ml 223.850 Parrilla 01 Parrilla graduable de hierro enlozada con cenicero y carbonera de 1,20x0,50 m con tapa calor, un 1.595.000 02 Campana de 1,20x0,60 m para parrilla con colocación, un 418.000 03 Tubo de campana en chapa negra Nº 18, ml 78.650 Reja para ventana
198.000 02
253.000 Portones
Medida Rejilla de Patio Tapa de Registro 15x15 cm 29.400 39.500 20x20 cm 33.600 44.800 25x25 cm 41.000 49.500 30x30 cm 50.900 56.000 35x35 cm 62.600 58.700 40x40 cm 69.000 72.800 50x50 cm 95.400 93.800 60x60 cm 128.000 115.000
m2
Varios 01 Falleba de arrimar cromada, un 25.500 02 Ficha de 3 agujeros brasileña, reforzada, par 9.000 03 Ficha de 5 agujeros brasileña, reforzada, par 10.000 04 Pasador a palanca de embutir cromado de 150 mm un 18.000 05 Pasador a palanca de embutir cromado de 200 mm, un 25.000 06 Tirafondo galvanizado de 3/8x5”, un 1.500 07 Tornillo 1x7” caja de 144, un 150 08 Varilla de hierro para falleba de 1,20 m, un 24.500 09 Varilla de hierro para falleba de 1,50 m, un 30.000
PENNSYLVANIA 1 Ceresita, 20 kg, kg 6.150 CASARINO 1 De, 5 kg un 29.500 Revista Mandu’a - 83

HIERROS

HORMIGÓN

Hormigón Elaborado

* Comprende elaboración, transporte, bombeo, toma de muestras y rotura en laboratorio. Precios al contado

HOJALATERIA

Chapa galvanizada Canaleta embutida N° 24 Desarrollo 60 cm, ml 145.000 Desarrollo 50 cm, ml 110.000 Canaleta moldurada 40 cm Chapa N° 24 ml 90.000 Canaleta moldurada 33 cm Chapa N° 26 ml 80.000 Chapa N° 28 ml 70.000 Ductos en chapa negra N° 18 p/ chimeneas y parrillas Ø 10 ml 70.000 Ø 12 ml 80.000 Ø 15 ml 95.000 Ø 20 ml 140.000 Ø 25 ml 160.000 Ø 30 ml 185.000 Curvas de 45 y 90° Ø 10 un 35.000 Ø 12 un 40.000 Ø 15 un 50.000 Ø 20 un 80.000 Ø 25 un 95.000 Ø 30 un 130.000 Sombreretes Chino un 50.000 Anillo un 120.000 Persiana un 150.000
MANDU’ARA
1 Ho FCK 90 m3 680.000 2 Ho FCK 120 m3 757.000 3 Ho FCK 150 m3 787.000 4 Ho FCK 180 m3 854.000 5 Ho FCK 200 m3 874.000 6 Ho FCK 210 m3 892.000 7 Ho FCK 220 m3 899.000 8 Ho FCK 240 m3 937.000 9 Ho FCK 250 m3 947.000 13 Ho FCK 280 m3 978.000 14 Ho FCK 300 m3 1.001.000 15 Ho FCK 350 m3 1.026.000 16 Ho FCK 400 m3 1.080.000 17 Ho FCK 450 m3 1.190.000 18 Ho FCK 500 m3 1.220.000
- Revista Mandu’a 84
MANDU’ARA Pecho Paloma y Estándar Embutida y Lima Olla Productos de alta calidad Productos de alta calidad Entrega en tiempo y forma Entrega en tiempo y forma Servicio de Cortes y Plegados Fabricamos todo tipo de CANALETAS ESPECIALES HASTA 6 MTS Personal altamente capacitado Personal altamente capacitado Caño Redondo y Rectangular Ruta Transchaco km 17,5 c/ Gervacio León Mariano Roque Alonso www.metalmingosrl.com Más información al (0982)376-211 IMPERMEABILIZANTES CASARINO 1 Secomur (silicona transparente) Lt. 16.000 2 Emulsión asfáltica Novasfalt, 20 Lt. un 225.000 3 Tapagoteras 4 kg un 137.000 4 Cementicio bi-componente, 25kg un 240.000 LABORATORIO DE ENSAYOS LOSA PREFABRICADA Vigueta de Hº pretensado y ladrillo (Losa Rap)Puesto en obra 01 De 0,50 a 4,80 m, m2 87.600 02 De 4,90 a 5,90 m, m2 95.600 03 De 6,00 a 7,60 m, m2 107.600 PreLosa pretensada y ladrillo Rap (PreRap 0,12x1,20 m) - Puesto en obra 01 Largo hasta 5,2 m m2 105.000 02 Largo hasta 6,1 m m2 110.000 03 Largo hasta 6,8 m m2 116.000 04 Largo hasta 7,7 m m2 126.000 05 Largo hasta 9,5 m m2 235.000 Vigueta de cerámica armada con cielo raso de hormigón visto incluido, a retirar de fábrica. (Listalosa) Ancho = 20 cm / Altura = 10 cm m2 122.000 Revista Mandu’a - 85
MANDU’ARA MÁRMOL Y GRANITO Granito natural Espesor 2 cm 01 Gris Corumba m2 550.000 02 Verde Ubatuba m2 640.000 03 Amarillo, Oro, Dorado m2 680.000 04 Rojo, Negro, Lila m2 750.000
01 Mampara ciega m2 130.000 02 Mampara vidriada m2 145.000 03 Accesorios y herrajes p/ puerta simple, un 280.000 Mármol natural Espesor 2 cm 01 Blanco veta gris, m2 680.000 02 Travertino blanco, m2 680.000 Servicios 01 Perforación y pegado de bacha un 60.000
ELECTRO SOLDADA Garelli 1 De diámetro 4,2 mm, para cubrir 15 m2 un 120.000 TEL.: 021 906 951 CEL.: 0971 543 246 CDE: 061 570 501 (021) 906 951/2 (021) 328 0572/3 CEL 0971 543 246 - Revista Mandu’a 86
MAMPARAS
MALLA

Casarino

de revoques en
DE FIBRA DE VIDRIO 0982 620 227 modular.comercial@tecnimet com
ASFÁLTICAS CASARINO Casarino con Aluminio 1 De 3 mm m2 53.600 2 De 4 mm m2 66.350 Casarino sin Aluminio 1 De 4 mm 60.300 2 Bitumex base para membranas lt 20.665 Super Flex con aluminio, Casarino 1 De 36 kg m2 36.900
5mm x 5mm x 75gr/m2 373.000 5mm x 5mm x 110gr/m2 426.500 10mm x 10mm x 110gr/m2 426.500 3,17mm x 3,17mm x 55g/m2 373.000 Tela tramada de poliester P/ refuerzo de pintura y cementicios Tela tramada 1m x 50m 420.000 Emacril Poliuretanico 770.000 Emacril Fibrado 560.000 Revista Mandu’a - 87
Para refuerzo
rollo de 50 m² MALLA
PERFILES MEMBRANAS
MEMBRANA LIQUIDA

PIEDRAS

PILOTES

MANDU’ARA
carpinteria Barniz 3,6 l 1 Mariner incoloro brillante, interior/exterior un 121.000 2 Mariner incoloro mate, interior/exterior un 133.000 3 Penetrante secado rápido, 5 lt un 105.000 Para pared LATEX para pared 21 kg 1 Vinilatex interior blanco un 133.000 2 Vinilatex interior color un 160.000 3 Vinilatex interior/exterior blanco un 154.000 4 Vinilatex interior/exterior color un 187.000 5 Supercril interior/exterior blanco un 204.000 6 Supercril interior/exterior color un 280.000 7 Supercril profesional lavable blanco un 351.000 8 Supercril profesional lavable color un 448.000 Enduído acrílico 25 kg 1 Interior un 121.000 2 Exterior un 133.000 Enduído acrílico 20 kg en bolsa 01 Interior un 70.000 02 Exterior un 80.000 01 Crometal (Pintupar) opaco gris/rojo/verde musgo/blanco un 127.000 Pintura para demarcación vial 3,6 lt (blanco y amarillo) Para chapas 1 Bitumex 20 lt, impermeabilizante y anticorrosivo lt 20.665 2 Alumitech 20 lt aislación térmica lt 35.875 Membrana líquida para techos/terrazas/muros/chapas 1 Emacril fibrado, blanco o rojo teja, 20 kg un 560.000 2 Emacril poliuretánico, blanco/rojo teja/ verde 20 kg un 770.000
PINTURAS Para
Para fundaciones y hormigón 01 Piedra bruta blanca m3 150.000 02 Piedra bruta blanca, carga 5 m3 un 750.000 03 Piedra triturada IV tn 110.000 04 Piedra triturada V tn 120.000 05 Ripio, rojo m3 70.000 06 Ripio, negro tn 95.000 Adoquin de Piedra 01 Chico (130 un x m2, aprox) un 1.300 02 Mediano (90 un x m2, aprox) un 1.300 03 Grande (70 un x m2, aprox) un 1.300 Piedra para borde de piscinas 01 Borde Atérmico, 40x40cm ml 75.000 Ardosia 01 Gris de 8 mm, m2 55.000 02 Negra de 10 mm, m2 65.000 03 Verde de 12 mm m2 75.000 Piedras para revestidos 01 Laja fina, espesor 1 a 2 cm m2 95.000 02 Laja gruesa (lajón), espesor 2 a 3 cm m2 95.000 03 Wasmosy, trabajada m2 65.000 Piedras para pisos 01 Losa blanca rompecabeza m2 33.000 02 Losa roja cuadrada rústica m2 120.000 - Revista Mandu’a 88

PISOS Y REVESTIMIENTOS

MANDU’ARA
Baldosas Calcáreas Base Gris 01 De 20x20, 15x30 o 25x25 cm, m2 40.000 03 Zócalo 10x30 cm ml 19.000 Base Blanca 01 De 20x20, 15x30 o 25x25 cm, m2 40.000 03 Zócalo 10x30 cm ml 20.000 Mosaico granítico para interior Base Gris semi pulido 01 De 30x30 cm m2 65.000 02 De 40x40 cm m2 70.000 03 Zócalo 10x30 cm ml 35.000 04 Plancha o escalones m2 400.000 Base Blanca semi pulido 01 De 30x30 cm m2 75.000 SELLADORES 02 De 40x40 cm m2 80.000 03 Zócalo 10x30 cm ml 40.000 04 Plancha o escalones m2 400.000 Mosaicos para exterior Granito lavado 01 De 30x30 cm, blanco m2 58.000 02 De 30x30 cm, negro m2 50.000 03 Cargado en obra, m2 130.000 Mosaico granítico anti deslizante 01 De 30x30 cm gris m2 68.000 02 De 40x40 cm gris m2 73.000 03 De 30x30 cm colores m2 73.000 04 De 40x40 cm colores m2 80.000 Canto rodado 01 De 30x30 cm, liso, amarillo/rojo m2 40.000 02 Zócalo 10x30 15x30 cm ml 20.000 03 Cargado en obra, m2 110.000 Alto Tránsito - Antideslizante para exterior - Equipa 01 De 30x30 cm, gris m2 65.000 02 De 40x40 cm, gris m2 73.000 03 De 30x30 cm, rojo ocre m2 68.000 04 De 40x40 cm, rojo ocre m2 74.000 Vereditas 01 Vainilla 20x20, Ka’a, roja, negra, gris m2 40.000 Baldosones de Hormigón - Linea Gris 01 De 40x40x2,5 cm, m2 37.000 02 De 40x40x4 cm, m2 42.000 03 De 40x40x4 cm, armada m2 63.000 04 De 60x40x4 cm, m2 50.000 Bordes 40x40 cm 01 Travertino o Naútico, ml 93.500 02 Atérmico cargado in situ ml 165.000 CASARINO Atacama 20lts escudo solar 984.000 Alumitech 20lts 717.500 Equipa Piso Para Deck Ecológico Wpc 01 Tabla 2,20 X 0,14m Un 490.000. 02 Colocación M2 80.000 03 Cotonera De Terminación Ml 60.000 Ripado Para Revestido 01 De 0,21 X 2,20 M Un 180.000 02 De 0,21 X 3 M Un 250.000 Revista Mandu’a - 89
MANDU’ARA PISOS SOBREELEVADOS Incluye: motor, placa, mecanismo, accesorios, 2 x control remoto y colocación. Para portón corredizo 01 Hasta 3m de ancho, motor 1/4 HP un 750.000 02 Hasta 3 a 4,5m de ancho, motor 1/3 HP ml 1.200.000 03 Hasta 4,5 a 6m de ancho, motor 1/2 HP un 2.200.000 Para portón basculante 01 Hasta 3m de ancho, motor 1/4 HP un 980.000 02 Hasta 3 a 4,5m de ancho, motor 1/3 HP ml 1.550.000 03 Hasta 4,5 a 6m de ancho, motor 1/2 HP un 1.850.000
TEL.: 021 906 951 CEL.: 0971 543 246 CDE: 061 570 501 (021) 906 951/2 (021) 328 0572/3 CEL 0971 543 246 TEL.: 021 906 951 CEL.: 0971 543 246 CDE: 061 570 501 (021) 906 951/2 (021) 328 0572/3 CEL 0971 543 246 Bordes atérmicos para Piscina 01 De 40x40 (redondeado) ml 60.000 02 De 40x50 (pecho paloma) ml 75.000 03 Cargados en obra ml 85.000 04 Baldosas atérmicas 40x40 m2 60.000 Varios 1 Oxido rojo/amarillo, kg 25.000 2 Oxido negro/azul/verde, kg 37.500 1 Pastina gris kg 25.000 2 Pastina blanca kg 37.500 - Revista Mandu’a 90
PISOS VINÍLICOS PORTONES A CONTROL REMOTO

PLANOS

MANDU’ARA
Hormigón pretensado, *Garelli puesto en obra Dinteles Garelli De 10 x 18 cm , de 4,10 a 5 m ml 39.560 De 10 x15 cm, de 3,10 a 4 m ml 36.091 De 10 x 12 cm , de 2,10 a 3 m ml 32.984 De 10 x 10 cm, de 1 a 2 m ml 26.680 Postes Garelli De 2,20 m un 48.400 De 2,40 m un 52.800 De 3,00 m un 66.000
Tirantes 2 x 5” con cola de pato Garelli De 1 m un 35.000 De 2 m un 70.000 De 3 m un 105.000 De 4 m un 146.000 De 5 m un 182.000 Tirantes 2 x 5 recto Garelli De 1,00 m un 42.000 De 1,50 m un 59.500 De 2,00 m un 77.000 De 2,50 m un 94.500 De 3,00 m un 112.000 De 3,50 m un 129.500 De 4,00 m un 153.300 Portones 01 Portón fabricado en chapa plegada Nº 20 y caño cuadrado 30x30 con pasador portacandado, cerradura y 1 mano antióxido m2 242.000 02 Portón de reja fabricado en varilla cuadrada 3/8” y caño 30x30mm, m2 253.000 03 Caja p/ portón basculante o corredizo, m2 1.485.000 04 Basculante en chapa Nº 20 lisa o plegada y caño 40x40mm, m2 258.500 05 Corredizo en chapa Nº 20 lisa o plegada y caño 40x40mm, m2 264.000 06 Basculante de reja artística sencilla m2 264.000 07 Corredizo de reja artística sencilla m2 286.000 Revista Mandu’a - 91
PREFABRICADOS DE HORMIGON

SANITARIOS

MANDU’ARA REVESTIMIENTOS ACÚSTICOS TEL.: 021 906 951 CEL.: 0971 543 246 CDE: 061 570 501 (021) 906 951/2 (021) 328 0572/3 CEL 0971 543 246
TEL.: 021 906 951 CEL.: 0971 543 246 CDE: 061 570 501 (021) 906 951/2 (021) 328 0572/3 CEL 0971 543 246 De 1,70 m, italiana con hidro, un 7.000.000 Botiquín Astra embutido blanco A33-BR1 un 200.000 Astra de sobreponer, A34 - BR1 un 220.000 ASTRA 44 x 58 x 11 cm - colgante un 560.000 Astra Brasilia LB12/S1 un 400.000 Grifería Para baño FV - Linea Allegro cromo Ducha, 103/15, un 1.050.000 Bidet , 295/15 un 884.000 Lavatorio, 207/15 un 765.000 FV - Clásica 20 Ducha, 103/20 un 811.000 Bidet, 293/20 un 639.000 Lavatorio, 207/20 un 636.000 FV - linea 61 - plus Ducha, 103/61 un 958.000 Bidet, 295/61 un 829.000 Lavatorio, 207/61, un 760.000 Llave de paso con campana de 1/2” FV Línea clásica 479/20, un 87.700 Linea 479/61, un 120.000 Linea Allegro 479/15, un 129.000 Para cocina / agua fria y caliente FV - Embutida Línea clásica, 403/20 jgo 479.000 Externa Línea clásica , 409/20 jgo 850.000 Línea 61, 409/61 jgo 935.000 Línea clásica , 416/20 jgo De mesada Línea 61, 416/61 jgo 775.000 Línea clásica , 416/20 pico alto jgo 714.000 Llave de paso FV De 1/2” , cromo sin campana 475/13, un 66.500 De 1/2” , cromo con campana 479/20, un De 3/4” , cromo sin campana 475/19, un 101.000 De 3/4” , cromo con campana 479/20, un 130.000 FV bronce 1/2” 471 un 58.000 FV bronce 3/4” 471 un 84.000
PUERTAS AUTOMÁTICAS
Cerámicos Piso/Pared Cecafi 32x57 cm, Tellus Alba m2 34.000 Cecafi 45x45 cm, Provence m2 40.600 Cecafi 45x45 cm, Estocolmo m2 42.600 Forte Havana white 31x31 cm, m2 44.400 Forte Havana white plus 31x31 cm, m2 47.000 Cecafi 38x75 cm, Catena beige m2 51.300 Porcelanato 60x60 cm, desde m2 105.000 Adhesivos para azulejos, ceramica y pisos PENNSYLVANIA IMPERMEABLE.(B/20KG) kg 1.198 PENNSYLVANIA PORCELANATO FLEXIBLE. (B/20KG) kg 2.575 Pastina PENNSYLVANIA UNIV.SILICONADA CASTAÑO (1KG) kg 9.702 PENNSYLVANIA UNIV.SILICONADA BLANCO (1KG) kg 10.050 Piletas de acero inoxidable Tramontina De 0,80x0,50 m , 1 bacha, lado derecho un 210.000 De 1,00x0,50x0,13 m , 1 bacha, lado derecho un 276.000 De 1,00x0,50x0,13 m , 1 bacha central un 371.000 De 1,20 x 0,50x0,13m , 2 bachas, un 485.000 Sopapa Astra, un Bañeras De 1,60 x 0,70 x 0.40 m, acrílica, un 1.400.000 De 1,70 x 0,70 x 0.40 m, acrílica, un 1.600.000 De 1,80 x 0,80 m con hidro, ASTRA un 9.200.000 - Revista Mandu’a 92

SELLADORES

Para agua fría - Para lavatorio - canilla FV cromo :

Para bidet

SEGUROS

TERMOCALEFONES

TOPOGRAFÍA

MANDU’ARA
Casarino
Pico alto 221 un 115.000 226/15 un 235.000 226/61, un 271.000
Linea clásica FV 295/20 un 370.000
Bronce 430, 1/2” un 49.000 Cromo sin pico 432, un 106.000 Bronce pico manguera 437 , un 124.500 Idem bronce un 107.000 Varios Adhesivo plástico p/ PVC , pomo 75 cc, un 9.200 Idem anterior 850 cc, un 62.600 Brazo metal p/ ducha eléctrica un 12.500 Cinta teflon 3/4 x 25 m, un 5.950 Cinta teflon 3/4 x 50 m, un 9.600 Cisterna plastica (blanco y colores), un Conexión cromo 1/2” x 0,40 cm, MH, FV, un 40.800 Idem 1/2’ x 0,30 cm, MH, un 37.000 Conexión plastica 0,30 m un 7.000 Conexión plastica 0,40 m un 7.500 Ducha electrica Lorenzzeti Maxi 5400 w, un 127.500 Ducha teléfono DUCHAMATIC FV 119, un 810.000 Enchufe de plástico externo p/ inodoro un Pasta lubricante 400 g un 29.700 Prolongador FV cromo 1/2 x1, un 38.000 Prolongador FV cromo 1/2 x2, un 46.500 Roseta FV cromo 1/2” - 452/13 un 6.400 Sellador p/ caño cuatricapa , 125 cc , un 45.900 Sella rosca , 125 cc un 40.000 Solucion limpiadora , frasco 200 cc , un 27.000 Sopapa p/ pileta Astra un 34.000 sopapa p/ lavatorio FV cromo 7/8” 246.01 un 66.700 Sopapa FV cromo p/ bañera un 164.000 Soporte gancho p/ calefón un 2.150 Soporte con tarugo p/ calefón un 9000 Tapa p/inodoro TPQ Orion un 37.000 Tapa p/inodoro TPK Orion un 75.000 Tarugo plástico 10 mm un 675 Toallero aro cromo 162/33 FV, un 117.409 Tornillo de bronce p/ fijar artefactos un 5.700
Para patio Canilla FV 1/2”
Termotanques de acero James 1 De 20 l 1.065.750 2 De 30 l 1.212.750 3 De 40 l 1.359.750 4 De 60 l - p 46 1.617.000 5 De 80 l - p 46 1.837.500 6 De 60 l - horizontal 1.617.000 7 De 80 l - horizontal 1.837.500 8 De 110 l 2.094.750 Termotanques de cobre James 1 De 10 l 1.323.000 2 De 20 l 1.470.000 3 De 30 l 1.764.000 4 De 40 l 1.911.000 5 De 60 l - p 46 2.425.500 6 De 80 l - p 46 2.940.000 7 De 110 l 3.381.000
Tapagoteras 1kg un 40.500 Tapagoteras 4kg un 140.000 Pu 40 multiuso 400gr Negro, Gris un 37.000 PU universal 80gr un 14.000 Mapeflex pu 600ml Gris un 96.500 Mapeflex MS Crystal Transparente un 98.000 Revista Mandu’a - 93

VARILLAS

1 Alambrón 4,2 mm x 12 m, un 20.000

1 Alambrón 4,2 mm x 12 m, un 20.000

2 Varilla conformada AP 420, kg s/ cotiz.

2 Varilla conformada AP 420, kg s/ cotiz.

3 Varilla conformada AP 500, Kg 10.000

3 Varilla conformada AP 500, Kg 10.000

4 Varilla torsionada, kg s/ cotiz.

4 Varilla torsionada, kg s/ cotiz.

5 Varilla lisa, kg 11.500

Varilla lisa,

Planta Industrial Gral. Marcial Samaniego casi Beatriz Benítez. Itauguá. OFICINA COMERCIAL Oscar Bottana 100 esq. Cacique Caracará. Asunción.

MANDU’ARA Ventanas: templado 8mm con perfiles de aluminio anodizado. 01 02 03 Box Baño: templado 8mm con perfiles de aluminio anodizado 01 Puerta Corrediza: de 2 hojas (1 fija + 1 corrediza), en vidrio templado 10mm, con perfiles de aluminio anodizado. 01 Puerta Batiente: de 1 hoja, en vidrio templado 10mm, con perfiles de aluminio anodizado. 01 0,90 x 2,10 sin freno 1.100.000 1.150.000 02 0,90 x 2,10 con freno 1.300.000 1.350.000 VIDRIOS 01 1,06 x 1,05 510.000 520.000
OBRA TEL.: 021 906 951 CEL.: 0971 543 246 CDE: 061 570 501 Vidrios templados Puerta Batiente: de 1 hoja, en vidrio templado 10mm, con perfiles de aluminio anodizado. 01 0,90 x 2,10 sin freno 1.100.000 1.150.000 02 0,90 x 2,10 con freno 1.300.000 1.350.000
TERMINACIÓN DE
5
kg 11.500 Revista Mandu’a - 117 VARILLAS
021 906 951
0971 543 246
061
501
0971
246
Industria Procesadora de Vidrios Templados
- Revista Mandu’a 94
TEL.:
CEL.:
CDE:
570
(021) 906 951/2 (021) 328 0572/3 CEL
543
Tel. 0985 335000 - ventas@fineza.com.py

Turn static files into dynamic content formats.

Create a flipbook
Issuu converts static files into: digital portfolios, online yearbooks, online catalogs, digital photo albums and more. Sign up and create your flipbook.