Revista Mandu'a - #483 - Julio 2023

Page 1

INFORMACIÓN, OPINIÓN Y CULTURA AL SERVICIO DE LA CONSTRUCCIÓN

INTELIGENCIA ARTIFICIAL EN LA CONSTRUCCIÓN / VIVIENDA

JULIO 2023

Nº 483

AÑO 41

10.515

SUSCRIPTORES

9X9 - NICOLE JAQUET Y FELIPE RAMIREZ / GUÍAS DE PRECIOS

Mandu’a es la Revista de la construcción más leída del Paraguay. Mensualmente ofrece noticias, tendencias, notas técnicas y guías de precios de materiales, mano de obra, costeo de obra y proveedores de la construcción. La suscripción es gratuita para los profesionales de la construcción de todo el país.

Editorial

Los grandes desafíos del nuevo gobierno.

Notas

Inteligencia Artificial en la construcción

Hechos de corrupcón en la FADA

Proyecto nacional

Vivienda 9x9

Proyecto internacional

7 Patios

Industria & innovación

Panel Ripado de WPC

FERREX inaugura una innovadora ferretería

Licitación para climatización y ventilación

Chapas de policarbonato

Adhesivos y selladores Brascola

Techos Acústicos de Fibra

Mineral

Charla: Monitoreo Estructural en Ingeniería Civil

Guías de precios de la construcción

Contacto

Ramón I. Cardozo c/ Andrés Gill

Lambaré - Paraguay

(021)905 100 / (0981) 917 683 mandua@mandua.com.py

www.mandua.com.py

EQUIPO - Fundador: Mauri Arza. Gerencia: Estela Villalba. Dirección editorial:

Yerutí Arza. Administración: Estela Villalba. Mabel Gaona. Costeo: Carlos Gómez.

Publicidad: Víctor Franco. Sofía Franco. Nestor Raimondo. Rubén Cabrera .

Impresión: Artes Gráficas Castillo S.A.

INDICE 10 14 18 22 28 34 35 36 37 38 39 40 41

LOS GRANDES DESAFÍOS DEL NUEVO GOBIERNO

El gobierno de la República que asumirá en agosto próximo tendrá frente a sí grandes y graves desafíos en un mundo tecnologizado cada vez más asediado por dificultades. A nivel local existen varios retos que tendrá que enfrentar. Provienen del proceso propio del país y del juego incesante de intereses de la política internacional.

El problema más grave del país es la pobreza que afecta a un vasto sector de la población porque tiene consecuencias transversales que afectan al desenvolvimiento de las personas en la sociedad. Su causa es la falta de trabajo, la cultura del conformismo, el asistencialismo del Estado sin una exigencia orgánica a los beneficiarios para buscar una mejor calidad de vida, la ausencia de una política pública de empleo eficaz, la sustitución de mano de obra por tecnología y la falta de estímulos a los empresarios que generan puestos laborales.

El presidente electo ha prometido 500.000 nuevos empleos. Ello demandará combatir las raíces de la pobreza inteligencia, creatividad y, sobre todo, establecer las condiciones de mercado capaces de absorber la mano de obra ociosa. Este es el otro gran desafío: reactivar una economía que no se repone del agudo golpe recibido de la pandemia y otras circunstancias adversas durante el actual gobierno.

La inseguridad reinante será otro escollo a enfrentar. Se origina en el narcotráfico con creciente inserción en la política, el crimen organizado, la delincuencia transnacional, la drogadicción y policías cómplices de malvivientes.

El sistema de corrupción en el sector público amparado por la impunidad otorgada por administradores de justicia venal también se presenta como grave dificultad por lo que habrá que tomar medidas para sanear el Poder Judicial.

Salud y educación seguirán siendo deudas pendientes que habrá que pagar en parte al menos dotando de más recursos y cobertura a los servicios sanitarios públicos, legislando sobre los seguros privados para contener su voracidad y reorganizando el IPS. En educación, la postergada y polémica reforma se hace imprescindible e ineludible.

En el tablero internacional, será clave la renegociación favorable al Paraguay del anexo C del Tratado de Itaipú para revertir el trato leonino recibido del Brasil durante medio siglo. Por otro lado, habrá que reorientar el Mercosur, encontrar una salida a la relación con China continental sin descuidar a Taiwan y cambiar la diplomacia de cobro de sueldos por una que promueva y alcance logros para los intereses de nuestro país.

No es poco ni fácil lo que aguarda al gobierno entrante. Es de esperar, sin embargo, que dejando de lado el sectarismo y los intereses personales de su entorno -de Cartes sobre todo-, se dedique a gobernar con coraje y lucidez para solucionar las aspectos más candentes de la vida de la República.

EDITORIAL
- Revista Mandu’a 10
Naves Industriales Llave en Mano Servicios Metalúrgicos Mantenimiento Industrial GRUPO EMPRESARIAL ARIAS S.A. (021) 552 368 / (0981) 802 112 comercial@geasa com py Tte. Rolón Viera N° 2.645 www.geasa.com.py
Revista Mandu’a - 13

INTELIGENCIA ARTIFICIAL EN LA CONSTRUCCIÓN

El sector de la construcción está experimentando una revolución digital que ofrece oportunidades para reinventarse y aprovechar al máximo las ventajas de la automatización. Las máquinas y equipos que realizan tareas sin intervención humana se presentan como una prometedora solución y se estima que la automatización puede reducir los tiempos en un 98%, ahorrar costos operativos en un 35% y lograr precisión del 100% al eliminar errores.

- Revista Mandu’a 14
NOTAS

Entre todas las tecnologías emergentes que se están utilizando para automatizar procesos en la construcción, la Inteligencia Artificial (IA) destaca como una de las más importantes. La IA se implementa a través de técnicas como el aprendizaje automático, el procesamiento del lenguaje natural, la visión computarizada, los robots físicos y la automatización robótica de procesos. Estas aplicaciones de IA pueden mejorar la eficiencia, reducir costos, plazos y errores en los proyectos de construcción.

En el sector de la construcción, la IA encuentra tres aplicaciones clave. En primer lugar, se utiliza en la planificación y el diseño de proyectos, permitiendo una preparación más precisa y un modelado de producción eficiente. En segundo lugar, la IA se utiliza para supervisar el progreso de las obras y predecir riesgos antes de que ocurran. Por último, la IA se aplica para mapear procesos multifuncionales en tiempo real, proporcionando información valiosa para la toma de decisiones operativas y estratégicas.

Sin embargo, para que la implementación de la IA en la construcción sea exitosa, es fundamental una adecuada gestión de los datos.

Revista Mandu’a - 15

NOTAS

Es necesario capturar y registrar la información de manera ordenada, utilizando herramientas digitales que permitan el control de la obra y la integración de datos en tiempo real para la toma de decisiones. Esto evita duplicidades, ahorra tiempo y mejora la productividad al eliminar la distribución ineficiente de información.

La IA ofrece beneficios extraordinarios para impulsar el sector de la construcción y mejorar su eficiencia operativa. Sin embargo, es importante tener en cuenta los riesgos asociados. La IA, sin una supervisión adecuada, puede replicar o

9,5x14cm

exacerbar el sesgo y la discriminación humanos. Por lo tanto, es recomendable implementar la IA de manera responsable y progresiva, buscando un equilibrio entre la tecnología y las cualidades humanas.

PASTINA ACRÍLICA

BI-COMPONENTE

POTENCIADA FÓRMULA

La aplicación de la IA en la construcción abarca todo el ciclo de vida de un proyecto, desde la planificación y el diseño hasta la construcción y la gestión posterior. En la fase inicial, la IA se utiliza para agilizar la evaluación de la localización y el proceso de diseño, mediante el uso de drones, modelos de información de construcción y software de IA. Durante la construcción, equipos autónomos controlados centralmente, junto con el seguimiento del progreso y la calidad del trabajo mediante sensores y cámaras, optimizan las operaciones y mejoran la seguridad. La IA también se aplica en la gestión de la programación, estimación de costos, mitigación de riesgos y seguimiento del inventario.

En resumen, la IA está liderando la transformación del sector de la construcción y las empresas y profesionales del sector que apuesten por tecnología serán los que podrán aprovechar y ofrecer las ventajas de procesos más eficientes y económicos en la construcción y fase operativa de los edificios.

- Revista Mandu’a 16
Revista Mandu’a - 17

HECHOS DE CORRUPCIÓN EN LA FADA

La FADA UNA se encuentra bajo investigación desde fines del pasado mes de mayo por presuntos ilícitos que involucran a más de 20 personas. Una comitiva fiscal encabezada por los fiscales Omar Legal y Silvio Corbeta de Delitos Económicos realizó un allanamiento, en respuesta a una denuncia de lesión de confianza y producción de documentos no auténticos.

NOTAS
- Revista Mandu’a 18

Estos hechos de corrupción se refieren a contrataciones directas de empresas y funcionarios fantasmas, lo que ha generado una grave crisis en la institución. Según las investigaciones, más de 20 personas estarían involucradas en los presuntos actos de corrupción denunciados por alumnos y funcionarios de la FADA. Se ha señalado que estas personas ocupan cargos directivos, administrativos y pertenecen al área de servicios generales de la facultad. También se menciona la participación de una empresa constructora real en estos hechos ilícitos.

SIMULACIÓN DE CONTRATOS Y CREACIÓN DE FUNCIONARIOS FICTICIOS

Los fiscales encargados del caso han revelado que se habrían realizado contrataciones directas en las cuales funcionarios administrativos y altas autoridades de la facultad estarían implicados en la simulación de contratos en el rubro de la construcción. Los denunciantes son los propios funcionarios que figuraban en los contratos y se dieron cuenta de que los trabajos para los cuales fueron contratados no se estaban llevando a cabo. Se sospecha que se crearon funcionarios ficticios cuyos rubros quedaban en manos de los directivos de la facultad.

Obra: Profarco
Revista Mandu’a - 19

NOTAS

DAÑO PATRIMONIAL Y RESPONSABILIDADES

ACCIONES ESTUDIANTILES

En plenaria estudiantes de la FADA anunciaron que gestionarán una

auditoría externa

Los estudiantes de la FADA han anunciado su intención de gestionar una auditoría externa para investigar estos hechos de corrupción. Además, solicitarán informes trimestrales a las autoridades de la UNA, los cuales deberán ser compartidos con los estudiantes para devolver la transparencia a los procesos administrativos de la facultad. Estas acciones buscan garantizar una gestión más transparente y prevenir futuros actos de corrupción en la institución.

Estudiantes de la Facultad de Arquitectura, Diseño, y Arte (FADA) de la Universidad Nacional de Asunción (UNA), sentaron posturas en varios aspectos, el más importante, la gestión de una aud externa. Además de la solicitud de informes trimestrales a las autoridades de la casa de estudios, deberán ser socializados con el estamento estudiantil a fin de devolver la transparencia de los p administrativos de la facultad.

Se estima que los presuntos actos de corrupción han ocasionado un daño patrimonial de al menos G. 150 millones. Se han realizado contratos con proveedores mediante contrataciones directas, en los cuales los proveedores trabajaban en colaboración con funcionarios de servicios generales de la facultad, generando planillas con empleados ficticios cuyos salarios eran pagados por la institución. Se ha identificado al decano de la Facultad de Arquitectura como el ordenador de gastos, mientras que la trazabilidad documental queda bajo la responsabilidad del director administrativo y funcionarios de la Unidad Operativa de Contrataciones y del área de Talentos Humanos.

La revelación de estos presuntos actos de corrupción en la Facultad de Arquitectura de la UNA ha generado gran preocupación en la comunidad estudiantil y en la sociedad en general. Se espera que las investigaciones continúen su curso y que se tomen las medidas necesarias para esclarecer los hechos y garantizar la transparencia y la integridad en la gestión de la facultad.

05.06.23, 22:19 En plenaria estudiantes de la
anunciaron que gestionarán una auditoría externa - Nacionales
FADA
P O R L U C Í A G O N Z Á L E Z 2 7 D E M AY O D E 2 0 2 3 , - 1 0 : 1 8 E R I C O G A L E A N O N A C I O N A L E S S U S C R I B I T E A A 
20
Imagen de la plenaria estudiantil en la FADA. - Revista Mandu’a
- ABC Color án e ditoría ios, que procesos A B C

VIVIENDA 9X9

Proyecto: Nicole Jaquet y Felipe Ramirez Ilculese.

Ingeniero de cálculo: Felipe Ramirez Ilculese.

Fotografías: Leonardo Méndez.

Área: 125 m2

Año: 2022.

Ubicación: Asunción.

PROYECTO NACIONAL
- Revista
22
Mandu’a

Descripción elaborada por el equipo del proyecto.

‘’Todo es un número´´

- Pitágoras

Problema:

Dado un número limitado de ladrillos para construir una vivienda entre medianeras, encuentre la forma más apropiada de tal modo que se pueda construir la mayor área con el menor perímetro.

Revista Mandu’a - 23

Solución: Método lógico deductivo Premisa 1-Toda transformación de la forma genera un aumento de superficie.

Premisa 2-Las formas apropiadas entre medianeras son figuras ángulo recto.

Conclusión-La forma óptima es un prisma puro de base rectangular.

Método matemático

Area= X.Y Y=A/X

Perímetro=2X + 2Y

P=2X + 2A/X

F(x)= 2X + 2A/X

PROYECTO NACIONAL - Revista Mandu’a 24

Derivamos la función perímetro respecto a X e igualamos a 0

F´(x)=2-2A/X2 F´(x)=0 0=22A/X2 0=1- A/X2 X2=A X= √A

Si X=√A y Y= A/X entonces Y=A/√A Y=√A Y=X

Segunda Derivada para determinar máximos o mínimos.

F’’(x)=4A/X3 F’’(x)=4A/√A3 F’’(x)=4√A/A > 0 por tanto el perímetro es mínimo.

Conclusión: El área máxima con el menor perímetro es un rectángulo de lados iguales, es decir, un cuadrado.

Revista Mandu’a - 25
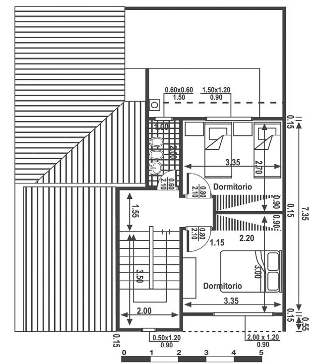
1.10 QUINCHO ACCESO SALA LAVADERO DEPÓSITO PATIO CONSTRUCCION.EXISTENTE DEPOSITO COCINA AREA.TECNICA PATIO AREA.TECNICA 5 1 HABITACIÓN 5 PLANTA BAJA 1 N PLANTA BAJA N MATRIMONIAL HABITACIÓN 1 HABITACIÓN 2 BAÑO COMPARTIDO VEREDA MURALLA EXISTENTEDE BLOQUES DE Hº EJECUTADOS PREVIO AL PROYECTO DESAGUE
5 LOSA
LOSA
PERIMETRAL Y ABACO CENTRAL DE REFUERZO PARA PUNZONAMIENTO DE PILAR 1 CORTE 2 1 5 CAPITEL CENTRAL DE REFUERZO PARA PARAGUAS EN VOLADIZO HORMIGON ALIGERADO CON MESA DE COMPRESION EN LADRILLOS ARMADOS MAMPOSTERIA DE LADRILLOS EXTRUIDOS A LA VISTA SEGUN TRABA ESPECIFICA- VER DETALLE PARA SU COLOCACIÓN CERRAMIENTO CENITAL DE ACRILICO TRANSPARENTE PERIMETRAL EN ANILLO, JUNTAS SELLADAS ESCALERA METÁLICA EN VOLADIZO APOYADA EN PILAR CENTRAL DE HORMIGÓN ARMADO Planta Alta. Planta Baja. Corte Longitudinal. PROYECTO NACIONAL - Revista Mandu’a 26
PLUVIAL EMBEBIDO EN PILAR CENTRAL PARA CAPTACIÓN DE AGUA CORTE 1 CAPITEL CENTRAL DE REFUERZO PARA PARAGUAS EN VOLADIZO
CERAMICA TIPO PARAGUAS SOBRE PILAR CENTRAL 40cm CERRAMIENTO CENITAL DE ACRILICO TRANSPARENTE PERIMETRAL EN ANILLO, JUNTAS SELLADAS MAMPOSTERIA DE LADRILLOS EXTRUIDOS A LA VISTA SEGUN TRABA ESPECIFICA- VER DETALLE PARA SU COLOCACIÓN
Y PISO DE FUNDACION CON NERVIO INFERIOR

Se proyecta un prisma puro de base cuadrada sobre una losa de fundación que funciona como estructura y como piso. Se establece un área mínima necesaria para una correcta funcionalidad y un área máxima en base al problema enunciado. Se inscriben figuras geométricas en planta dentro del prisma, pivotando sobre un pilar central que articula los elementos y ordena el espacio. Se construye el espacio con paredes y techo de ladrillos cerámicos vistos a junta seca con adhesivo polimérico, evitando desperdicios y juntas indeseadas. Se construye la atmosfera con el manejo cuidadoso y excelso de la luz.

Si el numero emociona ¿Es Arquitectura o Construcción?

Revista Mandu’a - 27

PATIOS

Proyecto: Oberlaender Arquitectos (Lucas Oberlaender y Ferney Ruiz).

Empresa constructora: Terrara

SAS y Construpar SAS.

Fotografías: Samuel Monsalve.

Área: 1.073 m2

Año: 202!.

Ubicación: Bogotá, Colombia.

PROYECTO INTERNACIONAL
28
7
- Revista Mandu’a

Descripción elaborada por el equipo del proyecto.

7 Patios es un proyecto de vivienda ubicado en el Barrio Las Cruces en Bogotá. Se trata de un barrio ubicado hacia el sur de La Candelaria, el centro histórico de la ciudad. Desde su nacimiento a finales del Siglo XVIII Las Cruces se constituye como el margen: el margen de la ciudad habitado por aquellos que viven al margen de la sociedad, indígenas y obreros de cervecerías y chircales.

Más de 200 años después, la situación es la misma. Si bien el barrio es hoy en día central por su localización geográfica e incluso está protegido como sector patrimonial de la ciudad, sus condiciones físicas y las de sus habitantes siguen siendo precarias por decir poco. Las Cruces, ubicado a 4 cuadras de la plaza de Bolívar (Plaza Mayor de Bogotá) y a 3 del palacio presidencial es la espalda olvidada del centro histórico de la ciudad.

Revista Mandu’a - 29

Como es común en muchas ciudades, la vivienda se ha desplazado de sus centros históricos hacia la periferia. En el caso de Bogotá, especialmente en Las Cruces, este desplazamiento no se ha dado por el turismo (inexistente) sino por la inseguridad y el abandono estatal. Re-poblar el centro, y en este caso el margen del centro equivale a poner en valor el sector y el patrimonio de la ciudad. Haciendo vivienda de bajo costo pretendemos revertir este proceso.

Este proyecto combina vivienda con una vivienda productiva que se abren a la calle en un esfuerzo por re-construir una ciudad con usos mixtos, distancias caminables, espacios urbanos vitales, y espacios comunes de gran riqueza espacial.

PROYECTO INTERNACIONAL - Revista Mandu’a 30

El tejido urbano del barrio. El tejido predial de Las Cruces refleja su origen como barrio obrero. Las proporciones de los predios de poco frente y mucha profundidad (9m x 50m) se debe a que los predios se ocupaban con inquilinatos, que se construían como sucesiones de pequeños patios rodeados de habitaciones.

En 7 Patios aprovechamos el potencial del tejido urbano producido por los inquilinatos para pensar en una ciudad con una calle que a futuro se puede consolidar por la sumatoria de muchos proyectos de muy poco frente, pero con interiores profundos, variados y de gran riqueza espacial.

t.com -Oficinas -Baños -Depósitos -Habitaciones 0982 620 227 modular.comercial@tecnimet.com
Revista Mandu’a - 31

Como es común en muchas sus centros históricos hacia especialmente en Las Cruces el turismo (inexistente) sino Re-poblar el centro y en este poner en valor el sector

Planta Tercer Piso.

Planta Segundo Piso.

Planta Primer Piso.

Corte.

los inquilinatos para pensar se puede consolidar por la poco frente pero con interiores espacial

El per con construcciones de un solo actual permite construir hasta sector que se pretende sea per iguala las alturas promedio vecinas y la torre de 4 pisos Vivienda digna y de bajo costo La vivienda de bajo costo (Vivienda Colombia en sectores marginales vivienda masiva sin mezcla estacionamientos y por lo general Su ubicación supone que sus varias horas al día para llegar

7 Pa el margen del centro

En contraste 7 Pa es un a un barrio central que poco unidades viviendas que a modo en torno a pa de la tarde El espíritu de lo inquilinatos descritos en el proyecto Los recorridos descubriendo la sucesión de pretende crear unos espacios espacial

7 Pa , el margen del centro

7 Pa es un proyecto de vivienda Bogotá Se trata de un barrio centro histórico de la ciudad XVIII Las Cruces se cons habitado por aquellos que viven obreros de cervecerías y chircales

Nuevas formas de habitar el

7 Pa se suma a un trabajo proyectos Pasajes que están proyectos sumados, pretenden vivienda y comercio a este sector personas que viven y trabajan bajos recursos que sin embargo trabajo sin necesitar del carro transporte público

7 Pa es un proyecto de vivienda Bogotá Se trata de un barrio centro histórico de la ciudad XVIII Las Cruces se cons habitado por aquellos que viven obreros de cervecerías y chircales Más de 200 años después la hoy en día central por su protegido como sector patrimonial y las de sus habitantes siguen Cruces ubicado a 4 cuadras Bogotá) y a 3 del palacio presidencial histórico de la ciudad Como es común en muchas sus centros históricos hacia especialmente en Las Cruces el turismo (inexistente) sino Re-poblar el centro y en este poner en valor el sector vivienda de bajo costo pretendemos Este proyecto combina vivienda abren a la calle en un esfuerzo mixtos distancias caminables comunes de gran riqueza espacial El tejido urbano y predial del El tejido predial de Las Cruces de personas de bajos recursos poco frente y mucha profundidad explica porque inicialmente (habitaciones de renta con necesitaban frentes de fachada solares tan comunes en La como sucesiones de pequeños En 7 Pa aprovechamos el los inquilinatos para pensar se puede consolidar por la poco frente, pero con interiores espacial El per con construcciones de un solo actual permite construir hasta sector que se pretende sea per iguala las alturas promedio vecinas y la torre de 4 pisos Vivienda digna y de bajo costo La vivienda de bajo costo (Vivienda Colombia en sectores marginales vivienda masiva sin mezcla estacionamientos y por lo general Su ubicación supone que sus varias horas al día para llegar En contraste 7 Pa es un a un barrio central que poco unidades viviendas que a modo en torno a pa de la tarde El espíritu de lo inquilinatos descritos en el proyecto Los recorridos descubriendo la sucesión de pretende crear unos espacios espacial Nuevas formas de habitar el 7 Pa se suma a un trabajo proyectos Pasajes que están proyectos sumados, pretenden vivienda y comercio a este sector personas que viven y trabajan bajos recursos que sin embargo trabajo sin necesitar del carro transporte público

Más de 200 años después, la hoy en día central por su protegido como sector patrimonial y las de sus habitantes siguen Cruces ubicado a 4 cuadras Bogotá) y a 3 del palacio presidencial histórico de la ciudad Como es común en muchas sus centros históricos hacia especialmente en Las Cruces el turismo (inexistente) sino Re-poblar el centro, y en este poner en valor el sector vivienda de bajo costo pretendemos Este proyecto combina vivienda abren a la calle en un esfuerzo mixtos distancias caminables comunes de gran riqueza espacial El tejido urbano y predial del El tejido predial de Las Cruces de personas de bajos recursos poco frente y mucha profundidad explica porque inicialmente (habitaciones de renta con necesitaban frentes de fachada solares tan comunes en La como sucesiones de pequeños En 7 Pa aprovechamos el los inquilinatos para pensar se puede consolidar por la poco frente, pero con interiores espacial El per con construcciones de un solo actual permite construir hasta sector que se pretende sea per iguala las alturas promedio vecinas y la torre de 4 pisos Vivienda digna y de bajo costo La vivienda de bajo costo (Vivienda Colombia en sectores marginales vivienda masiva sin mezcla estacionamientos y por lo general Su ubicación supone que sus varias horas al día para llegar En contraste, 7 Pa es un a un barrio central que poco unidades viviendas que a modo en torno a pa de la tarde El espíritu de lo inquilinatos descritos en el proyecto Los recorridos descubriendo la sucesión de pretende crear unos espacios espacial Nuevas formas de habitar el 7 Pa se suma a un trabajo proyectos Pasajes que están proyectos sumados pretenden vivienda y comercio a este sector personas que viven y trabajan bajos recursos que sin embargo trabajo sin necesitar del carro transporte público

7 Pa el margen del centro 7 Pa es un proyecto de Bogotá Se trata de un barrio centro histórico de la ciudad XVIII Las Cruces se cons habitado por aquellos que obreros de cervecerías y chircales Más de 200 años después hoy en día central por protegido como sector patrimonial y las de sus habitantes siguen Cruces, ubicado a 4 cuadras Bogotá) y a 3 del palacio presidencial histórico de la ciudad Como es común en muchas sus centros históricos hacia especialmente en Las Cruces el turismo (inexistente) sino Re-poblar el centro y en poner en valor el sector vivienda de bajo costo pretendemos Este proyecto combina vivienda abren a la calle en un esfuerzo mixtos distancias caminables comunes de gran riqueza espacial El tejido urbano y predial del El tejido predial de Las Cruces de personas de bajos recursos poco frente y mucha profundidad explica porque inicialmente (habitaciones de renta con necesitaban frentes de fachada solares tan comunes en La como sucesiones de pequeños En 7 Pa aprovechamos los inquilinatos para pensar se puede consolidar por la poco frente pero con interiores espacial El per con construcciones de un solo actual permite construir hasta sector que se pretende sea per iguala las alturas

vecinas y la torre

bajo

E S C A L A 1 : 125 Planta Primer Piso CARRERA SEPTIMA E S C A L A 1 : 125 Planta Tercer Piso E S C A L A 1 : 125 Planta Segundo Piso
Carrera7 Carrera8 Calle3 Calle2 Edificio
promedio
de 4 pisos Vivienda digna
de
costo La vivienda de bajo costo ( Colombia en sectores marginales E S C A L A 1 125 Corte E S C A L A 1 125 Planta Primer Piso CARRERA SEPTIMA E S C A L A 1 125 Planta Cubiertas E S C A L A 1 125 Planta Tercer Piso E S C A L A 1 125 Planta Segundo Piso Calle2
y
GSPublisherVersion 0.0.100.100 E S C A L A 1 125 Corte E S C A L A 1 125 Planta Cubiertas E S C A L A 1 125 Planta Tercer Piso
GSPublisherVersion 0.0.100.100 E S C A L A 1 125 Corte E S C A L A 1 125 Planta Primer Piso CARRERA SEPTIMA E S C A L A 1 125 Planta Cubiertas E S C A L A 1 125 Planta Tercer Piso E S C A L A 1 125 Planta Segundo Piso Calle2
PROYECTO INTERNACIONAL - Revista Mandu’a 32

El proyecto construye un frente de fachada que iguala las alturas promedio de los parapetos de las construcciones vecinas y la torre de 4 pisos se retrocede de la calle.

Vivienda digna en el centro de la ciudad.

7 Patios es un esfuerzo por llevar vivienda de bajo costo a un barrio central. Se trata de unidades viviendas que a modo de un tablero de ajedrez se acomodan en torno a patios ajardinados, orientadas todas al sol de la mañana y de la tarde. El espíritu de lo común, de lo compartido, propio de los inquilinatos descritos en el punto anterior, está presente en este proyecto. Los recorridos pretenden crear unos espacios comunes de gran vitalidad y riqueza espacial.

Revista Mandu’a - 33

PANEL RIPADO DE WPC

El panel ripado de WPC (madera plástica) es un producto innovador que la firma Equipa ofrece al mercado de la construcción. Se caracteriza por su forma de sección transversal ondulada, lo cual le confiere un aspecto acanalado.

El WPC es un material ecológico que combina polvo de madera, PVC y aditivos mejorados. Al utilizar este panel, estás contribuyendo al cuidado de nuestro planeta, ya que sus componentes son reciclados. Esto lo convierte en una opción sostenible y responsable con el medio ambiente.

Este panel ripado de WPC ofrece diversas aplicaciones en el campo de la construcción. Puede utilizarse en centros comerciales, hoteles, viviendas residenciales y en diferentes tipos de paredes. También es ideal para su instalación en paredes de fondo, techos y en áreas donde la humedad es constante.

Además, es altamente resistente a la humedad, lo cual lo hace ideal para espacios donde se requiera un material que soporte estas condiciones.

Otra ventaja importante es que el panel ripado de WPC no requiere pintura y es de bajo mantenimiento. Su apariencia es similar a la madera natural, lo que proporciona un aspecto cálido y estético a los espacios en los que se instala. Además, a diferencia de la madera, no se ve afectado por termitas ni por el moho, lo cual garantiza su durabilidad y resistencia a lo largo del tiempo.

La instalación y limpieza de este tipo de panel son sencillas. Su diseño facilita su montaje y desmontaje, lo que lo convierte en un material fácil de instalar. Además, su superficie lisa permite una limpieza rápida y eficiente, manteniendo así su aspecto original.

En resumen, el panel ripado de WPC es una solución versátil y ecoamigable para la construcción de paredes tanto interiores como exteriores.

Para más información visita la página web de Equipa SRL en www.equipa.com.py. O contactar a través de los números:

021 605333 - 0983 879000

021 332117 - 0981 338234.

La solución ecológica y versátil para tus proyectos.
INDUSTRIA & INNOVACIÓN - Revista Mandu’a 34

FERREX INAUGURA UNA INNOVADORA FERRETERÍA EN LUQUE

La firma FERREX, en su continuo plan de expansión, ha inaugurado una nueva ferretería en la Estación Los Jardines de la ciudad de Luque. Este local, estratégicamente ubicado en la principal ruta de acceso a la ciudad, ofrece amplios estacionamientos, pasillos espaciosos y estantes de exhibición accesibles, donde se pueden encontrar todo tipo de productos relacionados con el mejoramiento del hogar.

Con un catálogo amplio y diverso que cuenta con más de 20.000 productos de alta calidad y a precios competitivos, esta megatienda combina una variedad de artículos para el hogar, jardinería, decoración en lámparas, herramientas manuales y eléctricas, pinturas, plomería, electricidad, seguridad industrial, griferías, sanitarios, pisos, aditivos e insumos de recubrimientos de paredes, elementos de fijación y miles de productos más. Estos artículos provienen de diferentes partes del mundo, como Estados Unidos, Asia, Europa, Brasil, Argentina y de Paraguay mismo.

FERREX es una empresa paraguaya que inició sus actividades en 2015 con su primera tienda. Surgió de la unión comercial entre el grupo local AZETA y la aportación de capital de Corporación Favorita, uno de los mayores holdings de empresas en Ecuador. Con más de 70 años de experiencia y 53 empresas en su haber, Corporación Favorita abarca diversos sectores, como

supermercados, jugueterías, librerías, casas comerciales, ferreterías, industrias y empresas del rubro inmobiliario.

La nueva Mega Ferretería Estación Los Jardines se suma a la casa central en el Paseo Los Laureles y a las sucursales del Pinedo Shopping y Santísima Trinidad, manteniendo el mismo estilo innovador. Este nuevo concepto de ferretería sin mostrador no pretende competir con las ferreterías tradicionales, sino ofrecer comodidad. Cada local cuenta con grandes inversiones en equipamiento y un amplio stock de mercaderías, lo que también brinda nuevas oportunidades laborales.

La diversidad del portafolio de productos y servicios de FERREX también se enfoca en ofrecer ofertas específicas para ingenieros, arquitectos y profesionales de la construcción. La ferretería está abierta todos los días, incluyendo sábados, domingos y feriados, y ofrece diferentes formas de pago.

Con la apertura de esta nueva ferretería, FERREX reafirma su compromiso de proporcionar a sus clientes una experiencia de compra única y conveniente, donde puedan encontrar todo lo necesario para sus proyectos de mejoramiento del hogar y construcción.

La nueva sucursal sin mostrador ofrece variedad, comodidad y calidad.

LICITACIÓN PARA

CLIMATIZACIÓN Y VENTILACIÓN

Oferta de calidad con máximo estándar técnico.

El equipo de ingenieros técnicos encabezado por el Ing. Marcio Mendoza - Gerente de Ingeniería de BRITAM S.A. – desarrolló una propuesta para la licitación de la climatización y ventilación del edificio del Gran Hospital del Sur y el edificio Hospital Regional de Coronel Oviedo con el objetivo de presentar la mejor oferta económica con los más altos estándares técnicos. El resultado ha generado gran satisfacción y orgullo en Britam S.A, y la firma se encuentra lista para llevar a cabo el proyecto.

CLIMATIZACIÓN Y VENTILACIÓN DE ÁREAS ESPECIALIZADAS

Ambos Hospitales contarán con áreas para internados, terapia intensiva, urgencias, quirófanos y demás áreas de atención por especialidades. Britam S.A estará a cargo de la instalación del sistema de acondicionamiento de aire, así como también la ventilación y el tratamiento y filtrado del aire. Todos los sistemas pertenecen a la marca Midea, representada por Britam S.A, la cual es el mayor fabricante de aire acondicionado en el mundo.

CALIDAD, GARANTÍA Y MANTENIMIENTO

Britam S.A cuenta con una vasta experiencia en climatización de grandes áreas y ha participado en las obras más importantes del país. Su personal altamente capacitado en áreas de proyección, supervisión y ejecución de obras garantiza un trabajo de calidad. Además, ofrecen garantía, mantenimiento, soporte técnico y servicios especializados, y cuentan con un amplio stock de repuestos para una atención inmediata.

AVANCE Y CALIDAD DE LA OBRA

La obra se está desarrollando dentro de los plazos establecidos en el cronograma, lo cual refleja el excelente ritmo de ejecución. Asimismo, se hace hincapié en la alta calidad de los materiales utilizados para entregar a los usuarios de los hospitales el más alto confort y una excelente calidad de aire.

INDUSTRIA & INNOVACIÓN - Revista Mandu’a 36

CHAPAS DE POLICARBONATO

Transparencia, resistencia y protección.

El policarbonato, ofrecido por la firma ShoppinGlass, conserva sus características físicas en temperaturas desde -40 °C hasta 120 °C. Su resistencia al impacto es excepcional, lo que lo convierte en un material prácticamente irrompible. Por lo tanto, es altamente recomendable para todo tipo de acristalamiento. Además, es importante destacar que el policarbonato no propaga el fuego.

Todas las chapas de policarbonato de ShoppinGlass están provistas de protección contra los rayos ultravioleta en su cara exterior. Esto las hace resistentes a la degradación causada por la exposición solar.

Las aplicaciones de las chapas de policarbonato son amplias debido a su fácil instalación y capacidad de curvado en frío, así como a sus excelentes características de transmisión de luz en diferentes colores y espesores.

Entre las ventajas del policarbonato se destacan:

Transparencia: Esta característica las hace ideales para cubrir claraboyas o combinarse con otros materiales en diferentes tipos de tejados para permitir el paso de luz natural en espacios que carecen de una salida directa.

Practicidad: Son ligeras y apenas añaden peso a la estructura donde se instalan, lo que facilita su manipulación y colocación.

Resistencia y protección: A pesar de su apariencia liviana, estas chapas ofrecen una alta resistencia al impacto. Además, brindan protección contra los rayos UV.

En cuanto al mantenimiento, las chapas de policarbonato requieren mínimo cuidado. En condiciones normales, la lluvia es suficiente para mantenerlas limpias. En caso necesario, se pueden limpiar con agua y jabón no abrasivo.

En resumen, las chapas de policarbonato ofrecidas por ShoppinGlass son una solución versátil y confiable, brindando transparencia, resistencia, protección UV y facilidad de instalación.

Revista Mandu’a - 37

ADHESIVOS Y SELLADORES BRASCOLA

Productos de calidad internacional.

PLa marca brasileña BRASCOLA, que la firma Casarino ofrece al mercado paraguayo, se destaca con productos adhesivos: PU40 MULTIUSO, PU UNIVERSAL y BRASCOFLEX ULTRAFIX.

El PU40 MULTIUSO es un adhesivo y sellador polímero híbrido de consistencia pastosa y propiedades antiescurrimiento. Su principal fortaleza radica en su excelente capacidad de adherencia a diversos materiales, incluso en superficies húmedas. Esto lo convierte en una opción ideal para aplicaciones en la construcción civil. Además, el PU40 MULTIUSO muestra una gran adherencia al hormigón, cerámica, plásticos rígidos (excepto PP, PE y Nylon), vidrio y madera. Este adhesivo cura a temperatura y humedad ambiente. Disponible en colores negro, blanco y gris, ofrece opciones estéticas para diferentes aplicaciones.

El PU UNIVERSAL es otro adhesivo sellante desarrollado por BRASCOLA, especialmente indicado para reparaciones tanto en entornos domésticos como profesionales. Su principal característica es su capacidad de adherirse a superficies húmedas.

Una vez curado, este adhesivo se puede pintar, lo que le permite varias opciones de acabado. Al igual que el PU40 MULTIUSO, el PU UNIVERSAL es seguro y amigable con el medio ambiente. Se recomienda su uso en hormigón, madera, metales, vidrio y plásticos rígidos, con la excepción del PP, PE y Nylon.

Por último, el BRASCOFLEX ULTRAFIX es un adhesivo sellante universal de montaje extremadamente potente y permanentemente flexible. Se destaca por su alta adherencia inicial, lo que lo convierte en una opción confiable para pegar elementos sin la necesidad de utilizar abrazaderas adicionales. Se recomienda especialmente para pegar zócalos, espejos, box de baños, hormigón, granito, mármol, cerámica, yeso, porcelana, vidrio, madera, MDF, marcos de puertas y ventanas, acero, aluminio y acero inoxidable.

En resumen, los productos adhesivos de la marca BRASCOLA ofrecidos por Casarino han demostrado ser soluciones confiables y versátiles para una amplia gama de aplicaciones. Estos adhesivos garantizan una excelente adherencia a diferentes materiales. Si estás buscando adhesivos de calidad, los productos BRASCOLA son una elección confiable y eficiente.

INDUSTRIA & INNOVACIÓN - Revista Mandu’a 38

TECHOS ACÚSTICOS DE FIBRA MINERAL

La Solución sostenible y duradera de Eureka Import.

La firma Eureka Import se complace en presentar los techos acústicos DUNE de Armstrong Ceiling. Estos plafones, que forman parte de la cartera SUSTAIN, cumplen con los estándares de sustentabilidad más estrictos de la actualidad, lo que los convierte en una elección eco-amigable.

Una de las características más destacadas de los techos acústicos de fibra mineral es su origen biológico, respaldado por una certificación del USDA.

La instalación de los techos acústicos DUNE también es un proceso eficiente. Su aspecto no direccional reduce el desperdicio y el tiempo necesario para su instalación, lo que permite una mayor productividad en el lugar de trabajo.

En cuanto a las especificaciones técnicas, estos techos están fabricados con fibra mineral, lo que les confiere una textura fina y un acabado de superficie pintado con látex de alta calidad.

En términos de rendimiento acústico, los techos acústicos de fibra mineral ofrecen reducción de sonido, lo que contribuye a crear espacios más tranquilos y confortables.

Además, estos techos cuentan con una clasificación de resistencia al fuego Clase A (UL), lo que garantiza la seguridad en caso de incendio. También tienen una alta reflectancia lumínica, lo que mejora la iluminación general de la habitación.

Con su resistencia al pandeo y a la humedad, los techos acústicos de fibra mineral cumplen con los estándares de durabilidad y resistencia requeridos en diversos entornos. Además, están diseñados con la tecnología BioBlock, que ayuda a prevenir el crecimiento de bacterias y hongos en la superficie de los techos, contribuyendo así a un ambiente más higiénico y saludable.

En resumen, los techos acústicos de fibra mineral de Eureka Import ofrecen una solución sostenible y duradera para cualquier espacio. Representando la elección perfecta para aquellos que buscan combinar calidad, estética y responsabilidad ambiental.

Resistencias Mecánicas a Partir de 2 Horas

Fácil Aplicación Alta Resistencia Mecánica Retracción Compensada Resistencia al Ciclo Hielo/Deshielo. Liberación Para Cuadros en tan solo 24 Horas.

Bautech RAPFLEXPLUS Gral. Caballero 355 c/Padre Fidel Maiz Fernando de la Mora, Paraguay 0985 777 917 comercial@eureka.com.py +595 21 524 087
Componente A Componente B Mortero de Reparaciones Rápidas Revista Mandu’a - 39

MONITOREO ESTRUCTURAL EN INGENIERÍA CIVIL

Nos complace invitar a nuestros lectores a una fascinante charla que se llevará a cabo el martes 25 de julio a las 17:00 hs en el Salón Auditorio de la FIUNA en el Campus San Lorenzo.

El tema de la charla será el Monitoreo de la Salud Estructural (SHM), una práctica esencial para el control y seguimiento constante de la integridad y rendimiento de diversas estructuras de ingeniería. Estas estructuras, como puentes, presas y túneles, son de vital importancia debido a su carácter crítico para la seguridad y a menudo implican costos significativos.

Además, también se abordará la relevancia del monitoreo estructural en estructuras convencionales de hormigón armado, donde el control de parámetros como deformación, corrosión y asentamiento resulta fundamental.

El disertante de esta charla será el destacado Ingeniero Álvaro Gavilán Rojas, actual Doctorando en Inria (Instituto Nacional de Ciencia y Tecnología Digital) en Rennes, Francia y la Universidad de Sherbrooke en Canadá.

El Sr. Gavilán Rojas ha realizado importantes contribuciones en el campo del monitoreo estructural y está llevando a cabo su tesis doctoral sobre el tema “Monitoreo estructural de estructuras periódicas basado en ondas guiadas”. Su experiencia y conocimiento en el área aseguran una presentación enriquecedora y de alto nivel.

Durante la charla, se explorarán los avances tecnológicos más recientes en el campo del monitoreo estructural, incluyendo el uso de una red inalámbrica de sensores en combinación con el Internet de las cosas (IoT). Estos avances permiten un control remoto en tiempo real y la activación de sistemas automáticos de alerta, lo que garantiza una solución viable y confiable para el control de la seguridad estructural en obras de ingeniería civil.

No te pierdas esta oportunidad de actualizarte sobre las últimas tendencias en el campo del Monitoreo Estructural en Ingeniería Civil. El evento tendrá lugar el martes 25 de julio a las 17:00 hs en el Salón Auditorio de la FIUNA en el Campus San Lorenzo.

Charla con el Ing. Alvaro Gavilán Rojas.
INDUSTRIA & INNOVACIÓN - Revista Mandu’a 40
Mano de Obra Costeo de Obra Proyectos Modelo Mandu’a Bolsa de subcontratistas Cálculo de honorarios Mandu’ara 42 48 63 71 74 75 GUÍAS MANDU’A
GUÍAS Revista Mandu’a - 41
www.mandua.com.py

MANO DE OBRA

MANO DE OBRA - Revista Mandu’a 42
Trabajos preliminares Demoliciones De mampostería con recuperación 1 De 0,45 m m² 32.000 2 De 0,30 m m² 24.000 3 De 0,15 m m² 18.000 De mampostería sin recuperación 1 De 0,45 m m² 20.000 2 De 0,30 m m² 17.000 3 De 0,15 m m² 11.000 Demoliciones varias 1 De techo de teja con recuperación m² 26.000 2 De techo de teja sin recuperación m² 15.000 3 De techo de chapa m² 9.000 4 De techo bovedilla m² 30.000 5 De cielorraso armado (desmontar) m² 21.000 6 De losa de Hº Aº m² 47.000 7 De piso/revoque/revestimiento m² 10.000 8 De contrapiso (cuando no hay piso) m² 5.000 9 Sacar zócalo m 2.000 10 Sacar azulejos m² 8.000 11 Sacar artefactos sanitarios un 39.000 12 Sacar marcos y balancines un 34.400 13 Sacar mamparas (Durlock, Duratec, etc.) m² 26.000 14 Sacar Aire Acondicionado un 85.000 14 Desmontar electricidad (boca) un 5.000 15 Abrir vano en mampostería de 0,15 m m² 26.000 16 Abrir vano en mampostería de 0,30 m m² 39.000 Preparacion de obra 1 Limpieza de terreno (no incluye corte ni destronque de árboles) m² 4000 Destronque de árboles 1 Árbol chico un 110.000 2 Árbol mediano un 352.000 3 Árbol grande un 528.000 4 Árbol extragrande un 726.000 Casilla de obrador 1 Casilla habitable, baños y vestuarios m² 198.000 2 Barraca para depósito m² 84.000 Vallados, cercos, alambrados 1 Vallado de obra (armado) m² 31.000 2 Vallado de obra (desarmado) m² 11.000 3 Tendido de alambre de púas (5 hilos) m 11.000 4 Colocación poste de hormigón armado un 17.000 5 Colocación ángulo de metal cantonera m 9.000 Otros trabajos 1 Desmonte manual de suelo blando m³ 39.000 2 Desmonte manual de suelo duro m³ 61.000 3 Destape de terreno h=20 cm m² 14.000 4 Destape de suelo vegetal m² 7.000 5 Relleno y compactación manual m³ 44.000 6 Relleno y nivelación manual m³ 34.000 7 Replanteo y marcación m² 3.000 8 Retiro de tierra o acarreo hasta 50 m m³ 39.000 9 Carga de contenedor un 160.000 10 Carga de camión un 213.000 11 Bandeja de protección, (armar) m² 30.000 12 Montaje de torre para montacargas m 79.000 13 Desmontaje torre para montacargas m 45.000 Excavaciones (sin acarreo) 1 Para cimiento m³ 39.000 2 Para zapata m³ 42.600 3 Para pozo ciego m³ 55.000 4 Para tubulones m³ 44.000 5 Excavaciones varias suelo blando m³ 39.000 6 Excavaciones varias suelo duro m³ 55.000 7 Excav. p/ submuración m³ 67.000 Estructuras de Hº armado Fundación 1 Zapata m³ 650.000 2 Viga de fundación 20x40 cm m³ 750.000 3 Tubulones Hº Ciclópeo con excavación m³ 360.000 4 Tubulones Hº Aº con excavación m³ 5 Muro Pantalla de Hº Aº m³ 950.000 Pilotes 1 Pilote Ø 40 cm, m 61.000 2 Pilotín manual Ø 20 cm, m 31.000 3 Desmochado pilote Ø 40 cm x unidad un 132.000 4 Cabezales de pilotes m³ 627.000 PILARES (sueltos, cuando no hay losa) 1 Pilar hasta 30x30 cm m 100.000 2 Pilar x m3 m³ 950.000 3 Pilar visto/viga vista m³ 913.000 4 Pilar suelto x m3, altura hasta 6,00 m m³ 950.000 Vigas 1 Viga hasta 30x50 m 110.000 2 Viga hasta 30x50 m³ 850.000
MANO DE OBRA Revista Mandu’a - 43 Losas 1 Losa sola m³ 800.000 2 Losa + columna + viga m³ 800.000 3 Losarap montaje y hormigonado m² 80.000 4 Pre Losa montaje y hormigonado m² 30.000 Cadenas 1 Cadena 13x30 PB m 77.000 2 Cadena 20x40 PB m 79.000 ESCALERAS 1 Tramo compensado a=1.20 m c/ escalón un 125.000 2 Tramo recto a= 1.20 m cada escalón, un 96.000 PISOS 1 Piso rodillado espesor 12 cm m² 35.000 2 Piso rodillado espesor 10 cm m² 32.000 3 Piso rodillado espesor 08 cm m² 30.000 4 Piso allanado espesor 15 cm (Incluye Alquiler máquina) m² 85.000 5 Piso allanado espesor 12 cm (Incluye Alquiler máquina) m² 55.000 6 Piso allanado espesor 10 cm (Incluye Alquiler máquina) m² 46.000 7 Piso allanado espesor 08 cm (Incluye Alquiler máquina) m² 41.000 Fundaciones 1 Cimiento PBC sin excavación m³ 94.000 2 Hormigón ciclópeo sin excavación m³ 187.000 Mamposteria y muros Nivelación con ladrillo común 1 De 0,15 m armada m² 39.000 2 De 0,30 m m² 46.000 3 De 0,30 m armada m² 53.000 4 De 0,45 m m² 57.000 Panderete 1 De 0,07 - 0,10 m m² 21.000 Elevación 0,15 m con ladrillo común 1 De 0,15 m m² 30.000 2 De 0,15 m armada m² 34.000 3 De 0,15 m,1 cara vista m² 39.000 4 De 0,15 m,1 cara vista y lijada m² 46.000 5 De 0,15 m,1 cara vista con ladrillo laminado m² 48.000 Elevación 0,20 m con ladrillo común 1 De 0,20 m m² 36.000 2 De 0,20 m,1 cara vista y lijada m² 44.000 3 De 0,20 m,1 cara vista con ladrillo laminado m² 44.000 Elevación 0,30 m con ladrillo común 1 De 0,30 m m² 46.000 2 De 0,30 m armada m² 55.000 3 De 0,30 m,1 cara vista m² 60.000 4 De 0,30 m,1 cara vista y lijada m² 54.300 5 De 0,30 m,1 cara vista con ladrillo laminado m² 61.000 6 De 0,30 m, 2 caras vistas con ladrillo laminado m² 69.000 Elevación 0,45 m con ladrillo común 1 De 0,45 m m² 56.000 2 De 0,45 m de submuración m² 64.000 Sardinel 1 Sardinel con ladrillo común m 46.000 2 Sardinel con ladrillo laminado m 46.000 Pilar 1 Pilar 30x30 cm, ladrillo común m 33.000 2 Pilar 30x30 cm, ladrillo común visto m 39.000 3 Pilar 30x30 cm, ladrillo laminado visto m 39.000 4 Pilar Ø 30 cm, premoldeado c/ armadura m 60.000 5 Pilar 40x40 cm, ladrillo común m 39.000 5 Pilar 40x40 cm, Visto con ladrillo común m 53.000 Elevación con piedra 1 Muro de piedra 0,40 m m² 72.800 2 Muro de piedra 0,40 m 1 cara vista m² 85.000 3 Muro de piedra m³ 131.000 4 Muro de contención 0,50 m m³ 146.000 Convoco 1 Muro de ladrillo convocó 2 caras vistas m² 33.000 Elevación con ladrillos huecos 1 De 0,10 m m² 22.000 2 De 0,15 m m² 24.000 3 De 0,15 m, 1 cara vista m² 28.000 4 De 0,20 m m² 34.000 5 De 0,20 m, 1 cara vista m² 36.000 6 De 0,24 m m² 37.000 7 De 0,30 m m² 39.000 8 De 0,30 m, 1 cara vista m² 41.000 Elevación estructural con ladrillo portante 1 De 0,15 m m² 64.000 2 De 0,20 m m² 70.000 3 De 0,30 m m² 83.000 Elevación con bloques de hormigón 1 De 0,10 m m² 26.000 2 De 0,15 m m² 26.000 3 De 0,20 m m² 33.000 4 De 0,30 m m² 53.000 5 De 0,40 m m² 61.000 Servicios para mampostería 1 Lijada de mampostería para visto m² 3.000 2 Lijada de pilar o capitel para visto m² 3.036 3 Colocación de marco para puerta o ventana un 75.600 Aislación hidrófuga Horizontal sin asfalto (1:3), sin alisada 1 De 0,15 m m 5.000 2 De 0,30 m m 7.000 Horizontal en “U” con asfalto 1 De 0,15 m m 10.000 2 De 0,30 m m 15.000 Aislación Hidrófuga 1 De losa/techo plano m² 69.000 2 Rebaje de losa p/ baño o cocina m² 30.000 3 Pintura asfáltica + trama sobre base m² 16.000 4 Asfalkote + velo sobre base m² 16.000 5 Membrana asfáltica m² 15.000

Dinteles

6 De ductos m 21.000

7 De vigas de Hº Aº de 15x20 ó 20x30 cm (incluye azotada + aristas) m 37.000

8 De vigas de Hº Aº de 20x40 ó 30x50 cm (incluye

MANO DE OBRA - Revista Mandu’a 44
1 En mampostería c/ 2 varillas m 11.000 2 Sobre aberturas c/4 varillas m 15.000 3 Colocación de dintel prefabricado m 15.000 4 Dintel zuncho de bloque m 31.000 5 Colocación de perfil de hierro m 15.000 Contrapisos (no incluye alisada) 1 Apisonado de Hº cascotes 8 cm m² 15.000 2 Apisonado de Hº cascotes 10 cm m² 18.000 3 Apisonado de Hº cascotes 10 cm, c/ pendiente m² 21.000 4 Apisonado de Hº cascotes 20 cm m² 26.000 5 Apisonado sobre losa Hº Aº e=7cm m² 14.000 6 Apisonado sobre losa Hº Aº e=6cm m² 13.000 7 Apisonado de Hº cascotes con varilla m² 21.000 8 Hº Aº e=7cm m² 33.000
Revoque de paredes 1 Común, fratachado o peinado m² 22.000 2 Común, fratachado y filtrado m² 22.000 3 Común, fratachado y filtrado; h=+5.00 m m² 30.000 4 Común, fratachado o peinado; h=+5.00 m m² 30.000 5 Fino o filtrado sobre revoque peinado existente m² 11.000 6 A 2 capas (grueso + fino) m² 30.000 7 A la lona o bolseado m² 13.000 8 Salpicado m² 22.000 9 Base para revestidos m² 22.000 Azotadas hidrófugas para adherencia: 10 Espesor = 1 cm x ladrillo m² 10.000 11 Espesor = 0,5 cm x ladrillo m² 7.000 12 Espesor = 0,5 cm x ladrillo en h=+ 5,00 m m² 10.000 13 Espesor = 1 cm x ladrillo en h=+ 5,00 m exterior m² 13.000 14 Azotada p/ impermeable m² 10.000 Revoque de cielorrasos 1 Azotada para adherencia por losa de Hº Aº, 0,5 cm m² 8.000 2 A 1 capa fratazado y filtrado sin azotada m² 33.000 3 A 1 capa fratazado y filtrado con azotada m² 42.000 4 A 2 capas (grueso + fino),con azotada m² 46.000 5 A 2 capas sin azotada m² 42.000 6 Azotada o base planchada de metal desplegado m² 13.000 Revoque de vigas/pilares/aristas 1 Revoque de arista o canto m 10.000 2 Revoque de babetas o buñas m 15.000 3 De mochetas con 2 aristas (0,15x0,15) m 21.000 4 De goterón en alero m 24.000 5 De losa de Hº Aº m² 35.000
Revoques
azotada + aristas) por cara m 46.000 9 Revoque de pilares 4 caras y aristas m 39.000 10 Revoque de pilares 3 caras y aristas m 33.000 Techos 1 De teja española con tejuelón; incluye: maderamen, aislante, caballete y bocateja m² 85.000 2 Idem anterior con limatón m² 92.000 3 De teja española con tejuelita incluye: maderamen, aislante, caballete y bocateja m² 79.000 4 De teja española sobre machimbre: maderamen, aislante, caballete y bocateja m² 85.000 5 De teja francesa sobre machimbre m² 79.000 6 De teja francesa vana m² 53.000 7 De chapa galv. s/ estruc. de tirantes 2x6” m² 26.000 8 De chapa de fibrocemento acanalada m² 26.000 9 De chapa de fibrocemento acanalada autoportante m² 39.000 10 Colocación de machimbre sobre tirantes m² 30.000 11 Bovedilla c/ tirantes 2x6”, tejuelitas y hormigón pobre m² 85.000 12 De paja m² 46.000 13 Montaje de maderamen c/ tirantes 2x5” o 2x6” cepillados m² 33.000 14 Montaje de vigas m 47.000 15 Techo metálico (tinglado), preparación y montaje m² 39.000 16 Cabriadas de madera, preparación y montaje m 172.000 17 Cabriadas de madera, y planchuelas preparación y montaje m 238.000 Cielorrasos (incluye armazón de madera) 1 De metal desplegado, sin revoque m² 37.000 2 De machimbre de 1/2 x 3” m² 39.000 3 De machimbre de 1 x 3” m² 44.000 4 Cornisa ml 3.000 Revestidos 1 De azulejo m² 32.000 2 De azulejo, 10x10 cm m² 32.000 3 De azulejo (Listel o faja) m 13.000 4 De ladrillejo m² 45.000 5 De ladrillejo (ladrillo cortado) m² 72.000 6 De ladrillejo h= +5m m² 49.000 7 Piedra lajón a escuadra m² 70.000 8 Piedra roja rompecabeza m² 37.000 9 Piedra blanca rompecabeza m² 37.000 10 Piedra arenisca blanca o roja pulida en PB m² 67.000 11 Piedra arenisca blanca o roja pulida en PA m² 72.000 12 Piedra abuchada m² 60.000 13 Piedra laja aserrada m² 32.000 14 Piedra Wasmosy m 100.000 15 Empapelado m² 24.000 16 Machimbre m² 42.000 Aislación vertical 1 Azotada hidrófuga, pintura asfáltica m² 39.000 2 Pintura asfáltica, trama m² 23.000 3 Azotada hidrófuga, pintura asfáltica m² 23.000
MANO DE OBRA Revista Mandu’a - 45
Sobre carpeta existente 1 Cerámica esmaltada P I 5 m² 34.000 2 Cerámica esmaltada en baño m² 31.000 3 Cerámica esmaltada en escalón m 39.000 4 Cerámica porcellanato m² 37.000 5 Piso calcareo m² 26.000 Carpeta o base 1 Para alfombra o cerámica e=2cm m² 18.000 2 Alisada de cemento e=3cm m² 24.000 3 Para alfombra o cerámica en escalones un 18.000 4 Regleado rústico m² s/c 5 Alisada sobre contrapiso m² 7.500 6 Banquina p/ placard (contrapiso + carpeta hidrófuga) m 33.000 7 Baldosa calcárea o canto rodado m² 26.000 8 Mosaico granítico m² 26.000 9 Pulido de mosaico granítico m² 26.000 10 Layota nacional o esmaltada m² 26.000 11 Veredita calcárea m² 26.000 12 Ladrillo común m² 21.000 13 Tejuelita m² 22.000 14 Baldosones de hormigón, 40x40 cm m² 26.000 15 Piso de HºAº rodillado de 12 cm m² 36.000 16 Plancha de granito o mármol m² 44.000 17 Plancha de mosaico granitico m² 39.000 18 Parquet a bastón roto o tipo colonial clavado m² 53.000 19 Parquet de lapacho tarugado m² 59.000 20 Parquet de machimbre curupa’y, 1 x 3” pulido y lustrado m² 67.000 21 Piso de madera rasqueteado y encerado m² 60.000 22 Alfombra multipiso m² 18.000 20 Piso vinílico 30x30 m² 23.000 21 Piedra losa rompecabeza con junta tomada m² 39.000 22 Piedra losa rectangular m² 39.000 23 Piedra losa 30x30, 30x40 y 40x40 m² 39.000 24 Piedra ardosia m² 39.000 25 Piedra laja m² 39.000 26 Piedra rústica roja Misiones m² 39.000 27 Piedra triturada esparcida a mano m² 7.000 28 Adoquín de piedra m² 42.000 Varios 1 Colocación tapa metálica en cámara de inspección un 44.000 2 Colocación rejilla en cámara de inspección un 44.000 Empedrado 1 Empedrado, h=0,20 m sin cordón m² 17.000 2 Empedrado, h=0,40 m sin cordón m² 28.000 3 Colocación de cordón Hº Prefabricado m 13.000 Agua corriente 1 Caño PVC 1” (incluye excavación, colocación y protección) m 16.000 2 Idem anterior de 3/4 m 13.000 3 Idem anterior de ½ m 8.000 4 Instalación de canilla de patio, + 5 ml de cañería un 64.000 Instalación agua fría 1 Para baño completo un 412.000 2 Para baño de servicio un 286.000 3 Para baño social un 159.000 Zócalos 1 Cemento alisado m 8.000 2 Calcáreo o granítico m 13.000 3 Cerámico m 13.000 4 Layota m 13.000 5 Mármol o granito natural m 26.000 6 Parquet m 13.000 7 Alfombra m 13.000
Cloacal 1 Caño PVC 40 mm m 14.000 2 Caño PVC 50 mm m 14.000 3 Caño PVC 100 mm m 23.000 4 Caño PVC 150 mm m 31.000 5 Caño material vidriado 4” m 26.000 6 Caño hº centrifugado 30 cm m 26.000 7 Caño hº centrifugado 40 cm m 33.000 8 Caño hº centrifugado 50 cm m 34.000 9 Caño hº centrifugado 60 cm m 45.000 10 Caño hº armado 80 cm m 70.000 11 Caño hº armado 100 cm m 83.000 12 Registro 20X20 cm un 87.000 13 Registro 30X30 cm un 113.000 14 Registro 40X40 cm un 120.000 15 Registro 50x50 cm un 146.000 16 Registro 60x60 cm un 156.600 17 Rejilla corrida 0,20 m m 45.000 18 Rejilla de piso sifonada de 15x15 cm un 69.000 19 Rejilla de patio 30x30 cm un 66.000 20 Boca desague abierta 30x30 cm un 66.000 21 Boca desague abierta 40x40 cm un 66.000 22 Registro desengrasador con tapa de metal un 121.000 23 Cámara de drenaje 60x60 cm un 132.000 24 Cámara séptica (1,00x1,60x1,20 m) con excavación un 990.500 25 Pozo absorvente (Ø: 1.50 m x altura 3,00 m) con excavación un 1.650.000 Desagües para baño 1 Baño completo standard un 317.000 2 Baño completo con bañera un 380.000 3 Baño de servicio un 222.000 4 Baño social un 159.000 5 Para pileta de lavar y lavarropas un 159.000 6 Para pileta de cocina (incluye desengrasador y caja sifonada) un 126.000
Pisos
Desagües

4 Para pileta de lavar

Colocaciones de:

MANO DE OBRA - Revista Mandu’a 46 1 Monofásica de 4 a 10 mm m 3.000 2 Trifásica de 4 a 10 mm m 7.000 3 Trifásica de 16 a 25 mm m 9.000 Electroductos embutidos en mampostería sin cableado 1 De 5/8” m 3.000 2 De 1/2” m 3.000 3 De 3/4” m 3.000 4 De 1” m 3.000 Lámparas y tomas de corriente (Embutidos en mampostería hasta 5m del tablero) 1 Una lampara con su interruptor 1 boca 2 Una lámp. c/ 2 llaves de comb. de escalera 2 bocas 3 Una Toma corriente 1 bocas 4 Por llave de 4 vías o intermedia adicional 1 boca Circuitos independientes 1 Circuito para aire acondicionado sin montaje de aparato ni abertura de mampostería hasta 5 m del tablero (mismo que recorran cañerías con otros circuitos) 4 bocas 2 Circuito p/ calefón o ducha eléctrica idem anterior 4 bocas 3 Circuito monof. p/ motobomba c/ cable de 4mm hasta 5 m del tablero 4 bocas Colocaciones 1 Aire acondicionado un 230.000 2 Ventilador de techo un 95.000 3 Tubo fluorecente doble un 16.200 4 Apliques y arañas un 16.200 Carpinteria de aluminio Colocación de premarco de aluminio: 1 Chico 1 m² un 64.000 2 Mediano 3m² un 92.000 3 Grande 4 m² un 125.000 4 Extra grande 5 m² un 150.000 Carpintería de madera Colocaciones de: 1 De marco mayor de 1,00 m un 111.000 2 De marco menor de 1,00 m un 83.000 3 Puerta placa un 92.000 4 Puerta persiana o vidriera chica hoja 46.000 5 Puerta tablero un 96.000 6 Puerta tablero principal incluye hoja, manijón y visor un 128.000 7 Ventana persiana o vidriera 0,65 x 1,00 mt hoja 36.000 8 Ventana balancín un 40.000 9 Contramarco m 10.000 10 Pergolado m² 83.000
metálica
Carpintería
1 De marco de chapa doblada de 0,80x2,10 m un 66.000 2 De marco de chapa doblada de 1,50x1,20 m un 88.000 3 De marco de chapa doblada con relleno un 88.000 4 De marco metálico - ángulo un 66.000
un 191.000 5 Para pileta de cocina un 126.000 Instalación agua caliente y fría 1 Para pileta de cocina un 254.000 2 Para baño completo un 697.000 Colocación de artefactos Sanitarios y Grifería 1 Baño completo 115,500 x 4 un 462.000 2 Baño de servicio 100.500 x 2 un 234.000 3 Baño social 117.000 x 2 un 234.000 4 Pileta de cocina un 122.000 5 Pileta de lavar un 122.000 6 Bañera común un 314.000 7 Bañera hidromasaje un 524.000 8 Accesorios de baño (jabonera, percha, etc) un 22.000 9 Colocación de calefón un 175.000 9 Colocación de ducha eléctrica un 33.000 Instalación eléctrica 1 Boca de luz un 53.000 Trabajo de Albañilería 1 Pilar de mampostería para medidor de 0,45x0,45x1,70 m no incluye cimiento ni nivelación un 480.000 2 Registro eléctrico c/ drenaje y tapa de 30x30x40 cm un 105.000 3 Idem anterior 40x40x70 cm un 131.000 4 Colocación caja aire acondicionado un 72.000 Puesto de medición provisorio 1 1 Monofásico 12 bocas 2 Trifásico 14 bocas Puesto de medición definitivo 2 1 Monofásico 14 bocas 2 Trifásico hasta 3A 18 bocas Tablero principal o seccional 1 Colocación de caja embutida en mampostería hasta 40x50 cm 3 bocas 2 Disyuntor TM de corte principal o seccional o de circuito unipolar 2 bocas 3 Idem anterior tripolar 3 bocas 4 Instalación de interruptor diferencial 6 bocas Líneas subterráneas (Incluye excavación a una profundidad de 0,50 m en tierra firme y sin piedra, instalación de eléctroducto con protección mecánica y cableado) 1 Monofásica de 4 a 10 mm m 7.000 2 Trifásica de 4 a 10 mm m 13.000 3 Trifásica de 16 a 25 mm m 21.000 Línea embutida en mampostería (incluye colocación de electroducto y cableado) 1 Monofásica de 4 mm m 7.000 2 Monofásica de 6 mm m 7.000 3 Monofásica de 10 mm m 8.000 4 Trifásica de 4 a 10 mm m 11.000 5 Trifásica de 16 a 25 mm m 13.000 Líneas aéreas

es de Gs 2.550.307, mientras que el jornal es de Gs 98.089 y rige desde el 1 de julio de 2022.

MANO DE OBRA Revista Mandu’a - 47 Salario Jornal Albañiles y Carpinteros, Encofradores y otros Oficial de 1ra Oficial de 2da Calero 2.982.710 2.904.326 2.904.326 114.720 111.705 111.705 Edificaciones y Obras Peones 2.575.819 99.070 Pintores Operarios 2.575.819 99.070 Asfalto y Pavimentación 2.550.307 98.089 Fábricas de Muebles 2.575.819 99.070 Ladrillerías y Mat. de Construcción 2.550.307 98.089 Marmolerías 2.588.670 99.564 Fábricas de Baldosas y Mosaicos Operarios Peones 2.588.670 2.550.307 99.564 98.089 Hojalaterías 2.550.307 98.089 Empleados de Comercio 2.550.307 98.089 Peones en gral. 2.550.307 98.089
de Sueldos y Jornales
sector privado
9 Balancín chico 40x40 cm sin revoque un 44.000 10 Balancín mediano 1,00x1,50 m sin revoque un 77.000 11 Balancín grande 2,00x1,80 m sin revoque un 98.000 12 Portón cochera de 3,00x1,50 m un 185.000 13 Baranda de escaleras m 23.000 14 Pasamanos,} m 18.000 15 Escalera metálica m 61.000 16 Puerta metálica corta fuego un 175.000 17 Puerta metálica mosquitera un 106.000 18 Tinglado, preparación y montaje m² 55.000 Pintura Pintura de pared 1 A la cal blanca m² 9.000 2 A la cal color m² 11.000 3 Al látex interior/exterior con enduido m² 24.000 4 Al látex interior/exterior sin enduido m² 17.000 5 Al látex exterior con enduido en altura m² 29.000 6 Al látex exterior sin enduido en altura m² 19.000 7 Al esmalte sintético interior/ exterior con enduido m² 23.000 Repintado de pared 1 Al látex interior o exterior m² 9.000 2 Al látex interior o exterior altura + de 5m m² 11.000 Enduído 1 De pared m² 12.000 2 De abertura de madera m² 15.000 Techo 1 Tejuelita a la cal y maderamem c/ esmalte sintético m² 17.000 2 Tejuelón y maderamem barnizado m² 17.000 3 Tejuelita o tejuelón barnizado y maderamem con esmalte sintético m² 17.000 4 Pintura de alero de 0,60 m m 20.000 Cielorrasos 1 Al látex con fijador sin enduido m² 13.000 2 Al látex con enduido m² 27.000 3 A la cal m² 10.000 4 Barnizado de machimbre m² 15.000 Aberturas de madera 1 Marco y hoja con esmalte sintético m² 26.000 2 Marco y hoja con barniz m² 20.000 Aberturas metálicas 1 Marco y hoja c/ cromato y esmalte sintético m² 17.000 2 Rejas, barandas y balancines c/ cromato y esmalte sint m² 24.000 3 Tejido de metal m² 17.000 Canaletas y bajadas 1 Con base p/ galvanizado
esmalte sintético m 10.000 Ladrillo visto, hormigón y piedra 1 Limpieza, curado y siliconado o barnizado m² 15.000 2 Limpieza, curado y siliconado o barnizado en altura m² 17.000 3 Limpieza, curado y pintura a la cal m² 12.000 4 Pintura texturada m² 24.000 Pintura en silleta 1 Hasta 30 m de altura m² 22.000 2 Desde 30 a 70 m de altura m² 35.000 5 De guías metálicas y taparrollo p/ cortina de enrollar un 264.000 6 De reja de hierro entre marcos un 44.000 7 De reja de hierro aplicada a la pared un 61.000 8 Portón de hierro 1,00x1,50 m un 106.000 Jornal de mercado 1 Capataz - día 208,800 hora 31.375 2 Oficial - día 167,000 hora 26.000 3 Medio oficial - día 135,700 hora 20.875 4 Ayudante - día 94,000 hora 14.875 Honorario técnicos 01 Dibujante hora 28.000 02 Dibujante por lámina un 418.000 03 Calculista m2 20.000 04 Cómputo métrico m2 4.000 05 Presupuesto de obra m2 8.000 06 Copias Plotter por lámina un 11.000
Reglamento
En cumplimiento del decreto N* 7270, el Ministerio de Trabajo aumentó el salario mínimo del sector privado en un 11,4%. El nuevo salario mínimo del
y

COSTEO DE OBRA

TRABAJOS PRELIMINARES

de Obra (de 1.40x2.80m con marco metálico y lona. A retirar y sin colocación)

ESTRUCTURAS DE HORMIGON ARMADO

Viga fck=21MPa

COSTEO
DE OBRA
Mano de obra, m3 1 800.000 800.000 Total por: m3 2.347.450 Losa fck=21MPa Cemento tipo 1, kg 350 1.200 420.000 Arena lavada, m3 0,7 65.000 45.500 Piedra triturada de IV, tn 1,3 120.000 156.000 Varilla conformada, kg 80 10.000 800.000 Alambre negro de atar, kg 0,4 18.000 7.200 Clavo 1" a 7", kg 0,3 18.000 5.400 REOPLAST kg 4 19.850 79.400 Mano de obra, m3 1 800.000 800.000 Total por: m3 2.313.500 Encadenado Inferior 13x20 en PB Cemento tipo 1, kg 10 1.200 12.000 Arena lavada, m3 0,02 65.000 1.300 Piedra triturada de IV, tn 0,04 120.000 4.800 Varilla conformada, kg 3,2 10.000 32.000 Alambre negro de atar, kg 0,1 18.000 1.800 Clavo 1" a 7", kg 0,1 18.000 1.800 Mano de obra, 1 30.000 Total por: ml 83.700 Encadenado 13x30 cm Cemento tipo 1, kg 12 1.200 14.400 Arena lavada, m3 0,02 65.000 1.300 Piedra triturada de IV, tn 0,05 120.000 6.000 Varilla conformada, kg 3,6 10.000 36.000 Alambre negro de atar, kg 0,1 18.000 1.800 Clavo 1" a 7", kg 0,1 18.000 1.800 Mano de obra, 1 35.700 Total por: ml 98.800 Idem anterior 30x30 cm ml 172.500 Escalera de HºAº (15 escalones de 0.30x1.10 y 1 descanso) Cemento tipo 1, kg 350 1.200 420.000 Arena lavada, m3 0,7 65.000 45.500 Piedra triturada de IV, tn 1,4 120.000 168.000 Varilla conformada, kg 110 10.000 1.100.000 Alambre negro de atar, kg 5 18.000 90.000 Clavo 1" a 7", kg 0,4 18.000 7.200 REOPLAST kg 4 19.850 79.400 Mano de obra, C/ES 17 125.000 2.125.000 Total por: total 4.035.100 Losa Rap h=12+5=17cm, luz hasta 4,50m (1:2:3) Cemento tipo 1, kg 22,8 1.200 27.360 Arena lavada, m3 0,04 65.000 2.600 Piedra triturada de V, tn 0,09 120.000 10.800 Varilla conformada, kg 1,8 10.000 18.000 Alambre negro de atar, kg 0,06 18.000 1.080 Viguetas y ladrillos, m2 1 78.500 78.500 Mano de obra, m2 1 80.000 80.000 Total por: m2 218.340
Relleno y Compactación Tierra gorda, m3 1,00 64.000 64.000 Mano de obra, m3 1,00 44.000 44.000 Total por: m3 108.000 Cartel
Cartel de obra, un 1,00 450.000 450.000 Total por: un 450.000 Vallado de Obra Chapa cincalum Nº 28, 2.44x0,90, un 0,5 109.000 54.500 Puntal de eucalipto pulg/ 10 550 5.500 Clavo con cabeza de plomo, un 0,4 600 240 MO (armado), m2 1 31.000 31.000 MO (desarmado), m2 1 11.000 11.000 Total por: m2 102.240
Zapata fck=18MPa Cemento tipo 1, kg 300 1.200 360.000 Arena lavada, m3 0,7 65.000 45.500 Piedra triturada de IV, tn 1,4 120.000 168.000 Varilla conformada, kg 65 10.000 650.000 Alambre negro de atar, kg 0,3 18.000 5.400 Mano de obra, m3 1 650.000 650.000 Total por: m3 1.878.900
Cemento tipo 1, kg 300 1.200 360.000 Arena lavada, m3 0,7 65.000 45.500 Piedra triturada de IV, tn 1,4 120.000 168.000 Varilla conformada, kg 95 10.000 950.000 Alambre negro de atar, kg 0,4 18.000 7.200 Clavo 1" a 7", kg 0,4 18.000 7.200 REOPLAST Fluidificante kg 3,5 19.850 69.475 Mano de obra m3 1 800.000 800.000 Total por: m3 2.407.375
Columna fck=21MPa
Cemento tipo 1, kg 300 1.200 360.000 Arena lavada, m3 0,7 65.000 45.500 Piedra triturada de IV, tn 1,4 120.000 168.000 Varilla conformada, kg 90 10.000 900.000 Alambre negro de atar, kg 0,4 18.000 7.200 Clavo 1" a 7", kg 0,4 18.000 7.200 REOPLAST kg 3 19.850 59.550 - Revista Mandu’a 48

Hormigón Ciclopeo (1:3:6)

De Elevación - Con ladrllo común y junta de 2 cm

De

Losa Rap h=16+5=21cm, luz mayor a 4,7 (1:2:3,5) Cemento tipo 1, kg 24,2 1.200 29.040 Arena lavada, m3 0,05 65.000 3.250 Piedra triturada de V, tn 0,11 120.000 13.200 Varilla conformada, kg 1,8 10.000 18.000 Alambre negro de atar, kg 0,06 18.000 1.080 Viguetas y ladrillos, m2 1 85.500 85.500 Mano de obra, m2 1 80.000 80.000 Total por: m2 230.070 Losa PreRap h=25 cm, luz mayor a 7,6 (1:2:3,5) Cemento Tipo 1, kg 32,00 1.200 38.840 Arena lavada, m3 0,06 65.000 2.920 Piedra triturada de IV, tn 0,15 120.000 18.000 Varilla conformada, kg 1,60 10.000 16.000 Alambre negro de atar, kg 0,06 18.000 480 Pre Losa y ladrillos, m2 1 135.000 135.000 Uso de grúa, m2 1 11.000 11.000 Mano de obra, m2 1 30.000 30.000 Total por: m2 251.800 Losa Listalosa Cemento tipo 1, kg 18 1.200 21.600 Piedra triturada de V, tn 0,08 120.000 9.600 Arena lavada, m3 0,03 65.000 2.145 Varilla conformada, kg 1,87 10.000 18.700 Vigueta listalosa, m2 1 125.000 125.000 MO colocacion un 1 45.155 45.155 Total por: m2 222.200
Cimiento PBC con cal (1/2:1:4) Piedra bruta blanca, m3 1,2 120.000 144.000 Cemento tipo 1, kg 46 1.200 55.200 Cal triturada, kg 30 1.225 36.750 Arena lavada, m3 0,3 65.000 19.500 Mano de obra PBC, m3 1 94.000 94.000 MO excavación, m3 1 39.000 39.000 Total por: m3 388.450 Idem anterior sin cal (1:12) 351.520 Cimiento de H° de Cascotes - Tierra Gorda Tierra gorda, m3 0,6 64.000 38.400 Cemento Tipo 1, kg 80 1.200 96.000 Cascotillo cerámico, m3 0,8 99.500 79.600 MO excavación, m3 1 39.000 39.000 Mano de obra PBC, 1 94.000 Total por: m3 347.000 Idem anterior Arena Lavada m3
FUNDACIONES
Piedra bruta blanca, m3 0,4 120.000 48.000 Cemento tipo 1. kg 225 1.200 270.000 Arena lavada, m3 0,4 65.000 26.000 Piedra triturada de IV, tn 1,05 120.000 126.000 Mano de obra, m3 1 187.000 187.000 MO excavación, m3 1 39.000 39.000 Total por: m3 696.000 MAMPOSTERIAS De Nivelación - Con ladrillo común y junta de 2 cm De 0.30 m de ancho (1:2:8) con cemento Tipo 1 Ladrillo común, un 122 700 85.400 Cemento tipo 1, kg 14,1 1.200 16.920 Cal triturada, kg 13,3 1.225 16.293 Arena lavada, m3 0,1 65.000 6.500 Mano de obra, m2 1 46.000 46.000 Total por: m2 171.113 De 0.30 m armada (1:4) con cemento Tipo 1 Ladrillo común, un 122 700 85.400 Cemento tipo 1, kg 16 1.200 19.200 Arena lavada, m3 0,1 65.000 6.500 Varilla conformada, kg 1,6 10.000 16.000 Mano de obra, m2 1 53.000 53.000 Total por: m2 180.100 De 0.45 m de ancho (1:2:8) con cemento Tipo 1 Ladrillo común, un 187 700 130.900 Cemento tipo 1, kg 23,1 1.200 27.720 Cal triturada, kg 21,9 1.225 26.828 Arena lavada, m3 0,16 65.000 10.400 Mano de obra, m2 1 57.000 57.000 Total por: m2 252.848
De 0.15 m (1:2:10) Ladrillo común, un 65 700 45.500 Cemento tipo 1, kg 5,74 1.200 6.888 Cal triturada, kg 5,53 1.225 6.774 Arena lavada, m3 0,05 65.000 3.250 Mano de obra, m2 1 30.000 30.000 Total por: m2 94.412 Idem (1:2:10)
vista m2 101.412
– A la
1 Ladrillo común, un 95 700 66.500 Cemento tipo 1, kg 8,8 1.200 10.560 Cal triturada, kg 8,5 1.225 10.413 Arena lavada, m3 0,09 65.000 5.850 Mano de obra, m2 1 36.000 36.000 Total por: m2 129.323 Idem (1:2:10)
1 m2 137.323
0.20 m (1:2:10) con cemento Tipo
– A la vista
Ladrillo común, un 122 700 85.400 Cemento tipo 1, kg 11,8 1.200 14.160 Cal triturada, kg 11,4 1.225 13.965 Arena lavada, m3 0,1 65.000 6.500 Mano de obra, m2 1 46.000 46.000 Total por: m2 166.025
De 0.30 m (1:2:10) con cemento Tipo 1
junta de 1.5 cm Ladrillo común, un 30 700 21.000 Cemento tipo 1, kg 0,9 1.200 1.080 Cal triturada, kg 0,85 1.225 1.041 Arena lavada, m3 0,01 65.000 520 Mano de obra, m2 1 21.000 21.000 Total por: m2 44.641 COSTEO DE OBRA Revista Mandu’a - 49
De 0.07 m (1:2:10) con cemento Tipo 1 y

COSTEO DE OBRA

Arena lavada, m3 0,1 65.000 6.500 Mano de obra, m2 1 72.000 72.000 Total por: m2 146.050 Pilar de Ladrillo Común 30x30 (1:1:6) Ladrillo común, un 35 700 24.500 Cemento tipo 1, kg 10 1.200 12.000 Cal triturada, kg 4 1.225 4.900 Arena lavada, m3 0,03 65.000 1.950 Mano de obra, ml 1 33.000 33.000 Total por: ml 76.350 Idem anterior a la vista ml 82.350 Muralla de Ladrillo Común (e=0.15m, h=2.00m, con pilares de 0.30 x 0.30 cada 2.00m) Cimiento PBC con cal, m3 0,12 388.450 46.614 Nivelación 0.30 m, m2 0,4 171.113 68.445 Aislacion horizontal 0,15 m con asfalto, ml 1,3 18.9444 24.627 Elevacion de 0,15 m con ladrillo comun a la m2 1,4 101.412 141.977 Pilar de ladrillo comun 0.30x0.30 m a la vista, ml 2 76.350 152.700 Total por: ml 434.363 AISLACION Horizontal 0.30 con asfalto Cemento tipo 1, kg 1,8 1.200 2.160 Arena lavada, m3 0,03 65.000 1.950 Negrolin, lt 1 12.888 12.888 Mano de obra, ml 1 15.000 15.000 Total por: ml 31.998 Horizontal 0.15 con asfalto Cemento tipo 1, kg 1 1.200 1.200 Arena lavada, m3 0,02 65.000 1.300 Negrolin, lt 0,5 12.888 6.444 Mano de obra, ml 1 10.000 10.000 Total por: ml 18.944 Vertical con Panderete 0.15 m Ladrillo común, un 27 700 18.900 Cemento tipo 1, kg 5 1.200 6.000 Arena lavada, m3 0,3 65.000 19.500 Negrolin, lt 2 12.888 25.776 Betocem hidrófugo, l 0,25 6.060 1.515 Mano de obra, m2 1 35.500 35.500 Total por: m2 107.191 De Losa con Piso de Tejuelita Prensada Cascotillo cerámico, m3 0,07 99.500 6.965 Cemento tipo 1, kg 10 1.200 12.000 Cal triturada, kg 5 1.225 6.125 Arena lavada, m3 0,07 65.000 4.550 Membrana asfáltica 4 mm Casarino, m2 1,1 17.500 19.250 Bitumex, lt 0,25 12.888 3.222 Tejuelita Yoayu de 1ra un 26 500 13.000 Mano de obra (piso), 1 10.000 Mano de obra m2 1 69.000 69.000 Total por: m2 144.112 De Losa Para Baño Cemento tipo 1, kg 7 1.200 8.400 Arena lavada, m3 0,02 65.000 1.300 Negrolin, lt 1,5 12.888 19.332 Betocem hidrófugo, l 0,25 6.060 1.515 Mano de obra m2 1 30.000 30.000 Total por: m2 60.547 De Elevación Con Ladrillos Cerámicos Huecos De 0.15 m (1:2:8) con cemento Tipo 1 Ladrillo 6 tubos de 1ra, 12x18x25 cm Ita Yby, un 20 1.276 25.520 Cemento tipo 1, kg 1,8 1.200 2.160 Cal triturada, kg 1,7 1.225 2.083 Arena lavada, m3 0,01 65.000 845 Mano de obra, m2 1 24.000 24.000 Total por: m2 54.608 Idem (1:2:8) 1 cara vista m2 58.413 De 0.15 m (1:2:8) Ladrillo 6 tubos 12x18x25 cm de 1ra un 20 1.460 29.200 Cemento tipo 1, kg 1,8 1.200 2.160 Cal triturada, kg 1,7 1.225 2.083 Arena lavada, m3 0,01 65.000 845 Mano de obra, m2 1 24.000 24.000 Total por: m2 58.288 De 0.20 m (1:2:8) m Ladrillo hueco 18x18x25 un 19 2.068 39.292 Cemento tipo 1, kg 2,8 1.200 3.360 Cal triturada, kg 2,7 1.225 3.308 Arena lavada, m3 0,02 65.000 1.235 Mano de obra, m2 1 34.000 34.000 Total por: m2 81.195 De 0.20 m (1:2:8) Ladrillo 6 tubos de 1ra, 8x18x25 cm Irene, un 41 1.089 44.649 Cemento tipo 1, kg 5,4 1.200 6.480 Cal triturada, kg 5,1 1.225 6.248 Arena lavada, m3 0,04 65.000 2.405 Mano de obra, m2 1 34.000 34.000 Total por: m2 93.782 De Elevación a la Vista - Con ladrilllo cerámico laminado De 0.15 m (1:2:8) Ladrillo de 1ra A, 6x12x25 cm Ita Yby, un 45 1.250 56.250 Cemento tipo 1, kg 5,6 1.200 6.720 Cal triturada, kg 5,3 1.225 6.493 Arena lavada, m3 0,04 65.000 2.470 Mano de obra, m2 1 39.000 39.000 Total por: m2 110.933 Elevaciones Varias Sardinel de Ladrillos Comunes Ladrillo común, un 16 700 11.200 Cemento tipo 1, kg 2,1 1.200 2.520 Cal triturada, kg 0,9 1.225 1.103 Arena lavada, m3 0,01 65.000 650 Mano de obra, ml 1 46.000 46.000 Total por: ml 61.473 Sardinel de Ladrillos Laminados ml 67.773 Ladrillo Convocó Ladrillo convocó recto de 1ra, 19x19x10 cm un 25 3.097 77.425 Cemento tipo 1, kg 8 1.200 9.600 Cal triturada, kg 4 1.225 4.900 Arena lavada, m3 0,05 65.000 3.250 Mano de obra, m2 1 33.000 33.000 Total por: m2 128.175 Muro de Piedra
de 30 cm (1/2:1:4) Piedra bruta blanca, m3 0,3 120.000 36.000 Cemento tipo 1, kg 12 1.200 14.400 Cal triturada, kg 14 1.225 17.150 - Revista Mandu’a 50
Bruta

REVOQUES

Teja

Teja Francesa, Marsellesa o Romana

De Cielorrasos (1:4:12) Cemento tipo 1, kg 1,6 1.200 1.920 Cal triturada, kg 5,1 1.225 6.248 Arena lavada, m3 0,01 65.000 650 MO azotada adherencia, m2 1 8.000 8.000 MO revoque 1 capa , m2 1 33.000 33.000 Total por: m2 49.818 TECHOS
Española sobre Tejuelón con Madera Ybyrapyta Teja española Irene, un 28 1.800 50.400 Tejuelón de 1ra un 10 2.900 29.000 Tirante 2x5" de pulg/ 20 3.700 74.000 Viga 4x8" de ybyrapyta, pulg/ 3,8 4.200 15.960 Liston de 1 1/2 x 2", ml 0,22 5.000 1.100 Cemento tipo 1, kg 1,3 1.200 1.560 Cal triturada, kg 2,6 1.225 3.185 Arena lavada, m3 0,03 65.000 1.950 Clavo 2", kg 0,25 18.000 4.500 Bitumex, lt 0,5 12.888 6.444 MO montaje viga, ml 0,2 47.000 9.400 Mano de obra, m2 1 85.000 85.000 Total por: m2 282.499 Teja Esmaltada Española o Colonial Irene sobre Tejuelón (1:6) Teja esmaltada Yoayu, un 28 3.385 94.780 Tejuelón de 1ra A un 10 2.602 26.020 Tirante 2x5" de pulg/ 20 3.700 74.000 Viga 4X8" de ybyrapyta, pulg/ 3,8 4.200 15.960 Liston de 1 1/2 x 2", ml 0,22 5.000 1.100 Cemento tipo 1, kg 1,3 1.200 1.560 Cal triturada, kg 2,6 1.225 3.185 Arena lavada, m3 0,03 65.000 1.950 Clavo 2", kg 0,25 18.000 4.500 Negrolin, lt 0,5 12.888 6.444 MO montaje viga, ml 0,2 47.000 9.400 Mano de obra, m2 1 85.000 85.000 Total por: m2 323.899 Teja Española sobre Tejuelita Teja de 1ra Chaco, un 28 1.800 50.400 Tejuelita Yoayu de 1ra un 30 500 15.000 Tirante 2x5" de pulg/ 20 3.700 74.000 Alfajia de ybyrapyta ml 4 7.000 28.000 Cemento tipo 1, kg 1,3 1.200 1.560 Cal triturada, kg 2,6 1.225 3.185 Arena lavada, m3 0,03 65.000 1.950 Clavo 2", kg 0,25 18.000 4.500 Negrolin, lt 0,5 12.888 6.444 Mano de obra, m2 1 79.000 79.000 Total por: m2 264.039
Machimbre Teja francesa de 1ra A un 16 2.772 44.352 Machimbre de ybyrapyta de 1x3", m2 1,05 35.000 36.750 Tirante 2x5" de pulg/ 24 3.700 88.800 Liston de cedro 1x2", ml 2 5.000 10.000 Liston de cedro 1x1", ml 2,5 5.000 12.500 Clavo, kg 0,25 18.000 4.500 Negrolin, lt 0,5 12.888 6.444 Alambre negro de atar, kg 0,1 18.000 1.800 Mano de obra, m2 1 79.000 79.000 Total por: m2 284.146 DINTELES De Varilla Sobre Abertura Cemento tipo 1, kg 3 1.200 3.600 Arena lavada, m3 0,05 65.000 3.250 Varilla conformada, kg 0,8 10.000 8.000 Mano de obra, 1 5.000 Total por: ml 19.850
Hormigón
Dintel 1m x 14cm, un 1 30.100 30.100 Mano de obra, ml 1 15.000 15.000 Total por: ml 45.100 CONTRAPISOS De 7 cm (1/4:1:4:6) Cemento tipo 1, kg 4 1.200 4.800 Cal triturada, kg 5 1.225 6.125 Arena lavada, m3 0,03 65.000 1.950 Cascotillo cerámico, m3 0,07 99.500 6.965 Mano de obra, m2 1 15.000 15.000 Total por: m2 34.840 De 10 cm (1/4:1:4:6) Cemento tipo 1, kg 5 1.200 6.000 Cal triturada, kg 6 1.225 7.350 Arena lavada, m3 0,04 65.000 2.600 Cascotillo cerámico, m3 0,09 99.500 8.955 Mano de obra, m2 1 18.000 18.000 Total por: m2 42.905 De 20 cm en Losa Sanitaria Cemento tipo 1, kg 7 1.200 8.400 Cal triturada, kg 10 1.225 12.250 Arena lavada, m3 0,05 65.000 3.250 Cascotillo cerámico, m3 0,09 99.500 8.955 Mano de obra, 1 17.500 Total por: m2 50.355
sobre
De
Prefabricado
De Paredes - A 1 Capa, Espesor 1.5 cm (1:4:16) con hidrófugo Cemento tipo 1, kg 1,5 1.200 1.800 Cal triturada, kg 4 1.225 4.900 Arena lavada, m3 0,02 65.000 1.300 Betocem hidrófugo, l 0,25 6.060 1.515 Mano de obra, m2 1 22.000 22.000 Total por: m2 31.515 Idem anterior s/ hidrófugom.890 m2 30.000 Salpicado (1:3) Cemento tipo 1, kg 3 1.200 3.600 Arena lavada, m3 0,01 65.000 650 Ceresita hidrófugo, kg 0,25 6.150 1.538 Mano de obra, m2 1 22.000 22.000 Total por: m2 27.788 Azotada Impermeable (1:3), Espesor 0.5 cm Cemento tipo 1, kg 2,7 1.200 3.240 Arena lavada, m3 0,01 65.000 650 Ceresita hidrófugo, kg 0,3 6.150 1.845 Mano de obra, m2 1 7.000 7.000 Total por: m2 12.735 COSTEO DE OBRA Revista Mandu’a - 51

COSTEO DE OBRA

Teja de Cemento Doble Romana King

28 sobre Estructura de Varillas Torsionadas

Chapa de Fibrocemento Ondulada 6 mm Chapa, un 0,4 96.000 38.400 Tirante 2x5" de pulg/ 5 3.700 18.500 Clavo 2" a 7", kg 0,03 18.000 540 Mano de obra, m2 1 26.000 26.000 Total por: m2 83.440 Entrepiso de Madera Tirante de ybyrapyta pulg/ 20 3.700 74.000 Machimbre de ybyrapyta 1x3", m2 1,1 35.000 38.500 Clavo, kg 0,25 18.000 4.500 Mano de obra, m2 1 30.000 30.000 Total por: m2 147.000 PISOS Baldosa Calcárea Baldosa base gris 20x20, m2 1,05 40.000 42.000 Cemento tipo 1, kg 4 1.200 4.800 Cal triturada, kg 3 1.225 3.675 Arena lavada, m3 0,03 65.000 1.950 Pastina base gris, kg 0,2 6.000 1.200 Mano de obra, m2 1 26.000 26.000 Total por: m2 79.625 Mosaico Granítico (base gris 30x30cm) Mosaico granítico, m2 1,05 63.000 66.150 Cemento tipo 1, kg 8 1.200 9.600 Cal triturada, kg 7 1.225 8.575 Arena lavada, m3 0,03 65.000 1.950 Pastina base gris, kg 0,75 6.000 4.500 Mano de obra pulido, m2 1 26.000 26.000 Mano de obra, m2 1 26.000 26.000 Total por: m2 142.775 Mosaico Granitico (30x30cm) base blanca m2 150.125 Vereda Cerámica Vereda 20x20, m2 1,05 40.000 42.000 Cemento tipo 1, kg 4 1.200 4.800 Cal triturada, kg 3 1.225 3.675 Arena lavada, m3 0,03 65.000 1.950 Oxido amarillo, kg 0,01 25.000 250 Mano de obra, m2 1 26.000 26.000 Total por: m2 78.675 Cerámica Esmaltada Almeida 20x30 cm, m2 1,05 27.400 28.770 Mezcla adhesiva, kg 3,5 2.000 7.000 Pastina base blanca, kg 0,2 6.000 1.200 Mano de obra, m2 1 34.000 34.000 Total por: m2 70.970 Cerámica Eliane 30x30cm m2 71.624 Cerámica Porcelanato 60x60cm m2 143.150 Layota 28x28cm Layota de 1ra A Yoayu, un 12 2.545 30.540 Cemento tipo 1, kg 4 1.200 4.800 Cal triturada, kg 3 1.225 3.675 Arena lavada, m3 0,03 65.000 1.950 Mano de obra, m2 1 26.000 26.000 Total por: m2 66.965
sobre Machimbre Teja de cemento King, un 10 7.500 75.000 Machimbre de ybyrapyta 1x3", m2 1,05 35.000 36.750 Tirante de ybyrapyta pulg/ 24 3.700 88.800 Liston de cedro 1x1", ml 2,5 5.000 12.500 Liston de cedro 1x2", ml 2 5.000 10.000 Negrolin, lt 0,5 12.888 6.444 Mano de obra, m2 1 79.000 79.000 Total por: m2 308.494 Chapa Galvanizada N° 28 sobre Estructura de Madera Tirante de ybyrapyta pulg 11 3.400 37.400 Alfajía de ybyrapyta ml 1 7.000 7.000 Clavo de 2", kg 0,2 15.000 3.000 Chapa cincalum Nº 28, 2.44x0,90, un 0,5 56.000 28.000 Clavo con cabeza de plomo, kg 0,2 14.000 2.800 Mano de obra, m2 1 23.000 23.000 Total por: m2 99.200 Chapa Galvanizada N° 28 sobre estructura de caños metálicos Caño C 30x50x1.20 mm, ml 1,05 9.500 9.975 Caño 20x30x1.20 mm, ml 1,05 6.170 6.479 Tornillo tirafondo autoroscable 2", un 4 500 2.000 Chapa cincalum Nº 28, 2.44x0,90, un 0,5 109.000 54.500 Electrodo, kg 0,05 32.000 1.600 Mano de obra, m2 1 26.000 26.000 Total por: m2 100.554
Galvanizada N°
Varilla torsionada, kg 6 11.000 66.000 Chapa cincalum Nº 28, 2.44x0,90, un 0,5 109.000 54.500 Gancho para tinglado, un 3 1.000 3.000 Electródo, kg 0,07 32.000 2.240 Pintura antióxido, lt 0,05 35.277 1.764 Mano de obra, m2 1 70.000 70.000 Total por: m2 197.504 OPCIONES PARA AISLACION HIDROFUGA Material Cantidad Gs/m2 Total Film de polietileno negro 100 micrones 1,10 1.650 1.815 200 micrones 1,10 2.250 2.475 Cartón asfáltico Nacional 1,10 2.488 2.737 * Liviano Casarino 1,10 2.725 2.998 Pesado Casarino 1,10 4.875 5.363 Membrana Isolant TB 2 1,10 5.200 5.720 TB 5 1,10 9.450 10.395 TBA 5 1,10 12.700 13.970 TBA 10 1,10 21.750 23.925 Membranas Asfálticas 36 kg Super Flex Casarino 1,10 21.000 23.100 25 kg Reflexol Casarino 1,10 14.960 16.456 * Opción utilizada para Casa Mandu’a. -
52
Chapa
Revista Mandu’a

Plancha para Revestido de Escalera

Piedra

Piedra

Baldosones de Hormigón (40x40x3cm)

Alfombra (2mm sin carpeta)

Mosaico Granítico (base blanca pulido

Carpeta para Piso Cerámico o

Plancha granítica base gris, ml 5 420.000 2.100.000 Mano de obra, un 17 18.000 306.000 Total por: gl 2.406.000
Losa Rompecabeza Piedra losa blanca, m2 1,05 35.000 36.750 Cemento tipo 1, kg 6 1.200 7.200 Cal triturada, kg 4 1.225 4.900 Arena lavada, m3 0,03 65.000 1.950 Mano de obra, m2 1 39.000 39.000 Total por: m2 89.800
blanca cuadrada pulida Piedra losa blanca cuadrada pulida, m2 1 95.000 95.000 Cemento tipo 1, kg 6 1.200 7.200 Cal triturada, kg 4 1.225 4.900 Arena lavada,, m3 0,03 65.000 1.950 Mano de obra, m2 1 39.000 39.000 Total por: m2 148.050 Alisada de Cemento Cemento tipo 1, kg 10 1.200 12.000 Arena lavada, m3 0,01 65.000 650 Oxido rojo, kg 0,02 25.000 500 Mano de obra, m2 1 24.000 24.000 Total por: m2 37.150
Losa
Baldosón de hormigón, m2 1,1 37.000 40.700 Cemento tipo 1, kg 6 1.200 7.200 Arena lavada, m3 0,03 65.000 1.950 Cal triturada, kg 4 1.225 4.900 Mano de obra, m2 1 26.000 26.000 Total por: m2 80.750
Alfombra multipiso, m2 1,1 13.000 14.300 Cemento de contacto, lt 0,2 23.000 4.600 Solvente 700 cc, un 0,1 12.000 1.200 Mano de obra, m2 1 18.000 18.000 Total por: m2 38.100
Alfombra Cemento tipo 1, kg 5 1.200 6.000 Arena lavada, m3 0,02 65.000 1.300 Betocem hidrófugo, l 0,25 6.060 1.515 Mano de obra, m2 1 18.000 18.000 Total por: m2 26.815 Empedrado Piedra bruta blanca, m3 0,2 120.000 24.000 Arena lavada, m3 0,15 65.000 9.750 Ripio de piedra, tn 0,07 70.000 4.900 Mano de obra, m2 1 17.000 17.000 Total por: m2 55.650 Hormigón Armado 12 cm Cemento tipo 1, kg 35 1.200 42.000 Arena lavada, m3 0,06 65.000 3.900 Piedra triturada de IV, tn 0,2 120.000 24.000 Varilla conformada, kg 8 10.000 80.000 Mano de obra, m2 1 36.000 36.000 Total por: m2 185.900 CIELORRASO
machimbre con armazón de madera, no incluye corniza Liston de cedro 1x2", ml 10 5.000 50.000 Machimbre de lapacho 1/2 x 3", 1,1 60.000 66.000 Clavo, kg 0,25 18.000 4.500 Mano de obra, m2 1 35.500 35.500 Total por: m2 156.000 ZOCALOS Cemento Alisado Cemento tipo 1, kg 1 1.200 1.200 Arena lavada, m3 0,01 65.000 650 Mano de obra, ml 1 8.000 8.000 Total por: ml 9.850 Calcáreo Base Gris Zócalo 10x25 cm, ml 1,05 19.000 19.950 Cemento tipo 1, kg 0,5 1.200 600 Cal triturada, kg 0,5 1.225 613 Arena lavada, m3 0,01 65.000 650 Mano de obra, ml 1 13.000 13.000 Total por: ml 34.813 Madera 3/4 x 3” Zocalo de cedro, ml 1,05 6.500 6.825 Tarugo plástico Nº 8, un 2 5.025 10.500 Mano de obra, ml 1 13.000 13.000 Total por: ml 29.875 Alfombra Alfombra multipiso 2 m2 0,1 13.000 1.300 Mano de obra, ml 1 13.000 13.000 Total por: m2 14.300 Cerámica Esmaltada Almeida 20x30 cm, m2 0,2 27.400 5.480 Mezcla adhesiva, kg 0,3 2.000 600 Mano de obra, ml 1 13.000 13.000 Total por: ml 19.080
De
10x30cm) Zócalo granítico, m2 1,05 30.000 31.500 Cemento tipo 1, kg 0,5 1.200 600 Cal triturada, kg 0,5 1.225 613 Arena lavada, m3 0,01 65.000 650 Mano de obra pulido, m2 1 26.000 26.000 Mano de obra, ml 1 13.000 13.000 Total por: ml 72.363 Idem anterior (base gris) ml 68.113 Layota 28x10cm Zócalo de layota, un 3,5 2.546 8.911 Cemento tipo 1, kg 0,5 1.200 600 Cal triturada, kg 0,5 1.225 613 Arena lavada, m3 0,01 65.000 650 Mano de obra, ml 1 13.000 13.000 Total por: ml 23.774 REVESTIDOS “No incluye la base previa” Azulejo 15x15cm Chino, blanco 15x15 m2 1,05 37.500 39.375 Mezcla adhesiva, kg 3,5 2.000 7.000 Pastina base blanca, kg 0,2 6.000 1.200 Mano de obra, m2 1 32.000 32.000 COSTEO DE OBRA Revista Mandu’a - 53

DESAGÜE CLOACAL Y PLUVIAL

Pozo

Desagüe

Desagüe Cloacal Para Baño de Servicio

COSTEO DE OBRA Idem anterior de 60cm ml 312.750
de 80cm Hº Aº Vibrado SimpleMacho/Hembra Caño de 80 cm, un 1 399.500 399.500 Mano de obra, ml 1 70.000 70.000 Total por: ml 469.500
Caño
m y h=3.00 m) Ladrillo común, un 1.100 700 770.000 Cemento tipo 1, kg 150 1.200 180.000 Arena lavada, m3 0,5 65.000 32.500 Mano de obra, un 1 1.650.000 1.650.000 Total por: un 2.632.500 Cámara Séptica (1x1.60x1.20m) Ladrillo común, un 420 700 294.000 Cemento tipo 1, kg 100 1.200 120.000 Cal triturada, kg 50 1.225 61.250 Arena lavada, m3 1,5 65.000 97.500 Varilla conformada, kg 2,5 10.000 25.000 Mano de obra, un 1 990.500 Total por: un 1.588.250
Ciego (Diámetro=1.50
Cloacal Para Baño Completo Caño 100 mm, ml 2 16.240 32.480 Caño de PVC 50 mm, ml 2 10.269 20.538 Caño PVC 40 mm, ml 4 6.867 27.468 Codo 90º p/ desagüe primario 100mm, un 1 11.619 11.619 Codo 90º p/ desagüe secundario, buje largo 40mm, un 2 1.866 3.732 Codo 45º p/ desagüe secundario 40mm, un 2 1.879 3.758 Caja sifonada 150x150x50mm, c/ rejilla alum. un 2 72.443 144.886 Adhesivo 75 gr, un 2 8.981 17.962 Limpiador 200 cc, un 1 22.330 22.330 Mano de obra, un 1 317.000 317.000 Total por: un 601.773
Caño 100 mm, ml 2 16.240 32.480 Caño PVC 50 mm, ml 1 10.269 10.269 Caño PVC 40 mm, ml 3 6.867 20.601 Codo 90º p/ desagüe primario 100mm, un 1 11.619 11.619 Codo 45º p/ desagüe primario 100mm, un 1 11.317 11.317 Codo 45º p/ desagüe primario 50mm, un 1 3.448 3.448 Codo 90º p/ desagüe secundario, buje largo 40mm, un 1 1.866 1.866 Codo 45º p/ desagüe secundario 40mm, un 2 1.879 3.758 Total por: m2 79.575 Idem anterior Eliane 20x20cm m2 113.175 Idem anterior Eliane 20x25cm m2 86.400 Ladrillejo Ladrillejo de 1ra , un 50 630 31.500 Cemento tipo 1, kg 5 1.200 6.000 Arena lavada, m3 0,02 65.000 1.300 Mano de obra, 1 15.000 Total por: m2 53.800 Piedra Laja Fina (1 a 2 cm de espesor) Piedra laja fina, m2 1,05 50.000 52.500 Cemento tipo 1, kg 3 1.200 3.600 Cal triturada, kg 2,5 1.225 3.063 Arena lavada, m3 0,02 65.000 1.300 Mano de obra, m2 1 45.000 45.000 Total por: m2 105.463
Boca Desagüe Abierta 20x20x20cm Ladrillo común, un 50 700 35.000 Cemento tipo 1, kg 5 1.200 6.000 Arena lavada, m3 0,04 65.000 2.600 Cal triturada, kg 5 1.225 6.125 Rejilla de hierro de 20x20 cm, un 1 45.000 45.000 Mano de obra, un 1 79.300 79.300 Total por: un 174.025 Idem anterior de 30x30x30cm un 220.025 Idem anterior de 40x40x40cm un 309.938 Registro 30x30x30cm Ladrillo común, un 65 700 45.500 Cemento tipo 1, kg 7 1.200 8.400 Arena lavada, m3 0,05 65.000 3.250 Cal triturada, kg 7 1.225 8.575 Tapa Hº 30x30x3 cm, un 1 15.000 15.000 Mano de obra, un 1 113.000 113.000 Total por: un 193.725 Idem anterior 40x40x40cm 232.74 un 231.938 Idem anterior 60x60x50cm un 418.550 Tubo PVC 40mm Caño desagüe PVC, ml 1 6.867 6.867 Mano de obra, ml 1 14.000 14.000 Total por: ml 20.867 Idem anterior 50mm ml 24.269 Idem anterior 100mm ml 47.550 Caño de Hormigón 50cm Hormigón Roto Comprimido - Macho/Hembra Caño de 50 cm, un 1 148.800 148.800 Mano de obra, ml 1 34.000 34.000 Total por: ml 182.800 - Revista Mandu’a 54

Desagüe Cloacal Para Baño Social

Desagüe para Pileta de Cocina

Rejilla de Piso Sifonada Caja sifonada cuadrada nº 25, 150x150x50mm un 1 60.532 60.532 Mano de obra, un 1 60.000 60.000 Total por: un 120.532 AGUA CORRIENTE Tubo PVC de 1” Caño PVC roscable, ml 1 24.700 24.700 Mano de obra, ml 1 16.000 16.000 Total por: ml 40.700 Idem anterior de 3/4” ml 25.127 Idem anterior de 1/2” ml 17.005 Instalación Agua Fría en Baño Completo Caño 1/2" roscable, ml 9 9.005 81.045 Codo 90º roscable, 1/2", un 6 2.546 15.276 Llave de paso de 1/2" cromada FV Linea Clásica, un 2 82.373 164.746 Tapon roscable macho de 1/2", un 4 780 3.120 Tee 3/4"x1/2" IPS, un 4 4.238 16.952 Adhesivo 75 gr, un 0,6 8.981 5.389 Cinta teflon 18mmx25m, un 2 6.175 12.350 Mano de obra, un 1 412.000 412.000 Total por: un 710.878 Instalación Agua Caliente y Fría en Baño Completo Caño de 1/2" para agua caliente, ml 9 8.853 79.677 Caño 1/2" roscable, ml 9 9.005 81.045 Codo de 1/2" galv, un 24 6.853 164.472 Curva transposición 1/2x1/2" galv, un 4 15.817 63.268 Tee de 1/2" galv, un 8 5.392 43.136 Unión reducción 1/2x3/8 galv, un 2 9.450 18.900 Alma doble 1/2" galv, un 10 6.099 60.990 Buje de 3/4x1/2" galv, un 2 6.062 12.124 Llave de paso de 1/2" FV Linea Clásica, un 2 82.373 164.746 Tapon roscable macho 1/2", un 9 780 7.020 Sella rosca 90 cc IPS, un 1 38.944 38.944 Cinta teflon 18mmx25m, un 5 6.175 30.875 Mano de obra, un 1 697.000 697.000 Total por: un 1.462.197 Idem Linea FV 61 un 1.525.131 Instalación Agua Fría en Baño de Servicio Caño 1/2" roscable, ml 6 9.005 54.030 Codo 90º roscable, 1/2", un 6 2.546 15.276 Codo reducción 90º roscable, 3/4x1/2, un 1 2.598 2.598 Alma doble roscable un 3 1.862 5.586 Tee 90º p/ desagüe secundario, 40mm, un 3 3.965 11.895 Union sencilla roscable 1/2", un 2 1.986 3.972 Tubo bajada de embutir p/ cisterna nº 4, un 1 10.446 10.446 Tapón roscable macho 1/2", un 4 780 3.120 Llave de paso 1/2" bronce sin campana, un 2 57.538 115.076 Adhesivo 75gr, un 0,4 8.981 3.592 Cinta teflon 18mmx25m, un 1 6.175 6.175 Mano de obra, un 1 286.000 286.000 Total por: un 517.766 Ramal de reducción 45º simple p/ desagüe primario 100x50mm, un 1 15.795 15.795 Caja sifonada cuadrada nº 25, 150x150x50mm, un 1 72.443 72.443 Prolongador 150x150mm p/ caja un 1 7.760 7.760 Anillo de sellado p/ desagüe 100 mm, un 3 5.041 15.123 Anillo de sellado p/ desagüe 50 mm, un 2 2.812 5.624 Adhesivo 75 gr, un 1 8.981 8.981 Limpiador 200 cc, un 1 22.330 22.330 Mano de obra, un 1 222.000 222.000 Total por: un 465.514
Caño 100 mm, ml 2 16.240 32.480 Caño PVC 50 mm, ml 1 10.269 10.269 Caño PVC 40 mm, ml 2 6.867 13.734 Codo 90º p/ desagüe primario 100mm, un 1 11.619 11.619 Codo 45º p/ desagüe primario 100mm, un 1 11.317 11.317 Codo 45º p/ desagüe primario 50mm, un 1 3.448 3.448 Codo 90º p/ desagüe secundario, buje largo 40mm, un 1 1.866 1.866 Codo 45º p/ desagüe secundario 40mm, un 2 1.879 3.758 Ramal de reducción 45º simple p/ desagüe primario 100x50mm, un 1 15.795 15.795 Caja sifonada cuadrada nº 25, 150x150x50mm, un 1 72.443 72.443 Anillo de sellado p/ desagüe 50 mm, un 2 2.812 5.624 Anillo de sellado p/ desagüe 100 mm, un 3 5.041 15.123 Adhesivo 75 gr, un 1 8.981 8.981 Limpiador 200 cc, un 1 22.330 22.330 Mano de obra, un 1 159.000 159.000 Total por: un 387.787 Desagüe para Pileta de Lavar y Lavarropas Caño PVC 50 mm, ml 2 10.269 20.538 Caño PVC 40 mm, ml 3 6.867 20.601 Codo 90º p/ desagüe secundario, buje largo 40mm, un 2 1.866 3.732 Codo 45º p/ desagüe secundario 40mm, un 2 1.879 3.758 Caja sifonada cuadrada nº 25, 150x150x50mm, un 1 72.443 72.443 Adhesivo 75 gr, un 0,5 8.981 4.491 Limpiador 200 cc, un 0,5 22.330 11.165 Mano de obra, un 1 159.000 159.000 Total por: un 295.728
Caño PVC 50 mm, ml 3 10.269 30.807 Codo 90º p/ desagüe primario 50mm, un 2 3.941 7.882 Ramal de reducción 45º simple p/ desagüe primario 100x50mm, un 1 15.795 15.795 Desengrasador redondo nº 70, 250x172x50, un 1 64.612 64.612 Adhesivo 75 gr, un 0,5 8.981 4.491 Limpiador 200 cc, un 0,5 22.330 11.165 Mano de obra, un 1 126.000 126.000 Total por: un 260.752 COSTEO DE OBRA Revista Mandu’a - 55

COSTEO DE OBRA

Baño Completo - Frío Caliente - Superior

COLOCACIÓN DE ARTEFACTOS SANITARIOS

Baño

Prolongador 1/2x1 FV, un 7 33.376 233.632 Roseta FV cromada, un 7 5.978 41.846 Enchufe de PVC un 1 2.663 2.663 Tornilo de bronce p/ fijar artefactos, un 8 5.025 40.200 Cemento blanco, kg 1 4.500 4.500 Masilla común, kg 0,25 13.000 3.250 Mano de obra, un 1 462.000 462.000 Total por: un 6.192.751 Baño Completo con Bañera Común Intalación de baño completo sin bañera, un 1 6.192.751 Bañera 1,60x0,70 m, un 1 968.000 968.000 Mano de obra, un 1 314.000 314.000 Total por: un 7.474.751 Baño Completo con Bañera Hidromasaje Intalación de baño completo sin bañera, un 1 6.192.751 Bañera hidro 1.70x0.70 m, un 1 7.746.000 Mano de obra, un 1 524.000 Total por: un 14.462.751 Baño Completo - Frío solo Juego para baño completo con cisterna alta Deca Ravena juego 1 1.306.000 1.306.000 Tubo bajada de embutir p/ cisterna nº 4, un 1 10.446 10.446 Botiquin 44x58x11cm Astra, un 1 513.000 513.000 Ducha eléctrica Corona, un 1 69.600 69.600 Brazo cromo para ducha 1/2x35 cm, un 1 11.266 11.266 Sopapa cromada FV p/ lavatorio, un 2 58.534 117.068 Bajada p/ lavatorio, un 2 12.064 24.128 Griferia FV para bidet agua fria sola, un 1 286.000 286.000 Canilla para lavatorio FV económica un 1 68.000 68.000 Canilla 1/2" cromo para bajo ducha FV, un 1 66.245 66.245 Conexión cromada 1/2x30 cm, un 3 22.940 68.820 Enchufe de PVC un 1 2.663 2.663 Tornilo de bronce p/ fijar artefactos, un 8 5.025 40.200 Cemento blanco, kg 2 4.500 9.000 Mano de obra, un 1 462.000 462.000 Total por: un 3.054.436
Juego para baño completo cisterna baja Deca Montecarlo, juego 1 2.159.000 2.159.000 Griferia para baño FV Allegro, juego 1 2.557.000 2.557.000 Ducha teléfono, un 1 719.735 719.735 Termocalefón de 80 lt, un 1 1.050.000 1.050.000 Soporte gancho para calefón, par 2 4.040 8.080 Botiquin con espejo y un 1 1.200.000 1.200.000 Conexión cromada 1/2x30 cm, un 7 22.940 160.580 Prolongador FV cromo 1/2x1, un 7 33.376 233.632 Roseta cromada FV, un 7 5.978 41.846 Enchufe de PVC un 1 2.663 2.663 Tornilo de bronce p/ fijar artefactos, un 8 5.025 40.200 Cemento blanco, kg 1 4.500 4.500 Masilla común, kg 0,25 13.000 3.250 Mano de obra, un 1 462.000 462.000 Total por: un 8.642.486 Instalación
Caño 1/2" roscable, ml 4 9.005 36.020 Codo 90º roscable, 1/2", un 6 2.546 15.276 Alma doble roscable un 4 1.862 7.448 Tee 90º p/ desagüe secundario, 40mm, un 2 3.965 7.930 Tapon roscable macho de 1/2", un 2 780 1.560 Llave de paso 1/2" FV Linea Clásica, un 1 82.373 82.373 Adhesivo 75gr, un 0,2 8.981 1.796 Cinta teflon 18mmx25m, un 1 6.175 6.175 Mano de obra, un 1 159.000 159.000 Total por: un 317.578 Idem anterior Linea FV 61 349.045 un332.715
Pileta de Lavar y Lavarropas Caño 1/2" roscable, ml 3 9.005 27.015 Codo 90º roscable, 1/2", un 3 2.546 7.638 Tee 90º p/ desagüe secundario, 40mm, un 1 3.965 3.965 Tapon roscable macho de 1/2", un 2 780 1.560 Llave de paso de 3/4" bronce sin campana, un 1 79.000 79.000 Adhesivo 75gr, un 0,2 8.981 1.796 Cinta teflon 18mmx25m, un 1 6.175 6.175 Mano de obra, un 1 191.000 191.000 Total por: un 318.149 Instalación Agua Fría para Pileta de Cocina Caño 1/2" roscable, ml 2 9.005 18.010 Codo 90º roscable, 1/2", un 3 2.546 7.638 Tapón roscable macho de 1/2", un 1 780 780 Llave de paso 1/2" bronce sin campana, un 1 57.538 57.538 Adhesivo 75gr, un 0,2 8.981 1.703 Cinta teflon 18mmx25m, un 1 6.175 6.175 Mano de obra, un 1 126.000 126.000 Total por: un 217.937
Agua
Fría
Pileta de Cocina Caño de 1/2" para agua caliente, ml 6 8.853 53.118 Caño roscable 1/2", ml 6 9.005 54.030 Codo de 1/2" galv, un 6 6.853 41.118 Tee 1/2" galv, un 2 5.392 10.784 Unión doble 1/2" galv, un 2 17.354 34.708 Alma doble 1/2" galv, un 4 6.099 24.396 Llave de paso 1/2" FV cromo, un 2 65.883 131.766 Prolongador FV 1/2"x1 cromo sin campana, un 1 33.376 33.376 Sellador p/ caño 125cc IPS, un 0,4 38.944 15.578 Cinta teflon 18mmx25m, un 2 6.175 12.350 Mano de obra, un 1 254.000 254.000 Total por: un 665.244
Agua Fría en Baño Social
Instalación Agua Fría para
Instalación
Caliente y
para
Completo
incluye bañera Juego con cisterna baja Deca Ravena Crema, juego 1 1.755.000 1.755.000 Griferia FV Linea Clásica (Ducha, bidet y lavatorio con sus juego 1 1.918.000 1.918.000 Termocalefón 80 lt, un 1 1.050.000 1.050.000 Soporte para calefón, par 2 4.040 8.080 Botiquin 44x58x11cm Astra, un 1 513.000 513.000 Conexion cromada 1/2"x30, un 7 22.940 160.580 - Revista Mandu’a 56
- Frío y Caliente - No

Baño de Servicio

Pileta de Cocina - Acero Inoxidable - Frío

Baño Social - Superior

INSTALACIÓN ELÉCTRICA

Registro eléctrico 30x30x70cm

y Caliente Pileta 2 bachas, un 1 527.550 527.550 Griferia externa FV, un 1 639.000 639.000 Mano de obra, un 1 122.000 122.000 Total por: un 1.288.550 Pileta de Lavar y Lavarropas Pileta granítica 1 bacha 1,20x0,60 m, un 1 120.000 120.000 Canilla 1/2" bronce FV, un 2 68.000 136.000 Sopapa para pileta de granito, un 1 7.000 7.000 Mano de obra, un 1 122.000 122.000 Total por: un 385.000 Mesada de Granito para Cocina Granito natural m2 2,28 550.000 1.254.000 Moldura pecho paloma, ml 3,2 50.000 160.000 Zócalo de granito, m2 0,5 550.000 275.000 MO agujereado de un 1 60.000 60.000 MO colocación de mesada, un 3,8 50.000 190.000 MO colocación zócalo, ml 5 40.000 200.000 Total por: un 2.139.000 Mesada de Mármol para Baño Social (0.70x0.60m) Mármol blanco, m2 0,42 680.000 285.600 Moldura pecho paloma, ml 1,9 50.000 95.000 Juego de soportes, juego 1 40.000 40.000 Zócalo de mármol, m2 0,07 620.000 43.400 MO agujereado de un 1 60.000 60.000 MO colocación de mesada, un 1 50.000 50.000 MO colocación de ml 0,7 40.000 28.000 Total por: un 602.000 Mesada de Mármol para Baño Completo (1.00x0.60m) Mármol blanco, m2 0,6 680.000 408.000 Moldura pecho paloma, ml 2,2 50.000 110.000 Juego de soportes, juego 1 40.000 40.000 Zócalo de mármol, m2 0,1 620.000 62.000 MO agujereado de un 1 60.000 60.000 MO colocación de mesada, un 1 50.000 50.000 MO colocación de ml 1 40.000 40.000 Total por: un 770.000
Pilar de Mampostería (0.45x0.45x1.70m - No incluye cimiento y nivelación) Ladrillo común, un 170 700 119.000 Cemento tipo 1, kg 30 1.200 36.000 Cal triturada, kg 60 1.225 73.500 Arena lavada, m3 0,25 65.000 16.250 Revoque fratazado, m2 3,06 22.000 67.320 Mano de obra, un 1 480.000 480.000 Total por: un 792.070
Ladrillo común, un 50 700 35.000 Cemento tipo 1, kg 6 1.200 7.200 Cal triturada, kg 12 1.225 14.700 Arena lavada, m3 0,05 65.000 3.250 Tapa registro de metal, un 1 56.000 56.000 Mano de obra, un 1 105.000 105.000 Total por: un 221.150 Idem anterior de 40x40x70cm un 302.700
Juego para baño con cisterna alta, juego 1 465.000 465.000 Tubo de bajada de embutir p/ cisterna nº 4, 1.60m, un 1 10.446 10.446 Botiquín Astra, un 1 138.245 138.245 Ducha eléctrica Corona, un 1 69.600 69.600 Brazo cromado para ducha 1/2x35 cm, un 1 11.266 11.266 Sopapa cromada para lavatorio FV, un 1 58.534 58.534 Bajada p/ lavatorio, un 1 12.064 12.064 Canilla para lavatorio FV económica, un 1 68.000 68.000 Canilla de 1/2" cromo para bajo ducha FV, un 1 66.245 66.245 Conexión cromada 1/2x30 cm, un 2 22.940 45.880 Enchufe de PVC un 1 2.663 2.663 Tornilo de bronce p/ fijar artefactos, un 6 5.025 30.150 Cemento blanco, kg 1 4.500 4.500 Mano de obra, un 1 234.000 234.000 Total por: un 1.216.593 Baño Social - Standard Juego para baño social con cisterna alta Deca Ravena, juego 1 977.990 977.990 Canilla para lavatorio Imperatriz, un 1 260.000 260.000 Enchufe de PVC un 1 2.663 2.663 Conexión cromada 1/2x30 cm, un 2 22.940 45.880 Prolongador FV cromo 1/2x1, un 2 33.376 66.572 Sopapa cromada FV para lavatorio, un 1 58.534 58.534 Roseta FV cromada, un 2 5.978 11.956 Tornilo de bronce p/ fijar artefactos, un 6 5.025 30.150 Cemento blanco, kg 0,5 4.500 2.250 Masilla común, kg 0,25 13.000 3.250 Mano de obra, un 1 234.000 234.000 Total por: un 1.693.425
Juego para baño social con cisterna baja Deca Montecarlo Crema, juego 1 1.638.000 1.638.000 Canilla para lavatorio FV Linea 61, un 1 153.520 153.520 Toallero aro cromo FV, un 1 210.000 210.000 Enchufe de PVC un 1 2.663 2.663 Conexión cromada 1/2x30 cm, un 2 22.940 45.880 Prolongador FV cromo 1/2x1, un 2 33.376 66.752 Sopapa cromada FV para lavatorio, un 1 58.534 58.534 Roseta FV cromada, un 2 5.978 11.956 Cemento blanco, kg 0,5 4.500 2.250 Masilla común, kg 0,25 13.000 3.250 Mano de obra, un 1 234.000 234.000 Total por: un 2.426.805 Pileta de Cocina - Acero Inoxidable - Frío Solo Pileta 1 bacha, un 1 302.000 302.000 Canilla pico móvil frío solo FV, un 1 153.520 153.520 Mano de obra, un 1 122.000 122.000 Total por: un 577.520 COSTEO DE OBRA Revista Mandu’a - 57

COSTEO DE OBRA

con Llaves Europeas

1.548.060 Trifásico con acometida de 3m y limitadora hasta 45 A

(Con línea subterránea o embutido en mampostería)

hasta 40 A

de 3m y limi-

Tablero Principal con 6 llaves

Bocas de Lámparas y Tomas de Corriente

(Incluye colocación de electroducto y cableado hasta 5m del tablero principal)

Puesto de Medición Provisorio Monofásico con limitadora hasta 40 A Nicho monofásico, un 1 9.240 9.240 Poste de caranday 6 m, un 1 100.000 100.000 Curva galvanizada 1", un 4 24.970 99.880 Caño acero 3/4"x3m Ayan, ml 2 8.500 17.000 Aislador roldana BT 72x72mm Germer, un 4 2.900 11.600 Bulón 3/8x4", un 4 900 3.600 Pipeta de 1", un 2 1.200 2.400 Jabalina de cobre 5/8"x2m Intelli, un 1 27.000 27.000 Abrazadera p/ jabalina Intelli, un 1 3.000 3.000 Caja precintable, un 1 14.500 14.500 Disyuntor TM 1x10A Electromar, un 1 16.500 16.500 Cable de 4 mm, ml 40 5.964 238.560 Mano de obra, boca 12 53.000 636.000 Total por: un 1.179.280 Trifásico con limitadora hasta 45 A Nicho trifasico un 1 10.010 10.010 Poste de caranday de 6,00 m un 1 100.000 100.000 Curva galvanizada 1 un 4 24.970 99.880 Caño acero 1" x 3m ml 2 15.000 30.000 Aislador roldana BT 72x72mm Germer, un 8 2.900 23.200 Bulón 3/8x4", un 8 900 7.200 Pipeta de 1" un 2 1.200 2.400 Jabalina de cobre 5/8"x2m Intelli, un 1 27.000 27.000 Abrazadera para jabalina Intelli, un 1 3.000 3.000 Caja precintable, un 1 14.500 14.500 Disyuntor TM 3x30A Electromar, un 1 110.000 110.000 Cable de 4 mm, ml 80 5.964 477.120 Mano de obra, boca 14 53.000 742.000 Total por: un 1.646.310 Puesto de Medición Definitivo
Monofásico con
tadora
Caño galvanizado un 1 500.000 500.000 Curva galvanizada 1 un 2 24.970 49.940 Cruceta monofasica 2", un 1 5.500 5.500 Unión reducción galv. 2" a 1", un 1 9.500 9.500 Aislador roldana BT 72x72mm Germer, un 2 2.900 5.800 Bulón 3/8x4", un 2 900 1.800 Puerta ANDE un 1 10.000 10.000 Fondo de madera monofásico, un 1 4.000 4.000 Jabalina de cobre 5/8"x2m Intelli, un 1 27.000 27.000 Abrazadera para jabalina Intelli, un 1 3.000 3.000 Caja precintable, un 1 8.850 8.850 Cable de 4 mm, ml 25 5.964 149.100 Disyuntor TM 1x10A Electromar, un 1 16.500 16.500 Mano de obra, boca 14 53.000 742.000 Total por: un 1.532.990 Idem
Caño galv. 2 1/2"x6m, un 1 565.000 565.000 Curva galvanizada 1 un 2 24.970 49.940 Cruceta trifasica 2 1/2", un 1 12.000 12.000 Unión reducción galv. 2 1/2" a 1 1/4", un 1 11.500 11.500 Aislador roldana BT 72x72mm Germer, un 4 2.900 11.600 Bulón 3/8x4", un 4 900 3.600 Puerta ANDE trifasica, un 1 12.000 12.000 Fondo de madera trifásico, un 1 4.000 4.000 Jabalina de cobre 5/8"x2m Intelli, un 1 27.000 27.000 Abrazadera para jabalina Intelli, un 1 3.000 3.000 Caja precintable un 1 14.500 14.500 Cable de 6 mm, ml 45 8.778 395.010 Interruptor TM 3x20A Legrand, un 1 151.250 151.250 Mano de obra, boca 18 53.000 954.000 Total por: un 2.214.400 Línea Subterránea Monofásica con cable de 4 a 10mm Caño negro plástico ml 1 750 750 Cable de 4 mm, ml 2 5.964 11.928 Ladrillo común, un 5 700 3.500 Cemento tipo 1, kg 0,5 1.200 600 Mano de obra, un 1 7.000 7.000 Total por: ml 23.778 Trifásica con cable de 4 a 10mm Caño negro plástico 1", ml 1 1.000 1.000 Cable de 6 mm, ml 4 8.778 35.112 Ladrillo común, un 5 700 3.500 Cemento tipo 1, kg 0,5 1.200 600 Mano de obra, un 1 13.000 13.000 Total por: ml 53.212 Línea Embutida en Mamposteria Monofásica con Cable de 4 a 10 mm Caño corrugado 5/8", ml 1 350 350 Cable de 4 mm, ml 2 5.964 11.928 Mano de obra, un 1 7.000 7.000 Total por: ml 19.278
acometida
anterior
un
Caja p/ tablero principal 12 TM Steck, un 1 80.000 80.000 Disyuntor TM 1x10A Electromar, un 5 16.500 82.500 Disyuntor TM 1x50A Electromar, un 1 24.200 24.200 MO colocación caja embutida, un 1 159.000 159.000 MO colocación llaves, 6 204.000 Total por: un 549.700 Idem anterior con Llaves Europeas un 643.200
TM
Una Lámpara con
Caja de llave plastica, un 1 3.300 3.300 Caja metálica conexión Multielectrica, un 1 1.400 1.400 Caño corrugado 3/4", ml 5 400 2.000 Cable de 2 mm, ml 11 3.129 34.419 Llave unipolar + tapa, un 1 7.700 7.700 Cinta aisladora PVC 20m Million, un 0,01 5.000 50 Mano de obra, boca 1 53.000 Total por: un 101.869 - Revista Mandu’a 58
su Interruptor

Una

Toma para Antena de TV o Audio

Línea Embutida para AA sin cableado

Línea de Timbre con su pulsador

Lámpara
2 Llaves de Combinación Caja de llave plástica, un 2 3.300 6.600 Caja metálica conexión Multielectrica, un 1 1.400 1.400 Caño corrugado 5/8", ml 5 350 1.750 Cable de 1 mm, ml 20 1.698 33.960 Llave combinación + un 2 12.870 25.740 Cinta aisladora PVC 20m Million, un 0,01 5.000 50 Mano de obra, boca 2 53.000 106.000 Total por: un 175.500 Un Tomacorriente Caja de llave plastica, un 1 3.300 3.300 Caja metálica conexión Multielectrica, un 1 1.400 1.400 Caño corrugado 3/4", ml 5 400 2.000 Llave toma corriente + tapa, un 1 7.700 7.700 Cable de 2 mm, ml 11 3.129 34.419 Cinta aisladora PVC 20m Million, un 0,01 5.000 50 Mano de obra, boca 1 53.000 Total por: un 101.869 Circuitos Independientes (Hasta 5m del tablero principal en cañerías ya instaladas para otros circuitos). Circuito para Calefón/AA/Ducha Eléctrica Caja para llave TM unipolar, un 1 8.850 8.850 Llave para calefón 25 un 1 27.720 27.720 Jabalina de cobre 5/8"x2m Intelli, un 1 27.000 27.000 Abrazadera para jabalina Intelli, un 1 3.000 3.000 Cable de 4 mm, ml 13 5.964 77.732 Cinta aisladora PVC 20m Million, un 0,01 5.000 50 Mano de obra, boca 4 53.000 212.000 Total por: un 356.152
con
Caja para llave TM unipolar, un 1 8.850 8.850 Tapa ciega cuadrada, un 1 1.500 1.500 Caño corrugado 3/4", ml 2 400 800 Mano de obra, 2 4.734 Total por: un 15.884 Circuitos de Comunicación (Incluye colocación de electroducto y cableado hasta 5m del tablero). Línea de teléfono con su toma. Caño corrugado 5/8", ml 5 350 1.750 Cable p/ telefono 2x0.20 mm, ml 11 1.373 15.103 Caja de llave plastica, un 1 3.300 3.300 Toma teléfono + tapa, un 1 27.720 27.720 Mano de obra, boca 2 53.000 106.000 Total por: un 153.873
Caja de llave plastica, un 1 3.300 3.300 Caja metálica conexión Multielectrica, un 1 1.400 1.400 Caño corrugado 5/8", ml 10 350 3.500 Cable de 1 mm, ml 32 1.698 54.336 Llave timbre + tapa, un 1 20.570 20.570 Cinta aisladora PVC 20m Million, un 0,01 5.000 50 Timbre chicharra externa 220V, un 1 19.000 19.000 Mano de obra, boca 2 53.000 106.000 Total por: un 208.156
Caño corrugado 5/8", ml 5 350 1.750 Cable para TV 2x0,35 mm, ml 6 4.397 26.382 Caja de llave plastica, un 1 3.300 3.300 Toma TV cable + tapa, un 1 27.720 27.720 Mano de obra, boca 2 53.000 106.000 Total por: un 165.152 CARPINTERIA DE MADERA Marco Recto (de 0.15cm para puerta de 2.10m de alto) De Ybyrapyta de 0.70 m de ancho Marco de ybyrapyta, ml 5,1 40.000 204.000 Tirafondo galv. 3/8x5", un 5 1.500 7.500 Cemento tipo 1, kg 1 1.200 1.200 Arena lavada, m3 0,01 65.000 650 Mano de obra, un 1 111.000 111.000 Total por: un 324.350 Idem anterior de Lapacho 426.350 De Ybyrapyta de 0.80 m de ancho Marco de ybyrapyta, ml 5,2 40.000 208.000 Tirafondo galv. 3/8x5", un 6 1.500 9.000 Cemento tipo 1, kg 1 1.200 1.200 Arena lavada, m3 0,01 65.000 650 Mano de obra, un 1 111.000 111.000 Total por: un 329.850 De Ybyrapyta de 1.50 m de ancho Marco de ybyrapyta, ml 5,9 40.000 236.000 Tirafondo galv. 3/8x5", un 8 1.500 12.000 Cemento tipo 1, kg 1,2 1.200 1.440 Arena lavada, m3 0,02 65.000 1300 Mano de obra, un 1 111.000 111.000 Total por: un 361.740 Idem anterior de Lapacho un 479.740 Marco Recto (de 0.15cm para ventana de 1.20m de alto) de Ybyrapyta de 1.50 m Marco de ybyrapyta, ml 5,8 40.000 232.000 Tirafondo galv. 3/8x5", un 8 1.500 12.000 Cemento tipo 1, kg 1 1.200 1.200 Arena lavada, m3 0,01 65.000 650 Mano de obra, un 1 111.000 111.000 Total por: un 356.850 Idem anterior de Lapacho un 472.850 De Ybyrapyta de 2.00 m de ancho Marco de ybyrapyta, ml 6,8 40.000 272.000 Tirafondo galv. 3/8x5", un 8 1.500 12.000 Cemento tipo 1, kg 1,2 1.200 1.440 Arena lavada, m3 0,02 65.000 1.300 Mano de obra, un 1 111.000 111.000 Total por: un 397.740 Idem anterior de Lapacho 533.740 COSTEO DE OBRA Revista Mandu’a - 59

De Lapacho de 1.00m de alto y 0.80m de ancho

Ventanas. Vidriera (1.50x1.20m - 3 hojas de abrir)

Puerta Placa de Eucalipto (0.80x2.10m)

Persiana (1.50x2.10m - 3 hojas de abrir)

COSTEO DE OBRA
Ventana vidriera m2 1,8 280.000 504.000 Ficha 5 agujeros, par 2 10.000 20.000 Ficha 3 agujeros, un 1 9.000 9.000 Tornillo 1x7, un 52 150 7.800 Falleba de arrimar un 1 25.500 25.500 Pasador 150 mm un 2 18.000 36.000 Varilla p/ falleba 1.20 un 1 24.500 24.500 Mano de obra, c/hoja 3 36.000 108.000 Total por: un 734.800 Vidriera (2.00x1.20m - 4 hojas) un 985.600 Vidriera (1.00x0.80m) un 372.000 Persiana (1.50x1.20m - 3 hojas de abrir) Ventana persiana fija, m2 1,8 350.000 630.000 Ficha 5 agujeros, par 2 10.000 20.000 Ficha 3 agujeros, un 1 9.000 9.000 Tornillo 1x7, un 52 150 7.800 Falleba de arrimar un 1 25.500 25.500 Pasador de 150 mm cromo, un 2 18.000 36.000 Varilla p/ falleba 1.20 un 1 24.500 24.500 Mano de obra, c/hoja 3 36.000 108.000 Total por: un 860.800 Persiana (2.00x1.20m - 4 hojas) un 1.153.600 Colocación de Contramarco Contramarco cedro 45 mm, ml 1 6.000 6.000 Clavo 1/2" o 3/4", kg 0,1 25.000 2.500 Mano de obra, ml 1 10.000 10.000 Total por: ml 18.500 CARPINTERIA METALICA Balancín hasta 1 m2 Balancín fabricado con ángulo de 5/8 y T 3/4x1/8", m2 1 180.000 180.000 Cemento tipo 1, kg 1 1.200 1.200 Arena lavada, m3 0,01 65.000 650 Mano de obra, un 1 77.000 77.000 Total por: un 258.850 Balancín de 2 m2 m2 269.850 Balancín de 0.60x0.60 m 143.658 Balancín de 0.60x1.10 m 197.658 Balancín de 1.00x0.80 m 222.850 Puerta Metálica Tipo Reja (0.80x2.10 m) Puerta, marco y herrajes, un 1 530.000 530.000 Cemento tipo 1, kg 1,5 1.200 1.800 Arena lavada, m3 0,02 65.000 1.300 Mano de obra, un 1 77.000 77.000 Total por: un 599.100
Marco de lapacho recto, ml 3,6 60.000 216.000 Tirafondo galv. 3/8x5", un 4 1.500 6.000 Cemento tipo 1, kg 1,2 1.200 1.440 Arena lavada, m3 0,02 65.000 1.300 Mano de obra, un 1 111.000 111.000 Total por: un 335.740
Puerta placa, un 1 200.000 200.000 Ficha 5 agujeros, par 1,5 10.000 15.000 Tornillo 1x7, un 30 150 4.500 Cerradura externa con manija, un 1 120.000 120.000 Mano de obra, c/hoja 1 92.000 92.000 Total por: un 431.500 Idem anterior de Cupay un 422.800 Idem anterior de Eucalipto 356.500 Tablero (0.80x2.10m) Puerta tablero común, un 1 700.000 700.000 Ficha 5 agujeros, par 1,5 10.000 15.000 Tornillo 1x7, un 30 150 4.500 Cerradura externa con manija, un 1 120.000 120.000 Mano de obra, c/hoja 1 96.000 96.000 Total por: un 935.500 Tablero - Punta Diamante (0.80x2.10m) Puerta de cedro con molduras, un 1 2.000.000 2.000.000 Ficha 5 agujeros, par 1,5 10.000 15.000 Tornillo 1x7, un 30 150 4.500 Cerradura para puerta de entrada, un 1 190.000 190.000 Mano de obra, c/hoja 1 96.000 96.000 Total por: un 2.305.500 Vidriera Sencilla (1.50x2.10m - 3 hojas de abrir) Puerta vidriera, m2 3,15 280.000 882.000 Ficha 5 agujeros, par 3 10.000 30.000 Tornillo 1x7, un 60 150 9.000 Falleba de arrimar un 1 25.500 25.500 Pasador 150 mm un 2 18.000 36.000 Varilla p/ falleba 1.20 un 2 24.500 49.000 Mano de obra, c/hoja 3 46.000 138.000 Total por: un 1.169.500
Puerta (varilla 45 cm) m2 3,15 350.000 1.102.500 Ficha 5 agujeros par 3 10.000 30.000 Tornillo 1x7, un 60 150 9.000 Falleba de arrimar un 1 25.500 25.500 Pasador 150 mm un 2 18.000 36.000 Varilla p/ falleba 1.20 un 2 24.500 49.000 Mano de obra, c/hoja 3 46.000 138.000 Total por: un 1.390.000 - Revista Mandu’a 60

Cortina Metálica (2.40x2.60 m)

Reja de Hierro Artística Sencilla (1.50x1,20

Portón Cochera (3.00x2.00 m)

Cortina sin taparrollo, m2 6,24 550.000 Puerta metálica de escape, un 1 650.000 650.000 Mano de obra, un 1 264.000 264.000 Total por: un 4.346.000
Reja artística sencilla, m2 1,8 250.000 450.000 Cemento tipo 1, kg 3 1.200 3.600 Arena lavada, m3 0,01 65.000 650 Mano de obra, un 1 44.000 44.000 Total por: un 498.250 Baranda Metálica de Escalera Baranda sencilla, m2 1 275.000 275.000 Cemento tipo 1, kg 1 1.200 1.200 Arena lavada, m3 0,01 65.000 650 Mano de obra, ml 1 23.000 23.000 Total por: ml 299.850 Portón Metálico (1.00x1.50 m) Portón de rejas, m2 1,5 280.000 420.000 Cemento tipo 1, kg 2 1.200 2.400 Arena lavada, m3 0,03 65.000 1.950 Mano de obra, un 1 106.000 106.000 Total por: un 530.350
m)
Portón con cerradura, m2 6 270.000 Cemento tipo 1, kg 5 1.200 6.000 Arena lavada, m3 0,03 65.000 1.950 Mano de obra, c/ hoja 2 200.000 400.000 Total por: un 2.027.950 Idem anterior de 4.40x4.00 m un 5.167.250 Escalera Metálica Recta Escalera metálica, un 4 330.000 Cemento tipo 1, kg 5 1.200 6.000 Arena lavada, m3 0,05 65.000 3.250 Mano de obra, un 1 175.000 175.000 Total por: un 1.504.250 PINTURAS Pintura de Pared a la Cal Cal triturada, kg 0,5 1.225 613 Colorante Pintupar un 0,05 11.500 575 Fijador Inatix, lt 0,6 4.800 2.880 Lijas, un 0,25 750 188 Mano de obra, m2 1 9.000 9.000 Total por: m2 13.255 Idem anterior de Cielorraso 14.255 Al Látex Interior con Enduido Lijas, un 0,25 750 188 Sellador acrilico, lt 0,05 7.777 389 Látex para interior, lt 0,3 16.714 5.014 Enduido para interior, kg 1,2 4.840 5.808 Mano de obra, m2 1 24.000 24.000 Total por: m2 35.399 Idem anterior sin enduido m2 22.591 Al Látex Exterior con Enduido Lijas, un 0,25 750 188 Sellador acrilico, lt 0,05 7.777 389 Látex para exterior, lt 0,3 16.714 5.014 Enduido para exterior, kg 1,2 5.320 6.384 Mano de obra, m2 1 24.000 24.000 Total por: m2 35.975 Idem anterior sin enduido m2 22.591 Enduido Enduido para interior, kg 1,2 4.840 5.808 Lijas, un 0,5 750 375 Mano de obra, m2 1 12.000 12.000 Total por: m2 18.183 Tejuela o Tejuelón al Barniz Acido muriático, lt 0,07 9.060 634 Barniz sintético brillante, lt 0,25 36.944 9.236 Mano de obra, m2 1 17.000 17.000 Total por: m2 26.870 Tejuela a la Cal y Maderamen con Esmalte Sintético Cal triturada, kg 0,2 1.225 245 Esmalte sintético lt 0,3 32.750 9.825 Mano de obra, m2 1 17.000 17.000 Total por: m2 27.070 Barnizado de Machimbre Aceite de linaza, un 0,2 15.400 3.080 Barniz sintético brillante, lt 0,25 36.944 9.236 Mano de obra, m2 1 15.000 15.000 Total por: m2 27.316 Abertura de Madera con Esmalte Aceite de linaza, un 0,15 15.400 2.310 Esmalte sintético lt 0,3 32.750 9.825 Aguarrás, un 0,1 12.260 1.226 Lijas, un 1 750 750 Mano de obra, m2 1 24.000 24.000 Total por: m2 38.111 COSTEO DE OBRA Revista Mandu’a - 61

Estufa (Boca de 1.00 m)

incluye campana y garganta a nivel de techo de tirantes/ losa o cielo raso, hasta 3,30 mt - No incluye ducto ni chimenea

Parrilla (boca de 1.00 m)

Con loseta de Hº (0,06 x 1.00x1.00m) incluye campana y garganta a nivel de techo de tirantes/losa o cielo raso, hasta 3,30 mt - No incluye ducto ni

Abertura de Madera con Barníz Aceite de linaza, un 0,15 15.400 2.310 Barníz sintético brillante, lt 0,25 36.944 9.236 Lijas, un 0,3 750 225 Mano de obra, m2 1 20.000 20.000 Total por: m2 31.771 Abertura Metálica con Esmalte Antióxido, lt 0,13 35.277 4.410 Esmalte sintético lt 0,3 32.750 9.825 Aguarrás, un 0,1 12.260 1.226 Lijas, un 1 750 750 Mano de obra, m2 1 17.000 17.000 Total por: m2 33.211 Canaleta y Bajada con Esmalte Sintético Antióxido, lt 0,2 35.277 7.055 Esmalte sintético lt 0,1 32.750 3.275 Aguarrás, un 0,1 12.260 1.226 Lijas, un 0,5 750 375 Mano de obra, ml 1 10.000 10.000 Total por: ml 21.931 Tratamiento de Ladrillo Visto Acido muriático, lt 0,07 9.060 634 Silicona, lt 0,2 10.500 2.100 Mano de obra, m2 1 15.000 15.000 Total por: m2 17.134 VARIOS Moldura Doble Ladrillo común, un 12 700 8.400 Arena lavada, m3 0,1 65.000 6.500 Cemento tipo 1, kg 12 1.200 14.400 Cal triturada, kg 20 1.225 24.500 Mano de obra, ml 1 63.000 63.000 Total por: ml 116.800 Moldura Sencilla Cemento tipo 1, kg 5 1.200 6.000 Cal triturada, kg 3 1.225 3.675 Arena lavada, m3 0,02 65.000 1.300 Mano de obra, ml 1 49.000 49.000 Total por: ml 59.975
COSTEO DE OBRA
Ladrillo prensado Ita Yby, un 620 700 434.000 Ladrillo refractario, un 110 5.363 589.930 Cemento tipo 1, kg 150 1.260 189.000 Arena lavada, m3 1 65.000 65.000 Arena refractaria, kg 5 3.000 15.000 Dintel prefabricado de 1,50 m, un 1 34.186 34.186 Clavo 2x11” kg 0,25 15.000 3.750 Mano de obra, un 1 1.849.000 Total por: un 2.996.040
chimenea Ladrillo prensado Ita Yvy, un 750 759 569.250 Ladrillo refractario, un 110 3.500 385.000 Tejuelón Yoayú un 20 2.602 52.040 Cemento Tipo 1, kg 150 1.260 189.000 Arena lavada, m3 1 65.000 65.000 Arena refractaria, kg 5 3.000 15.000 Piedra triturada 4ta Tn 0,15 110.000 16.500 Varilla conformada, kg 3 11.000 33.000 Dintel prefabricado de 1,50 mt kg 1 34.186 34.186 Mano de obra, un 1 1.980.000 Parrilla enlozada con carbonera y cenicero graduable, colocada un 1 2.200.000 Total gral. por: 5.010.000 Balaustre Sencillo Balaustre sencillo (h=42 cm), un 5 4.840 24.200 Ladrillo común, un 12 700 8.400 Varilla conformada, kg 0,5 10.000 5.000 Cemento tipo 1, kg 1 1.200 1.200 Cal triturada, kg 1 1.225 1.225 Arena lavada, m3 0,01 65.000 650 Mano de obra, ml 1 16.000 16.000 Total por: ml 56.675 Tanque de Agua en Fibra de Vidrio 1000 lt Ladrillo común, un 100 700 70.000 Cemento tipo 1, kg 12 1.200 14.400 Cal triturada, kg 10 1.225 12.250 Arena lavada, m3 0,05 65.000 3.250 Dintel 1mx14cm, un 2 30.100 60.200 Tanque Fibrac, un 1 767.000 767.000 Mano de obra, un 1 85.000 85.000 Total por: un 1.012.100 Tanque de Agua en Fibra de Vidrio 500 lt Ladrillo común, un 100 700 70.000 Cemento tipo 1, kg 12 1.200 14.440 Cal triturada, kg 10 1.225 12.250 Arena lavada, m3 0,3 65.000 19.500 Piedra triturada de IV, tn 0,3 120.000 36.000 Varilla conformada, kg 3 11.000 33.000 Tanque Fibrac, un 1 460.000 460.000 Mano de obra, un 1 75.000 75.000 Total por: un 717.150 - Revista Mandu’a 62

PROYECTOS MANDU’A

Descripción general:

Todas las construcciones se realizan en Asunción o alrededores sobre un terreno seco con una capacidad portante de 3 Kg/cm2, que no requiere movimiento de suelo. El análisis de costo incluye los gastos generales (10%) y beneficio de la empresa (15%). Se excluyen los gastos complementarios correspondientes a los Honorarios Profesionales por Proyecto y Dirección de Obras. No se consideran los gastos por Permiso Municipal, de conexión

y consumo por servicios de agua y eléctricidad. Tampoco se considera el valor del predio. Los precios de materiales y de mano de obra corresponden a los publicados por nuestra revista, en cuya guía de costeo de obra se desarrolla cada uno de los ítems. Los precios de mano de obra se basan en consultas realizadas con contratistas y profesionales de construcción. No incluyen cargas sociales, seguro de accidentes, etc.

Casa Mandu’a - Vivienda Modelo 1

Descripción: Vivienda económica con una superficie de 67,7 m2

Desarrollo de la Obra

• Fundación: Piedra bruta colocada. Nivelación: Mampostería de 0,30 con ladrillos comunes. • Aislación: Horizontal de muros realizada en cajón con asfalto sólido diluido en caliente.

• Mampostería de elevación: Ladrillo hueco de 6 agujeros. En baños y paredes con instalación hidráulica, de ladrillo común.

• Dinteles: Envarillado continuo de 2 varillas y de 4 varillas sobre aberturas. • Techo: Tejas españolas prensadas 1ª B, con tejuelones, maderamen de yvyrapyta, aislación con cartón asfáltico, con terminación de boca teja, mojinete y tapa doble. • Carpintería de madera: Marcos de yvyrapyta, aberturas de madera de guatambú, mueble de cocina revestido con laminado plástico. • Revestidos: Azulejos esmaltados lisos 15x15, en cocina, lavadero y baños, con una altura de 1,80 m. •

Revoques: Base con azotada impermeable de 0,5 cm y revoque con aditivo hidrófugo, en interior a 1 capa y exterior en la faja perimetral de 0,50 m. Incluye vértice de mampostería y borde de aberturas. •

Instalación eléctrica: Monofásica, llaves termomagnéticas brasileñas, Placas, picos de luz y tomas argentinas. Sin artefactos.

• Instalación sanitaria: Cañería hidráulica de agua fría, cloacal y pluvial, de PVC. Loza de baño brasileña, con cisterna alta. Pileta de lavar de granito reconstituido. Pi-

PROYECTOS MANDU’A
Construcción Básica Un. Cantidad Costo Unitario Total Gs.
Replanteo y marcación m2 67,70 3.100 209.670 Cimiento PBC (1:12) m3 13,50 322.520 4.354.020 Nivelación 0.30 m con cemento Tipo 1 m2 12,55 171.113 2.147.462 Aislación horizontal 0.15 con asfalto ml 43,00 18.944 814.592 Elevación 0.15 ladrillo común y Tipo 1 m2 20,00 92.412 1.848.245 Elevación 0.15 ladrillo hueco 6 tubos y Tipo 1 m2 42,60 54.608 2.326.280 Elevación 0.15 con ladrillo hueco 6 tubos, 1 cara vista y Tipo 1 m2 102,00 58.413 5.958.075 Sardinel con ladrillo común ml 36,00 61.473 2.213.010 Pilar de ladrillo común 30x30 a la vista ml 2,50 82.350 205.875 Dintel sobre aberturas/Envarillado de mampostería ml 47,00 19.850 932.950 Techo: teja española, tejuelón, aislante, vigas y tirantes de yvyrapyta m2 94,00 282.499 26.554.906 Contrapiso de Hº de cascotes 10 cm m2 65,00 42.905 2.788.825 Revoque 1 capa, 1.5 cm sin hidrófugo m2 115,50 30.000 3.465.000 Revoque 1 capa con hidrófugo en exteriores m2 111,00 31.515 3.498.165 Azotada impermeable 0.5 cm m2 226,50 12.735 2.884.478 Azulejo 20x20 cm m2 11,70 113.175 1.324.148 Baldosa calcárea base gris 20x20 cm m2 61,50 79.625 4.896.938 Piso cerámico esmaltado 20x30 cm m2 3,50 70.970 248.395 Carpeta para piso cerámico m2 3,50 26.815 93.853 Zócalo calcáreo base gris ml 64,80 34.813 2.255.850 Desagüe cloacal global 1,00 2.709.457 2.709.457 Instalación hidráulica global 1,00 1.717.397 1.717.397 Instalación desagüe pluvial global 1,00 4.430.825 4.430.825 Colocación artefactos sanitarios y griferías global 1,00 4.016.956 4.016.956 Instalación eléctrica global 1,00 6.869.220 6.869.220 Carpintería metálica global 1,00 900.750 900.750 Carpintería de madera global 1,00 9.532.050 9.532.050 Pinturas global 1,00 9.886.015 9.886.015 Vidrios doble incoloro de 3 mm, colocado m2 5,00 110.000 550.000 Limpieza final y retiro de escombros (0,8%) 877.069 Imprevistos, mermas y roturas (3%) 3.289.008 Costo de obra básica 113.799.680 Gastos generales y beneficios 28.449.920 Total Gs 142.249.600 Revista Mandu’a - 63

leta de cocina de acero inoxidable, 1 bacha. Las canaletas y bajadas, de chapa galvanizada Nº 26. • Pintura: Interior y exterior a la cal con fijador y color. Mampostería a la vista con protección a base de silicona, previa limpieza con ácido muriático. Carpintería de madera y maderamen de techo al barniz. Carpintería metálica y canaletas con esmalte sintético.

Dúplex Mandu’a Vivienda Modelo 2

Descripción: Conjunto de 3 viviendas, cada una de 121,5 m2, con estructura de losa prefabricada con paredes portantes y disminuyendo pilares y zapatas.

Desarrollo de la Obra

• Fundación: De piedra bruta colocada, con encadenado inferior de HºAº y zapatas de Hº Aº como base de pilares.

• Estructura: Losa cerámica a la vista que se apoya en paredes portantes, con algunos pilares y vigas de HºAº. Nivelación y Dinteles sobre aberturas y techo. • Revestidos: Idem modelo 1. • Aislación: Horizontal idem modelo 1. De baño en planta alta con alisada e impermeabilizante de base asfáltica. • Mampostería de elevación: Ladrillo laminado a la vista en fachada; ladrillo común en baños, área de servicio y paredes con instalación hidráulica; ladrillo hueco de 6 agujeros en interiores y medianeras. • Carpintería de Madera: Marcos de yvyrapyta, aberturas de cedro, placard de guatambú, mueble de cocina revestido con laminado plástico. • Carpintería Metálica: Balancines de ángulos, rejas artísticas sencillas y portón de cochera de chapa doblada. • Pisos: Contrapiso de cascotes, baldosa calcárea de base gris en área de servicio, layota nacional en cochera y parrilla. Cerámica esmaltada sobre carpeta alisada de 30x30 en planta baja, área social, escalera y cocina. De 20x20 en baños. Veredita tipo ka’a. Alfombra de 5 mm sobre carpeta de base en planta alta. • Zócalos: Calcáreo, cerámica esmaltada, layotas, en su caso y madera donde lleva alfombra. • Revoques: Común filtrado por ladrillos comunes con azotado de adherencia en ladrillhidrófugo en exteriores y áreas húmedas. • Instalación eléctrica: Monofásica, llaves TM brasileñas, placas, picos de luz y tomas argentinas. Sin artefac-

PROYECTOS MANDU’A
Construcción Opcional Unidad Cantidad Costo Unitario Total Gs. Total Gs
Superficie: 67,70 m2 Gs. Por m2 Construcción Básica 142.249.600 2.101.176 Construcción Opcional 22.253.576 328.709 TOTAL (Básica + Opcional) 164.503.176 2.429.884 Cerca frontal un 1,00 2.284.056 2.284.056 Vereda un 1,00 3.647.400 3.647.400 Caminero de acceso un 1,00 398.115 398.115 Pozo ciego 1.50x3.00 m un 1,00 2.632.500 2.632.500 Cámara séptica 1.00x1.60x1.20 m un 1,00 1.588.250 1.588.250 Mueble cocina un 1,00 4.440.000 4.440.000 Sardinel con ladrillo común ml 36,00 61.473 2.213.010 Limpieza y protección sardinel ladrillo visto m2 9,00 9.000 81.000 Imprevistos, mermas y roturas 518.530 Costo de obra opcional 17.802.861 Gastos generales y beneficios 4.450.715 - Revista Mandu’a 64
22.253.576

tos. • Instalación Sanitaria: Cañería para agua fría, cloacal y pluvial de PVC, para agua caliente de polipropileno, loza de baño brasileña, cisterna baja en baño social y en planta alta, alta en baño de servicio, pileta de lavar de granito reconstituido y de acero inoxidable de 2 bachas en la cocina. Canaletas y bajadas de chapa Nº 26. • Pintura: Mampostería a la vista con protección a base de silicona, previa limpieza con ácido muriático. Area de servicio y exteriores revocados a la cal con color. Paredes interiores al latex. Carpintería de madera, techo de tejas y losa con cerámica a la vista al barniz. Carpintería metálica y canaletas con esmalte sintético. os huecos, con azotada impermeable (0,5 cm) y común filtrado con aditivo .

PROYECTOS MANDU’A
Planta Baja Planta Alta
Construcción Opcional Unidad Cantidad Costo Unitario Total Gs. Superficie: 121,50 m2 Gs. Por m2 Construcción Básica 244.826.247 2.015.031 Construcción Opcional 53.697.116 441.952 TOTAL (Básica + Opcional) 298.523.363 2.456.982 Total Gs 53.697.116 Muralla de ladrillo común ml 6,00 434.383 2.606.180 Revoque 1 capa con hidrófugo en exteriores m2 24,00 31.515 756.360 Contrapiso de Hº de cascotes 10 cm m2 33,80 42.905 1.450.189 Vereda cerámica vainilla m2 28,00 96.679 2.707.012 Piso de layota 28x28 m2 5,76 66.965 385.718 Mueble de cocina ml 4,15 800.000 3.320.000 Alacena de cocina ml 4,15 600.000 2.490.000 Placard standard m2 14,00 1.200.000 16.800.000 Verja de hierro sencilla un 3,75 220.000 825.000 Portón de hierro 1.00x1.50 m un 1,00 530.350 530.350 Pozo ciego 1.50 x 3.00 m un 1,00 2.632.500 2.632.500 Cámara séptica 1.00x1.60x1.20 m un 1,00 1.588.250 1.588.250 Pintura a la cal con color m2 24,00 13.255 318.120 Abertura metálica con esmalte m2 10,50 27.316 286.818 Parrilla con boca un 1,00 5.010.000 5.010.000 Imprevistos, mermas y roturas (3%) 1.251.195 Costo de obra opcional 42.957.692 Gastos generales y beneficios 10.739.423 Construcción Básica Un. Cantidad Costo Unitario Total Gs. Total Gs 244.826.247 Replanteo y marcación m2 90,00 3.100 279.000 Zapata m3 1,00 1.878.900 1.878.900 Columna m3 0,50 2.407.375 1.203.688 Vigas m3 0,65 2.347.450 1.525.843 Encadenado inferior 13x20 cm en PB ml 55,00 83.700 4.603.500 Encadenado 13x30 cm ml 55,00 138.300 7.606.500 Escalera de Hº Aº total 1,00 4.035.100 4.035.100 Losa rap m2 35,00 218.340 7.641.900 Cimiento PBC colocada con cal (1/2:1:4) m3 17,60 388.450 6.836.720 Nivelación 0.30 m con cemento Tipo 1 m2 11,60 171.113 1.984.905 Elevación 0.15 ladrillo común y Tipo 1 m2 52,00 92.412 4.805.437 Elevación 0.15 ladrillo hueco 6 tubos y Tipo 1 m2 61,50 54.608 3.358.361 Elevación 0.20 ladrillo hueco y Tipo 1 m2 43,00 83.195 4.491.364 Elevación 0.15 ladrillo laminado y Tipo 1 m2 84,40 110.933 9.362.703 Sardinel con ladrillo común ml 5,50 61.473 338.099 Aislación horizontal 0.15 con hidrófugo y asfalto ml 52,00 18.944 985.088 Aislación de losa para baño m2 3,00 60.547 181.641 Dintel sobre aberturas/Envarillado de mampostería ml 18,00 19.850 357.300 Contrapiso de Hº de cascotes 10 cm m2 70,00 42.905 3.003.350 Contrapiso en losa sanitaria 20 cm m2 2,50 50.355 125.888 Revoque 1 capa, 1.5 cm sin hidrófugo m2 240,00 30.000 7.200.000 Revoque 1 capa con hidrófugo en exteriores m2 189,00 31.515 5.956.335 Azotada impermeable 0.5 cm m2 189,00 12.735 2.406.915 Revoque de cielorraso a 1 capa m2 15,00 49.818 747.263 Techo: teja española, tejuelón, vigas y tirantes m2 93,00 282.499 26.272.407 Azulejo 15 x 15 cm m2 42,00 79.575 3.342.150 Baldosa calcárea base gris 20x20 cm m2 10,50 79.625 836.063 Piso cerámico esmaltada 20x30 cm m2 62,50 70.970 4.435.625 Piso de layota 28x28 cm m2 15,60 66.965 1.044.654 Piso de alfombra 4 mm m2 24,00 38.100 914.400 Carpeta para piso cerámico m2 86,50 26.815 2.319.498 Zócalo calcáreo base gris ml 14,00 34.813 487.375 Zócalo de madera ml 30,00 29.875 896.250 Zócalo de cerámica esmaltada ml 34,00 19.080 648.720 Desagüe cloacal y pluvial global 1,00 6.891.418 6.891.418 Agua corriente global 1,00 3.380.583 3.380.583 Colocación artefactos sanitarios global 1,00 10.065.289 10.065.289 Instalación eléctrica global 1,00 8.079.521 8.079.521 Carpintería de madera global 1,00 20.551.070 20.551.070 Carpintería metálica global 1,00 3.163.450 3.163.450 Vidrios global 1,00 980.000 980.000 Pinturas global 1,00 14.466.480 14.466.480 Limpieza final y retiro de escombros (0.8%) 1.509.526 Imprevistos, mermas y roturas (3%) 5.660.722 Costo de obra básica 195.860.998 Gastos generales y beneficios 48.965.249 Revista Mandu’a - 65

Dúplex Mandu’a - Vivienda Modelo 3

Descripción: 2 viviendas iguales en Duplex, cada una de 150,3 m2

Sistema constructivo y materiales

Estructura: La losa prefabricada utilizada es de una marca del mercado, utilizada con el mismo criterio adoptado en el Modelo 2.

Desarrollo de la Obra

• Fundación: Idem modelo 2. • Estructura: Se utiliza el sistema Listalosa con cielorraso ranurado a la vista, sin revoque, que descansa sobre paredes portantes, reforzados con algunos pilares y vigas de Hº Aº. • Fundación, nivelación, aislación, mampostería, dinteles, techos, revoques, Instalación Sanitaria y

Pintura: Idem al modelo 2. • Carpintería de Madera: Marcos de lapacho, aberturas, placards y mueble de cocina de cedro, éste último con puertas tablero; mesada de granito natural.

• Carpintería Metálica: Balancines metálicos. Rejas artísticas y portón de cochera de chapa doblada y varillas. • Pisos: Contrapiso de Hº de cascotes, baldosa calcárea de base gris en área de servicio, layota nacional en cochera y parrilla. Granito reconstituído pulido de base gris en área social, estudio y planta alta, y en planchas en la escalera. Cerámica esmaltada sobre carpeta alisada en cocina y baños. Vereda de mosaicos de canto rodado de color 30x30. •

Zócalos: Calcáreo, cerámica esmaltada, cerámica roja y granito reconstituido. • Revestidos: Azulejo esmaltado liso 20x30 en baños y cocina. De 15x15 en lavadero y baño de servicio.

• Instalación Eléctrica: Monofásica, llaves TM europeas, placas, picos de luz y tomas de procedencia uruguaya. Sin artefactos.

PROYECTOS MANDU’A
Replanteo y marcación m2 158,00 3.100 489.000 Zapata m3 0,80 1.878.900 1.503.120 Pilar listalosa m2 8,00 128.788 1.030.300 Viga listalosa m2 18,40 121.712 2.239.505 Losa listalosa m2 47,50 222.200 10.554.500 Cálculo estructural para losa un 1,00 450.000 450.000 Flete de viguetas un 1,00 150.000 150.000 Escalera de Hº Aº total 1,00 4.035.100 4.035.100 Cimiento PBC colocada con cal (1/2:1:4) m3 15,40 388.450 5.982.130 Nivelación 0.30 m con cemento Tipo 1 m2 16,50 171.113 2.823.356 Elevación 0.15 ladrillo común y Tipo 1 m2 109,50 92.412 10.119.141 Elevación 0.15 ladrillo hueco y Tipo 1 m2 80,80 54.608 4.412.286 Elevación 0.15 ladrillo laminado y Tipo 1 m2 126,00 110.933 13.977.495 Sardinel con ladrillo común ml 5,50 61.473 338.099 Aislación horizontal 0.15 con hidrófugo y asfalto ml 52,00 18.944 985.088 Aislación de losa para baño m2 8,20 60.547 496.485 Dintel sobre aberturas/Envarillado de mampostería ml 32,00 19.850 635.200 Contrapiso de Hº de cascotes 10 cm m2 117,80 42.905 5.054.209 Contrapiso en losa sanitaria 20 cm m2 6,80 50.355 342.414 Revoque 1 capa sin hidrófugo (1:4:16) interiores m2 381,00 30.000 11.430.000 Revoque 1 capa con hidrófugo (1:4:16) exteriores m2 126,00 31.515 3.970.890 Azotada impermeable 0.5 cm m2 60,00 12.735 764.100 Revoque de cielorraso a 1 capa m2 6,00 49.818 298.905 Techo: teja española, tejuelón y tirantes de ybyrapyta m2 129,00 282.499 36.442.371 Azulejo 25x25 cm m2 26,00 86.400 2.246.400 Azulejo 20x20 cm m2 19,00 113.175 2.150.325 Azulejo 15x15 cm m2 14,00 79.575 1.114.050 Baldosa calcárea base gris 20x20 cm m2 9,00 79.625 716.625 Mosaico granítico base gris m2 78,00 142.775 11.136.450 Cerámica esmaltada 30x30 cm m2 21,00 71.624 1.504.104 Carpeta para piso cerámico m2 21,00 26.421 554.846 Piso de layota 28x28 m2 14,82 66.965 992.421 Plancha granítica para revestido de escalera gl 1,00 2.406.000 2.406.000 Zócalo calcáreo base gris ml 12,00 34.813 417.750 Zócalo granítico base gris ml 88,00 68.163 5.998.300 Zócalo de cerámica esmaltada ml 11,00 19.080 209.880 Zócalo layota 28x10 cm ml 4,50 23.774 108.981 Desagüe cloacal y pluvial global 1,00 10.900.815 10.900.815 Agua corriente global 1,00 5.384.467 5.384.467 Colocación artefactos sanitarios global 1,00 23.663.185 23.663.185 Instalación eléctrica global 1,00 12.739.668 12.739.668 Carpintería de madera global 1,00 32.737.250 32.737.250 Carpintería metálica global 1,00 2.904.600 2.904.600 Vidrios global 1,00 1.733.000 1.733.000 Pinturas global 1,00 1.733.000 1.733.000 Limpieza final y retiro de escombros (0,8%) 2.126.921 Imprevistos, mermas y roturas (3%) 7.975.955 Costo de obra básica 275.968.052 Gastos generales y beneficios (25%) 68.992.013 Total Gs 344.960.065 Construcción Básica Unidad Cantidad Costo Unitario Total Gs. - Revista Mandu’a 66

Edificio para la Renta

Vivienda Modelo 4

Descripción: Edificio de 2 plantas que puede ampliarse a 3, comprende 2 departamentos en Planta Alta, cada uno de 60 m2 y con 2 dormitorios. En planta baja 2 salones comerciales de 34,30 m2 de área interior. Entrada vehicular cubierta.

Desarrollo de la obra

• Fundación: Se utilizan Zapatas de Hº Aº donde actúan cargas puntuales y bajo las paredes, vigas del mismo material. • Estructura: De Hº Aº tipo tradicional, las losas descansan sobre vigas y pilares del mismo ancho que las paredes. En planta alta se utiliza un encadenado general a la altura de asiento de tirantes. • Aislación, mampostería de elevación, dinteles, techo y carpintería de madera, pisos, zócalos, revestidos, revoques, instalación sanitaria: idem al modelo 2. • Carpintería Metálica: Cortina de enrollar de tablillas metálicas con puerta de escape. Balancines, portones de acceso peatonal y de cochera de chapa doblada. Baranda sencilla de escalera. • Instalación

Eléctrica: Idem. modelo 3. • Pintura: Paredes interiores y exteriores del frente y contrafrente al latex. Paredes exteriores medianeras y cielorraso a la cal. Abertura de madera, maderamen y tejuelones del techo al barniz. Carpintería metálica con esmalte sintético.

PROYECTOS MANDU’A
Planta Baja Planta Alta Superficie: 150,30 m2 Gs. Por m2 Construcción Básica 344.960.065 2.295.143 Construcción Opcional 75.313.386 501.087 TOTAL (Básica + Opcional) 420.273.451 2.796.231 Total Gs 75.313.386 Muralla de ladrillo común ml 23,00 434.363 9.990.357 Revoque 1 capa con hidrófugo en exteriores m2 92,00 31.515 2.899.380 Contrapiso de Hº de cascotes 10 cm m2 42,00 42.905 1.802.010 Mosaico granito lavado para exterior base gris m2 42,00 106.013 4.452.525 Mueble de cocina ml 6,00 1.210.000 7.260.000 Placard standar m2 15,60 1.200.000 18.720.000 Verja de hierro sencilla un 8,00 220.000 1.760.000 Portón de hierro 1.00x1.50 m un 1,00 530.350 530.350 Pozo ciego 1.50x3.00 m un 1,00 2.632.500 2.632.500 Cámara séptica 1.00x1.60x1.20 m un 1,00 1.588.250 1.588.250 Pintura a la cal con color m2 92,00 13.255 1.219.460 Pintura abertura metálica con esmalte m2 19,00 33.211 631.002 Parrilla con boca un 1,00 5.010.000 5.010.000 Imprevistos, mermas y roturas (3%) 1.754.875 Costo de obra opcional 60.250.709 Gastos generales y beneficios (25%) 15.062.677 Construcción Opcional Unidad Cantidad Costo Unitario Total Gs. Revista Mandu’a - 67

Básica

Superficie: 236,00 m

Planta Baja

PROYECTOS MANDU’A
Planta Alta
Gs. Por m2 Construcción Básica 511.856.164 2.168.882 Construcción Opcional 41.691.349 176.658 TOTAL (Básica + Opcional) 553.547.513 2.345.540 Total Gs 41.691.349 Contrapiso de Hº de cascotes 10 cm m2 36,00 42.905 1.544.580 Vereda cerámica vainilla m2 36,00 78.675 2.832.300 Mueble bajo mesada de cocina ml 3,00 800.000 2.400.000 Alacena de cocina ml 3,00 600.000 1.800.000 Placard standard m2 16,32 1.200.000 19.584.000 Pozo ciego 1.50x3.00 m un 1,00 2.632.500 2.632.500 Cámara séptica 1.00x1.60x1.20 m un 1,00 1.588.250 1.588.250 Imprevistos, mermas y roturas (3%) 971.449 Costo de obra opcional 33.353.079 Gastos generales y beneficios (25%) 8.338.270 Construcción Opcional Unidad Cantidad Costo Unitario Total Gs. Replanteo y marcación m2 242,00 3.100 750.200 Excavación para zapata m3 27,00 42.000 1.134.000 Zapata m3 8,05 1.878.900 15.125.145 Columna m3 4,02 2.407.375 9.677.648 Vigas m3 6,99 2.347.450 16.408.676 Losa m3 12,39 2.313.500 28.664.265 Encadenado 13x30 m ml 97,20 138.300 13.442.760 Escalera de Hº Aº total 1,20 4.035.100 4.842.120 Nivelación 0.30 m con cemento Tipo 1 m2 21,81 171.113 3.731.964 Elevación 0.15 ladrillo común y Tipo 1 m2 66,50 92.412 6.145.415 Elevación 0.15 ladrillo hueco y Tipo 1 m2 415,80 54.608 22.705.799 Elevación 0.20 ladrillo hueco y Tipo 1 m2 198,80 81.195 16.141.467 Aislación horizontal 0.15 con hidrófugo y asfalto ml 55,50 18.944 1.051.392 Aislación de losa para baño m2 28,90 60.547 1.749.808 Dintel sobre aberturas/Envarillado de mampostería ml 35,00 19.850 694.750 Contrapiso de 7 cm m2 107,00 34.840 3.727.880 Contrapiso de Hº de cascotes 10 cm m2 101,00 42.905 4.333.405 Contrapiso en losa sanitaria 20 cm m2 24,50 50.355 1.233.698 Revoque 1 capa sin hidrófugo en interiores m2 882,00 30.000 26.460.000 Revoque 1 capa con hidrófugo en exteriores m2 480,00 31.515 15.127.200 Azotada impermeable 0.5 cm m2 112,00 12.735 1.426.320 Revoque de cielorraso a 1 capa m2 117,00 49.818 5.826.648 Techo: teja española, tejuelón y tirantes de ybyrapyta m2 149,00 282.499 42.092.351 Azulejo 15x15 cm m2 41,00 79.575 3.262.575 Baldosa calcárea base gris 20x20 cm m2 66,00 79.625 5.255.250 Piso cerámica esmaltada 20x30 cm m2 154,70 70.970 10.979.059 Piso de layota 28x28 cm m2 26,50 66.965 1.774.573 Carpeta para piso cerámico m2 154,70 26.815 4.148.281 Zócalo calcáreo base gris ml 54,00 34.813 1.879.875 Zócalo de cerámica esmaltada ml 146,00 19.080 2.785.680 Zócalo layota 28x10 cm ml 18,60 23.774 442.187 Desagüe cloacal y pluvial global 1,00 11.106.914 11.106.914 Agua corriente global 1,00 3.767.230 3.767.230 Colocación artefactos sanitarios global 1,00 7.745.076 7.745.076 Instalación eléctrica global 1,00 25.852.777 25.852.777 Carpintería de madera global 1,00 28.922.680 28.922.680 Carpintería metálica global 1,00 13.488.350 13.488.350 Vidrios global 1,00 1.217.800 1.217.800 Pinturas global 1,00 29.370.940 29.370.940 Limpieza final y retiro de escombros (0.8%) 3.155.953 Imprevistos mermas y roturas (3%) 11.834.825 Costo de obra básica 409.484.932 Gastos generales y beneficios (25%) 102.371.233
2
Total Gs 511.856.164
- Revista Mandu’a 68
Construcción
Unidad Cantidad Costo Unitario Total Gs.

Galpón tipo tinglado - Vivienda Modelo 5

Descripción: Galpón tipo tinglado, con una superficie de 268,8 m2, con oficina y vestuario. La oficina incluye un baño privado y el vestuario dos boxes de baño, para ducha e inodoro, respectivamente. Consta de patio posterior y retiro en el frente, cumpliendo la norma municipal que exige un 25% de superficie sin construir.

La obra está prevista para un terreno plano y limpio de 12x30 m situado entre linderos.

Desarrollo de la Obra

• Fundación: Pilares asentados sobre zapatas de hormigón ciclópeo y cimiento corrido de P.B.C para asiento de paredes. • Estructura: Realizada con pilares de HºAº y vigas encadenadas conformando 2 anillos de unión. • Aislación, mampostería de elevación, dinteles, carpintería de Madera: Idem. modelo

1. • Techo: Tipo tinglado parabólico, estructura metálica reticulada fabricada de varillas torsionadas pintadas con antióxido. Cubierta de chapa galvanizada ondulada, aireada con extractores eólicos. • Carpintería Metálica: Balancines metálicos de ángulos y perfiles “T”. Portones de chapa doblada en el acceso vehicular y la salida al patio. Escalera metálica recta de acceso al entrepiso de madera. • Pisos: En el patio del frente y dentro del depósito, donde pueden circular vehículos, el piso es de hormigón armado con juntas de dilatación. En la oficina se utilizan baldosa calcárea de base gris y cerámica esmaltada sobre una carpeta alisada, en baños y vestuarios. Vereda de baldosita calcárea tipo ka’a con ranuras antideslizantes. Contrapiso de hormigón de cascotes. • Zócalos: Calcáreo en la oficina. • Revestidos: Azulejo esmaltado liso 15x15 en baños y vestuario. • Revoques: Sobre ladrillos huecos, azotada de adherencia con hidrófugo y revoque común filtrado y sobre ladrillos comunes sólo este último. Las paredes perimetrales llevan revoque a un solo lado.

• Instalación Eléctrica: Trifásica, llaves termomagnéticas europeas, placas, pi-

PROYECTOS MANDU’A
Replanteo y marcación m2 268,80 3.100 833.280 Columna m3 6,00 2.407.375 14.444.250 Encadenado 13x30 cm ml 168,00 138.300 23.234.400 Cimiento PBC con cal (1/2:1:4) m3 34,00 388.450 13.207.300 Hormigón ciclópeo (1:3:6) m3 4,32 696.000 3.006.720 Nivelación 0.30 m con cemento Tipo 1 m2 24,12 171.113 4.127.234 Elevación 0.15 ladrillo común y Tipo 1 m2 22,50 92.412 2.079.276 Elevación 0.20 con ladrillo común y Tipo 1 m2 5,60 129.323 724.206 Elevación 0.30 con ladrillo común y Tipo 1 m2 4,50 166.025 747.113 Elevación 0.07 ladrillo común y Tipo 1 m2 5,00 44.641 223.206 Elevación 0.15 ladrillo hueco 6 tubos y Tipo 1 m2 106,00 54.608 5.788.395 Elevación 0.20 ladrillo hueco y Tipo 1 m2 373,00 81.195 30.285.549 Aislación horizontal 0.15 con asfalto ml 76,40 18.944 1.447.322 Dintel sobre aberturas/Envarillado de mampostería ml 24,00 19.850 476.400 Contrapiso de Hº de cascotes 10 cm m2 21,50 42.905 922.458 Revoque 1 capa, 1.5 cm sin hidrófugo m2 565,00 30.000 16.950.000 Azotada impermeable 0.5 cm m2 480,00 12.735 6.112.800 Estructura para tinglado m2 270,00 197.504 53.326.040 Extractor eólico + sombrero un 3,00 450.000 1.350.000 Entrepiso de madera m2 27,00 147.000 3.969.000 Azulejo 15x15 cm m2 18,50 79.575 1.472.138 Baldosa calcárea base gris 20x20 cm m2 16,50 79.625 1.313.813 Piso cerámico esmaltada 20x30 cm m2 8,80 96.679 850.775 Piso de hormigón armado 12 cm m2 290,20 185.900 53.948.180 Carpeta para piso cerámico m2 8,80 26.421 232.507 Zócalo calcáreo base gris ml 16,00 34.813 557.000 Desagüe cloacal y pluvial global 1,00 11.988.992 11.988.992 Agua corriente global 1,00 1.859.713 1.859.713 Colocación artefactos sanitarios global 1,00 2.910.018 2.910.018 Instalación eléctrica global 1,00 11.165.530 11.165.530 Carpintería de madera global 1,00 3.774.400 3.774.400 Carpintería de metálica global 1,00 13.908.100 13.908.100 Vidrios global 1,00 2.488.000 2.488.000 Pinturas global 1,00 20.649.635 20.649.635 Limpieza final de obra y retiro de escombros (0.8%) 2.482.990 Imprevistos, mermas y roturas (3%) 9.311.212 Costo de obra básica 322.167.948 Gastos generales y beneficios 80.541.987 Total Gs 402.709.935
Revista Mandu’a - 69
Construcción Básica Unidad Cantidad Costo Unitario Total Gs.

Superficie: 268,80 m2 CONTACTOS 0962325797 trazosyacotados@gmail com

CONSULTORÍA: ¡DISEÑÁ TU PROYECTO SOÑADO CON NOSOTROS! CONSTRUCTORA: CONSTRUCCIÓN EN GENERAL: CONSTRUCCIONES EN SECO EN HORMIGÓN ARMADO REFACCIÓN EN GENERAL DIRECCIÓN Y EJECUCIÓN TRABAJOS PARA PREPARACIÓN DE TERRENO DIGITALIZACIÓN 2D Y 3D 0971902828 - Revista Mandu’a 70

PROYECTOS MANDU’A
Gs. Por m2 Construcción Básica 402.709.935 1.498.177 Construcción Opcional 31.466.636 117.063 TOTAL (Básica + Opcional) 434.176.571 1.615.240 Total Gs 31.466.636 Contrapiso de 10 cm m2 36,00 42.905 1.544.580 Vereda cerámica m2 36,00 78.675 2.832.300 Pozo ciego un 1,00 2.632.500 2.632.500 Cámara séptica un 1,00 1.588.250 1.588.250 Muralla de ladrillo común ml 30,00 434.363 13.030.901 Revoque a 1 capa común m2 65,00 30.000 1.950.000 Pintura a la cal m2 65,00 13.255 861.575 Imprevistos, mermas y roturas (3%) 733.203 Costo de obra opcional 25.173.309 Gastos generales y beneficios 6.293.327 Construcción Opcional Unidad Cantidad Costo Unitario Total Gs. TRAZOS Y ACOTADOS D SEÑO Y CONSTRUCCIÓN
cos de luz y tomas uruguayos, sin artefactos. Instalación Sanitaria: Cañería hidráulica de agua fría, cloacal y pluvial, lozas de baño, canaletas y bajadas idem modelo 1. Cisterna baja en baño de oficina y alta en el vestuario. • Pintura: Paredes revocadas, interiores o exteriores, a la cal. Paredes de ladrillo hueco a la vista con tratamiento correspondiente para el efecto. Carpintería de madera y entrepiso de machimbre pintadas con barniz. Carpintería metálica y caños de bajada con esmalte sintético. EN PROYECTOS ESPECÍFICOS: PLANOS ARQUITECTÓNICOS PLANOS ELÉCTRICOS PLANOS SANITARIOS PLANOS PCI PLANOS DE SEÑALES DÉBILES PLANOS DE DATACENTER PLANOS DE SALA TÉCNICA PLANOS ESTRUCTURALES PLANILLA DE COMPÚTO MÉTRICO GESTIONES MUNICIPALES PUEDE CONSULTARNOS SOBRE SU PROYECTO

Bolsa de subcontratistas

* La Bolsa de Subcontratistas es una colaboración gratuita de la revista con los profesionales y trabajadores de la construcción, teniendo un pequeño costo los anuncios en recuadro. La calidad del servicio, así como la relación contractual, escapa a nuestro compromiso con los apreciados lectores.

Agrimensura

Chaparro, Miguel 0961 586457

Fernández, María 0981 932043

Rolón, Oscar 0981 445601

Robledo, Gustavo 0981 939512

Azulejos - colocación

Armando, José 0995 639335

Benitez, Alfredo 0981 520214

Benitez, Antonio 0981 945353

Ferreira, Gustavo 285663 / 0981 881211

Figueredo, Miguel 0981 479221

Godoy, Eladio 0983 333622

González, Benito 0982 248256

Jiménez, Antonio 514989 / 0981 660190

Medina, Antonio 0983 247516

Moragas, Carmelo 0985 268497 / 0981 547754

Noguera, Higinio 0981 564472

Ortíz, Vidal 509475

Palacios, Leonardo 0983 207676

Vázquez,

BOLSA DE SUBCONTRATISTAS Revista Mandu’a - 71
Aire acondicionado Instalación / Reparación Bracho, Javier 0981 879749 / 0985 464491 Brítez, Santiago 0981 117524 González, Pedro 644661 / 0982 450866 Maciel, Pablo 0971 939890 / 0981 651205 Ojeda, Hugo 623766 / 0981 868289 Solis, Gabriel 0981 486233 Velázquez, Santiago 0981 843738 Aislación térmica Duarte, Eleno 0983 338939 Marín, Dionisio 0983 731450 Alambrados Bentrom, Román 991255 Riveros, Mario 0992 993007 / 0985 887621 Albañilería Benítez, Ramón 0982 370231 Bogarín, Lidio 0971 947177 Bruno, Alejandro 0994 314460 Cabral, Andrés 0982 896561 Cáceres, Carlos 0982 132349 Cazal, Alexis 0981 343423 Esquivel, Rogelio 0981 456697 Fernández, Antonio 515629 / 0981 465940 Garcete, Palermo 0981 965660 Gill, Enrique 642559 / 0981 303974 Giménez, Pablo 0981 951645 Godoy, Eladio 0983 333622 González, Aníbal 0985 222147 González, Benito 0982 248256 Jara, Vidal 0981 434787 / 0981 876489 Jiménez, Antonio 514989 / 0981 660190 López, Osvaldo 0981 836904 Maidana, Sinforiano 0983 380486 Marín, Dionisio 0983 731450 Moreno, Ramón 0981 785546 Ocampos, Higinio 0984 926892 Ortega, Mildesis 0984 369652 / 0981 594893 Paniagua, Derlis 0981 182465
Raúl 0981 501323 Rando, Gerardo 0985 766 650 Ramírez, Amado 374276 / 0981 485609 Riveros, Carlos 0981 521771 Rojas, Juan 0971 950157 Ruiz, Saturnino 0984 273997 Sosa, Edgar 0984 928914 Vera, Néstor 0981 103889 Animacion y perspectiva Abbate, Alejandra 0982 886227 González, Jorge 0986 552000
0991 880133
Peralta,
/
0981 476743
de planos municipales Benítez, Oscar 0971 340345
Pérez, Rafael
Aprobacion
Ever 0981 655799 Canaletas Altamirano, Vicente 0981 851077 Arzamendia, Hugo 0981 126471 Canto rodado (carga en obra) Figueredo, Catalino 0981 763438 Figueredo, Miguel 0981 479221 Carpintería Aquino, Miguel 0986 858685 Bordón, Marcial 0971 277041 Franco, Marcos 0982 279166 Olmedo, Miguel 0981 526079 Carpinteros de obra / techistas Benítez, Aniano 0984 478256 Cáceres, Carlos 0982 132349 González, Aníbal 0985 222147 Jara, Oscar 780642 / 0981 184687 Mora, Pascual 0981 963459 Sosa, Carlos 0992 299951 Valdovinos, Pedro 0981 234113 Cascadas Acevedo, Patricio 0981 412542 Aguilera, Gabriel 0985 101795 Cepillado en obra Jara, Oscar 780642 / 0981 184687 Circuito cerrado Cabrera, Arnaldo 0981 334508 Maciel, Pablo 0981 651205 Colocación de aberturas Franco, Marcos 0982 279166 García, Juan 0981 571424 Gill, Enrique 642559 / 0981 303974 Sosa , Carlos 0992 299951 Colocación de empapelados Coronel, Derlis 295479 / 0981 154662 Coronel, Julián 295479 / 0984 580876 Colocación de Losarap Alarcón, Julio 501130 /0983 367 697 Gill, Enrique 642559 / 0981 303974 Cielorrasos - Durlock/PVC/Yeso Agüero, Benjamín 0985 740977 Agüero, Jorge 0985 417456 Bentolilla, Esteban 480203 / 0981 385207 Careaga, Víctor 373410 / 0971 936858 Colocación de Parquet García, Juan 0981 571424 Sosa, Carlos 00992 299951 Colocación de Piedra/revestidos/molduras Aveiro, Gerónimo 0985 242563 Figueredo, Miguel 0981 479221 Martínez, Diego 0984 560 841 Ortíz, Eduardo 0971 379011 Quiñónez, Expédito 0983 356501 Ríos, Francisco 0981 417309 Rojas, Juan 0971 950157 Colocacion de Pisos vinílicos / alfombras Careaga, Víctor 373410 / 0971 936858 Coronel, Derlis 295479 / 0981 154662 Coronel, Julián 295479 / 0984 580876 Pavón, César 327 6331 / 0982 354987 Sánchez, Alberto 443477 / 0981 503266 Cómputo métrico Benítez, Oscar 0971 340345 González, Jorge Arq 0986 552000 / 0991 880133 Nuñez, Andrea 0982 170442 Russo, Walter Ing 0991 789561 Vallejos S, Cristina Arq 0982 975371 / 0981 561645 Constructores de obra Acosta Riveros, Jorge A 0984 557649 Agüero, Teófilo 524755 / 0983 942516 Añazco, Carlos 0981 457301 Benítez, Aniano 0984 478256 Benítez, Juan 751724 / 0981 488904 Benítez, Ramón 0982 370231 Caballero, Oscar 0972 131247 Cabral, Andrés 0982 896 561 Cáceres, Carlos 0982 132349 Cantero, Domingo 0981 244946 Dávalos,Hermes 0981 942718 Escobar, Gustavo 0981 163551 Espinoza, Mauricio 0982 781445 Fernández, Antonio 515629 / 0981 465940 Ferreira, Wilfrido 0981 400128 / 0981 786614 Figueredo, Miguel 0981 479221 Garcete, Palermo 0981 965660 Gill, Enrique 642559 / 0981 303974 Giménez, Leonardo 0981 530453 González, Aníbal 0985 222147 González, Miguel H 0961 889646

BOLSA DE SUBCONTRATISTAS

Cortinas

Bentolilla,

Decoración y muebles

Aguilera, Gabriel 0985

- Revista Mandu’a 72 González, Rumildo 0971 350004 Gutiérrez, De los Santos 0981 390538 Hucedo, Carlos 0982 178592 Jara, Vidal 0981 434787 / 0981 876489 Jiménez, Antonio 514989 / 0981 660190 Maciel, Milciades 0981 943482 Maidana,Sinforiano 0983 380486 Meza, Esteban 0992 383232 Moreno, Ramón 0981 785546 Narváez, Arsenio 0981 939452 Noguera, Higinio 0981 564472 Ortiz Barrios, César 642239 / 0983 358854 Ortíz, Vidal 509475 / 0971 720887 Oviedo, Richard 0981 291070 Paniagua, Derlis 0981 182465 Quiñónez, Expedito 0983 356501 Quiroga, Pedro 0985 938774 Rando, Gerardo 0985 766 650 Recalde, César 0981 170159 Riveros, Carlos 0981 521771 Riveros, Mario 0992 993007 / 0985 887621 Robledo,Gustavo 0981 939512 Rodríguez, Buenaventura 0972 509828 Rojas, Bernardo 302692 / 0981 531143 Rojas, Juan 0971 950157 Romero, Melchor 0983 470631 Ruiz, Saturnino 0984 273997 Sánchez, Benito 0983 488540 Sánchez, Ricardo 0981 145907 Sánchez, Yisenia 0976 123426 / 0985 297794 Sosa, Edgar 0984 928914 Valdovinos, Pedro 0981 234113 Vega, Augusto 310352 / 0971 972699 Velázquez, Jorge 0983 507243 Velázquez, Santiago 0981 843738 Vera, Néstor 0981 103889 Contratistas de hormigón Acosta Riveros, Jorge A 0984 557649 Arévalos, Guillermo 752601 / 0981 485307 Benítez, Oscar 0971 340345 Cabral, Andrés 0982 896561 Esquivel, Rogelio 0981 456697 Fernández, Antonio 515629 / 0981 465940 Fernández, Silvino 755284 / 0981 549523 Figueredo, Miguel 0981 479221 Garcete, Palermo 0981 965660 Giménez, Leonardo 0981 530453 González, Aníbal 0985 222147 González, Miguel H 0961 889646 González, Rumildo 0971 350004 Maidana, Sinforiano 0983 380486 Meza, Esteban 0992 383232 Ocampos, Higinio 0984 926892 Olmedo, Julio 0981 652772
Mildesis 0984 369652 / 0981 594893
Derlis 0981 182465
Raúl 0981 501323
César 0981 170159
Arístides 0981 865518
Santiago 0981 843738
Néstor 0981 103889
Ortega,
Paniagua,
Peralta,
Recalde,
Torres,
Velázquez,
Vera,
Esteban 480203 / 0981 385207
101795 Ayala, Ever 0983 711979 Maldonado, María Estela 0981 561631 Urbieta, Mónica 0981 476743 Demolición Caballero, Oscar 0972 131247 Herrera, Cristino 0981 976488 / 0984 894128 Vallejos, Cándido 0991 233001 Villalba, Javier 0985 491498 Destronque de árboles Herrera, Cristino 0981 976488 / 0984 894128 Vera, Néstor 0981 103889 Dibujantes técnicos Arnedo, Ana Arq 0981 655014 Jacobo, Nora 0971 534417 Maidana, María B. 0991 988215 Martínez, Francisco 0786 230619 / 0975 681680 Montiel, Gustavo 586343 / 0982 488928 Rodriguez, Buenaventura 0972 509828 Rolón, Manuel 0986 909404 Rolón, Oscar 0981 445601 Digitalización de planos Abbate, Alejandra 0982 886227 Aponte, Andrea 0971 190781 Arnedo, Ana Arq 0981 655014 Arza, Andrea Arq 0981 966786 Coronel, Renzo 0971 362856 / 0986 656577 Escobar, Gustavo 0981 163551 Ferreira, José 0981 915492 González, Jorge 0986 552 000 / 0991 880133 Maidana, María B. 0991 988215 Montiel, Gustavo 586343 / 0982 488928 Nuñez, Andrea 0982 170442 Nuñez, Miguel 0982 634026 Quintana, Jorge 290680 / 0981 426037 Robledo, Gustavo 0981 939512 Rolón, Manuel 0986 909404 Rolón, Oscar 0981 445601 Sánchez, Yisenia 0976 123426 / 0985 297794 Toledo, Milena 0981 201561 Divisorias interiores / Mamparas Bentolilla, Esteban 480203 / 0981 385207 Careaga, Víctor 373410 / 0971 936858 Pavón, César 327 6331 / 0982 354987 Dorado a la hoja Chávez, Ada 0981 838274 Drenaje Caballero, Rodrigo 0981 257702 Velázquez, Santiago 0981 843738 Electricistas Brítez, Santiago 0981 117524 Cáceres, Isidro 0981 927945 Chaparro, Miguel 0961 586457 Castillo, Marco 0981 578068 Coronel, Derlis 295479 / 0984 580876 Coronel, Julián 295479 / 0981 154662 Delgadillo, Alberto 0981 844429 Delgadillo, Francisco 0982 335870 Díaz, Carlos 572156 / 0982 464967 Duarte, Gustavo 0983 191182 Esquivel, Rogelio 0981 456697 Galarza, Ramón 0981 230273 Garcete, Palermo 0981 965660 Giménez, Carlos 0981 741087 Giménez, Flaminio 0971 227480 / 0983 841240 González, Pedro 644661 / 0982 450866 Hucedo, Carlos 0982 178592 León, Cañete 0983 800938 / 0981 561409 Maciel, Pablo 0971 939890 / 0981 651205 Martínez, Gerardo 0981 493190 Montanía, Ylber 0981 474025 Núñez, Cayo 0983 404670 Otello Roa, Félix 780691 / 0972 822577 Paniagua, Derlis 0981 182465 Parini, Fernando 0983 657565 Ramírez, Dario 0992 863100 / 0991 677208 Ramírez, Roberto 944740 / 0981 494624 Rolón, Carlos 0982 751296 Ruiz, Carlos 0981 896430 Sanabria, Jorge 0984 154375 Sartorio, Jorge 0981 939172 Solis, Gabriel 0981 486233 Toñánez, Sebastián 0981 912516 Valenzuela, Luis 0982 127968 / 0985 942676 Vallejos, Cándido 0991 233001 Villaverde, Silvino 0992 396855 Empedrados y adoquinados Santacruz, Pablo Ing 0981 105004 Fumigación Herrera, Cristino 0981 976488 / 0984 894128 Herrería / estructuras metálicas Arzamendia, Hugo 0981 126471 Bordón, Marcial 0971 277041 Bracho, Javier 0981 879749 / 0985 464491 Cazal, Mario 0982 878501 Delvalle, Christian 0981 853884 Garcete, Palermo 0981 965660 Herrera, Edgar 0982 272468 Maldonado, María Estela 0981 561631 Orrego, Cándido 0984 958981 Hojalatero Cazal, Alexis 0981 343423 Hornos, chimeneas, estufas, parrillas, tatacuá Acevedo A., Patricio 0981 412542 Caballero, Rodrigo 0981 257702 Vázquez, Ever 0981 655799 Aquino, Roberto 521610/ 0971 313847 Benítez, Cándido 0981 496207 Bracho, Javier 0981 879749 0985 464491
BOLSA DE SUBCONTRATISTAS Revista Mandu’a - 73 Morínigo, Miguel 973372 / 0981 474261 Noguera, Higinio 0981 564472 Ojeda, Darío 0971 223440 Oviedo, Richard 0981 291070 Paniagua, Derlis 0981 182465 Ramírez, Amado 374276 / 0981 485609 Ramírez, Ladislao 0981 766680 Reyes, Luis 0981 231612 Riveros G., Carlos 0981 521771 Riveros, Mario 0992 993007 / 0985 887621 Rojas, Bernardo 302692 / 0981 531143 Romero, Melchor 0983 470631 Sosa, Edgar 0984 928914 Vallejos, Cándido 0991 233001 Pintura texturada Arévalos, Alberto 0971 208038 Giménez, Hernando 0981 419674 López, Ramón 0981 569767 Morínigo, Miguel 973372 / 0981 474261 Piris, Crispín 0982 360759 Piscinas - Construcción y reparación Caballero, Rodrigo 0981 257702 López, Enrique 0972 215229 / 0982 301956 Martínez, Diego 0984 560 841 Russo, Walter 0991 789561 Urbieta, Mónica 0981 476743 Piscinas - Limpieza y Mantenimiento López, Enrique 0972 215229 / 0982 301956 Moragas, Carmelo 0985 268497 Moragas, Modesto 0971 239680 Noguera, Higinio 0981 564472 Piseros Benítez, Alfredo 0981 520214 Benitez, Antonio 0981 945353 Bogarín, Lidio 0971 947177 Bruno, Alejandro 0994 314460 Caballero, Rodrigo 0981 257702 Fernández, José 0982 627836 Giménez, Leonardo 0981 530453 Godoy, Eladio 0983 333622 González, Benito 0982 248256 Jiménez, Antonio 0981 660190 Maciel, Milciades 0981 943482 Martínez, Diego 0984 560 841 Medina, Antonio 0983 247516 Moragas, Carmelo 0985 268497 Noguera, Higinio 0981 564472 Palacios, Leonardo 0983 207676 Rando, Gerardo 0985 766 650 Riveros, Carlos 0981 521771 Rojas, Juan 0971 950157 Samaniego,Jorge 0982 986 757 0994 759925 Pisos técnicos (sobre elevados) Agüero, Benjamín 0985 740977 Plomeros Agüero, Benjamín 0985 740977 Aguilera, Gabriel 0985 101795 Alcaráz, Andrés 0971 956096 Altamirano, Vicente 0981 851077 Báez, Raimundo 0981 609001 Impermeabilización Duarte, Eleno 0983 338939 López, Ramón 0981 569767 Marín, Dionisio 0983 731450 Martínez, Braulio 0981 193232 Ramírez, Amado 374276 / 0981 485609 Ruffinelli, Miguel 0981 449955 Velázquez, Santiago 0981 843738 Jardineros Aguilera, Gabriel 0985 101795 Basualdo, Javier 0982 311208 Duarte, Tomás 0985 941909 Villaverde, Silvino 0992 396855 Limpieza de patios Bentrom, Román 991255 Herrera, Cristino 0981 976488 / 0984 894128 Riveros, Mario 0985 887621 Mesadas de cocina / baño - Marmolería Jimenez, Miguel Angel 0981 541146 Montaje de transformadores y motores Benítez, Genaro 0981 496837 Díaz, Carlos 572156 / 0982 464967 Mancuello, Fernando 0991 201918 Morales, Gustavo 0981 893881 Motoserrista / poda de árboles Basualdo, Javier 0982 311208 Bentrom, Román 991255 Duarte, Tomás 0985 941909 Riveros, Mario 0992 993007 / 0985 887621 Muros verdes / jardines verticales Arzamendia, Hugo 0981 126471 Perforación de Pozo Artesiano Escobar, Carlos 644497/ 0971 357473 Pilotes Ferrari , Fernando 424827 / 0981 488666 Pintores Amarilla, Ángel 942329 / 0983 366647 Areco, Lucio 0981 765896 Armando, José 0995 639335 Ayala, Julio César 0981 408638 Bogarín, Héctor 0985 959921 Borja, Francisco 0991 820078 Bruno, Alejandro 0994 314460 Careaga, Víctor 373410 / 0971 936858 Cazal, Alexis 0981 343423 Garcete, Palermo 0981 965660 Gauto, Miguel 0981 938415 Giménez, Hernando 0981 419674 Giménez, José 0993 353888 / 0981 604638 Giménez, Leonardo 0981 530453 Godoy, Pedro 0981 596914 González, Aníbal 0985 222147 Herrera, Edgar 0982 272468 Ibarra, Jorge 0961 842883 López, Ramón 0981 569767 Marín, Dionisio 0983 731450 Martínez, Diego 0984 560 841 Medina, Germán 0982 320250 Mereles, Néstor 0985 653204 Miranda, Félix 0981 514763 Bracho, Javier 0985 464491 Caje, Rodolfo A. 0984 234423 Cazal, Mario 0982 878501 Chávez, Jorge 0981 823284 Escobar, Carlos 0971 357473 Fariña, Antonio 0971 231175 Ferreira, Gustavo 0981 881211 Garcete, Palermo 0981 965660 Giménez, Pablo 0981 951645 Herrera, Edgar 0982 272468 Hucedo, Carlos 0982 178592 López, Víctor M. 0971 760390 Medina, Alfredo 0981 468756 Medina, Germán 0982 320250 Moragas, Carmelo 0985 268497 Moragas, Victorino 0981 892513 Noguera, Higinio 0981 564472 Núñez, Cayo 0983 404670 Ortiz, Vidal 509475 Paniagua, Derlis 0981 182465 Rando, Gerardo 0985 766 650 Riveros G., Carlos 0981 521771 Riveros, Mario 0992 993007 Romero, Melchor 0983 470631 Ruíz, Carlos 0981 896430 Vallejos, Cándido 0991 233001 Villalba, Javier 0985 491498 Villaverde, Silvino 0992 396855 Ploteo de planos Coronel, Renzo 0986 656577 Prevención contra incendios Caje, Rodolfo A. 0984 234423 Manchini, César 0981 245725 Proyecto arquitectónico Abbate, Alejandra 0982 886227 Aponte, Andrea 0971 190781 Arnedo, Ana Arq 0981 655014 Coronel, Renzo 0971 362856 Fernández, María Arq 0981 932043 Martínez, Liz Arq 0981 926697 Nuñez, Andrea 0982 170442 Pérez, Rafael 0981 476743 Pulidor de parquet Fernández, José 0982 627836 Pulidor de piso granítico y de H˚ Caballero, Rodrigo 0981 257702 Fernández, José 0982 627836 Refrigeración / AA / camaras frigorificas/ heladeras Brítez, Santiago 0981 117524 Galarza, Ramón 0981 230273 Hucedo, Carlos 0982 178592 León, Cañete 0983 800938 Ruiz, Carlos 0981 896430 Sartorio, Jorge 0981 939172 Reparación / instalación de electrobombas para pozos Escobar, Carlos 644497 / 0971 357473 Moragas, Carmelo 0985 268497

Termocalefones - Instalación

Cálculo de honorarios de arquitectos

1 - Calcular el costo total de la obra (superficie en metros cuadrados x costo del metro cuadrado).

2 - Calcular cantidad de jornales diarios, usando el Costo total de la obra. Cantdad de jornales diarios = Costo total de la obra / Jornal diario

3 - Verificar en la tabla del Art. 8° ley 1012 de 1983, que porcentaje de honorarios corresponde.

BOLSA DE SUBCONTRATISTAS - Revista Mandu’a 74 Monto de obra Honorarios Hasta 229.6 salarios 15,6 % “ 459.2 “ 12,83 % “ 688.8 “ 11,73 % “ 918.4 “ 11,04 % “ 1.148 “ 10,52 % “ 1.377.6 “ 10,13 % “ 1.607.2 “ 9,84 % “ 1.836.8 “ 9,57 % “ 2.066.4 “ 9,38 % “ 2.296 “ 9,19 % “ 2.755.2 “ 8,90 % “ 3.214.4 “ 8,63 % “ 3.673.8 “ 8,44 % “ 4.132.8 “ 8,28 % “ 4.592 “ 8,13 % “ 5.740 “ 7,85 % “ 6.888 “ 7,63 % “ 8.036 “ 7,44 % “ 9.184 “ 7,30 % “ 10.332 “ 7,16 % Monto de obra Honorarios Hasta 11.480 salarios 7,05 % “ 13.776 “ 6,88 % “ 16.072 “ 6,74 % “ 18.368 “ 6,62 % “ 20.664 “ 6,52 % “ 22.960 “ 6,46 % “ 27.552 “ 6,30 % “ 32.144 “ 6,18 % “ 36.736 “ 6,10 % “ 41.328 “ 6,02 % “ 45.920 “ 3,95 % “ 57.400 “ 5,82 % “ 68.880 “ 5,71 % “ 80.360 “ 5,62 % “ 91.840 “ 5,55 % “ 103.320 “ 5,50 % “ 114.800 “ 5,46 % “ 137.760 “ 5,37 % “ 160.720 “ 5,30 % “ 183.680 “ 5,26 % Monto de obra Honorarios Hasta 206.640 salarios 5,20 % “ 229.600 “ 5,16 % “ 275.520 “ 5,11 % “ 367.360 “ 5,05 % “ 371.440 “ 5,01 % “ 413.280 “ 4,97 % “ 459.200 “ 4,94 % “ 574.000 “ 4,87 % “ 688.800 “ 4,83 % Restauración de muebles Aparici, Mari 0981 500065 Montanía, Higinio 0981 530480 Retiro de escombros Paredes, Oscar 0981 486756 Revoque exterior en altura balancinero Benítez, Silverio 0982 787131 0971 681339 Seguridad industrial Manchini, César 0981 245725 Seguridad ocupacional López, Angélica 0981 129715 Mendoza, Ludwin 0982 568046 Servicios informáticos Compra - Venta Cabrera, Arnaldo 0981 334508 Tasaciones urbanas y rurales Sotomayor A, Edgar Arq 0981 818880
y mantenimiento Moragas, Carmelo 0985 268497 Moragas, Victorino 0981 892513 Topógrafos Guillén, Fabio 0981 973903 Kuebler, Edwin 0991 393727 López, Juan Manuel Ing 0981 433805 Recalde, César 0981 170159 Trabajos en autocad Ferreira, José 0981 915492 Jacobo, Nora 0971 534417 Maciel, Shirley 0981 249598 Maidana, María B. 0991 988215 Martínez, Liz Arq 0981 926697 Montiel, Gustavo 0982 488928 Navarro, Eduardo 0972 265312 Quintana, Jorge 0981 426037 Recalde, César 0981 170159 Robledo, Gustavo 0981 939512 Toledo, Milena 0981 201561 Ventilación industrial Ojeda, Hugo 0981 868289 Vidriero y polarizados Laneri, Gabriel 0981 787717 Vitrales Astigarraga, M. Teresa 0981 460109 Rafael Brito de Lima / LV Obras 0981 454665

*Lista de precios de materiales y servicios de la construcción ordenada por orden alfabético. Los precios incluyen el I.V.A. Todos los valores incluidos en esta edición son meramente indicativos, siendo los mismos resultando de un análisis de los precios los vigentes en el mercado. Mandu’a no se hace responsable de los mismos.

INDICE

75 - ABERTURAS

76 - ACOND. DE AIRE

76 - ALAMBRES

76 - ALQUILER Y VENTA DE EQUIPOS Y MÁQUINAS

80 - AISLANTES ACÚSTICOS

80 - AISLANTES TÉRMICOS

81 - ASCENSORES

81 - CAL

81 - CÁLCULO ESTRUCTURAL

81 - CAÑOS Y ACCESORIOS

82 - CARPINTERÍA

- CARPINTERÍA

estructura interior c/ nido de abejas, tapa canto, refuerzo para cerradura.

Marco tipo cajón: de 0,15 m en chapa plegada Nº 18 para puertas de madera, h=2,10 m. Puerta y marco metálico: Chapa plegada Nº 18, h=2,10 m - Preparada para macizar, incluye marco y cerradura.

MANDU’ARA
DE MADERA
83
84
CONDUCTORES ELÉCTRICOS 84
CLIMATIZACIÓN 84
CONSTRUCCIÓN EN SECO
84 - CORTINAS 84 - CHAPAS 85 - CIELORRASOS 85 - CONTAINERS 85 - DEPÓSITOS DE MADERA 86 - DEPÓSITOS DE MATERIALES 87 - DIVISORIAS SANITARIAS 87 - DRENAJES 88 - EDIFICIOS METALICOS 88 - ELECTRICIDAD 89 - ENCOFRADOS 89 - ESTRUCTURAS 89 - ESTUDIO DE ARQUITECTURA & CONSTRUCCIÓN 90 - FERRETERÍA 90 - FUMIGACIONES 90 - FUNDACIONES 90 - GAVIONES 90 - HERRAMIENTAS 90 - HERRERÍA 91 - HERRAJES 91 - HIDRÓFUGOS 91 - HORMIGÓN 92 - HOJALATERÍA 92 - IMPERMEABILIZANTES 93 - LABORATORIO DE ENSAYOS 93 - LOSA PREFABRICADA 93 - MÁRMOL Y GRANITO 94 - MAMPARAS 94 - MALLA ELECTRO SOLDADA 94 - MALLA DE FIBRA DE VIDRIO 94 - MEMBRANAS ASFÁLTICAS 94 - METAL DESPLEGADO 94 - OBRADORES Y OFICINAS 95 - PERFILES 95 - PERFORACIONES DE POZOS ARTESIANOS 95 - PIEDRAS 95 - PILOTES 95 - PINTURAS ABERTURAS Madera Puertas Puerta Placa de 1a: altura 2,10 m, lisa y lijada, c/ terciada 4mm en ambas caras,
0,60
0,70
0,80 m 01 De cedro un 500.000 02 De eucalipto un 200.000 De 0,90 m 01 De cedro un 600.000 02 De eucalipto un 250.000 Puertas con cabezal recto 01 Tablero standard de eucalipto un 700.000 02 Persiana fija m2 350.000 03 Vidriera cuadrillé m2 320.000 04 Vidriera sencilla m2 280.000 05 Lisa m2 190.000 06 Tablero, punta diamante moldura en cedro de 1ra un 2.000.000 Ventanas 01 Persiana fija m2 350.000 02 Vidriera cuadrillé m2 320.000 03 Vidriera sencilla m2 280.000 Marco de Yvyrapyta: cepillado, lijado y con 1 rebaje 01 De 15 cm, recto ml 40.000 Metálicas
96 - PISOS Y REVESTIMIENTOS 97 - PISOS SOBREELEVADOS 97 - PISOS VINÍLICOS 97 - PORTONES A CONTROL REMOTO 98 - PLANOS 98 - PREFABRICADOS DE HORMIGÓN 99 - PISCINAS 99 - PUERTAS 100 - PREVENCIÓN DE INCENDIOS 100 - REVESTIMIENTOS ACÚSTICOS 100 - SANITARIOS 100 - PUERTAS AUTOMÁTICAS 101 - SEGUROS 101 - SELLADORES 102 - TANQUES 102 - TOPOGRAFÍA 102 - VARILLAS 102 - VIDRIOS Revista Mandu’a - 75
DE ALUMINIO 83
83 - CEMENTO BLANCO 83 - CEMENTO GRIS 83 - CERÁMICA ROJA
- CERCO ELÉCTRICO
-
-
-
Mandu’ara
De
-
y

ACOND.

MANDU’ARA ALAMBRES Liso 01 Acerado Nº 17/15, rollo 1000m un 780.000 02 Galvanizado Nº 9, 12, 14 kg 17.000 03 Galvanizado Nº 20 kg 16.800 04 Negro de atar Nº 18 kg 18.000 De púa 01 Nº 16, rollo de 400 un 300.000 Tejido de Alambre Romboidal x m2 Malla Calibre 14 Calibre 12 Calibre 10 1’’ 27.000 54.000 1 1/2’’ 15.000 30.000 2’’ 11.000 22.000 S/C 2 1/2’’ 10.000 2 3/4’’ 9.000 Postes de madera Yvyrapyta - Altura 2,20 m 01 De 2x3” un 14.850 02 De 3x3” un 17.820 Postes de hormigón (ver rubro Prefabricados)
DE AIRE ALQUILER Y VENTA DE EQUIPOS Y MÁQUINAS Equipos por día 01 Alisadora de H° (Honda-Lifan) 192.500 02 Amoladora o cortadoras para cerámica de 9” (Bosch) 66.000 03 Andamio ER (alt. 1,50 largo 1.80 - ancho 1.10 mts ) 3.960 04 Andamio Acrow (alt. 1,85 largo 2.50 - ancho 1.20 mts ) 4.180 05 Aparejo con roldana 22.000 06 Balancín para trabajo en altura 38.500 07 Bomba de agua sumergible de 1 HP monofásica 134.000 08 Bomba de agua sumergible de 1,5 o 2 HP monofá- sica 176.000 09 Bomba de agua sumergible de 2 - 3 - 4 y 5 HP trifásica 242.000 10 Carretilla 37.500 11 Carro cuna 29.150 12 Cerco metálico - altura 2,10m - largo 2,40m 5.000 13 Cinturón de seguridad de cuero o nylon 11.000 14 Compresor de aire de 140 lt o 200 lt 550.000 15 Cortadora de hormigón 310.000 - Revista Mandu’a 76
MANDU’ARA 16 Escalera doble de madera (3-3.5-4-4.5 mts) 29.700 17 Escalera extendible de aluminio 48.300 18 Escalera extendible de fibra de vidrio 58.300 19 Escalera para andamio 18.000 20 Estabilizador para módulos 3.125 21 Generador de corriente monofásica -5 y 6 KVA 198.000 22 Hidrolavadora 110.000 23 Hormigonera 90 lts monofásica 66.000 24 Hormigonera 130 lts monofásica 88.000 25 Hormigonera 400 lts monofásica 137.500 26 Hormigonera 400 lts trifásica 137.500 27 Mangote para Hº 35 mm 55.000 28 Martillete eléctrico de 11 kg. 198.000 29 Martillete eléctrico de 16 kg. 230.000 30 Martillete eléctrico de 30 kg. 330.000 31 Motobomba de agua naftera 5 HP 149.600 32 Motobomba de agua naftera 6,5 HP 149.600 33 Policorte Maxicorte p/ disco de 12 “ 121.000 34 Prolongador tipo industrial trifásico 15.500 35 Puntal metálico de 3 m 300 36 Puntal metálico 4 mts 400 37 Rodillo compactador 980.000 41 Sapito compactador 4 ton Weber 220.000 42 Soldador eléctrico tipo industrial bifásico 107.800 43 Soplador naftero Sthil 180.000 38 Roto percutor especial Bosch 217.800 39 Roto Percutor chico Bosch 148.500 40 Rueda para andamio 3.125 44 Tablón de madera p/ andamio 2.900 45 Tablón de metal p/ andamio 4.400 46 Taladro Chico 60.500 47 Destornillador 154.000 48 Vibrador de Hº Aº con motor separado 107.800 49 Vibrador portatil c/ mangote de 35mm y 3,5 mts BOSCH 88.000 Revista Mandu’a - 77
MANDU’ARA Máquinas 01 Camión volquete eje sencillo, 5 Tn h 150.000 02 Camión volquete eje sencillo 10 Tn h 300.000 03 Camión volquete hasta 15 Tn h 450.000 04 Camión grúa con carreta hasta 8 tn h 375.000 05 Pala cargadora h 325.000 06 Retro pala h 275.000 07 Minipala (BOBCAT) h 200.000 08 Minicargador c/ operador h 165.000 09 Montacarga trifásico de 3,5 y 5 HP h 108.000 10 Retro sobre oruga h 450.000 11 Compactador pata de cabra h 375.000 - Revista Mandu’a 78
MANDU’ARA Revista Mandu’a - 79

AISLANTES

MANDU’ARA
ACÚSTICOS CASARINO 1 Pro Alpine, placa 30 mm - 0,49 x 0,49 m un 42.000 2 Pro ciclos, placa 30mm - 0,49 x 0,49 m un 25.000 3 Poliestireno extruido - 0,60 x 1,20 m un 86.000
AISLANTES
TÉRMICOS Espuma de polietileno 20 m2 1 Doble alu 5 mm un 365.000 2 Doble alu 10 mm un 438.000 3 Aluminizado 5 mm un 125.000 4 Aluminizado 10 mm un 220.000 5 Poliestireno extruido Build Spuma 0.60x1,20 m un 86.000 Arcilla expandida 01 De diametro 20 mm / 2215, bolsa 50 l un 72.500 02 De diametro 30 mm / 3222, bolsa 50 l un 72.500 0982 620 227 modular.comercial@tecnimet com - Revista Mandu’a 80

CAÑOS Y ACCESORIOS

MANDU’ARA ASCENSORES
PVC - Tubos de 6ml Tubo liviano para desague (blanco) 01 De 40 mm un 41.206 02 De 50 mm un 61.619 03 De 75 mm un 127.017 04 De 100 mm un 147.291 05 De 150 mm un 332.559 Tubo cloacal blanco 01 De 100 mm un 97.430 02 De 150 mm un 382.535 Tubo roscable blanco agua fría 01 De 1” un 148.196 02 De 3/4” un 72.764 03 De 1/2” un 54.029 Tubo soldable p/ 10kg 01 De 32 mm, un 50.960 02 De 25 mm, un 29.012 03 De 20 mm, un 19.341 Para agua caliente, roscable, 4 capas 01 De 1/2” un 53.119 Codo PVC para desagüe primario 01 De 50mm x 45º un 3.448 02 De 50mm x 90º un 3.941 03 De 100mm x 45º un 11.317 04 De 100mm x 90º un 11.619 Codo PVC para desagüe secundario 01 De 40mm x 45º un 1.879 02 De 40mm x 90º (buje largo) un 1.866 Caja sifonada cuadrada 01 100 x 100 x 50/40 mm un 46.198 02 150 x 150 x 50 mm un 72.443 03 150 x 185 x 75 mm un 111.276 Accesorios PVC 01 Alma doble roscable ½”, un 1.862 02 Anillo de sellado p/ desagüe 50 mm un 2.812 03 Anillo de sellado p/ desagüe 75 mm un 4.493 04 Anillo de sellado p/ desagüe 100 mm un 5.041 CAL Inpacal 01 Cal hidratada azul, 20 kg un 25.500 02 Cal triturada, 40 kg un 45.000 03 Cal viva molida, 20 kg un 24.500 021 482 268 - 0992 463 417 CÁLCULO ESTRUCTURAL Revista Mandu’a - 81

CARPINTERÍA DE ALUMINIO

05 Tubo de descarga de embutir p/ cisterna un 10.446 06 Tubo de descarga plástico p/ lavatorio ASTRA un 13.064 07 Buje largo de reducción para desagüe 50x40 mm, un 2.197 08 Buje corto soldable 50x40 mm, un 3.682 09 Codo 90o roscable ½” un 2.546 10 Codo de reducción 90o roscable ¾” x ½” un 2.598 11 Prolongador para desengrasador 250x200mm, un 37.483 12 Prolongador para caja sifonada 150 x 150 mm, un 7.760 13 Ramal 45o simple p/ desagüe secundario 40mm un 5.469 14 Ramal “Y” 100x50 mm p/ desagüe un 15.795 15 Ramal “Y” 100x100 mm un 26.463 16 Tapón macho roscable para desagüe secundario de ½”, un 780 17 Tee roscable de ½” un 2.689 18 Tee 40x40mm x 90º p/ desagüe primarioun 3.965 19 Tee 50x50mm x 90º p/ desagüe primarioun 6.877 20 Tee 100x100mm x 90º desagüe primario un 18.695 21 Unión sencilla roscable ½” un 1.986 Columnas para tendido 01 De 6,00 m/150 un 479.799 02 De 7,50 m/150 un 727.591 03 De 7,50 m/200 un 727.591 04 De 9,00 m/150 un 1.165.660 Hierro Galvanizado - Caños de 6 ml 01 De 1/2”, un 168.863 02 De 3/4” Apolo, un 217.762 03 De 1” un 320.784 04 De 1 ¼” un 410.136 05 De 1 1/2”, un 494.629 06 De 2” un 628.655 07 De 2 1/2”, un 813.000 Accesorios Hierro Galvanizado 01 Alma doble ½”, un 6.099 02 Alma doble ¾”, un 7.928 03 Buje ¾” x ½”, un 6.062 04 Buje ½” x 3/8”, un 3.616 05 Codo ½” x 90º MH, un 6.853 06 Codo Reducción ¾” x ½”, un 8.650 07 Curva transposición ½” x ½”, un 15.817 08 Tapón macho½”, un 3.431 09 Tee ½” x 90º, un 5.392 10 Tee reducción ¾” x ½”, un 11.457 11 Unión doble plana ½”, un 17.354 12 Unión reducción ½ x 3/8”, un 9.450 13 Unión sencilla ½”, un 6.384 Accesorios PVC 01 Tee ¾” a ½” IPS un 4.238 02 Desengrasador 250mm salida 50 un 64.612 03 Desengrasador 250mm salida 75 un 91.037 04 Tubo de descarga plástico ASTRA un 15.278 05 Tubo de descarga externa p/ lavat. un 12.064
MANDU’ARA
- Revista Mandu’a 82

CERCO

MANDU’ARA CERÁMICA
CEMENTO GRIS 01 Yguazú, 50 kg bls 60.000 CEMENTO BLANCO 01 Estructural, 50 kg un 4500 02 Refractario 25 kg un 225.000
DE MADERA Muebles de cocina 01 Alacena colgante con puertas placas lisas, revestido exterior con fórmicaherrajes y colocación ml 600.000 02 Idem anterior mueble bajo mesada ml 800.000 03 Alacena colgante con puertas placas lisas, revestido exterior en cedro interior en cupay, lustre natural herrajes y colocación ml 900.000 04 Idem anterior mueble bajo mesada ml 1.000.000 Placares 01 Con puertas placas lisas, exterior cedro, interior cupay, lustre natural, herrajes, interior revestido, cajones,estantes y colgadores, colocado m2 1.200.000
ROJA
CARPINTERÍA
Cerco eléctrico de 4 hilos con hastes de hierro 5/8” 01 De alambre de 0,70 mm ml 12.000 02 De cabo de acero de 1,6 mm ml 24.000 Cerco de cuchillas galvanizadas colocado Tipo medialuna ml 38.000 Tipo circular 8 puntas diam. 30 cm ml 44.000 Idem anterior de diam 45 cm ml 49.000 Electrificador: incluye central, batería, control remoto, sirena, con instalación un 850.000 Revista Mandu’a - 83
ELÉCTRICO
MANDU’ARA CONDUCTORES ELÉCTRICOS Conductores flexibles con hilos de cobre electrolítico blando Aislación en PVC antillama 70oC CABLES O CONDUCTORES INPACO Precios por metro IVA incluido Sección mm2 Multifilar Alambre PVC Cable PVC Inpacord 2 conductores Inpaplomo 2 conductores Inpaplomo 3 conductores 0,50 993 1.052 1.088 2.146 2.563 3.683 0,75 1.388 1.411 1.508 2.978 3.421 4.988 1,00 1.698 1.780 1.835 3.732 4.515 6.657 1,50 2.432 2.597 2.743 5.040 5.963 8.926 2,00 3.129 3.403 3.536 6.589 7.784 11.637 2,50 3.889 4.058 4.381 8.118 9.492 14.208 4,00 5.964 6.434 6.805 12.636 14.256 21.351 6,00 8.778 9.324 9.778 18.462 20.519 30.963 10,00 15.573 15.485 16.409 - 37.677 56.627 CLIMATIZACIÓN CONSTRUCCIÓN EN SECO CASARINO 01 Ondusec 1 x 2,4 m un 88.000 02 Poliestireno Extruido - placa 0,60 x 1,10 m un 86.600 03 Lana de vidrio 50 mm, 1,20 x 12 m un 364.000 04 Lana de roca con alu, 4 x 1,20 m un 437.000 05 Lana de roca s/ alu, 8 x 1,20 m un 520.000 CORTINAS TEL.: 021 906 951 - CEL.: 0971 543 246 CDE: 061 570 501 Butterfly Persianas & Cortinas CHAPAS Chapa Galvalume por metro 01 Nº 29 m U$S 3,22 02 Nº 28 m U$S 3,64 03 Nº 27 m U$S 4,32 Chapa termoacústica en medidas estandar 01 de 3,66 m un U$S 55,92 02 de 4,27 m un U$S 65,25 03 de 4,88 m, un U$S 74,56 04 de 6,10 m, un U$S 93,21 Policarbonato 01 Alveolar 6 mm m2 88.000 02 Mano de obra, colocación m2 66.000 - Revista Mandu’a 84

03 Estructura metálica con caño 20x30” p/ montaje del policarbonato

ZINC Aluminizada de 0,90 cm ancho (Cincalum)

Chapa Ondulada No 28

TEL.: 021 906 951

CEL.: 0971 543 246

CDE: 061 570 501

TEL.: 021 906 951

CEL.: 0971 543 246

CDE: 061 570 501

MANDU’ARA
CALIDAD DE ACEROS PARA SUS OBRAS www.mvaceros.com.py CHAPAS TERMOACÚSTICAS CHAPAS TRAPEZOIDALES CHAPAS ONDULADAS CHAPAS COLONIALES ÁNGULOS PLANCHUELAS BABETAS FRONTAL Y LATERAL PLANCHUELAS VARILLAS IPN > UPN PERFILES PLEGADOS PARA PUERTAS ARTÍCULOS DE FERRETERÍA CAÑOS CHAPAS LISAS
ventas5@mvaceros.com.py +(595) 974 502 500 +(595) 986 174225
CIELORRASOS
DEPÓSITOS DE MADERA Alfajías, cepilladas 01 Ybyrapyta hasta 2 m de largo ml 7.000 02 Eucalipto hasta 2 m de largo ml 5.000 Vigas Pulg2/m - De Ybyrapyta 01 1,0 - 1,9 m pulg/m 4.000 02 2,0 - 2,9 m pulg/m 4.000 03 3,0 - 3,9 m pulg/m 4.000 04 4,0 - 4,9 m pulg/m 4.200 05 5,0 - 5,9 m pulg/m 4.300 06 6,0 - 6,9 m pulg/m 5.000 Tablas y puntales para encofrado 01 Tabla de eucalipto de 1’’ pulg/m 580 02 Puntal de eucalipto de 3x3’’ pulg/m 580 Tirantes de Ybyrapyta / Kurupa’y 01 1,0 - 1,9 m pulg/m 2.500 02 2,0 - 2,9 m pulg/m 2.500 03 3,0 - 3,9 m pulg/m 2.900 04 4,0 - 4,4 m pulg/m 3.200 05 4,5 - 4,9 m pulg/m 3.800 06 5,0 - 5,9 m pulg/m 3.800 07 6,0 - 6,9 m pulg/m 4.400 CONTAINERS
99.000
m2
Metálicas
01 De 8 pies (2.44m largo) un 109.000 02 De 12 pies (3.66m largo) un 136.000 Revista Mandu’a - 85

DEPÓSITOS DE MATERIALES

MANDU’ARA
Arena y Tierra, Cal, Cemento, Contenedores y Piedra están ubicados en sus rubros por orden alfabético Ladrillos Ladrillo Común 01 Tobati, un 700 02 Prensado Ita Yvy de 1a, 5x11,5x23,5 cm un 990 03 Laminado rústico Yoayu de 1a un 858 04 Ita Yvy (3 agujeros) de 1a un 1.045 03 Yoayu laminadito 5x11x25 cm un 866 Ladrillo Hueco De 6x12x25 cm, 2 caras vistas, 3 tubos, 52 un x m2 01 Ita Yvy de 1ra B, un 814 02 Ita Yvy de 1ra A, De 8x18x25 cm, 6 tubos, 20 un x m2 01 Ita Yvy de 1ra A, De 12x18x25 cm, de 1ra 6 tubos, 20 un x m 01 Ita Yvy de 1ra A 02 Ita Yvy de 1ra B 03 Irene, 04 Yoayu de 1ra De 18x18x25 cm, 9 tubos, 20 un x m2 01 Ita Yvy de 1ra A un 02 Ita Yvy de 1ra B un 1.716 Ladrillo Laminado recto - 6x12x25 cm, 52 un x m2 01 Irene 1ra A un 1.250 02 Yoayu laminadito 5x11x25 cm un 866 Ladrillo Laminado Curvo 15 un x ml 01 Irene de 1ra A, un 1.460 02 Yoayu de 1ra B un 1.779 Ladrillo Convocó, 25 un x m2 01 Ita Yvy 19x19x11cm un 2.508 02 Irene, 18x18x12cm un 2.650 03 Irene, 25x25x12cm un 4.555 04 Yoayu 19x19x10cm un 2.495 Ladrillejos 52 un x m2 01 Irene 1ra A un 630 02 Yoayu 1ra un 624 03 Irene 1ra B un 500 Ladrillo Sapp de 1a - 12 un x m2 01 Ita Yby 7x30x25 cm un 1.661 02 Yoayu un 1.663 Teja española prensada de 1ra Irene - 26 un x m2 01 Uniforme un 2.155 02 Primera un 1.850 03 Fogueada un 1.550 04 Fogueada amarilla un 1.620 05 Punta Negra un 1.328 Teja española prensada Yoayu - 26 un x m2 01 De 1ra A un 1.525 - Revista Mandu’a 86
MANDU’ARA DIVISORIAS SANITARIAS DRENAJES CASARINO 01 Manta geotextil 200 g (Casarino) m2 12.000 TEL.: 021 906 951 CEL.: 0971 543 246 CDE: 061 570 501 02 De 1ra B un 1.409 03 De 1ra Fogueada un 1.351 04 De 1ra Requemada un 1.294 05 De 2da un 1.063 06 De 1ra A Extrusada un 1.049 Teja de cemento King - 10 un x m2 01 Gris natural, un 7.500 02 Gris ceniza, un 10.000 03 Pintada con pintura acrílica un 11.000 Cumbreras/Laterales de cemento King - 3 un x ml 01 Gris natural un 7.500 02 Gris ceniza un 10.000 03 Pintada con pintura acrílica un 11.000 Tejuelones - 9 un x m2 01 Yoayu de 1ra A un 2.374 02 Yoayu de 1ra B un 2.079 03 Irene de 1ra B un 2.400 Tejuelitas - 30 un x m2 01 Irene de 1ra A un 620 02 Irene de 1ra B un 520 03 Ita Yvy de 1ra A un 517 04 Ita Yvy de 1ra B un 474 Layotas De 18x18 cm, 28 un x m2 01 Yoayu 1ra un 416 De 28x28 cm, 12 un x m2 01 Yoayu de 1ra B un 1.351 02 Yoayu de 1ra B antideslizante un 1.351 03 Ita Yvy de 1ra B un 1.595 04 Ita Yvy de 1ra B antideslizante un 1.650 Zócalos de layota de 1ra A - 10cm de ancho 01 Yoayu de 28cm un 2.235 02 Ita Yvy de 28cm un 2.464 Varios 01 Cartón asfáltico fino nacional rollo 40 m2 un 99.500 02 Fieltro asfáltico Casarino 40 m2 pesado m2 4.875 03 Plástico para techo 100 micrones m2 1.650 04 Plástico para techo 200 micrones m2 2.250 05 Pileta granítica - 1 bacha 1,20x0,50m un 120.000 06 Pileta granítica - 2 bachas 1,50x0,50m un 140.000 07 Cascotillo cerámico m3 99.500 08 Asfalto sólido kg 8.000 09 Poste de Karanday un 80.000 Revista Mandu’a - 87

EDIFICIOS METALICOS

MANDU’ARA
Columna de entrada (Materiales varios) 01 Aislador roldana B.T. 72x72mm, un 3.000 01 Aislador retención 0,50 un 3.500 02 Bulón p/ madera 3/8 x 3” un 1.000 03 Caño de acero ¾” x 3 m, un 8.500 04 Caño de acero 1” x 3 m, un 15.000 05 Caño galvanizado 2” x 5,8 m, un 125.000 06 Caño galvanizado 2 ½” x 5,8m, un 210.000 07 Cruceta p/ pre emsamblado 2” monofásica un 3.000 08 Cruceta p/ pre emsamblado 2 ½” Trifásica. un 3.500 09 Curva galvanizada 1 ¼”, un 8.500 10 Fondo de madera monofásico, un 6.000 11 Fondo de madera trifásico, un 6.000 12 Tapa monofásica Ande, un 8.500 13 Tapa trifásica Ande, un 10.000 14 Unión reducción 2” x 1”, un 9.500 15 Unión reducción 2 ½” x 1 ¼”, un 11.500 16 Curva galvanizada 1”, un 24.970 Cinta aisladora 01 Cinta auto soldable 3M 19mm x 2 mts un 7.500 02 Cinta aisladora Millión 19mm x 2 mts un 5.500 Tablero de embutir transparente 01 Para 8 TM, un 25.000 02 Para 12 TM, un 31.500 03 Para 24 TM, un 80.000 Puente plaqueta 2x4 Ciega 1 módulo 2 módulos 3 módulos Línea Duomo marfil o blanco 5.019 5.019 5.019 5.019 Línea Loft marfil o blanco 6.750 6.750 6.750 6.750 Línea Habitat 2.990 2.990 2.990 Interruptores Línea Habitat Línea Duomo Interruptor unipolar 3.750 6.350 Tomacorriente universal sin tierra 3.750 6.350 Llaves termo magnéticas Unipolares 01 Disyuntor TM 1x 10A, DIN un 8.000 02 Disyuntor TM 1x 40A, DIN un 10.500 03 Disyuntor TM 1x 50A, DIN un 10.500 Tripolares 01 Disyuntor TM 3x 20A, DIN un 28.000 02 Disyuntor TM 3x 32A, DIN un 28.000 03 Disyuntor TM 3x 40A, DIN un 30.000 04 Disyuntor TM 3x 63A, DIN un 30.000 Caño corrugado nacional 01 De 1/2”, m 290 02 De 5/8”, m 365 03 De 3/4”, m 465 04 De 1”, m 590 Caño plástico negro nacional (electroducto) 01 De 3/4”, m 890 02 De 1”, m 1.290 Varios 01 Apliques desde un 80.000 02 Arañas desde un 150.000 03 Faroles desde un 100.000 04 Caja de conexión metal 3x3, un 1.450 05 Caja de llave metal 4x2, un 1.450 06 Caja común americana p/ 1 TM, un 8.850 07 Caja común americana p/ 3 TM, un 14.500 08 Caja c/ riel Nº 1, un 8.850 09 Caja c/ riel Nº 3, un 14.500 10 Cinta nylon 30m (pasa cable), un 19.800 11 Jabalina cobre 5/8x2,00 m, un 25.000 12 Abrazadera p/jabalina 5/8 reforzado, un 5.000 13 Tapa ciega 4x4 llave doble blanca un 2.000 14 Tapa ciega p/ conexión blanca, un 1.000 15 Chicharra externa 220V Perlex, un 12.500 - Revista Mandu’a 88
ELECTRICIDAD

ESTUDIO DE ARQUITECTURA & CONSTRUCCIÓN

MANDU’ARA 16 Interruptor diferencial 4x40A, un 95.000 17 Llave PANAN 25A p/ calefón un 10.000 ESTRUCTURAS TInglado Metálico 01 Hasta 10 m de luz, m2 132.000 02 De 10 m a 15 m de luz, m2 134.000 03 De 15 m a 20 m de luz, m2 139.000 04 De 20 m a 25 m de luz, m2 142.000 Tinglado de HoAo 01 Material + mano de obra m2 280.000 ENCOFRADOS
Revista Mandu’a - 89
FERRETERÍA 01 Balde albañil de plástico, un 10.000 02 Cemento de contacto, lt 23.500 03 Kerosene, lt 10.000 04 Masilla común kg 15.000 05 Solvente para cemento de contacto, lt 15.000 Clavos 01 Clavo con cabeza de plomo, un 400 02 Clavo de 2” a 5“, kg 18.000 03 Clavo 1/2’’ a 3/4’’ kg 25.000 FUNDACIONES FUMIGACIONES GAVIONES 01 Fenoina, insecticida y fungicida p/maderas (Casarino) LT. 32.000 HERRAMIENTAS HERRERÍA Aberturas Barandas de balcón 01 De hierro sencilla 1,00m, pasamanos de 60x25mm en chapa doblada Nº14 colocación incluida dentro del radio urbano de Asunción m2 235.950 02 Idem de hierro dibujada, m2 272.250 Balancines sin colocación - A partir de 1 m2 01 Balancín fabricado con ángulo 5/8 y T 3/4x1/8, hoja de 0,20 m, m2 165.000 02 Balancín fabricado con ángulo 3/4 y T 7/8 x 1/8, m2 231.000 03 Balancín de 60x60 cm, un 110.000 04 Balancín de 60x40 cm un 82.500 Cortinas metálicas de enrollar - A partir de 10 m2 01 Fabricación y montaje de cortinas automatizadas con láminas de acero galvanizado m2 750.000 02 Fabricación y montaje de cortinas manuales con láminas de acero galvanizado m2 650.000 03 Cubrerrollo de chapa N° 18 con puerta trampa ml 400.000 Escaleras 01 Caracol diámetro 1,20 m, estructura de hierro con baranda, peldaños, con 1 mano antióxido y colocación incluida, por metro de altura, ml 858.000 02 Escalera marinera ml 223.850 Parrilla 01 Parrilla graduable de hierro enlozada con cenicero y carbonera de 1,20x0,50 m con tapa calor, un 1.595.000 02 Campana de 1,20x0,60 m para parrilla con colocación, un 418.000 - Revista Mandu’a 90
MANDU’ARA

03 Tubo de campana en chapa negra Nº 18, ml 78.650

Reja para ventana

01 Reja artística sencilla, con marco de ángulo de 3/4 x 1/8”, varilla de 10mm y dibujo rombo con planchuela de 3/4 x 3/16, m2 198.000

02 Idem anterior reja artística dibujada, m2 253.000

Portones (ver Portón a control remoto)

HORMIGÓN

Hormigón Elaborado

* Comprende elaboración, transporte, bombeo, toma de muestras y rotura en laboratorio. Precios al contado

MANDU’ARA
Varios 01 Falleba de arrimar cromada, un 25.500 02 Ficha de 3 agujeros brasileña, reforzada, par 9.000 03 Ficha de 5 agujeros brasileña, reforzada, par 10.000 04 Pasador a palanca de embutir cromado de 150 mm un 18.000 05 Pasador a palanca de embutir cromado de 200 mm, un 25.000 06 Tirafondo galvanizado de 3/8x5”, un 1.500 07 Tornillo 1x7” caja de 144, un 150 08 Varilla de hierro para falleba de 1,20 m, un 24.500 09 Varilla de hierro para falleba de 1,50 m, un 30.000 HIDRÓFUGOS PENNSYLVANIA 1 Ceresita, 20 kg, kg 6.150 CASARINO 1 De, 5 kg un 29.500
HERRAJES
1 Ho FCK 90 m3 680.000 2 Ho FCK 120 m3 757.000 3 Ho FCK 150 m3 787.000 4 Ho FCK 180 m3 854.000 5 Ho FCK 200 m3 874.000
Medida Rejilla de Patio Tapa de Registro 15x15 cm 29.400 39.500 20x20 cm 33.600 44.800 25x25 cm 41.000 49.500 30x30 cm 50.900 56.000 35x35 cm 62.600 58.700 40x40 cm 69.000 72.800 50x50 cm 95.400 93.800 60x60 cm 128.000 115.000 Revista Mandu’a - 91

IMPERMEABILIZANTES

MANDU’ARA HOJALATERÍA Los precios no incluyen pintura. Chapa Galvanizada Canaleta embutida No 24 01 Desarrollo 60 cm, ml 135.000 02 Desarrollo 50 cm, ml 110.000 Canaleta moldurada 40 cm 01 Chapa No 24, ml 85.000 Canaleta moldurada 33 cm 01 Chapa No 26, ml 65.000 02 Chapa No 28, ml 55.000
CASARINO 1 Secomur (silicona transparente) Lt. 16.000 2 Emulsión asfáltica Novasfalt, 20 Lt. un 225.000 3 Tapagoteras 4 kg un 137.000 4 Cementicio bi-componente, 25kg un 240.000 Adhesivos Brascola Adhesivo epoxi aralbras estructural 4kg un 118.000 Adhesivo epoxi aralbras nautico 2kg un 325.000 Brascoflex ultrafix blanco 80gr un 11.000 Brascoflex ultrafix blanco 410gr un 58.000 Casarino - Revista Mandu’a 92

LABORATORIO DE ENSAYOS

Vigueta de cerámica armada con cielo raso de hormigón visto incluido, a retirar de fábrica. (Listalosa)

MANDU’ARA
pretensado
Puesto en obra 01 De 0,50 a 4,80 m, m2 87.600 02 De 4,90 a 5,90 m, m2 95.600 03 De 6,00 a 7,60 m, m2 107.600 PreLosa pretensada y ladrillo Rap (PreRap 0,12x1,20 m) - Puesto en obra 01 Largo hasta 5,2 m m2 105.000 02 Largo hasta 6,1 m m2 110.000 03 Largo hasta 6,8 m m2 116.000 04 Largo hasta 7,7 m m2 126.000 05 Largo hasta 9,5 m m2 235.000
LOSA PREFABRICADA Vigueta de Hº
y ladrillo (Losa Rap) -
Ancho = 20 cm / Altura = 10 cm m2 122.000 MÁRMOL Y GRANITO Granito natural Espesor 2 cm 01 Gris Corumba m2 550.000 02 Verde Ubatuba m2 640.000 Revista Mandu’a - 93

MEMBRANAS ASFÁLTICAS

MANDU’ARA MAMPARAS 01 Mampara ciega m2 130.000 02 Mampara vidriada m2 145.000 03 Accesorios y herrajes p/ puerta simple, un 280.000 TEL.: 021 906 951 CEL.: 0971 543 246 CDE: 061 570 501
Garelli 1 De diámetro 4,2 mm, para cubrir 15 m2 un 120.000 MALLA DE FIBRA DE VIDRIO CASARINO - Para refuerzo de revoques, de 50 m 1 De 5x5 x 75 gr, un 364.000 2 De 5x5 x 110 gr, un 416.000 3 De 5x5 x 145 gr, un 468.000 4 De 10x10 x 110 gr, un 416.000 5 Tela tramada p/refuerzo de pinturas y cementicios 1 x 100 m2 un 946.500
CASARINO Casarino con Aluminio 1 De 3 mm m2 51.800 2 De 4 mm m2 62.500 Casarino sin Aluminio 1 De 4 mm 57.000 CASARINO - Autoadhesivas 1 De 10 cm m 5.500 2 De 15 cm lt 8.000 3 De 20 cm m 12.500 4 De 25 cm m 23.500 5 Bitumex base para membranas lt 33.500 Super Flex con aluminio, Casarino 1 De 36 kg m2 34.200 0982 620 227 modular.comercial@tecnimet com 03 Amarillo, Oro, Dorado m2 680.000 04 Rojo, Negro, Lila m2 750.000 Mármol natural Espesor 2 cm 01 Blanco veta gris, m2 680.000 02 Travertino blanco, m2 680.000 - Revista Mandu’a 94
MALLA ELECTRO SOLDADA
MANDU’ARA PIEDRAS Para fundaciones y hormigón 01 Piedra bruta blanca m3 120.000 02 Piedra bruta blanca, carga 5 m3 un 600.000 03 Piedra triturada IV tn 110.000 04 Piedra triturada V tn 120.000 05 Ripio, rojo m3 70.000 06 Ripio, negro tn 95.000 Adoquin de Piedra PERFILES PINTURAS Para carpinteria Barniz 3,6 l 1 Mariner incoloro brillante, interior/exterior un 121.000 2 Mariner incoloro mate, interior/exterior un 133.000 3 Penetrante secado rápido, 5 lt un 105.000 PILOTES
PERFORACIONES DE POZOS ARTESIANOS 01 Chico (130 un x m2, aprox) un 1.300 02 Mediano (90 un x m2, aprox) un 1.300 03 Grande (70 un x m2, aprox) un 1.300 Piedra para borde de piscinas 01 Borde Atérmico, 40x40cm ml 75.000 Ardosia 01 Gris de 8 mm, m2 55.000 02 Negra de 10 mm, m2 65.000 03 Verde de 12 mm m2 75.000 Piedras para revestidos 01 Laja fina, espesor 1 a 2 cm m2 95.000 02 Laja gruesa (lajón), espesor 2 a 3 cm m2 95.000 03 Wasmosy, trabajada m2 65.000 Piedras para pisos 01 Losa blanca rompecabeza m2 33.000 02 Losa roja cuadrada rústica m2 120.000 Revista Mandu’a - 95
Cel.
0981 406988
MANDU’ARA PISOS Y REVESTIMIENTOS Baldosas Calcáreas Base Gris 01 De 20x20, 15x30 o 25x25 cm, m2 40.000 03 Zócalo 10x30 cm ml 19.000 Base Blanca 01 De 20x20, 15x30 o 25x25 cm, m2 40.000 03 Zócalo 10x30 cm ml 20.000 Mosaico granítico para interior Base Gris semi pulido 01 De 30x30 cm m2 65.000 02 De 40x40 cm m2 70.000 03 Zócalo 10x30 cm ml 35.000 04 Plancha o escalones m2 400.000 Base Blanca semi pulido 01 De 30x30 cm m2 75.000 02 De 40x40 cm m2 80.000 03 Zócalo 10x30 cm ml 40.000 04 Plancha o escalones m2 400.000 Mosaicos para exterior Granito lavado 01 De 30x30 cm, blanco m2 58.000 02 De 30x30 cm, negro m2 50.000 03 Cargado en obra, m2 130.000 Mosaico granítico anti deslizante 01 De 30x30 cm gris m2 68.000 l 18.411 Para chapas - CASARINO 1 Bitumex 20 lt, impermeabilizante y anticorrosivo lt 18.000 2 Alumitech 20 lt aislación térmica lt 36.000 Membrana líquida para techos/terrazas/muros/chapas 1 Emacril fibrado, blanco o rojo teja, 20 kg un 520.000 2 Emacril poliuretánico, blanco/rojo teja/ verde 20 kg un 715.000 Casarino SELLADORES Casarino 1 Sellador de silicona para aluminio, vidrio, carpintería, etc 300 ml un 26.000 2 Sellador transparente para vidrio, metal, yeso, plástico, etc 300 ml un 86.000 3 Sellador poliuretánico elástico p/ juntas de H°, mamposterías, tanques un 66.000 4 Adhesivo y sellador gris p/ juntas de dilatación, obras hidraulicas, etc 300 ml un 75.000 02 De 40x40 cm gris m2 73.000 03 De 30x30 cm colores m2 73.000 04 De 40x40 cm colores m2 80.000 Canto rodado 01 De 30x30 cm, liso, amarillo/rojo m2 40.000 02 Zócalo 10x30 15x30 cm ml 20.000 Para pared LATEX para pared 21 kg 1 Vinilatex interior blanco un 133.000 2 Vinilatex interior color un 160.000 3 Vinilatex interior/exterior blanco un 154.000 4 Vinilatex interior/exterior color un 187.000 5 Supercril interior/exterior blanco un 204.000 6 Supercril interior/exterior color un 280.000 7 Supercril profesional lavable blanco un 351.000 8 Supercril profesional lavable color un 448.000 Enduído acrílico 25 kg 1 Interior un 121.000 2 Exterior un 133.000 Enduído acrílico 20 kg en bolsa 01 Interior un 70.000 02 Exterior un 80.000 - Revista Mandu’a 96
MANDU’ARA
SOBREELEVADOS TEL.: 021 906 951 CEL.: 0971 543 246 CDE: 061 570 501 03 Cargado en obra, m2 110.000 Alto Tránsito - Antideslizante para exterior - Equipa 01 De 30x30 cm, gris m2 65.000 02 De 40x40 cm, gris m2 73.000 03 De 30x30 cm, rojo ocre m2 68.000 04 De 40x40 cm, rojo ocre m2 74.000 Vereditas 01 Vainilla 20x20, Ka’a, roja, negra, gris m2 40.000 Baldosones de Hormigón - Linea Gris 01 De 40x40x2,5 cm, m2 37.000 02 De 40x40x4 cm, m2 42.000 03 De 40x40x4 cm, armada m2 63.000 04 De 60x40x4 cm, m2 50.000 Bordes 40x40 cm 01 Travertino o Naútico, ml 93.500 02 Atérmico cargado in situ ml 165.000 Varios 1 Oxido rojo/amarillo, kg 25.000 2 Oxido negro/azul/verde, kg 37.500 1 Pastina gris kg 25.000 2 Pastina blanca kg 37.500
PISOS
REMOTO Incluye: motor, placa, mecanismo, accesorios, 2 x control remoto y colocación. Para portón corredizo 01 Hasta 3m de ancho, motor 1/4 HP un 750.000 02 Hasta 3 a 4,5m de ancho, motor 1/3 HP ml 1.200.000 03 Hasta 4,5 a 6m de ancho, motor 1/2 HP un 2.200.000 Para portón basculante 01 Hasta 3m de ancho, motor 1/4 HP un 980.000 02 Hasta 3 a 4,5m de ancho, motor 1/3 HP ml 1.550.000 03 Hasta 4,5 a 6m de ancho, motor 1/2 HP un 1.850.000 Portones 01 Portón fabricado en chapa plegada Nº 20 y caño cuadrado 30x30 con pasador portacandado, cerradura y 1 mano antióxido m2 242.000 PISOS VINÍLICOS TEL.: 021 906 951 CEL.: 0971 543 246 CDE: 061 570 501 Revista Mandu’a - 97
PORTONES A CONTROL
MANDU’ARA PLANOS PREFABRICADOS DE HORMIGÓN A retirar Adoquin - King 01 De 8x8x13cm / 8x13x13cm / 8x13x21cm m2 90.000 02 De 6,5x13x21cm m2 77.000 03 Piso UNI 6x11x22cm m2 72.000 Dinteles 01 De 1,00m un 33.810 02 De 1,20m un 41.940 03 De 1,50m un 47.887 04 De 2,00m un 60.948 05 De 2,20m un 86.830 06 De 2,50m un 96.224 Bloques U - King 01 De 14x19x39cm un 6.240 02 De 19x19x39cm un 7.650 03 De 12x25x50cm un 9.750 Dintel de H° pretensado Garelli - puesto en obra 1 De 10 x 18 cm, de 4,10 a 5 m un 35.000 2 De 10 x 15 cm, de 3,10 a 4 m un 30.000 3 De 10 x 12 cm, de 2,10 a 3 m un 25.000 4 De 10 x 10 cm, de 1 a 2 m un 20.000 Tirante de H° pretensado con cola de pato 2 x 5" Garelli - puesto en obra 1 De 1m un 27.000 2 De 2m un 54.000 3 De 3m un 81.000 4 De 4m un 112.000 5 De 5m un 140.000 Tirante de H° pretensado recto 2 x 5" - Garelli puesto en obra 1 De 0,5m un 18.900 2 De 1m un 32.400 3 De 1,5m un 45.900 4 De 2m un 59.400 5 De 2,5m un 72.900 6 De 3m un 86.400 7 De 3,5m un 99.900 8 De 4m un 117.600 Poste H° pretensado Garelli 1 De 2,20 m un 38.500 2 De 2,40 m un 42.000 3 De 3,00 m un 52.500 Poste para cerca - Conpar 1 De 2m, olímpico un 58.957 2 De 2,50m, olímpico o recto un 94.197 02 Portón de reja fabricado en varilla cuadrada 3/8” y caño 30x30mm, m2 253.000 03 Caja p/ portón basculante o corredizo, m2 1.485.000 04 Basculante en chapa Nº 20 lisa o plegada y caño 40x40mm, m2 258.500 05 Corredizo en chapa Nº 20 lisa o plegada y caño 40x40mm, m2 264.000 06 Basculante de reja artística sencilla m2 264.000 07 Corredizo de reja artística sencilla m2 286.000 - Revista Mandu’a 98
MANDU’ARA FILTROS-ACCESORIOS-PRODUCTOS QUÍMICOS-SAUNAS BAÑERAS Y SPA CON HIDROMASAJES-BOMBAS DE CALOR MOSAICOS DECORATIVOS-PISOS ATERMICOS Y ANTIDESLIZANTES Clorinador Sauna Vapor Bomba de calor Spa Productos Químicos 0992317718
Bordes atérmicos para Piscina 01 De 40x40 (redondeado) ml 60.000 02 De 40x50 (pecho paloma) ml 75.000 03 Cargados en obra ml 85.000 04 Baldosas atérmicas 40x40 m2 60.000 Revista Mandu’a - 99
PUERTAS PISCINAS

PREVENCIÓN DE INCENDIOS

PUERTAS AUTOMÁTICAS

TEL.: 021 906 951

CEL.: 0971 543 246

CDE: 061 570 501

MANDU’ARA
SANITARIOS Azulejos 01 De 15x15 cm, blanco, m2 37.500 02 De 20x25 cm Eliane, m2 37.500 Piso/Pared Cerámicos 01 Almeida 20x30 cm, desde m2 27.400 02 Almeida 30x30 cm, desde m2 29.200
ACÚSTICOS TEL.: 021 906 951 CEL.: 0971 543 246 CDE: 061 570 501 03 Eliane 30x30 cm, desde m2 30.880 04 Eliane 80x80 cm, desde m2 99.000 05 Eliane 45x45 cm, desde m2 44.000 06 Porcelanato 60x60 cm m2 69.500 07 Porcelanato 80x80 cm m2 Adhesivos para azulejos, cerámica y pisos - SIKA PY 01 Sika Ceram Porcelanato 30 kg un 87.000 Pastina SIKA CERAM Mezcla para rejunte de pastillas y azulejos 01 Pastina básica blanca o gris, kg 8.400 02 Pastina Premiun blanca o gris, kg 13.000 Piletas de Acero Inoxidable STARKEN 01 De 1,00x0,50, 1 bacha con sopapa reversible, un 302.011 02 Idem anterior de 1,20x0,50, de 2 bachas, un 418.240 03 Sopapa Astra, un 30.608 FRANKEE 01 De 1,00x0,53, 1 bacha un 201.520 02 De 1,20x0,53, 2 bacha un 231.200 03 Sopapa p/ pileta Frankee un 15.600 Bañeras 01 De 1,60 m, Ferrum acrílica, un 968.000 02 De 1,70 m, Ferrum acrílica, un 960.000 03 De 1,80x0,80 m, Astra con hidro, un 6.818.538 04 De 1,70 m, italiana con hidro, un 6.370.390 05 Idem anterior de 1,50m un 5.763.166 Botiquín - Revista Mandu’a 100
REVESTIMIENTOS
MANDU’ARA 01 Blanco 35x42 un 88.880 02 ASTRA 44x58x11 cm un 479.200 03 Con espejo y luz 7337 un 1.000.000 04 Embutido blanco 1040-2E un 105.741 Grifería Para baño FV - Línea Allegro Cromo 01 Ducha, 103/15, un 970.754 02 Bidet, 295/15 un 873.041 03 Lavatorio, 207/15 un 713.446 FV - Línea Clásica 20 01 Ducha, 103, un 728.073 02 Bidet, 295/20 un 583.666 03 Lavatorio, 207/20 un 606.060 FV - Línea 61 - Plus 01 Ducha, 103/61 un 922.273 02 Bidet, 295/61 un 753.512 03 Lavatorio, 207/61, un 738.049 Llave de paso con campana de ½” FV 01 Línea clásica 479/20, un 82.373 02 Línea 479/61, un 119.022 03 Línea Allegro 479/15, un 113.840 Para cocina / Agua Fría y Caliente FV Embutida 01 Línea clásica, 403/20 jgo 470.108 02 Línea 61 403/03/61 jgo 216.120 03 Monocomando Unimix 411/01/90 jgo 552.000 Externa 01 Línea clásica, 409/20 jgo 745.882 02 Línea 61, 409/61 jgo 820.483 03 Línea clásica, 416/20 jgo 639.035 De Mesada 01 Línea 61 416/61 jgo 696.967 Llave de paso FV 01 De ½”, cromo sin campana 475, un 65.883 02 De ½”, cromo con campana, 479/20, un 63.051 03 De ¾”, cromo sin campana, 475, un 93.981 04 De ¾”, cromo con campana, 479, un 116.759 05 FV bronce ½”, 471 un 57.538 06 FV bronce ¾”, 471 un 78.959 Para agua fría - Para lavatorio - Canilla FV cromo: 01 Pico alto 221 un 100.751 02 Pico alto 221/20 un 137.532 03 Línea 61, 221/61, un 153.520 04 221/10/24, un 143.168 05 226/15 un 328.388 06 226/61, un 268.810 07 Cromo Oro Veracruz 226/47 un 998.286 08 Oro Veracruz 226/47 un 1.575.814 09 CPK-005 (baño servicio) un 67.939 10 Tipo monocomando CR 1194 IV un 83.160 11 CR REF 8154, un 410.070 12 Largo 24 cm, NS-25H un 176.464 Para cocina 01 Canilla FV embutida pico móvil, 421 un 166.534 Para bidet 01 Línea clásica 1 llave 293/20 un 285.698 Para patio Canilla FV 1/2”: 01 Bronce 430 1/2 un 54.593 02 Bronce sin pico 431, un 50.455 03 Cromo sin pico 432, un 93.158 04 Bronce pico manguera 437, un 50.938 05 Cromo pico manguera 436, un 109.348 06 Idem Bronce un 99.673
Varios 01 Adhesivo plástico p/ tubos y accesorios PVC, pomo 75 cc, un 8.981 02 Idem anterior 850 cc, un 60.139 03 Toallero aro cromo 162/33 FV, un 209.990 04 Brazo metálico p/ducha eléctrica un 11.266 05 Cinta teflón 3/4 x 25 m, un 6.179 06 Cinta teflón 3/4 x 50 m, un 9.946 07 Cisterna plástica (blanco y colores), un 32.478 08 Conexión cromo ½”x0,40 cm, MH, FV, un 38.984 09 Idem 1/2’ x 0,30 cm, MH, un 22.940 10 Conexión plástica 0.30m un 6.191 11 Conexión plástica 0.40m un 6.588 12 Ducha eléctrica Corona, un 69.588 13 Ducha eléctrica Lorenzetti Maxi 550w, un 110.250 14 Ducha teléfono DUCHAMATIC 119, un 719.735 15 Enchufe de plástico externo p/ inodoro un 2.663 16 Pasta lubricante 400 g un 29.004 17 Prolongador FV cromo 1/2x1, un 33.376 18 Prolongador FV cromo ½x2, un 44.587 19 Roseta FV cromada 1/2”- canilla 13 mm un 5.978 20 Sellador p/ caño cuatricapa,125 cc, un 38.944 21 Solución limpiadora, frasco 200 cc, un 22.330 22 Sopapa p/ pileta Astra un 28.235 23 Sopapa p/ lavatorio FV cromo 7/8”, un 58.534 24 Sopapa p/ pileta FV cromo 1 ¼”, un 41.200 25 Sopapa FV cromo para bañera un 159.862 26 Soporte gancho para calefón, par 1.894 27 Soporte con tarugo para calefón, par 11.200 28 Soporte uña p/ lavatorio, Ferrum, par 9.526 29 Asiento sanitario (blanco y colores) un 32.371 30 Asiento sanitario (TPK) un 60.706
Casarino Selladores 01- Adhesivo y sellador gris para juntas de dilatacion, obras hidraulicas, etc 300ml un 75.000 02- Sellador transparente para vidrios, metales,yeso,plasticos,etc 300ml un 98.000 03- PU 40 multiuso gris 400gr un 36.000 04- PU 40 multiuso blanco 400gr un 37.000 05- PU 40 multiuso negro 400gr un 37.000 06- PU universal gris 80gr un 14.000 07- Tapagoteras 4kg un 137.000 Revista Mandu’a - 101
SEGUROS
SELLADORES

J. Román S.A.

Ventanas: de 2 hojas (1 fija + 1 corrediza), en vidrio templado 8mm con perfiles de aluminio anodizado.

Box Baño: de 2 hojas (1 fija + 1 corrediza), en vidrio templado 8mm con perfiles de aluminio anodizado

Corrediza: de 2 hojas (1 fija + 1 corrediza), en vidrio templado 10mm, con perfiles de aluminio anodizado.

de 2 hojas (1 fija + 1 corrediza), en vidrio templado 8mm con perfiles de aluminio anodizado.

Batiente: de 1 hoja, en vidrio templado 10mm, con perfiles de aluminio anodizado.

MANDU’ARA

TEL.: 021 906 951

CEL.: 0971 543 246

CDE: 061 570 501

MANDU’ARA VARILLAS 1 Alambrón 4,2 mm x 12 m, un 20.000 2 Varilla conformada AP 420, kg s/ cotiz. 3 Varilla conformada AP 500, Kg 10.000 4 Varilla torsionada, kg s/ cotiz. 5 Varilla lisa, kg 11.500 TOPOGRAFÍA TANQUES
VARILLAS 1 Alambrón 4,2 mm x 12 m, un 20.000 2 Varilla conformada AP 420, kg s/ cotiz. 3 Varilla conformada AP 500, Kg 10.000 4 Varilla torsionada, kg s/ cotiz. 5 Varilla lisa, kg 11.500 TERMOCALEFONES Termocalefón Tokio Vertical 01 un 1.711.000 02 un 1.416.000 03 un 1.097.500 Vertical / Horizontal 01 80 lts. un 1.675.500 VIDRIOS
Ventanas:
Incoloro Color 01 1,06 x 1,05 510.000 520.000 02 1,60 x 1,10 810.000 825.000 1.040.000 1.340.000 Revista Mandu’a - 117
J. Román S.A.
VIDRIOS
Incoloro Color 01 1,06 x 1,05 510.000 520.000 02 1,60 x 1,10 810.000 825.000 03 2,12 x 1,05 1.020.000 1.040.000
01 1,60 x 1,90 1.315.000 1.340.000
01 1,80 x 2,10 1.720.000 1.760.000
01 0,90 x 2,10 sin freno 1.100.000 1.150.000 02 0,90 x 2,10 con freno 1.300.000 1.350.000 Vidrios templados TEL. 328 5328 - VENTAS: 0984 146 700 RECEPCIÓN: 0983 446 189
Puerta
Puerta
- Revista Mandu’a 102

Turn static files into dynamic content formats.

Create a flipbook
Issuu converts static files into: digital portfolios, online yearbooks, online catalogs, digital photo albums and more. Sign up and create your flipbook.