Revista Mandu'a - #501 - Febrero 2025

Page 1


INFORMACIÓN, OPINIÓN Y CULTURA AL SERVICIO DE LA CONSTRUCCIÓN

CONSTRUIR SOBRE LO EXISTENTE / CASA MIRALAGO - GRUPO CULATA JOVÁI / GUÍAS DE PRECIOS

Mandu’a es la Revista de la construcción más leída del Paraguay. Mensualmente ofrece noticias, tendencias, notas técnicas y guías de precios de materiales, mano de obra, costeo de obra y proveedores de la construcción.

La suscripción es gratuita para los profesionales de la construcción de todo el país.

Editorial

De números y cárceles

Notas

Construir sobre lo existente

Proyecto nacional

Casa Miralago

Proyecto internacional

Museo Mercedes-Benz

Industria & innovación Chapas de policarbonato Multiclick

Carpintería de aluminio Glass FINISH

Guías de precios de la construcción

Contacto

Ramón I. Cardozo c/ Andrés Gill Lambaré - Paraguay (021) 905 100 / (0981) 917 683 mandua@mandua.com.py www.mandua.com.py

EQUIPO - Gerencia: Estela Villalba. Dirección editorial: Yerutí Arza. Administración: Estela Villalba. Costeo: Carlos Gómez. Publicidad: Víctor Hugo Franco. Sofía Franco. Néstor Raimondo. Rubén Cabrera. Impresión: Artes Gráficas Castillo S.A. - Fundador: Mauri Arza.

DE NÚMEROS Y CÁRCELES: REFLEXIONES SOBRE LA CORRUPCIÓN EN LA CONSTRUCCIÓN

El 6 de enero de 2025, Hugo Javier González comenzó a cumplir su condena. Conocido como “el Número 2” durante su carrera en los medios y su gestión como gobernador del Departamento Central y ahora “el preso 1955” en la penitenciaría de Tacumbú. Su caso es más que un titular sensacionalista. Es un espejo de las profundas heridas que la corrupción ha infligido a Paraguay, particularmente en sectores clave como la construcción, donde cada desfalco y cada contrato amañado socavan el progreso de todo un país.

La administración de Hugo Javier, marcada por el desvío de fondos destinados a proyectos sociales y obras públicas, no es un hecho aislado. Es parte de un engranaje sistemático que ha permitido que obras de infraestructura fundamentales para el desarrollo –como caminos, hospitales, escuelas– se conviertan en un botín político. Estos recursos, cuando se manejan con transparencia, tienen el poder de transformar comunidades enteras. Pero cuando son desviados o malversados, perpetúan un ciclo de pobreza, desigualdad y desconfianza ciudadana hacia las instituciones.

En el ámbito de la construcción, las consecuencias de la corrupción son especialmente devastadoras. Obras inconclusas, materiales de baja calidad, sobrecostos deliberados y contratos otorgados sin licitaciones transparentes son solo algunas de las prácticas comunes. Estas acciones no solo drenan recursos públicos, sino que también comprometen la seguridad y la funcionalidad de las infraestructuras, poniendo en riesgo la vida de los ciudadanos.

En un país como Paraguay, donde la falta de infraestructura adecuada limita el acceso a servicios básicos y la conexión entre comunidades, cada desfalco es una oportunidad perdida. La corrupción en este sector no solo retrasa el desarrollo económico, sino que también afecta la calidad de vida de millones de personas. Es en las rutas abandonadas, los hospitales sin equipamiento y las escuelas que se inundan cada año donde se ven los rostros más crudos de esta problemática.

El encarcelamiento de Hugo Javier debería ser un punto de inflexión, un recordatorio de que la impunidad no puede seguir siendo la norma. Pero el verdadero cambio requiere más que justicia para unos pocos casos emblemáticos. Se necesita un compromiso colectivo para exigir transparencia, fortalecer los mecanismos de control y garantizar que los recursos públicos sean utilizados en beneficio de todos, no de unos pocos privilegiados.

Como país, debemos entender que cada acto de corrupción tiene un costo tangible: menos hospitales, menos rutas, menos oportunidades. El desafío está en romper con esta cadena de impunidad y apostar por un modelo en el que el desarrollo no sea rehén de intereses personales.

La prisión de Hugo Javier no debe ser el cierre de un capítulo, sino el inicio de un debate más amplio sobre la responsabilidad colectiva y las acciones necesarias para erradicar la corrupción en todos los niveles. Es momento de construir –literal y figurativamente– un Paraguay más justo y transparente.

NOTAS CONSTRUIR SOBRE LO EXISTENTE

El sector de la construcción enfrenta un doble desafío: reducir drásticamente su impacto ambiental y responder a las necesidades urbanísticas de una población en constante crecimiento. Una estrategia clave para alcanzar ambos objetivos es la reutilización y transformación de edificios existentes. Este enfoque, también conocido como reutilización adaptativa, no solo prolonga la vida útil de las estructuras, sino que también minimiza el desperdicio de materiales asociado a nuevas construcciones.

- Revista Mandu’a

Según datos recientes, aproximadamente el 40% de las emisiones globales provienen del sector de la construcción y el mantenimiento de edificios. Una gran parte de estas emisiones está vinculada al ciclo de vida de los materiales: extracción, producción, transporte y eliminación. Frente a esta realidad, la reutilización adaptativa ofrece una solución pragmática y sostenible.

Reutilizar un edificio existente implica conservar su estructura principal y adaptarla a nuevos usos o necesidades. Esto no solo reduce el volumen de residuos de demolición, sino que también ahorra recursos naturales y energía. Además, este enfoque contribuye a preservar el patrimonio arquitectónico y cultural de las ciudades, integrándolo de manera armoniosa en el tejido urbano contemporáneo.

EL BÚNKER DE HAMBURGO

Un caso emblemático de reutilización adaptativa es el búnker de Hamburgo, también conocido como el “Bunker St. Pauli”. Construido durante la Segunda Guerra Mundial como refugio antiaéreo, este edificio de hormigón masivo fue transformado en un espacio multifuncional que alberga un hotel, oficinas, un centro cultural y hasta un jardín en su techo. Además, la renovación incluyó la incorporación de tecnologías sostenibles, como paneles solares y sistemas de energía renovable.

El búnker de Hamburgo ejemplifica cómo un edificio histórico puede adaptarse a las necesidades modernas sin perder su esencia. Este tipo de proyectos no solo revitalizan estructuras en desuso, sino que también fomentan el sentido de comunidad y creatividad en los entornos urbanos.

FINEGLASS ES LA SOLUCION.

El mejor equipo de profesionales a su servicio y una planta industrial trabajando las 24hs. para acompañar sus proyectos con agilidad y eficacia.

VIDRIOS TEMPLADOS

Y TEMPLADO+LAMINADO

DOBLE VIDRIADO

HERMETICO (DVH)

Reduce la condensación de humedad sobre el vidrio evitando que se empañe. Manufacturado con Float de color ó reflectivo, brinda control solar y disminuye el resplandor de la excesiva luminosidad.

BARANDAS Y PISOS CON

VIDRIO TEMPLADO LAMINADO

Para proyectos enfocados a la seguridad y bienestar.

OFICINA COMERCIAL Oscar Bottana 100 esq. Cacique Caracará. Asunción. Tel. 0985 335000 ventas@fineza.com.py

Vidrios de seguridad para cada ambiente de tu hogar.

IMPACTO EN EL URBANISMO

La reutilización adaptativa también desempeña un papel crucial en el urbanismo sostenible. En lugar de expandir las ciudades hacia áreas periurbanas, este enfoque promueve la densificación y el uso eficiente del suelo urbano existente. Esto ayuda a reducir la dependencia del transporte, disminuye las emisiones relacionadas y crea comunidades más conectadas y compactas.

Además, al preservar y reutilizar edificios existentes, las ciudades pueden mantener su identidad histórica mientras incorporan elementos modernos. Esto resulta particularmente relevante en regiones como Paraguay, donde el patrimonio arquitectónico puede integrarse con soluciones innovadoras para enfrentar los desafíos climáticos y sociales del presente.

DESAFÍOS Y OPORTUNIDADES

Si bien la reutilización adaptativa ofrece numerosos beneficios, también plantea retos. La adaptación de edificios antiguos puede ser más costosa y compleja que una nueva construcción, debido a factores como la necesidad de actualizar infraestructuras o cumplir con normativas modernas. Sin embargo, las inversiones iniciales suelen compensarse con beneficios a largo plazo, tanto económicos como ambientales.

Asimismo, la colaboración entre arquitectos, ingenieros, urbanistas y comunidades locales es esencial para garantizar el éxito de estos proyectos. La creatividad y la innovación desempeñan un papel clave para superar las limitaciones técnicas y transformar estos edificios en espacios funcionales y sostenibles.

HACIA UN FUTURO MÁS VERDE

La reutilización adaptativa representa una de las formas más concretas de avanzar hacia un modelo de construcción circular y sostenible. Cada edificio reutilizado es un paso hacia la reducción de emisiones, la conservación de recursos y la creación de ciudades más resilientes y habitables.

En el contexto paraguayo, esta estrategia podría ser clave para revitalizar estructuras existentes y adaptarlas a las necesidades del siglo XXI. Desde antiguos almacenes y edificios gubernamentales hasta edificaciones coloniales y de importancia histórica, el potencial de “dar nueva vida” a estos espacios es enorme.

En palabras del arquitecto Rem Koolhaas: “La arquitectura no es tanto construir lo nuevo como preservar lo que ya tenemos”. En un mundo que demanda sostenibilidad, la reutilización adaptativa no es solo una opción, sino una necesidad. Es tiempo de mirar al pasado para construir el futuro.

COLORES DE LA LINEA EUROPEA.

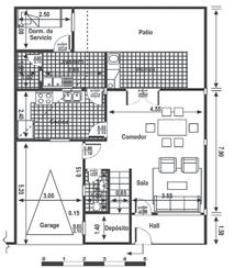
CASA MIRALAGO

Proyecto: Grupo Culata Jovái.

Arquitectos a cargo: Emmerick Braun, Miky González Merlo.

Colaboradores: Mariángeles González, Néstor Espínola, Camila Fernández, Gabriela Benegas, Celeste Delvalle, Giuliana Echauri, Lucía Peña.

Cálculo estructural: Ing. José González.

Fotografías: Federico Cairoli.

Superficie: 135 m².

Año: 2022.

Ubicación: Itauguá.

- Revista Mandu’a

Descripción elaborada por el equipo del proyecto.

Ubicado en un enclave privilegiado entre la cordillera de Yvytypanema y el lago Ypacarai, este proyecto residencial es un ejercicio de proyectar con el lugar, donde la topografía, el comportamiento del agua y la disposición arbórea revelaron las posibilidades y restricciones del proyecto.

“Construir en un lugar bello es casi la certeza de su destrucción” diría Álvaro

Siza. La intervención nos impuso reflexionar sobre la convivencia entre la arquitectura y el paisaje, la presencia humana con la preservación de la notable belleza y quietud del sitio.

- Revista Mandu’a

El terreno, parte de un remanente del bosque vecino al Área Metropolitana de Asunción. El volumen de la casa se sitúa estratégicamente al fondo del terreno, en un claro entre los árboles, asegurando así la privacidad desde la calle y manteniendo una conexión visual y física con el entorno natural.

Las terrazas exteriores se diseñaron como un basamento que construye sus formas según la cercanía a los árboles, desviando el agua pluvial y creando espacios complementarios a los interiores. Este basamento no solo actúa como una extensión de los espacios habitables, sino que también facilita una transición fluida entre el interior y el exterior, permitiendo que la casa se perciba como un gran espacio intermedio en continua interacción con la vegetación circundante.

La flexibilidad del proyecto se evidenció durante su desarrollo, con la incorporación espontánea de un segundo piso para satisfacer necesidades emergentes. Sobre los materiales: locales, obtenidos en cercanía, predominantemente piedra y cerámica.

Particular atención se prestó al diseño de los baños, los cuales incluyen un jardín interior y un bloque sanitario autónomo, subrayando la intención de generar microambientes internos que reflejen la vegetación exterior. Además, el tratamiento de residuos fue abordado con una cámara de evapotranspiración, que protege a las napas existentes aislando las aguas residuales en un sistema cerrado.

Las aberturas de la casa se concibieron como cuadros verdes, capturando vistas específicas y enmarcando la belleza del paisaje, reforzando la relación entre el interior y el exterior.

La integración de la cocina y la sala en un gran espacio de convivencia fomenta la interacción social y el disfrute del entorno natural.

Creemos que el proyecto es una manifestación de cómo la arquitectura puede cohabitar con la naturaleza, respetando y realzando la belleza intrínseca del sitio. Cada decisión de diseño, desde la implantación del volumen hasta la elección de materiales, refleja un compromiso con la sostenibilidad y la armonía con el paisaje, creando una residencia que no solo habita el lugar, sino que lo celebra.

-DORMITORIOS

(0982) 620 227 modular.comercial@tecnimet.com

(0986) 802 098 div.comercial@tecnimet.com

TECNIPANELES

-Paneles con núcleo de PIR

-Núcleo de 40kg/m3

-Paneles Trapezoidales y machihembrados.

MUSEO MERCEDESBENZ

Proyecto: UNStudio.

Estructura: Werner Sobek Ingenieure.

Ingeniería climática: Transsolar Energietechnik.

Infraestructura: Arup.

Paisajismo: Knoll Ökoplan GmbH.

Fotografías: Eva Bloem.

Superficie: 35.000 m².

Año: 2006.

Ubicación: Stuttgart, Alemania.

- Revista Mandu’a

Descripción elaborada por el equipo del proyecto.

El Museo MercedesBenz, ubicado junto a la planta DaimlerChryslerUntertuerkheim en Stuttgart, combina de manera única arquitectura e historia automotriz. Diseñado por UNStudio, el museo honra la marca a través de un espacio que destaca por su innovación, elegancia y funcionalidad, ofreciendo a los visitantes una experiencia inmersiva y única.

Sección.

Planta Baja.
- Revista Mandu’a

Con 25,000 m² de superficie, el diseño del edificio se inspira en un trébol de tres hojas, reflejando el dinamismo y la fluidez asociados con los automóviles. Su fachada curvilínea armoniza con elementos industriales cercanos, como el estadio, el circuito de prueba de MercedesBenz y las carreteras circundantes, mientras que su interior transmite valores de calidad, durabilidad y precisión, características distintivas de la marca.

El recorrido del museo comienza en el nivel más alto, donde se encuentran los primeros automóviles fabricados, y desciende en espiral a través de rampas interconectadas que recuerdan a una hélice de ADN.

- Revista Mandu’a

Estas rampas conducen a dos tipos de exhibiciones: la colección de automóviles y camiones y las salas Mythos, que narran la historia y los logros de Mercedes-Benz. Este diseño permite al visitante explorar libremente y cambiar entre las trayectorias, creando una experiencia dinámica y fluida.

En los niveles inferiores, se encuentran áreas dedicadas a las carreras, los récords de velocidad y la fascinación por la tecnología, mientras que el nivel del suelo incluye un restaurante, un museo infantil y tiendas, conectando el museo con el Centro de Vehículos.

El uso de hormigón colado in situ fue esencial para cumplir con la compleja geometría del diseño. Este material no solo garantiza durabilidad, sino que también proporciona un fondo neutro y contrastante que realza la exhibición de los automóviles. Para lograr superficies perfectas, el equipo trabajó intensamente, incluso de noche, utilizando técnicas avanzadas de vertido y secado.

El Museo Mercedes-Benz no es solo un espacio expositivo, sino un homenaje a la innovación y la historia del automóvil. Este hito arquitectónico invita a los visitantes a explorar, aprender y experimentar la excelencia que define a Mercedes-Benz.

CHAPAS

DE POLICARBONATO MULTICLICK

Practicidad y resistencia para proyectos modernos.

Las chapas de policarbonato Multiclick son la última innovación en materiales de construcción, diseñadas para ofrecer facilidad de instalación, resistencia y estética en un solo producto.

Fabricadas a partir de policarbonato alveolar, estas chapas incorporan un sistema de acoplamiento macho-hembra que elimina la necesidad de perfiles de unión, tornillos o fijaciones adicionales. Gracias a su sistema de encastre tipo “click”, los paneles se ensamblan de manera rápida, segura y económica, garantizando la estanqueidad del conjunto.

Este material destaca por su excelente resistencia a la intemperie y a temperaturas extremas, asegurando un desempeño óptimo en diversas condiciones climáticas. Además, las chapas Multiclick cuentan con protección UV en ambas caras, prolongando su durabilidad y manteniendo su apariencia con el paso del tiempo.

Disponibles en una variedad de colores, estas chapas son ideales para cubiertas, cerramientos y otras aplicaciones arquitectónicas que requieran un acabado funcional y estético. Los accesorios disponibles permiten optimizar aún más el proceso de instalación, ofreciendo una solución versátil y eficiente para proyectos de cualquier tamaño.

Para obtener más información sobre las chapas de policarbonato Multiclick, es posible visitar el local de ShoppinGlass en Itapé 216 c/ Solar Guaraní, Lambaré, o comunicarse a los teléfonos (021) 906-951/2, (021) 328-0572 o (0971) 543-246. También se puede acceder a más detalles a través de la web www.shoppinglass.com.py.

CARPINTERÍA DE ALUMINIO GLASS FINISH

Diseño, confort y tecnología para transformar tus espacios.

La carpintería de aluminio premium se ha convertido en un aliado esencial para proyectos que buscan combinar modernidad, eficiencia y confort. Glass FINISH, líder en soluciones a medida, demuestra su compromiso con la calidad y la innovación a través de proyectos residenciales que destacan por su diseño y funcionalidad.

En una de sus obras más recientes, Glass FINISH incorporó vidrio DVH (doble vidriado hermético) de 28 mm de espesor, un material que garantiza un excelente aislamiento térmico y acústico. Este tipo de vidrio es ideal para las condiciones climáticas de Paraguay, ya que permite mantener una temperatura agradable en el interior, reduciendo el consumo energético, mientras que ofrece una protección efectiva contra ruidos externos.

El éxito de este proyecto no solo radica en los materiales utilizados, sino también en el enfoque personalizado de la empresa.

Glass FINISH acompaña a sus clientes desde la concepción de la idea hasta la instalación final, ofreciendo asesoramiento técnico especializado para asegurar que cada detalle se ajuste a las necesidades del cliente.

Además, la versatilidad de sus soluciones permite que la empresa se adapte a cualquier tipo de proyecto, ya sea residencial o industrial, consolidando su reputación como un socio confiable en el sector de la construcción.

Si estás buscando transformar tu espacio con elegancia y la mejor tecnología en carpintería de aluminio, Glass FINISH es la elección ideal. Contactar al 0994 455 973 o contacto.glassfinish@gmail.com.

Con Glass FINISH, tu proyecto está en manos expertas que combinan diseño y calidad para crear espacios únicos y funcionales

GUÍAS MANDU’A

MANO DE OBRA

Trabajos preliminares

1

Preparacion de obra

1 Limpieza de terreno (no incluye corte ni destronque de árboles)

Destronque de árboles 1 Árbol chico

3 Árbol grande

Árbol extragrande

(sueltos, cuando no hay losa)

Vigas

MANO DE OBRA

1

1 Cadena 13x30 PB

1

1 Piso rodillado espesor 12 cm

2 Piso rodillado espesor 10 cm

3 Piso rodillado espesor 08 cm

4 Piso allanado espesor 15 cm (Incluye Alquiler máquina)

5 Piso allanado espesor 12 cm (Incluye Alquiler máquina)

6 Piso allanado espesor 10 cm (Incluye Alquiler máquina)

7 Piso allanado espesor 08

(Incluye Alquiler máquina)

1

2

Mamposteria y muros Nivelación

1

3

1 En mampostería c/ 2 varillas m 11.000

2 Sobre aberturas c/4 varillas m 15.000

3 Colocación de dintel prefabricado m 15.000

4 Dintel zuncho de bloque m 31.000

5 Colocación de perfil de hierro m 15.000

Contrapisos (no incluye alisada)

1 Apisonado de Hº cascotes 8 cm m² 15.000

2 Apisonado de Hº cascotes 10 cm m² 18.000

3 Apisonado de Hº cascotes 10 cm, c/ pendiente m² 21.000

4 Apisonado de Hº cascotes 20 cm m² 26.000

5 Apisonado sobre losa Hº Aº e=7cm m² 14.000

6 Apisonado sobre losa Hº Aº e=6cm m² 13.000

7 Apisonado de Hº cascotes con varilla m² 21.000

8 Hº Aº e=7cm m² 33.000

Revoques

Revoque de paredes

1 Común, fratachado o peinado m² 22.000

2 Común, fratachado y filtrado

3 Común, fratachado y filtrado; h=+5.00 m

4 Común, fratachado o peinado; h=+5.00 m m² 30.000

5 Fino o filtrado sobre revoque peinado existente m² 11.000

6 A 2 capas (grueso + fino)

30.000

7 A la lona o bolseado m² 13.000

8 Salpicado

9 Base para revestidos

Azotadas hidrófugas para adherencia:

10 Espesor = 1 cm x ladrillo

11 Espesor = 0,5 cm x ladrillo

12 Espesor = 0,5 cm x ladrillo en h=+ 5,00 m

13 Espesor = 1 cm x ladrillo en h=+ 5,00 m exterior

14 Azotada p/ impermeable

Revoque de cielorrasos

1 Azotada para adherencia por losa de Hº Aº, 0,5 cm

2 A 1 capa fratazado y filtrado sin azotada

3 A 1 capa fratazado y filtrado con azotada

4 A 2 capas (grueso + fino),con azotada

5 A 2 capas sin azotada

6 Azotada o base planchada de metal desplegado

Revoque de vigas/pilares/aristas

1 Revoque de arista o canto

2 Revoque de babetas o buñas

3 De mochetas con 2 aristas (0,15x0,15)

4 De goterón en alero

5 De losa de Hº Aº

6 De ductos

7 De vigas de Hº Aº de 15x20 ó 20x30 cm (incluye azotada + aristas)

8 De vigas de Hº Aº de 20x40 ó 30x50 cm (incluye azotada + aristas) por cara

9 Revoque de pilares 4 caras y aristas m 39.000 10 Revoque de pilares 3 caras y aristas

Techos

1 De teja española con tejuelón; incluye: maderamen, aislante, caballete y bocateja

2 Idem anterior con limatón

3 De teja española con tejuelita incluye: maderamen, aislante, caballete y bocateja

4 De teja española sobre machimbre: maderamen, aislante, caballete y bocateja

5 De teja francesa sobre machimbre

6 De teja francesa vana

7 De chapa galv. s/ estruc. de tirantes 2x6”

8 De chapa de fibrocemento acanalada

9 De chapa de fibrocemento acanalada autoportante

22.000

7.000

13.000

10.000

8.000

Montaje de maderamen c/ tirantes 2x5” o 2x6” cepillados

14 Montaje de vigas

15 Techo metálico (tinglado), preparación y montaje

16 Cabriadas de madera, preparación y montaje

17 Cabriadas de madera, y planchuelas preparación y montaje

Cielorrasos (incluye armazón de madera)

1 De metal desplegado, sin revoque

2 De machimbre de 1/2 x 3”

3 De machimbre de 1 x 3”

Cornisa

Revestidos 1 De azulejo

De azulejo, 10x10 cm

De azulejo (Listel o faja)

De ladrillejo

De ladrillejo (ladrillo cortado)

13.000

15.000

21.000

46.000

De ladrillejo h= +5m

Piedra lajón a escuadra

8 Piedra roja rompecabeza

Piedra blanca rompecabeza

10 Piedra arenisca blanca o roja pulida en PB

11 Piedra arenisca blanca o roja pulida en PA

Piedra abuchada

Piedra laja aserrada

Piedra Wasmosy

Empapelado

Machimbre

MANO DE OBRA

Sobre carpeta existente

1 Cerámica esmaltada P I 5 m² 34.000

2 Cerámica esmaltada en baño m² 31.000

3 Cerámica esmaltada en escalón m 39.000

4 Cerámica porcellanato m² 37.000

5 Piso calcareo m² 26.000

Carpeta o base

1 Para alfombra o cerámica e=2cm m² 18.000

2 Alisada de cemento e=3cm

3 Para alfombra o cerámica en escalones un 18.000

4 Regleado rústico

5 Alisada sobre contrapiso

7.500

6 Banquina p/ placard (contrapiso + carpeta hidrófuga) m 33.000

7 Baldosa calcárea o canto rodado m² 26.000

8 Mosaico granítico

9 Pulido de mosaico granítico

10 Layota nacional o esmaltada

11 Veredita calcárea

12 Ladrillo común

13 Tejuelita

14 Baldosones de hormigón, 40x40 cm

15 Piso de HºAº rodillado de 12 cm

16 Plancha de granito o mármol

17 Plancha de mosaico granitico

18 Parquet a bastón roto o tipo colonial clavado

19 Parquet de lapacho tarugado

20 Parquet de machimbre curupa’y, 1 x 3” pulido y lustrado

21 Piso de madera rasqueteado y encerado

26.000

2 Calcáreo o granítico m 13.000

3 Cerámico m 13.000 4 Layota m 13.000 5 Mármol

59.000

60.000

22 Alfombra multipiso m² 18.000

20 Piso vinílico 30x30

21 Piedra losa rompecabeza con junta tomada

22 Piedra losa rectangular

23 Piedra losa 30x30, 30x40 y 40x40

24 Piedra ardosia

25 Piedra laja

Cámara séptica (1,00x1,60x1,20 m) con excavación

(Ø: 1.50 m x altura 3,00 m) con excavación

Desagües para baño

39.000

26 Piedra rústica roja Misiones m² 39.000

27 Piedra triturada esparcida a mano

28 Adoquín de piedra

Varios

1 Colocación tapa metálica en cámara de inspección un 44.000

2 Colocación rejilla en cámara de inspección un 44.000 Empedrado

5 Para pileta de lavar y lavarropas un 159.000

6 Para pileta de cocina (incluye desengrasador y caja sifonada) un 126.000

Agua corriente

1 Caño PVC 1” (incluye excavación, colocación y protección) m 16.000

2 Idem anterior de 3/4 m 13.000 3 Idem anterior de ½ m 8.000 4 Instalación de canilla de patio, + 5 ml de cañería un 64.000

baño

5 Para pileta de cocina un 126.000

Instalación agua caliente y fría

1 Para pileta de cocina un 254.000

2 Para baño completo un 697.000

Colocación de artefactos

Sanitarios y Grifería

1 Baño completo 115,500 x 4 un 462.000

2 Baño de servicio 100.500 x 2 un 234.000

3 Baño social 117.000 x 2 un 234.000

4 Pileta de cocina un 122.000

5 Pileta de lavar un 122.000

6 Bañera común un 314.000

7 Bañera hidromasaje un 524.000

8 Accesorios de baño (jabonera, percha, etc) un 22.000

9 Colocación de calefón un 175.000

9 Colocación de ducha eléctrica un 33.000

Instalación eléctrica

1 Boca de luz un 53.000

Trabajo de Albañilería

1 Pilar de mampostería para medidor de 0,45x0,45x1,70 m no incluye cimiento ni nivelación un 480.000

2 Registro eléctrico c/ drenaje y tapa de 30x30x40 cm un 105.000

3 Idem anterior 40x40x70 cm un 131.000

4 Colocación caja aire acondicionado un 72.000

Puesto de medición provisorio 1

1 Monofásico 12 bocas

2 Trifásico 14 bocas

Puesto de medición definitivo 2

1 Monofásico 14 bocas

2 Trifásico hasta 3A 18 bocas

Tablero principal o seccional

1 Colocación de caja embutida en mampostería hasta 40x50 cm 3 bocas

2 Disyuntor TM de corte principal o seccional o de circuito unipolar 2 bocas

3 Idem anterior tripolar 3 bocas

4 Instalación de interruptor diferencial 6 bocas

Líneas subterráneas

(Incluye excavación a una profundidad de 0,50 m en tierra firme y sin piedra, instalación de eléctroducto con protección mecánica y cableado)

1 Monofásica de 4 a 10 mm m 7.000

2 Trifásica de 4 a 10 mm m 13.000

3 Trifásica de 16 a 25 mm m 21.000

Línea embutida en mampostería

(incluye colocación de electroducto y cableado)

1 Monofásica de 4 mm m 7.000

2 Monofásica de 6 mm m 7.000

3 Monofásica de 10 mm m 8.000

4 Trifásica de 4 a 10 mm m 11.000

5 Trifásica de 16 a 25 mm m 13.000

Líneas aéreas

1 Monofásica de 4 a 10 mm m 3.000

2 Trifásica de 4 a 10 mm m 7.000

MANO DE OBRA

3 Trifásica de 16 a 25 mm m 9.000

Electroductos embutidos en mampostería sin cableado

1 De 5/8” m 3.000

2 De 1/2” m 3.000

3 De 3/4” m 3.000

4 De 1” m 3.000

Lámparas y tomas de corriente (Embutidos en mampostería hasta 5m del tablero)

1 Una lampara con su interruptor 1 boca

2 Una lámp. c/ 2 llaves de comb. de escalera 2 bocas

3 Una Toma corriente 1 bocas

4 Por llave de 4 vías o intermedia adicional 1 boca

Circuitos independientes

1

Circuito para aire acondicionado sin montaje de aparato ni abertura de mampostería hasta 5 m del tablero (mismo que recorran cañerías con otros circuitos)

4 bocas

2 Circuito p/ calefón o ducha eléctrica idem anterior 4 bocas

3 Circuito monof. p/ motobomba c/ cable de 4mm hasta 5 m del tablero 4 bocas

Colocaciones

1 Aire acondicionado un 230.000

2 Ventilador de techo un 95.000

3 Tubo fluorecente doble un 16.200

4 Apliques y arañas un 16.200

Carpinteria de aluminio

Colocación de premarco de aluminio:

1 Chico 1 m² un 64.000

2 Mediano 3m² un 92.000

3 Grande 4 m² un 125.000

4 Extra grande 5 m² un 150.000

Carpintería de madera

Colocaciones de:

1 De marco mayor de 1,00 m un 111.000

2 De marco menor de 1,00 m un 83.000

3 Puerta placa un 92.000

4 Puerta persiana o vidriera chica hoja 46.000

5 Puerta tablero un 96.000

6 Puerta tablero principal incluye hoja, manijón y visor un 128.000

7 Ventana persiana o vidriera 0,65 x 1,00 mt hoja 36.000

8 Ventana balancín un 40.000

9 Contramarco m 10.000

10 Pergolado m² 83.000

Carpintería metálica

Colocaciones de:

1 De marco de chapa doblada de 0,80x2,10 m un 66.000

2 De marco de chapa doblada de 1,50x1,20 m un 88.000

3 De marco de chapa doblada con relleno un 88.000

4 De marco metálico - ángulo un 66.000

5 De guías metálicas y taparrollo p/ cortina de enrollar un 264.000

6 De reja de hierro entre marcos un 44.000

7 De reja de hierro aplicada a la pared un 61.000

8 Portón de hierro 1,00x1,50 m un 106.000

9 Balancín chico 40x40 cm sin revoque un 44.000

10 Balancín mediano 1,00x1,50 m sin revoque un 77.000

11 Balancín grande 2,00x1,80 m sin revoque un 98.000

12 Portón cochera de 3,00x1,50 m

13 Baranda de escaleras

14 Pasamanos,}

15 Escalera

16 Puerta metálica corta fuego

17

18 Tinglado, preparación y montaje

Pintura de pared

1

2

3

4

5

6

y

técnicos

2 De abertura de madera

1

2 Tejuelón y maderamem barnizado

3

4

1 Al látex con fijador

2

3

4

17.000

SALARIO MÍNIMO

DECRETO N° 1909/2024

POR EL CUAL SE DISPONE EL REAJUSTE DE LOS SUELDOS Y JORNALES MÍNIMOS DE TRABAJADORES DEL SECTOR PRIVADO.

Art. 1°, Dispónese el reajuste del salario mínimo legal del trabajador del sector privado en cuatro coma cuatro por ciento (4,4 IP/o) con relación al establecido según Decreto N° 9584 del 29 de junio de 2023, que regirá a partir del 1 de julio de 2024, en las actividades expresamente previstas, escalafonadas y las diversas no especificadas. Art. 2°.- Establécese el salario mínimo legal vigente a partir del 1 de julio de 2024 en dos millones setecientos noventa y ocho mil trescientos nueve guaraníes (G. 2.798.309.-) y el jornal mínimo en ciento siete mil seiscientos veintisiete guaraníes (G. 107.627.T), de conformidad con el artículo 10 de este decreto.

COSTEO DE OBRA

Losa fck=21MPa

COSTEO DE OBRA

TRABAJOS PRELIMINARES

Relleno y Compactación

Tierra gorda, m3

Mano de obra, m3 1,00 44.000 44.000

Total por: m3 108.00

Cartel de Obra (de 1.40x2.80m con marco metálico y lona. A retirar y sin colocación)

Cartel de obra, un

Vallado de Obra

Chapa cincalum Nº 28, un

2.44x0,90,

Puntal de eucalipto pulg/

Clavo con cabeza de un

plomo,

Encadenado Inferior 13x20 en PB

Encadenado 13x30 cm

ESTRUCTURAS DE HORMIGON ARMADO

Zapata fck=18 MPa

Encadenado 30x30 cm

Columna fck=21 MPa

Cemento tipo 1,

triturada

Escalera de HºAº fck=21MPa15 escalones de 0.30x1.10m y 1 descanso

Viga fck=21MPa

COSTEO DE OBRA

Losa Rap h=12+5=17cm, luz hasta 4,70m (1:2:3,5)

Cemento tipo

Piedra

Losa Rap h=20+4=24cm, luz mayor a 4,70 m (1:2:3,5) Cemento tipo 1,

Cimiento PBC sin cal (1:12) m3 353.920

Cimiento de H° de Cascotes -

Hormigón Ciclópeo (1:3:6)

Losa Listalosa

Cemento

Piso HºAº fck=21MPa - Tráfico ligero 10 cm

Cemento tipo 1, kg 35 1.100 38.500 Arena lavada de rio, m3

MAMPOSTERIAS

De Nivelación

Con ladrillo común y junta de 2 cm

De 0.30 m de ancho (1:2:8) con cemento Tipo 1

juntas - 300ml,

FUNDACIONES

Cimiento PBC con cal (1/2:1:4)

De 0.30 m armada (1:4) con cemento Tipo 1

De 0.45 m de ancho (1:2:8) con cemento Tipo 1

De Elevación

Con ladrllo común y junta de 2 cm

De 0.15 m (1:2:10) con cemento tipo 1

Ladrillo común, un

De 0.15 m (1:2:10) con cemento tipo 1 - A la vista

Ladrillo común, un

De 0.20 m (1:2:10) con cemento tipo 1

Ladrillo común, un

De 0.20 m (1:2:10) con cemento tipo 1 - A la vista

Ladrillo

De 0.30 m (1:2:10) con cemento tipo 1

Ladrillo

De 0.07 m (1:2:10) con cemento tipo 1 y junta de 1.5 cm

Ladrillo común, un

Con Ladrillos Cerámicos Huecos y junta de 1,5 cm

De 0.15 m (1:2:8) con cemento tipo 1

Ladrillo 6 tubos de 1ra, un

12x18x25 cm Ita Yby,

De Elevación

De 0.15 m (1:2:8) 1 cara vista con cemento tipo 1

Ladrillo 6 tubos de 1ra, un 20,0 1.298 25.960 12x18x25 cm Ita Yby,

De 0.20 m (1:2:8) m con cemento tipo 1

Ladrillo hueco un

18x18x25 Ita Yby

De 0.20 m (1:2:8) con cemento tipo 1 Ladrillo 6 tubos de 1ra, un

8x18x25 cm Ita Yby

De Elevación a la Vista Con ladrilllo cerámico laminado y junta de 1,5

De 0.15 m (1:2:8) con cemento tipo 1

de 1ra A, un

6x12x25 cm Ita Yby, Cemento tipo 1,

Elevaciones Varias

Sardinel de Ladrillos Comunes

Ladrillo común, un 16,0

COSTEO DE OBRA

Sardinel de Ladrillos Laminados

Ladrillo laminado Ita Yby un 14,0 1.265 17.710

1ra A, 6x12x25 cm Cemento tipo

Ladrillo Convocó Ladrillo

de 1ra, 19x19x10 cm Yoayu

Muro de Piedra Bruta de 30 cm (1/2:1:4)

Piedra

Pilar de Ladrillo Común 30x30 (1:1:6)

Ladrillo común,

Pilar de Ladrillo Común 30x30 (1:1:6) - A la vista

Ladrillo común un 35,0

AISLACION

Horizontal

Muralla de Ladrillo Común (e=0.15m, h=2.00m, con pilares de 0.30 x 0.30 cada 2.00m) Cimiento

Horizontal 0.15 con asfalto Cemento tipo 1,

Vertical con Panderete 0.15 m

De Losa con Piso de Tejuelita Prensada

De Losa Para Baño

DINTELES

De Varilla Sobre Abertura

De Hormigón Prefabricado

COSTEO DE OBRA

CONTRAPISOS

De 7 cm (1/4:1:4:6)

Cemento tipo 1, kg 4,00 1.100 4.400 Cal triturada, kg 5,00 1.225 6.125 Arena lavada, m3 0,03 65.000 1.950 Cascotillo cerámico, m3 0,07 99.500 6.965 Mano de obra, m2 1,00

De 10 cm (1/4:1:4:6)

Cemento tipo

De 20 cm en Losa Sanitaria Cemento tipo 1,

TECHOS

Teja Española sobre Tejuelón c/ Madera de Ybyrapyta

Teja española Yoayu un

Tejuelón de 1ra Ita Yby un

Tirante 2x5” pulg/ 20,0

Viga 4x8” de ybyrapyta,pulg/

Liston de 1 1/2 x 2”, ml 0,22 5.000 1.100 Cemento tipo 1, kg 1,30 1.100

Teja Española sobre Tejuelita m2 275.351

Teja Francesa, Marsellesa o Romana

REVOQUES De Paredes

A 1 Capa, Espesor 1.5 cm (1:4:16) con hidrófugo

Cemento tipo 1, kg 1,50 1.100 1.650

Cal triturada, kg 4,00 1.225 4.900

Arena lavada, m3 0,02 65.000 1.300

Betocem hidrófugo, l 0,25 6.060 1.515 Mano de obra, m2 1,00 22.000 22.000

A 1 Capa, Espesor 1.5 cm (1:4:16) s/ hidrófugo, m2 29.850

Salpicado (1:3)

Cemento tipo 1, kg 3,00 1.100 3.300

Arena lavada, m3 0,01 65.000 650

Ceresita hidrófugo, kg 0,25 6.150 1.538 Mano de obra, m2 1,00 22.000 22.000 Total por: m2

Azotada Impermeable (1:3), Espesor 0.5 cm

Cemento tipo 1, kg 2,70 1.100 2.970

Arena lavada, m3 0,01 65.000 650

Ceresita hidrófugo, kg 0,30 6.150 1.845

Mano de obra, m2 1,00 7.000 7.000

Total por: m2 12.465

De Cielorrasos (1:4:12)

Cemento

Chapa N° 28 s/ estructura de caños metálicos

Caño 30 x 50 x 1,20 mm ml

20 x 30

Chapa N° 28 s/ Estructura de Varillas torsionadas

COSTEO DE OBRA

Chapa de Fibrocemento Ondulada 6 mm Chapa, un 0,40 96.000 38.400 Tirante 2x5” de pulg/m 5,00 3.700 18.500 Clavo 2” a 7”,

TECHO METÁLICO CON CHAPA TRAPEZOIDAL

Separación entre correas 1,20 m

Varios incluye pintura, electrodo, aguarras, discos

Mosaico Graníto Lavado (para exterior 30x30cm)

Cerámica Esmaltada

TECHO METÁLICO CON CHAPA TERMOACUSTICA

Con cabriada de 40 x 12 cm. No incluye pilares.

Chapa con isopor 30 mm Galva/Marfil Econml

C 100x38 1.80mm

Entrepiso de Madera

Tirante

Ceramica 45x45cm

Layota 28x28cm

PISOS

Baldosa Calcárea

Baldosa

Mosaico Granítico (base gris 30x30cm)

Piedra Losa Rompecabeza

Pastina base gris, kg 0,75 6.000 4.500

- Revista Mandu’a

Piedra losa Blanca Cuadrada Pulida

Piedra losa blanca m2

cuadrada pulida,

Alisada de Cemento

Baldosones de Hormigón (40x40x3cm)

Calcáreo Base Gris Zócalo 10x25 cm, ml

Carpeta para Piso Cerámico o Alfombra

de obra, m2 1,00 18.000 18.000

Alfombra (2mm sin carpeta)

Alfombra multipiso, m2 1,10 13.000 14.300 Cemento de contacto, lt 0,20 23.000 4.600

Solvente 700 cc, un 0,10 12.000 1.200 Mano de obra, m2 1,00 18.000 18.000 Total por: m2 38.100

Empedrado

Piedra bruta blanca, m3 0,20 150.000 30.000

Arena lavada, m3 0,15 65.000 9.750

Ripio de piedra, tn 0,07 70.000 4.900

Mano de obra, m2 1,00 17.000 17.000

Total por: m2 61.650

Hormigón Armado 12 cm

Cemento tipo 1, kg 35,0 1.100 38.500

Arena lavada, m3 0,06 65.000 3.900

Piedra triturada de IV, tn 0,20 120.000 24.000 Varilla conformada, kg 8,00 10.000 80.000 Mano de obra, m2 1,00 36.000 36.000 Total por: m2 182.400

ZOCALOS

Cemento

Madera 3/4 x 3”, Zocalo de cedro, ml 1,05

Tarugo plástico Nº

Alfombra

Cerámica Esmaltada

Mosaico Granítico (base blanca pulido 10x30cm)

Layota 28x10cm

CIELORRASO

De machimbre c/ armazón de madera, no incluye corniza Liston de cedro 1x2”,

Machimbre

COSTEO DE OBRA

REVESTIDOS

“No incluye la base previa”

Piso Pared Cecafi

Cecafi 32 x57cm m2 1,05 34.000 35.700

Mezcla adhesiva, kg 3,50 1.198 4.193

Pastina base blanca, kg 0,20 6.000 1.200

Mano de obra, m2 1,00 32.000 32.000

Porcelanato 60 x 60 cm

Porcelanato 60 x 60 cm, m2 1,05

Piso Pared 31 x 31 cm

Forte Habana 31 x 31 cm,m2 1,05

Ladrillejo

Ladrillejo

Piedra Laja Fina (1 a 2 cm de espesor)

Piedra laja fina, m2 1,05 50.000 52.500 Cemento tipo 1, kg 3,00 1.100 3.300

DESAGÜE CLOACAL Y PLUVIAL

Boca Desagüe Abierta 20x20x20cm

Ladrillo

Boca Desagüe Abierta 30x30x30cm Ladrillo

Boca Desagüe Abierta 40x40x40cm Ladrillo

Registro 30x30x30cm

Registro 40x40x40cm

Registro 60x60x50cm

Caño

Caño

Caño de Hormigón 50cm, Roto Comprimido

Caño de Hormigón 60cm, Roto Comprimido Caño

Caño de 80cm Hº Aº Vibrado Simple - Macho/Hembra

de

de obra,

Pozo Ciego (Diámetro=1.50 m y h=3.00 m)

Ladrillo común, un

Cámara Séptica (1x1.60x1.20m)

Ladrillo común, un

Rejilla de Piso Sifonada

Caja sifonada cuadrada un

nº 25, 150x150x50mm Mano de obra, un

Desagüe Cloacal p/ Baño Completo (hasta el primer registro)

Caño 100 mm Titan, ml 2,00 14.000 28.000

Caño de PVC 50 mm, ml 2,00 11.250 22.500

Caño PVC 40 mm, ml 4,00 7.450 29.800

Codo 90º p/ desagüe 100mm un 1,00 11.150 11.150

Codo 90º p/ desagüe , buje largo 40mm, un 2,00 1.550 3.100

Codo 45º p/ desagüe un 2,00 1.600 3.200 secundario 40mm,

Caja sifonada

150x150x50mm, un 2,00 72.000 144.000 c/ rejilla aluminio

Adhesivo 75 gr, un 2,00 9.200 18.400 Limpiador 200 cc, un 1,00 27.000 27.000

Mano de obra, un 1,00 317.000 317.000

Total por: un 604.150

Desagüe Cloacal p/ Baño de Servicio

(hasta el primer registro)

Caño 100 mm, ml 2,00 14.000 28.000

Caño PVC 50 mm, ml 1,00 11.250 11.250

Caño PVC 40 mm, ml 3,00 7.450 22.350

Codo 90º p/ desagüe un 1,00 11.150 11.150 primario 100mm,

Codo 45º p/ desagüe un 1,00

primario 100mm,

Codo 45º p/ desagüe un 1,00

primario 50mm,

Codo 90º p/ desagüe un 1,00 1.550 1.550

secundario, buje largo 40mm

Codo 45º p/ desagüe un 2,00 1.600 3.200 secundario 40mm, Ramal de reducción 45º un 1,00

16.500 simple p/ desagüe primario 100x50mm, Caja sifonada cuadrada un

nº 25, 150x150x50mm, Prolongador un 1,00 7.950 7.950 150x150mm p/ caja

Anillo de sellado p/ un 3,00 5.000 15.000 desagüe 100 mm, Anillo de sellado p/ desague 50mm un 2,00 2.900 5.800 Adhesivo 75 gr, un

Limpiador 200 cc, un

Mano de obra, un

Desagüe Cloacal Para Baño Social (hasta el primer registro)

Caño 100 mm, ml

Caño

Codo 90º p/ desagüe un

primario 100mm, Codo 45º p/ desagüe un

primario 100mm,

Codo 45º p/ desagüe un

primario 50mm,

Codo 90º p/ desagüe un

secundario, buje largo 40mm

Codo 45º p/ desagüe un 2,00

3.200 secundario 40mm,

Ramal de reducción 45º un

simple p/ desagüe primario 100x50mm, Caja sifonada cuadrada un

nº 25, 150x150x50mm, Anillo de sellado p/ un 2,00

desagüe 50 mm, Anillo de sellado p/ un 3,00 5.000 15.000 desagüe 100 mm, Adhesivo 75 gr, un

Limpiador 200 cc, un

Mano de obra, un

Total por: un 388.000

Desagüe para Pileta de Lavar y Lavarropas

Caño PVC 50 mm, ml 2,00 11.250 22.500

Caño PVC 40 mm, ml 3,00 7.450 22.350

Codo 90º p/ desagüe un 2,00 1.550 3.100 secundario, buje largo 40mm

Codo 45º p/ desagüe un 2,00 1.600 3.200 secundario 40mm,

COSTEO DE OBRA

Caja sifonada cuadrada un 1,00 72.000 72.000 nº 25, 150x150x50mm,

Adhesivo 75 gr, un 0,50 9.200 4.600

Limpiador 200 cc, un 0,50 27.000 13.500

Mano de obra, un 1,00 159.000 159.000

Total por: un 300.250

Desagüe para Pileta de Cocina

Caño PVC 50 mm, ml 3,00 11.250 33.750

Codo 90º p/ desagüe un 2,00 4.500 9.000 primario 50mm,

Ramal de reducción 45º un 1,00 16.500 16.500 simple p/ desagüe primario 100x50mm,

Desengrasador redondo un 1,00 67.000 67.000 nº 70, 250x172x50,

Adhesivo 75 gr, un 0,50 9.200 4.600 Limpiador 200 cc, un 0,50 27.000 13.500

AGUA CORRIENTE

Caño PVC de 1”

Caño PVC roscable, ml 1,00 27.850 27.850

Mano de obra, ml 1,00 16.000 16.000

Caño PVC de 3/4”

Caño PVC roscable ml 1,00 12.850 12.850

Mano de obra, ml 1,00 13.000 13.000 Total por: ml 25.850

Caño PVC de 1/2”

Caño PVC roscable, ml 1,00 9.850 9.850

Mano de obra, ml 1,00 8.000 8.000

Total por: ml 17.850

Instalación Agua Fría en Baño Completo

Caño 1/2” roscable, ml 9,00 9.850 88.650

Codo 90º roscable, 1/2”, un 6,00 1.660 9.960

Llave de paso de 1/2” un 2,00 87.700 175.400 cromada FV Linea Clásica

Tapon roscable macho ½”un 4,00 690 2.760

Tee 3/4”x1/2” IPS, un 4,00 3.400 13.600

Adhesivo 75 gr, un 0,60 9.200 5.520

Cinta teflon 18mmx25m, un 2,00 9.600 19.200

Mano de obra, un 1,00 412.000 412.000

Total por: un

Instalación Agua Caliente y Fría en Baño Completo

Caño

Instalacion Agua Caliente y Fría

Instalación Agua Fría en Baño de Servicio

bronce sin campana, Adhesivo

Instalación Agua Fría en Baño Social

secundario, 40mm,

Linea Clásica,

Instalación Agua Fría en Baño Social - FV

Instalación Agua Fría p/ Pileta de Lavar y Lavarropas Caño

Codo 90º roscable, 1/2”, un 3,00 1.660 4.980

Tee 90º p/ desagüe un 1,00 4.000 4.000 secundario, 40mm, Tapon roscable macho ½”un 2,00 690 1.380

Llave de paso de 3/4” un 1,00 84.000 84.000 bronce sin campana,

Adhesivo 75gr, un 0,20 9.200 1.840 Cinta teflon 18mmx25m, un 1,00 9.600

Mano de obra, un 1,00

un

Instalación Agua Fría para Pileta de Cocina

Caño 1/2” roscable, ml 2,00 9.850 19.700

Codo 90º roscable, 1/2”, un 3,00 1.660 4.980 Tapón roscable macho ½”un 1,00 690 690

Llave de paso 1/2” un 1,00 58.000 58.000 bronce sin campana,

Adhesivo 75gr, un 0,20 9.200 1.840 Cinta teflón 18mmx25m, un 1,00 9.600 9.600

Mano de obra, un 1,00 126.000

un

Instalación Agua Caliente y Fría p/ Pileta de Cocina

Caño de 1/2” p/ agua calienteml 6,00 10.350 62.100

Caño roscable 1/2”, ml 6,00 9.850 59.100

Codo de 1/2” galv, un 6,00 7.700 46.200

Tee 1/2” galv, un 2,00 6.150 12.300

Unión doble 1/2” galv, un 2,00 19.700 39.400

Alma doble 1/2” galv, un 4,00 7.700 30.800

Llave de paso 1/2” FV cromoun 2,00 66.500 133.000

Prolongador FV 1/2”x1 un 1,00 38.000 38.000 cromo sin campana,

Sellador p/ caño 125cc un 0,40 45.900 18.360

Cinta teflón 18mmx25m, un 2,00 9.600 19.200

Mano de obra, un 1,00 254.000 254.000

Total por: un 712.460

COLOCACION DE ARTEFACTOS SANITARIOS

Baño Completo - Frío y Caliente - No incluye bañera

Juego con cisterna bajajuego 1,00 2.211.250 2.211.250

Deca Ravena Crema,

Griferia FV Linea Clásica juego 1,00

2.086.000 (Ducha, bidet y lavatorio)

Termocalefón 80 lt, un 1,00 1.650.000 1.650.000

Soporte para calefón, par

Prolongador 1/2x1

COSTEO DE OBRA

Baño Completo con Bañera Común

Instalación de baño un

completo sin bañera, Bañera 1,60x0,70 m, un

Baño Completo con Bañera Hidromasaje

Instalación de baño un 1,007.604.1437.604.143 completo sin bañera, Bañera

Baño Completo - Frío solo Juego p/ baño completo juego

c/ cisterna alta Deca Ravena Tubo bajada de un

embutir p/ cisterna nº 4, Botiquin 44x58x11cm

Canilla 1/2” cromo p/ un

fijar artefactos,

Baño de Servicio Juego para baño con juego

cisterna alta, Tubo de bajada de un

COSTEO DE OBRA

Bajada p/ lavatorio, un 1,00 17.300 17.300

Canilla p/ lavatorio FV un 1,00 45.000 45.000

Canilla de 1/2” cromo un 1,00 30.000 30.000 para bajo ducha FV,

Conexión cromo ½ x 30 cmun 2,00

fijar artefactos,

Baño Social - Standard

Juego para baño social juego 1,00 1.113.800 1.113.800 con cisterna alta Deca Ravena,

Mesada de Mármol para Baño Social (0.70x0.60m)

Mesada de Mármol para Baño Completo (1.00x0.60m)

fijar artefactos,

Baño Social - Superior

Pileta de Cocina - Acero Inoxidable - Frío Solo

Pileta 1 bacha, un 1,00 276.000 276.000

Canilla FV pico móvil frío solo un 1,00

INSTALACION ELECTRICA

Pilar de Mampostería 0.45x0.45x1.70m

No incluye cimiento y nivelación

Pileta de Cocina - Acero Inoxidable - Frío y Caliente

Pileta 2 bachas, un 1,00 485.000 485.000

Mano de obra, un 1,00 122.000 122.000 Total por: un 1.457.000

Pileta de Lavar y Lavarropas

Pileta granítica 1 bacha un 1,00

1,20x0,60 m,

Canilla 1/2” bronce FV, un 2,00

Mesada de Granito para Cocina

Registro eléctrico 30x30x70cm

Puesto de Medición Provisorio

Monofásico con limitadora hasta 40 A

COSTEO DE OBRA

Trifásico c/ acometida de 3m y limitadora hasta 45 A Caño galv. 2 1/2”x6m, un 1,00

Trifásico con limitadora hasta 45 A

Jabalina cobre 5/8 x 2m un 1,00

2

de cobre 5/8” x 2un

p/ jabalina un

Línea Subterránea

Monofásica con cable de 4 a 10mm Caño negro plástico ml 1,00

Trifásica con cable de 4 a 10mm

Caño negro plástico 1”, ml 1,00

Puesto de Medición Definitivo

(Con línea subterránea o embutido en mampostería)

Monofásico c/ acometida 3m y limitadora hasta 40 A

Línea Monofásica Embutida en Mampostería con Cable de 4 a 10 mm

Caño corrugado 5/8”, ml

Tablero Principal con 6 llaves TM Caja p/ tablero principal un 1,00

12 TM Steck,

COSTEO DE OBRA

Disyuntor TM 1x10A un 5,00 16.500 82.500

Disyuntor TM 1x50A un 1,00 24.200 24.200

colocación caja un 1,00 159.000 159.000 embutida,

Total por: un 549.700

Tablero principal con 6 llaves TM (llaves europeas)

Total por: un 643.200

Bocas de Lámparas y Tomas de Corriente

(Incluye colocación de electroducto y cableado hasta 5m del tablero principal)

Una Lámpara con su Interruptor

Caño

Una Lámpara con 2 Llaves de Combinación

Caja de llave plástica, un

Caja metálica

Circuitos Independientes

(Hasta 5m del tablero principal en cañerías ya instaladas para otros circuitos)

Circuito para Calefón/AA/Ducha Eléctrica

Caja p7 llave

Línea Embutida para AA sin cableado

Caja

Circuitos de Comunicación (Incluye colocación de electroducto y cableado hasta 5m del tablero)

Línea de teléfono con su toma Total por: un

Línea de Timbre con su pulsador

Caja de llave plástica, un 1,00 3.300 3.300

Caja metálica conexión un 1,00 1.400 1.400

Caño corrugado 5/8”, ml 10,0 350 3.500

chicharra un 1,00

externa 220V,

Toma para Antena de TV o Audio

CARPINTERIA DE MADERA

Marco Recto (de 0.15cm p/ puerta de 2.10m de alto)

De Ybyrapyta de 0.70 m de ancho

Marco Recto (de 0.15cm p/ ventana de 1.20m de alto)

De Ybyrapyta de 1.50 m de ancho

Puerta de 2.10 m de alto

Placa de eucalipto (0.80x2.10m)

Puerta placa, un 1,00 180.000 180.000

Ficha 5 agujeros, par 1,50 10.000 15.000

Mano de obra, c/hoja

Placa c/ cerradura para baño (0.80 x 2.10m)

Puerta placa de eucalipto un 1,00 180.000 180.000

Ficha 5 agujeros, par 1,50 10.000 15.000

Tornillo

Tablero (0.80x2.10m)

Puerta tablero común, un 1,00 950.000 950.000

Ficha 5 agujeros, par 1,50 10.000 15.000

Ficha 3 agujeros, un 1,00 9.000 9.000

Tornillo 1x7, un 52,0 150 7.800

Falleba de arrimar un 1,00 25.500 25.500

Pasador 150 mm un 2,00 18.000 36.000

Varilla p/ falleba 1.20 un 1,00 24.500 24.500

Mano de obra, c/hoja 3,00 36.000 108.000 Total por: un 626.800

Vidriera (2.00x1.20m - 4 hojas de abrir)

Total por: un 841.600

Vidriera (1.00x0.80m)

Total por: un 324.000

Persiana (1.50x1.20m - 3 hojas de abrir)

Ventana persiana fija, m2 1,80 450.000 810.000 Ficha 5 agujeros, par 2,00 10.000 20.000 Ficha 3 agujeros, un 1,00 9.000 9.000

Tablero - Punta Diamante (0.80x2.10m)

Puerta de cedro c/ molduras un 1,00 1.550.000 1.550.000

Ficha 5 agujeros, par 1,50 10.000 15.000 Tornillo 1x7, un 30,0 150 4.500 Cerradura p/ puerta de entrada un 1,00

Vidriera Sencilla (1.50x2.10m - 3 hojas de abrir)

Puerta vidriera,

falleba 1.20 un 2,00 24.500 49.000 Mano de obra, c/hoja 3,00 46.000 138.000 Total por: un 1.232.500

Persiana (1.50x2.10m - 3 hojas de abrir)

Puerta (varilla 45 cm) m2 3,15 450.0001.417.500

Ficha 5 agujeros par 3,00 10.000 30.000

Tornillo 1x7, un 60,0 150 9.000

Falleba de arrimar un 1,00 25.500 25.500

Pasador 150 mm un 2,00 18.000 36.000

Varilla p/ falleba 1.20 un 2,00 24.500 49.000

Persiana (2.00x1.20m - 4 hojas de abrir) Total

1.393.600 Colocación de Contramarco

CARPINTERIA METALICA

Balancín hasta 1 m2

Balancín fabricado con m2 1,00 180.000 180.000 ángulo de 5/8 y T 3/4x1/8”,

Ventana de 1.20 m de alto

Vidriera (1.50x1.20m - 3 hojas de abrir) Ventana vidriera m2 1,80

5

Puerta Metálica Tipo Reja (0.80x2.10 m)

Puerta, marco y herrajes, un 1,00

COSTEO DE OBRA

Mano de obra, un 1,00 66.000 66.000

Total por: un 598.950

Cortina Metálica (2.40x2.60 m)

Total por: un 4.346.000

Reja de Hierro Artística Sencilla (1.50x1,20 m)

Reja artística

Arena

Baranda Metálica de Escalera ml

Portón Metálico (1.00x1.50 m)

Portón

Cemento

Arena

Portón Cochera (3.00x2.00 m)

Portón con cerradura, m2 6,00 270.0001.620.000

Portón Cochera (4.40x4.00 m)

Portón

Escalera Metálica Recta

Tejuela a la Cal y Maderamen con Esmalte Sintético

PINTURAS

Pintura

Barnizado de Machimbre

Abertura de Madera con Esmalte

Abertura de Madera con Barníz Aceite

Abertura Metálica con Esmalte

y Bajada con Esmalte Sintético

COSTEO DE OBRA

Parrilla (boca de 1.00 m)

de Ladrillo Visto

Balaustre Sencillo

de Agua en Fibra de Vidrio

VARIOS

Moldura Doble

Tanque de Agua en Fibra de Vidrio

Moldura Sencilla Cemento tipo 1,

715.950

Estufa (Boca de 1.00 m) Ladrillo

PROYECTOS MANDU’A

Descripción general:

Todas las construcciones se realizan en Asunción o alrededores sobre un terreno seco con una capacidad portante de 3 Kg/cm2, que no requiere movimiento de suelo. El análisis de costo incluye los gastos generales (10%) y beneficio de la empresa (15%). Se excluyen los gastos complementarios correspondientes a los Honorarios Profesionales por Proyecto y Dirección de Obras. No se consideran los gastos por Permiso Municipal, de conexión y consumo por servicios de

agua y eléctricidad. Tampoco se considera el valor del predio. Los precios de materiales y de mano de obra corresponden a los publicados por nuestra revista, en cuya guía de costeo de obra se desarrolla cada uno de los ítems. Los precios de mano de obra se basan en consultas realizadas con contratistas y profesionales de construcción. No incluyen cargas sociales, seguro de accidentes, etc.

Casa Mandu’a - Vivienda Modelo 1

Descripción: Vivienda económica con una superficie de 67,7 m2

Desarrollo de la Obra

• Fundación: Piedra bruta colocada. Nivelación: Mampostería de 0,30 con ladrillos comunes. • Aislación: Horizontal de muros realizada en cajón con asfalto sólido diluido en caliente. • Mampostería de elevación: Ladrillo hueco de 6 agujeros. En baños y paredes con instalación hidráulica, de ladrillo común. • Dinteles: Envarillado continuo de 2 varillas y de 4 varillas sobre aberturas. • Techo: Tejas españolas prensadas 1ª B, con tejuelones, maderamen de yvyrapyta, aislación con cartón asfáltico, con terminación de boca teja, mojinete y tapa doble. • Carpintería de madera: Marcos de yvyrapyta, aberturas de madera de guatambú, mueble de cocina revestido con laminado plástico. • Revestidos: Azulejos esmaltados lisos 15x15, en cocina, lavadero y baños, con una altura de 1,80 m. • Revoques: Base con azotada impermeable de 0,5 cm y revoque con aditivo hidrófugo, en interior a 1 capa y exterior en la faja perimetral de 0,50 m. Incluye vértice de mampostería y borde de aberturas. • Instalación eléctrica: Monofásica, llaves termomagnéticas brasileñas, Placas, picos de luz y tomas argentinas. Sin artefactos. • Instalación sanitaria: Cañería hidráulica de agua fría, cloacal y pluvial, de PVC. Loza de baño brasileña, con cisterna alta. Pileta de lavar de granito reconstituido.

MODELO

1

- VIVIENDA PLANILLA DE COSTOS

Elevación 0.15 m con ladrillo hueco 6

Elevación 0.15m con ladrillo hueco 6 tubos, 1

Pilar de ladrillo común 30 x 30 a la vista

Dintel sobre aberturas / envarillado de mamposteria

Techo: teja española, tejuelón, aislante, vigas y tirantes

Contrapiso de 10 cm con H° de cascotes

OPCIONAL

Pileta de cocina de acero inoxidable, 1 bacha. Las canaletas y bajadas, de chapa galvanizada Nº 26. • Pintura: Interior y exterior a la cal con fijador y color. Mampostería a la vista con protección a base de silicona, previa limpieza con ácido muriático. Carpintería de madera y maderamen de techo al barniz. Carpintería metálica y canaletas con esmalte sintético. Limpieza

Dúplex Mandu’a Vivienda Modelo 2

Descripción: Conjunto de 3 viviendas, cada una de 121,5 m2, con estructura de losa prefabricada con paredes portantes y disminuyendo pilares y zapatas.

Desarrollo de la Obra

• Fundación: De piedra bruta colocada, con encadenado inferior de HºAº y zapatas de Hº Aº como base de pilares.

• Estructura: Losa cerámica a la vista que se apoya en paredes portantes, con algunos pilares y vigas de HºAº. Nivelación y Dinteles sobre aberturas y techo. • Revestidos: Idem modelo 1. • Aislación: Horizontal idem modelo 1. De baño en planta alta con alisada e impermeabilizante de base asfáltica. • Mampostería de elevación: Ladrillo laminado a la vista en fachada; ladrillo común en baños, área de servicio y paredes con instalación hidráulica; ladrillo hueco de 6 agujeros en interiores y medianeras. • Carpintería de Madera: Marcos de yvyrapyta, aberturas de cedro, placard de guatambú, mueble de cocina revestido con laminado plástico. • Carpintería Metálica: Balancines de ángulos, rejas artísticas sencillas y portón de cochera de chapa doblada. • Pisos: Contrapiso de cascotes, baldosa calcárea de base gris en área de servicio, layota nacional en cochera y parrilla. Cerámica esmaltada sobre carpeta alisada de 30x30 en planta baja, área social, escalera y cocina. De 20x20 en baños. Veredita tipo ka’a. Alfombra de 5 mm sobre carpeta de base en planta alta. • Zócalos: Calcáreo, cerámica esmaltada, layotas, en su caso y madera donde lleva alfombra. • Revoques: Común filtrado por ladrillos comunes con azotado de adherencia en ladrillhidrófugo en exteriores y áreas húmedas. • Instalación eléctrica: Monofásica, llaves TM brasileñas, placas, picos de luz y tomas argentinas.

PROYECTOS MANDU’A

PLANILLA DE COSTOS

tejuelón, vigas y

Sin artefactos. • Instalación Sanitaria: Cañería para agua fría, cloacal y pluvial de PVC, para agua caliente de polipropileno, loza de baño brasileña, cisterna baja en baño social y en planta alta, alta en baño de servicio, pileta de lavar de granito reconstituido y de acero inoxidable de 2 bachas en la cocina. Canaletas y bajadas de chapa Nº 26. • Pintura: Mampostería a la vista con protección a base de silicona, previa limpieza con ácido muriático. Area de servicio y exteriores revocados a la cal con color. Paredes interiores al latex. Carpintería de madera, techo de tejas y losa con cerámica a la vista al barniz. Carpintería metálica y canaletas con esmalte sintético. os huecos, con azotada impermeable (0,5 cm) y común filtrado con aditivo .

Planta Baja
Planta Alta

Dúplex Mandu’a - Vivienda Modelo 3

Descripción: 2 viviendas iguales en Duplex, cada una de 150,3 m2

Sistema constructivo y materiales

Estructura: La losa prefabricada utilizada es de una marca del mercado, utilizada con el mismo criterio adoptado en el Modelo 2.

Desarrollo de la Obra

• Fundación: Idem modelo 2. • Estructura: Se utiliza el sistema Listalosa con cielorraso ranurado a la vista, sin revoque, que descansa sobre paredes portantes, reforzados con algunos pilares y vigas de Hº Aº. • Fundación, nivelación, aislación, mampostería, dinteles, techos, revoques, Instalación Sanitaria y

Pintura: Idem al modelo 2. • Carpintería de Madera: Marcos de lapacho, aberturas, placards y mueble de cocina de cedro, éste último con puertas tablero; mesada de granito natural.

• Carpintería Metálica: Balancines metálicos. Rejas artísticas y portón de cochera de chapa doblada y varillas. • Pisos: Contrapiso de Hº de cascotes, baldosa calcárea de base gris en área de servicio, layota nacional en cochera y parrilla. Granito reconstituído pulido de base gris en área social, estudio y planta alta, y en planchas en la escalera. Cerámica esmaltada sobre carpeta alisada en cocina y baños. Vereda de mosaicos de canto rodado de color 30x30. • Zócalos: Calcáreo, cerámica esmaltada, cerámica roja y granito reconstituido. • Revestidos: Azulejo esmaltado liso 20x30 en baños y cocina. De 15x15 en lavadero y baño de servicio. • Instalación Eléctrica: Monofásica, llaves TM europeas, placas, picos de luz y tomas de procedencia uruguaya. Sin artefactos.

PLANILLA DE COSTOS

MODELO 3 / VIVIENDA DUPLEX, SUPERFICIE 150,30 m²

Mosaico

Cámara

Imprevistos,

Gastos

Edificio para la Renta Vivienda Modelo 4

Descripción: Edificio de 2 plantas que puede ampliarse a 3, comprende 2 departamentos en Planta Alta, cada uno de 60 m2 y con 2 dormitorios. En planta baja 2 salones comerciales de 34,30 m2 de área interior. Entrada vehicular cubierta.

Desarrollo de la obra

• Fundación: Se utilizan Zapatas de Hº Aº donde actúan cargas puntuales y bajo las paredes, vigas del mismo material. • Estructura: De Hº Aº tipo tradicional, las losas descansan sobre vigas y pilares del mismo ancho que las paredes. En planta alta se utiliza un encadenado general a la altura de asiento de tirantes. • Aislación, mampostería de elevación, dinteles, techo y carpintería de madera, pisos, zócalos, revestidos, revoques, instalación sanitaria: idem al modelo 2. • Carpintería Metálica: Cortina de enrollar de tablillas metálicas con puerta de escape. Balancines, portones de acceso peatonal y de cochera de chapa doblada. Baranda sencilla de escalera. • Instalación

Eléctrica: Idem. modelo 3. • Pintura: Paredes interiores y exteriores del frente y contrafrente al latex. Paredes exteriores medianeras y cielorraso a la cal. Abertura de madera, maderamen y tejuelones del techo al barniz. Carpintería metálica con esmalte sintético.

Planta Baja
Planta Alta

PLANILLA DE COSTOS

Revoque 1 capa sin hidrófugo en interiores

Revoque 1 capa con hidrófugo en exteriores

impermeable 0.5

Techo : teja española , tejuelón, vigas y tirantes Yvyrapyta

Casa Mandua 4 básica

Limpieza final y retiro de escombros (0.8 %)

Imprevistos, mermas y roturas (3%)

Planta Baja

Planta Alta

Galpón tipo tinglado - Vivienda Modelo 5

Descripción: Galpón tipo tinglado, con una superficie de 268,8 m2, con oficina y vestuario. La oficina incluye un baño privado y el vestuario dos boxes de baño, para ducha e inodoro, respectivamente. Consta de patio posterior y retiro en el frente, cumpliendo la norma municipal que exige un 25% de superficie sin construir.

La obra está prevista para un terreno plano y limpio de 12x30 m situado entre linderos.

Desarrollo de la Obra

• Fundación: Pilares asentados sobre zapatas de hormigón ciclópeo y cimiento corrido de P.B.C para asiento de paredes. • Estructura: Realizada con pilares de HºAº y vigas encadenadas conformando 2 anillos de unión. • Aislación, mampostería de elevación, dinteles, carpintería de Madera: Idem. modelo 1. • Techo: Tipo tinglado parabólico, estructura metálica reticulada fabricada de varillas torsionadas pintadas con antióxido. Cubierta de chapa galvanizada ondulada, aireada con extractores eólicos. • Carpintería Metálica: Balancines metálicos de ángulos y perfiles “T”. Portones de chapa doblada en el acceso vehicular y la salida al patio. Escalera metálica recta de acceso al entrepiso de madera. • Pisos: En el patio del frente y dentro del depósito, donde pueden circular vehículos, el piso es de hormigón armado con juntas de dilatación. En la oficina se utilizan baldosa calcárea de base gris y cerámica esmaltada sobre una carpeta alisada, en baños y vestuarios. Vereda de baldosita calcárea tipo ka’a con ranuras antideslizantes. Contrapiso de hormigón de cascotes. • Zócalos: Calcáreo en la oficina. • Revestidos: Azulejo esmaltado liso 15x15 en baños y vestuario. • Revoques: Sobre ladrillos huecos, azotada de adherencia con hidrófugo y revoque común filtrado y sobre ladrillos comunes sólo este último. Las paredes perimetrales llevan revoque a un solo lado.

• Instalación Eléctrica: Trifásica, llaves termomagnéticas europeas, placas, picos

MODELO 5 / GALPON TIPO TINGLADO,

Casa Mandua 5 opcional

Imprevistos , mermas y roturas (3 % )

Costo de obra opcional

Gastos generales y beneficios 25%

casa 5 opcional TOTAL

SUPERFICIE 268,80 m² GS POR m²

PROYECTOS MANDU’A

de luz y tomas uruguayos, sin artefactos. Instalación Sanitaria: Cañería hidráulica de agua fría, cloacal y pluvial, lozas de baño, canaletas y bajadas idem modelo 1. Cisterna baja en baño de oficina y alta en el vestuario. • Pintura: Paredes revocadas, interiores o exteriores, a la cal. Paredes de ladrillo hueco a la vista con tratamiento correspondiente para el efecto. Carpintería de madera y entrepiso de machimbre pintadas con barniz. Carpintería metálica y caños de bajada con esmalte sintético.

5

Bolsa de subcontratistas

* La Bolsa de Subcontratistas es una colaboración de la revista con los profesionales y trabajadores de la construcción, teniendo un pequeño costo los anuncios en recuadro. La calidad del servicio, así como la relación contractual, escapa a nuestro compromiso con los apreciados lectores.

Agrimensura

Aire acondicionado

Instalación / Reparación

Bracho, Javier 0981 879749 / 0985 464491

Brítez, Santiago 0981 117524

González, Pedro 644661 / 0982 450866

Maciel, Pablo 0971 939890 / 0981 651205

Ojeda, Hugo 623766 / 0981 868289

Solis, Gabriel 0981 486233

Velázquez, Santiago 0981 843738

Aislación térmica

Duarte, Eleno 0983 338939

Marín, Dionisio 0983 731450

Alambrados

Bentrom, Román 991255

Riveros, Mario 0992 993007 / 0985 887621

Albañilería

Julio Cristaldo

Cel.: 0986 188 514

Benítez, Ramón 0982 370231

Bogarín, Lidio 0971 947177

Bruno, Alejandro 0994 314460

Cabral, Andrés 0982 896561

Cáceres, Carlos 0982 132349

Cazal, Alexis 0981 343423

Esquivel, Rogelio 0981 456697

Fernández, Antonio 515629 / 0981 465940

Garcete, Palermo 0981 965660

Gill, Enrique 642559 / 0981 303974

Giménez, Pablo 0981 951645

Godoy, Eladio 0983 333622

González, Aníbal 0985 222147

González, Benito 0982 248256

Jara, Vidal 0981 434787 / 0981 876489

Jiménez, Antonio 514989 / 0981 660190

López, Osvaldo 0981 836904

Maidana, Sinforiano 0983 380486

Marín, Dionisio 0983 731450

Moreno, Ramón 0981 785546

Ocampos, Higinio 0984 926892

Ortega, Mildesis 0984 369 652 / 0981 594 893

Paniagua, Derlis 0981 182465

Peralta, Raúl 0981 501323

Rando, Gerardo 0985 766 650

Ramírez, Amado 374276 / 0981 485609

Riveros, Carlos 0981 521771

Rojas, Juan 0971 950157

Ruiz, Saturnino 0984 273997

Sosa, Edgar 0984 928914

Vera, Néstor 0981 103889

Animación y perspectiva

Abbate, Alejandra 0982 886227

González, Jorge 0986 552 000 / 0991 880 133

Pérez, Rafael 0981 476743

Aprobación de planos municipales

Benítez, Oscar 0971 340345

Chaparro, Miguel 0961 586457

Fernández, María 0981 932043

Rolón, Oscar 0981 445601

Robledo, Gustavo 0981 939512

Azulejos - colocación

Armando, José 0995 639335

Benitez, Alfredo 0981 520214

Benitez, Antonio 0981 945353

Ferreira, Gustavo 285663 / 0981 881211

Figueredo, Miguel 0981 479221

Godoy, Eladio 0983 333622

González, Benito 0982 248256

Jiménez, Antonio 514989 / 0981 660190

Medina, Antonio 0983 247516

Moragas, Carmelo 0985 268 497 / 0981 547 754

Noguera, Higinio 0981 564472

Ortíz, Vidal 509475

Palacios, Leonardo 0983 207676

Vázquez, Ever 0981 655799

Canaletas

Altamirano, Vicente 0981 851077

Arzamendia, Hugo 0981 126471

Canto rodado (carga en obra)

Figueredo, Catalino 0981 763438

Figueredo, Miguel 0981 479221

Carpintería

Aquino, Miguel 0986 858685

Bordón, Marcial 0971 277041

Franco, Marcos 0982 279166

Olmedo, Miguel 0981 526079

Carpinteros de obra / techistas

Benítez, Aniano 0984 478256

Cáceres, Carlos 0982 132349

González, Aníbal 0985 222147

Jara, Oscar 780642 / 0981 184687

Mora, Pascual 0981 963459

Sosa, Carlos 0992 299951

Valdovinos, Pedro 0981 234113 Cascadas

Acevedo, Patricio 0981 412542

Aguilera, Gabriel 0985 101795

Cepillado en obra

Jara, Oscar 780642 / 0981 184687

Circuito cerrado Cabrera, Arnaldo

Colocación de aberturas

Franco, Marcos 0982 279166 García, Juan 0981 571424

/

Colocación de empapelados

Coronel, Derlis 295479 / 0981

Coronel, Julián 295479 / 0984 580876

Colocación de Losarap

Alarcón, Julio 501130 /0983 367 697

Gill, Enrique 642559 / 0981 303974

Cielorrasos - Durlock/PVC/Yeso

Agüero, Benjamín 0985 740977

Agüero, Jorge 0985 417456

Bentolilla, Esteban 480203 / 0981 385207

Careaga, Víctor 373410 / 0971 936858

Colocación de Parquet

García, Juan 0981 571424

Sosa, Carlos 0992 299951

Colocación de Piedra revestidos / molduras

Aveiro, Gerónimo 0985 242563

Figueredo, Miguel 0981 479221

Martínez, Diego 0984 560 841

Ortíz, Eduardo 0971 379011

Quiñónez, Expédito 0983 356501

Ríos, Francisco 0981 417309

Rojas, Juan 0971 950157

Colocacion de Pisos vinílicos / alfombras

Careaga, Víctor 373410 / 0971 936858

Coronel, Derlis 295479 / 0981 154662

Coronel, Julián 295479 / 0984 580876

Pavón, César 327 6331 / 0982 354987

Sánchez, Alberto 443477 / 0981 503266

Cómputo métrico

Benítez, Oscar 0971 340345

González, Jorge Arq 0986 552000 / 0991 880133

Nuñez, Andrea 0982 170442

Russo, Walter Ing 0991 789561

Vallejos S, Cristina Arq 0982 975371 / 0981 561645

Constructores de obra

Acosta Riveros, Jorge A 0984 557649

Agüero, Teófilo 524755 / 0983 942516

Añazco, Carlos 0981 457301

Benítez, Aniano 0984 478256

Benítez, Juan 751724 / 0981 488904

Benítez, Ramón 0982 370231

Caballero, Oscar 0972 131247

Cabral, Andrés 0982 896 561

Cáceres, Carlos 0982 132349

Cantero, Domingo 0981 244946

Dávalos,Hermes 0981 942718

Escobar, Gustavo 0981 163551

Espinoza, Mauricio 0982 781445

Fernández, Antonio 515629 / 0981 465940

Ferreira, Wilfrido 0981 400128 / 0981 786614

Figueredo, Miguel 0981 479221

Garcete, Palermo 0981 965660

Gill, Enrique 642559 / 0981 303974

Giménez, Leonardo 0981 530453

González, Aníbal 0985 222147

González, Miguel H 0961 889646

González, Rumildo 0971 350004

Gutiérrez, De los Santos 0981 390538

Hucedo, Carlos 0982 178592

Jara, Vidal 0981 434787 / 0981 876489

Jiménez, Antonio 514989 / 0981 660190

Maciel, Milciades 0981 943482

Maidana,Sinforiano 0983 380486

Meza, Esteban 0992 383232

Moreno, Ramón 0981 785546

Narváez, Arsenio 0981 939452

Noguera, Higinio 0981 564472

Ortiz Barrios, César 642239 / 0983 358854

Ortíz, Vidal 509475 / 0971 720887

Oviedo, Richard 0981 291070

Paniagua, Derlis 0981 182465

Quiñónez, Expedito 0983 356501

Quiroga, Pedro 0985 938774

Rando, Gerardo 0985 766 650

Recalde, César 0981 170159

Riveros, Carlos 0981 521771

Riveros, Mario 0992 993007 / 0985 887621

Robledo,Gustavo 0981 939512

Rodríguez, Buenaventura 0972 509828

Rojas, Bernardo 302692 / 0981 531143

Rojas, Juan 0971 950157

Romero, Melchor 0983 470631

Ruiz, Saturnino 0984 273997

Sánchez, Benito 0983 488540

Sánchez, Ricardo 0981 145907

Sánchez, Yisenia 0976 123426 / 0985 297794

Sosa, Edgar 0984 928914

Valdovinos, Pedro 0981 234113

Vega, Augusto 310352 / 0971 972699

Velázquez, Jorge 0983 507243

Velázquez, Santiago 0981 843738

Vera, Néstor 0981 103889

Contratistas de hormigón

Acosta Riveros, Jorge A 0984 557649

Arévalos, Guillermo 752601 / 0981 485307

Benítez, Oscar 0971 340345

Cabral, Andrés 0982 896561

Esquivel, Rogelio 0981 456697

Fernández, Antonio 515629 / 0981 465940

Fernández, Silvino 755284 / 0981 549523

Figueredo, Miguel 0981 479221

Garcete, Palermo 0981 965660

Giménez, Leonardo 0981 530453

González, Aníbal 0985 222147

González, Miguel H 0961 889646

González, Rumildo 0971 350004

Maidana, Sinforiano 0983 380486

Meza, Esteban 0992 383232

Ocampos, Higinio 0984 926892

Olmedo, Julio 0981 652772

Ortega, Mildesis 0984 369652 / 0981 594893

Paniagua, Derlis 0981 182465

Peralta, Raúl 0981 501323

Recalde, César 0981 170159

Torres, Arístides 0981 865518

Velázquez, Santiago 0981 843738

Vera, Néstor 0981 103889

Cortinas

Aguilera, Gabriel 0985 101795

Ayala, Ever 0983 711979

Maldonado, María Estela 0981 561631

Urbieta, Mónica 0981 476743

Demolición

Caballero, Oscar 0972 131247

Herrera, Cristino 0981 976488 / 0984 894128

Vallejos, Cándido 0991 233001

Villalba, Javier 0985 491498

Destronque de árboles

Herrera, Cristino 0981 976488 / 0984 894128

Vera, Néstor 0981 103889

Dibujantes técnicos

Arnedo, Ana Arq 0981 655014

Jacobo, Nora 0971 534417

Maidana, María B. 0991 988215

Martínez, Francisco 0786 230619 / 0975 681680

Montiel, Gustavo 586343 / 0982 488928

Rodriguez, Buenaventura 0972 509828

Rolón, Manuel 0986 909404

Rolón, Oscar 0981 445601

Digitalización de planos

Abbate, Alejandra 0982 886227

Aponte, Andrea 0971 190781

Arnedo, Ana Arq 0981 655014

Arza, Andrea Arq 0981 966786

Coronel, Renzo 0971 362856 / 0986 656577

Escobar, Gustavo 0981 163551

Ferreira, José 0981 915492

González, Jorge 0986 552 000 / 0991 880133

Maidana, María B. 0991 988215

Montiel, Gustavo 586343 / 0982 488928

Nuñez, Andrea 0982 170442

Nuñez, Miguel 0982 634026

Quintana, Jorge 290680 / 0981 426037

Robledo, Gustavo 0981 939512

Rolón, Manuel 0986 909404

Rolón, Oscar 0981 445601

Sánchez, Yisenia 0976 123426 / 0985 297794

Toledo, Milena 0981 201561

Divisorias interiores / Mamparas

Bentolilla, Esteban 480203 / 0981 385207

Careaga, Víctor 373410 / 0971 936858

Pavón, César 327 6331 / 0982 354987

Dorado a la hoja

Chávez, Ada 0981 838274

Drenaje

Caballero, Rodrigo 0981 257702

Velázquez, Santiago 0981 843738

Electricistas

Aquino, Roberto 521610/ 0971 313847

Benítez, Cándido 0981 496207

Bracho, Javier 0981 879749 0985 464491

Brítez, Santiago 0981 117524

Cáceres, Isidro 0981 927945

Chaparro, Miguel 0961 586457

Castillo, Marco 0981 578068

Coronel, Derlis 295479 / 0984 580876

Coronel, Julián 295479 / 0981 154662 Ever Pereira 0983 460 494

BOLSA DE SUBCONTRATISTAS

Delgadillo, Alberto 0981 844429

Delgadillo, Francisco 0982 335870

Díaz, Carlos 572156 / 0982 464967

Duarte, Gustavo 0983 191182

Esquivel, Rogelio 0981 456697

Galarza, Ramón 0981 230273

Garcete, Palermo 0981 965660

Giménez, Carlos 0981 741087

Giménez, Flaminio 0971 227480 / 0983 841240

González, Pedro 644661 / 0982 450866

Hucedo, Carlos 0982 178592

León, Cañete 0983 800938 / 0981 561409

Maciel, Pablo 0971 939890 / 0981 651205

Martínez, Gerardo 0981 493190

Montanía, Ylber 0981 474025

Núñez, Cayo 0983 404670

Otello Roa, Félix 780691 / 0972 822577

Paniagua, Derlis 0981 182465

Parini, Fernando 0983 657565

Ramírez, Dario 0992 863100 / 0991 677208

Ramírez, Roberto 944740 / 0981 494624

Rolón, Carlos 0982 751296

Ruiz, Carlos 0981 896430

Sanabria, Jorge 0984 154375

Sartorio, Jorge 0981 939172

Solis, Gabriel 0981 486233

Toñánez, Sebastián 0981 912516

Valenzuela, Luis 0982 127968 / 0985 942676

Vallejos, Cándido 0991 233001

Villaverde, Silvino 0992 396855

Empedrados y adoquinados

Santacruz, Pablo Ing 0981 105004

Fumigación

Herrera, Cristino 0981 976488 / 0984 894128

Herrería / estructuras metálicas

Arzamendia, Hugo 0981 126471

Bordón, Marcial 0971 277041

Bracho, Javier 0981 879749 / 0985 464491

Cazal, Mario 0982 878501

Delvalle, Christian 0981 853884

Garcete, Palermo 0981 965660

Herrera, Edgar 0982 272468

Maldonado, María Estela 0981 561631

Orrego, Cándido 0984 958981

Hojalatero

Cazal, Alexis 0981 343423 Hornos, chimeneas, estufas, parrillas,

A.,

Impermeabilización

Duarte, Eleno 0983 338939

López, Ramón 0981 569767

Marín, Dionisio 0983 731450

Martínez, Braulio 0981 193232

Ramírez, Amado 374276 / 0981 485609

Ruffinelli, Miguel 0981 449955

Velázquez, Santiago 0981 843738

Jardineros

Aguilera, Gabriel 0985 101795

Basualdo, Javier 0982 311208

Duarte, Tomás 0985 941909

Villaverde, Silvino 0992 396855

Limpieza de patios

Bentrom, Román 991255 Herrera, Cristino 0981 976488 / 0984 894128

Riveros, Mario 0985 887621

Mesadas de cocina / bañoMarmolería

Jimenez, Miguel Angel 0981 541146

Montaje de transformadores y motores

Benítez, Genaro 0981 496837

Díaz, Carlos 572156 / 0982 464967

Mancuello, Fernando 0991 201918

Morales, Gustavo 0981 893881

Motoserrista / poda de árboles

Basualdo, Javier 0982 311208

Bentrom, Román 991255

Duarte, Tomás 0985 941909

Riveros, Mario 0992 993007 / 0985 887621

Muros verdes / jardines verticales

Arzamendia,

Pintores Amarilla, Ángel

Bogarín, Héctor 0985 959921

Borja, Francisco 0991 820078

Bruno, Alejandro 0994 314460

Careaga, Víctor 373410 / 0971 936858

Cazal, Alexis 0981 343423

Garcete, Palermo 0981 965660

Gauto, Miguel 0981 938415

Giménez, Hernando 0981 419674

Giménez, José 0993 353888 / 0981 604638

Giménez, Leonardo 0981 530453

Godoy, Pedro 0981 596914

González, Aníbal 0985 222147

Herrera, Edgar 0982 272468

Ibarra, Jorge 0961 842883

López, Ramón 0981 569767

Marín, Dionisio 0983 731450

Martínez, Diego 0984 560 841

Medina, Germán 0982 320250

Mereles, Néstor 0985 653204

Miranda, Félix 0981 514763

Morínigo, Miguel 973372 / 0981 474261

Noguera, Higinio 0981 564472

Ojeda, Darío 0971 223440

Oviedo, Richard 0981 291070

Paniagua, Derlis 0981 182465

Ramírez, Amado 374276 / 0981 485609

Ramírez, Ladislao 0981 766680

Reyes, Luis 0981 231612

Riveros G., Carlos 0981 521771

Riveros, Mario 0992 993007 / 0985 887621

Rojas, Bernardo 302692 / 0981 531143

Romero, Melchor 0983 470631

Sosa, Edgar 0984 928914

Vallejos, Cándido 0991 233001

Pintura texturada

Arévalos, Alberto 0971 208038

Giménez, Hernando 0981 419674

López, Ramón 0981 569767

Morínigo, Miguel 973372 / 0981 474261

Piris, Crispín 0982 360759

Piscinas - Construcción

y reparación

López,

Urbieta, Mónica 0981 476743

Piscinas - Limpieza y Mantenimiento

López,

Piseros

Benítez,

Caballero, Rodrigo 0981 257702

Fernández, José 0982 627836

Giménez, Leonardo 0981 530453

Godoy, Eladio 0983 333622

González, Benito 0982 248256

Jiménez, Antonio 0981 660190

Maciel, Milciades 0981 943482

Martínez, Diego 0984 560 841

Medina, Antonio 0983 247516

Moragas, Carmelo 0985 268497

Noguera, Higinio 0981 564472

Palacios, Leonardo 0983 207676

Rando, Gerardo 0985 766 650

Riveros, Carlos 0981 521771

Rojas, Juan 0971 950157

Samaniego,Jorge 0982 986 757 0994 759925

Pisos técnicos (sobre elevados)

Agüero, Benjamín 0985 740977

Plomeros

Agüero, Benjamín 0985 740977

Aguilera, Gabriel 0985 101795

Alcaráz, Andrés 0971 956096

Altamirano, Vicente 0981 851077

Báez, Raimundo 0981 609001

Bracho, Javier 0985 464491

Caje, Rodolfo A. 0984 234423

Cazal, Mario 0982 878501

Chávez, Jorge 0981 823284

Escobar, Carlos 0971 357473

Fariña, Antonio 0971 231175

Ferreira, Gustavo 0981 881211

Garcete, Palermo 0981 965660

Giménez, Pablo 0981 951645

Herrera, Edgar 0982 272468

Hucedo, Carlos 0982 178592

López, Víctor M. 0971 760390

Medina, Alfredo 0981 468756

Medina, Germán 0982 320250

Moragas, Carmelo 0985 268497

Moragas, Victorino 0981 892513

Noguera, Higinio 0981 564472

Núñez, Cayo 0983 404670

Ortiz, Vidal 509475

Paniagua, Derlis 0981 182465

Rando, Gerardo 0985 766 650

Riveros G., Carlos 0981 521771

Riveros, Mario 0992 993007

Romero, Melchor 0983 470631

Ruíz, Carlos 0981 896430

Vallejos, Cándido 0991 233001

Villalba, Javier 0985 491498

Villaverde, Silvino 0992 396855

Ploteo de planos

Coronel, Renzo 0986 656577 Prevención contra incendios

Caje, Rodolfo A. 0984 234423

Manchini, César 0981 245725

Proyecto arquitectónico

Abbate, Alejandra 0982 886227

Aponte, Andrea 0971 190781

Arnedo, Ana Arq 0981 655014

Coronel, Renzo 0971 362856

Fernández, María Arq 0981 932043

Martínez, Liz Arq 0981 926697

Nuñez, Andrea 0982 170442

Pérez, Rafael 0981 476743

Pulidor de parquet

Fernández, José 0982 627836

Pulidor de piso granítico y de H˚

Caballero, Rodrigo 0981 257702 Fernández, José 0982 627836

Refrigeración / AA / camaras frigorificas/ heladeras

Brítez, Santiago 0981 117524

Galarza, Ramón 0981 230273

Hucedo, Carlos 0982 178592

León, Cañete 0983 800938

Ruiz, Carlos 0981 896430

Sartorio, Jorge 0981 939172

Reparación / instalación de electrobombas para pozos

Escobar, Carlos 644497 / 0971 357473

Moragas, Carmelo 0985 268497

Restauración de muebles

Aparici, Mari 0981 500065

Montanía, Higinio 0981 530480

Guillén,

Quintana, Jorge 0981 426037

Recalde, César 0981 170159

Robledo,

MANDU’ARA

*Lista de precios de materiales y servicios de la construcción ordenada por orden alfabético. Los precios incluyen el I.V.A.

Todos los valores incluidos en esta edición son meramente indicativos, siendo los mismos resultando de un análisis de los precios los vigentes en el mercado. Mandu’a no se hace responsable de los mismos. INDICE

62 - ABERTURAS

63 - ACONDICIONADORES DE AIRE

63 - ALAMBRES

63 - ALQUILER Y VENTA DE EQUIPOS Y MÁQUINAS

64 - AISLANTES ACÚSTICOS

67 - AISLANTES TÉRMICOS

67 - ASCENSORES

67 - BIODIGESTORES

67 - CAL

68 - CARPINTERÍA DE ALUMINIO

69 - CEMENTO BLANCO

69 - CEMENTO GRIS

69 - CERÁMICA ROJA

70 - CERCO ELÉCTRICO

70 - CONSTRUCCIÓN EN SECO

70 - CORTINAS

70 - CHAPAS

71 - CIELORRASOS

71 - CONTENEDORES

74 - DIVISORIAS SANITARIAS

75 - DRENAJES

75 - ELECTRICIDAD

75 - ESTRUCTURAS

76 - FALLA DE PAVIMENTOS

ABERTURAS

76 - FERRETERÍA

76 - FUMIGACIONES

76 - GAVIONES

76 - HERRERÍA

77 - HERRAJES

77 - HIDRÓFUGOS

77 - HIERROS

77 - HORMIGÓN

78 - IMPERMEABILIZANTES

78 - LABORATORIO DE ENSAYOS

78 - LOSA PREFABRICADA

78 - MÁRMOL Y GRANITO

79 - MAMPARAS

79 - MALLA ELECTRO SOLDADA

79 - MEMBRANAS ASFÁLTICAS

79 - OBRADORES

79 - PERFILES

79 - PERFORACIÓN DE POZOS

80 - PIEDRAS

80 - PILOTES

80 - PINTURAS

81 - PISOS Y REVESTIMIENTOS

82 - PISOS SOBREELEVADOS

82 - PISOS VINÍLICOS

82 - PORTONES A CONTROL

82 - REMOTO

83 - PREVENCIÓN DE INCENDIOS

84 - PUERTAS AUTOMÁTICAS

84 - REVESTIMIENTOS

ACÚSTICOS

85 - SELLADORES

85 - TERMINACIONES

85 - TOPOGRAFÍA

86 - VARILLAS

86 - VIDRIOS

Madera

Puerta placa De

ALAMBRES

Liso

01 Acerado Nº 17/15, rollo 1000m un 780.000

02 Galvanizado Nº 9, 12, 14 kg 17.000

03 Galvanizado Nº 20 kg 16.800

04 Negro de atar Nº 18 kg 18.000

De púa

01 Nº 16, rollo de 400 un 300.000

Tejido de Alambre Romboidal x m2

Postes de madera

Yvyrapyta - Altura 2,20 m

01 De 2x3” un 14.850

02 De 3x3” un 17.820

Postes de hormigón (ver rubro Prefabricados)

Y

Equipos

02 Amoladora o cortadoras para cerámica de 9” (Bosch)

Máquinas

Calidad y garantía en todos nuestros servicios. Asesoramiento profesional personalizado.

Excelente atención al cliente

Andamios Martillete

Arcilla

Diámetro

Bolsa

Bolsa

Bolsa

Diámetro

Bolsa

MANDU’ARA

CAÑOS Y ACCESORIOS

PVC - Tubos de 6 m

Tubo liviano para desague (blanco)

De 40 mm un 44.700

De 50 mm un 67.500

De 75 mm un 144.000

De 100 mm un 155.000

De 150 mm un 363.500

Tubo cloacal blanco

De 100 mm un 84.000

De 150 mm un 294.000

Tubo roscable blanco agua fría

De 1” un 167.000

De 3/4” un 77.000

De 1/2” un 59.000

Tubo soldable p/ 10kg

De 32 mm, un 57.000

De 25 mm, un 30.000

De 20 mm, un 21.000

Tubo para agua caliente, roscable, 4 capas

De 1/2” un 62.000

CODOS PVC

Codo PVC para desagüe primario

De 50 mm x 45° un 4.000

De 50 mm x 90° un 4.500

De 100 mm x 45° un 9.450

De 100 mm x 90° un 11.150

Codo PVC para el desagüe secundario

De 40 mm x 45° un 1.600

De 40 mm x 90° (buje largo) un 1.550

Caja sifonada cuadrada con rejilla inox

100 x 100 x 50/40

150

Accesorios PVC

Alma doble roscable 1/2” un 875

Anillo de sellado p/ desague 50mm un 2.900

Anillo de sellado p/ desague 75mm un 4.600

Anillo de sellado p/ desague 100mm un 5.000

Buje largo reducción p/ desague 50x40 mm un 2.450

Buje corto soldable 50x40 mm un 4.170

Codo 90° roscable 1/2” un 1.660

Codo reducción 90° roscable 3/4”x 1/2” un 3.350

Desengrasador 250 mm salida 50 un 67.000

Desengrasador 250 mm salida 75 un 98.000

Prolongador p/desengrasador 250x200 mm un 39.000

Prolongador p/caja sifonada 150x150 mm un 7.950

Ramal Y 40 x 45 p/desague secundario un 6.000

Ramal “Y” 100x50 mm p/desague un 16.500

Ramal “Y” 100x100 mm un 28.500

Tapon macho roscab p/desague secund de 1/2” un 690

Tee roscable de 1/2” un 2.600

Tee 3/4” a 1/2” IPS un 3.400

Tee 40x40 mm x 90° p/ desague primario un 4.000

Tee 50x50 mm x 90° p/ desague primario un 7.100

Tee 100x100 mm x 90° desague primario un 18.700

Tubo de descarga de EXTERNA p/ cisterna un 13.500

Tubo de descarga embutida ASTRA p/ cisterna un 15.300

Tubo desague plástico Astra p/ lavatorio un 14.000

Tubo descarga externa Astra p/ lavatorio un 17.300

Union sencilla roscable 1/2” un 1.700

CARPINTERÍA DE ALUMINIO

INDUSTRIA PROCESADORA DE VIDRIOS TEMPLADOS

CARPINTERIA DE PVC

CEMENTO BLANCO

Cemento blanco kg 5500

CEMENTO GRIS

01 Yguazú, 50 kg bls

CERÁMICA ROJA

CERCO ELÉCTRICO

Cerco eléctrico de 4 hilos con hastes de hierro 5/8”

CORTINAS

Cerco de cuchillas galvanizadas colocado

Persianas & Cortinas

TEL.: 021 906 951 - CEL.: 0971 543

(021) 906 951/2 - (021) 328 0572/3

CDE: 061 570 501

CHAPAS

CEL 0971 543 246 - Revista Mandu’a

Chapa termoacústica en medidas estandar

TECNIPANELES

-Paneles con núcleo de PIR

(0986) 802 098 div.comercial@tecnimet.com

-Núcleo de 40kg/m3

-Paneles con núcleo de PIR

-Paneles Trapezoidales y machihembrados.

(0986) 802 098 div.comercial@tecnimet.com

Policarbonato

01 Alveolar 6 mm

02 Mano de obra, colocación

-Paneles con núcleo de PIR -Núcleo de 40kg/m3

-Paneles Trapezoidales y machihembrados.

-Núcleo de 40kg/m3

-Paneles Trapezoidales y machihembrados.

div.comercial@tecnimet.com

03 Estructura metálica con caño 20x30” p/ montaje del policarbonato

Metálicas

ZINC Aluminizada de 0,90 cm ancho (Cincalum)

Chapa Ondulada No 28

01 De 8 pies (2.44m largo)

02 De 12 pies (3.66m

TEL.: 021 906

+(595) 974 502 500

+(595) 986 174225

CHAPAS TERMOACÚSTICAS

CHAPAS TRAPEZOIDALES

CHAPAS ONDULADAS

CHAPAS COLONIALES

CHAPAS LISAS

CALIDAD DE ACEROS PARA SUS OBRAS

www.mvaceros.com.py

ventas5@mvaceros.com.py

CAÑOS

ÁNGULOS PLANCHUELAS

BABETAS FRONTAL Y LATERAL PLANCHUELAS VARILLAS IPN > UPN PERFILES

PLEGADOS PARA PUERTAS ARTÍCULOS DE FERRETERÍA

CIELORRASOS

TEL.: 021 906 951

CEL.: 0971 543 246

CEL 0971 543 246

CDE: 061 570 501 (021) 906 951/2 (021) 328 0572/3

DEPOSITOS DE MADERA

, cepilladas

MANDU’ARA

6,0 - 6,9 m pulg/m

Tabla y puntales para encofrado

Tabla de eucalipto de 1” pulg/m 600

Puntal de eucalipto de 3x3” pulg/m 650

Tirantesde ybyrapyta / kurupa’y

1,0 -1,9 m pulg/m 2.800

2,0 -2,9 m pulg/m 2.900

3,0 - 3,9 m pulg/m 3.400

4,0 - 4,4 m pulg/m 3.500

4,5 - 4,9 m pulg/m 3.700

5,0 - 5,9 m pulg/m 3.800

6,0 - 6,9 m pulg/m 4.200

Machimbres De eucalipto 1/2 x 3”

De pino 1/2 x 4”

DEPÓSITOS DE MATERIALES

Ladrillo común

Tobatí, un 650

Prensado 3 agujeros Ita yvy de 1a, 5x11,5x23,5 cm un 946

Laminado rústico Ita yvy de 1a, 5x11,5x23,5 cm un 825

Laminado Yoayu de 1a un 1265

Yoayu laminadito 5x11 x 23 cm un 949

Prensado 3 agujeros Yoayu de 1a, 5x11,5x23,5 cm un 1.044

Ladrillo hueco

De 6x12x25 cm, 2 caras vistas, 3 tubos, 52 un x m2,

Yoayu de 1ra A, un 904

Ita Yvy de 1ra A, un 1.012

Ita yvy de 1ra B, un 792

De 8x18x25 cm, 6 tubos, 20 x m2

Ita Yvy de 1ra A, un 1.177

De 12x18 x25 cm, 6 tubos, 19 o 28 un x m2

Ita yvy de 1ra A un 1.298

Ita Yvy de 1ra B un 1.254

Yoayu de 1ra un 1.404

Yoayu de 1ra requemado un 1.278

De 18x18x25 cm, 9 tubos , 20 un x m2

Ita Yvy de 1ra A un 2.200

Ita Yvy de 1ra B un 1.716

Ladrillo estructural

Ita Yvy 14x19x14 cm un 1.661

Ita Yvy 14x19x29 cm un 2.937

Ita Yvy 14x19x45 cm un 4.543

Ladrillo sapp de 1a - H5- 12 un x m27x30x25 cm

Ita Yby un 1.606 Yoayu un 1.860

Ladrillo laminado recto - 6x12x25 cm, 52 un x m2

Irene 1ra A un 1.155

Yoayu laminadito 5x11x25 cm un 949

Ladrillo laminado curvo, 15 un x ml

Irene de 1ra un 1.950

Yoayu de 1ra B un 2.169

Ladrillo convoco, recto o inclinado 25un x m2

Ita Yvy 19x19x11 cm un 2.013

Irene, 18x18x12 cm un 2.650

Irene, 25x25x12 cm un 4.555

Yoayu 19x19x10 cm un 2.644

Ladrillejos 52 un x m2

Yoayu 1ra un 765

Yoayu 2da un 626

Ladrillo refractario 30 un x m2 , 6x12x25 cm

Ita Yvy de 1ra un 5.071

Yoayu 1ra un 6.148

Ladrillo klinker 44 un x m2 , 10x20x3,5 cm

Ita Yvy de 1ra un 1.804

Yoayu 1ra un 2.397

TEJAS

Teja española prensada de 1ra

Yoayu-26 un x m2

De 1ra A un 1.809

De 1ra B un 1.682

De 1ra fogueada un 1.455

De 1ra requemada un 1.328

De 2da un 1.328

De 1ra A extrusada un 1.303

Teja ROMANA o portuguesa Yoayu-

De 1ra A un 2.277 De 1ra B un 2.024

Teja FRANCESA YoayuDe 1ra B

Tejuelones - 9 un x m2

Yoayu de 1ra A un 2.574

Yoayu de 1ra B un 2.321

Ita Yvy de 1ra A un 2.288

Ita Yvy de 1ra B un 2.046

Tejuelitas - 30 un x m2

Ita Yvy de 1ra B un 473

Yoayu 1ra B un 658

Layotas

De 18x18 cm, 28 un x m2

Yoayu 1ra un 582

De 30x30 cm, lisa, 10 un x m2 un

Ita Yvy de 1ra un 1.914

Ita Yvy de 1ra B un 1.760

De 30x30 cm, rugosa, 12 un x m2 un

Ita Yvy de 1ra un 1.969

Ita Yvy de 1ra B un 1.826

De 28x28 cm, lisa, 12 un x m2

Yoayu de 1ra A un 1.666 Yoayu de 1ra B

Yvy de 1ra

Ita Yvy de 1ra B

De 28x28 cm, rugosa, 12 un x m2

Yoayu de 1ra A un 1.666 Yoayu de 1ra B antideslizante un 1.540

Ita Yvy de 1ra un 1639

Ita Yvy de 1ra B un 1.518

Zocalos de layota de 1ra A -10 cm de ancho Yoayu de 28 cm

1ra

Varios

Plástico para techo 200 micrones m2 4.000

Pileta granÍtica - 1 bacha 1,00x0,50 m un 95.000

Pileta granÍtica - 2 bacha 1,40x0,50 m un 125.000

Cascotillo cerámico m3

Asfalto para aislación 3,6 lt un 60.000 Poste de Karanday un 120.000

TEL.: 021 906 951

(021) 906 951/2

CEL.: 0971 543 246

(021) 328 0572/3

CDE: 061 570 501

CEL 0971 543 246

DIVISORIAS SANITARIAS
- Revista Mandu’a

DRENAJES

ELECTRICIDAD

Columna de entrada (Materiales varios)

01 Aislador roldana B.T. 72x72mm, un 3.000

01 Aislador retención 0,50 un 3.500

02 Bulón p/ madera 3/8 x 3” un 1.000

03 Caño de acero ¾” x 3 m, un 8.500

04 Caño de acero 1” x 3 m, un 15.000

05 Caño galvanizado 2” x 5,8 m, un 125.000

06 Caño galvanizado 2 ½” x 5,8m, un 210.000

07 Cruceta p/ pre emsamblado 2” monofásica un 3.000

08 Cruceta p/ pre emsamblado 2 ½” Trifásica. un 3.500

09 Curva galvanizada 1 ¼”, un 8.500

10 Fondo de madera monofásico, un 6.000

11 Fondo de madera trifásico, un 6.000

12 Tapa monofásica Ande, un 8.500

13 Tapa trifásica Ande, un 10.000

14 Unión reducción 2” x 1”, un 9.500

15 Unión reducción 2 ½” x 1 ¼”, un 11.500

16 Curva galvanizada 1”, un 24.970

Cinta aisladora

01 Cinta auto soldable 3M 19mm x 2 mts un 7.500

Caño corrugado nacional

01 De 1/2”,

02 De 5/8”,

03 De 3/4”,

04 De 1”,

Caño plástico negro nacional (electroducto) 01 De 3/4”,

02 De 1”,

ESTRUCTURAS

FALLA DE PAVIMENTOS

FERRETERÍA

01 Balde albañil de plástico, un 10.000

02 Cemento de contacto, lt 23.500

03 Kerosene, lt 10.000

04 Masilla común kg 15.000

05 Solvente para cemento de contacto, lt 15.000

FUMIGACIONES

01 Fenoina, insecticida y fungicida p/maderas (Casarino) LT. 32.000 GAVIONES

HERRERÍA

Aberturas

Barandas de balcón

01 De hierro sencilla 1,00m, pasamanos de 60x25mm en chapa doblada Nº14 colocación incluida dentro del radio urbano de Asunción

Balancines sin colocación - A partir de 1 m2

Balancín fabricado con ángulo 5/8 y T 3/4x1/8, hoja de 0,20 m,

Balancín fabricado con ángulo 3/4 y T 7/8 x 1/8,

metálicas de enrollar - A partir de 10 m2

y montaje de cortinas

de chapa N° 18 con puerta

Escaleras 01 Caracol diámetro 1,20 m, estructura de hierro con baranda, peldaños, con 1 mano antióxido y colocación incluida, por metro de altura,

Reja para ventana

01 Reja artística sencilla, con marco de ángulo de 3/4 x 1/8”, varilla de 10mm y dibujo rombo con planchuela de 3/4 x 3/16, m2 198.000

02 Idem anterior reja artística dibujada,

HERRAJES

Varios

01 Falleba de arrimar cromada, un 25.500

02 Ficha de 3 agujeros brasileña, reforzada, par 9.000

03 Ficha de 5 agujeros brasileña, reforzada, par 10.000

04 Pasador a palanca de embutir cromado de 150 mm un 18.000

05 Pasador a palanca de embutir cromado de 200 mm, un 25.000

06 Tirafondo galvanizado de 3/8x5”, un 1.500

07 Tornillo 1x7” caja de 144, un 150

08 Varilla de hierro para falleba de 1,20 m, un 24.500

09 Varilla de hierro para falleba de 1,50 m, un 30.000

HIDRÓFUGOS

Pennsylvania

1 Ceresita, 20 kg, kg 6.150 Casarino

1 De, 5 kg un 29.500

HIERROS

HORMIGÓN

Hormigón Elaborado

* Comprende elaboración, transporte, bombeo, toma de muestras y rotura en laboratorio. Precios al contado

HOJALATERIA

Chapa galvanizada

Canaleta embutida N° 24

60 cm,

50 cm,

moldurada 40 cm

N° 24

Canaleta moldurada 33 cm

N° 26

N° 28

IMPERMEABILIZANTES

Casarino

1

3

LABORATORIO DE ENSAYOS

Mampara

Accesorios

Adhesivos Brascola Adhesivo epoxi aralbras

LOSA PREFABRICADA

Vigueta de Hº pretensado y ladrillo (Losa Rap)Puesto en obra

PreLosa pretensada y ladrillo Rap (PreRap

m) - Puesto en obra

MÁRMOL Y GRANITO

Vigueta de cerámica armada con cielo raso de hormigón visto incluido, a retirar de fábrica. (Listalosa)

Revista Mandu’a

MAMPARAS

01 Mampara ciega

02 Mampara vidriada

03 Accesorios y herrajes p/ puerta simple, un 280.000

(021) 906 951/2

TEL.: 021 906 951

(021) 328 0572/3

CEL.: 0971 543 246

CEL 0971 543 246

CDE: 061 570 501

MALLA ELECTRO SOLDADA

Garelli

1 De diámetro 4,2 mm, para cubrir 15 m2 un

MALLA DE FIBRA DE VIDRIO

Casarino

Para refuerzo de revoques en rollo de 50 m²

5mm x 5mm x 75gr/m2

5mm x 5mm x 110gr/m2

10mm x 10mm x 110gr/m2

3,17mm x 3,17mm x

Tela tramada de poliester

P/ refuerzo de pintura y cementicios

Tela tramada 1m x 50m

MEMBRANAS ASFÁLTICAS

Casarino

Casarino con Aluminio rollo de 10 m

1 De 3

2 De 4 mm

Casarino sin Aluminio rollo de 10 m

1

2

3

PIEDRAS

Para fundaciones y hormigón

01 Piedra bruta blanca m3 150.000

02 Piedra bruta blanca, carga 5 m3 un 750.000

03 Piedra triturada IV tn 110.000

04 Piedra triturada V tn 120.000

05 Ripio, rojo m3

Adoquin de Piedra

Piedra para borde de piscinas

Piedras para

PILOTES

PINTURAS Para

Para

Pai Puku para pintura

MEJOR QUE LA IMPORTADA Y MUCHO MAS BARATA

MEJOR QUE LA IMPORTADA Y MUCHO MAS BARATA

Pai Puku S.A. - Yrendague 136

Pai Puku S.A. - Yrendague 136

M. Roque Alonso - TEL: (021) 752507, WSP: (0981) 112549

M. Roque Alonso - TEL: (021) 752507, WSP: (0981) 112549

PISOS Y REVESTIMIENTOS

Baldosas Calcáreas

Base Gris

01 De 20x20, 15x30 o 25x25 cm,

03 Zócalo 10x30 cm

Base Blanca

01 De 20x20, 15x30 o 25x25 cm,

03 Zócalo 10x30 cm

Mosaico granítico para interior

Base Gris semi pulido

01

Plancha o escalones

Base Blanca semi pulido 01 De 30x30 cm

04 Plancha o escalones

Mosaicos para exterior

Granito lavado

01 De 30x30 cm, blanco

03 Cargado en obra,

Mosaico granítico anti deslizante 01 De 30x30 cm gris

Equipa

Tránsito - Antideslizante

Ripado Para Revestido

01 De 0,21 X 2,20 M

02 De 0,21 X 3 M

PERFILES WPC

Largo: 3.00 mt 01 De 50 x 50 mm

180.000 02 De 90 x

PISOS SOBREELEVADOS

TEL.: 021 906 951

(021) 906 951/2

CEL.: 0971 543 246

(021) 328 0572/3

CDE: 061 570 501

CEL 0971 543 246

PISOS VINÍLICOS

TEL.: 021 906 951

CEL.: 0971 543 246

(021) 906 951/2 (021) 328 0572/3

CDE: 061 570 501

CEL 0971 543 246

PORTONES

A CONTROL REMOTO

Incluye: motor, placa, mecanismo, accesorios, 2 x control remoto y colocación.

Para portón corredizo

Para portón basculante

Portón fabricado en chapa plegada Nº 20 y caño cuadrado 30x30 con pasador portacandado, cerradura y 1 mano antióxido

Hormigón pretensado, *Garelli puesto en obra Dinteles Garelli

De 10 x 10

Postes Garelli De

Tirantes 2 x 5” con cola de pato Garelli De

Tirantes 2 x 5 recto Garelli

PUERTAS AUTOMÁTICAS

De 1,70 m, italiana con hidro, un 7.000.000

Botiquín

Astra embutido blanco A33-BR1 un 200.000

Astra de sobreponer, A34 - BR1 un 220.000

ASTRA 44 x 58 x 11 cm - colgante un 560.000

Astra Brasilia LB12/S1 un 400.000

Grifería

Para baño

TEL.: 021 906 951

(021) 906 951/2

FV - Linea Allegro cromo

CEL.: 0971 543 246

(021) 328 0572/3

Ducha, 103/15, un 1.050.000

Bidet , 295/15 un 884.000

CEL 0971 543 246

CDE: 061 570 501

REVESTIMIENTOS ACÚSTICOS

Lavatorio, 207/15 un 765.000

FV - Clásica 20

Ducha, 103/20 un 811.000

Bidet, 293/20 un 639.000

Lavatorio, 207/20 un 636.000

FV - linea 61 - plus

Ducha, 103/61 un 958.000

Bidet, 295/61 un 829.000

Lavatorio, 207/61, un 760.000

Llave de paso con campana de 1/2” FV

Línea clásica 479/20, un 87.700

Linea 479/61, un 120.000

TEL.: 021 906 951

(021) 906 951/2

Linea Allegro 479/15, un 129.000

CEL.: 0971 543 246

(021) 328 0572/3

CEL 0971 543 246

CDE: 061 570 501

SANITARIOS

Cerámicos Piso/Pared

Cecafi 32x57 cm, Tellus Alba m2 34.000

Cecafi 45x45 cm, Provence m2 40.600

Cecafi 45x45 cm, Estocolmo m2 42.600

Forte Havana white 31x31 cm, m2 44.400

Forte Havana white plus 31x31 cm, m2 47.000

Cecafi 38x75 cm, Catena beige

Porcelanato 60x60 cm, desde

Adhesivos para azulejos, ceramica y pisos

Pennsylvania impermeable.(B/20kg) kg 1.198

Pennsylvania porcelanato flexible.(B/20kg) kg 2.575

Pastina

Pennsylvania univ.Siliconada castaño (1kg) kg 9.702

Pennsylvania univ.Siliconada blanco (1kg) kg 10.050

Piletas de acero inoxidable

Tramontina

De 0,80x0,50 m , 1 bacha, lado derecho un 210.000

De 1,00x0,50x0,13 m , 1 bacha, lado derecho un 276.000

De 1,00x0,50x0,13 m , 1 bacha central un 371.000

De 1,20 x 0,50x0,13m , 2 bachas, un 485.000

Sopapa Astra, un Bañeras

De 1,60 x 0,70 x 0.40 m, acrílica, un 1.400.000

De 1,70 x 0,70 x 0.40 m, acrílica, un 1.600.000

De 1,80 x 0,80 m con hidro, ASTRA un 9.200.000

Para cocina / agua fria y caliente FVEmbutida

Línea clásica, 403/20 jgo 479.000

Externa

Línea clásica , 409/20 jgo 850.000

Línea 61, 409/61 jgo 935.000

Línea clásica , 416/20 jgo

De mesada

Línea 61, 416/61 jgo 775.000

Línea clásica , 416/20 pico alto jgo 714.000

Llave de paso FV

De 1/2” , cromo sin campana 475/13, un 66.500

De 1/2” , cromo con campana 479/20, un

De 3/4” , cromo sin campana 475/19, un 101.000

De 3/4” , cromo con campana 479/20, un 130.000

FV bronce 1/2” 471 un 58.000

FV bronce 3/4” 471 un 84.000

Para agua fría - Para lavatorio - canilla FV

cromo : Pico alto 221 un 115.000

226/15 un 235.000 226/61, un 271.000

Para bidet

Linea clásica FV 295/20 un 370.000

Para patio

Canilla FV 1/2”

Bronce 430, 1/2” un 49.000

Cromo sin pico 432, un 106.000

Bronce pico manguera 437 , un 124.500

Idem bronce un 107.000

Varios

Adhesivo plástico p/ PVC , pomo 75 cc, un 9.200

Idem anterior 850 cc, un 62.600

Brazo metal p/ ducha eléctrica un 12.500

Cinta teflon 3/4 x 25 m, un 5.950

Cinta teflon 3/4 x 50 m, un 9.600

Cisterna plastica (blanco y colores), un Conexión cromo 1/2” x 0,40 cm, MH, FV, un 40.800

Idem 1/2’ x 0,30 cm, MH, un 37.000

Conexión plastica 0,30 m un 7.000

Conexión plastica 0,40 m un 7.500

Ducha electrica Lorenzzeti Maxi 5400 w, un 127.500

Ducha teléfono DUCHAMATIC FV 119, Enchufe de plástico externo p/ inodoro

Pasta lubricante 400 g

Prolongador FV cromo 1/2 x1, Prolongador FV cromo 1/2 x2, Roseta FV cromo 1/2” - 452/13

Sellador p/ caño cuatricapa , 125 cc , Sella rosca , 125 cc

Solucion limpiadora , frasco 200 cc , Sopapa p/ pileta Astra sopapa p/ lavatorio FV cromo 7/8” 246.01

Sopapa FV cromo p/ bañera

Soporte gancho p/ calefón

Soporte con tarugo p/ calefón

Tapa p/inodoro TPQ Orion

Tapa p/inodoro TPK Orion

Tarugo plástico 10 mm

Toallero aro cromo 162/33 FV, Tornillo de bronce p/ fijar artefactos

SELLADORES

Casarino

Tapagoteras 1kg

Tapagoteras 4kg

Pu 40 multiuso 400gr Negro, Gris PU universal 80gr

Mapeflex MS Crystal Transparente

VARILLAS

1 Alambrón 4,2 mm x 12 m, un 20.000

2 Varilla conformada AP 420, kg s/ cotiz.

3 Varilla conformada AP 500, Kg 10.000

4 Varilla torsionada, kg s/ cotiz.

5 Varilla lisa, kg 11.500

TEL.: 021 906 951

CEL.: 0971 543 246

CDE: 061 570 501

VIDRIOS

J. Román S.A.

- Revista Mandu’a

VIDRIOS

Ventanas: de 2 hojas (1 fija + 1 corrediza), en vidrio templado 8mm con perfiles de aluminio anodizado. Incoloro Color

Puerta Batiente: de 1 hoja, en vidrio templado 10mm, con perfiles de aluminio anodizado.

(021) 906 951/2 (021) 328 0572/3 CEL 0971 543 246 INDUSTRIA PROCESADORA DE VIDRIOS TEMPLADOS

Vidrios templados

TEL.: 021 906 951

CEL.: 0971 543 246

CDE: 061 570 501

Revista Mandu’a - 117

Turn static files into dynamic content formats.

Create a flipbook
Issuu converts static files into: digital portfolios, online yearbooks, online catalogs, digital photo albums and more. Sign up and create your flipbook.