Buurtinformatiesessie
NIEUWBOUW VESALIUS
donderdag 13 februari 2025


![]()
donderdag 13 februari 2025


1. Bouwprogramma
Voorstelling Zorgbedrijf Brasschaat
2. Impact voor de buurt
3. Verdere verloop 4. Communicatie buurt 5. Cultuurprogramma gemeente Brasschaat
6. Zijn er nog vragen?

Huidig aanbod:
Woonzorgcentrum Vesalius: 132 erkenningen
Dagverzorgingscentrum Brasschaat: 15 klanten
Assistentiewoningen Balderhof: 20 flats
> beschikbaar tot 30 juni 2032
Vesalius verhuist van ziekenhuis naar woonomgeving
Kleinschalig wonen in het woonzorgcentrum

Waar gaan we bouwen?


Renovatie van het huidige Sint Jozef-gebouw en de kapel: dagverzorgingscentrum Brasschaat voor 15 personen ondersteunende functies woonzorgcentrum Vesalius cultuurprogramma gemeente Brasschaat
Nieuw woonzorgcentrum met 132 erkenningen
35 parkeerplaatsen waarvan 32 ondergronds (volgens verordening en mobiliteitstoets)
Buitenaanleg met maximaal behoud van open ruimte
Aangesteld voor de opmaak van het
masterplan: Van Roey NV – Osar Architects NV
Bestaande inplanting

A u g u s t l i j n s l e i
VanHemelrijcklei
Toekomstige inplanting

A u g u s t l i j n s l e i

VanHemelrijcklei

Dodenhuisje
Kapel cultuurprogramma
Sint-Jozef
dagverzorgingscentrum ondersteunende functies woonzorgcentrum

Gebouw B leefgroepen





Gebouw A leefgroepen

inrit parking
Zicht vanuit Augustijnslei:
Uitzicht blijft behouden
Kapel en Sint Jozef worden gerenoveerd met respect voor het erfgoedkarakter


Sfeerbeeld binnengebied met zicht op Sint Jozef



Voor 15 personen: idem zoals heden










Zicht vanuit Van Hemelrijcklei:
Nieuwbouw van 3 verdiepingen
Materialisatie: volledig metselwerk


Zicht vanuit OLO Rotonde:
Nieuwbouw van 2 verdiepingen
Materialisatie: combinatie van metselwerk en pleister


Materialisatie: combinatie van metselwerk en pleister
Zicht vanuit Van Hemelrijcklei: 3 verdiepingen



Gevelfragment
Materialisatie: combinatie van metselwerk en pleister
Zicht vanuit OLO Rotonde: 2 verdiepingen



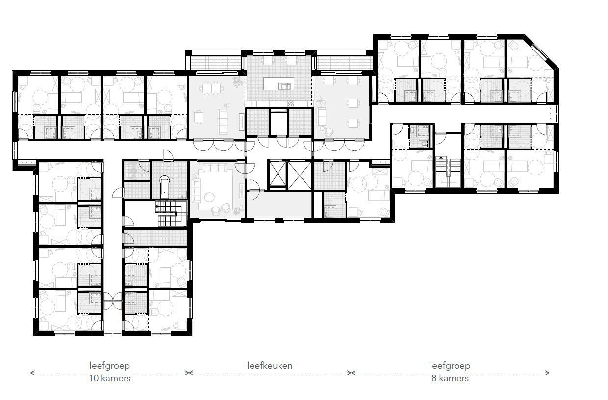
Kleinschalig wonen in het woonzorgcentrum
Leefgroepen van 8 tot 11 bewoners met eigen leefruimte
Koppeling 2 leefgroepen met gemeenschappelijke keuken
Korte gangen en korte loopafstanden
Grote open leefruimtes met veel daglicht en zicht naar buiten
Elke leefgroep heeft een eigen ‘inkom’
Mogelijkheid tot koppelkamers
Comfortplus kamers (eigen sanitair)
Inrichting kamer naar keuze bewoner
Koken op de afdelingen
Maaltijden bereid in de keuken van de leefgroep
Samen koken: voor en met de bewoners










Performante buitenschil
Isolatie
Zonwering
Buitenschrijnwerk
Zonnepanelen
Gezond en aangenaam binnenklimaat door ventilatiesysteem
Gasloos verwarmen door geothermie
In onderzoek voor de toekomst: warmtenet voor de gehele Zorgdriehoek
Waterhuishouding
Hemelwater opvangen voor hergebruik
Hemelwater bufferen via groendak en wadi
Gesloten bouwput en aanstelling bomenspecialist om bestaande bomengordel te behouden
Geen technische installaties op het dak
Aandacht vo landschapsp openbaar ka
Levendige b
Maximaal be bestaande b
buurtweg
Behoud Mar
Parkeren op terrein (ond A u g u s t l i j n s l e i



Cultuur
Dagverzorgingscentrum
Leefgroepen A u g u s t l i j n s l e i



Ondergrondse parking



laden en lossen
Sint Jozef en kapel

laden en lossen gebouw A en B A u g u s t l i j n s l e i

afvalstraat ingebed in groene zone


Maximaal behoud van bestaande bomen en buurtweg
We planten méér nieuwe bomen aan dan we rooien





Huidige groenvoorziening:
Te rooien bomen aangeduid in rood
Te verplaatsen boom naar Arboretum in oranje
Toekomstige groenvoorziening: Nieuw aan te planten: hoogstammen, bloesembomen en grote meerstammen
Zicht blijft behouden
Hellingen en groen worden vernieuwd


Bestaand gevelaanzicht Augustijnslei

Uitbreiding groen door afbraak aanbouw


Toekomstig gevelaanzicht Augustijnslei


Bestaand gevelaanzicht Van Hemelrijcklei

open zicht
Toekomstig gevelaanzicht Van Hemelrijcklei

ondergrondse parking

Behoud buurtweg en groenbuffer

Nieuw gebouw staat 10 m verder van de straat
Maximale bouwhoogte blijft gelijk
Bestaande aanbouw
Sint Jozef



Bestaande doorsnede Van Hemelrijcklei
Nieuw woonzorgcentrum
Toekomstige doorsnede Van Hemelrijcklei + 10 meter
3 verdiepingen
Bestaande appartementen
3 verdiepingen onder schuin dak

Van Hemelrijcklei

Van Hemelrijcklei

Bestaande appartementen
3 verdiepingen onder schuin dak
Groenbuffer en buurtweg blijven behouden
Buurtweg

Bestaande doorsnede Prins Kavelhof




Buurtweg



Om het project te realiseren zullen we twee stedenbouwkundige vergunningen
indienen:
een 1ste voor de sloop
een 2de voor de bouw van het project
Prognose timing indienen vergunning: eind februari 2025
Prognose timing verkrijgen vergunning: september 2025
Prognose timing start bouwwerken: oktober 2025
Prognose timing verhuis: zomer 2027

De eerstvolgende buurtinformatievergadering zal georganiseerd worden na het verkrijgen van de vergunning (prognose verkrijgen vergunning: september 2025)
Daarna organiseren we ca. elke 6 maanden een buurtinformatievergadering
Bij piekmomenten in werfverkeer/werkzaamheden worden buurtbewoners telkens vooraf verwittigd Zorgbedrijf Brasschaat maakt voor specifieke situaties afspraken met de verkeerspolitie voor de verkeersafwikkeling
Werfverkeer: maandag tot vrijdag
Werkuren: 6 – 18 uur
We proberen de hinder voor de buurt zoveel mogelijk te beperken
Werfinrichtingsplan op een volgende buurtinformatievergadering





Erwin Callens
Voorzitter
Zorgbedrijf Brasschaat
Karina Hans
Ondervoorzitter
Zorgbedrijf Brasschaat Schepen sociale zaken

Dirk Bervoets
Algemeen directeur
Zorgbedrijf Brasschaat

Ellen Mast Directeur vastgoed en investeringen Zorgbedrijf Brasschaat

Niels Monnier
Buurtzorgmanager
Zorgbedrijf Brasschaat

Lara Meeus Projectmanager
Vastgoedontwikkeling
Zorgbedrijf Brasschaat
Vanaf 14 februari vind je de presentatie op
www.zorgbedrijfbrasschaat.be www.brasschaat.be

