Zehra Çelik Portfolio

Page 1


01

BROOKLYN NEXUS Graduation Studio Project 2024

(pg. 3-7)

02

03

04

S-HUB IZMIR NATIONAL COMPETITON 2023

‘‘PARTICITAPATION’’

(pg. 14-15)

VISITOR CENTER and V-FARM 3rd Year Studio Project 2023

(pg. 8-10)

Hayat Youth Center National Student Competition 2023

‘‘SECOND PRIZE’’

(pg. 11-13)

05

ERKUT 1935 NATIONAL COMPETITON 2024

‘‘THIRD PRIZE’’

(pg. 16-17)

06

BEGINNIG,LIVING,ENDING Ziya Tanalı Competition 2024

‘‘FIRST PRIZE’’

(pg. 18-19)

01

BROOKLYN NEXUS |PERFORMANCE ART

and DANCE CENTER

‘‘ GRADUATION PROJECT’’

Brooklyn is one of the districts of New York known for its dynamic and multicultural atmosphere, and this project aims to further strengthen the artistic side of the district by combining this richness with dance and performance arts. The project goes beyond being just an performance art center, establishing an organic relationship with the surrounding land and respecting the context of Brooklyn.

This center offers a place where artists can showcase their creativity, those interested in performing arts can come together and interact with the community. It also provides other dance and performing arts centers in Brooklyn with opportunities for new collaborations and events. The architectural style and material selection of the buildings are carefully determined in accordance with the character of the district and adapt to the site context. This project aims to contribute to the future of the neighborhood by creating an innovative and inspiring art environment while preserving Brooklyn’s artistic and cultural heritage.

YEAR : 2024

DESIGNER: ZEHRA ÇELİK

PROJECT TYPE: GRADUATION PROJECT

‘‘The main goal of the project is to involve people passing by on the street in social activities and make open spaces more lively. The design developed for this purpose draws attention especially with the use of amphitheatres. These amphitheatres attract passers-by and encourage them to participate in events.

The fact that amphitheatres are meeting points, especially for dancers, contributes to the strengthening of social ties by increasing people’s interaction with dance. Additionally, thanks to the location of these theaters, it is also possible to watch rehearsals and practices in dance studios. This allows passers by on the street to not only watch the performances, but also witness the artist’s creative processes.

In this way, open spaces cease to be just people’s crossing points and turn into places for social interaction and performance art exhibition. This design approach makes city life richer and more interactive, enabling people to come together and strengthen social ties.’’

SITE SELECTION

This dance and performing arts center was chosen to provide easy access to other dance schools and arts centers in Brooklyn. This location aims to bring together Brooklyn’s dance and arts community by allowing dancers and artists to meet, collaborate, and provide easy access for anyone interested in the arts.

AXONOMETRIC VIEW

SITE ANALYSIS

The land is 5300 square meters and is located in a very good location in terms of public transportation access. One side of the land overlooks the main street.

EXPLODED FUNCTION DIAGRAM

FACADE DESIGN

‘‘This facade design has a dynamic and impressive appearance. The curves, fluidity and rhythm of the dance movements add aesthetics to the structure. One of the main elements of the design is the transformation of the folds created by dance movements into architectural form. The combination of lines, curves and surfaces on the facade of the building creates the impression of organic movement, like the flow of a dance.’’

VERTICAL FARM|VISITOR

‘‘ 3rd YEAR SEMESTER STUDIO’’

CENTER OF SMYRNA

‘‘In this project, it was desired to create a space where the society could participate. With the exhibition areas created in the Visitor Center, it was aimed to introduce the history of Bayraklı by exhibiting the historical artifacts from the Smyrna mound. In addition, with the dormitory and office sections created, an efficient working area was created for the excavators in this mound area. In addition, in order to continue Smyrna’s Agricultural past, a vertical farming area was created in this area, giving the chance to create an agricultural area within the city. The products grown in this area are offered for sale in the market in the building. In addition, this area was designed as an observable environment by the people who come to visit this place. Moreover, there are workshop areas in this area where the people living here can learn the vertical farming structure.’’

YEAR: 2023 SPRING SEMESTER

DESIGNERS: ZEHRA ÇELİK, GOKALP KALFA

PROJECT TYPE: Semester Project

ENGAGEMENT: Design, Develop and Drafting

‘‘Large and uninterrupted areas were created in the exhibition part of the building using the space frame technique. In addition, the slope of the roof, which emphasizes the route inside, facilitated the collection of rainwater. The building differentiates itself within the exhibition, offering visitors a route and also features a variety of social and private spaces to encourage the participation of the local community.’’

DESIGN IDEA

VERTICAL FARM CYCLE

‘‘In addition to being a visitor center, the project also serves as a sustainability research and development center. The project, whose main function is the vertical farming unit, has a number of sustainable features. Features such as natural ventilation, the use of vegetal elements in the facade design, and the integration of solar panels are part of this sustainable approach’’

SYSTEM SECTION

EXPLODED FUNCTION DIAGRAM

‘‘Large and uninterrupted areas were created in the exhibition part of the building using the space frame technique. In addition, the slope of the roof, which emphasizes the route inside, facilitated the collection of rainwater. The building differentiates itself within the exhibition, offering visitors a route and also features a variety of social and private spaces to encourage the participation of the local community.’’

V-FARM and VISITOR CENTER

03

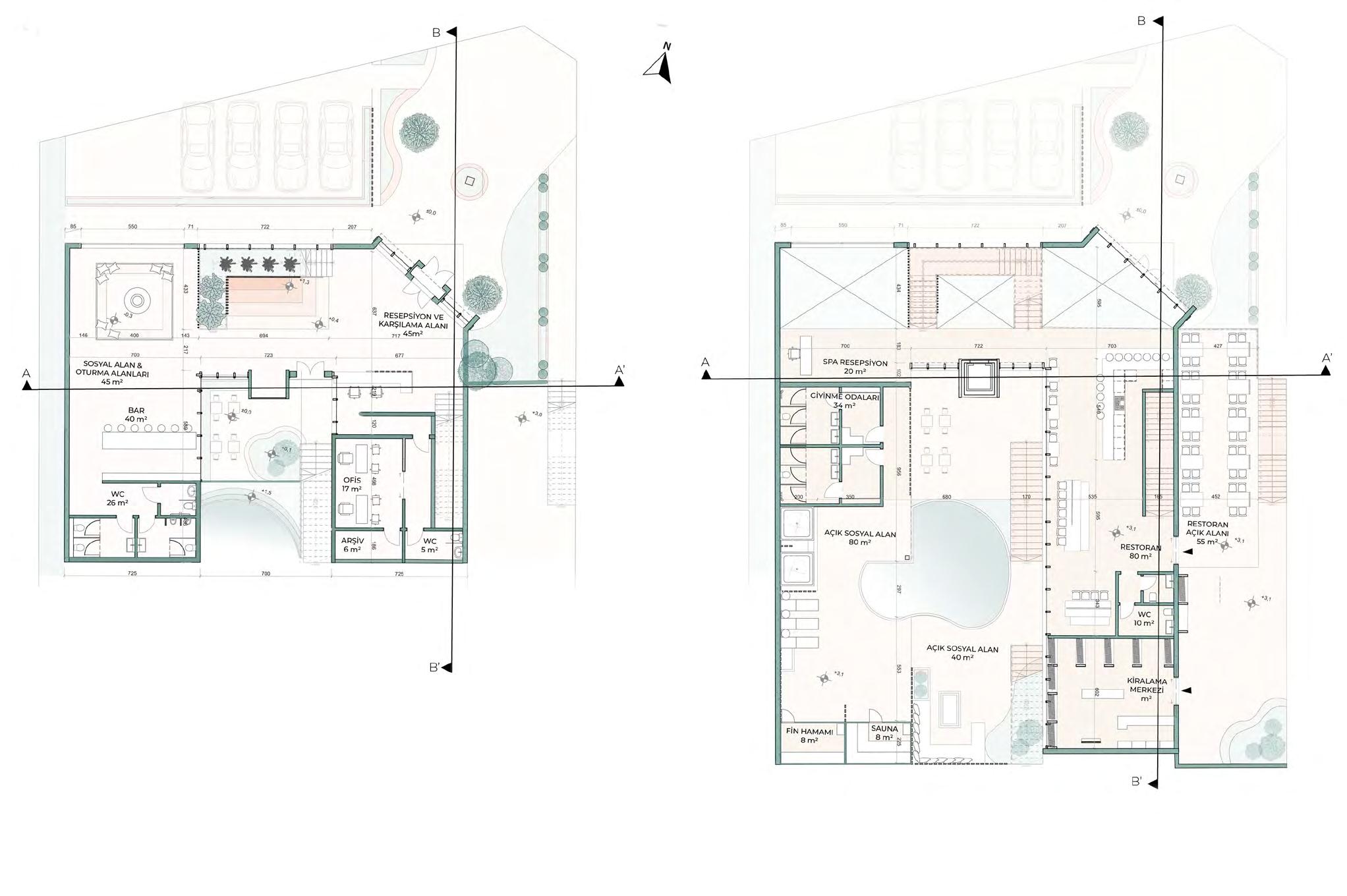
HAYAT|YOUTH CENTER

‘‘NATIONAL STUDENT COMPETITION WINNER (2nd Prize) ’’

‘‘The Hayat Hotel is located in Bolu, a city with a unique atmosphere and climate. It serves as the first stop for visitors taking the Kartalkaya shuttle service, providing them with a unique experience showcasing the beauty of Bolu in all four seasons. The hotel’s dynamic and lively shell connects the interior and exterior identity of the project, forming a new character and identity for the Hayat Hotel.

The semi-open spaces created between the building and the shell have a permeable function, providing visitors with a new collective view in urban memory and a new intersection between the environment and the building. The Hayat Hotel aims to fill the gap in areas where visitors can adapt to the climate of the region and create good memories in Bolu before experiencing skiing, going beyond winter sports to highlight the beauty of Bolu in all four seasons.’’

YEAR:2023

PROJECT TYPE: National Architectural student competiton proposal

DESIGNERS: GOKALP KALFA, ZEHRA ÇELİK, SELIN TEMIZ, EMIRHAN DUGRAL, SERTAC ERBILGIN

ENGAGEMENT: Design, Research and Drafting

SITE ANALYSIS

ROAD SUGGESTONS

SHELL | A dynamic and mobile building core, the shell, that connects the internal and external identity of the project. Giving Hayat a new character and identity, the veil creates a context that surrounds the building. A new collective view in urban memory and a new intersection between the environment and the building. The semiopen spaces formed between the building and the shell gain a permeable function thanks to the tears in the façade.

COURTYARD DIAGRAM

S-HUB IZMIR|SUSTAINABILITY CENTER

‘‘NATIONAL COMPETITION PARTICIPATION’’

‘‘The Izmir Sustainability Center we propose proposes a structure that is almost a manifesto in itself, with both its physical existence and conceptual content, like Noah’s Ark. The carrier system and other structural elements, which consist of approximately 60% of wood and its derivatives, adopt the primary use of natural and sustainable materials. The building’s strategy in material use is based on the reinterpretation of local and traditional building practices with contemporary technologies. In addition, it is inspired by the climate and living practices specific to Izmir by establishing an unusual balance in the open/closed space setup (sponge building). These critical choices are seen as a consistent and sincere statement of attitude so that the structure can truly fulfill its idealistic function.

In today’s world, in an environment facing constant crises, hundreds or even thousands of Noah’s Arks are needed for every city, community and individual to cope with different crisis scenarios. For this reason, more resources need to be allocated to mechanisms such as the Izmir Sustainability Center, which may not be immediately adopted by the citizens but can fulfill their public function in the long term.’’

YEAR : 2023

PROJECT TYPE: National architectural competition proposal

DESIGNERS: STUDIO EVREN BASBUG, GOKALP KALFA, ZEHRA ÇELİK

Engagement: Research, Drafting and Diagramming

EXPLODED MATERIAL SELECTION

STRUCTURAL SYSTEM

‘‘The floors, structural elements and facade cladding on the above-ground levels are made of wooden materials. Cork was used for insulation. Approximately 60% natural and renewable resources were used. Stacked stone is purchased from local sources, reducing environmental impacts. Wooden materials made the structure light and reduced the use of concrete. This reduced the negative effects.’’

05 THE JOURNEY OF THE FABRIC

|ERKUT 1935

‘‘ NATIONAL COMPETITION WINNER (3rd Prize)’’

Sümerbank Cloth Factory, established in Kayseri in 1935, has both historical and cultural importance. It is a prominent building. Within the scope of a new housing project located opposite this area, the factory to keep his memory alive and in line with the theme of “A Window to the Past, A Look to the Future” regulations are intended to be made. The project, referring to Sümerbank Cloth Factory, using various weaving and fabric themes in landscape areas and entrance circulation areas designed. Children’s playgrounds, public lecture hall, vertical farming areas and multi-use cubes in the landscaping area. It has been designed for a wide variety of usage areas such as. These areas both increase social interaction and designed to promote sustainable lifestyles. Also, multiple uses innovative designs such as cubes and pedestrian axis enrich the aesthetics and functionality of the area.

The exhibition area within the scope of the project is located indoors and is designed by Sümerbank Cloth. It provides information about the history of the Factory and its contributions to the region. This exhibition area offers visitors. It offers the opportunity to better understand the historical and cultural value of the factory. In the project, a modern and functional living space for the future is created while preserving the heritage of the past was aimed to be created.

YEAR : 2024

DESIGNER: ZEHRA ÇELİK, GÖKALP KALFA, SERTAÇ ERBİLGİN

ENGAGEMENT: Design, Develop and Drafting

journey..

In the project, a modern and functional living space for the future is created while preserving the heritage of the past. was aimed to be created. The memory of Sümerbank Cloth Factory, the fabric and weaving used.It adds both aesthetic and cultural richness by integrating into the space with its themes. Project, to both local residents and visitors with landscaping arrangements and interior designs.It aims to connect with the past and present a vision of the future. In this direction. Equipping the area with various functional and aesthetic elements ensures that the project theme is effectively ensures its implementation.

06

BEGINNIG,LIVING,ENDING |Ziya

Tanalı Competition ‘‘ NATIONAL COMPETITION WINNER (1st Prize)’’

Güzelyalı beach had become idle and abandoned over the years. As the coast became dysfunctional and people moved away, the region became lonely and silent. However, there was a call rising from the shoreline: to live. This project represents the revitalization and transformation of the waterfront.

In the beginning, nothing had changed on the beach; sea, sand and timber were the same. But as people returned, the place gained new life. Children started building sand castles, couples walked along the beach, swimmers and surfers brought the sea back to life. Sahil regained his lost soul. For people, this beach had become a livable and enjoyable place again.

Over time, this revival ended and nature took back what was hers. The beach, where people gave life again, became lonely once again. Now only one lighthouse remained standing; everything else was under water. But the lighthouse tower under the water offered a new home to sea creatures and shed light on their lives. The project offers a narrative that emphasizes the coast’s cycle, transformation and continuity of life between humans and nature.

YEAR : 2024

Today, lonelier swim in surfers shore is abandoned, and with a moment nothing has materials are it has but has sandcastles, surfers reason to its own. There was under illuminated the throughout its gave life material was

Today, lonelier swim in surfers shore is abandoned, and with a moment nothing has materials are it has but has sandcastles, surfers reason to

its own. There was under illuminated the throughout its gave life material was

Today, lonelier swim in surfers shore is abandoned, and with a moment nothing has materials are it has but has sandcastles, surfers reason to its own. There was under illuminated the throughout its gave life material was

beginning.

The coast has become idle and lonely. Today, shore in Çanakkale, Güzelyalı looks lonelier than ever. It is no longer possible to swim in the sea with pleasure, and there are no surfers catching perfect waves around. The shore is dysfunctional, materials are abandoned, and people have moved away. It all started with a call for help from the shoreline.

living

.

Life begins again on the shore the moment the first step is taken. In fact, nothing has changed on the coast, all the materials are the same; timber, sand, sea. But now it has a different life, the place is the same but has a soul. Children are building sandcastles, couples are strolling, the sea is full of surfers and swimmers. People now have a reason to use this beach, to live again.

ending.

Nature took back what was already its own. The shore became lonely again. There was only one lighthouse left, the rest was under water. The tower in the sea illuminated the path of those who came to it throughout its life. What remained under the water gave life to millions of sea creatures. No material was idle, it was just waiting for its turn.

Turn static files into dynamic content formats.

Create a flipbook
Issuu converts static files into: digital portfolios, online yearbooks, online catalogs, digital photo albums and more. Sign up and create your flipbook.