Selected Work

Page 1


Hayat Youth Center

National Student Competition 2023

‘‘SECOND PRIZE’’

pg. 4-9

VISITOR CENTER and V-FARM

3rd Year Studio Project 2023

pg. 10-15

S-HUB IZMIR

National Architecture Competition 2023

‘‘PARTICIPATION’’

pg. 16-19

BROOKLYN NEXUS

Graduation Studio Project 2024

ERKUT 1935 National Architecture Competition 2024

SPINA CULTURA National Architecture Competition 2024

THIRD PRIZE’’ ‘‘PARTICIPATION’’

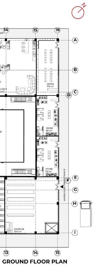
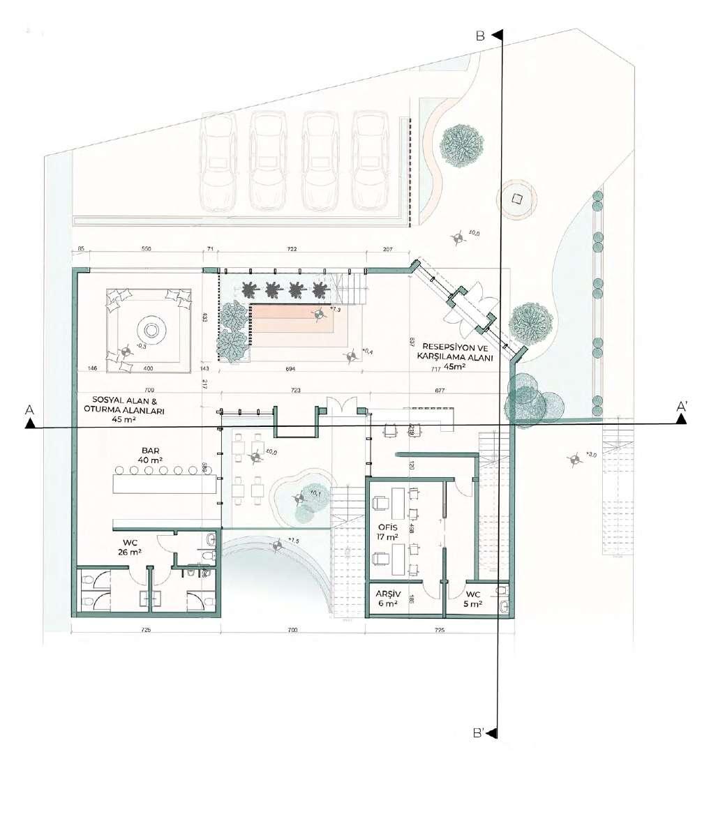
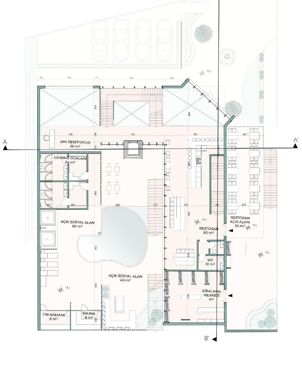
HAYAT|YOUTH CENTER

‘‘NATIONAL STUDENT COMPETITION (2nd PRIZE)’’

‘‘The Hayat Hotel is located in Bolu, a city with a unique atmosphere and climate. It serves as the first stop for visitors taking the Kartalkaya shuttle service, providing them with a unique experience showcasing the beauty of Bolu in all four seasons. The hotel’s dynamic and lively shell connects the interior and exterior identity of the project, forming a new character and identity for the Hayat Hotel.

The semi-open spaces created between the building and the shell have a permeable function, providing visitors with a new collective view in urban memory and a new intersection between the environment and the building. The Hayat Hotel aims to fill the gap in areas where visitors can adapt to the climate of the region and create good memories in Bolu before experiencing skiing, going beyond winter sports to highlight the beauty of Bolu in all four seasons.’’

YEAR:2023

DESIGNERS: GOKALP KALFA, ZEHRA ÇELİK, SELIN TEMIZ, EMIRHAN

DUGRAL, SERTAC ERBILGIN

PROJECT TYPE: National Architectural student competiton proposal

ENGAGEMENT: Design, Research and Drafting, Modelling

ROAD
SUGGESTON
SITE

TO SITE SITE ANALYSIS

Site was examined. The land is divided into three meter. elevations

The session of the mass to the land was created

The middle of the mass was emptied for the courtyard

Orientation was given to the road to highlight the entrance of the project.

The entire project encircling, semi-open making up fields shell designed

Landscape of the elements adding

SUGGESTON

SHELL | A dynamic and mobile building core, the shell, that connects the internal and external identity of the project. Giving Hayat a new character and identity, the veil creates a context that surrounds the building. A new collective view in urban memory and a new intersection between the environment and the building. The semi-open spaces formed between the building and the shell gain a permeable function thanks to the tears in the façade.

SECTION B-B’

VERTICAL FARM|VISITOR CENTER OF SMYRNA

‘‘3rd YEAR STUDIO PROJECT’’

‘‘In this project, it was desired to create a space where the society could participate. With the exhibition areas created in the Visitor Center, it was aimed to introduce the history of Bayraklı by exhibiting the historical artifacts from the Smyrna mound. In addition, with the dormitory and office sections created, an efficient working area was created for the excavators in this mound area. In addition, in order to continue Smyrna’s Agricultural past, a vertical farming area was created in this area, giving the chance to create an agricultural area within the city. The products grown in this area are offered for sale in the market in the building. In addition, this area was designed as an observable environment by the people who come to visit this place. Moreover, there are workshop areas in this area where the people living here can learn the vertical farming structure.’’

YEAR: 2023 SPRING SEMESTER

DESIGNERS: ZEHRA ÇELİK, GOKALP KALFA

PROJECT TYPE: Semester Project

ENGAGEMENT: Design, Develop and Drafting, Modelling,Diagramming

‘‘In addition to being a visitor center, the project also serves as a sustainability research and development center. The project, whose main function is the vertical farming unit, has a number of sustainable features. Features such as natural ventilation, the use of vegetal elements in the facade design, and the integration of solar panels are part of this sustainable approach’’

V-FARM and VISITOR CENTER

V-FARM and VISITOR

CENTER

Gökalp Kalfa-Zehra Çelik

S-HUB IZMIR|SUSTAINABILITY CENTER

‘‘NATIONAL ARCHITECTURE COMPETITION PARTICIPATION’’

‘‘The Izmir Sustainability Center we propose proposes a structure that is almost a manifesto in itself, with both its physical existence and conceptual content, like Noah’s Ark. The carrier system and other structural elements, which consist of approximately 60% of wood and its derivatives, adopt the primary use of natural and sustainable materials. The building’s strategy in material use is based on the reinterpretation of local and traditional building practices with contemporary technologies. In addition, it is inspired by the climate and living practices specific to Izmir by establishing an unusual balance in the open/closed space setup (sponge building). These critical choices are seen as a consistent and sincere statement of attitude so that the structure can truly fulfill its idealistic function.

In today’s world, in an environment facing constant crises, hundreds or even thousands of Noah’s Arks are needed for every city, community and individual to cope with different crisis scenarios. For this reason, more resources need to be allocated to mechanisms such as the Izmir Sustainability Center, which may not be immediately adopted by the citizens but can fulfill their public function in the long term.’’

YEAR : 2023

PROJECT TYPE: National architectural competition proposal

DESIGNERS: STUDIO EVREN BASBUG, GOKALP KALFA, ZEHRA ÇELİK

ENGAGEMENT: Research, Drafting and Diagramming

‘‘The floors, structural elements and facade cladding on the above-ground levels are made of wooden materials. Cork was used for insulation. Approximately 60% natural and renewable resources were used. Stacked stone is purchased from local sources, reducing environmental impacts. Wooden materials made the structure light and reduced the use of concrete. This reduced the negative effects. The basis for wood being a sustainable material is ensuring the continuity of natural resources by replanting source trees. Wooden materials require low energy consumption and are obtained from natural resources. Wooden building materials are divided into various types: GLT materials are structurally effective, while CLT materials attract attention with their ease of production and lightness. For these reasons, it was preferred as the main building materials in the project.’’

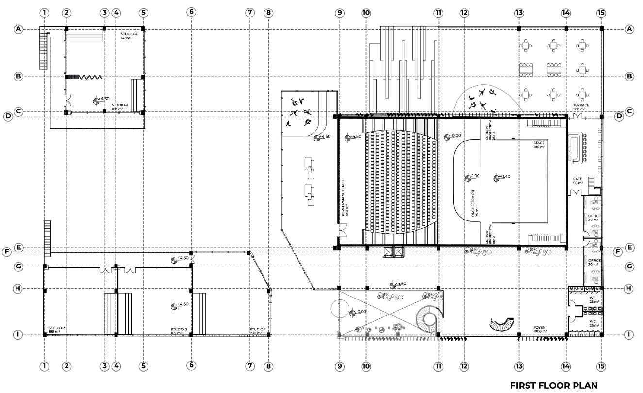
BROOKLYN NEXUS |PERFORMANCE ART

and DANCE CENTER

‘‘ GRADUATION PROJECT’’

Brooklyn is one of the districts of New York known for its dynamic and multicultural atmosphere, and this project aims to further strengthen the artistic side of the district by combining this richness with dance and performance arts. The project goes beyond being just an performance art center, establishing an organic relationship with the surrounding land and respecting the context of Brooklyn.

This center offers a place where artists can showcase their creativity, those interested in performing arts can come together and interact with the community. It also provides other dance and performing arts centers in Brooklyn with opportunities for new collaborations and events. The architectural style and material selection of the buildings are carefully determined in accordance with the character of the district and adapt to the site context. This project aims to contribute to the future of the neighborhood by creating an innovative and inspiring art environment while preserving Brooklyn’s artistic and cultural heritage.

YEAR : 2024

DESIGNER: ZEHRA ÇELİK

PROJECT TYPE: GRADUATION PROJECT

‘‘The main goal of the project is to involve people passing by on the street in social activities and make open spaces more lively. The design developed for this purpose draws attention especially with the use of amphitheatres. These amphitheatres attract passers-by and encourage them to participate in events.

The fact that amphitheatres are meeting points, especially for dancers, contributes to the strengthening of social ties by increasing people’s interaction with dance. Additionally, thanks to the location of these theaters, it is also possible to watch rehearsals and practices in dance studios. This allows passers by on the street to not only watch the performances, but also witness the artist’s creative processes.

In this way, open spaces cease to be just people’s crossing points and turn into places for social interaction and performance art exhibition. This design approach makes city life richer and more interactive, enabling people to come together and strengthen social ties.’’

‘‘This facade design has a dynamic and impressive appearance. The curves, fluidity and rhythm of the dance movements aesthetics to the structure. One of the main elements design is the transformation of the folds created by movements into architectural form

appearance. movements add elements of the dance

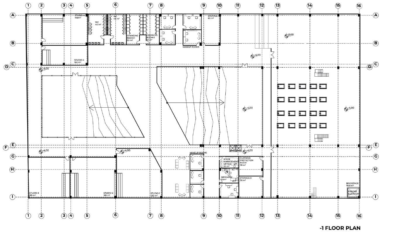
‘‘The functions were positioned to connect to a central foyer area. These links are -1 in some parts. While it is made from elevation, some functions are done from the ground, 1st, 2nd and 3rd floors. These links draw a route for the visitor for ease of access.’’

ROOFS

SECOND FLOOR (+9,50)

FOYER

WC

PERFORMANCE HALL

TERRACE CAFE OFFICES

FIRST FLOOR (+4,00)

FOYER

REHEARSAL DANCE STUDIOS

TERRACE

WC CAFE

OFFICES

PERFORMANCE HALL

GROUND FLOOR (0,00)

FOYER

OPEN AMPHI STAGE

REHEARSAL DANCE STUDIOS

TICKET OFFICE-CLOACK ROOM

STORES

DANCER ENTRANCE

OPEN AMPHI THEATRE

FREIGHT ELEVATOR ITEM ENTRANCE

PERFORMANCE HALL STAGE

-1 FLOOR (-4,00)

REHEARSAL DANCE STUDIOS CHANGING ROOMS BACKSTAGE

STORAGE

OPEN AMPHI THEATRE

WC

OPEN AMPHI STAGE

MAKE-UP ROOMS

THE JOURNEY OF THE FABRIC |ERKUT 1935

‘‘ NATIONAL COMPETITION WINNER (3rd Prize)’’

Sümerbank Cloth Factory, established in Kayseri in 1935, has both historical and cultural importance. It is a prominent building. Within the scope of a new housing project located opposite this area, the factory to keep his memory alive and in line with the theme of “A Window to the Past, A Look to the Future” regulations are intended to be made. The project, referring to Sümerbank Cloth Factory, using various weaving and fabric themes in landscape areas and entrance circulation areas designed. Children’s playgrounds, public lecture hall, vertical farming areas and multi-use cubes in the landscaping area. It has been designed for a wide variety of usage areas such as. These areas both increase social interaction and designed to promote sustainable lifestyles. Also, multiple uses innovative designs such as cubes and pedestrian axis enrich the aesthetics and functionality of the area.

The exhibition area within the scope of the project is located indoors and is designed by Sümerbank Cloth. It provides information about the history of the Factory and its contributions to the region. This exhibition area offers visitors. It offers the opportunity to better understand the historical and cultural value of the factory. In the project, a modern and functional living space for the future is created while preserving the heritage of the past. was aimed to be created.

YEAR : 2024

PROJECT TYPE: National architectural competition proposal

ENGAGEMENT: Design, Develop and Drafting, Diagramming

GAME ORDER CINEMA ORDER

CONVERSATION ORDER

MEETING ORDER

MULTI-USE CUBES

PERFORMANCE ORDER

journey.. In the project, a modern and functional living space for the future is created while preserving the heritage of the past. was aimed to be created. The memory of Sümerbank Cloth Factory, the fabric and weaving used.It adds both aesthetic and cultural richness by integrating into the space with its themes. Project, to both local residents and visitors with landscaping arrangements and interior designs.It aims to connect with the past and present a vision of the future. In this direction. Equipping the area with various functional and aesthetic elements ensures that the project theme is effectively ensures its implementation.

GROUND FLOOR PLAN

SPINA CULTURA|ÜRGÜP BUS STATION RENOVATION

‘‘ NATIONAL COMPETITION PARTICIPATION’’

Rooted in Ürgüp’s historical richness and the profound relationship between humans and nature, “Spina Cultura” (Cultural Spine) envisions a vibrant urban center that harmonizes the fundamental values of life with the rhythm of modern living. Derived from Latin, this concept integrates art, nature, and wisdom to transform Ürgüp into a social and economic hub, reshaping the city’s cultural identity by extending its influence to surrounding streets, squares, and commercial zones.

At its core, Spina Cultura revitalizes neglected and identity-lost public spaces into dynamic areas for the community. The project enriches the region with art, gastronomy, sustainable landscapes, and public exhibitions, making it a magnet for both locals and tourists. The transformation of commercial peripheries creates new opportunities for local producers, artists, and artisans, breathing fresh economic and cultural life into Ürgüp.

With green transportation initiatives, redesigned streets, and restored building facades, Ürgüp embraces a renewed identity that honors its past while looking towards the future. Anchored in themes of art, nature, and wisdom, this revitalized center elevates family and community values, offering the region a modernist touch infused with deep cultural significance.

YEAR : 2024

DESIGNER: ZEHRA

PROJECT TYPE: National architectural competition proposal

ENGAGEMENT: Design,Diagramming, Develop and Drafting, Modelling

AUTUMN

Reconstruction and Functıonal Transformation of Street Typologies

TYPE-1: Pedestrianized Streets

Pedestrianized streets are designed to enhance pedestrian safety and enrich the public space experience. By restricting vehicle traffic, these streets reduce noise and air pollution, creating a calm and healthy environment.Typically, streets that are 5 meters wide are expanded to 10 meters by incorporating sidewalks and new bike lanes. Depending on the circumstances, some streets may be narrower or wider.These streets are closed to vehicular traffic, with access granted only to emergency response teams under controlled conditions when necessary.The goal is to maximize pedestrian comfort by eliminating vehicle traffic in areas with high footfall, such as cafes, restaurants, and markets.Permeable surface materials like natural stone paving and permeable sidewalks are used to maintain sustainable and environmentally friendly infrastructure.

TYPE-2: Typology of “Side Streets” in Ürgüp’s Identity Program

All secondary roads outside the newly developed avenues and pedestrianized pathways in Ürgüp are classified under the “Side Street” typology. The recommended width for these streets ranges from a minimum of 7 meters to a maximum of 12 meters. This includes the space required for shared use by single-lane vehicle and bicycle traffic, along with sidewalks. These streets are designated as secondary routes with minimal vehicle traffic. A road width of 3.50 meters is preferred to accommodate maneuvering space for emergency vehicles such as fire trucks. Where adequate width is available, space can be allocated for bicycle and electric vehicle parkingcharging stations, as well as for greenery and planting areas. Permeable surface materials such as natural stone paving and permeable sidewalks are used to ensure sustainable and environmentally friendly infrastructure

TYPE-3: Commercial Streets” as Part of the Cultural Spine

“Commercial Streets,” which branch off from the cultural spine, serve as vital connectors linking key axes that define the tourism and trade perimeters. These streets, with widths exceeding 12 meters, provide comfortable spaces for the dense pedestrian flows generated by shops and retail activities, while also allowing designated parking areas for vehicles. Evolving as part of a green and sustainable transportation movement, these streets include public transit stops, bicycle parking, and rental stations, creating an integrated transport network for both residents and tourists. Rainwater drainage systems and bioswales have been proposed to accommodate and enhance the trees along these streets, contributing to sustainable urban development. As the heart of tourism, these streets benefit from the newly proposed building facade guidelines, applicable city-wide, which aim to rejuvenate the commercial zone and attract a sophisticated clientele.

TYPE-4: Main Avenues as Ürgüp’s Primary Transportation Backbone

Ürgüp’s main avenues, the widest and most critical connectors in the city’s transportation network, serve as the primary routes for proposed cycling races and tours. These avenues are envisioned as catalysts for a social transformation that will enhance the city and neighborhoods while initiating urban development across Nevşehir and surrounding provinces. Designed to accommodate two-way vehicle traffic, these avenues will also be heavily utilized by electric vehicles operating in a loop system. As the most trafficked routes, they are integral to the city’s mobility infrastructure. Pedestrian crossings and parking areas are strategically placed where green planting islands are interrupted, ensuring accessibility and continuity. Additionally, these avenues act as freight corridors, allowing access for trucks and other heavy vehicles when required by commercial businesses for transportation and logistics needs.

Waste Management

Management

Water Management

Turn static files into dynamic content formats.

Create a flipbook
Issuu converts static files into: digital portfolios, online yearbooks, online catalogs, digital photo albums and more. Sign up and create your flipbook.