ARC 107 Portfolio, Yuhao Xu

Page 1

Work Samples

Yuhao Xu Fall Semaster, 2022 ARC 107, Yukata Sho

Exersice 1

The Animate Inanimate

Time

• August 30 to September 8, 2022

Descriptions

• using techniques to draw top view, elevation view, and section view in a single page with same demantions

• use construction line as an important tools to help drawing

• animated the object with motion in real life

• chose kettle as the obkect

Dissection Drawing

Animated Drawing

Animated Drawing Construction Line

Exersice 2

Mapping Space

Time

• Spectember 8 to Spetember 20, 2022

Descriptions

• practice of using iterrations before design

• transform from 2d to 3d to 2d

• applied with rules, box take out of the cub are not random, it is based on air flow

Cube Drwaing

Physical Cube Model

Exersice 3 Form

• transformation from 2d to 3d to 2d to 3d

• use our own 2d base to design a 3d physical model, than use other student’s 3d model’s elevation view as new base for 3d digital model

• need contain 1 tower, 1 box, 1 pyramid, and 1 plate

• learning the skills of rhino 3d modeling and rendering

Time
Designed Base
3:
4:
Steptember 20 to October 7, 2022 Descriptions Self
Base 1: Base 2: Base
Base

Physical Model with self designed base

Base 1:

Base 2:

Base 3:

Base 4:

Base from others’ model elevation view

Base 1: Base 2:

Base 3: Base 4:

Digital Models with bases from other students’ elevation

Base 1: Base 2:

Base 3:

Base 4:

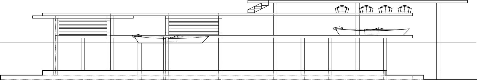
Project 1 Sequential Experience

Time

• October 11 to Noverber 18, 2022

Objectives

• self design a structure that used to exhibit an object

• I choose kayak

• focused on the interaction between the people and kayak, creating space that for people, for kayak, and both

• focused on rule: shapes of each plate, hight of structure, placement, etc

• site and structure sould be united

Draft Model

Plans and Sections Plan

Section

Detial Plan
Detailed Section

Perspectives

Physical Model

Encountering Drawings

Project 1 Update

• Update Project 1based on finial review critique Time • Noverber 28 to December 6, 2022 Descriptions Perspective Section View

Turn static files into dynamic content formats.

Create a flipbook
Issuu converts static files into: digital portfolios, online yearbooks, online catalogs, digital photo albums and more. Sign up and create your flipbook.
ARC 107 Portfolio, Yuhao Xu by yuhaoxu - Issuu