Yawen Zhang_Architecture Portfolio

Page 1

YAWEN ZHANG Portfolio In Interior And Architecture Design Selected Work Email: yawenzhang22@gmail.com
02 STORYTELLER Immersive Theatre for the Drama Sleep No more 01 277 AMENITY CENTER 20,000 sf Amenity for Office Building Including Teleconferencing Rooms and Fitness Center 03 TOWARDS CITY High-Rise Office Building Design 04 RE-ACTIVATE COLLODI Complex Design 05 TRANSFORMATIONS IN SPACE Office Space Design 06 FLOW PAVILION An Installation in Barcelona Pavilion OTHER WORKS Architecture & Industrial Design Works CONTANTS

PLANNING - 2 SCHEMES

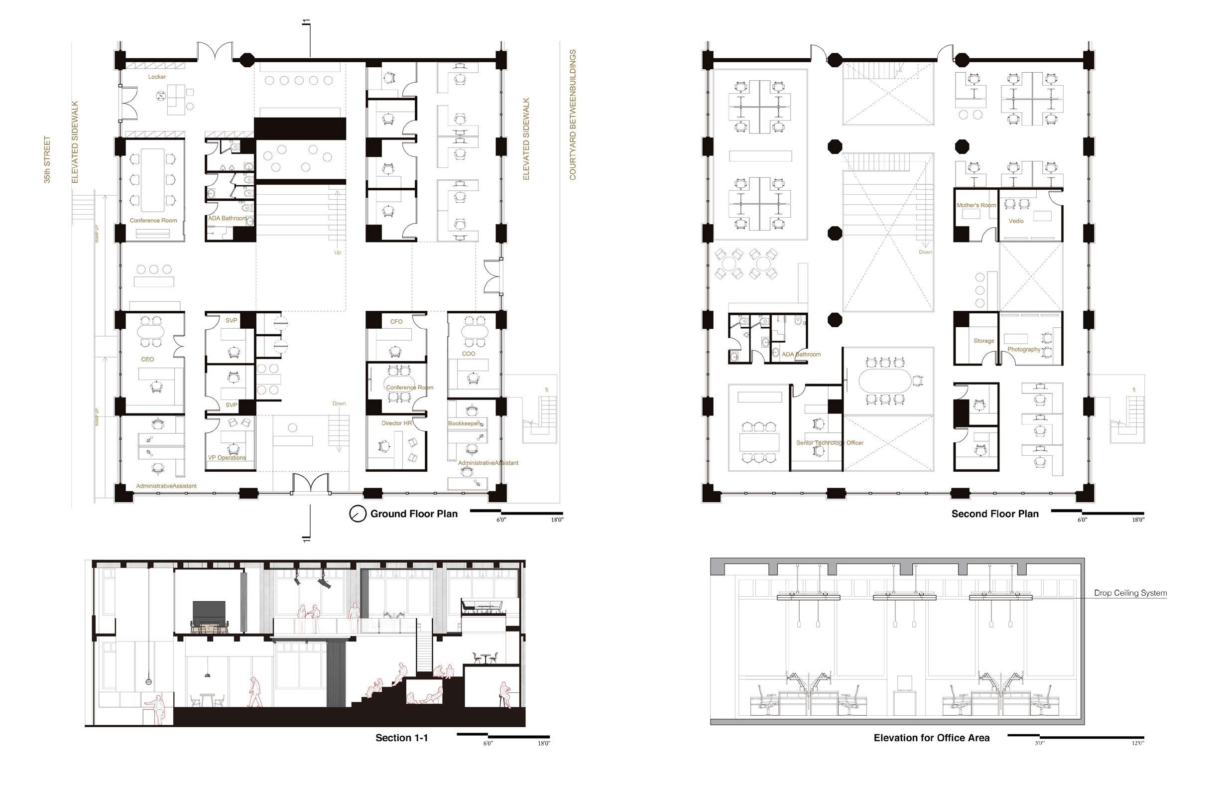
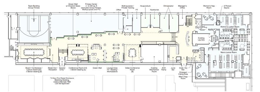
277 AMENITY CENTER

Completion Time: Dec, 2022

Category: Built, Commercial Site: Manhattan, NY

Building Area: 20,000 SF

(My role: Site Survey, Programming, Planning, 3D Modeling, Presentation Drawings/ Renderings, Bidding Document, Construction Document, DOB/DOH Filing, Furniture/ Finish/ Fixture/ Accessory Options, FF&E Specs Organization, Shop Drawings Review, Site Review/ Punch List, Photograph)

In the first scheme, we propose a change to the original location of the gym. Instead, we suggest placing the lounge area and conference room on the side with curtain walls. This arrangement would maximize the amount of sunlight entering the space, creating a brighter and more inviting atmosphere.

The renovated amenity space is designed to offer a comprehensive range of services that cater to the diverse needs of the staff in the office building The space has been designed to provide a seamless transition between different functional areas, ensuring a sense of cohesion and continuity throughout the space.

The design is intended to create an inviting and functional space that enhances the after-work life of the staff in the office building. The step-shaped moss wall is a particularly unique feature that adds an element of visual interest and dynamism to the space, helping to create a vibrant and engaging atmosphere.

In the second scheme, our goal is to preserve the original layout based on the client's preference, which means keeping the gym in its original location. Alongside that, we propose adding a lounge area on the opposite side. Furthermore, we have integrated a plant system into the space, featuring the green wall designed in a step shape to infuse vibrancy into the environment

01
FINISH

PLAN

Group Fint ness: Extg fl oor ing t o rem ai nref in sh Remove GWB @curt ai n wall and provide pl ex prot ect ion

Gy m:

F oor: Rubber Matt ng

Wal s: G ass/M irr ors/W d Panel

C g: GW B w/ Wd.Tri m/Cove

We llne ss Ce nte r:

F oor: Car pet

Wal s: W d. Panels/GW B

C g: ACT w/W d Tr m/ Cove

En try : Rec ad Extg [Wd / Stone ] or New de sk in new locat on

Typica l Nap Rooms :

Floor: Car pet

Wa l s: GW B/W d.

Clg: ACT/G WB/Cove/W d Trim Naps; m et ronaps com

New S tea m & Sa una Rooms

Board Room:

Floor: W d /Car pet

Wal s: W d Pane s

C g: GW B w/ Wd Trim /Cove

Doors: Sl di ng Mt l / G ass

Lounge A rea: F oor: W d /Car pet

Wal s: W d Panels/GW B/Felt / Banquet te/TV

C g: ACT/G WB w /Wd Tr m/ Cove

Vi deo/ Conf erence Rooms:

F oor: W d /Car pet

Wa l s: W d Panels

Clg: GW B w/ Wd Tr m /Cove

Tile in the Shower: Locker Room/ Restroom/ Shower Room Options: Reception/ Lounge:

Extg.

Mechanical

Floor: St one

Wall s: W d Pane s/Banquette

Clg: GW B w/ Wd Tri m/Cove New m l work/service requir ements @ Jui ce Bar Typical Locker Room :

Floor: Til e./ Car pet

Wal s: GW B/W d [ Sauna/St eam}

Showers/Rest Room: Ti e/ Glass Doors

C g: GW B [ Shower s/ Rest Room] ACT

A B C D E F 4 5 6 7 8 9 10 11 12 13 14 15
Mut -pur pose/ Pri vat e Tra n ng PT Acupunctur e Nutr t ionist Chir opr actor
Doors: S i di ng Mt l./ Glass Room
Entry/Eat ing Area:
FINISH OPTIONS/ RENDERINGS
Lounge Seating Area Boardroom
Vedio Conference Room Open Circulation
Vedio Conference Room Locker Room | Restroom | Shower Reception | Lounge | Conference Room Green Wall | Gym - m M - H - M3 4 3 1 2 3 4 1 0 3 4 4 3 1 1 2 77 W 2 A 77 W 2 A O m g a P p R a e 2 B 2 3 4 4 3 3 4 277A O m e a B 6 P e12 1 2 O Base Bu ld ng Amenity Cen er 277 Pa k Avenue New York NY 3 16 23 Manage s Of ce V ny S gn We nes Cen er G A Base Bu lding Amen ty Center 277 Pa k Avenue New York N Y 12 16 22 We n ess Center SK-77 G b m 2 7 7 P A R K W E L L N E S S F n O m R g S 0 P Op n n 7 0 -1 2 7 | 1 0 1 / 2 B k 5 P Ba e e 5 0 277A 68 A F F N e L e B S s 3 h - N n- n F n s M - - - -
277A 277A a a A s e m A m b - - - - - - - - - - -- - - - - - - - - - -277A 277A a a A s m b y A e m y a a SIGNAGE | GRAPHIC DESIGN
- - - - - - - -
MA M W OS S S S C ST07 x 2 DL0 A DL0 A DL01A D 01A D 01A DL 1A ST04 EX EX EX DL 1A DL B DL 1B DL 1B DL B DL B ST01 3 S DES ST04 ST 4 WW01 W W 0 1 ST01 DL02A DL0 DL0 DL0 DL04 D 04 DL0 DL0 ST 1 ST04 ST04 D 01B W W 0 1 W W 0 1 M pu pose Room Ex ng Land ng Be ow Ex s g Mech Room E s ng Bu d ng Lobby S o age Ex s ng S a A Be ow Eg ess Ve bu e 2 H F e Ra ed ACT2 ACT 15 -0 A F F 12A F F 1 00 A F F 10 -0 A F F GWB ACT 12 -6 A F F 12 -6 A F F -0" A F F 10 -0 A F F 1 00 A F F A- 0 12 -6 A F F 10 -0 A F F A gn P WV P5 WV1 WV1 WV1 4 A-3 8 1 A- 0 -30 ACT2 R 1 -0 V F E ac Loca on 2 Typ 4 -304 3 -0 3 -0 3 -0 3 -0 3 -0 E Q E Q EQ EQ EQ 6 -11 1 4 26 -8 4 -9 1 4 1 00 31 0 5 / 8 31 0 5 8 38 -4 1 2 V F 1 79 1 / 4 V I F 1 -11 7 8 4 -8 1 -0 Q WC #1 RS 86 TP SB TV P W F S O F F F F F F C1 F S2 S1 S2 VCT1 TR1 5 1 79 1 / 4 34 36 -3 3 4 1 -1 " 1 - 2" 1 -6 1 2 4 -9 2 -1 1 2 22 -8 2 - 1 1 2 4 -4 3 4 B G G G 55 1 2 C e a r 8 1 2 Mu purp e Room Ex s ng Land ng Ex s ng Mec Room Ex ng Bu d ng Lobby S o age Ex s ng S a A UP 2 2 2 2 2 1 4 -0 Ex g 1 2 1 2 A-200 1 2 3 1b EX 1 2 1 A-3 2 2 3 EX EX EX 1 7 B nqu e A Eg es Ves bu e H F e Ra ed 30 1 2 8 1 / 2 35 11 3 8 32 23 5 8 EX 2 -8 1 4 E g 1 2a E A- 0 10 47 81 3 / 4 1 2 1 2a -0 1 2 A- 02 D sp y Mon o 1 2a 1 11 0 1 / 2 12 24 3 4 51 1 4 70 5 / 8 7 1 4 G ee Wa Sys m w h B Bas C b n T EX 0 -0 O F F 0 -0 T O F - -2 T O F F EX 1 2a 31 1 1 / 8 28 2 2 EX 3 10 A- 0 3 2 3 -0 3 -6 7 8 E 2 2 VCT F e Ex ngu she A- 00 -30 6 A-3 6 1 A- 0 20 7 / 8 A- 0 G 10 3 1 1a EQ EQ EQ EQ EQ EQ EQ EQ 16 16 EQ EQ 22 20 EQ EQ 3 14 45 EQ 20 Sch u e RENO-TK Sch e SCH ENE P ov de Po She 5 81 0 1 / 2 11 -0 3 1a A- 1 4 A-3 4 L ne o Cab ne Above 3 -6 16 5-3" Extg E Q 5 VCT1 A-2 7 8 * Con m D mens on A e Equa To The Ex s ng Eas e n Ves b e 52 L gh Co e Banque e P A- 0 F W 3 A-3 2 GL S2 L gh Co e -3 -2 +16 -5 Und de Ex g De k B1 WV1 WV1 WV1 1 00 B1 1 A-3 2 1 V F V F P A- 1 E Q E Q L gh C ve L g ng B h nd 1 A-3 2 G 2 F7 Wa Moun ed D sp P5 P4 GL2 -3+16U der de Ex g De k P WV1 WV1 1 A-3 7 4 A- 08 V F V F B B1 68 27 4 -0 62 P ov de Me han ca Fas e ng 1 00 B G G G P P5 -3 -2 +16 -5 Unde s de Ex Deck WV1 WV1 WV WV1 WV WV WV1 -30 2 A- 0 L gh Cove WV1 WV1 G 1 A- 0 V F V F No th E eva o Rm 03 - Mu pu pose 1Wes E a on Rm 1 3 - Mu purp e 1 4 1Sou h E ev on Rm 103 - Mu pu pos 4 1Comb na on F e A a m Speake S r e 1 00 B A Mu pu po e Room A Beh nd G een Wa Sy em w h Bu n Base Cab ne Typ 5 A-30 2 P1 B5 WV WV2 4 A-304 L gh Cove 14 A-3 7 F re Ex ngu she E s ng Cab ne P1 S 40 20 68 B5 L 32 V F Banque e Banque e T mper G ass Gua dra 3 - H gh and Hand a 3 -0 H gh Typ Bo h S des F6 P1 Wa Mo ed D sp a Bu n Cab ne y S a B 8 A-3 2 B A- 0 A- 0 H1 GL7 H F B5 2 1 1 WV2 4 A- 02 3 A-30 1 A-3 4 1 A-3 1 15 A-3 8 S2 P1 S2 68 4 A-3 4 5 A-31 4 -8 27 B ock ng Man a Pu on 40 62 Lounge Sou h E va on Rm 1 5 4 1Lounge W s E e on Rm 10 1 4Exe c s Room Eas E e a on Rm 10 4 1 -0 80 C1 6 A-3 2 P2 5 4 3 B B3 2 7 GL1 9 40 32 1 P ov e Mechan ca Fas en g 1 - 0 V 90 V F 1 -7 V 3 - 2 V F A w M o A- 1 # A 2 E s ng Conven n e S a o Lowe Leve F 32 V F P E T V Mo o L ne o L gh Cove 7 A- 03 B Comb na on F e A a m Speake S obe Ma a Pu on 40 68 P P1 47 A1 GL GL4 GL GL4 N r h E va on Rec p on Rm 1 4 1 " 1 -0 De a P an Rm 1 - Mu pu po e " 1 -0 R ec ed Ce ng P an Rm 103 - Mu purpose 1 4 ="
2 1 -0 Wes Sec n RM 10 2 1No h Sou h Sec on RM 10 10 15 -10 A F F 0 -0 A F F 26 1 00 4 4 6 7 10 11 13 15 16 1 14 5 17 25 7 WV1 101 Gymnas um 1 3 Mu pu pose Room 8 A- 07 4 A-3 7 9 7 3 2 -3 0 -0 A F F 10 -0 A F F 12 -6 A F F 15 -0 A F F 1 18 7 9 23 24 22 17 17 25 26 7 22 WV1 103 Mu pur e Room 20 12 A- 07 1 A- 07 2 1 0 -0 A F F 9 35 10 -0 A F F 12 -0 A F F 9 25 26 7 22 22 C n eren e Room 106 WV 5 24 23 38 29 5 A- 09 1 A-3 1 16 EQ EQ B2 2 -1 1 4 31 2 1E s We Sec on @ TV RM 106 1 1 4 -6" M n 11 -4 A F F 12 -10 A F F 15 -0 A F F 5 48 39 40 41 42 46 104 102 Gym Open C cu a 29 6 A-307 0 -0" A F F 33 26 5 8 45 14 A-30 3 15 A- 08 8 105 Lounge 45 7 23 24 30 1 A-3 1 5 6 33 17 3 A-3 1 10 A-307 60 7 45 25 31 1 1 2Nor h Sou h Sec on @ Lo nge Rm 10 8 -0 A F F EQ EQ 2 -3 1 2 1 -0" 8 22 2 5 5 6 4 9 8 22 1 8 A- 09 2 1We ne s Cen e Ex e o Wa S c on 27 4 1 4 30 20 20 2 -2 2 -0 1 4 1 -4 1 2 Was e B n Pu -Ou Hä e e Ma x Doub e 2 x 52 q em no 503 15 224 B S2 Re e o A-3 0 #4 S2 5 Re e o A-3 0 #4 4 2 -0 6 7 8 2 -8 1 8 1 -5 3 4 1 1 4 1 -5 3 4 22 5 1 EMTEK Pu -86360 3 -0 11 1 8 7 -0 7 8 EMTEK Pu -86360 1 1 30 36 W de Bu - n Re ge a o -F ee er ADA Comp n SKU FFRF36 FADA 4 1 1 2 -0" L ne o Re ge a o Beyond P ov de L cks P 8 3 -8 3 4 P P ov de Loc s Rm 10 C b ne 3 -0 5 23 4 5 23 4 2 2 -6 1 2 " 3 -2 2 -10 4 -1" 1 2 -0 EMTEK Pu - 120 P ov de Fo Da a Powe L g ng ST04 L gh ng ST04 Secu e To Wa F oor Rm 11 Ju ce Bar 3 -0 WV 5 23 4 30 S B5 Re e o A-310 #4 W 3 - 6 -6 7 8 22 5 23 4 S2 B3 3 -2 -6 7 8" 22 30 EMTEK Pu -87 2 Pro de Lock L h ng Be nd Cu om Ou e Boxes B3 S S Tab e Mens Wom ns Towe Ham r C ne 4 1 -0 4 24 Va es 1 4 L n n B n Beh d EQ 1 -0 Cu Ou Se P an 4 24 4 P wo d ne B n C O See P an PL PL SS PL PL PL SS1 P o de oc s EQ EMTEK Pu -8636
W ndow G Head De @ G een Wa 1 2 =104 Open C rcu a on 102 Exe c se Room Doo See Schedu e R1 Base - See E eva ons B w Mas c Mudse Crack Supp ess on Memb ane Ex s ng S ab Sca y Leve And Pa ch A C acks P vo H nge Secu e @ F oo Fo ow Doo Specs TR1 Edge o Ter azzo Doo B S De a @ Green Wa 2 = 1114 Recep on 113 Manage s O ce W ndow See Schedu e E 10 5 8 Type X GWB PT F n L gh F x ure ST01 See RCP Schedu e AXIOM nd ec L gh Cove - AX DL 2 3 4 F R P ywood B ock ng Therma ber nsu a on 5 8 Type X GWB PT F n 5 8" Type X GWB PT F n Ex end 1 -0" A F F Shadow Revea Mo d ng ACT1 10 See S ruc u a Draw ngs For F am ng De a s L gh ACT1 Ce ng De a Rm 1 3 114 1 2 1 -0 2 Layers F R P ywood 104 Open C cu a on 102 Exe c se Room 7 8 M Ha Channe See S ruc u a Draw ngs ACT1 W ndow See Schedu e G ACT1 P an De a Co umn 8B Exerc se 1F5 3 4 F R P ywood Ex s ng Co umn F eproo ng V F Fry Reg e DRMZ-50-375 12 1 1 2 F R MDF w/ WV2 The ma ber Insu a on WV2 WV2 P o de B ock ng For 1 7 Doo See Schedu e 5 8 Type X GWB PT F n B 6 M S uds See S uc u a D aw ng 1 7a A gn Head De a Doo G Rm 103 1 -0 10 -0 A F F Door See Schedu e See S uc ura D aw ngs Fo Fram ng De a s 5 8 Type X GWB 3 4 F R P ywood L gh F tu e ST04 See RCP Schedu e 103 Mu pu pose Room 5 8 Type X GWB PT F n 3 4 F R P wood P vo H nge See Schedu e G C ose 8 -0" A F F WV1 4 6 S ud See S ruc u a Draw ngs 3 5 8 S ud See S uc ura D aw ngs 7 1 4 3 1 2 4 1 -4 3 4 2 = 1Kn f Edge Ce ng De Rm 10 Lounge ACT1 3 1 4 14 2 -0 ACT1 B ock ng as Requ red Ang e Tr m Ax om E Q E Q L gh F x u e ST01 - See RCP Schedu e P ov de B ock ng 5 8 Type X GWB PT F n L near D f use - See Mech Dwgs Door A He d De a 1 2 1 -0 WV2 3 4 F R MDF w Fry Reg e DRMZ-50-375 Bo h S des 5 8" F R P ywood 3 4 F R P ywood 1 5 8 M S ud 5 8" Type X GWB 4 6 The ma be Insu a on 1 1 / 2 3 / 8 WV2 Pane Moun ng By M wo k Vendo Doo - See P an/ Schedu e See S ruc u a D aw ngs 106 107 WV1 103 WV1 3 Therma be nsu a on 10 -0 A F F 3 4 F R P ywood 5 8 F R P ywood F y Reg e DRMZ-50-375 Bo h S des 5 8" Type X GWB 3 4 F R MDF w/ WV2 Pane Moun ng By M wo k Vendor C2 See P an S uc u a Draw ng For Part t on De a s 3 Therma ber nsu at on L ne o Base - See E eva ons WV1 106 107 103 Door See P an Schedu e New 4 Te azzo Base Cham e ed Top S de TR1 L m o Doo A Jamb De a 1 2 = 1Doo See E eva ons Schedu e R1 3 4 F R P ywood L ne o Base - See E e a ons M F ame A S des L ne o M ro Mast c 104 Open C cu a on 102 Exerc se Room B P an Fe ASTM E-84 By Othe s 1 2 F R P ywood P an er See A-307 #6 9 TR1 New 4 Te azzo Base Cham e ed Top S de TR1 Doo B Jamb De a Rm 1 Exe c se Room 1 2 = 1 -0 Jamb De a Door G Rm 103 1 2" Doo See Schedu e 5 8" F R P ywood 3 4" F R P ywood Fry Reg e DRMZ-50-375 Bo h S des VCT1 L ne o L gh Cove Above G Pane Moun ng By M work Vendo C1 WV1 3 4 F R MDF w Ce ng Sec on Co umn 10B 9B We ness 1 = -0 WV2 8 -0 A F F ACT1 F5 Mas c App ed Ex s ng Concre e S ab Beam V F 7 -10 1 2 A F F 3 1 2 1 1 / 2 1 / 8 5 8 Type X GWB PT F n WV2 7 8 Hat Channe 5 8 F R P ywood Pane Mount ng By M work Vendo 3 4 F R MDF w 104 Open C rcu a on W4 9 5 8 Type X GWB PT F n ACT3 2 -0 E Q E Q A gn 5 8 F R P ywood L gh F x ure See RCP Schedu e F R B ock ng Rad us GWB Corne - See RCP Acous Bu Ce ng 5 8" Type X GWB PT F n L nea D use See Mech Draw ngs Re e o S uc u a D aw ngs Fo F am ng S uc u a De a s T p Ce ng De a Rm 103 1 1 " = -0 ACT1 L gh F x u e See RCP Schedu e L gh Therma ber nsu a on See S ruc u a Draw ngs Fo F am ng De a s Ax om nd ec L gh Cove AX DL 8 6 6 T p 6 Rm 105 114 1 Rm 105 GL7 GWB @ Rm 114 5 8 Type X GWB PT F n 14 -6 A F F 12 -10 A F F 2 -0 L gh F x u e See RCP Schedu e F R B ock ng Re e o S ruc u a D aw ngs Fo Fram ng S ruc u a Deta 2 3 / 8 6 5 8 A gn ACT1 9 Typ Ce ng De a 1 2 1 -0 Typ Ce ng De a 1 =WV2 106 107 WV1 103 Door See P an Schedu e 1 16 Reve P vo P ov de Open ng n S ab C ack Suppress on Memb ane Ex s ng S ab Sca y Leve And Pa ch A C acks C2 4 TR1 Doo A S Det 1" A-302-5 De a 1 = -0 E s ng S ab: S a y Leve Pa ch A C acks R1 9 B3 L ne o M r o Ma t c App ed w M F ame GL1 1 2 D a n See Mechan ca D aw ngs Cus om Coppe Gu e By P an Wa Des gn 1 2 Oak P ywood S a ned B ack Wa e p oo Box- See E ec ca D aw ngs 1 2 Thk W4 Fe Pocke - Supp ed By P an Wa Des gn ASTM E84 C ass A 1 2 F R Ma ne G ade P ywood TR1 1 2 P ywood B o k ng 19 W4 14 Ba F n sh B5 S cone Cau A Edges 2 4 So De a Banque e Rm 103 106 1 2 =" See S uc ura D aw ngs Fo Fram ng De a s 5 8 Type X GWB PT F n L gh F x u e See RCP Schedu e 5/8 F R P ywood 3/4 F R P ywood A g n WV1 3/4 F R MDF w F y Reg e DRMZ-50-375 (Bo h S des 5 8 F R P ywood B ock ng W1 1 7 L gh WV1 103 106 WV2 103/ 106 WV2 On y @Rm 103 103 106 W2 S De a : Banque e Rm 103 1 2 = 1" 5 8 F R P ywood B ock ng WV1 Pane Moun ng By M wo k Vendo 2 3 1 7 L gh F x u e See RCP Schedu eConcea W h n 3 4 F R MDF w 5 8" Type X GWB Banque te Secu e o Wa 1 -1 @Rm 103 A gn @Rm 103 2 2 @Rm 106 On y @Rm 103 W1 103 106 W2 10 7/8 @Rm 106 9 7 8 @Rm 103 103 106 WV2 P an D a Mon or A cove Rm 103 Mu pu pose 1 " 1 -0 Re e o S ruc u a Draw ngs For Fram ng S ruc u a De a s 1 2 F R P ywood Secu e o Ex s ng Wa GL2 6 Pane Moun ng By M wo k Vendor 3 4 F R MDF w 8 F2 L Shape M or F ame 5 8 Type X GWB PT F n L gh F x u e See RCP/ Schedu e Ex s ng Wa 1 1 / 2 A i g n 3 4 F R P ywood Pane Moun ng By M wo k Vendo WV1 L ne o So Above WV1 3 4 F R P ywood Ex s ng GWB F am ng- V F See P an Fo Par on De a A l i g n Ex s ng S uc ure VIF L ne o F re P oo ng V F 5 8 F R P ywood F y Reg et DRMZ-50-375 Bo h S des 5 8 T pe X GWB 3 4 F R MDF w WV2 Pane Mount ng By M work Vendo TR1 L m o New 4 Ter azzo Base Cham e ed Top/ S de Door D No h Jam b D ta Rm 106 1 2 1 -

STORYTELLER

Immersive Theatre for the Drama Sleep No More

Renovation of Paper Factory in Marzabotto Competition

Duration: 2018.05-2018.06

Instructor: Prof. Li Bing

Category: Design

Site: Marzabotto, Italy

Building Area: 4200 ㎡

The project is a renovation of the Mantuan paper factory and the idea of the renovation starts from exploring correspondence between drama scene and space. Dramatic conflict produces spatial perception. And the narrative order of space is in connection with the development of the drama. A new type of theatre called "Immersive Theatre" is built up to create experiences where audience members give up their "observer" status to become co-actors and co-creators of the narrative and of the storytelling process. And the audience will have an emotional resonance from the architecture.

You will be inside the space, choosing what scenes to see, creating movements and physically responding to actions to create site-responsive theatre. The performance will never be the same. In the theatre, audience is the storyteller, actor is the storyteller, space is the storyteller. Everything is the storyteller.

02
03
04
05

FLOW PAVILION

An Installation in Barcelona Pavilion

2020 Summer Option Studio

Duration: Graduate, 2020.6-2020.7

Instructor: David Mans

Category: Team Work, Co-Designer Xinduo Guo

(My role: Preliminary Investigation, Concept Development, 3D Modeling, Rendering and Vedio)

Site: Barcelona, Spain

The Barcelona Pavilion demonstrates a spatial fluidity by creating interlocking space through vertical and horizontal planes, visible or implied. Our installation enlarges the spatial experience of the pavilion by emphasizing the body’s relationship with the surroundings (proprioception). The installation also designs circulations to foster movement around the space.

FORM FINDING PROCESS WITH GRASSHOPPER

Upon arrival, the installation begins from the stairs and extends toward the west entrance. Walking around the installation and the Barcelona Pavilion, visitors are sometimes enclosed and sometimes exposed.

CLIENT AND PROGRAM ANALYSIS TILING STRATEGY

Tiles are assigned based on the “planarity” of the pavilion. Thus tiles in vertical and horizontal directions have different tiles and show a transition from flat to steep. The shadow of the tiling becomes a translation of the structure and direction of the forces above, changing based on the time of the day. Aluminum sheet is selected as the material because of its ductility, reflectivity, strength, and ability to provide shades.

06

Panoramic View – Dusk/dawn Panoramic View – Mid-day Panoramic View – Afternoon https://api2.enscape3d.com/ v3/view/34ad1cbd-d5cf-4476b7cc-57f720c7b5db

https://api2.enscape3d.com/ v3/view/ba8e668d-2f0b-472a84a0-9fc9618608da

https://api2.enscape3d.com/ v3/view/77990772-f0bc-4f73ae13-2c867e1cac45

https://www.youtube.com/watch?v=r1mVt2ANG1Y&t=2s

MEDIAS
Panorama Views Video Grasshopper File
5m 10m South Elevation 5m 5m 10m 10m East Elevation West Elevation

Turn static files into dynamic content formats.

Create a flipbook
Issuu converts static files into: digital portfolios, online yearbooks, online catalogs, digital photo albums and more. Sign up and create your flipbook.
Yawen Zhang_Architecture Portfolio by yawenzhang_Arwen - Issuu