Portfolio In Interior And Architecture Design
          Selected Work
          Email: yawenzhang22@gmail.com
          YAWEN ZHANG
          CONTANTS
          01 277 AMENITY CENTER
          20,000 sf Amenity for Office Building Including Teleconferencing Rooms and Fitness Center
          02 28-40 W 23RD ST RENOVATION
          Commercial Building Renovation: Modernizing a Central Hub
          03 APPLE BANK BRANCH RENOVATION
          Retail Bank Interior Renovation
          04 STORYTELLER
          Immersive Theatre for the Drama Sleep No more
          05 RETAIL & BAR
          Food Space for the Brand HENRI CHARPENTIER
          06 BREATHING
          Interactive Fashion
          07 FLOW PAVILION
          An Installation in Barcelona Pavilion
          OTHER WORKS
          Urban & Industrial Design Works
           
    
              
              
            
            277 AMENITY CENTER
          20,000 sf Amenity Space for Office Building
          Completion Time: Dec, 2022
          Category: Built, Commercial
          Site: Manhattan, NY
          Building Area: 20,000 SF
          (My role: Site Survey, Programming, Planning, 3D Modeling, Presentation Drawings/ Renderings, Bidding Document, Construction Document, DOB/DOH Filing, Furniture/ Finish/ Fixture/ Accessory Options, FF&E Specs Organization, Shop Drawings Review, Site Review/ Punch List, Photograph)
          The renovated amenity space is designed to offer a comprehensive range of services that cater to the diverse needs of the staff in the office building The space has been designed to provide a seamless transition between different functional areas, ensuring a sense of cohesion and continuity throughout the space.
          The design is intended to create an inviting and functional space that enhances the after-work life of the staff in the office building. The step-shaped moss wall is a particularly unique feature that adds an element of visual interest and dynamism to the space, helping to create a vibrant and engaging atmosphere.
          01
         
    In the first scheme, we propose a change to the original location of the gym. Instead, we suggest placing the lounge area and conference room on the side with curtain walls. This arrangement would maximize the amount of sunlight entering the space, creating a brighter and more inviting atmosphere.
           
    In the second scheme, our goal is to preserve the original layout based on the client's preference, which means keeping the gym in its original location. Alongside that, we propose adding a lounge area on the opposite side. Furthermore, we have integrated a plant system into the space, featuring the green wall designed in a step shape to infuse vibrancy into the environment
           
     
     
     
     
     
     
     
     
     
     
     
    PLANNING - 2 SCHEMES
        FINISH
        Boardroom | Gym (Photograph)
          Locker Room | Restroom (Photograph)
          Conference Room (Photograph)
          Lounge Seating Area | Reception (Photograph)
          Group Fint ness:
          Extg fl oor ing t o rem ai nref in sh. Remove GWB @curt ai n wal and prov de pl ex prot ect on
          Gy m:
          F oor: Rubber Matt ing
          Wal s: G ass/M rr ors/W d Panel
          C g: GW B w/ Wd Tri m/Cove
          We llne ss Ce nte r:
          F oor: Car pet
          Wal s: W d Panels/GW B
          C g: ACT w/W d Tr im/ Cove
          Mut i-pur pose/ Pri vat e Trai ning PT
          Acupunctur e Nutr t ionist
          En try : Reclad Extg Wd / Stone ] or New de sk in new ocat on
          Chir opr actor
          Board Room:
          F oor: W d /Car pet
          Wa l s: W d Pane s
          Clg: GW B w/ Wd Trim /Cove
          Doors: Sli d ng Mt ./ G ass
           
    Lounge A rea:
          F oor: W d /Car pet
          Wa l s: W d Pane s/GW B/Fe t /
          Banquet te/TV
          Clg: ACT/G WB w /Wd. Tr m/ Cove
          Extg Mechanical Room
          Vi deo/ Conf erence Rooms:
          F oor: W d /Car pet
          Wal s: W d Pane s
          C g: GW B w/ Wd. Trim /Cove
          Doors: S i d ng Mt / Glass
           
    Typica Nap Rooms :
          F oor: Car pet
          Wal s: GW B/W d
          C g:
          ACT/G WB/Cove/W d Tr m Naps; m et ronaps.com
          New S tea m & Sa una Rooms
          Entry/Eat ing Area:
          F oor: St one
          Wal s: W d Pane s/Banquette
          C g: GW B w/ Wd.Tri m/Cove New m i l work/service requir ements @ Ju ce Bar Typical Locker Room :
          Floor: Ti e / Car pet
          Wal s: GW B/W d [ Sauna St eam}
          Showers/Rest Room: Tile/ Glass Doors
          Clg: GW B [ Shower s/ Rest Room] ACT
           
     
    Locker Room / Restroom Conference Room
          Conference Room
          A B C D E F 4 5 6 7 8 9 10 11 12 13 14 15
        PLAN / FINISH&FURNITURE SELECTION
        Boardroom
           
     
     
     
     
     
     
     
     
     
     
     
     
     
     
     
     
     
     
     
     
     
     
     
     
    FINISH&FURNITURE OPTIONS/ RENDERINGS
        Tile in the Shower:
          Locker Room/ Restroom/ Shower Room Options
          Reception Area
          Boardroom / Conference Room
          Other Options
          Opt 2 Opt 2 Opt 4 Opt 1 Opt 1
        Opt 3
        Lounge Area
          Different Views
        W ndow G Head De a @ Green Wa 1 2 = 1 -0 104 Open C cu a on 102 Exe c se Room Doo See Schedu e R1 Base - See E eva ons B w/ Mas c Mudse C ack Supp ess on Membrane Ex s ng S ab Sca y Leve And Pa ch A Cracks P vo H nge Secu e @ F oor Fo ow Door Specs TR1 Edge o Ter azzo Doo B S De a @ G een Wa 1 2 1 -0 114 Recep on 113 Manage s O ce W ndow See Schedu e E 10 5 8" Type X GWB PT F n L gh F x u e ST01 See RCP Schedu e AX OM nd ec L gh Cove - AX DL 2 3 4" F R P ywood B ock ng The ma be nsu a on 5 8 T pe X GWB PT F n 5 8 T pe X GWB PT F n Ex end 1 -0" A F F Shadow Revea Mo d ng ACT1 10 See S u tu a D aw ngs For F am ng De a s L gh ACT1 Ce ng De a Rm 113 114 1 1 = 1 -0 2) Laye s F R P ywood 104 Open C rcu a on 102 Exe c se Room 7 8" M Ha Channe See S ruc u a D aw ngs ACT1 W ndow See Schedu e G ACT1 P an De a Co umn 8B Exe c se 1 2 = 1F5 3 4 F R P ywood Ex s ng Co umn F rep oo ng V F F y Reg e DRMZ-50-375 12 1 1 2 F R MDF w WV2 The ma be nsu a on WV2 WV2 P ov de B ock ng Fo 1 7 Door See Schedu e 5 8 Type X GWB PT F n B 6" M S uds See S uc ura D aw ngs 1 7a A gn Head Deta Doo G Rm 103 1 210 -0" A F F Doo See Schedu e See S uc ura Draw ngs Fo F am ng De a s 5 8 Type X GWB 3 4 F R P ywood L gh F x ure ST04 See RCP S hedu e 103 Mu pu pose Room 5 8 Type X GWB PT F n 3 4" F R P ywood P vo H nge See Schedu e G C ose 8 -0" A F F WV1 4 6 S ud See S uc u a D aw ngs 3 5 8 S ud See Struc u a Draw ngs 7 1 4 2 3 1 2 4 1 -4 3 4 1 2 1 -0 Kn e Edge Ce ng D a Rm 1 5 Lounge ACT1 3 1 / 4 14 2 -0" ACT1 B ock ng as Requ ed Ang e T m Ax om E Q E Q L gh F x u e ST01 - See RCP Schedu e P ov de B ock ng 5 8" Type X GWB PT F n L nea D use - See Mech Dwgs Doo A Head De a 1 = -0 WV2 3 4 F R MDF w F y Reg e DRMZ-50-375 Bo h S des 5 8 F R P ywood 3 4 F R P ywood 1 5 8 M S ud 5 8 Type X GWB 4 6 The ma be nsu a on 1 1 / 2 3 / 8 WV2 Pane Mount ng By M work Vendo Doo - See P an Schedu e See S uc u a D aw ngs 106 107 WV1 103 WV1 3 The ma be nsu a on 10 -0 A F F 3 4 F R P ywood 5 8" F R P ywood Fry Reg e DRMZ-50-375 Bo h S des 5 8" Type X GWB 3 4" F R MDF w WV2 Pane Moun ng By M wo k Vendo C2 See P an S uc u a D aw ng Fo Pa on De a s 3 The ma be nsu a on L ne of Base - See E eva ons WV1 106 107 103 Doo See P an Schedu e New 4 Ter azzo Base Cham ered Top S de TR1 L m of Door A Jamb De a 1 2 1 -0 Doo See E evat ons Schedu e R1 3 4" F R P ywood L ne o Base - See E evat ons M F ame A S des L ne of M or Mas c 104 Open C rcu a on 102 Exe c se Room B P an Fe ASTM E-84 By O he s 1 2 F R P ywood P an e See A-307 #6 9 TR1 New 4 Ter azzo Base Cham e ed Top S de TR1 Doo B J mb De a : Rm 102 E e c se Room 1 2" 1 -0 Jamb De a Doo G Rm 103 1 2 1 -0 Door See Schedu e 5 8" F R P ywood 3 4" F R P ywood F y Reg e DRMZ-50-375 Bo h S des VCT1 L ne o L gh Co e Above G Pane Moun ng By M wo k Vendor C1 WV1 3 4 F R MDF w/ Ce ng Sect on Co umn 10B 9B W ness 1 2" WV2 8 -0 A F F ACT1 F5 Mas c App ed Ex s ng Conc ete S ab Beam V F 7 -10 1 2 A F F 3 1 2 1 1 2 1 8 5 8 Type X GWB PT F n WV2 7/8 Ha Channe 5/8 F R P ywood Pane Moun ng By M wo k Vendor 3/4 F R MDF w 104 Open C cu a on W4 9 5 8 Type X GWB PT F n ACT3 2 -0 E Q E Q A gn 5 8 F R P ywood L gh F x u e See RCP/ Schedu e F R B ock ng Rad us GWB Corne - See RCP Acous Bu Ce ng 5 8 Type X GWB PT F n L nea D user See Mech D aw ngs Re e o S uc u a Draw ngs For F am ng S uc u a De a s Typ Ce ng De a Rm 103 1 2" ACT1 L gh F x ure See RCP Schedu e L gh The ma be nsu a on See S uc u a D aw ng Fo F am ng De a s Ax om nd ec L gh Cove AX DL 8 6 6 Typ 6 Rm 105 11 1 Rm 105 GL7 GWB @ Rm 114 5 8 Type X GWB PT F n 14 -6 A F F 12 -10 A F F 2 -0 L gh F x u e See RCP Schedu e F R B ock ng Refe o S uc u a Draw ngs For F am ng S uc u a De a s 2 3 / 8 6 5 8 A gn ACT1 9 Typ C ng Det 1 1 1 -0 Typ Ce ng De a 1 2 = 1WV2 106 107 WV1 103 Doo See P an Schedu e 1 16 Reve P vot Prov de Open ng n S ab C ack Suppress on Memb ane Ex s ng S ab: Sca y Leve And Pa ch A C acks C2 4 TR1 Doo A S De a 2 1" A-302-5 De a 1 2 =Ex s ng S ab Scar fy Leve Pa h A C acks R1 9" B3 L ne o M ro Mas c App ed w M F ame GL1 1 2 D a n See Mechan ca D aw ngs Cus om Coppe Gu e B P an Wa Des gn 1 2 Oak P ywood S a ned B ack Wa e proo Box- See E ect ca D aw ngs 1 2" Thk W4 Fe Pocke - Supp ed By P an Wa Des gn ASTM E84 C ass A 1 2 F R Ma ne Grade P ywood TR1 1 2 P ywood B ock ng 19 W4 14 Bar F n sh B5 S cone Cau k A Edges 2" 4 Sof De a Banque e Rm 103 106 1 2 1 -0 See S uc ura Draw ngs Fo F am ng De a s 5 8" Type X GWB PT F n L gh F x u e See RCP Schedu e 5 8 F R P wood 3 4 F R P wood A g n WV1 3 4 F R MDF w Fry Reg e DRMZ-50-375 Bo h S des) 5 8 F R P ywood B ock ng W1 1 7 L ght WV1 103 106 WV2 103 106 WV2 On y @Rm 103 103 106 W2 S De a Banquet e Rm 103 106 1 2 1 -0 5/8 F R P ywood B ock ng WV1 Pane Mount ng By M work Vendo 2 3 1 7 L gh F x ure See RCP Schedu eConcea W h n 3 4 F R MDF w/ 5 8 Type X GWB Banque e Secu e o Wa 1 -1" @Rm 103 A gn @Rm 103 2 2 @Rm 106 On y @Rm 103 W1 103 106 W2 10 7 8" @Rm 106 9 7 8 @Rm 103 103 106 WV2 P n De a : Mon or A cove Rm 103 Mu purpose 1 " -0 Refe o S u tu a D aw ngs Fo F am ng S uctu a De a s 1 2" F R P ywood Se u e o Ex s ng Wa GL2 6 Pane Moun ng B M work Vendo 3 4 F R MDF w 8" F2 L Shape M r or Frame 5 8 Type X GWB PT F n L gh F x u e See RCP Schedu e Ex s ng Wa 1 1 / 2 A g n 3 4 F R P ywood Pane Moun ng By M work Vendo WV1 L ne o So Above WV1 3 4" F R P ywood Ex s ng GWB F am ng- V F See P an Fo Pa t on Deta A i g n Ex st ng S ruc u e V F L ne o F e Proo ng V F 5 8" F R P ywood F y Reg e DRMZ-50-375 (Bo h S de ) 5/8 Type X GWB 3/4 F R MDF w WV2 Pane Moun ng By M wo Vendo TR1 L m o New 4 Te razzo Base Cham e ed Top S de Doo D No h Jam b De a Rm 106 1 2 1 -0
        1 -0 West S c on RM 3 1 1 -0 No h So h S c on RM 03 01 15 -10 A F F 0 -0 A F F 26 1 00 4 4 6 7 10 1 13 15 16 1 14 5 17 25 7 WV 101 Gymna um 103 Mu pu pose Room 8 A-307 A- 07 9 7 8 3 2 -3 0 -0 A F F 10 -0" A F F 12 -6 A F F 15 -0 A F F 1 18 7 9 23 24 22 17 17 25 26 7 5 22 WV1 103 M pu pose R m 20 12 A-30 11 A-30 28 1 -0 A F F 9 35 10 -0 A F F 12 -0 A F F 9 25 26 7 22 22 Con e ence Room 06 WV2 5 24 23 38 29 5 A-30 1 A- 11 16 EQ EQ B2 2 -1 1 4 31 1 " -0 Eas Wes Sec n @ TV RM 1 6 1 1 4 -6 M n 11 -4 A F F 12 - 0 A F F 15" A F F 5 48 39 40 41 42 46 104 102 Gym Open C cu a on 29 6 A-307 0 -0 A F F 33 26 5 8 45 14 A- 07 3 15 A-30 8 105 Lounge 45 7 23 24 30 A- 11 25 26 33 7 A- 11 10 A-3 7 60 7 25 31 1 2 1 -0 No h Sou h Se on @ Lounge Rm 1 5 8 -0 A F F EQ EQ 2 -3 1 2 1 -0 8 22 2 5 45 25 26 14 1 19 7 8 22 61 8 A-30 1 1 -0 We ess Cen e Ex o W Sec on 27 4 1 4 30 20 20 2 -2 1 2 2 -0 1 4 1 -4 1 2 Was e B n Pu -Ou Hä e e Ma Doub 2 52 q em n 503 15 224 B5 S Re e o A-310 #4 S B5 Re e o A-310 #4 4 2 -0 8 2 -8 1 8 1 -5 3 4 1 1 4 1 - 3 4 22 5 1 EMTEK Pu - 6360 3 -0 11 7 -0 7 8 EMTEK Pu -86360 1 1 30 36 W de Bu - n Re ra o -F eeze ADA Com an SKU FFRF36 FADA 1 1 4 1 1 4 2 -0 L ne o Re r ge a or Beyon P o de Lock P1 8" 3 - 3 4" P1 P ov de ocks Rm 1 5 Cab ne 4 1" 5 23 4 5 23 4 2 2 -6 1 2 2 3 -2 2 -10 4 1 -1 1" 2 -0 EMTEK P -87120 P ov de F r Da a Powe L gh ng ST04 L g ng ST04 Se ure To W F oo Rm 1 4 Ju e Ba 3 4 1" WV2 5 23 4 30 S2 B5 Re e o A-310 #4 W4 3 -2 6 -6 7 8 22 5 23 4 S2 B 3 -2" 6 -6 7 8 22 30 EMTEK Pu -87120 P ov de Lo ks L gh ng Beh nd Cus om Ou e Boxe B S S Tab e Mens Womens ow H mpe Cab ne 3 -0 4 24 Va e 1 4 L nen B Beh nd EQ 1 -0 C O See P n 4 24 3 4 P ywood L en B Cu Ou Se P a P 1 P 2 SS1 PL1 P 2 P 2 SS1 P v Lo ks EQ EMTEK Pu -86 60
         
    28-40 W 23RD ST RENOVATION
          Commercial Building Renovation: Modernizing a Central Hub
          Category: SD-CD, Commercial
          Site: 28-40 W 23rd St, Manhattan, NY
          (My role: Site Survey, Programming, Planning, 3D Modeling, Presentation Drawings/ Renderings, Bidding Document, DOB-CCD1 Filing-in progress, Construction Document)
          The project is situated at 23rd Street, New York, comprising a 7-story building adjacent to a 12-story office building. The primary objective of this endeavor is to refurbish the office space, with a particular focus on enhancing and expanding its public areas.
          02
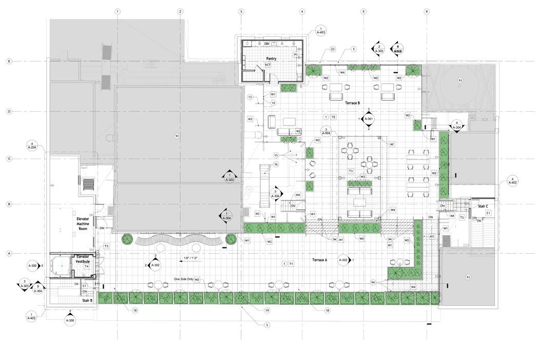
        PHASE1- 40W ROOF ATRIUM & TERRACE RENOVATION
          Atrium Renovation
           
    Base on the site survey, we came up with 2 options for the renovtion:
          OPT1 The Inner Court has great character, surprise, and uniqueness. It only needs to amplify its core and reduce the extras.
          It wants to be polished
          OPT2 The Atrium currently excludes the seventh floor and the rooftop. The Cube concept extends the skylight to include the 7th floor and opens up to the terraces on the 6th floor roof. It merges both inside and outside to make an integrated approach for all.
          The 6th/7th floors can then become a boutique commercial penthouse. With its own terrace, views out, and a connection to the inner court.
          It is the King of the Hill.
           
     
     
     
     
     
     
     
     Terrace Renovation Plan & Rendering
          Site (Photograph)
          Atrium Renovation
          OPT1 Polished
          Atrium Renovation
          OPT2 The Cube
          OPT1
          OPT2
    Terrace Renovation Plan & Rendering
          Site (Photograph)
          Atrium Renovation
          OPT1 Polished
          Atrium Renovation
          OPT2 The Cube
          OPT1
          OPT2
           
     
     
     
     
    Sky Lobby- 5th&6th Public Circulation
           
     
     
     
     PHASE2- 28W TERRACE RENOVATION
          PHASE3- 40W 5, 6, 7TH PUBLIC AREA RENOVATION CONCEPT
    PHASE2- 28W TERRACE RENOVATION
          PHASE3- 40W 5, 6, 7TH PUBLIC AREA RENOVATION CONCEPT
          5th, 6th, and 7th Test Fit Plan
           
     
     
     
     
     
     
     
    5th, 6th, 7th Public Stair/ Area Concept & Test Fit Plan ROOM OFFICE HUDDLE CONFERENCE STORAGE OFFICE OFFICE OFFICE OFFICE OFFICE OFFICE OFFICE OFFICE OFFICE OFFICE STORAGE ELECTRICAL ROOM WOMEN STORAGE CONFERENCE ELECTRICAL ROOM JANITORS ROOM COPY ROOM ROOM PHONEPHONEPHONE HUDDLE PANTRY CONFERENCE 5TH FLOOR SUMMARY 22 PRIVATE OFFICE 404 WORKSTATIONS 426 PERSONS TOTAL 242@40 184@28 12 PERSON CONFERENCE 10 PERSON CONFERENCE PERSON CONFERENCE PERSON CONFERENCE PERSON CONFERENCE 10 HUDDLE 11 PHONE/ ZOOM ROOM PANTRY GENDER NEUTRAL ADA RESTROOM WELLNESS/ MOTHERS ROOM COPY/ PRINT/ MAIL ROOM STORAGE COAT CLOSETS SERVER ROOM NEUTRAL ROOM ROOM PHONE HUDDLE 40 WEST 23RD 28 WEST 23RD 22ND STREET 23RD STREET UP 5TH FLOOR OPTION 2: [LARGE PANTRY] 28-40 W 23rd St Commercial Triplex 5th & 6th & 7th Floors 3/7/2024 SK-2 OFFICE OFFICE OFFICE OFFICE CONFERENCE ROOM LOBBY OFFICE OFFICE OFFICE OFFICE HUDDLE HUDDLE OFFICE OFFICE ELECTRICAL EL. 6TH FLOOR SUMMARY: 10 PRIVATE OFFICE 49 WORKSTATIONS RECEPTION DESKS 60 PERSONS TOTAL 16 PERSON BOARD ROOM 10 PERSON CONFERENCE PERSON CONFERENCE HUDDLE PANTRY STORAGE COAT CLOSETS ROOM ROOM 23RD STREET 6TH FLOOR 7TH 28-40 W 23rd St Commercial Triplex 5th & 6th & 7th Floors 3/7/2024 OFFICE OFFICE OFFICE OFFICE CONFERENCE ROOM LOBBY OFFICE OFFICE OFFICE OFFICE HUDDLE HUDDLE OFFICE OFFICE ELECTRICAL DN EL. 6TH FLOOR SUMMARY: 10 PRIVATE OFFICE 49 WORKSTATIONS RECEPTION DESKS 60 PERSONS TOTAL 16 PERSON BOARD ROOM 10 PERSON CONFERENCE PERSON CONFERENCE HUDDLE PANTRY STORAGE COAT CLOSETS ROOM ROOM 23RD STREET 6TH FLOOR AREA/ ROOM PANTRY GENDER OPEN BELOW 7TH FLOOR SUMMARY: PANTRY GENDER NEUTRAL ADA RESTROOM 23RD STREET 7TH FLOOR 28-40 W 23rd St Commercial Triplex 5th & 6th & 7th Floors 3/7/2024 SK-5
        Programming, Planning, 3D Modeling, Presentation Drawings/ Renderings, Bidding Document, DOB Filing, Construction Document (The Whole Drawing Set in Revit), Furniture/ Finish/ Fixture/
           
     
    DN A-200 A-200 1 A-200 6 A-205 1 A-202 3 Pantry 113 Extg. Restroom 1 112 Extg. Restroom 2 111 Electrical Closet 110 Conference Room 109 ATM Workroom 105 Work Area 108 Banker Platform 107 Banker Platform 106 Teller Area 104 Public Area 102 Vestibule 101 1.1 1.1 1.1 1.4 1.1 1.1 1.1 EX 1.1 A-201 A-203 1.1 A-201 1 A-202 6 4 A-203 3 A EX2 EX3 A-203 1 C EX1 Reception Area 103 11 3 4 Egress 115 Passage 114 EX 2.1 2.1 1.1 1.3 Ave M Extg. Sidewalk No Change 15 1 1 13th Street Extg. Sidewalk No Change Extg. Vestibule Extg. Egress From Cellar 5 A-201 A-201 4 Extg. Lobby Extg. Step EX 3 3 3 EX EX Align D Closet 116 1.1 E K L Janitor's Closet 117 14 12 12 16 17 17 Typ. 2.3 A-103 2.3 2 20 20 J 19 7 1' 0" 1.1 1.1 1.1 1.1 1.3 1.1 1.1 1.2 23 23 19 22 21 18 1 1.2 2.3 1.2 1.2 1.2 1.2 24 24 A-102 Typ. 4 A-202 A-201 12 A-201 9 11 10 13 1 Bank 2818 Net sq ft 14 RA F N N H 75CD N H 75CD N H 30CD N 75CD N N 30CD F N H 75CD N H N 75CD S N 30CD S N 30CD 2.3 2.3 2.3 19 A-202 9 25 25 18" DR N 2.3 A-202 14 1.5 26 27 28 VIF. 15' 1" VIF. 15' 5" VIF. 30' 4" VIF. 64' 1 1/2" VIF. 7' 4 1/2" Hold 5' 0" VIF. 21' 0 1/2" VIF. VIF 14' 9" 7' 9 1/2" VIF. 10' 11" 1' 7" 8' 3" 16' 0" 18' 10 1/2" VIF. 11' 1/2" Hold 3' -4" 9' 10 3/4" 1" VIF. 12'10" VIF. 11' 6" 2.3 1.1 Hold 5' 0" 1' 0" 10" 3' 0" VIF. 14' 4 1/2" 2' 8" 3' 0" 8" 10" 1/2" 3' 0" 4" 3' 0" Hold 5' 0" VIF. 40' 4" 3' 5 1/2" VIF. 6' 1" 1/2" 4' 4" 1' 0" 4' 7 1/2" 2'9 1/2" 13 2'8 1/2" 4' 9 1/2" 3' 2" 1' 7 1/2" G 2' 1/2" 2' 7 1/2" 1/2" 3' -0" 5' 11 1/2" 12' 10" Hold 8' 6" 1' 9" 1'9 1/2" 8' -8" Hold 12'2" 6' 8" 1' 7" 6" 3' -0" 3'0 1/2" 2' 6" EQ EQ EQ 11'10" VIF. 14' 4" VIF. 9' 10" 3' -0" 3'7 1/2"3'0" 1' -7 1/2" 11" 7'7" 1' 7" VIF. 40' 1/2" VIF. 11' 8" 1' 6" 3' 0" 11" 1'2" 13'7" VIF. 8" 1' 1" 9' 1" 10" 0' 10" 3' 1" 3' 10" 3' 10" 1' 10" VIF. 8' 3" 4' 2" VIF. 8' 7" 1' 8" 6" 2'-9"
        6" 8' 7" 2' 2" 2'6" 1' 11" A-200 8 7 9 VIF. 15'0" 29 30 EQ EQ A-102 A-401 Note: Clean Storefront Glass Prior To Installation of 1.4 Window Window A-401 Note: Clean Storefront Glass Prior To Installation of 1.1 Nested Bracing O.C. Max. May Not Exceed Extg. Structure 20 GA. "CEE" O.C. Max. Details For Information. RR#2582 3/4" 18 GA. Channel Bridging At +/- 4'-0" Bottom Track HILTI KB-TZ 1/2" Min. Embedment ESR-1917 Walls Over 12" O.C. 16GA. Track 18 GA. Top Together At Staggered RR#2582 9Safes To Be Required. 10 Extg. Duct/ Enclosure; 11 Extg. Siamese/ 12ADA Saddle. 131 1/2" Dia Mtl. 14Al. Glass Interior 15Al. Glass Interior 16New Courier 17TV Provided By 18Contract Furniture 19Provide F.R. Solid #6 Ground Location By Apple 20Copier Supplied 21Extg. Pipe VIF. 22Provide Closet 23Add [2] Additional 24Existing Storefront 25GWB Knee Wall 26Handrail On Both 27Add 5/8" Layer 28Fur Out Wall 29Provide ADA 30Bottle Filling Station 1/2" 1'-0" 2 Metal Stud Framing 5 CONSTRUCTION PLAN ELEVATION EXTERIOR/ INTERIOR APPLE BANK BRANCH RENOVATION Completion Time: Aug, 2023 Category: Built, Commercial Site: Brooklyn, NY Building Area: 2,800 SF
        role: Site Survey,
        Accessory
        Retail Bank Interior Renovation 03 4" Extg. Building No Work In This Area Bank Portion of Facade 3 7 3 3 2 Ave M 12 10 8 9 11 2' 6" VIF. 10'4" EX1 20 3 3 VIF. 61' 11 3/4" WC1 21 Extg. Building No Work In This Area Bank Portion of Facade 4" 5 2 E 13th St 3 13 Extg. Lobby Entry Egress From Cellar 2' 6" VIF. 10'4" 14 1 VIF. 22' 1/4" PL1 0' 0" 1 st Floor WC1 21 A-101 1/4" 1'-0" 1 North Elevation- Exterior 1/4" 1'-0" 2 East Elevation- Exterior Legend: 1 2 3 4 5 6 7 8 9 10 11 12 13 14 15 16 17 18 19 20 21 22 23 24 1/4" 1'-0" 3 North Elevation- Reception Area 1/4" 1'-0" 4 Elevation- Teller and Banker Platform 5 5 4" Extg. Building No Work In This Area Bank Portion of Facade 2 3 7 3 2 2 2 2 Ave M 5 12 10 11 2' 6" VIF. 10' 4" EX1 1 20 3 3 3 VIF. 61' 11 3/4" WC1 6 Extg. Building No Work In This Area Bank Portion of Facade 4" 2 3 4 4 E 13th St 3 13 Extg. Lobby Entry Egress From Cellar 2' 6" VIF. 10' 4" 14 7 VIF. 22' 8 1/4" PL1 0' 0"st Floor WC1 6 21 17 SS1 SS1 P1 P1 PL1 A-101 A-205 5 B1 B1 PL1 15 P1 P1 PL1 SS1 P1 P1 19 ACT1 GWB ACT1 3 GWB GWB PL1 3' 6" Typ. 6'8" 24 24 D P1 WC1 P4 WC1 18 18 18 PL1 A-101 A-205 B1 PL1 19 GWB ACT1 ACT1 P3 P4 22 22 22 22 22 23 23 24 Typ. 6' 8" P1 A-101 A-101 4 19 ACT1 ACT1 GWB B1 P3 A-203 2 B C B1 P1 P1 A-101 5 16 19 GL2 GL2 ACT1 ACT1 GWB P1 22 22 1/4" = 1'-0" 1 North Elevation- Exterior 1/4" = 1'-0" 2 East Elevation- Exterior 10 11 12 13 14 15 16 17 18 19 20 21 22 23 24 1/4" = 1'-0" 3 North Elevation- Reception Area 1/4" = 1'-0" 5 South Elevation- Public Area 1/4" = 1'-0" 4 Elevation- Teller and Banker Platform 1/4" = 1'-0" 6 East Elevation- Public Area 5 4" Extg. Building No Work In This Area Bank Portion of Facade 2 3 7 3 2 2 2 Ave M 5 12 10 9 11 2' 6" VIF. 10' 4" EX1 20 3 3 3 VIF. 61' 11 3/4" WC1 21 Extg. Building No Work In This Area Bank Portion of Facade 4" 2 5 3 4 4 E 13th St 3 13 Extg. Lobby Entry Egress From Cellar 2' 6" VIF. 10' 4" 14 7 VIF. 22' 8 1/4" PL1 0' 0"st Floor WC1 6 21 17 SS1 SS1 P1 P1 PL1 A-101 A-205 5 B1 B1 PL1 15 P1 P1 PL1 SS1 P1 P1 19 ACT1 GWB ACT1 3 GWB GWB PL1 3' 6" Typ. 6'8" 24 24 D P1 WC1 P4 WC1 18 18 18 PL1 A-101 A-205 B1 PL1 19 GWB ACT1 ACT1 P3 P4 22 22 22 22 23 23 24 Typ. 6' 8" P1 A-101 5 A-101 4 19 ACT1 ACT1 GWB B1 P3 A-203 2 B C B1 P1 P1 A-101 5 16 19 GL2 GL2 ACT1 ACT1 GWB P1 22 22 1/4" = 1'-0" 1 North Elevation- Exterior 1/4" = 1'-0" 2 East Elevation- Exterior Legend: New Illuminated Sign 2" Thick Aluminum Application. New Light Fixture Existing Mtl./Glass Existing Venting To Existing Facade Exterior Side of Interior P1 GWB Interor Wall Existing Storefront/ Provide New Vinyl 10 Provide ADA Saddle; 11 Security Card Reader Required. 12 Existing Siamese: 13 Existing Venting 14 Edge of ATM Wall. 15 Millwork Per Apple 16 Skywall Partition, Provide 17 TV Provided By Apple 18 Contract Furniture 19 Existing Decking/ Repaired Or Replaced 20 Existing Sprinkler 21 Interior Wall Joints. 22 Room Signage By 23 Provide 2Hr Spray 24 Wall Mounted Horn 1/4" = 1'-0" 3 North Elevation- Reception Area 1/4" = 1'-0" 5 South Elevation- Public Area 1/4" = 1'-0" 4 Elevation- Teller and Banker Platform 1/4" = 1'-0" 6 East Elevation- Public Area 5 5 1/4" = 1'-0" 7 South Elevation-
        3'-0"2'-9"
        (My
        Options, FF&E Specs Organization, Shop Drawings/ Quotes Review, Site Review)
         
     
     
     
     
    RENDERING OPT-1 RENDERING OPT-2 / FINISH SWATCHES LIGHTING TEST FITS A-203 A-203 Refrigerator As Scheduled. Microwave As Scheduled. PL3 Lower Cabinets Upper Cabinets PL1 PL2 Countertop PL3 Backsplash Sink And Faucet As Scheduled. Water Fountain As Scheduled. 2' 1" 10 A-203 2' 6" 6" 0" 1' Typ. 1' 4" 3/4" Thk. White Melamine Shelves Wall Mounted Shelf Brackets, Secured Studs And/ Or Blocking, G.C. To Provide PL2 PL2 Countertop PL2 Back Valance Frame Adjustable Shelf PL2 PL2 10 A-203 Provide Grommets As Required. Verified w/ Apple Bank And Architect. PL2 Countertop 6" 0" 1' Line Wall Mounted Shelves Above A-203 1' 3" 3" 3" 9" PL1 SS1 SS1 VIF. 5' 1/2" A-203 A-203 Polycarbonate Ticket Holders Routed Into Countertop Countertop 0' 11 3/4" 11 3/4" VIF. 5' 1/2" SS1 9" A-203 A-203 5" 1' 5" 1' 3/8" 1/2" 1/2" Microwave As Scheduled Refrigerator As Scheduled PL3 PL1 VIF. 9' 3/4" 2' 9" P1 PL2 PL3 ACT1 B1 2' 10" 3/8" 8" 1' 1" 1' 8" 4" St. Stl. Trash Grommet 2' 8" 1 1/2" 2' 2 1/2" Trash Can: Uline S-13527 or Equal White Melamine Cabinet Interior Typ. ACT1 Acoustic Ceiling PL3 Upper Cabinets Adjustable Shelves Typ. White Melamine Interior Typ. Backsplash PL2 Countertop White Melamine Interior Typ. Adjustable Shelves Typ. PL1 Base Cabinets PL3 Microwave As Scheduled 3/4" 3/4" 1' 8 3/4" Bottle Filling Station Surface Mount As Scheduled PL1 Sink and Faucet As Scheduled VIF. 7' 1/8" P2 2' 10" Open To Beyond 0' 1/8" 2' 0" 0" 0' 3" 1" 1' 8" SS1 PL1 1/8" Reveal Typ. SS1 Polycarbonate Ticket Holders Routed Into Countertop 3/4" 1/2" 4" 1" 1" New Wall G.C. To Provide Blocking 2" Adjustable Feet Typ. PL2 PL2 2' 6" VIF. 5' 7/8" 7/8" 7/8" PL1 SS1 WICKBERG Courier Boxes Model #11731 2' 8" Issues And Revisions: Address: 1214 Ave Brooklyn GEORGE BOYLE 2023 1214 Ave M 1214 Ave Brooklyn, Written dimensions shall have precedence shall verify and responsible for dimensions office must notified any variations from these drawings. rights reserved. drawings, specifications, the Architect and remain property. They other project unless written permission given Seal: Drawing Title: Scale: Drawing No.: As indicated A-203 Interior Elevation Details DOB Job NOW # 1/2" 1'-0" 4 Pantry Detail Plan 3/4" 1'-0" 7 Detail Elevation- Large Desk Office 3/4" 1'-0" 3 Detail Plan- Large Desk @ Office 1" 1'-0" 2 Detail Elevation- Check Desk @ Reception 1" 1'-0" 1 Detail Plan- Check Desk @ Reception 1/2" 1'-0" 6 Detail Elevation- Pantry Area 1" 1'-0" 9 Detail Section- Check Desk @ Entrance 1/2" 1'-0" 5 Detail Section- Pantry Area 1" 1'-0" 8 Detail Section- Check Desk @ Entrance. 3/4" 1'-0" 10 Detail Section- Large Desk Office 02.07.2023 03.24.2023 1" 1'-0" 11 Detail Elevation- Check Desk @ Entrance Millwork By Apple Vendor Millwork By Apple Vendor Millwork By Apple Vendor Millwork By Apple Vendor Millwork By Apple Vendor Millwork By Apple Vendor Millwork By Apple Vendor Millwork By Apple Vendor Millwork By Apple Vendor Millwork By Apple Vendor Millwork By Apple Vendor Note: Millwork By Apple Vendor w/ All Trades. A-205 A-205 A-205 0" 1/8" 3' 0" 2' 1/8" 2' 1/8" 3' 2' 1/8" Line of Cove Above Grommets In Countertop Typ., VIF. Locations Countertop @ 2'-9 1/4" A.F.F. 1.3 1.1 1.3 1.1 3' 0" 5' 10 7/8" 2' 1" 1.1 Provide Grommet VIF. w/ Architect Typ. 5" 6' 5" 6' 5" Countertop @ 3'-0" A.F.F. Cash Dispensers By Apple Bank Vendor VIF. 19' 6" B.R. Plexiglass Pass-through By Apple Bank Vendor B.R. Plexiglass Panels By Apple Bank Vendor Recessed Deal Tray Typ. PL1 PL1 SS1 PL1 PL1 SS1 Existing Wall 1.1 1.2 Provide Additional Framing Below. Extg. Soffit VIF. 1.1 WC1 Typ. GWB w/ WC1 Window Window A-401 A-401 1/8" 0" 1/8" 3' 0" 2' 1/8" 0" 1/8" A-205 P5 Millwork By Apple Vendor Lateral File By Apple Vendor 1/4" Countertop SS1 PL1 PL1 PL1 PL1 PL1 ACT1 ACT1 VIF. 19' 6" Signage By Apple Vendor Provide GWB Soffit P3 WC1 A-401 2' 11" 0" 6" 11" 2' 0" 11" 6" 5" 5" 5" Cash Recycler Custom Enclosure By Apple Vendor 1/4" Countertop SS1 BR Glass By Apple Vendor ACT1 ACT1 File Cabinets By Apple Vendor PL2 PL2 PL2 Access Panel Typ. A-401 WC1 PL1 SS1 BR Glass By Apple Vendor GWB P1 Extg. Storefront Line of Furniture By Apple Vendor 1.1 WC1 A-401 4" 8" 1' 10" 2" Existing Floor Deck 3"D 14"W 14"L Plywood Box Secure To Studs, Coordinate w/ Millwork/ BR Glass Vendors. Millwork Panel Recessed Mounting Channel BR Plexiglass Buttreses BR Plexiglass Panels And Buttresses By Apple Bank Vendor SS1 PL1 PL2 SS1 PL1 1" 1" 1 1/4" 2' 8" PL1 PL1 Cash Dispenser By Apple Bank Vendor A-101 Stainless Steel Deal Tray PL1 1.2 Provide Additional Framing Plot Plan: 6741 Block: 1214 Ave Brooklyn 1214 Ave M Brooklyn, shall verify and responsible for dimensions office must notified any variations from these drawings. rights reserved. drawings, specifications, the Architect and remain property. They other project unless written permission given Seal: Drawing No.: Page Number: 1/2" 1'-0" A-205 Teller Area Detail Plan DOB Job NOW # 1/2" 1'-0" 1 Teller Area Detail Plan 1/2" 1'-0" 3 West Elevation- Teller Area 1/2" 1'-0" 2 East Elevation- Teller Area 1/2" 1'-0" 4 West Elevation- Teller Exterior 1/2" 1'-0" 5 Detail Section- Teller Area No. Date 03.14.2023 Millwork By Apple Vendor Millwork By Apple Vendor Millwork By Apple Vendor Millwork By Apple Vendor Millwork By Apple Vendor Note: Millwork/ BR Glass/ File Vendor G.C. To Coorperate
        
              
              
            
            STORYTELLER
          Immersive Theatre for the Drama Sleep No More
          Renovation of Paper Factory in Marzabotto Competition
          Duration: 2018.05-2018.06
          Instructor: Prof. Li Bing
          Category: Design
          Site: Marzabotto, Italy
          Building Area: 4200 ㎡
          The project is a renovation of the Mantuan paper factory and the idea of the renovation starts from exploring correspondence between drama scene and space. Dramatic conflict produces spatial perception. And the narrative order of space is in connection with the development of the drama. A new type of theatre called "Immersive Theatre" is built up to create experiences where audience members give up their "observer" status to become co-actors and co-creators of the narrative and of the storytelling process. And the audience will have an emotional resonance from the architecture.
           
    You will be inside the space, choosing what scenes to see, creating movements and physically responding to actions to create site-responsive theatre. The performance will never be the same. In the theatre, audience is the storyteller, actor is the storyteller, space is the storyteller. Everything is the storyteller.
          04
         
     
     
     
     
     
    
              
              
            
            RETAIL & BAR
          Food Space for the Brand HENRI CHARPENTIER
          2020 Spring Interior Design Studio
          Duration: Graduate, 2020.4-2020.5
          Instructor: Jon Otis
          Category: Design Studio in Pratt
          Site: Manhattan, NY
           
    This project is to design a food space for the dessert brand HENRI CHARPENTIER. The site is located at 126 5th Ave, Manhattan. The proposal is for a type of composite-space that merges a sophisticated afternoon or evening dessert and bar destination, with a more casual retail space selling various artisanal sweets and desserts. The design also addresses the new paradigm we are presently living in: a viral pandemic - create spaces where people can see others, hear others, but not come in contact with them directly.
          05
        CONCEPT
          - DUAL- ATMOSPHERE SPACE
          - ADJUSTABLE SPACE
          - SOPHISTICATED MINIMALISM
          - SIMPLE AND CLEAN
           
     
    DESCRIPTION
          The design will feature a separate dessert bar and retail space selling sweet baked goods and desserts as well as items togo. Coffee, beverages, tea and desserts will be served in the afternoon and in the evening specialty desserts will be paired with cocktails or wine. The design will seek to convey a consistent continuity in materials but will have two diverse atmospheres for visitors to experience. Customers can select uniquely-packaged sweets while also maintaining social distancing. The retail space provides the opportunity to sell products to take home during a pandemic.
          ADDRESSING PANDEMIC
          During pandemic period, Retail provide to-go items, shopping in the store considering social distancing Bar provide dining space with separating fabric
          After pandemic(post-pandemic), Adjustable curtains will enable larger group gatherings
          UP TO 72 HOURS:
          This is the amount of time coronavirus can stay active on hard, shiny surfaces
          Think things like play equipment, door and public transport handles and your phone.
           
     
    UP TO 24 HOURS:
          This is the amount of time it took for researchers to find no more viable traces of the virus on cardboard. This is also a good guide for other porous surfaces
          Porous surfaces are much less likely to hold viable amounts of the virus.
           
    Finally decided to use cotton and linen translucent fabric as the partition material. Cotton and linen fabrics give people a sense of intimacy and comfort. At the same time, the translucent fabric provides a certain degree of privacy. It also meets the psychological needs of people under pandemic: you can hear or see each other to a certain extent, but you cannot have direct contact with someone.
           
     
    Show Counter & Cashier Dining Area
        SPACE?
        WHY FABRIC AS PARTITION FOR DINING
         
     
    Bar Area
          CURTAIN RAIL SYSTEM & TRACK LIGHTING
          Consider social distancing during pandemic, using curtain systems to separate people. When it is post-pandemic, adjustable curtains will enable larger group gatherings.
          Also, the rails of the curtain in dining space are extended as the rails of track lighting in retail space.
           
    When post-pandemic, the curtains are opened and people resume social communication.
           
    During pandemic, the curtains as partition to seperate people.
           
    Pandemic:
          During
          Curtains seperate people; Sliding doors block the flow of people passing through the dining space and retail space.
          Post-pandemic: Allow group gatherings; Sliding doors opend to allow the flow of people passing through the dining space and retail space.
          BREATHING
          Interactive Fashion
          2020 Fall Interior Elective
          Duration: Graduate, 2020.10-2020.12
          Instructor: Tania Sofia Branquinho, Elvin Ou
          Category: Interior Elective in Pratt, Group Work
          Co-Designer Pei Yang
           
    With the global spread of the pandemic, the importance of social distancing has become increasingly evident. This installation aims to tackle the current social distancing situation by emphasizing its significance. Our goal is to promote the practice of social distancing throughout the epidemic while also rekindling a sense of intimacy in the post-pandemic era. By integrating interactive lighting and fashion design, we utilize the human body as a symbol and a reminder of the need to maintain appropriate social distance.
          CONCEPT/ MODE
           
    Infectious diseases often have a direct relationship with breathing, so we have chosen breath as the central theme for our installation. By utilizing the switching of light colors and flicker frequencies, we aim to convey human emotions with the twinkle frequency corresponding to the respiratory rate. Through the combination of fabrics with different density and texture, the air is visualized. Through overlapping techniques, we create a dynamic play of lightness with different levels of transparency.
          The installation will feature three distinct modes:
          1. Normal Breathing: Warm white lights will be used to simulate the natural rhythm of human breath.
          2. Rejection during the Pandemic: Red lights with increased flicker frequencies and the sound of a buzzer will convey a sense of rejection.
          3. Welcoming in the Post-Pandemic Era: Colored lights will serve as a welcoming signal, symbolizing a return to normalcy.
          Overall, our installation seeks to explore the connection between breath, light, and human emotions, while representing different responses to the pandemic situation.
          TESTING FACTORS
          Arduino UNO
          Bread Board
          Ultrasonic Distance Sensor
          Buzzer
          LEDs
          Resistors
          Jumper Wires
           
    Ultrasonic Distance Measuring
          We used the ultrasonic sensor and LCD display to confirm the feasibility and accuracy of the installation.
           
     
     
    Ultrasonic Distance Measuring with LCD display / LED / Buzzer
           
    Testing Vedio Ultrasonic sensor / LCD display / LED / buzzer
           
     
     
    06
        FINAL BOARD TESTING
          FINAL BOARD _ During Pandemic
           
     
     
    Rejection
           
    When the objects are 6 feet away from the sensor, the white light will light up at normal speed; When the objects are within 6 feet of the sensor, the red light will light up at faster speed, and the buzzer will ring.
          FINAL BOARD _ During Pandemic
           
     
     
    When the objects are 6 feet away from the sensor, the white light will light up at normal speed; When the objects are within 6 feet of the sensor, the colored light will light up.
           
    FABRIC TEXTURE WITH LIGHT TESTING
           
    FABRIC WITH COLORED LIGHT TESTING
           
     
    FABRICATION
           
     
    FINAL VIDEO/ PHOTOS
           
     
     
    Normal Mode Normal Mode
        Mode Welcome Mode
        
              
              
            
            FLOW PAVILION
          An Installation in Barcelona Pavilion
          2020 Summer Option Studio
          Duration: Graduate, 2020.6-2020.7
          Instructor: David Mans
          Category: Team Work, Co-Designer Xinduo Guo
          Site: Barcelona, Spain
          The Barcelona Pavilion demonstrates a spatial fluidity by creating interlocking space through vertical and horizontal planes, visible or implied. Our installation enlarges the spatial experience of the pavilion by emphasizing the body’s relationship with the surroundings (proprioception). The installation also designs circulations to foster movement around the space.
           
    Upon arrival, the installation begins from the stairs and extends toward the west entrance. Walking around the installation and the Barcelona Pavilion, visitors are sometimes enclosed and sometimes exposed.
           
     
     
    CLIENT AND PROGRAM ANALYSIS
           
    PERSPECTIVE
           
     
     
    TILING STRATEGY
           
    Tiles are assigned based on the “planarity” of the pavilion. Thus tiles in vertical and horizontal directions have different tiles and show a transition from flat to steep. The shadow of the tiling becomes a translation of the structure and direction of the forces above, changing based on the time of the day. Aluminum sheet is selected as the material because of its ductility, reflectivity, strength, and ability to provide shades.
          MEDIAS
          Video
          https://www.youtube.com/watch?v=r1mVt2ANG1Y&t=2s
           
    Panoramic View – Dusk/dawn
          https://api2.enscape3d.com/v3/view/34ad1cbd-d5cf-4476b7cc-57f720c7b5db
           
    Panoramic View – Mid-day
          https://api2.enscape3d.com/v3/view/ba8e668d-2f0b-472a84a0-9fc9618608da
           
    Panoramic View – Afternoon
          https://api2.enscape3d.com/v3/view/77990772-f0bc-4f73ae13-2c867e1cac45
          07 FORM FINDING PROCESS WITH GRASSHOPPER
         
     
     
    OTHER WORKS
         
    