K RESIDENCE - SARDINIA, ITALY

Page 1


K RESIDENCE, ITALY

ARTISTIC DIRECTION

SITE CONTEXT

INTRODUCTION ARCHITECTURE

PROGRESS ART DIRECTION

GF - OUTDOOR DINING

GF - OUTDOOR LIVING LOUNGE

GF - BEDROOM TERRACE

FF - MASTER BEDROOM TERRACE

FF - OUTDOOR ROOFTOP

OUTDOOR POOL

FINAL DESIGN ART DIRECTION

GF - OUTDOOR DINING

GF - OUTDOOR LIVING LOUNGE

GF - BEDROOM TERRACE

FF - OUTDOOR ROOFTOP

FF - MASTER BEDROOM TERRACE

POOL

FOREWORD

CONTENTS

Nestled in the sun-kissed hills of Sardinia, K Residence reflects a lifestyle where architecture flows effortlessly into the landscape, and where outdoor living becomes the soul of the home. This volume celebrates that Mediterranean clarity where stone, sea, and silence converge in a symphony of refined restraint and natural beauty.

More than a residence, this is a philosophy: a place where light filters gently through olive trees, where handcrafted furniture anchors moments of gathering, rest, and reflection. Each terrace, lounge, and shaded corner is designed not only to frame the view, but to invite presence an invitation to live slowly, luxuriously, and with intent.

This document presents a dual vision:

One poetic and immersive, embracing the fluid rhythm of Sardinian life. The other technical and precise, showcasing how bespoke outdoor furniture and architectural details work in harmony to create timeless elegance. From teak textures to stone-clad stairways, each choice serves a lifestyle rooted in simplicity, quality, and connection.

Xavier LOUP Studio, we believe luxury is found in honesty of materials, of craftsmanship, and of purpose. K Residence embodies this truth, revealing how discipline and emotion coexist in every curve, shadow, and surface.

May this volume guide you through a world where design is not declared but feel where the outdoors is not an extension, but the essence of how we live.

Let us build not just for beauty, but for a life well-lived under open skies.

General

Pantogia is a picturesque area in Sardinia, Italy, known for its stunning natural beauty and luxury accommodations. It’s situated near the popular Costa Smeralda, renowned for its crystal-clear waters, beautiful beaches, and high-end resorts. Pantogia offers a more serene alternative to the bustling tourist spots, making it a great spot for relaxation and enjoying the Mediterranean landscape.

Access

Airports to Pantogia are Olbia Costa Smeralda Airport (OLB) and Alghero-Fertilia Airport (AHO).

The architecture of Sardaigne Villa itself stands as an emblem of modern and sophistication. With a commitment to seamlessly blending with nature, this design concept encapsulates a harmonious union of organic elements and warm, earthy materials.

CONTENTS

SCENIC LANDSCAPE AS INSPIRATIONS INTRODUCTION

Reflects the region’s luxurious and serene ambiance Pantogia is known for its upscale residences and scenic landscapes, so outdoor design here emphasizes both beauty and functionality. Key elements such as warmcolored materials, organic shapes, rattan elements, and stone accents are integral to creating a villa that embodies both modern aesthetics and a connection to the natural world. Organic shapes take center stage in the furniture, with curvilinear forms and fluid lines that mimic the contours of the landscape. These shapes not only provide visual interest but also foster a sense of unity with the environment

TERRACED HARMONY

Adding to the natural elegance living walls and native plantings to create a lush, green oasis. Living walls, covered in a variety of local flora, contribute to improved air quality, enhanced insulation, and a vibrant splash of greenery that thrives in the Mediterranean climate. Surrounding the villa with native plantings, such as lavender and olive trees, further harmonizes the design with the local ecosystem, requiring less water and maintance.

TOPOGRAPHY TERRACED HARMONY

This approach not only highlights the beauty of Pantogia’s natural environment but also promotes a sustainable and low-impact lifestyle, providing a serene retreat that is bith luxurious and environmentally conscious.

Pantogia is known for its elevated, rocky terrain. The hills are dotted with Mediterranean vegetation, including olive trees, juniper, and maquis shrubland. The terrain rises sharply from the coast, providing sweeping views of the surrounding landscape and the sea.

The architecture in Pantogia is often designed to blend with the natural topography. Villas and homes are typically built into the hillsides, taking advantage of the terrain to maximize views while minimizing environmental impact. This results in a harmonious blend of natural and built environments. The area is close to the coastline, with many properties offering direct views of the sea. The rugged cliffs and coves along the coast add to the dramatic landscape.

SECTION A-A’

SECTION B-B’

The architecture of Sardaigne Villa itself stands as an emblem of modern and sophistication. With a commitment to seamlessly blending with nature, this design concept encapsulates a harmonious union of organic elements and warm, earthy materials.

Left to right construction process entry to the enclosed location ocean view

PROGRESS

ART DIRECTION & CONCEPT DESIGN

Progressing the design concept for outdoor furniture at K Residence Villa involves site analysis, selecting weather-resistant materials, blending modern and natural aesthetics, ensuring comfort, durability, and harmony with the villa’s architecture and landscape

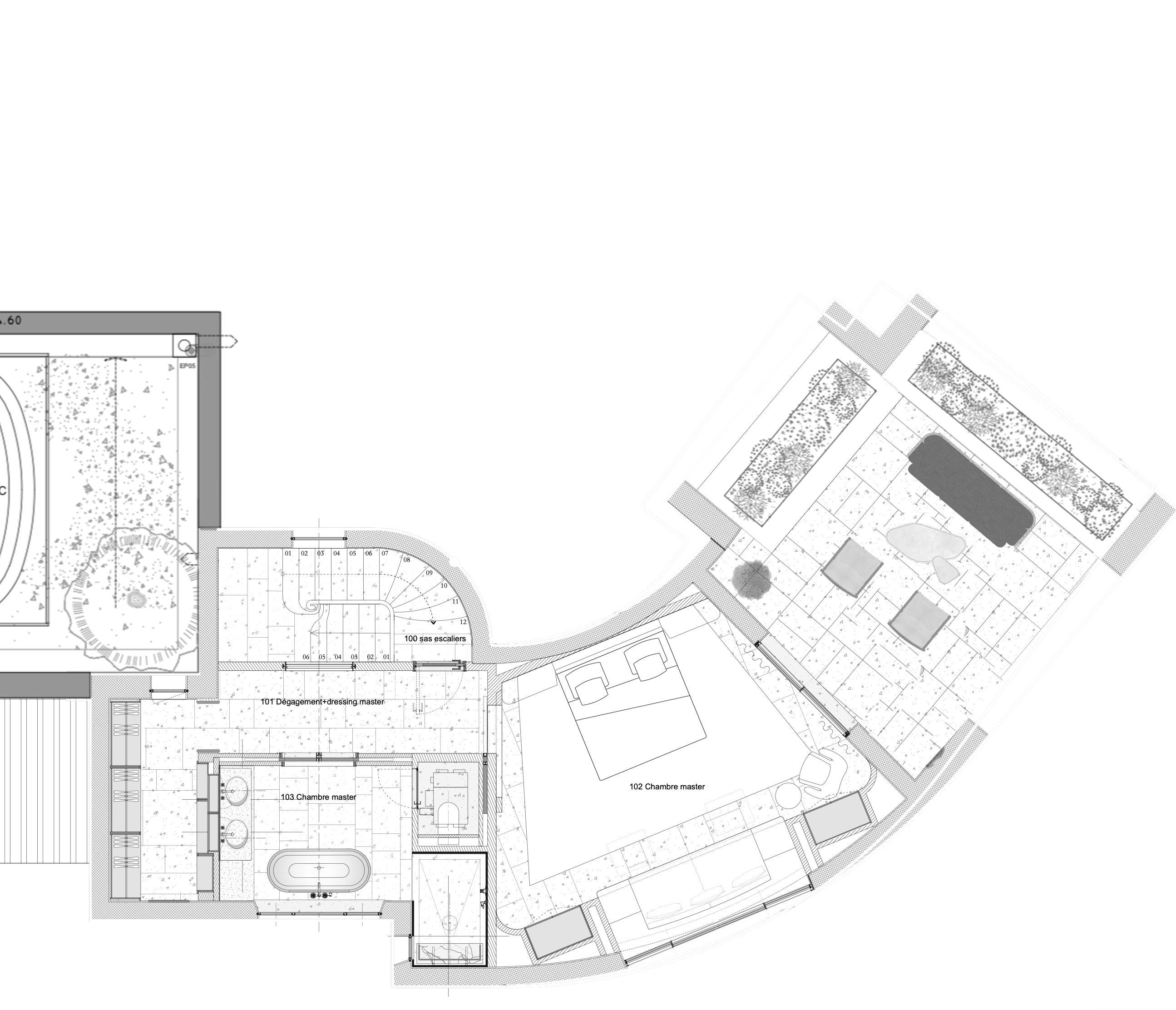
GROUND FLOOR PLAN

GROUND FLOOR PLAN

We wanted to create a design languange that has continuity in all parts of ground floor. Organic and natural elements with warm hues and a touch of soft colors are choose to blended beautifully with the architectures. Ground floor outdoor area consist of outdoor dining, outdoor living / salon and terrace for few bedrooms. All facing the beautiful ocean.

GROUND

GROUND FLOOR OUTDOOR LIVING LOUNGE

TERRACE

entry

GROUND FLOOR PLAN BEDROOM TERRACE

VISUALISATION BEDROOM TERRACE

FIRST FLOOR

The first initial progress on the villa’s first floor includes constructing the outdoor rooftop, shaping the master bedroom terrace, establishing foundational structures, and integrating seamless transitions between indoor and outdoor living spaces.

FIRST FLOOR PLAN

For first floor, our scope of work is the master bedroom outdoor terrace. Outdoor terrace will incorporate similar ambiance of organic, natural texture with warm hues

BEDROOM TERRACE

FIRST FLOOR PLAN MASTER BEDROOM TERRACE

VISUALISATION MASTER BEDROOM TERRACE

FIRST FLOOR MASTER BEDROOM TERRACE

VISUALISATION OUTDOOR ROOFTOP

OUTDOOR POOL

The first initial progress for the outdoor pool villa furniture includes installing the swimming pool, positioning the sofa lounge, selecting weather-resistant materials, and arranging the layout for relaxation and visual appeal

OUTDOOR POOL

Outdoor pool in this house locate on the R-1 level floor (semi basemen) because of the steep contour of the land. This outdoor pool facing the ocean and hill. Similar with the other parts. We wanted to implement natural scheme with warm ambiance but with a touch of cool tone color like light blue and green.

ART DIRECTION & CONCEPT DESIGN

The final direction concept for outdoor furniture emphasizes luxury, comfort, and durability, using high-quality, weather-resistant materials like teak and wicker. It integrates elegant designs, plush cushions, modular versatility, and stylish accessories to create a cohesive, sophisticated outdoor living space that harmonizes with the villa’s architecture and natural surroundings

VERDANT ESCAPE

Layered textures of stone, terracotta, and glass blend seamlessy with lush Mediterranean greenery. Olive trees, blooming bushes, and serene seating evoke a calming balance between modern living and nature.

SARDINIA RISE

Bathed in soft morning light, the villa blends terracotta textures and natural stone with wild Mediterranean greens a tranquil architectural retreat nestled in Sardinia’s hills, designed for calm, sunlit living.

TERRACOTTA RETREAT

A serene mediterranean style home nestled in lush greenery. Warm terracotta walls, soft natural light, and layered textures evoke calm, elegance, and effortless indoor-outdoor connection with nature.

GROUND FLOOR

The final direction concept for the outdoor ground floor furniture includes a stylish dining area for breakfast and dinner, paired with a comfortable living lounge for lunch, using durable, weather-resistant materials and elegant, functional designs that encourage socializing and relaxation

FURNITURE LEGEND

OUTDOOR DINING

OUTDOOR LIVING LOUNGE

Bianca Square Dining Table 2pcs
Bianca Rectangular Dining Table 1 pc
ZONE A 1b Lucia Dining Armchair 24pcs
Noemi Bench 2pcs
Aria coffee table set (set of 3) 1 pc
Alessi Rattan armchair 2 pcs
ZONE B
Chiara Lounge Chair 6pcs
Chloe Stone Side Table 2pcs
Mario XL Coffee Table2pcs
Allesandra XXXL Sofa (8seater) 1pc
Chloe Wood Side table 2pcs
Mario L Coffee Table 6pcs
Bria Stone side table 2pcs

Dining Table Arrangement A 10 dining armchairs, and 2 benches

Dining Table Arrangement B 24 Dining Armchairs, with two additional two square dining table

MORNING TERRACE

As sunlight touches the stone façade, the ground level awakens with calm. Lounge beds, shaded corners, and olive trees set the tone for slow mornings in this Sardinian coastal retreat.

GROUND FLOOR OUTDOOR DINING

Ourdoor dining is located in a special circle void in the middle of the houe. With capacity of 24 people, this area will serve as a warm gathering piece for family and friends to enjoy meals together occasion.

Right to Left
Bianca dining table & Lucia dining armchair

ELEGANT

From the stone staircase, a luxurious outdoor dining space emergeathed in sunlight, wrapped in lush greenery, with refined seating and glass balustrades that elevate alfresco sophistication and serenity.

OUTDOOR DINING

FURNITURELIBRARY

ZONE A

NOEMI BENCH

Measurements : W 200 X D 50 X H 46 cm 1c

Measurements : W 55 X D 55 X H 82 cm

Qty : 24pcs

1b
LUCIA DINING ARMCHAIR

MORNING TABLE

Fresh from a morning swim, the outdoor dining space welcomes you with calm air, soft shadows, and a nourishing breakfast peaceful start under the Sardinian sun, framed by terracotta warmth.

ITALIAN ESSENCE

Bask in Italian lifestyle luxury al fresco dining under warm terracotta hues, artisanal antipasti, rustic table settings, and lush garden views create a refined yet relaxed Mediterranean culinary experience.

OUTDOOR DINING FURNITURELIBRARY

ZONE A

2

BIANCA RECTANGULAR DINING TABLE

Measurements :

W 400 X D 120 X H 74 cm

Qty : 1pc

3

BIANCA SQUARE DINING TABLE

Measurements : W 120 X D 120 X H 74 cm

Qty : 2pcs

TWILIGHT FEAST

As the Sardinian sky deepens into twilight, this outdoor dining scene glows with candlelight and connection a serene setting for shared meals, warm laughter, and Mediterranean evening elegance.

IINTIMATE EVENING

An elegant outdoor dinner unfolds beside a tranquil pool subtle lighting, refined tableware, and gourmet cuisine set the stage for intimate conversations and shared moments under the Mediterranean night sky.

COASTAL INDULGENCE

A candlelit dinner by the sea radiates quiet luxury gourmet platters, fine glassware, and elegant settings invite intimate gatherings, surrounded by lush greenery and the soothing sounds of nature.

GROUND FLOOR

OUTDOOR LIVING LOUNGE

Outdoor living on the ground floor with many capacities and various seating type. Cozy sofa and lounge chairs with several table arrangements. Colour pallete is terracota and light to blends well with building material.

Right to Left
Alessi Rattan Chair

SERENE

A sun-drenched terrace invites leisurely outdoor lunches plush seating, earthy textures, and olive trees evoke refined Mediterranean living, where relaxation and nature blend in effortless luxury beneath a shaded canopy.

ESCAPE

OUTDOOR LIVING LOUNGE

FURNITURELIBRARY

ZONE B

4

CHIARA LOUNGE CHAIR

Measurements :

W 75 X D 80 X H 80 cm

Seat height : 38 cm

Qty : 6pcs

7

ARIA COFFEE TABLE SET

Measurements :

D 100 X H 35 cm

D 77.5 X H 29 cm

D 40 X 29 cm

Qty : 1 set

6

ALESSI RATTAN ARMCHAIR

Measurements :

W 90 X D 72 X H 72 cm

Seat height : 32 cm

Qty : 2pcs

12

ALESSANDRA SOFA XXXL - 8 SEATER

Measurements :

W 73 X D 100 X H 70 cm

Seat Height : 40 cm

Qty : 1 pc

SERENE ESCAPE

A sun-drenched terrace invites leisurely outdoor lunches plush seating, earthy textures, and olive trees evoke refined Mediterranean living, where relaxation and nature blend in effortless luxury beneath a shaded canopy.

OUTDOOR LIVING LOUNGE

FURNITURELIBRARY

ZONE B

CHLOE STONE SIDE TABLE

Measurements : W 40 X D 40 X H 40 cm

Qty : 2pcs

MARIO XL COFFEE TABLE

Measurements : W 130 X D 67,5 X H 38 cm

Qty : 2pcs

BRIA STONE TABLE

Measurements : D 40 X H 40 cm

Qty : 2pcs

MARIO L COFFEE TABLE

Measurements : W 130 X D 67,5 X H 30 cm

Qty : 2 pcs

CHLOE WOOD SIDE TABLE

Measurements : W 40 X D 40 X H 40 cm

Qty : 2pcs

LOUNGE LUNCH

An alfresco setting designed for midday bliss soft textures, curated trays, and open-air comfort invite long lunches, quiet conversations, and a peaceful pause beneath the shade of olive trees.

TRANQUILLOUNGE

Bask in the Mediterranean breeze as soft cushions, neutral tones, and curated bites define a sunlit outdoor lounge perfect for a relaxed luxury lunch surrounded by nature and serenity.

GROUND FLOOR BEDROOM TERRACE

Outdoor living on the ground floor with many capacities and various seating type. Cozy sofa and lounge chairs with several table arrangements. Colour pallete is terracota and light to blends well with building material.

Right to Left
Chiara Lounge Chair

OUTDOOR LIVING LOUNGE

FURNITURELIBRARY

ZONE C ZONE D

4

CHIARA LOUNGE CHAIR

Measurements :

W 75 X D 80 X H 80 cm

Seat height : 38 cm

Qty : 6pcs

5

CHLOE STONE SIDE TABLE

Measurements :

W 40 X D 40 X H 40 cm

Qty : 4pcs

FIRST FLOOR

The final direction concept for the outdoor first floor furniture features sleek, comfortable seating and natural materials, perfectly complementing the rooftop’s sunset retreat ambiance with warm tones, cozy lounges, and ambient lighting for relaxation

Alessandra XL
(3seater) 1pc
Giorgio
Dario coffee table 2pcs
Allessandra XXL (7seater) 1pc ZONE

MASTER BEDROOM TERRACE

Giorgio sofa 3 seater 1pc
Bria stone side table 2pcs
ZONE G
Alessi rattan armchair 2pcs
Mario L coffee table 1pc
side table 1pc

OUTDOOR ROOFTOP

Right to Left
Giorgio armchair

OUTDOOR ROOFTOP

FURNITURELIBRARY

ZONE E

BRIA WOOD TABLE 55

Measurements : D 55 x H 55 cm

Qty : 2pcs

Qty : 1 pc 13

ALESSANDRA SOFA XL - 3 SEATER

Measurements : W 270 X D 100 X H 70 cm

ELENA COFFEE TABLE

Measurements :

W 105 X D 210 X H 37 cm

Qty : 1pc

19

LUNA WOOD STOOL

Measurements : W 40 X D 40 X H 40 cm

Qty : 2 pcs

INTIMATE SUNSET

An intimate rooftop setting in Sardinia, where earthy textures meet Mediterranean breeze. From the stairs, a soft golden sunset invites quiet reflection, wine in hand, surrounded by curated natural elegance.

OUTDOOR ROOFTOP

FURNITURELIBRARY

ZONE F

4

CHIARA LOUNGE CHAIR

Measurements :

W 75 X D 80 X H 80 cm

Seat height : 38 cm

Qty : 4pcs

ALESSANDRA SOFA XXL - 7 SEATER

Measurements :

W 63 X D 100 X H 70 cm

Seat height : 40 cm

Qty : 1 pc

BRIA WOOD TABLES

Measurements :

D 55 X H 55 cm

Qty : 2pcs

DARIO COFFEE TABLE

Measurements :

W 204 X D 84 X H 30 cm

Qty : 2 pcs

OUTDOOR ROOFTOP

FURNITURELIBRARY

ZONE F

GIORGIO LOUNGE CHAIR

Measurements :

W 91 X D 89 X H 68 cm

Seat Height : 43 cm

Qty : 2pcs

BRIA WOOD TABLE 40

Measurements :

D 40 X H 40 cm

Qty : 2 pcs

LUNA CERAMIC SIDE TABLE

Measurements :

W 40 X D 40 X H 40 cm

Qty : 2 pcs

SUNSET SERENITY

As golden light fades, warmth from the fire pit embraces quiet conversations. With Sardinia’s sea on the horizon, the rooftop becomes a peaceful haven to savor the evening glow.

SUNSET RETREAT

A warm rooftop lounge basks in golden sunset light textured cushions, artisan ceramics, and fresh florals create a cozy, elevated escape for tranquil moments and slow sips under the evening sky.

MASTER BEDROOM TERRACE

Right to Left
Giorgio sofa 3 seater

MORNING ESCAPE

A tranquil terrace features a modern rattan chair with a rust-colored cushion, soft natural light, earthy walls, lush greenery, and a cozy sofa—perfect for relaxing outdoors amidst nature.

MASTER BEDROOM TERRACE

FURNITURELIBRARY

ZONE G

6

ALESSI RATTAN ARMCHAIR

Measurements :

W 90 X D 72 X H 72 cm

Seat Height : 32 cm

Qty : 2pcs

MARIO L COFFEE TABLE

Measurements : W 130 X D 67,5 X H 30 cm

Qty : 1 pc

20

GIORGIO LOUNGE CHAIR

Measurements :

W 233 X D 89 X H 68 cm

Qty : 1 pc

21

ELEANOR SIDE TABLE

Measurements :

W 40 X D 50 X H 37 cm

Qty : 1 pc

10

BRIA SIDE TABLE

Measurements :

W 40 X D 40 cm

Qty : 2 pcs

OUTDOOR POOL

Design emphasizes seamless integration with the pool environment, creating distinct zones for relaxation, socializing, and dining. Accessories like retractable canopies, fire tables, and ambient lighting enhance ambiance, while flexible configurations adapt to various occasions, reflecting a sophisticated, resort-style aesthetic. This approach balances durability, style, and comfort for an upscale poolside retreat

Giorgio

OUTDOOR POOL

Outdoor pool on ground floor with many capacities and various seating type. Cozy sofa and lounge chairs with several table arrangements. Colour pallete is terracota and light turqouise to blends well with building material.

Right to Left
Claudia Sunbed

FRAME SERENITY

Soft daylight filters through sheer curtains, revealing a tranquil poolside beyond natural stone walls, minimalist lounge seating, and lush greenery invite seamless indoor-outdoor living in luxurious Mediterranean calm.

TRANSQUILMORNING

Early sunlight touches the stone walls as a gentle swim refreshes the body. Poolside loungers invite relaxation before breakfast, surrounded by Mediterranean greenery and peaceful morning calm.

OUTDOOR POOL

FURNITURELIBRARY

ZONE H

CLAUDIA SINGLE DAYBED LOUNGER

Measurements :

W 90 X D 72 X H 72 cm

Seat Height : 46 cm

SOFIA SIDE TABLE

Measurements : W 45 X D 45 X H 46 cm

Qty : 8 pcs

Qty : 4pcs 24

CLAUDIA DOUBLE DAYBED LOUNGER

Measurements :

W 180 X D 220 X H 73 cm

Seat Height : 46 cm

Qty : 2 pcs 27

ANDRIANA UMBRELLA

Measurements :

W 330 X D 330 X H 258 cm

Qty : 4 pcs

MORNING RITUAL

A peaceful morning begins with a refreshing swim, the scent of blooming flowers, and gentle sunlight setting the perfect tone for a serene breakfast by the Mediterranean

poolside.

OUTDOOR POOL

FURNITURELIBRARY

ZONE H

6

ALESSI RATTAN ARMCHAIR

Measurements :

W 90 X D 72 X H 72 cm

Seat Height : 32 cm

Qty : 2pcs

ELENA COFFEE TABLE

Measurements : W 105 X D 210 X H 37 cm

Qty : 1 pc

17

GIORGIO LOUNGE CHAIR

Measurements :

W 91 X D 89 X H 68 cm

Seat Height : 43 cm

Qty : 2pcs

18

ALESSANDRA SOFA

Measurements :

W 270 X D 100 X H 70 cm

Qty : 1pc

25

LUNA CERAMIC SIDE TABLE

Measurements :

W 40 X D 40 X H 40 cm

Qty : 2 pcs

EVENING ESCAPE

Elegant night unfolds with cocktails by the pool, soft lighting, and relaxed conversations. The villa becomes a serene social hub, where style, nature, and warm Mediterranean air meet effortlessly.

MOONLIT OASIS

The pool glows under soft evening lights, surrounded by fragrant blooms and tall pines. Elegant loungers and shaded terraces invite restful luxury in this serene, starlit Mediterranean garden retreat.

NIGHT LIFESTYLE

Under the warm glow of evening lights, the villa comes alive poolside lounging, soft music, and lively conversation set the tone for an elegant Sardinian night escape.

Allfurnituredesigns,executesbycarefullycraftedmaterialsthrougha meticulousprocessinthefoundry,eachpieceembodiesthetimelessallure ofartistryworkofwood,ceramicandstone.Eachcreationcarriesalegacy ofeleganceandsophistication.

INDUSTRIAL ELEGANCE MEETS HUMAN CRAFT

This final scene captures the quiet pride of creators walking through a space filled with their work where raw material becomes refined form. It speaks of dedication, design, and the enduring artistry behind every finished piece.

IDEATION & DESIGN STAGE MOCKUPREVIEWDINING

Initial mockups allow us to explore proportion, materials, and form at a human scale. Here, the team reviews tabletop variations and texture options, aligning design intent with material possibilities. These discussions are crucial to ensure every detail supports both visual harmony and long-term outdoor durability.

IDEATION & DESIGN STAGE DESIGNFOUNDATION

IDEATION & DESIGN STAGE CRAFTDIALOGUE

Each handcrafted model sparks dialogue between designer and maker. Scale miniatures are studied closely lines traced, proportions debated. It’s not just about how a chair looks, but how it feels in the hand, and later, in use. These quiet moments shape comfort, function, and soul long before full production begins.

MATERIAL SELECTION HARMONYMATERIAL

Each texture is carefully curated from natural rattan to Bali green stone and warm teakwood. These elements are not just materials; they are the foundation of a narrative. Together, they evoke comfort, craftsmanship, and character bridging indoor elegance with outdoor resilience. Every piece tells a tactile story of timeless design.

A. RATTAN B. BALI GREEN STONE C. ROPE D. TEAKWOOD E. ZEOLITH

CRAFTING & JOURNEY SHAPINGSTORIES

Every curve shaped, every joint fitted this is where raw teak becomes timeless design. From sketches on fabric to sawdust-covered floors, each stage tells a story of dedication. These hands shape more than furniture; they preserve tradition. It’s not just making chairs it’s sculpting comfort, form, and soul into every piece.

CRAFTING & JOURNEY SHAPINGSTORIES

Greatness lies in the details. Take the time to craft with care, infusing each element with your unique artistic touch. When you focus on the finer points, you create not just a product, but a masterpiece that speaks volumes.

Frame with teakwood finishing water based paint grey finish
Seating fabric with sunbrella
LUCIA DINING ARMCHAIR
Frame with teakwood finishing water based paint grey finish and weaving rope
Legs with teakwood finishing water based paint
NOEMI BENCH
Seating fabric with sunbrella

BIANCA RECTANGULAR DINING TABLE

top table with teakwood finisihng water based grey finish
Legs with teakwood finishing water based pain grey finish

CRAFTING & JOURNEY SILENTSTRENGTH

From carefully selected teak to finely sculpted edges, each element of this dining set tells a story of patience and precision. The solid cylindrical base and seamlessly curved chair forms reveal the quiet strength of handcrafted design a celebration of material honesty and the timeless beauty of artisan labor.

ALESSANDRA LONG SOFA

Frame with teakwood finishing water based paint grey finish and weaving rope
Sunbrella seating fabric
ARIA COFFEE TABLE
Base table with zeolith stone with natural
tray with teakwood water based grey finish
Legs with zeolith stone
ALESSI RATTAN CHAIR
top table with zeolith stone

CHLOE STONE SIDE TABLE

Bali green stone material
Detail side table
CHIARA LOUNGE CHAIR
Frame with teakwood Sunbrella seating fabric
Detail frame water based paint grey finish

top table concave stripped terracotta

top table with teakwood finisihng

Rattan weaving with natural finish
GIORGIO LOUNGE CHAIR
Sunbrella seating fabric
teakwood finisihng water based grey finish
DARIO COFFEE TABLE
Legs with teakwood finisihng water based grey finish
BRIA WOOD SIDE TABLE
water based grey finish

GIORGIO SOFA 3 SEATER

Legs with bali green stone
ELEANOR SIDE TABLE
top table with bali green stone
Legs with zeolith stone
MARIO COFFEE TABLE
top table with zeolith stone
Rattan weaving with natural finish
Sunbrella seating fabric

CRAFTING & JOURNEY SILENTSTRENGTH

From carefully selected teak to finely sculpted edges, each element of this dining set tells a story of patience and precision. The solid cylindrical base and seamlessly curved chair forms reveal the quiet strength of handcrafted design a celebration of material honesty and the timeless beauty of artisan labor.

Frame with teakwood water based paint grey finish
CLAUDIA SUNBED
Sunbrella seating fabric
Frame teakwood and top table zeolith
SOFIA SIDE TABLE
the detail legs with teakwood waterbased paint grey finish

FINISHING & TEXTILE WORK SOFTNESS SURFACE

Greatness lies in the details. Take the time to craft with care, infusing each element with your unique artistic touch. When you focus on the finer points, you create not just a product, but a masterpiece that speaks volumes.

FINISHING & TEXTILE WORK TACTILE CRAFT

Each stitch and surface treatment is handled with care—ensuring softness, durability, and elegance. From fabric wrapping to wood polishing, the finishing process defines the final character of every piece.

FINISHING & TEXTILE WORK CRAFT PRESICION

Skilled artisans carefully handle the final touches—sanding, finishing, and textile weaving. Each detail is refined by hand to ensure comfort, durability, and aesthetic harmony in every piece.

FINAL ASSEMBLY TEAK ELEGANCE

The final assembly of the Lounge Armchair blends craftsmanship and comfort. Made from solid teakwood, each piece is carefully joined, sanded, and finished to enhance its natural beauty. Cushions are added last, completing a refined and timeless silhouette ready for living spaces that value durability, elegance, and handmade precision.

A. CHIARA LOUNGE CHAIR
A. ALESSANDRA SOFA 3 SEATER
A. ALESSI RATTAN CHAIR

FINAL ASSEMBLY REFINED DURABILITY

The Alessi chair celebrates craftsmanship and minimal design. Each piece is carefully joined and finished to enhance the natural rattan grain, ensuring durability and aesthetic charm. Perfect for modern interiors, these versatile tables offer timeless function with organic warmth.

A. BIANCA SQUARE DINING TABLE B. LUCIA DINING CHAIR

FINAL ASSEMBLY EFFORTLESS REPOSE

The teakwood sunbed brings together structure and serenity. Each cushion is aligned on the smooth wooden base, ensuring lasting comfort. With tailored upholstery and precision-fit bolsters, this piece becomes a sanctuary of rest perfectly crafted for relaxation under the sun.

A. CLAUDIA SINGLE SUNBED B. SOFIA SIDE TABLE
A. GIORGIO RATTAN SOFA 3 SEATER

FINAL ASSEMBLY CRAFTED HARMONY

The final assembly brings harmony to the rattan armchair and teakwood coffee table. Artisans carefully align the woven curves of the chair with plush cushions, while the table’s patterned teak top is securely mounted on solid bases. A seamless blend of nature, craftsmanship, and comfort.

A. ALESSI RATTAN CHAIR
B. DARIO COFFEE TABLE
A. CHLOE SIDE TABLE B. BRIA SIDE TABLE
LUNA SIDE TABLE

FINAL ASSEMBLY PRECISION CRAFTMANSHIP

Final assembly is the concluding stage where each teakwood furniture piece is meticulously inspected and put together. From side tables to sunbeds and chairs, components are aligned, fastened, and polished with care. This process ensures every item meets quality standards, ready for delivery in perfect form and function.

FINAL ASSEMBLY CRAFTED COMPLETENESS

Final assembly brings together every handcrafted teakwood component into a unified piece. Skilled artisans ensure each dining table, chair, and bench is securely joined, cushions are neatly placed, and finishes are flawless. This final step guarantees that every item is both beautiful and ready for long-lasting use.

A.

In the final moments of production, the attention est details a careful touch, a final polish, Here, surrounded by tools, timber, and time-earned of creation reaches completion. This is not ture — it’s about

“Before it enters a home, it carries

attention shifts to the smalla silent nod of approval. time-earned craft, the essence not just about making furniabout honoring the process. carries the soul of the maker”

MAISON XLS - Boutique studio creating curated spaces shaped by narrative

Art Direction & Architecture

BLEUTONE - Maison de Collection

Crafted across Asia · Curated in Singapore

Two paths, one vision. Between land and light, matter and memory, we design with intention and emotion.

“Designing spaces with meaning and identity”

138 Cecil Street, Cecil Court, #18, Singapore 069538

welcome@xavierloupstudio.com | withus@bleutone.com

Turn static files into dynamic content formats.

Create a flipbook
Issuu converts static files into: digital portfolios, online yearbooks, online catalogs, digital photo albums and more. Sign up and create your flipbook.