BOZELLIVING og Gudenåparken 2024

Page 1

– et gratis magasin til dig om zero energy living Marts 2024 · BOZEL LIVING 90 KR. BUILD YOUR DREAM Hvilken hustype er du? s. 62 BOZELLIVING
længere - i spændende nye og bedre boligformer
manden bag BOZEL og slip drømmene fri BOLIGREPORTAGER Søllerød · Hørsholm · Rørbæk Sø BOZEL LIVING · marts 2024
FÆLLESSKABER Lev
DRØMMETYDER Mød
Bozel Living – villa i Holte

Se flere inspirerende billeder af BOZELs kundecases løbende i magasinet

6 | BOZEL

VELKOMMEN OG KOM INDENFOR

BOZEL LIVING – et gratis magasin til dig om zero energy living

BOZEL LIVING har en vision om at skabe unikke hjem, som afspejler husejerens personlighed. Vi lader os ikke stoppe af konventioner, men prøver i stedet at udfordre dem for at skabe noget anderledes. For os er et hjem mere end bare 4 vægge, nogle møbler og et tag til at holde det hele tørt. Et hjem er et sted hvor man skal leve, og du kan kun leve rigtigt, hvis dit hjem er bygget og indrettet til dit eget personlige behov. Med magasinet her vil vi give dig indblik i, hvordan vi bygger nul-energi boliger, der gør livet nemmere, og hvordan det er at leve i dem.

Du finder de lidt mere videnstunge artikler om at bygge bæredygtig luksus bagerst i magasinet, mens de inspirerende boligreportager begynder allerede på de næste sider. Vi vil også fortælle lidt om vores tilgang til det at bygge hjem og om vores grundlægger

og ejer Frank Petersen, manden med idéen. Han vil præsentere sig selv og den historie der førte til, at han blev en innovatør indenfor husdesign, og fortælle om hvordan hans perspektiv på boligdesign og indretning kommer til udtryk i de huse, som han tegner. Vi håber, at du vil finde god inspiration til dit næste hjem, og søger du endnu mere inspiration eller viden om BOZEL LIVING, finder du os på BOZEL LIVING.com.

Til sidst skal vi nævne, at hvis du vender magasinet og starter fra bagsiden, kan du læse om nye og spændende fællesskaber, som vi arbejder på. De kombinerer bæredygtighed, fællesskab og individuelle behov i nyopførte boligområder– og du kan stadig nå at være med! Læs om de spændende perspektiver og tankerne bag fra den anden ende af magasinet. Velkommen –og rigtig god fornøjelse!

BOZELLIVING

VELKOMMEN
BOZEL | 7

41

Karen

Om BOZEL LIVING

7 · VELKOMMEN OG KOM INDENFOR

14 · BOZEL LIVING - FREMTIDENS ENERGIEFFEKTIVE BOLIG

16 · DRØMMETYDER – HISTORIEN BAG BOZEL

Indretning og inspiration

22 · BOLIGREPORTAGE – KØKKEN 25 METER OPPE I TRÆERNE

32 · BOLIGREPORTAGE – RUNDE FORMER I STRAMT DESIGN

64 · BOLIGREPORTAGE –KOMPRIMISLØS ÆRLIG LUKSUS

BOZEL LIVING boligkoncepter

41· ROOM 1-2-3-4 – SÅDAN SKABER

VI DIT HJEM KOMPLET

62 · VORES HUSE

70 · FÆLLESSKABER – NYE SPÆNDENDE BOLIGFORMER

Blixens Boulevard
7
8220 Brabrand www.bozelliving.com
22
BOZELLIVING 8 | BOZEL
Sådan bygger vi dit BOZEL LIVING hus 98 · FREMTIDENS HUS: FRA DE FØRSTE STREGER TIL FÆRDIGT BYGGERI 102 · BYGGESYSTEMER 104 · MUREDE HUSE 106 · TRÆHUSE 108 · ROCKZERO 112 · MODULHUSE 114 · ISOBYG Zero Energy Living: Grønne muligheder 86 · BILLIGERE END FJERNVARME 88 · BOZEL LIVINGS MEST BÆREDYGTIGE VILLA 90 · REGNVANDSOPSAMLING 92 · ENERGI FRA BRUSEBADET 94 · ENERGI FRA SOLEN 96 · BOFÆLLESSKAB MED ENERGIFÆLLESSKAB 70 64 106 BOZEL | 9
Living – villa i Ry 10 | BOZEL
Bozel
BOZEL | 11
12 | BOZEL
– villa i Holte BOZEL | 13
Bozel
Living

BOZEL LIVING

Fremtidens energieffektive bolig

BOZEL er et akronym for ”BO Zero E nergy Living”. Det står for et koncept om at skabe fremtidens energieffektive bolig. Siden vi startede i 2008 har vi bygget mere end 80 boliger for tilfredse kunder og løbende finpudset vores tilgang og metoder. I dag står vi med et unikt koncept for, hvordan vi skaber fremtidens boliger i dag.

”Zero Energy Living” er udgangspunktet for de ting vi gør - dvs at alt vi gør kommer fra den tankegang, at dit hjems energiregnskab går i nul, både når vi bygger det, og når du lever i det.

”Zero Energy Living” betyder tre ting:

1) NUL-ENERGI NÅR VI BYGGER

Vi bygger med et minimalt energiforbrug og lavest muligt klimaaftryk. Det kommer til udtryk i vores byggemetoder. Vi benytter RockZero, som er højt isolerende og minimalt klimabelastende, når vi bygger huse med en skal af mursten.

Hvis du foretrækker et hus i beton, foretrækker vi at bygge med isobyg. Det har samme højt isolerende egenskaber som RockZero systemet, men egner sig meget bedre til et betonlook.

Og så supplerer vi med minihuse bygget med høj effektivitet i en lukket konstruktionshal, før de transporteres til din grund når de er færdige. Høj effektivitet = mindre klimabelastning.

Læs mere om BOZEL LIVING s byggesystemer fra side 102.

2) NUL-ENERGI HVOR DU BOR

Det betyder, at dit BOZEL LIVING hus har et minimalt energiforbrug. Udover isolering i topklasse, tilføjer vi tidens teknologi for at holde dit energiforbrug nede. Læs mere på side 86-95.

3) NUL-ENERGI NÅR DU LEVER

Og ikke mindst gælder ”Zero Energy Living” også dit liv i dit nye BOZEL LIVING hjem. Du lever uden at behøve bruge din energi på vedligehold og flere kedelige dagligdagsopgaver end højst nødvendigt. Brug energien på det du elsker i stedet.

BOZEL LIVING er BÅDE / OG: BÅDE luksus OG bæredygtighed

14 | BOZEL

BO Zero Energy Living

BOZEL | 15

DRØMMETYDER

Historien bag BOZEL

Jo, Frank Petersen er besat. Og bosat. Efter 50 år med design og boligindretning er han stadig i gang fra kl. 6 om morgenen til sent om aftenen med at tegne og styre byggerier af drømmeboliger. Hans redskab er den kreative proces, hvor fantasien får frit løb og overraskende meget kan lade sig gøre.

At påstå man kan tyde folks drømme, kræver selvtillid. At ramme plet kræver erfaring. Den har Frank Petersen. Erfaring er hans afsæt, når han bygger drømmehuse til sine kunder.

“Jeg spørger ind til kundernes dagligdag og hvilke behov, de har. Helt ned i detaljen som, hvordan vil I gerne spise aftensmad? Hvad laver I sammen i weekenden? Hvilket sted har I tænkt: Det her er det fedeste rum, jeg har været i. Beskriv det for mig. Sæt ord på jeres vildeste drøm. Giv los. Slip de kedelige tanker om, hvad der ikke kan lade sig gøre,” fortæller Frank Petersen entusiastisk.

“Jeg tager kunderne på ordet. Slår streger på et stykke papir, mens de snakker. Som regel kan virkeligheden parres med fantasien, hvis man er kreativ, tænker grænseløst og kobler det højtsvævende med de givne rammer, byggegrundens udseende og selvfølgelig økonomi.”

“Efter en times snak kigger vi på papiret. Deres stue svæver tre meter ud i luften. Soveværelset ligger halvt ude i haven. Det er udstyret med multifunktionelt badeværelse-spa. Børneafdelingen er lydtæt med panoramavinduer. Køkkenet kan åbnes og rumme 20 gæster. Det var ikke nødvendigvis det, de sagde, men det var det, de drømte om. Som regel er øjnene ved at poppe ud af hovedet på dem,” forklarer Frank Petersen med et grin.

“Når jeg nævner, at huset er vedligeholdelsesfrit, svamp- og rådsikkert og energineutralt, siger de: Hvorfor har vi aldrig hørt om det før? Det kan jeg ikke svare på. Det har I så nu, skal vi gå i gang?”

Sæt ord på jeres vildeste drøm. Giv los. Slip de kedelige tanker om, hvad der ikke kan lade sig gøre.

ARTIKEL – DRØMMETYDER
” 16 | BOZEL

Frank Petersen, 66 år og fra Hammel ved Aarhus, har hjulpet mennesker med at indrette bolig, siden han som stor dreng overtog driften af sin families møbel- og indretningsbutik.

I nogle år designede han udstillingsrum for internationale møbelkæder i Singapore, USA, Norge, Den Dominikanske Republik, Hong Kong, Irland, Tyskland, Argentina, Colombia, Spanien, Italien, Sverige, Mexico med flere. Altid i high end segmentet, hvor den personlige og individuelle stil er afgørende.

“Jeg har hjulpet 1000-vis mennesker med at sætte former og farver på deres boligdrømme. Jeg ser mig som en slags boligdrømme-fødselshjælper. Mange vil gerne udtrykke sig personligt, men har svært ved at finde ud af hvordan. Her kommer min erfaring mig – og dem – til gode. Først og fremmest er min rolle at inspirere og konkretisere,” fortæller Frank Petersen.

Frank Petersen er ud af en stor, kreativ familie med rødder i indretnings-, design- og køkkenbranchen. Som ung blev Frank Petersen sendt til USA for at studere. Det var under dette ophold, at hans far blev syg, og sønnen måtte tage hjem og bistå med driften af forretningen.

”helt om sommeren. Room 3 er designet af haven og alt det omkring huset. BOZELs komplette løsninger inkluderer indretning, møbler, udekøkkener, ude-inde soveværelser, havearkitektur, centralt styrede varmesystemer og bæredygtige energikilder, der gør boligen ekstremt energivenlig eller ligefrem energiproducerende. Sidste skud på stammen, Room 4 er tanken om at gøre udelivet i haven mere langvarigt og tiltrækkende selv når sommeren går på hæld og de kolde måneder nærmer sig.

“Mit ønske er, at mine kunder tænker stort. Det bliver ikke dyrere af den grund. Det bliver lækrere.”

Min inspiration til indretning er alle de forskellige måder, jeg har set folk bo og leve på rundt om i verden. Det hele drejer sig om livsstil. At se, hvad der rører sig i verden, er mit drive.

Frank Petersen, Indehaver, BOZEL

“Min inspiration til indretning er alle de forskellige måder, jeg har set folk bo og leve på rundt om i verden. Det hele drejer sig om livsstil. At se hvad der rører sig i verden, er mit drive. Jeg har tegnet snese af huse i flyvemaskiner og lufthavne og på bjergskrænter i Nepal, Norge og Sydamerika,” fortæller Frank Petersen.

Det var også i udlandet, Frank Petersens fascination for hoveddøre opstod. I Danmark har vi ’tonsvis af røvkedelige’ hoveddøre, som Frank Petersen så diplomatisk kalder det. Ude omkring prioriterer man hoveddøren højt. En hoveddør skal være storslået, flot og passe specielt til den familie, man er, mener han.

“En anden inspiration er det integrerede udeliv, folk har i andre lande. Det går igen i alle mine huse. Vi har for længst fået varme på vores tilværelser i Danmark med højisolerende vinduer og mure, så vi kan sagtens åbne mere op for det udendørs, mens vi stadig er inde,” forklarer frank Petersen.

Tankegangen førte til begrebet Room 1-2-3-(og senere 4), BOZELs grundlæggende koncept. Room 1 dækker over det rene indeområde. Room 2 er det flydende inde- og udeområde, en havestue af glas, hvis vægge kan åbnes

“Det er logisk: Du skal have et hus, og du ved godt, der findes en have. Ude i den skal du have en seng og et udebadeværelse. Når vejret er dårligt, skal du alligevel kunne være ude, så har vi glasdelen, som er halvt ude halvt inde. Dér kan du dufte naturen og høre fuglene, vandet, regnen. Uden at du bliver kold og våd. Når du er inde, er du i et hus, der er fuldstændigt tæt, helt lukket af, så du næsten ikke kan høre noget udefra,” siger Frank Petersen med vanlig begejstring.

“Folk siger: Vi vil have walk-in closet. Jeg siger, okay, enten skal du have et kæmpe walk-in, eller også skal du ikke have noget. BOZEL sætter en ære i at kaste konventionerne op i luften. I mine seneste huse har bruseren hængt bag sengen eller direkte over soveværelse-gulvet. Køkkenet laver vi, så du også har et viktualierum, eller som et designer-køkken, du kan pakke væk. Vi laver kontor midt i stuen, hvor du kan arbejde tæt på resten af din familie og lukke det af, hvis du ønsker absolut ro,” forklarer Frank Petersen.

BOZELs huse er minimalistiske og detaljerige på samme tid. Hvert hus er udstyret med mindst én overraskende detalje. Dit hus’ unikke speciale, ingen andre har. Placeret lige præcis det helt rigtige sted at investere i den opfindsomme detalje. “Jeg dyrker det minimalistiske, men ikke på den maskuline måde, man ofte ser. Mine huse er en kombination. I de stramme linjer skal det feminine trives; fællesskab, nærvær, familieværdier. Hvor samværet har de allerbedste betingelser,” siger Frank Petersen, der i sin ’fremskredne alder’, som han kalder det, er begyndt at fokusere mere på sine egne feminine sider.

“Jeg har opdaget diætkure, yoga og spinning. Det er en helt anden sag. Men jeg får det sgu bedre af det.”

ARTIKEL – DRØMMETYDER
BOZEL | 17
18 | BOZEL

Et hus i stilrent hvid beton, som krænger ud over soklen. Spa på terrassen, som du kan komme ud til fra flere rum. Her er tænkt meget over forbindelsen mellem inde og ude

BOZEL | 19
Bozel Living – villa i Holte

INDRETNING

OG INSPIRATION

Køkken 25 oppe i træerne

Runde former i stramt design

Kompromisløs ærlig luksus

SIDE
22-37

OM BOLIGEN

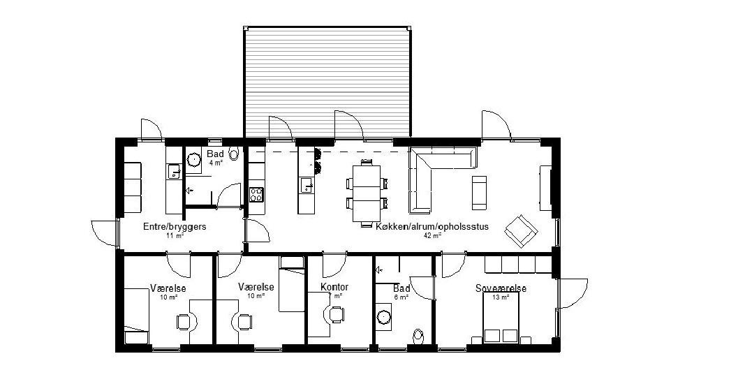
Her bor: Familien Blædel bestående af to voksne og tre børn

Bolig: 340 m2 signatur luksusvilla fra Bozel Living Beliggende i naturskønt område i Nordsjælland.

BOLIGREPORTAGE
22 | BOZEL

Køkken-alrummet er i direkte forbindelse med husets stue og en gasfyret brændeovn. Det ligger ud for midten af de 50 meter høje douglas-graner med udsyn til vild natur, egern og mindst 22 fuglearter lige uden for vinduet.

SIG NATUR VILLA

Reportage fra en bolig i særklasse

KØKKEN 25 METER OPPE I TRÆERNE

Familien Blædel vendte hjem fra Indien og brugte tre år på at projektere og opføre deres drømmehus, på toppen af en skrænt med et ’flydende smykke’ som gulv.

Der var mange gode grunde bag beslutningen, men især én, selve byggegrunden, da familien Blædel flyttede tilbage til Danmark efter en udstationering i Indien og ledte efter det perfekte sted at bo.

En 3.400 m2 store naturgrund ud til Søllerød Naturpark var ideel til deres ambitiøse boligdrøm. På den stejle skrænt kunne de bygge et topmoderne hus i et unikt design med en følelse af at være ude i vild natur. Husets køkken-alrum ’hænger’ i luften 30 meter oppe mellem træerne med udsigt over dal og på klare dag Hven og Sverige 4 km væk.

Naboerne ser man ikke. At der kun er 20 minutters kørsel til arbejdspladsen i København var en anden god grund.

NÆSTEN ENERGINEUTRALT

”Vi var grundige og krævende og studerede BOZEL huse i Ry, Skanderborg, ved Limfjorden og her i Nordsjælland, før vi følte os overbevist om, at Frank kunne løse opgaven. Det handlede ikke kun om at forstå vores ideer, men også om at kunne udføre dem,” fortæller Martin Blædel. Oplægget gik på at integrere udsigten og skrænten ud mod den fredede naturpark. Huset skulle være enestående, minimalistisk, eventyrligt og funktionelt på ’den skandinaviske facon’. Og samtidig så fleksibelt indrettet, at det kunne rumme de planlagte tre børns opvækst fra 0 til 18 år.

BOLIGREPORTAGE
BOZEL | 23

”Vores tilgang til BOZEL var anderledes. Vi ønskede et hus, der levede op til 2020 standarderne som energineutralt , og vi havde fået øjnene op for de tyske ISOBYG-byggeelementer. Det viste sig, at BOZEL var den eneste herhjemme, der havde erfaring med at bygge avancerede konstruktioner af dem,” siger Martin Blædel.

Udefra ser Blædel-familiens hus

mindre ud, end det er. Indenfor vokser det til gengæld i flere plan med panorama-vinduer og terrasser placeret uden kig til naboer. Fra alle rum falder blikket på den fjerne horisont og skoven.

GULVET ER ET ‘FLYDENDE SMYKKE’ Huset er indbygget i skrænten mod en række 50 meter høje, canadiske

Pangfarve over komfuret og smalle glashylder. Øen midt i rummet er af specialdesignet corian med organisk form som en nyre – intet mindre – som kontrast til husets øvrige, stramme linjeføring.

Soveværelset. Med corian badekar med uforstyrret panorama over skoven, mapei-beton mønstret bagvæg og dampsauna giver det ikke nogen mening at køre langt efter wellness

Mapei-dobbelttrappe. Ned ad skrænten til husets voksenafdeling ad husets kranspulsåre. Trappen bygget af ungarske specialister i plastificeret beton med levende mønster efter håndpudsning

BOLIGREPORTAGE
24 | BOZEL

Vi studerede BOZEL huse i Ry, Skanderborg, ved Limfjorden og i Nordsjælland, før vi følte os overbevist om, at Frank kunne løse opgaven. Det handlede ikke kun om at forstå vores ideer, men også om at kunne udføre dem.

Martin Blædel, Holte

OM HUSET

Huset stod færdigt i 2012 direkte ud til Søllerød Naturpark på en 3.400 m2 stor, stærkt skrånende grund, omgivet af fredet natur. Den månedlige udgift til el og varme er 420 kr.

Ved dette byggeprojekt var det bygherrens interesse i ISOBYG-byggeelementerne, der førte til kontakten med BOZEL. Som landets førende inden for avanceret byggeri med ISOBYG og komplette designløsninger, opførte BOZEL et usædvanligt hus i tre plan med udsigt fra alle rum

BOLIGREPORTAGE
BOZEL | 25

Diskret indgang. På stien op til huset mødes man af en mur i mapei-beton.

Lange udsigter. På en klar dag ser man Hven og Øresund bag skoven, der er fredet.

douglasfyr. I køkkenet er man halvvejs oppe i træerne. I trækronerne huserer egern og mindst 22 fuglearter, ifølge familien Blædels egne registreringer. ”Vi ønskede et hus med en følelse af frihed og rå natur. Vi brugte tre år på at projektere og bygge det og fik flere unikke løsninger som f.eks. køkkenbordplade og badeværelsesmøbler i corion. Nogle af de største udfordringer var den svævende terrasse og det specielle betongulvlook,” siger Martin Blædel. Betongulvet skulle være samme ’elefanthud’, som Martin og Katrine Blædel havde set i DR’s

koncertsal. Det viste sig økonomisk umuligt. Frank Petersen brugte måneder på at finde en alternativ løsning. En dag ringede han fra Ungarn.

”Han havde besøgt et murerfirma, som var eksperter i arbejdet med mapei, et plastificeret betonmateriale, der kan få den samme overflade og struktur, når man blander det korrekt og håndpudser. Mapei-betonflader har vi brugt til trapper, gulve og vægge,” siger Martin Blædel.

”Vi ser det som et flydende smykke, der går igen og får huset til at hænge design- og ’være-mæssigt’ sammen.”

BOLIGREPORTAGE
26 | BOZEL

Et BOZEL-hus har altid badeværelser ud over det sædvanlige. Her direkte ud til naturen i en vinkel, så der ikke kan kigges ind – kun ud.

Værelse med udsigt. Børneværelse med adgang til 25 m2 svævende terrasse.

BOLIGREPORTAGE
BOZEL | 27
Bozel Living - villa i Holte Bozel Living – sommerhus i Klitmøller
i
Bozel
Living – villa
Glostrup

Runde former I STRAMT DESIGN

BOLIGREPORTAGE 32 | BOZEL

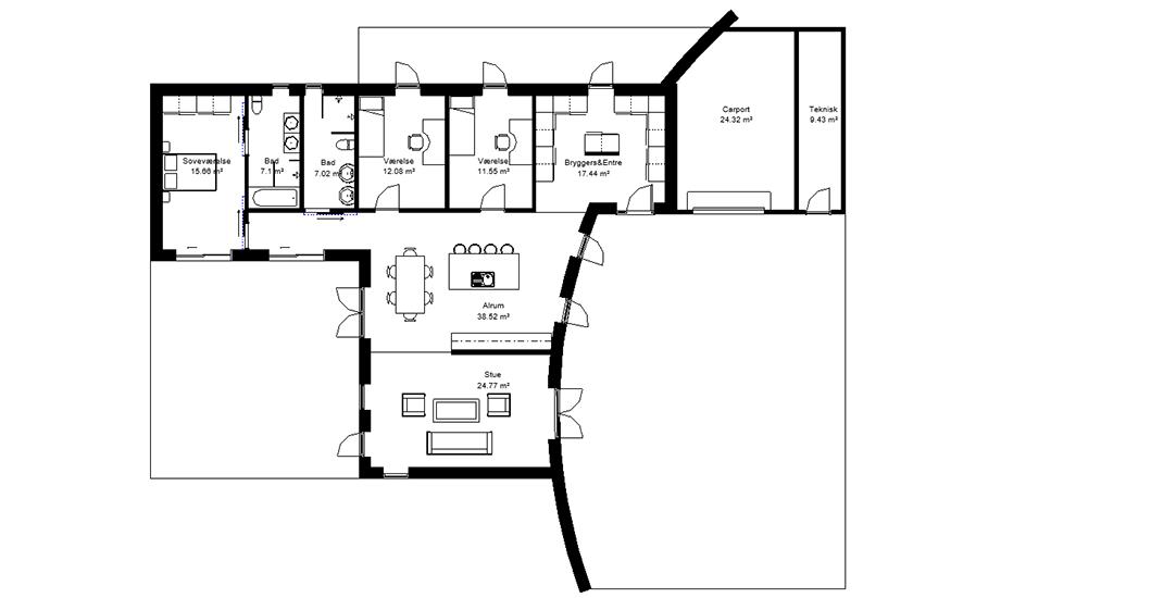
Familien Lylloff satte store krav til deres ny hus i Hørsholm. Som aktiv, social storfamilie skulle det egne sig præcis til deres livsførelse. Resultatet var organisk. Og en silo med udestue i to etager.

Det første, der slår en, når man træder ind i familien Lylloffs BOZEL-hus i Hørsholm nord for København er gulvet. Og loftet. Der er højt til loftet, nærmere bestemt 3,30 m., Og lofterne er beklædt med forsænkede plader med hulmønstre, der leder tankerne hen på koraler, en natursvamp eller et finurligt månelandskab.

”Vi ville have højt til loftet, men også en følelse af nærhed og kompakt

hygge. De lydabsorberende plader, BOZEL kom frem med, giver en fantastisk akustik og fortætter stemningen i rummene. Det giver liv og ser supersejt ud,” siger bygmester Jesper Lylloff, der flyttede ind med sin kone, signe, og i alt fem fælles og sammenbragte børn i slutningen af 2015 efter et års planlægning og byggeri.

PLANLAGT TIL 25 GÆSTER TIL BORDS

Tilbage til gulvene. Og hovedpine. Det kostede nemlig en del af den slags hos BOZELs chefarkitekt, Frank Petersen, og hans folk at finde teknikken og farven til at give betongulvene den glød af skinnende, varmt, slidt, slidstærkt og

Med BOZELs system kunne vi lave noget meget individuelt og mere for det budget, vi havde til rådighed, end vi troede.

Brusekabinen er åben og står direkte bag en glasvæg bag dobbeltsengens hovedgærde i et åbent koncept, der minder om luksuriøse hotelværelser - med adgang til walk-incloset og badekar på øverste etage af udestue-tårnet.

sandfarvet ler, familien Lylloff ønskede.

”Vi arbejdede med farveprøver i snapseglas, som vi blandede i selvnivellerende flydespartel. Fra teknikken, som vi brugte til at fordele farvelaget, ser man antydning af penselstrøg og små lyse prikker, som giver en flot, changerende effekt,” fortæller Frank Petersen.

Lylloff-familien krævede ikke kun børneværelser med plads til 5 børn, en voksenafdeling på afstand af børneværelserne med wellness-afdeling som på de fine hotellers bedste værelser, spiseplads med plads til op til 25 mennesker, men også udestuer i begge husets etager.

BOLIGREPORTAGE
” BOZEL | 33

“FANTASIEN FIK VINGER”

”Den drøm, som vi luftede for BOZEL, troede vi ikke selv på kunne lade sig gøre med vores økonomi. Inden for en time havde Frank Petersen tegnet et hus i grove streger på et stykke A4-papir, der svarede godt overens med vores ønsker og sagt, jo, hvorfor ikke,” mindes Jesper Lylloff.

Udestuen i stueetagen ligger i forlængelse af køkkenet med to skydedøre. Det giver mulighed for at have 25 til bords, når Signe Lylloffs store familie kommer forbi til fester og højtider. Og for en spiseafdeling i normal størrelse til daglig i samme rum.

Huset på Kløvervangen i Kørsholm er bygget med udgangspunkt i cirklens form. Fra vejen tårner den to-etagers udestuesilo dominant med sine glaspartier, der både tillader indsyn, men især udsyn over området, der er Hørsholms højest beliggende.

”Vi valgte at ville bo i netop dette område, men ikke i den forstand på denne grund, der var flad som en pandekage og ret uinteressant. Som modspil fandt BOZEL på at bygge halvdelen af huset oven på fundamentet af det gamle, så vi fik to forskudte plan og grunden pludselig så kupperet ud,” fortæller Jesper Lylloff.

Teknisk set svæver noget af huset over en del af grunden, der er særlig blød. Det er muligt på grund af de avancerede ISOBYG-blokke, huset er bygget i. Fundamentet under det tidligere hus blev gravet ud, hvilket gav mulighed for 72 m2 kælder udover de 236 m2 bolig i to plan. Hertil kommer to udestuer på hver 25 m2.

”Vi havde fat i flere byggefirmaer under beslutningsfasen. Da vi stødte på BOZELs univers på deres hjemmeside, fik vores fantasi vinger, om jeg så må sige. Det var virkelig kreativt og meget i vores smag. Med BOZELs system kunne vi lave noget meget individuelt og mere avanceret for det budget, vi havde til rådighed, end vi troede.”

BOLIGREPORTAGE 34 | BOZEL

Spisekøkkenet med den svævende trappe op til voksenafdelingen på 1. sal. Skydedørene til den opvarmelige havestue slås til side og giver plads til 25 middagsgæster, hvilket er normalt i storfamilien Lylloff.

BOLIGREPORTAGE
BOZEL | 35

Markante trapper er et andet af BOZELs varemærker. Her som brede bænke med siddemuligheder for mange børn og voksne i forbindelse med stuen.

slank

fra køkkenet til øverste etage og voksenafdelingen, beskyttet mod ‘styrt’ af en ‘usynlig’ glasbarriere.

BOLIGREPORTAGE
Elegant, trappe
36 | BOZEL

OM HUSET

Huset stod færdigt i 2015 med 236 m2. Bolig, 72 m2 kælder og to lukkede havestuer på 25 m2 hver.

RUNDT OG ORGANISK

Fra vejen ligner familien Lylloff hus et palæ domineret af runde former. Indvendigt er linjeføringen stringent og bygget op med 2 store trapper som sociale omdrejningspunkter.

Store flader, sort-hvid, højt til loftet og masser af lys. Køkkenet er stort og anvendeligt og kan ‘pakkes’ ned til diskretion.

BOLIGREPORTAGE
BOZEL | 37
Bozel Living – villa i Tørring

BOZEL LIVING

BOLIGKONCEPTER

Room 1-2-3-4

Vores huse

Fællesskaber

SIDE 41-77

Bozel
Living – villa i Holte

1 Inde

2 Inde/ude

3 Ude

4 Det andet

SÅDAN SKABER VI DIT HJEM KOMPLET

ROOM

1· 2 · 3 · 4

En helhedsplan for hvordan dit hjem bliver en sammenhængende ramme for dit liv

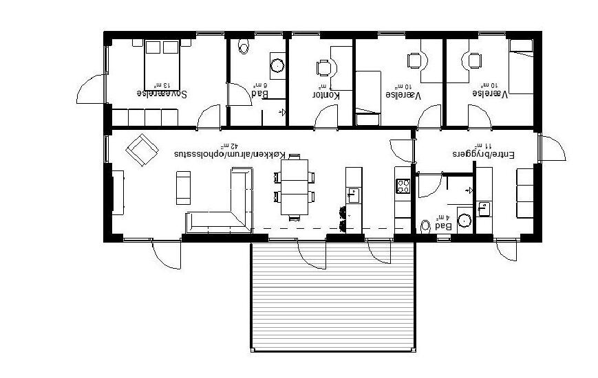
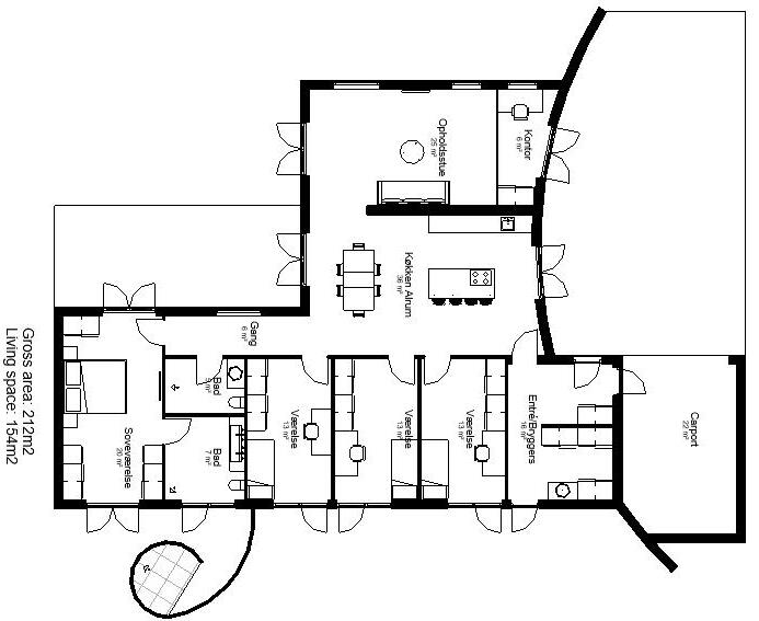
Dit hjem er ikke bare dit hus. Det er også din have, din terrasse, dit drivhus, dit skur, din carport, dit udhus. BOZEL LIVING tænker alle de dele ind i dit hjem fra begyndelsen. Vi kalder tankegangen ”Room 1-2-3-4”

Vores inspiration til Room 1-2-3-4 er det integrerede udeliv, folk har i andre lande. Udfordringen var, at finde en metode, hvor vi kunne skabe det samme integrerede udeliv i det danske klima. Med Room 1-2-3-4 har vi fundet løsningen.

Et BOZEL LIVING hus er et gennemisoleret lavenergihus med et fantastisk indeklima. Det giver os mulighed for at åbne op og skabe en flydende overgang mellem hjemmets inde- og udeområde. Det handler om at skabe et naturligt flow hele vejen fra

hoveddøren til det bagerste hjørne af haven. At skabe fornemmelsen af at huset ikke er smidt i landskabet, og at haven ikke er blevet en eftertanke, som bare skal fylde grunden ud.

Hele huset er bygget i moderne materialer med solid isolationsevne. Dermed sikrer man også et lavt varmetab i bygningen, og bevæger sig tættere på Zero Energy Living. Strømmen til opvarmning af rum og vand kommer primært fra solcelleanlæg, men mere om det i Room 2

Men hvordan skaber man et hus som byder op til, at man føler der er fri bevægelse mellem hoveddøren og haven?

Det handler om kreative og utraditionelle løsninger, og om at gøre huset til mere end bare fire vægge med et køkken, nogle værelser og en stue. At udfordre konventionerne for hvordan man bruger pladsen i sit hus, og skabe noget nyt. Netop det kan du læse mere om på de næste sider.

ROOM 1-2-3-4
BOZEL | 41

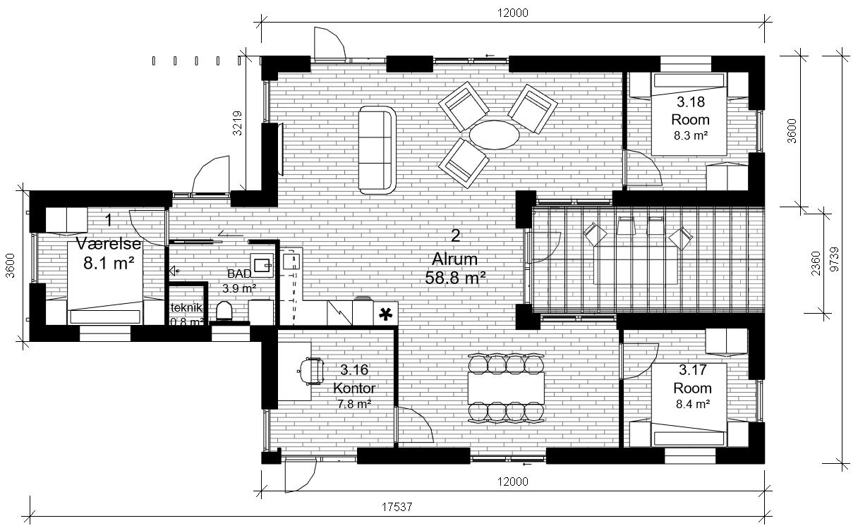
ROOM 1 – Indeområdet

Indeområdet er det vi kalder for Room 1. Det er et design hvor entréen byder dig hjertelig velkommen, hvor der er skæve vinkler og højt til loftet, og hvor der er et dynamisk flow mellem hjerterummet og husets orangeri – eller det vi kalder for Room 2.

Room 1 er indeområdet i dit BOZEL hus, det er lige fra I kommer ind af døren og bliver budt hjertelig velkommen af rene linjer, som holder jer let i hånden og hjælper jer ind i et rum med liv og højt til loftet. Det er også her i Room 1, at starten på rejsen gennem BOZELs rum filosofi begynder. Husets indre rum bliver gjort levende af skæve vinkler. Her er frihed og plads til liv. Der bliver ikke sat grænser i Room 1 i et BOZEL hus, der bliver kun set muligheder. Muligheder for at lave et hus, der er noget særligt, fordi designet er noget helt specielt. Her er også plads til at

lave unikke installationer, uanset om det er et badekar i soveværelset, eller en stue der svæver over køkkenet

“Room 1 skal være flydende og fantasifuldt, vi gør brug af skæve vinkler og nytænkende måder at designe et hjem på. Derfor er der altid noget man ikke har lagt mærke til før, fordi man ser det fra et nyt sted, og det gør det spændende at tage rejsen gennem et af vores huse.” siger Frank Petersen.

Men det handler ikke kun om det visuelle udtryk. Room 1 er naturligvis også funktionelt. Her er et køkken tilpasset jeres behov, så I kan kokkerere til den store familiefest, eller bare til hverdagsaftenen hvor det skal være nemt og lækkert. I den ene side af køkkenet er der åbent ud i udestuen som leder direkte ud til terrassen og haven. På første sal er ungdomsafdelingen fordelt på tre værelser, godt lydisoleret så ingen forstyrrer hinanden.

SÅDAN SKABER VI DIT HUS KOMPLET 42 | BOZEL

Room 1 skal være flydende og fantasifuldt, vi gør brug af skæve vinkler og nytænkende måder at designe et hjem på. Derfor er der altid noget man ikke har lagt mærke til før, fordi man ser det fra et nyt sted, og det gør det spændende at tage rejsen gennem et af vores huse.

SÅDAN SKABER VI DIT HUS KOMPLET
BOZEL | 43

ROOM 2 – Et flydende indeog udeliv

Room 2 gør rejsen mellem inde og ude til noget helt særligt. Her må fornemmelsen af at være i forbindelse med haven og naturen ikke blive forstyrret af vægge. Derfor er Room 2 en glasstue, et orangeri, en udestue, et kært barn af mange navne. I virkeligheden handler Room 2 om at bringe fornemmelsen af sydens varme til Danmark, selv i de lidt koldere måneder på året. Rummet lader solen bringe lys og varme udefra og ind, men det bringer også indelivet til naturens dørtærskel, og det gør huset levende fordi man er forbundet med naturen. Om sommeren kan

Room 2 for alvor forbinde huset og haven, fordi stuen kan åbnes helt, og bringe livet udenfor ind i huset.

Men Room 2 er mere end bare forbindelsen til naturen. Rummet er designet med indbyggede solceller i taget, og producerer derfor bæredygtig strøm til hele huset. Solcellerne er tænkt ind bygningen fra starten af, så de ikke tager fokus fra det lækre design af huset. Det gør den dejlige udestue til et funktionelt rum, som er med til at fremtidssikre jeres hus. Den bæredygtige strøm som jeres Room 2 producerer, handler ikke bare om at gøre elregningen billigere. Solcellerne producerer nemlig også strøm til husets varmepumpe, og derfor er bæredygtigheden i højsædet hjemme hos jer.

SKABER VI DIT HUS KOMPLET 44 | BOZEL
SÅDAN

HVAD ER SOLCELLER?

En solcelle er et apparat, der omsætter lysstråling til elektricitet uden bevægelige dele eller slid.

Åbenheden af et rum med glasvægge og lys fra solen, kombineret med tanken om bæredygtig strøm leveret af den lyskilde der er lige på den anden side af glasset, er med til at binde rummet, og samtidig huset, sammen med haven, så I får fornemmelsen af, at huset og haven er en del af en helhed.

HVAD ER EN VARMEPUMPE?

En varmepumpe er en miljørigtig måde at omsætte energi til varme på, fordi den udnytter energien i luften til at producere varme og varmt vand.

SÅDAN SKABER VI DIT HUS KOMPLET
BOZEL | 45

ROOM 3 – Udelivet

Room 3 er BOZELs svar på hvordan man skaber en have, der ikke blot er en fryd for øjet, men i bund og grund en fryd for livet. Vi arbejder i helheder og ønsker at give dig det komplette havedesign. ”Mange mennesker bygger et hus uden at tænke på haven. De ender med en kedelig og uinspirerende løsning, med den traditionelle græsplæne omkranset af bede. Hos BOZEL ønsker vi at ruske op i etablissementet og skabe noget ekstraordinært, og endda til de samme penge som folk normalt ville give for deres kedelige havedesign.”

Mange venter med at designe deres have til senere, når de bygger et nyt hus. Vi har erfaret, at et helstøbt design, der favner alle inde- og uderum på én og samme tid, er en drastisk forbedring af den traditionelle status quo. Man kan meget hvis man tør tænke anderledes og har en klar plan inden man går i gang med byggeprocessen. ”Vi har vores egen tegnestue med arkitekter og bygningskonstruktører der har forskellige specialer. Vi kan derfor skabe et hjem komplet, hvor hus, have, orangeri og tilstødende byggerier er

tænkt ordentligt ind fra begyndelsen” siger Frank Pedersen.

Vi har haft kunder der både ønskede sig et hyggeligt og usynligt bålområde, et komplet udekøkken og et indbygget loungeområde, der består af andet end de traditionelle rattan møbler. Det skaber vi ved at ommøblere jorden og skabe et bølgende landskab hvor familiens ønsker vokser dynamisk ud af de planter og konturer vi har brugt til at skabe specifikke områder.

Når BOZEL designer haver bruger vi naturens elementer – vand, træ, sten og planter – til at skabe en atmosfære, som giver lyst til at bruge haven, uanset vejret.

STAY HOME CAMPING

Ja, bliv hjemme og tag på camping i din egen have, dette en ide ud fra hvad der sker i den nye verden vi er på vej ind i med Corona. BOZEL tænker mange gerne vil blive hjemme og nu skal der en ny ferieform frem, en ferieform der også kan gå på Airbnb. Tanken bag Stay Home Camping er at gøre haven til en Glamping-plads. Glamping er et koncept vi har set dukke

op på mange campingpladser, hvor teltet og campingvognen skiftes ud med et luksuriøst telt på op mod 50 kvm. med stor dobbeltseng og spændende indretning. Vi ser ikke nogen grund til, at man ikke skal kunne slå det samme op i baghaven henover sommeren. Så har man et sted at holde ferie, hvor man ikke er langt væk hjemmefra. Eller bliver sommeren for varm og har man brug for et køligt sted at sove, kan man sove udendørs. Har man børn eller børnebørne kan de også overnatte derude og få en spændende oplevelse. Vi mener også, at pladsen i baghaven bør gå det ekstra skridt og være koblet til vand og strøm, så man kan tage bad og høre musik i teltet.

Skulle man være interesseret i at invitere gæster i haven, kan Glampingpladsen i baghaven lejes ud gennem Airbnb.

I vores Home Resort som du kan læse mere om i Gudenåparken specialtillægget, vil beboere også kunne finde Stay Home camping some en del af parken.

46 | BOZEL
SÅDAN
SKABER VI DIT HUS KOMPLET

ROOM 4 – Det uisolerede rum i haven

Room 4 er BOZELs tanker om uundværlige uisolerede rum i haven, her er vi også sprængfyldt med gode løsninger.

Alle har en drøm, alle tænker sjove rum, til liv og leg, ude er mulighederne rigtig mange, og her arbejder vi med livet ude i de varme måneder, prøver om livet i haven kan blive endnu bedre, sjovere og længere.

Det er alt fra garagen, carporten, legehuset, grill hytten, saunaen, hønsehuset, dyrehold, legehus, skure, værksted, hobbyrum, ja tænk bare helt vildt her kommer vi langt på literen når vi bygger m2.

Måske kan grillhytten om sommeren stå åben uden vægge så man kan

mærke den blide brise mens man nyder aftensmaden i dagens sidste solskin. Grillhytten har også rindende vand og skabe så udstyret ikke ligger og flyder. Og når det kolde vejr nærmer sig, trækkes vindfang frem, og nu kan man forlænge sæsonen en smule og holde ved den gode sommerstemning.

Legehuset kan gøres til en del af haven, som ikke kun er for de små. Hængekøjer kan hænges op i forlængelse af det lille træhus så mor eller far aldrig er for langt væk. Måske en af legehusets sider har et vindue i plexiglas så børnene kan se hønsene fra deres legehus.

BOZEL | 47
SÅDAN SKABER VI DIT HUS KOMPLET

HOLDBAR KVALITET OG

MAKSIMAL SIKKERHED

Porte til private og Porte til industri. HÖRMANN er en familieejet virksomhed med 10.000 ansatte og 25 fabrikker i Tyskland.

Bozel Living –villa i Ry

Spændende glasbyggerier i eksklusiv kvalitet og unikt design.

Den 5. årstid – til alle tider…

Bozel Living – villa i Hinnerup

VORES HUSE

52 | BOZEL

AT FINDE FREM TIL JERES DRØMMEBOLIG

Fra færdigtegnet typehus med stærk designfeature til arkitekttegninger fra bunden med jeres

BOZEL arbejder med fire forskellige måder at skabe jeres næste hus på. Hvad enten I er til den enkle løsning, eller det helt store kreative værksted, så har vi mulighed for at opfylde jeres ønsker til det nye boligbyggeri.

De fire forskellige måder at bygge et BOZEL hus på adskiller sig visuelt på forskellig vis. Det spænder fra den simple men elegante modulhus

løsning, skabt af karakterfaste moduler i kreative kombinationer, til det storslåede, kreative og fuldendte design hus, hvor fantasi og ønsker får frit løb og skaber drømmehuset. Herimellem findes også designhuset, hvor færdige designs er klar til byggeri, måske med en lille finpudsning for at opfylde et ønske, samt Oasen som er et hus, bygget med fokus på integration af Room 2 i varierende omfang.

BOZEL | 53

DESIGN HUSE

Vælg mellem 20 atypiske typehuse der alle byder på design i særklasse, varierede størrelser og plads til at I kan justere udgangspunktet efter jeres specifikke behov. BOZEL LIVINGs Designhuse sprænger rammerne for, hvad et typehus er.

Er typehuse ikke bare for kedelige? Kan det virkelig være rigtigt at man ikke kan få lidt personlighed med i sit nybyggeri medmindre man betaler en formue?

BOZEL LIVINGs nye typehuskoncept med 20 spændende modeller, er typehusdesign med kant - til et fornuftigt budget. Har I forelsket jer i BOZEL LIVINGs idégrundlag, men vil ikke bevæge jer ud i et helt nyt design, så er designhusene noget for jer. Her får I rammen til jeres eget indretningsprojekt i et moderne hus baseret på BOZEL LIVINGs kerneværdier. Huset vil dog stadig være noget særligt, da BOZEL LIVINGs huse har et fremstående udtryk, som vil skille sig ud blandt traditionelle boliger.

Med det store udvalg af designs at bygge på er der rig mulighed for, at I kan finde det hus der passer til jer og skabe et hjem i det. Har I brug for en lille ændring for virkelig at få fornemmelsen af det perfekte? Designhusene kan justeres efter behov, så de små detaljer kan være med.

KORT OM BOZEL LIVING DESIGNHUSE

• Typehus med karakter

• Tag udgangspunkt i en af 20 forskellige basismodeller og tilpas til jeres smag, stil og behov – eller brug den som den er

• Lever fuldt ud op til BOZEL LIVINGs Zero Energy Living koncept

• Fra 88 m2

VORES HUSE
54 | BOZEL
VORES HUSE
BOZEL | 55
Drømmer du om en åben pejs i et stort køkken/alrum med direkte udgang til udsigsterrasse? Intet problem. Vi tilpasser gerne vores typehuse efter dine individuelle ønsker.

Nul-energi luksusboliger, der gør livet nemmere. Det er her, vi virkelig excellerer. BOZEL LIVING har designet og bygget mere end 50 arkitekttegnede luksusvillaer. Fra 200m2 stråtækte sommerhuse med charme som en svunden tids badehoteller til modernistiske højborge, der springer ud af skråningen.

BOZEL LIVINGs Signaturhuse giver jer ultimativ frihed til design og udtryk. Hvis I vil have frihed til at bygge en villa, som er lige nøjagtig det I drømmer om. En villa, hvor kun fantasien sætter grænser. I bliver inddraget i designprocessen lige fra starten, og med Frank som guide kommer I grundigt rundt om alle detaljer, så huset passer til netop

jeres behov. Har I et usædvanligt ønske i forhold til materialer bestiger Bozel Living bjerge for at opfylde det.

BOZEL LIVING har gennem årene skabt en perlerække af individuelt designede luksusvillaer – alle skabt ud fra ejernes specifikke ønsker og med dem som med-arkitekter.

56 | BOZEL

Nul-energi luksusboliger, der gør livet nemmere kan f.eks. være modernistiske højborge, der springer ud af skråningen.

VORES HUSE
BOZEL | 57

OASEN HUSE

Få fornemmelsen af at bo i naturen - i stedet for at skubbe den til side for at få plads til et hus. Det opnår dit oasenhus med en stor tilbygning af glas, der udvisker grænsen mellem ude og inde, forlænger din udeperiode med martsoktober og delvist fungerer som klimaskal og varmekilde til resten af dit hus.

Oasen er huse som har den store Room 2 udestue. Her får du fornemmelsen af at bo i naturen i stedet for at skubbe den til side for at få plads til et hus. Her stræber vi at skabe en forbindelse mellem hus og have, inde og ude. Det gør naturligvis også, at Oasen husene får et helt særligt udtryk, fordi de store glas stuer bliver gjort til en del af huset.

Oasen husene kan også bygges i en ultimativ udgave. Her tænker vi for alvor stort med udestuen. For huset bygges faktisk inde i udestuen. Den ultimative BOZEL Oase er et Tiny House i et enormt Room 2. Her har du din have hele året, der skal intet være i vejen for at du kan nyde naturen i de mørke måneder uden at pakke dig ind i alt for mange lag tøj.hus der passer

til jer og skabe et hjem i det. Har I brug for en lille ændring for virkelig at få fornemmelsen af det perfekte? Designhusene kan justeres efter behov, så de små detaljer kan være med.

VORES HUSE
58 | BOZEL

Via en stor glastilbygning kan du få fornemmelsen af at være ude i naturen –langt inde i dit hjem

KORT OM BOZEL LIVING OASENHUSE

• Forlæng sommeren med en stor udestue af glas – som at bringe Sydfrankrig til Danmerk

• Overgang mellem ude og inde tages til et andet niveau

• Lever fuldt ud op til BOZEL LIVINGs Zero Energy Living koncept

• Tag et hvilket som helst Bozel Living hus og gør det til et Oasenhus

HUSE
VORES
BOZEL | 59

TINYHOUSE

TinyHouse er til dig, der tænker økonomisk og ønsker at leve med minimalt klimaaftryk. BOZEL LIVINGs udvalg spænder fra det lille

TinyHouse på 45 m2 til TinyMulti med mulighed for flere tilbygninger. Lev enkelt og hold mulighederne åbne med et BOZEL LIVING TinyHouse.

Når du vælger at bo i et TinyHouse så vælger du at minimere spildplads. Du ved hvad du har brug for og det er det du omgiver dig med. Med et BOZEL LIVING TinyHouse optimerer du din bolig til din minimalistiske livsstil.

Hvis dine nøgleord er høj kvalitet, minimal spildplads og fleksibilitet så er et BOZEL LIVING TinyHouse et godt valg når du vil investere i fremtidens bolig.

Disse boliger er bygget til at holde i 100 år. Der er fokus på at du ikke skal bruge tiden på vedligeholdelse. Alle husene er Svanemærket og opføres bæredygtigt. Samtlige byggematerialer er screenet for farlige stoffer.

TinyHouse er for dig der ikke ønsker at bo i et stort hus men i en bolig der har lige det du skal bruge. Faktisk er de små boliger meget flexible. Du kan sagtens udbygge dem senere i livet. Hvis du vil have udestue bygget på dit TinyHouse så er det også en mulighed.

At bo småt og klimabevidst kan sagtens gå hånd i hånd med at bo lækkert i et flot hus. Netop den kombi er et af Bozel Livings varemærker.

VORES HUSE
60 | BOZEL

KORT OM BOZEL LIVING TINYHOUSE

• Minimalistisk livsstil

• Minimalt klimaaftryk

• Lav udgift

• Lille vedligehold

• Optimal udnyttelse af plads

• Fleksibilitet: Gode muligheder for senere udvidelse

• Fra 45 m2

VORES HUSE
BOZEL | 61

SOMMERHUSE

Kom væk fra bylivet til en afslappet atmosfære i et nybygget sommerhus uden at gå på kompromis med komforten. Mange fascinerende designmuligheder.

Sommerhuse i forskellige former og udtryk– hos BOZEL LIVING finder du et bredt udvalg af smukt designede sommerhuse. Hvis du søger et nybygget sommerhus, har vi mange fascinerende designmuligheder at tilbyde.

Et sommerhus skaber et fristed fra

hverdagen og mulighed for at nyde naturen og slappe af. En mulighed for at komme væk fra bylivet og opleve en mere afslappet atmosfære uden at gå på kompromis med komforten. Vi har stor fokus på at forbinde inde og uderummene, så du får mulighed for at forlænge den danske sommer.

Når du vælger at bygge et sommerhus, så har du en gylden mulighed for at gentænke inde og ude arealer. Du ved, hvad du har brug for, og hvordan du gerne vil nyde tiden i dit ekstra hus.

Med et BOZEL LIVING sommerhus optimerer vi pladsen, gennemtænker dine drømme og ønsker så det passer præcis til din livsstil. Vi bygger sommerhuse efter din stil så om det er det klassiske badehotel stemning eller det rå og moderne natursommerhus er vi klar til at hjælpe.

VORES HUSE
62 | BOZEL

KORT OM BOZEL LIVING SOMMERHUSE

• Forlæng sommeren med en stor udestue af glas –som at bringe Sydfrankrig til Danmerk

• Overgang mellem ude og inde tages til et andet niveau

• Lever fuldt ud op til BOZEL LIVINGs Zero Energy Living koncept

• Tag et hvilket som helst BOZEL LIVING hus og gør det til et Oasenhus

Via en stor glastilbygning kan du få fornemmelsen af at være ude i naturen –langt inde i dit hjem

VORES HUSE
BOZEL | 63

RØRBÆK SØ

KOMPRIMISLØS ÆRLIG LUKSUS

Langt væk fra hverdagens travlhed, dybt inde i skovens hjerte, finder du det unikke sommerhus –Skovhuset i Skrænten ved Rørbæk Sø. Et fortryllende tilflugtssted, formet af BOZEL arkitekters vision om at omfavne naturen. Når du følger den snoede sti, afslører naturen gradvist det, der ved første øjekast ligner en almindelig carport. Men der gemmer sig en overraskelse, og så snart du træder ud af bilen, begynder eventyret.

Følg trappen, der fører op til indgangspartiet, og åbn døren til en verden af æstetik og harmoni. En elegant betontrappe fører dig op til ”café-platformen,” et magisk sted badet i morgensolens gyldne stråler. Her kan du nyde din første kop kaffe og føle dig omfavnet af naturen, mens solen stiger over trætoppene.

Indenfor venter et stort køkkenalrum, hvor

familiens liv folder sig ud. Det enorme køkken inviterer til kulinariske eventyr, mens spisepladsen og stuen skaber en hyggelig atmosfære.

BILLED REPORTAGE

Kom med indenfor i eksklusivt og klimavenligt sommerhus

Terrassedøren åbner op mod øst, og en kæmpe terrasse strækker sig ud, hvilende mellem træerne som en naturlig forlængelse af skoven selv.

Når solen vandrer henover himlen, kan du skifte mellem øst- og vestvendte terrasser og opleve dagens lyse og varme nuancer. Ingen naboer kan snige sig ind på din privatlivets scene; du er omgivet af stilhed og livet i skoven.

To værelser, skjulte i husets hjerte, tilbyder ro og komfort. Over dem, i hemsen, er der plads til

64 | BOZEL

børnenes leg og latter. Et badeværelse afslutter familiens oase, et sted for nærvær og fællesskab.

Gennem glasgangen og ind i det andet lille hus åbner der sig en forældreafdeling. Et soveværelse midt i skoven, adskilt fra resten af huset, tilbyder privatlivets luksus.

En elegant dans mellem et adskilt toilet, en adskilt bruser og en dør, der fører ud til wellnessområdet under åben himmel. Elektrisk sauna, koldt bad og vildmarksbad inviterer til afslapning og foryngelse. Et lille stykke af Finland er blevet plantet i skovens dybe ro.

Ude i det fri strækker grunden

sig, og mulighederne er uendelige. Byg et shelter, sov i et telt eller hvil i en hængekøje under stjernerne. Vildmarksområdet kalder, og du kan gå direkte fra naturens favn ind i husets toilet uden at forstyrre resten af familien.

Skovhuset i Skrænten er ikke bare et hjem; det er et sommerhus med fordybelse, harmoni og det sublime ægteskab mellem mennesket og naturen.

Det er et hus, der vækker længsel, og hos BOZEL står vi klar til at åbne døren til et magisk univers for dem, der tør drømme stort og ønsker at skabe deres eget eventyr i naturen.

BOZEL | 65

LUKSUS UDSIGT

LUKSUS HJEM

LUKSUS LIV

68 | BOZEL
Bozel Living – sommerhus i Klitmøller BOZEL | 69

FÆLLESSKABER

Fællesskaber får dig til at leve længere – og bedre. Tætte relationer og fællesskaber er afgørende for, om vi har det godt. Vi har brug for at opleve, at vi er en del af noget.

Men det er ikke nok at have mange venner på Facebook eller andre sociale platforme. En tæt relation er vigtig og kræver både tid og investering. Vi lever i en tid, hvor mange kæmper med

at finde balancen i tilværelsen. Hos BOZEL LIVING designer vi huse til dig som ønsker at blive en del af gode naboskaber og boligformer med fokus på samvær og det bæredygtige liv.

FÆLLESSKABER GUDENÅPARKEN 7160 TØRRING KLØVERPARKEN 8410 THORSAGER PYTGADE 6400 SØNDERBORG 70 | BOZEL

Læs meget mere om vores

spændende boligområder på de næste sider eller i vores specialmagasin bagerst når du vender dette boligmagasin.

FÆLLESSKABER
BOZEL | 71

GUDENÅPARKEN

FÆLLESSKABER 72 | BOZEL

Gudenåparken ligger i Tørring og er bygget op om visionen ”Lev og leg livet let” og er et bud på fremtidens boligområde, hvor fællesskab og tid til hinanden er i fokus. Med et væld af aktiviteter og fællesarealer tilgængelig for alle parkens beboere er der plads til samvær og afslapning, selv i en travl hverdag, på tværs af generationer med huse, der er tilpasset ens behov.

Hos Gudenåparken er det ikke kun den grønne energi, der er i fokus. Det er også den personlige energi, hvor

jeres hjem og boligområde er med til at frigøre mere energi og tid, der tilsammen gør parken til et unikt og innoverende sted at bo. Der er rig mulighed for at boltre sig i parkens skov, på bålpladsen og træningsområde og ikke mindst slænge sig på badestranden, og I er ikke længere væk fra jeres hus, end I kan se til det. Alligevel får I følelsen af friluftsliv og åben himmel, når der leges på tarzanbanen eller der laves mad over åben ild.

FÆLLESSKABER 1 2 3 4 5 6 7 4 BOZEL | 73

KLØVERPARKEN

I et spændende partnerskab med Syddjurs Kommune vækker vi nu Kløverparken i Thorsager til live. Dette boligområde er ikke bare et sted at bo. Det er en vision om at forbedre livskvaliteten gennem stærke fællesskaber og deling af ressourcer. Kløverparkens hjerte er en gårdkonstruktionen, som forbinder sig smukt med de omkringliggende områder. Med fælleshaver, bålplads og husdyr skaber vi en unik atmosfære, hvor naboer kommer tættere på hinanden og deler glæden ved en aktiv og sjov hverdag.

Bo tæt på by, historie og natur

Kløverparken er indrammet af et utroligt naturskønt område, hvor nærheden til Nationalpark Mols Bjerge og Kalø Slotsruin skaber en fantastisk sammenhæng mellem betagende natur og rig kulturhistorie. Thorsager udgør en ideel base for at udforske denne rige kombination af natur og kulturarv, og samtidig en god beliggenhed til både Randers og Aarhus med 30 minutter kørsel.

FÆLLESSKABER 74 | BOZEL
FÆLLESSKABER BOZEL | 75

PYTGADE

Kom med til Sønderjylland og det naturskønne Sønderborg, hvor et spændende nyt boligområde tager form. På Pytgade i Vollerup, blot 10 min fra centrum i Sønderborg, finder du et fællesskab, der taler ind i tidens ånd om at bo godt, men småt. Pytgades hjerte er fælleshuset, hvor samvær og relationer på tværs af generationer trives. Boligområdet ligger tæt på natur og by og består af forskellige størrelses gårdhavehuse med fælles udendørsarealer.

FÆLLESSKABER 76 | BOZEL
FÆLLESSKABER BOZEL | 77
Bozel Living - villa i Holte
Vinduer til visionær arkitektur
Bozel Living –villa i Væksø

ZERO ENERGY LIVING: GRØNNE MULIGHEDER

Fjernvarme

LivingBetter

Regnvandsopsamling

Solenergi

SIDE 86-99

BILLIGERE END FJERNVARME

LivingBetter som står bag udviklingen af Ventilationsvinduet som sammen med IKMs udsugsvarmepumpeteknologi, genvinder varme fra almindelig udluftning og skaber bedre indeklima.

Bozel Living er med til at udvikle et nyt boligområde ved Tørring. Der er fjernvarme i området, men den blev fravalgt, da den viste sig at være dyrere for husene i området på grund af det faste gebyr for tilslutning til fjernvarmenettet. I stedet valgte man en smart løsning fra Living Better, der ved hjælp af specielle ventilationsvinduer og moderne udsugsvarmepumper skaber lavenergi genvindingsvarme.

De nyopførte rækkehuse har ekstra højt til loftet, da der ikke skulle føres rør ind til ventilationen. I stedet er der tre ventilationsvinduer i hvert hus, der sørger for konstant tilstrømning af forvarmet, frisk luft. I teknikskabet står en højeffektiv udsugsvarmepumpe, som udnytter energien i afkastluften til både gulvvarme og varmt vand. Deltagerne fik både vinduer, varmepumpe og indretningen at se i de unikke omgivelser. Efter rundturen diskuterede man politiske udfordringer i bygningsreglementet, energipriser og kommende projekter, hvor LivingBetter bliver tænkt ind.

LivingBetter er nu installeret i 400 nybyggede enfamilieboliger, og det økonomiske fundament er sikret for udbredelsen af konceptet i udlandet. Dette blev markeret ved et kick-off

arrangement i det nye boligområde i Tørring. De sidste lag tagpap var stadig ved at blive brændt på, da LivingBetter fredag eftermiddag den 16. juni bød en udvalgt gruppe eksperter, investorer, rådgivere og specialister fra byggebranchen velkommen. Her var de seneste tre nye rækkehuse med LivingBetter ved at blive opført. Flere deltagere kendte allerede til LivingBetter, men mange havde ikke set systemet i et nyt hus. ”Vi er meget glade for at få lov til at vise gårdhavehusene i Gudenaparken frem. Her kan I se LivingBetter i brug, få svar på spørgsmål og lytte til Levebygs erfaringer med det,” sagde Peter L. Clausen, adm. direktør i LivingBetter A/S. Blandt de fremmødte var repræsentanter for LivingBetters nye medejere, Hands-On Mikrofonden, og de to lokale investorer, Allan og Torben Christensen. Inden chefkok Michael Bøgild Jensen præsenterede dagens festlige mad og drikke, gik også Poul Horn på talerstolen. Som opfinderen bag de patenterede ventiler, som førte til udviklingen af ventilationsvinduet og LivingBetter, delte han spændende tanker. ”Solen er i bund og grund den eneste energikilde, vi har. Den skal vi sørge for at bruge, så godt vi kan,” sagde Poul Horn. Han lovede, at der også er ny teknologi på vej,

LIVING BETTER
86 | BOZEL

“Vi er meget glade for at få lov at vise gårdhavehusene i Gudenåparken frem. Her kan I se LivingBetter i brug, få svar på spørgsmål og lytte til Levebygs erfaringer med det,” sagde Peter L. Clausen, adm. direktør i LivingBetter A/S

som gør den nuværende løsning endnu bedre. Herefter gik deltagerne ud i de nye huse for at høre mere om Gudenåparken og LivingBetter.

Der er fuldt fokus på bæredygtige løsninger i Tørring, som ligger i et naturskønt område. Dette indbyder til at tænke anderledes, og derfor er LivingBetter valgt som energi- og indeklima løsning i de første rækkehuse, der opføres på området. Firmaet Levebyg ApS står bag projektet, og grunden er tidligere aktivitetsområde for firmaet Coastzone, som blandt andet drev en gokart-bane på stedet. I dag bliver de eksisterende bygninger omdannet til glæde for de kommende beboere i Tørring. De får blandt andet adgang til kontorfællesskab, gæstelejlighed, fælles værksted, fitnessrum og kreativt

værksted. Dette gør det lettere for beboerne at bygge mindre boliger og tilsammen bruge færre ressourcer.

I sin søgen efter den bedste løsning med varmepumpe har direktør i Levebyg ApS, Brian Christiansen, været igennem flere muligheder. Hans valg faldt på LivingBetter af flere årsager. ”Det er vigtigt, at vi kan leve i vores boliger. Derfor er der højt til loftet og masser af frisk luft her, selvom vi bygger mindre og forholdsvis tæt. Derfor skal der heller ikke være en udvendig varmepumpe, som brummer og skæmmer. Da jeg først havde stiftet bekendtskab med LivingBetter, gav de traditionelle løsninger ikke mening,” fortæller Brian Christiansen, direktør i Levebyg ApS.

LIVING BETTER
BOZEL | 87

BOZEL LIVINGS MEST BÆREDYGTIGE VILLA BRUGER OGSÅ LIVING BETTER

DET BÆREDYGTIGE

PILOTPROJEKT VILLA GRENAA FÅR FRISK

LUFT OG UHØRT LAVT

ENERGIFORBRUG MED LIVING BETTER

Hvis du ønsker at bygge et hus med topkarakter på verdens mest strenge ordning for bæredygtighed, skal du have dokumentation for hver eneste bunke jord og pakke med skruer. Denne proces tager lang tid, da de fleste byggematerialer ikke har papirerne helt i orden. Derfor var den veldokumenterede energi- og

indeklimaløsning Living Better et oplagt valg.

LIVINGBETTER KONCEPT

I VILLA GRENAA:

Villa Grenaa, Danmarks mest bæredygtige enfamiliehus, opnåede i september den højeste bedømmelse i det bæredygtige byggeris strengeste

SÅDAN FUNGERER LIVING BETTERS KOMPLETTE LØSNING

• Al ventilation, varmt brugsvand og boligopvarmning produceres af en IKM RX udsugsvarmepumpe.

• Al lufttilførsel sker gennem Ventilationsvinduer.

• Udsug sker fra køkken, bad og bryggers til RX varmepumpen, som omdanner energien i den udsugede luft til varmt vand og boligopvarmning.

• Udsugningsvarmepumpen sikrer ventilation i boligen – 24 timer i døgnet – for opfyldelse af bygningsreglementets krav om grundventilation og øget luftskifte.

LIVING BETTER
88 | BOZEL

certificeringsordning - DGNB. Bygherre Dennis Thaagaard valgte Living Better som løsningen til trods for oprindelige overvejelser om jordvarme. Han anerkendte fordelene ved Living Better, herunder det innovative ventilationsvindue, der sikrer frisk luft gennem en unik proces.

PRISMÆSSIGE OVERVEJELSER:

”Vi havde energiingeniører til at regne på alle løsninger og kunne klart se en stor fordel i at få energi og frisk luft med Living Better. Vi var bare bekymrede for, at det var for dyrt. Men da vi fik alle udregningerne, var det en no-brainer. Hele systemet, anskaffelsen og driften var billigere,” fortæller Dennis Thaagaard. Han og familien har boet i huset siden januar 2020 og

har derfor oplevet både en kold vinter, en våd sommer og en hedebølge i et år, hvor danskerne har været mere indendørs end før.

LIVING BETTER I PRAKSIS:

”Luften føles blød og rar at være i. På de rigtigt varme dage har det været varmt, men ikke uudholdeligt. På grund af udhæng og ventilationsvinduer har det været dejligt at være indenfor, også om sommeren,” siger han. Selvom Villa Grenaa er en stor nyhed, er Living Better den samme løsning, der anvendes i mange nybyggede huse. Villaens bæredygtige totalentreprenør, Jakobsen Huse, har udelukkende bygget med Living Better de seneste år, og løsningen er blevet anerkendt som egnet til Villa Grenaa.

BÆREDYGTIGHED OG LØSNINGER:

”Det er det mest naturlige for os, at vores løsninger indgår i denne type byggeri. Derfor har vi leveret vores standardkoncept og dokumentationen, som viser, at vi kan indgå i Svanemærket byggeri,” forklarer Jens Bo Nielsen, produktchef og partner i Living Better.

Med Living Better som en integreret del af Villa Grenaa demonstreres ikke kun en bæredygtig byggeproces, men også en praktisk og effektiv løsning for et sundt og behageligt indeklima, samtidig med at energiforbruget reduceres betydeligt.

LIVING BETTER
BOZEL | 89
Villaen i Tørring er en af Bozel Livings mest bæredygtige til dato – ikke mindst takket være det innovative varmegenvindingssystem fra Living Better, der også bidrager markant til et stærkt forbedret indeklima.

REGNVANDS OPSAMLING

REGNVANDSTANKEN

I en verden, hvor vi stadig bliver flere og flere, er det gavnligt at begrænse vores aftryk på klimaet. Hver dansker bruger i gennemsnit 106 liter drikkevand om dagen til forskellige formål, hvilket akkumulerer til betydelige mængder årligt. Hvorfor ikke drage fordel af gratis regnvand i stedet? Udover at regnvand ikke indeholder kalk, som på lang sigt kan være skadeligt for mange maskiner og udstyr, er prisen på drikkevand også i gennemsnit steget i de senere år.

Derfor giver det mening at anvende regnvand, da det er både nemt, gratis og miljøvenligt.

Med regnvandstanken opsamles regnvand i store nedgravede tanke, som efterfølgende kan bruges til toiletskyl, tøjvask, bilvask, vinduespudsning og havevanding.

Samtidig med at man sparer penge, bidrager man også til at skåne miljøet, hvilket harmonerer med BOZEL

LIVINGs overordnede principper inden for bæredygtighed.

Det er en simpel og miljøvenlig løsning, der ikke blot reducerer omkostninger, men også støtter op om bæredygtighedsprincipperne hos BOZEL

LIVING

Du kan læse mere om Regnvandstanken på hjemmesiden: https://www.regnvandstanken.dk/

90 | BOZEL
BOZEL | 91

ENERGI FRA BRUSEBADET

Orbital Shower er en integreret del af BOZEL LIVINGs sortiment, hvor design og energieffektivitet forenes på smuk vis. Orbital Shower transformerer dit brusebad til en energikilde. Både varmt vand og badevand opsamles og genbruges direkte i det brusebad, du tager. Denne banebrydende teknologi, udviklet af NASA, er på vej ind i BOZEL-hjemmene.

Jeg elsker også de lange, varme brusebade, der kan gøre huden tørstig. Men at vide, at omkring 50 liter vand kan gøre underværker, gør det endnu bedre. Med denne vand- og energibesparende løsning får du ikke kun penge tilbage i din konto, men også en god portion karma, der gavner både pengepungen og miljøet.

Der er flere forskellige løsninger til rådighed, herunder ergonomiske pumper, der forlænger brusebadets varighed med op til 14%. Det betyder, at du kan nyde dit bad i længere tid, om det er ca. 15 minutter eller en afslappende stund på badeværelset. Vandet opretholder sin temperatur gennem hele bruseritualet, så du undgår ubehagelige temperatursvingninger. Denne løsning er særligt ideel for større selskaber, hvor brusebadet kan være langsommere end planlagt. Dette sikrer, at alle familiemedlemmer kan nyde godt af den forlængede bruseoplevelse uden at bekymre sig om at løbe tør for varmt vand.

92 | BOZEL
BOZEL | 93

ENERGI FRA SOLEN

SUNSYSTEM

Følg med i driften af dine vedvarende energiløsninger for at optimere produktion

Vælg grøn energi som solcelleanlæg, varmepumper og hybridanlæg for miljøets og økonomiens skyld

Med SunSystem har du mange valgmuligheder inden for vedvarende energiløsninger, uanset om du ønsker at installere solcelleanlæg, varmepumper eller hybridanlæg.

Med stor erfaring og ekspertise rådgiver vi dig i forhold til at vælge og installere de bedste vedvarende energiprodukter på markedet, som sikrer dig en optimal energiproduktion.

Til overvågningen og monitorering har vi udviklet et online system på websitet sun.softcontrol.dk.

Her kan du få et overblik af produktionen af solenergi, samt se dine CO2-besparelser og modtage alarmer omkring driftsforstyrrelser.

Derudover er vi distributør af tyske Solar-Log, som er et professionelt datamonitoreringssystem, der holder øje med ydelsen af dit solcelleanlæg og giver besked om driftsforstyrrelser.

HYBRIDANLÆG

Gem overskydende strøm i en batteripakke og sælg overproduktion, når du vil

Hydridanlæg er en kombination af tilslutning til el-nettet, men du har til gengæld også mulighed for lagring af den strøm, du producerer på et batterilager.

Derved kan du blive selvforsynende og f.eks. oplade din el-bil gratis om natten.

Dette anlæg fungerer ved, at der måles på solcelleproduktionen og forbrugssiden.

Det betyder, at i tilfælde af overskydende strøm i husstanden i en længere periode, kan det overskydende strøm sælges til el-selskabet.

Det er en stor fordel og giver dig også den størst mulige besparelse på elregningen.

94 | BOZEL

SELVFORSYNINGSGRAD (SOLSTRØM EFTER EGET FORBRUG)

DER ER BESPARELSER AT HENTE

Med et hybridanlæg kan du gemme overskydende strømproduktion i den medfølgende batteripakke og dermed undgå at sælge din egenproducerede strøm

til langt under den pris, man skal betale for en kWh.

Med et hybridanlæg kan du producere en kWh for cirka én krone og dermed opnå en besparelse på cirka 1,25 kroner per kWh.

FORDELE VED HYBRID Et hybridanlæg gemmer solenergien til natten og reducerer dit elkøb yderligere

Få op til 60% bedre totaløkonomi i forhold til et

almindeligt solcelleanlæg

Bliv uafhængig af svingende tilskudsordninger

Bliv næsten selvforsynende om sommeren med grøn strøm

ELFORBRUG BOZEL | 95

BOFÆLLESSKAB MED ENERGIFÆLLESSKAB

Andelsboligens fællesenergi er fremtidens energi løsning, et samlet stort solcelleanlæg med et stort VisBlue batteri.

Denne løsning skaber vireklig udnyttelse af solens energi, energien kommer billigt ind i systemet og batteriet på 2 måder, enten fra solens stråler på solcellerne eller købt når strømmen er bllligt og nd på batteriet, på den måde får I billig energi og bruger den når den skal bruges og når det er dyrest på nettet, derved spares der rigtig mange penge.

ELHUS
Det er nemt at få grøn strøm når solen skinner på dine solceller eller når vinden blæser mod din vindmølle. Men hvad gør du, når det er helt vindstille og solen er skjult bag grå skyer?
96 | BOZEL

ENERGILAGRING - FOR EN GRØNNERE FREMTID.

Energilagring er en vigtig del af en grøn og bæredygtig fremtid.

Afbrænding af kul og gas skal være datid, som vi inden for 10 år kigger tilbage på som en tidligere nødvendighed. I stedet skal vi fokusere på vedvarende energikilder som sol- og vindenergi.

Batteriet er skalérbart og kan derfor designes efter behov.

Derudover er batteriet ikke-brandbar, ikke-eksplosiv og er 99% genanvendeligt, hvilket gør det til en meget sikker og bæredygtig løsning.

Den typiske ejer af et solcelleanlæg bruger kun ca. 30% af solenergien – resten sælges tilbage til nettet, oftest mod en lille afregningspris.

Vores mindre batteriløsning gør det muligt for ejeren at udnytte op mod 75%, hvilket gør solenergien til en væsentlig bedre investering.

Og med et tilstrækkeligt stort batteri kan ejeren strengt taget komme til at udnytte hele den oplagrede energi.

Grønne investeringer kan give grønne tal på bundlinjen og kan dermed afføde kontante besparelser.

BOZEL | 97

FREMTIDENS HUS

Fra de første streger til færdigt byggeri

BOZEL LIVING har taget skridtet ind i fremtiden med en visionær tilgang til boligbyggeri, der går ud over de traditionelle aspekter af byggeri. Vi tror på, at et hus ikke kun skal være et hjem, men også en bæredygtig oase, der tager højde for vores planet og klimaets fremtid.

BYGGESYSTEMER – FREMTIDENS HUS
98 | BOZEL

I vores bæredygtige byggekoncept har vi flettet ideen om miljøvenlige elementer ind i hvert trin af processen. Fra de materialer, vi anvender, til innovative produkter, der genanvender og lagrer vand, varme og strøm, stræber vi efter at skabe en livsstil, der er skånsom for både beboere og miljøet.

Vores huse er ikke kun fire vægge og et tag - de repræsenterer en forpligtelse til at skabe en bedre fremtid. Vi har integreret smarte løsninger, der gør det muligt at genbruge vand fra bruseren til flere formål, skabe et optimalt indeklima og forbruge mere grøn elektricitet. Hos BOZEL LIVING tror vi på, at små daglige valg kan gøre en stor forskel for vores planet.

Et afgørende element i vores lavenergihuse er vægsystemet Rockzero fra Rockwool. Dette system minimerer kuldebroer, holder på varmen og er let at samle, hvilket skaber et effektivt

og energieffektivt fundament for vores boliger.

Indvendigt er vores huse udstyret med et udvalg af produkter fra anerkendte producenter, der alle har til fælles, at de bidrager til at gøre hverdagen for vores kunder grønnere. Varmepumpen fra IKM og ventilationsvinduet fra LIVINGbetter er blot nogle få eksempler på de innovative teknologier, der arbejder sammen om at skabe det ideelle indeklima. Hos BOZEL

LIVING er vi ikke kun dedikerede til at pleje klimaet, men også til at skabe et hjem, hvor beboernes trivsel er i fokus.

Vores grønne huse er ikke kun et skridt ind i fremtiden; de er et aktivt bidrag til at forme den. Med BOZEL

LIVING får du ikke kun et hjem, du kan være stolt af, men også en investering i en bæredygtig fremtid. Velkommen til fremtidens hus, velkommen til BOZEL LIVING.

BYGGESYSTEMER – FREMTIDENS HUS
BOZEL | 99
KBZINC A/S DIN BLIKKENSLAGER
Bozel Living – Villa i Tørring

SÅDAN BYGGER VI DIT BOZEL LIVING HUS

Murede huse

Træhuse

RockZero

Modulhuse

ISOBYG

SIDE 102-115

BYGGE SYSTEMER

BOZEL LIVING benytter 5 byggesystemer til at skabe dit nye hus. Vi bruger stærke materialer, med god isoleringsevne for at lave de mest muligt energieffektive løsninger, og med gode bygge egenskaber som giver plads til kreativitet i konstruktionen.

BYGGESYSTEMER
102 | BOZEL

MUREDE HUSE

BOZEL LIVING rejser ikke blot huse - vi skaber solidt forankrede, gennemtestede boliger, der kombinerer tidløs elegance med pålidelig konstruktion. Vores murede huse bygges efter anerkendte principper og med de mest dygtige håndværkere i spidsen.

TRÆ HUSE

BOZEL LIVING omfavner bæredygtigt byggeri, og vores træhuse er stolte repræsentanter for en grøn fremtid. Vi har valgt elementbyggeri som vores metode, hvor hvert element færdiggøres med præcision i vores centrale konstruktionshal. Denne serieproduktion holder ikke kun prisen nede, men sikrer også en konstant høj kvalitet i hvert enkelt hus, vi skaber.

ROCK ZERO HUSE

I BOZEL huse vælger vi Rockzero systemet på grund af dets fremragende isoleringsevne mod både kulde og støj samt dets høje energieffektivitet. Systemet giver os mulighed for stor designfrihed og faciliterer samtidig en effektiv byggeproces. Dette gør det nemt for os at skabe energieffektive boliger, og med den store designfrihed, som materialet tilbyder, kan vores kreative visioner realiseres uden at gå på kompromis med bæredygtigheden.

MODUL HUSE

BOZEL LIVING’s modulære boligbyggeri forener innovation, fleksibilitet og bæredygtighed. Fleksibilitet er nøgleordet med muligheder for tilpasninger igennem hele livet afhængig af behov og endda muliggør en flytning af hele boligen. Vi tror på, at størrelsen ikke bør være en begrænsning, når det kommer til at bygge ens drømmehjem. Med moduler er det muligt at realisere både små og hyggelige boliger såvel som luksuriøse, rummelige residenser - alt afhængigt af køberens vision for fremtiden.

BETON HUSE

Betonhuse repræsenterer robusthed og holdbarhed i boligbyggeriet. Deres solide konstruktion og termiske masse giver en behagelig temperaturstabilitet året rundt. Med moderne design og innovative konstruktionsmetoder kan betonhuse tilpasses forskellige arkitektoniske stilarter og opfylde forskellige behov for energieffektivitet og bæredygtighed.

BYGGESYSTEMER
SÅDAN BYGGER
DIT BOZEL HUS BOZEL | 103
VI

MUREDE HUSE

BOZEL LIVING rejser ikke blot huse - vi skaber solidt forankrede, gennemtestede boliger, der kombinerer tidløs elegance med pålidelig konstruktion. Vores murede huse bygges efter anerkendte principper og med de mest dygtige håndværkere i spidsen.

Fra start til slut følger vi nøje udarbejdede trin for at sikre, at dit BOZEL LIVING hus ikke kun er et hjem, men også et symbol på kvalitet og dedikation. Det hele starter med en grundig udgravning, hvor dybderne defineres ud fra en omfattende jordbundsanalyse.

Vores erfarne entreprenører står for at støbe fundamentet og udføre kloak arbejdet, mens geoteknikere godkender udgravningen for at sikre et solidt fundament. Vi går endda et skridt videre med effektiv radonudluftning for at sikre, at din bolig er fri for den radioaktive gasart fra undergrunden.

Når fundamentet og gulvkonstruktionen er hærdet, begynder vi at opstille de nøje konstruerede vægelementer. Spærene rejser sig, og inden længe

kan du fejre rejsegilde. Vores erfarne tømrere arbejder hånd i hånd med elektrikere for at sikre, at kabler er trukket korrekt, før isoleringen begynder. Vinduer og døre finder deres plads, og skalmuringen starter - her begynder din vision for dit BOZEL LIVING hus virkelig at tage form.

For at sikre optimal kvalitet sætter vi en affugter op i huset, der fjerner eventuel byggefugt. Et uafhængigt selskab måler fugtindholdet i elementer og gulve for at garantere, at alt er perfekt. Når gulve og vægge er tilstrækkeligt affugtede, træder flisemureren ind i billedet, og malerarbejdet går i gang. Endelig begynder processen med at opsætte inventar, montere trægulve og skabe det hjem, du har drømt om.

BOZEL LIVING bygger ikke bare huse - vi opfører boliger med stolthed, håndværksmæssig ekspertise og en forpligtelse til at skabe et hjem, der varer livet ud. Velkommen til din nye BOZEL LIVING oase, hvor hver mursten bærer præg af dedikation og kvalitet.

BYGGESYSTEMER – MUREDE HUSE
104 | BOZEL
BYGGESYSTEMER – MUREDE HUSE BOZEL | 105
BYGGESYSTEMER – TRÆHUSE 106 | BOZEL

TRÆ HUSE

BOZEL LIVING omfavner bæredygtigt byggeri, og vores træhuse er stolte repræsentanter for en grøn fremtid. Vi har valgt elementbyggeri som vores metode, hvor hvert element færdiggøres med præcision i vores centrale konstruktionshal. Denne serieproduktion holder ikke kun prisen nede, men sikrer også en konstant høj kvalitet i hvert enkelt hus, vi skaber.

Vores tilgang til elementbyggeri bringer naturen ind i byggeprocessen, hvor materialerne forarbejdes under kontrollerede, tørre forhold, før de samles på byggepladsen. Dette muliggør en effektiv montage, hvor huset lukkes på en dag, og risikoen for fugtindtrængning minimeres. BOZEL LIVING forstår vigtigheden af at holde naturen udenfor og sikre, at dine fire vægge

er en solid barriere mod elementernes kræfter.

Vores træhuse er ikke kun bygget til at vare, men de er også designet med omtanke for vores planet. Isoleringen er nøglen, og BOZEL LIVING har valgt træfiberisolering for at levere et sundt indeklima og bidrage til en betydelig CO2-besparelse. Træfiberisoleringen er et bæredygtigt valg, der ikke blot holder huset varmt om vinteren og køligt om sommeren, men også reducerer vores miljøpåvirkning.

BOZEL LIVING træhuse er ikke bare boliger; de er en manifestation af vores forpligtelse til at bygge ansvarligt og skabe hjem, der er i harmoni med naturen. Velkommen til en grønnere fremtid, velkommen til BOZEL LIVING.

BYGGESYSTEMER – TRÆHUSE
BOZEL | 107

ROCKZERO – ET NYT OG ENERGISIKKERT VÆGSYSTEM

Rockzero® er et modulært alt-i-ét-byggesystem til bærende vægge, og BOZEL LIVINGs foretrukne lavenergi byggesystem til huse over 80 m2

Rockzero® er et patenteret alt-i-ét byggesystem til bærende vægge op til 2,5 etager. Det modulære byggesystem inkluderer alt imellem den valgfri indre og ydre beklædning inkl. åbninger til vinduer og døre. Det opfylder ikke bare de højeste standarder inden for varmeisolering og energieffektivitet, men sikrer også en hurtig og effektiv byggeproces.

Byggesystemet leveres i én samlet pakke klar til on-site montering, og er

ROCKZERO FORDELE

hurtigt og nemt at samle. Det er baseret på kendte arbejdsgange og kræver intet specialværktøj eller løfteudstyr. Og da systemet er skræddersyet til det specifikke projekt, er det kun nødvendigt med små tilpasninger på stedet. Alt i alt sikrer det en effektiv konstruktion, der mindsker risikoen for fejl på byggepladsen og gør den samlede byggeproces så problemfri som mulig. Reducer energiforbruget med mere end 20%

• Rockzero er produceret af genanvendelig stenuld baseret på sten fra naturen

• Huse bygget med Rockzero lever op til near-zeroenergy- building standarden uden montering af solceller

• Højest mulig niveau af brandsikkerhed, da Rockzero er lavet af sten

• Rockzero bremser støj udefra og sikrer en behagelig akustik i bygningen på grund af stenuldens egenskaber

• Rockzero giver designfrihed, da systemet ikke har betydning for valg af facader

• Bevaring af oprindelige varmeisoleringsevne og brandegenskaber i hele konstruktionens levetid – bygningens energimærke forværres ikke

• Systemet består af søjler med komprimeret isolering

Et 2018 byggeri har et væsentligt større energiforbrug end et 2020 byggeri og derfor også en højere varmeregning.

Skifter du til et 2020 byggeri, viser beregninger, at man vil kunne spare cirka 20% på energiforbruget sammenlignet med et byggeri, der kun lever op til 2018-kravene – og langt mere sammenlignet med ældre bygninger.

imellem, som indeholder 3 kuldeafbrydende zoner og sikrer stabilitet og bæreevne

• Ingen risici for fugt på grund af stenuldens evne til at ånde og afvise fugt

• Højt niveau af modstandsdygtighed over for mikroorganismer, råd og skimmelsvamp

• Rockzero overflødiggør dampspærre, der indgår i traditionel byggeri

• Systemet passer til byggeriets eksisterende konstruktioner som døre og vinduer

• Effektiv byggeproces – modulær opbygning sikrer højt tempo og lav risiko for fejl

• Intuitivt byggemetode, som kun kræver kort introduktion og intet specialværktøj

BYGGESYSTEMER – ROCKWOOL
108 | BOZEL

BEREGNINGSEKSEMPEL FOR ET 140 M2 HUS

Ifølge bygningsreglementet er 2018 kravet for boliger = 30+1000/areal, altså ca. 37 kWh/m2/år og 2020 kravet er 27 kWh/ m2/år.

Har du derfor et hus på 140 m2 svarer det til en reducering på ca. 27%:

2018 kravet: 37 kWh/m2/år = 5.180 kWh/år

2020 kravet: 27 kWh/m2/år = 3.780 kWh/år

Total besparelse = 1.400 kWh per år.

Dvs. en reduktion i energiforbruget på over 20%. Ovenstående illustrerer alene forskellen på 2018 og 2020 kravet. Der vil derfor være en markant større besparelse, hvis man for eksempel skifter fra et hus fra 70’erne.

BYGGESYSTEMER – ROCKWOOL
BOZEL | 109

Anvender du Rockzero kan du leve op til 2020-kravene, selv uden brug af alternative tiltag som solceller på taget, idet Rockzero fås med en U-værdi på ned til 0,10 W/m2·K.*

Det vil sige, at man ved at udskifte eksisterende vægløsninger med U=0,14 W/m2K med Rockzero U=0,10 W/m2K i mange tilfælde kan gå fra klasse 2018 til 2020 og dermed opnå betydelige besparelser på det samlede energiforbrug.

LEVERER SOM KALKULERET

Beregninger af bygningers energiperformance ødelægges ofte af kuldebroer grundet elementer som døre, vinduer og tilstødende byggelementer.

Rockzero vægsystemet har en indbygget lufttæthed der minimerer kuldebroer. Derfor er man sikker på at bygningen performer konsekvent og at energibesparelserne vil være som beregnet. Det betyder mere simple energiberegninger og færre efterkalkulationer samt et system, der performer som det skal både på papiret og i virkeligheden.

Over en periode på 25 år udgør prisen for selve konstruktionen kun 5,5 procent af prisen for bygningen. Beboelsesudgifterne, hvilket inkluderer energiudgifter, udgør derimod 86 procent. Små investeringer i design og materialer kan derfor have en stor indvirkning på de samlede udgifter.

ROCKZERO KONSTRUKTIONEN

Rockzero væggen består af tre zoner, der hver især bryder de kuldebroer, som bærende konstruktioner normalt medfører, og sikrer at systemet leverer en optimal og vedvarende energieffektivitet.

Systemet bygges op af en unik kombination af bærende søjler uden kuldebroer, ROCKWOOL stenuldsisolering i høj densitet og indvendige OSB 4-plader, der resulterer i en slank løsning.

Søjlerne udgør den bærende del af Rockzero vægsystemet, og placeres lodret i konstruktionen mellem to fag af Core

Batts. De består af tre kuldeafbrydende zoner, der sikrer en meget lav u-værdi i forhold til væggens tykkelse. Søjlerne fungerer samtidigt som underlag for både den udvendige beklædning og OSB 4-pladerne på indersiden.

ROCKZERO VÆGGENS OPBYGNING

Her kan du se Rockzero vægsystemets opbygning. Alle elementer som ses nedenfor er en del af den samlede leverance. Væggen er opbygget på samme måde som en væg eller trækonstruktion, man har bare udskiftet de bærende elementer med komprimeret stenuld. Rockzerosøjlerne er de bærende elementer i væggen.

BYGGESYSTEMER – ROCKWOOL
110 | BOZEL

ROCKZERO SØJLEN

Søjler er designet som et I-formet tværsnit, der består af to stålflanger og en isolerende kerne. De består som sagt af tre kuldeafbrydende zoner:

1. Den yderste zone er isoleringszonen. Det er nemlig her den bedste isoleringsevne ligger. Men det er også her du fastgør den udvendige beklædning. Den kan leveres med murbinder til mursten eller metalprofil til en let facade.

2. Den midterste zone er den bærende del. Den består af en meget hårdt komprimeret stenuld. Den bidrager også til isoleringsevnen.

3. Den inderste zone kalder vi også for installationszonen. Det er nemlig her du trækker dine installationer som VVS og el, uden at bryde lufttætheden.

Mellem den midterste og den inderste zone, sidder der en OSB4. Det er den der sikrer den unikke lufttæthed. Den erstatter også den traditionelle plastdampspærre.

BOZEL | 111

MODUL HUSE

EFFEKTIVT BYGGERI MED MODULER

At bygge BOZEL LIVING huse med moduler er ikke bare en effektiv proces - det er en banebrydende tilgang til boligbyggeri, der kombinerer innovation, fleksibilitet og bæredygtighed. Vores lavenergihuse, skabt gennem modulbyggeri, repræsenterer ikke blot fire vægge og et tag; de er en manifestation af vores engagement i at levere huse, der ikke blot opfylder kunders behov, men også respekterer vores planet.

Den gnidningsfrie byggeproces, der følger med modulbyggeri, er en af grundene til, at BOZEL LIVING står i spidsen for fremtidens boliger. Modulerne fremstilles præcist på fabrikker, hvilket betyder, at byggeriet kan starte hurtigere, og kvaliteten opretholdes på et konstant højt niveau. Denne metode muliggør ikke kun en smidig byggeproces, men gør det også lettere at tilpasse hvert enkelt byggeri efter kundens ønsker.

Fleksibilitet er nøgleordet i vores modulhus-koncept. Ud over de utallige muligheder for tilbygninger og

tilpasninger kan hele huset nemt flyttes. Ved at integrere elementer fra BOZEL LIVINGs ADDON-koncept udvides tilpasningsmulighederne yderligere, så det ikke blot er huset, men hele livsstilen omkring det, der skræddersys efter kundens ønsker.

Vi tror på, at størrelsen ikke bør være en begrænsning, når det kommer til at bygge ens drømmehjem. Med moduler er det muligt at realisere både små og hyggelige boliger såvel som luksuriøse, rummelige residenser - alt afhængigt af køberens vision for fremtiden. Denne alsidighed kompromitterer ikke vores fokus på bæredygtighed; tværtimod integrerer vi grønne principper i hvert aspekt af modulhus-konceptet.

Ved at vælge modulbyggeri med BOZEL LIVING får du ikke blot et hus, du får en nøgle til at låse op for din drømmebolig - uanset størrelsen. Velkommen til en revolutionerende måde at bygge på, velkommen til BOZEL LIVING.

BYGGESYSTEMER – MODULHUSE
112 | BOZEL
BYGGESYSTEMER – MODULHUSE BOZEL | 113

ISOBYG – DET BEDSTE BYGGESYSTEM TIL

LAVENERGI BETONVÆGGE

ISOBYG er et højkvalitets byggesystem til at bygge lavenergi betonvægge. Systemet består af “lego” blokke som stables og fyldes med beton. Den høje isolering af blokkene sikrer at en blok med 40 cm. giver u-værdi 0,11. Systemets materialer tager ikke skade af fugt og er modstandsdygtig overfor råd og svamp.

Med ISOBYG kan du opføre lavenergi bygninger i den bedste kvalitet, hvad enten du skal bygge i et plan eller mange etager. Selvom kvaliteten er i top, er prisen ikke højere end andre måde at bygge på, men du sikrer dig en væg som er højt isoleret i uorganiske materialer. Og for mange er det muligt at spare penge på væggen samtidig med at man får den bedste lav-energi i høj kvalitet.

ISOBYG har to byggesystemer hvor det ene afsluttes med 55 mm EPS indvendig og 2 lag gips. ISOBYG REFORM afsluttes indvendig med rå beton, og skal sluttelig kun spartles/pudses. ISOBYG er et glimrende alternativ til gasbeton, træ, og mursten, og egner sig til alle som ønsker god kvalitet i sit byggeri til den rigtige pris.

ISOBYG BYGGESYSTEM BETONVÆGGE

ISOBYG er en blivende støbeforskalling med udvendig isolering i høj effektiv klasse 31 isolering. Blokkene stables og fyldes med beton i. Systemet findes i to varianter.

ISOBYG systemet med 55 mm. EPS indvendig. Blokkene findes i mange tykkelser og bedste udgave er 45 cm. blokken med u-værdi 0,096.

REFORM INDVENDIG BETON

Ved ISOBYG REFORM er alt isoleringen udvendig, og indvendig fjernes den specialt tilpassede støbeplade, så væggen afsluttes med en rå beton overflade, som efterfølgende kan spartles. Forskellen på de to systemer er alt overvejende den indvendige finish, hvor REFORM systemet giver mulighed for løbende at trække indvendige installationer, samt en nemmere indvendig finish med kun spartling. Denne løsning vælges ofte da mange gerne vil have beton indvendig og slippe for at montere 2 lag gips indvendig.

ARTIKEL – BYGGESYSTEMER – ISOBYG 114 | BOZEL

DERFOR B YGGER BOZEL LIVING MED ISOBYG BYGGESYSTEM

HURTIG OPFØRELSE

Systemet består i alt sin enkelthed af store EPS blokke, som sættes sammen ligesom legoklodser. Normalt opføres en etage på 1 uge. Blokkene måler 1,2×0,3 meter, og stables let oven på hinanden

U-VÆRDI 0,096.

Effektiv klasse 31 isolering gør du kan få u-værdi på 0,096 med en 45 cm. blok og 0,12 med 41 cm. REFORM væg. Væggene er pakket ind i isolering udvendig, og dermed undgås kuldebroer.

INGEN RÅD OG SVAMP

ISOBYG opføres med uorganiske materialer som Beton og EPS, og råd og svamp er derfor ingen problem. Derfor kan du bygge året rundt uden afdækning, og der er ingen behov for dampspærre.

STOR STYRKE = HJØRNE VINDUER

ISOBYG blokkene fyldes med beton. Over vinduerne armeres typisk med Y12 eller Y16. Derfor er det muligt let og billigt at bygge hjørne vinduer uden søjler i hjørnet

STOR STYRKE = STORE SPÆND

Over vinduerne bliver der automatisk en støbt overligger som let spænder 5 meter. Store vinduespænd er således billige og lette alt lave.

STOR STYRKE = MANGE ETAGER

Betonen tykkelse kan fås i flere tykkelser, og systemet kan bruges til alt fra 1 til 10 plan. Ovenstående viser 6 etagers byggeri inkl. kælder med ISOBYG reform

FACADE PUDS I MANGE FARVER

Mange vælger at få deres ISOBYG hus i hvid. Men farven vælger du naturligvis selv.

FACADE MED MURSTEN

Naturligvis kan ISOBYG systemet kombineres med en facademur i mursten? Murbinderne monteres let inden der støbes

FACADE MED SKIFFER ELLER TRÆ

En facade med skiffer eller træ er også let at montere på ISOBYG systemet. Således er der mulighed for at opnå netop det facade udtryk, du ønsker.

KVALITETS BYGGERI TIL YDERVÆGGE

En ydervæg i beton og uorganisk isolering er klart det bedste valg til et moderne lavenergi hus. Ingen kuldebroer, ingen risiko for råd og svamp eller fugt i konstruktionen. ISOBYG er nemt at bygge med for enhver håndværker såvel som selvbygger. Med ISOBYG byggesystemer har du fremtidssikret værdien af dit byggeri.

ARTIKEL – BYGGESYSTEMER – ISOBYG BOZEL | 115

Komplette solcelleanlæg i alle størrelser

Bozel Living – villa i Holte
120 | BOZEL

nyt hus midt i naturen

TØRRING GUDENÅPARKEN
HUSE SIDE 15 BOZELLIVING GUDENÅPARKEN marts 2024
SE VORES SMUKKE

FRIHED TIL FÆLLESSKAB

GRØN & PERSONLIG ENERGI

Hos Gudenåparken er det ikke kun den grønne energi, der er i fokus. Det er også den personlige energi, hvor jeres hjem og boligområde er med til at frigøre mere energi og tid, der tilsammen gør parken til et unikt og innoverende sted at bo. Med Brian Christiansens vision for parken, ”Lev og leg livet let”, skal familien og børnenes leg styrkes og fremmes. Der er rig mulighed for at boltre sig i parkens skov, på bålpladsen og træningsområde og ikke mindst slænge sig på badesøen, og I er ikke længere væk fra jeres hus, end I kan se til det. Alligevel får I følelsen af friluftsliv og åben himmel, når der leges på tarzanbanen eller der laves mad over åben ild. Der skal være plads til samvær og afslapning, selv i en travl hverdag, så parkens beboere kan med lethed tilgå både urørt natur, gode fritidsaktiviteter og ikke mindst motions muligheder, alt sammen indenfor de trygge rammer i Gudenåparken.

VORES MISSION MED SKABELSEN

AF GUDENÅPARKEN HAR VÆRET, AT SKABE EN NY MÅDE AT BO OG

LEVE PÅ – EN SOM GIVER TID OG

PLADS TIL AT LEGE

GUDENÅPARKEN

Med boligområdet Gudenåparken i Tørring har I et boligområde, hvor indehaver af CoastZone Brian Christiansen tænker stort og fremadrettet. For ham betyder bæredygtighed alt, men kun når det giver mening, og specielt bæredygtighed i livet betyder meget for ham. Initiativer som smart-teknologi i hjemmet, leveringsaftaler med de lokale dagligvarebutikker og optimal udnyttelse af energi og varme, er blot nogle af de ting, der er integreret i Gudenåparken.

BRIANS VISION

Fremtidens beboelse kræver nytænkning og innovation. Hvis I oven i hatten tænker klima, økonomi og mest af alt mere tid med familien ind i ligningen, har I et godt bud på, hvordan det optimale hjem ser ud anno 2024, hvor bæredygtighed er et

Med boligområdet Gudenåparken i Tørring har I et bæredygtigt boligområde, hvor indehaver af CoastZone Brian Christiansen tænker stort og fremadrettet. For ham betyder bæredygtighed alt, men kun når det giver mening, og specielt bæredygtighed i livet betyder meget for ham. Initiativer som smart-teknologi i hjemmet, leveringsaftaler med de lokale dagligvarebutikker og optimal udnyttelse af energi og varme, er blot nogle af de ting, der er integreret i Gudenåparken.

Gennem en række forskellige initiativer, der giver mening for

parken, er den med til at sende et klart signal om at aftrykket på miljøet og klimaet skal tages seriøst.

Gudenåparken er opdelt i seks områder, som hver har sin særlige karakter og historie. Fælles for alle områderne er Fælleshuset med plads til fælles aktiviteter, Skoven med plads til leg, Torvet med plads til samvær, Parken, og selvfølgelig Badesøen med plads til afslapning.

Der vil være en glidende overgang mellem alle områderne, hvilket skal være med til at sikre fællesskabsfølelsen. Derfor fungerer alle fællesområderne som et bindeled på tværs af parken, som både skal understøtte fællesskabet men også legen og hyggen med hinanden.

FÆLLESSKABETS CENTRALE ROLLE

Fællesskabet har en central rolle at spille for Gudenåparken. Med et væld af aktiviteter og fællesarealer tilgængelig for alle parkens beboere, kan I både bruge den ekstra tid sammen med familien og sammen med jeres naboer, for pasning af fællesområder og fælleshus tager parkens vicevært kyndig hånd om.

Fælleskøkkenet i Fælleshuset skal særligt fremhæves her, da beboerne her har mulighed for at være sammen om at lave mad til fællesspisning. I det moderne køkken er der plads til at I kan udfolde jeres kulinariske kundskaber i fællesskab, samtidig med at I bruger tid med hinanden.

FREMTIDENS BOLIGOMRÅDE

Gudenåparken er et bud på fremtidens boligområde, hvor I får mere for meget mindre, og I får ovenikøbet endnu mere tid sammen med familien og det der virkelig betyder noget. Med energi for livet, et velfunderet fællesskab og fokus på et bæredygtigt hjem, taler Gudenåparken til dem der tænker på fremtiden; en fremtid hvor den personlige energi harmonerer med bæredygtighed, og hvor fællesskab, leg og afslapning bliver centrale elementer i hverdagen. Denne værdi lægger Brian Christiansen selv stor vægt på, og han og familien har allerede bygget deres egen villa i det nye boligområde.

LEV OG LEG HELE LIVET

Gudenåparken er stedet hvor husdrømmen bliver til virkelighed, hvor der er plads og tid til at leve, uden stress i hverdag og weekend fordi huset skal males eller hækken skal klippes. Det har været vores mission med skabelsen af Gudenåparken – en ny måde at bo og leve på, hvor I kan bruge tid på lige netop det, I elsker. Helt enkelt: Lev og leg livet let!

Her er der tid til en dejlig sommerdag i haven med afslapning og livsglæde, hvor børnene spiller bold i haven eller i parken. Familie og venner kan bruge en lys sommeraften ved søen, omkring et bålfad, og nyde snobrød eller et køligt glas rosé. Haven og fællesarealerne bliver passet og plejet af områdets gartnerteam. Det gør jeres tid til fritid, som I kan bruge på det, I vil.

Områdets huse er designet på baggrund af principper om lav vedligeholdelse. Gudenåparken er et særligt fællesskab, hvor der er plads til folk fra alle stadier i livet – fra den nystiftede familie, som vil have et godt sted for børnene at vokse op, til forældreparret der har set børnene flyve fra reden, og nu vil have et sted, der passer til deres egne behov.

PENDLERAFSTAND MED MANGE MULIGHEDER

CYKELAFSTAND FRA GUDENÅPARKEN

Daginstitution: 1,4 km

Skole: 1,3 km

Gymnasium: 1,5 km

Svømmehal 1,2 km

Fitness 1,2 km

Bibliotek 1,2 km

SuperBrugsen 1,8 km

Netto 1,2 km

Gudenåen 50 m

Åens udspring 8,2 km

Med motorvejen lige til Tørring er byen placeret centralt i forhold til et væld af arbejdspladser. På blot ½ times kørsel når I byer som Silkeborg, Herning, Skanderborg, Fredericia, Kolding, Billund og Middelfart, på kun 40 minutter Aarhus, og på 1 time Odense og Esbjerg.

Med denne afstand har I adgang til arbejdspladser i flere forskellige brancher, ligesom store globale virksomheder som LEGO, Siemens og Bestseller også kan nås på denne tid. Hvis I vil helt til hovedstaden, er I på Rådhuspladsen på 2 timer og 15 minutter, så storbylivet eller den forlængede weekend er aldrig længere væk, end I kan køre til det på overskuelig tid.

BO TÆT PÅ BY, SKOV OG NATUR

Gudenåparken ligger ved Gudenåen i et fantastisk område med urørt natur i baghaven. Der er let adgang til alt man kunne tænke sig. Boligområdet ligger lige op af Tørring by, forbundet direkte med cykelsti og med korte afstande til hverdagens gøremål. I byen er der gode indkøbsmuligheder på torvet, som netop nu renoveres til et aktivt og levende samlingssted. Tørring byder på en komplet pakke af uddannelse, med kun 1300 meter til en velfungerende skole fra 0-10. klasse, en af de få skoler i landet, som tilbyder en musiktalentlinje. I byen findes også en vuggestue, et børnehus og Tørring gymnasium, som er præmieret for sit lærerengagement. Byen er derfor et oplagt sted for en børnefamilie at slå sig ned.

Tørring Idrætsforening tilbyder alle almindelige former for idræt for alle aldersgrupper, og nogle mere specifikke som løbeklubber, Crossfit og Triathlon klubben, som har en af Danmarks største ungdomsafdelinger. Området omkring byen byder også på gode muligheder for aktivt udeliv, med afmærkede løbe- og vandreruter, åbent landskab og skove. I det lokale sportscenter Gudenåcentret findes et væld af faciliteter til sport: En svømmehal, spinninglokaler, skydebaner, et fitnesscenter og endda en fysioterapiklinik. I centret findes også et døgnåbent bibliotek og kontor til landbetjenten.

Butikkerne i Tørring garanterer gode muligheder for indkøb, og med det brede udvalg kan du finde alt hvad du skal bruge lokalt. Blandt byens butikker er den største SuperBrugsen, med en kæmpe delikatesse og en indbydende vinafdeling, alt sammen styret af en passioneret uddeler. Muligheden for dagligvarehandel er også styrket af de tre lavprisbutikker.

Gudenåparken er til jer der søger en nem, spændende og bæredygtig bolig at bo i. Parken er skitseret som en moderne landsby, hvor boligerne ligger i små klynger omkring det centrale torv og hyggelige grønne haverum, som alt sammen er med til at skabe rammen om jeres fremtidige bolig, der gør livet lettere og enklere for jer. Med boligen følger muligheden for et fællesskab, hvor I omgås og har glæde af hinanden i hverdagen, hvor omtanke og respekt for naturen er fælles værdier.

Med Gudenåens udspring, en centralt placeret badesø og urørt skov lige i baghaven, er naturen allerede en integreret og vigtig del af Gudenåparken. Alligevel vil vi med en række projekter gøre skoven til en endnu større del af området, som både skal fremme områdets mange muligheder, men også fremme fællesskabsfølelsen og legen; alt sammen i en naturlig forlængelse af fællesområderne ved Fælleshuset. Så hvad end I er til indendørs eller udendørs aktiviteter, skov eller strand, så har Gudenåparken et tilbud, som alle parkens beboere kan benytte sig af.

BOLIGOMRÅDER

1. Åhusene

2. Gårdhavehuse

3. Søvilla

4. Tinyhouses

5. Søhusene

6. Dobbelthuse

7. Rækkehusene

FACILITETER

8. Badestrand

9. Badesø

10. Torvet

11. Park

12. Fælleshuset

13. Værkstedet

14. Kreativ huset

15. Fitness

16. Skoven

17. Tarzanbane

18. Sump

19. Christinas lund

20. Træning

FACILITETER: FÆLLESHUSET

FÆLLESHUSET

• Ca. 300 m2

• Lukket rum til kold opbevaring

• Overdækket terrasse samt åben deponering/ varegård

• Borde og stole til ca. 60 personer fast og ca. 80 ekstra

FÆLLESHUSET: det store samlingspunkt for Gudenåparken. Ligesom de andre fælles faciliteter, ligger huset ved det centrale torv, og det er derfor altid oplagt at kigge forbi og få en snak. Fællesfunktionerne består af den store fællessal, cafeområde, køkken, pejsestue, gæsteværelser, yogarum og overdækket terrasse.

Kort sagt: her er alt hvad parkens beboere skal bruge, for at kunne pleje fællesskabet. Her samles I i større eller mindre grupper, spiller spil, tager del i fælles maddage, eller simpelthen bare hænger ud, alt sammen med udsigt til natur, skov og sø. Med de enorme syd-nord-vendte glaspartier på begge sider af bygningen, er Fælleshuset en integreret del af hele parken, uden at det føles som om, den står i vejen. Her kigger I fra skovkanten, gennem fællessalen og hele vejen hen til søen på den anden side, hvor parken gemmer på endnu en perle til parkens beboere.

• Tilstødende lagerrum med plads til borde og stole

• Toiletter til damer, herrer og handicap toilet

• Industrikøkken: renoveret lokale med brugte hvidevarer, som er blevet udskiftet løbende

• Cafeområde med skabe og service til ca. 100 personer

• Pejsestue med fx brændeovn eller biogasovn

• Loungeområde med plads til ca. 15 personer

• 3 værelser, heraf 1 familieværelse, inkl. 1 badeværelse og 2 toiletter.

PARKEN & TORVET

Rundt om Fælleshuset og hen til søen ligger den fælles park. Som en del af de fælles rekreative områder, er der her åbent rum, så parkens beboere har rigeligt med plads til at udfolde både leg og samvær, samtidig med at det er ideelt som samlingssted. Her vil I f.eks. kunne sidde og nyde det dejlige sommervejr.

De grønne og unikke engarealer og regnvejrsbede, som er en del af parkens udformning, spiller en central rolle i hele Gudenåparkens fokus på bæredygtighed, klima og natur, samtidig med at det er en fryd for øjet.

Ligesom de grønne områder er blevet tilpasset landskabet og målene med hele parken, er hvert af de forskellige boligområder ligeså tilpasset, så de gennem beplantningen også er med til at fortælle en unik historie, der skriver sig ind i historien om at være et bæredygtigt boligområde. Alt dette er med til at omkranse endnu et område, hvor fællesskab, samvær og hygge er nøgleord.

TORVET

• Fælles udesamlingsområde imellem søen i syd og fælleshuset

• Indrettet med forskellige rum til forsamling, samt vilde bede og Lokal Afledning af Regnvand (LAR) bassin

• Amfiscene i græs ned mod søen med plads til ca. 250 personer.

TORVET

Som levn fra gokartbanen nord for Fælleshuset, der før lå på store dele af området, hvor Gudenåparken nu ligger, er der efterladt et stort stykke asfalt, som skal blive til parkens torv.

Omkranset af park og unik beplantning, kan området i samspil med det store festtelt anvendes til en lang række fællesarrangementer som loppemarked, petanquespil eller blot endnu et samlingspunkt for parkens beboere, hvor der er plads til leg og afslapning.

Her er I også tæt på alle fællesfunktioner, og I vil med lethed kunne mødes over en kop kaffe, slappe af og få en sludder, når I har afsluttet træningen eller hentet dagligvarer fra kølerummet. Det er også her parkens amfiscene ligger som en integreret del af det eksisterende landskab.

Samtidig med at I har udsigt over sydsiden af parkens sø, kan I virkelig mærke roen fra den, som I sidder nede i dette lille gemmested. Her vil I kunne lave skuespil eller afholde minikoncerter, alt mens solen spejler sig i søens blanke overflade

FITNESS & TRÆNING

ER I TIL TRADITIONELLE MOTIONS- OG TRÆNINGSMETODER, SÅ LIGGER FITNESS MELLEM SKOVEN OG FÆLLESHUSET.

Her finder I redskaber som i ethvert andet motionscenter, så I kan styrke jeres fysiske sundhed. Så hvad end I er til stejle bakker på cyklen, løb eller styrketræning, kan I her holde pulsen oppe og konditionen ved lige. I tråd med hele målet for Gudenåparken, er der store, sydvendte vinduer, så I, selvom I er indenfor, har frit udsyn til skovens herligheder, som måske kan være med til at give indtrykket af at I cykler og løber ude i det fri.

Muligheden for at rykke ud under halvtaget er også til stede, så I stadigvæk får følelsen af at træne udenfor, selvom regnen står ned i stænger.

Her er det jer selv, der skal agere vægt, og på bedste crossfit-maner skal I løfte, hæve og skubbe de simple træningsredskaber, alt mens I er ude under åben himmel og nyder lysets spil i trækronerne. Vejret spiller her ingen rolle, og ligesom det er centralt for Sumpen, er det her også kun fantasien, der sætter grænser for, hvordan de forskellige redskaber skal anvendes.

FITNESS LOKALE

• 9 stationer nyt og moderne udstyr

• Udetræningsområde på terrasse mod skoven og arealet i skoven til crossfit inkl. 8 stationer.

I forlængelse af fitnesslokalet er der et pedelkontor med div. værktøj og redskaber til vedligehold.

UDENDØRS TRÆNING

Som en sidste del af Skoven, er der den udendørs træning. Som en udendørs forlængelse af fitnessrummet har I her muligheden for at rykke træningen helt ud i skoven.

FACILITETER

• 1 keramikværksted med 2 drejeskiver og ovn til brænding, samt borde og reoler til værktøj og keramikting

• 1 atelier med 2 staffelier og reol til div. malerting

VÆRKSTEDET

Driller cyklen, skal bilen have mere luft i dækkene? Så foregår det alt sammen i værkstedet. Hvad end I skal klare småreparationer eller vaske motorcyklen, scooteren eller cyklen, klares det alt sammen her.

Ligesom Kreahuset er tilgængeligt for alle parkens beboere, er Værkstedet det også. Med sin placering lige til vest for Fælleshuset, vil der helt naturligt komme til at være liv her.

Hvis det kræver lidt ekstra håndsnilde, når cyklen skal vaskes eller bilen skal gennemgås på puslepladsen, er der her både plads til hjælp, gode råd og lidt dækspark.

KREAHUSET

I dette inspirerende rum finder du et keramikværksted, udstyret med to drejeskiver og en ovn. Rummet er indrettet med borde og reoler, der smukt organiserer værktøj og keramikmaterialer, hvilket skaber en struktureret og kreativ arbejdsplads. Derudover huser stedet et atelier, hvor to staffelier står klar til at rumme kunstneriske udfoldelser.

FACILITETER

• 1 pusleplads til biler med div. værktøj, støvsuger, trykluft til at pleje bilen

• Reoler og værkstedsbord med div. værktøj

• 1 værksted til cykler med 2 stk. cykelophæng samt værkstedsbord

SKOVEN & SUMPEN

Sumpen er for alvor her, fantasien får frie tøjler. Her bygger børnene huler og bygger videre på de allerede eksisterende broer.

De går på opdagelse omkring Sumpen. Måske opstår der en fortælling om trolde eller et sumpfolk, der plejede at bo der – kun fantasien sætter grænser.

Hele Sumpen virker en smule forladt, og det er helt med vilje. I tråd med hele områdets urørte natur, indgår Sumpen som et centralt element, hvor naturen passer sig selv –ligesom børnenes leg også gør det her.

Med selve skoven i den sydvestlige del af parken har I et stykke natur, som I kan kalde jeres eget, for det ligger lige i baghaven.

Her kan i indånde den friske luft i en smuk natur, samtidigt med at I er hjemme I går så at sige ud i naturen, når i går hjem. I skoven er den urbane støj og larm erstattet

SKOVEN & SUMPEN

• Legeplads til mindre børn og 3-4 aktiviteter.

• Kreativlegepladsen “Sumpen”, hvor der er 2 huler der kan bo sumptrolde i.

• Træningsområde med div. træningsaktiviteter

• Multibane til enten fodbold, håndbold, floorball eller basketball.

af bækkens rislen og fuglenes kvidren. Her kan I udleve drømmen om det simple liv, som bestemt ikke skal forveksles med det primitive liv.

Gennem en række forskellige områder placeret her, er der skabt plads til at familien har et sted at være, men vigtigst af alt, at børnene kan udfolde deres leg i et trygt og ordenligt miljø.

CHRISTINAS LUND

Christinas Lund er “fælleshuset” under åben himmel. Med denne lejr er samværet med familien og fællesskabet med naboerne i højsædet. Lejren er opkaldt efter Christina, der har arbejdet hårdt på at realisere drømmen om Gudenåparken. Vi har valgt at opkalde Gudenåparkens lejr efter hende, da hendes samarbejde med kommunen, energi og dedikation har været med til at muliggøre hele projektet, og Christinas Lund skal derfor afspejle den styrke, som Christina besidder.

Området er ikke det primitive spejderliv, men i stedet et robust udekøkken i jern, hvor I kan tilberede al slags mad over åben ild. Måske en fisk fanget i Gudenåen et lille stenkast væk, hvor I samtidig kan invitere jeres venner og naboer på et glas vin.

Det vigtigste af alt er fællesskabet, og området gør det let at tage en aften ud

BADESØ

Sidst, men ikke mindst, nærmest midt i hele Gudenåparken, ligger parkens charmerende åndehul: badesøen.

Her har vi taget højde for de forskellige årstider der findes i landet, og gjort det til et centralt og attraktivt element, som beboere i alle aldre kan få glæde af. Søen er så ren at I kan bade i den, og med sin dybde på 120 cm kan I også sagtens svømme i den. Der er anlagt en decideret badestrand i nordenden, hvor fint strandsand og beachvolley går hånd i hånd, og lægger dermed ekstra tryk på det rekreative element, som parken også handler om.

Beplantningen af dette område har taget inspiration fra det nordvestjyske klitlandskab, som kan give et tilflugtssted til fugle, samt et flot og afdæmpetfarveudtryk.

Fordrer vejret ikke bikini og badebukser, er der anlagt en sauna og et vildmarksbad, så tankerne bliver ledt hen på Finland. Men det er centralt i Jylland Gudenåparken ligger, og det ligger faktisk alt sammen lige midt i Gudenåparken. Tæt på natur og tæt på skov, uden I er alt for langt væk fra alle de andre ting, som også betyder noget for en. Netop naturen skal være en del af dette område. Dette gøres ved at etablere en blomstereng rundt langs vandkanten, som giver farve, duft og øget biodiversitet, der tiltrækker insekter og fugle. Hvis der også plantes hvid hængepil, ved I for alvor, at I står ved en skovsø.

af kalenderen og ind i skoven. Det er her snakken går, mens børnene leger i skoven. Ligesom jeres hus er lige i nærheden, er redskaberne til at lave mad over bål også lige ved hånden. I skal blot koncentrere jer om at nyde livet og hinanden.

CHRISTINAS LUND

• “Nak og æd” område

• Bålsteder

• Køkkenhytte

• Udstyr til madlavning over bål, med tilhørende siddepladser på stubbe og bordbænkesæt.

STRAND

• Strandområde ved søens nordende

• Beachvolley

• Vildmarksspa

• Sauna

GUDENÅPARKEN

PARKENS FORSKELLIGE HUSTYPER

OG FACILITETER

BOLIGOMRÅDER

1. ÅHUSENE

2. GÅRDHAVEHUSE

3. SØVILLA

4. TINYHOUSES

5. SØHUSENE

6. DOBBELTHUSE

7. RÆKKEHUSENE

FACILITETER

8. BADESTRAND

9. BADESØ

10. TORVET

11. PARK

12. FÆLLESHUSET

13. VÆRKSTEDET

14. KREATIV HUSET

15. FITNESS

16. SKOVEN

17. TARZANBANE

18. SUMP

19. CHRISTINAS LUND

20. TRÆNING

Gudenåparkens huse præsenterer en mangfoldighed af charmerende boligtyper, der strækker sig over hele området. Ved ankomsten til parken mødes man af de smukke Åhuse. Deres navn er inspireret af den fantastiske udsigt til Gudenåen, som man kan nyde direkte fra husene. I den første række strækker to-etagers huse sig majestætisk med en panoramaudsigt, mens den anden række byder på både etplans- og to-etagers boliger.

Videre gennem parken finder man Gårdhavehusene, der præsenterer rækkehuse omkranset af idylliske gårdhaver. Disse huse indbyder til hyggelige stunder udendørs og et nært naboskab.

Ved søens bred venter en række fortryllende sø villaer, kendt som parcelhuse. Disse mindre boliger langs søbredden giver kunderne mulighed for at skræddersy deres

eget lille fristed ved vandet, komplet med en personlig badebro og direkte adgang til søen.

På nordsiden af søen rejser de elegante søhuse sig i to etager, med deres sorte facade mod syd. Disse boliger tilbyder en unik blanding af stil og funktionalitet med mulighed for at gå fra haven direkte ned til søen.

Derudover præsenterer vi også en række dobbelthuse, der kan finde plads på udvalgte grunde. Disse boliger på vestsiden af søen er perfekte til dem, der ønsker at dele et mindre hjem med en anden familie, samtidig med at de nyder de smukke omgivelser.

Gudenåparkens huse er ikke bare hjem - de er en invitation til et liv fyldt med tid, komfort og fællesskab i skønne omgivelser.

1 2 3 4 5 6 7 4 9 8 10 11 12 13 14 15 16 17 18 19 20

Smukke boliger med fantastisk udsigt til Gudenåen, både to-etagers og etplans.

ÅHUSE GÅRDHAVEHUSE

Rækkehuse omgivet af idylliske gårdhaver, fremmer nært naboskab og udendørs hygge.

SØ VILLA SØ HUSE

Elegante to-etagers boliger med sort facade mod syd, unik blanding af stil og funktionalitet med direkte søadgang fra haven.

Mindre boliger langs søbredden, mulighed for skræddersyet fristed ved vandet med personlig badebro.

DOBBELT HUSE

Perfekte til fællesskab, placeret på vestsiden af søen, ideelle til deling af hjem med en anden familie.

BOZELLIVING Karen Blixens Boulevard 7 8220 Brabrand www.bozelliving.com FRIHED TIL FÆLLESSKAB

Turn static files into dynamic content formats.

Create a flipbook
Issuu converts static files into: digital portfolios, online yearbooks, online catalogs, digital photo albums and more. Sign up and create your flipbook.