Consulting Specifying Engineer 2024 MarApr

Page 1


Remote Inspection Module

Technology that Saves Lives

Belimo’s FSKN remote inspection module allows testing of actuated life safety dampers without the need for costly visual inspections and meets testing requirements of NFPA 80 and NFPA 105 referenced by the International Building Code (IBC). The module initiates damper cycling and verifies the damper position to ensure proper operation in emergencies. The FSKN connects seamlessly to Fire Alarm panels or Building Automation Systems using BACnet or Modbus communication protocols.

Discover the advantages www.belimo.us/firesmoke

ASHRAE Standard 90.1 – 2019

Air Curtains allowed as Vestibule Exception

NEWS &BUSINESS

5 | Why do we need to go to the moon? Is it worthwhile for engineers and scientists to research and design new technologies?

The short answer is “yes”

BUILDING SOLUTIONS

6 | What are electric vehicle service equipment design considerations?

Learn electrical design options for electric vehicle (EV) charging stations

13 | Back to basics: electric vehicle charging and renewable energy

Design practices, codes and standards for electric vehicles and renewable energy source planning

20 | Ways to electrify a fleet using EV charging stations

Electrification of vehicle fleets requires electric vehicle supply equipment

BUILDING SOLUTIONS

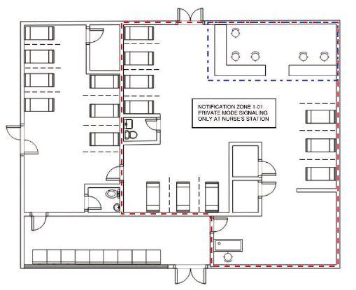
27 | An overview of fire alarm notification strategies

A review of fire alarm notification strategies permitted by the IBC, NFPA 101 and NFPA 72

32 | How new fire alarm system technologies are advancing safety

Innovations in fire alarm systems focus on improving safety, efficiency and adaptability

37 | Sustainable lighting choices under LEED

Understand how LEED influences lighting design and how to apply ideas that go beyond energy efficiency

41 | Ten things to know about ASHRAE 90.1-2022 updates

AHSRAE Standard 90.1-2022 is leading the way toward renewable energy and decarbonization in commercial buildings

47 | Four areas that effect electrical safety

Four facets impacting electrical safety: arc flash, electrical room working space, testing and commissioning and egress lighting

ENGINEERING INSIGHTS

Engineers

ON THE COVER:

This shows part of an installation of six dual-port Level 2 electric vehicle chargers that were installed specifically to charge a fleet of electric service vehicles. The power is distributed from outdoor pad-mounted electrical equipment. Courtesy: SmithGroup

IL 60069. Telephone: 630-571-4070. E-mail: cse@omeda.com. Publications Mail Agreement No. 40685520. Return undeliverable Canadian addresses to: PO Box 348, Lincolnshire, IL 60069. Email: cse@omeda.com. Rates for nonqualified subscriptions, including all issues: USA, $120/yr; Canada/Mexico, $150/yr (includes 7% GST, GST#123397457); International air delivery $260/yr. Except for special issues where price changes are indicated, single copies are available for $30 US and $35 foreign. Please address all subscription mail to CONSULTING-SPECIFYING ENGINEER, PO Box 348, Lincolnshire, IL 60069. Printed in the USA. CFE Media, LLC does not assume and hereby disclaims any liability to any person for any loss or damage caused by errors or omissions in the material contained herein, regardless of whether such errors result from negligence, accident or any other cause whatsoever.

Our power quality portfolio delivers the efficiency, reliability, and longevity that your most important projects deserve. And our expert engineers and technicians are ready to help ensure that your systems perform, whatever the conditions.

CONTENT

AMARA ROZGUS, Editor-in-Chief/Content Strategy Leader ARozgus@CFEMedia.com

CHRIS VAVRA, Web Content Manager CVavra@CFEMedia.com

ANNA STEINGRUBER, Associate Editor ASteingruber@CFEMedia.com

AMANDA PELLICCIONE, Director of Research APelliccione@CFEMedia.com

MICHAEL SMITH, Creative Director MSmith@CFEmedia.com

EDITORIAL ADVISORY BOARD

DARREN BRUCE, PE, LEED AP BD+C, Director of Strategic Planning, Mid-Atlantic Region, NV5, Arlington, Va.

MICHAEL CHOW, PE, CEM, CXA, LEED AP BD+C, Principal, Metro CD Engineering LLC, Columbus, Ohio

TOM DIVINE, PE, Senior Electrical Engineer, Johnston, LLC, Houston

CORY DUGGIN, PE, LEED AP BD+C, BEMP, Energy Modeling Wizard, TLC Engineering Solutions, Brentwood, Tenn.

ROBERT J. GARRA JR., PE, CDT, Vice President, Electrical Engineer, CannonDesign, Grand Island, N.Y.

JASON GERKE, PE, LEED AP BD+C, CXA, Mechanical Engineer, GRAEF, Milwaukee

JOSHUA D. GREENE, PE, Associate Principal, Simpson Gumpertz & Heger, Waltham, Mass.

RAYMOND GRILL, PE, FSFPE, LEED AP, Principal, Ray Grill Consulting, PLLC, Clifton, Va.

DANNA JENSEN, PE, LEED AP BD+C, Principal, Certus, Carrollton, Texas

WILLIAM KOFFEL, PE, FSFPE, President, Koffel Associates Inc., Columbia, Md.

WILLIAM KOSIK, PE, CEM, LEGACY LEED AP BD+C, Lead Senior Mechanical Engineer, kW Mission Critical Engineering, Milwaukee

KENNETH KUTSMEDA, PE, LEED AP, Engineering Manager, Jacobs, Philadelphia

DAVID LOWREY, Chief Fire Marshal, Boulder (Colo.) Fire Rescue

JASON MAJERUS, PE, CEM, LEED AP, Principal, DLR Group, Cleveland

JUSTIN MILNE, PE, PMP, Senior Engineer, Southcentral Region, Jensen Hughes, Allen, Texas

GREGORY QUINN, PE, NCEES, LEED AP, Principal, Health Care Market Leader, Affiliated Engineers Inc., Madison, Wis.

BRIAN A. RENER, PE, LEED AP, Principal, Electrical Discipline Leader, SmithGroup, Chicago

CRAIG ROBERTS, CEM, Account Executive, National Technical Services, McKinstry, Powell, Tenn.

SUNONDO ROY, PE, LEED AP, Director, Design Group, Romeoville, Ill.

JONATHAN SAJDAK, PE, Senior Associate/Fire Protection Engineer, Page, Houston

RANDY SCHRECENGOST, PE, CEM, Austin Operations Group Manager/Senior Mechanical Engineer, Stanley Consultants, Austin, Texas

MATT SHORT, PE, Project Manager/Mechanical Engineer, Smith Seckman Reid, Houston

MARIO VECCHIARELLO, PE, CEM, GBE, Senior Vice President, CDM Smith Inc., Boston

RICHARD VEDVIK, PE, Senior Electrical Engineer and Acoustics Engineer, IMEG Corp., Rock Island, Ill.

TOBY WHITE, PE, LEED AP, Associate, Boston Fire & Life Safety Leader, Arup, Boston

APRIL WOODS, PE, LEED AP BD+C, Vice President, WSP USA, Orlando, Fla.

JOHN YOON, PE, LEED AP ID+C, Lead Electrical Engineer, McGuire Engineers Inc., Chicago

Why do we need to go to the moon?

Is it worthwhile for engineers and scientists to research and design new technologies? The short answer is “yes”

During a family gathering recently, the topic of space travel and its related research came up. Odysseus, a lunar lander from Intuitive Machines, landed on the moon on Feb. 23. Some standard questions were tossed around:

• Why go to the moon again? Been there, done that.

• Who wants to risk the chance of exploding?

• Should humans focus on other celestial achievements?

• Computer mouse: Say what you will about touchpads and touchscreens, the mouse is still a go-to for most users.

• Why spend billions of dollars for space research, when we could use that money on Earth?

There have been more than 250 attempts to get to the moon. The goals were different each time — some attempted a flyby, while others attempted orbiting. Many ended in failure with loss of human life. Only one landing by Apollo 11 in 1969 landed a crew on the moon.

So what’s the point? Why spend money and energy traveling to a distant rock that offers few benefits?

Quite the contrary. One family member rattled off the benefits of space travel, one of which was freezedried foods (debatable).

Most of the high-level paybacks were technology-driven, and focused on health or medical devices. Several technologies are now used in building design or engineering tasks. These technologies include:

• Laptops: Building experts cannot function without a laptop.

• Wireless headsets: Communication tools are vital in a connected workplace.

• Water purifiers: Originally used to purify astronauts’ drinking water, electrolytic silver iodizer is now used in pools.

• LED lights: NASA first created and introduced LEDs for a different application, and now they’re everywhere.

• Camera phones. Without this tiny camera, many devices that photograph or scan portions of a building or its systems would not be possible.

To me, basic research conducted by physicists, biologists, engineers and other scientists is a core reason to try any kind of scientific endeavor. Without basic research — research done without a targeted goal and with the aim of improving scientific understanding — humans would not have discovered innovations like mRNA vaccines or other medical treatments.

This curiosity and willingness to experiment with new technologies is rewarding, and can eventually serve us all. cse

What are electric vehicle service equipment design considerations?

Learn electrical design options for electric vehicle (EV) charging stations

OLearningu

Objectives

• Learn about the different types of electric vehicle supply equipment available and how to choose the right one based on project requirements.

• Understand electrical design requirements dictated in the NFPA 70: National Electrical Code and other safety considerations.

• Use site assessment considerations that affect the design such as Americans With Disabilities Act requirements, voltage drop issues and limitations based on existing electrical infrastructure.

FIGURE 1: Charger installation per Americans With Disabilities Act requirements. Courtesy: SmithGroup

ver the past several years, the use of electric vehicles (EVs) in lieu of internal combustion engine (ICE) vehicles has been gaining popularity. This has been fueled by technological innovation as well as significant government incentives. As a result, the importance of a robust network of electric vehicle supply equipment (EVSE) to charge vehicles has dramatically increased.

The role of the engineer in the design process cannot be understated as there are many factors that must be considered. These factors include:

• Choosing the type of EVSE.

• Understanding code requirements.

• Doing a site assessment and electrical load calculations.

• Understanding safety and accessibility concerns.

• Designing for the future.

Types of electric vehicle chargers

When it comes to choosing the right type of EV charger, it is important to understand the requirements of the user. The key questions to ask as the designer are:

• What kind of vehicles are being charged? Small sedans or large pickup trucks and SUVs?

• How fast is a full charge desired? Can the vehicle charge overnight? Does it need to be charged in less than an hour?

Once the client use case is understood, then a proper decision can be made about which charger should be specified and what the infrastructure design will look like. There are three types of

EV chargers. They mainly differ in voltage level and charging capacity (see Table 1).

The entire EVSE system comprises three main components:

• Power source and distribution system.

• Charging station unit.

• Communication and control system.

The actual charging unit itself is designed by an equipment manufacturer. The specification of the unit will be based mainly on the needs of the client and the capacity of the power source being designed. The communication system will be based on the charging station design, and many EV chargers are now made with integral cellular gateways and require no special data connections.

Other units, however, rely on a local remote cellular gateway or Wi-Fi signal. In these cases, understanding data equipment and cabling requirements is very important.

EV code requirements

When it comes to code requirements, the 2023 edition of NFPA 70: National Electrical Code (NEC) lays out the electrical requirements for designing the power source and distribution system for EV chargers.

NEC Article 625: EV Power Transfer Systems is the starting point for understanding EVSE specific requirements. The scope of the article covers “electrical conductors and equipment connecting an EV to premises wiring for the purposes of charging, power export or bidirectional current flow.” The article breaks down the following topics and others in more detail:

• Specifics for designing charging stations including connectors and cables.

• Specifics for installation of chargers including branch circuit sizing, load calculations and requirements for means of disconnecting chargers.

• Requirements for bi-directional charging.

• Ventilation requirements for chargers installed indoors.

• Requirements for wireless vehicle charging.

Other important NEC articles that apply to the design of chargers are:

Table 1: Basics of EV charging stations

2: Post-tensioned cables in a parking structure located using ground penetrating radar. Courtesy:

FIGURE
SmithGroup
TABLE 1: Electric vehicle (EV) charger types are outlined. Courtesy: SmithGroup

BUILDING SOLUTIONS UILDING

• Articles 210, 220: Branch circuits.

• Article 230: Services.

• Article 240: Overcurrent Protection.

Article 250 Grounding and Bonding.

It is important to refer to local ordinances and building codes as they will often include some requirements or metrics for the number of EV chargers required for new construction projects. Some building certifications like U.S. Green Building Council LEED also require EV chargers.

Safety and accessibility concerns

Human safety is always the primary consideration when engineering any system. EV system design is no different. Bringing EV chargers into an electrical design poses unique safety implications. EVs can burn more than three times hotter and are much more difficult to extinguish than a standard ICE vehicle fire. This is due to thermal runaway that can occur when lithium-ion battery cells become damaged. A chemical reaction can occur that spreads to other cells as it burns.

As EVs become more prevalent, codes and standards are beginning to react to this new technology. Until the industry settles on a standard approach, local authorities having jurisdiction (AHJ) may have their own policies to minimize the added danger of an EV fire. These could include providing “fire gaps,” which involves intentionally placing ICE parking spaces or drive aisles in between groups of EV charging spaces.

Other potential safety items include EV fire extinguishers, bollards and other barriers, emergency stops and restricting the location of EV chargers within parking structures (discussed further below). It is important to discuss any requirements with the AHJ early in the design process. It is also important to note site requirements from the Americans With Disabilities Act (ADA), which requires a specific number of chargers to be designed as accessible. Requirements include clearances around equipment, mounting heights of operable components and minimal sloping of the grade.

The U.S. Access Board has published a standard for ADA EV parking spaces, which offers a comprehensive list of recommendations. These requirements can add significant challenges and costs. This is especially true for projects at existing sites and parking lots where existing conditions do not meet current ADA requirements. Some jurisdictions may also require that the ADA EV spots have an accessible path to the building and public way depending on its use. Consult with the local AHJ for specific requirements (see Figure 1).

EV site assessment

In addition to the safety and accessibility concerns, sites should also be evaluated for electrical design considerations. Before any design of EV charging infrastructure is pursued, it is critical to carry out a detailed site assessment and perform electrical load calculations. The site layout will have significant impacts on installation costs, the placement of chargers and the source of power.

It is very important to consider how far the power source is from the EV charger load. Voltage drop can quickly become a problem and results in upsizing wiring. Unfortunately, this exponentially increases material costs. Local step-down transformer(s) and distribution near the EV chargers will limit voltage drop for both the feeders and branch circuits. However, when locating distribution equipment outside, it is important to specify equipment and foundations that are rated to withstand weather conditions.

If EV chargers are being placed in existing parking structures, make-ready installation costs are typically lower than in existing parking lots because all the equipment can be surface mounted.

FIGURE 3: Diagram of shared charging schemes. Courtesy: SmithGroup

CASE STUDY:

How to save money on EV charging equipment

A UNIVERSITY implemented a comprehensive EV plan with 100 chargers, including 50-amp Level 2- and 200-kilowatt Level 3 chargers for fleet vehicles

A universitywide electric vehicle (EV) deployment plan included the installation of more than 100 EV chargers of various types. The university is currently in the process of transitioning its maintenance fleet vehicles to electric. It hired SmithGroup to study feasibility, provide recommendations, complete a cost estimate and complete the construction documents for the project. The plan was to provide 30 amp (A), Level 2 chargers for parking spaces throughout various parking structures and lots, typically in groups of 10. In addition, 50 A, Level 2 chargers and 200 kilowatt (kW), Level 3 chargers were to be installed in a few select locations specifically for the charging of fleet vehicles.

The client was procuring the chargers themselves and working with the local utility company for rebates. During the study phase, historical meter data was analyzed for all existing electrical services near the lots and loading calculations were conducted to determine if there was capacity for the new chargers.

Where capacity allowed, surveys were conducted and EV parking spaces were identified, keeping in mind that at least one at each lot needed to be designed to Americans With Disabilities Act (ADA) standard per local codes. The client was very averse to losing any parking spots, so it was important to locate spots such that ADA striping and spacing requirements could be met with minimal impact to the existing number of spaces.

Additionally, the existing slopes were analyzed to ensure ADA spaces met the current grade requirements. Surveying also included examining the condition of available electrical equipment that would serve the EV chargers, determining conduit routes and determining placement of new electrical equipment as required.

The engineering team collected all this information to develop a schematic design for the EV installation and power distribution. Once the plan for each site was approved by the client, a cost estimate was developed. Various scenarios were tested to determine what would be the most economical installation.

Example: The client wanted 12 50 A, Level 2 chargers for fleet vehicles at one of the locations.

Load calculation: 12 chargers × 208 volts (V) × 50 A = 124.8 kW

Historical metering showed that the building service transformer and main distribution panel could support the load.

The site survey revealed the chargers would be over 300 feet from the building. This meant that due to voltage drop, it would be

FIGURE 5: One-line diagram of power distribution to electric vehicle chargers. Courtesy: SmithGroup

better to use a 480 V feeder and then step down to 208 V locally near the charging equipment in lieu of a 208 V feeder. The cost of wiring was the biggest driver to making this decision.

For example, using a 208 V feeder to supply the EV charging equipment:

124.8 kW ÷ 208 V ÷ √3 = 336 A

Due to voltage drop, a 300-foot, 208 V, 336 A, 3-phase feeder would require two sets of 250 kcmil (thousand circular mils) conductors. Per RSMeans estimating software, the material and install costs for just the wire would be:

300 feet × 2 sets × (4 wires)/set × $10.81/foot = $25,944

By contrast, using a 3-phase 480 V feeder for the above calculated load would result in:

124.8 kW ÷ 480 V ÷ √3 = 150 A

Accounting for voltage drop, the 480 V feeder would also be a single set of #1/0 AWG wire. The material and install costs for just the wire would be:

300 feet × 1 set × (3 wires)/set × $5.42/foot = $4,878

The savings in just the cost of wire is $21,116. Also, the 208 V option would require an additional 300 feet of buried conduit due to the two sets of wires needed. A 480 Y-208/120 V, 150 kilovolt-amperes dry type transformer runs under $15,000. Even with a National Electrical Manufacturers Association 3R rated enclosure the savings justify the added transformer. This cost exercise was one of the drivers for using the 480 V supply even though the chargers themselves are 208 V.

BUILDING SOLUTIONS UILDING

Additionally, excavation is typically not required. However, it is crucial to understand how the parking deck is constructed. Castin-place structures will have fewer obstructions and predictable rebar patterns. Posttensioned decks will have tensioned cables running throughout the slab that can easily be damaged during coring and drilling. Damaging a tensioned member can have serious implications that may be costly to repair. All decks should be scanned with ground penetrating radar before the commencement of any coring or drilling.

It is also important to note if the chargers are being installed in an underground level. The AHJ may require special systems to be installed to control fire and smoke in an enclosed area like underground levels of parking structures. AHJs may also require that EVs be located away from egress stairs, contain “fire gaps,” contain emergency stops, etc.

Another item to note is that EVs typically weigh more than a standard ICE vehicle. When curb weights are compared for similar vehicles, the EV typically weighs about 30% more than its ICE counterpart. Consult with a structural engineer to determine if any structural reinforcement is required.

It is also important to consider communications when conducting a site assessment. If the EV charger requires a hardline data connection for communications, a pathway back to a network switch would be required. If the specified EV chargers have a cellular gateway, is there an adequate cellular signal in that location? Chargers located inside parking structures or adjacent to tall buildings may suffer from weak or unstable signals. In these cases, it might be required to install a cellular signal boosting system (see Figure 2). Because different manufactures have various communication standards or systems for their chargers, careful coordination is required.

Electrical load calculations

When running load calculations, it is important to be aware of NEC code requirements as well as any other local codes and ordinances. Adding EV chargers to an existing power system requires understanding the existing loads. Historical utility bills or meters are the ideal source for determining how much capacity a power system has. If existing billing or metering does not provide enough information, then panelboards and distribution boards should be metered for at least 30 days in accordance with NEC 220.78. This article also requires a 125% demand factor to be added to loading information that was derived from metering or billing.

When calculating the EV loads, it is important to note the 2023 NEC requirement that states the charger load used must be the larger of 7,200 voltamps (VA) or the nameplate rating of the charger. Chargers are typically rated based on amperes and the Level 2 chargers are typically dual rated for 208 and 240 V. When calculating the load, the voltage of the system must be known. An example of how a 50 A Level 2 charger load can vary significantly based on voltage can be seen below:

208 V × 50 A = 10,400 VA

240 V × 50 A = 12,000 VA

The difference is about 15%, which adds up significantly as the number of chargers increases. Currently the NEC does not allow for demand factors to be applied to EV chargers.

If the desired number of EV parking spaces results in a load calculation that exceeds the available capacity of the power system being used, a power system upgrade is needed. However, a more economical approach is to use shared or sequential charging. In some applications, where it is expected that vehicles will be parked for extended periods of time, chargers can be programmed to charge sequentially. Sequential charging means chargers will charge at full power one after the other but not at the same time.

Another option would be to program chargers to “power-share” or “shared charging.” This is where chargers pool a set maximum power capacity and scale their output so that the combined power does not exceed a set amount. It is important to ensure

FIGURE 4: Electrical equipment near electric vehicle chargers with convenience receptacle and wireless gateway. Courtesy: SmithGroup

the charger being specified has these capabilities. Some AHJs may require documentation to be supplied to show the programming capabilities before accepting demand calculations based on modified charging schemes (see Figure 3).

Electrical design considerations

When designing the infrastructure for EVSE equipment, there are some things that should be considered.

Voltage drop is a problem that almost always shows up on electrical site projects. It is especially exacerbated by high loads such as EV chargers. It is important to determine early on what the feeder and branch circuit lengths will be. The cost of a couple transformers to step up/down the voltage for a single feeder can quickly become less than installing very large duct banks to transfer power over long distances at a lower voltage. This is especially noticed with high power Level 2 and Level 3 chargers.

Another thing to consider is the K-factor ratings of transformers. Because EV chargers inherently convert alternating current (ac) power to direct current (dc) through power electronic inverters, it is plausible to assume that there would be significant harmonic distortion.

However, it has been found that the current Level 2 chargers are surprisingly clean and high K-factor rated transformers are not always necessary. Transformers rated K-4 are typically sufficient for Level 2 EV charging loads. For high-power Level 2 chargers and large capacity Level 3 chargers, it is recommended to consult with manufacturers for test data regarding harmonic distortion.

There are a few typical electrical system configurations that are usually seen for providing power to chargers. The configuration depends on the various factors discussed already such as circuit lengths, type of charger and quantity of chargers desired. Some common configurations are:

• 208 V branch circuits from indoor panelboard out to Level 2 charging stations.

• 208 V feeder to local panelboard near several Level 2 charging stations.

• 480 V feeder to local 480-208 V transformer and 208 V panelboard for Level 2 charging stations.

‘ When running load calculations, it is important to be aware of NEC code requirements. Adding EV chargers to an existing power system requires understanding the existing loads. ’

• 480 V feeder to local 480 V distribution board to feed Level 3 charging stations.

• New dedicated electrical service with medium voltage service transformer and 480 V or 208 V distribution board.

Remember that any electrical equipment outdoors should be in a minimum National Electrical Manufacturers Association 3R rated enclosure. From time to time, EV chargers may need maintenance; however, they are often installed in remote locations. It is good practice to locate convenience receptacles near chargers. If the EV chargers are being served with 208 V, this is a simple issue resolved with a Y-connected service; 120 V is readily available.

However, if the EV chargers are served with 240 V, this is not so easily accomplished, because 3-phase 240 V systems are always delta connected. A high leg delta transformer would be required to allow for 120 V receptacles to be installed near the chargers (see Figure 4).

NEC Article 625 does not explicitly list any special grounding requirements for wired EV chargers above and beyond an equipment ground. However, EV charger manufacturers may recommend installing a dedicated ground rod at each charger. Consult with the EV charger manufacturer for any specific requirements during design.

Planning for the future

When designing a new building, it is important to verify if the project is under any building codes or local ordinances that require a minimum quantity of EV chargers, “EV ready” space or “EV capable” spaces. Even if there are no codes requiring it, it is still best practice to design the system with some ability to serve future EV chargers.

This can be done by reserving capacity during the load calculations for future chargers and

EV insights

uThe increasing popularity of electric vehicles (EVs) in recent years, driven by technological advancements and government incentives, has underscored the critical need for a robust electric vehicle supply equipment (EVSE) network.

uEngineers play a crucial role in the design process, considering factors such as the type of EVSE, code requirements, site assessment, safety concerns and planning.

uThe choice of EV charger type depends on user requirements, with three main categories differing in voltage levels and charging capacities and the overall EVSE system comprises a power source and distribution system, a charging station unit and a communication and control system.

Tepid Water Solutions

THE RIGHT TEMPERATURE.

AT THE RIGHT TIME.

Bradley’s tepid water solutions are designed to create a safe tepid temperature, a necessary addition to your safety planning. The current ANSI standard calls for emergency eyewash and drench showers to deliver tepid water for 15 minutes. This assures that a user would not be subjected to very cold water and possible hypothermia or very hot scalding water and possible skin burns. Tepid Water Solutions. Brought to Life.

To learn more please visit bradleycorp.com/industrial

BUILDING SOLUTIONS

It is wise to design the panelboard with a set number of appropriately sized breakers for the parking spots. This is to help ensure that the chargers being purchased and installed in the future will not overload the system.’

installing equipment or reserving space for breakers and panels that can be used for EV chargers in the future. It is recommended that EV chargers be placed on their own dedicated feeders and panelboards. If future EV spaces are being pursued, then all the service equipment will need to be installed during construction. Spare conduits will need to be routed to the site and capped so that wires can be pulled in the future. It is wise to design the panelboard with a set number of appropriately sized breakers for the parking spots. This is to help ensure that the chargers being purchased and installed in the future will not overload the system.

Dedicated panelboards with surge protection or providing isolation transformers might also be considered to protect the facility distribution system from ground faults or surges. This is especially important if the future EV chargers and any integral surge protection are unknown at the time of construction.

If a large quantity of EV chargers is anticipated in the future, increasing the distribution and service size will require a high upfront cost. An alternative solution is to provide spare conduits for a future dedicated EV electrical service.

The need for EV charging is becoming more prevalent across the globe. Understanding project needs and charging requirements can help determine which type of charger makes the most sense for each application. Once the basics are understood, code requirements, site constraints and safety considerations must also be considered. Whether designing for a handful of EV chargers or several hundred, these principles can assist with any EV design. cse

Sam Cipkar, PE, is an Electrical Engineer with SmithGroup. He has four years of experience and currently focuses on workplace and technology projects.

Francesca Price, PE, is an Associate and Electrical Engineer with SmithGroup. She has more than 10 years of experience, currently focusing on cultural and higher education projects.

BUILDING SOLUTIONS UILDING

Back to basics: Electric vehicle charging and renewable energy

Design practices, codes and standards to consider when planning for electric vehicles and renewable energy sources

Recent developments may contribute to the adoption of electric vehicles (EVs) by expanding the accessibility of existing charging networks. A growing list of automakers who currently use the Combined Charging System (CCS) standard have agreed to adopt the North American Charging Standard (NACS). In turn, Tesla has agreed to make its Supercharger network accessible to other brands of EVs. Adapters will allow EVs with one type of charging standard to use stations that provide a different charging standard.

As the number of EVs on the roads continues to increase, it becomes important to know the key elements involved in the design and installation of EV charging infrastructure. Drivers of EVs might feel uncomfortable with the data indicating that 60% of the utility-scale electricity generation in the United States in 2022 was produced by fossil fuels. Their car of choice could in effect be running on coal power.

Along with understanding EV charging infrastructure, it is also prudent to become familiar with what goes into small-scale renewable energy installations, particularly those of the solar photovoltaic (PV) type. Both can help contribute toward a more sustainable future and both will need to be considered on projects with U.S. Green Building Council LEED certification goals.

Levels of EV charging stations

Terminology for EV supply equipment (EVSE) is important for engineers to understand.

Sticklers on semantics may say that Level 1 and Level 2 EVSEs cannot accurately be called “chargers,” because they simply provide alternating cur-

rent (ac) power to the EV’s onboard charger, which then converts to direct current (dc) power and charges the battery. In this article the terms are essentially used interchangeably.

Level 1 EVSEs connect the vehicle to a standard 120 volt (V) outlet. This type of “trickle” charging can add around 4 or 5 miles of range per hour. When someone is working or sleeping while their car is parked in the same place for eight hours or more, it may be all they need. The U.S. Department of Transportation estimates that the average distance traveled per driver in a day is about 39 miles. It should be noted that in very cold conditions, most of the energy provided by Level 1 charging

FIGURE 1: Extensive carport solar photovoltaic installation at River People Health Center in Scottsdale, Arizona. Courtesy: Kevin Korczyk, K2 Creative LLC

BUILDING SOLUTIONS UILDING

can go toward battery heating, severely limiting the rate at which the battery can be charged.

Level 2 EVSEs connect the vehicle to 208 or 240 V single-phase power. The equipment can either be hardwired or plugged into an appropriate electrical receptacle. They can add anywhere from 12 up to 80 miles of range per hour. That depends on the ampacity of the circuit, the power output of the charging station and the capacity of the onboard charger (which determines the ability and speed at which an EV can accept the charge).

Level 3 or dc fast-charging (DCFC) stations convert ac to dc and send the current directly to the vehicle’s battery. These stations are generally rated anywhere from 30 kilowatts (kW) up to 350 kW and can add over 100 miles of range in 30 minutes or less.

The intent for these stations is to allow EVs to make long-distance trips that are farther than the range of the vehicle. As such, they are typically installed along highways and major travel routes. They can charge a vehicle from a low state of charge up to an 80% charge in a short amount of time.

The time to charge from 80% up to 100% can take longer than the charge from 20% to 80%, so some stations do not allow charging past 80%; it would make more sense for the driver to continue

their journey and charge again at a different location. Many EV manufacturers recommend regularly charging only to 80% to preserve the health of the lithium-ion battery anyway.

The time to charge will depend on the specific vehicle’s battery management system and what battery voltage and current it can accept. It can also be affected by battery temperature, battery capacity and the condition of the charger.

Generally, as the level of charging increases, the potential cost of the EV charging station will also increase. The price of the equipment, installation costs, electricity charges and maintenance will all need to be considered. Site-specific factors, like the distance of the EVSE from the electrical service and whether the service needs to be upgraded will significantly affect installation cost.

A basic Level 1 installation could be virtually free while a DCFC installation could cost anywhere from $50,000 to over $100,000. Aside from providing a higher amount of power, Level 3 EVSEs/DCFC also convert ac to dc to charge the battery more directly, which is part of why they are more expensive.

To illustrate the amount of power required for each type, let’s assume a 12 ampere (amp) 120 V, 1-phase load for Level 1 charging (roughly 1.44 kW), a 40 amp, 208 V, 1-phase load for Level 2 charging (roughly 8.32 kW) and a 60 amp, 480 V, 3-phase load (roughly 50 kW) for DCFC.

Six Level 1 chargers would equal the power required for one Level 2 charger. Six Level 2 chargers would equal the power required for one 50 kW DCFC. Thirty-six Level 1 chargers would equal the power required for one 50 kW DCFC.

Not all the power provided goes to charge the battery. Lithium-ion batteries stay their healthiest, most efficient and safest when they are kept from reaching extreme temperatures. The built-in battery management system and associated heating and cooling systems in an EV will take care of keeping the temperature within an acceptable range. That takes energy, so it is in a driver’s best interest to precondition the EV battery while it is plugged in when possible rather than drawing energy from the battery to do so.

Level 1 charging

The least expensive Level 1 installation would be at an EV owner’s home where they simply plug

FIGURE 2: Level 1 installation at the Phoenix Biomedical Campus Parking Garage, from 2015. The technology for electric vehicles has improved substantially in the past eight years, but this type of installation is still useful. Courtesy: SmithGroup

the EVSE that came with their vehicle into an existing receptacle. At a garage or parking lot associated with a person’s workplace, a Level 1 installation might look as simple as a receptacle on a dedicated circuit in front of a parking space. If in a wet location, the receptacle should be installed with a weatherproof while-in-use cover that is large enough to house the plugs for a variety of charging cords that EV drivers would need to bring.

NFPA 70: National Electrical Code (NEC) Article 625.54 (2020 and 2023) also requires that receptacles meant for EV charging be ground-fault circuit interrupter (GFCI) protected. The cost to the parking garage or building owner would include the installation of breakers, conduit, wire, National Electrical Manufacturers Association (NEMA) 5-20R receptacles, boxes and covers for however many parking spaces are allocated for Level 1 charging.

For an installation such as this, it is important to consider measures to deter theft of employees’ charging cables. Access control, surveillance and lockable receptacle boxes are a few ideas that can help. The U.S. Department of Energy wrote an article describing this issue and some mitigation strategies that EV owners can implement.

A marginally more expensive Level 1 charging installation would replace the receptacle with a stationary EVSE, likely hard-wired that includes the cord to plug into the vehicle. A pedestal-mounted Level 1 EVSE will generally be more expensive than a wall-mounted unit. One benefit to this approach is that it can provide a cleaner look without a variety of charging cords strewn about the parking area.

Also, EV owners do not have to worry about their own equipment being damaged or stolen. Site owners may consider the advantages to outweigh the slightly increased installation cost.

Level 2 charging

The installation of Level 2 charging stations can be a little more involved than Level 1. At the lower end, it is as simple as installing a breaker, conduit, wire, a special receptacle such as a NEMA 14-30 or NEMA 14-50 and the wall-mounted EVSE that is plugged into the receptacle. At public parking garages or workplace parking spaces, Level 2 charging stations will frequently be hardwired with a pair of circuits and dual connections for access

from two adjacent parking spaces to cut down on the cost per port. A cable management system is commonly integrated into these stations to help keep cords off the ground.

Aside from charging cars faster, Level 2 charging stations can be networked and include a credit card reader. This can allow station owners to manage who can access them and to set a price for using them. It can also make it easy to see who is using the stations, how often and how much power is being used for charging cars, etc. Being part of a network of chargers from an EV infrastructure company (such as Tesla, ChargePoint, Electrify America, EVgo, Blink and others) allows EV users to find them more easily.

Because these stations charge faster, one port can serve multiple users in a day. It is important to have a strategy in place to manage how long each user is parked and charging so that all those who wish to can access the chargers. If there is a time limit at the charging stations at an employee’s workplace, they will have to go and move their vehicle at some point during their workday. Some may not mind doing that, but others may prefer a dedicated parking space with a Level 1 charger so that they do not have to worry about moving their car before commuting back home.

Level 3 or DCFC

Lastly, DCFC stations have many of the same features as Level 2 charging. The difference is that they have high power requirements and provide dc power. They are only intended to be used for 30 minutes to an hour per vehicle by those traveling a significant distance. Some have a time limit to allow more users to charge. They are typically installed by EV infrastructure companies. It makes sense to see them installed along highway corridors, at or near gas stations, at shopping centers and coffee shops or on a company’s property operating a fleet of EVs.

Per NEC 625.41, the overcurrent protection for feeders and branch circuits supplying EV charging equipment shall be sized for continuous duty and shall not be rated less than 125% of the maximum load. Considering the output capability mentioned previously, the electrical service required for a station with one 50 kW charger would be around 80 amps at 480 V. A station with two 250 kW chargers

FIGURE 3: Level 2 installation with signage at the IDEA Tempe Parking Garage. This garage has a mix of Level 1 and Level 2 with some spaces only for Becton Dickinson employees and others for public use. Courtesy: SmithGroup

FIGURE 4: Level 2 charging installation at River People Health Center with a carport photovoltaic canopy in the background. Courtesy: SmithGroup

BUILDING SOLUTIONS UILDING

would need a service of 800 amps at 480 V. Because of the substantial amount of power provided, most DCFC use a 480-V, 3-phase input. However, there are some available with a 208-V, 3-phase input.

The high power input for a dc fast charger may trigger NEC 625.43, which requires equipment rated more than 60 amps or more than 150 V to ground to have a disconnecting means that is lockable in the open position to be provided and installed in a readily accessible location.

Building codes and standards for EV charging

NEC: NEC Article 625 is the main standard on this topic for electrical engineers in the United States. As technology and infrastructure advances, there have also been updates to this section over the past few code cycles. For 2017, it was called “Electric Vehicle Charging System.” For 2020, it was renamed to “Electric Vehicle Power Transfer System.”

In addition to talking about EV charging, 2020 added references to “power export” and “bidirectional current flow.” This technology can allow EV owners to send power back to a load (referred to as V2L, vehicle to load), a building or home (referred to as V2H, vehicle to home or building), a utility (V2G, vehicle to grid), another vehicle (V2V, vehicle to vehicle) or all of these (V2X, vehicle to everything).

Currently, only a few manufacturers of EVs have bidirectional capability, but more are committing to it as standard in future vehicles. Similarly, few companies are developing or have developed bidirectional EVSEs for use in the United States. With this technology, there is the possibility to use EVs in conjunction with bidirectional EVSE as an optional standby system (must meet NEC Article 702) or an electric power production source (must meet NEC Article 705).

In either of these cases, the EVSE must be listed as suitable for the purpose (NEC 625.48). A hardwired connection is necessary for a bidirectional EVSE, as the GFCI protection requirement for EVSEs connected to a receptacle makes them unsuitable for power transfer in the other direction.

The 2023 NEC includes new informational notes, one of which refers to National Electrical Contractors Association 413-2019: Installing and Maintaining Electric Vehicle Supply Equipment. The term EVSE did not appear in the NEC previously. This year also allows for controls to limit the overall rating of a system through an Energy Management System or EVSEs with adjustable settings. The disconnecting means required in NEC 625.43 can be remote if a plaque is installed on the equipment denoting the location.

LEED: For U.S. Green Building Council LEED v4.1, one point is available for EVs under the location and transportation category. It involves providing charging infrastructure for EVs for on-site parking and can be achieved by adhering to one of two options:

• Install Level 2 or greater Energy Star-certified EVSE to serve 5% of all parking spaces (or at least two, whichever is greater). Clear signage must be used to identify these spaces. The EVSE must also “be capable of responding to time-of-use market signals (e.g., price).”

• Provide EV-ready infrastructure for 10% of all parking spaces (or at least six, whichever is greater). This means providing a dedicated electrical circuit for each space with the capacity, conduit and wire for Level 2 or greater charging, routed to an electrical box or enclosure near each required space.

For the second option, the only part missing is the EVSE. When the building owners see more demand for EV charging, they can purchase and have the equipment installed as needed. Note that

FIGURE 5: Above-roof structural steel framing for photovoltaic at the University of Illinois at Urbana-Champaign, Electrical and Computer Engineering Building. Courtesy: SmithGroup

Level 1 charging infrastructure does not qualify for this LEED credit.

Renewable energy

One of the reasons drivers switch to EVs is to help reduce greenhouse gas emissions and smog. As such, it is likely also important to those same people that the power source for their EV is not contributing to air pollution. Increasing the amount of power produced by renewable energy sources can help.

For more on this topic and how the use of renewable energy sources can drastically reduce the greenhouse gas emissions of passenger vehicles, read a 2021 white paper titled A Global Comparison Of The Life-Cycle Greenhouse Gas Emissions Of Combustion Engine And Electric Passenger Cars by the International Council on Clean Transportation.

Solar power

At the utility scale in the U.S., the main renewable energy sources from the greatest to least amount of kilowatt-hours (kWh) produced include wind, hydropower, solar, biomass and geothermal. Utility-scale solar PV power produced 141 billion kWh in the U.S. in 2022. Small-scale PV systems produced around 61 billion kWh. This data appears to support the general idea that wind energy is more favored by large-scale operations while solar power is scalable to a project of almost any size, including smaller commercial and residential buildings.

The remainder of this article will review the basics of solar power, specifically PV systems, which accounted for 45% of all new generating capacity in the first half of 2023. Harnessing the power of sunlight is one of the best ways to expand renewable energy production.

For reference, below is a list of building code sections that relate to solar energy:

• NEC Article 690 Solar Photovoltaic (PV) Systems.

• NEC Article 691 Large-Scale Solar Photovoltaic (PV) Electric Power Production Facility.

• NEC Article 705 Interconnected Electric Power Production Sources.

• International Building Code Section 3111 Solar Energy Systems.

• International Fire Code Section 1205 Solar Photovoltaic Power Systems.

• International Energy Conservation Code (IECC) Appendix CB: Solar-ready Zone — Commercial Provisions (not mandatory unless the jurisdiction specifically adopts the appendix).

• IECC Appendix RB: Solar-Ready Provisions Detached One- and Two-family Dwellings and Townhouses (not mandatory unless the jurisdiction specifically adopts the appendix).

• International Green Construction Code 701.3.2 On-site renewable energy systems.

LEED v4.1 has up to five points available under the energy and atmosphere category when onsite renewable energy is produced or when off-site renewable energy is procured for all or part of the building’s annual energy use.

PV installations

It is important to understand the objective of a PV project before beginning design. There may be goals for LEED certification or net zero energy, to meet local codes, to eventually save money on the power bills or to show that renewable energy is important to an organization.

Knowing that purpose can help determine the extent of the PV for the project. It is also important to establish whether it is to be a grid-tied or a standalone system. Refer to NEC Article 690 for specific requirements for solar PV systems. It has also been revised significantly in the last few code cycles, so pay attention to the language used in the version relevant to the project.

At a basic level, each PV installation will need the following:

• Solar panels/PV modules.

• Racking system.

• Inverter(s).

• Conduit and wiring.

• Connection to electrical equipment.

Solar panels

Solar panels convert light to dc electricity via semiconductor technology through the PV effect, which means the creation of voltage and/or current in a material upon exposure to light. PV cells are combined in series and packaged together in a waterproof PV module. The modules are connected to each other in series to form a string and multiple

csemag.com

EV insights

u The increasing prevalence of electric vehicles (EV) prompts a need for understanding EV charging infrastructure and the environmental considerations associated with the electricity grid's composition.

u Examining electric vehicle supply equipment (EVSE) reveals a spectrum of charging options, from Level 1's slow "trickle" charge to Level 3 or DCFC for rapid long-distance travel, emphasizing the importance of strategic planning for sustainable transportation choices.

BUILDING SOLUTIONS UILDING

strings are connected in parallel to create an array. Obviously, this is the electricity-generating part of a PV system that is easily identified wherever it has been installed.

Racking system

The support structure for the PV modules is commonly called the racking system. Structural steel framing will be a common element of the racking system whether it is a rooftop, ground mount or carport system. For flat roofs, a ballasted system — one that uses heavy material to counter wind load and hold the panels in place — is also an option. Each has pros and cons that are to be weighed during design. Analysis of the weight and wind loads by a structural engineer is also crucial. The spacing, tilt angle, shading and direction the PV modules are facing, as well as the location, should all be considered as they will affect the energy production of the system.

Carport systems are especially desirable in hot climates due to the shade they provide. If installed in conjunction with EV charging stations, they can also provide visual assurance to EV owners that at least part of the energy used to charge their car is from the abundant renewable energy provided by the sun.

Inverters and wiring

Inverters convert dc to ac power (the opposite of when providing power to an EV). They can be

grouped into three types: micro, string and central. Micro inverters are implemented at the module level so will be rated at a wattage higher than a single solar panel, which may be from 300 Watts (W) to 700 W. A string inverter is connected to strings of PV modules and can be rated from 3 to 50 kW or more. A central inverter is a large inverter rated from around 100 kW up to 1 megawatt (MW) used for utility-scale systems and is typically implemented in conjunction with combiner and sub combiner boxes that all feed into it.

A PV system will have a mix of dc wiring and ac wiring, the extent of which depends on where the inverter is in the system. All wiring methods must conform to NEC 690.31.

Electrical equipment connections

Some of the electrical equipment needed on the dc side may include:

• Combiner boxes: These connect multiple strings in parallel and include a fuse for each string.

• Fused disconnect: This is a disconnect for the PV array located between the array and the inverter.

On the ac side, electrical equipment may include:

• Fused disconnect between the inverter and the ac power distribution panel.

• Utility service disconnect between the utility and the ac power distribution panel. This is not required in all cases and may instead be a breaker in an electrical panel.

What else do you need to know about PVs and EVs?

There is much to consider and coordinate when designing a PV system that is outside the scope of this article. Here’s a nonexhaustive list of what was not covered:

• Rapid shutdown requirements for PV systems. See NEC 690.12 for this very important requirement for a readily accessible switch that reduces the shock hazard for emergency responders.

FIGURE 6: Carport solar photovoltaic installation at DPR Construction’s Arizona headquarters. Courtesy: Gregg Mastorakos, Mastorakos Photography

• Roof space coordination, including access, pathways, smoke ventilation, penetrations and equipment locations.

• Modeling the PV system for energy production estimates in kilowatt-hour and the array size in kW.

• String sizing, including calculations for the maximum voltage (NEC 690.7).

• Circuit sizing and current (NEC 690.8).

• Overcurrent protection (NEC 690.9)

• Sizing an inverter: A typical dc to ac ratio is between 1.2 and 1.25, meaning the inverter is slightly undersized compared to the PV array. This is done to account for various system losses and to save on equipment costs. If the ratio is too high, then power clipping occurs when the dc power produced is higher than the inverter’s rating.

• Utility interconnection, whether at the load side or the supply side: coordinate early with the power company and meet code requirements (NEC 705). This will significantly affect how the system is designed.

• Incorporating battery storage into the system.

• Building-integrated PV.

Though not covered in this article, federal and utility incentives are available for both solar and EV charging installations that can help them to fit in a project’s budget.

The EV and renewable energy technologies are not new; however, they continue to expand in exciting ways. Synergizing the two is an excellent way to help secure a greener future. Each EV charging station that is installed makes a switch from a vehicle with an internal combustion engine to an EV make even more sense. Dependence on fossil fuels is reduced with each PV installation. As design professionals become more familiar with designing these systems, owners will become more comfortable including them in their facilities. cse

‘ A PV system will have a mix of dc wiring and ac wiring, the extent of which depends on where the inverter is in the system. ’

Dan Peterson, PE, is a senior electrical engineer at SmithGroup with more than 17 years of experience designing electrical systems.

24_000240_Consulting_Specifying_Engineer_MAR_Apr_USMod:January16,20244:41PM Print: 01/19/24 9:54:18 AM page 1 v7

Ways to electrify a fleet using EV charging stations

Electrification of vehicle fleets commonly requires electric vehicle supply equipment upgrades

In 2022, the motor gasoline and diesel fuel consumption in the U.S. transportation sector accounted for about 30% of total U.S. energy-related carbon dioxide (CO2) emissions, according to the U.S. Energy Information Administration. As government bodies and corporations have begun adopting decarbonization goals, vehicle electrification has been increasingly explored. Electrification of organization-owned fleet vehicles is a common first step, as it is less administratively challenging than either incentivizing or

compelling individual consumers to adopt electric vehicles (EV).

The 2021 Infrastructure Investment and Jobs Act was enacted and included provisions to expand the nation’s network of EV charging stations. Specifically, $7.5 billion of federal funds were allocated for building out the nation’s EV charging network. The law targeted having zeroemission vehicles comprise half of all passenger vehicles sold in America by 2030 and building a net-zero-emissions economy by 2050.

A National Electric Vehicle Infrastructure Formula Program was established under the act to provide funding to states for the strategic deployment of a national network of 500,000 EV charging stations by 2030 and to provide a convenient, reliable and accessible charging experience for all users. The program limits funding to projects that are directly related to the charging of a vehicle and only for EV charging infrastructure that is open to the public or to authorized commercial motor vehicle operators from more than one company.

The infrastructure must also be installed, operated and maintained by qualified personnel. Other stipulations of the program include interoperability across the nation of EV charging infrastructure including data collection, network connectivity and providing information to the public on the availability of EV chargers such as locations, pricing and accessibility.

As these targets and programs continue to mount, an increasing number of clients are looking for guidance on how to comply with various goals and seeking the design of electric vehicle supply equipment (EVSE) upgrades (see Figure 1).

Electrical codes and standards

Electrical design requirements for EVSE are defined by NFPA 70: National Electrical Code.

FIGURE 1: A typical Level 3 direct current fast charging charger found along the New York State Thruway, rated for 350 kW power delivery. It is a dual dispenser charger to accommodate two different connector types. Courtesy: CDM Smith

Additionally, a wide variety of other standards also govern the design of EVSE, such as those listed below. Given the evolving landscape of EVs, standards developing organizations (SDO) are largely still reacting to technological developments pushed by vehicle manufacturers.

• American National Standards Institute.

• International Building Code.

• International Fire Code.

• International Mechanical Code.

• IEEE.

• National Electrical Manufacturers Association.

• NFPA 1: Fire Code.

• Occupational Safety and Health Administration.

• SAE International.

• Unified Facilities Criteria.

• UL Solutions.

• Local codes and owner’s design guidelines.

The 2023 edition of NFPA 70: National Electrical Code (NEC) defines EVSE under Article 625 as,

“The conductors, including the ungrounded, grounded and equipment grounding conductors and the electric vehicle connectors, attachment plugs, personnel protection system and all other fittings, devices, power outlets or apparatus installed specifically for the purpose of transferring energy between the premises wiring and the electric vehicle.”

This definition includes what is commonly referred to as “EV chargers” where the vehicle plugs in and all dedicated upstream electrical equipment servicing the EV charger.

It shall be noted that this definition does not require EVSE to be able to receive power from an EV. That equipment category is separately defined in the NEC as electric vehicle power export equipment (EVPE). EVSE and EVPE requirements can be met by a single piece of equipment, which is sometimes referred to as bidirectional EVSE.

Exporting power from EVs for use elsewhere remains an emerging technology with incomplete oversight from regulators and SDOs. Vehicle-togrid, vehicle-to-home, vehicle-to-load and vehi-

cle-to-vehicle are all related applications of this concept. EVPE and EVs could serve as a powerful network of distributed energy resources (DER) to improve grid resiliency, perform demand response and provide backup power to individuals.

As examples of developing standards, IEEE 1547 and IEEE 2030 establish criteria for interconnecting DERs more broadly, and UL 1740 and UL 9741 establish criteria for EVPE safety and functionality. Overall, most EV chargers and supporting infrastructure being deployed meet the criteria for EVSE, but not EVPE (see Figure 2).

EV charger types and levels

EV chargers and supporting EVSE are the foundation required to support a fleet of EVs and ensure that vehicles can charge in a manner consistent with their required use patterns. There are different technologies for EV chargers: Level 1, Level 2 and Level 3 or direct current fast charging (DCFC) chargers, each of which has different power input requirements and subsequent impacts on a facility’s electrical system.

Level 1 (L1) chargers are the slowest chargers and work with a standard wall outlet. These chargers use a standard 120-volt (V) alternating current (ac) dedicated branch circuit, typically rated for 15 or 20 amperes.

Level 2 (L2) chargers are the most deployed type of charger for applications requiring daily vehicle use. L2 chargers have an input voltage of 208-240 Vac and can deliver between 3 to 19 kilowatts (kW) of power. As standards are updated, the specific power output requirements of L2 chargers should become better defined.

Many charging station manufacturers have L2 charger options as either single- or dual-dispenser, with two EVs being able to plug into one dual-dispenser charging station. In some applications, it is more economical to deploy dual-dispenser chargers depending on mounting costs and required site rework for each installation (see Figure 3).

Level 3 (L3) or direct current fast chargers (DCFC) are the fastest type of EV chargers currently available and have the highest power capabilities of up to 350 kW. DCFC generally require 208 or 480 V, three-phase ac power and can typically charge at a rate of 50-60 kW. A DCFC can

FIGURE 2: A 208/120 V, three-phase, four-wire electric panelboard (with cover removed) feeding six Level 2 chargers and the associated panel meter. Panel is mounted exterior near the parking lot protected by bollards, which allows for shorter circuit runs to the electric vehicle chargers. Courtesy: CDM Smith

Learningu

Objectives

• Understand the reasons behind fleet electrification projects and overview electric vehicle (EV) charger types.

• Identify applicable codes and standards for EV charging systems.

• Understand how networked EV management systems and battery energy storage systems (BESS) can fit into EVSE upgrades.

BUILDING SOLUTIONS UILDING

recharge an EV at a rate of 3 to 20 miles of range per minute. See Table 1 for detailed information on typical charging rated by EV charger level.

EV charging connectors

SAE International, formerly the Society of Automotive Engineers, is a U.S.-based professional and standards-developing organization focused on motor vehicle components. In addition to providing standards for rating automobile horsepower, the organization has also developed and published

Table 1: EV charging speed

* Time to raise the battery's charge level from 10% to 80%.

TABLE 1: Different charger types require different voltage power sources and consume varied amounts of power. This power requirement relates to the amount of time it will take to charge a 60-kWh battery for the 10% charge level to 80% charged in an electric vehicle. Courtesy: CDM Smith

standards on EV charging connectors.

The SAE J1772 connector has emerged as the most common EV car plug for L1 and L2 charging in the United States. Tesla is the significant exception due to its use of the North American charging standard (NACS). The NACS was formerly a proprietary connector and now is being standardized under the name SAE J3400. This connector will be backward-compatible with Tesla vehicles and will also be able to support an emerging 800 V battery architecture, which the original connector could not. However, an SAE J1772 adapter is currently included with every Telsa vehicle.

The combined charging standard (CCS) connector has emerged as the most common connector for DCFC. The “combined” portion of the CCS namesake derives from the connector’s ability to support L1, L2 and L3 charging as it uses several of the pins from the J1172 port. NACS connectors can also support L1, L2 and L3 charging.

Non-Tesla EVs can sometimes charge via a Tesla charging station using an adapter. These adapters historically would not work at Tesla’s DCFC stations or “Tesla Superchargers,” which were designed for sole compatibility with Tesla vehicles.

However, in early 2023, Tesla began deployment of a proprietary dual-connector “Magic Dock” adapter at a small number of North American Supercharger locations. The Magic Dock can use either a NACS or CCS connector and allows non-Tesla EVs to charge at the Tesla Superchargers. Additionally, Ford and General Motors have recently announced their intent to use exclusively NACS from 2025 onward, a development that could spur broader shifts in the industry from CCS to NACS.

Design considerations

As EVs become more prevalent, their associated electrical demand might strain existing power distribution systems and force upgrades. In July 2022, Texas underwent a heat wave predicted to tax the utility grid beyond its capacity. The Electric Reliability Council of Texas, which operates the state’s grid, called on residents to conserve energy to stop the grid from being pushed to near-emergency conditions. Tesla told users not to charge their cars at peak hours during this time and even offered incentives to their clients to charge their cars during off hours.

FIGURE 3: Stanchion-mounted single station Level 2 electric vehicle chargers located along a reservoir wall. Single dispenser Level 2 chargers allow only one car to charge at a time per charger. Courtesy: CDM Smith

CASE STUDY: How to meet fleet requirements for EVs

CLIENT SEEKS to meet New York State requirements for fleet electrification

New York State (NYS) issued Executive Order 166, 2017, to lead the United States in emissions reduction and clean energy goals. The order affirmed the goals set out by the Paris Climate Accords, targeting a 40% reduction in greenhouse gas emissions from 1990 levels and an 80% reduction by 2050.

Subsequently, there have been numerous other NYS actions outlining specific decarbonization pathways. In 2021, Governor Kathy Hochul signed legislation establishing a 2035 goal for all new cars and trucks sold in NYS to be zero-energy vehicles (ZEV).

Additionally, Executive Order 22, 2022 and Senate Bill 1346, 2023, set out that all state agencies must prepare fleet decarbonization plans for NYS-owned fleet vehicles. A light-duty vehicle (LDV) decarbonization plan must be completed by Dec. 31, 2023, and a medium- and heavy-duty vehicle (MHDV) decarbonization plan must be completed by Dec. 31, 2025. Fleet decarbonization plans must meet the following schedule: All state LDVs must be ZEVs by Dec. 31, 2035, and all state MHDVs must be ZEVs by Dec. 31, 2040.

stations, noted the vendor and type of system and photographed station components. In addition, the team also observed the electrical distribution equipment feeding existing EV charging stations, noting the vendors, ratings, conditions and capacities of all equipment.

As required, upstream equipment was also investigated to identify spare capacity and where additional feeders for electric vehicle supply equipment (EVSE) could be sourced without extensive system upgrades. Parking areas were evaluated to determine where there was space for additional EVSE to be installed.

‘ This case study project included an assessment to identify the improvements required.’

Discussions with site personnel included the mounting and protection of chargers, single versus dual dispensers, space limitations in parking lots and coordination with snow removal patterns. Site charging requirements and use patterns were explored with on-site staff to determine the optimal layouts of new chargers based on the quantity required to meet electrification goals.

This case study project included an assessment to identify the improvements required to support a full transition from traditional internal combustion engine fleet LDVs to battery-powered electric vehicles (EVs) at selected locations across the state. The transition to a fully electric fleet was to be completed in phases with an organization-set interim goal of 50% LDV fleet electrification by 2025 and full 100% LDV fleet electrification by 2030. This is notably a more ambitious goal than the LDV electrification target set out by NYS Executive Order 22, 2022, and Senate Bill 1346, 2023.

The first step included documenting existing site conditions, evaluating locations for new equipment and performing interviews with site personnel who operate fleet vehicles. At each location, the CDM Smith team observed the existing EV charging

Increased demand and extreme weather conditions are a common factor in issues with the power grid across the country. The utility grid will be pushed to limits not seen before with the introduction of large-scale charging systems and historical load profile data is not available for utilities to rely upon. Detailed load studies will help the utility understand the unique load profile of EVSE and

Once the number of additional EVs for each site was determined, the existing electric infrastructure at each site location was evaluated and system improvements were recommended to support the new EVSE. Networked EV chargers were specified to provide the flexibility to manage reservations, collect usage data, implement a time-of-use payment structure and participate in demand response. Layouts of the EVSE were designed to optimize access and meet the vehicle use patterns at each location. Various workshops and on-site meetings were held with the owner’s staff and engineering teams.

A cost analysis was performed to determine the most cost-effective layouts of future EVSE to optimize access and meet the charging goals. Detailed recommendations to meet fleet electrification goals were compiled into a report as the key deliverable to the client.

The success factors of this project were continuous collaboration and consultation with the system owner and clearly identifying the client needs, the project goal and available technologies.

identify upgrades required to distribution infrastructure to support further build-out of EVSE infrastructure.

On the customer’s side of the meter, NEC Article 220.87 requires a load study to be performed before adding equipment to an electrical system to protect against potential system overload. If the maximum demand data for a one-year period is not available,

BUILDING SOLUTIONS UILDING

the calculated existing load shall be permitted to be based on the maximum demand continuously recorded over a minimum 30-day period. This 30-day period is to be measured using a recording ammeter or power meter connected to the highest loaded phase of the feeder or service, based on the initial loading at the start of the recording.

‘ Electric utility companies are working to upgrade their distribution systems, but this is an enormous task based on the condition and breadth of the infrastructure system.’

The recording shall reflect the maximum demand of the feeder or service by being taken when the building or space is occupied and shall include by measurement or calculation the larger of the heating or cooling equipment load and other loads that may be periodic in nature due to seasonal or similar conditions. Figure 4 shows a temporary meter installation in accordance with the NEC requirements.

Additional load from EVSE, especially during times of peak grid demand, may lead to an unstable grid. Electric utility companies are working to upgrade their distribution systems, but this is an enormous task based on the condition and breadth of the infrastructure system. Solutions are needed in the interim to mitigate the impact on existing power distribution systems. Alternatives to accommodate the increased electric demand that charging during on-peak times will add to overall peak demand include the use of networked EV chargers and battery energy storage systems.

to drop down automatically at all stations in the group or to prioritize charging certain loads and drop other loads entirely.

Another alternative to lower electricity bills is to use renewable energy sources and batteries. Battery energy storage systems (BESS) are devices that enable energy to be stored and then released when a system owner needs power most. Intermittent power sources including renewables such as solar photovoltaic (PV) and wind can be made dispatchable at any time through the implementation of a large enough BESS.

On-site batteries can charge and discharge using direct current (dc) and connect to the electrical system through inverter(s), which convert from dc to ac power. Additionally, the BESS can charge from the electrical system at times when electricity costs are lower if the utility offers time variable pricing rates. Power is then stored and released later when demand is higher, a practice known as “peak shaving.” Peak shaving reduces demand on the power distribution system and enables reliable and fast charging without increasing demand charges from utility.

BESS is a mature market in many parts of the world such as the United States. Electrify America has deployed more than 150 BESS solutions across the Americas and is aiming to expand its network to 10,000 chargers by 2026.

EV insights

uThe foundation for supporting electric vehicles (EV) lies in EV chargers and associated electric vehicle supply equipment (EVSE).

u As the EV market evolves, clients are exploring advanced solutions, including battery energy storage systems (BESS) and networked chargers, to address power distribution challenges and enhance reliability.

Networked EV chargers allow the system owner to monitor and control charging events remotely, view usage of statistics and report issues. All charging stations are connected to the charging platform and can communicate with each other.

A charging platform is software that provides real-time information for the monitoring and optimization of EV charging networks. Using a charging platform, the stations can be grouped to allow for stack management that can limit the charging power of a group so as not to exceed the electrical capacity of the system. If the maximum charging power set for the station group is momentarily exceeded, the charging power can be programmed

BESS technology is available, but it comes with advantages and disadvantages. Beyond its use to reduce overall cost of EV operations, it also has several other advantages including improving the reliability of the charging system by providing a stable power source, reducing the risk of power surges and providing backup power in case of utility failure.

There are also several drawbacks when implementing BESS solutions. These include added cost of purchase and installation included with the charging systems. There can also be costs associated with the additional space these systems require (land acquisition) and the maintenance costs associated with the operation of these systems. As with any type of battery or battery system, there are inherent risks associated with their use, which include electric shock, fire, explosions, flash burns and exposure to hazardous chemicals among others. Precautions will be required to protect the system and the users.

An example of how a BESS could work is as follows: A station owner installs a battery system capable of charging and discharging at 150 kW of power and with a battery capacity of 300 kWh. When no vehicles are present, the BESS charges from the grid to ensure that on-site energy is available, avoiding a potential higher demand charge when more power is needed.

When a vehicle arrives, the battery can deliver electricity at up to 150 kW without drawing power from the electrical grid. If more vehicles arrive, the power delivered to the charging vehicles can be split between the BESS and the utility source, if needed. A battery with a 300-kWh capacity could sustain the peak demand through several vehicle charges and recharge in between keeping the peak demand below 150 kW. In either case, the cost of system operation is reduced because the cost of the electricity and the demand charges are greatly reduced.

Clients are increasingly exploring BESS for various applications due to recent technological shifts, improvements in cost and environmental considerations. Innovations in battery chemistries and efficiencies have improved the capacity and reliability of BESS and DERs have become more prevalent with the emergence of microgrids and decentralized renewable generation technologies.

Battery systems can play a key role in integrating DERs into the grid. As BESS becomes a more mature technology, system costs have continued to decline, making them more economical. Government initiatives and incentives also continue to be major influencers in the deployment of these systems.

Demand management and access control

A networked management system offers various levels of communication with the system owner. Communication is achieved through a wireless or hard-wired connection to an EV charging management platform usually located in a control room or server room. A strong and reliable 4G signal is required for wireless communication. A charging management platform provides real-time data from connected charging devices and relays charging events to the owner of the charging stations, which allows the system owner to monitor, manage and restrict the use of their devices remotely to best fit their use case.

Networked management systems can be implemented so that all pieces are fully owned and operated by the system owner if they have the resources for the system design and software development/maintenance. However, it is often more economical for system owners to use vendor-package systems. Open charge point protocol (OCPP)-based networks give both the charging station owner and customer choices and flexibility

OCPP is an open-source communication standard that allows for interoperability between equipment vendors, in contrast to a proprietary system. The OCPP community continuously updates application software features to accommodate emerging technologies and evolving standards. This allows owners of charging stations the ability to switch between OCPP providers if needed. It also allows the customer the flexibility to use any network charger encouraging competitive pricing, features and service.

An energy management system as defined by NEC Article 750 is a system consisting of a monitor(s), communications equipment, controller(s), timer(s) or any other device(s) that monitor and/or control an electrical load or a power production or storage source. This demand load management can also be accomplished through a networked management system, which will allow the system to optimally distribute the available power based on criteria set by the owner. It may monitor and control electrical loads for the purpose of load shedding, disconnection of power and limiting the capacity of a branch circuit, feeder or service to assure the circuit is not overloaded at any time.

There are restrictions when this type of energy management system can be used, but EV charging does not fall into those categories. EV charging load management balances energy demand throughout the day and can focus on reducing energy usage during peak demand. When multiple charge points are in use, it can balance the power

FIGURE 4: To meet the requirements of NFPA 70: National Electrical Code Article 220.87, a temporary load meter is installed to record the load on the proposed source for the installation of new electric vehicle chargers. The load will be metered to find the peak demand on the system to verify if there is electrical capacity on the system to add the electric vehicle charging load. Courtesy: CDM Smith

BUILDING SOLUTIONS UILDING

delivery among them to ensure that vehicles can be charged in the way that best serves the owner or drivers.

Many utility companies offer demand-response programs where system owners can receive rebates for reducing electrical demand during peak demand time windows, another potential benefit to the system owner. Communication with a 4G network is required to allow for participation in utility rebates. Reservation parameter control defines what a reservation is and the policies surrounding it. Parameters that the system owner can control include automatic charger shut-off when the battery is full, if a vehicle remains in the spot past the

user’s reservation window and penalties for a reservation no-show and user tardiness, such as a late start or late end within the reserved time window. Access control refers to the system owner’s ability to restrict EV drivers who are not part of the program from viewing their charging stations. This could be possible by creating a geofence around each group of chargers or requiring user authentication via an email address to sign up for the app or view stations. Access control parameters are important to allow employee, visitor and valid guest use without permitting the public to see the stations. cse

Michelle Stark, PE, is an electrical engineer at CDM Smith. She has more than 25 years of experience in design, engineering and construction observations of electrical systems for industrial, commercial, retail, educational, institutional and private clients.

Danny DeGennaro, EIT, is an electrical engineer at CDM Smith. He is focused on industrial power system design and emerging energy technologies.

BUILDING SOLUTIONS UILDING

An overview of fire alarm notification strategies

A review of several fire alarm notification strategies that are permitted by the IBC, NFPA 101 and NFPA 72.

According to the 2024 Edition of the International Building Code (IBC), it’s purpose is, “to establish the minimum requirements…for providing a reasonable level of life safety and property protection from the hazards of fire, explosion or dangerous conditions.”

One of the primary ways the IBC establishes a reasonable level of life safety is by requiring a means to make building occupants aware of the presence of smoke, fire or other related hazards and, in certain cases, providing further instructions regarding how to respond to such hazards. This concept, which the IBC calls “occupant notification,” has existed for decades, but continues to evolve with the advancement of fire alarm technologies and the increasing complexity of the built environment.

Full building notification

Full building notification (also referred to as “total evacuation”) is the most-common notification strategy used in fire alarm system design. The concept is quite simple: upon receipt of an alarm signal, all notification appliances in the building operate simultaneously. The intended outcome is that all occupants in the building immediately begin evacuation. This strategy is the standard requirement for notification in both the IBC and in NFPA 101: Life Safety Code. Full building notification can be implemented in all types of fire alarm systems, including conventional, addressable and emergency voice/alarm communications systems.

The full building notification strategy is the simplest, from both a design and installation stand-

point. Since any alarm signal results in notification throughout the building, the fire alarm sequence of operations is straightforward and there is minimal programming needed at the fire alarm control unit (FACU). Full building notification also has the design advantage of having no requirement for pathway survivability, assuming there is no occupant relocation.

However, there are a variety of situations where full building notification may not be the best option. High-rise buildings or buildings with a large total occupant load pose a particular challenge, since it may take a considerable amount of time to fully evacuate such a facility.

Partial notification

Partial notification (also referred to as “partial evacuation” or “selective notification”) involves notifying only certain areas in a building. Generally, occupants who are closest to the location of the fire or other hazard are notified and instructed to evacuate the building or, potentially, to relocate to another portion of the building.

Partial notification systems have the advantage of notifying a small portion of the building population, allowing for specific messaging and instruction to be provided. This also allows for easier evacuation for those occupants, who otherwise may have been impeded by evacuating occupants from other areas of the building. The fire alarm system can also be used to notify occupants outside of the fire area to defend in place or avoid certain areas of the building.

In high-rise buildings, partial notification is frequently used to notify occupants on the fire floor as well as one or two floors above and below the

• Review fire alarm notification strategies permitted by the IBC, NFPA 101 and NFPA 72.

• Understand when certain notification strategies may be appropriate for a given building or occupancy.

• Comprehend the relevant code requirements for each notification strategy.

BUILDING SOLUTIONS UILDING

fire floor. In buildings with large footprints, partial notification can be used to only notify occupants located close to the fire threat. Health care facilities often utilize partial notification, along with other strategies described in this article.

Partial notification is specifically permitted by the IBC and NFPA 101 in the following situations:

• In high-rise buildings, where notification is required on at least the alarming floor, the floor above and the floor below.

•Where total evacuation of occupants is impractical due to building configuration.

Other partial notification approaches could be used when specifically approved by the authority having jurisdiction (AHJ).

From a design and installation standpoint, partial notification is more complex than full building notification. First, the responsible engineer must determine the extent of the partial notification strategy based on the building and local code/AHJ requirements. This functionality must then be clearly documented in the fire alarm sequence of operations. Second, during installation, the FACU must be programmed correctly so that activation of an initiating device results in notification only to the intended notification zones. In larger facilities, this could involve a substantial amount of programming. Finally, the testing of fire alarm systems utilizing partial notification can be more involved since the testing must verify that each initiating device results in notification to only the intended notification zones.

Private mode signaling

According to NFPA 72: National Fire Alarm and Signaling Code, private mode signaling is a notification strategy where audible or visual signaling occurs “only to those persons directly concerned with the implementation and direction of emergency action initiation and procedure in the area protected by the fire alarm system.” Essentially, fire alarm systems

operating in the private operating mode only notify people who are responsible for carrying out the building’s emergency action procedure.

The most common use of private mode signaling is in institutional and health care occupancies, where many occupants are incapable of evacuating themselves. For example, in a hospital emergency department, private mode signaling may be programmed to only notify a nurses’ station instead of the entire department and patient rooms. The personnel at the nurses’ station would be notified and could implement the emergency action plan in response to the threat or hazard.

Private mode signaling is permitted in Group I and M occupancies by the IBC, and is permitted in NFPA 101 where, “occupants are incapable of evacuating themselves because of age, physical or mental disabilities, or physical restraint.” When used in health care facilities, the private mode signaling design must typically also comply with centers for Medicare and Medicaid services and NFPA 99: Health Care Facilities Code requirements.

It’s important to note that most facilities do not exclusively use private mode signaling. In health care facilities it is common to use private mode signaling in certain areas, such as emergency departments or operating rooms, and use public mode in other areas, such as cafeterias or waiting areas.

2: Plan of health care facility notification zone (red line) with private mode signaling at nurses' station (blue line). Courtesy: Chris

FIGURE
Campbell
FIGURE 1: A fire alarm control unit for a voice fire alarm system, which is often used in systems utilizing partial notification. Courtesy: Chris Campbell.

1. Upon activation of a detection device, signal occurs at

2. If the signal is not acknowledged within 15 seconds, building notification occurs (Acknowledgment must be by qualified personnel)

4. If the system is reset within the alarm investigation phase, nothing further occurs

Because of this complexity, the engineer must coordinate the design of the fire alarm system with the emergency action plan for the building. This coordination must occur early in the design process, since areas designated for private mode signaling will have a reduced number of notification appliances and it’s required that the configuration is incorporated into the facility’s emergency response plan.

Positive alarm sequence

A positive alarm sequence is a method that allows for a temporary delay in notification while an investigation is conducted. When an initiation device activates, a signal immediately occurs at the FACU, where qualified and trained personnel have up to 15 seconds to acknowledge the signal. If the signal is not acknowledged within 15 seconds, the fire alarm notification sequence commences immediately. If the positive alarm sequence signal is acknowledged, an alarm investigation phase begins and the qualified personnel have up to 180 seconds to evaluate the fire conditions.

If the qualified personnel determine that there is no fire threat, they can reset the system within the 180 second period and building occupants will not be notified. However, if the system is not reset, or a second detection device activates within the 180 second period, the fire alarm notification sequence commences immediately.

The use of a positive alarm sequence can be helpful in buildings where evacuation of occupants is particularly challenging. The alarm investigation phase allows for qualified personnel to confirm the presence of fire or another threat before commencing building notification and evacuation. However, a positive alarm signal is clearly not appropriate for all facilities. The use of a positive alarm sequence is limited to facilities where qualified and trained personnel are available to respond.

3. If the signal is acknowledged, an "alarm investigation" phase of up to 180 seconds is permitted for the purposes of evaluating the fire conditions

5. If the system is not reset, or a second detection device is activated, building notification occurs

NFPA 72 defines a qualified professional as “a competent and capable person or company that has met the requirements and training for a given field acceptable to the AHJ.” Many facilities do not have qualified personnel available to respond at all times, and therefore cannot utilize a positive alarm sequence. Engineers also must give careful consideration to the potential risks of delaying occupant notification and the commencement of evacuation. Unless other fire protection and life safety systems are present, such as automatic sprinklers and fire resistance rated construction, the risks of this delay could outweigh the potential benefits.

Historically, use of a positive alarm sequence has been limited to fire detection devices such as smoke or heat detectors. However, starting in the 2022 edition of NFPA 72, manually activated initiating devices, such as a manual pull station, can be included in the positive alarm sequence, if approved by the AHJ.

A positive alarm sequence is permitted by NFPA 101 in select occupancies, but it is not specifically referenced or permitted within the IBC. Full requirements can be found in NFPA 72 Section 23.8.1.2. In all cases, approval by the AHJ is required.

Presignal feature

Fire alarm systems with a presignal feature are programmed so that an initial fire alarm signal sounds only in certain, constantly attended locations, such as a control room, control office or fire brigade station. If applicable, the signal also transmits to a remote supervising station. Upon receipt of this initial alarm signal, the intention is that qualified personnel would immediately begin investigation to confirm the presence of a fire threat. Typically, the responding fire department or fire brigade also commence their response plan upon receipt of this initial signal. While this initial

‘The use of a positive alarm sequence can be helpful in buildings where evacuation of occupants is particularly challenging. ’
FIGURE 3: An overview of a positive alarm sequence. Courtesy: Chris Campbell
the Fire Alarm Control Unit (FACU)

BUILDING SOLUTIONS UILDING

1. Smoke detector activation

2. The detector resets and waits a specified duration of time (maximum of one minute)

3. The FACU does not accept a valaid alarm intiation signal until the smoke detector activates a second time after the specified duration

4. If no additional activation, nothing further occurs

‘When designing a fire alarm system, the responsible engineer must consider the characteristics and needs of a specific building and its occupants, the capabilities of the fire alarm equipment being considered and the presence of other fire protection and life safety systems.’

response occurs immediately, occupant notification does not occur unless it is manually initiated, typically at the constantly attended location.

The presignal feature can occasionally be confused with a positive alarm sequence, but one key difference is the reliance on manual activation of the notification system. A presignal feature fully relies on manual activation, whereas the positive alarm sequence initiates notification automatically if the initial signal is not acknowledged within 15 seconds or if the system is not reset by qualified personnel within 180 seconds.

For the same reasons as a positive alarm sequence, use of a presignal feature is not suitable for all buildings and occupancies. The IBC specifically requires AHJ approval to implement a presignal feature in a fire alarm system. The new occupancy chapters in NFPA 101 do not permit a presignal feature, however, it is allowed in certain existing occupancy chapters.

Alarm verification

Alarm verification is a feature to reduce unwanted alarms from smoke detectors. When a fire alarm system is programmed to use alarm verification, acceptance of a valid initiation signal from a smoke detector can be delayed by up to one minute. Practically, if a smoke detector is programmed for alarm verification, upon initially detecting smoke, the detector will reset for a specified amount of time of up to one minute. If a sufficient concentration of smoke is still present after that specified amount of time, the FACU will accept a valid alarm initiation signal and proceed with initiating the notification sequence. If there is an insufficient concentration of smoke after the specified amount of time, no notification will occur.

The alarm verification feature is typically not programmed initially, rather only when unexpected or transient conditions are causing unwanted alarms. Alarm verification is not intended to compensate for improper design of a fire alarm system, such as using the wrong type of detector in areas

prone to nuisance alarms. This feature can only be used on smoke detectors and is not appropriate for other types of initiating devices.

Alarm verification is permitted by NFPA 72, but is not directly referenced in the IBC or NFPA 101. It is important to note that the fire alarm signal verification concept referenced for supervising stations in Chapter 26 of NFPA 72 is different from the alarm verification strategy for smoke detectors described here.

Technically, an alarm verification feature is not an overall notification strategy; rather, it is a feature that results in delayed detection, resulting in a corresponding delay in notification.

Implementing fire alarm notification strategies

When designing a fire alarm system, the responsible engineer must consider the characteristics and needs of a specific building and its occupants, the capabilities of the fire alarm equipment being considered and the presence of other fire protection and life safety systems. Most of the notification strategies described in this article require AHJ approval, so the engineer must also take appropriate steps to present and defend the desired strategy in order to facilitate acceptance. Meetings with the AHJ before the permit submission may be necessary to obtain approvals.

Another important consideration is the delay in notification involved with several of these strategies. It is likely an inappropriate and risky approach to combine multiple design choices into one strategy if both involve a delay in notification or fire department response. Such a compounded delay could expose occupants to harmful or untenable conditions in a building. Conversely, an alarm verification feature could easily be combined with a partial notification strategy in a high-rise building, since occupants within the selected zones would be notified immediately upon receipt of a valid alarm initiation signal from a smoke detector.

FIGURE 4: An overview of alarm verification. Courtesy: Chris Campbell.
occurs

Many buildings will require fire safety, evacuation and lockdown plans per Section 404 of the International Fire Code. These plans need to contain key information related to fire alarm notification and response. For example, fire evacuation plans are specifically required to contain information explaining if the design is utilizing full building or partial notification. Similarly, the plan must contain the preferred and alternative means of notifying occupants of a fire or emergency, and how those emergencies will be reported to the fire department. While these plans are required once the building is complete and occupied, planning for the implementation of these strategies must coincide with the design of the fire alarm system itself.

Conclusion

There are numerous fire alarm notification strategies that engineers can use to provide a fire alarm system that meets the needs of a particular facility while also providing the required level of life safety and fire protection. Full building notification is the

most common notification strategy, but may not be the best solution in all cases. Partial notification and private mode signaling may be a better strategy in certain buildings and occupancies. In some situations, the use of a positive alarm sequence, pre-signal feature or alarm verification feature may be appropriate when approved by the AHJ.

The codes and standards referenced in this article are based on the most recent published editions. However, your project or jurisdiction may fall under a previous edition or could be impacted by local amendments. Always check for which code editions are applicable to your project and whether the AHJ amends the requirements. cse

Chris Campbell is the Principal and Founder of Campbell Code Consulting, where he provides building code consulting services on a variety of projects. In addition to his consulting work, Chris is a lecturer in the Department of Fire Protection Engineering at the University of Maryland, serves on several code development committees and writes on code topics at www.buildingcode.blog.

NFPA 72 insights

u Implementing advanced features like positive alarm sequence or alarm verification requires careful consideration of building specifics.

u Full building notification is a common and straightforward fire alarm strategy, while partial notification and private mode signaling offer more tailored approaches.

The 2024 Product of the Year program is now accepting

Submit yours before the ballot closes on April 12, 2024. www.csemag.com/POY

How new fire alarm system technologies are advancing safety

With a focus on improving safety, efficiency and adaptability, innovations in fire alarm systems are a remarkable leap forward in safeguarding lives and property

The built environment is undergoing a transformative phase in fire safety with the onset of new technologies in fire alarm systems. Recognizing the imperative nature of these systems, recent advancements are tailored to enhance not only the accuracy of fire detection, but also the speed and effectiveness of emergency responses, with the overall goal of preserving life and protecting property.

Smart detection systems

Smart detection systems represent a significant advancement in fire alarm technology, incorporating advanced sensors and intelligent algorithms to enhance the accuracy and efficiency of fire detection. These systems use cutting-edge technologies, including artificial intelligence (AI) and machine learning, to distinguish between real threats and false alarms, which helps to provide more reliable and responsive solutions.

FIGURE 1: Addressable FACP – Newer addressable panels have increased device count capabilities and advanced programming options for complex protection needs. Courtesy: CDM Smith

Smart detection systems often use multisensor technology, integrating different types of sensors such as smoke, heat and gas detectors. This approach allows the system to analyze multiple environmental factors for a more accurate assessment of potential fire hazards. Some smart detection systems incorporate air quality sensors to monitor changes in the atmosphere. This can include the detection of particles, gases or other anomalies that may indicate the presence of a fire or potential fire signatures.

The use of AI and machine learning help with pattern recognitions, which identify specific smoke and fire signatures. AI algorithms analyze patterns or trends in the data collected by sensors and enable the system to distinguish between normal conditions for a given environment as compared to deviations from the norm. Identifying fire or smoke conditions minimizes the chance of a false alarm scenario. The machine learning aspect teaches the system to adapt and improve over time. This continuous learning enhances the ability of a smart detection system to identify emerging fire risks and streamline the response strategies.

Smart detection systems can also be integrated

‘ Remote monitoring capabilities allow authorized personnel to observe system status and receive alerts or notifications, including increasingly active diagnostic tools that provide real-time analytics on device health or performance characteristics.’

with other building automation systems, providing seamless coordination for response to alarm conditions. Examples of these responses are activation of fire doors; heating, ventilation and air conditioning shutdown; and lighting systems that can respond to specific activation devices and provide visibility to help contain the spread of smoke and fire to promote timely and safe egress. These systems can be part of a networked infrastructure that promotes real-time communication between various building systems, shortening and coordinating fire alarm system responsiveness while also allowing for centralized monitoring and control.

Remote monitoring capabilities allow authorized personnel to observe system status and receive alerts or notifications, including increasingly active diagnostic tools that provide real-time analytics on device health or performance characteristics. This provides timely and accurate information regarding system maintenance frequencies to ensure systems remain reliable and fully operational.

These systems can be customized with a host of different configurable settings, including device sensitivity and response parameters based on specific needs or within which the environment they are installed. This type of adaptability ensures a well-tuned system that can address any unique characteristics or features of these different spaces. This customization also can include detailed logging and report generation that provides analytics and statistics relative to system operation and realtime system health checks or even post-incident analytics that can provide valuable information to personnel to improve response in future activity.

These smart detection systems represent the next generation of intelligent approach fire alarm technologies. By leveraging emerging advanced sensors, including AI and machine learning, these systems provide greater accuracy in detecting fire

scenarios, thereby reducing the likelihood of false alarms and improving overall safety in various environmental conditions, from residential construction to emerging and complex technology facilities.

Wireless technologies

Another emerging area is the advancement of wireless technologies that have contributed to significant improvements for fire alarm system implementation in many industries. Some of the key trending wireless technologies come from the use of mesh networking, low-power wireless tech, 5G networks, enhanced security protocols, edge computing and increased range.

Mesh networking allows devices to communicate with each other, creating a self-healing and resilient network, which ensures that if one device fails or is obstructed, the network can reroute signals through alternative paths and continuous connectivity. This enhances the reliability of wireless fire alarm systems by providing a robust and reliable communication pathway that guarantees detection and notification devices can provide uninterrupted communication.

Low-power wireless technologies have seen improvements as well, with technologies like Zigbee and Z-wave providing extended battery life for some fire alarm devices. These longer lasting bat-

• Identify new technologies and devices in fire alarm systems.

• Understand the limitations of notification appliances in creating a safe environment.

• Visualize future advancements and how alarm systems are changing.

FIGURE 2: New Cellular Communicator – Cellular communication allows for reliable connectivity, even in difficult locations, providing convenient solutions to challenging conditions. Courtesy: CDM Smith

BUILDING SOLUTIONS UILDING

FIGURE 3: This older style panel has limited inputs, relays and programming capabilities, which require more space allocation.

tery devices that run on low-power technology help reduce maintenance requirements and further enhance the overall reliability of the system.

tocols are necessary to safeguard against outsider threats from unauthorized personnel and prevent tampering.

Fire alarm systems can also use edge computing to enable faster data analysis and decision-making at the device level. Edge computing is a style that involves processing data closer to the source, reducing latency and improving response times. This can be of value for real-time monitoring and facilitating rapid response in potential fire events. Combined with the previously mentioned AI and machine learning, it can continue to enhance the ability of devices to process and make complex decisions that increase the complexity and ability for accurate detection.

Advances in RF technologies and antenna design, along with system extenders, have increased the range of wireless devices. Extended wireless range allows for better and more reliable coverage in larger buildings and reduces the number of devices necessary to ensure continuous and consistent monitoring.

Notification devices

Fire alarm insights

u Recent advancements in fire alarm systems not only enhance the accuracy of fire detection, but also enable more efficient emergency responses.

u Wireless technologies like mesh networking, low-power wireless tech and 5G networks, are improving reliability, scalability and response times in fire alarm systems.

Connectivity, like 5G and counting, offers faster and more reliable networks for wireless connectivity with ever lower latency. Fire alarm systems can benefit from this technology to enable quicker data transmission and more responsive communication between devices. This is highly relevant in emergency situations where timely and accurate alerts can be crucial to occupant notification for evacuation or other action. Additionally, better connectivity seeks to enhance interoperability and simplify integration with other building systems.

Enhanced security protocols, like Wi-Fi Protection Access 3, or cybersecurity protocols that protect radio frequencies (RFs), provide stronger and more robust encryption and protection from outside threats. Fire alarm systems using improved security protocols are extremely important to ensure these systems maintain integrity and the ability to ensure confidentiality of transmitted data within the wireless system. These types of pro-

Fire alarm systems have also seen significant advancements and improvements in notification devices. Recent focus has sought to enhance effectiveness, accessibility and customization, leading to advances in multimodal alerts, advanced voice evacuation systems, wireless devices, mass notification system integration and targeted alerts.

Multimodal alerts in devices combine visual signals (strobe lights), audible alarms (sirens, horns or voice) and textual notifications (LED display or signage) to provide adequate notification to individuals with varying sensory abilities in varying environmental conditions.

Advanced voice evacuation systems provide clear and intelligible voice messages during events. These devices use AI and machine learning to implement adaptable messaging based on specific environmental conditions.

Wireless notification devices offer flexibility in installation as well as scalability. Wireless devices such as alarms, decrease installation time, reduce the cost of wiring and make the process of retrofitting systems into existing structures easier. These features allow for maximum flexibility to adapt to changing conditions such as temporary structures.

CASE STUDY: Fire alarm devices for historic or heritage buildings

WIRELESS fire alarm devices can solve many of the unique problems that come with retrofitting historical and heritage buildings.

A historic or heritage building would benefit from wireless fire alarm devices. The unique architectural and historical value of these buildings often creates significant challenges when it comes to installing fire alarm systems.

Wireless alarm benefits in historical buildings

Wireless alarms allow for engineers to work within the limitations of historical buildings that may come from the architecture, function or structure of older buildings. Specific benefits of wireless alarms in historical buildings include:

• Preservation of architecture: Heritage buildings often have architectural designs and features that make traditional wiring for fire alarm systems difficult to complete without compromising the building’s aesthetics or historic fabric. Wireless devices eliminate the need for extensive wiring, preserving the historical integrity and aesthetics of the structure.

torical elements. Wireless fire alarm devices provide flexibility in placement, allowing for strategic positioning without the constraints imposed by wired systems.

• Scalability: Wireless systems can be easily expanded or modified as needed, accommodating changes in the building’s use or layout without requiring extensive rewiring. This scalability is crucial for adapting fire safety measures to evolving needs while respecting the building’s historical significance.

• Remote monitoring: Heritage buildings are often managed with meticulous care, requiring continuous monitoring for early fire detection. Wireless systems with remote monitoring capabilities enable building managers or preservationists to keep a close eye on the fire alarm system’s status, ensuring timely response to any potential threats.

‘ Wireless alarms allow for engineers to work within the limitations of historical buildings that may come from the architecture, function or structure of older buildings.’

• Ease of installation: Retrofitting a heritage building with a wired fire alarm system can be a complex and disruptive process. Wireless devices offer a more straightforward and less invasive installation process, which helps to lessen the impact on the building’s structure and minimizes disruptions to its daily operations, business or historical preservation activities.

• Flexibility in placement: Heritage buildings may have restrictions on where devices can be installed to avoid damage to his-

The increased integration of systems includes combining fire alarm systems with mass notification systems that facilitates a more unified approach to emergency communication. This integration ensures that fire alarms and alerts are part of a multifaceted strategy for various emergency situations and encourages coordinated responses that allow for broader communication during emergencies beyond.

Visual notification devices, such as strobe lights, have evolved with high-intensity LED lights and customizable functions for mass notification. These advancements improve the visibility and attention-grabbing capability of visual signals, especially in environments with high ambient noise where audible alarms may be less effective.

Customizable alerts allow for building owners and key stakeholders to tailor the type, duration and intensity of alerts based on site-specific factors, the needs or vulnerabilities of occupants

• Compliance with codes and regulations: Wireless fire alarm devices can be selected to comply with fire code regulations, while keeping the historical fabric and integrity of the facility intact. This ensures the facility or building meets the minimum acceptable safety standards and adheres to local and national preservation guidelines for these types of historical buildings.

Wireless fire alarm devices are an excellent solution for heritage buildings, offering a balance between modern fire safety requirements and the preservation of historical and architectural value. The adaptability, ease of installation and minimal impact on the building’s aesthetics make wireless systems a valuable choice for ensuring the safety of occupants and artifacts in these unique and culturally significant structures.

and the nature of the event. This allows for appropriate alerts for a variety of different scenarios and reduces the likelihood of panic or mass confusion. When combined with location-based alerts, different messages or responses to different zones, such as affected areas versus nonaffected areas, in an emergency situation can contribute to more efficiency in emergency response and facilitate safer egress for occupants.

Design and technology advancements of notification appliances, including horns, strobes and speakers, have improved the overall performance and reliability. These improvements contribute to the durability and effectiveness of notification devices, ensuring they meet the necessary safety standards and regulations, while also creating more responsive, adaptable and user-friendly notification devices in fire alarm systems. The goal is to enhance the overall safety of building occupants by providing clear and timely alerts during emergency situations.

BUILDING SOLUTIONS UILDING

‘ The more technology continues to evolve and adapt to new challenges, the more that these systems will innovate and implement new equipment.’

While the benefits are significant, challenges exist, particularly in ensuring regulatory compliance and addressing potential security concerns in wireless systems. Ongoing collaboration with regulatory bodies, industry experts and professionals is essential to navigate these challenges successfully. Systems must be designed, installed and maintained in accordance with the requirements of the adopted edition of NFPA 72: National Fire Alarm and Signaling Code, local requirements and stakeholder or insurance requirements.

Impact of technological advancements

All of these technological advancements are being actively implemented in various physical environments. New construction projects are integrating these features from the initial due diligence and planning phase, while existing structures are

benefiting from retrofitting with wireless systems. The adaptability and intelligibility of these innovative next-generation technologies allows buildings of all sizes and types to enhance their fire and life safety systems and infrastructure.

Smart detection systems, quick and intelligent devices that communicate with other building management systems, new wireless technologies and more effective notification systems are all creating a rapidly changing environment. The more technology continues to evolve and adapt to new challenges, becoming more reliable and intelligent, the more that these systems will innovate and implement new equipment. What will the next safety breakthrough be? cse

Jarron Gass, PE, CFPS, is a fire protection discipline leader at CDM Smith. He focuses on fire suppression and fire alarm design and analysis as well as water supply analysis.

Cristina Aragon-Vandenbent is a certified fire alarm designer specializing in system integration.

BUILDING SOLUTIONS UILDING

LIGHTING

Understand how LEED influences lighting design and how to apply ideas that go beyond energy efficiency and move into necessary design trends

LSustainable lighting choices under LEED indoor environmental quality guidelines Objectives

ike energy codes, U.S. Green Building Council LEED (Leadership in Energy and Environmental Design) credits develop into more challenging targets as each version rolls out. While LEED certification is not a new concept, its impact within all aspects of a potential design may be unfamiliar to those who have not dealt with it directly. Indoor environmental quality (IEQ) requirements specifically are outlined in LEED v4.1: Interior Lighting.

For lighting designers and specifiers, it is important to first understand if LEED is a target for your project. This may be an owner directive, proposed design target or energy code compliance path, especially as some jurisdictions are directing projects to meet LEED certification requirements for code compliance.

For example, Denver’s latest energy code amendments include an optional pathway to achieve LEED Platinum certification. When pursuing LEED certification, it is important to with the project team’s sustainability consultant to confirm which credits will be targeted, and to start discussing how they may impact the lighting design early in the schematic design phase. It is much more difficult to backtrack and update a completed design to meet LEED compliance.

Under the IEQ section for new construction, there are two possible points for interior lighting. The intent of this section is to promote occupants’ productivity, comfort and well-being by providing

high-quality lighting. To fulfill requirements, projects must meet one strategy for one point and three strategies total for two points. The strategies outlined are glare control, color rendering, lighting control and surface reflectivity.

Understanding IEQ definitions

Below are compiled definitions to assist in breaking down the strategies noted above.

• Color fidelity index: Qualitative measurement of a light source’s ability to accurately represent 99 specific colors in comparison to the sun. (See ANSI/IES TM-30 for additional details.)

• Color rendering index (CRI): Qualitative measurement of a light source’s ability to accurately represent eight specific colors in comparison to the sun.

• Gamut index: Qualitative measurement of how intense or saturated colors appear under a specific light source.

• Glare: The disturbance or reduction of eyesight as caused by high luminance, specifically in lighting.

• Luminaire: A complete electric light unit, also referred to as light fixture.

Learningu

• Understand how LEED v4.1 influences indoor environmental quality (IEQ) in lighting design.

• Identify the strategies outlined in LEED v4.1 and the requirements for each.

• Use examples to see what changes can be made to meet LEED requirements

csemag.com

Lighting insights

u Lighting fixture manufacturers are adapting to support LEED compliance by prominently featuring luminance data and UGR ratings on specification sheets.

u Strategies outlined include glare control, color rendering, lighting control and surface reflectivity.

Visual representation of glare as experienced in a typical office setting. One of LEED’s targets is to reduce the discomfort experienced by an occupant due to glare.

Courtesy: Smith Seckman Reid Inc.

• Luminance: The intensity of light emitted from a source, measured in candela per square meter (cd/m2).

• Nadir: The vertical line projecting downward from the center of the luminaire.

• Unified glare rating (UGR): An industry development method that puts a measurable value to glare. It considers the background luminance, luminance of the luminaire within the observer’s line of sight, the angle of the luminous part of the luminaire at the observer’s eye and the displacement of luminaire from line of sight. UGR may be calculated for an individual fixture (while making assumptions) or a complete design when modeled in a lighting calculation software.

Breaking down the LEED credit for lighting

The two approaches noted in the official LEED language for glare control may seem daunting and sound like a calculator will be necessary, but that

is not always the case. For either option, the fixture manufacturers have already done the work and will be able to provide the individual fixture information.

Luminance data of a luminaire can be found in the Illuminating Engineering Society (IES) fixture file or will be provided by the manufacturer on the specification sheet. An IES file contains the photometric data of a given fixture. These files are typically intended to be used in a lighting calculation software and will be needed when calculating the UGR of a design. The main factors that impact the luminance of a fixture are the fixture output in lumens and the fixture’s aperture size. As a lumen package increases for a given fixture, the luminance also increases. When comparing aperture sizes, a two-by-two troffer compared to a two-by-four troffer of the same make, model and lumen output will likely have a significantly higher luminance. If meeting the luminance requirement is not a possible path, the alternate option for glare control is meeting a design’s UGR of less than 19. A design’s UGR number corresponds to the occupant’s discomfort from the amount of glare experienced. Typical ratings fall within the range of 10-30. The higher the UGR numbers, the more glare is being experienced, which leads to discomfort.

Individual fixtures have UGR data as provided by the manufacturer, but the LEED strategy requires projects to use software modeling calculations of the designed lighting. In other words, the UGR score to determine LEED certification must come specifically from software modeling calculations.

The conditions that impact the UGR of a design include fixture selections, room sizes and layouts. A luminaire with higher lumen packages and/ or wider distributions may result in higher UGR. Larger rooms may require more fixtures or for fixtures to be spaced farther apart. This can lead to more light sources within the occupant’s field of view and to a potentially higher UGR. Lower ceilings or fixture mounting heights also play a role. The closer the fixture is to the observer’s line of sight, the higher the UGR will be. Understanding how each criteria impacts the UGR before approaching a design and fixture selection facilitates a smoother practice and implementation of this LEED strategy.

FIGURE 1:
‘ It is important to note the exceptions to the glare control path include employing wall wash fixtures, indirect fixtures and specific applications of fixtures. ’

It is important to note the exceptions to the glare control path include employing wall wash fixtures, indirect fixtures and specific applications of fixtures. When done correctly, these applications eliminate the possibility of the occupant having a direct line of sight into a light source. This significantly reduces the potential of glare experienced. Therefore, using any of these methods will help achieve either the maximum allowable luminance or UGR.

How are lighting manufacturers helping to meet these credit requirements?

There are a few key changes that manufacturers are providing to aid lighting designers and specifiers when they are attempting to select fixtures that comply with the glare control portion. First, they are making the luminance data and UGR ratings easy to find on all specification sheets. While, this will take some time to be seen across all fixtures and manufacturers, progress is being made.

It is important to understand that the UGRs of an individual fixture do not tell the whole story. They are calculated using a specific set of assumptions — including common room shapes, surface reflectance and observer locations — to provide an average or expected UGR. Therefore, while the numbers provided cannot be simply applied to any design, they can be used to help direct a design’s fixture selection before it’s possible to calculate the overall UGR.

Secondly, many manufacturers are using baffles on fixtures, which improve visual comfort by reducing glare. Baffles are a tool utilized by designers to minimize an observer’s ability to directly see the light source without significantly impacting the light fixtures light output and distribution. A common example often seen are the egg crate baffles on older fluorescent troffers. The baffle options such as a return of the egg crates, that are becoming

more widely available will potentially make achieving these credits more feasible without complete changes to designs and fixture types commonly used. These were very popular

Color rendering

Lighting specifiers will need to remain conscious during their selection process to utilize fixtures with 90 CRI options available. This may seem to be a limiting factor in some cases, but as technology progresses 90 CRI is becoming a standard option on many LED luminaires. In the future, the ANSI/ IES TM-30 evaluation may start to replace CRI criteria in fixture selections.

Lighting control

Most designers and specifiers in the commercial design world will be familiar with designing lighting controls systems that meet the intent of this credit, as standard energy codes require this level of control in most occupied spaces. The keywords in this section of the code are “regularly occupied spaces,” where people will be spending their time, working and performing tasks. Owners and occupants often prefer dimming options for the enhanced level of control.

FIGURE 2: Visual representation of unified glare ratings (UGRs) as experienced in a typical office setting. As the angle increases between the light source and observer’s line of sight, the observer’s visual comfort increases and the UGR decreases.

Courtesy: Smith Seckman Reid Inc.

BUILDING SOLUTIONS UILDING

Luckily, designers and specifiers will not have any issues finding fixtures and control packages that have dimming options. Designers and specifiers need to work with the owners and users to determine the best solution for them, if that will be dimming, multiple preset dimming levels or a combination of options.

Surface reflectivity

In general, this strategy will fall into an architect or interior designer’s scope and not have much influ-

ence on lighting design and specification. Lighting designers and specifiers should work with the rest of the design team to be aware of the different surface reflectance chosen throughout a space to properly calculate a design’s UGR, if applicable. cse

Katherine Clark, PE, is an Electrical Engineer I at Smith Seckman Reid Inc. She has spent her career working on projects in the commercial and health care markets including, multiple LEED-certified designs.

How to use LEED indoor environmental quality strategies in office spaces

LEARN WHAT CHANGES can be made to meet LEED interior lighting requirements through an example office space

In this example, consider a large open office, with 10-foot acoustical tile grid ceilings and low partition cubes, evenly distributed.

An average approach for this open office could use 4-inch linear pendants with direct and indirect distribution, spaced consistently throughout. The fixture has a frosted lens, 750 lumens per foot direct and 500 lumens per foot indirect, 3500 kilowatts corelated color temperature and comes standard with a color rendering index (CRI) of 80. The control scheme for the space is multistep dimming with preset options of 100% on, 75% on and 50% on.

The design as described above does not meet all categories for U.S. Green Building Council LEED interior lighting points. Below is a breakdown by category of the current design as well as possible changes to be made that would comply with the LEED strategies.

Glare control

LEED interior lighting requires a fixture luminance of less than 7,000 candela per square meter (cd/m2). In this design, the fixture luminance is 9,200 cd/m2.

To meet LEED requirements, one option to consider would be to decrease the direct lumen output while increasing the indirect lumen output. For the sake of this example, flip the outputs to 500 lumens per foot direct and 750 lumens per foot indirect. This fixture now has a luminance of 6,200 cd/m2.

Unified glare rating (UGR)

To meet this LEED category, the UGR must be less than 19. Looking purely at the individual fixture rating in this example, the UGR is 22.

Looking at the individual fixture rating, an opportunity to consider is adding a baffle to reduce the observer’s direct line of sight to the fixture aperture. This may be a good option, as it requires no other changes to the design. For this fixture, a baffle would reduce the UGR to 18.

Color rendering

To meet LEED requirements, the CRI needs to be at least 90. This design includes standard 80 CRI. To meet this requirement, designers should specify the 90 CRI option.

Lighting control

This design meets the requirements for dimmers or multilevel lighting with multistep dimming of 100% on, 75% on and 50% on. These fixture types are more commonly found to meet the luminance or UGR criteria for LEED’s glare control targets:

• Pendant fixtures with primarily indirect outputs.

• Wall wash fixtures aimed directly at a wall — as noted in the exceptions.

• Fixtures with larger luminous surface areas.

• Fixtures with baffles or glare control accessories.

Possible fixture types to avoid when targeting this credit:

• Narrow linear fixtures (unless they are only indirect distribution as noted above or have baffle options).

• Fixtures where the light source is easily visible when the observer is not directly below.

• Very high output fixtures and fixtures with very small apertures.

BUILDING

SOLUTIONS UILDING

ASHRAE STANDARD 90.1

Ten things to know about ASHRAE 90.1-2022 updates

Building on the momentum of previous editions, ASHRAE Standard 90.1-2022 is leading the way toward renewable energy and decarbonization in commercial buildings

The 2022 updates to ASHRAE Standard 90.1: Energy Standard for Buildings

Except Low-Rise Residential Buildings are sweeping to say the least. If you review the addenda to the ASHRAE 90.1-2019 version, you will see that the scope of changes appearing in the 2022 version are significant: modifications and improvements to the existing language coupled with completely new material.

The updates demonstrate how ASHRAE’s Technical Committees continue to partner with industry stakeholders to drive improvements in the efficiency of heating, ventilation and air conditioning (HVAC) equipment and processes used in buildings.

Many of the additions in the 2022 standard are appearing for the first time in a minimum-efficiency U.S. code or model energy standard. One of the key strengths is providing tools to the design and construction community. The use of these tools will result in buildings that are more efficient and lower carbon emissions.

ASHRAE 90.1 is the de facto standard for energy efficiency in buildings. It is a “code-ready” standard, meaning local jurisdictions can tailor it and use it as their energy code. The standard has been around since 1975 and has been adopted in the U.S. and around the globe.

According to the Building Codes Assistance Project (BCAP), 38 states have adopted ASHRAE 90.1. Also, international energy standards — very close in content and scope to Standard 90.1 — are used in India, Canada, Mexico, Dubai, Singapore, Ireland, Hong Kong and other locations.

Finally, in addition to being a template for municipal and state codes, it is also an integral part of the Building Certification Initiative - Green Globes and the U.S. Green Building Council LEED, which is the most widely used green building rating system.

Integration into other codes and guidelines is a big part of why the standard is so widely used. For example, ASHRAE 90.1 is used as a starting point or basis for most building energy code requirements in the United States, such as the International Energy Conservation Code, which uses 90.1 as the basis for compliance. Additionally, under the United States Energy Policy Act of 2005. In 2009, ASHRAE 90.1 was mandated to be used by federal

FIGURE 1: ASHRAE Standard 90.1 is part of a comprehensive compendium of many interrelated, ASHRAE documents, covering many aspects of building energy performance.

Courtesy: kW Mission Critical Engineering

BUILDING SOLUTIONS UILDING

FIGURE 2: Estimated improvement in energy savings for specific model codes. Courtesy: U.S. Department of Energy

agencies as the minimum energy efficiency requirement for new federal buildings.

What has changed in ASHRAE 90.1-2022?

Learning

Objectives

• Understand how ASHRAE goes about updating ASHRAE Standard 90.1: Energy Standard for Buildings Except LowRise Residential Buildings, including involving the public and ensuring a transparent process.

• Learn about how Standard 90.1 has evolved over the past decades and how it continues to be critical to improving energy efficiency in buildings.

• Identify specific areas of Standard 90.1-2022 that have been revised or newly added and recognize how they impact ASHRAE’s different compliance paths.

In developing the 2022 edition, ASHRAE followed the processes and procedures that they have for all the past versions. But for Standard 90.1-2022, there are significantly more content additions and revisions. Here are 10 changes engineers should pay attention to.

1. Mechanical system performance path rating (MSPR) method: One of the most important changes to the ASHRAE 90.1-2022 is the introduction of a new compliance path, MSPR, included in Chapter 6. HVAC systems that are allowed to use this approach do not have to meet all of Section 6 prescriptive requirements.

To illustrate this, if an HVAC system is designed without the required outdoor air economizer, it can still comply by using higher efficiency cooling systems or by reducing fan energy as compared to a reference system. The in-depth engineering and calculations are contained in a completely new Normative Appendix L, where the terms total system performance rating (TSPR), TSPRp (proposed) and TSPRr, (reference building) are used.

TSPR is a ratio that compares the annual heating and cooling load of a building to the annual energy consumed by the building’s HVAC system. TSPRp is used for the proposed design; TSPRr defines the rating for the reference building the methodology behind this new compliance path has similarities to the 90.1 Normative Appendix G, Performance Rating Method. They both use a baseline (reference) and proposed building models that are used for energy simulation. Both paths also incorporate predefined equipment efficiencies and system control.

However, there are significant differences between the two. For example, Appendix L is used only for comparing a reference and proposed design and does not allow HVAC system efficiency tradeoffs with building envelope, plug loads or lighting systems. These types of trade-offs are allowed in the Appendix G compliance path.

Using the Appendix L compliance path also streamlines the energy modeling process. One example is using simplified thermal blocks (rectangle, L-, H-, U- or T-shape) in the energy model. Where actual building shape does not match these predefined shapes, simplifications are permitted. Also, Appendix L provides detailed design parameters on efficiency and other operational characteristics of the equipment and systems.

To illustrate this, tables in Appendix L define many of the HVAC system parameters, including fan control, minimum zone airflow fraction, occupied outdoor air, energy recovery ventilator, condenser heat rejection, cooling pump (primary) power, chilled water temperature and many others. Each one of these parameters has numerical values and text information.

The big idea behind these data is to build a reference model using predefined values, resulting in a straightforward modeling process, minimizing time and effort in calculating energy use. After the energy performance of the proposed design is complete, the final part of the process gets underway: using the mechanical performance factor (MPF).

2. Climate zone and building type: In most buildings, these variables have the greatest impact on energy consumption.. This is where MPF comes in. The Pacific Northwest National Laboratory (PNNL) developed an analysis and recommendation report that introduced MPF. The U.S. Department of Energy developed Commercial Reference Buildings, which is an analysis for reference buildings. These reference buildings are instrumental in energy modeling and provide complete descriptions for building energy analysis.

In calculating MPF, PNNL revised the HVAC system parameters for each of the building prototypes, with the intent of generating energy modeling parameters that are just “good enough” — minimally code compliant. The TSPR calculation includes the MPF factor in verifying the proposed system has greater efficiency than the reference system. (TSPRp must be greater than the TSPRr, which is divided by the MPF). It is a simplified performance trade-off method for HVAC systems where no building tradeoffs are needed.

3. MPF tables: ASHRAE Standard 90.1 also includes MPF tables for site energy, source energy and carbon emissions. The addition of MPF allows for an expanded performance-based approach that includes credits for renewable energy sources and reduced carbon emissions.

4. Modeling at part-load: In addition to renewable energy and carbon emission calculations, ASHRAE has incorporated detailed data on modeling chiller performance at part-load. When modeling energy performance of air- and liquid-cooled chillers, the energy modeling professional requires

Table 1: Energy efficiency credit measures

E0113.5.2.2.1 Envelope performance (90.1 Appendix C basis) New

H01 HVAC performance (TSPR) [Future] New

H0213.5.2.2.2 Heating efficiencyC406.2.1-3Expanded H0313.5.2.2.3 Cooling efficiencyC406.2.2-4Expanded H0413.5.2.2.4Residential HVAC controlNew H0513.5.2.2.5 DOAS/fan controlC406.6Modified W0113.5.2.2.6SHW preheat recoveryC406.7.2Same W0213.5.2.3.1 aHeat pump water heaterC406.7.4Modified W0313.5.2.3.1 bEfficient gas water heaterC406.7.3Same W0413.5.2.3.1 cSHW pipe insulationNew

W0513.5.2.3.2Point of use water heatersNew

W0613.5.2.3.3 a Thermostatic balancing valves New W0713.5.2.3.3 b SHW submeters New W0813.5.2.3.4SHW distribution sizingNew W0913.5.2.3.5 SHW shower drain heat recovery New P0113.5.2.3.6 Energy monitoringC406.10Same L01 Lighting performance Future

L0213.5.2.5.2Lighting dimming and tuningC406.4Expanded L0313.5.2.5.3Increase occupancy sensorNew

L0413.5.2.5.4Increase daylight areaNew

L0513.5.2.5.5Residential light controlNew

L0613.5.2.5.6Lighting power reductionC406.3.1-2-3Expanded

Q0113.5.2.7.1 Efficient elevators New

Q0213.5.2.7.2 Efficient commercial kitchen equipment C406.12Same

Q0313.5.2.7.3 Fault detection and diagnosis (FDD) C406.11Same

several input parameters including chiller full-and part-load performance.

Some of these data are not available when the energy modeling process starts. This requires the use of predefined curves that are integrated into the simulation software. This results in inconsistent calculations from project to project for energy performance. To tackle this problem, a new Appendix J was added to the 2022 standard. This appendix includes fit curves developed by PNNL for different types and sizes of air- and liquid-cooled chillers. This approach creates a consistent methodology when modeling energy performance of air- and liquid-cooled chillers.

TABLE 1: Analysis on energy efficiency credit measures developed by Pacific Northwest National Laboratory (PNNL). Courtesy: PNNL

BUILDING SOLUTIONS UILDING

Emissions reductions

5. Building envelope: The envelope will undergo fewer modifications over the life of a building when compared to HVAC and lighting systems. Previous editions of Standard 90.1 allowed for energy consumption trade-offs between systems and the building envelope components.

These trade-offs now have a backstop, limiting the amount that can be used for the envelope. ASHRAE received comments from different jurisdictions that led up to this revision. The concern is building envelope will be in place for much longer, increasing long-term energy use.

The 2022 edition also has several new technical requirements for the envelope such as thermal bridging, insulated metal panels, wall solar reflectance and roof replacement. Other envelope categories have a direct positive effect on HVAC system energy use: air leakage requirements and envelope commissioning. Increasing the integrity and thermal performance of a building’s envelope will reduce overall energy use and increase occupant comfort.

6. Mechanical efficiency tables and system definitions: The efficiency tables in Standard 90.1 li st the minimum energy efficiency requirements of HVAC and other equipment types. The metrics apply to specific equipment types (e.g., water-cooled chillers, packaged air conditioning units, heat rejection equipment) and define how the metrics are used in determining compliance to the standard. As performance of HVAC equipment continues to improve

and new design approaches are developed, the metrics and how they are used in the different compliance paths have evolved resulting in more precise results from the calculations.

ASHRAE 90.1-2022 continues this by departing from simpler, but less accurate, metrics. There are different reasons for this evolution. One is using metrics that more closely match the performance characteristics obtained from equipment testing. Another is using a more realistic frequency of outside air temperatures, generating performance results that are specific to the project’s climate zone. To illustrate this, the energy efficiency ratio metric has evolved into integrated energy efficiency ratio, which includes part-load equipment performance.

The 2022 edition also has several updates to the parameters and applicability of HVAC systems and controls such as demand control ventilation, setback controls, garage exhaust systems and controls, ceiling fan efficiencies, dehumidification control, energy recovery ventilation requirements, dedicated outside air system exemption and expanded airside economizers.

7. Energy credits: Energy credits are new to ASHRAE 90.1-2022, not appearing in any of the previous editions. In addition to meeting all base energy code requirements, energy credits are an additional prescriptive method for demonstrating compliance with an estimated 5% additional energy cost savings. Using energy credits provides flexibility for the building designer. The 2022 edition lists specific measures that correspond to the credits., including measures on energy efficiency, renewable energy and load management. PNNL published a report in 2022 analyzing the energy and cost savings from the energy credits that are in the new standard.

8. Lighting: In addition to the indoor agricultural grow lighting, other significant changes to lighting show up in ASHRAE 90.1-2022. The definition of exterior lighting now extends to the building site. This change makes a big difference in the energy consumption that is calculated for the building. In the previous editions of Standard 90.1, site lighting was defined as lighting fed from an electrical panel that is a part of the building. So, any parking lots, walkways and other exterior lighting would not be included unless it came from the building.

Also, maximum power metrics for exterior lighting were significantly reduced in ASHRAE 90.12022, taking into consideration the use of LEDs and

FIGURE 3: Example emissions reductions from energy efficiency measures, renewable energy purchases and a cleaner grid. Courtesy: National Renewable Energy Laboratory

improved design approaches. Finally, there are several revisions to lighting control, lighting power density, daylighting and the addition of energy credits specific to lighting.

9. Expanding use of renewable energy: ASHRAE 90.1-2022 has a minimum prescriptive requirement for on-site energy using technologies such as photovoltaic panels and wind turbines. As discussed for lighting, expanding the boundary of the project also benefits on-site renewable energy systems which can now be used as credits toward energy usage, as outlined in National Renewable Energy Lab’s Operational Emissions Accounting for Commercial Buildings.

10. Commitment to reducing greenhouse gas (GHG) emissions: Energy efficiency for commercial buildings is the primary purpose of ASHRAE Standard 90.1. Energy use in buildings is the greatest source of GHG in the commercial building sector and ASHRAE is the tip of the spear in improving efficiency and curbing energy consumption.

To demonstrate this, the DOE estimates the 2022 edition will reduce energy costs 19% over the 2019 edition and 48% compared to the 2004 edition. ASHRAE established the ASHRAE Taskforce on Building Decarbonization that focuses on decarbonization in commercial buildings. This task force has set goals for achieving net zero GHG emissions for the building sector from 2030 to 2050.

The 2022 edition now includes a methodology for using site and source energy cost in addition to carbon emission factors. This gives local jurisdictions the ability to judge building energy performance using these new factors. For compliance purposes, this method is meant to be used voluntarily by local jurisdictions where using a carbon emissions metric is not in conflict with U.S. federal law.

How does ASHRAE 90.1 remain relevant?

Why has ASHRAE 90.1 been adopted so widely and rooted in other programs? The answer is subjective but the underlying facts provide validation:

ASHRAE’s “Standards Strategic Plan” ASHRAE Strategic Plan 2019-2024 provides details on the development of new standards. The strategic plan includes the language to "… provide consistent and forward-looking guidance to the standards committee to ensure that the efforts of the society have the largest possible impact on our built environment

Do you know how to reference ASHRAE 90.4?

LEARN HOW TO USE

ASHRAE 90.4 in conjunction with ASHRAE 90.1

ASHRAE Standard 90.4: Energy Standard for Data Centers was recently released; ASHRAE Standard 90.1: Energy Standard for Buildings Except Low-Rise Residential Buildings is its normative reference. This creates a system of documents designed to eliminate overlaps and minimize confusion between the two standards.

In 2007, the idea of developing guidance on energy efficiency in data centers started to gain traction when the Report to Congress on Server and Data Center Efficiency was published. Before this, there was a core group of data center design engineers and information and communication technology professionals that were already researching and implementing energy efficiency strategies.

These efforts ultimately resulted ASHRAE publishing Standard 90.4-2016. Also, Standard 90.4 was completely new and written knowing the ITC equipment and data center design practices could be substantially different over the course of the development of the standard

While solid engineering approaches were being analyzed and implemented in data centers, the industry needed a performance-based document that ultimately could become part of an energy code. This is where the industry volunteers stepped up and used their expertise to develop parts of ASHRAE 90.4 in a relatively short timeframe and on complex and technical subject matter.

The heart of ASHRAE 90.4 defines an alternate compliance path, specific to data centers, while the compliance requirements for “non-data center” components are contained in ASHRAE 90.1

Instead of trying to weave in data center-specific language into the existing standard, ASHRAE wisely chose to create a (mostly) stand-alone standard that is only applicable to data centers and only contains references to ASHRAE 90.1. This structure also streamlines the ongoing maintenance process as well ensures that Standards 90.1 and 90.4 stay in their respective lanes to avoid any overlap and redundancies relating to the technical and administrative boundaries of the two standards.

Updates to ASHRAE 90.1 will still include the alternate compliance path defined in ASHRAE 90.4. Conversely the current version of 90.4-2022 refers to ASHRAE 90.1-2022, keeping both standards in sync.

while considering the time and effort associated with their development and maintenance." The primary strategies from the plan are:

• Anticipate industry needs.

• Maintain leadership in standards.

• Collaborate with others.

• Promote adoption of ASHRAE standards.

• Promote international use of ASHRAE standards.

ASHRAE 90.1 has been written and updated over the decades by experts in the building energy efficiency field. Being on an ASHRAE Technical Committee

BUILDING SOLUTIONS UILDING

ASHRAE 90.1 insights

u The purpose of this article is to present and discuss content revisions that appear in ASHRAE Standard 90.1: Energy Standard for Sites and Buildings Except Low-Rise Residential Buildings.

u The updates demonstrate how the ASHRAE Standard 90.1 Technical Committee continues to partner with industry stakeholders to drive improvements in the efficiency of HVAC equipment and processes used in buildings.

u This shows how ASHRAE Standard 90.1 is moving ahead into new territory — forward-looking compliance paths, expanded design approaches on carbon reduction and enhanced credits for site renewable energy.

requires an unbiased, technically motivated approach that does not favor certain products or services, steering clear of any potential conflict of interest.

ASHRAE’s Technical Committees develop recommendations for several ASHRAE publications, including the Standard 90.1. Built into this development process is inviting the public to have a say in the documents — no affiliation to ASHRAE is required. This is important because anyone showing interest can download, free of charge, the proposed addenda and submit suggestions. All comments received during the review period are addressed. Ensuring a transparent process by inviting the public to participate reinforces ASHRAE’s commitment, “to serve humanity by advancing the arts and sciences of heating, ventilation, air conditioning, refrigeration.”

A new edition of the standard is updated and published every three years, typically for content updates based on things such as new design concepts and equipment efficiency improvements. A synergistic relationship with forward thinking professionals (who are also committed to lowering energy and

resource consumption in buildings), is an important part of ASHRAE’s success. This is manifested by consistently debuting new energy efficiency criteria and compliance methodologies. These actions maintain the standard as the flagship of energy standards. According to the DOE, the last three editions (2013, 2016, 2019) have averaged 6% to 7% overall energy savings per edition. The 2022 edition will have energy savings of 14%.

While the revisions are a representation of ASHRAE’s ambitious goals to reduce energy consumption in commercial buildings, ASHRAE is making strides beyond building energy and including reduction of carbon emissions and the use of onsite renewable energy. Lowering carbon emissions by using renewables and energy efficiency strategies in commercial buildings is vital to meeting net zero goals. cse

Bill Kosik, PE, CEM, LEED AP, is a Lead Senior Mechanical Engineer at kW Mission Critical Engineering. He is a member of the Consulting-Specifying Engineer editorial advisory board.

BUILDING SOLUTIONS UILDING

Four areas that affect electrical safety in electrical, power systems

Here are four facets that impact electrical safety for facility staff and occupants: arc flash, electrical room working space, testing and commissioning and egress lighting

The topic of electrical safety is an extensive one. Various codes including NFPA 70: National Electrical Code (NEC), NFPA 101: Life Safety Code, the National Electrical Safety Code NESC IEEE/ANSI Standard C2, NFPA 70E: Standard for Electrical Safety in the Workplace and other codes cover a wide variety of electrical safety topics.

Arc flash and electrical safety

One of the fastest growing concerns over the past decade in electrical safety has been arc flash hazards. While the requirement for arc flash hazard warning labels on electrical equipment has been in the NEC as early as 2002, the 2017 version added in a requirement to include the actual available fault and clearing time indicating the possible energy levels at the equipment.

An arc flash is an electrical explosion made of heat and light that occurs when electrical current escapes the normally current carrying components and “arcs” to another voltage reference or ground. Arc flashes are traditionally caused when a fault or a breakdown of electrical insulators occurs in the electrical system in a line to ground fault. The causes for arc flash can include damage to the conductors during installation, age, overvoltages, transients and insufficient testing.

This burst of energy can be tremendous with

heat up to 35,000°F, vaporizing metal, causing damage to nearby equipment, fires and even death to nearby occupants. Due to the large hazard that arc flash presents, it is required by NFPA 70E to provide arc flash hazard warning labels for any piece of electrical equipment that may need maintenance or service while energized.

The labels provide guidance for electrical service personnel to use levels of personal protective equipment (PPE) based on calculated incident energy measured in cal/cm2. The standards PPE category includes from the least protective clothing at 0 to the most protective at 4. See Table 1 for classification of PPE levels based on incident energy.

By understanding the components that make up an arc flash, an electrical engineer can use various methods to lessen or mitigate an arc flash upon a fault condition. Reference the IEEE 1584-2018:

Table 1: Arc flash categories

TABLE 1: Arc flash energy categories are shown.

Courtesy: SmithGroup

• Understand the key issues associated with arc flash and electrical safety in general.

• Appreciate the importance of electrical room design and safe working space.

• Learn the basics of safe lighting design for both maintenance and egress.

BUILDING SOLUTIONS UILDING

‘ A lower fault value may not trip an upstream protective device whereas a higher fault value may instantaneously trip the upstream protective device. ’

Guide for Performing ArcFlash Hazard Calculations for a full purview of the full methods that are used when calculating arc flash.

FIGURE 1: Sample arc flash label for equipment.

Simply put, the incident energy of an arc flash is a calculation of fault current and clearing time at the overcurrent protective device. It should be noted, however, that a higher fault current may not elicit a higher incident energy due to the clearing time of a fault. A lower fault value may not trip an upstream protective device whereas a higher fault value may instantaneously trip the upstream protective device.

For this reason, a coordination study should be performed to determine how each individual circuit breaker trips under each individual fault condition (single line-to-ground, line-to-line, 3-pole, etc.).

Electrical safety

u Electrical safety requires several areas of expertise: System design, arc flash mitigation, room design, testing and commissioning and egress lighting.

u Mitigating arc flash incidents often becomes the No. 1 challenge and adherence to codes and standards ensures proper design.

An engineer should exhaust all possibilities to lessen the potential incident energy of an arc flash by modifying circuit breaker settings, limiting fault current when possible or adding additional protective devices within the electrical system. When the aforementioned techniques have been performed, there are various equipment components and accessories that can be procured to mitigate the potential hazard.

NEC article 240.67 and 240.87 provide guidance for arc energy reduction. Specifically, 240.87 provides methods to reduce the clearing time (breaker trip) to minimizing arc flash. These include:

• Zone-selective interlocking.

• Differential relaying.

• Energy-reducing maintenance switching.

• Energy-reducing active arc flash mitigation system.

• An instantaneous trip setting.

• An instantaneous override.

• Approved equivalent means.

In addition, the consulting engineer should consider the location of the electrical equipment as placing equipment within an electrical room normally restricts access to qualified personnel whereas equipment located within a hallway may elicit safety concerns with unqualified occupants.

With the performed arc flash analysis, labels should be created and attached to each respective piece of equipment to identify the incident energy, arc flash boundary, nominal system voltage, device name and PPE required (see Figure 1).

Safety in electrical rooms

The purpose of an electrical room is to house electrical equipment, providing a space that is both safe and secure for the operations and maintenance of the electrical equipment and only accessible to authorized personnel. Electrical equipment ratings and types can significantly affect the room requirements. Switchboards, switchgear, transformers, generators, uninterruptible power supplies (UPS) and low- and medium-voltage ratings all impact the requirements for an electrical room.

NEC Article 110, Part II (1,000 V and below) and Part III (more than 1,000 V) is the primary source of these requirements.

Coordination with architectural requirements centers on electrical room space needs including working space around and above the equipment and access to and from the electrical room. Working space is based on NEC Table 110.26(A)(1) and Table 110.31(A) from the 2020 NEC. Table 2 combines this information along with typical system voltage nomenclatures.

Table 110-16(A)(1) has three conditions. These conditions consider the distance from the accessible

Courtesy: SmithGroup

side of the electrical equipment enclosure to various wall construction types or other electrical equipment on the opposite side of the working space. Note that the voltages referenced in the table are from any single “hot”/“leg” as referenced to ground. So, a 208 V, 3-phase panel board is 120 V from any single leg referenced to the ground conductor (see the three conditions illustrated in Table 2).

Note that the working space discussed is this table is the depth in front of the equipment. The working space required by this article also includes width and height. The width must be 30 inches or the width of the equipment, whichever is greater. The vertical space (height) required by NEC 110.26 is 6.5 feet or the height of the equipment, whichever is greater. This height requirement means that you cannot install the associated gear in question in a sublevel space (crawl space) or even allow pipes or other accessory equipment to be installed in this imaginary “box” created by the requirement(s).

The electrical engineer also should carefully review the type of electrical equipment to be placed in an electrical room. Nonelectrical engineers commonly use the terms “switchboard” and “switchgear” interchangeably, but these two types of equipment types have very different requirements for access and clearance. Because switchboards are built to the UL 891 standard and typically come with fixed breakers, they may require only front access for cable terminations.

Larger or more specialized switchboards may require rear access for cable terminations and have optional draw-out insulated case devices. Switchgear is built to the ANSI C37 standard and has draw-out front power breakers and requires rear access. Draw-out breakers will extend into the pathway in front of the gear and require space from either overhead hoists or portable lifts to remove the breakers. A good recommendation is to show these additional space needs on the electrical drawings with dashed lines extending from the equipment footprint.

Another important requirement in NEC Article 110, Part II addresses the means of entrance and egress for an electrical room. In electrical rooms with equipment more than 6 feet wide with equipment-rated and rated 1,200 amps and above, there must be one means of egress at each end of the room. The doors must be a minimum of 2 feet

Table 2: NFPA 70 consolidated working space Tables 110.26(A)(1) and 110.34(A)

wide and 6.5 feet high. The doors should swing out of the room and have panic hardware. Also note that these door requirements also apply to electrical rooms with equipment rated 800 amps or more under NEC Article 110.26 (C)(3).

Other codes and good practice may point to larger doors for egress. Beyond the code requirements for doors, the engineer and architect should consider real working space needs. For instance, the primary intent of the NEC minimum door size noted above is for egress purposes, not equipment entry or removal. Some types of electrical equipment can be 7.5 feet high and 30 inches wide or larger. Code sized doors at 2 x 6.5 feet would not permit move-in or replacement of that equipment.

TABLE 2: This breaks down the clearance requirements based on voltage level and conditions. Courtesy: SmithGroup

FIGURE 2: Working space and dedicated electrical space requirements in an electrical room. Courtesy: SmithGroup

BUILDING SOLUTIONS UILDING

A good suggestion, therefore, might be 9-foot-high double doors that would accommodate these types of equipment.

Most basic switchboards require only front access and have fixed group-mounted breakers. However, some sophisticated switchboards or standard switchgear require additional front access space for draw-out breakers, and rear access to pull and terminate cables on the bus. The NEC-mandated 3 or 4 feet may not suffice to support these needs.

Further, the height of the electrical equipment and the clearance to the ceiling above should be evaluated where top entry conduit bending space

may be needed; 3 feet or more may be needed above the top of the equipment. A suggested minimum height for some electrical rooms therefore might be 12 feet or more.

Lighting is another area that engineers should coordinate with the architect. The NEC does not mandate lighting levels, but a good recommendation for lighting is 30-50 footcandles (fc). It is good standard practice to consider putting a portion of the lighting in a main electrical room on battery or generator power. Note that the newer codes also state that “Control by automatic means shall not be permitted to control all illumination within the working space.”

Testing and commissioning for electrical safety

Electrical testing has become a key component in all modern electrical equipment and installations. It has expanded beyond the key foundations for equipment safety to include performance, operations and energy requirements for electrical facilities. However, its basis remains on electrical safety. Some of the key electrical testing options include:

Manufacturer factory tests: Electrical equipment manufacturers test their equipment in the factory according to established standards. However, consulting engineers may wish to specify additional “factory witness testing.” This additional witness testing permits the consulting engineer to perform preinstallation review of the equipment and request simulated functional testing performed by the manufacturer.

Witness testing is only required for large or complicated electrical equipment and for mission critical projects. Witness inspections can include confirmation of equipment dimensions and weights, proper nameplates and labels, locations and sizes of conduit openings, communication wiring points and cable lug configurations. Functional witness testing may include simulated sequences of operations such as startups and load transfers, fault conditions, load loss and alarms and display information

Manufacturer field tests: More commonly specified than factory witness tests are requirements for the electrical equipment manufacturer to require factory-trained technicians to perform additional testing and adjustments in the field during or

FIGURE 3: Dedicated space requirements for a wall-mounted panel.
Courtesy: SmithGroup

after installation. Often larger complex electrical equipment is shipped in parts and having a factory authorized technician on-site to test equipment after the contractor has installed it can be helpful. The most common tests are functional tests and demonstration for owner staff. Additional work may include relay and protective device settings.

Contractor field tests: Field testing by the installing electrical contractor is a common specification requirement. Some of the more common contractor field tests include medium-voltage cable testing, load balancing, phase rotation and infrared scanning of terminations and connections.

Third-party field testing

For some types of critical facilities such as health care, data centers, laboratories and government facilities, it is important to specify additional electrical testing by independent third-party contractors. The primary recommended standard for independent testing of the installation of electrical systems is ANSI/NETA ATS-2021 Standard for Acceptance Testing Specifications for Electrical Power Equipment and Systems.

As part of these field tests there are NEC

requirement for the primary injection testing in sections 240.67 and 87 (C):

“The arc energy reduction protection system shall be performance tested by primary current injection testing or another approved method when first installed on-site. This testing shall be conducted by a qualified person(s) in accordance with the manufacturer’s instructions. A written record of this testing shall be made and shall be available to the authority having jurisdiction.”

While it is possible that some or all, of these tests could be performed by the installing contractor, there is a benefit to the consulting engineer and the owner to use a third-party testing agency who can independently assess that electrical equipment comply with the engineer's design and specification documents and have been installed to meet all codes.

Commissioning and testing for electrical safety

Beyond testing individual electrical equipment components, there is a need to verify installed electrical systems match design documents, construction submittals, owner’s program requirements and to document functional performance testing.

CASE STUDY: Laboratory combines lighting and life safety lighting

TO SAVE MONEY, designers connected select light switches to a power source for life safety purposes

SmithGroup was tasked with designing the lighting for a laboratory renovation for a major university system located in the Midwest. Because it was a laboratory, target illuminance within the laboratory space was designed around a 50 footcandle (fc) average at the work plane.

Rather than designing separate egress lighting, it was more cost-effective to connect select light fixtures to a life safety power source than to provide separate dedicated emergency lighting fixtures.

Paired alongside the egress lighting circuit was the use of a UL 924, which allows the egress lighting fixtures to be controlled together with the normal lighting fixtures under normal power operations. Upon loss of normal power, the UL 924 devices trigger and override the on/off or dimmed controls that were in effect during the normal power operation.

4: Lighting illuminance rendering for a lab.

Courtesy: SmithGroup

In addition, the averaged maintained illuminance and the minimum illuminance along the egress pathways during emergency operation exceeded the requirements of International Building Code and NFPA 101: Life Safety Code requirement of 1 fc average and 0.1 fc minimum. The uniformity ratio between the maximum and minimum illuminance values also exceeded the requirement of 40:1.

FIGURE

BUILDING SOLUTIONS UILDING

Electrical commissioning may be optional or required depending on the code or certifications required by the project. The commissioning authority is a critical part of the design and construction team and should be engaged early in the design and construction process.

For a facility to operate initially effectively and safely and over its life span, it is important to consider post-occupancy commissioning and testing.

‘ For a facility to operate initially effectively and safely and over its life span, it is important to consider post-occupancy commissioning and testing. ’

There is a companion standard for post-occupancy testing called ANSI/NETA MTS 2015: Standard for Maintenance Testing Specifications for Electrical Power Equipment and Systems. According to the International Electrical Testing Association (NETA), this document “was developed for use by those responsible for the continued operation of existing electrical systems and equipment to guide them in specifying and performing the necessary tests to ensure that these systems and apparatus perform satisfactorily, minimizing downtime and maximizing life expectancy.” NETA MTS is an excellent resource for ongoing testing as part of a preventive maintenance program in a facility.

Egress lighting

One of the more code-driven aspects of electrical design is the performance of egress lighting during both normal and emergency power situations. A consulting engineer should reference NEC Article 700; International Building Code (IBC) Chapter 10, Section 1008; and NFPA 101 Chapter 7.8 to ensure full compliance of the egress lighting system with the various mandated codes.

NEC Article 700 Part IV indicates that emergency illumination — which includes egress lighting, illuminated exit signs and all other needed luminaires that are required to provide the required

illuminance along the egress pathway — must be connected to the emergency system of the electrical distribution. The source to supply power to the egress lighting must be compliant with the sources indicated in NEC Article 700.12.

Traditionally, the most common source of power supplying egress lighting is through a generator set, a lighting inverter system or batteries integral to the egress light fixtures. Other items of note as mentioned in NEC Article 700 Part IV include the requirement:

• Emergency lighting supplies automatically transfer from normal to emergency power during a normal power failure or outage.

• Emergency lighting must be designed so that a failure of a single device does not leave a room needing egress illumination in complete darkness.

NEC Article 700 Part IV details the requirements of controlling emergency lighting circuits. When using a dimmer or relay system, there must be an automatic override to the controls to select fixtures to provide the minimum emergency illumination required. This requirement is typically met with the use of a UL 924. Emergency light fixtures supplied normally by a normal branch circuit shall be allowed to switch over to an emergency branch circuit provided that the branch circuit does not exceed 20 amperes. This requirement is typically met with the use of a UL 1008 transfer switch as a branch circuit emergency lighting transfer switch.

The IBC Section 1008 details the locations where emergency illumination is required as well as the illumination levels required under both normal and emergency power. With some exceptions, egress illumination should be provided to the following spaces: Aisles, corridors, exit stairways and ramps, exit passageways, vestibules, electrical equipment rooms, fire command centers, fire pump rooms, generator rooms and public restrooms greater than 300 square feet.

It should be noted that illumination shall be provided along the path of travel from the exit discharge from each exit to the public way and the duration of the emergency power for illumination shall be not less than 90 minutes.

For illumination under normal power, the egress illumination shall not be less than 1 footcandle (fc) at the walking surface. For illumination under emergency power, the egress illumination shall not be less than an average of 1 fc with no points below 0.1 fc measured along the walking path. The emergency illumination levels shall be permitted to decline down to an average of 0.6 fc with a minimum of 0.06 fc at the end of the emergency lighting time duration of 90 minutes. In all conditions, a maximum-to-minimum illumination ratio of 40:1 shall not be exceeded.

NFPA 101 Section 7.8 also elaborates on the location requirements of egress lighting as well the required illumination levels. Most notably, NFPA 101 identifies the egress stairwells illuminance levels of a minimum illumination of at least 10 fc measured at the walking surface. The minimum illumination for floors and other walking surfaces shall be to values of at least 1 fc measured at the floor.

Walking surface requirements between the IBC and NFPA 101 differ in their requirements. It is up to the engineer of record to confirm with the

‘ Most notably, NFPA 101 identifies the egress stairwells illuminance levels of a minimum illumination of at least 10 fc measured at the walking surface. ’

authority having jurisdiction which code is applicable to the project. If the engineer is unable to receive an answer, they should refer to the more stringent of the two codes.

The electrical safety topics of arc flash mitigation, electrical rooms, testing and egress lighting are just a few key topics for consulting engineering to consider for electrical safety. Many more topics can be found in relevant codes and standards. cse

Brian Rener, PE, is Mission Critical Leader and Principal at SmithGroup. He is a member of the Consulting-Specifying Engineer editorial advisory board.

Jacob Clatanoff, PE, is Project Electrical Engineer at SmithGroup.

Unique safety and flexibility challenges in K-12 buildings

Engineers in K-12 school projects are prioritizing safety, health and flexibility by integrating emerging technologies, adapting learning environments and conducting thorough cost analyses.

CSE: What are the current trends in K-12 school projects?

Sean Holder: Safety and security in K-12 facilities are at the forefront of design considerations, with an emphasis in hardening facilities while still keeping them inviting and welcoming.

Steven Mrak: Student health and indoor air quality (IAQ) continue to be

at the forefront of owner and designer minds. With the IAQ push from the pandemic, additional attention is being paid to the quality of air, not just quantity. Measuring IAQ with air quality monitors including carbon dioxide, volatile organic compounds and particulate matter 2.5 particles can provide engineers and building operators with additional data that allows for more precise control over indoor IAQ within student occupied spaces. Logistically, while most equipment lead times have improved over the last year, emergency generators continue to be a lengthy wait. Districts and construction managers are looking for pre-purchase

packages that align better with summer construction schedules and inspections before fall occupancy.

Johnny P. Wood: We have been seeing many trends in K-12 buildings including security in schools, next generation learning, wellness, sustainability and the increased use of technology in the learning environment.

CSE: What future trends should engineers expect?

Keith Hammelman: A large trend seen right now is the focus on decarbonization in the built environment and how its impact on the design process. This will push us to use newly emerging technologies, those previously dismissed as not economically viable and technologies that have not yet been used in the K-12 environment. With the trend toward local regulations limiting operational carbon in the built environment, we are also going to see the payback calculations change to address this ever-changing landscape and the future costs of energy. We are going to see a push toward the integration of building systems into a single platform for building operations.

Sean Holder: Engineers should anticipate a rise in enhanced classroom and safety technologies integrated into the curriculum, necessitating strong information networks to support educators.

Steven Mrak: One trend I’m keeping an eye on is the almost “micro-managing” of IAQ and individual spaces. Artificial intelligence integration into building manage-

FIGURE 1: Proper maintenance clearance around boilers and pumps is a very important aspect of design. Courtesy: Dewberry

ment systems is coming, if not already being implemented. Beyond measuring IAQ with air quality monitors, room sensors can count the number of occupants within a space and can vary the outside air provided accordingly. Finding this balance point of IAQ and building energy use will always be on the mind of engineers and building operators. As different types of sensors become available and more widely used, the additional data provided can be used to operate our buildings most efficiently.

Johnny P. Wood: We anticipate to see continuing enhanced safety and security for students and staff, emphasis on energy savings to promote sustainability and maintain operating budgets and an increase in school/community joint-use facilities to help with construction capital.

CSE: As classroom needs change, how are you adapting learning environments for different uses and learning styles?

Keith Hammelman: Learning environments continue to evolve from the traditional lecture environment to a project-based environment, so engineers must continue to design flexible systems in the classroom. This includes integrating technology into the learning environment that allows for quick and seamless shifts in the technology used by both the teachers and students. By having the technology inte-

grated into the learning environment, we can allow for personalized educational experiences where students engage with the content in a variety of ways based on their learning style.

We are also seeing the continued push for flexibility in the project-based environment with the incorporation of "maker spaces" into more K-12 schools. These spaces are often challenging to design because of the variety of physical equipment that is used. There are also varying levels of power and exhaust requirements that may not be known during the early design process.

Steven Mrak: Our mechanical, electrical and plumbing (MEP) system designs should minimize distractions, while creating a more comfortable learning environment. Implementing lighting systems with color tuning functionality can help more sensitive students who may be learning with autism, ADHD or other neurodevelopmental conditions. Teachers can raise the color temperature during testing or activities that require alertness or high levels of attention, then the choice to lower the color temperature to help their students relax and calm down after strenuous learning engagement.

Johnny P. Wood: Increasing the number and locations of wireless access points allows flexibility and increased learning opportunities because more devices

Keith Hammelman, PE, Principal CannonDesign

Chicago Sean Holder, P.E., Principal Salas O'Brien

Houston Steven Mrak, PE, Vice President

Peter Basso Associates, Inc.

Troy, MI

Johnny P. Wood, PE, LEED AP BD+C, CxA, CPD, Associate Vice President, Regional Market Segement Leader Dewberry Raleigh, NC

can have connectivity. We have also been involved in many projects where moveable partitions are utilized throughout the building to create an individual classroom setting while also allowing the flexibility to open up into a larger assembly space. The HVAC system design should include individual temperature controls in each space, but also have the capacity and capability to handle larger groups of people when used as an assembly space.

cse

K-12 insights

uK-12 school projects are increasingly focused on integrating emerging technologies like artificial intelligence for managing indoor air quality and optimizing building energy use.

uEngineers are adapting learning environments to accommodate various learning styles by integrating flexible systems, personalized technology and sensory-friendly features such as color-tunable lighting.

FIGURE 2: Flexible classrooms allow teachers to maximize their space and adapt to specific learning styles. Courtesy: PBA

HEALTHIER MINDS.

Increase ventilation with RenewAire’s energy recovery technology and lower energy costs by up to 65%*

Publication Sales

VP Sales

Matt Waddell MWaddell@CFEMedia.com 312-961-6840

Sales Account Manager

Brian Gross BGross@CFEMedia.com 847-946-3668

Sales Account Manager

Dick Groth RGroth@CFEMedia.com 774-277-7266

Sales Account Manager

Diane Houghton DHoughton@cfemedia.com 508-298-9021

Sales Account Manager

Robert Levinger RLevinger@CFETechnology.com 516-209-8587

Sales Account Manager

Dean Morris 513-205-9975 DMorris@cfemedia.com

Sales Account Manager

Judy Pinsel 847-624-8418 JPinsel@cfemedia.com

Sales Account Manager

Mike Worley MWorley@CFEMedia.com 331-277-4733

Publication Services

Jim Langhenry, President, Co-Founder, CFE Media JLanghenry@CFEMedia.com

Steve Rourke, Co-Founder, CFE Media SRourke@CFEMedia.com

Patrick Lynch, CEO, CFE Media 847-452-1191, PLynch@cfetechnology.com

McKenzie Burns, Marketing-Events Manager MBurns@cfemedia.com

Courtney Murphy, Marketing and Events Manager CMurphy@cfemedia.com

Paul Brouch, Director of Operations 708-743-5278, PBrouch@CFEMedia.com

Rick Ellis, Audience Management Director 303-246-1250, REllis@CFEMedia.com

Michael Smith, Creative Director 630-779-8910, MSmith@CFEMedia.com

Michael Rotz, Print Production Manager 717-422-3622, mike.rotz@frycomm.com

Custom reprints, print/electronic: Paul Brouch, PBrouch@CFEMedia.com

Jeff Mungo, List Rental Account Director, DataAxle 402-836-6278, Jeff.Mungo@data-axle.com

Information: For a Media Kit or Editorial Calendar, go to www.controleng.com/mediainfo.

Marketing consultants: See ad index

Letters to the editor: Please e-mail us your opinions to MHoske@CFEMedia.com or fax 630-214-4504. Letters should include name, company, and address, and may be edited.

.C-4 . www .cummins .com

Hammond Power Solutions

Industrial Cybersecutiy Pulse . . . .19,

MEP Giants 2024

RenewAire LLC

.www .hammondpowersolutions .com

.WWW .ICSPULSE .COM

.www .csemag .com/giants

TM Technology and

Turn static files into dynamic content formats.

Create a flipbook
Issuu converts static files into: digital portfolios, online yearbooks, online catalogs, digital photo albums and more. Sign up and create your flipbook.