Wenger Architectural Data Book

Page 1


Music Education

A day doesn't go by without Wenger visiting with a band or orchestra director or talking with a choral director or meeting with a school administrator, architect or acoustician. These relationships have been going on for over 75 years and you can imagine what kind of insights we've gained into what music facilities need to succeed.

Performing Arts

Whatever the facility, from small black box theatres to large performing arts centers, Wenger Corporation provides innovative products designed specifically for the needs of rehearsal and performance – durable, versatile products that save time and labor.

Athletics

GearBoss® by Wenger is a complete, state-of-the-art system designed to help with all aspects of your athletic program. From lockers, to storage, to equipment transport and fund-raising solutions, GearBoss products save you time, space and effort. They're flexible and customizable so your system can change as your needs change. Plus, we'll work with you every step of the way to make sure you get exactly the right system – nothing more, nothing less.

01

Acoustical

Rehearsal

Overview Introduction

Five ways Wenger Corporation can help create the ideal facility:

Sound Isolation

Every Wenger Corporation Practice Room features guaranteed sound isolation — plus a modular design that makes it easy to relocate. Wenger Corporation acoustical doors are pre-engineered for consistent high-integrity installation.

Acoustical Shells and Treatments

Acoustically superior, aesthetically pleasing, surprisingly affordable designs. Wenger Corporation will support your own design efforts by providing layout and design drafting, engineering, and spec development.

Use Areas - Applications

Corporation Products

SoundLok® Sound-Isolation Practice Rooms

VAE® Technology (Virtual Acoustical Environment)

Acoustical Doors

Transcend® Active Acoustic System

Instrument Storage Systems

Robe and Uniform Storage

Music Storage

Acoustical Shell Enclosures

Acoustical Treatments

Dynamic Acoustic Panel Series, Transform® Motorized Acoustical Banner and Transcend Active Acoustic System

Orchestra Pit Filler/Stage Extensions

Staging and Seated Riser Systems

Portable ADA-Compliant Disability Ramp

Portable Audience Seating

Makeup Stations

GearBoss® High-Density Storage

GearBoss Shelving

Storage

Our experts will help you configure the most effective plan for instrument, music, media or athletic equipment storage. This free service helps you maximize space and minimize traffic congestion, and it helps save significant hours of layout time.

Platform Systems

Let us show you how to convert the auditorium orchestra pit into a stage extension or additional seating area. We can also offer options for portable stages or tiered audience seating that can be used throughout the facility. And all consultations are free.

Furniture

Wenger Corporation offers the most comprehensive line of music education furniture available, all attractively coordinated with contemporary colors and designs. Catalogs, color and fabric samples, and specs and layout information available.

Product specifications require special assistance. Please call your Wenger Corporation representative to discuss product options and project requirements, after which we will present you with a customized specification. You can also request product specifications on our website at wengercorp.com. We've designed our website for your total convenience.

Overview Introduction

Getting greener and greener together

Today we're more committed than ever to searching out new ways to lessen our impact on the environment while we help our customers do the same. Here are just some of our environmental initiatives.

Implementing the philosophy of the USGBC

The U.S. Green Building Council is a 501(c)(3) non-profit community of leaders working to make green buildings available to everyone within a generation.

As a member of the U.S. Green Building Council since 2009, Wenger Corporation is committed to fulfilling USGBC's mission to promote green building practices.

GREENGUARD Certification

The GREENGUARD Environmental Institute (GEI) is an industry-independent, not-for-profit organization that:

ƒ Oversees the GREENGUARD Certification programs

ƒ Establishes acceptable product standards for building materials, interior furnishings, cleaners, electronics and children's products

ƒ Recognized by LEED – IEQ Credit 4.5

Forest Stewardship Council® (FSC®)

Chain of Custody (COC) Certificate FSC is an independent, non-governmental, notfor-profit organization established to promote the responsible management of the world's forests. FSC provides internationally recognized standard-setting, trademark assurance and accreditation services to companies, organizations, and communities interested in responsible forestry.

The FSC label provides a credible link between responsible production and consumption of forest products, enabling consumers and businesses to make purchasing decisions that benefit people and the environment as well as providing ongoing business value.

ƒ Recognized by USGBC / LEED

ƒ MR Credit 7: Certified Wood

GREENGUARD Certified Products

ƒ AcoustiCabinets®

ƒ Bravo™ Music Stand

ƒ Chair Move & Store Carts

ƒ Classic 50® Music Stand

ƒ Conductor's / String Bassist / Percussionist Chairs

ƒ Conductor's Stand

ƒ Conductor's Equipment

ƒ Director's Stand

ƒ Flex® Conductor's Stand

ƒ Flex® Conductor's System

ƒ Flex® TechBridge

ƒ Folio Cabinets

ƒ GearBoss AirPro® Lockers

ƒ GearBoss High-Density Storage Cart Accessories

ƒ GearBoss II Products and Accessories

ƒ GearBoss Shelving

ƒ High Density Portable Audience Chairs

ƒ Lab Workstations

ƒ Music Library System

ƒ Music Stand CartsLarge and Small

ƒ Musician Chairs

ƒ Nota® Standard Chairs

ƒ Nota® Premier Chairs

ƒ OnBoard® Cargo Cart

ƒ OnBoard® Uniform Cart

ƒ ORFFGarage®

ƒ Percussion Workstation

ƒ Poster/Teaching Storage Cabinet

ƒ Preface® Music Stand

ƒ Preface® Conductor's Stand

ƒ Rack 'n Roll® Garment Rack

ƒ Rehearsal Resource Center

ƒ RoughNeck® Music Stand

ƒ Small Instrument Storage Cabinet

ƒ Stereo Workstation

ƒ Stringed Instrument Racks

ƒ Student Chairs

ƒ SoundLok® Sound-Isolation Rooms

ƒ TeacherTAXI®

ƒ Tuba/Sousaphone Mobile Storage Rack and Wall Bracket

ƒ UltraStor® Storage Products

ƒ Wardrobe Cabinet

Years of Experience Guarantees Years of Satisfaction. Wenger Corporation was founded in 1946 to provide innovative, high-quality products and solutions for music and theatre education, performance and athletic equipment storage and transport. We have spent over 75 years listening to what our customers need and then designing and developing durable, functional products to meet those needs — products that enhance any program and deliver what they promise year after year.

Overview Introduction

Expertise you should leverage early and often

The success of your new facility depends on your plan. Call Wenger Corporation before you start and we'll help you design your ideal environment, perfectly balancing budget, needs, space, and traffic like no other resource. For nearly seven decades we've helped thousands of educators and administrators get the most out of every dollar for new construction, renovations, additions, and improvements. In fact, no other company in the world has spent more time with music educators or studied more types of music facilities.

Your Wenger Corporation representative is in tune with music performance and education and will help you make smart, costeffective decisions on everything from product selection to space allocation to stretching a tight budget. You'll also benefit from our close working relationship with architects, ensuring your satisfaction by providing them with a trusted resource for the complexities of rehearsal-space and performance-space design.

Please keep in mind we can also collaborate with your committee and give you the support and resources you need to persuasively present your plan. It's also important to know that from concept to completion, putting Wenger Corporation experience and expertise to work doesn't cost you a dime.

The planning process for these types of facilities can vary from project to project. Fortunately every process follows a timeline of similar steps that we can help you prepare for. From the passing of a school bond to design, bidding and construction, Wenger Corporation can help you be ready every step of the way. We can share our expertise and experience in this process to help you make yours a success.

Planning is easier with our free Planning Guides:

Wenger Corporation Planning Guides

Everything you need to understand the new construction process and what you can do to most effectively organize your objectives to make sure your new music facility is the best it can be.

Wenger Corporation Athletic Space Planning Guide

This is an ideal resource to help athletic directors, school administrators, coaches, equipment planners and architects plan new facilities or improve the space usage within existing ones.

Wenger Corporation Representatives also offer a presentation that addresses "Design Considerations for Secondary School Music Facilities". Wenger Corporation is a Registered Provider with The American Institute of Architects Continuing Education Systems. Credit earned on completion of this program will be reported to CES Records for AIA members. Certificates of Completion for non-AIA members are available.

Call for our free literature today.

VAE® Rehearsal

Wenger Corporation's VAE technology for rehearsal rooms uses highly advanced active acoustics to simulate nine different acoustic environmentsat the touch of a button. We can custom program any of the nine presets to simulate other acoustic environments of your choosing, even one that simulates your school's auditorium.

SoundLok® Sound-Isolation Rooms and VAE® Technology

Wenger Corporation practice rooms provide guaranteed sound isolation in a modular design that is easy to relocate. They also offer a level of performance and flexibility that is impossible to achieve with built-in rooms. SoundLok Practice Rooms with VAE technology enhances music education by simulating a variety of distinct practice and performance environments.

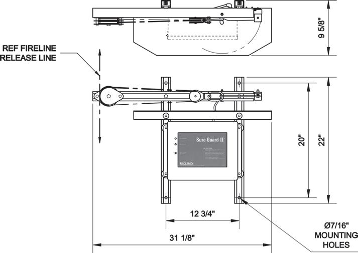
Acoustical Doors

Wenger Corporation Acoustical Doors provide superior sound isolation that's easy to install. Our doors accommodate almost any wall thickness, so you don't have to worry about installation compromises that can ruin sound isolation. Many models are available with a one-hour fire rating.

Rehearsal Room Acoustics

Wenger Corporation acoustical panels optimize sound by providing proper sound absorption and diffusion for rehearsal rooms to reduce loudness and produce the sound quality and sense of ensemble required for effective music education. Now available in a tunable design to accommodate both choral and instrument groups.

Instrument Storage Systems

Wenger Corporation storage solutions are built with superior hardware, stronger shelves, more durable laminates and advanced construction techniques. Wenger Corporation systems are engineered to optimize traffic flow and reduce congestion – and a variety of color combinations blend easily with any music room décor.

Robe and Uniform Storage

Innovative engineering and superior construction practices combine to create systems that are as functional as they are unique. Wenger Corporation has paid special attention to proper airflow and ventilation, as well as storage solutions that deter theft or vandalism.

Music Storage

Wenger Corporation music storage systems make music much more accessible and easy to locate – and it does this in only a fraction of the space compared to standard file cabinets. Wenger Corporation systems are built for reliability and durability with a much cleaner, more organized appearance that lasts for years.

Media Storage

Every facility's storage needs are different, so a cookie-cutter storage solution just won't do. Wenger Corporation's new mobile and fixed storage cabinets are configurable –giving you the flexibility to make the most of your storage space. Add drawers, shelves, hooks, baskets and more.

Virtual Acoustical Environments® (VAE)

Data Book

Virtual Acoustical Environments

Practice, practice, practice. You can say it with dread or – after a single session with VAE technology – you can say it with passion. It's true. The acoustical environment is so stunning that it is inspiring people to practice like never before.

And what could be better than practicing in a variety of performance environments? That's what you can do with the preset acoustical simulations. And when you want to switch to a different acoustical setting, just push a button.

Wenger's VAE Rehearsal System uses highly advanced active acoustics to simulate nine different acoustic environmentsat the touch of a button. We can custom program any of the nine presets to simulate other acoustic environments of your choosing, even one that simulates your school's auditorium.

A Wenger practice room with VAE technology accelerates the development of critical skills such as articulation, phrasing, intonation, and tone production. Wenger practice rooms with VAE technology provide real-time recording and playback of nine sessions for two hours of total length. An optional foot switch gives you hands-free control, anywhere in the room. You can also upload or download recorded programs through a USB connection.

And Wenger practice rooms with VAE technology provide exceptional sound isolation in a classic, sophisticated design that's also modular, so you can take it with you, whether you move to another room or building.

VAE Technology For Acoustical Simulations

ƒ Nine virtual acoustical simulations of performance spaces

ƒ Simple push-button operation with recording/playback control

ƒ Includes eight speakers, two microphones, control panel, left and right channel processing components, and cables

Product Details

ƒ State-of-the-art acoustical simulation package is pre-wired into rehearsal rooms or practice rooms that are modular and relocatable

ƒ While our practice rooms deliver superior sound isolation, these are specially equipped with preset acoustical simulations: - Practice Room - Arena - Baroque Room - Cathedral - Small Auditorium - Medium Auditorium - Large Auditorium - Medium Recital Hall - Large Recital Hall - Recording/Playback capabilities. - Custom environments available with VAE Rehearsal System

Imagine practicing in a recital hall one minute, a concert hall the next. That's the advantage of Wenger VAE technology.

Capable of record and playback of nine sessions for three hours of total length.

Presets for nine distinct virtual acoustic environments.

SoundLok and VAE Studio Panel

Capable of record and playback of nine sessions for two hours of total length.

Presets for nine distinct virtual acoustic environments.

Foot control connection for hands-free operation.

USB connection for uploading and downloading recorded programs.

Mini stereo output jack for real-time recording.

Music Rehearsal and Practice Rooms

Virtual Acoustical Environments® (VAE)

Application Information

VAE® Rehearsal System

School auditoriums are heavily scheduled places. So trying to find time for your choral and instrumental groups to practice on stage can be difficult. The same goes when you are preparing for a special occasion in a large performance venue. Practicing in the dry environment of your rehearsal room can be limiting – unless you have VAE Rehearsal.

Easing the transition from the rehearsal to the performance environment allows students to focus more on the skills and habits they've developed in rehearsal and less on the unfamiliar performance space. VAE Rehearsal comes with the same capabilities as all our VAE systems and includes the ability to be programmed to mirror the acoustics of your own auditorium.

General Information

ƒ Virtual Acoustics Environment technology designed for music rehearsal rooms that allow musicians to hear themselves in a variety of performance environments

ƒ System comes with eight pre-set environments: Baroque Room, Medium Recital Hall, Large Recital Hall, Small Auditorium, Medium Auditorium, Large Auditorium, Cathedral and Sports Arena

ƒ Includes one customizable setting of specific performance space determined by customer

ƒ Creates a space where performers can rehearse in the acoustics of performance areas when the actual performance space is not available

ƒ A practical acoustic lab where musicians can study the relationship between their music and the spaces in which they perform

ƒ System includes record/playback feature with immediate feedback, which provides effective teaching tool to train students in the relationship between the acoustical environment and playing/singing technique

ƒ Stimulates creativity and encourages practice by relieving the tedium of playing/singing in a "dry" space

ƒ Ability to upload accompaniments and download recording sessions

ƒ Complete turn-key installation, including all electrical components, system tuning, and wiring/mounting of all speakers and microphones; also includes installation of acoustical absorber panels and NRC rated .95 acoustical ceiling tiles if needed

ƒ System includes lockable, front and rear access, portable or wall-mounted component rack for all system components, including VAE digital signal processor, power sequencer, amplifiers and ventilation fan

ƒ Five-year warranty

Music Rehearsal and Practice Rooms

Virtual Acoustical Environments® (VAE)

Application Information

VAE® Rehearsal Panel

System Components

- Harman Amplifiers

- Channels: 8

- Sensitivity: 1.4V (26db gain)

- Rated power output: 125W per channel into 8/4 ohms

- Signal to noise ratio: (below rated power 20Hz to 20Hz, A-weighted): 110 db

- Dimensions: 19"w x 5.25"h x 16.25"d (482 x 133 x 412 mm)

- Weight: 36 lb (16.3 kg)

Harman In-Wall Speakers

- Frequency response: (-10db) half-space wall: 30 – 20kHz

- Sensitivity: 90db SPL, 1W, 1m

- Continuous program power capacity: 120 watts

- Designed for mounting in stud walls, optional stud wall frame available

- Dimensions: 10.1"w x 13.1"h x 4.3"d (257 x 333 x 109 mm)

- Weight: 4.5 lb (2.0 kg)

Harman Wall-Mount Speakers

- Frequency response: (-10db) half-space wall: 45 Hz – 16 kHz

- Sensitivity: 91 db, 1W, 1m

- Continuous program power capacity: 240 watts

- Wall mounting brackets included

- Ball-mount adjustment

- Dimensions: 11.1"w x 15.2"h x 8.6"d (282 x 386 x 219 mm)

- Weight: 13.5 lb (6.1 kg)

Harman Ceiling Speakers

- Frequency response: (-10db) half-space wall: 70 - 20kHz

- Sensitivity: 89db SPL, 1W, 1m

- Continuous program power capacity: 150 watts

- Grille, backcan, and tile rails included

- 10" diameter (254 mm)

- Weight: 12 lb (5.4 kg)

Harman Microphone

- Transducer type: pre-polarized condenser microphone

- Frequency response: 20 to 20,000 Hz

- Signal-to-noise ratio: A-weighted: 77db

- Maximum sound pressure level for 1.0% THD: 132db SPL

Wenger VAE Processor

- Built-in pre-amplification and equalization Microphone inputs: 2 Female XLR Input Impedance: 3000 Ohms Balanced

- Phantom Power: +24 volt

- Frequency Response: 20 to 20kHz within 1 db

- THD+N: 0.007%

- Sample Rate: 44.1 kHz

- Dynamic Range: A /D > 100dB, 24 Bit resolution D/A > 100dB, 24 Bit resolution

- Record Output: 1/8" TRS jack Power Outputs: Four 1/4" TRS and two 4-pin EURO (6 mm pitch)

- Output Impedance: 4/8/16 ohms

- Remote control connector: 10-pin Molex type 42404

- USB type B socket: For downloading recorded files

- Compact Flash socket: For storing recorded sessions

- Internal 15 Band 2/3 octave Equalizer

- Internal pink noise generator and real time analyzer

- Power Requirements: 100-120 volts or 220-240 volts, 50/60 Hz, 160 Watts typical

- Operating Temperature: 0 to 40 degrees C

- Humidity: 95% max non-condensing

- Dimensions: 17.4"w x 3.5"h x 11.5"d (442 x 89 x 292 mm) wide (483 mm)

- Weight: 17.5 lb (7.9 kg)

Wenger VAE Control Panel

- Wired, 18 button

- 50' maximum cord for connection to VAE Processor

- Digital, backlit display

- Option tripod stand available

- Dimensions:

5.5"w x 8.6"h x 7.25"d (140 x 218 x 184 mm)

- Weight: 2.0 lb (0.9 kg)

Music Rehearsal and Practice Rooms

Virtual Acoustical Environments® (VAE)

Application Information

SoundLok® and Studio VAE® Panel

General Information

ƒ A sound-isolation practice room equipped with patented digital signal processing that allows musicians to hear themselves in a variety of acoustical environments

ƒ Traditional dry practice room (system off) with nine preset acoustical environments: Practice Room, Arena, Baroque Hall, Cathedral, Small Auditorium, Medium Auditorium, Large Auditorium, Medium Recital Hall, and Large Recital Hall

ƒ Accelerates development of articulation, intonation, and control in a variety of environments from very "dry" to very "live"

ƒ Effective teaching/coaching studio to train students in the relationship between the acoustical environment and instrumental and choral technique

ƒ Control panel: one 18-button control panel. Nine acoustical environments, volume up and down, system mute (OFF), stop, record, play, rewind, fast forward and select. UL® Listed

ƒ Does not require any technical expertise to operate the room — as easy as operating a TV remote control

General Specifications

ƒ Dimensions: VAE is available in several sized rooms ranging from 5'8" x 5'8" to 18'2" x 19'5" (1727 x 1727 mm to 5537 x 5918 mm)

ƒ Interior ceiling height ranges from 7'6" (2286 mm) to 10'0" (3048 mm) in 6" (152. 4 mm) increments

ƒ Weight: 2,200 lb to 4,150 lb (998 to 1882 kg) depending upon room size

ƒ ETL Classified room wiring system

ƒ Surfaces: powder-coat painted. Color chosen from manufacturer's standard colors

ƒ Lighting: florescent lighting with electronic ballast

ƒ Sound isolation: NIC = 41 Hallway to room NIC = 63 Room to room

ƒ Sound isolation door: STC = 46, with a full window

ƒ Internal fan ventilation system: NC 25

ƒ Direct connection HVAC (optional): acoustically isolated HVAC connections of STC 45

ƒ Wall and ceiling panels flame spread <25 and smoke developed <450

Control System

ƒ Lighting, room ventilation fans and master power for active acoustical system each individually controlled by an on/off toggle switch. UL® Classified, CSA-approved

ƒ Optional occupancy sensor lighting control

Practice Rooms With VAE Technology Electronics

ƒ Power consumption (steady state)

Nominal 500mA @ 120V, 60Hz

Maximum surge at turn on: 20A @ 2 msec (time to steady state: 10 msec)

Complete system details are available in the product specification. Contact Wenger Corporation for more information.

Music Rehearsal and Practice Rooms

Virtual Acoustical Environments® (VAE)

Application Information

Studio VAE® System

Studio VAE is an affordable, easy-to-install package for your own small practice or teaching space. The Studio system components offer all the same features and technology of the VAE Practice in a kit that can be installed in just about any room less than 200 square feet.

Wenger's Studio VAE allows you to convert an existing faculty studio or built-in practice room to one that incorporates the acoustic simulation capabilities of our VAE technology.

While quality sound isolation rooms like SoundLok are recommended, when new installation or construction are unfeasible, Studio VAE is a great option. Your students will be amazed, they will be inspired to practice more!

General Information

ƒ Ideal for practice rooms, private teaching studios or any office where music lessons are given

ƒ Nine acoustical performance environments available; Practice Room, Baroque Room, Medium Recital Hall, Large Recital Hall, Small Auditorium, Medium Auditorium, Large Auditorium, Cathedral and Arena

ƒ Record/Playback feature allows musician to get immediate feedback during practice session, and allows the instructor to use in development of articulation, intonation, and other areas of music pedagogy

ƒ Ability to record up to nine sessions (two hours of total record time)

ƒ Includes a system of speakers located in each corner of the room that blends aesthetically with the room (eight total speakers, two in each speaker box)

ƒ Provides a sense of envelopment that allows musicians to hear themselves more clearly

ƒ Two microphones placed on opposite walls and hidden from view in absorber panel

ƒ Easy-to-use control panel allows for quick selection of acoustic environment, volume adjustment and navigation of recording/playback function

ƒ Microphone panels and speaker grill covers are provided in black Other fabric color options are available (additional fees may apply)

ƒ Installation includes all wiring, flex conduit, connectors and fasteners Wire molding will be provided to cover any surface mounted cable

ƒ Available for spaces up to 200 ft2 (18.6 m2)

ƒ System must be installed and calibrated by Wenger Corporation

ƒ Five-year warranty

- VAE Digital Processor

- Four speaker enclosures with fabric grill covers

- Two microphone wall absorber panels 1' x 2' x 3" thick (305 x 610 x 76 mm)

- VAE Control Panel

- Control Panel cable, speaker wires, cable connectors and wire mold kit

SoundLok® Sound-Isolation Rooms

Data Book

Sound-Isolation Practice Rooms

Wenger Corporation pioneered sound isolation in practice rooms, and we continue to use the most advanced technologies to set new standards. More often than not, the built-in practice rooms we see simply do not work. They leak sound in and out, and the internal acoustics are often among the worst in the entire building. For built-in rooms to work, the high level of detail in the design leaves too many areas to chance during the construction phase. Often a small compromise or cut corner can render these rooms unusable for practice.

Wenger guarantees the performance of our soundisolation practice rooms. Wenger rooms also offer a clean, attractive look that you can coordinate to your space. And each room is modular – so it can be moved down the hall as your facility needs change, and can be re-sized in the future.

Modular, relocatable practice rooms with superior sound isolation.

Wall Panel, Ceiling Panel & Ceiling Trim Colors
Warm Sand Vanilla Oyster
Door & Floor Rail Colors
Charcoal Grey Warm Beige

Music Rehearsal and Practice Rooms

SoundLok® Sound-Isolation Rooms

Application Information

How can a student be expected to practice the flute when the sound of the trumpet next door is blasting through the walls and leaking through the vents? Or how can a French horn player improve tone when the internal acoustics in the practice room are muddy or excessively bright?

Wenger Corporation pioneered sound isolation in practice rooms, and we continue to use the most advanced technologies to set new standards. That's why we can guarantee the performance of our sound-isolation practice rooms.

Our modular rooms offer a clean, attractive look with closure panels for a seamless installation. And each room is relocatable — so you can move it down the hall or across town as your facility needs change.

Usage

Sound-isolated individual or group practice rooms and teaching studios.

Performance Requirements

ƒ Clean, professional 4" (102 mm) thick steel wall and 6" (152 mm) thick ceiling panels are filled with high-grade acoustical insulation

ƒ Rails, channels, and corner pieces interlock panels at the floor and ceiling with double-seated-gasketed seams

ƒ 3' (914 mm) wide door with glass-panel allows easy monitoring, personal security, and inviting ambiance

ƒ Advanced fan ventilation system supplies complete fresh air exchange every 1.5 to 2.5 minutes

For direct-connect HVAC systems, contact your Wenger Corporation representative

ƒ Built-in LED lighting to minimize power consumption Provides 80 fc at 36" (914 mm) above the floor for a 7'6" (2286 mm) high room

ƒ ETL Classified room wiring system

ƒ UL GREENGUARD Certified - Product certified for low chemical emissions: ul.com/gg - UL 2818

ƒ Five-year warranty

Options

ƒ Room heights (interior) available in 6" (152 mm) increments from 7'6" to 10' (2286 to 3048 mm)

ƒ Door options: 3' (914 mm) standard, 4' (1219 mm) door for large instruments, double door for grand piano

ƒ Vertical window panels available

ƒ Horizontal broadcast application windows available in 60" (1524 mm) and 90" (2286 mm) lengths

ƒ Horizontal and vertical closure panels available to create a complete, built-in look for side-by-side installations

ƒ Choice of fan unit or direct HVAC connection to building system

ƒ Extra-capacity raceway for communications and network cabling

ƒ Floating floor for even greater sound isolation

ƒ Available in three exterior colors

Music Rehearsal and Practice Rooms

SoundLok® Sound-Isolation Rooms

Application Information

General Information

ƒ Practice rooms may be pre-wired to be easily upgraded to Virtual Acoustic Environments® (VAE)

ƒ The modular design allows easy relocation, size changes and reconfiguring as needs change

General Specifications

ƒ Many size options accommodate one performer or ensembles up to twenty performers

ƒ Sizes range from 5'8" x 4'5" to 19'5" x 25'8" (1727 x 1346 mm to 5918 x 7823 mm) VAE upgrade is possible on practice rooms with areas up to 328 square feet (30.5 square meters)

ƒ Internal ceiling height ranges from 7'6" to 10'0" (2286 to 3048 mm) in 6" (152 mm) increments

ƒ ETL Classified room wiring system

ƒ Surfaces: powder-coat paint

ƒ Sound-isolating ventilation: Acoustically isolated HVAC connection. Data available upon request

Sound-Isolation and Internal Acoustics

ƒ Ideal acoustical environment for uninterrupted instruction, rehearsal, recording, etc

ƒ Acoustically dry environment accurately reflects sound

ƒ Rated: NIC 41 exterior to interior; NIC 63 interior to interior of adjacent module

ƒ Ambient noise at center of module: NIC 25 with lighting and ventilation systems "on" (with built-in fans)

ƒ Acoustically seals to floor without attachments, adhesives, or caulking

Construction

ƒ Wall and ceiling panels flame spread <25 and smoke developed <450

ƒ Wall and ceiling panels feature epoxy powder-baked finish

ƒ Hardware and electrical trim finish is satin chrome or painted to match

ƒ Wall frames are 14-gauge steel channels and ceiling frames are 16-gauge steel channels

ƒ Floor frame compensates for up to 3/4" (19 mm) variation in floor surface

ƒ Includes 1-1/4" (32 mm) neoprene pad under the frame to isolate floor vibration

ƒ Interior surfaces are 22-gauge perforated or solid steel; exterior surface is 16-gauge solid steel

ƒ Panel perimeters feature continuous acoustical gaskets and alignment locks

ƒ Doors are pre-hung on 36" (914 mm) frame for either rightor left-hand swing, either in-swing- or out-swing

ƒ Doors feature a double acoustical seal with a cam type hinge and an acoustically-engineered window

ƒ Corner sections with built-in speaker enclosures and wiring included for VAE and upgradeable rooms

ƒ Wall panels with built-in microphone mounts with wiring included for VAE and upgradeable rooms

Mechanical Systems

ƒ Built-in components and wiring to allow for easy upgrade to VAE rooms without complete module disassembly

ƒ Built-in LED lighting to minimize power consumption Provides 80 fc at 36" (914 mm) above the floor for a 7'6" (2286 mm) high room

ƒ Room has an ETL Classified wiring system. Power panel includes one quad receptacle, light and/or air switches and 20' (6096 mm) power cable. Larger rooms have a communications panel that includes one quad receptacle and four double junction boxes for customer-installed fire alarms, clocks, phone lines, ect. Requires wiring a manufacturer supplied connector by a local electrician.

ƒ Built-in fan system typically exchanges ambient surrounding air every 1.5 to 2 minutes

ƒ Module ventilation ducting features acoustically isolating construction

Music Rehearsal and Practice Rooms

SoundLok® Sound-Isolation Rooms

Application Information

Layout Requirements

This information should help you incorporate sound-isolation practice rooms with or without VAE Technology into your plans. If you have questions or require additional information, please call us.

ƒ A building ceiling height of 8'9" (2667 mm) is required for non-upgradeable rooms with 7'6" (2286 mm) interior ceiling height and integral fan ventilation system

ƒ A ceiling height of 9'0" (2743.2 mm) is required for upgradeable or VAE rooms with 7'6" (2286 mm) interior ceiling height and integral fan ventilation system

ƒ A building ceiling height of 10'7" (3226 mm) is required for HVAC rooms with 7'6" (2286 mm) interior ceiling height connected to the building ventilation system. This allows 2' (610 mm) above the 8" (203 mm) diameter HVAC adapter at the top of the room for connection of flex duct supplied by others.

ƒ For maximum performance, spacing of 12" (305 mm) between rooms of space is recommended

ƒ Installations not on grade level or less than 5" (127 mm) of concrete floor that is above ground level should include optional floor system to control structure-borne sound. When floors are used, contact Wenger regarding ADA compliance

ƒ Refer to room weights for structural loading requirements

ƒ Floor must be level within 3/4" (19 mm) over the entire perimeter of the room

Flexibility Factors

ƒ The floor rail has 3/4" (19 mm) of adjustability for irregularities in the floor

ƒ Panel changeability:

The panel arrangements shown in the typical layout drawings are for normal music practice usage. Because of the component design, each panel (i.e., door, power) can be positioned at any point around the perimeter of the room. Each room can be ordered with any optional combination of panels.

ƒ Door available with right-hand (RH), right-hand reverse (RHR) left-hand (LH), left-hand reverse (LHR) swings

ƒ Interior ceiling height options from 7'6" to 10'0" (2286 to 3048 mm) in 6" (152 mm) increments are available for all rooms. Building ceiling height requirements rise accordingly.

Site Prep Requirements

ƒ Building wall and floor finishes completed to specification by others

ƒ Building electrical system completed and Wenger Corporation supplied connector installed by others

ƒ Provide dedicated electrical service for each room's 20' (6096 mm) power input cable

ƒ HVAC connections to each 8" (203 mm) diameter inlet and outlet flange is to be made with flex ducting supplied by others. Rooms with optional powered fan ventilation systems require no external ducting.

Installation Requirements

ƒ Wenger Corporation supplied closure panels required

ƒ North American electrical requirements: 120V, 20A, 60Hz for each room; dedicated circuit required; contact Wenger Corporation for international requirements

ƒ Ambient temperature for VAE system 32°F to 95°F (0°C to 35°C)

ƒ Installation by Wenger Corporation is standard

ƒ See drawings for clearance requirements

ƒ Wenger Corporation practice rooms including rooms with VAE Technology feature UL® classified electrical systems

Music Rehearsal and Practice Rooms

SoundLok® Sound-Isolation Rooms

Typical Drawings

Options

ƒ Communication panel and large box communication panel provide junction boxes for customer installed phone lines, data connections, additional electrical outlets and low-voltage studio communications, etc

ƒ Sound-isolating floating floor system recommended when building floor is less than 5" (127 mm) thick

ƒ Custom options include the following: one-way glass, double doors and track ready light panels

ƒ 4' (1219 mm) door and 6' (1828.8 mm) double door to accommodate percussion instruments such as a large timpani

ƒ Window panel viewable window area: 30" (762 mm) panel is 23-5/8" wide x 75-5/8" high (600 x 1921 mm)

ƒ Horizontal broadcast window: 60" (1524 mm) and 90" (2286 mm) wide

Optional Communications Panel
Optional Horizontal Window

Music Rehearsal and Practice Rooms

SoundLok® Sound-Isolation Rooms

Typical Drawings

Options

ƒ Closure panels provide a clean, built-in look for side-by-side practice room installations. Maximum 24" (610 mm) vertical width and maximum 24" (610 mm) horizontal height (horizontal closures are required for practice rooms that have VAE technology).

Optional Closure Panels

Horizontal Closure
Vertical Closure
Vertical Closure
Vertical Closure

Music Rehearsal and Practice Rooms

SoundLok® Sound-Isolation Rooms

Typical Drawings

Options

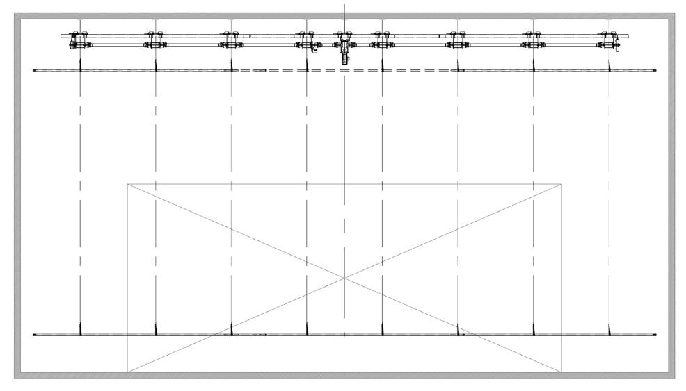
Typical Module — with built-in fans

ƒ Wenger Corporation employs a modular concept in room design. Walls are constructed from interchangeable 30" (762 mm) wide panels. Room layout can vary from the view shown; wall, door, window, electrical and other optional panels can be arranged to customize the room.

ƒ Wenger Corporation will design each room for optimum placement of doors, windows, electrical panels, lights and fan/vent panels.

ƒ Recommended room to room or room to wall spacing is 12" (305 mm). Closer spacing may be possible but must be reviewed by Wenger Corporation for interference, access and ventilation issues.

ƒ Windows in adjacent rooms can be protected from glare and dust by an optional shadow box installed around the periphery of the windows.

All values can be increased in 6" (152 mm) increments for taller rooms up to 10' (3048 mm) interior height.

Music Rehearsal and Practice Rooms

SoundLok® Sound-Isolation Rooms

Typical Drawings

Options

Typical Module — with direct connect HVAC

ƒ Wenger Corporation employs a modular concept in room design. Walls are constructed from interchangeable panels. Room layout can vary from the view shown; wall, door, window, electrical and other optional panels can be arranged to customize the room.

ƒ Wenger Corporation will design each room for optimum placement of doors, windows, electrical panels, lights and ceiling HVAC panels.

ƒ Recommended room to room or room to wall spacing is 12" (305 mm). Closer spacing may be possible but must be reviewed by Wenger Corporation for interference, access and ventilation issues.

ƒ Windows in adjacent rooms can be protected from glare and dust by an optional shadow box installed around the periphery of the windows.

ƒ Larger rooms will have ceiling-mounted HVAC vents used in pairs.

All values can be increased in 6" (152 mm) increments for taller rooms up to 10' (3048 mm) interior height.

Music Rehearsal and Practice Rooms

SoundLok® Sound-Isolation Rooms

Application Information

1-2 Musicians
Upright Piano or 3-4 Musicians

Music Rehearsal and Practice Rooms

SoundLok® Sound-Isolation Rooms

Application Information

All values are for standard height rooms, 7'6" (2286 mm).

Indicates room sizes that cannot accommodate practice rooms with VAE technology.

+ Includes lights, fans (if applicable). For virtual acoustics add 1-amp if applicable. Each power panel is to have it's own dedicated 20 amp circuit. All rooms have one power panel. Larger rooms may have one additional power panel. Extra communications panel included in larger rooms:

- One included in rooms larger than 125 ft² (11.6 m²).

- Two included in rooms larger than 250 ft² (23.2 m²).

- Three included in rooms larger than 375 ft² (34.8 m²).

" Integral fan panel and vent panel pairs provide approximately 120 CFM airflow, each. Supply air is drawn at ambient conditions from the exterior of the room at ceiling level. Larger rooms will have more than one fan/vent pair.

ü Air flow requirement based on occupancy, room volume and electrical heat load. Cooling airflow to be 55°F (13°C) Room exterior ambient to be maintained at 75°F (24°C). In larger rooms, airflow will be divided between multiple supply and exhaust pairs.

Pressure drop per supply/exhaust pair: 0.10"WG at 120 CFM maximum. For additional electrical devices, add 15 CFM for each 100 watts of power dissipated in the room. Individual room thermostatic control is recommended.

Grand Piano or 5-6 Musicians

Music Rehearsal and Practice Rooms

SoundLok® Sound-Isolation Rooms

Application Information

Percussion or 7-8 Musicians

9-10 Musicians

Music Rehearsal and Practice Rooms

SoundLok® Sound-Isolation Rooms

Application Information

All values are for standard height rooms, 7'6" (2286 mm).

Indicates room sizes that cannot accommodate practice rooms with VAE technology.

+ Includes lights, fans (if applicable). For virtual acoustics add 1-amp if applicable. Each power panel is to have it's own dedicated 20 amp circuit. All rooms have one power panel. Larger rooms may have one additional power panel. Extra communications panel included in larger rooms:

- One included in rooms larger than 125 ft² (11.6 m²).

- Two included in rooms larger than 250 ft² (23.2 m²).

- Three included in rooms larger than 375 ft² (34.8 m²).

" Integral fan panel and vent panel pairs provide approximately 120 CFM airflow, each. Supply air is drawn at ambient conditions from the exterior of the room at ceiling level. Larger rooms will have more than one fan/vent pair.

ü Air flow requirement based on occupancy, room volume and electrical heat load. Cooling airflow to be 55°F (13°C)

Room exterior ambient to be maintained at 75°F (24°C). In larger rooms, airflow will be divided between multiple supply and exhaust pairs.

Pressure drop per supply/exhaust pair: 0.10"WG at 120 CFM maximum. For additional electrical devices, add 15 CFM for each 100 watts of power dissipated in the room. Individual room thermostatic control is recommended.

Music Rehearsal and Practice Rooms

SoundLok® Sound-Isolation Rooms

Application Information

Music Rehearsal and Practice Rooms

SoundLok® Sound-Isolation Rooms

Application Information

Ensembles of 19-20 Musicians

All values are for standard height rooms, 7'6" (2286 mm).

Indicates room sizes that cannot accommodate practice rooms with VAE technology.

+ Includes lights, fans (if applicable). For virtual acoustics add 1-amp if applicable. Each power panel is to have it's own dedicated 20 amp circuit. All rooms have one power panel. Larger rooms may have one additional power panel. Extra communications panel included in larger rooms:

- One included in rooms larger than 125 ft² (11.6 m²).

- Two included in rooms larger than 250 ft² (23.2 m²).

- Three included in rooms larger than 375 ft² (34.8 m²).

" Integral fan panel and vent panel pairs provide approximately 120 CFM airflow, each. Supply air is drawn at ambient conditions from the exterior of the room at ceiling level. Larger rooms will have more than one fan/vent pair.

ü Air flow requirement based on occupancy, room volume and electrical heat load. Cooling airflow to be 55°F (13°C) Room exterior ambient to be maintained at 75°F (24°C). In larger rooms, airflow will be divided between multiple supply and exhaust pairs.

Pressure drop per supply/exhaust pair: 0.10"WG at 120 CFM maximum. For additional electrical devices, add 15 CFM for each 100 watts of power dissipated in the room.

Individual room thermostatic control is recommended.

Music Rehearsal and Practice Rooms

SoundLok® Sound-Isolation Rooms

Typical Drawings

Wall Panels

4" (102 mm) thick by 30" (762 mm) wide, and filled with sound-absorbing material. Interior surfaces are perforated or sound-reflecting.

Ceiling Panels

6" (152 mm) thick by 15" (381 mm) wide in modular lengths. Panels are shipped with light fixtures attached and wired. Sprinkler system knock-out holes standard in all rooms.

Adjustable Wall Frame

4-1/2" x 3-5/8" (114 x 92 mm) in modular lengths. A 1-1/4" (32 mm) thick neoprene pad isolates the module from the floor, thereby reducing sound transmission through the building structure. Frame allows for up to 3/4" (19 mm) adjustment for uneven floors.

Optional VAE Electronics Rack

20-amp Electrical Service

The rooms are designed with an integrated ETL-Classified room wiring system. Distribution connector supplied by Wenger Corporation. Connector to be installed by a certified electrician.

Adjustable Sweep Seal

Located at the door base to provide a positive sound barrier. Low profile threshold 1/2" (13 mm) allows easy access. Double gasket (compression and magnetic) at head and side jambs.

Built-in Fans

Accessible from inside practice rooms through a removable panel cover for cleaning or replacement.

Or

Optional VAE Electronics Rack

Power Panel and Communications Panel

The power panel can be configured to include outlets, VAE Technology controls, controls for lights and fans. Optional Communications Panel available. Contact Wenger Corporation for details.

Classroom-Function Door Lever Set

Additional door lever sets are available, contact Wenger for detailed lever set information.

HVAC Direct Connection

Acoustically isolated HVAC connections.

Music Rehearsal and Practice Rooms

SoundLok® Sound-Isolation Rooms

Typical Drawings

Doors

Windows

Out-Swing

Note: Cable raceways are available in an offset or straight feed through for back-to-back installations.

Music Rehearsal and Practice Rooms

SoundLok® Sound-Isolation Rooms

Typical Drawings

Typical wall cross section of module on existing floor finished by others

1/8" (3 mm)

Acoustical Gasket

Leveling Screw

1-1/4" (32 mm)

Gasketing Seal

Floor Finish

Minimum of 5" (127 mm) thick floor recommended

Note: Floor needs to be level within 3/4" (19 mm) over the perimeter of the room.

Typical wall cross section of seismic floor anchoring

Anchoring Bolt

1/2-13 UNC x 7"

1/2-13" Nuts

1/4-14 x 3/4"

Self-Drilling Screw

Gasket

1-1/4" (32 mm)

Gasketing Seal

Concrete Floor

2-1/2" (64 mm) Minimum

Music Rehearsal and Practice Rooms

SoundLok® Sound-Isolation Rooms

Typical Drawings

Typical wall cross section of optional floating floor

Optional 1-1/8" (29 mm)

Note: If optional Wenger floor is required, a recessed subfloor is required to meet ADA requirements.

Insulation 1/8" (3 mm) Acoustical Gasket 1-1/4" (32 mm) Gasketing Seal

Notes

1. Wenger floors are recommended for installations where the host building floor may not provide adequate soundisolation:

- Host buildings concrete floor is less than 5" (127 mm) thick

- Above grade installations

- Low mass flooring systems

- Applications desiring additional sound-reduction through the floor.

2. Floor system consists of vinyl flooring over 1-1/8" (29 mm) particleboard subfloor floating on resilient insulators.

Frame

3. Sec tional design uses both interlocking supports and mechanical locks to create a monolithic subfloor. A base molding and gasket system seals the floor to the rooms walls.

4. Fits standard rooms with RHR or LHR (outswing) doors only. LH or RH (inswing) doors can be used only if Wenger Corporation floor is recessed into host building subfloor.

5. Wenger floor system can often be added later if desired.

RAMSET/HEAD TRUBOLT+ WEDGE CWS-1270 (ICC ESR-2427 and COLA RR-25867) 1/2-13 UNC X 7"

ANCHOR DIA. & DRILL BIT

SIZE/THREADS PER INCH: 1/2-13

LOCKING TORQUE: 45 FT. LBS. 2 1/2" MIN. PENETRATION INTO FLOOR

6. Floor is 2-3/4" (70 mm) thick creating a step up at the door threshold and a reduction of ceiling clearance of that value. If Wenger Corporation floor is recessed into host buildings subfloor, this situation is eliminated.

Note: Optional Wenger recessed subfloor may be required to meet ADA requirements.

HEX LOCKING PLATE

Contact Wenger Corporation for more information on optional floor applications.

Music Rehearsal and Practice Rooms

SoundLok® Sound-Isolation Rooms

Typical Drawings

Practice Area Layout

ƒ Wenger Corporation practice rooms can be configured in a number of sizes

ƒ Most musicians practice alone, so there should be a number of smaller practice rooms

ƒ There should also be a variety of practice rooms sized for pianos, small groups, and ensembles

ƒ The central hallway should be large enough to let musicians carrying instruments easily pass each other and also accommodate larger instruments like a piano or timpani

ƒ 1'-0" (305 mm) is recommended between rooms to achieve acoustical isolation ratings

Key Sample Practice Area Layout

Music Rehearsal and Practice Rooms

SoundLok® Sound-Isolation Rooms

Typical Drawings

Practice Area Layout

Individual Practice

Outside dimensions

6'11" x 5'8" (2108 x 1727 mm)

1-2 Students

Outside dimensions

6'11" x 9'5" (2108 x 2870 mm)

Upright Piano or 3-4 Students

Outside dimensions

9'5" x 10'8" (2870 x 3251 mm)

Grand Piano or 5-6 Students

Outside dimensions

9'5" x 11'11" (2870 x 3632 mm)

Grand Piano or 5-6 Students

Outside dimensions

9'5" x 13'2" (2870 x 4013 mm)

Recording/Broadcast

Music Rehearsal and Practice Rooms

SoundLok® Sound-Isolation Rooms

Application Information

VAE® Rehearsal System

School auditoriums are heavily scheduled places. So trying to find time for your choral and instrumental groups to practice on stage can be difficult. The same goes when you are preparing for a special occasion in a large performance venue. Practicing in the dry environment of your rehearsal room can be limiting – unless you have VAE Rehearsal.

Easing the transition from the rehearsal to the performance environment allows students to focus more on the skills and habits they've developed in rehearsal and less on the unfamiliar performance space. VAE Rehearsal comes with the same capabilities as all our VAE systems and includes the ability to be programmed to mirror the acoustics of your own auditorium.

General Information

ƒ Virtual Acoustics Environment technology designed for music rehearsal rooms that allow musicians to hear themselves in a variety of performance environments

ƒ System comes with eight pre-set environments: Baroque Room, Medium Recital Hall, Large Recital Hall, Small Auditorium, Medium Auditorium, Large Auditorium, Cathedral and Sports Arena

ƒ Includes one customizable setting of specific performance space determined by customer

ƒ Creates a space where performers can rehearse in the acoustics of performance areas when the actual performance space is not available

ƒ A practical acoustic lab where musicians can study the relationship between their music and the spaces in which they perform

ƒ System includes record/playback feature with immediate feedback, which provides effective teaching tool to train students in the relationship between the acoustical environment and playing/singing technique

ƒ Stimulates creativity and encourages practice by relieving the tedium of playing/singing in a "dry" space

ƒ Ability to upload accompaniments and download recording sessions

ƒ Complete turn-key installation, including all electrical components, system tuning, and wiring/mounting of all speakers and microphones; also includes installation of acoustical absorber panels and NRC rated .95 acoustical ceiling tiles if needed

ƒ System includes lockable, front and rear access, portable or wall-mounted component rack for all system components, including VAE digital signal processor, power sequencer, amplifiers and ventilation fan

ƒ Five-year warranty

Music Rehearsal and Practice Rooms

SoundLok® Sound-Isolation Rooms

Application Information

VAE® Rehearsal Panel

System Components

- Harman Amplifiers

- Channels: 8

- Sensitivity: 1.4V (26db gain)

- Rated power output: 125W per channel into 8/4 ohms

- Signal to noise ratio: (below rated power 20Hz to 20Hz, A-weighted): 110 db

- Dimensions: 19"w x 5.25"h x 16.25"d (482 x 133 x 412 mm)

- Weight: 36 lb (16.3 kg)

Harman In-Wall Speakers

- Frequency response: (-10db) half-space wall: 30 – 20kHz

- Sensitivity: 90db SPL, 1W, 1m

- Continuous program power capacity: 120 watts

- Designed for mounting in stud walls, optional stud wall frame available

- Dimensions: 10.1"w x 13.1"h x 4.3"d (257 x 333 x 109 mm)

- Weight: 4.5 lb (2.0 kg)

Harman Wall-Mount Speakers

- Frequency response: (-10db) half-space wall: 45 Hz – 16 kHz

- Sensitivity: 91 db, 1W, 1m

- Continuous program power capacity: 240 watts

- Wall mounting brackets included

- Ball-mount adjustment

- Dimensions: 11.1"w x 15.2"h x 8.6"d (282 x 386 x 219 mm)

- Weight: 13.5 lb (6.1 kg)

Harman Ceiling Speakers

- Frequency response: (-10db) half-space wall: 70 - 20kHz

- Sensitivity: 89db SPL, 1W, 1m - Continuous program power capacity: 150 watts

- Grille, backcan, and tile rails included

- 10" diameter (254 mm)

- Weight: 12 lb (5.4 kg)

Harman Microphone

- Transducer type: pre-polarized condenser microphone

- Frequency response: 20 to 20,000 Hz

- Signal-to-noise ratio: A-weighted: 77db

- Maximum sound pressure level for 1.0% THD: 132db SPL

Wenger VAE Processor

- Built-in pre-amplification and equalization Microphone inputs: 2 Female XLR Input Impedance: 3000 Ohms Balanced

- Phantom Power: +24 volt

- Frequency Response: 20 to 20kHz within 1 db

- THD+N: 0.007%

- Sample Rate: 44.1 kHz

- Dynamic Range: A /D > 100dB, 24 Bit resolution D/A > 100dB, 24 Bit resolution

- Record Output: 1/8" TRS jack Power Outputs: Four 1/4" TRS and two 4-pin EURO (6 mm pitch)

- Output Impedance: 4/8/16 ohms

- Remote control connector: 10-pin Molex type 42404

- USB type B socket: For downloading recorded files

- Compact Flash socket: For storing recorded sessions

- Internal 15 Band 2/3 octave Equalizer

- Internal pink noise generator and real time analyzer

- Power Requirements: 100-120 volts or 220-240 volts, 50/60 Hz, 160 Watts typical

- Operating Temperature: 0 to 40 degrees C

- Humidity: 95% max non-condensing

- Dimensions: 17.4"w x 3.5"h x 11.5"d (442 x 89 x 292 mm) wide (483 mm)

- Weight: 17.5 lb (7.9 kg)

Wenger VAE Control Panel

- Wired, 18 button

- 50' maximum cord for connection to VAE Processor

- Digital, backlit display

- Option tripod stand available

- Dimensions:

5.5"w x 8.6"h x 7.25"d (140 x 218 x 184 mm)

- Weight: 2.0 lb (0.9 kg)

Music Rehearsal and Practice Rooms

SoundLok® Sound-Isolation Rooms

Application Information

SoundLok® and Studio VAE® Panel

General Information

ƒ A sound-isolation practice room equipped with patented digital signal processing that allows musicians to hear themselves in a variety of acoustical environments

ƒ Traditional dry practice room (system off) with nine preset acoustical environments: Practice Room, Arena, Baroque Hall, Cathedral, Small Auditorium, Medium Auditorium, Large Auditorium, Medium Recital Hall, and Large Recital Hall

ƒ Accelerates development of articulation, intonation, and control in a variety of environments from very "dry" to very "live"

ƒ Effective teaching/coaching studio to train students in the relationship between the acoustical environment and instrumental and choral technique

ƒ Control panel: one 18-button control panel. Nine acoustical environments, volume up and down, system mute (OFF), stop, record, play, rewind, fast forward and select. UL® Listed

ƒ Does not require any technical expertise to operate the room — as easy as operating a TV remote control

General Specifications

ƒ Dimensions: VAE is available in several sized rooms ranging from 5'8" x 5'8" to 18'2" x 19'5" (1727 x 1727 mm to 5537 x 5918 mm)

ƒ Interior ceiling height ranges from 7'6" (2286 mm) to 10'0" (3048 mm) in 6" (152. 4 mm) increments

ƒ Weight: 2,200 lb to 4,150 lb (998 to 1882 kg) depending upon room size

ƒ ETL-Classified room wiring system

ƒ Surfaces: powder-coat painted. Color chosen from manufacturer's standard colors

ƒ Lighting: florescent lighting with electronic ballast

ƒ Sound isolation: NIC = 41 Hallway to room NIC = 63 Room to room

ƒ Sound isolation door: STC = 46, with a full window

ƒ Internal fan ventilation system: NC 25

ƒ Direct connection HVAC (optional): acoustically isolated HVAC connections of STC 45

ƒ Wall and ceiling panels flame spread <25 and smoke developed <450

Control System

ƒ Lighting, room ventilation fans and master power for active acoustical system each individually controlled by an on/off toggle switch. UL® Classified, CSA-approved

ƒ Optional occupancy sensor lighting control

Practice Rooms With VAE Technology Electronics

ƒ Power consumption (steady state)

Nominal 500mA @ 120V, 60Hz

Maximum surge at turn on: 20A @ 2 msec (time to steady state: 10 msec)

Complete system details are available in the product specification. Contact Wenger Corporation for more information.

Music Rehearsal and Practice Rooms

SoundLok® Sound-Isolation Rooms

Application Information

Studio VAE® System

Studio VAE is an affordable, easy-to-install package for your own small practice or teaching space. The Studio system components offer all the same features and technology of the VAE Practice in a kit that can be installed in just about any room less than 200 square feet.

Wenger's Studio VAE allows you to convert an existing faculty studio or built-in practice room to one that incorporates the acoustic simulation capabilities of our VAE technology.

While quality sound isolation rooms like SoundLok are recommended, when new installation or construction are unfeasible, Studio VAE is a great option. Your students will be amazed, they will be inspired to practice more!

General Information

ƒ Ideal for practice rooms, private teaching studios or any office where music lessons are given

ƒ Nine acoustical performance environments available; Practice Room, Baroque Room, Medium Recital Hall, Large Recital Hall, Small Auditorium, Medium Auditorium, Large Auditorium, Cathedral and Arena

ƒ Record/Playback feature allows musician to get immediate feedback during practice session, and allows the instructor to use in development of articulation, intonation, and other areas of music pedagogy

ƒ Ability to record up to nine sessions (two hours of total record time)

ƒ Includes a system of speakers located in each corner of the room that blends aesthetically with the room (eight total speakers, two in each speaker box)

ƒ Provides a sense of envelopment that allows musicians to hear themselves more clearly

ƒ Two microphones placed on opposite walls and hidden from view in absorber panel

ƒ Easy-to-use control panel allows for quick selection of acoustic environment, volume adjustment and navigation of recording/playback function

ƒ Microphone panels and speaker grill covers are provided in black Other fabric color options are available (additional fees may apply)

ƒ Installation includes all wiring, flex conduit, connectors and fasteners Wire molding will be provided to cover any surface mounted cable

ƒ Available for spaces up to 200 ft2 (18.6 m2)

ƒ System must be installed and calibrated by Wenger Corporation

ƒ Five-year warranty

- VAE Digital Processor

- Four speaker enclosures with fabric grill covers

- Two microphone wall absorber panels 1' x 2' x 3" thick (305 x 610 x 76 mm)

- VAE Control Panel

- Control Panel cable, speaker wires, cable connectors and wire mold kit

Music Rehearsal and Practice Rooms

SoundLok® Sound-Isolation Rooms

Application Information

Virtuoso™ Acoustical Shell

ƒ Virtual Acoustics Environment Virtual Shell technology designed for the performance stage that allows musicians to hear themselves more effectively

ƒ System comes with eight pre-set environments for the stage with varying degrees of support and reverberance

ƒ Provides a stage environment with similar support to a full stage acoustical shell with the addition of reverberance if desired

ƒ System includes record/playback feature with immediate feedback

ƒ Ability to upload accompaniments and download recording sessions

ƒ Complete installation, including all electrical components, system tuning, and wiring/mounting of all speakers and microphones Also includes installation of acoustical absorption of the stage house (if needed)

ƒ System includes lockable, front and rear access, wall-mounted component rack for all system components, including VAE digital signal processor, power sequencer, amplifiers, and ventilation fan

ƒ Five-year warranty

Virtuoso System Components

Harman Amplifiers

ƒ Channels: 8

ƒ Sensitivity: 1.4V (26db gain)

ƒ Rated power output: 125W per channel into 8/4 ohms

ƒ Signal to noise ratio: (below rated power 20Hz to 20Hz, A-weighted): 110 db

ƒ Dimensions: 19"w x 5.25"h x 16.25"d (483 x 133 x 413 mm)

ƒ Weight: 36 lb (16.3 kg)

Harman Speakers

ƒ Frequency response: (-10db) half-space wall: 45 – 20kHz

ƒ Sensitivity: 92dB SPL, 1W, 1m

ƒ Continuous program power capacity: 175 watts

ƒ Wall mounting brackets included

ƒ Coverage: 100 x 100 degrees

ƒ Dimensions: 11.1"w x 15.2"h x 8.6"d (282 x 386 x 219 mm)

ƒ Weight: 15 lb (6.8 kg)

Harman Microphone

ƒ Transducer type: pre-polarized condenser microphone

ƒ Frequency response: 20 to 20,000 Hz

ƒ Signal-to-noise ratio: A-weighted: 77db

ƒ Maximum sound pressure level for 1.0% THD: 132db SPL

Wenger VAE Processor

ƒ Built-in pre-amplification and equalization

ƒ Microphone inputs: 2 Female XLR

ƒ Input Impedance: 3000 Ohms Balanced

ƒ Phantom Power: +24 volt

ƒ Frequency Response: 20 to 20kHz within 1 db

ƒ THD+N: 0.007%

ƒ Sample Rate: 44.1 kHz

ƒ Dynamic Range: A /D > 100dB, 24 Bit resolution D/A > 100dB, 24 Bit resolution

ƒ Record Output: 1/8" TRS jack

ƒ Power Outputs: Four 1/4" TRS and two 4-pin EURO (5.08 mm pitch)

ƒ Output Impedance: 4/8/16 ohms

ƒ Remote control connector: 10-pin Molex type 42404

ƒ USB type B socket: For downloading recorded files

ƒ Compact Flash socket: For storing recorded sessions

ƒ Internal 15 Band 2/3 octave Equalizer

ƒ Internal pink noise generator and real time analyzer

ƒ Power Requirements: 100-120 volts or 220-240 volts, 50/60 Hz, 160 Watts typical

ƒ Operating Temperature: 0 to 40 degrees C

ƒ Humidity: 95% max non-condensing

ƒ Dimensions: 17.4"w x 3.5"h x 11.5"d (442 x 89 x 292 mm) Rack mount face is 19.0" wide (483 mm)

ƒ Weight: 17.5 lb (7.9 kg)

Acoustical Doors

Data Book

Acoustical

Cutting-edge acoustical doors designed for high-performance sound isolation.

Pre-Engineered Acoustical Doors

You've probably heard stories of ill-fitting doors and big installation issues, and many of these stories end with anything but great sound isolation.

A small gap or imperfection in an acoustical door becomes a large problem. The Wenger Acoustical Door is pre-engineered for consistent, high-integrity performance. And the split-frame design, composed of 14-gauge rigid frame steel construction, ensures proper installation and dependable performance.

We think you'll also appreciate the fact that Wenger door installations are very clean. Wenger pre-engineering makes all the difference when you're on site and everyone expects a perfect ending without a lot of mess.

Product Details

ƒ Many models available with a 1-hour UL fire rating

Advanced Split-Frame Design accommodates virtually any wall thickness – so you don't have to worry about the kind of installation compromises that can ruin sound-isolation.

ƒ Continuous cam-lift hinge improves sound isolation and eliminates pinch points

ƒ Easy-to-install foam sound-absorption strips

ƒ Durable, maintenance-free for up to 100,000 cycles

ƒ Superior Teflon-coated sweep-seal meets stainless steel sill plate

ƒ Frame secures firmly to wall with special shim tool

ƒ Standard mortise pocket for easy leverset installation

ƒ Door widths: 3' (914 mm), 3-1/2' (1067 mm), 4' (1219 mm) and 6' (1829 mm) double door

ƒ Installs in wall thicknesses 4-1/2" (114 mm) to 12-1/2" (318 mm)

ƒ Available in primer gray for on-site finishing by contractor

ƒ Five-year warranty

Solid (STC 50)
Accent Window (STC 50)
Half Window (STC 50)
Full Window (STC 51)
6' (1829 mm) Double Door with Full Windows (STC 49)
Acoustical Doors

Music Rehearsal and Practice Rooms

Acoustical Doors

Application Information

General Information

ƒ Sound isolation doors for recording, broadcast, music practice and rehearsal rooms

Acoustic Performance: STC 48 - 54

ƒ Integrated sound-isolation door and frame door leaf thickness: 2-1/2" (64 mm) constructed of 12-gauge and 14-gauge steel skins; door frame constructed of 14-gauge steel

ƒ Four-sided frame provides a reliable (square, plumb and in plane) installation in many types of wall construction from 4-1/2" to 12-1/2" (114 to 318 mm) thick; split-frames are manufactured to interlock on site for a precise and secure fit

ƒ High quality seals and continuous cam-lift hinges provide long life with minimum adjustments (typically once every five years or 100,000 cycles)

ƒ Stainless steel sill plate included; integrated frame support for sill plate

ƒ Vision lite windows constructed of 1/4" and 3/8" (6 and 10 mm) laminated safety glass on opposite sides to prevent resonance

ƒ Mortise pocket (ANSI 115.1) is standard for lever set integration, mortise and strike pocket covers included for non-latching applications

ƒ Standard powder painted gray primer for better on-site finish and painting with less touch up required

ƒ Backed by a comprehensive five-year warranty

Installation Requirements

ƒ Installation is not provided by Wenger Corporation, but should be done in accordance with approved shop drawings and manufacturer's printed installation instructions

ƒ All frame installations must be plumb and square to insure proper acoustical performance

ƒ Acoustical caulk is necessary for maximum sound-insulation efficiency of the door assembly except for sealing around the lockset, handle and other door-mounted hardware

ƒ Door frame is designed to be installed at finished floor level

ƒ Rough opening to be provided to Wenger Corporation specifications

ƒ Contact your Wenger Corporation representative for door hardware option details

Music Rehearsal and Practice Rooms

Acoustical Doors

Application Information

Performance Measurements

Sound Transmission Class (measured in accordance with ASTM E90 - 97 and ASTM E413 - 87):

Transmission Loss (dB) by octave band (measured in accordance with ASTM E90 – 97 and ASTM E413 - 87):

Music Rehearsal and Practice Rooms

Acoustical Doors

Application Information

Options

ƒ Four door size options:

- 3070 - 3' (914 mm) - standard door width for most applications

- 3570 - 3'6" (1067 mm) - large door width to accommodate larger equipment and instruments

- 4070 - 4' (1219 mm) - largest door size to accommodate large equipment and instruments such as timpani drums

- 6070 - 6' (1829 mm) - 2'-3' (610-914mm) doors with removable mullion to accommodate large equipment and instruments such as grand pianos

ƒ See chart on previous page for fire rating availability

ƒ Four door style options (in each of the four door sizes):

- No window - applications not requiring any sight lines

- Narrow window 99 in2 (0.06 m2)—

3" x 33" (76 x 838 mm) when minimal visual monitoring is required

- Small vision lite 660 in2 (0.43 m2)—

20" x 33" (508 x 838 mm) for improved sight lines (non fire rated only)

- Large vision lite 1296 in2 (0.84 m2)—

20" x 64" (508 x 1626 mm) for maximum sight lines (non fire rated only)

ƒ Four door swing options:

- Right hand (RH)

- Right hand reverse (RHR)

- Left hand (LH)

- Left hand reverse (LHR)

Door Frame

ƒ Split frame design in four sizes to allow wall thickness of 4-1/2" to 12-1/2" (114 mm to 318 mm)

ƒ Frame constructed of 14-gauge steel

ƒ Integrated dual magnetic or compression gaskets (compression gaskets used in fire rated doors)

ƒ Acoustical absorptive material is provided between the frame and the magnetic gasket mountings on non-fire rated doors

ƒ Integral 3" (76 mm) doorstop on the hinge side and 2-1/2" (64 mm) doorstops on latch and top of frame

ƒ Integrated support for sill plate included in the frame

ƒ Ramped 1/2" (13 mm) metal threshold 16-gauge

304 stainless steel

ƒ Shims for door leaf adjustment provided with door

ƒ Door frame includes integrated strike pocket

Door Leaf

ƒ 2-1/2" (64 mm) thick made of 14-gauge on one face and 12-gauge steel on the opposite face

ƒ Internal section of door filled with sound absorbing material

ƒ Steel faces crimped together around a neoprene gasket to minimize acoustical coupling between the surfaces and acoustically seal the faces together

ƒ Internal door face stiffening provided for each face independently

ƒ Adjustable sweep seal made of fiberglass reinforced Teflon over a contoured steel channel

ƒ Continuous cam lift hinge integrated into the door leaf assembly (patented)

ƒ Factory mortised, reinforced and fitted for heavy duty locksets (lever set hardware requires offset for handle hardware of 7/8" (22 mm) on the push side and 1-5/8" (41 mm) on the pull side)

ƒ Internal door reinforcement provided for door closers (supplied by others)

ƒ Underwriter's Laboratory (UL) label if required supplied with 1 hour UL fire rated doors

Vision Lites

ƒ Factory assembled and installed lites in doors using 3/8" (10 mm) safety glass on one surface and 1/4" (6 mm) safety glass on the opposite surface separated by a 2-3/4" (70 mm) air space

ƒ Absorptive material provided behind perforated metal separators between the glass panes

ƒ Fabricated dual-glazed lites are individually removable

ƒ Two sizes available: 100 in2 (0.06 m2) and 1296 in2 (0.84 m2)

Music Rehearsal and Practice Rooms

Acoustical Doors Typical Drawings

Acoustical Door Sizes and Styles

Music Rehearsal and Practice Rooms

Acoustical Doors

Typical Drawings

Rough Door Openings

3' Door Rough Opening
3' 6" Door Rough Opening
4' Door Rough Opening
6' Door Rough Opening

Music Rehearsal and Practice Rooms

Acoustical Doors

Typical Drawings

Frame and Leaf Assembly

If floor is not continuous under the door, grout this area full under the bottom frame plate across the full door width before applying the finish seal plate. Removable Mullion

Seal Door Handling Diagram

Note: The above illustrations are typical and not project specific.

Note: Detailed approval drawings of each door size is available, contact Wenger Corporation for more information.

Rehearsal Room Acoustics

Data Book

Acoustical Treatments for the Rehearsal Room

There's a lot you can do with a rehearsal room before you ever set foot in it. How you shape it, what you put on the floors and walls, where you gain cubic volume – these are the areas where Wenger focuses when helping clients create the perfect acoustical space for rehearsal. And if your room is already built and requires acoustical enhancement, then we are equally adept at making the most of your available space.

Rehearsals are not only where performances are formed, but performers too, and one of our great passions as a company is to make the rehearsal space the ideal acoustical environment. We design and manufacture our own highly advanced acoustical panels and we know how to use them to optimize the sound in your space. We can do a lot to make your rehearsal room something great – call us for a solution that you'll be hearing great things about for years and years.

Great performances begin in the rehearsal room. And Wenger acoustical panel systems get musicians off to a superior start.

Each Panel Tuned To A Particular Acoustical Task

Wenger has engineered unique technical designs, in dozens of sizes, shapes, and diffusion angles, to yield the broadest selection of acoustical panels in the industry.

Dynamic Acoustic Panel Series:

A panel that can change its acoustic properties with the turn of a lever. Provides broad range frequency absorption from 125hz to 4000hz. Perfect for rehearsal room use where band and choral share a common space through the course of the day. Includes absorber only and diffuser only panels to create a consistent look

Traditional Acoustic Panel Series:

Absorber Panels

Suited for the widest range of environments, these Wenger absorber panels are designed to neutralize the reverberation and loudness of a room. Fabricated with sound-absorptive, fiberglass insulation, these flat panels are engineered to absorb sound across a broad frequency range for effective, balanced abatement.

Type I Convex Diffuser Panels

Fabricated with a special composition of recyclable thermomolded plastic that scatters and blends sound, these panels diffuse middle- to high-range frequencies which define timbre and articulation. Polycylindrical Type I convex diffuser panels typically make the best remedy for flutter echoes, hot spots, and dead spots. Designed with fabric cover of your choice for wall mounts and without covering for ceiling mounts.

Type II Convex Diffuser Panels

Significantly larger than Type I panels, Wenger Corporation Type II diffuser panels have the same polycylindrical shape. In addition to sound-diffusion qualities, Type II panels selectively absorb low-frequency sound.

Quadratic Diffuser Panels

These special-application panels are engineered in accordance with quadratic number theory to provide the most effective diffusion in the 750 Hz to 3300 Hz range. Fabricated from recyclable thermomolded plastic, these 4' x 4' (1219 x 1219 mm) diffusers are designed as easy-to-apply ceiling in-lays.

Pyramidal Diffuser Panels

These impact-resistant ceiling diffuser panels of recyclable thermomolded plastic feature an offset pyramid shape to treat specific acoustical applications. Ceiling- and Wall-mounts in 4' x 4' (1219 x 1219 mm) size.

The Art of Shaping Sound Wenger acoustical panels help you create the proper sound absorption and diffusion for your room to reduce loudness and produce the sound quality and ensemble you require. Rehearsal

Music Rehearsal and Practice Rooms

Rehearsal Room Acoustics

Application Information

Dynamic Acoustic Panel Series

ƒ Panels are available in three configurations:

- Tunable Panel (change between Absorption and Diffusion modes by sliding handle)

- Absorber Panel (not changeable)

- Diffuser Panel (not changeable)

ƒ Provides ideal acoustic treatment for multi-function music rehearsal rooms, recital halls and cafetoriums

ƒ Facilitates instrumental and choral music in the same rehearsal or performance space

ƒ Available in two sizes: 4' x 4' (1219 x 1219 mm) or 4' x 8' (1219 x 2438 mm) with center depth of 12" (305 mm)

ƒ Panel face is constructed of an aluminum sheet which is curved and covered with fabric; Tunable and Absorber Panels are micro perforated, Diffuser Panels are solid

ƒ Standard acoustical fabric by Guilford of Maine (Anchorage Series); available in a variety of colors and Class A fire rated per ASTM E84; custom fabrics may also be used, dependent on fabric specification

ƒ Panel sides are constructed of durable curved aluminum extrusions

ƒ Top and bottom panels are constructed of 3/4" (19 mm) thick laminated particleboard with 1/8" (3 mm) edge banding; available in select woodgrain finishes

ƒ Panel securely attaches to the wall with two brackets

ƒ Main wall bracket is constructed of 10-gauge steel (3.4 mm), with holes aligned every 2" (51 mm) to accommodate studded walls

ƒ Shipped partially assembled

ƒ Five-year warranty

ƒ Patent pending

See the following page for acoustical test results.

(1219 mm)
(305 mm)
Sliding Handle (on Tunable Panels only)
48" (1219 mm)
4' x 4' Panel
Sliding Handle (on Tunable Panels only)

Music Rehearsal and Practice Rooms

Rehearsal Room Acoustics

Application Information

Acoustical Performance

Third party test results for sound absorption coefficients meet the requirements of ASTM C423 and standard mounting practices outlined in ASTM E795.

Acoustical test reports available upon request.

Tunable Panel

ƒ Internal absorber/diffuser mechanism constructed of hinged aluminum sheets with steel actuator

ƒ Changes from absorber to diffuser with quick turn of a handle. Handle protrudes down 4" from bottom panel surface

ƒ Provides up to 0.8 seconds of change in reverberation time

ƒ Panel weight (installed): 4' x 4' = 92 lb (41.7 kg), 4' x 8' = 155 lb (70.3 kg)

Absorber Only Panel

ƒ Same construction and aesthetic as the Tunable Panel, with these exceptions

ƒ No internal absorber/diffuser mechanism. Panel is used only as a sound absorber

ƒ Provides broad frequency range sound absorption from 125 Hz to 4000 Hz

ƒ Panel weight (installed): 4' x 4' = 69 lb (31.3 kg), 4' x 8' = 110 lb (49.9 kg)

Sound Absorption Coefficient

Diffuser Only Panel

ƒ Same construction and aesthetic as the Tunable Panel, with these exceptions

ƒ No internal absorber/diffuser mechanism. Panel is used only as a sound diffuser

ƒ Provides broad frequency range sound diffusion from 125 Hz to 4000 Hz

ƒ Panel weight (installed): 4' x 4' = 72 lb (32.7 kg), 4' x 8' = 116 lb (52.6 kg) Averaged Sound Absorption Coefficient

Averaged Sound Absorption Coefficient

Music Rehearsal and Practice Rooms

Rehearsal Room Acoustics

Application Information

Traditional Acoustic Panel Series

The information contained in this section is a starting point to help you incorporate Wenger Traditional Acoustic Panels into your design. But, because every environment and application requirement is unique, we need to work with you to make specific recommendations for your design. This is necessary to ensure that your final plan addresses the most common problem associated with music rooms: excessive loudness.

Layout Recommendations

1. Room surfaces should not include any convex planes - flat surface preferred

2. Ceiling heights of 18'–22' (5486–6.706 mm) for instrumental and 16'–20' (4877–6096 mm) for choral rehearsal rooms are recommended

3. Suspended ceiling with 1" (25 mm) thick glass fiber panels should be included for Instrumental Rooms (recommended NRC is 0.95)

4. Cubic room volumes of 550–700 cu. ft. per instrumentalist and 350–500 cu. ft. per vocalist is recommended

5. For Choral Rehearsal Rooms, 0.95 NRC ceiling tile is recommended around the perimeter of the room only

6. Instrument storage best located outside of rehearsal room

7. Carpet is generally not recommended in the music rehearsal area because of its selective high frequency absorption

8. Wenger Corporation will guarantee your room performance if the following four elements can be met:

- Use of Wenger recommended ceiling material

- Adequate cubic room and volume as stated in #4

- Adequate space to mount panels

- Wenger can only guarantee room performance in spaces where our recommendations are followed

Music Rehearsal and Practice Rooms

Rehearsal Room Acoustics

Application Information

Types of Traditional Acoustic Panels

Wall Absorbers

Fabric wrapped with reinforced edges. Intended to provide good absorption across a broad range of frequencies. Mostly located on rear wall, rear one-third of side walls and corners.

Ceiling Absorbers

Same construction as wall absorbers. Can be suspended from ceiling, mounted in ceiling grids or attached directly to the ceiling surface. Used in rooms with a reflective ceiling.

Wall Diffusers

Type I: Fabric wrapped molded from 4 up to 18 ft2 (0.37 up to 1.67 m2) surface area.

Convex shape with faceted edges or offset pyramidal panels designed to blend sound of higher and mid - frequencies so as to eliminate "hot" or "dead" spots in a room.

Primarily on the front wall and the front two-thirds of the side walls.

Type II: Fabric wrapped panels with absorptive fiberglass backing have 18 to 32 ft2 (1.67 to 2.97 m2) surface area.

Designed to diffuse lower frequencies and absorb lower frequencies. Typically mounted on the back wall and the back 1/3 of side walls behind percussion and lower brass instruments.

Ceiling Diffusers

Pyramidal: Molded, white, ceiling diffuser typically installed in a suspended ceiling. Surface is paintable by others.

Convex: Molded, white ceiling mounted diffusers located over director and spreading out over middle of group. Surface is paintable by others.

Quadratic: Originally used in recording studios and major concert halls around the world, quadratic technology provides uniform reflection of sound over a wide frequency range. Typically installed in a suspended ceiling.

Wall Absorber Panel
Type I
Wall Diffuser Panel
Type II
Wall Diffuser Panel Pyramidal
Diffuser Panel
Pyramidal Wall Diffuser Panel

Music Rehearsal and Practice Rooms

Rehearsal Room Acoustics

Application Information

Traditional Absorber Panels

Panels are fabric covered utilizing the Guiford of Maine Company's FR701® Style 2100 series of fabric in a variety of colors.

ƒ Manufacturer's standard construction of 2" (51 mm), 3" (76 mm), and 4" (102 mm) thick 6 pcf, glass fiber board, hardened resin edges, covered with fabric; final assembly meets 2018 IBC requirements for Class A interior finishes

ƒ Corner brackets to receive mounting hardware

ƒ Five-year warranty

x 3' (610 x

2' x 6' (610 x

2' x 8' (610 x 2438 mm) 23-3/16" x 94-7/8" (589 x 2410

3' x 3' (914 x 914 mm)

3' x 4' (914 x 1219 mm) 35-3/16" x 46-7/8" (894 x 1191

3' x 5' (914 x 1524 mm)

3' x 6' (914 x 1829 mm) 35-3/16" x 70-7/8" (894 x 1800 mm) 22

3' x 8' (914 x 2438 mm)

4' x 4' (1219 x 1219 mm) 46-7/8" x

4' x 5' (1219 x 1524 mm) 46-7/8" x 58-7/8" (1191 x 1495 mm)

4' x 6' (1219 x 1829 mm) 46-7/8" x

4' x 8' (1219 x 2438 mm) 46-7/8" x 94-7/8" (1191 x 2410 mm)

Note: Custom sizes are available.

Ceiling Absorber Panels

3' x 4' (914 x 1219

4' x 4' (1219 x 1219 mm)

Note: Ceiling absorber panels mount directly to a permanent ceiling or suspend from wires only. No lay-in or clip-in option is available for suspended ceiling grids.

Absorber Panel
Wall Absorber Panels

Music Rehearsal and Practice Rooms

Rehearsal Room Acoustics

Application Information

Traditional Wall Diffuser Panels

Diffuser panels include convex and pyramidal shaped ceiling and wall panels. Only wall panels are fabric covered utilizing the Guiford of Maine Company's FR701® Style 2100 series of fabric in a variety of colors.

ƒ Corners are reinforced with diagonal supports, which also provide a secure anchor for the mounting hardware

ƒ Final assembly meets 2018 IBC requirements for Class A interior finishes

ƒ Five-year warranty

Wall Diffuser Panels, Type I (Convex)

ƒ Constructed thermo molded plastic, 0.125" (3 mm) material thickness, recyclable

3' x 4' x 6" (914 x 1219 x 152 mm)

3' x 6' x 6" (914 x 1829 x 152 mm) 35-1/4" x 71" x 5-3/4" (895 x 1803 x 146 mm)

4' x 2' x 5" (1219 x 610 x 127 mm) 47" x 23-1/2" x 4-7/8" (1193 x 60 x 124 mm)

4' x 3' x 6" (1219 x 914 x 152 mm) 47" x 35-1/4" x 5-3/4" (1193 x 895 x 146 mm)

4' x 4' x 7" (1219 x 1219 x 178 mm) 47" x 47" x 6.81" (1193 x

x 6' x

(1219

Wall Diffuser Panel, Type II (Convex)

kg)

(5.44 kg)

ƒ Constructed of thermo molded plastic, 0.125" (3 mm) material thickness with glass fiber board glued to rear surface of panel

ƒ Recyclable

3' x 6' x 6" (914 x 1829 x

Pyramidal Wall Diffuser Panels

4' x 4' x 15"

Type I Wall Diffuser Panel

Type I Wall Diffuser Panel
Type II Wall Diffuser Panel

Music Rehearsal and Practice Rooms

Rehearsal Room Acoustics

Application Information

Traditional Ceiling Diffuser Panels

ƒ Ceiling diffuser panels are available in convex or pyramidal shapes

ƒ Manufacturer's standard construction of thermo molded plastic 0.125" (3 mm) material thickness with white "lemon-peel" finish, NOT fabric covered

ƒ Surface is paint-able using latex acrylic paint only

ƒ Constructed of Class A material according to NFPA 101 Life Safety Code Requirements

ƒ Lay-In ceiling panels attach securely to a suspended ceiling grid (safety cables provided)

ƒ For a suspended ceiling grid, please specify if using standard or designer grid system

ƒ Clip-In ceiling panels may be direct mounted to permanent ceiling, or suspended from ceiling by wire from four corner hooks

ƒ Recyclable

Convex Ceiling Diffuser Panels

Lay-in Panel (for designer or standard grid)

2' x 2' x 6" (610 x 610 x 152 mm) 23-5/8" x 23-5/8" x 5-1/4" (600 x 600 x 133 mm) 3 lb (1.36 kg)

4' x 2' x 6" (1219 x 610 x 152 mm) 47-5/8" x 23-5/8" x 5-1/4" (1210 x 600 x 133 mm) 8 lb (3.63 kg)

4' x 4' x 8" (1219 x 1219 x 203 mm) 47-5/8" x 47-5/8" x 7-1/4" (1210 x 1210 x 184 mm) 15 lb (6.80 kg)

Clip-in Panel (for direct mount or wire suspended)

2' x 2' x 5" (610 x 610 x 127 mm) 22-5/8" x 22-5/8" x 4-3/4" (575 x 575 x 121 mm) 3 lb (1.36 kg)

4' x 2' x 5" (1219 x 610 x 127 mm) 46-7/8" x 23-1/8" x 4-3/4" (1191 x 587 x 121 mm) 8 lb (3.63 kg)

4' x 4' x 7" (1219 x 1219 x 178 mm) 46-3/4" x 46-3/4" x 6.81" (1187 x 1187 x 173 mm) 15 lb (6.80 kg)

Pyramidal Ceiling Diffuser Panels

Panel (for designer or standard grid)

2' x 2' x 6" (610 x 610 x 152 mm) 23-5/8" x 23-5/8" x 6" (600 x 600 x 152

4' x 4' x 16" (1219 x 1219 x 406 mm) 47-5/8" x 47-5/8" x 15.46" (1210 x 1210 x 393 mm)

Clip-in Panel (for direct mount or wire suspended) 4' x 4' (1219 x 1219 mm) Panels only

4' x 4' x 15" (1219 x 1219 x 381 mm) 46-3/4" x 46-3/4" x 15" (1187 x 1187 x 381 mm)

(6.80 kg) Nominal Dimensions

Music Rehearsal and Practice Rooms

Rehearsal Room Acoustics

Application Information

Installation

ƒ Acoustic panels are designed for easy installation

ƒ Panels are shipped fully assembled with mounting hardware included (fasteners not included) for a secure installation

Ceiling Absorber/Diffuser Installation

Acoustical Performance - 4' (1219 mm) Panels only

Ceiling Diffusers 4' x 4' (1219 x 1219 mm) Pyramidal

E-400

Type I Wall Diffusers 4' x 4' (1219 x 1219 mm) Convex

Type I Wall Diffusers 4' x 4' (1219 x 1219 mm) Pyramidal

Type II Wall Diffusers 4' x 8' (1219 x 2438 mm)

F-6 Mounting 1/4" (6 mm) air space (to simulate typical wall installation)

A Mounting — 0" (0 mm) air space

E-400 Mounting — 16" (406 mm) air space

F-7 Mounting — 9/32" (7 mm) air space

Sound Transmission Class (STC), determined according to ASTM E90 and ASTM E413; Type I convex ceiling diffuser panel, 4' x 4' (1219 x 1219 mm); STC 23, Type 1 pyramidal diffuser panel, 4' x 4' (1219 x 1219 mm), STC 22.

Direct Mount
Suspended by wire
Lay-in Clip
Designer Clip
Ceiling Grid Mount Options

Music Rehearsal and Practice Rooms

Rehearsal Room Acoustics

Acoustic Panel Questionnaire

When it comes to acoustical treatments for music rehearsals spaces, each room's needs are unique and we cannot base an acoustic solution on assumptions. In order to put a proposal together based on the unique needs of your rooms, we ask that you complete the following questionnaire. From this information, we will design the optimal acoustic panel solution and create a drawing for placement of panels, and a budget quote.

Customer Name:

Facility Name:

City, State, Zip:

Architect:

Phone/Fax:

Email:

Is an acoustician involved? ___ Yes ___ No

Firm Name?

A.) Send a copy of the following blueprint/CAD drawings of your room (if you do not have drawings, please create a detailed sketch showing key dimension and locations of obstacles such as doors, windows, speakers, emergency lights, white-boards ect.):

With sketches please indicate:

________ Floor Plans Room Width

________ Reflected Ceiling Plan Room Depth

________ Wall Elevations Ceiling Height

C.) Ceiling Finish

If you have a suspended ceiling please note:

The expected acoustic results assume Acoustic Ceiling Panels (rated at .95 NRC and are typically a 1" thick, or greater, glass fiber material). Any other suspended ceiling will nullify the expected acoustic result of a Wenger solution.

Suspended/1" Glass Fiber Panels .95 NRC – Required to achieve the expected acoustic result of a Wenger Solution.

Suspended/Mineral Board – Nullifies the expected acoustic result of a Wenger solution.

Will you be replacing with acoustic panels rated at .95 NRC or better ___Yes ___No

______ Acoustical Tile/Glued (Unpainted)

______ Acoustical Tile/Glued (Painted)

These ceiling types can be treated with Wenger Absorber Panels: ______Steel Truss/Deck ______ Wood Planking ______ Concrete Beam ______ Plaster ______ Gypsum Board

For Existing Spaces: What is the biggest problem with the rehearsal room?

B.) What is the main use of the room, and the largest Number of students in a group that use the room?

_____ Marching Band # of Students_____

_____ Jazz Band # of Students_____

_____ Band # of Students_____

_____ Orchestra # of Students_____

_____ Choir # of Students_____

_____ Multi-purpose (Example: Cafetorium) # of Students_____

D.) Suspended Ceiling Grid (if applies)

______ Standard Grid System

______ Designer Grid System

E.) Floor Finish ______Concrete ______ Tile on Concrete ______ Carpet on Concrete

______ Wood Floor

______ Carpet on Wood Floor

______ Wood or Poured Concrete Risers (Please note poured concrete risers greatly limit the acoustic capacity of a room and are not recommended).

F.) Wall Finishes Nor th South East West Concrete or Concrete Block Gypsum/Drywall Board with 3-1/2" Insulation Behind Gypsum Board No Insulation Plaster/Lathe _______ ______ Brick

Poured/pre-stressed Concrete _______ Windows ____ No

Yes – Shown on print or sketches with dimensions indicated including sill height above floor and window height from sill to top of window opening.

G.) Are there/will there be Instrument Storage Cabinets in this room?

____ No

____ Yes

Are they Wenger Cabinets? ____ No ____ Yes: ___ Solid Doors ___ Grille Doors ___ Acoustic Cabinets

H.) Which compass direction does the group face? (Must indicate "North" or "Front" on blueprint.)

____ North

____ South ____ East

____ West

I.) Video or photograph your rehearsal room the way it's normally set up. A simple commentary on the video will further clarify what you are showing us.

Music Rehearsal and Practice Rooms

Rehearsal Room Acoustics

Application Information

Transform® Motorized Acoustical Banner

ƒ Available fabric options:

- Encore Velour, double layer 22 oz (0.6 kg)

- Wool Serge, double layer 30 oz (0.85 kg)

ƒ See table below for banner fabric options

ƒ Tubular motor driven system for use in an operator controlled or pre-set environment

ƒ Designed for performance spaces, including performance halls, theaters, and auditoriums

ƒ All fabrics are IFR rated

ƒ Each banner option includes adjustable spacing away from the wall and between the layers of fabric

- From wall to rear fabric: 4" to 6" (102 to 152 mm)

- Between fabric layers: 3" to 5" (76 to 127 mm)

ƒ Each banner includes a standard "quick change" provision to allow fabric to be removed for maintenance

ƒ Banner retracts into cove to hide from view when not in use

ƒ Banner includes laminated wood closures

ƒ Enclosure width will vary to match fabric width

ƒ For exposed installations, end caps are included in a variety of finishes

ƒ Fast and quiet deployment of up to 45' (13716 mm) per minute

ƒ A minimum 2" (51 mm) of spacing between banner enclosures is recommended

ƒ Wall and ceiling mount kits are available for fast and easy installation

ƒ Banner system will integrate with J.R. Clancy's systems or simple push button controls

ƒ Requires a standard 120-volt/60 Hz circuit, 2.1 amps maximum per banner (worldwide voltages available)

ƒ Each banner is shipped assembled and tested for proper operation before shipment

ƒ Patents pending

ƒ Three-year warranty

Transform Banner Fabric Options

1 Wider banner fabric requires front-facing horizontal seams

Instrument Storage Systems

Data Book

UltraStor® Storage Cabinets

The industry's #1 choice for instruments and garments. Perfectly functional, incredibly durable, and aesthetically enduring, UltraStor is precision-engineered to ventilate and protect your huge investment.

AcoustiCabinets® Storage Cabinets

Specially designed grille doors and acoustically absorptive material minimize the loss of cubic volume and help eliminate flutter echo. The perfect fit for rehearsal rooms, AcoustiCabinets actually enhance a room's acoustics.

GearBoss® High-Density Storage

High-density, heavy-duty GearBoss storage creates up to 50% more space. The innovative track-and-rollingcart design moves effortlessly, dramatically increasing accessibility, organization, flexibility, sanitation, ventilation, and security.

Music Rehearsal and Practice Rooms

Instrument Storage Systems

Overview

Instruments of every size and shape, some delicate, some cumbersome, all needing a dedicated space. Enough garments, flags, and props to fill a showroom. And more sheet music than you can count.

Where do you put it all – in a way that keeps it accessible, but also secure and well-protected? How do you make sure storage not only doesn't impede traffic flow, but in fact enhances it? How important is ventilation? And what about durability? Do you need to sacrifice aesthetics for function? What kind of options do you have? And where in the world do you start?

Determining the right storage solution is tricky, if not overwhelming, unless you know who to call. A call to Wenger Corporation is the answer.

Whatever you need to store, we have the ideal solution for your space and budget. We also bring a unique dual expertise — music education and storage — that we will help you leverage to your ultimate advantage.

Creating a customized storage solution that optimizes your space and dollars within the context of your specific storage requirements is a process that requires a close look at your needs and a close relationship with an expert. Work with Wenger and you will benefit from an expertise earned by working with situations just like yours.

Tested every day, all around the world One thing experience has taught us: students hang on locker doors, so we load-test ours with more than 300 lb (136 kg) of pressure on the outer edge. We also know that easy theft is the most likely theft, and to prevent that our patented lock-bar is 12-gauge steel, the strike plate heavy-duty, and tamper-resistant. And we've seen how daily wear-and-tear can shorten product life and that's why Wenger products are built so well and keep looking that way.

Wenger has a solution for every storage need...

The following page is an instrumentation list.

Be sure to list only instruments to be stored in the cabinets. For larger or loose equipment, use a separate storage area.

UltraStor® Storage Cabinets GearBoss Storage GearBoss Shelving OnBoard® Carts

Music Rehearsal and Practice Rooms

Instrument Storage Systems

Cabinet Layout Estimate Form

Check Color Combination

(Body finish of all cabinets is Oyster)

Laminate Color / Edge banding Color / Painted Grille & Door Fasteners

____ Wenger Maple / Oyster / Oyster

____ Pebble / Oyster / Oyster

____ Oyster / Oyster / Oyster

____ Cherry / Cherry / Black

____ Evening Tigris / Pepper Dust / Pepper Dust

____ Fusion Maple / Almond / Almond

____ Solar Oak / Black / Black

Check Core Material Type

Standard

Industrial Grade Composite Wood

(No added urea formaldehyde)

Non-Standard (upcharge applies)

____ Fire-Rated

____ Moisture-Resistant Core Material

____ Vencore Plywood

____ FSC Certified

Check Door Style

____ Compartment Door

____ No Door

____ Full Door

(Not available on all cabinets.

Please contact your Wenger Corporation representative for assistance)

Check Door Type

(AcoustiCabinets are only available with Waterfall Grille Doors)

____ Straight Grille Door

____ Waterfall Grille Door

____ Solid

____ Full-Size Grille

____ Heavy-Duty Grille Door (Available for Full Door options only)

Room Size

Linear feet of available wall space ____

Number of corners available for storage ____

Number of rooms ____

For a proposal:

ƒ Fill out this form and contact Wenger for assistance or complete the form online at wengercorp.com.

To receive a site drawing with your proposal:

ƒ Include a copy of blueprints, floor plan and elevations of your location showing windows, doors, blackboards, and other permanent fixtures.

Qty. Instrument

____ Piccolo

____ Flute

____ Oboe

____ English Horn

____ E-flat Clarinet

____ B-flat Clarinet

____ 2 Pc. Alto Clarinet

1 Pc. Alto Clarinet

____ 2 Pc. Bass Clarinet

1 Pc. Bass Clarinet

____ Contralto Clarinet

____ Contrabass Clarinet

____ Bassoon

____ Contrabassoon

____ Soprano

Saxophone

____ Alto Saxophone

____ Tenor Saxophone

Baritone Saxophone

____ Bass Saxophone

____ Cornet

____ Trumpet

____ Flugelhorn

____ French Horn

____ Trombone

____ Bass Trombone

____ Baritone Horn

____ Mellophone

____ Euphonium

____ Tuba (Sizes:_____)

____ Tuba (upright bell)

____ Recording Bass

____ Snare Drum

6-1/2" x 14" (165 x 356 mm)

____ Snare Drum

8" x 14" (203 x 356 mm)

Check Cabinet Type

____ UltraStor® Storage Cabinets

____ AcoustiCabinets®

Qty. Instrument

Marching Drum 12" x 15" (305 x 381 mm)

____ Field Drum 15" x 18" (381 x 457 mm)

____ Bass Drum 14" x 22" (356 x 559 mm)

Bass Drum 14" x 24" (356 x 610 mm)

____ Bass Drum 14" x 28" (356 x 711 mm)

____ Bass Drum 16" x 30" (406 x 762 mm)

Bass Drum 16" x 32" (406 x 813 mm)

Percussion/ Bell Kit

____ Marching Trios

____ Marching Quads

____ Marching Quints

____ Sousaphone

____ Marching Mellophone

Marching Baritone

____ Marching Trombone

Marching French Horn

____ Violin

____ Viola

____ Cello

____ String Bass

____ Acoustic Guitar

____ Electric Guitar

____ Bass Guitar

____ Spanish Guitar

____ Guitarron

____ Vihuela

Mallet Percussion

____ Concert Bass Drum 16" x 36" (406 x 914 mm)

____ Concert Bass Drum 18" x 40" 457 x 1016 mm)

____ Timpani

____ Orchestra Bells

____ Chimes

____ Marimba under 58" (1470 mm)

Vibes under 58" (1470 mm)

Xylophone under 58" (1470 mm)

Additional items

____ Uniforms

____ Robes

____ Hats

____ Flags

____ Rifles

Inches of Music Titles

Other___________

Music Rehearsal and Practice Rooms

Instrument Storage Systems

Application Information

UltraStor® Storage Cabinets

Our original, trusted and proven storage cabinets.

Our patented polyethylene shelves are just part of the best-built, most-reliable storage cabinets available. Heavy-duty hardware and top-quality doors further ensure reliable day-to-day operation and unparalleled durability when you buy Wenger Corporation storage cabinets.

UltraStor cabinets are also designed to look great with virtually any décor. They're available in a range of sizes, colors and styles to fit a wide variety of needs. That includes different door types for different applications. Plus, UltraStor cabinets are modular so you can rearrange and even add units as needed.

Performance Requirements

ƒ Choice of solid doors, straight grille doors or no doors

ƒ Waterfall grille doors available for an extra charge

ƒ Polyester laminate and industrial grade composite wood core resists chipping and looks new years longer than other laminates

ƒ Shelves feature patented ventilation ridges and rounded front edges, improving airflow crucial to musical instrument, equipment, and garment longevity

ƒ Load-tested hinges and lock assemblies stand up to institutional use

ƒ 85-5/8" (2175 mm), 69-3/4" (1772 mm) and 38-5/16" (973 mm) heights available to meet your students' needs; middle school and elementary school students cannot easily reach storage compartments more than 68" (1727 mm) off the floor

ƒ Standard 27-1/2" (699 mm) wide and 21" (533 mm) narrow widths available

ƒ UL GREENGUARD Certified - Product certified for low chemical emissions: ul.com/gg - UL 2818

ƒ Ten-year warranty

Construction

ƒ Wall panels are 3/4" (19 mm) thick industrial grade composite wood with no added formaldehyde and polyester laminate finish in Wenger standard colors

ƒ Available with right- or left-hinged (standard) doors for easy access

ƒ Bolt-through construction maintains superior door and hardware condition, year after year

ƒ Seismic-compliant bracing available upon request as a special order

ƒ Available in several core substrates to meet your specific needs:

No formaldehyde added industrial grade composite wood (standard), fire-rated, moisture-resistant, FSC certified and Vencore (plywood)

Cabinet #4 with wood compartment doors
Cabinet #4 with full wood door
Cabinet #6 with straight grille compartment doors
Cabinet #4 without doors
Cabinet #4 with waterfall grille compartment doors

Music Rehearsal and Practice Rooms

Instrument Storage Systems

Application Information

AcoustiCabinets®

Need to have instrument storage in your rehearsal room? Wenger's unique patented solution minimizes the loss of cubic volume, provides sound absorption, and helps eliminate flutter echo caused by direct sound reflection.

After working closely with acoustical consultants, Wenger has developed an instrument storage cabinet that combines specially designed grille doors, acoustically absorptive material and reliable durability to produce storage that can help enhance the room's acoustical performance.

Performance Requirements

ƒ Waterfall design on grille doors provides a distinctive look, minimizes a room's cubic volume loss and reduces vibration

ƒ Solid steel lockable grille doors provide protection from theft or damage

ƒ Acoustically absorptive material at the back of the AcoustiCabinet helps eliminate direct sound reflection while absorbing high and low frequencies

ƒ Environmentally friendly, acoustically absorptive material helps eliminate sound reflection

ƒ Patented polyethylene shelves, bolt-through construction, and heavy-duty hardware for unmatched durability

ƒ Polyester laminate and industrial grade composite wood core resists chipping and looks new years longer than other laminates

ƒ Shelves feature patented ventilation ridges and rounded front edges, improving airflow crucial to musical instrument, equipment, and garment longevity

ƒ Load-tested hinges and lock assemblies stand up to institutional use

ƒ 85-5/8" (2175 mm), 69-3/4" (1772 mm) and 38-5/16" (973 mm) heights available to meet your students' needs; middle school and elementary school students cannot easily reach storage compartments more than 68" (1727 mm) off the floor

ƒ Standard 27-1/2" (699 mm) wide and 21" (533 mm) narrow widths available

ƒ Acoustical performance, one-third Octave Band Center Frequency, Hz, for four 27-1/2"w x 21-3/4"d x 85-5/8"h ( 699 x 552 x 2175 mm) in compliance with testing standards defined by ASTM C423-02a and E795-05 when installed as recommended

ƒ UL GREENGUARD Certified - Product certified for low chemical emissions: ul.com/gg - UL 2818

ƒ Ten-year warranty

Construction

ƒ Available in all standard Wenger cabinet sizes 1-28, 42 and 51-61 standard and narrow

ƒ Compartment grille door sizes are available for all standard Wenger cabinet sizes 1-28 and 51-61

ƒ Corner cabinets not available in this configuration

ƒ Wall panels are 3/4" (19 mm) thick industrial grade composite wood with no added formaldehyde and polyester laminate finish in Wenger standard colors

ƒ Available with right- or left-hinged (standard) doors for easy access

ƒ Bolt-through construction maintains superior door and hardware condition, year after year

ƒ Seismic-compliant bracing available upon request as a special order

ƒ Available in several core substrates to meet your specific needs: No formaldehyde added industrial grade composite wood (standard), fire-rated, moisture-resistant, FSC certified, and Vencore (plywood)

Cabinet #4

Music Rehearsal and Practice Rooms

Instrument Storage Systems

Application Information

Adjustable Shelf Storage Option

The adjustable shelf design for UltraStor and AcoustiCabinets gives options. Now when programs change, adjust cabinets to adapt to new storage needs. Cabinets are easy to reconfigure with no tools and it takes just minutes.

Performance Requirements

ƒ Offered for Wenger UltraStor and AcoustiCabinets

ƒ Available in multiple heights and widths in a variety of single, double and triple column configurations

ƒ Each cabinet includes one fixed bottom shelf and two adjustable height shelves per column. Additional shelf packs are available

Each shelf pack will complete one row (one shelf for each column).

- 84" (2134 mm) tall cabinets can fit up to eight adjustable shelves, creating up to nine compartments in each column

- 68" (1727 mm) tall cabinets can fit up to six adjustable shelves, creating up to seven compartments in each column

ƒ Patent pending adjustable height shelf uses a swing pin and latch design

ƒ Environmentally friendly, acoustically absorptive material helps eliminate sound reflection

ƒ Patented polyethylene shelves, bolt-through construction, and heavy-duty hardware for unmatched durability

ƒ Polyester laminate and industrial grade composite wood core resists chipping and looks new years longer than other laminates

ƒ Shelves feature patented ventilation ridges and rounded front edges, improving airflow crucial to musical instrument, equipment, and garment longevity

ƒ Load-tested hinges and lock assemblies stand up to institutional use

ƒ Standard 27-1/2" (699 mm) wide and 21" (533 mm) narrow widths available

ƒ UL GREENGUARD Certified - Product certified for low chemical emissions: ul.com/gg - UL 2818

ƒ Ten-year warranty

Construction

ƒ Wall panels are 3/4" (19 mm) thick industrial grade composite wood with no added formaldehyde and polyester laminate finish in Wenger standard colors

ƒ Available with right- or left-hinged (standard) doors for easy access

ƒ Bolt-through construction maintains superior door and hardware condition, year after year

ƒ Available in several core substrates to meet your specific needs: No formaldehyde added industrial grade composite wood (standard), moisture-resistant and FSC certified

Music Rehearsal and Practice Rooms

Instrument Storage Systems

Application Information

Cabinet Specifications - UltraStor Storage Cabinets and AccoustiCabinets

#1

Cabinet size:

27-1/2"w x 19-1/4"d x 85-5/8"h

(699 x 489 x 2175 mm)

Narrow cabinet width: 21-1/2" (546 mm)

Weight:

282 lb (128 kg)

Compartment sizes: 8"w x 17-3/8"d x 14-5/8"h (203 x 441 x 371 mm)

Narrow compartment width: 6" (152 mm)

Stores: 15 clarinets, flutes, piccolos or oboes

#4

Cabinet size: 27-1/2"w x 29-1/4"d x 85-5/8"h (699 x 743 x 2175 mm)

Narrow cabinet width: 21-1/2" (546 mm)

Weight:

313 lb (142 kg)

Compartment sizes: 12-3/8"w x 27-3/8"d x 14-5/8"h (314 x 695 x 371 mm)

Narrow compartment width: 9-3/8" (238 mm)

Stores: 10 trumpets, cornets or alto saxophones

#7

Cabinet size:

27-1/2"w x 39-1/4"d x 85-5/8"h (699 x 997 x 2175 mm)

Narrow cabinet width:

21-1/2" (546 mm)

Weight:

351 lb (159 kg)

Compartment sizes:

12-3/8"w x 37-3/8"d x 14-5/8"h

(314 x 949 x 371 mm)

25-1/2"w x 37-3/8"d x 25"h

(648 x 949 x 635 mm)

Narrow compartment width: 9-3/8" (238 mm), 19-1/2" (495 mm)*

Stores:

6 trombones, bassoons, bass clarinets, violins, violas, tenor Sax or alto clarinets, and 1 baritone horn, euphonium or mellophone

#10

Cabinet size:

27-1/2"w x 29-1/4"d x 85-5/8"h (699 x 743 x 2175 mm)

Narrow cabinet width:

21-1/2" (546 mm)

Weight:

248 lb (112 kg)

Compartment sizes:

25-1/2"w x 27-3/8"d x 25"h (648 x 695 x 635 mm)

Narrow compartment width: 19-1/2" (495 mm)

Stores:

3 french horns, alto horns or snare drums

Standard compartment sizes.

#2

Cabinet size:

27-1/2"w x 29-1/4"d x 85-5/8"h (699 x 743 x 2175 mm)

Narrow cabinet width: 21-1/2" (546 mm)

Weight:

367 lb (166 kg)

Compartment sizes: 8"w x 27-3/8"d x 14-5/8"h (203 x 695 x 371 mm)

Narrow compartment width: 6" (152 mm)

Stores: 15 clarinets, flutes, piccolos or oboes

#5

Cabinet size: 27-1/2"w x 39-1/4"d x 85-5/8"h (699 x 997 x 2175 mm)

Narrow cabinet width:

21-1/2" (546 mm)

Weight: 383 lb (173 kg)

Compartment sizes: 12-3/8"w x 37-3/8"d x 14-5/8"h (314 x 949 x 371 mm)

Narrow compartment width: 9-3/8" (238 mm)*

Stores:

10 trombones, bassoons, bass clarinets, violins, violas, tenor saxophones or alto clarinets

#8

Cabinet size:

27-1/2"w x 29-1/4"d x 85-5/8"h

(699 x 743 x 2175 mm)

Narrow cabinet width: 21-1/2" (546 mm)

Weight: 230 lb (104 kg)

Compartment sizes:

25-1/2"w x 27-3/8"d x 78-1/2"h (648 x 695 x 1993 mm)

Narrow compartment width: 19-1/2" (495 mm)

Stores:

1 string bass, contra bass clarinet, or bass drum or use for general storage

#11

Cabinet size:

27-1/2"w x 39-1/4"d x 85-5/8"h (699 x 997 x 2175 mm)

Narrow cabinet width: 21-1/2" (546 mm)

Weight:

297 lb (135 kg)

Compartment sizes:

25-1/2"w x 37-3/8"d x 25"h (648 x 949 x 635 mm)

Narrow compartment width: 19-1/2" (495 mm)

Stores:

3 baritones, euphoniums or mellophones

#3

Cabinet size:

27-1/2"w x 29-1/4"d x 85-5/8"h (699 x 743 x 2175 mm)

Narrow cabinet width: 21-1/2" (546 mm)

Weight:

319 lb (145 kg)

Compartment sizes: 8"w x 27-3/8"d x 14-5/8"h (203 x 695 x 371 mm)

25-1/2"w x 27-3/8"d x 25"h (648 x 695 x 635 mm)

Narrow compartment width: 6" (152 mm), 19-1/2" (495 mm)

Stores: 9 clarinets, flutes, piccolos or oboes, and 1 french horn, alto horn or snare drum

#6

Cabinet size: 27-1/2"w x 29-1/4"d x 85-5/8"h (699 x 743 x 2175 mm)

Narrow cabinet width: 21-1/2" (546 mm)

Weight: 285 lb (129 kg)

Compartment sizes: 12-3/8"w x 27-3/8"d x 14-5/8"h (314 x 695 x 371 mm)

25-1/2"w x 27-3/8"d x 25"h (648 x 695 x 635 mm)

Narrow compartment width: 9-3/8" (238 mm), 19-1/2" (495 mm)

Stores: 6 trumpets, cornets, alto saxophones and 1 french horn, alto horn or snare drum

#9

Cabinet size:

27-1/2"w x 29-1/4"d x 85-5/8"h (699 x 743 x 2175 mm)

Narrow cabinet width: 21-1/2" (546 mm)

Weight: 238 lb (108 kg)

Compartment sizes:

25-1/2"w x 27-3/8"d x 14-5/8"h (648 x 695 x 371 mm)

25-1/2"w x 27-3/8"d x 61-7/8"h (648 x 695 x 1572 mm)

Narrow compartment width: 19-1/2" (495 mm)

Stores: 1 cello or guitar, and 1 snare drum or use for general storage

#12

Cabinet size: 48-1/2"w x 29-1/4"d x 85-5/8"h (1232 x 743 x 2175 mm)

Weight: 282 lb (105 kg)

Compartment sizes: 46-1/2"w x 27-3/8"d x 23-3/4"h (1181 x 695 x 603 mm)

Stores: 3 baritone saxophones, bass clarinets, bassoons, field drums, or snare drums or use for general storage

Cabinets are shown without doors and 38" height cabinets are shown without work surface tops. The provided dimensions are nominal and intended for estimation purposes only. For assistance with specific installation requirements and product applications, please contact your Wenger Corporation representative.

*Narrow width sizes do not fit trombones. Wider tenor saxophone cases may not fit in #5, #7, #24, #28, #55 and #61 narrow compartment sizes.

Music Rehearsal and Practice Rooms

Instrument Storage Systems

Application Information

Cabinet Specifications - UltraStor Storage Cabinets and AccoustiCabinets

#13

Cabinet size:

14-3/8"w x 29-1/4"d x 85-5/8"h (365 x 743 x 2175 mm)

Narrow cabinet width: 11-3/8" (289 mm)

Weight:

199 lb (90 kg)

Compartment sizes:

12-3/8"w x 27-3/8"d x 14-5/8"h (31 x 695 x 371 mm)

Narrow compartment width: 9-3/8" (238 mm)

Stores: 5 trumpets, cornets or alto saxophones

#17

Cabinet size:

60-1/2"w x 39-1/4"d x 85-5/8"h (1537 x 997 x 2175 mm)

Weight: 348 lb (158 kg)

Compartment sizes:

58-1/2"w x 37-3/8"d x 83-1/4"h (1486 x 949 x 2115 mm)

Stores: 1 timpani, chimes, small vibes and xylophones, marimbas and gongs

Adjustable height shelf depth: 26-3/16" (665 mm)

#20

Cabinet size: 10"w x 19-1/4"d x 85-5/8"h (254 x 489 x 2175 mm)

Narrow cabinet width: 8" (203 mm)

Weight:

136 lb (62 kg)

Compartment sizes: 8"w x 17-3/8"d x 14-5/8"h (203 x 441 x 371 mm)

Narrow compartment width: 6" (152 mm)

Stores: 5 clarinets, flutes, piccolos or oboes

#23

Cabinet size:

18-3/4"w x 29-1/4"d x 85-5/8"h (476 x 743 x 2175 mm)

Narrow cabinet width: 14-3/4" (375 mm)

Weight:

320 lb (145 kg)

Compartment sizes:

8"w x 27-3/8"d x 14-5/8"h (203 x 695 x 371 mm)

Narrow compartment width: 6" (152 mm)

Stores: 10 clarinets, flutes, piccolos or oboes

#26

Cabinet size:

27-1/2"w x 29-1/4"d x 69-3/4"h (699 x 743 x 1772 mm)

Narrow cabinet width: 21-1/2" (546 mm)

Weight:

299 lb (136 kg)

Compartment sizes: 8"w x 27-3/8"d x 14-5/8"h (203 x 695 x 371 mm)

Narrow compartment width: 6" (152 mm)

Stores: 12 clarinets, flutes, piccolos or oboes

Standard compartment sizes.

#14

Cabinet size:

27-1/2"w x 39-1/4"d x 85-5/8"h (699 x 997 x 2175 mm)

Narrow cabinet width: 21-1/2" (546 mm)

Weight:

288 lb (131 kg)

Compartment sizes: 25-1/2"w x 37-3/8"d x 37-3/8"h (648 x 949 x 949 mm)

Narrow compartment width: 19-1/2" (495 mm)

Stores: 2 bass drums, field drums, snare drums or parade drums

#18

Cabinet size:

27-1/2"w x 29-1/4"d x 85-5/8"h (699 x 743 x 2175 mm)

Weight: 286 lb (129 kg)

Compartment sizes: 8"w x 27-3/8"d x 14-5/8"h (203 x 695 x 371 mm)

8"w x 27-3/8"d x 48-1/4"h (203 x 695 x 1226 mm)

Stores: 3 guitars and 6 clarinets, flutes, piccolos or oboes

#21

Cabinet size: 18-3/4"w x 19-1/4"d x 85-5/8"h (476 x 489 x 2175 mm)

Narrow cabinet width: 14-3/4" (375 mm)

Weight: 207 lb (94 kg)

Compartment sizes: 8"w x 17-3/8"d x 14-5/8"h (203 x 441 x 371 mm)

Narrow compartment width: 6" (152 mm)

Stores: 10 clarinets, flutes, piccolos or oboes

#24

Cabinet size: 14-3/8"w x 39-1/4"d x 85-5/8"h (365 x 997 x 2175 mm)

Narrow cabinet width: 11-3/8" (289 mm)

Weight:

229 lb (104 kg)

Compartment sizes:

12-3/8"w x 37-3/8"d x 14-5/8"h (314 x 949 x 371 mm)

Narrow compartment width: 9-3/8" (238 mm)*

Stores:

5 trombones, bassoons, bass clarinets, violins, violas, tenor saxophones or alto clarinets

#27

Cabinet size: 27-1/2"w x 29-1/4"d x 69-3/4"h (699 x 743 x 1772 mm)

Narrow cabinet width: 21-1/2" (546 mm)

Weight:

256 lb (116 kg)

Compartment sizes: 12-3/8"w x 27-3/8"d x 14-5/8"h (314 x 695 x 371 mm)

Narrow compartment width: 9-3/8" (238 mm)

Stores: 8 trumpets, cornets or alto saxophones

Cabinets are shown without doors and 38" height cabinets are shown without work surface tops.

#15

Cabinet size:

48-1/2"w x 29-1/4"d x 85-5/8"h (1232 x 743 x 2175 mm)

Weight: 235 lb (107 kg)

Compartment sizes: 46-1/2"w x 27-3/8"d x 37"h (1181 x 695 x 940 mm)

Stores: 2 bass drums, field drums, snare drums, parade drums, tri-toms, quads, tubas or sousaphones (bell detached)

#19

Cabinet size: 27-1/2"w x 39-1/4"d x 85-5/8"h (699 x 997 x 2175 mm)

Weight: 340 lb (154 kg)

Compartment sizes: 8"w x 37-3/8"d x 38-1/4"h (203 x 949 x 972 mm)

Stores: 6 acoustic guitars

#22

Cabinet size: 10"w x 29-1/4"d x 85-5/8"h (254 x 743 x 2175 mm)

Narrow cabinet width: 8" (203 mm)

Weight: 220 lb (100 kg)

Compartment sizes: 8"w x 27-3/8"d x 14-5/8"h (203 x 695 x 371 mm)

Narrow compartment width: 6" (152 mm)

Stores: 5 clarinets, flutes, piccolos or oboes

#25

Cabinet size: 27-1/2"w x 19-1/4"d x 69-3/4"h (699 x 489 x 1772 mm)

Narrow cabinet width: 21-1/2" (546 mm)

Weight: 315 lb (143 kg)

Compartment sizes: 8"w x 17-3/8"d x 14-5/8"h (203 x 441 x 371 mm)

Narrow compartment width: 6" (152 mm)

Stores: 12 clarinets, flutes, piccolos or oboes

#28

Cabinet size: 27-1/2"w x 39-1/4"d x 69-3/4"h

(699 x 997 x 1772 mm)

Narrow cabinet width: 21-1/2" (546 mm)

Weight: 302 lb (137 kg)

Compartment sizes: 12-3/8"w x 37-3/8"d x 14-5/8"h (314 x 949 x 371 mm)

Narrow compartment width: 9-3/8" (238 mm)*

Stores: 8 trombones, bassoons, bass clarinets, violins, violas, tenor saxophones or alto clarinets

The provided dimensions are nominal and intended for estimation purposes only. For assistance with specific installation requirements and product applications, please contact your Wenger Corporation representative.

*Narrow width sizes do not fit trombones. Wider tenor saxophone cases may not fit in #5, #7, #24, #28, #55 and #61 narrow compartment sizes.

Music Rehearsal and Practice Rooms

Instrument Storage Systems

Application Information

#30 #29 #45

Cabinet Specifications - UltraStor Storage Cabinets and AccoustiCabinets

Cabinet size:

27-1/2"w x 29-1/4"d x 69-3/4"h (699 x 743 x 1772 mm)

Weight:

265 lb (120 kg)

Compartment sizes:

8"w x 27-3/8"d x 14-5/8"h (203 x 695 x 371 mm)

8"w x 27-3/8"d x 48-1/4"h (203 x 695 x 123 mm)

Stores: 3 guitars and 3 clarinets, flutes, piccolos or oboes

Cabinet size:

60-1/2"w x 39-1/4"d x 85-5/8"h (1537 x 997 x 2175 mm)

Weight:

428 lb (194 kg)

Compartment sizes:

58-1/2"w x 37-3/8"d x 81"h (1486 x 949 x 2057 mm)

Stores: up to 3 bass, 4 cellos, 18 guitars, 20 violins or violas

#30

Cabinet size:

27-1/2"w x 29-1/4"d x 69-3/4"h (699 x 743 x 1772 mm)

Narrow cabinet width: 21-1/2" (546 mm)

Weight:

181 lb (82 kg)

Compartment sizes:

25-1/2"w x 27-3/8"d x 61-7/8"h (648 x 695 x 1572 mm)

Narrow compartment width: 19-1/2" (495 mm)

Stores: 1 cello or guitar

#43

Cabinet size:

#41

Cabinet size: 48-1/2"w x 48-1/2"d x 85-5/8"h (1232 x 1232 x 2175 mm)

Weight: 348 lb (158 kg)

Stationary and revolving shelf models available for instrument, garment and flag/rifle storage. Contact your Wenger representative for best utilization details.

Cabinet size:

27-1/2"w x 39-1/4"d x 85-5/8"h (699 x 997 x 2175 mm)

Narrow cabinet width: 21-1/2" (546 mm)

Weight:

270 lb (122 kg)

Compartment sizes:

25-1/2"w x 37-3/8"d x 14-5/8"h (648 x 949 x 371 mm)

25-1/2"w x 37-3/8"d x 61-7/8"h (648 x 949 x 1572 mm)

Narrow compartment width: 19-1/2" (495 mm)

Stores: 1 snare drum and 1 cello or guitar

#50

Cabinet size:

27-1/2"w x 39-1/4"d x 38-5/16"h (699 x 997 x 973 mm)

39-7/16"h (1002 mm) - with HPL work surface top

Narrow cabinet width: 21-1/2" (546 mm)

Weight:

118 lb (54 kg) - without HPL work surface top

148 lb (67 kg) - with HPL work surface top

Compartment sizes:

25-1/2"w x 37-3/8"d x 25"h (648 x 949 x 635 mm)

Narrow compartment width: 19-1/2" (495 mm)

Stores:

1 baritones, euphoniums or mellophones

Standard compartment sizes.

#47 #44 #43 #30 #29 #45

27-1/2"w x 39-1/4"d x 85-5/8"h (699 x 997 x 2175 mm)

Narrow cabinet width: 21-1/2" (546 mm)

Weight:

303 lb (137 kg)

Compartment sizes:

25-1/2"w x 37-3/8"d x 14-5/8"h (648 x 949 x 371 mm)

Narrow compartment width: 19-1/2" (495 mm)

Stores: 5 trombones, bass trombones or orchestra bells

#46

#44

Cabinet size:

27-1/2"w x 29-1/4"d x 85-5/8"h (699 x 743 x 2175 mm)

Narrow cabinet width: 21-1/2" (546 mm)

Weight: 242 lb (110 kg)

Compartment sizes: 25-1/2"w x 27-3/8"d x 37-3/8"h (648 x 695 x 949 mm)

Narrow compartment width: 19-1/2" (495 mm)

Stores: 2 bass drums

#47

Cabinet size:

Weight:

*NEW* 66 *NEW* *NEW* 46 *NEW*

27-1/2"w x 29-1/4"d x 85-5/8"h (699 x 743 x 2175 mm)

308 lb (140 kg)

Compartment sizes: 8"w x 27-3/8"d x 78-1/2"h (203 x 695 x 1994 mm)

Stores: flags, 3 contrabassoons or 3 electric guitars 67

#51

Cabinet size:

27-1/2"w x 19-1/4"d x 38-5/16"h (699 x 489 x 973 mm)

39-7/16"h (1002 mm) - with HPL work surface top

Narrow cabinet width: 21-1/2" (546 mm)

Weight:

108 lb (49 kg) - without HPL work surface top

128 lb (58 kg) - with HPL work surface top

Compartment sizes: 8"w x 17-3/8"d x 14-5/8"h (203 x 441 x 371 mm)

Narrow compartment width: 6" (152 mm)

Stores: 6 clarinets, flutes, piccolos or oboes

Cabinet size: 27-1/2"w x 29-1/4"d x 85-5/8"h (699 x 743 x 2175 mm)

Narrow cabinet width: 21-1/2" (546 mm)

Weight: 246 lb (112 kg)

Compartment sizes: 25-1/2"w x 27-3/8"d x 14-5/8"h (648 x 695 x 371 mm)

Narrow compartment width: 19-1/2" (495 mm)

Stores: 5 mellophones, marching trombones or snare drums

#52

Cabinet size: 27-1/2"w x 29-1/4"d x 38-5/16"h (699 x 743 x 973 mm)

39-7/16"h (1002 mm) - with HPL work surface top

Narrow cabinet width: 21-1/2" (546 mm)

Weight:

150 lb (68 kg) - without HPL work surface top

180 lb (82 kg) - with HPL work surface top

Compartment sizes: 8"w x 27-3/8"d x 14-5/8"h (203 x 695 x 371 mm)

Narrow compartment width: 6" (152 mm)

Stores:

6 clarinets, flutes, piccolos or oboes

Cabinets are shown without doors and 38" height cabinets are shown without work surface tops. The provided dimensions are nominal and intended for estimation purposes only. For assistance with specific installation requirements and product applications, please contact your Wenger Corporation representative.

*Narrow width sizes do not fit trombones. Wider tenor saxophone cases may not fit in #5, #7, #24, #28, #55 and #61 narrow compartment sizes.

#47 #44 #43
#30 #29 #45 #42
#30 #29
#29

Music Rehearsal and Practice Rooms

Instrument Storage Systems

Application Information

Cabinet Specifications - UltraStor Storage Cabinets and AccoustiCabinets

#53

Cabinet size:

27-1/2"w x 29-1/4"d x 38-5/16"h

(699 x 743 x 973 mm)

39-7/16"h (1002 mm) - with HPL work

surface top

Narrow cabinet width:

21-1/2" (546 mm)

Weight:

113 lb (51 kg) - without HPL work surface top

143 lb (65 kg) - with HPL work surface top

Compartment sizes:

25-1/2"w x 27-3/8"d x 25"h

(648 x 695 x 635 mm)

Narrow compartment width:

19-1/2" (495 mm)

Stores:

1 french horn, alto horn or snare drum

#56

Cabinet size:

14-3/8"w x 29-1/4"d x 38-5/16"h (365 x 743 x 973 mm)

39-7/16"h (1002 mm) - with HPL work surface top

Narrow cabinet width: 11-3/8" (289 mm)

Weight:

85 lb (39 kg) - without HPL work surface top

101 lb (46 kg) - with HPL work surface top

Compartment sizes:

12-3/8"w x 27-3/8"d x 14-5/8"h (314 x 695 x 371 mm)

Narrow compartment width: 9-3/8" (238 mm)

Stores:

2 trumpets, cornets, or alto saxophones

#59

Cabinet size:

10"w x 29-1/4"d x 38-5/16"h

(25 x 743 x 973 mm)

39-7/16"h (1002 mm) - with HPL work surface top

Narrow cabinet width:

8" (203 mm)

Weight:

100 lb (46 kg) - without HPL work surface top

10"w x 29-1/4"d x 39-7/16"h

111 lb (50 kg) - with HPL work surface top

Compartment sizes:

8"w x 27-3/8"d x 14-5/8"h (203 x 695 x 371 mm)

Narrow compartment width: 6" (152 mm)

Stores:

2 clarinets, flutes, piccolos or oboes

#62

Cabinet size:

36"w x 29-1/4"d x 38-5/16"h (914 x 743 x 973 mm)

39-7/16"h (1002 mm)with HPL work surface top

Weight:

197 lb (90 kg) - without HPL work surface top

238 lb (108 kg) - with HPL work surface top

Compartment sizes:

16-3/8"w x 27-3/8"d x 26-1/2"h (416 x 695 x 673 mm)

Drawer sizes:

15-11/16"w x 19-5/8"d x 4-3/8"h (398 x 498 x 111 mm)

Stores: use for general storage

Standard compartment sizes.

#54

Cabinet size:

27-1/2"w x 29-1/4"d x 38-5/16"h (699 x 743 x 973 mm)

39-7/16"h (1002 mm) - with HPL work surface top

Narrow cabinet width: 21-1/2" (546 mm)

Weight:

127 lb (58 kg) - without HPL work surface top

157 lb (71 kg) - with HPL work surface top

Compartment sizes:

12-3/8"w x 27-3/8"d x 14-5/8"h (314 x 695 x 371 mm)

Narrow compartment width:

9-3/8" (238 mm)

Stores:

4 trumpets, cornets or alto saxophones

#57

Cabinet size: 10"w x 19-1/4"d x 38-5/16"h (254 x 489 x 973 mm)

39-7/16"h (1002 mm) - with HPL work surface top

Narrow cabinet width:

8" (203 mm)

Weight:

57 lb (26 kg) - without HPL work surface top

64 lb (29 kg) - with HPL work surface top

Compartment sizes:

8"w x17-3/8"d x 14-5/8"h (203 x 441 x 371 mm)

Narrow compartment width: 6" (152 mm)

Stores: 2 clarinets, flutes, piccolos or oboes

#60

Cabinet size:

18-3/4"w x 29-1/4"d x 38-5/16"h (476 x 743 x 973 mm)

39-7/16"h (1002 mm) - with HPL work

surface top

Narrow cabinet width:

14-3/4" (375 mm)

Weight:

124 lb (56 kg) - without HPL work surface top 145 lb (66 kg) - with HPL work surface top

Compartment sizes: 8"w x 27-3/8"d x 14-5/8"h (203 x 695 x 371 mm)

Narrow compartment width: 6" (152 mm)

Stores:

4 clarinets, flutes, piccolos or oboes

#65

Cabinet size:

27-1/2"w x 29-1/4"d x 69-3/4"h (699 x 743 x 1772 mm)

Narrow cabinet width:

21-1/2" (546 mm)

Weight: 210 lb (95 kg)

Compartment sizes: 25-1/2"w x 27-3/8"d x 30-3/4"h (648 x 695 x 781 mm)

Narrow compartment width: 19-1/2" (495 mm)

Stores:

2 french horns, alto horns, snare drums or mellophones

#55

Cabinet size:

27-1/2"w x 39-1/4"d x 38-5/16"h (699 x 997 x 973 mm)

39-7/16"h (1002 mm) - with HPL work

surface top

Narrow cabinet width:

21-1/2" (546 mm)

Weight:

162 lb (74 kg) - without HPL work surface top

203 lb (92 kg) - with HPL work surface top

Compartment sizes: 12-3/8"w x 37-3/8"d x 14-5/8"h (314 x 949 x 371 mm)

Narrow compartment width: 9-3/8" (238 mm)*

Stores: 4 trombones, bassoons, bass clarinets, violins, violas, tenor saxophones or alto clarinets

#58

Cabinet size: 18-3/4"w x 19-1/4"d x 38-5/16"h (476 x 489 x 973 mm)

39-7/16"h (1002 mm) - with HPL work surface top

Narrow cabinet width: 14-3/4" (375 mm)

Weight: 81 lb (37 kg) - without HPL work surface top

95 lb (43 kg) - with HPL work surface top

Compartment sizes: 8"w x 17-3/8"d x 14-5/8"h (203 x 441 x 371 mm)

Narrow compartment width: 6" (152 mm)

Stores: 4 clarinets, flutes, piccolos or oboes

#61

Cabinet size:

14-3/8"w x 39-1/4"d x 38-5/16"h (365 x 997 x 973 mm)

39-7/16"h (1002 mm) - with HPL work

surface top

Narrow cabinet width: 11-3/8" (289 mm)

Weight:

102 lb (47 kg) - without HPL work surface top

123 lb (56 kg) - with HPL work surface top

Compartment sizes:

12-3/8"w x 37-3/8"d x 14-5/8"h (314 x 949 x 371 mm)

Narrow compartment width: 9-3/8" (238 mm)*

Stores:

2 trombones, bassoons, bass clarinets, violins, violas, tenor saxophones or alto clarinets

#66

Cabinet size: 27-1/2"w x 39-1/4"d x 69-3/4"h (699 x 997 x 1772 mm)

Narrow cabinet width: 21-1/2" (546 mm)

Weight: 249 lb (113 kg)

Compartment sizes: 25-1/2"w x 37-3/8"d x 30-3/4"h (648 x 949 x 781 mm)

Narrow compartment width: 19-1/2" (495 mm)

Stores:

#67

Cabinet size: 48-1/2"w x 29-1/4"d x 69-3/4"h (1232 x 743 x 1772 mm)

Weight: 206 lb (94 kg)

Compartment sizes: 46-1/2"w x 27-3/8"d x 30-3/4"h (1181 x 695 x 781 mm)

Stores: 2 baritone saxophones, bass clarinets or field/snare drums

Cabinets are shown without doors and 38" height cabinets are shown without work surface tops. The provided dimensions are nominal and intended for estimation purposes only. For assistance with specific installation requirements and product applications, please contact your Wenger Corporation representative.

*Narrow width sizes do not fit trombones. Wider tenor saxophone cases may not fit in #5, #7, #24, #28, #55 and #61 narrow compartment sizes.

Music Rehearsal and Practice Rooms

Instrument Storage Systems

Application Information

Cabinet Specifications - Adjustable Shelf Storage Option

#70

Cabinet size:

27-1/2"w x 19-1/4"d x 85-5/8"h (699 x 489 x 2175 mm)

Weight:

282 lb (128 kg)

Narrow cabinet width:

21-1/2" (546 mm)

Compartment sizes:

8"w x 17-3/8"d (203 x 441 mm)

Compartment height range:

7-5/8" to 78-1/8"h (194 to 1984 mm)

Narrow compartment width: 6" (152 mm)

#73

Cabinet size:

27-1/2"w x 39-1/4"d x 85-5/8"h (699 x 997 x 2175 mm)

Weight:

383 lb (173 kg)

Narrow cabinet width: 21-1/2" (546 mm)

Compartment sizes: 12-3/8"w x 37-3/8"d (31 x 949 mm)

Compartment height range: 7-5/8" to 78-1/8"h (194 to 1984 mm)

Narrow compartment width: 9-3/8" (238 mm)

#76

Cabinet size:

48-1/2"w x 29-1/4"d x 85-5/8"h (1232 x 743 x 2175 mm)

Weight:

282 lb (105 kg)

Compartment sizes: 46-1/2"w x 27-3/8"d (1181 x 695 mm)

Compartment height range: 6-7/16" to 76-3/8"h (164 to 1940 mm)

#79

Cabinet size:

27-1/2"w x 29-1/4"d x 69-3/4"h (699 x 743 x 1772 mm)

Weight:

256 lb (116 kg)

Narrow cabinet width: 21-1/2" (546 mm)

Compartment sizes: 12-3/8"w x 27-3/8"d (314 x 695 mm)

Compartment height range: 7-7/8" to 62-1/4"h (200 to 1581 mm)

Narrow compartment width: 9-3/8" (238 mm)

#82

Cabinet size: 27-1/2"w x 39-1/4"d x 69-3/4"h (699 x 997 x 1772 mm)

Weight: 242 lb (110 kg)

Narrow cabinet width: 21-1/2" (546 mm)

Compartment sizes:

25-1/2"w x 37-3/8"d (648 x 949 mm)

Compartment height range: 7-5/16" to 62-1/4"h (186 to 1581 mm)

Narrow compartment width: 19-1/2" (495 mm)

Standard compartment sizes.

#71

Cabinet size:

27-1/2"w x 29-1/4"d x 85-5/8"h (699 x 743 x 2175 mm)

Weight:

367 lb (166 kg)

Narrow cabinet width: 21-1/2" (546 mm)

Compartment sizes: 8"w x 27-3/8"d (203 x 695 mm)

Compartment height range: 7-5/8" to 78-1/8"h (194 to 1984 mm)

Narrow compartment width: 6" (152 mm)

#74

Cabinet size:

27-1/2"w x 29-1/4"d x 85-5/8"h (699 x 743 x 2175 mm)

Weight:

248 lb (112 kg)

Narrow cabinet width: 21-1/2" (546 mm)

Compartment sizes: 25-1/2"w x 27-3/8"d (648 x 695 mm)

Compartment height range: 7" to 78-1/8"h (178 to 1984 mm)

Narrow compartment width: 19-1/2" (495 mm)

#77

Cabinet size:

27-1/2"w x 19-1/4"d x 69-3/4"h (699 x 489 x 1772 mm)

Weight: 315 lb (143 kg)

Narrow cabinet width: 21-1/2" (546 mm)

Compartment sizes: 8"w x 17-3/8"d (203 x 441 mm)

Compartment height range: 7-7/8" to 62-1/4"h (200 to 1581 mm)

Narrow compartment width: 6" (152 mm)

#80

Cabinet size:

27-1/2"w x 39-1/4"d x 69-3/4"h (699 x 997 x 1772 mm)

Weight:

302 lb (137 kg)

Narrow cabinet width: 21-1/2" (546 mm)

Compartment sizes:

12-3/8"w x 37-3/8"d (314 x 949 mm)

Compartment height range: 7-7/8" to 62-1/4"h (200 to 1581 mm)

Narrow compartment width: 9-3/8" (238 mm)

#83

Cabinet size: 48-1/2"w x 29-1/4"d x 69-3/4"h (1232 x 743 x 1772 mm)

Weight: 206 lb (94 kg)

Compartment sizes: 46-1/2"w x 27-3/8"d (1181 x 695 mm)

Compartment height range: 6-7/16" to 60-1/2"h (164 to 1537 mm)

#72

Cabinet size:

27-1/2"w x 29-1/4"d x 85-5/8"h (699 x 743 x 2175 mm)

Weight:

313 lb (142 kg)

Narrow cabinet width: 21-1/2" (546 mm)

Compartment sizes: 12-3/8"w x 27-3/8"d (314 x 695 mm)

Compartment height range: 7-5/8" to 78-1/8"h (194 to 1984 mm)

Narrow compartment width: 9-3/8" (238 mm)

#75

Cabinet size:

27-1/2"w x 39-1/4"d x 85-5/8"h (699 x 997 x 2175 mm)

Weight: 297 lb (135 kg)

Narrow cabinet width: 21-1/2" (546 mm)

Compartment sizes: 25-1/2"w x 37-3/8"d (648 x 949 mm)

Compartment height range: 7" to 78-1/8"h (178 to 1984 mm)

Narrow compartment width: 19-1/2" (495 mm)

#78

Cabinet size:

27-1/2"w x 29-1/4"d x 69-3/4"h (699 x 743 x 1772 mm)

Weight:

299 lb (136 kg)

Narrow cabinet width: 21-1/2" (546 mm)

Compartment sizes: 8"w x 27-3/8"d (203 x 695 mm)

Compartment height range: 7-7/8" to 62-1/4"h (200 to 1581 mm)

Narrow compartment width: 6" (152 mm)

#81

Cabinet size:

27-1/2"w x 29-1/4"d x 69-3/4"h (699 x 743 x 1772 mm)

Weight: 195 lb (88 kg)

Narrow cabinet width: 21-1/2" (546 mm)

Compartment sizes:

25-1/2"w x 27-3/8"d (648 x 695 mm)

Compartment height range: 7-7/8" to 62-1/4"h (200 to 1581 mm)

Narrow compartment width: 19-1/2" (495 mm)

Cabinets are shown without doors and 38" height cabinets are shown without work surface tops. The provided dimensions are nominal and intended for estimation purposes only. For assistance with specific installation requirements and product applications, please contact your Wenger Corporation representative

Music Rehearsal and Practice Rooms

Instrument Storage Systems

Typical Drawings

UltraStor Storage Cabinets and AccoustiCabinetsBand Instruments Suggested Cabinet Sets

1. The set capacities are based on storing one instrument per compartment.

2. These drawings are not to scale.

3. Plan and Elevation Views shown in Typical Drawing section.

Note: Cabinet CAD and Revit symbols are available, please contact Wenger Corporation. Cabinets shown without doors.

PRODUCTS

#07 CABINET

#10 CABINET

CABINET

#15 CABINET

WENGER PRODUCTS QTY.

#01 CABINET

#04 CABINET

WENGER PRODUCTS QTY. DESCRIPTION

#07 CABINET

CABINET

#11 CABINET

CABINET

#13 CABINET

#11 CABINET

#15 CABINET

#13 CABINET

#17 CABINET

#15 CABINET

CABINET

#17 CABINET

CABINET

#01 CABINET 2 #04 CABINET 1 #07 CABINET 3#10 CABINET 1 #11 CABINET 2 #13 CABINET 2 #15 CABINET

#24 CABINET

#17 CABINET

CABINET

CABINET

CABINET

#24 CABINET

WENGER PRODUCTS QTY.

WENGER PRODUCTS

CABINET

#02 CABINET

WENGER PRODUCTS QTY. DESCRIPTION

#04 CABINET

CABINET

#05 CABINET

CABINET

#04 CABINET

CABINET

#02 CABINET

#11 CABINET

CABINET

#13 CABINET

#04 CABINET 1 #05 CABINET 3#10 CABINET

#15 CABINET

#17 CABINET

#11 CABINET 1#12 CABINET

#20 CABINET

#13 CABINET

#15 CABINET

#17 CABINET

#20 CABINET

#24 CABINET

Music Rehearsal and Practice Rooms

3#01 CABINET #02 CABINET #04 CABINET

QTY. DESCRIPTION 4#01 CABINET 1 #02 CABINET 3#04 CABINET 2 #05 CABINET 4#10 CABINET 2 #11 CABINET 1#12 CABINET 1 #13 CABINET

#02 CABINET

#05 CABINET

CABINET

CABINET

#15 CABINET

#17 CABINET

CABINET

PRODUCTS

#01 CABINET

#03 CABINET

CABINET

CABINET

#07 CABINET

CABINET

CABINET

#07 CABINET

#10 CABINET

#10 CABINET

#11 CABINET

#11 CABINET

CABINET

CABINET

#13 CABINET

#13 CABINET

#15 CABINET

#15 CABINET

#17 CABINET

#20 CABINET

1. In an area where soffits are to be constructed above Wenger cabinets, a minimum rough opening height of 7' 6" (2286 mm) is required for cabinet installation.

2. Standard door is left-hand swing. Right-hand swing door is available.

3. Closure panels available.

4. End covers available.

Music Rehearsal and Practice Rooms

(1727

Music Rehearsal and Practice Rooms

Instrument Storage Systems

Typical Drawings

UltraStor Storage Cabinets and AcoustiCabinetsOrchestra Instruments Suggested Cabinet Sets

1. The set capacities are based on storing one instrument per compartment.

2. These drawings are not to scale.

3. Plan and Elevation Views shown in Typical Drawing section.

Note: Cabinet CAD and Revit symbols are available at wengercorp.com.

Cabinets shown without doors.

Alternate suggested cabinet set (with violin/viola, string bass and cello racks)

Set O-30A

30

This A Series set substitutes portable string instrument racks for cabinets. This helps to conserve space. These alternate storage sets are available for all the orchestra sets shown.

Alternate suggested cabinet set (with stringed instrument storage cabinet)

Set O-30B

30 Orchestra Instruments

This B Series set utilizes a #42 stringed instrument storage cabinet for different storage possibilities. These alternate storage sets are available for all the orchestra sets shown.

Music Rehearsal and Practice Rooms

Systems

Typical Drawings

UltraStor Storage Cabinets and AcoustiCabinetsOrchestra Instruments Suggested Cabinet Sets (continued)

Alternate suggested cabinet set (with violin/viola, string bass and cello racks)

Set O-40A

40 Orchestra Instruments

Alternate suggested cabinet set (with stringed instrument storage cabinet)

Set O-40B 40 Orchestra Instruments

Description

This A Series set substitutes portable string instrument racks for cabinets. This helps to conserve space. These alternate storage sets are available for all the orchestra sets shown.

This B Series set utilizes a #42 stringed instrument storage cabinet for different storage possibilities. These alternate storage sets are available for all the orchestra sets shown.

Music Rehearsal and Practice Rooms

Instrument Storage Systems

Typical Drawings

UltraStor Storage Cabinets and AcoustiCabinetsOrchestra Instruments Suggested Cabinet Sets (continued)

Alternate suggested cabinet set (with violin/viola, string bass and cello racks)

Set O-50A

50 Orchestra Instruments

WENGER PRODUCTS QTY. DESCRIPTION 1 #03 CABINET 3#09 CABINET 1 #10 CABINET

1#24 CABINET

1#42 CABINET BASS 1 #42 CABINET CELLO

Alternate suggested cabinet set (with stringed instrument storage cabinet).

Set O-50B 30 Orchestra Instruments

CABINET V-V-V

This A Series set substitutes portable string instrument racks for cabinets. This helps to conserve space. These alternate storage sets are available for all the orchestra sets shown.

WENGER PRODUCTS

#08 CABINET

CABINET

#10 CABINET

#11 CABINET

#15 CABINET

CABINET BASS

This B Series set utilizes a #42 stringed instrument storage cabinet for different storage possibilities.

These alternate storage sets are available for all the orchestra sets shown.

#42 CABINET CELLO

Music Rehearsal and Practice Rooms

Instrument Storage Systems

Typical Drawings

UltraStor Storage Cabinets and AcoustiCabinetsOrchestra Instruments Suggested Cabinet Sets (continued)

Alternate suggested cabinet set (with violin/viola, string bass and cello racks)

Set O-50A

50 Orchestra Instruments

WENGER PRODUCTS QTY. DESCRIPTION 1 #03 CABINET 3#09 CABINET 1 #10 CABINET

1#24 CABINET

1#42 CABINET BASS 1 #42 CABINET CELLO

Alternate suggested cabinet set (with stringed instrument storage cabinet).

Set O-50B 30 Orchestra Instruments

WENGER PRODUCTS

CABINET

#10 CABINET

#11 CABINET

CABINET BASS

This A Series set substitutes portable string instrument racks for cabinets. This helps to conserve space. These alternate storage sets are available for all the orchestra sets shown.

This B Series set utilizes a #42 stringed instrument storage cabinet for different storage possibilities.

These alternate storage sets are available for all the orchestra sets shown.

#42 CABINET CELLO

Music Rehearsal and Practice Rooms

Side Closure
Soffit Closure
Top Back Closure

Music Rehearsal and Practice Rooms

Instrument Storage Systems

Cabinet Accessories

Finished Exterior Back Panel

Tuba/Sousaphone Wall Bracket

Minimum 1' 6" (457 mm)

Minimum 4' 0" (1219 mm)

Minimum 3' 0" (914 mm)

Notes:

1. For installations that require an exposed exterior back to the cabinet, finished back panels securely attach to cabinets. The finished exterior back panel is 3/4" (19 mm) thick and is available for all standard cabinet widths in 48" (1219 mm) or less.

2. The panel standard color is available to match Wenger standard color options.

Tuba/Sousa Wall Bracket on Adjacent Wall Floor

Notes:

30" ± 2" (760 ± 50 mm) Typ. (from Floor)

Adjusts 13-1/2" – 22" (343 – 559 mm)

Adjusts 22-1/2" - 35" (572 – 889 mm)

1. When mounting Tuba/Sousa wall bracket on adjacent walls, a minimum distance of 4' (1219 mm) from end of wall is required.

2. When mounting Tuba/Sousa wall bracket from end of wall, a minimum distance of 1' 6" (457 mm) is required.

3. Tuba/Sousa wall bracket should be placed 28" to 32" (711 to 813 mm) off floor.

4. Does not fit, Baritone Horns, Miraphone Tubas, King Tubas or Rotary Valve Tubas

5. 1" x 12" x 24" (25 x 305 x 610 mm) board required to mount to sheet rock walls.

6. Assembly required.

7. The upper bracket fits through the tubing on the upper part of the Tuba. Rotary Valve Tubas or Tubas constructed without any space for the bracket to fit through, will not fit with this bracket. Wall

Music Rehearsal and Practice Rooms

Instrument Storage Systems

Portable Storage Symbols

Symbols are available upon request. Contact Wenger Corporation for more information.

Percussion Workstation

24-1/2"w x 48-1/8"d x 35-3/4"h (622 x 1222 x 908 mm) Piano Work Desk 59-1/2"w x 10"d (1511 x 254 mm)

Rack

65-3/4"w x 29-1/2"d x 72"h (1670 x 749 x 1828 mm)

3-Unit Tuba/Sousaphone Rack

77-1/4"w x 32"d x 39-1/2"h (1962 x 813 x 1003 mm)

Class Piano Workstation

x 18"d x 5"h (1524 x 457 x 127 mm)

3-Unit String Bass Rack

61"w x 26"d x 60-1/2"h (1549 x 660 x 1537 mm)

4-Unit String Bass Rack

80-5/8"w x 26"d x 60-1/2"h (2048 x 660 x 1537 mm)

4-Unit Tuba/Sousaphone Rack

101-1/4"w x 32"d x 39-1/2"h (2572 x 813 x 1003 mm)

4-Unit Cello Rack

49-3/8"w x 24"d x 47"h (1254 x 610 x 1194 mm)

6-Unit Cello Rack

73-1/8"w x 24"d x 47"h (1857 x 610 x 1194 mm)

61"w x 33"d x 50-1/4"h (1549 x 838 x 1276 mm)

Guitar
Violin/Viola Rack

Music Rehearsal and Practice Rooms

Seismic Applications - UltraStor

x

Bracket Typ. Both Sides (Two Per Cabinet)

5/16-9" x 2" Lag Screws 2" Effective Min. Embedment Into Floor (Eight req'd per cabinet)

#12 F.H.W. Screw 3-1/2" LG Min. Penetration 1-1/2" into Solid Wood (Two req'd per cabinet)
Wall Anchor C.M.U. Bracing C.M.U. Wall
Leveler Bracket
Stretcher
#10 x 3/4" Pan Head Screw Four Screws per Bracket (Eight per cabinet)
Leveler Bracket
#10 x 3/4" Pan Head Screw Four Screws per Bracket (Eight per cabinet) Front Stretcher

Music Rehearsal and Practice Rooms

Seismic Applications - AcoustiCabinets

18 Gauge G.S. Unpunched "C" Stud Backing

18 Gauge Steel Studs

1/4-10 x 2-1/2" LG

1/4-14 x 3

Tapping Screw (Two req'd per cabinet)

Stud Bracing

Simpson Screw Anchor Min C.M.U. Thickness of 3-3/4", Embedment Depth of 2-1/2" Min C.M.U. Thickness of 5", Embedment Depth of 3-1/4" Torque 50 ft-lb (Two req'd per cabinet)

5/16-9" x 2" Lag Screws 2" Effective Min. Embedment Into Floor (Eight req'd per cabinet)

Wall Anchor C.M.U. Bracing
Leveler Bracket
Stretcher
#10
Leveler Bracket
Bracket Typ. Both Sides (Two Per Cabinet)
#10 x 3/4" Pan Head Screw Four Screws per Bracket (Eight per cabinet) Front Stretcher 1/2" Sheet Rock
C.M.U. Wall

Music Rehearsal and Practice Rooms

Instrument Storage Systems

Application Information

GearBoss® by Wenger is a complete, state-of-the-art system designed to help with all aspects of your athletic program. From lockers, to storage, to equipment transport and fund-raising solutions, GearBoss products save you time, space, and effort. They're flexible and customizable so your system can change as your needs change.

Plus, we'll work with you every step of the way to make sure you get exactly the right system–nothing more, nothing less.

GearBoss innovations are driven by these key principles:

Mobility – Haul equipment and apparel wherever you need it, without hassle

Flexibility – Storage systems and custom lockers that adapt to your changing needs

Organization – Keep track of your equipment and apparel easily with storage and locker rooms that get in order and stay in order

Sanitation – Superior ventilation and anti-microbial surfaces help equipment stay clean, dry and germ-free

Space – High-Density storage and room design services for maximizing every inch of space

Security – Lockable doors and side panels keep apparel and equipment safe and secure

Pride – Equipment and locker rooms that set you apart and reflect your team spirit

Featured Components Include:

ƒ GearBoss High-Density Storage

- X-Cart™

- Team Cart™

- SportCart™

ƒ GearBoss II High-Density Storage

ƒ GearBoss Shelving

Music Rehearsal and Practice Rooms

Instrument Storage Systems

Application Information

GearBoss® High-Density Storage

GearBoss high-density storage carts create more room in less space – improving space efficiency by as much as 50% – by using an innovative system of tracks and rolling carts.

X-Carts are designed to move laterally on the track and stay in your equipment room.

Team Carts are portable and engineered with retractable track guides so you can move the equipment around the room or off campus. No more wasted time running back and forth to the storage room.

Every cart can be reconfigured for maximum storage. The best solution includes a mix of X-Carts and Team Carts.

Your Wenger Corporation representative will design the best solution for you.

Bottom line — you'll get a flexible sports storage system engineered to meet every challenge.

Performance Requirements

ƒ Convert traditional storage area into organized, secure high-density space

Construction

ƒ Available in two widths 32" (813 mm) and 48" (1219 mm).

ƒ Roller guides follow the track keeping the units aligned and are made of glass-filled nylon

ƒ Intended for indoor use in normal ambient temperature and humidity conditions — must not be exposed to prolonged outside weather conditions

ƒ Welded chassis made from 16-gauge, 14-gauge and 12-gauge components

ƒ Upright support tubes constructed from large 2" (51 mm) diameter, 16-gauge steel tubing

ƒ Resistant-welded heavy-duty steel wire grille end frames

ƒ Durable powder-coat paint finishes

ƒ Variety of colors available for wire grille ends

ƒ Heavy-duty 6" (152 mm) wheels on the Team Cart or 8" (203 mm) wheels on the X-Cart provide easy movement

ƒ Roof panel constructed from solid 5/8" thermofused composite wood core with aluminum extrusions

ƒ Roof assembly and wire shelf load capacity is 150 lb (68 kg) each evenly distributed

Total cart load capacity is 400 lb (181 kg)

ƒ 32" wide x 78" long x 79" high (813 x 1981 x 2007 mm)

ƒ 48" wide x 78" long x 79" high (1219 x 1981 x 2007 mm)

ƒ UL GREENGUARD Certified - Product certified for low chemical emissions: ul.com/gg - UL 2818

ƒ Ten-year warranty

Music Rehearsal and Practice Rooms

Instrument Storage Systems

Application Information

GearBoss® X-Cart™

High density storage carts that maximize your space by sliding together and apart along a fixed aluminum track.

Transforming your equipment room into an organized, clean, professional storage space is easy with GearBoss. Our rugged X-Carts create an efficient, smart system of storage that will save space, protect your equipment, and save you loads of time spent organizing.

X-Carts roll laterally along a fixed aluminum track creating aisles between carts when you need to get at your equipment and closing back together when you don't. Carts can be configured with a full range of panels, doors and grilles coordinated with your team colors. You can also add accessories such as doors, helmet hangers, shoulder pad stackers, hanger bars, shelves, dividers, track locks and more. Select colors from the manufacturer's standard pallet.

X-Cart
X-Cart
(2007 mm)
(2007 mm)
(813mm)

Music Rehearsal and Practice Rooms

Instrument Storage Systems

Application Information

GearBoss X-Carts Examples

48" wide X-Cart with four 24" wide metal wire shelves and two garment bars

Commonly used to store uniforms (300 - 350 uniforms: jerseys hung; pants/shorts folded)

48" wide X-Cart with eight 24" wide metal wire shelves

Commonly used for folded garment storage (960 - 1000 t-shirts and/or shorts)

Used for hanging garments (600 - 700 hung jerseys)

48" wide X-Cart with four garment bars

Music Rehearsal and Practice Rooms

Instrument Storage Systems

Application Information

GearBoss® Team Cart™

High density storage carts that can leave the track and transport your gear wherever you need it. Now it's easy to get your equipment out of storage and to the gym, practice area, parking lot or sidelines – without breaking a sweat.

GearBoss Team Carts retain all the convenient storage benefits of X-Carts but are engineered to leave the track. Imagine all your gear organized on one or two high-density storage carts, traveling wherever it needs to go – and back again. Or park and lock your equipment in a temporary space, instantly creating safe, secure storage anywhere.

Aluminum

Music Rehearsal and Practice Rooms

Instrument Storage Systems

Application Information

GearBoss Team Cart Examples

32" wide Team Cart with two 32" wide metal wire shelves and one garment bar

Commonly used to store uniforms (150 - 175 uniforms: jerseys hung; pants/shorts folded)

32" wide Team Cart with five 32" wide metal wire shelves

Commonly used to store helmets (70 helmets on shelves)

Music Rehearsal and Practice Rooms

Instrument Storage Systems

Application Information

Accessories

Truss Bar/Garment Bar

ƒ Designed to be installed into the GearBoss X-Carts or Team Carts using two accessory hanger brackets

ƒ The truss bar is designed to be used with shoulder pad hangers, helmet hangers

ƒ The double-bar construction reduces the swinging motion of hanging equipment

ƒ The garment bar is designed to be used with standard garment hangers, support up to 175 jerseys

ƒ Durable powder-coat paint finish, black

ƒ Shipped ready to be installed, no tools required

ƒ Truss Bar, 1-1/2" x 4" x 75-1/2" long (38 x 102 x 1918 mm)

200 lb (90.7 kg) load rating

ƒ Garment Bar, 1-1/2" diameter x 75-1/2" long (38 x 1918 mm)

100 lb (45.4 kg) load rating

Metal Wire Shelves

ƒ Designed to be installed into the GearBoss X-Carts or Team Carts using four accessory hanger brackets per shelf

ƒ Resistant welded construction of 3/16" and 5/16" (5 and 8 mm) metal wires

ƒ Shipped ready to be installed, no tools required

ƒ The 24" (610 mm) wide shelf allows for shelving half of a 48" (1219 mm) cart or all of the cart with two shelves

ƒ Wire Shelf 24" (610 mm), dimensions 21-5/8" x 74-7/8" (549 x 1902 mm)

Approximate weight: 35 lb (15.9 kg)

ƒ Wire shelf, 32" (813 mm), dimensions 27-5/8" x 74-7/8" (702 x 1902 mm)

Approximate weight: 40 lb (18.1 kg)

ƒ Rated for 150 lb (68 kg) evenly distributed

Island Stop

ƒ Designed to be permanently installed as an end stop for the GearBoss Carts

ƒ Welded frame constructed of durable 2" (51 mm) diameter x 16 gauge steel tubing

ƒ Durable powder-coat paint finish, black

ƒ Dimensions are 9-5/8" wide x 42-3/4" long x 30-1/2" tall (244 x 1086 x 775 mm)

ƒ Approximate weight: 24 lb (10.9 kg)

ƒ Shipped fully assembled

Metal Wire Shelves
Truss Bar
Garment Bar
Hanger Bracket (included)
Island Stop

Music Rehearsal and Practice Rooms

Instrument Storage Systems

Application Information

Accessories (continued)

Solid End Closure

ƒ Made from solid 5/8" wood composite with polyester laminate finish and black heavy-duty PVC edge banding

ƒ Can be ordered in a variety laminate colors

ƒ Provides an excellent space for team logos

ƒ Adds a level of security to carts

ƒ Cart end closure, 32" (813 mm)

ƒ Dimensions: 27-1/4" x 64-5/16" (692 x 1634 mm)

Approximate Weight: 25 lb (11.3 kg)

ƒ Cart end closure, 48" (1219 mm)

ƒ Dimensions: 43-1/4" x 64-5/16" (1099 x 1634 mm)

Approximate Weight: 48 lb (21.8 kg)

Three Piece Solid Side Closure Accessory

ƒ Made from solid 5/8" wood composite with polyester laminate finish and black heavy-duty PVC edge banding

ƒ Can be ordered in a variety laminate colors

ƒ Securely closes one side of cart opposite open side or opposite a bypass door adding a level of security to carts

ƒ Shipped ready-to-assemble

ƒ Dimensions: 65" x 73" (1651 x 1854 mm)

ƒ Approximate Weight: 75 lb (34 kg)

Bypass Doors Accessory

ƒ Made from solid 5/8" wood composite with polyester laminate finish and black heavy-duty PVC edge banding

ƒ Can be ordered in a variety laminate colors

ƒ Easy glide aluminum track provides convenient access

ƒ Sliding doors lockable with padlock (not supplied) for added security

ƒ Shipped ready-to-assemble

ƒ Dimensions: 65" x 73" (1651 x 1854 mm)

ƒ Approximate Weight: 86 lb (39 kg)

Solid End Closure
Three Piece Solid Side Closure
Bypass Doors

Music Rehearsal and Practice Rooms

Instrument Storage Systems

Application Information

GearBoss® SportCart™

Compact GearBoss SportCarts can be used as part of a larger GearBoss installation or as a mobile, stand-alone solution. They are designed for use in small spaces and for sports that require less storage. Four heavy-duty, 5" swivel casters make mobility a snap. The nimble SportCart will navigate narrow hallways, shorter door openings and most elevators. It's the small-space storage solution.

Performance Requirements

ƒ High density storage on or off the track

ƒ Heavy-duty commercial-grade swivel casters for easy moving on hard surfaces such as concrete, gym floors, tile and low-pile unpadded carpet

ƒ UL GREENGUARD Certified - Product certified for low chemical emissions: ul.com/gg - UL 2818

Construction

ƒ Welded chassis made from 16-gauge, 14-gauge and 12-gauge components

ƒ Upright support tubes constructed from large 2" (51 mm) diameter, 16-gauge steel tubing

ƒ Resistant welded heavy-duty steel wire grille end frames

ƒ Variety of colors available for wire grille ends

ƒ Extra wide heavy-duty 5" (127 mm) swivel casters made from glass-filled nylon with polyurethane non-marring outer roller guides

ƒ Roof panel constructed from solid 5/8" thermofused composite wood core with aluminum extrusions

ƒ Roof assembly load capacity is 150 lb (68 kg) evenly distributed Total cart load capacity is 400 lb (181 kg)

ƒ 32" (813 mm) wide x 41-3/4" (1060 mm) long x 73" (1854 mm) high

ƒ Ten-year warranty

Accessories

Swing Door & Side Closure

ƒ Swing door lockable with padlock (not supplied) for added security

ƒ Made from solid 5/8" wood composite with polyester laminate finish and black heavy-duty PVC edge banding

ƒ Can be ordered in a variety laminate colors

ƒ Dimensions: Swing Door 34-1/8" x 63-1/2" (867 x 1613 mm)

ƒ Side Closure 34-7/8" x 65-5/8" (886 x 1667 mm)

ƒ Approximate Weight: Swing Door 52 lb (24 kg)

ƒ Side Closure 41 lb (19 kg)

Garment Bar

ƒ Designed to be installed using two included hanger brackets

ƒ Designed to be used with standard garment hangers and supports up to 80 jerseys

ƒ Durable black powder-coat paint finish

ƒ Dimensions: 37-1/2" (953 mm) x 1-1/2" OD"

ƒ Rated for 100 lb (45 kg) weight evenly distributed

Metal Wire Shelves

ƒ Designed to be installed using four included hanger brackets per shelf

ƒ Resistant welded construction of 3/16" and 5/16" (0.1875" and 0.3125") metal wires

ƒ Rated for 150 lb (68 kg) evenly distributed

ƒ Dimensions: 27-5/8" x 37" (702 x 940 mm)

ƒ Approximate Weight: 20 lb (9 kg)

73" (1854 mm)
SportCart
Garment Bar Accessory
Swing Door & Side Closure Accessory
Wire Shelf Accessory
Hanger Bracket (included)

Music Rehearsal and Practice Rooms

Instrument Storage Systems

Application Information

Sport Cart Examples

SportCart with three metal wire shelves Commonly used for folded garments (160 - 200 folded t-shirts and/or shorts)

SportCart with two metal wire shelves and one garment bar Commonly used for uniforms (80 uniforms: 80 hung jerseys; 80 folded pants/shorts)

SportCart with two garment bars

Commonly used for uniforms (160 hung jerseys; 1/2" spacing)

Music Rehearsal and Practice Rooms

Instrument Storage Systems

Application Information

GearBoss Shelving

This is the affordable, flexible, durable solution for shelving storage and workspace needs. It works great for athletic, music and marching band storage; and theatre garment and prop storage. The cantilever design optimizes overhead space and keeps the floor free from supports for extra room. The system is so versatile it can be configured to your specific needs to make sure you get the maximum storage space.

Performance Requirements

ƒ Cantilever design keeps the floor open for carts and flexible use

ƒ Intended to be installed on floors with less than 1" (25 mm) of variation over the run of shelving

ƒ Holes at 1" (25 mm) increments provide easy adjustability

ƒ Shelves are adjustable by hand – no tools required

ƒ Each bay is load-rated at 1,000 lb (450 kg) (if installation instructions are strictly followed)

ƒ Spans doors and windows, if necessary

ƒ Easy to install and relocate

ƒ Uprights and mounting brackets are zinc-plated to avoid rust

Construction

ƒ Available in bays 4'w x 8'h (1219 x 2438 mm), custom heights are available

ƒ Shelf supports are 14-gauge 7/8" (22 mm) square tube-steel with silver powder-coat paint finish

ƒ Aluminum shelf fronts feature a 3/8" (10 mm) lip to retain a hardboard insert or work surface option

ƒ Ten-year warranty

Music Rehearsal and Practice Rooms

Instrument Storage Systems

Application Information

Accessories

Shelves, 30-1/2" and 17-1/2"

ƒ 30-1/2" (775 mm) cantilevered shelf with 4 support tubes spaced 5-1/4" (133 mm)

ƒ 17-1/2" (445 mm) cantilevered shelf with 2 support tubes spaced 5-1/4" (133 mm)

ƒ Shelves can be mounted and adjusted in 1" (25 mm) increments without tools

ƒ Both shelves fronted with a contoured aluminum extrusion with a 3/8" (10 mm) lip to retain a hardboard insert

ƒ Each shelf is rated for 250 lb (113 kg) evenly distributed, not to exceed 1,000 lb (454 kg) per bay

ƒ All steel parts have a durable silver powder-coat paint finish

ƒ Shelf brackets are formed 12-gauge steel

ƒ Shelf support are 14-gauge 7/8" (22 mm) steel tubes

Work Surface Panel

ƒ 29-1/4" (743 mm) x 45-3/4" (1162 mm) panel lays directly inside a 30-1/2" shelf

ƒ 1-1/8" (29 mm) graphite polyester laminated particle board with PVC edge banding - black only

Drawer

ƒ Mounts to underside of a work surface panel accessory for a 30-1/2" shelf

ƒ 14-gauge steel construction

ƒ Durable black powder-coat paint finish

ƒ Rated for 100 lb (45 kg) evenly distributed

Garment Bar/Hanging Bar

ƒ 48" (1219 mm) x 14-gauge x 1-1/2" (40 mm) round steel tube

ƒ All steel parts have a durable black powder-coat paint finish

ƒ Durable black powder-coat paint finish

ƒ Mounts to underside of shelves without tools

ƒ Rated for 100 lb (45 kg) evenly distributed

ƒ Interchangeable companion products:

- Football helmet hanger

- Shoulder pad hanger - long

- Shoulder pad hanger - short

Lock Box

ƒ Door is hinged at the bottom so it can drop and stay open for easy access

ƒ Sides, top and bottom panels are 16-gauge steel

ƒ Features upper and lower contoured aluminum extrusions

ƒ Laminated wood door with keyed lock

ƒ Door is 5/8" (16 mm) graphite pebble polyester laminated board with PVC edge banding - black only

ƒ Rated for 100 lb (45 kg) evenly distributed

ƒ Mounted and adjustable without tools

ƒ Dimensions: 16" x 18" x 46" (406 x 457 x 1168 mm)

Peg Board Back

ƒ Mounts directly onto existing shelf banks

ƒ Rated for 40 lb (18 kg) evenly distributed

ƒ The 1/4" thick peg board material is not supplied by Wenger Corporation and must be purchased separately

Lock Box
Garment Bar
Work Surface Panel
Drawer
17-1/2" Shelf
30-1/2" Shelf

Music Rehearsal and Practice Rooms

Instrument Storage Systems

Application Information

GearBoss Sample Layouts

GearBoss Carts and Shelving

Music Rehearsal and Practice Rooms

Instrument Storage Systems

Application Information

Miscellaneous Information

Technical Sheets are included for:

ƒ Small Instrument Storage Cabinet

ƒ Stringed Instrument Storage Cabinet (#42)

ƒ Percussion Workstation

ƒ Tuba/Sousaphone Mobile Storage Rack

ƒ Guitar Rack

ƒ Stringed Instrument Mobile Storage Racks

ƒ OnBoard Cargo Cart

Music Rehearsal and Practice Rooms

Instrument Storage Systems

Application Information

Small Instrument Storage Cabinet

• 166E001 290 lb (131 kg)

• Overall dimensions: 36"w x 23-1/4"d x 72"h (914 x 591 x 1829 mm)

• Nine adjustable shelves provide flexibility in organizing various small instruments

• Cabinet construction is 3/4" (19 mm) thick industrial grade composite wood with no added formaldehyde and polyester laminate finish in Wenger standard colors

• Comes with four small bins, five medium bins and two large bins with labels; bins come in the primary colors of red, blue and yellow

• Small storage bins mount on hangers to either door for easy student access

• Edging is 1/8" (3 mm) radiused PVC

• Thru-bolt construction on all door hardware

• Cabinet has locking double doors

• UL GREENGUARD certified - product certified for low chemical emissions: ul.com/gg - UL 2818

• Cabinets are shipped assembled

• Ten-year warranty

Accessories

• 166A061 Small Bins (yellow), set of 4 with mounting brackets

• 166A062 Medium Bins (red), set of 4

• 166A063 Large Bins (blue), set of 2

Music Rehearsal and Practice Rooms

Instrument Storage Systems

Application Information

Technical Sheet

Stringed Instrument Storage Cabinet (#42)

• 250A942 UltraStor® - 428 lb (194 kg)

• 255A942 AcoustiCabinet® - 428 lb (194 kg)

• Overall dimensions: 85-5/8"h x 60-1/2"w x 39-1/4"d (2175 x 1537 x 997 mm)

• Standard configuration includes hardware for the following instrument capacities: sixteen to twenty violins/violas/vihuelas, two to three basses, four to five cellos/guitarrons, or fourteen to eighteen guitars

• Adjustable internal components to fit a variety of instrument sizes - with or without cases

• Padded rails to protect instruments and cases

• High-pack options available

• Additional conversion kits are available to store a variety of instruments

• Includes a gunmetal grey floor carpet pad for the bottom of the cabinet

• Cabinet construction is 3/4" (19 mm) thick industrial grade composite wood with no added formaldehyde and polyester laminate finish in Wenger standard colors

• Edging is 1/8" (3 mm) radiused PVC

• Available in all core substrates

• Attractive, durable construction resists chipping and looks new years longer than other laminates

• Bolt-through construction maintains the condition of the door and hardware year after year

• Removable, replaceable components ensure improved service life

• Load-tested hinges and lock assemblies stand up to institutional use

• Choice of solid doors, straight grille doors or no doors; Waterfall grille doors available for an extra charge

• Acoustic option available

• Optional hangers and cable lock kit available for instruments without cases

• UL GREENGUARD certified - product certified for low chemical emissions: ul.com/gg - UL 2818

• Ten-year warranty

• Ships ready-to-assemble

Music Rehearsal and Practice Rooms

Violin / Viola / Vihuela Combination

Music Rehearsal and Practice Rooms

Instrument Storage Systems

Application Information

Technical Sheet

Percussion Workstation

• Basic Percussion Workstation 147G002._ 230 lb (104 kg)

Deluxe Percussion Workstation with all accessories 147G001._ 251 lb (113 kg) 230 lb

• Workstation is 48-1/8"w x 24-1/2"d x 35-3/4"h (1222 x 622 x 908 mm)

• Workstation construction is 3/4" (19 mm) thick industrial grade composite wood with no added formaldehyde and polyester laminate finish in Wenger standard colors

• Edging is 1/8" (3 mm) radiused PVC

• Workstation top is 3/4" (19 mm) industrial grade composite wood with industrial grade carpet on top

• Plywood bottom is 3/4" (19 mm) with four 4" (102 mm) rubber swivel casters that make it easy to move from room to room

• Workstation has four foam-lined 21-1/2"w x 19-3/4"d x 3-1/2"h (546 x 502 x 89 mm) drawers constructed of 18 gauge steel with built-in handle

• Four 23"w x 23"d (584 x 584 mm) compartments, 3-1/2"h (89 mm) and 15-3/4"h (400 mm)

• UL GREENGUARD certified - product certified for low chemical emissions: ul.com/gg - UL 2818

• Shipped assembled

• Ten-year warranty

Accessories

Pop-up Music Desk

• 147H510._ 17.7 lb (7.7 kg)

• Holds music for three or more people

• Desk is 46-1/8"w x 1-7/16"d x 10-3/4"h (1172 x 37 x 273 mm)

• Desk construction is 3/4" (19 mm) thick industrial grade composite wood with polyester laminate finish in Wenger standard colors

• Desk permanently attaches to work top and folds flat when not in use

Suspended Cymbal Holder

• 147H014 2 lb (0.9 kg)

• Adjustable vinyl-coated holder clamps to cabinet edge

Cymbal Cradle

• 147H012 7 lb (3 kg)

• Holds up to 22" (559 mm) cymbals in ready-to-use position

• Vinyl-coated cradle, which protects and holds cymbals quietly, clamps to the cabinet edge

Pop-Up Music Desk
36-1/2" (927 mm)
48-1/8" (1222 mm)
(62224-1/2" mm)
Cymbal Cradle
Suspended Cymbal Holder

Music Rehearsal and Practice Rooms

Instrument Storage Systems

Application Information

Technical Sheet

Tuba/Sousaphone Mobile Storage Rack

• Wood parts are constructed of 3/4" (19 mm) industrial grade composite wood with no formaldehyde added

• Polyester laminate finish in Wenger standard colors

• Adjustable instrument cradles are constructed of padded steel weldments that can be positioned left or right to hold instruments

• Cradles are adjustable by hand, no tools required

• Racks are adjustable vertically and horizontally to hold a combination of different sized and shaped tubas and sousaphones

• Racks have four swivel, hard rubber casters with two front locking, 4" (102 mm) in diameter

• Top cross member is constructed of 14-gauge tubular steel

• Bottom cross member supports are covered with flexible PVC to protect instruments

• Ten-year warranty

• Assembly required

3-Unit Tuba/Sousaphone Mobile Storage Rack

• 148J007 - 121 lb (55 kg)

• Unit is configured to hold three tubas or three sousaphones or a combination of three total tubas and sousaphones.

4-Unit Tuba/Sousaphone Mobile Storage Rack

• 148J008 - 143 lb (65 kg)

• Unit is configured to hold four tubas or four sousaphones or a combination of four total tubas and sousaphones

Accessories

• 148J015 Accessory Cradle Kit

• It may be possible to store an additional tuba when only tubas, not a combination of tubas and sousaphones are being stored

Music Rehearsal and Practice Rooms

Instrument Storage Systems

Application Information

Guitar Rack

• 148J006._, Guitar Storage Rack, 147 lb (67 kg)

• Designed to transport and store up to 20 acoustic or electric guitars

• Stores up to 10 mariachi guitars and guitarrons

• Can store cased and uncased guitars

• Adjustable height upper cross supports to fit 3/4 to full size guitars

• Adjustable yokes to accommodate various styles and are removable to accommodate cased guitar storage

• Optional security cables help prevent instrument theft using standard padlocks with 3/8" (10 mm) maximum diameter x 1-3/8" (35 mm) wide shackle. (padlocks not included)

• Four swivel, hard rubber casters, with two front locking, 4" (102 mm) in diameter

• Fits through 33" (838 mm) wide door opening

• End panels are 3/4" (19 mm) thick industrial grade composite wood with no added formaldehyde and polyester laminate finish in Wenger standard colors

• Edging is 1/8" (3 mm) radiused PVC

• Lower cross supports are plywood core laminated panels with flexible soft PVC edging to protect instruments

• Dimensions: 65-3/4"w x 29-1/2"d x 72"h (1670 x 750 x 1829 mm)

• UL GREENGUARD certified - product certified for low chemical emissions: ul.com/gg - UL 2818

• Assembly required

• Ten-year warranty

Music Rehearsal and Practice Rooms

Instrument Storage Systems

Application Information

Technical Sheet

Stringed Instrument Mobile Storage Racks

• End panels are 3/4" (19 mm) thick industrial grade composite wood with no added formaldehyde and polyester laminate finish in Wenger standard colors

• Edging is 1/8" (3 mm) radiused PVC

• Racks have 2-1/2" (64 mm) swivel casters in yellow zinc finish for easy transport; front casters are locking

• UL GREENGUARD certified - product certified for low chemical emissions: ul.com/gg - UL 2818

• Ten-year warranty

• Assembly required

String Bass and Cello Racks

• 3-Unit String Bass Rack: 148J003._ 73 lb (33 kg)

• 4-Unit String Bass Rack: 148J004._ 83 lb (38 kg)

• 4-Unit Cello Rack: 148J001._ 55 lb (25 kg)

• 6-Unit Cello Rack: 148J002._ 66 lb (30 kg)

• Lower cross supports are plywood core laminated panels with flexible soft PVC edging to protect instruments

• Upper cross supports are plywood core laminated panels with PVC bonded edging to protect instruments

• All racks include brass bow pegs

• Holds uncased instruments 1/4 sized and up

Violin/Viola Rack

• 148J005._ 92 lb (42 kg)

• Double-tiered rack moves and stores up to sixteen cased instruments

• Cross supports are constructed of plywood core laminated panels with PVC bonded edging on top and bottom supports

• Holds cased instruments 1/2 size and up

• Spacer pegs are solid wood

Violin/Viola
3-Unit String Bass Rack

Music Rehearsal and Practice Rooms

Instrument Storage Systems

Application Information

OnBoard® Cargo Cart

• 210A003 6' (1829 mm) OnBoard Cargo Cart, 130 lb (59 kg) with hard casters 210A004 6' (1829 mm) OnBoard Cargo Cart, 130 lb (59 kg) with pneumatic casters

• Ideal for transporting marching band uniforms, hats, garments and musical instruments

• Designed to fit into trailers, semi-trailers and trucks with minimum 6' (1829 mm) door height

• Fits through standard 3' (914 mm) door

• Equipped with removable full-length garment bar and forty hanger retainer clips

• Up to three adjustable height shelves can be installed (sold separately)

• Bottom shelf stores and transports hats, flags (under 6' [1829 mm] in length) and instruments

• Capacities: thirty five marching band uniforms on garment bar, twenty-one hats on bottom shelf

• Durable black powder-coat paint finish

• Garment bar constructed of 12-gauge 1-1/4" (32 mm) round tubing with load capacity of 150 lb (68 kg)

• Uprights constructed of 16-gauge 1-1/4" (32 mm) round tubing; include slots for adding additional shelves

• Bottom shelf is constructed of 16-gauge steel construction with black powder-coat paint finish

• Top of garment bar to top of bottom shelf is 5' 1-1/2" (1562 mm)

• All-swivel, non-marking solid or pneumatic casters provide easy maneuverability

Range of 13 to 19" (330 to 483 mm)

Range of 13 to 19" (330 to 483 mm)

Range of 15-3/4 to 18-3/4" (400 to 476 mm)

• UL GREENGUARD certified - product certified for low chemical emissions: ul.com/gg - UL 2818

• Ten-year warranty

• Shipped unassembled

Accessories

• 210A002 - Adjustable shelf, 50 lb (23 kg)

• 210B230 - Hanger retainer clip (bag of 40)

• 210A220 - Protective cover

AdjustableHeightShelf(Optional)

AdjustableHeightShelf(Optional)

AdjustableHeightShelf(Optional)

BaseShelf(Included)

(184272-1/2" mm)

31-1/2" (800mm)

70-1/2" (1791 mm)

Robe

UltraStor® Robe and Uniform Cabinets

These are the premier cabinets for all your garments, hats, and shoes. UltraStor can be configured to your needs, giving you well-ventilated storage that keeps your clothing free from wrinkles and mildew so you can wear them right off the rack. UltraStor also exemplifies the epitome of Wenger Corporation engineering, giving you perfectly functional day-today operation and years of performance that holds up to institutional use while retaining it's good looks.

OnBoard® Cargo Cart

Perfect for transport in box trucks and trailers, OnBoard Carts are built with heavy-duty casters and 12-gauge steel. Outfit with shelves, garment bar or both. The number one choice of marching bands.

GearBoss X-Carts and Team Carts are rugged, metal storage carts that ride on a track in your storage room or leave the track to roll down the hallway. They are highly versatile and can be secured with doors and a standard padlock. Convenient

Rack 'n Roll® Garment Rack

This is the easy, smart way to move your bulky garments, gowns, coats, and uniforms from storage to rehearsal or performance for a fast change. The Rack 'n Roll garment rack is heavy-duty enough to hold a full wardrobe but designed so efficiently it can easily roll through standard doorways or elevators.

GearBoss® High-Density Storage

Robe and Uniform Storage

Music Rehearsal and Practice Rooms

Robe and Uniform Storage

Overview

Garments are an enormous investment requiring specialized storage and Wenger Corporation offers you the best choices in the industry. Ventilation is key, keeping dust out while allowing air to circulate and moisture to dissipate before it leads to mold and mildew. Wenger's innovative features and storage design elements have long set the standard, making sure all your robes, marching band uniforms, hats, and shoes receive the kind of storage solution their value warrants. And no matter what kind of garments you own or how many, Wenger has a wide range of solutions to fit your inventory and your budget. It's important these items have a secure, breathable space, and we look forward to finding the best solution for your specific needs.

Music Rehearsal and Practice Rooms

Robe and Uniform Storage

Application Information

UltraStor® Storage Cabinets

Our original, trusted and proven storage cabinets

Our patented polyethylene shelves are just part of the best-built, most-reliable storage cabinets available. Heavy-duty hardware and top-quality doors further ensure reliable day-to-day operation and unparalleled durability when you buy Wenger storage cabinets.

UltraStor cabinets are also designed to look great with virtually any décor. They're available in a range of sizes, colors and styles to fit a wide variety of needs. That includes different door types for different applications. Plus, UltraStor cabinets are modular so you can rearrange and even add units as needed.

Performance Requirements

ƒ Choice of solid doors, straight grille doors or no doors

ƒ Optional waterfall grille doors available

ƒ Polyester laminate and industrial grade composite wood core resists chipping and looks new years longer than other laminates

ƒ Shelves feature patented ventilation ridges and rounded front edges, improving airflow crucial to musical instrument, equipment, and garment longevity

ƒ Load-tested hinges and lock assemblies stand up to institutional use

ƒ Standard 27-1/2" (699 mm) wide and 21" (533 mm) narrow widths available

ƒ UL GREENGUARD Certified - Product certified for low chemical emissions: ul.com/gg - UL 2818

ƒ Ten-year warranty

Construction

ƒ Wall panels are 3/4" (19 mm) thick industrial grade composite wood with no added formaldehyde and polyester laminate finish in Wenger standard colors

ƒ Available in several core substrates to meet your specific needs: No formaldehyde added industrial grade composite wood (standard), fire-rated, moisture-resistant, FSC certified and Vencore (plywood)

ƒ Available with right- or left-hinged (standard) doors for easy access

ƒ Bolt-through construction maintains superior door and hardware condition, year after year

ƒ Seismic-compliant bracing available upon request as a special order

Cabinet #31 with full-length wood door
Cabinet #32 without doors

Music Rehearsal and Practice Rooms

Robe and Uniform Storage

Application Information

Cabinet Specifications - UltraStor Storage Cabinets

#31

Cabinet size:

27-1/2"w x 29-1/4"d x 85-5/8"h (699 x 743 x 2175 mm)

Weight:

239 lb (108 kg)

Compartment sizes:

25-1/2"w x 27-3/8"d x 11-1/4"h (648 x 695 x 286 mm)

25-1/2"w x 27-3/8"d x 65-3/8"h (648 x 695 x 1661 mm)

Stores: 11 uniforms or robes Upper shelf for additional storage

#34

Cabinet size:

48-1/2"w x 29-1/4"d x 85-5/8"h (1232 x 743 x 2175 mm)

Weight: 454 lb (206 kg)

Compartment sizes:

46-1/2"w x 27-3/8"d x 10-1/4"h (1181 x 695 x 260 mm)

46-1/2"w x 27-3/8"d x 63-5/8"h (1181 x 695 x 1616 mm)

Stores: 20 robes or uniforms Upper shelf for additional storage

#32

Cabinet size:

27-1/2"w x 29-1/4"d x 85-5/8"h (699 x 743 x 2175 mm)

Weight:

233 lb (106 kg)

Compartment sizes:

25-1/2"w x 27-3/8"d x 77-7/8" h (648 x 695 x 1978 mm)

Stores: 22 uniforms

#35

Cabinet size:

48-1/2"w x 29-1/4"d x 85-5/8"h (1232 x 743 x 2175 mm)

Weight: 445 lb (202 kg)

Compartment sizes:

46-1/2"w x 27-3/8"d x 76-1/2"h (1181 x 695 x 1943 mm)

Stores: 40 uniforms

#33

Cabinet size:

27-1/2"w x 29-1/4"d x 85-5/8"h (699 x 743 x 2175 mm)

Weight: 252 lb (114 kg)

Compartment sizes:

25-1/2"w x 27-3/8"d x 11-1/4"h (648 x 695 x 286 mm)

25-1/2"w x 27-3/8"d x 39-5/8"d (648 x 695 x 1007 mm)

Stores: 11 uniforms and 12 hats

#36

Cabinet size:

48-1/2"w x 29-1/4"d x 85-5/8"h (1232 x 743 x 2175 mm)

Weight: 479 lb (217 kg)

Compartment sizes:

46-1/2"w x 27-3/8"d x 10-1/4"h (1181 x 695 x 260 mm)

46-1/2"w x 27-3/8"d x 38-3/8"h (1181 x 695 x 975 mm)

Stores: 20 uniforms and 24 hats

Standard compartment sizes. Cabinets are shown without doors. The provided dimensions are nominal and intended for estimation purposes only. For assistance with specific installation requirements and product applications, please contact your Wenger Corporation representative

Music Rehearsal and Practice Rooms

Robe and Uniform Storage

Typical Drawings

UltraStor Storage Cabinets - Suggested Robe/Uniform Sets

1. These drawings are not to scale.

2. Plan and Elevation Views shown in Typical Drawing section.

Note: Cabinet CAD and Revit symbols are available at wengercorp.com.

Cabinets shown without doors.

Set R-100

100 Robes

20' 2-1/2" (6.16 m)

2' 5-1/4" (743 mm)

Qty. Description 5 #34 Cabinet

7' 6" (2286 mm) (Min. Rough Opening)

Set U-100

100 Uniforms and Hats

20' 2-1/2" (6.16 m)

2' 5-1/4" (743 mm)

Qty. Description 5 #36 Cabinet

5 Total

7' 6" (2286 mm) (Min. Rough Opening)

Notes:

1. In an area where soffits are to be constructed above Wenger Corporation cabinets, a minimum rough opening height of 7' 6" (2286 mm) is required for cabinet installation.

2. Cabinets have full double door or no door option only.

2. Standard door is left-hand swing. Right-hand swing door is available.

3. Closure panels available.

Music Rehearsal and Practice Rooms

Side Closure
Soffit Closure

Music Rehearsal and Practice Rooms

Accessories

Notes:

1. For installations that require an exposed exterior back to the cabinet, finished back panels securely attach to cabinets. The finished exterior back panel is 1/2" (13 mm) thick and is available in 14", 27" and 48" (356, 686 and 1219 mm) widths.

2. The panel standard color is Oyster. Also available to match Wenger standard color options.

Top Back Closure
Finished Exterior Back Panel

Music Rehearsal and Practice Rooms

Seismic Applications - UltraStor

x

Gauge G.S. Unpunched "C" Stud Backing

Bracket Typ. Both Sides (Two Per Cabinet)

5/16-9" x 2" Lag Screws 2" Effective Min. Embedment Into Floor (Eight req'd per cabinet)

#12 F.H.W. Screw 3-1/2" LG Min. Penetration 1-1/2" into Solid Wood (Two req'd per cabinet)
Wall Anchor C.M.U. Bracing
Leveler Bracket
Front Stretcher
#10 x 3/4" Pan Head Screw Four Screws per Bracket (Eight per cabinet)
Leveler Bracket
#10 x 3/4" Pan Head Screw Four Screws per Bracket (Eight per cabinet)
Front Stretcher

Music Rehearsal and Practice Rooms

Robe and Uniform Storage

Application Information

Corner Cabinet

ƒ Basic cabinet 460 lb (209 kg)

ƒ Multi-purpose storage cabinet with a variety of internal storage compartment options

ƒ Cabinet may be placed between adjacent rows of cabinets meeting in a corner, or may stand alone

ƒ Wall panels are 3/4" (19 mm) thick industrial grade composite wood with no added formaldehyde and polyester laminate finish in Wenger standard colors

ƒ Standard top panel is 3/4" (19 mm) thick plywood with polyester laminate finish

ƒ Door opening is 24" (610 mm) wide

ƒ Door options:

- Full wood door - same construction as wall panels

- Full grille door - welded steel grille construction with powder-coat paint finish

- No door

ƒ Cabinets have five adjustable steel leveling glides for uneven floors

ƒ Deflector panel is constructed of high density fiberboard with oyster laminate prevents items from falling from shelves

If FSC certified is required, deflector panel is constructed of unfinished tempered hardboard

ƒ Ventilation holes are built-in on cabinet top panel to dissipate moisture and aid air circulation

ƒ Bottom and top tubular steel frame adds strength to cabinet

ƒ UL GREENGUARD Certified - Product certified for low chemical emissions: ul.com/gg - UL 2818

ƒ Ten-year warranty

Stationary Shelf Option

ƒ Polyethylene shelf with three tubular steel support frames

ƒ Dimensions: 30" deep x 46-1/2" wide (762 x 1181 mm)

Garment/hangar bars

ƒ Includes two steel hangar bars

ƒ Each bar stores up to twenty uniforms or robes spaced 2" (51 mm) apart

48-1/2" (1232 mm)

48-1/2" (1232 mm)

Revolving Shelf

ƒ Shelf made of 12-gauge steel in powder-coat paint finish, attaches to revolving center post that contains adjustable holes.

ƒ Cabinet will hold up to six 360 degree shelves

Garment Ring

ƒ Includes one set of rings made of 5/8" (16 mm) diameter steel rod in powder-coat paint finish

ƒ Will hold up to thirty uniforms or thirty choral robes

ƒ Add a second set of rings to increase storage to hold up to thirty more uniforms maximum of two sets)

Flag Storage

ƒ Includes one set of garment rings

ƒ A 360 degree bottom shelf with carpeted pad that attaches to a center post

ƒ Will hold up to 200 flags

48-1/2" (1232 mm)

48-1/2" (1232 mm)

Maximum height of 85-5/8" (2175 mm) with levelers fully extended

Maximum height of 85-5/8" (2175 mm) with levelers fully extended

Music Rehearsal and Practice Rooms

Robe and Uniform Storage

Application Information

Wardrobe Cabinet

With all you give to the program, it's time you get something just for you. There's room for your performance attire, any uniforms, personal instruments, and even a special space for your personal files and records.

Performance Requirements

ƒ Individual secure storage

ƒ Three adjustable shelves for added flexibility

ƒ Two Pendaflex file-sized drawers for storing personal files

ƒ Garment compartment with hanger rod and venting holes to help dissipate moisture, mildew, and odors

ƒ Full, locking door with individual key

ƒ Mirror mounted on inside of door

ƒ UL GREENGUARD Certified - Product certified for low chemical emissions: ul.com/gg - UL 2818

ƒ Ten-year warranty

Construction

ƒ Bolt-through construction and tamper-resistant hardware

ƒ Shipped fully assembled, with door attached

ƒ 30-1/8"w x 29-1/4"d x 84"h (765 x 743 x 2134 mm)

ƒ Wall panels are 3/4" (19 mm) thick industrial grade composite wood with no added formaldehyde and polyester laminate finish in Wenger standard colors; body of cabinet matches door except for Oyster, Maple and Pebble where body finish is Oyster

(76530-1/8" mm) 29-1/4" (743mm)

(2134

84"
mm)

Music Rehearsal and Practice Rooms

Robe and Uniform Storage

Application Information

GearBoss® by Wenger is a complete, state-of-the-art system designed to help with all aspects of your athletic program. From lockers, to storage, to equipment transport and fund-raising solutions, GearBoss products save you time, space, and effort. They're flexible and customizable so your system can change as your needs change.

Plus, we'll work with you every step of the way to make sure you get exactly the right system–nothing more, nothing less.

GearBoss innovations are driven by these key principles:

Mobility – Haul equipment and apparel wherever you need it, without hassle

Flexibility – Storage systems and custom lockers that adapt to your changing needs

Organization – Keep track of your equipment and apparel easily with storage and locker rooms that get in order and stay in order

Sanitation – Superior ventilation and anti-microbial surfaces help equipment stay clean, dry and germ-free

Space – High-Density storage and room design services for maximizing every inch of space

Security – Lockable doors and side panels keep apparel and equipment safe and secure

Pride – Equipment and locker rooms that set you apart and reflect your team spirit

Featured Components Include:

ƒ GearBoss® High-Density Storage

- X-Cart™

- Team Cart™

- SportCart™

ƒ GearBoss II High-Density Storage

ƒ GearBoss Shelving

Music Rehearsal and Practice Rooms

Robe and Uniform Storage

Application Information

GearBoss® High-Density Storage

GearBoss high-density storage carts create more room in less space – improving space efficiency by as much as 50% – by using an innovative system of tracks and rolling carts.

X-Carts are designed to move laterally on the track and stay in your equipment room.

Team Carts are portable and engineered with retractable track guides so you can move the equipment around the room or off campus. No more wasted time running back and forth to the storage room.

Every cart can be reconfigured for maximum storage. The best solution includes a mix of X-Carts and Team Carts.

Your Wenger Corporation representative will design the best solution for you.

Bottom line — you'll get a flexible sports storage system engineered to meet every challenge.

Performance Requirements

ƒ Convert traditional storage area into organized, secure high-density space

Construction

ƒ Available in two widths 32" (813 mm) and 48" (1219 mm).

ƒ Roller guides follow the track keeping the units aligned and are made of glass-filled nylon

ƒ Intended for indoor use in normal ambient temperature and humidity conditions — must not be exposed to prolonged outside weather conditions

ƒ Welded chassis made from 16-gauge, 14-gauge and 12-gauge components

ƒ Upright support tubes constructed from large 2" (51 mm) diameter, 16-gauge steel tubing

ƒ Resistant-welded heavy-duty steel wire grille end frames

ƒ Durable powder-coat paint finishes

ƒ Variety of colors available for wire grille ends

ƒ Heavy-duty 6" (152 mm) wheels on the Team Cart or 8" (203 mm) wheels on the X-Cart provide easy movement

ƒ Roof panel constructed from solid 5/8" thermofused composite wood core with aluminum extrusions

ƒ Roof assembly and wire shelf load capacity is 150 lb (68 kg) each evenly distributed

Total cart load capacity is 400 lb (181 kg)

ƒ 32" wide x 78" long x 79" high (813 x 1981 x 2007 mm)

ƒ 48" wide x 78" long x 79" high (1219 x 1981 x 2007 mm)

ƒ UL GREENGUARD Certified - Product certified for low chemical emissions: ul.com/gg - UL 2818

ƒ Ten-year warranty

Music Rehearsal and Practice Rooms

Robe and Uniform Storage

Application Information

GearBoss® X-Cart™

High density storage carts that maximize your space by sliding together and apart along a fixed aluminum track.

Transforming your equipment room into an organized, clean, professional storage space is easy with GearBoss. Our rugged X-Carts create an efficient, smart system of storage that will save space, protect your equipment, and save you loads of time spent organizing.

X-Carts roll laterally along a fixed aluminum track creating aisles between carts when you need to get at your equipment and closing back together when you don't. Carts can be configured with a full range of panels, doors and grilles coordinated with your team colors. You can also add accessories such as doors, helmet hangers, shoulder pad stackers, hanger bars, shelves, dividers, track locks and more. Select colors from the manufacturer's standard pallet.

X-Cart
X-Cart
(2007 mm)
(1219mm)
(2007 mm)
(813mm)

Music Rehearsal and Practice Rooms

GearBoss X-Carts Examples

48" wide X-Cart with four 24" wide metal wire shelves and two garment bars

Commonly used to store uniforms (300 - 350 uniforms: jerseys hung; pants/shorts folded)

48" wide X-Cart with eight 24" wide metal wire shelves

Commonly used for folded garment storage (960 - 1000 t-shirts and/or shorts)

Used for hanging garments (600 - 700 hung jerseys)

48" wide X-Cart with four garment bars

Music Rehearsal and Practice Rooms

Robe and Uniform Storage

Application Information

GearBoss® Team Cart™

High density storage carts that can leave the track and transport your gear wherever you need it. Now it's easy to get your equipment out of storage and to the gym, practice area, parking lot or sidelines – without breaking a sweat.

GearBoss Team Carts retain all the convenient storage benefits of X-Carts but are engineered to leave the track. Imagine all your gear organized on one or two high-density storage carts, traveling wherever it needs to go – and back again. Or park and lock your equipment in a temporary space, instantly creating safe, secure storage anywhere.

Aluminum
holds carts

Music Rehearsal and Practice Rooms

GearBoss Team Cart Examples

32" wide Team Cart with two 32" wide metal wire shelves and one garment bar

Commonly used to store uniforms (150 - 175 uniforms: jerseys hung; pants/shorts folded)

32" wide Team Cart with five 32" wide metal wire shelves

Commonly used to store helmets (70 helmets on shelves)

Music Rehearsal and Practice Rooms

Robe and Uniform Storage

Application Information

Accessories

Truss Bar/Garment Bar

ƒ Designed to be installed into the GearBoss X-Carts or Team Carts using two accessory hanger brackets

ƒ The truss bar is designed to be used with shoulder pad hangers, helmet hangers

ƒ The double-bar construction reduces the swinging motion of hanging equipment

ƒ The garment bar is designed to be used with standard garment hangers, support up to 175 jerseys

ƒ Durable powder-coat paint finish, black

ƒ Shipped ready to be installed, no tools required

ƒ Truss Bar, 1-1/2" x 4" x 75-1/2" long (38 x 102 x 1918 mm)

200 lb (90.7 kg) load rating

ƒ Garment Bar, 1-1/2" diameter x 75-1/2" long (38 x 1918 mm)

100 lb (45.4 kg) load rating

Metal Wire Shelves

ƒ Designed to be installed into the GearBoss X-Carts or Team Carts using four accessory hanger brackets per shelf

ƒ Resistant welded construction of 3/16" and 5/16" (5 and 8 mm) metal wires

ƒ Shipped ready to be installed, no tools required

ƒ The 24" (610 mm) wide shelf allows for shelving half of a 48" (1219 mm) cart or all of the cart with two shelves

ƒ Wire Shelf 24" (610 mm), dimensions 21-5/8" x 74-7/8" (549 x 1902 mm)

Approximate weight: 35 lb (15.9 kg)

ƒ Wire shelf, 32" (813 mm), dimensions 27-5/8" x 74-7/8" (702 x 1902 mm)

Approximate weight: 40 lb (18.1 kg)

ƒ Rated for 150 lb (68 kg) evenly distributed

Island Stop

ƒ Designed to be permanently installed as an end stop for the GearBoss Carts

ƒ Welded frame constructed of durable 2" (51 mm) diameter x 16 gauge steel tubing

ƒ Durable powder-coat paint finish, black

ƒ Dimensions are 9-5/8" wide x 42-3/4" long x 30-1/2" tall (244 x 1086 x 775 mm)

ƒ Approximate weight: 24 lb (10.9 kg)

ƒ Shipped fully assembled

Metal Wire Shelves
Truss Bar
Garment Bar
Hanger Bracket (included)
Island Stop

Music Rehearsal and Practice Rooms

Robe and Uniform Storage

Application Information

Accessories (continued)

Solid End Closure

ƒ Made from solid 5/8" wood composite with polyester laminate finish and black heavy-duty PVC edge banding

ƒ Can be ordered in a variety laminate colors

ƒ Provides an excellent space for team logos

ƒ Adds a level of security to carts

ƒ Cart end closure, 32" (813 mm)

ƒ Dimensions: 27-1/4" x 64-5/16" (692 x 1634 mm)

Approximate Weight: 25 lb (11.3 kg)

ƒ Cart end closure, 48" (1219 mm)

ƒ Dimensions: 43-1/4" x 64-5/16" (1099 x 1634 mm)

Approximate Weight: 48 lb (21.8 kg)

Three Piece Solid Side Closure Accessory

ƒ Made from solid 5/8" wood composite with polyester laminate finish and black heavy-duty PVC edge banding

ƒ Can be ordered in a variety laminate colors

ƒ Securely closes one side of cart opposite open side or opposite a bypass door adding a level of security to carts

ƒ Shipped ready-to-assemble

ƒ Dimensions: 65" x 73" (1651 x 1854 mm)

ƒ Approximate Weight: 75 lb (34 kg)

Bypass Doors Accessory

ƒ Made from solid 5/8" wood composite with polyester laminate finish and black heavy-duty PVC edge banding

ƒ Can be ordered in a variety laminate colors

ƒ Easy glide aluminum track provides convenient access

ƒ Sliding doors lockable with padlock (not supplied) for added security

ƒ Shipped ready-to-assemble

ƒ Dimensions: 65" x 73" (1651 x 1854 mm)

ƒ Approximate Weight: 86 lb (39 kg)

Solid End Closure
Three Piece Solid Side Closure
Bypass Doors

Music Rehearsal and Practice Rooms

Robe and Uniform Storage

Application Information

GearBoss® SportCart™

Compact GearBoss SportCarts can be used as part of a larger GearBoss installation or as a mobile, stand-alone solution. They are designed for use in small spaces and for sports that require less storage. Four heavy-duty, 5" swivel casters make mobility a snap. The nimble SportCart will navigate narrow hallways, shorter door openings and most elevators. It's the small-space storage solution.

Performance Requirements

ƒ High density storage on or off the track

ƒ Heavy-duty commercial-grade swivel casters for easy moving on hard surfaces such as concrete, gym floors, tile and low-pile unpadded carpet

ƒ UL GREENGUARD Certified - Product certified for low chemical emissions: ul.com/gg - UL 2818

Construction

ƒ Welded chassis made from 16-gauge, 14-gauge and 12-gauge components

ƒ Upright support tubes constructed from large 2" (51 mm) diameter, 16-gauge steel tubing

ƒ Resistant welded heavy-duty steel wire grille end frames

ƒ Variety of colors available for wire grille ends

ƒ Extra wide heavy-duty 5" (127 mm) swivel casters made from glass-filled nylon with polyurethane non-marring outer roller guides

ƒ Roof panel constructed from solid 5/8" thermofused composite wood core with aluminum extrusions

ƒ Roof assembly load capacity is 150 lb (68 kg) evenly distributed Total cart load capacity is 400 lb (181 kg)

ƒ 32" (813 mm) wide x 41-3/4" (1060 mm) long x 73" (1854 mm) high

ƒ Ten-year warranty

Accessories

Swing Door & Side Closure

ƒ Swing door lockable with padlock (not supplied) for added security

ƒ Made from solid 5/8" wood composite with polyester laminate finish and black heavy-duty PVC edge banding

ƒ Can be ordered in a variety laminate colors

ƒ Dimensions: Swing Door 34-1/8" x 63-1/2" (867 x 1613 mm)

ƒ Side Closure 34-7/8" x 65-5/8" (886 x 1667 mm)

ƒ Approximate Weight: Swing Door 52 lb (24 kg)

ƒ Side Closure 41 lb (19 kg)

Garment Bar

ƒ Designed to be installed using two included hanger brackets

ƒ Designed to be used with standard garment hangers and supports up to 80 jerseys

ƒ Durable black powder-coat paint finish

ƒ Dimensions: 37-1/2" (953 mm) x 1-1/2" OD"

ƒ Rated for 100 lb (45 kg) weight evenly distributed

Metal Wire Shelves

ƒ Designed to be installed using four included hanger brackets per shelf

ƒ Resistant welded construction of 3/16" and 5/16" (0.1875" and 0.3125") metal wires

ƒ Rated for 150 lb (68 kg) evenly distributed

ƒ Dimensions: 27-5/8" x 37" (702 x 940 mm)

ƒ Approximate Weight: 20 lb (9 kg)

73" (1854 mm)
SportCart (106041-3/4" mm)withhandle 32" (813mm)
Garment Bar Accessory
Swing Door & Side Closure Accessory
Wire Shelf Accessory
Hanger Bracket (included)

Music Rehearsal and Practice Rooms

Robe and Uniform Storage

Application Information

Sport Cart Examples

SportCart with three metal wire shelves

Commonly used for folded garments (160 - 200 folded t-shirts and/or shorts)

SportCart with two metal wire shelves and one garment bar

Commonly used for uniforms (80 uniforms: 80 hung jerseys; 80 folded pants/shorts)

SportCart with two garment bars

Commonly used for uniforms (160 hung jerseys; 1/2" spacing)

Music Rehearsal and Practice Rooms

Robe and Uniform Storage

Application Information

GearBoss Shelving

This is the affordable, flexible, durable solution for shelving storage and workspace needs. It works great for athletic, music and marching band storage; and theatre garment and prop storage. The cantilever design optimizes overhead space and keeps the floor free from supports for extra room. The system is so versatile it can be configured to your specific needs to make sure you get the maximum storage space.

Performance Requirements

ƒ Cantilever design keeps the floor open for carts and flexible use

ƒ Intended to be installed on floors with less than 1" (25 mm) of variation over the run of shelving

ƒ Holes at 1" (25 mm) increments provide easy adjustability

ƒ Shelves are adjustable by hand – no tools required

ƒ Each bay is load-rated at 1,000 lb (450 kg) (if installation instructions are strictly followed)

ƒ Spans doors and windows, if necessary

ƒ Easy to install and relocate

ƒ Uprights and mounting brackets are zinc-plated to avoid rust

Construction

ƒ Available in bays 4'w x 8'h (1219 x 2438 mm), custom heights are available

ƒ Shelf supports are 14-gauge 7/8" (22 mm) square tube-steel with silver powder-coat paint finish

ƒ Aluminum shelf fronts feature a 3/8" (10 mm) lip to retain a hardboard insert or work surface option

ƒ Ten-year warranty

Music Rehearsal and Practice Rooms

Robe and Uniform Storage

Application Information

Accessories

Shelves, 30-1/2" and 17-1/2"

ƒ 30-1/2" (775 mm) cantilevered shelf with 4 support tubes spaced 5-1/4" (133 mm)

ƒ 17-1/2" (445 mm) cantilevered shelf with 2 support tubes spaced 5-1/4" (133 mm)

ƒ Shelves can be mounted and adjusted in 1" (25 mm) increments without tools

ƒ Both shelves fronted with a contoured aluminum extrusion with a 3/8" (10 mm) lip to retain a hardboard insert

ƒ Each shelf is rated for 250 lb (113 kg) evenly distributed, not to exceed 1,000 lb (454 kg) per bay

ƒ All steel parts have a durable silver powder-coat paint finish

ƒ Shelf brackets are formed 12-gauge steel

ƒ Shelf support are 14-gauge 7/8" (22 mm) steel tubes

Work Surface Panel

ƒ 29-1/4" (743 mm) x 45-3/4" (1162 mm) panel lays directly inside a 30-1/2" shelf

ƒ 1-1/8" (29 mm) graphite polyester laminated particle board with PVC edge banding - black only

Drawer

ƒ Mounts to underside of a work surface panel accessory for a 30-1/2" shelf

ƒ 14-gauge steel construction

ƒ Durable black powder-coat paint finish

ƒ Rated for 100 lb (45 kg) evenly distributed

Garment Bar/Hanging Bar

ƒ 48" (1219 mm) x 14-gauge x 1-1/2" (40 mm) round steel tube

ƒ All steel parts have a durable black powder-coat paint finish

ƒ Durable black powder-coat paint finish

ƒ Mounts to underside of shelves without tools

ƒ Rated for 100 lb (45 kg) evenly distributed

ƒ Interchangeable companion products:

- Football helmet hanger

- Shoulder pad hanger - long

- Shoulder pad hanger - short

Lock Box

ƒ Door is hinged at the bottom so it can drop and stay open for easy access

ƒ Sides, top and bottom panels are 16-gauge steel

ƒ Features upper and lower contoured aluminum extrusions

ƒ Laminated wood door with keyed lock

ƒ Door is 5/8" (16 mm) graphite pebble polyester laminated board with PVC edge banding - black only

ƒ Rated for 100 lb (45 kg) evenly distributed

ƒ Mounted and adjustable without tools

ƒ Dimensions: 16" x 18" x 46" (406 x 457 x 1168 mm)

Peg Board Back

ƒ Mounts directly onto existing shelf banks

ƒ Rated for 40 lb (18 kg) evenly distributed

ƒ The 1/4" thick peg board material is not supplied by Wenger Corporation and must be purchased separately

Lock Box
Garment Bar
Work Surface Panel
Drawer
17-1/2" Shelf
30-1/2" Shelf

Music Rehearsal and Practice Rooms

GearBoss Sample Layouts

GearBoss Carts and Shelving

Music Rehearsal and Practice Rooms

Application Information

Miscellaneous Information

Technical Sheets are included for:

ƒ Rack n' Roll®

ƒ OnBoard® Uniform Cart

ƒ OnBoard® Cargo Cart

Music Rehearsal and Practice Rooms

Robe and Uniform Storage

Application Information

Technical Sheet

Rack ‘n Roll® Garment Rack

• 028B001 4' (1219 mm) Rack 'n Roll 140 lb (63.5 kg) including one basket

• 028B002 6' (1829 mm) Rack 'n Roll 163 lb (74 kg) including one basket

• Load Capacities

- 4' (1219 mm) Rack 'n Roll total load capacity - 200 lb (91 kg), includes top shelf load capacity of 25 lb (11 kg) and hanger bar load capacity of 100 lb (45 kg)

- 6' (1829 mm) Rack 'n Roll total load capacity - 300 lb (136 kg), includes top shelf load capacity of 25 lb (11 kg) and hanger bar load capacity of 150 lb (68 kg)

• Ideal for transporting props, costumes, or other garments

• Equipped with full-length hanger bar with space for full-length costumes

• Folding basket organizes smaller items and stores compactly when not in use

• 14-gauge bottom shelf protects longer garments from dragging on the floor

• 16-gauge top shelf is ideal for lightweight items

• Fits through standard 32" (813 mm) door

• 4' (1219 mm) model is designed for use in passenger elevators; minimum elevator size: 5' (1524 mm)

• 4' (1219 mm) model designed for one-person operation; two people required for 6' (1829 mm) model

• Assembles without the use of tools (1/2" wrench required for initial caster assembly only)

• Durable black powder-coat paint finish

• Hanger bar constructed of 1-1/4" 11-gauge tubing

• Uprights constructed of 13-gauge, 1-1/2" inch outside diameter (38 mm) round tubing

• 5" (127 mm) swivel, locking, non-marking casters provide easy maneuverability

• Basket is 20-7/8" x 14"w x 10-7/8"h (530 x 356 x 276 mm) when open; 20-7/8" x 14"w x 2-5/8"h (530 x 356 x 67 mm) when folded

• 4' (1219 mm) model stores compactly in 24" x 48" (610 x 1219 mm) floor space; allow 70-1/2" (1791 mm) for height (unloaded)

• 6' (1829 mm) model stores compactly in 24" x 72" (610 x 1829 mm) floor space; allow 70-1/2" (1791 mm) for height (unloaded) plus 3/8" (9.5 mm) brake protrusion on one side

• Top of hanger bar to top of bottom shelf is 5'-1" (1550 mm)

• UL GREENGUARD certified - product certified for low chemical emissions: ul.com/gg - UL 2818

• Dust covers have security straps and two zippers on one side; constructed with black 600 Denier material

• Ten-year warranty

70-1/2" (1791 mm)

48"72"for6'(1829mm)unit for4'(1219mm)unit

Accessories continued on next page.

24" (610mm)

Music Rehearsal and Practice Rooms

Robe and Uniform Storage

Application Information

Accessories

• 028B007 Additional Folding Basket, 4.1 lb (1.9 kg)

• 028B013 Costume Divider Tags, pack of 25

• 210B230 Hanger Retainer Clips, pack of 40

• 028B014 4' (1219 mm) Dust Cover

• 028B015 6' (1829 mm) Dust Cover

• 028B016 Privacy Screen

Multiple Rack 'n Roll units can be stored stacked as shown. It is recommended that the maximum number of stacked units does not exceed four. It is also recommended that two people stack the units for storage. Not intended to be moved when stacked.

Music Rehearsal and Practice Rooms

Robe and Uniform Storage

Application Information

OnBoard® Uniform Cart

• 210A007 OnBoard Uniform Cart, 56 lb (25 kg)

• Ideal for transporting marching band uniforms in the storage compartments of a coach bus

• Designed to fit into trailers, semi-trailers and trucks

• Equipped with two 16-gauge, 1-1/4" (32 mm) round steel tubing with steel end plates for labeling

• Frame is constructed of 14-gauge 1-1/4" (32 mm) round tubular steel in black powder-coat paint finish

• Back and bottom tray constructed of black ABS plastic for superior strength and durability

• Fits through standard 32" (813 mm) door

• Includes built-in handholds for tilting and sliding cart into storage compartment - no lifting involved

• Glides included on back of cart for sliding into compartment

• Capacity for twenty-four marching band uniforms

• Twenty eight hanger retainer clips included with cart

• All-swivel, non-marring solid polypropylene 4" dia. (102 mm) casters provide easy maneuverability

• Dimensions: 48" (1219 mm) long x 23" (584 mm) deep x 43" (1092 mm) high

• UL GREENGUARD Certified - Product certified for low chemical emissions: ul.com/gg - UL 2818

• Ten-year warranty

• Shipped fully assembled

(121948"mm)

Music Rehearsal and Practice Rooms

Robe and Uniform Storage

Application Information

OnBoard® Cargo Cart

• 210A003 6' (1829 mm) OnBoard Cargo Cart, 130 lb (59 kg) with hard casters 210A004 6' (1829 mm) OnBoard Cargo Cart, 130 lb (59 kg) with pneumatic casters

• Ideal for transporting marching band uniforms, hats, garments and musical instruments

• Designed to fit into trailers, semi-trailers and trucks with minimum 6' (1829 mm) door height

• Fits through standard 3' (914 mm) door

• Equipped with removable full-length garment bar and forty hanger retainer clips

• Up to three adjustable height shelves can be installed (sold separately)

• Bottom shelf stores and transports hats, flags (under 6' [1829 mm] in length) and instruments

• Capacities: thirty five marching band uniforms on garment bar, twenty-one hats on bottom shelf

• Durable black powder-coat paint finish

• Garment bar constructed of 12-gauge 1-1/4" (32 mm) round tubing with load capacity of 150 lb (68 kg)

• Uprights constructed of 16-gauge 1-1/4" (32 mm) round tubing; include slots for adding additional shelves

• Bottom shelf is constructed of 16-gauge steel construction with black powder-coat paint finish

• Top of garment bar to top of bottom shelf is 5' 1-1/2" (1562 mm)

• All-swivel, non-marking solid or pneumatic casters provide easy maneuverability

Range of 13 to 19" (330 to 483 mm)

Range of 13 to 19" (330 to 483 mm)

Range of 15-3/4 to 18-3/4" (400 to 476 mm)

• UL GREENGUARD certified - product certified for low chemical emissions: ul.com/gg - UL 2818

• Ten-year warranty

• Shipped unassembled

Accessories

• 210A002 - Adjustable shelf, 50 lb (23 kg)

• 210B230 - Hanger retainer clip (bag of 40)

• 210A220 - Protective cover

AdjustableHeightShelf(Optional)

AdjustableHeightShelf(Optional)

AdjustableHeightShelf(Optional)

BaseShelf(Included)

(184272-1/2" mm)

31-1/2" (800mm)

70-1/2" (1791 mm)

Convenient and functional storage systems that reduce the space needed for storage.

Music Library System

The Wenger Music Library System makes music much more accessible and easy to locate in only a fraction of the space.

The patented highdensity, roll-out design cuts storage space nearly in half when compared to standard file cabinets and also gives you a much cleaner, more organized appearance.

ƒ Adjustable shelves store 9" x 12" (229 x 305 mm) sheet music, file boxes, folders, etc.

ƒ Rugged square tubular steel frame with 34-1/2"w (876 mm) plywood-core shelves coated in protective polyester laminate.

ƒ Units are 44"d (1118 mm) and 16"w (406 mm) when closed, 80"d (2032 mm) when open. Oversized width available.

ƒ 7-shelf model is 92"h (2337 mm) and requires 8' (2438 mm) ceiling height; 6-shelf model is 81-1/2"h (2070 mm) and requires 7' (2134 mm) ceiling height.

ƒ Optional shelf lock.

ƒ Recommended for installation on concrete or epoxy-coated concrete for best performance. Also can be installed on industrial grade carpet without pad.

Folio Cabinets

Tall cabinets store up to 100 of your band, orchestra, or choral folios in a single, organized unit. Mobile units offer easy portability with adjustable shelving for band/orchestra folios or choral folios. All models are attractive, lockable and built tough to provide day-to-day reliability and long-lasting value.

Music Sorting Rack

Sort score by instrument and roll it from the Music Library to the rehearsal or performance space.

The strong, stable Wenger design is extremely portable and will provide great convenience for years.

Percussion Workstation

A lockable storage solution and practical work area that keeps percussion instruments organized and ready to play. Large 48" x 24" (1219 x 610 mm) worktop that is padded to silence instruments not in use.

Foam-lined drawers store triangles, sand blocks, brushes, drumsticks, mallets, tambourines, maracas, and other small items.

Shelves hold the largest standard-size cymbals and the lower compartment is perfect for storing parade and snare drums. Four heavy duty casters glide over any surface and provide stability.

Music Rehearsal and Practice Rooms

Music Storage

Overview

In addition to our instrument and robe/uniform storage solutions, Wenger offers individualized cabinets for sheet music, elementary musical instrument, miscellaneous instrument and accessories and general storage. Designed and manufactured with the same level of quality and materials, our Music Storage solutions are built to last.

Sheet Music Storage:

Music Library System - Storage options that cut sheet music storage by more than half. High-density slide-out design organizes music with a systematic approach that can save hours.

Folio Cabinets - Keeps music folios organized in a mobile cabinet. Shelf space is adjustable in 1/2" (13 mm) increments to accommodate choral, band and orchestra folios.

Music Sorting Rack - Strong, stable design that assists in the sorting of scores and easily rolls from your Music Library to rehearsal or performance areas.

Other Solutions include:

ƒ Poster/Teaching Storage Cabinet

ƒ Percussion Workstation

ƒ Music Sorting Rack

ƒ Mobile Folio Cabinets

ƒ ORFFgarage®

ƒ ORFFmobile®

Music Rehearsal and Practice Rooms

Music Storage

Application Information

Music Library System

ƒ Available in 6-shelf unit or 7-shelf-unit

ƒ 173G700._ Standard width 7-shelf unit 274 lb (124 kg), Oversized width 7-shelf unit 313 lb (142 kg)

ƒ 173G600._ Standard width 6-shelf unit 243 lb (110 kg), Oversized width 6-shelf unit 278 lb (126 kg)

ƒ Overall Dimensions:

Closed position: 16" wide x 44" deep x 92-1/2" high (406 x 1118 x 2350 mm) 7-shelf unit

Open position: 16" wide x 80" deep x 92-1/2" high (406 x 2032 x 2350 mm) 7-shelf unit 6-shelf unit is 82" (2081 mm) high Oversized units are 19" (483 mm) wide Note: Add 3" (80 mm) to overall width of set for installation rough opening.

ƒ Pull-out design, equally spaced shelves provide 10-1/2" (267 mm) of available height per shelf Standard width units have 12" x 34-1/2" x 10-1/2" (305 x 876 x 267 mm) of shelf space available

Oversized width units have 15" x 34-1/2" x 10-1/2" (381 x 876 x 267 mm) of shelf space available

ƒ On the 7-shelf unit, four shelves are adjustable and three shelves are fixed (upper fixed shelf can be repositioned in five different locations for greater flexibility)

On the 6-shelf unit, four shelves are adjustable and two shelves are fixed

ƒ Units are constructed of 3/4" (19 mm) thick industrial grade composite wood with no added formaldehyde and polyester laminate finish in Wenger standard colors

ƒ Shelves are reinforced with an aluminum extrusion that includes a slot with vinyl material for labeling with dry-erase markers

ƒ Frame is 16-gauge, 1" (25 mm) square tubular steel, painted black

ƒ Back panel is designed to fit on either side of unit for left or right hand use

ƒ Includes four 8" (203 mm)-diameter casters for easy movement of unit

ƒ 173G011._ End Cover, 7-shelf unit, Oyster 71 lb (33 kg)

173G010._ End Cover, 6-shelf unit, Oyster 63 lb (29 kg)

ƒ Each unit contains bumpers for control of side and outward movement

ƒ Unit requires anchoring to floor and wall Weight Capacities: Each shelf is rated at 100 lb (45 kg) maximum capacity

- 7-shelf unit = 700 lb (318 kg) total unit capacity

- 6-shelf unit = 600 lb (272 kg). total unit capacity

ƒ Sheet Music Capacity (approximate):

- 7-shelf unit = 190 titles at 1-1/4" (32 mm) spacing/title

240 titles at 1" (25 mm) spacing

300 titles at 3/4" (19 mm) spacing

- 6-shelf unit = 160 titles at 1-1/4" (32 mm) spacing/title

200 titles at 1" (25 mm) spacing

260 titles at 3/4" (19 mm) spacing

ƒ UL GREENGUARD Certified - Product certified for low chemical emissions: ul.com/gg - UL 2818

ƒ Ten-year warranty Upto80"(2032mm)deep

Overall Width

16" (406 mm) Standard

19" (483 mm) Oversized

Compartment Width

12" (305 mm) Standard

15" (381 mm) Oversized

44"(1118mm)

92-1/2" (2350 mm)

(2083 mm) 6-shelf unit

FixedShelf
FixedShelf
FixedShelf

Music Rehearsal and Practice Rooms

Music Storage

Application Information

Installation Requirements

ƒ Top closures must be used if installing less than four shelf units or if not attaching less than four shelf units to a side wall (peninsula type installation).

ƒ The installation site must be level - no more than 1/4" variation in a 6' distance (in both directions).

ƒ Music Library Systems should be installed on concrete or epoxy coated concrete flooring.

Not recommended for installation on padded carpeting or vinyl flooring.

Floor point load for a 7-shelf unit is at rated load is 800 psi (5516 kpa) per caster.

Floor point load for a 6-shelf unit is at rated load is 700 psi (4826 kpa) per caster.

Accessories

ƒ Top Closure Kit Accessory is constructed of particleboard that matches the end covers. Supports up to 50 lb/lin ft (74 kg/m) loading.

ƒ Latch Kit Accessory helps keep shelf units closed on uneven floors.

ƒ Lock option (padlocks not included).

ƒ Oblique File System Accessory is available on standard 12" (305 mm) shelf widths. (Oblique file system accessory must be selected at time of ordering).

How to determine the number of units needed:

1. Measure your current library of sheet music in inches.

Filing cabinets:

Measure the depth of the music in each drawer. Do not add empty space. Total depth is the total inches of all your individual drawers combined (music only). If your cabinets are all the same depth and all full, you can arrive at total depth by multiplying the common drawer depth by the number of drawers. For instance, the total depth of forty 24"-deep drawers would be 960".

Open shelving:

Measure the total lineal inches of sheet music on each shelf. Music must be stacked standing up. Add the total of each shelf to arrive at total depth.

2. Divide total depth by the total capacity of the 6- or 7-shelf unit.

7-shelf unit total capacity = 241-1/2"

6-shelf unit total capacity = 207"

For instance, 960" divided by 241-1/2" equals 3.98, or four 7-shelf units. 960" divided by 207" equals 4.64, or five 6-shelf units.

Shown with Oblique File System Accessory Installed
Shown with Standard Shelves

Music Rehearsal and Practice Rooms

Music Storage

Application Information

Tall Folio Cabinets

ƒ Wall panels and optional lockable doors are 3/4" (19 mm) thick industrial grade composite wood with no added formaldehyde and polyester laminate finish in Wenger standard colors

ƒ Shelves are 1/8" (3 mm) thick high-density fiberboard

ƒ Available in 1", 1-1/2", 2", 2-1/2", and 3" (25, 38, 51, 63, and 76 mm) shelf height openings to accommodate various thicknesses of folios

ƒ Shelf support columns are extruded aluminum, black powder-coat paint finish

ƒ Optional lockable doors are made of thermofused composite wood with polyester laminate finish

ƒ Cabinet includes four levelers to level and square cabinet

ƒ Number strips included for all shelf spacing options

ƒ Cabinets are shipped fully assembled

ƒ Wall mounting bracket included

ƒ UL GREENGUARD Certified - Product certified for low chemical emissions: ul.com/gg - UL 2818

ƒ Ten-year warranty

Tall Choral Folio Cabinet

ƒ Cabinet only: 196 lb (89 kg) (based on 1-1/2" shelf spacing)

ƒ Cabinet with doors: 238 lb (108 kg) (based on 1-1/2" shelf spacing)

ƒ Cabinet is 26-11/16" wide x 19-1/4" deep x 84-1/4" high (678 x 489 x 2140 mm)

ƒ Shelf openings are 11-5/8" wide x 12-3/8" deep (295 x 314 mm)

ƒ Shelf spacing can be adjusted in 1/2" (13 mm) increments from 1" to 3" (25 to 76 mm)

Tall Band/Orchestra Folio Cabinet

ƒ Cabinet only: 230 lb (105 kg) (based on 1-1/2" shelf spacing)

ƒ Cabinet with doors: 281 lb (128 kg) (based on 1-1/2" shelf spacing)

ƒ Cabinet is 32-13/32" wide x 19-1/4" deep x 84-1/4" high (823 x 489 x 2140 mm)

ƒ Shelf openings are 14-7/16" wide x 13-7/8" deep (367 x 353 mm)

ƒ Shelf spacing can be adjusted in 1/2" (13 mm) increments from 1" to 3" (25 to 76 mm)

Shelf Spacing

(67826-11/16" mm) 19-1/4" (489mm)

84-1/4" (2140 mm)

(82332-13/32" mm) 19-1/4" (489mm)

(2140 mm)

Choral Folio Cabinet
Choral Folio Cabinet

Music Rehearsal and Practice Rooms

Music Storage

Application Information

Poster/Teaching Storage Cabinet

ƒ 457 lb (206 kg)

ƒ Overall dimensions: 39" wide x 29-1/4" deep x 72" high (991 x 743 x 1829 mm)

ƒ Two adjustable shelves in lower cabinet, three in upper cabinet

ƒ Four compartments for storage of posters, charts and other teaching materials: 37-1/2" wide x 27" deep x 4" high (953 x 686 x 102 mm)

ƒ Includes three medium red bins, four large blue bins and six small yellow bins with labels

ƒ Small bins are mounted on hangers inside of both doors for easy student access

ƒ Cabinet construction is 3/4" (19 mm) thick industrial grade composite wood with no added formaldehyde and polyester laminate finish in Wenger standard colors

ƒ Edge banding is 1/8" (3 mm) thick PVC

ƒ Thru-bolt construction on all door hardware

ƒ Cabinet has locking double doors

ƒ Cabinet is shipped assembled

ƒ UL GREENGUARD Certified - Product certified for low chemical emissions: ul.com/gg - UL 2818

ƒ Ten-year warranty

Accessories

ƒ Small Bins (yellow) with mounting brackets, set of 4

ƒ Medium Bins (red), set of 4

ƒ Large Bins (blue), set of 2

72" (1829 mm)
39"(991mm)
29-1/4"(743mm)

Music Rehearsal and Practice Rooms

Application Information

Miscellaneous Information

Technical Sheets are included for:

ƒ Percussion Workstation

ƒ Music Sorting Rack

ƒ Mobile Folio Cabinets

ƒ ORFFgarage®

ƒ ORFFmobile®

Music Rehearsal and Practice Rooms

Music Storage

Application Information

Technical Sheet

Percussion Workstation

• Basic Percussion Workstation 147G002._ 230 lb (104 kg)

Deluxe Percussion Workstation with all accessories 147G001._ 251 lb (113 kg) 230 lb

• Workstation is 48-1/8"w x 24-1/2"d x 35-3/4"h (1222 x 622 x 908 mm)

• Workstation construction is 3/4" (19 mm) thick industrial grade composite wood with no added formaldehyde and polyester laminate finish in Wenger standard colors

• Edging is 1/8" (3 mm) radiused PVC

• Workstation top is 3/4" (19 mm) industrial grade composite wood with industrial grade carpet on top

• Plywood bottom is 3/4" (19 mm) with four 4" (102 mm) rubber swivel casters that make it easy to move from room to room

• Workstation has four foam-lined 21-1/2"w x 19-3/4"d x 3-1/2"h (546 x 502 x 89 mm) drawers constructed of 18 gauge steel with built-in handle

• Four 23"w x 23"d (584 x 584 mm) compartments, 3-1/2"h (89 mm) and 15-3/4"h (400 mm)

• UL GREENGUARD certified - product certified for low chemical emissions: ul.com/gg - UL 2818

• Shipped assembled

• Ten-year warranty

Accessories

Pop-up Music Desk

• 147H510._ 17.7 lb (7.7 kg)

• Holds music for three or more people

• Desk is 46-1/8"w x 1-7/16"d x 10-3/4"h (1172 x 37 x 273 mm)

• Desk construction is 3/4" (19 mm) thick industrial grade composite wood with polyester laminate finish in Wenger standard colors

• Desk permanently attaches to work top and folds flat when not in use

Suspended Cymbal Holder

• 147H014 2 lb (0.9 kg)

• Adjustable vinyl-coated holder clamps to cabinet edge

Cymbal Cradle

• 147H012 7 lb (3 kg)

• Holds up to 22" (559 mm) cymbals in ready-to-use position

• Vinyl-coated cradle, which protects and holds cymbals quietly, clamps to the cabinet edge

Pop-Up Music Desk
36-1/2" (927 mm)
48-1/8" (1222 mm)
(62224-1/2" mm)
Cymbal Cradle
Suspended Cymbal Holder

Music Rehearsal and Practice Rooms

Music Storage Application Information

Technical Sheet

Music Sorting Rack

• 173E050._ 165 lb (74 kg)

• Contains forty six vertical slots for individual parts

• Slot dimension: 1" thick x 10-1/2" deep x 9" high (25 x 267 x 229 mm)

• 1/8" (3 mm) thick high-density fiberboard dividers keep individual parts separated

• Cabinet construction is 3/4" (19 mm) thick industrial grade composite wood with no added formaldehyde and polyester laminate finish in Wenger standard colors

• 1/8" (3 mm) thick PVC edge banding

• Instrumentation label provided for each slot

• Includes four swivel casters

• Includes two lower storage compartments for additional music

• Cabinet is shipped assembled

• Overall dimensions: 49-5/8"w x 25-1/4"d x 35-1/16"h (1260 x 641 x 891 mm)

• Optional full-length wood door - same construction as wall panels

- Doors must be included at the time of ordering as they can not be installed later

- Doors include heavy-duty 5-knuckle institutional ANSI/BHMA A156.9, Grade 1 hinge, through - bolted to cabinet wall

• UL GREENGUARD certified - product certified for low chemical emissions: ul.com/gg - UL 2818

• Ten-year warranty Accessories

• 173A052 25 lb (11 kg) lockable industrial grade composite wood doors

49-5/8"(1260mm)

Music Rehearsal and Practice Rooms

Music Storage

Application Information

Technical Sheet

Mobile Folio Cabinets

• Wall panels and optional lockable doors are 3/4" (19 mm) thick industrial grade composite wood with no added formaldehyde and polyester laminate finish in Wenger standard colors

• Shelves are 1/8" (3 mm) thick high-density fiberboard

• Choral shelves are 11-1/2"w x 12-1/2"d (292 x 318 mm) and Band/Orchestra shelves are 14-1/4"w x 14-1/2"d (362 x 368 mm)

• Available in 1", 1-1/2", 2", 2-1/2", and 3" (25, 38, 51, 63, and 76 mm) shelf height openings to accommodate various thicknesses of folios

• Shelf support columns are extruded aluminum with black powder-coat paint finish

• Each cabinet includes four 3" (76 mm) swivel casters (two locking) to make transport easy. Four column choral cabinet contains six swivel casters for added support when transporting

• UL GREENGUARD certified - product certified for low chemical emissions: ul.com/gg - UL 2818

• Number strips included for all shelf spacing options

• Cabinets are shipped fully assembled

• Wall mounting bracket included for tall folio cabinets

• Ten-year warranty

Mobile Choral Folio Cabinets:

146M022, Two-column Choral Folio Cabinet:

• Cabinet only 125 lb (57 kg), with doors: 149 lb (68 kg) (based on 1-1/2" shelf spacing)

• Cabinet is 26-3/4"w x 17-5/8"d x 50-7/8"h (679 x 448 x 1292 mm)

146M023, Three-column Choral Folio Cabinet:

• Cabinet only 169 lb (77 kg), with doors: 205 lb (93 kg) (based on 1-1/2" shelf spacing)

• Cabinet is 39-7/16"w x 17-5/8"d x 50-7/8"h (1002 x 448 x 1292 mm)

146M024, Four-column Choral Folio Cabinet:

• Cabinet only 216 lb (99 kg), with doors: 298 lb (135 kg) (based on 1-1/2" shelf spacing)

• Cabinet is 51-3/4"w x 17-5/8"d x 50-7/8"h (1314 x 448 x 1292 mm)

Mobile Band/Orchestra Folio Cabinets:

146M032, Two-column Band/Orchestra Folio Cabinet:

• Cabinet only 147 lb (67 kg), with doors: 178 lb (81 kg) (based on 1-1/2" shelf spacing)

• Cabinet is 32-7/16"w x 17-5/8"d x 50-7/8"h (824 x 448 x 1292 mm)

146M033, Three-column Band/Orchestra Folio Cabinet:

• Cabinet only 205 lb (93 kg), with doors: 250 lb (114 kg) (based on 1-1/2" shelf spacing).

• Cabinet is 47-3/4"w x 17-5/8"w x 50-7/8"h (1213 x 448 x 1292 mm).

Shelf Spacing Capacity

2-Column Choral 8456423428

3-Column Choral 12684635142

4-Column Choral 168112846856

2-Column Band/Orchestra 8456423428

3-Column Band/Orchestra 12684635142

mm)

mm)

(448mm)

(1214 mm)

(1292 mm)

4-Column Choral Folio Cabinet
3-Column Band/Orchestra Folio Cabinet 50-7/8" (1292

Music Rehearsal and Practice Rooms

Music Storage Application Information

• 168E001._ 431 lb (194 kg)

• Comes with four adjustable shelves for storage of various sizes of Orff instruments

• Overall dimensions: 48"w x 29-1/4"d x 72"h (1219 x 743 x 1829 mm)

• Floorless lower compartment is designed exclusively for Wenger ORFFmobile

• Cabinet construction is 3/4"(19 mm) thick industrial grade composite wood with no added formaldehyde and polyester laminate finish in Wenger standard colors

• Edge banding is 1/8" (3 mm) thick PVC

• Square tubular steel frame in bottom of cabinet provides rigidity and strength

• Includes locking double doors

• Thru-bolt construction on all door hardware

• UL GREENGUARD certified - product certified for low chemical emissions: ul.com/gg - UL 2818

• Shipped assembled

• Ten-year warranty

ORFFgarage Instrument Storage Capacity:

2 - Alto Metallophones

2 - Soprano Metallophones

2 - Soprano Xylophones

5 - Soprano Glockenspiels

5 - Alto Glockenspiels

72" (1829 mm)
(121948"mm)
29-1/4" (743mm)

Music Rehearsal and Practice Rooms

Music Storage Application Information

ORFFmobile®

• 167D001 106 lb (48 kg)

• Overall dimensions: Folded: 44"w x 24-1/2"d x 36"h (1118 x 622 x 914 mm) Unfolded: 113"w x 24-1/2"d x 35"h (2870 x 622 x 889 mm)

• Unique folding design stores instruments compactly and unfolds to provide proper playing surfaces for ORFF instruments

• Includes four molded polyethylene surfaces for playing and storage that can be positioned different heights for various sizes of ORFF instruments

• Frame is constructed of 0.875" (22 mm) round tubular steel frame in black powder-coat paint finish

• Four black neoprene 4" (102 mm) swivel casters

• Foam-padded leg supports serve as hand grips when in folded position, and also prevent damage to paint finish

• Includes four 1-3/4" diameter mallet holders

• Assembly of wheels required by customer

• Ten-year warranty

Orff Instrument Capacity*:

Folded: 1 - Bass metallophone or xylophone

2 - Soprano or alto metallophones or xylophones

Unfolded: 1 - Bass metallophone or xylophone

2 - Soprano metallophones or xylophones

2 - Alto xetallophones or xylophones

*Note: Each outer tray will hold four soprano or alto glockenspiels in place of metallophones or xylophones in unfolded position.

Top View
Side View ORFFmobile

Media Storage Cabinets

When you consider just how valuable all your facility's media equipment is, it makes sense to store and secure it in a way that protects your investment. Wenger's fixed cabinets transform a chaotic storage area into one you can be proud of. Fixed media cabinets come in three types: Standard, Rackmount and Organizer.

Choose the type you need then add shelves, drawers and other accessories. As the level of technology in today's educational environments skyrockets, the need for connecting students to various media increases as well. Wenger's mobile media storage carts are portable, lockable, media hubs that will get your technology where it needs to be. It has a durable worksurface on top, plenty of room for electronics inside and is easy to maneuver.

Like the Wenger fixed media cabinets, these come in one or two column designs and are configurable with many accessories.

Ten-year warranty on all music storage products.

Laminate Color
Edge Banding Hardware & Fasteners Color Options
Pebble Oyster Cherry Cherry Evening Tigris Pepper Dust Pepper Dust
Fusion Maple Almond Almond
Solar Oak Black Black
Wenger Maple Oyster Oyster Oyster Oyster Oyster Oyster Black

Music Rehearsal and Practice Rooms

Media Storage

Overview

When it comes to managing your valuable instruments, projectors, microphones, adapters, etc., We understand how important organization and security are. It's a storage system for media and audio/visual equipment so unique, you can order exactly the storage configuration you need!

Flexibility – Choose what you need: fixed or mobile storage, in different sizes. Mix and match interior components with shelves, slide out shelves, file drawers and 4" (102 mm) drawers. Rackmount sections available for easy access to electronic components and organizer option available for fixed storage .At the time of purchase, you pick what you need. If your needs change, you can order different components to reconfigure your existing cabinets. Components are built to fit all of our cabinets, providing flexibility to move drawers or shelves from unit to unit.

Security – Cabinets come with full-length wood doors, secured with metal lockable latch.

Durability – Made to last with bolt through construction on hinges and doors, polyester laminate, tested to withstand institutional use. Mobile models come with a thermofoil wrapped top panel for scratch and stain resistance.

Made for media use – Cable management and vented top panel for use with electronic equipment. Power strips and wire access. Rackmount option tips open to allow easy access. Adjustable and slide-out shelves and drawers.

Solutions Include:

Fixed Media Cabinets - When you consider just how valuable all your facility's media equipment is, it makes sense to store and secure it in a way that protects your investment. Wenger's fixed cabinets transform a chaotic storage area into one you can be proud of. Fixed media cabinets come in three types: Standard, Rackmount and Organizer. Choose the type you need then add shelves, drawers and other accessories.

Mobile Media Cabinets - As the level of technology in today's educational environments skyrockets, the need for connecting students to various media increases as well. Wenger's mobile media storage carts are portable, lockable, media hubs that will get your technology where it needs to be. It has a durable worksurface on top, plenty of room for electronics inside and is easy to maneuver. Like the Wenger fixed media cabinets, these come in one or two-column designs and are configurable with many accessories.

Music Rehearsal and Practice Rooms

Media Storage

Application Information

Fixed Media Storage Cabinets

ƒ Cabinets are constructed 3/4" (19 mm) thick industrial grade composite wood with no added formaldehyde and polyester laminate finish in Wenger standard colors

ƒ Edging is 1/8" (3mm) radiused PVC

ƒ Available in one column or two column sizes:

- 1 column 21-1/2" w x 24"d x 85-5/8" h (546 x 610 x 2175 mm)

- 2 column 42" w x 24"d x 85-5/8" h (1067 x 610 x 2175 mm)

ƒ Full locking wood doors with 270 degree hinges to swing door open flush with side panel

ƒ Each column of the cabinet is available in three types:

- Standard – allows for addition of shelves and drawers (includes one fixed shelf).

- Rack mount – Steel 7-unit rack mount section with one mounted power strip included and cage nuts to attach electronic components. Unit folds down on hinge for access to cords in back. Additional space can be configured for drawers and shelves (fixed shelf above and below rack mount)

- Organizer – Includes one steel organizer grid with black power-coated finish mounted to inside of door and one mounted to back of cabinet. Accessories sold separately and fits standard 3" (76 mm) on center slatwall parts (one fixed shelf above height of organizer grid).

ƒ Top venting holes allow ventilation

ƒ Wire management clips to hold wires

ƒ Steel pilaster rail allows for mounting of shelves, slide-outs and drawers with ability to reposition along the length at 1/2" (13 mm) increments

ƒ Cabinets have adjustable steel leveling glides for uneven floors

ƒ Drawers and slide-outs are preinstalled but can be repositioned; adjustable shelves are packaged loose for customer preferred installation

ƒ Wall and floor mounting brackets included

ƒ Four 5-knuckle steel hinges per door with powder-coated paint finish, through-bolted to door and side panels

ƒ Keyed lock comes standard or may be substituted for a programmable digital lock

ƒ Cabinets are shipped assembled

ƒ Ten-year warranty; optional power strips, digital locks and other electronic equipment are covered by the individual manufacturer's warranty

85-5/8" (2175 mm)

24"(610mm)

21-1/2"(546mm)

42"(1067mm)

85-5/8" (2175 mm)

Music Rehearsal and Practice Rooms

Media Storage

Application Information

Optional Interiors

ƒ Adjustable shelves, notched to allow space for cords

ƒ Slide out shelves, can be repositioned along pilaster

ƒ 4" drawer is constructed of steel

ƒ File drawer is constructed of steel and includes adjustable mounting bar for hanging file folders, standard or legal sized

ƒ 19" Steel 7-unit rack mount section with one rack mounted power strip

ƒ Steel organizer grid with black power-coated finish fits standard 3" (76 mm) on center slatwall parts

Accessories

Organizer Grid Accessories

ƒ Individual Hook (3-pack)

ƒ Cable Minder (1-pack) – (holds six cables) fits three down per grid

ƒ CD holder – (holds thirty CD's) fits five down per grid

ƒ Mic Stand Holder (1-pack of three pieces) – holds one folding microphone stand, fits four across per grid

ƒ Basket (1-pack) – 12" x 8" x 4" (305 x 203 x 102 mm) – fits five down per grid

Depth will not accommodate baskets on both door and interior

Clear Storage Bins

ƒ Small

ƒ Medium

ƒ Medium Divided

Compartment Dimensions:

19-7/8" (505 mm) wide

22" (559 mm) deep

23" (584 mm) high

Compartment Dimensions:

19-7/8" (505 mm) wide

22" (559 mm) deep

23" (584 mm) high

Compartment Dimensions:

19-7/8" (505 mm) wide

22" (559 mm) deep

54-3/4" (584 mm) high

Compartment Dimensions:

19-7/8" (505 mm) wide

22" (559 mm) deep

54-3/4" (584 mm) high

Music Rehearsal and Practice Rooms

Media Storage

Application Information

Mobile Media Storage Cabinets

ƒ Cabinets are constructed 3/4" (19 mm) thick industrial grade composite wood with no added formaldehyde and polyester laminate finish in Wenger standard colors

ƒ Bottom is constructed of Vencore plywood for extra strength

ƒ Edging is 1/8" (3mm) radiused PVC

ƒ Available in one column or two column sizes:

- 1 column 32" w x 24-5/8"d x 43" h (813 x 625 x 1092 mm)

- 2 column 48-1/4" w x 24-5/8"d x 43" h (1226 x 625 x 1092 mm)

ƒ Full locking wood doors with 270 degree hinges to swing door fully open

ƒ Each column of the cabinet is available in two types:

- Standard – allows for addition of shelves and drawers

- Rack mount – Steel 7-unit rack mount section with one mounted power strip included and cage nuts to attach electronic components. Unit folds down on hinge for access to cords in back (fixed shelf above and below rack mount). Two column has space above and below for storage. One column has space to add 4" (102 mm) drawer, slide out shelf or both.

ƒ Two column cabinet includes full width slide out shelf width 39-1/2" wide x 16" deep (1003 x 406 mm)

ƒ Cable management with clips, cable pass through and cord wrap

ƒ Steel pilaster rail allows for mounting of shelves, slide-outs and drawers with ability to reposition along the length at 1/2" (13 mm) increments

ƒ Work surface top is constructed of thermofoil wrap over composite panel for high wear resistance; it includes an integrated handle and cup holder

ƒ 4" (102 mm) durable, smooth rolling swivel casters

ƒ Drawers and slide-outs are preinstalled but can be repositioned; adjustable shelves are packaged loose for customer preferred installation

ƒ Two 5-knuckle steel hinges per door with powder-coated paint finish, through-bolted to door and side panels

ƒ Front keyed lock comes standard or may be substituted for a programmable digital lock; rear keyed lock allows additional access to components

ƒ Cabinets are shipped assembled

ƒ Ten-year warranty; optional power strips, digital locks and other electronic equipment are covered by the individual manufacturer's warranty

Music Rehearsal and Practice Rooms

Media Storage

Application Information

Optional Interiors

ƒ Adjustable shelves, notched to allow space for cords

ƒ Slide out shelves, can be repositioned along pilaster

ƒ 4" drawer is constructed of steel

ƒ File drawer is constructed of steel and includes adjustable mounting bar for hanging file folders, standard or legal sized

ƒ 19" Steel 7-unit rack mount section with one rack mounted power strip

Compartment Dimensions:

40-1/2" (1029 mm) wide

22" (559 mm) deep

6" (152 mm) high

Compartment Dimensions:

19-7/8" (505 mm) wide

22" (559 mm) deep

30-1/4" (768 mm) high

Compartment Dimensions:

19-7/8" (505 mm) wide

22" (559 mm) deep

37" (940 mm) high

Typical Interior Configuration Rear Access Door

Performance Spaces

Virtual Acoustic Systems

State-of-the-art sound processing to improve and manipulate the acoustics of your performance space.

Staging and Seated Riser Systems

Acoustical Shell Enclosures

In addition to being visually stunning, Wenger Corporation Acoustical Shells dramatically improve the sound projected to the audience and reflect sound back to performers –vital to ensemble performance. The mobile design sets up quickly and stores compactly.

Acoustic Treatments

Whether you're planning a new facility or renovating an existing one, Wenger ceiling clouds and acoustical panels are sure to enhance the acoustics of any space.

Stage Rigging

From manual counterweight systems to fully automated systems, we have the right rigging for every need.

Orchestra Pit Filler

Wenger Corporation Pit Fillers are incredibly strong and durable yet easy to set up. The acoustically dampened decks fit snugly against the stage to create an integrated surface that is extremely quiet.

From a simple stage or seated riser to a multifaceted system that can be set up in a vast array of configurations in all kinds of locations, Wenger Corporation has the ideal solution for any event.

Audience Seating Systems

Wenger Corporation offers a fullrange of portable theatre seating options for any performing arts venue. Ergonomically designed for quiet comfort with superb aesthetics and durability.

Makeup Stations

Wenger Corporation Makeup Stations were designed based on the needs of the performer. Wenger Corporation offers both the Studio® Makeup Station that comes ready to install and the Backstage® Makeup Station, a portable self-contained unit that turns any room into a dressing room.

Virtual Acoustic Systems

Transcend® Active Acoustics System

Transcend balances complex digital sound processing with a simple design that offers venues better performance, value and reliablility. HARMAN's Lexicon processor can tailor reverberation and acoustics to create a variety of environments. It's Simply a Sound Investment™

Virtuoso™ Acoustical Shell

Virtuoso uses microphones and speakers, along with powerful digital processors to create a virtual acoustical environment that dramatically improves what your musicians and singers hear. The result — an amazing acoustical space for your performers.

Performance Spaces

Virutal Acoustic Systems

Application Information

Transcend® Active Acoustic System

ƒ A system using Transcend active acoustic technology designed for the acoustical enhancement of sound for performance venues

ƒ System includes a series of speakers, microphones, amplifiers, digital signal processing, and a digital audio bus to create different levels of reverberation in performance spaces

ƒ Transcend digital signal processor provides up to four zones of control and that can be expanded by adding additional processors

ƒ Each zone contains 4-channel in, 8-channel out Lexicon active acoustic digital signal processing

ƒ System includes HiQnet communication protocol through Audio Architect for setup, adjustment, and remote monitoring of the system

ƒ Processor includes speech/music detection setting which automatically and gradually reduces the system reverberance when a speech signal is detected over a period of time and increases reverberance when music is detected

ƒ Complete turnkey installation can be provided, including all electrical components, system tuning, wiring/mounting of all speakers, microphones, Transcend, other components and equipment rack; includes system tuning by Wenger

ƒ System requires an isolated power transformer and motorized breaker panel, supplied by Wenger, installed by others

ƒ Three-year warranty

Performance Spaces

Virutal Acoustic Systems

Application Information

Transcend System Components

Harman Crown Amplifiers

ƒ Networked amplification (Audio Architect)

ƒ DCi 8|300N

- Channels: 8

- Sensitivity: 2.0V (34 dB gain)

- Rated Power Output: 600W per channel into 8/4 ohms

- Signal to noise ratio: (below rated power 20 Hz to 20 kHz,

- A-weighted): 108 dB

- Dimensions: 19" x 3-1/2" x 14-1/4" (483 x 89 x 362 mm)

- Weight: 23.5 lb (10.66 kg)

ƒ DCi 4|600N (Sub Woofer)

- Channels: 4

- Sensitivity: 1.0V (34 dB gain)

- Rated Power Output: 300W per channel into 8/4 ohms

- Signal to noise ratio: (below rated power 20 Hz to 20 kHz,

- A-weighted): 108 dB

- Dimensions: 19" x 3-1/2" x 14-1/4" (483 x 89 x 362 mm)

- Weight: 20.1 lb (9.1 kg)

ƒ Other available options: DCi 8|600N, DCi 2|300N, DCi 2|600N, DCi 4|300N, DCi 2|1250N, DCi 4|1250N

Harman JBL Speakers

Wall Mounted Speakers:

ƒ Control 28

- Frequency Response: (-10 dB) half space wall: 60 Hz to 16 kHz

- Continuous program power capacity: 175 watts

- Sensitivity: 92 dB SPL, 1W, 1m

- Wall mounting brackets included

- Ball-mount adjustment

- Dimensions: 11"w x 15"h x 8-1/2"d (279 x 381 x 216 mm)

- Weight: 12 lb (5.5 kg)

ƒ Control 128 (In-wall)

- Frequency Response: (-10 dB) half space wall: 30 Hz to 20 kHz

- Continuous program power capacity: 120 watts

- Sensitivity: 90 dB SPL, 1W, 1m

- Designed for mounting in stud walls, optional stud wall frame available

- Dimensions: 10.1"w x 13.1"h x 4.3"d (257 x 333 x 109 mm), 4" (102 mm) front of wall to back of speaker

- Weight: 5.5 lb (2.6 kg)

Ceiling Mounted Speakers:

ƒ Control 26

- Frequency Response: (-10 dB)

half space wall: 75 Hz to 20 kHz

- Continuous program power capacity: 150 watts

- Sensitivity: 89 dB SPL, 1W, 1m

- Grill, backcan and tile rails included

- Dimensions: 10" diameter x 8.3" high (254 x 211 mm)

8-3/4" (222 mm) cut out size

- Weight: 7.5 lb (3.4 kg)

ƒ Other speakers available: Control 47C, Control 47LP, Control 47HC

Sub Woofer Speakers:

ƒ Surface Mounted Control SB210

- Frequency Response: (-10 dB)

half space wall: 42 Hz to 200 Hz

- Continuous program power capacity: 800 watts

- Sensitivity: 95 dB SPL, 1W, 1m

- Dimensions: 14" x 23.3" x 22.5" (356 x 592 x 572 mm)

- Weight: 38 lb (17.1 kg)

ƒ Other sub woofers available: Ceiling mounted Control 19CS, Control 312CS

Microphones

ƒ Sennheiser MKHC8040 + MZX 8000

- Cardiod polar pattern

- Frequency response: 35 to 20,000 Hz

Sensitivity: at 1000 Hz – 20 mV/Pa (-34 dB)

- Equivalent Noise Ratio Level: 13 dB-A, SPL for 1%

- Length: 1-5/8" (41 mm), with XLR module – 3" (76 mm), 3/4" (19 mm) dia.

ƒ Other microphones available: Schoeps CCM4 and MK4, Neumann KM100

Harman BSS Digital Signal Processor

ƒ BSS BLU 160

- Inputs: up to 16 analog with 48V phantom power

- Outputs: BLUlink digital audio

- Dimensions: 1U - 1.75"h x 19"w x 12.5"d (44 x 483 x 318 mm)

- Weight: 9 lb (4.1 kg)

Wenger Transcend Active Acoustic Processor

ƒ System: 48 kHz, 32-bit floating point

ƒ Digital Inputs: 16 microphone, 8 auxiliary

ƒ Digital Outputs: 32 channels of BLU link digital audio

ƒ Maximum number of channels: 256 at 48 kHz

ƒ Latency: 6.3 msec.

ƒ Communication protocol: Harman HiQnet

ƒ Communication Applications: Audio Architect

ƒ Up to four zones of processing

ƒ Dimensions: 3.5"h x 19"w x 8.25"d (89 x 483 x 210 mm)

ƒ Weight: 11.5 lb. (5.21 kg)

Harman Control Panels

ƒ AMX Touch Screen Control:

- 7" diagonal touch screen, wall mounted with custom programmed presets for Transcend System

ƒ BSS Contrio EC-8B

- Wall mounted ehternet wall controller, HiQnet compatible, 8 programmable buttons

ƒ Also compatible with Crestron control panels

Performance Spaces

Virutal Acoustic Systems

Application Information

Virtuoso™ Acoustical Shell

ƒ Virtual Acoustics Environment Virtual Shell technology designed for the performance stage that allows musicians to hear themselves more effectively

ƒ System comes with eight pre-set environments for the stage with varying degrees of support and reverberance

ƒ Provides a stage environment with similar support to a full stage acoustical shell with the addition of reverberance if desired

ƒ System includes record/playback feature with immediate feedback

ƒ Ability to upload accompaniments and download recording sessions

ƒ Complete installation, including all electrical components, system tuning, and wiring/mounting of all speakers and microphones; also includes installation of acoustical absorption of the stage house (if needed)

ƒ System includes lockable, front and rear access, wall-mounted component rack for all system components, including VAE digital signal processor, power sequencer, amplifiers, and ventilation fan

ƒ Five-year warranty

Virtuoso System Components

Harman Amplifiers

ƒ Channels: 8

ƒ Sensitivity: 1.4V (26db gain)

ƒ Rated power output: 125W per channel into 8/4 ohms

ƒ Signal to noise ratio: (below rated power 20Hz to 20Hz, A-weighted): 110 db

ƒ Dimensions: 19"w x 5.25"h x 16.25"d (483 x 133 x 413 mm)

ƒ Weight: 36 lb (16.3 kg)

Harman Speakers

ƒ Frequency response: (-10db) half-space wall: 45 – 20kHz

ƒ Sensitivity: 92dB SPL, 1W, 1m

ƒ Continuous program power capacity: 175 watts

ƒ Wall mounting brackets included

ƒ Coverage: 100 x 100 degrees

ƒ Dimensions: 11.1"w x 15.2"h x 8.6"d (282 x 386 x 219 mm)

ƒ Weight: 15 lb (6.8 kg)

Harman Microphone

ƒ Transducer type: pre-polarized condenser microphone

ƒ Frequency response: 20 to 20,000 Hz

ƒ Signal-to-noise ratio: A-weighted: 77db

ƒ Maximum sound pressure level for 1.0% THD: 132db SPL

Wenger VAE Processor

ƒ Built-in pre-amplification and equalization

ƒ Microphone inputs: 2 Female XLR

ƒ Input Impedance: 3000 Ohms Balanced

ƒ Phantom Power: +24 volt

ƒ Frequency Response: 20 to 20kHz within 1 db

ƒ THD+N: 0.007%

ƒ Sample Rate: 44.1 kHz

ƒ Dynamic Range: A /D > 100dB, 24 Bit resolution D/A > 100dB, 24 Bit resolution

ƒ Record Output: 1/8" TRS jack

ƒ Power Outputs: Four 1/4" TRS and two 4-pin EURO (5.08 mm pitch)

ƒ Output Impedance: 4/8/16 ohms

ƒ Remote control connector: 10-pin Molex type 42404

ƒ USB type B socket: For downloading recorded files

ƒ Compact Flash socket: For storing recorded sessions

ƒ Internal 15 Band 2/3 octave Equalizer

ƒ Internal pink noise generator and real time analyzer

ƒ Power Requirements: 100-120 volts or 220-240 volts, 50/60 Hz, 160 Watts typical

ƒ Operating Temperature: 0 to 40 degrees C

ƒ Humidity: 95% max non-condensing

ƒ Dimensions: 17.4"w x 3.5"h x 11.5"d (442 x 89 x 292 mm) Rack mount face is 19.0" wide (483 mm)

ƒ Weight: 17.5 lb (7.9 kg)

Performance Spaces

Traditional Shell Configuration
Virtual Shell Configuration (replaces traditional shell)

Acoustical Shell Enclosures

Data Book

Diva® Full-Stage Acoustical Shell

An investment in Diva acoustics will reward you the first time you hear the remarkable difference. Diva is a beautiful centerpiece for your stage that is engineered to last for years and years.

Diva is also incredibly easy to use, so you can use it more often. No other acoustical shell gives you so much long-term value.

Maestro® Full-Stage Acoustical Shell

The Maestro is a welcome addition to our acoustical product line. Maestro is a cost-effective solution packed with features, conveniences and performance aesthetics for your venue.

The Maestro lives up to its name delivering impressive full-stage acoustics, while creating live entertainment environments for performances at an affordable price.

Legacy® Acoustical Shells

The latest Wenger Corporation technology gives you three attractive, effective acoustical shell options to fit your application and budget. The Legacy system can be set up quickly and easily – by just one person. Its mobility allows you to acoustically transform almost any space within a facility into a performance venue.

We pioneered acoustical shell design, so it's no surprise that our honeycomb core panel construction delivers enhanced acoustics to both the ensemble and the audience. When the performance is over, Legacy acoustical shells take down in no time and nest together compactly.

Acoustical

Performance Spaces

Acoustical Shell Enclosures

Overview

Diva® Shell Wall Towers (Rolling/Movable)

ƒ Shell towers are designed to move from storage to performance positions — and nest one within the other for compact storage

ƒ Shell towers are constructed of materials to effectively reflect sound

ƒ Diva shell models incorporate access doors for personnel and equipment access to the performance area

ƒ Diva towers are moved with a manual wheeled mover or electric air transporter which makes consistent shell placement an easy process and which also greatly reduces wear and damage to the floor

Diva Shell Ceiling Panels

ƒ Each row of shell ceilings is designed to be suspended from one pipe batten or line set

ƒ Storage — ceilings are designed to rotate to a vertical position for storage in the stage loft area; ceiling panels can be specified to be removable to free up additional line sets

ƒ Give proper consideration to shell ceiling weight and rigging line set capacity

ƒ Optional integrated Wenger® Lieto™ LED light fixtures are available

ƒ Wenger works to integrate Diva ceiling rows with existing or new theatrical rigging; rows of ceilings rotate to the vertical position for storage and lock into the performance position for fast setup

ƒ Ceiling aluminum trusses provide space for an ETL rated integrated electrical raceway that supplies power for optional lighting packages

Diva Acoustical Shell Features

ƒ The design, flexibility and extensive finish options of the Diva Acoustical Shell provide a customized shell at an affordable price

ƒ A combination of shell towers and ceiling rows form a full-stage acoustic enclosure

ƒ The modular design allows for flexible configurations that can fit ensembles and performances of all sizes

ƒ Rigid composite panels improve acoustics; curved panel surfaces reflect and diffuse sound for optimum acoustical performance

ƒ Two standard tower widths:

- 10' (3048 mm) 4' (1219 mm) center and 3' (914 mm) wings

- 12' (3658 mm) 4' (1219 mm) center and 4' (1219 mm) wings

ƒ Towers can be sized to your specification, with heights from 16' to 32' (4877 to 9754 mm)

ƒ Custom towers heights are available up to 40' (12192 mm)

ƒ Finishes available include:

- Wilsonart® High Pressure Laminate

- Hardwood Veneer stained and finished to match space requirements

- Painted panels with Sherwin-Williams® Kem® Aqua painted finish

ƒ The Diva Acoustical Shell is designed to significantly reduce setup time

ƒ The Diva Acoustical Shell tower frames and ceiling trusses are manufactured with extruded aluminum and steel weldments

ƒ Diagonal bracing between the tower frame and the base distributes weight over several areas of the tower assembly

ƒ Access doors are available including double doors that accommodate a grand piano

ƒ Towers nest together for compact storage with minimal footprint — in alcove, stage wing or backstage

Performance Spaces

Acoustical Shell Enclosures

Typical Drawings

Front Elevation of Typical Diva Acoustical Shell

Performance Spaces

Acoustical Shell Enclosures

Typical Drawings

Symbols for Standard Diva Ceiling Panels

All symbols are available, please contact Wenger Corporation.

14" (356 mm) In Storage 14" (356 mm) In Storage

4' (1219 mm) Ceiling without Lights

(356 mm) In Storage 14" (356 mm) In Storage

7' (2134 mm) Ceiling without Lights 7' (2134 mm) Ceiling with Lights

5' (1524 mm) Ceiling without Lights

(356 mm) In Storage

10' (3048 mm) Ceiling with Lights

Notes:

(356 mm) In Storage

8' (2438 mm) Ceiling without Lights

(356 mm) In Storage

(1524 mm) Ceiling with Lights

(356 mm) In Storage

6' (1829 mm) Ceiling without Lights

(356 mm) In Storage 4' (1219 mm) Ceiling with Lights

(356 mm) In Storage

11' (3353 mm) Ceiling with Lights

1. Ceiling assemblies will weigh about 4 lb (2 kg) per square foot.

2. Each Lieto LED light fixture will weigh 15 lb (7 kg).

(356 mm) In Storage

8' (2438 mm) Ceiling with Lights

(356 mm) In Storage 14" (356 mm) In Storage

9' (2743 mm) Ceiling with Lights

12' (3658 mm) Ceiling with Lights

4. Panels that are veneered will be constructed of 1/4" (6 mm) veneered MDF plywood on face side of 1-1/2" (38 mm) paper honeycomb. Back is 3/16" (5 mm) hardboard painted black. 14" (356 mm) In Storage

(1829 mm) Ceiling with Lights

3. Panels that are painted will be constructed of 3/16" (5 mm) hardboard on both sides of 1-1/2" (38 mm) paper honeycomb.

Performance Spaces

Acoustical Shell Enclosures

Typical Drawings

Diva Shell Towers

Telescoping wing-stays lock wings into performance and storage positions (A).

The door lock (B) and door handle (C).

The counterweighted base (D) provides shell stability when shell is stationary or being moved with on stage.

The shell rests on leveling pads (E) for uniform set-up on uneven floors.

Performance Spaces

Acoustical Shell Enclosures

Typical Drawings

Typical Diva Layout for a 70' x 35' (21.3 x 10.7 m) Performance Area

Contact Wenger Corporation for a layout designed to fit your facility.

Ceiling panels are designed to fit between existing fixed or standard stage lighting.

Ceiling in stored position

Proceninum Opening

Performance Area

Proceninum Opening

Indicates Door Section through center line DIVA full stage acoustical enclosure

Ceiling panels are designed to fit between existing fixed or standard stage lighting.

Ceiling in stored position

Proceninum Opening

Performance Area

Proceninum Opening

Indicates Door Section through center line Diva full stage acoustical enclosure

Performance Spaces

Acoustical Shell Enclosures

Application Information

Air Transporter

ƒ A separate air transport unit makes lifting and transporting the towers an easy job

ƒ A cushion of air carries most of the tower's weight, which prevents damage to stage floor

ƒ Moves the tower easily in any direction, so it is easier to position

ƒ Requires standard 110-volt 15 amp circuit

ƒ A wheeled mover is also available

ƒ Five-year warranty

Beam Assembly

Lift Brackets engage the Tower Leveler Assembly

1-1/4" (32 mm) Diameter Round Steel Tube Push

Tube Frame Assembly

Lower Hand Lever and secure under the Hook to raise the Tower

Lift Brackets engage the Tower Leveler Assembly

1-1/4" (32 mm)

Round Steel Tube Push Handle 6" (152 mm) Diameter x 2" (51 mm) wide Swivel Casters Steel Tube Frame Assembly

The Air Transporter lifts majority of the tower weight and maneuvers shell in all directions for exact placements and easy mobility to and from storage.

Diva Towers in Storage

Top view showing how Diva towers nest together in the storage position, minimizing required storage space.

width required is 8' 1" (2464 mm) 4' 9" (1448 mm) first tower, add 1'-1/4" (311 mm) for each additional tower. 4' 9" (1448 mm) 1'-1/4" (311 mm) Air Transporter Wheeled Mover

Top View

Performance Spaces

Diva Shell Ceiling Panels

Optional Integrated Wenger Lieto LED Light Fixtures

Ceiling Performance Angle

The angle of the ceilings can be adjusted for different acoustical requirements.

Shell ceiling in performance position.

Ceilings placed in a more horizontal position will return more sound energy to the performers on stage. Ceilings placed at a steeper angle will reflect more sound energy to the audience.

Back View of Ceiling Panel in Storage Position
14" (356 mm) in storage position

Performance Spaces

Acoustical Shell Enclosures

Application Information

Maestro® Acoustical Shell

The Maestro Acoustical Shell is a cost-effective solution packed with features, conveniences and performance aesthetics for your venue. The Maestro lives up to its name delivering impressive full-stage acoustics, while creating live entertainment environments for performances at an affordable price.

General Features

ƒ The cost-effective solution for any performance space requiring an acoustical enhancement

ƒ Mobile towers and rows of ceiling panels form a full stage acoustic enclosure when placed together on stage

ƒ Separate wheeled mover easily lifts and moves the towers

ƒ Towers nest for storage backstage, ceiling panels rotate and hang from rigging and are stored in fly-loft

ƒ Optional integrated Wenger® Lieto™ LED light fixtures are available

ƒ Panels are constructed with black aluminum edging, a rigid honeycomb interior and a hard panel skin for superior sound quality and durability

ƒ Finishes available include:

- Low pressure laminate selected from standard Wenger options

- Wilsonart® high pressure laminate

- Hardwood veneer stained and finished to match space requirements

- Painted panels with Sherwin-Williams® Kem® aqua painted finish

Towers

ƒ All towers feature panels with an 8' (2438 mm) radius curve

ƒ Each tower consists of one center panel and two adjustable wing panels

ƒ Towers are available in heights from 16' (4877 mm) to 32' (9754 mm)

ƒ Lower wing panels can be used as a door as required

ƒ Double doors allow access of large equipment, including concert grand pianos

ƒ Framework of towers and base are constructed of steel weldments

ƒ Diagonal bracing between the tower frame and the base distributes weight over several areas of the tower assembly

ƒ Each tower is equipped with a counterweighted base assembly for stability

ƒ A telescoping wing-stay locks tower wings in performance or storage positions

ƒ Steel hinges incorporate bronze bearings

ƒ Each tower incorporates leveling adjustment mechanisms

Ceiling Panels

ƒ Have an 10' (3048 mm) radius curve and is available in various single curved configurations

ƒ Store easily in rigging fly loft for storage and are adjustable in the performance position; no tools are required to tilt ceilings

ƒ Store in a vertical position, and rotate to pre-set, adjustable performance angles

ƒ Require as few as two people to deploy

ƒ Hang from stage rigging pipe battens

ƒ Lighted ceiling panels feature an ETL classified electrical system

ƒ Optional integrated lighting fixtures feature tilt switches that make storing the ceilings easy; lighting will not turn on while ceilings are in storage

ƒ Ceiling storage profile can be as little as 1' 4" (406 mm)

Performance Spaces

Acoustical Shell Enclosures

Typical Drawings

Symbols for Maestro Ceiling Panels

All symbols are available, please contact Wenger Corporation.

(1219 mm)

(356 mm) In Storage

(1219 mm)

(356 mm) In Storage

(1524 mm)

(356 mm) In Storage

(1524 mm)

(356 mm) In Storage

(356 mm) In Storage

(356 mm) In Storage

(356 mm) In Storage

(356 mm) In Storage

Lights 8' (2438 mm) Ceiling without Lights 14" (356 mm) In Storage

7' (2134 mm) Ceiling without Lights

Notes:

(2134 mm) Ceiling with Lights

1. Ceiling assemblies will weigh about 3 pounds (1.36 kg) per square foot.

2. Each Lieto LED light fixture will weigh 15 lb (7 kg).

(2438 mm) Ceiling with Lights

(1829 mm)

(356 mm) In Storage

(1829 mm)

3. Panels that are painted will be constructed of 1/8" (3 mm) hardboard on both sides of 1-1/2" (38 mm) paper honeycomb.

4. Panels that are veneered will be constructed of 1/8" (6 mm) veneered MDF plywood on face side of 1-1/2" (38 mm) paper honeycomb. Back is 3/16" (3 mm) hardboard painted black.

Performance Spaces

Acoustical Shell Enclosures

Typical Drawings

Maestro Tower

Telescoping wing-stays lock wings into performance and storage positions (A).

The door lock (B) and door handle (C).

The counterweighted base (D) provides shell stability when shell is stationary or being moved with on stage.

The shell rests on leveling pads (E) for uniform set-up on uneven floors.

Access Door

Rear Elevation

Typical Maestro Layout for a Performance Area

Contact Wenger Corporation for a layout designed to fit your facility.

Performance Area

Proceninum Opening

Proceninum Opening

Ceiling panels are designed to fit between existing fixed or standard stage lighting. Ceiling in stored position

Indicates Door

Section through center line Diva full stage acoustical enclosure

Performance Spaces

Acoustical Shell Enclosures

Application Information

Wheeled Mover

ƒ Moves the tower easily in any direction, so it is easier to position

ƒ Two-year warranty

Lower Hand Lever and secure under the Hook to raise the Tower 1-1/4" (32 mm) Diameter Round Steel Tube Push Handle

Steel Tube Frame Assembly

Lift Brackets engage the Tower Leveler Assembly

Maestro Towers in Storage

6" (152 mm) Diameter x 2" (51 mm) wide Swivel Casters

Wheeled Mover

Top view showing how Maestro Towers nest together in the storage position, minimizing required storage space.

Ten tower nested width is approximately 8' (2438 mm). Width increases as additional towers are added.

1' 1-3/4" (349 mm)

4' 2-3/4" (1289 mm)

First tower is 4' 2-3/4" (1289 mm) add 1' 1-3/4" (349 mm) for each additional tower.

Performance Spaces

Acoustical Shell Enclosures

Application Information

Maestro Ceiling Panels

Stage rigging not supplied by Wenger Corporation.

Shell ceiling in performance position

Ceiling Performance Angle

The angle of the ceilings can be adjusted for different acoustical requirements.

Optional Integrated Wenger Lieto LED Light Fixtures

Ceilings placed in a more horizontal position will return more sound energy to the performers on stage. Ceilings placed at a steeper angle will reflect more sound energy to the audience.

Performance Spaces

Acoustical Shell Enclosures

Application Information

Lieto™ LED Light Fixture

Lieto is an LED light fixture specifically designed for use in Wenger orchestra shells. Fixture construction is lightweight aluminum and "snag-free" curved ABS. The exceptionally shallow mechanical design fully encloses components and precludes interaction with people or nearby stage equipment. The fixture includes a powder-coat steel bezel to properly finish shell ceiling appearance from below. Available in both White and RGBW LED light fixtures.

Features

ƒ Designed for use in Wenger acoustical shell applications

ƒ Aluminum fixture construction and shallow ABS housing are compact and lightweight

ƒ Three axis beam positioning provides tool-less pan, tilt and rotation utilizing a face side adjustment mechanism

ƒ High output CREE LED light engine - 12,000 lumens produced @ 150 watt setting

ƒ Quiet with no buzzing, detectable RFI or cooling fans

ƒ NC-17 acoustical rating

ƒ No IR heat or UV produced

ƒ Choice of color temperature options - 2700K, 3000K and 4000K

ƒ Beamspread options

- White LED: Choice of 18, 28, 36, 54, 70 degree and asymmetric beamspread options

- RGBW LED: Choice of 18, 25 and 34 degree beamspread options

ƒ Accessories

- White LED: Choice of three glare control options

- RGBW LED: Optional concentric ring louvre

ƒ 1% DMX512 dimming, without visible stepping, flash or flicker

ƒ RDM remote fixture address and status reporting

ƒ USB download of performance and usage data

ƒ Each fixture individually addressable and controllable and includes an integrated tilt switch

ƒ Fixtures are RDM compatible at all times – including performance and storage position

ƒ Compatible with DMX512 controlled UL924 emergency lighting solutions

ƒ Energy efficient; wattage is firmware selectable

ƒ Long life L70 > 70,000 hours

ƒ MVOLT - Compatible with 100 - 240 VAC 50 / 60 Hz electric service

ƒ ETL and CE listed and labeled

ƒ RoHS compliant and IP20 rated

ƒ Includes safety cable lanyard

ƒ Includes configuration tablet/firmware/USB Cable

ƒ Five-year limited warranty

ƒ Patent pending

Dimensions

Performance Spaces

Acoustical Shell Enclosures

Application Information

Optical Performance - White LED Light Fixture

Lieto IES files were created using a calibrated goniophotometer by a third party independent laboratory. Wenger Corporation can assist with photometric calculations and layout recommendations using Lighting Analysts AGI software. IES files can be requested from Wenger Corporation and are also available for download from wengercorp.com.

Ordering Code

LTO-150-18-30-RJ45-80-NL 18°, 150 watts, 3000K 11949

LTO-125-18-30-RJ45-80-NL 18°, 125 watts, 3000K 10671

LTO-100-18-30-RJ45-80-NL 18°, 100 watts, 3000K 9272

LTO-75-18-30-RJ45-80-NL 18°, 75 watts, 3000K

LTO-150-28-30-RJ45-80-NL 28°, 150 watts, 3000K

LTO-125-28-30-RJ45-80-NL 28°, 125 watts, 3000K

LTO-100-28-30-RJ45-80-NL 28°, 100 watts, 3000K

28°, 75 watts, 3000K

LTO-150-36-30-RJ45-80-NL 36°, 150 watts, 3000K

36°, 125 watts, 3000K

36°, 75 watts,

70°, 75 watts, 3000K

LTO-150-A1-30-RJ45-80-NL Asymmetric, 150 watts, 3000K

LTO-125-A1-30-RJ45-80-NL Asymmetric, 125 watts, 3000K 10289

LTO-100-A1-30-RJ45-80-NL Asymmetric, 100 watts, 3000K 8771

LTO-75-A1-30-RJ45-80-NL Asymmetric, 75 watts, 3000K 6737

Ordering Information - White LED Light Fixture

Ordering Code Example:

LTO-150-18-30-RJ45-80-HX

Lieto Model Prefix

Performance Spaces

Acoustical Shell Enclosures

Application Information

Optical Performance - RGBW LED Light Fixture

Lieto IES files were created using a calibrated goniophotometer by a third party independent laboratory. Wenger Corporation can assist with photometric calculations and layout recommendations using Lighting Analysts AGI software. IES files can be requested from Wenger Corporation and are also available for download from wengercorp.com.

Ordering Code

CLTO-150-18-30-RJ45-80-NL 18°, 150 watts, 3000K

CLTO-150-25-30-RJ45-80-NL 25°, 150 watts, 3000K

CLTO-150-34-30-RJ45-80-NL 34°, 150 watts, 3000K 8644

Ordering Information - White LED Light Fixture

Ordering Code Example: CLTO-150-25-30-RJ45-90-NL

Lieto Model Prefix

Connection

Accessories - White and RGBW Light Fixtures

(standard) Lens (optional)

CR = Concentric Ring Louvre HX = Hexcel Louvre

NL = No Lens (standard)

White Color Rendering Index

Performance Spaces

Acoustical Shell Enclosures

Application Information

Novara™ LED White Light Fixture

Novara is the only LED light fixture specifically designed as a 1:1 replacement for incandescent fixtures installed in existing Diva® Full-Stage Acoustical Shells. Offering comparable beam angles and lumen output, Novara brings shell lighting up to date with the advantages of LED technology. The LED's not only operate at a fraction of the cost, but they far outlast incandescent lamp life.

Features

ƒ Designed for use in Wenger acoustical shell applications

ƒ Nylon fixture construction

ƒ Two axis beam positioning provides pan and tilt

ƒ High output CREE LED light engine - 6800 lumens produced @ 75watt setting

ƒ Quiet with no buzzing, detectable RFI or cooling fans

ƒ No IR heat or UV produced

ƒ Choice of 36, 54, 70 degree beamspread options

ƒ Color temperature - 3000K

ƒ 1% DMX512 dimming, without visible stepping, flash or flicker

ƒ RDM remote fixture address and status reporting

ƒ Each fixture individually addressable and controllable and includes an optional integrated tilt switch

ƒ Fixtures are RDM compatible at all times – including performance and storage position

ƒ Energy efficient; wattage is firmware selectable

ƒ Long life L70 > 70,000 hours

ƒ MVOLT - Compatible with 100 - 277 VAC 50 / 60 Hz electric service

ƒ ETL and CE listed and labeled

ƒ RoHS compliant and IP20 rated

ƒ Compatible with DMX512 controlled UL924 emergency lighting solutions

ƒ Includes safety cable lanyard

ƒ Three-year limited warranty

Dimensions

Performance Spaces

Acoustical Shell Enclosures

Overview

The latest Wenger technology gives you three attractive, effective portable acoustical shell options to fit your application and budget. The Legacy® shells and towers can be set up quickly and easily — by just one person. Its mobility allows you to acoustically transform almost any space within a facility into a performance venue.

We pioneered acoustical shell design, so it's no surprise that our honeycomb core panel construction delivers enhanced acoustics to both the ensemble and the audience. When the performance is over, Legacy shells and towers take down in no time and nest together compactly.

Legacy® Basic Acoustical Shell Legacy® Classic Acoustical Shell Legacy® Select Acoustic Tower

Usage

Where to Use

Components

Shell Mobility

Features

Portable shell that allows any space to become a performance environment

Improved projection to the audience

Small auditoriums, gymnasiums, cafetoriums and recital halls

Lift mechanism with crank

Acoustical wall towers

Fold down canopy for storage

Integrated non-marring casters

Moves easily by one person

n Flat panel design, with tapered or rectangular 36" (914 mm) high canopy

n Folds flat and nests for storage

n Portable shell on casters

n 78 ft2 (7.2m2) of shell coverage, 7" (178 mm) gap from floor with protruding legs in front of shell

n In the storage position, fits through a 36" (914 mm) wide by 80" (2032 mm) high door opening

n Canopy adjusts at 45, 60, 75 and 90 degree angles

Height 13' 3" (4039 mm)

Storage Shells nest together for storage, each unit adds 10" (254 mm)

Upper Panels:

Flat composite panel, 1" (25 mm) thick with lightweight aluminum edging

Portable shell that allows any space to become a performance environment Improved projection to the audience

Small auditoriums, gymnasiums, cafetoriums and recital halls

Lift mechanism with crank

Acoustical wall towers

Fold down canopy for storage

Integrated non-marring casters

Moves easily by one person

n Flat panel design, with tapered or rectangular 54" (1372 mm) high canopy

n Folds flat and nests for storage

n Portable shell on casters

n 90 ft2 (8.4 m2) of shell coverage

n 2" (51 mm) gap from floor

n In the storage position, fits through a 36" (914 mm) wide by 80" (2032 mm) high door opening

n Canopy adjusts at 45, 60, 75 and 90 degree angles

15' 2" (4623 mm)

Shells nest together for storage, each unit adds 10-5/8" (270 mm)

Flat composite panel, 1" (25 mm) thick with lightweight aluminum edging

6' (1829 mm) wide panel

Material

Lower Panel:

Thermofused laminated particle board, 3/4" (19 mm) thick

6' (1829 mm) wide panel

Three solid color laminates: Oyster, Platinum and Warm Sand

Portable tower designed to be used primarily with an overhead ceiling system for on-stage use

Small auditoriums and recital halls

Acoustical wall towers

Use with ceiling system for optimum performance

Integrated non-marring casters Moves easily by one person

n Cur ved panels for maximum acoustical performance

n Foldable top panel for storage

n Removable bottom panel for nesting

n 60 ft2 (5.6 m2) of shell coverage at 12' (305 mm) height

n 2" (51 mm) gap from floor

n In the storage position, fits through a 36" (914 mm) wide by 80" (2032 mm) high door opening

11' 6" (3505 mm)

Towers nest together for storage, each unit adds 21" (533 mm)

Curved composite panel, 1" (25 mm) thick with thermofused laminate finish

Lightweight aluminum edging

6' (1829 mm) wide panel

Any Sherwin Williams paint color or Wilsonart laminates

Panel
Finishes Oyster laminate only

Performance Spaces

Acoustical Shell Enclosures

Application Information

Legacy® Basic Acoustical Shell

Performance

Requirements

ƒ Legacy units promote excellent ensemble and enhance acoustical projection toward the audience

ƒ Add additional shells to cover larger areas

Construction

ƒ Upper panels are flat in standard 1" (25 mm) thick honeycomb core construction

ƒ Lower fixed panel is constructed of 3/4" (19 mm) thick composite laminated wood with edge banding

ƒ All panels are 6' (1829 mm) wide

ƒ Easy, intuitive lift mechanism for raising and lowering shell

ƒ Canopy folds flat for storage, and middle panel overlaps bottom panel

ƒ Legs protrude in front of shell to provide counterweighted base design

ƒ No kicker panel, bottom panel rests 7" (178 mm) from floor

ƒ Canopy is 36" (914 mm) high providing less coverage than Legacy Classic model

ƒ Fully extended height is 13' 3" (4039 mm)

ƒ Ships partially assembled

ƒ Available in Oyster finish only

ƒ Canopy adjusts to 45, 60, 75 and 90 degree angles

ƒ Ten-year warranty

Legacy Basic Acoustical Shell Data:

Max Height 13' 6" (4115 mm)

Storage Height 6' 4" (1960 mm)

Width 6' 0" (1829 mm)

Storage Depth 31.5" (800 mm)

Nesting Depth 10" (254 mm)

Canopy Depth 36" (914 mm) Legacy Basic

Acoustical Shell

Performance Spaces

Acoustical Shell Enclosures

Application Information

Legacy® Classic Acoustical Shell

Performance

Requirements

ƒ Legacy units promote excellent ensemble and enhance acoustical projection toward the audience

ƒ Add additional shells to cover larger areas

Construction

ƒ Panels are flat in standard 1" (25 mm) thick, honeycomb core construction, 6' (1.8 m) wide

ƒ Improved lift mechanism to raise and lower shell

ƒ Canopy folds flat for storage and is adjustable to 45, 60, 75 and 90 degree angles

ƒ Kicker panel provides coverage within 2" (51 mm) of floor, and folds up for storage

ƒ All panels fit flush with no overlap shadows

ƒ No unsightly exposed fasteners

ƒ Fully extended height is 15' 2" (4623 mm)

ƒ Canopy is 54" (1372 mm) high and available in tapered or rectangular design

ƒ In storage position, unit fits through 36" (914 mm) wide by 80" (2032 mm) high door opening

ƒ Includes counterweighted base system, with no legs protruding in front of shell

ƒ Available in solid Oyster or Harvest Maple wood grain laminate color finishes

ƒ Units nest for storage

ƒ Ten-year warranty

Legacy Classic Acoustical Shell Data:

Height Canopy

at 45 degrees 13' 11" (4242 mm)

Max Height 15' 2" (4623 mm)

Storage Height 6' 6" (1981 mm)

Width 6' 0" (1829 mm)

Storage Depth 34" (864 mm)

Nesting Depth 10" (254 mm)

Canopy Depth 38" (965 mm)

Legacy Classic Acoustical Shell
(1829 mm)

Performance Spaces

Acoustical Shell Enclosures

Application Information

Legacy® Select Acoustic Tower

Performance Requirements

ƒ Legacy units promote excellent ensemble and enhance acoustical projection toward the audience

ƒ Add additional shells to cover larger areas

Construction

ƒ 6' (1829 mm) wide panels

ƒ Panels are constructed of 3/4" (19 mm) honeycomb core with 3/16" (5 mm) thick laminated hardboard skin on front and back

ƒ Overall panel thickness is 1-1/8" (29 mm)

ƒ Panels are curved at a 10' (3048 mm) radius to provide proper diffusion of sound

ƒ Top panel folds for storage using gas assists and a tool to raise and lower the shell; top panel folds at 61" (1549 mm) from top of tower

ƒ Base and shell frame are constructed of black powder-coat painted steel

ƒ Base includes a rear counterweighted design

ƒ Shell tower is 11' 6" (3505 mm) high

ƒ Shell tower rolls through 34" wide x 80 high" (864 x 2032 mm) door opening in the folded storage position

ƒ Includes four swivel, non-marring rubber casters for easy movement

ƒ 4" dia (102 mm) casters at the front and 3" dia (76 mm) casters at the back

ƒ Bottom filler panel is removable and rests 2" (51 mm) from floor; bottom filler panel is stored in back of shell

ƒ Front panel finishes are available in solid colors and selected woodgrain laminates

ƒ Back panel finish is painted black

ƒ Overall shell surface coverage is 60 ft2 (5.6 m2) at 12' (3.7 m) height

ƒ Shells nest compactly at 21" (533 mm) per unit at 11' 6" (3505 mm) height

ƒ Shipped assembled

ƒ Ten-year warranty

ƒ Set up videos are available at wengercorp.com

Nested Towers

Acoustic Treatments

Data Book

Acoustic Treatments for the Audience House

What is the best seat in your house? Or, better yet, do you know where to find all the hot spots where sound concentrates and every dead spot sound never reaches? Are certain areas more prone to flutter echoes and excessive reverberation?

Wenger Corporation has delivered clear, rich acoustics to audiences and performers for decades. It's our specialty, and we excel at creating custom solutions that enhance the acoustics of any space.

Transcend® Active Acoustics System

Transcend balances complex digital sound processing with a simple design that offers venues better performance, value and reliablility. HARMAN's Lexicon processor can tailor reverberation and acoustics to create a variety of environments.

It's Simply a Sound Investment™

Virtuoso™ Acoustical Shell

Virtuoso uses microphones and speakers, along with powerful digital processors to create a virtual acoustical environment that dramatically improves what your musicians and singers hear. The result — an amazing acoustical space for your performers.

Transform® Acoustical Banner

Wenger's Transform Motorized Acoustical Banners offer the benefits of variable acoustics for all performance spaces, allowing you to improve the audience experience during every performance. In just a few seconds, you can tailor your acoustics to best suit your next performance.

Ceiling Clouds

You don't want sound to bounce around backstage and get trapped in the fly loft. You want it reflected at the right place in the right way to the musicians and the audience. Wenger researches your space and then offers you the best solution with our wide range of acoustical ceiling products.

Wall Panels

Dynamic Acoustic Panel Series

Traditional Acoustic Panel Series

Acoustic

Performance Spaces

Acoustic Treatments

Application Information

Transcend® Active Acoustic System

ƒ A system using Transcend active acoustic technology designed for the acoustical enhancement of sound for performance venues

ƒ System includes a series of speakers, microphones, amplifiers, digital signal processing, and a digital audio bus to create different levels of reverberation in performance spaces

ƒ Transcend digital signal processor provides up to four zones of control and that can be expanded by adding additional processors

ƒ Each zone contains 4-channel in, 8-channel out Lexicon active acoustic digital signal processing

ƒ System includes HiQnet communication protocol through Audio Architect for setup, adjustment, and remote monitoring of the system

ƒ Processor includes speech/music detection setting which automatically and gradually reduces the system reverberance when a speech signal is detected over a period of time and increases reverberance when music is detected

ƒ Complete turnkey installation can be provided, including all electrical components, system tuning, wiring/mounting of all speakers, microphones, Transcend, other components and equipment rack; includes system tuning by Wenger

ƒ System requires an isolated power transformer and motorized breaker panel, supplied by Wenger, installed by others

ƒ Three-year warranty

Performance Spaces

Acoustic Treatments

Application Information

Transcend System Components

Harman Crown Amplifiers

ƒ Networked amplification (Audio Architect)

ƒ DCi 8|300N

- Channels: 8

- Sensitivity: 2.0V (34 dB gain)

- Rated Power Output: 600W per channel into 8/4 ohms

- Signal to noise ratio: (below rated power 20 Hz to 20 kHz,

- A-weighted): 108 dB

- Dimensions: 19" x 3-1/2" x 14-1/4" (483 x 89 x 362 mm)

- Weight: 23.5 lb (10.66 kg)

ƒ DCi 4|600N (Sub Woofer)

- Channels: 4

- Sensitivity: 1.0V (34 dB gain)

- Rated Power Output: 300W per channel into 8/4 ohms

- Signal to noise ratio: (below rated power 20 Hz to 20 kHz,

- A-weighted): 108 dB

- Dimensions: 19" x 3-1/2" x 14-1/4" (483 x 89 x 362 mm)

- Weight: 20.1 lb (9.1 kg)

ƒ Other available options: DCi 8|600N, DCi 2|300N, DCi 2|600N, DCi 4|300N, DCi 2|1250N, DCi 4|1250N

Harman JBL Speakers

Wall Mounted Speakers:

ƒ Control 28

- Frequency Response: (-10 dB) half space wall: 60 Hz to 16 kHz

- Continuous program power capacity: 175 watts

- Sensitivity: 92 dB SPL, 1W, 1m

- Wall mounting brackets included

- Ball-mount adjustment

- Dimensions: 11"w x 15"h x 8-1/2"d (279 x 381 x 216 mm)

- Weight: 12 lb (5.5 kg)

ƒ Control 128 (In-wall)

- Frequency Response: (-10 dB) half space wall: 30 Hz to 20 kHz

- Continuous program power capacity: 120 watts

- Sensitivity: 90 dB SPL, 1W, 1m

- Designed for mounting in stud walls, optional stud wall frame available

- Dimensions: 10.1"w x 13.1"h x 4.3"d (257 x 333 x 109 mm), 4" (102 mm) front of wall to back of speaker

- Weight: 5.5 lb (2.6 kg)

Ceiling Mounted Speakers:

ƒ Control 26

- Frequency Response: (-10 dB)

half space wall: 75 Hz to 20 kHz

- Continuous program power capacity: 150 watts

- Sensitivity: 89 dB SPL, 1W, 1m

- Grill, backcan and tile rails included

- Dimensions: 10" diameter x 8.3" high (254 x 211 mm) 8-3/4" (222 mm) cut out size

- Weight: 7.5 lb (3.4 kg)

ƒ Other speakers available: Control 47C, Control 47LP, Control 47HC

Sub Woofer Speakers:

ƒ Surface Mounted Control SB210

- Frequency Response: (-10 dB)

half space wall: 42 Hz to 200 Hz

- Continuous program power capacity: 800 watts

- Sensitivity: 95 dB SPL, 1W, 1m

- Dimensions: 14" x 23.3" x 22.5" (356 x 592 x 572 mm)

- Weight: 38 lb (17.1 kg)

ƒ Other sub woofers available: Ceiling mounted Control 19CS, Control 312CS

Microphones

ƒ Sennheiser MKHC8040 + MZX 8000

- Cardiod polar pattern

- Frequency response: 35 to 20,000 Hz

Sensitivity: at 1000 Hz – 20 mV/Pa (-34 dB)

- Equivalent Noise Ratio Level: 13 dB-A, SPL for 1%

- Length: 1-5/8" (41 mm), with XLR module – 3" (76 mm), 3/4" (19 mm) dia.

ƒ Other microphones available: Schoeps CCM4 and MK4, Neumann KM100

Harman BSS Digital Signal Processor

ƒ BSS BLU 160

- Inputs: up to 16 analog with 48V phantom power

- Outputs: BLUlink digital audio

- Dimensions: 1U - 1.75"h x 19"w x 12.5"d (44 x 483 x 318 mm)

- Weight: 9 lb (4.1 kg)

Wenger Transcend Active Acoustic Processor

ƒ System: 48 kHz, 32-bit floating point

ƒ Digital Inputs: 16 microphone, 8 auxiliary

ƒ Digital Outputs: 32 channels of BLU link digital audio

ƒ Maximum number of channels: 256 at 48 kHz

ƒ Latency: 6.3 msec.

ƒ Communication protocol: Harman HiQnet

ƒ Communication Applications: Audio Architect

ƒ Up to four zones of processing

ƒ Dimensions: 3.5"h x 19"w x 8.25"d (89 x 483 x 210 mm)

ƒ Weight: 11.5 lb. (5.21 kg)

Harman Control Panels

ƒ AMX Touch Screen Control:

- 7" diagonal touch screen, wall mounted with custom programmed presets for Transcend System

ƒ BSS Contrio EC-8B

- Wall mounted ehternet wall controller, HiQnet compatible, 8 programmable buttons

ƒ Also compatible with Crestron control panels

Performance Spaces

Acoustic Treatments

Application Information

Virtuoso™ Acoustical Shell

ƒ Virtual Acoustics Environment Virtual Shell technology designed for the performance stage that allows musicians to hear themselves more effectively

ƒ System comes with eight pre-set environments for the stage with varying degrees of support and reverberance

ƒ Provides a stage environment with similar support to a full stage acoustical shell with the addition of reverberance if desired

ƒ System includes record/playback feature with immediate feedback

ƒ Ability to upload accompaniments and download recording sessions

ƒ Complete installation, including all electrical components, system tuning, and wiring/mounting of all speakers and microphones; also includes installation of acoustical absorption of the stage house (if needed)

ƒ System includes lockable, front and rear access, wall-mounted component rack for all system components, including VAE digital signal processor, power sequencer, amplifiers, and ventilation fan

ƒ Five-year warranty

Virtuoso System Components

Harman Amplifiers

ƒ Channels: 8

ƒ Sensitivity: 1.4V (26db gain)

ƒ Rated power output: 125W per channel into 8/4 ohms

ƒ Signal to noise ratio: (below rated power 20Hz to 20Hz, A-weighted): 110 db

ƒ Dimensions: 19"w x 5.25"h x 16.25"d (483 x 133 x 413 mm)

ƒ Weight: 36 lb (16.3 kg)

Harman Speakers

ƒ Frequency response: (-10db) half-space wall: 45 – 20kHz

ƒ Sensitivity: 92dB SPL, 1W, 1m

ƒ Continuous program power capacity: 175 watts

ƒ Wall mounting brackets included

ƒ Coverage: 100 x 100 degrees

ƒ Dimensions: 11.1"w x 15.2"h x 8.6"d (282 x 386 x 219 mm)

ƒ Weight: 15 lb (6.8 kg)

Harman Microphone

ƒ Transducer type: pre-polarized condenser microphone

ƒ Frequency response: 20 to 20,000 Hz

ƒ Signal-to-noise ratio: A-weighted: 77db

ƒ Maximum sound pressure level for 1.0% THD: 132db SPL

Wenger VAE Processor

ƒ Built-in pre-amplification and equalization

ƒ Microphone inputs: 2 Female XLR

ƒ Input Impedance: 3000 Ohms Balanced

ƒ Phantom Power: +24 volt

ƒ Frequency Response: 20 to 20kHz within 1 db

ƒ THD+N: 0.007%

ƒ Sample Rate: 44.1 kHz

ƒ Dynamic Range: A /D > 100dB, 24 Bit resolution

D/A > 100dB, 24 Bit resolution

ƒ Record Output: 1/8" TRS jack

ƒ Power Outputs: Four 1/4" TRS and two 4-pin EURO (5.08 mm pitch)

ƒ Output Impedance: 4/8/16 ohms

ƒ Remote control connector: 10-pin Molex type 42404

ƒ USB type B socket: For downloading recorded files

ƒ Compact Flash socket: For storing recorded sessions

ƒ Internal 15 Band 2/3 octave Equalizer

ƒ Internal pink noise generator and real time analyzer

ƒ Power Requirements: 100-120 volts or 220-240 volts, 50/60 Hz, 160 Watts typical

ƒ Operating Temperature: 0 to 40 degrees C

ƒ Humidity: 95% max non-condensing

ƒ Dimensions: 17.4"w x 3.5"h x 11.5"d (442 x 89 x 292 mm) Rack mount face is 19.0" wide (483 mm)

ƒ Weight: 17.5 lb (7.9 kg)

Performance Spaces

Traditional Shell Configuration
Virtual Shell Configuration (replaces traditional shell)

Performance Spaces

Acoustic Treatments

Application Information

Ceiling Clouds

Layout and Installation Requirements

The following application requirements are necessary steps to facilitate the layout of an effective Wenger Acoustical Cloud System for your auditorium. Because of the acoustical complexities of this space, it will be necessary for us to work closely with the project architect and/or acoustician.

Look over the following points, but please call us before you begin.

ƒ The layout of the clouds must be completed by a design professional; consult a professional project architect and/or acoustician for proper performance facility layouts

ƒ Scaled drawings indicating cloud placement and elevations need to be provided to Wenger Corporation to facilitate layout

ƒ Drawings should indicate: HVAC, light and sprinkler locations and elevations.

Please note that the Wenger Acoustical Cloud System is not designed to support lights, HVAC and sprinkler systems; close coordination of these elements is required if they penetrate or pass through the Cloud System

ƒ Finish options:

- Face - painted, plastic laminate or wood veneer

- Panel back and perimeter - painted black All assembly hardware will have a standard manufacturer's finish

ƒ Typical cloud panel size - 4' x 8' (1219 x 2438 mm); custom panels may be available upon request

ƒ A typical cloud panel weighs approximately 2-1/2 lb per square foot (1.13 kg); panel weights do not include the additional pipe grid and hardware supplied and installed by others

ƒ Custom acoustically transparent cloth-covered panels are available for the speaker cluster area if required

ƒ Verification of all dimensions is required before construction of cloud panels

Performance Spaces

Typical Drawings

Half Plan — Auditorium Reflected Ceiling — Panel Spacing and Grouping

Indicates HVAC Diffusers (By Others)

Indicates Lights (By Others)

Indicates Cloth Covered Speaker Panel (As Required)

Section Through Centerline of Auditorium Stage

Indicates Existing Roof Structure

Indicates Fire Sprinklers (By Others)

Indicates 1-1/2" (318 mm) Steel Pipe Battens (Supplied and Installed by Others)

Projection Booth

Catwalk

Performance Spaces

Typical Drawings

Half Plan — Auditorium Reflected Ceiling — Spacing and Custom Tapers

Indicates HVAC Diffusers (By Others)

Indicates Lights (By Others)

Stage

Indicates Cloth Covered Speaker Panel (As Required)

Indicates Fire Sprinklers (By Others)

Indicates 1-1/2" (318 mm) Steel Pipe Battens (Supplied and Installed by Others)

Projection Booth

Indicates Existing Roof Structure

Section Through Centerline of Auditorium

Catwalk

Performance Spaces

Typical Drawings

Half Plan — Auditorium Reflected Ceiling — Spacing and Panel Orientation

Indicates 1-1/2" (318 mm) Steel Pipe Battens (Supplied and Installed by Others)

Indicates Lights (By Others)

Stage

Indicates Cloth Covered Speaker Panel (As Required)

Section Through Centerline of Auditorium

Indicates Fire Sprinklers (By Others)

Projection Booth

Indicates Existing Roof Structure

Catwalk

Performance Spaces

Acoustic Treatments

Typical Drawings

Consult your job site engineer for proper placement and safe installation of the suspension points.

Brackets are reinforced by a bolt through aluminum extrusion for added safety

3/16 (5 mm) Hardboard Back panel with 1-1/2" (38 mm) Paper Honeycomb Core

3/16" (5 mm) Rated Screw Pin Shackle

Extrusion Typical Both Ends (Painted Black)

(12133'11-3/4" mm)

A typical cloud panel weighs approximately 2-1/2 lb per square foot (1.13 kg). Panel weight does not include the suspension hardware.

R10'0" (3048 mm)

Foam Caps, Curved Ends

3/16" (5 mm) Hardboard Back (Black)

7'9-1/2" (2375mm)

3/16" (5 mm) Hardboard or Wood Veneer Face, Painted or Stained a Color as Specified by Owner

Black
Aluminum

Performance Spaces

Acoustic Treatments

Application Information

Dynamic Acoustic Panel Series

ƒ Panels are available in three configurations:

- Tunable Panel (change between Absorption and Diffusion modes by sliding handle)

- Absorber Panel (not changeable)

- Diffuser Panel (not changeable)

ƒ Provides ideal acoustic treatment for multi-function music rehearsal rooms, recital halls and cafetoriums

ƒ Facilitates instrumental and choral music in the same rehearsal or performance space

ƒ Available in two sizes: 4' x 4' (1219 x 1219 mm) or 4' x 8' (1219 x 2438 mm) with center depth of 12" (305 mm)

ƒ Panel face is constructed of an aluminum sheet which is curved and covered with fabric Tunable and Absorber Panels are micro perforated, Diffuser Panels are solid

ƒ Standard acoustical fabric by Guilford of Maine (Anchorage Series); available in a variety of colors and Class A fire rated per ASTM E84; custom fabrics may also be used, dependent on fabric specification

ƒ Panel sides are constructed of durable curved aluminum extrusions

ƒ Top and bottom panels are constructed of 3/4" (19 mm) thick laminated particleboard with 1/8" (3 mm) edge banding;available in select woodgrain finishes

ƒ Panel securely attaches to the wall with two brackets

ƒ Main wall bracket is constructed of 10-gauge steel (3.4 mm), with holes aligned every 2" (51 mm) to accommodate studded walls

ƒ Shipped partially assembled

ƒ Five-year warranty

ƒ Patent pending

See the following page for acoustical test results.

12" (305 mm)
Sliding Handle (on Tunable Panels only)
48" (1219 mm)
4' x 4' Panel
Sliding Handle (on Tunable Panels only)

Performance Spaces

Acoustic Treatments

Application Information

Acoustical Performance

Third party test results for sound absorption coefficients meet the requirements of ASTM C423 and standard mounting practices outlined in ASTM E795.

Acoustical test reports available upon request.

Tunable Panel

ƒ Internal absorber/diffuser mechanism constructed of hinged aluminum sheets with steel actuator

ƒ Changes from absorber to diffuser with quick turn of a handle. Handle protrudes down 4" from bottom panel surface

ƒ Provides up to 0.8 seconds of change in reverberation time

ƒ Panel weight (installed): 4' x 4' = 92 lb (41.7 kg), 4' x 8' = 155 lb (70.3 kg)

Sound Absorption Coefficient

Absorber Only Panel

ƒ Same construction and aesthetic as the Tunable Panel, with these exceptions

ƒ No internal absorber/diffuser mechanism. Panel is used only as a sound absorber

ƒ Provides broad frequency range sound absorption from 125 Hz to 4000 Hz

ƒ Panel weight (installed): 4' x 4' =

Diffuser Only Panel

ƒ Same construction and aesthetic as the Tunable Panel, with these exceptions

ƒ No internal absorber/diffuser mechanism. Panel is used only as a sound diffuser

ƒ Provides broad frequency range sound diffusion from 125 Hz to 4000 Hz

ƒ Panel weight (installed): 4' x 4' = 72 lb (32.7 kg), 4' x 8' = 116 lb (52.6 kg)

Sound Absorption Coefficient

Performance Spaces

Acoustic Treatments

Application Information

Traditional Acoustic Panel Series

The information contained in this section is a starting point to help you incorporate Wenger Traditional Acoustic Panels into your design. But, because every environment and application requirement is unique, we need to work with you to make specific recommendations for your design. This is necessary to ensure that your final plan addresses the most common problem associated with music rooms: excessive loudness.

Layout Recommendations

1. Room surfaces should not include any convex planes - flat surface preferred

2. Ceiling heights of 18'–22' (5486–6.706 mm) for instrumental and 16'–20' (4877–6096 mm) for choral rehearsal rooms are recommended

3. Suspended ceiling with 1" (25 mm) thick glass fiber panels should be included for Instrumental Rooms (recommended NRC is 0.95)

4. Cubic room volumes of 550–700 cu. ft. per instrumentalist and 350–500 cu. ft. per vocalist is recommended

5. For Choral Rehearsal Rooms, 0.95 NRC ceiling tile is recommended around the perimeter of the room only

6. Instrument storage best located outside of rehearsal room

7. Carpet is generally not recommended in the music rehearsal area because of its selective high frequency absorption

8. Wenger Corporation will guarantee your room performance if the following four elements can be met:

- Use of Wenger recommended ceiling material

- Adequate cubic room and volume as stated in #4

- Adequate space to mount panels

- Wenger can only guarantee room performance in spaces where our recommendations are followed

Performance Spaces

Acoustic Treatments

Application Information

Types of Traditional Acoustic Panels

Wall Absorbers

Fabric wrapped with reinforced edges. Intended to provide good absorption across a broad range of frequencies. Mostly located on rear wall, rear one-third of side walls and corners.

Ceiling Absorbers

Same construction as wall absorbers. Can be suspended from ceiling, mounted in ceiling grids or attached directly to the ceiling surface. Used in rooms with a reflective ceiling.

Wall Diffusers

Type I: Fabric wrapped molded from 4 up to 18 ft2 (0.37 up to 1.67 m2) surface area.

Convex shape with faceted edges or offset pyramidal panels designed to blend sound of higher and mid - frequencies so as to eliminate "hot" or "dead" spots in a room.

Primarily on the front wall and the front two-thirds of the side walls.

Type II: Fabric wrapped panels with absorptive fiberglass backing have 18 to 32 ft2 (1.67 to 2.97 m2) surface area.

Designed to diffuse lower frequencies and absorb lower frequencies. Typically mounted on the back wall and the back 1/3 of side walls behind percussion and lower brass instruments.

Ceiling Diffusers

Pyramidal: Molded, white, ceiling diffuser typically installed in a suspended ceiling. Surface is paintable by others.

Convex: Molded, white ceiling mounted diffusers located over director and spreading out over middle of group. Surface is paintable by others.

Quadratic: Originally used in recording studios and major concert halls around the world, quadratic technology provides uniform reflection of sound over a wide frequency range. Typically installed in a suspended ceiling.

Wall Absorber Panel
Type I Wall Diffuser Panel
Type II
Wall Diffuser Panel
Pyramidal Ceiling Diffuser Panel
Convex Ceiling Diffuser Panel
Quadratic Ceiling Diffuser Panel
Pyramidal Wall Diffuser Panel

Performance Spaces

Acoustic Treatments

Application Information

Traditional Absorber Panels

Panels are fabric covered utilizing the Guiford of Maine Company's FR701® Style 2100 series of fabric in a variety of colors.

ƒ Manufacturer's standard construction of 2" (51 mm), 3" (76 mm), and 4" (102 mm) thick 6 pcf, glass fiber board, hardened resin edges, covered with fabric; final assembly meets 2018 IBC requirements for Class A interior finishes

ƒ Corner brackets to receive mounting hardware

ƒ Five-year warranty

2' x 3' (610

2' x 6' (610 x 1829 mm)

2' x 8' (610 x 2438 mm) 23-3/16" x

3' x 3' (914 x 914 mm)

3' x 4' (914 x 1219 mm) 35-3/16" x 46-7/8" (894 x 1191 mm)

3' x 5' (914 x 1524 mm) 35-3/16" x

3' x 6' (914 x 1829 mm) 35-3/16" x 70-7/8" (894 x 1800 mm)

3' x 8' (914 x 2438 mm) 35-3/16" x 94-7/8"

4' x 4' (1219 x 1219 mm) 46-7/8" x 46-7/8" (1191 x 1191

4' x 5' (1219 x 1524

4' x 6' (1219 x 1829 mm) 46-7/8" x 70-7/8" (1191 x 1800 mm)

4' x 8' (1219 x 2438 mm) 46-7/8" x 94-7/8" (1191 x

Note: Custom sizes are available.

Ceiling Absorber Panels

2'

3' x 4' (914 x 1219

4' x 4' (1219 x 1219 mm) 46-7/8" x 46-7/8" (1191 x 1191

Note: Ceiling absorber panels mount directly to a permanent ceiling or suspend from wires only. No lay-in or clip-in option is available for suspended ceiling grids.

Absorber Panel
Wall Absorber Panels

Performance Spaces

Acoustic Treatments

Application Information

Traditional Wall Diffuser Panels

Diffuser panels include convex and pyramidal shaped ceiling and wall panels. Only wall panels are fabric covered utilizing the Guiford of Maine Company's FR701® Style 2100 series of fabric in a variety of colors.

ƒ Corners are reinforced with diagonal supports, which also provide a secure anchor for the mounting hardware

ƒ Final assembly meets 2018 IBC requirements for Class A interior finishes

ƒ Five-year warranty

Wall Diffuser Panels, Type I (Convex)

ƒ Constructed thermo molded plastic, 0.125" (3 mm) material thickness, recyclable

3' x 4' x 6" (914 x 1219 x 152 mm)

3' x 6' x 6" (914 x 1829 x 152 mm) 35-1/4" x 71" x 5-3/4" (895 x 1803 x 146 mm)

4' x 2' x 5" (1219 x 610 x 127 mm) 47" x 23-1/2" x 4-7/8" (1193 x 60 x 124 mm)

4' x 3' x 6" (1219 x 914 x 152 mm) 47" x 35-1/4" x 5-3/4" (1193 x 895 x 146 mm)

4' x 4' x 7" (1219 x 1219 x 178 mm) 47" x 47" x 6.81" (1193 x 1193 x

4' x 6' x 8" (1219 x 1829 x

x

Wall Diffuser Panel, Type II (Convex)

(12.25 kg)

ƒ Constructed of thermo molded plastic, 0.125" (3 mm) material thickness with glass fiber board glued to rear surface of panel

ƒ Recyclable

4'

Pyramidal Wall Diffuser Panels

4'

Type I Wall Diffuser Panel

Type II Wall Diffuser
Type I Wall Diffuser Panel
Type II Wall Diffuser Panel

Performance Spaces

Acoustic Treatments

Application Information

Traditional Ceiling Diffuser Panels

ƒ Ceiling diffuser panels are available in convex or pyramidal shapes

ƒ Manufacturer's standard construction of thermo molded plastic 0.125" (3 mm) material thickness with white "lemon-peel" finish, NOT fabric covered

ƒ Surface is paint-able using latex acrylic paint only

ƒ Constructed of Class A material according to NFPA 101 Life Safety Code Requirements

ƒ Lay-In ceiling panels attach securely to a suspended ceiling grid (safety cables provided)

ƒ For a suspended ceiling grid, please specify if using standard or designer grid system

ƒ Clip-In ceiling panels may be direct mounted to permanent ceiling, or suspended from ceiling by wire from four corner hooks

ƒ Recyclable

Convex Ceiling Diffuser Panels

Lay-in Panel (for designer or standard grid)

2' x 2' x 6" (610 x 610 x 152 mm) 23-5/8" x 23-5/8" x 5-1/4" (600 x 600 x 133 mm) 3

(1.36 kg)

4' x 2' x 6" (1219 x 610 x 152 mm) 47-5/8" x 23-5/8" x 5-1/4" (1210 x 600 x 133 mm) 8 lb (3.63 kg)

4' x 4' x 8" (1219 x 1219 x 203 mm) 47-5/8" x 47-5/8" x 7-1/4" (1210 x 1210 x 184 mm) 15 lb (6.80 kg)

Clip-in Panel (for direct mount or wire suspended)

2' x 2' x 5" (610 x 610 x 127 mm) 22-5/8" x 22-5/8" x 4-3/4" (575 x 575 x 121 mm) 3 lb (1.36 kg)

4' x 2' x 5" (1219 x 610 x 127 mm) 46-7/8" x 23-1/8" x 4-3/4" (1191 x 587 x 121 mm) 8 lb (3.63 kg)

4' x 4' x 7" (1219 x 1219 x 178 mm) 46-3/4" x 46-3/4" x 6.81" (1187 x 1187 x 173 mm) 15 lb (6.80 kg)

Pyramidal Ceiling Diffuser Panels

Lay-in Panel (for designer or standard grid)

2' x 2' x 6" (610 x 610 x 152 mm) 23-5/8" x 23-5/8" x 6" (600 x 600 x 152 mm)

4' x 4' x 16" (1219 x 1219 x 406 mm) 47-5/8" x 47-5/8" x 15.46" (1210 x 1210 x 393 mm)

Clip-in Panel (for direct mount or wire suspended) 4' x 4' (1219 x 1219 mm) Panels only

4' x 4' x 15" (1219 x 1219 x 381 mm) 46-3/4" x 46-3/4" x 15" (1187 x 1187 x 381 mm)

(6.80 kg)

Performance Spaces

Acoustic Treatments

Application Information

Installation

ƒ Acoustic panels are designed for easy installation

ƒ Panels are shipped fully assembled with mounting hardware included (fasteners not included) for a secure installation

Ceiling Absorber/Diffuser Installation

Acoustical Performance - 4' (1219 mm) Panels only

4' x 4' (1219 x 1219 mm) Pyramidal

Type I Wall Diffusers 4' x 4' (1219 x 1219 mm) Convex

Type I Wall Diffusers 4' x 4' (1219 x 1219 mm) Pyramidal

Type II Wall Diffusers 4' x 8' (1219 x 2438 mm)

F-6 Mounting 1/4" (6 mm) air space (to simulate typical wall installation)

A Mounting — 0" (0 mm) air space

E-400 Mounting — 16" (406 mm) air space

F-7 Mounting — 9/32" (7 mm) air space

Sound Transmission Class (STC), determined according to ASTM E90 and ASTM E413; Type I convex ceiling diffuser panel, 4' x 4' (1219 x 1219 mm); STC 23, Type 1 pyramidal diffuser panel, 4' x 4' (1219 x 1219 mm), STC 22.

Wall Absorber/Diffuser Installation
Direct Mount
Suspended by wire
Lay-in Clip
Designer Clip
Ceiling Grid Mount Options

Performance Spaces

Acoustic Treatments

Acoustic Panel Questionnaire

When it comes to acoustical treatments for music rehearsals spaces, each room's needs are unique and we cannot base an acoustic solution on assumptions. In order to put a proposal together based on the unique needs of your rooms, we ask that you complete the following questionnaire. From this information, we will design the optimal acoustic panel solution and create a drawing for placement of panels, and a budget quote.

Customer Name:

Facility Name:

City, State, Zip:

Architect:

Phone/Fax:

Email:

Is an acoustician involved? ___ Yes ___ No

Firm Name?

A.) Send a copy of the following blueprint/CAD drawings of your room (if you do not have drawings, please create a detailed sketch showing key dimension and locations of obstacles such as doors, windows, speakers, emergency lights, white-boards ect.):

With sketches please indicate:

________ Floor Plans Room Width

________ Reflected Ceiling Plan Room Depth

________ Wall Elevations Ceiling Height

C.) Ceiling Finish

If you have a suspended ceiling please note:

The expected acoustic results assume Acoustic Ceiling Panels (rated at .95 NRC and are typically a 1" thick, or greater, glass fiber material). Any other suspended ceiling will nullify the expected acoustic result of a Wenger solution.

Suspended/1" Glass Fiber Panels .95 NRC – Required to achieve the expected acoustic result of a Wenger Solution.

Suspended/Mineral Board – Nullifies the expected acoustic result of a Wenger solution.

Will you be replacing with acoustic panels rated at .95 NRC or better ___Yes ___No

______ Acoustical Tile/Glued (Unpainted)

______ Acoustical Tile/Glued (Painted)

These ceiling types can be treated with Wenger Absorber Panels:

______Steel Truss/Deck ______ Wood Planking ______ Concrete Beam ______ Plaster ______ Gypsum Board

For Existing Spaces: What is the biggest problem with the rehearsal room? Too loud ____________________________ Too boomy

B.) What is the main use of the room, and the largest Number of students in a group that use the room?

_____ Marching Band # of Students_____

_____ Jazz Band # of Students_____

_____ Band # of Students_____

_____ Orchestra # of Students_____

_____ Choir # of Students_____

_____ Multi-purpose

(Example: Cafetorium) # of Students_____

D.) Suspended Ceiling Grid (if applies)

______ Standard Grid System

______ Designer Grid System

E.) Floor Finish ______Concrete ______ Tile on Concrete ______ Carpet on Concrete ______ Wood Floor ______ Carpet on Wood Floor

______ Wood or Poured Concrete Risers (Please note poured concrete risers greatly limit the acoustic capacity of a room and are not recommended).

F.) Wall Finishes Nor th South East West Concrete or Concrete Block Gypsum/Drywall Board with 3-1/2" Insulation Behind Gypsum Board No Insulation _______ ______ Plaster/Lathe

Brick _______

Poured/pre-stressed Concrete Windows ____ No

____ Yes – Shown on print or sketches with dimensions indicated including sill height above floor and window height from sill to top of window opening.

G.) Are there/will there be Instrument Storage Cabinets in this room?

____ No

____ Yes

Are they Wenger Cabinets? ____ No ____ Yes: ___ Solid Doors ___ Grille Doors ___ Acoustic Cabinets

H.) Which compass direction does the group face? (Must indicate "North" or "Front" on blueprint.)

____ North ____ South ____ East

____ West

I.) Video or photograph your rehearsal room the way it's normally set up. A simple commentary on the video will further clarify what you are showing us.

Performance Spaces

Acoustic Treatments

Application Information

Transform® Motorized Acoustical Banner

ƒ Available fabric options:

- Encore Velour, double layer 22 oz (0.6 kg)

- Wool Serge, double layer 30 oz (0.85 kg)

ƒ See table below for banner fabric options

ƒ Tubular motor driven system for use in an operator controlled or pre-set environment

ƒ Designed for performance spaces, including performance halls, theaters, and auditoriums

ƒ All fabrics are IFR rated

ƒ Each banner option includes adjustable spacing away from the wall and between the layers of fabric

- From wall to rear fabric: 4" to 6" (102 to 152 mm)

- Between fabric layers: 3" to 5" (76 to 127 mm)

ƒ Each banner includes a standard "quick change" provision to allow fabric to be removed for maintenance

ƒ Banner retracts into cove to hide from view when not in use

ƒ Banner includes laminated wood closures

ƒ Enclosure width will vary to match fabric width

ƒ For exposed installations, end caps are included in a variety of finishes

ƒ Fast and quiet deployment of up to 45' (13716 mm) per minute

ƒ A minimum 2" (51 mm) of spacing between banner enclosures is recommended

ƒ Wall and ceiling mount kits are available for fast and easy installation

ƒ Banner system will integrate with J.R. Clancy's systems or simple push button controls

ƒ Requires a standard 120-volt/60 Hz circuit, 2.1 amps maximum per banner (worldwide voltages available)

ƒ Each banner is shipped assembled and tested for proper operation before shipment

ƒ Patents pending

ƒ Three-year warranty

Transform Banner Fabric Options

1 Wider banner fabric requires front-facing horizontal seams

Wenger Corporation's complete line of J.R. Clancy staging engineering and motion control solutions has allowed us to incorporate motion into performances for more than 130 years.

We are proud to provide everything from simple stage hardware to highly sophisticated rigging systems for performance venues worldwide. With rigging and motion control systems ranging from simple to complex, our products are designed to meet the unique needs of your venue and provide reliability and safety to ensure flawless performances. Our creative collaboration between our Wenger and J.R. Clancy brands allows us to meet your needs from acoustical shells, pit fillers, staging, manual and automated rigging, motion controls systems, to fire curtains and lighting systems integration.

For more information about our Stage Engineering and Motion Control Solutions, visit jrclancy.com or email us at JRCinfo@wengercorp.com.

Performance Spaces

Stage Rigging

Application

Information Overview - TIM® Train, Inspect, Maintain

Trust TIM® to keep your theatre safe and compliant

J.R. Clancy's commitment to you goes well beyond a superior quality equipment and installation. In fact, our proprietary ongoing safety program — TIM® — is dedicated to keeping your new or existing facility at the forefront of theatre safety excellence.

Training

Part of our commitment to safety is helping you understand the functionality of your rigging equipment and J.R. Clancy motion control systems. Operating them in the right manner promotes both human safety and product performance. Part of this program involves training your operators on these systems, and providing them with the knowledge of how to identify potential problems. Having a solid sense of the systems you're operating can make you aware if something has been altered or damaged and needs attention. Issues can happen as a result of age, accident, equipment failure, or human error. We'll train your staff to not only know how to best operate your systems, but to also help keep them in perfect working order.

Inspection

Our qualified rigging inspectors are experts at identifying equipment installations and backstage environments that may be unsafe. By finding potential problems early they are able to help you minimize repair costs and perhaps avoid expensive damages or injuries. At J.R. Clancy we are long-time advocates of embracing ANSI standards and we encourage our customers to take all necessary steps to protect their investment in theatre equipment. An annual inspection, at minimum, helps ensure safety and also helps reduce liability risks and should be standard procedure in any loss/accident prevention program.

Maintenance

Part of our inspection process includes generating a detailed report of any items that require ongoing inspection and maintenance. It may be an item that is still working, but needs to be continually watched. It may be a part that needs replacement, a system that needs a software upgrade, or a piece of equipment that should be taken out of service. We'll discuss the report with you and provide an estimate for any possible expenses. Our technicians are the finest in the industry, trained by us and empowered to handle any job, from simple repairs and replacements to complex troubleshooting, renovations, and upgrades.

Make Sure Your Rigging Meets ANSI Standards

Founded in 1918, the American National Standards Institute (ANSI) is dedicated to enhancing business competitiveness and quality of life by promoting and facilitating voluntary standards and safeguarding their integrity. ANSI E1.47 – 2017 Entertainment Technology, Recommended Guidelines for Entertainment Rigging System Inspections states that Manually Operated Equipment and Motorized Equipment should be inspected annually or immediately after equipment or components have been newly installed, altered or repaired.

At J.R. Clancy we schedule regular inspections with our customers to ensure their rigging systems are in excellent working order. We also train our customers to identify potential problems so they can act in the timeliest manner to promote ongoing safe operation.

To learn more or to schedule one or all of these services, contact our Service Department at 1-800-455-4072. Email us at service@jrclancy.com

* Training, inspection and maintenance will not cover control systems that are not manufactured by J.R. Clancy.

Performance Spaces

Stage Rigging

Application Information

Hoists

J.R. Clancy offers the most extensive line of automated hoists in the industry, with standard and custom design choices for performance venues of all sizes, each delivering unequaled reliability, safety, and ease. Whether you are lifting a large grid above an arena, a front-of-house lighting batten, or creating three-dimensional motion control, J.R. Clancy has a reliable and safe option for your project.

Enhanced Performance – Precision and speed to help you better control your performance equipment.

Safety – Improve the safety environment backstage by limiting the need for manual manipulation of ropes and counterweights.

Time Savings – Speed up changeovers.

Space Savings – Create additional space backstage by moving your rigging to the fly loft.

PowerLift® Hoist

PowerLift is a zero-fleet, automated hoisting system available in fixed or variable speeds. Its versatile mounting system enables PowerLift to be installed in virtually any space. It's ideal for many stage hoisting applications including: lighting, scenery, speaker clusters, shell ceilings.

Features:

ƒ Speed: Up to 180 fpm (0.9 m/s)

ƒ Capacity: Up to 2500 lb (1134 kg)

ƒ Travel: Up to 7 Lines: 62 ft (18.9 m)

8 Lines: 49 ft (14.9 m)

ƒ Hoists can be mounted vertically or horizontally

ƒ Compact moving drum allows for a small, efficient hoist

ƒ Sturdy aluminum backbone

ƒ SureBrake® redundant brake for safety

ƒ Wire rope diameter: 3/16" (4.8 mm)

Summit Theatron™ Hoist

The Summit Theatron features a precision-engineered, parallelgroove cylindrical drum designed for multi-layer cable winding, ensuring smooth, consistent performance. Its frame is optimized for straightforward installation and convenient access for routine service and inspection. Engineered with the educational market in mind, the Summit offers a cost-effective hoisting solution without sacrificing the advanced features found in our higher-end models.

Features:

ƒ Speed: Up to 205 FPM (1.05 m/s)

ƒ Capacity: Up to 2,200 lbs (998 kg)

ƒ Travel: Up to 8 lift lines @ 55 ft (16.8 m)

ƒ Max Batten Length: 76 ft (23.2 m)

ƒ Wire Rope Diameter: 3/16" (4.8 mm) diameter

ƒ Mounting Configuration: Under-hung only

ƒ Open-frame construction for easy inspection and maintenance access

ƒ Lightweight, separate backbone and attachable "top hat" for initial installation and strong point to lift the hoist into place

ƒ Eliminates horizontal loads on supporting structure

ƒ All models include integrated load cell, encoder, and Variable Frequency Drive (VFD) for smooth, ramped motion control

PowerLift Hoist
PowerLift Hoist

Performance Spaces

Stage Rigging

Application Information

Titan® Hoist

The Titan is a high-performance hoist for applications requiring large capacity, speed and/or long travel. Titan is a customizable pre-engineered hoist – it is engineered and manufactured to your requirements yet provides the economic benefits of an "off the shelf" system.

Features:

ƒ Speed: Up to 650 fpm (3.3 m/s)

ƒ Capacity: Up to 3300 lb (1496 kg)

ƒ Travel: Up to 8 Lines: 90 ft (27.4 m)

ƒ 10 Lift Lines: 67 ft (20.4 m)

ƒ A complete suite of load and safety features

ƒ Can be mounted vertically or horizontally

ƒ Wire rope diameter: 1/4" (6.3 mm)

PowerAssist® Hoist

Convert your manual rigging sets to an automated system simply and economically with PowerAssist. You'll no longer need to load and adjust the counterbalancing weights.

The motor handles the out-of-balance load, so you don't have to.

PowerAssist single axis units are extremely compact and can be easily installed under your existing locking rail.

Features:

ƒ Speed: 25 fpm (0.13 m/s)

ƒ Capacity: Up to 2000 lb (907 kg) without the need to adjust weights

ƒ Travel: Varies based on building

ƒ Max batten length: As required

ƒ Can be used on single or double purchase sets

PowerLine™ Shaft Hoist

The PowerLine is a line shaft hoist, re-engineered to reduce size, weight, and cost. PowerLine hoists offer a wide range of speeds and capacities, making them versatile performers and excellent choices for retrofits in older buildings.

Features:

ƒ Speed: Up to 240 fpm (1.2 m/s)

ƒ Capacity: Up to 2500 lb (1,134 kg)

ƒ Travel: Up to 60 ft (18.3 m)

Options:

ƒ Mechanical or electric secondary brake

ƒ Load sensing

ƒ Encoder for positioning

ƒ Cross groove and slack line detectors

Titan Hoist
PowerAssist Hoist
PowerLine Shaft Hoist

Performance Spaces

Stage Rigging

Application Information

Performer® Hoist

The Performer Hoist is built with safety and portability in mind. Its servo motor drive delivers high dynamic capabilities in a small package. The Performer and our J.R. Clancy motion control consoles can be combined to offer state-of-the-art performer flying capabilities including programmable 3D motion.

Features:

ƒ Speed: Up to 480 fpm (2.4 m/s)

ƒ Capacity: Up to 600 lb (272 kg)

ƒ Travel: Up to 100 ft (30.5 m)

ƒ Moving drum design for constant fleet angle

ƒ Safety features include dynamic load measurement, redundant encoders monitoring, crossed groove detectors and redundant brakes.

ƒ Wire rope diameter: 1/4" (6.3 mm)

Self-Climbing Hoist

A self-contained hoist system that allows quick and easy installation without having full access to the ceiling/roof steel.

Features:

ƒ Speed: 20 fpm (0.1 m/s)

ƒ Total Capacity: Up to 3000 lb (1360 kg)

ƒ Live Load Capacity: Up to 1500 lb (680 kg)

ƒ Length: Up to 50' (15 m)

ƒ Travel: 35 ft (10.7 m) standard

ƒ Lift Lines: Two or three dual 3/16" (5 mm) lift line locations

ƒ Truss Size: 12" x 18" (305 x 457 mm)

ƒ Redundant Braking: Overspeed Brakes or Dual Motors

Performer Hoist
Self Climbing Hoist

Performance Spaces

Stage Rigging

Application Information

Varion® Hoist

This zero-fleet hoist has five lift lines, is adjustable on the back bone and features steel guides so there's no danger of cables crossing the groove. The hoist can be underhung or sit on top of grid. The Varion Versatility Hoist can be mounted on any existing infrastructure, including a building's bar joist. Use it for electrics, curtains, drops, or front-of-house stage lighting or speakers. Lightweight – barely 300 lb (136 kg) – and compact, the hoist's motor can fit at almost any point on Varion's robust backbone.

Features:

ƒ Speed: 15 fpm (0.08 m/s)

ƒ Capacity: 1500 lb (680 kg)

ƒ Travel: Up to 50 ft (15.2 m)

ƒ Batten Length: Up to 45' (13.7 m)

ƒ Lift lines: 5, Adjustable on back bone

ƒ Wire rope diameter: 3/16" (4.8 mm)

ƒ Safety features: Hoist overload detection and over speed brake

Scoreboard Hoist

The customizable Scoreboard Hoist can accommodate your unique requirements ranging from smaller venues such as high school gymnasiums to the world's largest event arenas. The Scoreboard Hoist works with the entire range of J.R. Clancy controls, including both wired and wireless options.

Features:

ƒ Center-hung, high-capacity scoreboard hoist

ƒ Numerous configuration possibilities including:

- Zero fleet

Versatile mounting for projects with limited space

Single drum hoists

Self-climbing hoists

Multi-drum hoists with multi-part reeved cables

Custom Hoists

Custom hoists are available in almost any speed and capacity to meet your specific requirements. Tell us about your requirements and we'll work with you to develop the hoist you need.

Varion Hoist
Scoreboard Hoist

PowerLift® Automated Rigging System

PowerLift is an economical, zero-fleet, high-performance, automated hoist available in fixed or variable speeds. Its versatile mounting system enables PowerLift to be installed in virtually any space. It's ideal for many stage hoisting applications.

• Load sensing standard with supporting control system

• Overload protection standard

• Position tracking standard

• Redundant limit switches standard (up, down, up overtravel, down overtravel)

• Dual brakes

• Three-year warranty against defects in materials or workmanship is provided on all J.R. Clancy equipment, additional warranty information is available at jrclancy.com

Lift Lines and Travel

• Up to 62’ (18.9 m) of travel with seven of fewer lift lines

• Up to 49’ (14.9 m) of travel with eight lift lines

• One lift line can exit the hoist at the tail end of the hoist

• Optional continuous beam

Rear Clamp Range

1' 0" to 2' 6" (305 to 762 mm)

Front Clamp Range

3/16" to 1" (8 to 25 mm) Flange Thickness Grip Range 4" to 11" (102 to 279 mm) I-Beam Width

2'

Performance Spaces

Stage Rigging

Application Information

7 Line: 3'-8" (1118 mm)

7

Loading Information

The combined load on the lift lines associated with a single PowerLift hoist will not exceed the hoist capacity. Loads may be unevenly distributed on the batten with a maximum load of 500 lb (227 kg) on any individual lift line.

Calculating Live Load Capacity:

Please contact your sales rep for additional configurations minus minus equals Pantograph weight: Total hoist capacity: Batten weight: Live Load Capacity:

(3 lb/ft for each schedule 40 pipe batten and approximately 7 lb/ft for each connector strip)

(Approx 250 lb for 25' of travel and 350 lb for 50' of travel )

Notes:

• Systems with 5 lift lines may need to be de-rated to 1750 lb (794 kg) in order to prevent overloading of a single lift line

• Systems with 4 lift lines may need to be de-rated to 1350 lb (612 kg) in order to prevent overloading of a single lift line

• Systems with 3 lift lines may need to be de-rated to 800 lb (363 kg) in order to prevent overloading of a single lift line

For minimum stacking height

We recommend that the closest contact point be at least 6" (154 mm) away from the nearest obstruction. Batten connection type, hoist location, loft block type, cable management and building architecture can impact stacking height.

Performance Spaces

POWERLIFT VANTIS ONE LINE RISER

Stage Rigging

Application Information

Technical Sheet

Summit Theatron™ Automated Rigging System

Summit Theatron is an economical, high-performance, automated hoist available in variable speeds. Its versatile mounting system enables Summit Theatron to be installed in virtually any space. It's ideal for many stage hoisting applications.

• Load sensing standard

• Overload protection standard

• Position tracking standard using an absolute encoder

• Redundant limit switches standard (up, down, up overtravel, down overtravel)

• Dual brakes

• Three-year warranty against defects in materials or workmanship is provided on all J.R. Clancy equipment, additional warranty information is available at jrclancy.com

Lift Lines and Travel

• Up to 55' (16.8 m) of travel with eight or fewer lift lines

• Optional continuous beam

4" (102 mm)

3' 8-3/16" (1122 mm)

4' 0-3/16" (1219 mm)

Models

Beam Centers 4" to 15" (102 to 381 mm) I-Beam Width 3/16" to 1" (6 to 25 mm) Flange Thickness Grip Range

5' 9-1/2" (1765 mm) Min Distance to First Loft Block 4' 1-11/16" (1262 mm) Overall Length

Mounting Orientation Options

8" (203 mm) Set centers with hoists offset
16" (406 mm) Set centers with all hoists adjacent to each other
Batten Trim Plate

Performance Spaces

Stage Rigging

Application Information

Notes:

Loading Information

The combined load on the lift lines associated with a single Summit Theatron hoist will not exceed the hoist capacity. Loads may be unevenly distributed on the batten with a maximum load of 500 lb (227 kg) on any individual lift line.

Calculating Live Load Capacity:

Total hoist capacity: Batten weight:

500 lb (227 kg)

500 lb (227 kg)

minus minus equals Pantograph weight:

(3 lb/ft for each schedule 40 pipe batten and approximately 7 lb/ft for each connector strip)

(Approx 250 lb for 25' of travel and 350 lb for 50' of travel )

Live Load Capacity:

Please contact your sales rep for additional configurations

• Systems with 5 lift lines may need to be de-rated to 1750 lb (794 kg) in order to prevent overloading of a single lift line

• Systems with 4 lift lines may need to be de-rated to 1350 lb (612 kg) in order to prevent overloading of a single lift line For minimum stacking height

We recommend that the closest contact point be at least 6" (154 mm) away from the nearest obstruction. Batten connection type, hoist location, loft block type, cable management and building architecture can impact stacking height.

Summit Theatron Riser — Typical

Performance Spaces

Stage Rigging

Application Information

Technical Sheet

Titan® Hoist

Titan is a high-performance hoist for applications requiring large capacity, speed and/or long travel. Titan is a customizable pre-engineered hoist – it is engineered and manufactured to your requirements yet provides the economic benefits of an "off-the-shelf" system.

Features

• Integrated gear motor and brake provide proven reliability and feature an iron case for vibration and noise control

• Reliable head block with nylon sheaves provide long, trouble-free life and meet or exceed wire rope manufacturer recommendations

• Zero-fleet design allows for a compact, efficient hoist. Preloaded chase rollers ensure cables stay in grooves

• Closed loop vector drives provide pinpoint accuracy

• A complete suite of load and safety features is available including slack line, over/under load, and cross-groove detection; Load monitoring, acoustic dampening, and safety covers can also be added

• Hoists can be mounted vertically or horizontally; For theatres without grids, vertical mounting can save space and offers easier access for maintenance

• Steel backbone adapts to your mounting and load requirements

• 16" (406 mm) set centers; all hoists on one side of stage

• 8" (203 mm) set centers; alternate hoists on both sides of stage

• ANSI E1.6.1 compliant

• Quick-connect clamps – upright, underhung, vertical

• Encoder for precise target

• Quiet operation

• Three-year warranty against defects in materials or workmanship is provided on all J.R. Clancy equipment, additional warranty information is available at jrclancy.com

Capability

• Speed: up to 650 fpm (3.3 m/s)

• Travel: up to 8 lines @ 90 ' (27.4 m); up to 10 lines @ 67 ' (20.4 m)

• Gross capacity: up to 3,300 lb (1,496 kg)

• Max batten length: 96 ' (29.3 m)

Safety

• Dual braking system with a primary brake on the motor and an independent SureBrake® II operating directly on the drum shaft; SureBrake II is spring applied and electrically released for maximum safety

• Emergency-stop system meets NFPA 79 (Electrical Standard for Industrial Machinery) with ramped stops for high speed equipment to reduce mechanical shock loads

• Two levels of limit switches with normal travel and over travel switches using separate, redundant circuits for added safety

• Loft block idlers contain individual grooves to keep lines contained, prevent binding, friction, and eliminate rubbing of adjacent lines

• Touch safe interior of all electrical enclosures guards to prevent contact with live components, per IEC 204-1 Protection

Control Options

• Titan works with the entire range of J.R. Clancy motion control systems.

Loft Block Options

• 1/4" Universal Series upright or underhung

• 1/4" 19 Series underhung

Batten Termination Options

• Trim Chain

• Pipe Clamp and Turnbuckle

• Batten Trim Plate

• Batten Trim Clamp

Batten Options

• 1.5" (48 mm) Schedule 40 batten

• 1.5" (48 mm) Schedule 80 batten

• 1.5" (48 mm) Schedule 40 truss batten

Performance Spaces

Stage Rigging

Application Information

Mounting Configurations

16" (406 mm) Set Centers All hoists on one side of stage

6'-0" (1829 mm) Min C/C

(3658 mm) Max C/C

8" (203 mm) Set Centers 8" Alternate hoists on both sides of stage

Vertical and Horizontal Installations Shown

1'-0" (305 mm) Min Between Titan Backbone and Bottom of Headblock

8 Line: 90'-0" (27.4 m) Max Batten Travel

Line: 67'-0" (20.4 m) Max Batten Travel

8 Line: 76'-0" (23.2 m) Max Batten Length

Line: 96'-0" (29.3 m) Max Batten Length

Loading Information

Loft Block: (Typical of 7) The combined load on the loft blocks associated with a single Titan Hoist will not exceed the hoist capacity. Loads may be unevenly distributed on the batten with a maximum load of 750 lb (340 kg) on any individual loft block. Hoists are not recommended to be used for lifting people.

Performance Spaces

Titan Riser — Typical Power and Wiring Information: Titan is available for virtually any 3-phase voltage worldwide. Control wiring is dependent on your control system.

TITAN VANTIS ONE LINE RISER

Performance Spaces

Ordering Information

018-T0224 20 fpm (0.1 m/s)2,400 lb (1,089 kg)

018-T0233 20 fpm (0.1 m/s)3,300 lb (1,497 kg)

018-T2022 0-200 fpm (1.0 m/s)2,200 lb (998 kg)

018-T2030 0-200 fpm (1.0 m/s)3,000 lb (1,361 kg)

018-T2633 0-260 fpm (1.3 m/s)3,300 lb (1,497 kg)

018-T3413 0-340 fpm (1.7 m/s)1,300 lb (590 kg)

018-T3417 0-340 fpm (1.7 m/s)1,750 lb (794 kg)

018-T4022 0-400 fpm (2.0 m/s)2,200 lb (998 kg)

018-T6514 0-650 fpm (3.3 m/s)1,400 lb (635 kg)

018-T2022 - 67 A53 A

018-T2030 - 90 A70 A

018-T2633 - 115 A90 A

018-T3413 - 62 A50 A

018-T3417 - 80 A63 A

018-T4022 - 125 A100 A

018-T6514 - 130 A105 A

* Other voltage configurations available. Contact us for additional details.

Performance Spaces

Stage Rigging

Application Information

Technical Sheet

PowerAssist® Hoist

A compact fixed speed hoist that automates a new or existing counterweight rigging set. The hoist and counterweight work together, allowing the set to carry any load from none to 2,000 lb (907 kg) without the need to adjust counterweights.

Capability

• Speed: 25 fpm (0.13 m/s)

• Travel: varies based on facility size

• Gross capacity: up to 2,000 lb (907 kg)

Features

• Easily convert your counterweight set to a motorized system

• Perfect for retrofit or new construction

• Spend less time loading and unloading counterweights

• A safer way to raise and lower sets

• Up to 2,000 lb (907 kg) set capacity

• Protect equipment with a safe, consistent 25 fpm (0.13 m/s) speed

• Three-year warranty against defects in materials or workmanship is provided on all J.R. Clancy equipment, additional warranty information is available at jrclancy.com

Control Options

• Push Button Controls - Hold to run up and down push buttons are provided so that sets can by run by "eye". A key operated on / off switch and an emergency stop button are provided for security.

• J.R. Clancy Motion Control Systems - J.R. Clancy offers a range of control systems to meet your production requirements and budgets. Consoles allow control of multiple hoists, including the ability to create cues that control several sets simultaneously. Contact us for more information.

Safety

• No handling of counterweights or climbing to elevated loading galleries to keep sets in balance. The PowerAssist Hoist handles the out-of-balance load for you.

• Two levels of limit switches are set for your specific site conditions. The normal travel and over travel switches use separate, redundant circuits for added security.

• E-Stop system meets NFPA 79 "electrical standard for industrial machinery".

• Hold to run controls in conformance with NFPA 79 "electrical standard for industrial machinery," ensure the operator is present when movement is taking place.

• Maintenance Light – regular service is necessary for safety and equipment life for all moving machinery. J.R. Clancy control systems have a maintenance light, indicating when regular system service is required.

• 208V or 480V units are available without the need for expensive, bulky transformers. 380V 50Hz units are also available.

• Motors rated to lift the load have a 1.0 service factor, so they can lift the load every time – not just some of the time.

• Touch safe means the interior of all electrical enclosures are guarded to prevent touching live components, per IEC standard.

Performance Spaces

Stage Rigging

Application Information

Dimensions

Weight Stack

Bottom Arbor Chain Connection

Drive Cable

5-3/4" (146 mm) for Nicopress (recommended)

10" (254 mm) for Cable Clips

Note:

Dim. 'A' = [(Batten Trim HeightBatten Low Trim) + 40" (1016 mm)]

The PowerAssist Hoist is provided with the following components:

• Hoist assembly (floor mounted)

• Control station with integral starter (may be mounted on the locking rail, or other location – please advise when ordering)

• Drive chain assembly (consisting of the drive chain, 3/4" (19 mm) drive line, turnbuckle and associated fittings)

• Warning sign to be installed on the existing counterweight arbor

The double purchase PowerAssist Hoist is provided with the same components, plus:

• Double purchase arbor, with special chain/wire rope sheaves

• Replacement head block, with special chain/wire rope sheave

Turnbuckle (Fully Open at Installation)
Push Button Control Box
Turnbuckle Chain Connection
Top of Hoist

Performance Spaces

Loading Diagram

Loading notes:

P1 (head block line load) = 0 to 2000 lb (0-907 kg)

P2 (loft block line load) = 0 to 750 lb (0-340 kg)

1. All block loads act at the block shaft; The horizontal and vertical offset between the block shaft and supporting beam centroid may result in torsional loads on beam

2. Set capacity = see Table 1

3. Live load capacity = set capacity - batten weight

4. Total line load on all loft blocks not to exceed set capacity

5. Line load on each loft block not to exceed loft block capacity

6. Hoist load = 1000 lb (454 kg)

Table 1

(0-27584 mm) 208V, 3PH 25 fpm (.13 m/s) 1000 lb (454 kg) 0-2000 lb (907 kg) 480V, 3PH 380V, 3PH (50Hz) 21 fpm (.11 m/s)

* Call for other power options DP system available – see dwg #pa-1

PowerAssist with Push Button Control One Line Riser — Typical

POWERASSIST VANTIS ONE LINE RISER

Performance Spaces

Stage Rigging

Application Information

Technical Sheet

PowerLine™ Hoist

PowerLine is a line shaft hoist, re-imagined to reduce size, weight, and cost. PowerLine hoists offer a wide range of speeds and capacities, making them versatile performers and excellent choices for retrofits in older buildings. Among it’s many uses are electric sets, scenery and curtains, and front-of-house lighting sets.

Features

• Customizable line shaft design that is strong, efficient and versatile

• Fixed or variable speed options to meet your performance needs

• Compact unit doesn’t require wall or wing space and can be mounted upright or underhung on 10" (254 mm) spacing

• Simple construction places only vertical loads on the supporting structure without lateral loads

• Easy to install backbone can be continuous/discontinuous to meet your site conditions

• Universal joints in the drive shaft promote long life and reliability by allowing various building steel configurations

• Compact drum fits over standard 10" (254 mm) grid well

• Helical/worm or helical/bevel gear boxes can be oriented four ways for simple installation in any space

• Flexible installation — standard hoists can be mounted from beams with flanges from 4 - 11" (102 - 279 mm) wide and from 1/4 to 1" (6.3 to 25 mm) thick. Custom mounting hardware can be provided if needed

• 6 or 8" (152 or 203 mm) welded steel drums offer a wide range of speeds and capacity options to meet your performance requirements

• Versatile mounting clamps attach to steel that is parallel or perpendicular to the hoist for fast, easy installation without welding

• High-efficiency green motors meet IEC 60034-30 efficiency classes standard

• Three-year warranty against defects in materials or workmanship is provided on all J.R. Clancy equipment, additional warranty information is available at jrclancy.com

Capability

• Speed: up to 240 fpm (1.2 m/s)

• Travel: up to 60 ' (18.3 m)

• Capacity: up to 2,500 lb (1184 kg)

• Max batten length: as required

• Custom speeds and capacities available

Dimensions

PowerLines are built to meet your requirements so dimensions will vary. Contact us for more details.

Safety

• Designed and manufactured by J.R. Clancy, a company with over 130 years of rigging expertise

• “Fail-safe" motor brakes are spring applied and electrically released

• Emergency-stop system meets NFPA 79 (Electrical Standard for Industrial Machinery) with ramped stops for high speed equipment to reduce mechanical shock loads

• Two levels of limit switches with normal travel and over travel switches using separate, redundant circuits for added safety

• Hold-to-run controls require an operator to be present when movement is taking place in conformance with NFPA 79

• Touch safe interior of all electrical enclosures guards to prevent contact with live components, per IEC 204-1 Protection

Performance Spaces

Stage Rigging

Application Information

Options

• Cross groove and slack line detectors

• Load cells

• Position encoder

• Additional limit switches

• Overspeed or electric secondary brake

Control Options

• PowerLine works with the entire range of J.R. Clancy automation consoles or push button controls. It can also interface with any modern control system.

Batten Termination Options

• Trim chain

• Pipe clamp and turnbuckle

• Batten trim plate

• Batten trim clamp

Batten Options

• 1.5" (48 mm) schedule 40 batton

• 1.5" (48 mm) schedule 80 batton

• 1.5" (48 mm) schedule 40 truss batton

Mounting Configurations

• Motor on one end, brake on the opposite

• Motor in the middle, brake on each end

• Motor on each end

Cable and Drum Options Models

018-PL0210 20 fpm (0.1 m/s)1,000 lb (454 kg)

018-PL0213 20 fpm (0.1 m/s)1,250 lb (567 kg)

018-PL0216 20 fpm (0.1 m/s)1,600 lb (726 kg)

018-PL0222 20 fpm (0.1 m/s)2,150 lb (975 kg)

018-PL0225 20 fpm (0.1 m/s)2,500 lb (1184 kg)

018-PL1113 0–110 fpm (0–0.56 m/s)1,300 lb (590 kg)

018-PL1420 0–140 fpm (0–0.71 m/s)1,950 lb (885 kg)

018-PL2423 0–240 fpm (0–1.2 m/s)2,300 lb (1043 kg)

Custom speeds, capacities and options available.

Option 11/4" (6.3vmm)7-1/2" (190 mm)750 lb (341 kg)

Option 2 3/16" (4.8vmm) 5-1/2" (140 mm)500 lb (227 kg)

Performance Spaces

Stage Rigging

Application Information

Loading Diagram

Varies Based on Motor and Cable Management Must Be 6" (152 mm) Below Lowest Obstruction

As Required (Recommend 10' (3048 mm) Lift Line Spacing and 3' (914 mm) Overhang on Each End)

Rigging Loads

Loading notes:

P (drum line load) = 0 to 500 lb (225 kg)

T (hoist torque) = see table 1 (Stalling torque) = see table 1

W (hoist weight) = motor assembly (see table 1) + backbone (12.5 lb/ft [1.73 kg/m]) + drive shaft (see table 1) + drum assembly (75 lb [34 kg] each) + brake (100 lb [45 kg] ea)

1. Set capacity = see table 1

2. Total line load on all drums not to exceed the set capacity

3. Line load on each drum not to exceed drum capacity (p)

018-PL0210 20 [0.1]1000 [454]113 [51] 16 [24]1408 [159]7348 [830]

018-PL0213 20 [0.1]1250 [567]151 [69] 16 [24]1760 [199]17440 [1970]

018-PL0216 20 [0.1]1600 [726]162 [74]

018-PL0222

[0.1]2150 [975]197 [89]

018-PL0225 20 [0.1]2500 [1184]187 [85]

018-PL1113 0-110 [0-0.56]1300 [590]188 [85]

018-PL1420 0-140 [0-0.71]1950 [885]312 [142]

018-PL2423 0-240 [0-1.2]2300 [1043]538 [244]

[42]2252 [254]26080 [2947]

[42]3027 [342]27160 [3069]

[45]3379 [382]30640 [3462]

[42]1830 [207]17996 [2033]

[42]2745 [310]22533 [2546]

[42]3238 [366]29374 [3319]

The values in this table are for the configuration shown. For other configurations the values may be different. Please contact a J.R. Clancy representative for more information on your configuration.

*Note: Stalling Torque values are only valid for 208V and 480V. Call for 380V data.

Performance Spaces

PowerLine Riser — Typical

POWERLINE VANTIS ONE LINE RISER

Performance Spaces

Stage Rigging

Application Information

Technical Sheet

Performer® Hoist

The Performer hoist is built for portability, or to be moved at the discretion of the director. Its servo motor drive delivers high dynamic capabilities in a small package. Our limit switches can be set without the use of tools, making your setup smooth and efficient. The durable construction and finish can handle the demands of life on the road. Designed for use in accordance with ANSI E1.43 2016 Performer Flying Systems.

• 600 lb (272 kg)* dynamic working load

• Speed to 480 ft/min (0–2.4 m/s)

• 100' (30.5 m) drum capacity

• 1/4" (6 mm) rope diameter

• Three-year warranty against defects in materials or workmanship is provided on all J.R. Clancy equipment, additional warranty information is available at jrclancy.com

*Capacity shown is characteristic load as defined in ANSI E1.43 - 2016 Performer Flying Systems

Applications

Venues running shows with aerial performers.

Features

• Moving drum for constant fleet angle

• Capable of dual rope terminations for closed loop operations

• Digital load measurement

• End of travel switches adjust without tools

• Integral servo drive cabinet

• Cable pinch roller

• Rope can reeve from top or bottom of hoist

Safety

• Dynamic load measurement and fault response

• Constant comparison between redundant encoders

• Crossed grove detectors

• Redundant brakes

• Redundant encoders

Mounting

It can be mounted upright or underhung.

Power and Wiring Information

Available for virtually any 3-phase voltage and frequency.

AC servo drive cabinet integral on hoist frame and factory pre-wired.

Performance Spaces

Stage Rigging

Application Information

Order Information:

*Capacity shown is characteristic load as defined in ANSI E1.43 - 2016 Performer Flying Systems.

Performance Spaces

Stage Rigging

Application Information

Technical Sheet

Self-Climbing Hoist

A self-contained hoist system that allows quick and easy installation without having full access to the ceiling/roof steel. Features

• Length: up to 50' (15 m)

• Total capacity: up to 3000 lb (1360 kg)

• Live load capacity – up to 1500 lb (680 kg)

- Maximum distributed load on truss: 30 lb/ft (98 kg/m)

- Maximum point load at midpoint between lift lines: 200 lb (91 kg)

- Maximum load on a single lift line: 500 lb (227 kg), 1000 lb (454 kg) per pair of lift lines

- Two drum assemblies (four lines) 36' max truss length (11 m)

- Three or four drum assemblies (6 or 8 lines): 50' max truss length (15 m)

- Maximum span between lift lines: 20' (6 m)

• Speed – 20 fpm (0.1 m/s)

• Travel – 35' (10.7 m) standard

• Truss size – 12" x 18" (305 x 457 mm)

• Redundant braking: overspeed brakes or dual motors

• Electrical distribution:

- up to twenty circuits with one pantograph

- up to forty-five circuits with two pantographs

- DMX or CAT5

• Three-year warranty against defects in materials or workmanship is provided on all J.R. Clancy equipment, additional warranty information is available at jrclancy.com

Self-Climbing Hoist

Performance Spaces

Stage Rigging

Application Information

Technical Sheet

Varion® Hoist

You told us what you needed, and we listened: with batten lengths up to 45' (13.7 m) and as much as 50' (15.2 m) of travel, the Varion hoist delivers a gross lifting capacity of 1,500 lb (680 kg). Five lift lines feature steel guides, so there's no danger of cables crossing the groove. The hoist can be supported from the top of the beam or underhung – whatever works best for your needs in your theatre. Equally important, this affordable hoist gives you the flexibility you need at a price point your budget can handle.

Applications

• Front of house and stage

Features

• Travel: up to 50' (15.2 m)

• Batten length: up to 45' (13.7 m)

• Speed: 15 fpm

• Live load: 1,350 lb (612 kg) without plug-in strip; 1,000 lb (454 kg) with plug-in strip

• Lift lines: five; adjustable on back bone

• Wire rope diameter: 3/16" (5 mm)

• Three-year warranty against defects in materials or workmanship is provided on all J.R. Clancy equipment, additional warranty information is available at jrclancy.com

Options include

• Encoder

• Cable management: flat fold

• Light circuits: up to 36 (configuration dependent)

• Cable management system

• Data available for DMX or Ethernet protocol

Safety

• Hoist overload detection

• Overspeed brake

• Robust back bone to eliminate horizontal forces on the building

Control Options

• The Varion hoist works with the entire range of J.R. Clancy motion control systems.

Mounting

It can be underhung or sit on top of grid.

Motor Information

VoltsPhaseHzAmperage

208V3-phase 60 Hz4.9 FLA*

460V3-phase 60 Hz2.2 FLA*

380-415V3-phase 50/60 Hz2.53 FLA*

*FLA = Full Load Amperage

Dimensions

• 46.25" w x 20.5" d x 21" h (1175 mm x 521 mm x 533 mm)

Weight

• Less than 500 lb (226.8 kg)

Performance Spaces

Stage Rigging

Application Information

Order Information

Number

Description

018-1718 Varion Hoist 1,500 lb, 15 fpm

Varion Hoist Motor Assembly Configurations

018-1718-2-FE Varion Hoist 208V, beam mounted SceneControl starter with encoder

018-1718-2-J Varion Hoist 208V, beam mounted junction box

018-1718-2-JE Varion Hoist 208V, beam mounted junction box with encoder

018-1718-2-P Varion Hoist 208V, beam mounted pushbutton starter

018-1718-4-FE Varion Hoist 480V, beam mounted SceneControl starter with encoder

018-1718-4-J Varion Hoist 480V, beam mounted junction box

018-1718-4-JE Varion Hoist 480V, beam mounted junction box with encoder

018-1718-4-P Varion Hoist 480V, beam mounted pushbutton starter Varion Hoist Accessories

088-1766 Back Bone (Beam) 20' Section 118-1729 Idler Assembly 118-1732 Single Line Loft Block 118-1762 Beam Clamp 118-1790 Splice 118-1795 Parallel Beam Adapter

Hoist Assembly
Single Line Loft Block
Idler Assembly
Back Bone (Beam)
Optional Cover (View 1)
Optional Cover (View 2)
Splice
Beam Clamp
Parallel Beam Adapter

Performance Spaces

Varion Riser — Typical

VARION VANTIS ONE LINE RISER

Performance Spaces

Stage Rigging

Application Information

Technical Sheet

Custom Hoists

Custom hoists are available in almost any speed and capacity to meet your specific requirements. Tell us about your requirements and we'll work with you to develop the hoist you need.

In addition to the hoists shown, here are a few of the types of custom hoists we've built for clients:

• A gantry crane in Bass Hall (Houston, TX) to move a 100,000 lb (45,359.2 kg) folding acoustic ceiling for rapid changeovers from theatrical use to concert hall mode

• Hoists to move the 50 ton (45.4 metric ton) proscenium "eyebrow" in the Oklahoma Civic Center Music Hall

• In Miami's Carnival Center concert hall custom hoists move the massive (130,000 lb [58,967 kg]), three-part acoustic canopy to alter sound reflection within the hall

• Banner hoists to raise and lower acoustic banners in the Omaha Performing Arts Center, Washington D.C.'s Shakespeare Theatre, the San Francisco Conservatory, and many others

• The Seattle Opera uses a 600 fpm (3 m/s) curtain hoist to ensure the main curtain can clear the proscenium in 6 seconds

• The Strathmore Concert Hall has 43 custom hoists to move acoustic panels which may be raised, lowered, and tilted side to side and front to back to create a completely configurable acoustic shell

• A custom chandelier in the Winspear Opera House consisting of 318 internally illuminated rods forming a 40' high (12 m) and 40' (12 m) diameter lighting fixture that retracts into the ceiling

Ordering Information

We're pleased to provide you with quotes for our hoists. Please provide the following information:

• Capacity

• Speed (fixed or variable speed, feet per minute [meters per second])

• Travel

• Number and diameter of lift lines

• Any special requirements

• Hoists require 3 phase power at 208, 230, or 460 VAC. Please confirm voltage at time of ordering; (380 and 575 VAC and 50 Hz hoists are available for international projects)

Three-year warranty against defects in materials or workmanship is provided on all J.R. Clancy equipment, additional warranty information is available at jrclancy.com

Configurations

• Single-Line Drum Hoists

• Multi-Line Drum Hoists

• Line Shaft Hoists

• Pile-up/Yo-yo Hoists

• Custom Stage Machinery

Options

• Overspeed and load brakes

• Keeper rollers

• Dual drums

• Load cells

• Slack line detector

• Position encoder

• Cross groove detector

• Additional limit switches

Dual Drum Hoist with 3 fpm (.015 m/s), 13,500 lb (6,123 kg) lifting capacity
Custom hoist with 34,000 lb (15,422 kg) lifting capacity

Performance Spaces

Stage Rigging

Application Information

Motion Control Systems

Our cutting-edge line of J.R. Clancy Vantis™ Motion Control Systems is engineered to provide the highest level of automation capabilities. Developed with our own proprietary software, each model gives you orchestrated control, timing and safety to ensure flawless performances.

Vantis™ Pendant Controller

The Vantis Pendant Controller lets you control position and movement of scenery sets, drapery and other overhead hoists while standing right on stage.

Features:

ƒ Up to 8 machines

ƒ 4 user recordable targets

ƒ Variable speed control of a single machine

ƒ Permissions are tailored to each user via pin login

ƒ Load sensing capability

ƒ 3.5" touchscreen

ƒ Can be commissioned by installer

ƒ Ships with storage case and wall mounted cradle

Vantis™ Wall Controller

Position the Vantis Wall Controller just off stage on a wall or in a rack mount cabinet for convenience and security. It's perfect for venues with up to 24 motorized machines. Quickly access stored positions, easily program new presets and tailor user permissions.

Features:

ƒ Up to 24 machines

ƒ 8 targets per machine

ƒ Variable speed control

ƒ 10" touchscreen

ƒ Unlimited user programmable presets

ƒ Groups for linking position of multiple machines

ƒ Optional Vantis Remote Operator Pendant to ensure line of sight to moving equipment

ƒ User specific log-ins with individualized permissions

ƒ Load learning

Vantis Pendant Controller
Vantis Wall Controller

Performance Spaces

Stage Rigging

Application Information

Vantis™ Mobile Console

The Vantis Mobile Console is an ergonomic handheld controller that gives the operator the added feature of show control cueing.

Features:

ƒ Up to 35 machines

ƒ Variable speed control

ƒ Up to 8 targets per machine

ƒ Unlimited user programmable presets

ƒ Equipped with show control, allowing users to program position and speed for performance specific cues

ƒ Ergonomic handle for user comfort

ƒ 12" touchscreen

ƒ Joystick, GO, STOP, hold-to run and emergency stop operators for complete control

ƒ User specific log-ins with individualized permissions

ƒ Load learning

ƒ Includes storage case

ƒ Optional table stand and wall-mounted cradle available separately

Vantis™ Desk Console

The Vantis Desk Console is the largest and most powerful in the new J.R. Clancy line of consoles featuring a large 22" touchscreen and keyboard for easy programming. Control up to 54 machines, program targets, presets and cues to handle a wide variety of performances.

Features:

ƒ Up to 54 machines per page

ƒ Variable speed control

ƒ Up to 8 targets per machine

ƒ Unlimited user programmable presets

ƒ Equipped with show control, allowing users to program position and speed for performance specific cues

ƒ Multi-console capability

ƒ Joystick, GO, STOP hold-to-run and emergency stop, operators for enhanced control

ƒ User specific log-ins with individualized permissions

ƒ Load learning

ƒ Comes standard with wheeled podium and table top stand for flexibility and comfort of use

Push Button Controls

The J.R. Clancy Push Button Controller is a cost-effective controller for fixed and variable speed hoists.

Features:

ƒ Hold-to-run Up and Down pushbuttons for each hoist

ƒ A key operated On / Off switch with green "Power On" LED indicator

ƒ A red, mushroom head emergency stop push button

ƒ A "Service" light indicates when regular system service is required

ƒ NEMA 1 wall mounted enclosures

Vantis Wall Controller
Vantis Mobile Console
Push Button Controls

Performance Spaces

Stage Rigging

Application Information

Technical Sheet

Vantis™ Pendant Controller

The Vantis Pendant Controller offers simple control of up to eight machines. Each machine can be programmed with up to six targets including upper, lower and four intermediate targets. Selection of multiple hoists or other machine types is easy as well as the ability to move them to a target together. Variable speed control lets you use this controller on drapery or scenery sets during production.

Applications

Venues with up to eight motorized machines that need the simplicity and mobility of a Pendant Controller and the ability to easily access and record targets.

Key Features

• Up to eight machines

• Variable speed control

- variable when operating a single machine

- default speed when operating multiple machines

• Four user recordable targets

• Operation of various set types including hoists, acoustic banners and travelers

• Load learning

• Three-year warranty against defects in materials or workmanship is provided on all J.R. Clancy equipment, additional warranty information is available at jrclancy.com

Specifications

• Illuminated GO button

• 3.5" (89 mm) color touchscreen

• Control wheel for variable speed control

Safety

• Emergency Stop Operator

• Hold-to-Run operation

• Multi-Level security

• Status/Alarm indication

Dimensions

14"h x 4"w x 3-3/8"d (356 x 102 x 86 mm)

Performance Spaces

Stage Rigging

Application Information

Technical Sheet

Vantis™ Wall Controller

The Vantis wall controller provides one of the most powerful, intuitive and easy to use control systems for stage equipment including hoists, travelers and acoustical banners. With powerful presets for up to twenty four motorized machines, targets that are easily recordable and tailored permissions for security, this controller is a great fit for a multitude of different venues.

Applications

Venues with up to twenty four motorized machines that need the need to quickly access stored positions, easily program new presets and tailor permissions based on user.

• K-8 school

• High schools

• College/university

• Performing arts centers

• Worship

Key Features

• Up to twenty four machines

• Variable speed control

• Up to eight user programmable targets per machine

• User programmable presets

• Wall cabinet and rack mount options

• Operation of various set types including hoists, acoustic banners and travelers

• Load learning capabilities

• Groups for linking position of multiple machines

• Adjustable screen brightness to prevent light leaks on stage

• Current position shown at all times and target/end position shown whenever machine is selected on machines with position read-out

• Current load and max load shown on machines with load sensing

• Three-year warranty against defects in materials or workmanship is provided on all J.R. Clancy equipment, additional warranty information is available at jrclancy.com

Dimensions

Wall cabinet mount – 24"w x 24"d x 9-1/2"h (610 x 610 x 241 mm)

Rack mount – 19"w x 10-1/2"d x 9-1/2"h (483 x 267 x 241 mm)

Hardware

• 10" (254 mm) touchscreen

• GO, E-Stop, speed wheel, (2) USB, key switch

• Optional remote operator pendant

Safety

• Emergency Stop Operator

• Hold-to-Run operation

• Multi-Level security

• Status/Alarm indication

Performance Spaces

Stage Rigging

Application Information

Operations

• Manual Move/Jog Mode

- Move a single machine

- Move multiple machines in the same or opposing directions

- Load targets for one or more machine

- Record targets for one or more machine

• Presets

₀ Use machines' targets when recording

₀ Ability to record a snapshot using current positions

- Rename presets

- Selecting a preset clearly shows which machines will be moved and in which direction

• Machine Information

- View machine status including name, position, load, target position and speed

- Load sensing

₀ Turn on/off

₀ Guided load learning process to reduce the possibility of an unintended load fault

- Travel adjustments to easily modify soft limits based when hanging objects on the set

• Settings

- Adjust screen brightness

- User set-up

- Revert/Recovery – quickly recover previous work

- View/export log file – traces every action on the console for diagnosing problems

- Locked groups

₀ Assign multiple machines to a group so they will always travel together

Performance Spaces

Stage Rigging

Application Information

Technical Sheet

Vantis™ Mobile Console

The Vantis mobile console is an ergonomic hand held console that allows the operator to move around the stage for better view and operation of moving equipment. With the addition of show control, the operator can write cues with motion profiles that include position, speed, and timing.

Applications

For theaters and performing arts centers that want the power of superior motion control in a compact, mobile and ergonomic package.

• High schools

• College/university

• Performing arts centers

• Arenas

• Convention centers

• Worship

Key Features

• Up to thirty five machines

• Ergonomic design

• Unique user IDs and passwords give the ability to restrict functions and change user interface

• Variable speed control

• Up to eight targets per machine

• Unlimited presets

• Operation of various set types including hoists, acoustic banners and travelers

• Load learning

• Groups for linking position of multiple machines

• Adjustable screen brightness to prevent light leaks on stage

• Current position shown at all times and target/end position shown whenever machine is selected on machines with position read-out

• Equipped with show control, allowing users to program position and speed for performance specific cues

• Includes storage case, with optional table stand and wall-mounted cradle available separately

• Three-year warranty against defects in materials or workmanship is provided on all J.R. Clancy equipment, additional warranty information is available at jrclancy.com

Dimensions

15"w x 3-7/8"d x 9-1/2"h (381 x 98 x 241 mm)

Hardware

• 12" (305 mm) touchscreen

• Hard wired illuminated STOP/GO push buttons

• Three Position Hold to Run

• E-Stop

• Joystick for jogging or for speed adjust during motion

• External USB port for Show/File Back up

• Key switch on console port for system lock-out

Safety

• Emergency Stop Operator

• Hold-to-Run operation

• Multi-Level security

• Status/Alarm indication

Performance Spaces

Stage Rigging

Application Information

Operations

• Manual Move/Jog Mode

- Use the joystick to jog any number of machines, up to the maximum allowed

- Use the GO button to move any number of machines, up to the maximum allowed utilizing recorded or custom targets

₀ Increase/decrease velocity on variable speed machines using the joystick

₀ Move multiple machines in the same or opposing directions

• Presets

- Record presets with one or more machine

₀ Preset builder allows the user to utilize current machine position, pre-recorded machine targets or user specified positions

- Rename presets

- Selecting a preset clearly shows which machines will be moved and in which direction

• Machine Information

- View machine status including name, position, load, target position and speed

- Load sensing

₀ Specified users can disable load faulting

₀ Guided load learning process to reduce the possibility of an unintended load fault

- Travel adjust allows users to alter allowable in and out trim due to show obstructions, cabling tie-offs, and/or scenery/soft goods

• Groups

- Locked groups have machines travel together at all times

- Fault groups stop motion when one machine in the group faults

• Show Mode

- Create an unlimited number of cues per show

₀ Users can create, delete, duplicate, rename, renumber and reorganize cues as needed

₀ Users can disable cues for safety

- Cue linking

₀ Auto-load

₀ Auto-follow based on time or machine location

- Create a database of commonly used cue sequences and easily import them into your show to avoid having to reprogram (i.e. curtain call bounce)

• Settings

- Adjust screen brightness

- User set-up for tailored access and operation

- Disable a machine for safety

- Change weight and position read out from imperial to metric

- View/export a log file that traces every action on the console so J.R. Clancy can easily diagnose problems and step you through a solution

- Show Setting

₀ New Show

₀ Open Show

₀ Delete Show

₀ Save Show As

Performance Spaces

Stage Rigging

Application Information

Technical Sheet

Vantis™

Desk Console

The Vantis desk console is the largest, most powerful J.R. Clancy console with a 22" (559 mm) touch screen and keyboard for easy programming. Each desk comes standard with a wheeled podium and table top stand for flexibility and comfort of use.

The Vantis desk console is able to control up to 54 machines and program targets, presets and cues to handle a wide range of performances.

Applications

The Vantis desk console is designed specifically for larger venues to control more machines with the same intuitive interface.

• High schools

• College/university

• Performing arts centers

• Arenas

• Convention centers

Key Features

• Up to fifty four machines

• Unique user IDs and passwords give the ability to restrict functions and change user interface

• Variable speed control

• Up to eight targets per machine

• Unlimited presets

• Operation of various set types including hoists, acoustic banners and travelers

• Load learning

• Groups for linking position of multiple machines

• Adjustable screen brightness to prevent light leaks on stage

• Current position shown at all times and target/end position shown whenever machine is selected on machines with position read-out

• Equipped with show control, allowing users to program position and speed for performance specific cues

• Wheeled podium is 25-3/8"w x 28-1/4"d x 36-7/8"h (645 x 718 x 937 mm) and a table bracket is included to allow comfort while programming

• Three-year warranty against defects in materials or workmanship is provided on all J.R. Clancy equipment, additional warranty information is available at jrclancy.com

Dimensions

26"w x 17"d x 2-3/4"h (660 x 432 x 70 mm) without touch screen

Hardware

• 22" (559 mm) touchscreen

• Hard wired illuminated STOP/GO push buttons

• Three Position Hold to Run

• E-Stop

• Joystick for jogging or for speed adjust during motion

• External USB port for show/file back up or to add a mouse

• QWERTY keyboard and number pad

Safety

• Emergency Stop Operator

• Hold-to-Run operation

• Multi-Level security

• Status/Alarm indication

Continued on the following page.

Performance Spaces

Stage Rigging

Application Information

Operations

• Manual Move/Jog Mode

- Use the joystick to jog any number of machines, up to the maximum allowed

- Use the GO button to move any number of machines, up to the maximum allowed utilizing recorded or custom targets

₀ Increase/decrease velocity on variable speed machines using the joystick

₀ Move multiple machines in the same or opposing directions

• Presets

- Record presets with one or more machine

₀ Preset builder allows the user to utilize current machine position, pre-recorded machine targets or user specified positions

- Rename presets

- Selecting a preset clearly shows which machines will be moved and in which direction

• Machine Information

- View machine status including name, position, load, target position and speed

- Load sensing

₀ Specified users can disable load faulting

₀ Guided load learning process to reduce the possibility of an unintended load fault

- Travel adjust allows users to alter allowable in and out trim due to show obstructions, cabling tie-offs, and/or scenery/soft goods

• Groups

- Locked groups have machines travel together at all times

- Fault groups stop motion when one machine in the group faults

• Show Mode

- Create an unlimited number of cues per show

₀ Users can create, delete, duplicate, rename, renumber and reorganize cues as needed

₀ Users can disable cues for safety

- Cue linking

₀ Auto-load

₀ Auto-follow based on time or machine location

- Create a database of commonly used cue sequences and easily import them into your show to avoid having to reprogram (i.e. curtain call bounce)

• Settings

- Adjust screen brightness

- User set-up for tailored access and operation

- Disable a machine for safety

- Change weight and position read out from imperial to metric

- View/export a log file that traces every action on the console so J.R. Clancy can easily diagnose problems and step you through a solution

- Show Setting

₀ New Show

₀ Open Show

₀ Delete Show

₀ Save Show As

Performance Spaces

Stage Rigging

Application Information

Technical Sheet

Push Button Controls

Standard and custom control stations for fixed and variable speed hoists, with the following features:

• Hold-to-run Up and Down push buttons for each hoist

• A key-operated On/Off switch with green "Power On" LED indicator

• A red, mushroom-head emergency stop push button

• A "Service" light indicates when regular system service is required

• NEMA 1 wall-mounted enclosures

• Engraved front panel with warning notice

• Panel components including push buttons, key switches, E-stop switches, etc. are industrial-grade, heavy-duty components with 7/8" (22 mm) operators; indicators are 5/16" (8 mm) minimum diameter

Custom Models

For custom control stations provide the following information:

• Number and names of channels

• Number of variable speed controls

• Number and names of indicators

• Any special requirements

Application drawings and more information are available for download on our web site.

Three-year warranty against defects in materials or workmanship is provided on all J.R. Clancy equipment, additional warranty information is available at jrclancy.com.

Order Information

Number

Description

060-CS J.R. Clancy can create a control station to your specific needs. Please contact the factory for ordering information.

Performance Spaces

Stage Rigging

Application Information

Counterweight Rigging Systems

Manual rigging is currently used in thousands of theatres worldwide. It's a practical, cost-effective solution for new installations of all sizes. Manual rigging can also be combined with automated equipment to give theatres the benefits of each system.

At J.R. Clancy, we offer manual rigging equipment to meet the needs of every theatre. We engineer our systems for reliability, safety and longevity. Whether you're looking for an upgrade or a new installation, we'll help you and your consultant choose just the right system for your creative, technical, and budget requirements.

Rigorously Tested – J.R. Clancy equipment is engineered, manufactured and rigorously tested under the strict guidelines of our ISO 9001 Quality Management System.

Unequaled Experience – When you choose J.R. Clancy, you receive a rigging system based on over 130 years of experience, and backed by proven quality.

Cost-Effective – The counterweight-rigging system is a cost-effective solution for projects of all sizes.

FrontLoader® Front Loading Arbor

The patented FrontLoader Front Loading Arbor has eliminated rods and spreader plates of the conventional rod arbor and therefore also eliminated the awkward bending or climbing into the arbor well to load bricks. The shelves of our arbor allow for neat, easy and safe stacking of bricks from the loading gallery. Gallery safety rails do not interfere with use of this arbor and so theatre loading galleries may comply with building codes.

Features:

ƒ Front load bricks for faster, more convenient loading.

ƒ Loading bins and shelves eliminate spreader plates.

ƒ Compact design holds more weight in less space.

ƒ Individual gates close to hold bricks securely in the arbor.

ƒ Supports line sets 6" or 8" (152 or 203 mm) on center.

ƒ Pipe weight can be stacked on any shelf.

FrontLoader Front Loading Arbor

Performance Spaces

Counterweight Rigging Systems

Manually operated counterweight systems have been used on stages for over 100 years. The pipe batten being raised or lowered with scenery, curtains or lights is counterbalanced by an arbor loaded with the equal amount of steel weights. With proper training and operation, this type of system can offer a flexible, cost-effective and safe rigging solution.

Purchase

Block

Loading Gallery Loading Gallery

Rope Hand Line

Guide System

Rope Hand Line

Guide System

Gallery Counterweight Arbor Counterweight Arbor

Rope Lock

Locking Rail

Tensioning Floor Block

Block

Rope Lock

Locking Rail

Tensioning Floor Block

In a single purchase counterweight set, the weight and travel distance of the loaded batten equals the weight and travel distance of the properly loaded arbor. With proper training these sets are easy to operate and are very efficient.

A double purchase system is installed in buildings where space for vertical travel of the counterweight arbor is not sufficient for single purchase sets to operate. By doubling the lift cables around a pulley on the arbor, the batten will travel twice as far as the arbor. This reduces the travel distance needed by arbors so they can be located well above the stage floor on fly galleries, providing space for doors or scenery storage below the arbors and locking rail. Batten

Open Space at Floor

Performance Spaces

Stage Rigging

Application Information

Guide System Options

A guide system is the portion of the system that contains the arbors and keeps them moving smoothly. Typically the guides are spaced every 6" or 8", but custom spacings are available if needed.

• J-Guide - Our J-Guide System is a modular, lightweight aluminum guide system that offers easy installation and durability.

• T-Bar - The J.R. Clancy T-Bar was once the industry standard prior to the more convenient and cost-effective J-Guide. Adaptable wall knees offer flexibility, but field drilling steel can result in longer installation times.

• A Guide - A-Guide is a durable, heavy-duty aluminum guide system for systems that require additional guide strength, such as those in seismic zones.

Locking Rail Options

• Locking Rail - The locking rail can be located at the stage level, on a gallery/catwalk above the stage, or both. Either option can support up to 500 lb (226.8 kg) of uplift per ft (mm) and offers not only a sturdy location to mount rope locks, but also can be used as a tie-off when working with out-of-balance sets.

Arbor Options

The arbor is the carriage that houses the steel counterweight.

• FrontLoader® - The patented FrontLoader front-loading arbor eliminates the rods and spreader plates of the conventional rod arbor. It also eliminates the awkward bending or climbing into the arbor well to load bricks. The shelves allow for neat, easy and safe stacking of bricks from the loading gallery.

• J-Guide/T-Bar Single Purchase Arbor - With safety in mind, our J-Guide/T-Bar single purchase arbors come with easy-to-read, self-adhesive set numbers and labels on the back bar to show safety information and proper spreader plate locations. Many models available from 4' (1219 mm) to 13' (3962 mm) lengths, 4" (101 mm) or 6" (152 mm) widths.

• J-Guide/T-Bar Double Purchase Arbor - The double purchase arbor is provided to you with easy-to-read, self-adhesive set numbers to ensure ease of use and identification. For additional durability and safety, the front collar is welded to the top spreader plate. Many models available from 6' (1829 mm) to 13' (3962 mm) lengths, 4" (101 mm) or 6" (152 mm) widths.

Rope Lock Options

Rope locks are used to hold the rope, arbor and batten in place when not in use. You'll notice that our rope locks are rated to 50 lb (22.7 kg) out of balance which is approximately how much a person can safely operate. Rope locks that hold significantly more than this amount could allow a system to become too out of balance to safely control. For added security, the SureLock® contains a built in out-of-balance indicator and lock out mechanism if the set is too out of balance to safely operate.

Rope

Premium synthetic ropes that are a great replacement for manila and other ropes used backstage. Minimal stretch and resistant to temperature and humidity changes.

• SureGrip® Synthetic Rope

• Stage-Set X™ Synthetic Rope

FrontLoader Front-Loading Arbors
J-Guide/T-Bar Single Purchase Arbors
J-Guide/T-Bar Double Purchase Arbors

Performance Spaces

Stage Rigging

Application Information

Head Blocks, Underhung59 Series, Upright - 55 Series

Loft Blocks, Underhung - 19 Series

Universal Loft Blocks55/56/59 Series

Floor Blocks

• 10" (254 mm) and 12" (305 mm) sheave diameter options

• Minimum 40 lb (18.14 kg) weight to properly tension the hand line

• Kick tab permits easy readjustment of the block

• Sealed precision ball bearings

• Special grooves and shoe sizes available, call for details

Battens and Truss Battens

• Battens are 1.5" schedule 40 seamless pipe with a matte black finish

• Battens up to 21' (6401 mm) long are supplied as a single piece; longer battens come with 18' (5486 mm) internal splice sleeves

• Standard 1.5" (38 mm) battens are provided with safety yellow vinyl end caps, making the batten ends easier to see

• Double batten truss battens and schedule 80 options available

Batten Termination Options

Many popular and economical batten termination options including:

• Pipe clamps/turnbuckles

• Trim clamps

• Grade 30 proof coil trim chains

• Alpha chain trim chains

Performance Spaces

Index Lights

Light your locking rail, fly and loading galleries, with minimal light bleeding. To provide even light distribution, our Index Lights are designed with a black exterior and white interior.

• 5' (1524 mm) and 10' (3048 mm) lengths

• Incandescent and LED options available

• One color (white) and two color (white/blue) options available

009-4X0.5F 4"

(38 mm)22 lb (10 kg)

009-6X0.5F 6" (152 mm)1/2" (13 mm)11 lb (5 kg)

009-6X1F 6" (152 mm)1" (25 mm)22 lb (10 kg)

009-6X1.5F 6" (152 mm)1-1/2" (38 mm)32 lb (14.4 kg)

Warranty and Support

Three-year warranty against defects in materials or workmanship is provided on all J.R. Clancy equipment, additional warranty information is available at jrclancy.com

Performance Spaces

Stage Rigging

Application Information

FrontLoader® Front Loading Arbor

The FrontLoader Front Loading Arbor eliminates rods and spreader plates of the conventional rod arbor. Bending and climbing into the arbor well to load bricks is no longer necessary as bricks can now be safely stacked from the loading gallery.

• The arbor is comprised of a series of sloped shelves within individually accessible compartments at 2' (610 mm) increments

• Each arbor compartment is designed to accommodate ANSI E1.4.1 compliant counterweight bricks 13-3/4" (349 mm) deep; Arbor models for 6" (152 mm) wide bricks with a minimum guide spacing of 8" (203 mm) center to center and models for 4" (102 mm) wide bricks with a minimum guide spacing of 6" center to center available

• Arbor height options of 6' (1829 mm) tall, 8' tall (2438 mm), or 10' (3048 mm) tall

• Arbor shall be available as either single purchase operation or double purchase operation

• Compartment latching mechanism shall be a two stage rotary latch system designed to comply with the strength requirements of SAE J839 and FMVSS 206; Further, the pivot axial load meets or exceeds 120 lb-in (13.55 N-m) torque.

• Arbor housing is constructed of formed 12-gauge steel

• Arbor gates are constructed of resistance welded bar in a grid (mesh) configuration

• Each 2' (610 mm) tall (nominal) arbor gate is attached to the arbor with two hinges rated for a minimum of 400 lb (181 kg) hanging static load each

• Single Purchase Front Loading Arbors ship with a 3/4" (19 mm) round rope thimble (023-750RR) attached for easy hand line installation

• Three-year warranty against defects in materials or workmanship is provided on all J.R. Clancy equipment, additional warranty information is available at jrclancy.com

Order Information

007-FL06-66' (1829 mm)

007-FL08-68' (2438 mm)

(4"

C-C (4" wide counterweight)

007-FL10-610' (3048 mm) 6" C-C (4" wide counterweight)

007-FL06-86' (1829 mm) 8" C-C (6" wide counterweight)

007-FL08-88' (2438 mm) 8" C-C (6" wide counterweight)

007-FL10-810' (3048 mm)

C-C (6" wide counterweight)

008-FL06-66' (1829 mm) 6" C-C (4" wide counterweight)

008-FL08-68' (2438 mm)

008-FL10-610' (3048 mm)

C-C (4" wide counterweight)

(4" wide counterweight)

008-FL06-86' (1829 mm) 8" C-C (6" wide

008-FL10-810' (3048

(60

(582

(777

Performance Spaces

Stage Rigging

Application Information

Fire Safety Curtain Systems

Don't cut corners when it comes to fire protection.

Choose the best. J.R. Clancy's automatically deploying fire curtain systems meet or exceed most modern building codes. And since routine testing is required on these systems by NFPA 80, it pays to invest in a system that draws on over 100 years of experience in theatre fire safety.

Fully Approved – Meets IBC and other nationally recognized fire codes.

ZetexPlus® Protection – Unique fabric prevents heat, smoke, and fire from reaching the audience.

30-Minute Rating – Meets or exceeds most fire code requirements.

Zero-Smoke Rating – Keeps smoke and fumes to a minimum. Non-carcinogenic.

Easy and Economical – An affordable installation or upgrade for your auditorium or theatre.

Features:

ƒ J.R. Clancy fire curtains are made with ZetexPlus® fabric, a revolutionary material which prevents the heat, smoke, and flames on the stage from reaching your audience and contains the blaze to minimize damage. The unique proprietary coating enables it to conduct heat radially along the fabric surface rather than through it.

ƒ Two types of systems:

- Straight Lift - for theatres where there is sufficient space in the fly loft to store and unfolded fire curtain.

- Brail - for theatres that need to gather a curtain due to lack of vertical space in the fly loft.

ƒ Manual or Motorized: all curtains close automatically when tripped; non-emergency operations can be motorized for convenience.

ƒ Fabric is available in natural (tan) or black.

ƒ Fire curtain systems meet ANSI E1.22 "Entertainment Technology Fire Safety Curtain Systems" or NFPA 80 "Standard for Fire Doors and Other Opening Protectives".

Brail System
Straight Lift System

Performance Spaces

Stage Rigging

Application Information

Technical Sheet

Curtain Guides

• Curtain guides are used on the edges of fire curtains and other curtains to guide the curtains along tensioned wire ropes or in tracks; this reduces the bowing from unequal pressure on the opposite sides of the curtain

• Bronze guides are traditional and are necessary for fire safety curtains

• The ultra-high molecular weight (UHMW) plastic guides are lighter in weight and quieter in operation; these are not recommended for use on fire curtains, but are very useful for guided stage curtains to control movement and to prevent hour glassing

• Roller guides are used with tracks for heavier duty applications; see the fire curtain smoke pockets web page for information on smoke pockets with guide tracks for use with roller guides

• Three-year warranty against defects in materials or workmanship is provided on all J.R. Clancy equipment, additional warranty information is available at jrclancy.com

(16 mm)

(38 mm) Ø3/16" (5 mm)

(78 mm)

(113 mm)

(16 mm)

(243 mm)

Guide, Bronze Spool 016-170 Curtain Guide, UHMW Spool 016-171

Curtain Guide, Steel Rollers 016-370

Curtain

Performance Spaces

Stage Rigging

Application Information

Fire Curtain Arbor Release

• Releases the arbor, allowing a manually operated straight lift fire curtain to close

• Dependable operation — easier to use and reset than traditional free end ball systems

• Simple installation for new or existing stages

• Our unique design ensures dependable operation; the ring and line on the left are attached to the bottom of the arbor, keeping the curtain open; The lever is held in place by the fire line (at right). Once the fire line is released the lever pivots, releasing the arbor and allowing the curtain to close

• Includes pivoting release lever, swivel eye awning pulley with shackle, and ring

• Three-year warranty against defects in materials or workmanship is provided on all J.R. Clancy equipment, additional warranty information is available at jrclancy.com

Performance Spaces

Stage Rigging

Application Information

Technical Sheet

Fire Curtain Line Shaft Hoist

• Simple, convenient operation of large fire curtains — up to 1,400 lb (635 kg)

• Motorized line shaft hoist used to raise and lower fire curtains

• Normal operation by push button control stations allows easy raising and lowering

• The curtain is held in place by a disk brake which is engaged by the fire line; when released an adjustable hydraulic speed governor controls the curtain’s descent speed

• Shaft length and number of drums provided to meet your specific project requirements

• Available for operation on 208, 230, or 460 VAC 3 phase power; please confirm voltage at time of ordering

• Push button control stations

• Three-year warranty against defects in materials or workmanship is provided on all J.R. Clancy equipment, additional warranty information is available at jrclancy.com

Fire Curtain Line Shaft

Stage Rigging

Application Information

Manual Fire Line Release and Enclosure

Lever Release

• Easy-to-use lever provides a simple, positive method of releasing the fire line

• No pins to pull or lose

• The over-center design of the lever offers added reliability, ensuring the handle will pull the pin and release the fire line; This overcomes the tendency of some pull ring systems to bind when the fire line is heavily loaded

• Includes fire release sign

Enclosure

• Sturdy enclosure accommodates the lever and mounting hardware

• A clear acrylic window allows clear view of the release

• The integral hand grip allows the cover to be opened easily in the event of fire, yet provides protection against accidental activation

• High contrast lettering on the cover for easy visibility

• Three-year warranty against defects in materials or workmanship is provided on all J.R. Clancy equipment, additional warranty information is available at jrclancy.com

Performance Spaces

Stage Rigging

Application Information

Technical Sheet

Automatic Release Options

Electro Thermal Link

• Used to connect the fire curtain system to fire alarms or other electrical systems

• Link separates when electricity is applied

• UL Listed

Resettable Electro Thermal Link

• Allows fire detection systems such as rate of rise detectors or other electrical signals to release the fire curtain

• Works with sensors using either "Normally Open" or "Normally Closed" contacts

• When triggered, the mechanism releases tension in the fire line, allowing the fire safety curtain to close

• The release mechanism may be attached to the end of the fire line and does not interfere with other release mechanisms

• Requires 24V AC/DC (2.3 amps) to operate and release from building fire alarm system

• UL Listed

Rate of Rise Detector

• Used to release fire curtain when:

– Temperature raises 15°F (7.1°C) in one minute

– Temperature exceeds 135°F (57.2°C)

• Normally open contact

• UL Listed

Fusible Link

• Placed in the fire line to release the fire curtain

• Link separates at a temperature of 165°F (74°C)

• UL Listed

Order Information Number Description

016-ETL Electro Thermal Link

016-2841 Resettable Electro Thermal Link

099-5601P Rate of Rise Detector

016-7519 Fusible Link

Rate of Rise Detector

099-5601P

Fusible Link

016-7519

Electro Thermal Link

016-ETL

Resettable Electro Thermal Link

016-2841

Performance Spaces

Performance Spaces

Stage Rigging

Application Information

Technical Sheet

Motorized Fire Curtain Hoist

• Manufactured to Federal Specification RRC-271-E

• Motorized fire curtain hoist with integral speed regulation used to raise and lower fire curtains - up to 1,100 lb (499 kg)

Note: Hoist is designed for constant load between 500 lb (227 kg) and 1,100 lb (499 kg); brail curtains may require additional pipe weight to operate properly.

• Weight: 550 lb (249 kg)

• Max travel: Up to 30' (9144 mm)

• Available as wall mount or floor mount

• Push button control stations for easy operation

• Emergency lowering speed controlled by hydraulic speed regulator

• 50' (15.24 m) of 5/16" (8 mm) of drive line included

• Meets requirements of ANSI E1.22 – 2016 "Entertainment Technology Fire Safety Curtain Systems" or NFPA 80 "Standard for Fire Doors and Other Opening Protectives – 2016"

• Control Station included

• Available for operation on 208, 380 or 480 VAC 3 phase power, please confirm voltage at time of ordering

• Three-year warranty against defects in materials or workmanship is provided on all J.R. Clancy equipment, additional warranty information is available at jrclancy.com

(487 mm) 20-1/2" 521 mm (Hole Spacing for Wall Mounting)

Mount Angle (Optional)

Mount Angle (Optional)

Motorized Fire Curtain Hoist

Performance Spaces

Stage Rigging

Application Information

Round Weight Arbor Components

• Round weights are used to tension fire lines, dashpot cables, and overbalance clutch levers

• Round weight arbors hold 1 to 10 round weights

• An arbor guard is available

• Three-year warranty against defects in materials or workmanship is provided on all J.R. Clancy equipment, additional warranty information is available at jrclancy.com

Dimensions

Order Information

Performance Spaces

Stage Rigging

Application Information

Technical Sheet

Smoke Pockets

• Smoke pockets contain the sides of the curtain to reduce the passage of smoke and house the curtain guides

• Pockets consist of a 6" (152 mm) or 8" (203 mm) deep "Z" channel and 18" (457 mm) wide plates, all formed from 1/4" (6 mm) steel plate in 5' (1524 mm) and 10' (3048 mm) lengths; the removable 18" (457 mm) plates make smoke pocket and curtain installation faster and simpler than one piece designs

• 6" (152 mm) pockets are used with most straight lift curtains; 8" (203 mm) deep pockets are used with brail fire curtains

• All connections are bolted for serviceability

• Sections anchor to the building with 1/2" (13 mm) bolts or anchors on 4' (1219 mm) centers

• Pockets with guide tracks are used for fire curtains with 016-370 roller guides

• Three-year warranty against defects in materials or workmanship is provided on all J.R. Clancy equipment, additional warranty information is available at jrclancy.com

Smoke Pocket

Performance Spaces

Stage Rigging Application Information

Ø7/16" (11 mm) Holes For Floor Angle Mounting

Performance Spaces

Stage Rigging

Application Information

Smoke Seal Technical Sheet

• Used to seal the horizontal gap between the top of the fire curtain and the proscenium wall

• Modular pieces are 4' (1219 mm) long making handling easier and reducing field installation time

• A triple layer of Zetex™ fabric is factory crimped into the folded steel mounting angle, providing the stiffness necessary to maintain contact with the fire curtain

• The angle is pre-punched on 16" (406 mm) centers for mounting convenience

• Each piece weighs only 5.5 lb (2.5 kg), for simple handling

• Smoke seal sections may be trimmed to fit as required

• Three-year warranty against defects in materials or workmanship is provided on all J.R. Clancy equipment, additional warranty information is available at jrclancy.com Order Information

(10 mm) Mounting Holes TYP

Performance Spaces

Stage Rigging

Application Information

Sure-Guard® II

• Allows fire detection systems such as smoke detectors or other electrical signals to release the fire curtain

• Works with sensors using either "Normally Open" or "Normally Closed" contacts

• When triggered, the Sure-Guard II's electro-mechanical mechanism releases tension in the fire line, allowing the fire safety curtain to close; the release mechanism may be attached to the fire line at any point and does not interfere with other release mechanisms.

• Release mechanism is jostle resistant to reduce false tripping

• A sealed lead acid battery and charger holds the release in the event of power loss

• 120 VAC power required

• UL Listed

• Three-year warranty against defects in materials or workmanship is provided on all J.R. Clancy equipment, additional warranty information is available at jrclancy.com

Dimensions

Order Information

Performance Spaces

Stage Rigging

Application Information

Swivel Eye Pulley

• Used in fire lines

• 2-1/4" (57 mm) sheave grooved for 1/8" (3 mm) wire rope

• Swivel eye with 7/8" (22 mm) diameter opening

• Three-year warranty against defects in materials or workmanship is provided on all J.R. Clancy equipment, additional warranty information is available at jrclancy.com

Dimensions

Order Information

Swivel Eye Pulley250

RWL is based on an 8:1 safety factor.

RWL: RWL is maximum load that can be applied to the swivel eye pulley which is in "like new" condition and has been properly installed, maintained, and operated.

Swivel Eye Pulley
099-SWEP

Performance Spaces

Stage Rigging

Application Information

Technical Sheet

Traction Drive Hoist

• Used to motorize counterweighted framed straight lift fire curtains

• V-grooves in the head block drive the lift line cables to open and close the curtain during normal operation

• When the fire line is released, the brake is disengaged, allowing the head block to freewheel so that the curtain closes; The system must be curtain heavy

• Emergency lowering speed controlled by hydraulic speed regulator

• Track-mounted limit switches limit the travel

• Operates on 208 or 460 VAC 3 phase power; please confirm voltage at time of ordering

• Control station, direct struck limit switches and starter quoted separately

• Meets requirements of ANSI E1.22"Entertainment Technology Fire Safety Curtain Systems and NFPA 80" Standard for Fire Doors and Other Opening Protectives

• Three-year warranty against defects in materials or workmanship is provided on all J.R. Clancy equipment, additional warranty information is available at jrclancy.com

Order Information

016-3516-2-38 Fire Curtain Traction Hoist

out of balance 2200 lb (998 kg), 208V, Mounted Stage Left, 26 fpm (0.13

016-3515-2-38 Fire Curtain Traction Hoist Max out of balance 2200 lb (998 kg), 208V, Mounted Stage Right, 26 fpm (0.13 m/s)

016-3516-2-12 Fire Curtain Traction Hoist

Max out of balance 2200 lb (998 kg), 208V, Mounted Stage Left, 26 fpm (0.13 m/s)

016-3515-2-12 Fire Curtain Traction Hoist

Max out of balance 2200 lb (998 kg), 208V, Mounted Stage Right, 26 fpm (0.13 m/s)

016-3516-4-38 Fire Curtain Traction Hoist

Max out of balance 2200 lb (998 kg), 480V, Mounted Stage Left, 26 fpm (0.13 m/s)

016-3515-4-38 Fire Curtain Traction Hoist

Max out of balance 2200 lb (998 kg), 480V, Mounted Stage Right, 26 fpm (0.13 m/s)

016-3516-4-12 Fire Curtain Traction Hoist

Max out of balance 2200 lb (998 kg), 480V, Mounted Stage Left, 26 fpm (0.13 m/s)

016-3515-4-12 Fire Curtain Traction Hoist Max out of balance 2200 lb (998 kg), 480V, Mounted Stage Right, 26 fpm (0.13 m/s)

(998

(998

(998

(998

Traction Drive Hoist

Max curtain weight: 17000 lb (7711 kg)

Max out of balance: 2200 lb (998 kg)

(544

(544

RWL: RWL is maximum load that can be applied to the traction drive hoist which is in "like new" condition and has been properly installed, maintained, and operated.

Dimensions shown on following page

Performance Spaces

Performance Spaces

Stage Rigging

Application Information

• Heat-resisting borders are used to help protect stage curtains and scenery from heat from theatrical lighting fixtures

• Borders are sewn from Zetex® Plus 800ZP fabric (26 oz/sq yd [.88 kg/m2])

• Fabric is available in natural (tan) or black

• Includes webbing, grommets, and ties on 1' (305 mm) centers on the upper edge

• Three-year warranty against defects in materials or workmanship is provided on all J.R. Clancy equipment, additional warranty information is available at jrclancy.com

Order Information

Number

017-1204

017-1204B

Zetex Border, Natural

Zetex Border, Black

Please provide length and height of the border when requesting a quotation.

Orchestra Pit Filler

Data Book

Orchestra Pit Filler

Decks

Strata decks lock to the substructure with a simple hex wrench connection. Each deck is isolated from other decks to eliminate rubbing and potential noise generation.

Cross Beams

Cross beams attach to the main beam with a quick tube-and-socket connection – and no tools. This tremendous flexibility ensures an ideal fit even in applications with a difficult-to-match wall radius.

Main Beams

Main beams connect to your stage front with a simple bracket to ensure a seamless connection with the permanent stage.

STRATA® Orchestra Pit Filler

Our Strata Orchestra Pit Filler is custom-designed to fit the exact specifications of any orchestra pit. The fit is seamless and extends to the end of the pit. The Strata Orchestra Pit Filler attaches quickly and easily, requiring only a few parts, a small crew, and only one tool to set up. It provides incredibly strong support while freeing up an amazing amount of usable space below, a result of our innovative column-beam design. Our acoustically dampened decks fit snugly against your existing stage to create an integrated surface that is seamless and extremely quiet.

ƒ Ten-year warranty Make your orchestra pit disappear. Make some valuable storage space appear.

Diagonal Bracing

Braces are bolted to main beams and cross beams to eliminate loose parts and speed setup. Braces from each beam attach to columns with quick-release pins.

Columns

Columns connect to the main beam with a quick-release pin.

This smart, simple system makes switching lengths of columns – or the height of your entire pit filler – faster and easier than ever.

Product Details

ƒ Connects to your existing stage with exceptional ease

ƒ Preattached substructure components make setup fast and intuitive

ƒ Flexible design gives you the versatility to make adjustments to fit your stage and space

ƒ The use of beams rather than numerous legs or bridging supports frees up an incredible amount of open space below

ƒ Honeycomb deck construction acoustically dampens decks and quiets "drumhead" effect

ƒ Decks nestle side by side with your existing stage to create an integrated surface that is seamless and extremely quiet

The system uses a few sturdy columns rather than numerous legs or awkward bridging supports. The result is a structure that is more stable, extremely quiet and provides a huge increase in storage space.

ƒ Simple deck-to-stage connections

ƒ Leveling feet on all columns

ƒ A variety of flooring surfaces

Quick-Release Pin System

This convenient design eliminates tools and makes setup quick and easy. The system is used to attach columns to main beams, and also diagonal braces to main beams and cross beams.

Decks Lock In Place With Hex Key

A hex key locks each deck in place with a simple turn. It's the only tool you'll need. Each deck is isolated to eliminate rubbing and potential noise generation and can be adjusted independently of other decks.

Leveling feet on all columns.

Performance Spaces

Orchestra Pit Filler

Application Information

STRATA® Orchestra Pit Filler

System Description

ƒ Removable pit filler system is comprised of decks, beams and columns that are pinned together for easy installation and removal

ƒ Decks are locked to the beam structure using a hex key tool that is included with the pit filler system

ƒ Decks are independent of each other allowing for individual decks to be removed for easy access to or from the pit area when the pit filler is installed

ƒ Multiple deck surface finishes available

ƒ Acoustically dampened honeycomb core decks

ƒ Aluminum extruded frame and column structures

ƒ Decks are custom cut on-site at the time of the installation to match the existing pit opening

ƒ Ten-year warranty

Design Requirements

ƒ Maximum available deck height is 10' (3048 mm)

ƒ Decks can be repositioned at different elevations (e.g. stage, audience, pit floor storage, etc) by using different length columns

ƒ Columns have 4" +\- of leveling capability when used from 17" to 120" (432 to 3048 mm) elevations

ƒ Storage carts are available to store the entire system

ƒ Deck corners are glass-filled nylon to eliminate sharp edges

Performance Requirements

ƒ System meets building code standards of L/360 for a 72" (1829 mm) long deck span

ƒ Standard system meets a vertical live load of 150 psf (732 kg/per sq meter)

ƒ Dynamic impact loading: 10,000 cycles of 400 lb-force (181 kg-force) at 6 locations per 4' x 8' (1219 x 2438 mm) platform

ƒ Point Load Rating (will not leave a permanent deck surface marking):

- 1" (25 mm) diameter disk = 500 lb (227 kg)

- 2" diameter x 2" wide (51 x 51 mm) rubber wheel = 1000 lb (454 kg)

- 3" (76 mm) diameter disk = 1000 lb (454 kg)

- 4" diameter x 1" wide (102 x 25 mm) rubber wheel = 500 lb (227 kg)

Performance Spaces

Orchestra Pit Filler

Application Information

Decks

ƒ Standard deck construction – 1/2" (13 mm) thick plywood on both sides of a 2-5/8" (67 mm) thick phenolic impregnated paper honeycomb core

ƒ Standard surface options – 1/8" (3 mm) thick hardboard or 5/8" (16 mm) thick pre-engineered tongue and grooved flooring

ƒ Standard finish options – unfinished hardboard, painted hardboard, unfinished tongue and groove flooring

ƒ Glass-filled nylon corners – available in tan, brown or black

ƒ Extruded PVC edges – available in tan, brown or black

ƒ Deck attachment – integral spring-loaded screw assemblies

ƒ Standard deck size – 47" x 95" (1094 mm x 2413 mm) or less with custom shapes available as required

Framing Components

Main Support Beam

ƒ Manufactured out of extruded aluminum

ƒ Beams run in up-stage/down-stage direction when installed in the orchestra pit

ƒ Beams incorporate dual fastener tracks to accommodate spring-loaded screws integrated into the decks

Diagonal Brace

ƒ Manufactured out of extruded aluminum

ƒ Serves as a brace between the main beam and the column

ƒ All attachments are pin connectors

Cross Beam

ƒ Manufactured out of extruded aluminum

ƒ Pin and socket connection to main support beam

Column Assembly

ƒ Manufactured out of extruded aluminum

ƒ All attachments are pin connectors

ƒ Threaded leveling foot with total adjustment of 4" (102 mm), plus or minus

Black PVC Edging
Honeycomb Panel Finished Surface: 1/8" (3 mm) Tempered Hardboard Color: Natural
Lockdown Mechanism
G.F. Nylon Corner Piece
Stage Elevation
Pit Filler Deck
Main Beam
Bracing
Column
Cross Beam
Adjustable Foot
Audience Elevation
Bolted Connection
Column
Brace
Pinned Connections

Performance Spaces

Orchestra Pit Filler

Application Information

Deck Storage Cart

ƒ Cart is constructed of steel tubing and formed steel components

ƒ Cart has two rigid and two swivel casters with 8" (20 mm) wheels

ƒ Carts have a black powder-coat paint finish

ƒ Carts have a safety strap to secure decks on the cart

SIZE OF DECKS DETERMINED PER PROJECT

MAXIMUM OF SIX UNITS PER CARTS

Main Beam/Column/Cross Beam Storage Cart

ƒ Cart is constructed of steel tubing and formed steel components

ƒ Cart has two swivel casters and two fixed casters with 6" (152 mm) wheels

ƒ Carts have a black powder-coat paint finish

CROSS BEAM

COLUMN ASSEMBLY

MAIN SUPPORT BEAM

LENGTH OF BEAM DETERMINED PER PROJECT

8" CASTER
TUBULAR STEEL FRAME PAINTED BLACK
CART FOLDED FOR STORAGE
CASTERS

Staging and Seated Riser Systems

Data Book

StageTek® Staging & Seated Risers

Everything about StageTek is an advancement. The refined, smart design is the result of extensive research, engineering and technical advancements in materials and manufacturing. The result is a staging system that is lighter, stronger, easier to handle and faster to set up. When it comes to stretching your investment across multiple needs like seated risers and performance stages, StageTek sets a new standard. For unlimited flexibility, an extra set of legs stored inside your deck is all you will need – that's why we made the legs strong, simple and inexpensive. Compare Wenger's newest advancement in staging to any other option and see for yourself why your next stage will be StageTek.

STRATA® Staging

Strata Staging offers exceptional ease, flexibility and a sleek appearance whether the performance is indoors or out. It's designed with a durable, non-slip, weather-resistant surface. STRATA is engineered to set up quickly and adjust to any terrain – even a hillside.

StageTek® Outdoor Staging

Aluminum deck designed for outdoor use in all types of weather. Decks have spaces for drainage and a textured surface to improve traction and reduce shine. Will not rot, peel, warp or swell. Non-combustible.

Portable ADA-Compliant Disability Ramp

Equal Access For All Performers, thanks to the Portable ADA-Compliant Disability Ramp

Wenger portable ramps are strong and stable, and they attach securely to Wenger staging units. This cost-effective ramping solution helps ensure that all performers have an equal chance to take the stage. 4'-wide (1219 mm) ramps adjust to the exact height of stage elevation.

Ramp design meets all guidelines of the Americans with Disabilities Act (ADA) according to the2015 International Building Code (IBC) - Section 1012.

Performance Spaces Staging and

Standard Options

x

(914 x 914 mm) 3' x 6' (914 x 1829 mm) 3' x 8' (914 x 2438 mm)

x 4' (1219 x 1220 mm)

x 6' (1219 x 1829 mm)

x 8' (1219 x 2438 mm)

Deck Sizes: 1x1 meter and 1x2 meters

Custom Options

x 4' (1829 x 1219 mm)

x 2' (2438 x 610 mm)

x 4' (2438 x 1219 mm)

Performance Spaces

Staging and Seated Riser Systems

Application Information

StageTek Staging System

Typical Unit

ƒ Decks are available in the following sizes:

3' x 3' (914 x 914 mm): 37 lb (17 kg)

3' x 6' (914 x 1829 mm): 65 lb (29 kg)

3' x 8' (914 x 2438 mm): 87 lb (39 kg)

4' x 4' (1219 x 1220 mm): 59 lb (27 kg)

4' x 6' (1219 x 1829 mm): 85 lb (39 kg)

4' x 8' (1219 x 2438 mm): 107 lb (49 kg)

ƒ International deck sizes:

1 x 1 meter: 17 kg

1 x 2 meter: 39 kg

ƒ Pie Shaped and Custom Decks are available

ƒ StageTek is a highly flexible design and can be used to accommodate many unique and custom applications

ƒ Ten-year warranty

3' or 4' (914or1219mm)

Flat Stage Configuration shown with Guardrails

Bracing

3', 4', 6', or 8' (914, 1219, 1829, or 2438 mm)

8", 16", 24", 32", 40" (203, 406, 610, 813, 1016 mm) or telescopic

Seated Riser Configuration Shown with Guardrails, Infill Panels and Closure Panels

StageTek Rectangular Deck Shown with
StageTek
StageTek
StageTek Seated Riser Configuration With Pie Shaped Decks and Closure Panels

Performance Spaces

Staging and Seated Riser Systems

Application Information

StageTek Staging System

Typical Unit (continued)

ƒ Platform decks are 3/4" (19 mm) thick and constructed of Group I veneer plywood with a protective laminate on both sides

ƒ Surface options:

- Black Standard (Cracked Ice Polypropylene): A slip resistant overlay recommended for general multi-purpose

- Black Versalite-Match (Moroccan): A slip resistant overlay that will match Wenger Versalite decks

- Black Heavy-Duty (Quadripple): An aggressive textured overlay for applications requiring greater slip resistance

- Natural or Painted Hardboard: A 1/2" (13 mm) plywood bonded between two faces of 1/8" (3 mm) tempered hard-ply

- Carpeted: Manufacturer's standard grey carpet over a 5/8" (16 mm) plywood core (contact Wenger for a sample)

- Carpet Ready: A 5/8" (16 mm) plywood core ready to receive carpet surface

- Black powder-coat paint finish is available for the deck surface, frame and legs (not telescopic legs)

ƒ Standard rectangular decks feature spaces under each platform unobstructed by folding frames or braces allowing for easy storage/stowage space under the system

ƒ Frame and edging are fabricated from 4" (102 mm) tall aluminum extrusion; extrusion is designed with a slight recess for hook and loop skirting attachment and also features notches hidden on the inside of the frame to accept accessory attachments

ƒ Decks feature fully replaceable components including corners, frame, and wood deck; replaceable in the field with common tool

ƒ Dynamic impact loading: 10,000 cycles of 400 lb-force (181 kg-force) at six locations per 4' x 8' (1219 x 2438 mm) rectangular deck

ƒ StageTek load ratings as measured on a 4' x 8' (1219 x 2438 mm) rectangular deck:

- Standard uniform live load for decks with 4 legs: 125 lbf/ft2 (6 kN/m2), meets L/75 deflection criteria

- Heavy duty uniform live load for decks with 5th leg (as needed or smaller deck): 150 lbf/ft2 (7.2 kN/m2), meets L/180 deflection criteria

- Heavy duty uniform live load for decks with no 5th leg, added stiffener(s): 150 lbf/ft2 (7.2 kN/m2), meets L/180 deflection criteria

- Lateral live side load: 12 lbf/ft2 (0.6 kN/m2) based on deck top surface area, meets IBC code

- Caster load: 300 lb (136 kg) applied via 2" (51 mm) diameter by 2" (51 mm) wide flat rubber wheel with no appreciable surface deformation

- Concentrated load: 500 lb (227 mm) on a single 6" x 6" (152 x 152 mm) square area per deck

ƒ An aluminum extrusion center support rail is featured on deck sizes: 4' x 8' (1219 x 2438 mm), 4' x 6' (1219 x 1829 mm) and 3' x 8' (914 x 2438 mm)

ƒ The frame is designed for safer, easier handling and features rounded contours ergonomically sized for a secure power grip (closed grip)

ƒ Standard unit-to-unit connectors are leg-to-leg connections of adjacent decks; additional connectors are available depending on the staging application

ƒ Leg braces are available to provide additional stability

2-1/2" (64 mm) Dia

Extruded Aluminum Support Frame Die Cast Aluminum Leg Sockets Extruded Aluminum Center Support Rail
StageTek Typical Staging Unit
Retention Clips for Leg Storage Under the Deck Surface

Performance Spaces

Staging and Seated Riser Systems

Application Information

StageTek Outdoor Staging System

Typical Unit

ƒ Rectangular decks are available in the following sizes:

- 4' x 4' (1219 x 1219 mm): 72 lb (33 kg)

- 4' x 6' (1219 x 1829 mm): 102 lb (46 kg) with center leg kit: 104 lb (47 kg)

- 4' x 8' (1219 x 2438 mm): 132 lb (60 kg) with center leg kit: 134 lb (61 kg)

ƒ Ten-year warranty

4' (1219mm)

4', 6', or 8' (1219, 1829, or 2438 mm)

8", 16", 24", 32", 40" (203, 406, 610, 813, 1016 mm) or Telescopic

StageTek Seated Riser Configuration Shown with Guardrails and Optional Infill Panels and Closure Panels
StageTek Flat Stage Configuration Shown with Guardrails
StageTek Outdoor Rectangular Deck Shown with Optional Center Leg Kit and Bracing

Performance Spaces

Staging and Seated Riser Systems

Application Information

StageTek Outdoor Staging System

Typical Unit (continued)

ƒ Platform decks are extruded aluminum plank with spaces for drainage and textured surface to improve traction and reduce shine

ƒ Closed multi-cavity cross section for increased strength and resistance to twisting

ƒ StageTek Load Ratings as measured on a 4' x 8' (1219 x 2438 mm) rectangular deck:

- Standard Uniform Live Load for deck with 4 legs: 125 lb/ft2 (6 kN/m2), meets L/150 deflection criteria

- Heavy-Duty Uniform Live Load for deck with center leg (or smaller deck): 150 lb/ft2 (7.2 kN/m2), meets L/180 deflection criteria

- Lateral Live Side Load: 12 lb/ft2 (0.6 kN/m2) based on deck top surface area, meets IBC code

- Point Load: 500 lb (2.2 kN) applied via 1" (25 mm) diameter pin

ƒ Standard rectangular decks feature spaces under each platform unobstructed by folding frames or braces allowing for easy storage/stowage space under the system

ƒ Frame and edging are fabricated from 4" (102 mm) tall aluminum extrusion; extrusion is designed with a slight recess for hook and loop skirting attachment and also features notches to accept accessory attachments

ƒ An aluminum extrusion center support rail is featured on deck sizes:

4' x 8' (1219 x 2438 mm), 4' x 6' (1219 x 1829 mm) and 4' x 4' (1219 x 1219 mm)

ƒ The frame is designed for safer, easier handling and features rounded contours ergonomically sized for a secure power grip (closed grip)

ƒ A variety of unit-to-unit connectors and heavy-duty hook-and-loop straps are available to connect unit legs together

ƒ Resistant to rain, snow, hot and cold; will not rot, peel, warp or swell; non-combustible

ƒ Leg braces are available to provide additional stability

2-1/2" (64 mm) Dia Extruded Aluminum Leg

Extruded Aluminum Support Frame
Die Cast Aluminum Leg Sockets
Extruded Aluminum Center Support Rail
StageTek Typical Staging Unit
Optional Retention Clips for Leg Storage Under the Deck Surface
Tightening Knob
Leg and Socket Detail

Performance Spaces

Staging and Seated Riser Systems

Application Information

StageTek Staging System

Typical Unit (continued)

Leg Options

ƒ Available leg options include fixed height, adjustable height and telescopic

ƒ Standard rectangular decks have four die cast aluminum leg sockets; legs are quickly secured without tools by just rotating the knob

ƒ Standard legs are fabricated from 2-1/2" (64 mm) diameter aluminum extrusions and are finished with non-marring cap; available in lengths that result in the following deck heights: 8" (203 mm), 16" (406 mm), 24" (610 mm), 32" (813 mm) and 40" (1016 mm)

ƒ Adjustable telescopic legs feature a threaded leveling foot finished with a rubber pad and non-rattling telescopic adjustment secured with a quick-release pin and jam nut; available in lengths that result in the following deck heights: 16"-28" (406-711 mm), 24"-40" (610-1016 mm) and 30"-54" (762-1372 mm)

ƒ Black powder-coat paint finish is available for fixed height legs and adjustable height legs; not available for telescopic legs

ƒ Custom leg sizes are available

Performance Spaces

Staging and Seated Riser Systems

Application Information

StageTek Staging System Accessories

StageTek Horizontal Storage Cart

ƒ Four casters and one handle are included

ƒ Two brackets have fixed casters and two have swivel casters with brakes

ƒ Casters are 600 lb (270 kg) capacity each

ƒ Cart is rated up to ten 4' x 8' (1219 x 2438 mm) platforms with legs

ƒ Tie-down strap provided

ƒ Removable handle provided on swivel end to allow pushing, pulling and turning

ƒ Handle and caster units are heavy gauge steel welded with black powder-coat paint finish

ƒ Requires double doorway with center post removed. Minimum width: 50" (1270 mm)

ƒ We recommend platforms be stacked face to face to prevent scratching

ƒ Ten-year warranty

Tie-Down

Strap Included

Kit requires one deck (sold separately)

Performance Spaces

Staging and Seated Riser Systems

Application Information

StageTek Staging System Accessories (continued)

Universal Deck & Rail Cart

ƒ 85 lb (38 kg). Fits through a 32" (813 mm) door)

ƒ Holds 6 StageTek Rectangular Decks or 6 StageTek Guardrails

ƒ Decks and guardrails can be mixed on the same cart

ƒ Ideal for non-rectangular units such as pie shapes used in seated risers and oversize units

ƒ Heavy-duty, non-marring locking casters. Ratcheting nylon safety strap

Stairways – Fixed Height and Adjustable

ƒ Fixed Height Stairways are available in

2-step: 55 lb (25 kg), 3-step: 76 lb (34 kg) and 4-step: 94 lb (43 kg) models

ƒ Adjustable Stairways are ideal for custom-height systems and for systems that are frequently set up at different heights

ƒ Adjustable Height Stairways are available in 3-step, 4-step, 6-step and 8-step models

ƒ Load rating of 500 lb (227 kg) per stair tread

ƒ Stairways feature a hook bracket that will work with StageTek, Versalite, Trouper and Type-C stage systems from Wenger

ƒ Stairs feature aluminum extruded treads and include permanent handrails on both sides

Universal Deck & Rail Cart Loaded With 6 Rectangular Decks
Universal Deck & Rail Cart Loaded With 6 Guardrails
Adjustable Height Stairway 4-Step Model
Fixed Height Stairway 4-Step Model
(76230"mm)
(1029mm) 41-1/2" (1054mm)
(356 mm)
(76230"mm)

Performance Spaces

Staging and Seated Riser Systems

Application Information

StageTek Staging System Accessories (continued)

Guardrails

ƒ Guardrails comply with IBC code requirements for loading

ƒ Guardrails feature two uprights and three cross bars; optional infill panels can be added that comply with the IBC 4" (102 mm) sphere code

ƒ Guardrails can function as a chair stop

ƒ Guardrails are 42" (1067 mm) high with a black powder-coat paint finish

ƒ Guardrails clamp to the stage deck without the need for tools

Clamps, Connectors and Braces

ƒ Optional retention clips for leg storage mount under the deck to provide retained leg storage

ƒ A variety of leg straps, metal leg to leg, leg to deck, overlap and anchor brackets are available

ƒ Stabilizing braces are recommended for heights 40" (1016 mm) and above

ƒ Optional deck-to-deck cam locks are built into the deck frame; cams can be locked or opened via a small tool access hole on top of the platform

Backdrop and Closure Panels

ƒ Drapery is available in heights to match the staging elevation and in a wide variety of colors

ƒ 100% fire retardant woven polyester attaches with hook and loop fastening strips

ƒ Backdrop frame attaches to guardrails and positions a drapery 8' (2438 mm) above the stage; available in 4' (1219 mm), 6' (1829 mm), and 8' (2438 mm) widths

ƒ Solid side and front closures are ideal for seated riser systems

- Constructed of the same material as the deck with the same surface options

- Edges are finished in a thermofused black edge band

- Connects to the rail without tools via an extruded PVC clip running the length of the closure

is available for audience seating applications.

Guardrail with Optional Infill Panels
Backdrop
StageTek Seated Riser Configuration with Guardrails and Closure Panels A box step accessory

Performance Spaces

Staging and Seated Riser Systems

Application Information

STRATA Event Staging

Typical Unit

Intended Use - Major Events, Tent Floors and Outdoors

ƒ Staging height can be constructed from 7" (178 mm) to a maximum height of 10' (3048 mm)

Diagonal bracing is required for all stages higher than 24" (610 mm)

Cross bracing is required for all stages higher than 48" (1219 mm)

ƒ Pass-through openings and holes can be cut into deck surfaces

ƒ Ten year warranty

Finished and Plywood Deck Specification

ƒ Standard system meets a vertical live load of 150 lb/ft2 (732 kg/m2)

ƒ Dynamic Live Load: Side load of 15% of total uniform live load which equals 720 lb (327 kg) side load on a platform under a total uniform live load of 4,800 lb (2177 kg)

ƒ Point Load Rating (will not leave a permanent deck surface marking): - 1" (25 mm) diameter disk = 500 lb (227 kg)

ƒ Finished Deck construction is a 3/4" Exterior grade plywood with a black or sand polyglass or hardwood top surface and aluminum edging

The deck is weather resistant and ultra-violet stable

ƒ Plywood Deck construction is a 3/4" exterior grade, unfinished plywood sheet

ƒ Beam frame components that support the deck surface are aluminum extrusions

ƒ Uniform load capacity is 125 lb/ft2 (610 kg/m2)

ƒ Decks are shipped ready-to-use on a shipping pallet

ƒ Deck sizes are:

- 8' x 4' (2438 x 1219 mm)

- 6' x 4' (1829 x 1219 mm)

- 4' x 4' (1219 x 1219 mm)

- 8' x 2' (2438 x 610 mm)

- 6' x 2' (1829 x 610 mm)

- 4' x 2' (1219 x 610 mm)

Plywood Deck Kit Specifications

ƒ Frame components, aluminum extruded beams, are shipped ready-to-assemble with detailed instructions

ƒ The plywood deck surface, supplied by user, should meet or exceed 3/4" plywood grade C-C Exterior, C-C PTS (plugged and touch sanded), or B-C Sanded Standards

ƒ Available sizes are the same as the finished deck

Leveled Understructure Specifications

ƒ Main beams, extruded aluminum, are available in lengths from 2' (610 mm) to 16' (4877 mm) in 2' (610 mm) increments

ƒ Spanner beams, 2' square galvanized steel perforated tube, are available in lengths from 2' (610 mm) to 8' (2438 mm) in 2' (610 mm) increments Each spanner beam is shipped with a pair of formed steel diagonal braces which should be used when the leveled deck is higher than 2' (610 mm)

ƒ Telescoping legs, 2" and 1-3/4" square galvanized steel perforated tube, are available in lengths from 6" (152 mm) to 48" (1219 mm) in 6" (152 mm) increments

ƒ Lower telescoping leg, 1-3/4" square (44 mm) Upper telescoping leg, 2" square (51 mm)

ƒ Interconnectors allow connecting spanner beams to main beams and to telescoping legs are made of formed and welded steel, powder-coat painted

ƒ Main beam diagonal braces, painted formed steel must be used for stages higher than 24" (610 mm)

Plywood Deck Kit Assembled
Spanner Beam
Telescoping Leg
Main Beam
Interconnectors

Performance Spaces

Staging and Seated Riser Systems

Application Information

STRATA Tent Floor Specifications

Double beam cap, extruded aluminum, is available in lengths from 8' (2438 mm) to 2' (610 mm) in 2' (610 mm) increments and supports adjacent decks (edge-to-edge).

Single beam cap, extruded aluminum, is available in lengths from 8' (2.44 m) to 2' (610 mm) in 2' (610 mm) increments and supports only the edge of a single deck.

STRATA Accessories

Articulating Leveling Foot

Double Beam Cap Profile suitable to use with a 2" x 4" (51 x 102 mm) wood board.
Single Beam Cap Profile suitable to use with a 2" x 2" (51 x 51 mm) wood board.
Rail Plate Assembly
Guardrail Assembly with Rail Plate Assemblies
Beam Link Assembly
Stairway Attachment with Rail Plate Assemblies
Cross Brace Assembly

Performance Spaces

Staging and Seated Riser Systems

Application Information

Seated Riser Sections

Rectangular Section

ƒ Consists of three or four individual platforms and three or four elevations

ƒ Platform sizes are 4' x 8' (1219 x 2438 mm) or 4' x 6' (1219 x 1829 mm) for band/orchestra, and 3' x 8' (914 x 2438 mm) or 3' x 6' (914 x 1829 mm) for choral

ƒ Each elevation detaches for relocating or re-configuring at user's option

Pie-Shaped Section

ƒ 4' (1219 mm) depth platforms for band/orchestra, 3' (914 mm) depth platforms for choral

ƒ When combined with rectangular sections, pie sections allow you to configure sets of risers in a number of ways

Optional Seated Riser Accessories

ƒ Transport carts

ƒ Stairways

ƒ Front and end closure panels

ƒ Drapery closures

ƒ Ramps

ƒ Guardrails

Seated Riser Shapes

A riser set may consist of any number of rectangular sections, as well as two or four pie-shaped sections. The sections can be arranged in a variety of ways to provide flexibility in fitting different room dimensions.

Risers can also be configured primarily with rectangular units and tri-corners to "round out" the corners as shown below. Typically, these are used only for band risers, using 4' (1219 mm) wide units. They usually provide greater seating capacity per square foot of floor area used.

Performance Spaces

Staging and Seated Riser Systems

Application Information

Example of Choral Seated Risers

Typical Choral Seated Riser with chairs

All choral riser set capacities are estimated using 26" (660 mm) spacing per student. This spacing allows for adequate access to fresh air during active choral rehearsal.

The 3' (914 mm) riser depth is sufficient for traffic needs and seating comfort where music stands are not required. The 4' (1219 mm) riser depth allows for music stands and instrument use on the risers.

Example of Band/Orchestra Seated Risers

Typical Band/Orchestra Seated Riser with chairs and music stands

All band riser set capacities are estimated using 32" (813 mm) spacing per student. The back row of the riser is often used for large percussion instruments, or string bass in orchestras, and thus the total seating capacities may be less than the quantities given.

It is advisable to allow extra space for larger instruments, such as percussion or bass, at the back of the riser. This can be accomplished as shown below by adding a second row of units to the highest elevation to provide an 8' (2438 mm) deep area.

Performance Spaces

Staging and Seated Riser Systems

Typical Drawings

StageTek Seated Risers Typical Unit

End View

Note: Stabilizers are not shown but are required for elevations greater than 40" (1016 mm). Frame to leg clamps are not shown.

Performance Spaces

Staging and Seated Riser Systems

Typical Drawings

Rectangular Seated Band/Orchestra Riser Configurations

SEATS 33 (36 W/FLOOR)

SEATS 45 (48 W/FLOOR)

SEATS 54 (60 W/FLOOR)

SEATS 54 (61 W/FLOOR)

SEATS 63 (72 W/FLOOR)

SEATS 66 (76 W/FLOOR)

Notes:

ƒ All band riser set capacities are estimated using 32" (813 mm) spacing per student.

ƒ Additional sets and custom sizes/configurations are available; please call for details.

ƒ Drawings not to scale.

Performance Spaces

Staging and Seated Riser Systems

Typical Drawings

Rectangular Seated Band/Orchestra Risers

SEATS 72 (75 W/FLOOR)

SEATS 75 (88 W/FLOOR)

SEATS 81 (96 W/FLOOR)

Notes:

ƒ All band riser set capacities are estimated using 32" (813 mm) spacing per student.

ƒ Additional sets and custom sizes/configurations are available; please call for details.

ƒ Drawings not to scale.

SEATS 72 (84 W/FLOOR)

SEATS 96 (105 W/FLOOR)

SEATS 84 (90 W/FLOOR)

Performance Spaces

Staging and Seated Riser Systems

Application Information

Seated Riser Building Blocks

Each riser set combines some, or all, of the "building blocks" shown here. The number of building blocks and the number levels determines the final size of the riser and its capacity.

Creating different shapes with one seated riser set

Pie sections are the key to creating different shaped configurations. As illustrated here, one seated riser set can be arranged in several different shapes by changing the position of the pie section. This seated riser set is made up of five straight sections and four pie sections

3' (914 mm) Risers:

Platforms are 3' (914 mm) deep and seating capacity is based on 26" (660 mm) chair spacing.

(914 mm)

4' (1219 mm) Risers:

Platforms are 4' (1219 mm) deep and seating capacity is based on 32" (820 mm) chair spacing.

Horseshoe Winged Arc

Performance Spaces Staging and Seated Riser Systems

Application Information

ADA Ramp

ƒ Ramp design meets all guidelines of the Americans with Disabilities Act (ADA) according to the 2015 International Building Code (IBC) - Section 1012

- Slope is not steeper than one unit vertical in twelve units horizontal (1:12)

- Hand rails are continuous throughout ramp

- Clear width on ramp is a minimum of 36" (914 mm)

- Landings are a minimum of 60" x 60" (1524 x 1524 mm) at any direction change

- Railings extend 12" (305 mm) at end of handrails

- Contrasting color indications designate any elevation changes

ƒ Ramp design allows for different ramp configurations depending upon your needs

ƒ Compact storage is ideal for facilities that have limited storage space

ƒ Parts are labeled for quick set-up

ƒ Ramp surface comes standard with slip-resistant Quadripple surface. Additional surfaces are available by request

ƒ Adjustable legs are provided for easy leveling on uneven surfaces

ƒ Ramp design and brackets allow for attachment to StageTek or Versalite stages

ƒ Ten-year warranty

ƒ Optional mid-rails are available

Performance Spaces

Staging and Seated Riser Systems

Typical Drawings

16" ELEVATION RAMPS

8" (203 mm) Elevation Ramp 282A010

8" ELEVATION RAMP

282A010 - 8" (203 mm) Elevation Only 10' 1-3/16" (3078 mm) 4' (1219 mm)

Note: Additional options and custom configurations are available, contact Wenger Corporation.

282A012
282A013

Performance Spaces

Staging and Seated Riser Systems

Typical Drawings

16" (406 mm) Elevation Ramps

16" ELEVATION RAMPS

16" ELEVATION RAMPS

6-3/4" (1695 mm)

16" ELEVATION RAMPS

ELEVATION RAMP

8" ELEVATION RAMP

(1219 mm)

ELEVATION RAMP

3/16" (6710 mm)

282A010

7/8" (5509 mm)

282A011 - 16" (406 mm) Elevation Only 282A010

282A012 - 16" (406 mm) Elevation with Right Hand Landing 282A010

282A013 - 16" (406 mm) Elevation with Left Hand Landing 22' 3/16" (6710 mm) 5' 6-3/4" (1695 mm)

Note: Additional options and custom configurations are available, contact Wenger Corporation.

Performance Spaces

Staging and Seated Riser Systems

Typical Drawings

24" (610 mm) Elevation Ramps (continued on the following pages)

6-3/4" (1695 mm)

(1219 mm)

11-13/16" (9139 mm)

1/2" (7938 mm)

11-13/16" (9139 mm)

Performance Spaces

Staging and Seated Riser Systems

Typical Drawings

Typical Drawings

24" ELEVATION RAMPS

24" ELEVATION RAMPS

24" (610 mm) Elevation Ramps (continued)

22' 1/4" (6712 mm) 8' 1-3/8" (2473 mm)

22' 1/4" (6712 mm) 8' 1-3/8" (2473 mm)

- 24" (610 mm) Elevation with Left Hand Switch

- 24" (610 mm) Elevation with Right Hand Switch

Performance Spaces

Staging and Seated Riser Systems

Typical Drawings

Typical Drawings

24" (610 mm) Elevation Ramps (continued)

21' 8-1/16" (6606 mm) 9' 8-1/8" (2950 mm)

282A019 - 24" (610 mm)

Elevation with Right Hand Switch and Left Hand Landing

21' 8-1/16" (6606 mm) 9' 8-1/8" (2950 mm)

282A020 - 24" (610 mm)

Elevation with Left Hand Switch and Right Hand Landing

Note: Additional options and custom configurations are available, contact Wenger Corporation.

Performance Spaces

Staging and Seated Riser Systems

Typical Drawings

32" (813 mm) Elevation Ramps (continued on the following page)

32" ELEVATION RAMPS

32" ELEVATION RAMPS

32" ELEVATION RAMPS

Performance Spaces

Staging and Seated Riser Systems

Typical Drawings

32" (813 mm) Elevation Ramps (continued)

26' 1-13/16" (7971 mm)

9' 8-1/8" (2950 mm)

282A024 - 32" (813 mm)

Elevation with Right Hand Switch and Left Hand Landing

9' 8-1/8" (2950 mm)

282A025 - 32" (813 mm)

Elevation with Left Hand Switch and Right Hand Landing

Note: Additional options and custom configurations are available, contact Wenger Corporation.

26' 1-13/16" (7971 mm)

Performance Spaces Staging

and Seated Riser Systems

Application Information

Miscellaneous Information

Technical Sheets are included for:

ƒ StageTek® Roll-A-Deck® Kit

ƒ flipFORMS®

Performance Spaces

Staging and Seated Riser

Systems

Application Information

Technical Sheet

StageTek® Roll-A-Deck® Kit

• 280B550 Each kit contains four legs and one connection bracket

• Designed for rectangular StageTek decks (ordered separately)

• Standard deck finished height elevations are between 12-1/4" and 24" (311 and 610 mm); higher elevations require the use of stabilizers (ordered separately)

• 9-1/2" (241 mm) minimum elevation is possible if adjacent decks are connected using cam locks or for use on individual decks not connected to another deck; leg to leg connector brackets cannot be used at this elevation

• Tubular aluminum legs with steel inserts and four easy-rolling, lockable casters

• 5" (127 mm) diameter polyolefin casters are rated for 700 lb (317 kg) each; all casters lock both the wheel and swivel for added stability

• Maximum load capacity is 1600 lb (726 kg) per deck

• Guardrails are recommended for elevations over 16" (406 mm)

• Ten-year warranty Accessories

• Chair stops and backdrops are available

Kit is Shown With Two Decks (Decks are Sold Separately)

Performance Spaces

Staging and Seated Riser Systems

Application Information

flipFORMS®

• 025D002 blue/grey, 025D003 green/grey, 025D004 yellow/grey, 025D005 red/grey, 025D027 grey/grey, 025D028 black/black (100 lb) (45 kg)

• Designed for maximum load of 125 lb/ft2 (610 kg/m2)

• Takes on three basic shapes for use as a one tier platform, two tier or three tier unit

• Has two movable sections hinged onto a core unit

- Flip larger back section onto core for two tiers

- Flip both back and front sections onto core unit for three tiers; when both sections are down, flipFORMS can be used as a one tier raised platform

• Blow molded, high-density polyethylene plastic shell provides an easy-to-clean surface that's super tough

• Shell has skid resistant texture molded into surface for added safety and sure-footedness

• Replaceable tops

• Recessed, molded handholds on front and sides for easy positioning or carrying

• Built-in wheels in reinforced wheel pockets provide one-person portability

• Units store in an upright position

• Twelve 1-1/2" (38 mm) square skid-resistant, non-marring glides positioned on the bottom of the unit; secured by recessed screws

• Patented hinge design maintains flat surface in all positions

• Ten-year warranty

Grade Level2-Step Tiered Seating Capacity 3-Step Riser Capacity*

Grades 1-38 students/unit16 students/unit

Grades 4-66 students/unit12 students/unit

*Capacity using the floor as the front row

Units Roll, Nest and Store in an Upright Position

Portable Audience

Portable Audience Chairs

Wenger's Portable Audience chairs provide the flexibility of portable seating with the look and feel of permanent luxury seating. These portable chairs attach to one another securely in rows for added stability. Wenger Portable Chairs and Premier Portable Chairs give you a complete high-quality, flexible seating solution. Our High-Density Portable Audience Chair is a strong, durable folding portable audience chair that you can use anywhere. The exclusive Duraflex action assures level seating on uneven surfaces – and the chair frame automatically returns to it original shape.

Portable Audience Seating

Performance Spaces

Portable Audience Seating

Application Information

Portable Audience Chair

ƒ Freestanding, folding, audience seating chair with built-in ganging device

ƒ Steel chair frame is constructed with 16 gauge continuous electric welded 1" x 2" (25 x 51 mm) rectangular steel tube

ƒ Standard finish is a durable black powder-coat paint; custom colors available upon request

ƒ Chair seat is spring-loaded and returns to a folded position when not occupied

ƒ Standard Chair seat and back are upholstered with durable black, 100% Polypropylene fabrics (Genesis style from Geo. Sheard Fabrics)

ƒ Seat cushion is 2-1/2" (64 mm) thick high resiliency polyurethane foam with a 5 ply- 3/8" (10 mm) molded hardwood plywood substrate

ƒ Back cushion is 1-1/2" (38 mm) thick, high-resiliency polyurethane with a 5 ply- 3/8" (10 mm) molded hardwood plywood substrate; back cushion is shaped to provide lumbar support for long-term comfort

ƒ Arm rests are solid hardwood with rounded corners and a black finish

ƒ Overall chair height is 32" (813 mm) with a seat height of 17-1/2" (445 mm)

ƒ When the seat automatically returns to the "up" position, the chair depth is 20" (508 mm)

ƒ Chair folds for storage and transport on the accessory cart

21 21" (533 mm) 19" (483 mm)

22 22" (559 mm) 20" (508 mm)

23 23" (584 mm) 21" (533 mm)

24 24" (610 mm) 22" (559 mm)

25 25" (635 mm) 23" (584 mm)

26 26" (660 mm) 24" (610 mm)

Single Chair
Chair
Size
Rest"

Performance Spaces

Portable Audience Seating

Application Information

Portable Audience Chair Storage/Transport Cart

ƒ Rack, move, and store up to 24 Wenger Portable Audience Seating Chairs

ƒ Steel construction with easy-roll casters

ƒ Overall cart dimensions:

72" high x 82" wide x 42" deep (1829 x 2083 x 1067 mm)

Cart will NOT fit through a standard 32" (810 mm) door

ƒ Overall cart dimensions with stored chairs:

81" high x 82" wide x 42" deep (2057 x 2083 x 1067 mm)

72" (1829 mm) 42" (1067mm)
(208382"mm) 81" (2057 mm) 38" (965mm)

Makeup

The ideal environment for makeup application.

Studio® Makeup Station

Wenger Studio Makeup Stations have got it all. Light columns for clean shadow-free illumination; a large mirror for a full, unobstructed view of head and shoulders; steellaminated construction that keeps the mirror from curving or splintering; plenty of counter space with a curved stain-resistant countertop that allows for leaning into the mirror; a molded-in pencil tray; tackboard available for notes and instructions; and an overhead shelf that reflects untainted light and provides plenty of storage space. And Wenger Makeup Stations are ready to install. They mount quickly and easily into wall studs or masonry at any height so they can be hung and hard-wired to the room's electrical system.

Product Details

ƒ Available in 36" (914 mm) or 30" (762 mm) widths

ƒ Wall mounting bracket has multiple holes for alignment with wall frame studs. Also mounts to masonry walls

ƒ Makeup stations can be installed at any height; recommended height for counter is 29" (737 mm) from the floor

ƒ Designed for 60 watt incandescent or 15 watt swirl fluorescents; full-spectrum fluorescents are recommended for additional clarity and accurate reflection of skin tones and makeup colors (bulbs not included)

ƒ 3/16" (5 mm) diameter steel wire light bulb cages, permanently mounted

ƒ UL®-Approved and meets NEC (National Electric Code) requirements

ƒ Counter is 1" (25 mm) thick, 36" or 30" (914 or 762 mm) wide, 20" (508 mm) deep medium density fiberboard with stain resistant, matte white laminate overlay

ƒ Rated for 300 lb (136 kg)

ƒ Counter has a concave shape with the center front edge just 15" (381 mm) from the mirror

ƒ Ten-year warranty

Backstage® Makeup Station

Wenger's Portable Backstage Makeup Station turns any room into a dressing room, even if it's a utility closet backstage. Weighing in at only 35 lb, the Backstage Makeup Station uses six 60-watt incandescent bulbs, or 15-watt full spectrum fluorescents, to create even, shadow-free light. The large head-and-shoulders mirror provides plenty of room to work and an auxiliary power outlet is built-in. A convenient carrying handle makes it easy to move from place to place. And multiple stations nest together for compact storage.

Product Details

ƒ Weighs 35 lb (16 kg) and can be carried by one person. Steel frame doubles as carrying handle

ƒ 33" (838 mm) wide, 33-1/4" (845 mm) high, 9-3/8" (238 mm) deep makeup station is well balanced and sets anywhere

ƒ Each 33" (838 mm) wide unit requires an incremental 6-1/2" (165 mm) of floor or shelf space for storage

ƒ Designed for 60 watt incandescent or 15 watt swirl fluorescents; full-spectrum fluorescents are recommended for additional clarity and accurate reflection of skin tones and makeup colors (bulbs not included)

ƒ 3/16" (5 mm) diameter steel wire light bulb cages, permanently mounted

ƒ 20-3/4" wide x 22-3/4" high (527 x 578 mm) mirror laminated to a steel backer. Steel frame and unique aluminum light housing surround the mirror

ƒ Single outlet and rocker switch combination with built-in GFCI protection

ƒ 10' (3048 mm) 12-gauge, 3-wire cord plugs into a standard 110 outlet

ƒ A rocker switch and single grounded outlet are mounted on the lower right side of the mirror surround. Switch controls lights only, allowing appliances to operate with lights off

ƒ UL®-Approved and meets NEC (National Electric Code) requirements

ƒ Optional dust cover available

ƒ Ten-year warranty

Makeup

Performance Spaces Makeup Stations

Application Information

30" and 36" (762 and 914 mm)

Studio® Makeup Stations

Wenger Corporation Studio Makeup Stations will provide performers with a correct and convenient environment for applying makeup and creating other visual effects. The Studio Makeup Station components include a generous counter, a large mirror, a reflective storage shelf, untainted lighting and electrical outlets. A tackboard is available on the 36" (762 mm) model. The Studio Makeup Stations are designed to be permanently attached to a wall and hard-wired and are covered with a ten-year warranty.

The Counter

ƒ Construction: Medium density fiberboard core and laminate overlay with a stain resistant surface and a matte white finish for light diffusion

ƒ Features: Rounded upper edges, integral pencil tray with a concave shape for mirror access. 15" (381 mm) from counter edge to mirror surface

ƒ Size:

- 36" models - 36" wide x 20" deep (914 x 508 mm)

- 30" models 30" wide x 20" deep (762 x 508 mm)

ƒ Work surface is recommended to be 29" (737 mm) from the floor, but can be positioned at any height

The Mirror

ƒ Construction: High quality glass and silvering laminated to a steel backer to prevent separation of shards if broken

ƒ Size:

- 36" models - 28" (711 mm) square

- 30" models - 22" wide x 28" high (559 x 711 mm)

The Mirror Surround

ƒ Construction: Extruded aluminum and sheet steel and powder-coat paint with a matte white finish for light diffusion

The Storage Shelf

ƒ Purpose: to provide uniform light reflection on the performer's face. Provides easy access for accessory storage

ƒ Construction: Medium density fiberboard core and laminate overlay with an easy to clean surface and a matte white finish for light diffusion

ƒ Size:

- 36" models - 36" wide x 12" deep (914 x 305 mm)

30" models - 30" wide x 12" deep (762 x 305 mm)

ƒ Storage surface is 69" (1753 mm) from floor, if hung at the recommended height

The Lighting

ƒ 36" models - Nine medium base sockets provided for 60W incandescents or 15W swirl fluorescents

30" models - Eight medium base sockets provided for 40-60W incandescents or 10-15W swirl fluorescents

ƒ Bulbs are protected by wire cages made from 3/16" (5 mm) diameter steel wire

Cages are permanently mounted and designed for easy bulb replacement (bulbs not included)

The Electrics

ƒ A rocker type switch is mounted on the lower left side of the mirror surround. It controls the lights only

ƒ A 20 amp rated duplex outlet with built in GFCI protection is mounted on the lower right side of the mirror surround

ƒ 24" (610 mm) off flexible conduit and conductors exit the unit beneath the counter, next to the wall

ƒ Note: Separate black conductors are provided for lights and outlet to allow circuit design according to anticipated use and local codes.

ƒ Entire product is UL (underwriter laboratory) approved

ƒ The tackboard (36" models only)

ƒ Construction: White tackable surface mounted in a matte white frame

ƒ Shipped unmounted. May be attached to top, bottom, or side of the mirror

ƒ Size: 6" wide x 28" long (152 x 711 mm)

The Options

ƒ 36" model is available with either under-counter storage cage or lockable sliding drawer, space allows for only one storage option per Studio Makeup Station

Installation

ƒ Wall mounting brackets are included for easy attachment to permanent walls

ƒ Wall mounting brackets incorporate leveling and adjustment feature to aid alignment for multi-unit installation

ƒ When multiple units are installed, adjacent units share a vertical column of bulbs

ƒ Physical Dimensions: - 36" models

Overall width: 40-3/8" (1026 mm) (bulb cage-to-bulb cage)

Overall height: 44" (1118 mm)

Overall depth: 20" (508 mm)

Multi-unit spacing: 36" (914 mm) center-to-center

Weight: 75 lb (34 kg)

- 30" models

Overall width: 34-1/2" (876 mm) (bulb cage-to-bulb cage)

Overall height: 44" (1118 mm)

Overall depth: 20" (508 mm)

Multi-unit spacing: 30" (762 mm) center-to-center

Weight: 65 lb (29.5 kg)

Performance Spaces Makeup Stations

Application Information

36" (914 mm) Studio Makeup Station

30" (762 mm) Studio Makeup Station

Performance Spaces Makeup Stations

Application Information

Technical Sheet

Backstage® Makeup Station

The Backstage Makeup Station will provide performers with a correct and convenient tabletop environment for applying makeup and creating other visual effects. The Backstage Makeup Station includes a large mirror, shadow-free lighting, an electrical outlet, a carry handle, and a grounded power cord.

• 187A011 Backstage Makeup Station with six lights and white accent panels

The Mirror

• Construction: high quality glass and silvering laminated to a steel backer to prevent separation of shards if broken

• Size: 20-3/4"w x 22-3/4"h (527 x 578 mm)

The Mirror Surround

• Construction: extruded matte white aluminum with white accents; rugged powder-coat paint finish; base is shaped for compact storage front-to-back

• Handle on top for transporting is part of mirror surround

The Lighting

• Six medium base sockets provided for 60W incandescents or 15W swirl fluorescents; bulbs are protected by wire cages made from 3/16" (5 mm) diameter steel wire; cages are permanently mounted, but allow easy bulb replacement (bulbs not included)

The Electrics

• A rocker switch and grounded outlet are mounted on the lower right side of the mirror surround

• Switch controls lights only

• Attached power cord is 10' (3048 mm) long and stores itself

• UL® listed; meets NEC (National Electric Code) requirements

The Options

• 187A021 lightweight canvas padded dust cover protects the backstage makeup station from damage and collection of dust

Physical Dimensions

• Overall Width: 33" (838 mm) (bulb cage-to-bulb cage)

• Overall Height: 33-1/4" (845 mm).

• Overall Depth: 9-3/8" (238 mm).

• Storage Depth: 9-3/8" (238 mm) first unit, 6-1/2" (165 mm) each additional unit

• Weight: 35 lb (16 kg)

• Ten-year warranty

33" (838 mm)
(165 mm) Nested View 9-3/8" (238 mm) Side View

Athletic

AirPro® Lockers

GearBoss AirPro lockers give your team rooms the ultimate in ventilation, sanitation and space usage. They create team rooms that stand apart with a durable grid design and multiple color options. They mount off the floor for thorough cleaning and a sanitary team room. Integrated seats remove the need for space-consuming benches. AirPro lockers offer a level of functionality and aesthetics that simply can't be matched by press-metal lockers.

GearBoss® High-Density Storage

GearBoss high-density storage carts create more room in less space – improving space efficiency by as much as 50% – by using an innovative system of tracks and rolling carts. X-Carts™ are designed to move laterally on the track and stay in your equipment room. Team Carts™ are portable and engineered with retractable track guides so you can move the equipment around the room or off campus. Every cart can be reconfigured for maximum storage. Bottom line – you'll get a flexible sports storage system engineered to meet every challenge.

GearBoss® II High-Density Storage System

You will gain more control over the time and money lost to poor organization, lax security and misplaced inventory. This storage system is simply a better way to care for your equipment investments.

GearBoss is an equipment storage and transportation solution designed to transform your equipment room into a point of pride. GearBoss is a highdensity storage solution that uses an innovative system of tracks and rolling carts and accessories to reduce the square footage of your storage area by at least half. GearBoss units are designed to encourage airflow and improve sanitation and odor issues. The modular system features accessories specific for the needs of bulky equipment like helmets and shoulder pads. Accessories like panels and doors can be added for security, and in matching school colors they present an unmistakable message of program pride.

GearBoss® Shelving

This is the affordable, flexible, durable solution for shelving storage and workspace needs. The cantilever design optimizes overhead space and keeps the floor free from supports for extra room. The system is so versatile it can be configured to your specific needs to make sure you get the maximum storage space.

Athletic Equipment Storage

Overview

GearBoss® by Wenger is a complete, state-of-the-art system designed to help with all aspects of your athletic program. From lockers, to storage, to equipment transport and fund-raising solutions, GearBoss products save you time, space, and effort. They're flexible and customizable so your system can change as your needs change. Plus, we'll work with you every step of the way to make sure you get exactly the right system–nothing more, nothing less.

GearBoss innovations are driven by these key principles:

Mobility – Haul equipment and apparel wherever you need it, without hassle

Flexibility – Storage systems and custom lockers that adapt to your changing needs

Organization – Keep track of your equipment and apparel easily with storage and locker rooms that get in order and stay in order

Sanitation – Superior ventilation and anti-microbial surfaces help equipment stay clean, dry and germ-free

Space – High-Density storage and room design services for maximizing every inch of space

Security – Lockable doors and side panels keep apparel and equipment safe and secure

Pride – Equipment and locker rooms that set you apart and reflect your team spirit

Featured Components Include:

GearBoss AirPro® Team Lockers

UltraStor® Custom Casework and Pass-Through Cubby Lockers

GearBoss High-Density Storage

ƒ X-Cart™

ƒ Team Cart™

ƒ SportCart™

GearBoss II High-Density Storage

GearBoss Shelving Mobile Specialties

ƒ TranSport™ Cart

ƒ Mobile Kiosk

ƒ Workstation

Athletic Equipment Storage

AirPro® Lockers

GearBoss AirPro Lockers are a big part of creating a team room that stands apart. A room that gets away from the commercial look of sheet metal solutions. A room that is infinitely more cleanable and as a result, more sanitary, faster drying and better smelling. A team room that carries a high-end aesthetic reflecting your pride and traditions. A team room that saves on floor space with integrated benches that open up your rooms and provide for more effective team meetings.

Island Mount Installation
Wall Mount Installation
Double Tier Seated Configuration
Double Tier Non Seated Configuration

Athletic Equipment Storage

Application Information

Performance Requirements

ƒ Highly durable and easily adaptable to reflect your school's athletic traditions

ƒ Open grid design promotes continuous airflow to encourage faster drying and keep contents free of mildew and odor buildup

ƒ Open design permits easy visual inspection of contents

ƒ Available in island mount and wall mount installations as well as double tier seated and non seated configurations

ƒ Shelf height can be varied specific to your installation with three garment hooks mounted under the shelf

ƒ Locker sizes:

Top of Bracket to Floor

77-3/4" to 79-3/4" (1975 to 2026

Top of Bracket to Floor

to 79-3/4" (1975 to 2026 mm) Stationary Seat

Athletic Equipment Storage

Application Information

Construction

ƒ Frame is constructed of 1-1/4" x 16-gauge steel tubing

ƒ 1/4" (6 mm) steel wire grille sides welded at all intersections with standard 2" x 2" (51 x 51 mm) wire grid pattern

ƒ Adjustable shelf and integrated hinged seat are 3/4" (19 mm) thick formaldehyde free industrial grade composite wood with polyester laminate finish

ƒ Frame, wire grilles, legs and hardware standard finish is Black, additional options are available

ƒ Standard seat and shelf laminate in antimicrobial Graphite finish, other finish options are available

ƒ High-wear laminate is only available in Graphite

ƒ Steel nameplate housing accepts a 12" x 2" (305 x 51 mm) nameplate

Nameplate is mounted to the top grille as standard and mounted to the top door on the double tier shelf configuration

ƒ Garment hooks: One 10-gauge center double hook

Two 12-gauge side single hooks

Two additional 12-gauge side single hooks on double tier configurations

ƒ Mounted 5" to 7" (127 to 178 mm) above floor with open cleanable space under each locker

ƒ Legs at predetermined intervals for additional load support

ƒ UL GREENGUARD Certified - Product certified for low chemical emissions: ul.com/gg - UL 2818

ƒ Shipped ready-to-assemble with detailed instructions, Wenger assembly and installation is available

ƒ ADA-Compliant options

ƒ Ten-year warranty

Note: Width dimensions are calculated from the center of each side tube, as a result 1-1/4" (32 mm) needs to be added to the required installation space for every run of lockers.

Wall space must accommodate an extra 6" (152 mm) in addition to the width of lockers to allow room for installation.

Latch Plate and Door Pivot Locations for Door Ready Option
Door Ready
Grille Door
Wood Door

Athletic Equipment Storage

Application Information

Configurations and Doors

ƒ Available in both wall mount and island mount installations

ƒ Double tier shelf configurations are available

ƒ Full length door options:

- Lockable wood door is 5/8" (16 mm) thick industrial grade composite wood with polyester laminate finish and set inside 1-1/4" (32 mm) x 16-gauge tube frame

- Lockable Grille Door is 1-1/4" (32 mm) x 16-gauge tube frame and welded at all intersections with 1" (25 mm) wire grid pattern

- Wood door and grille door options have a hasp located at the top of the door ready to receive a padlock; door ready option has a hasp under the hinged seat ready to use with a padlock for footlocker content security; padlocks are not supplied

ƒ Double tier compartment door options:

- Lockable wood door is 3/4" (19 mm) thick industrial grade composite wood with polyester laminate finish

- Lockable grille door is welded at all intersections with 1" wide x 4-1/4" high (25 x 108 mm) wire grid pattern

- Wood door and grille door options have a hasp located at the side of the door ready to receive a padlock;padlocks are not supplied

Accessories

ƒ Wood Backer Panel and End Panels are 5/8” (16 mm) thick industrial grade composite wood; color to be selected from the manufacturer’s standard color palette

ƒ Five Sided Foot Locker Security Box

- 18-gauge steel box is bolted to the locker

- 6” wide x 12” long x 11-1/4” high (152 x 305 x 286 mm)

- Powder-coat painted to match the frame

- Not available on double tier configurations

ƒ Football Shoulder Pad and Helmet Topper

- 22” wide x 13-1/4” long x 18-3/4” high (559 x 337 x 476 mm)

- 3/8” (10 mm) diameter welded steel rod frame, does not fit on 15” (381 mm) wide lockers

- Color to be selected from the manufacturer’s standard powder-coat paint palette, Black is standard if no color is selected

- Minimum 30” (762 mm) of clearance is recommended between the top of the locker and the ceiling to allow fitting the equipment

- Not recommended for double tier configurations

ƒ Electrical Kit

- Available for all locker widths

- Not available on double tier configurations

- Black paint finish

- Optional 15 amp receptacle outlet with USB-A and USB-C ports

- Available to order the electrical housing box only, or the box with the electrical outlet

- Must be installed by a licensed electrician

ƒ ADA-Compliant configurations are available

Installation Requirements

ƒ Lockers should be installed on an unfinished floor, tile or epoxy coated concrete flooring

ƒ Any additional floor coverings are to be installed after the lockers to avoid interference with the legs

ƒ Locker banks are installed beginning on the left side and working to the right

ƒ The installation site must be level - no more than 3/4” (19 mm) variation across each bank of lockers

22" (559 mm)

(286 mm)

(476 mm)

Football Shoulder Pad and Helmet Topper
Five Sided Foot Locker Security Box
(47618-3/4" mm) 6" (152mm)

Athletic Equipment Storage

Typical Drawings

AirPro Locker - Sample Configuration

Example of 105 AirPro Locker Configuration - 18" (457 mm) wide AirPro Lockers shown

Athletic Equipment Storage

Typical Drawings

AirPro Locker - Sample Configuration (continued)

Example of 80 AirPro Locker Configuration with Island - 24" (610 mm) wide AirPro Lockers shown

Athletic Equipment Storage

Application Information

GearBoss High-Density Storage

GearBoss high-density storage carts create more room in less space – improving space efficiency by as much as 50% – by using an innovative system of tracks and rolling carts.

X-Carts are designed to move laterally on the track and stay in your equipment room.

Team Carts are portable and engineered with retractable track guides so you can move the equipment around the room or off campus. No more wasted time running back and forth to the storage room.

Every cart can be reconfigured for maximum storage. The best solution includes a mix of X-Carts and Team Carts.

Your Wenger Corporation representative will design the best solution for you.

Bottom line — you'll get a flexible sports storage system engineered to meet every challenge.

Performance Requirements

ƒ Convert traditional storage area into organized, secure high-density space

Construction

ƒ Available in two widths 32" (813 mm) and 48" (1219 mm).

ƒ Roller guides follow the track keeping the units aligned and are made of glass-filled nylon

ƒ Intended for indoor use in normal ambient temperature and humidity conditions — must not be exposed to prolonged outside weather conditions

ƒ Welded chassis made from 16-gauge, 14-gauge and 12-gauge components

ƒ Upright support tubes constructed from large 2" (51 mm) diameter, 16-gauge steel tubing

ƒ Resistant-welded heavy-duty steel wire grille end frames

ƒ Durable powder-coat paint finishes

ƒ Variety of colors available for wire grille ends

ƒ Heavy-duty 6" (152 mm) wheels on the Team Cart or 8" (203 mm) wheels on the X-Cart provide easy movement

ƒ Roof panel constructed from solid 5/8" thermofused composite wood core with aluminum extrusions

ƒ Roof assembly and wire shelf load capacity is 150 lb (68 kg) each evenly distributed Total cart load capacity is 400 lb (181 kg)

ƒ 32" wide x 78" long x 79" high (813 x 1981 x 2007 mm)

ƒ 48" wide x 78" long x 79" high (1219 x 1981 x 2007 mm)

ƒ UL GREENGUARD Certified - Product certified for low chemical emissions: ul.com/gg - UL 2818

ƒ Ten-year warranty

Athletic Equipment Storage

Application Information

Start here and Wenger will put together a proposal.

Firm:

Name:

Title:

Firm:

City/State/Zip:

Phone: _____________________________________ Fax:

E-mail:

Best time and method of contact:

School/Project Name:

City: _______________________________________________________________ State:

Estimated Delivery (quarter & year)

Room Size: (Space #1) Dimensions: Height ____________ Length ____________ Width

Room Size: (Space #2) Dimensions: Height ____________ Length ____________ Width

To receive a site drawing with your proposal, include a copy of the prints, floor plan and elevation showing locations of windows, doors, ventilation, sprinklers and other permanent fixtures.

For a Wenger Corporation representative to provide you with estimates and drawings, also fill out the following to the best of your ability.

Number of Players

Football Male ________ Female ________

Number of Helmets: ________

Preference Hanging ________ Shelved ________

Number of Shoulder Pads:

Preference Hanging ________ Stacked ________

Bball/Sball Male ________ Female ________

Soccer Male ________ Female ________

Basketball Male ________ Female ________

Wrestling Male ________ Female ________

Volleyball Male ________ Female ________

Cross Country Male ________ Female ________

Track Male ________ Female ________

Lacrosse Male ________ Female ________

Please fax or email this form today.

Attn: Athletic Specialist

Fax: 507-455-4258 Phone: 800-493-6437

email: info@wengercorp.com

Number of Players

Spirit Squad

Male ________ Female ________

Dance Male ________ Female ________

Ice Hockey Male ________ Female ________

Field Hockey Male ________ Female ________

Swim/Dive

Tennis

Golf

Other

Other

Other

Wenger Corporation, 555 Park Drive, P.O. Box 448, Owatonna, MN 55060

| 800.493.6437 | +1.507.455.4100

________ Female ________

________ Female ________

________ Female ________

Male ________ Female ________

Male ________ Female ________

Male ________ Female ________

Athletic Equipment Storage

Application Information

GearBoss® X-Cart™

High density storage carts that maximize your space by sliding together and apart along a fixed aluminum track.

Transforming your equipment room into an organized, clean, professional storage space is easy with GearBoss. Our rugged X-Carts create an efficient, smart system of storage that will save space, protect your equipment, and save you loads of time spent organizing.

X-Carts roll laterally along a fixed aluminum track creating aisles between carts when you need to get at your equipment and closing back together when you don't. Carts can be configured with a full range of panels, doors and grilles coordinated with your team colors. You can also add accessories such as doors, helmet hangers, shoulder pad stackers, hanger bars, shelves, dividers, track locks and more. Select colors from the manufacturer's standard pallet.

Athletic Equipment Storage

GearBoss X-Carts Examples

48" wide X-Cart with four 24" wide metal wire shelves and two garment bars

Commonly used to store uniforms (300 - 350 uniforms: jerseys hung; pants/shorts folded)

48" wide X-Cart with eight 24" wide metal wire shelves

Commonly used for folded garment storage (960 - 1000 t-shirts and/or shorts)

48" wide X-Cart with four garment bars

Used for hanging garments (600 - 700 hung jerseys)

Athletic Equipment Storage

GearBoss X-Carts Examples (continued)

48" wide X-Cart with short attic and helmet hangers

Capacity for 154 helmets

(112 helmets hung and 42 helmets in attic)

48" wide X-Cart with tall attic and helmet hangers

Capacity for 175 helmets

(112 helmets hung and 63 helmets in attic)

Athletic Equipment Storage

GearBoss® Team Cart™

High density storage carts that can leave the track and transport your gear wherever you need it. Now it's easy to get your equipment out of storage and to the gym, practice area, parking lot or sidelines – without breaking a sweat.

GearBoss Team Carts retain all the convenient storage benefits of X-Carts but are engineered to leave the track. Imagine all your gear organized on one or two high-density storage carts, traveling wherever it needs to go – and back again. Or park and lock your equipment in a temporary space, instantly creating safe, secure storage anywhere.

Team Cart 3'(914mm) Aisle Recommended

track holds carts in place and guides them as they are moved

Team Cart
Aluminum

Athletic Equipment Storage

GearBoss Team Cart Examples

32" wide Team Cart with two 32" wide metal wire shelves and one garment bar

Commonly used to store uniforms (150 - 175 uniforms: jerseys hung; pants/shorts folded)

wide Team Cart with five 32" wide metal wire shelves

Commonly used to store helmets (70 helmets on shelves)

32" wide Team Cart with seven helmet hangers (8 helmets per hanger or 56 helmets)

32" wide Team Cart with four shoulder pad stackers and one free standing shoulder pad stacker (18 - 25 pads per stacker or 100 pads)

32"

Athletic Equipment Storage

Application Information

Accessories

Truss Bar/Garment Bar

ƒ Designed to be installed into the GearBoss X-Carts or Team Carts using two accessory hanger brackets

ƒ The truss bar is designed to be used with shoulder pad hangers, helmet hangers

ƒ The double-bar construction reduces the swinging motion of hanging equipment

ƒ The garment bar is designed to be used with standard garment hangers, support up to 175 jerseys

ƒ Durable powder-coat paint finish, black

ƒ Shipped ready to be installed, no tools required

ƒ Truss Bar, 1-1/2" x 4" x 75-1/2" long (38 x 102 x 1918 mm)

200 lb (90.7 kg) load rating

ƒ Garment Bar, 1-1/2" diameter x 75-1/2" long (38 x 1918 mm)

100 lb (45.4 kg) load rating

Metal Wire Shelves

ƒ Designed to be installed into the GearBoss X-Carts or Team Carts using four accessory hanger brackets per shelf

ƒ Resistant welded construction of 3/16" and 5/16" (5 and 8 mm) metal wires

ƒ Shipped ready to be installed, no tools required

ƒ The 24" (610 mm) wide shelf allows for shelving half of a 48" (1219 mm) cart or all of the cart with two shelves

ƒ Wire Shelf 24" (610 mm), dimensions 21-5/8" x 74-7/8" (549 x 1902 mm)

Approximate weight: 35 lb (15.9 kg)

ƒ Wire shelf, 32" (813 mm), dimensions 27-5/8" x 74-7/8" (702 x 1902 mm)

Approximate weight: 40 lb (18.1 kg)

ƒ Rated for 150 lb (68 kg) evenly distributed

Metal Wire Shelves
Truss Bar
Garment Bar
Hanger Bracket (included)

Athletic Equipment Storage

Application Information

Accessories (continued)

Soft Cart Divider

ƒ Mesh divider allows you to divide a 48" (1219 mm) wide GearBoss cart lengthwise. The mesh dividers allow visibility through the cart.

Helmet Hangers

ƒ Designed to be used with the truss bar, 7 helmet hangers per truss bar

ƒ Accommodates 8 helmets

ƒ Welded construction using 5/16" and 1/4" (8 and 6 mm) steel wires

ƒ Powder-coat paint finish, black

ƒ Approximate Weight: 5 lb (2.3 kg)

Shoulder Pad Hangers

ƒ Designed in short and long versions

ƒ Designed to be used with the truss bar, 15 shoulder pad hangers of each size per truss bar

ƒ Welded construction using 5/16" (8 mm) wire and 12 gauge formed plate

ƒ Powder-coat paint finish, black

ƒ Shoulder Pad Hanger, short. Approximate weight: 1 lb (0.5 kg)

ƒ Shoulder Pad Hanger, long. Approximate weight: 2 lb (0.9 kg)

Island Stop

ƒ Designed to be permanently installed as an end stop for the GearBoss Carts

ƒ Welded frame constructed of durable 2" (51 mm) diameter x 16 gauge steel tubing

ƒ Durable powder-coat paint finish, black

ƒ Dimensions are 9-5/8" wide x 42-3/4" long x 30-1/2" tall (244 x 1086 x 775 mm)

ƒ Approximate weight: 24 lb (10.9 kg)

ƒ Shipped fully assembled

Full Length Soft Cart Divider
Island Stop
Helmet Hangers
Shoulder Pad Hangers

Athletic Equipment Storage

Application Information

Accessories (continued)

Shelf Lip

ƒ Secures with the same knobs as the dividers and can be set up with the tall side out for a 4" (102 mm) lip or the short side out for a 2.5" (63 mm) lip

Bat Holder

ƒ 32" bat holder holds up to16 bats

Adjustable Track Lock

ƒ Designed to prevent carts from rolling beyond the end of the tracks

Adjustable Track Stop Bracket

ƒ Designed to lock the carts into position along the track

32" Bat Holder
Adjustable Track Stop Bracket
Adjustable Track Lock
Full Length Shelf Lip

Athletic Equipment Storage

Application Information

Accessories (continued)

Shoulder Pad Stacker

ƒ Designed to store and or transport approximately 18-25 shoulder pads depending on pad style

ƒ Support tubes constructed of durable 3/4" (19 mm) x 16 gauge steel tubing

ƒ Specially molded support preserves pad shape

ƒ The molded support is vertically adjustable to accommodate pads with shallow or deep chest protection

ƒ Durable powder-coat paint finish, color black

ƒ Equipped with wheels, for mobility, when used as a stand-alone device

ƒ Overall dimensions, 31-21/32" wide x 64-3/4" high (804 x 1645 mm)

ƒ Approximate weight, 31 lb. (14.1 kg)

ƒ Intended use is with the 32" (813 mm) X-Carts, Team Carts and GearBoss II or as a free standing shoulder pad storage and transportation device

ƒ Not intended to be used with and will not work with carts equipped with the side closure accessory or the bypass door accessory

Attic

ƒ Attics are available in two heights 25-5/8" (651 mm) and 37-5/8" (956 mm)

ƒ Welded end frames made from 2" (51 mm) diameter x 16 gauge steel tubing

ƒ Resistant welded heavy-duty steel wire grill end frames

ƒ Durable powder-coat paint finish

ƒ Roof panel constructed from solid 5/8" (16 mm) thermofused composite wood core with aluminum extrusions, the roof assembly is rated for 150 lb (68 kg) load

ƒ Designed to be accessorized with the 24" (610 mm) wide wire shelves

ƒ Approximate weights:

- Short attic, 115 lb (52 kg)

- Tall attic, 123 lb (56 kg)

ƒ Designed only to be used on the 48" (1219 mm) X-Cart

37-5/8" (956 mm)

64-3/4" (1645 mm)

(356mm)

25-5/8" (651 mm) (80431-21/32" mm)

Shoulder Pad Stacker
Short Attic
Tall Attic
77-1/4"(1962mm)
47-3/4"(1213mm)
77-1/4"(1962mm) 47-3/4"(1213mm)

Athletic Equipment Storage

Application Information

Accessories (continued)

Solid End Closure

ƒ Made from solid 5/8" wood composite with polyester laminate finish and black heavy-duty PVC edge banding

ƒ Can be ordered in a variety laminate colors

ƒ Provides an excellent space for team logos

ƒ Adds a level of security to carts

ƒ Cart end closure, 32" (813 mm)

ƒ Dimensions: 27-1/4" x 64-5/16" (692 x 1634 mm)

Approximate Weight: 25 lb (11.3 kg)

ƒ Cart end closure, 48" (1219 mm)

ƒ Dimensions: 43-1/4" x 64-5/16" (1099 x 1634 mm)

Approximate Weight: 48 lb (21.8 kg)

Three Piece Solid Side Closure Accessory

ƒ Made from solid 5/8" wood composite with polyester laminate finish and black heavy-duty PVC edge banding

ƒ Can be ordered in a variety laminate colors

ƒ Securely closes one side of cart opposite open side or opposite a bypass door adding a level of security to carts

ƒ Shipped ready-to-assemble

ƒ Dimensions: 65" x 73" (1651 x 1854 mm)

ƒ Approximate Weight: 75 lb (34 kg)

Bypass Doors Accessory

ƒ Made from solid 5/8" wood composite with polyester laminate finish and black heavy-duty PVC edge banding

ƒ Can be ordered in a variety laminate colors

ƒ Easy glide aluminum track provides convenient access

ƒ Sliding doors lockable with padlock (not supplied) for added security

ƒ Shipped ready-to-assemble

ƒ Dimensions: 65" x 73" (1651 x 1854 mm)

ƒ Approximate Weight: 86 lb (39 kg)

Solid End Closure
Three Piece Solid Side Closure
Bypass Doors

Athletic Equipment Storage

Application Information

GearBoss® SportCart™

Compact GearBoss SportCarts can be used as part of a larger GearBoss installation or as a mobile, stand-alone solution. They are designed for use in small spaces and for sports that require less storage. Four heavy-duty, 5" swivel casters make mobility a snap. The nimble SportCart will navigate narrow hallways, shorter door openings and most elevators. It's the small-space storage solution.

Performance Requirements

ƒ High density storage on or off the track

ƒ Heavy-duty commercial-grade swivel casters for easy moving on hard surfaces such as concrete, gym floors, tile and low-pile unpadded carpet

ƒ UL GREENGUARD Certified - Product certified for low chemical emissions: ul.com/gg - UL 2818

Construction

ƒ Welded chassis made from 16-gauge, 14-gauge and 12-gauge components

ƒ Upright support tubes constructed from large 2" (51 mm) diameter, 16-gauge steel tubing

ƒ Resistant welded heavy-duty steel wire grille end frames

ƒ Variety of colors available for wire grille ends

ƒ Extra wide heavy-duty 5" (127 mm) swivel casters made from glass-filled nylon with polyurethane non-marring outer roller guides

ƒ Roof panel constructed from solid 5/8" thermofused composite wood core with aluminum extrusions

ƒ Roof assembly load capacity is 150 lb (68 kg) evenly distributed Total cart load capacity is 400 lb (181 kg)

ƒ 32" (813 mm) wide x 41-3/4" (1060 mm) long x 73" (1854 mm) high

ƒ Ten-year warranty

Accessories

Swing Door & Side Closure

ƒ Swing door lockable with padlock (not supplied) for added security

ƒ Made from solid 5/8" wood composite with polyester laminate finish and black heavy-duty PVC edge banding

ƒ Can be ordered in a variety laminate colors

ƒ Dimensions: Swing Door 34-1/8" x 63-1/2" (867 x 1613 mm)

ƒ Side Closure 34-7/8" x 65-5/8" (886 x 1667 mm)

ƒ Approximate Weight: Swing Door 52 lb (24 kg)

ƒ Side Closure 41 lb (19 kg)

Garment Bar

ƒ Designed to be installed using two included hanger brackets

ƒ Designed to be used with standard garment hangers and supports up to 80 jerseys

ƒ Durable black powder-coat paint finish

ƒ Dimensions: 37-1/2" (953 mm) x 1-1/2" OD"

ƒ Rated for 100 lb (45 kg) weight evenly distributed

Metal Wire Shelves

ƒ Designed to be installed using four included hanger brackets per shelf

ƒ Resistant welded construction of 3/16" and 5/16" (0.1875" and 0.3125") metal wires

ƒ Rated for 150 lb (68 kg) evenly distributed

ƒ Dimensions: 27-5/8" x 37" (702 x 940 mm)

ƒ Approximate Weight: 20 lb (9 kg)

73" (1854 mm)
SportCart
(106041-3/4" mm)withhandle
32" (813mm)
Garment Bar Accessory
Swing Door & Side Closure Accessory Wire Shelf Accessory
Hanger Bracket (included)

Athletic Equipment Storage

Sport Cart Examples

SportCart with three metal wire shelves

Commonly used for folded garments (160 - 200 folded t-shirts and/or shorts)

SportCart with two metal wire shelves and one garment bar

Commonly used for uniforms (80 uniforms: 80 hung jerseys; 80 folded pants/shorts)

SportCart with two garment bars

Commonly used for uniforms (160 hung jerseys; 1/2" spacing)

Athletic Equipment Storage

Application Information

GearBoss II High-Density Storage System

The newest high-density storage system from Wenger Corporation joins our successful Team and X-Carts in creating athletic equipment storage rooms that make better use of available space. With this new system you get the same space-saving organization as our existing carts in a simplified system with a budget-friendly price.

You will gain more control over the time and money lost to poor organization, lax security and misplaced inventory. This storage system is simply a better way to care for and secure your equipment investments.

Performance Requirements

ƒ Convert traditional storage area into organized, high-density space

ƒ Fixed track system creates a movable aisle to maximize otherwise wasted space and allow interior access to the carts and surrounding area

ƒ Intended for indoor use in normal ambient temperature and humidity conditions — must not be exposed to prolonged outside weather conditions

ƒ Open grille design improves airflow and facilitates visibility

Construction

ƒ Dimensions: 32.5"w x 79"h x 72.7"d (826 x 2007 x 1847 mm)

ƒ Welded chassis made from 16-gauge, 14-gauge and 12-gauge components

ƒ Upright support tubes constructed from large 2" (51 mm) diameter, 16-gauge steel tubing

ƒ Resistant-welded heavy-duty steel wire grille end frames with 3" (76 mm) grid spacing

ƒ Heavy-duty cast iron 6" (152 mm) wheels provide easy movement and keep the units aligned

ƒ Durable powder-coat paint finish Black bases, shelves and garment bars Silver tubes and grille

ƒ Top shelf and adjustable shelf load capacity is 150 lb (68 kg) each evenly distributed Total cart load capacity is 500 lb (227 kg)

ƒ Ten-year warranty

Standard Components

ƒ Cart includes a garment bar integrated into the top panel, one adjustable-height shelf and one 6' (1829 mm) floor track.

Accessories

ƒ Additional adjustable shelves

ƒ Adjustable 12-gauge 1-1⁄2" diameter steel garment bars finished in black powder-coat paint

ƒ Side security grid is constructed of 14-gauge formed metal brackets, 3⁄16" and 5⁄16" steel wire grilles and finished with black powder-coat paint

ƒ Floor lock assembly holds carts together and is locked with a customer-provided lock for added security

ƒ Track stop

(184772.7"mm)
32.5" (8260mm)
79" (2007 mm)
Side Security Grid with Floor Lock Track Stop
Shelf
Top Shelf with Integrated Garment Bar

Athletic Equipment Storage

GearBoss II Examples

GearBoss II standard components includes one integrated garment bar and one adjustable height shelf

Commonly used to store uniforms (140-150 hung jerseys on garment bar or pants/shorts folded)

GearBoss II with one integrated garment bar, one adjustable height shelf and three additional adjustable height shelves

Commonly used to store uniforms and helmets (8-10 helmets on cart floor, four and on cart roof or nested shoulder pads 8-10 per shelf. 48-60 helmets or shoulder pads or misc folded pants/shorts/pads)

GearBoss II with integrated garment bar and six helmet hangers

Used for storing helmets (48 helmets hung and 10-12 on roof)

GearBoss II with integrated garment bar and three shoulder pad stackers and one free standing shoulder pad stacker (18 - 25 pads per stacker)

Athletic Equipment Storage

Application Information

GearBoss Shelving

This is the affordable, flexible, durable solution for shelving storage and workspace needs. It works great for athletic, music and marching band storage; and theatre garment and prop storage. The cantilever design optimizes overhead space and keeps the floor free from supports for extra room. The system is so versatile it can be configured to your specific needs to make sure you get the maximum storage space.

Performance Requirements

ƒ Cantilever design keeps the floor open for carts and flexible use

ƒ Intended to be installed on floors with less than 1” (25 mm) of variation over the run of shelving

ƒ Holes at 1" (25 mm) increments provide easy adjustability

ƒ Shelves are adjustable by hand – no tools required

ƒ Each bay is load-rated at 1,000 lb (450 kg) (if installation instructions are strictly followed)

ƒ Spans doors and windows, if necessary

ƒ Easy to install and relocate

ƒ Uprights and mounting brackets are zinc-plated to avoid rust

Construction

ƒ Available in bays 4'w x 8'h (1219 x 2438 mm), custom heights are available

ƒ Shelf supports are 14-gauge 7/8" (22 mm) square tube-steel with silver powder-coat paint finish

ƒ Aluminum shelf fronts feature a 3/8" (10 mm) lip to retain a hardboard insert or work surface option

ƒ Ten-year warranty

Athletic Equipment Storage

Application Information

Accessories

Shelves, 30-1/2" and 17-1/2"

ƒ 30-1/2" (775 mm) cantilevered shelf with 4 support tubes spaced 5-1/4" (133 mm)

ƒ 17-1/2" (445 mm) cantilevered shelf with 2 support tubes spaced 5-1/4" (133 mm)

ƒ Shelves can be mounted and adjusted in 1" (25 mm) increments without tools

ƒ Both shelves fronted with a contoured aluminum extrusion with a 3/8" (10 mm) lip to retain a hardboard insert

ƒ Each shelf is rated for 250 lb (113 kg) evenly distributed, not to exceed 1,000 lb (454 kg) per bay

ƒ All steel parts have a durable silver powder-coat paint finish

ƒ Shelf brackets are formed 12-gauge steel

ƒ Shelf support are 14-gauge 7/8" (22 mm) steel tubes

Work Surface Panel

ƒ 29-1/4" (743 mm) x 45-3/4" (1162 mm) panel lays directly inside a 30-1/2" shelf

ƒ 1-1/8" (29 mm) graphite polyester laminated particle board with PVC edge banding - black only

Drawer

ƒ Mounts to underside of a work surface panel accessory for a 30-1/2" shelf

ƒ 14-gauge steel construction

ƒ Durable black powder-coat paint finish

ƒ Rated for 100 lb (45 kg) evenly distributed

Garment Bar/Hanging Bar

ƒ 48" (1219 mm) x 14-gauge x 1-1/2" (40 mm) round steel tube

ƒ All steel parts have a durable black powder-coat paint finish

ƒ Durable black powder-coat paint finish

ƒ Mounts to underside of shelves without tools

ƒ Rated for 100 lb (45 kg) evenly distributed

ƒ Interchangeable companion products:

- Football helmet hanger

- Shoulder pad hanger - long

- Shoulder pad hanger - short

Lock Box

ƒ Door is hinged at the bottom so it can drop and stay open for easy access

ƒ Sides, top and bottom panels are 16-gauge steel

ƒ Features upper and lower contoured aluminum extrusions

ƒ Laminated wood door with keyed lock

ƒ Door is 5/8" (16 mm) graphite pebble polyester laminated board with PVC edge banding - black only

ƒ Rated for 100 lb (45 kg) evenly distributed

ƒ Mounted and adjustable without tools

ƒ Dimensions: 16" x 18" x 46" (406 x 457 x 1168 mm)

Peg Board Back

ƒ Mounts directly onto existing shelf banks

ƒ Rated for 40 lb (18 kg) evenly distributed

ƒ The 1/4" thick peg board material is not supplied by Wenger Corporation and must be purchased separately

Lock Box
Garment Bar
Work Surface Panel
Drawer
17-1/2" Shelf
30-1/2" Shelf

Athletic

GearBoss Sample Layouts

GearBoss Carts and Shelving

Athletic Equipment Storage

Typical Drawings

GearBoss Sample Layouts (continued)

GearBoss Carts and Shelving (continued)

Athletic Equipment Storage

Typical Drawings

GearBoss Sample Layouts (continued)

GearBoss Carts and Shelving (continued)

Athletic Equipment Storage

Application Information

Miscellaneous information

Technical Sheets are included for:

ƒ TranSport Cart

ƒ Mobile Kiosk

ƒ Workstation

Athletic Equipment Storage

Application Information

TranSport Cart

The GearBoss TranSport Cart is another Wenger innovation designed specifically for the needs of athletic programs. The TranSport cart makes it easier than ever to move a variety of equipment through your facility and out to the field. And in just a few seconds it is easily transformed into a rock-solid table for use on the sidelines or anywhere in the facility. Practices. Games. Travel. The TranSport Cart goes everywhere your coaches and trainers go.

Intended Use

• Transport of gear within facility and outdoors to fields and points of use

• Converts to table for use as work surface, sideline table or trainer's table

• End braces fold for compact storage when not in use or when put in truck, trailer or plane

• Intended for trailering behind slow-moving motorized vehicles such as Gators™ golf carts, lawn tractors, ATV's etc. Not to exceed 10 mph (16 km)

Cart Specifications

• Part number: 240A003

• Heavy-duty chassis construction

• Chassis is 1-1/4" (32 mm) 16-gauge tube steel+1-1/4" (32 mm) square tube cross sections

• Powder-coat paint and finish

• Aluminum deck finished in UV and chemical-resistant powder-coat

• Pneumatic 10" (254 mm) wheels, outdoor treads, sealed ball bearings

• Comfort-grip pull handle transitions to pin-hitch for motorized vehicle, 1-1/4" (32 mm) 14-gauge steel with wing nut and pivot joint

• Front wheels turn on central, permanently lubricated bearings and king-pin

• End braces fold flat to deck for storage and rotate under deck to function as table legs. Made of 1-1/4" (32 mm) 14-gauge powder-coated steel tube

• 15-1/2" (394 mm) storage height, 32" (813 mm) table height

• 30" wide x 66" long (762 x 1676 mm) deck, 71-1/2" (1816 mm) total length

• Dynamic maximum load rating 1,000 lbs (454 kg)

• Total cart weight 150 lbs (68 kg)

• Ten-year warranty

Accessories

• Heavy-duty mesh cart wrap encloses loaded cart and quickly snaps on and off.

Athletic Equipment Storage

Application Information

GearBoss® Mobile Kiosk

The Mobile Kiosk is a self contained, mobile merchandising kiosk that allows you to follow your fans, wherever they go. All of your logo gear is neatly secured inside the enclosed unit while moving from venue to venue. Panels open up in seconds to create your kiosk. Eight removable bins allow different athletic programs, boosters or school clubs to keep inventory in their own bin. Move beyond candy sales and car washes to real revenue generation.

Intended Use

• This product is intended for indoor and outdoor use in normal ambient temperature and humidity conditions; Exposing the mobile kiosk to rain or excessive moisture could result in damage

• Organize school spirit items for sale at multiple locations

• Travels to the gym, field, parking lot, school hall

• Move your fund raising efforts to a new level Specifications

• Part number 240B007

• Heavy-duty chassis construction

• Hand break for easy mobility

• Chassis is 1-1/4" (32 mm) 16 gauge tube steel with 1-1/4" (32 mm) square tube cross sections

• Canopy – 0.10 inch thick aluminum attached to 18 gauge tube weldment

• Side doors – 3/4" thermofused composite wood core

• Front fold-down doors – 5/8" thermofused composite wood core

• 42" (1067 mm) counter height

• Pneumatic 10" (254 mm) wheels with outdoor treads and sealed ball bearings

• Closed dimensions: 72"w x 31"d x 77"h (1829 x 787 x 1956 mm)

• Open dimensions:

119-1/2"w x 90"h x 58"d (3035 x 2286 x 1473 mm)

• Bin measurements (eight bins per cart): 14-3/16"w x 11-1/8"h x 27-3/4d (360 x 283 x 705 mm)

• Display panel measurements:

- Side doors - 26-3/8"w x 61"h (670 x 1549 mm)

- Back doors - 62-5/8"w x 31-3/4"h (1591 x 806 mm)

mm)

(1067 mm)

• Slat wall starter kit - one basket, two waterfalls, eighteen hooks

• Slat wall is reinforced with aluminum channels to accept heavier loads and a wide variety of retail display hardware

• 39" (991 mm) long roof mounted LED light

• Power strip with cord

• UL GREENGUARD Certified - Product certified for low chemical emissions: ul.com/gg - UL 2818

• Weight (empty): 550 lb (249.5 kg)

• 800 lb (363 kg) maximum load tires

• Ten-year warranty

(1473 mm)

(3035 mm)

Athletic Equipment Storage

GearBoss® Workstation

The equipment room is a hub of activity. Helmets are assembled and decaled, equipment is inspected and repaired, hundreds of jerseys and garments are folded, lunch is eaten, meetings are held. If you are using folding tables, boxes or the floor to make it happen, it's time to step up to the GearBoss Workstation. Ergonomically perfect at 42" (1067 mm) high the workstation features a tough 1" (25 mm) wood laminate surface. The entire Workstation rolls easily on casters keeping your space transitional to ever-changing activities. Built like a GearBoss Storage Cart, you can add optional, adjustable grille shelves and locking bypass doors.

Intended Use

• The GearBoss Workstation is intended for indoor use in normal ambient temperature and humidity conditions; Components must not be exposed to prolong outside weather conditions

• The heavy-duty commercial-grade swivel casters are intended for easy moving on hard surfaces such as concrete, gym floors, tile and low pile unpadded carpet

• Roller guides follow the track and can be recesses into clip holder when the cart is being used for transport

Specifications

• 241A050 Includes one bypass door set and one side closure 384 lb (174 kg)

241A052 Includes two bypass door sets 388 lb (176 kg) 241A053 No doors included 314 lb (142 kg)

• 80"w x 42"h x 32"d (2032 x 1067 x 813 mm)

• Welded chassis made from 16-gauge, 14-gauge and 12-gauge components

• Upright support tubes constructed from large 2" (51 mm) diameter, 16-gauge steel tubing

• Resistant welded heavy-duty steel wire grille end frames with 1" (25 mm) grid openings

• Durable powder-coat paint finishes

• Includes one adjustable steel wire grille shelf finished in black powder-coat paint; Additional shelves are available

• Optional locking bypass doors are constructed from solid 5/8" wood composite with graphite polyester laminate finish and black heavy-duty PVC edge banding; Padlock is not supplied

• Heavy-duty 6" swivel casters with polyurethane non-marring outer

• Top panel constructed from solid 5/8" thermofused composite wood core with aluminum extrusions and topped with a 1" (25 mm) graphite laminate work surface rated for a 150 lb (68 kg) load

• UL GREENGUARD Certified - Product certified for low chemical emissions: www.ul.com/gg - UL 2818

• Shipped fully assembled

• Ten-year warranty

Workstation

Delivery and Installation

Wenger Corporation delivery and installation services are two great advantages of buying direct. At your option, we will package, ship, and install your order with the care and understanding that only the product's manufacturer can provide. Wenger Corporation drivers and installers are experienced professionals who are intent on meeting your needs and providing the service you expect.

Programming /Planning Guides

New construction and renovation resources for facility planning. One of Wenger Corporation's strengths is music facility planning. The Music Suite is a complex environment with many different areas and unique dynamics. Wenger Corporation provides free Planning Guides that identify and explain these dynamics and needs. Wenger Corproation has the experience and resources to assist your design team in planning for music, theatre and athletic facilities. We want to work together to help deliver the best products and services for outstanding education and performance results – and no surprises down the road.

"Wenger's AIA/CES presentation was very informative and worthwhile. Acoustics is a tricky subject – there are many wives' tales and urban legends. We learned the facts, including practical knowledge, rules of thumb and other useful information that will help us explain and defend our designs.

"We continue to choose Wenger products because of the quality of the design. You truly get what you pay for – and Wenger quality is clearly unsurpassed in the industry. Other companies bid lower because their products cost less, because they are worth less."

Michael Shpur, Architect for School Facilities Montgomery County Public Schools, Rockville, Maryland

"I think it's a valuable that Wenger can offer school districts a single source of responsibility capable of delivering an entire package of products and acoustical solutions.

"Wenger's Planning Guide included useful information, such as recommended room sizes and ceiling heights. It was a helpful document, and also provided the music department with documented justification for their requests."

Michael S. Ruetschle, AIA, Architect Ruetschle Architects, Dayton, Ohio

"I've been working in this field for almost 30 years – the Wenger Planning Guide has been on my desk for a long time. I use it extensively for all the programming and planning we do. It's an excellent resource."

Richard T. Connell, AIA, Principal S/L/A/M Collaborative, Glastonbury, Connecticut

"We try to be good stewards of our client's money. I honestly think that Wenger does some things much better than anybody else. I find Wenger's Planning Guide very helpful when working with school personnel."

David Minnigan, Senior Design Architect/ Principal Earl Swensson Associates, Inc., Nashville, Tennessee

"The quality and history of Wenger products speaks for itself. It's worth paying a little bit more when you know something is going to last. Wenger equipment is sturdy and very easy to use."

Susan Scheibler, Fine Arts Coordinator & Choir Director Blue Valley Southwest High School, Overland Park, Kansas

"Wenger provides the total package – from well-designed, durable products to planning assistance and expert installation. The Wenger installers were very professional, knowledgeable, efficient and clean. Their caring attitude speaks volumes about the company."

Earl McConnell, Band Director East Fairmont High School, Fairmont, West Virginia

"I've purchased Wenger equipment for over thirty years for music programs in Texas, Ohio, Japan, India, Egypt and now Oman. I've learned to trust the quality and durability of the products and the professionalism and integrity of the people at Wenger."

Tim Willson, Instrumental Music Teacher American Intl. School of Muscat (TAISM), Oman

"When you think music, you think Wenger. Wenger products last for years, which says a lot about the company behind them. I've known the Wenger name for more than 20 years from teaching, clinics and festivals. The company is an icon of music."

Wm. Shane Williams, Associate Professor of Music Lindenwood University, St. Charles, Missouri

"Wenger's Planning Guide was an extremely valuable resource throughout the process – from design through construction. It answered a lot of my questions, including about cubic volume and sound isolation. During construction, the Guide helped me be the on-site music room expert."

Anthony H. Bailey, Director of Bands Hart High School, Newhall, California

www.wengercorp.com

https://www.wengercorp.com/ specifications/index.php

http://performance.wengercorp. com/product/irigging-app/ #fndtn-about-irigging

http://www.wengercorp.com/ home/architects.php

http://products.construction.com/

https://www.wengercorp.com/ music-suite-new/models/ models.html

https://www.youtube.com/user/ WengerCorp

http://performance.wengercorp. com/facilities/

https://www.wengercorp.com/ green-initiatives.php

Resources Planning Guides

Wenger Corporation Acoustics Primer

This is an ideal resource to help you understand how acoustics work within a space so you can achieve the best possible sound quality.

Wenger Corporation Acoustic Problems and Solutions Guide

Your complete guide to understanding all you can do to create a facility that best enhances music teaching and learning.

Wenger Corporation Planning Guide

Everything you need to understand the new construction process and what you can do to most effectively organize your objectives to make sure your new school music facility is the best it can be.

Wenger Corporation Athletic Facility Planning Guide

A "best practices" guide for achieving greater efficiencies within the athletic equipment facility.

Rigging Guide for Performance Spaces

Our design guide provides an overview of rigging system design and the major decisions made during the design process.

Wenger Corporation is a Registered Provider with The American Institute of Architects Continuing Education Systems.

Wenger Corporation Performance Spaces

Everything you need to understand the new construction process and what you can do to most effectively organize your objectives to make sure your new performance space is the best it can be.

Wenger Corporation Elementary Music Planning Guide

What you need to know if you're planning space for beginning students.

Turn static files into dynamic content formats.

Create a flipbook
Issuu converts static files into: digital portfolios, online yearbooks, online catalogs, digital photo albums and more. Sign up and create your flipbook.