VC Portfolio

Page 1

VICTORIA

CARNES Interior Design Portfolio
STUDIO WORK PROJECT 01 SHINJUKO GRANDE HOTEL PROJECT 02 NEXT OFFICE PROJECT 03 TEA ROOM CAFE PROJECT 04 FURNITURE DESIGN
PROFESSIONAL WORK PROJECT 05 MONSTER CRAVINGS PROJECT 06 APPLEBY BRANCH LIBRARY PROJECT 07 BRYANT RESIDENCE PROJECT 08 KITCHEN REMODEL PROJECT 09 NSH WOMENS SPECIALIST

Project 01

SHINJUKO GRAND HOTEL

STUDIO IV GROUP

PROJECT 2021

30 FLOORS

Description

Software: AutoCAD, 3DS MAX

Program: Located in Tokyo, Japan, the Shinjuku Grand Hotel centers around the theme of transience. The focus is on the idea of impermanence and how that relates to hotels being a place of in-between. Your stay is just a short time in your life, yet leaves such a lasting memory. The idea of transience flows well with the concept of wabi-sabi and Japanese values as it sees the ebb and flow of time, happiness, harmony.

*Not my rendering

PRODUCED BY AN AUTODESK STUDENT VERSION

PRODUCED BY AN AUTODESK STUDENT VERSION

PRODUCED BY AN AUTODESK STUDENT VERSION

PRODUCED BY AN AUTODESK STUDENT VERSION

PRODUCED BY AN AUTODESK STUDENT VERSION

PRODUCED BY AN AUTODESK STUDENT VERSION

PRODUCED BY AN AUTODESK STUDENT VERSION

PRODUCED BY AN AUTODESK STUDENT VERSION

PRODUCED BY AN AUTODESK STUDENT VERSION 1st Floor 2nd Floor 3rd Floor

PRODUCED BY AN AUTODESK STUDENT VERSION

Space planning and concept development were a group effort and each individual had focus spaces. Above are the three lower floors that my group space planned taking into consideration hotel operations and human experience. The following spaces are my individual focus spaces.

Floors 5-25

Deluxe A/ B Guest Rooms
Reflected Ceiling Plan Key Recessed Can Chandelier Pendant Sconce 1 Veneer 2 upholstry 3 Upholstry 4 marble 5 LVT 1 2 3 4 5 400 200 100 50 PRODUCED BY AN AUTODESK STUDENT VERSION
BY AN AUTODESK STUDENT VERSION
STUDENT VERSION
PRODUCED
PRODUCED BY AN AUTODESK
0 400 200 100 50 PRODUCED BY AN AUTODESK STUDENT VERSION PRODUCED BY AN AUTODESK STUDENT VERSION PRODUCED BY AN AUTODESK STUDENT VERSION Executive Suites Floors 26-27 Reflected Ceiling Plan Key Recessed Can Chandelier Pendant 1 Veneer 2 BRonze 3 Upholstry 4 Marble 5 LVT 1 2 3 4 5
28 PRODUCED BY AN AUTODESK STUDENT VERSION PRODUCED BY AN AUTODESK STUDENT VERSION PRODUCED BY AN AUTODESK STUDENT VERSION Reflected Ceiling Plan Key Recessed Can Chandelier Pendant Sconce Linear 1 Veneer 2 Veneer 3 Upholstry 4 Upholstry 5 LVT 1 2 3 4 5
Deluxe Suites Floor
Restaurant Floor 30
Recessed Can Pendant 1 Pendant 2 Sconce Linear
1 LVT 2 Marble 3 Vinyl Upholstry 4 Veneer 5 Stone 1 2 4 3 5
PRODUCEDBYAN AUTODESK STUDENT VERSION ANBYPRODUCED AUTODESK STUDENT VERSION ANBYPRODUCED AUTODESK PRODUCEDBYAN AUTODESK STUDENT VERSION Reflected Ceiling Plan Key
vesta

Project 02 NEXT OFFICE

STUDIO III INDIVIDUAL PROJECT 2020

11,500 SQFT

Description

Software: Revit/ Enscape/ Photoshop

Program: NEXT is a global technology company specializing in all aspects of health and wellness to improve the general happiness of people all over the world. As part of creating a diverse talent base as well as offering staff more opportunity to work remote, NEXT will be opening their first of many planned satellite offices in Atlanta, GA. Along with this satellite expansion, NEXT is also providing a more robust option to an already progressive work from home policy.

This monumental staircase was inspired by the unique shape of the building and also mirrors the design concept for the space. NEXT and their progressive, team based work culture can utilize these stairs to hold impromtu meetings, host individual work, or just serve as a unique visual in their space.

Sistema Lounge System by Coalesse Enea Altzo Dining by Coalesse Verlay Table by Steelcase Terrazo Workcafe Steelcase Upholstry Steelcase Upholstry

Level 1 RCP

Gypsum 13’ 0” AFF

Gypsum 11’ 6” AFF

Gypsum 11’ 8” AFF

Cross Beam Ceiling 12’ 0” AFF

2 Story Space

Sound Absorbing Pendant Light | Valaisin Grönlund

Suspended LED Strip | Cooper

Halo Pendant Light | Planlicht

Recessed LED Downlight | Cooper

Level 2 RCP

Gypsum 11’ 6”

Gypsum 13’ 0”

Gypsum 11’ 3”

Cross Beam Ceiling 13’ 0”

Gypsum 12’ 4”

Gypsum 11’ 0”

Circular Acoustic Pendant Light | Valaisin Grönlund

Suspended LED Strip | Cooper

Acoustic Cylinder Pendant | Light Art

Recessed LED Downlight | Cooper

Acoustic Ceiling Panel | Ecophon

LED Nano Pendant | Lumen Pulse

LED Suspended Globe Chandelier | Tech Lighting

Project 03

TEA ROOM CAFE

STUDIO III INDIVIDUAL PROJECT 2020

1,800 SQFT

Description

Software: Revit/ Enscape/ Photoshop

Program: A historic brick building on a neighborhood corner is being converted into a tea-room. This tea room cafe, deriving from a traditional Japanese tea-house, must perform as an abode of fancy while meeting its customer’s needs and wants. This restaurant-like space will serve tea, coffee, and pastries from a walk-up bar or several small tables inside or on the patio.

The custom shape for the bar plays into the art deco style throughout the space while also providing ample space for food prep and supply storage. Using curves on the end of the bar and front appliques ties in nicely with the arched mirrors and the brass footrest adds to the vintage feel.

*Dimensions are in inches

DRAWN CHECKED APPROVED Victoria Carnes 1883 4 38 48 1821 4 38 81 2 12 24 24 R18 R18 1643 4 71 103 4

FURNITURE DESIGN

STUDIO III INDIVIDUAL PROJECT 2021

Project 04

PRODUCED BY AN AUTODESK STUDENT VERSION

3'-61 8 1'-13 4 1'-1 9 16 1'-1 9 16 1' 1'-11 4 " R6" R65 8 " 1' 2'-813 16
STUDENT VERSION
AUTODESK

PAULA PRODUCT

DESIGN ASSISTANT 2021-2022

Project 05
MONSTER CRAVINGS

Project 06

Project 06

APPLEBY BRANCH LIBRARY

APPLEBY BRANCH LIBRARY

STUDIO 3 DESIGN GROUP

INTERNSHIP 2021

STUDIO 3 DEISGN GROUP

INTERNSHIP 2021

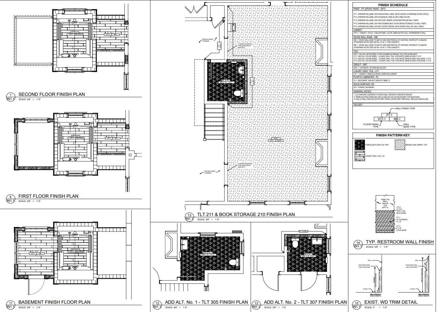
Finish Plans: Not to Scale

Millwork Details: Not to Scale
Interior Elevations: Not to Scale

Project 07

BRYANT RESIDENCE

TRACY TESMER DESIGN/ REMODELING

ASSOCIATE DESIGNER 2020

Project 08

KITCHEN REMODEL

TRACY TESMER DESIGN/ REMODELING

ASSOCIATE DESIGNER 2020

Project 09 NSH WOMENS SPECIALIST

PEACOCK PARTNERSHIP

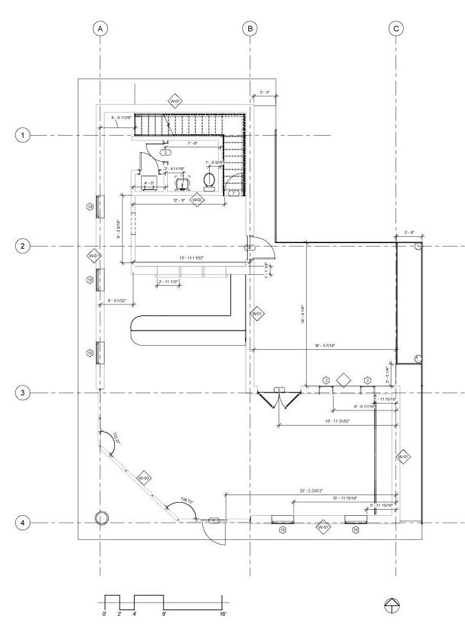
J:\170.55.00 Gwinnett 500 Building\170.55.05 Women’s Specialists of Northside Gwinnett\1. Production\4. Construction Documents\170.55.05 Womens Specialists CD Set_.pln R 2 A3.50 3 A3.50 4 A3.50 10 A6.10 11 A6.10 7 A6.10 6 A6.10 9 A6.10 24 A6.11 5 A6.10 12 A6.10 16 A6.10 13 A6.10 14 A6.10 15 A6.10 2 A6.10 18 A6.11 19 A6.11 20 A6.11 1 A6.10 5 A6.10 5 A6.10 5 A6.10 5 A6.10 5 A6.10 5 A6.10 5 A6.10 5 A6.10 5 A6.10 5 A6.10 5 A6.10 5 A6.10 5 A6.10 5 A6.10 21 A6.11 25 A6.11 22 A6.11 23 A6.11 3 A6.10 4 A6.10 17 A6.10 8 A6.10 1 1 1A OH OH OH OH OH OH PROCEDURE 108 EXAM 107 EXAM 105 EXAM 104 EXAM 103 SUPP 102 TRIAGE 111 TRIAGE 112 PT TLT 113 QUEST LAB 114 PT TLT 115 PT TLT 116 CLINICAL LAB 117 SUPP 118 BILLERS/ SCHED. 123 RECEPTION 122 WAITING 101 CONF/ CONSULT 125 PRAC COORD 126 EXAM 127 EXAM 128 EXAM 130 EXAM 131 ULTRA SOUND 134 ULTRA SOUND 135 EXAM 138 EXAM 139 SUPP 145 BIO 146 EXAM 141 EXAM 140 EXAM 143 EXAM 144 MD SHARED OFFICE 152 RN SHARED OFFICE 150 ST TLT 149 BREAK 148 NST 137 NURSE STATION 119 IT 129 CORR 110 CORR 109 CORR 121 CORR 124 CORR 120 CORR 132 CORR 133 CORR 136 CORR 147 CORR 151 CORR 142 EXAM 106 1'-0" 3" DELTA SOUND ATTENUATION BLANKET (WHERE APPLICABLE) EXISTING WINDOW MULLION (FIELD VERIFY) 1/2" THICK x 1" WIDE TYP. RUBBER GASKET (RUBBER LITE, INC. PRODUCT #SCE42B; ATLANTA RUBBER & HYDRAULICS) EXISTING INSIDE FACE OF GLASS INSIDE FACE OF WINDOW SYSTEM WITH GASKET IN PLACE, SCREW END CAP TO MULLION PRIOR TO INSTALLING MTL. STUDS MTL STUD. SEE PARTITION TYPES. VERIFY SILL CONDITION (IF ANY) IF NEW PARTITION IS NOT REQUIRED TO BE CENTERED ON VERTICAL MULLION, THEN OFFSET IN PARTITION SHALL OCCUR 1'-0" FROM WINDOW FRAME NEW PARTITION RUBBER GASKET (RUBBER LITE, INC. PRODUCT #SCE42B) WITH RUBBER GASKET IN PLACE, SCREW END CAP TO MULLION PRIOR TO INSTALLING MTL. STUDS NEW PARTITION EXISTING WINDOW MULLION (FIELD VERIFY) EXISTING INSIDE FACE OF GLASS INSIDE FACE OF WINDOW SYSTEM MTL STUD. SEE PARTITION TYPES. 3" DELTA SOUND ATTENUATION BLANKET (WHERE APPLICABLE) VERIFY SILL CONDITION (IF ANY) CONTRACTOR TO CLOSE BLINDS PRIOR TO WALL COVER-UP CONTRACTOR TO CUT TWO HOLES (TOP AND BOTTOM) IN FRAMING STUDS TO ALLOW AIR CIRCULATION IN WINDOW CAVITY. PULL INSULATION OUT OF THE WAY OF VENTING HOLES FOR PROPER AIR CIRCULATION. 2'-0" 2'-0" SUSPENDED WHERE APPLICABLE (SEE RCP). (I) LAYER OF 5/8" GYP. BD. SIDE 3-5/8" MTL. STUDS GAUGE AT 24" 4" BASE. SEE SCHEDULE. FINISHED FLOOR CONT. 3-5/8" MTL. STUD RUNNER 3" DELTA SOUND ATTENUATION BLANKET STC 51 CONT. 3-5/8" MTL. STUD RUNNER UNDERSIDE OF STRUCTURE ABOVE 3 5/8" ATTACHED ABOVE CL PLAN VIEW 1 NON-RATED W/ SOUND ATTENUATION BLANKET 1A NON-RATED WITH 6" MTL. STUDS W/ SOUND ATTENUATION BLANKET SCALE: 3/4" = 1'-0" 5 PARTITION TYPES A3.50 SCALE: 3/16" = 1'-0" 1 REFERENCE PLAN A3.50 SCALE: 1" = 1'-0" 3 TYP PLAN DETAILS A3.50 SCALE: 1" = 1'-0" 2 TYP PLAN DETAILS A3.50 SCALE: 1" = 1'-0" 4 TYP PLAN DETAILS A3.50 3. 1. 2. 5. 4. CONTRACTOR SHALL PERMANENTLY IDENTIFY ALL FIRE-RESISTANCE-RATED CORRESPONDING FIRE-RESISTANCE RATING) INCLUDING FIRE BARRIER BARRIER WALLS, FIRE PARTITIONS, FIRE WALLS, AND SHAFT ENCLOSURES INSTALLING SIGNS OR BY STENCILING IN CONCEALED SPACES THE FIRE AND SMOKE BARRIER - PROTECT ALL OPENINGS. IDENTIFICATION NO MORE THAN TWELVE FEET ON CENTER WITH A MINIMUM LETTER IN HEIGHT ON A CONTRASTING BACKGROUND. (SBC SECTION 703.5 AMENDMENTS). 6. 7. 8. AT THE INTERSECTION OF RATED WALLS, THE HIGHER PRIORITY LESSER PRIORITY WALL. SEAL ALL CONDUITS, PIPES, DUCTWORK, ETC., PASSING THRU FIRE APPROVED FIRE RATED MATERIALS AS PER THE REQUIRED ASSEMBLIES. SHALL CONFORM TO ASTM E-814. 9. 10. 11. 12. GENERAL NOTES : WATER RESISTANT GYP. BD. SHALL BE USED AROUND ALL PLUMBING WHERE STEEL BEAMS AND/OR JOISTS PENETRATE FIRE AND/OR FIRE SAFING AT INTERSECTION OF BEAM AND/OR JOISTS AND METAL INTERIOR PARTITIONS TO BE TYPE 1 UNLESS NOTED OTHERWISE. CAULKING WILL BE PROVIDED BETWEEN THE TOP OF THE DRYWALL CEILING WHERE APPLICABLE. THE STANDARD DRYWALL PARTITIONS WILL BE CONSTRUCTED OF STUDS WITH 5/8" DRYWALL ON EACH SIDE. THE TENANT DEMISING OR CORRIDOR OR TENANT SEPARATING PARITION CONSTRUCTED OF 3-5/8" 25 GAUGE METAL STUDS 24" O.C. WITH 5/8" DRYWALL ON BOTH SIDES TO THE UNDERSIDE OF THE SLAB OR DECK +/-. INSULATING MATERIALS INSTALLED IN BUILDINGS OF ANY TYPE OF HAVE A FLAME SPREAD INDEX OF NOT MORE THAN 25 AND A SMOKE NOT MORE THAN 450 AS DETERMINED IN ACCORDANCE WITH ASTM COORDINATE RATED PARTITION TYPES WITH LIFE SAFETY PLANS. WHERE FILLING OR EXTENDING AN EXISTING WALL, CONTRACTOR EXISTING WALL. 1 KEY NOTES CONTRACTOR TO PROVIDE (5) 12" DEEP, WHITE MELAMINE SHELVES ON ADJUSTABLE METAL STANDARDS. R 2 A3.60 3 A3.60 1 1 2 2 2 3 4 4 4 4 5 CG CG CG CG CG CG CG CG CG CG CG CG CG CG CG CG CG CG WC-2 WC-2 P3 P4 P3 P3 WC-1 WC-1 P-3 T2/ 3 T2/ 3 TRM TRM TRM TRM EXAM 107 EXAM 105 EXAM 104 EXAM 103 SUPP 102 TRIAGE 111 TRIAGE 112 PT TLT 113 QUEST LAB 114 PT TLT 115 PT TLT 116 CLINICAL LAB 117 SUPP 118 BILLERS/ SCHED. 123 RECEPTION 122 WAITING 101 CONF/ CONSULT 125 PRAC COORD 126 EXAM 127 EXAM 128 EXAM 130 EXAM 131 ULTRA SOUND 134 ULTRA SOUND 135 EXAM 138 EXAM 139 SUPP 145 BIO 146 EXAM 141 EXAM 140 EXAM 143 EXAM 144 MD SHARED OFFICE 152 RN SHARED OFFICE 150 ST TLT 149 BREAK 148 NST 137 NURSE STATION 119 IT 129 CORR 110 CORR 109 CORR 121 CORR 124 CORR 120 CORR 132 CORR 133 CORR 136 CORR 147 CORR 151 CORR 142 EXAM 106 CG P3 P3 P3 P3 1. ALL BASE TO BE B-1 UNLESS ALL WALLS TO BE P-1 UNLESS 2. UNLESS NOTED OTHERWISE FRAMES FINISHES SHALL 3. ALL INTERIOR FINISHES 4. 5. GENERAL NOTES : ALL MILLWORK TO BE PLASTIC ON ALL COUNTERTOPS 6. PROVIDE RUBBER FLOOR RESILIENT FLOORING 7. CONTRACTOR TO PATCH 8. DOOR STAIN TO MATCH 9. CARPET TILE INSTALLATION: 10. 1 KEY NOTES APPLY WC-1 TO NEW COMMON CORRIDOR FINISHES RESPONSIBLE FOR ORDERING 11. CONTRACTOR TO DETERMINE AND IN GOOD WORKING TREATMENTS WITH MATCHING INSTALL WINDOW TREATMENTS NOTED OTHERWISE. 2 DEDUCT ALTERNATE 3 DEDUCT ALTERNATE WALL, PROVIDE PLASTIC LVT-2 FINISH LEGEND PRIVACY CURTAIN WET WALL FINISH LEGEND TILE-2 FORMA RAMAGE FREDDO. 3"X12" DECO TILE-3 FORMA TALCO. 3"X12" GLOSSY CG CORNER GAURDS 1. PATIENT TOILET WET WALLS TO BE TILED IN A STOCKED BOND WITH DECO TILE MIXED IN LIKE ELEVATION SHOWS. REMARKS : AREA 51 WHITE 6X24 (CUT TO SIZE). WITH SCHLUTER TOP CAP REPLACE ALL EXISTING 12 4 DEDUCT ALTERNATE P-5 AND INSTALL RUBBER 5 PATCH AND PROVIDE REMOVE ANY EXISTING 13 2 A3.60 3 A3.60 1 1 2 2 4 CG CG CG CG P4 P3 P3 WC-1 WC-1 TRM TRM EXAM 107 EXAM 105 EXAM 104 EXAM 103 SUPP 102 TRIAGE 111 PT TLT 113 QUEST LAB 114 PT TLT 115 CORR 110 EXAM 106 CG PLAN SCALE: 3/8" = 1'-0" 2 115/116 PT TLT WET WALL A3.60 3 A3.60 1. PATIENT TOILET WET WALLS TO BE TILED IN A STOCKED BOND WITH DECO TILE MIXED IN LIKE ELEVATION SHOWS. 1 1 CG CG CG P4 P3 WC-1 WC-1 EXAM 104 EXAM 103 SUPP 102 TRIAGE 111 TRIAGE 112 RECEPTION 122 WAITING 101 CORR 110 P3 SCALE: 3/8" = 1'-0" 2 115/116 PT TLT WET WALL A3.60 SCALE: 3/8" = 1'-0" 3 113 PAT TLT WET WALL A3.60 WET WALL FINISH LEGEND TILE-2 FORMA RAMAGE FREDDO. 3"X12" DECO TILE-3 FORMA TALCO. 3"X12" GLOSSY 1. PATIENT TOILET WET WALLS TO BE TILED IN A STOCKED BOND WITH DECO TILE MIXED IN LIKE ELEVATION SHOWS. REMARKS : AREA 51 WHITE 6X24 (CUT TO SIZE). WITH SCHLUTER TOP CAP PATIENT TLT 1- WET WALL PATIENT TLT 2- WET WALL

Restroom 3D Collage- Tile Pattern Visualization

victoria.carnes5@gmail.com

770_530_7743
Linked in: Victoria-a-carnes

Turn static files into dynamic content formats.

Create a flipbook
Issuu converts static files into: digital portfolios, online yearbooks, online catalogs, digital photo albums and more. Sign up and create your flipbook.
VC Portfolio by Victoria Carnes - Issuu