Skip to main content

2023 Top Projects Magazine

Page 1

VANCOUVER BUSINESS JOURNAL 2023 TOP PROJECTS

PRESENTED BY:

LOCALLY OWNED & OPERATED | JULY 2023 THE VOICE
WASHINGTON BUSINESS 2023
OF SOUTHWEST
Top Project Community Catalyst Project
2 VBJ TOP PROJECTS JULY 2023 RESORT SPONSOR (Made possible by the Cowlitz Indian Tribe through the Cowlitz Tribal Foundation Clark County Fund; and the Hedinger Family Foundation) INN & SUITES DOWNTOWN VANCOUVER AN IHG HOTEL DOWNTOWN PORTLAND
WINE JAZZ 23RD ANNUAL August 25-27, 2023 Discount Tickets: www.vancouverwinejazz.com GRAMMY-winning Bands | Fine Art | NW Wines 2023FESTIVAL www.vancouverwinejazz.com VANCOUVER Alison Brown Quartet Blind Boys of Alabama Bonerama
Foley
Kelly
Art by Sam Pace
Sue
Grace
Spyro Gyra
Pascal Bokar & The AfroBlueGrazz Band Tommy Castro & The Painkillers
JULY 2023 VBJ TOP PROJECTS 3
of
We’re here to help you do more for your business. At Umpqua Bank, we can offer you more resources, additional lending options and expanded industry expertise. All of which means, when it comes to growing your business, the possibilities are endless. Learn more at UmpquaBank.com. More possibilities than ever Member FDIC
loans lines
credit cash flow expertise resources solutions growth

1605 Officers Row, Vancouver, WA 98661 360.695.2442 • www.vbjusa.com

Legal Notices/Datebook

Web Developer

Design Editor and Production Manager

Steve McDonagh ext. 6008 smcdonagh@vbjusa.com

John McDonagh ext. 6007 jmcdonagh@vbjusa.com

Dominique Starks ext. 6021 dstarks@vbjusa.com

Tom May Tmay@vbjusa.com

Shari Van Dinter ext. 6016 legalnotices@vbjusa.com

Kris Small ksmall@vbjusa.com

Soosan Decker

NEWS SUBMISSIONS The Vancouver Business Journal welcomes the submission of news tips, press releases, column ideas, letters to the editor and opinion pieces relevant to Southwest Washington business communities.

NEWS TIPS, PRESS RELEASES Email your information news tips and story ideas to the editor.

LETTERS Email letters to the editor. Letters should be no more than 150 words and should include your full name, address and telephone number for verification purposes. Your name and city of residence will be published with your letter. Anonymous letters or letters missing the information described will not be published. Letters are published based on their relevance to immediate news and then in the order received.

OPINIONS Email longer opinion pieces to the editor. Opinions should be no more than 550 words and should include your full name, address and telephone number for verification purposes. Opinion writers may be asked to provide headshot photos to run with their submissions, as well as brief biographical information. Opinion pieces should argue for or against an issue rather than give advice.

CONTACT Managing Editor; 360-448-6019; editorial@vbjusa.com.

The Vancouver Business Journal reserves the right to accept, reject and edit news and editorial submissions. Opinion pieces and letters are edited for style, grammar and length but not content.

Vancouver Business Journal is a locally owned and operated publication of Brown Warrior Publishing LLC, John McDonagh General Manager. Vanco uve r Bu s i ness J ournal ( ISSN # 1 5 3 4 -2 9 5 6 ) is published weekly by Brown Warrior Publishing LLC, 1605 Officers Row, Vancouver, WA 98661. Annual subscription is $159.00 a year. ©2023, Vancouver Business Journal. All rights reserved. U nauthorized r eproduction pro hibited w ithout p ublisher’s w ritten a pproval. Periodicals Postage paid at Vancouver, WA.

Community is the word that comes to mind as I think about my organization, the Top Projects event, and the people I work with each day. That means the Riverview team and those community members who I am fortunate to work with as they turn their ideas into reality.

Riverview is a community bank in banking terms. What that means is there is a strong commitment to invest in the communities where we do business and live. That also means supporting the many nonprofits who are doing great work around us. It also means that our headquarters are right here in Clark County. Decisions for the bank are made locally using a lens of what’s best for clients and community.

Last year, Riverview went through a rebranding process. Part of the process included removing community from the name. That does not mean that we aren’t committed to our community, it simply means it’s not necessary in the name. Community is an action word, it’s what we do each day.

Not long after Riverview rebranded the bank, it embarked on a process to examine our mission, vision and values. The process involved staff and community members. We wanted to end up with values and mission for today and moving forward. We also wanted it to be aspirational and something that pushes us to be better and do better. The vision is:

To be the best place to bank and work in the PNW

We are working toward this each day. We know we have a ways to go but we are looking out at the horizon and strive to be better for our community, our clients and our team.

As the leader of the Washington commercial lending team, I am immensely proud that three of our projects were nominated for Top Projects. To me that means we are fulfilling a need in the community by lending money toward dreams of multi-family housing, housing for people as they transform their lives and move out of addiction and into a life of freedom, and services to help our youth that are in the foster care system. I believe that we are in the people business, and we do that through financial services.

For the anniversary year, more than ever before, we are spending a moment at every interaction and want to say thank you. Thank you for banking with us. We are immensely grateful.

4 VBJ TOP PROJECTS JULY 2023
Cody Ritter SVP, Washington Commercial Team Lead Riverview Community Bank
Table of Contents 7-11 Top Commercial Projects 12-27 Top Public Projects 28-37 Top Multifamily Projects 38-45 Top Residential Subdivision Projects
Cody Ritter SVP, Washington Commercial Team Lead Riverview Community Bank
SPONSOR MESSAGE

2023 PROJECT OF THE YEAR: LA CENTER MIDDLE SCHOOL

The Vancouver Business Journal is proud and excited to name the La Center Middle School as this year’s Top Project Award winner. Our community continues to expand and providing top notch education in state-of-the-art facilities is going to be key to keeping our community one of the best places in the entire region to live, work and play. As growth of all types continues in north Clark County, the residents of La Center made a big investment in their future when nearly 66% of the voters approved a bond measure for the LA Center School District back in 2018 to build a new middle school. Students began attending the school in the fall of 2022. The La Center Middle School, located on Northeast Lockwood Creek Road has a capacity for 550 students. The sixth, seventh and eighth graders will benefit from more science classrooms, a dedicated career and technical education room and several innovative common learning spaces throughout the school.

The La Center School District purchased property for the new middle school with funds that were approved through a school bond. The property is at the edge of town and school district officials quickly began the process to find a design team for the school. By combining engineering solutions that incorporat-

ed the natural features of the site, the project team delivered a school facility to the district that provides safe access and continued opportunities to connect with the environment.

building a better Pacific Northwest

iQ Credit Union’s construction program guides you through every step of the process – from the spark of the dream to build, to moving and beyond.

iQ’s current program features

» Interest-only payments during construction

» 12-month construction period

» Local, simple approval and withdrawal process

» Avoid interest rate risk with a loan that rolls to permanent mortgage

JULY 2023 VBJ TOP PROJECTS 5
Scan to learn more
800.247.4364 | NMLS#643581 | Insured by NCUA

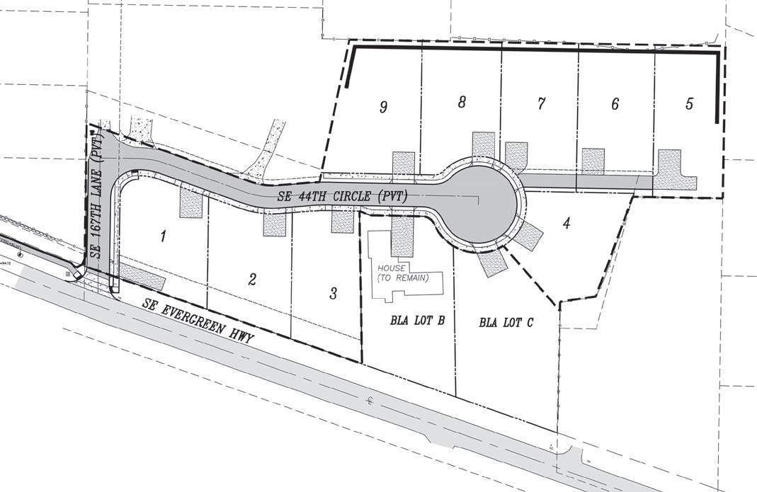
2023 COMMUNITY CATALYST PROJECT: OUR NEXT GENERATION II HOUSING FACILITY

As part of the Top Projects program and awards we look for projects that will be making an impact in our community apart from the “project” itself. When a project presents with the potential to impact lives throughout our community we award the project with the Community Catalyst award. For 2023 the Vancouver Business Journal is proud to announce that Our Next Generation II, has been named the Community Catalyst award winner. Built by the Mullen Polk Foundation for teenage foster children, Our Next Generation II is a staffed, 3 Story, 12,600 SF, 30-Bedroom Housing facility. Amenities for the children include a large activity/Lounge area, an Outdoor Recreation Area with a Basketball Hoop. The Facility’s interior includes an elevator, 30 dorm style Bedrooms, 2 full Bathrooms and Laundry Rooms on each Floor, a Commercial Kitchen, Reception Area, Medical and Treatment Rooms, Large Dining & Rec Areas, Visitation and Meeting Rooms. Key features include, Quartz countertops, luxury vinyl flooring, beautiful Birch doors, Bluetooth electric door hardware, large exterior and interior windows, custom furniture, solar roller shades, and bright colors unique to each floor create a bright, happy environment for the kids and staff.

The Mullen-Polk Foundation reaches out across Washington State and the nation to help children who are the victims of neglect, abuse, and abandonment. Their focus is to provide services for all children and families involved in the foster care system. www.mullen-polk-foundation.org

6 VBJ TOP PROJECTS JULY 2023
275 W 3rd St STE 300, Vancouver, WA 98660 (360) 818-7032 • www.hurleydev.com
Cody Ritter SVP, Washington Commercial Team Lead, Riverview Community Bank (left), Dante Jones Director of Operations, Mullen Polk Foundation (right)

2023 Commercial Block 7 Parking Garage 1

City: Vancouver

Construction Cost: $27,200,000 Start Date: 01/03/2023 Completion Date: 07/09/2024

General Contractor: Robertson & Olson

Owner: Gramor Investments Inc.

Developer: Gramor

Funding Source: Gramor Development

Architect: Slater Architecture

Engineers/Planners: Kvamme Consulting

Vancouver Waterfront Block 7 parking garage will feature 8-stories 289,098 square feet above grade cast in place

concrete structure featuring 831 spaces with 83 spaces allocated for electric vehicle charging stations. Additionally, 10,664 square feet of ground floor retail facing Columbia Way canopy-covered storefront windows for the next wave of high-end retail, restaurants, and neighborhood services. The structure incorporates 3 elevator, glass lantern towers along Columbia Way, enhanced exterior lighting, white perforated aluminum chevron skin with wire mesh living/security screening, gated access and integrated advanced car park system and security system.

JULY 2023 VBJ TOP PROJECTS 7

Skyview Station

Construction Cost: $24,000,000 Start Date: 01/03/2023 Completion Date: 01/20/2024

City: Vancouver

General Contractor: Talents Construction

Owner: Hurley Development

Developer: Hurley Development

Funding Source: Parkview Financial, Montgomery Street Partners

Architect: Schmidt Architects

Engineers/Planners: OTAK

Subcontractors: Schmidt Architects, Stonewood Engineering, OTAK Engineering, Catworks

Construction, Cascade Electrical

ed acquisition, entitlement, and ground-up construction of a Class A retail center with anchor, restaurant, and retail shop spaces with drive-thrus. Skyview Station will be home to a grocery anchor, iQ Credit Union, Chipotle, Chase Bank and MOD Pizza, along with other retail and restaurant tenants. Located in Salmon Creek, Washington, the location was a lightly-used industrial area that Hurley Development identified as an opportunity to create a retail center that would bring life to the growing community. The site presented challenges, including an access point from the NE 139th Street overpass, a drop in site elevations of over 20 feet, and a roundabout improvement instead of a signalized intersection at the main site entry. This project will result in a vibrant new commercial center for the local community and important improvements to the public roadway system.

8 VBJ TOP PROJECTS JULY 2023 2023
Commercial
JHC has been proudly building commercial construction projects in the Portland and SW Washington area since 1981.
www.jhc-companies.com /
Joseph Hughes Construction would like to congratulate NW Lines JATC on their beautiful new 43,000 sf training facility located in Battleground, WA.
503.624.7100
2
Located off the new 139th Street freeway interchange at the merge of I-5 and I-205, the Skyview Station project includ-

2023 Commercial

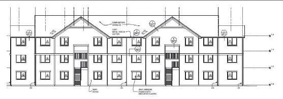
Our Next Generation II Housing Facility 4

Construction Cost: $6,953,602 Start Date: 12/06/2022 Completion Date: 11/18/2023

City: Vancouver

General Contractor: TEAM Construction

Owner: Mullen-Polk Foundation

Developer: PARAH Development Services, LLC

Funding Source: Riverview Bank

Architect: H Studio Architecture & Drafting

Engineers/Planners: MD Structural Engineering, Inc.

Our Next Generation II, Mullen Polk Foundation Project for Teenage Foster Children is a staffed, three-Story, 12,600-squarefoot, 30-bedroom housing facility sitting on a three-fourth-acre lot. The project features a large parking lot, trash enclosure, 125KV generator and an outdoor rec area with a basketball hoop. The interior includes 30 dorm-style bedrooms, two full bathrooms and laundry rooms on each floor, a commercial kitchen, reception area, additional bathrooms, medical and treatment rooms, staff offices, dining and rec areas, visitation and meeting Rooms. Each floor has 10 bedrooms and a large activity/lounge area.

10 VBJ TOP PROJECTS JULY 2023
Community Catalyst Project

Night and Day Furniture 5

City: Woodland

Construction Cost: $4,000,000 Start Date: 03/01/2023 Completion Date: 04/01/2023

49,614 Sq Ft Furniture Wearhouse located on Howard Way, North of Guild Road in Woodland Washington.

General Contractor: Bunch Construction, Legacy 6

Owner: Night and Day Holdings, LLC

Developer: Night and Day Holdings, LLC

Funding Source: Private

Architect: Novak Architecture

Engineers/Planners: SGA Engineering

Subcontractors: Schmidt Architects, Stonewood

Engineering, OTAK Engineering, Catworks

Construction, Cascade Electrical

Ridgefield Crossing Lot 2 6

City: Ridgefield

Construction Cost: $2,500,000 Start Date: 09/01/2022 Completion Date: 06/30/2023

General Contractor: Jackson Contracting LLC

Owner: Benjamin Tehrani

Developer: Benjamin Tehrani

Funding Source: Private

Architect: Wilson Architecture

Engineers/Planners: SGA Engineering

Subcontractors: Jefferies Construction

Single story retail on 0.90 acres of a mix use development including retail, dining, and office spaces.

JULY 2023 VBJ TOP PROJECTS 11
2023 Commercial

2023 Public La Center Middle School 1

Construction Cost: $37,294,844 Start Date: 05/07/2020

Completion Date: 09/07/2022

City: La Center

General Contractor: Robinson Construction Co

Owner: La Center School District 101

Funding Source: Construction Bond

Architect: NAC Architecture

Engineers/Planners: PBS Engineering and Environmental Inc

Subcontractors: Archaeological Investigations

Northwest, Columbia West Engineering, Olson

Engineering/MacKay Sposito, Weisman Design Group, Kramer Gehlen & Associates, Inc., Metrix Engineering, NAC Electrical

The La Center School District purchased property for the new middle school with funds that were approved through a school bond. The middle school aims to serve approximately 550 stu-

Top Project

dents. The property is at the edge of town and school district officials quickly began the process to find a design team for the school. By combining engineering solutions that incorporated the natural features of the site, the project team delivered a school facility to the district that provides safe access and continued opportunities to connect with the environment.

12 VBJ TOP
JULY 2023
PROJECTS

2023 Public Mill Plain Elementary School Replacement 2

Construction Cost: $27,800,000 Start Date: 06/20/2022 Completion Date: 07/14/2023

City: Vancouver

General Contractor: Robinson Construction Co

Owner: Evergreen School District 114

Developer: Evergreen Public Schools

Funding Source: 2018 Bond

Architect: LSW Architects

Engineers/Planners: Robertson Fick Engineering

Subcontractors: 3 Kings Environmental, Inc., TerraCalc Land Surveying, CFP Construction, Tikka

Masonry, Inc., Yakima Steel Fabricators, MC Interiors LLC, Cascade Acoustics, Northwest Waterproofing, LLC, Portland Coatings, Inc., Insulpro Projects, Garon Roofing & Sheet Metal, Martin Sheet Metal, Insulation Contractors of WA LLC, Turtle Mountain Construction, NW Flooring Solutions, LLC, Floor Factors, Bargreen Elingson, Parts & Pieces, Inc., Cosco Fire Protection, Inc., Trademark Plumbing, Prairie Electric, Inc., Nutter Corporation, Vancouver Paving, Unlimited Fence Co.

Mill Plain Elementary School is a replacement project. The existing school was demolished in July of 2022 clearing the way for construction of the new 61,000 SF school. The new school is the last of the “Prototype” projects designed by LSW Architects. This school includes a central commons space with polished concrete floors, wood paneling, and flexible learning spaces including the central learning stair. The exterior paly areas connect students to nature with salvaged logs, basalt benches, and nature play area.

JULY 2023 VBJ TOP PROJECTS 13

C-Tran 65th Avenue Campus 3

City: Vancouver

Construction Cost: $26,622,645 Start Date: 09/03/2022 Completion Date: 02/23/2024

General Contractor: Tapani Inc.

Owner: C-Tran

Developer: C-Tran

Funding Source: C-Tran

Architect: Ankrom Moisan

Engineers/Planners: Miller Consulting Engineers

Subcontractors: Mill Plain Electric Inc., Ambrose

Glass, Gb Manchester, Inc., Mt Hood Steel & Wood,

LLC, Piper Mechanical, Inc., Axiom Roofing Oregon, LLC, Arctic Sheet Metal, MJS Contracting Inc, Rixir Systems, MC Interiors, Hydro-Tech Fire Protection, Davis Door Service, Inc., Oregon Door Consultants

LLC, Larusso Conrete Company, Inc., Farwest Steel Reinforcing Company, Northwest Lift and Equipment LLC, Interior Technology Inc, Castle Masonry & Restoration LLC, Able Fence Company Inc, Glenco Creations LLC, Empire Painting Inc, Polished 3 LLC

We’re always here.

Whether your business is small or large, we can help you save energy and money by identifying conservation opportunities and utility incentives for efficiency upgrades.

Not sure where to start?

It’s easy! To schedule an energy review, contact your key accounts manager, call 360-992-3000, or send an email to keyaccounts@clarkpud.com.

We know the past year has been tough for many in our community, and we’re ready to help. Just give us a call.

14 VBJ TOP
2023
PROJECTS JULY
2023 Public Vancouver Business Journal Online at www. VBJUSA .com
JULY 2023 VBJ TOP PROJECTS 15
2023 Public

Phase 5A Outfall Package 2 4

City: Vancouver

Construction Cost: $19,000,000 Start Date: 10/01/2022 Completion Date: 12/06/2024

General Contractor: Tapani Inc.

Owner: Clark Regional Wastewater District

Funding Source: Clark Regional Wastewater District

Engineers/Planners: Jacobs

Subcontractors: Gonzales Boring and Tunneling, Inc., Tap Masters Inc.

The Phase 5A Outfall Package 2 project, situated along the Columbia River, involved the development of a new treated effluent outfall pipe. This pipe facilitates the flow of wastewater from the Salmon Creek Wastewater Treatment Facility into the Columbia River. The outfall pipe, constructed using 48” HDPE material, spans a distance of approximately 6,000 feet. To overcome obstacles along its route, the pipe passes beneath the BNSF Railroad through an auger bore tunnel and traverses Salmon Creek and Lake River via open cut pipe installation before ultimately discharging into the Columbia River.

16 VBJ TOP PROJECTS JULY 2023
2023
Public

Evergreen Public Schools –Transportation Center 5

Construction Cost: $17,600,000 Start Date: 01/20/2023 Completion Date: 06/11/2024

City: Vancouver

General Contractor: Robinson Construction Co.

Owner: Evergreen Public Schools

Developer: Evergreen Public Schools

Architect: GBD Architects

Engineers/Planners: GBD Architects

Subcontractors: Akana, O- Lighting Design, Reyah Consulting, R&C Management Group LLC, Charbonneau Engineering, KPFF Consulting Engineers, Listen Acoustics, Rider Levett Bucknall, Allegion, Lango Hansen, Code Unlimited, Knot, Glumac, · Thompson Bros. Excavation, AKS Engineering, Northeast Electric, McCoy Electric, JRT Mechanical, AFP Systems, B&B Tile & Masonry, Roof Toppers, RA Exteriors, Pioneer Sheet Metal, CFP Construction, Hildebrand Concrete, Vancouver Paving, Andres Landscape, Northwest Waterproofing, NW Flooring Solutions, Pacific Steel Erectors, Unlimited Fence Co.

The current Evergreen Public Schools (EPS) Transportation Center was built in the 1960’s as a warehouse building which was later converted into the current Transportation

Office and shop space. It consists of an 11,000 square foot steel shed building on a roughly 12-acre site with substantial bus and personal vehicle parking areas. Directly to the east, the abandoned Burton Elementary School complex created an opportunity for EPS to expand the Transportation Center property to occupy the 22-acre site allowing for a 50-year future growth area.

The new Transportation Center will expand into the old Burton Elementary site and a new 29,000 square foot building will be constructed under this project. The new building will be a single-story structure consisting of an 11,000 square foot office and an 18,000 square foot shop maintenance facility.

The office will house administrative staff, driver training, dispatch, routing, drivers support spaces, staff and driver breakrooms, restroom and locker room facilities, and flexible meeting/conferencing spaces.

The shop will consist of 8 large repair/work bays, locker rooms, fluids room, compressor room, welding area, tire service areas, parts and receiving, various storage spaces, and numerous workbenches and specialized equipment components.

A new access road will be added to the East side of the property with a signalized intersection at NE 28th Street to provide better bus access into and out of the facility, as well as contain bus queuing within the EPS Transportation Center campus.

JULY 2023 VBJ TOP PROJECTS 17
2023 Public

Berth 17 Rehabilitation Project 6

Construction Cost: $11,450,000 Start Date: 10/24/2022 Completion Date: 10/31/2023

City: Vancouver

General Contractor: Advanced American Construction Inc.

Owner: Port of Vancouver

Developer: Port of Vancouver

Funding Source: POV Bonds

Engineers/Planners: KPFF, Elcon Associates, Inc.

Subcontractors: Tapani, Karvonen Sand & Gravel, C&J Contracting, Marion Aggregates, Karvonen Sand

The Berth 17 Rehabilitation Project will renovate and improve the existing Berth 17 facility located on Terminal 5 at the Port of Vancouver, USA. Work includes but is not limited to the removal of existing in-water dolphins and catwalks; in-water replacement dolphins; new catwalks; upland mooring anchors; upland

and Gravel, Longhorn Geomaics, North 40 Fence, Kaski, Columbia River Pumping, Brothers Concrete Cutting, West Coast Soil Solutions, Able Fence, Down Services, American Concrete Construction, High Tech Concrete Construction, Willamette Valley Steel, Ralph’s Concrete Pumping, DDJ Construction Welding, Staton Companies, Performance Abatement Services, Copper Mechanical, M2 Integration

and on-berth wet utilities; electrical power; upland civil site improvements; misc. new dock appurtenances; repair of damaged pile under approach trestle and the removal of the Colby crane and associated gallery. Several additive/alternates are included to further enhance the scope of the project.

18 VBJ TOP PROJECTS JULY 2023
2023
Public
JULY 2023 VBJ TOP PROJECTS 19 360-276-9782 KellyK@zenithpro.com www.zenithpro.com/vbj/ Locally owned and operated in Clark County Maximize your income! Property management comes with many unique struggles, but we use our deep industry experience and local knowledge to help you navigate them effectively. Our goal is to maximize your income while caring for your home as if it were our own. Put your investment property in good hands. Call today to learn more! Voted Best in Business 7 years in a row! BUSINESS COMING IN DECEMBER VANCOUVER Best in Business best2022 business Vote for businesses in our community that are exemplary. Call for Advertising & Sponsorship Opportunities 360-695-2442 BUSINESS COMING IN DECEMBER USINESS VANCOUVER Best in Business best2022 business Vote for businesses in our community that are exemplary. Call for Advertising & Sponsorship Opportunities 360-695-2442 The
of Possibility. From shipping the world’s largest wind turbines to revitalizing Terminal 1 on the Vancouver Waterfront, the Port of Vancouver USA is proud to be a catalyst for endless opportunities in our region. Call for Advertising & Sponsorship Opportunities 360-695-2442
Port

West Biddle Lake Dam Replacement 7

Construction Cost: $1,600,000 Start Date: 06/12/2023 Completion Date: 12/15/2023

City: Vancouver

General Contractor:Tapani Inc.

Owner: Columbia Springs

Developer: Columbia Springs

Funding Source: Columbia Springs

The West Biddle Dam in Vancouver, Washington is over 100 years old and requires replacement due to leakage. The project entails demolishing and replacing the current dam, channel,

and spillway. Additionally, Tapani will install a new pedestrian bridge that has a length of 46 feet.

The new dam, measuring 98 feet, will replicate the design of the existing dam. It will feature a new trash rack, stop log guides and logs, a concrete spillway, a natural channel, a settling basin with a water supply valve for the existing raceway, and various other apparatuses. In an effort to minimize waste and align with the mission of reuse at Columbia Springs, the project aims to incorporate the existing catwalk system into the new dam. This approach not only reduces waste but also enhances the immersive experience for classes and visitors.

20 VBJ TOP PROJECTS JULY 2023
2023
Public
JULY 2023 VBJ TOP PROJECTS 21 Excavation, Demolition, Sitework & Underground Utilities We specialize in providing civil heavy construction contracting services to Vancouver, WA and the surrounding areas. Legacy 6, Inc is a family owned construction company built on the foundation of honor, integrity and excellence laid by the generation before us. Our goal is to provide exceptional construction contracting services with exceptional value and to build strong, profitable relationships through honest business practices. VANCOUVER BUSINESS Call for sponsorship or advertising information 360-695-2442 There’s Still Time! Get Your Submissions in Now for Profiles of Giving our philanthropy edition

Decant Facility Expansion 8

City: Battle Ground

Construction Cost: $894,717 Start Date: 08/01/2022 Completion Date: 11/30/2022

General Contractor:Tapani Inc.

Owner: City of Battle Ground

Developer: City of Battle Ground

Funding Source: City of Battle Ground

Engineers/Planners: BHC Consultants

Subcontractors: Silver Star Electric LLC, Arctic

Sheet Metal

The Decant Facility Expansion project entailed the construction of two concrete bays for the City of Battle Ground. These

bays consisted of concrete slabs, walls, and were enhanced by structural steel roof canopies. Each bay boasted dimensions of 30 feet wide, 40 feet deep, and 20 feet tall.

One of the primary challenges encountered during the construction process was the inclement weather, particularly during the wet season, as the subgrade is subpar being on an existing fill site.

Fortunately, the owner demonstrated a high level of receptiveness to various ideas and approaches, which greatly facilitated the project’s completion within the allotted time frame and under budget. Our team successfully presented multiple cost-saving strategies.

22 VBJ TOP
JULY 2023
PROJECTS
2023 Public
OFFICE SUPPLIES AND ACCESSORIES
OFFICE FURNITURE
PROCUREMENT CONSULTATION
ERGONOMIC TRAINING & EVALUATIONS
COMMERCIAL OFFICE MOVING
OFFICE AUTOMATION (COPIERS/PRINTERS)

Ida Bell Jones Neighborhood Park 9

Construction Cost: $841,175 Start Date: 06/15/2022 Completion Date: 01/19/2023

City: Vancouver

General Contractor: Allcon LLC

Owner: Vancouver Parks, Recreation & Cultural Services

Developer: Vancouver Parks, Recreation & Cultural Services

Funding Source: City of Vancouver

Engineers/Planners: Standridge Inc.

Subcontractors: Abernathy Construction LLC, GameTime / Robertson Recreational Surfaces, Able Fence Company Inc., Sealpave, American Electrical Construction LLC

Ida Bell Jones Neighborhood Park is nestled in Vancouver’s historic Rose Village neighborhood. It is small but mighty, featuring a space-themed playground, half-court basketball, open lawn play area, drinking fountain, picnic tables and benches

within its .5-acres. Neighbors were involved in the design and naming process of this new park to ensure it would be a space that would meet the needs of the community and honor the neighborhood’s rich history in Vancouver.

According to the City of Vancouver Equity Index, the Rose Village neighborhood as a “high need” for economic investment. The project transformed two empty lots into a vibrant park where community members can gather, play and connect.

The park is named after Ida Bell Jones (1908-2018), a matriarch of Vancouver’s African American community and early resident of the Rose Village neighborhood. After the closure of the Kaiser Shipyards post-WWII, Ms. Jones played a pivotal role in building trusted networks of support among Vancouver’s African American residents. Her community building efforts made it possible for Black families to find work and establish roots in Vancouver, despite facing considerable discrimination. Ida Bell Jones was known for her warm smile, positive attitude and acceptance for all people who crossed her path.

JULY 2023 VBJ TOP PROJECTS 23
2023
Public

Playground at Esther Short Park 10

Construction Cost: $589,724 Start Date: 08/15/2022 Completion Date: 04/28/2023

City: Vancouver

General Contractor:Pence Construction

Owner: Vancouver Parks, Recreation & Cultural Services

Developer: Vancouver Parks, Recreation & Cultural Services

Funding Source: City of Vancouver

Architect: AKS Engineering & Forestry, LLC

Engineers/Planners: AKS Engineering & Forestry, LLC

Subcontractors: G Cody QJ Goldberg, Harper’s Playground, A2 Fabrication, Berrien Concrete, Bill Erickson Heavy Construction, CME Play!, Pacific Landscape Services, Pence Kelly Concrete, LLC, North Fork Landscape Inc., ForeverLawn Puget Sound, Slateco LLC, City of Vancouver Grounds Maintenance Department

Esther Short Park was donated to the City of Vancouver in 1853. It is the oldest public square in the state of Washington and one of the oldest public parks in the West. With the construction of the new, fully inclusive playground, the 170-year-old park will continue to be a place where all community members can gather, play and connect.

The previous playground equipment was over 20 years old, and plans were already underway to replace it when it was destroyed by a fire in January 2022. The new playground is slightly larger at 1,400 square feet, thanks to an expansion toward W. 8th Street that incorporates some of the park’s large trees into the playground design. www.vbjusa.com

The new, fully inclusive play equipment was designed with assistance from Harper’s Playground and includes a double slide and play hill; boulder scramble; climbing dome; zero entry Merry-Go-All; swings; a Roxall See Saw; and a music garden. The design connects to the larger park design with increased seating; additional trees and landscaping; and decorative elements that reference the park’s Victorian aesthetic.

The Playground at Esther Short Park is the City of Vancouver’s first to receive certification from Harper’s Playground, a nonprofit that inspires vital communities by creating inviting playgrounds for people of all abilities.

24 VBJ TOP PROJECTS JULY 2023
2023 Public
www.vbjusa.com

ACCOUNTING FOR WHAT MATTERS

My Business Partner provides bookeeping services to small and medium sized businesses throughout the Northwest. Our personal dedication to helping your business succeed is at the heart of what makes us different.

BOOKEEPING AND PAYROLL SERVICES

We are a skilled team of bookkeepers who are passionate about small businesses and the people who run them. Our team’s extensive knowledge and training enables us to be a versatile and meaningful part of your business.

JULY 2023 VBJ TOP PROJECTS 25 2023 Public
TODAY:
1811 Main Street,
LOCATED
DOWNTOWN VANCOUVER
CALL
360-213-6159 www.mybusinesspartnernw.com
Suite 206, Vancouver, Washington, 98660
IN

2023 Public

Hope Village

Construction Cost: $458,063 Start Date: 03/01/2022 Completion Date: 04/08/2022

City: Vancouver

General Contractor: SDB Contracting Services

Owner: City of Vancouver

Developer: City of Vancouver

Funding Source: City of Vancouver Affordable Housing Fund

Homebuilder: Pallet Shelters

In 2021, Vancouver City Council approved a plan to create temporary, supportive Safe Stay Communities (SSCs) to address the crisis facing people experiencing unsheltered homelessness in our community. As part of this effort, the City has since opened two SSCs in Vancouver and is working to open a third and fourth site in 2023.

The second SSC to operate, located at 4915 E. Fourth Plain Blvd, opened in 2022 and provides 20 modular shelters housing up to 40 people. The City accepted proposals from vendors interested in operating this site, determined site selection criteria, held public hearings and amended the City’s camping ordinance to make the project possible.

Construction of the site began in Q1 of 2022 and the City’s Affordable Housing Fund contributed funds to support necessary site preparation and the purchase of the modular shelter units. Site preparation included installation of electrical utilities at the site and electrical hook-ups to each shelter unit, installation of fencing, gates, parking and all necessary permits and fees.

The site is fenced and staffed 24/7 by an onsite nonprofit operator. It includes trash receptacles and sanitation services, portable toilets and handwashing stations, meeting and office space, and access to supportive services provided by local agencies.

The site is established under a Temporary Use Permit, which only allows the site to be in place for a maximum of three years. The language in this license agreement says two years with the possibility to extend the agreement for an additional year.

26 VBJ TOP PROJECTS JULY 2023
11
Quality is our Specialty 4857 NW Lake Rd, Suite 320 | Camas, WA | (360) 699-4724 www.roconstruction.com | info@roconstruction.com

Hockinson Meadows Disc Golf Course 12

City: Vancouver

General Contractor: Tapani Inc.

Owner: Clark County Public Works

Developer: Clark County Public Works

Funding Source: Clark County Public Works

Subcontractors: North 40 Fencing, LLC, NW

Landscape Service Inc., RIXIR Systems LLC, TerraFirma Foundation Systems, JR Swigart, Karvonen Sand & Gravel Inc.

Located in Hockinson, the Hockinson Meadows Community Park spreads across a vast 240-acre plot of land. Within the park, a pedestrian bridge serves as a connection between the developed park areas and the latest addition to the recreational offerings—a brand-new 18-hole disc golf course. As part of the development, a remarkable 225-foot steel-covered structure was also constructed, enhancing the park’s amenities and providing a sheltered area for various activities. This ambitious project involved transforming 40 acres of open field into a captivating space for our community to engage in play and foster connections.

Custom Signs Banners

Name Badges A-Frames

Plaques Awards

Decals & Vinyl Lettering

A D A & Engraved Signs

JULY 2023 VBJ TOP PROJECTS 27
Cost: $376,000 Start Date: 06/13/2022 Completion Date: 05/23/2023
Construction
2023 Public

2023 Multifamily

Adera

Construction Cost: $57,000,000 Start Date: 08/11/2022 Completion Date: 07/01/2024

City: Vancouver

General Contractor: Talents Construction

Owner: Hurley Development

Developer: Hurley Development

Funding Source: Trez Capital

Architect: LSW Architects

Engineers/Planners: Olsen Engineering

Subcontractors: Stonewood Engineering, Cascade

Electrical, DeWittt Construction

Located in downtown Vancouver on a parcel that formerly housed Boomerang Therapy Works, Adera by Hurley Development will encompass the entire block between Washington and Columbia streets and West Fourth and Fifth streets. The building houses 186 apartment units with ground-floor retail. It has 124 internal parking spaces and 18 street parking stalls. It’s an upscale, sophisticated, cozy building with smart technology that includes smart access and unit locks, smart energy-saving thermostats, and many more features unique to Vancouver apartments.

28 VBJ TOP PROJECTS JULY 2023
1

City: Vancouver

General Contractor: TEAM Construction

Owner: MAJ Development Corporation

Developer: MAJ Development Corporation

Funding Source: First Republic Bank

Architect: Schmidt Architects

Engineers/Planners: Olsen Engineering

This modern designed community will feature 240 apartment units, 1, 2 and 3 bedroom homes, live-work options, high end finishes including quartz countertops and stainless steel appliances, washer/dryers and AC. The community will feature a grand community building, state of the art gym, outdoor pool, covered BBQ area, outdoor fitness area, play area, dog park, dog wash, and some office/retail space.

JULY 2023 VBJ TOP PROJECTS 29
2
Cost: $44,165,000 Start Date: 01/25/2022 Completion Date: 04/18/2025
Jen’s Pointe Apartments
Construction
2023 Multifamily
OFFICE INVESTMENT INDUSTRIAL PROPERTY MANAGEMENT RETAIL MULTI-FAMILY ADVISORY CELEBRATING THE 2023 TOP PROJECTS CONGRATULATIONS TO ALL OF THE NOMINEES AND WINNERS! VANCOUVER OFFICE • 360.946.4830 700 WASHINGTON STREET, SUITE 608 VANCOUVER, WA 98660 PORTLAND HQ OFFICE • 503.326.9000 805 SW BROADWAY, SUITE 600 PORTLAND, OR 97205 SERVING THE PORTLAND METRO OVER 19 YEARS LARGEST LOCAL PRESENCE 21 WASHINGTON LICENSED BROKERS 40 OREGON LICENSED BROKERS CAPACITYCOMMERCIAL.COM RENDERING OF HIDDEN GLEN INDUSTRIAL CENTER 150,000 SF - 286,600 SF DEVELOPMENT FOR LEASE/SALE

2023 Multifamily

Fourth Plain Community Commons

Construction Cost: $30,150,000 Start Date: 12/13/2021 Completion Date: 07/19/2023

City: Vancouver

General Contractor: Walsh Construction Co.

Owner: Vancouver Housing Authority

Developer: Vancouver Housing Authority

Architect: Salazar Architect, Inc.

Engineers/Planners: Samata Consulting Engineers

Subcontractors: Valar Consulting Engineering, Humber Design Group, Arris Consulting, Place, Vertex Technology Design & Consulting LLC, Whitaker/Ellis Builders, Inc., Ultra Quiet Floors, Zion Metal Works, Anning-Johnson Company, Civic Construction, LLC, RDF Builders Co., Columbia Cascade Co., Pioneering Waterproofing Co. Inc., Axion Division 7, Ava Siding, LLC, MEP Trades Academy Specialties, LLC, MidValley Glass & Millwork, Black Line Glazing, Interior Tech, American Heating, Inc., Authority Dock & Door, Inc., dormakaba USA, Contemporary Visions, Signs & Wayfinding, Academy Specialties, LLC, Guardian Fall Protection, Haier US Appliance Solution, Inc., dba GE Appliances, Play-Creation Inc., Cash’s Drapery, Topline Counters LLC, Otis Elevator Company, Triad Fire Protection, EK Plumbing Inc., Merit Electric of Spokane Inc., Hillebrand Construction, Inc., Eagle Striping Services, Inc., G.R. Morgan Construction, McDermott Fence & Construction, Forms + Surfaces, Huntco Site Furnishings, Tournesol Siteworks, LLC, Colors NW, Inc./ Coria Landscape, Inc.

Fourth Plain Community Commons is an innovative, mixeduse project focused on strengthening families and growing small businesses while creating opportunities for entrepreneurs, improving the corridor’s safety, and increasing the supply of affordable and attainable housing in Vancouver. Developed and supported by the Vancouver Housing Authority, City of Vancouver, and the Fourth Plain Coalition, the successful completion of the Fourth Plain Community Commons creates a vital community hub for the Fourth Plain Community. This project will provide access to services and also space for the community to grow, collaborate and share, with a new public plaza designed to support a farmers market and cultural events. The project is pedestrian-and-bike focused and will include community supportive spaces and on the upper floors, 106 units will provide a variety of affordable housing for families.  The Vancouver Housing Authority will own and operate the apartments located on the upper floors. The City of Vancouver has developed the ground floor space and will partner with community-based organizations to operate it.

The 10,000 SF ground floor community spaces are flexible areas where the Fourth Plain community can gather, hold events, and access services. Including:

• A commercial kitchen incubator to launch and support emerging food-based businesses

• A shared office space to co-locate services to make it easier for residents and businesses to access resources

• A community event space that can be rented for festivals, birthdays, trainings, and other events

• A public plaza with infrastructure to support a Vancouver Farmer’s Market satellite market

30 VBJ TOP PROJECTS JULY 2023
3

The mixed-use building dynamically anchors the street corner and includes community inspired artwork to cover much of the façade, contributing to the mural arts tradition of the Fourth Plain neighborhood. The mural, called “Step Up,” was painted by Christian Téllez from the non-profit Portland Street Art Alliance and supported by local artist Alex Chiu. The mural is a central feature of the commons and has been a truly collaborative process between the community and artists.  The goal of this mural design is to introduce the building to the neighborhood as a living structure designed to benefit a larger community and the colorful and dynamic design pays homage to the community’s diversity. The color palette represents the joy and vibrant life of the different community cultures, individuality recognition, and identity freedom. Always remembering that other shapes, sizes, and colors work well together when they coexist and do not compete. The success of Fourth Plain Community Commons will undoubtably make a great impact in the community and set the stage for the future of essential housing – bringing more affordable, stable and safe homes to our vulnerable populations.

The mission of Vancouver Housing Authority (VHA) is to provide opportunities to people who experience barriers to housing because of income, disability, or special needs. It is their goal to fulfill that mission in an environment which preserves personal dignity and in a manner which maintains the public trust. VHA works closely with local governments and other community partners throughout Clark County to address issues of affordable housing and homelessness and help families break the cycle of poverty. All of which make our community more affordable, safer and more enjoyable for everyone.

The Vancouver Housing Authority owns and operate the affordable apartments located on the upper floors. The City of Vancouver will develop the ground floor space and partner with community-based organizations to operate it.

JULY 2023 VBJ TOP PROJECTS 31
2023 Multifamily
Visit our office on historic Officer’s Row! CONGRATULATIONS TO VANCOUVER HOUSING AUTHORITY AND THE FOURTH PLAIN COMMONS TEAM! Providing critical housing and essential supportive services. Call for sponsorship or advertising information 360-695-2442

2023 Multifamily

Oliveen Phase 2 4

Construction Cost: $28,958,263

Start Date: 09/13/2022 Completion Date: 02/14/2024

City: Camas

General Contractor: Tapani Inc.

Owner: First Street Station RC LLC

Developer: First Street Station RC LLC

Funding Source: First Street Station RC LLC

Architect: The Ronhovde Architects, LLC

Engineers/Planners: Jackola Engineering

Subcontractors: Able Fence, Acousti-Level Floor Systems, A-Line Asphalt Maintenance, Ambrose

Glass, Anderson Specialties, Ascent Elevrtic, Brothers

Concrete Cutting, CalPortland, Columbia Precast

Projducts, Comcast, Compaction and Recycling

Equipment Inc., Ek Plumbing, FloorFX, G Builders

LLC, HD Fowler, Heidelberg Materials, Hydro Tech

Fire Protection, InteriorTech, JL Storedahl, Landscape

Management, Lanz Cabinets, Life Safety Solutions, LJP

Construction, Marine Lumber Co, Molecular Inc., Ness Campbell Crane, NW Scaffolding, Oregon Five Star Enterprises, Robert Whitaker Drywall, Roof Toppers, Soha Sign Company, Standard TV & Appliance, Stewart Mechanical, Titan Door LLC, Tri-Tech Heating, US Construction, Wahoo Decks, Western Pacific Building Materials, Zack’s Concrete Pumping

The Oliveen Apartments, located in Camas, Washington, were built in two phases. The initial phase was finalized in May 2023, while the second phase commenced in September 2022 and is estimated to be completed by February 2024. As part of this phase, two four-story apartment buildings featuring wooden frames will be constructed, offering a total of 142 units. This phase also includes the development of a pool measuring 50’ x 20’, situated on an 80’ x 50’ pool patio, along with a pool house measuring 27’ x 44’. Moreover, an 84,000 square-foot parking lot will be constructed to cater to the parking requirements of the apartment complex.

32 VBJ TOP PROJECTS JULY 2023
TO ADVERTISE IN THE VANCOUVER BUSINESS JOURNAL CALL 360-695-2442

179th Street Apartment East 5

City: Ridgefield

Construction Cost: $26,900,000 Start Date: 06/23/2022 Completion Date: 04/30/2024

Developing a 6.39 acre parcel into 124 apartment units with a pool and community center located on Ridgefield, Washington.

General Contractor: TEAM Construction

Owner: Gary Vance/ Vance Development

Developer: Vance Development

Funding Source: Private

Architect: Leeb Architecture

Engineers/Planners: SGA Engineering

Subcontractors: Legacy 6

JULY 2023 VBJ TOP PROJECTS 33
2023
Multifamily

6

City: Ridgefield

Heritage Park

Construction Cost: $14,245,500 Start Date: 05/03/2023 Completion Date: 10/01/2024

General Contractor: Thompson Bros. Excavation

Owner: Heritage Park, LLC

Developer: Bill Maitland

Funding Source: Riverview Bank

The quintessential East Vancouver destination where CULTURE and the OUTDOORS intersect, where BUSINESS and LEISURE seamlessly intermingle, and where local communities gather.

The Vic is an exciting new mixed-use development where good living, work, play, and community come together to create a place that combines everything there is to love about the authentic Northwest life. Residential, retail, office, lightindustrial, pedestrian improvements, and public spaces meld to create a highly livable and unique community in the heart of East Vancouver, Washington.

34 VBJ TOP PROJECTS JULY 2023
2023 Multifamily
www.vbjusa.com
www.thevicwa.com

Open House Ministries West 7

City: Vancouver

Construction Cost: $11,250,000 Start Date: 03/17/2023 Completion Date: 08/01/2024

General Contractor: Robertson & Olson

Construction, Inc.

Owner: Open House Ministries

Developer: Open House Ministries

Funding Source: The Murdock Trust, The Tom and Marilyn Moyer Foundation, The Firstenburg Foundation, Private Donors, Faith Based

Organizations, and Riverview Bank

Architect: Slater Architecture

Engineers/Planners: Kvamme Consulting

Subcontractors: SGA Engineering, Columbia

A new 41,758 square foot four-story wood framed metal siding building with 30 apartments containing a mix of studios, one-bedroom, two-bedroom and three-bedroom apartments, and will have 38 parking spots. Amenities will include washers and dryers in each apartment and tenant storage units in the basement.  The

West Engineering, Acousti-Level Floor Systems, Advance Welding, Inc., Allegiance Corporation, Atlas Mechanical, Inc., Cascade Electrical, LLC CDI Blinds Cornerstone Masonry, Inc DeWitt Construction Inc., Euro-American Design, H Corp Henderson & Daughter Windows Interior Technology, Inc. NW Flooring Solutions Otis Elevator Company Sawtooth Caulking, Inc. Skyline Sheet Metal, Inc., Standard TV & Appliance, Superior Door of WA, LLC, Timberland Framing Contractors, Tri-Tech Heating, Inc., Washington Commercial Painters, Western Constr. Specialties, Willamette Glass, Inc.

building will also include ground-floor retail space for secondhand thrift store, bike shop and coffee shop which provide vocational training for residents. The apartments will provide a step toward independence. Families living in the apartments will work and pay rent until they are able to find another home.

JULY 2023 VBJ TOP PROJECTS 35
2023 Multifamily

Ellis Commons

Construction Cost: $11,000,000 Start Date: 04/23/2023 Completion Date: 05/01/2024

City: Vancouver

General Contractor: Robertson & Olson

Construction, Inc.

Owner: HSP Properties

Developer: HSP Properties

Funding Source: Josh Oliva

Architect: MFA Architecture and Planning

Engineers/Planners: WDY Engineers

Ellis Commons is a 30-unit town home project consisting of 1,481 & 1,492 square foot units. All units have three bedrooms, two and a half baths, and garages with electric vehicle charging stations. The 30 units are spaced throughout the 2.54-acre property in 3 and 4 plex buildings. the gross site area of 110,794 square feet has 75,019 square feet of parking and walkways, 35,775 square feet of landscaping and common areas that includes a 64foot by 133-foot common lawn. The entire community is fenced and has vehicle and pedestrian gates to control access.

36 VBJ TOP PROJECTS JULY 2023
8
2023 Multifamily
JULY 2023 VBJ TOP PROJECTS 37 Hazel Dell Avenue Apartments 9 Construction Cost: $3,500,000 Start Date: 03/01/2023 Completion Date: 08/04/2023 City: Vancouver General Contractor: NW Elite Homes Owner: Hazel Dell Ave, LLP Developer: NW Elite Homes Funding Source: Private Architect: Wilson Architects Engineers/Planners: SGA Engineering Subcontractors: Colf Construction 2023 Multifamily 19 Unit Apartment building with office located on Hazel Dell Avenue in Vancouver, Washington. Locally owned & operated HVAC experts HEATING AIR CONDITIONING PREVENTIVE MAINTENANCE INSTALLATION RESIDENTIAL & COMMERCIAL 360-695-1476 www.blaircoheating.com BLAIRI*087J1
38 VBJ TOP PROJECTS JULY 2023 Woodland Creek Subdivision 1 Construction Cost: $60,000,000 Start Date: 03/15/2023 Completion Date: 09/15/2023 City: Woodland General Contractor: Rotschy Inc. Homebuilder: Holt Homes Owner: Holt Homes Developer: Hinton Development Funding Source: Private Architect: Holt Homes Engineers/Planners: SGA Engineering 2023 Residential Subdivisions 148 Single Family Residence Subdivision located in Woodland Washington. 137 134 131 148 146 145 144 143 141 140 139 27 28 31 35 36 37 60 71 73 75 91 OPEN SPACE TRACT 'B' STORMTRACT'A' TRACT 'C' 57 95 96 98 6 101 102 103 104 106 112 114 19 21 26 127 126 125 124 123 122 121 120 118 115 7 PUDR/W OPEN SPACE TRACT 'A' OPEN SPACE TRACT 'A' 42 44 46 48 62 61 68 70 63 93 82 83 84 85 49 50 53 55 56 32 33 40 89 129 12 14 PUDR/W 58 TRACT 108 THE OFSOUTHWESTWASHINGTONBUSINESS LOCALLYOWNED OPERATED JANUARY2023 Call for sponsorship or advertising information 360-695-2442

City: Vancouver

Construction Cost: $38,000,000 Start Date: 09/01/2022 Completion Date: 12/30/2023

72 Single Family Home, Residential Subdivision located in Vancouver, WA.

General Contractor: Rotschy Inc.

Homebuilder: Pacific Lifestyle Homes

Owner: Hinton Services LLC

Developer: Hinton Development LLC

Funding Source: Private

Architect: Pacific Lifestyle Homes

Engineers/Planners: SGA Engineering

JULY 2023 VBJ TOP PROJECTS 39
2
M&H Subdivision
2023 Residential Subdivisions

NE 50th Ave Subdivision 3

Construction

$21,000,000

City: Vancouver

General Contractor: Inland Company

Homebuilder: New Tradition Homes

Owner: DRHC, LLC

Developer: DRHC, LLC

Funding Source: Private

Architect: New Tradition Homes

Engineers/Planners: SGA Engineering

4

City: Camas

Boulder Ridge

Construction Cost: $13,200,000 Start Date: 05/01/2021 Completion Date: 10/01/2023

General Contractor: Tapani Inc.

Homebuilder: Cedars Construction

Owner: Romano Capital

Developer: Romano Capital

Funding Source: Romano Capital

Architect: RonHovde Architects

Engineers/Planners: OTAK Engineering

Boulder Ridge at Columbia Palisades is an exclusive river view property with 24 luxury townhomes. These townhomes sit atop a prominent bluff with exquisite views overlooking the beautiful Columbia River Gorge. This neighborhood is part of the Columbia Palisades master development project located off HWY 14 and 192nd Ave between Vancouver and Camas, WA.

40 VBJ TOP PROJECTS JULY 2023
2023 Residential Subdivisions
Completion
Cost:
Start Date: 02/20/2023
Date: 09/20/2023
31 single family home lots and 28 cottage lots located in Vancouver WA

2023 Residential Subdivisions

Northside Phase 2 & 3 5

City: Camas

Construction Cost: $7,524,635 Start Date: 06/01/2022 Completion Date: 05/15/2023

General Contractor: Tapani Inc.

Homebuilder: Pulte Homes

Owner: Pulte Homes

Developer: Pulte Homes

Funding Source: Pulte Homes

Engineers/Planners: Hayward, Uskoski & Associates

Subcontractors: Hildebrand Concrete, 2 Down Services, North Fork Landscape, Karvonen Sand & Gravel, J.L. Storedahl, HD Fowler, Porther W. Yett, Inc., Walltek, North 40 Fencing, Clark County Painting

Located on the border of Camas and Washougal, the Northside Subdivision Phase 2 project transformed 22 acres of land into a 91 lot subdivision with views of the North mountain range, Columbia River, and Lacamas Lake.This project included 161,000 square feet of new road construction; new utility systems including 7,000 linear feet of sewer main, 4,500 linear feet of water main, and 3,000 linear feet of storm main; over 15,350 square feet of retaining walls; new state-of-the-art playground; Verti-crete Columns/Fence.

Columbia Eden 6

City: Vancouver

Construction Cost: $7,000,000 Start Date: 03/07/2023 Completion Date: 09/30/2023

General Contractor: Rotschy Inc.

Homebuilder: Arete Real Estate Co.

Owner: Anvil Holdings, LLC

Developer: Anvil Holdings, LLC

Funding Source: Private

Architect: TBD

Engineers/Planners: SGA Engineering

9 Single Family Residential Lots, located along SE Evergreen Highway in Vancouver WA.

JULY 2023 VBJ TOP PROJECTS 41

2023 Residential Subdivisions

Riverside Townhomes 7

City: Vancouver

Construction Cost: $6,800,000 Start Date: 06/01/2021 Completion Date: 07/01/2023

General Contractor: Tapani Inc.

Homebuilder: Cedars Construction

Owner: Romano Capital

Developer: Romano Capital

Funding Source: Romano Capital

Architect: Steelhead Architecture

Engineers/Planners: AKS Engineering

Riverside Townhomes is a premier rental community of 15 luxury units featuring high-end amenities and is situated along the breathtaking Columbia River waterfront in Vancouver, Washington.

42 VBJ TOP PROJECTS JULY 2023

2023 Residential Subdivisions

8 9

City: Battle Ground

Homebuilder: LGI Homes

Construction Cost: $6,000,000 Start Date: 08/01/2022 Completion Date: 08/01/2023

General Contractor: Rotschy Inc.

Owner: Hurley Development

Developer: Hurley Development

Funding Source: Trez Capital

Engineers/Planners: PLS Engineering

Woodin Creek is a residential development featuring a variety of housing types on about 55 acres east of State Route 503 in Battle Ground. Woodin Creek includes almost 500 residential units after completion, including 128 townhomes, 191 detached lots and a 180-unit apartment community called Prose Battle Ground. With the first units delivering in the fall and completion scheduled for the spring of 2024, Prose Battle Ground features one, two and three-bedroom units in five three-story buildings with a community clubhouse, workout facility, business center, barbecue area and outdoor activity centers.

Woodin Creek Parkstone Heights

Construction Cost: $4,680,000 Start Date: 01/05/2023 Completion Date: 07/21/2023

City: Vancouver

General Contractor: Rotschy Inc.

Homebuilder: Arete Real Estate Co.

Owner: Parkview Heights LLC

Developer: Tanner Wideriksen

Funding Source: Private

Architect: TBD

Engineers/Planners: SGA Engineering

JULY 2023 VBJ TOP PROJECTS 43
An 18 single family residence subdivision located in Vancouver WA.

Northside Subdivision Phase 4 10

Construction Cost: $4,053,579 Start Date: 06/10/2022 Completion Date: 05/15/2023

City: Washougal

General Contractor: Tapani Inc.

Homebuilder: Toll Brothers, Inc.

Owner: Toll Brothers, Inc.

Developer: Toll Brothers, Inc.

Funding Source: Toll Brothers, Inc.

Architect: N/A

Engineers/Planners: Hayward, Uskoski & Associates

Subcontractors: Hildebrand Concrete, 2 Down Services, North Fork Landscape, Karvonen Sand & Gravel, J.L. Storedahl, HD Fowler, Porter W. Yett, Inc., Walltek, North 40 Fencing, Clark County Painting

The Northside Subdivision Phase 4 project successfully transformed 15 acres of land into a 40-lot subdivision. This comprehensive project included the construction of over 83,900 square feet of new roads, ensuring improved accessibility within the subdivision. Additionally, a new utility system was installed, featuring 1,600 linear feet of storm main, 3,400 linear feet of sewer main, and 2,400 linear feet of water main, ensuring efficient and reliable services for the residents. The project also included the construction of a 10,000 square foot retaining wall to provide structural support and maintain landscape stability. A state-ofthe-art playground was created, offering a safe and enjoyable space for children, while the installation of Verti-crete columns and fences enhanced both the aesthetics and security of the subdivision. These developments  have significantly elevated the Northside Subdivision Phase 4, resulting in a desirable and wellequipped residential area for the community.

44 VBJ TOP PROJECTS JULY 2023
2023 Residential Subdivisions
Datebook on vbjusa.com Submit your business events www.vbjusa.com/submit-to-datebook/ Congratulations Top Project Winners! Making Our Client’s Vision a Reality SGA Engineering proudly provided engineering and planning services on: • 179th St. Apts East • Hazel Dell Ave. Apartments • Furniture • • • Felida • • ubdivision • • k Subdivision • Parkstone Heights www. SGAengineering.com 360.993.0911 EGolemo@SGAengineering.com
JULY 2023 VBJ TOP PROJECTS 45 Feilda Woods 11 Construction Cost: $3,800,000 Start Date: 02/06/2023 Completion Date: 05/01/2024 City: Vancouver General Contractor: Hamilton Excavating Homebuilder: Evergreen Homes NW Owner: Evergreen Homes Developer: Evergreen Homes NW Funding Source: Private Architect: Designed Under Builder-Evergreen Homes Engineers/Planners: SGA Engineering 2023 Residential Subdivisions Project Description: 2.19 acres developed into 7 single family detached lots in one phase. 360.695.2442 | WWW.VBJUSA.COM 1605 OFFICERS ROW | VANCOUVER, WASHINGTON 98661 We’ve got you covered. e Vancouver Business Journal is the voice of Southwest Washington Business. Visit www.vbjusa.com to subscribe.
46 VBJ TOP PROJECTS JULY 2023 Congratulations to the 2023 Top Projects! Thank You! to our sponsors

As a not-for-profit credit union, giving back to the community is part of what we do and it’s the part that we value most. That’s why, for 90 years, OnPoint has donated its time, energy and expertise to the people living in the communities we serve. Join us. Together, we do great things.

More than $2,300,000 donated to charitable causes and organizations in 2022.

JULY 2023 VBJ TOP PROJECTS 47
The best part of being a community credit union is the community part.

Celebrating 100 years of banking on more than money

Thank you for banking with us

Turn static files into dynamic content formats.

Create a flipbook