


![]()



Lee & Associates, as exclusive representative, is pleased to present the opportunity to acquire a multi-tenant medical/professional building located at 200 N Ash Street (“the Property”), located in the beautiful San Diego County community of Escondido, California. The 11,640 square foot medical/ professional office building represents a rare opportunity for an owner-user to acquire an attractive investment property in one of San Diego’s most upand-coming commercial submarkets.
Surrounded by North County’s affluent communities of Rancho Bernardo, Vista and San Marcos, the location sits minutes away from access to I-15 and CA-78, providing convenient access to San Diego South-Urban, San Diego North-Coastal and the Inland Empire (San Bernadino & Riverside Counties), one of the fastest-growing population centers in the United States, approximately 40 miles east of Los Angeles.

The information contained in this Marketing Brochure has been obtained from sources we believe to be reliable. However, Lee & Associates has not and will not verify any of this information, nor has Lee & Associates conducted any investigation regarding these matters. Lee & Associates makes no guarantee, warranty or representation whatsoever about the accuracy or completeness of any information provided.
As the Buyer of real estate, it is the Buyer’s responsibility to independently confirm the accuracy and completeness of all material information before completing any purchase. This Marketing Brochure is not a substitute for your thorough due diligence investigation of this opportunity. Lee & Associates expressly denies any obligation to conduct a due diligence examination of this Property for Buyer. Any projections, opinions, assumptions or estimates used in this Marketing Brochure are for example only and do not represent the current or future performance or value of this property. The value of the property to you depends on factors that should be evaluated by you and your tax, financial, consultants and legal advisors. Buyer and Buyer’s tax, financial, legal, consultants and all advisors should conduct a careful, independent investigation of any property to determine to your satisfaction the suitability of the property for your needs.
Like all real estate, this property carries significant risks. Buyer and Buyer’s consultants, legal and financial advisors must request and carefully review all legal and documents related to the property. Any info provided including fees and costs are not guaranteed and should be verified by Buyer. These figures are subject to change at any time based on market, economic, environmental or other conditions. Buyer is responsible for conducting his/her own investigation of all matters affecting the intrinsic value of the property and the value of any potential development or use of the property.
By accepting this Marketing Brochure you agree to release Lee & Associates and hold it harmless from any kind of claim, cost, expense, or liability arising out of your investigation and/or purchase of this property.
Address:
200 N Ash St, Escondido CA 92027
Submarket: Escondido/I-15 Corridor
Site Area: 28,750 SF / 0.66 AC
Building FAR: 0.50
Year Built: 1975
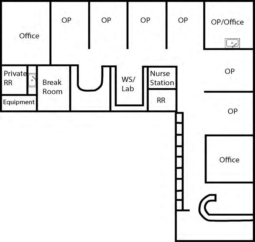
Main/Upper Level - 9,000 SF
Square Footage:
Lower/Garage Level - 2,640 SF
Total - 11,640 SF
Zoning: C-P: Professional Commercial
Construction: Wood Frame
Parking Ratio: 4.00/1,000
Parking Spaces: 24 Surface, 20 Covered
Walk Score: Very Walkable (89)





















» Wide Variety of Professional & Medical Uses Allowed
» Flexible Floorplans/Configurations Available
» Existing Plumbing Improvements Throughout Building
» Convenient Accessibility to I-15 & CA-78
» Palomar Medical Center less than a 5-Mile Drive


»Ample Parking – Surface & Garage
»Secured Parking Garage with Tenancy Opportunities
»High Walk-Score to Restaurants/Cafes/Services/Retail
»Elevator Served From Garage to Main Level
» Highly Visible Stand-Alone Building












» 3,427 RSF
» Contiguous with Suites 100/101/102 for up to 6,034 RSF

not to scale
























































































































































1. 1802 S ESCONDIDO BLVD









1. 910 E OHIO AVE
Total SF: ±13,990 SF
Price Per SF: $214/SF
List Price: $3,000,000
Notes: 100% Leased Owner-User Opportunity

2. 474 W VERMONT AVE
Total SF: ±12,300 SF
Price Per SF: $260/SF
List Price: $3,200,000
Notes: 100% Leased Single-Tenant Sale Leaseback

3. 220-222 W 2ND AVE
Total SF: 4,000 SF
Price Per SF: $350/SF List Price: $1,400,000
Notes: Owner-User Opportunity



4. 1900 SUNSET DR Total SF: ±7,326 SF
Per SF: $334/SF
Price: $2,500,000 Notes: 100% Leased 11-Unit Retail/ Office


5. 300 W GRAND AVE Total SF: 20,260 SF
Per SF: $296/SF
Price: $6,000,000
Notes: 67% Leased Investment

1. 201 E GRAND AVE
Total SF ± 2,000 SF
Lease Rate $1.30/SF/MO



2. 210 S JUNIPER STREET
Total SF: ±1,133 SF
Lease Type: FS 3. 362 W MISSION AVE Total SF: ±1,200 SF Lease Rate: $1.60/SF/MO
Lease Type: NNN


Lease Rate: $1.50/SF/MO
Lease Type MG 4. 925 E PENNSYLVANIA AVE Total SF: ± 1,050 SF
Lease Type: NNN



105 N ROSE ST
Lease Type: MG








