

Nvbola, la torre más alta de Puebla
Memoria de trabajo para obtener el título de licenciado en Arquitectura
Rafael de Jesús Rojas Soler
Asesor: Arq. Hugo Castañeda Peredo
Corrección ortográfica y de estilo: MDE. Alejandra Palmeros Montúfar

Nvbola, la torre más alta de Puebla
Índice
Introducción 1/
Trabajar en Blue Icon
2/
Edificios Usos Mixtos
Caso México
Casos Análogos
-Nacional
-Regional
3/
Análisis de sitio
-Urbano normativo
-Estructura urbana
-Infraestructura y servicios
-Restricciones
-Imagen urbana
4/
Justificación
Descripción general
Programa arquitectónico
-Subterráneos
-Planta baja
-Primer nivel
-Nivel 2
-Niveles 3, 4 y 5
-Niveles 6 a 37
-Niveles 38,39 y 40
-Nivel 41
Conceptos de diseño
-Fachadas principales
-Fachadas laterales
-Fachadas de plaza comercial
-Interior de la plaza comercial
-Acceso principal plaza comercial
-Plafones en amenidades
-Gimnasio
-Gimnasio mezzanine
-Nvbola en su contexto urbano
Descripción arquitectónica por nivel
-Planta baja
-Nivel 1 comercial
-Nivel 2 roof garden y oficinas
-Nivel 3 a 5
-Planta tipo departamentos nivel 6 a 35
-Departamentos laterales
-Departamentos centrales
Fotografía del departamento lateral
-Oficinas, night club y spa nivel 38
-Planta de gimnasio, karaoke, caída de alberca infinita nivel 39
-Planta de alberca infinita y restaurante nivel 39
-Sala de heliopuerto y cancha de pádel nivel 40
-Planta de heliopuerto azotea
Descripción estructural
-Cimentación
-Descripción del criterio y cálculo de instalaciones
-Instalaciones sanitarias
-Sistema de bombeo
Nvbola, la torre más alta de Puebla
-Instalaciones pluviales
-Instalaciones eléctricas
Descripción sustentabilidad
5/ Conclusiones 6/ Glosario
Bibliografía
Introducción
Mediante el presente trabajo se obtiene el título en la licenciatura en Arquitectura por la Universidad Gestalt de Diseño. Es una descripción detallada sobre la experiencia laboral que tuve después haber concluido todas las materias en la carrera de arquitectura, en la desarrolladora inmobiliaria llamada “Blue Icon” donde ejercí los conocimientos adquiridos en mis estudios universitarios.
Al seleccionar la opción de titulación por memoria de trabajo profesional, método de titulación que ofrece la Universidad Gestalt de Diseño, presentaré este trabajo escrito basado en mi desempeño profesional que permita evaluar mis conocimientos aplicados en la práctica.
Asimismo, haré referencias importantes que permitan conocer y entender mi participación, aportación y creación en los proyectos que he desarrollado.
Como parte fundamental de este trabajo hice una reseña de las actividades y funciones, resaltando la importancia de mi perfil como arquitecto enfocado al diseño, cerraré el documento con mis conclusiones a modo de propuesta, reconociendo así la influencia que tuve en mi formación educativa al concluir mis estudios en la Universidad Gestalt de Diseño.
Los edificios de usos mixtos son característicos de las grandes ciudades para brindar a sus habitantes vivienda, movilidad y acceso a satisfactores básicos. Una solución que ha venido incrementando gradualmente desde fines del siglo XIX y de manera más rápida en lo que va del siglo XXI, es el desarrollo de ciudades verticales en consecuencia de la perdida de espacios para el crecimiento de los desarrollos urbanos horizontales, a raíz de la depredación de los territorios que las rodean.
Los desarrollos verticales implican la transformación del paisaje urbano en beneficio de la recuperación de los pocos espacios verde con los que generalmente las grandes ciudades cuentan.
Nvbola, la torre más alta de Puebla
En nuestros días es difícil pensar en proyectos de grandes dimensiones como el que presento, sin incorporar espacios comerciales que sirven a los habitantes o usuarios del inmueble y a visitantes o consumidores externos. Estas edificaciones son cada vez más atractivas para los desarrolladores, porque aumentan la productividad del terreno ante los incrementos de los costos del suelo y por ende, el retorno de su inversión es más rápida.

Ciudad de Dubái, Emiratos Árabes Unidos.
Nvbola, la torre más alta de Puebla
Trabajar en Blue Icon
Blue Icon es una desarrolladora inmobiliaria 100% mexicana ubicada en la ciudad de Cholula, Puebla. Surgió en el año 2010 con la idea de crear proyectos inmobiliarios de vanguardia en la ciudad, revolucionar el mercado y subir los estándares de calidad, confort, diseño, estética, funcionamiento y plusvalía en las viviendas verticales.
La empresa inmediatamente comenzó a crear proyectos arquitectónicos de gran escala utilizando los usos múltiples, espacios donde los habitantes tuvieran todos los servicios en un mismo lugar, sin necesidad de desplazarse, usar el automóvil e incluso sin salir de su propio edificio.
La empresa siempre ha optado por utilizar la tecnología e innovaciones en la construcción, herramientas y maquinaria que permiten crear imágenes 3D, recorridos virtuales, visualización en realidad virtual e impresión 3D. En la rama de la construcción opta por sistemas constructivos modernos, materiales para la construcción innovadores, maquinarias que nunca se han usado en el país, etc.
De igual manera, opta por proyectos ambiciosos, de gran magnitud e impacto, en los cuales las personas involucradas en la creación nos sintamos orgullosos del haber aportado nuestros conocimientos, esfuerzo y habilidades para crearlos y llevarlos a la realidad.
Comenzaron con el proyecto “Sonata Towers” el cual es un conjunto de 3 torres de departamentos con amenidades y servicios propios de los residentes y una plaza comercial en los niveles inferiores, la cual ofrece servicios al público general.

Logotipo de la empresa Blue Icon.
La empresa se divide en dos áreas para arquitectura: Obra (construcción) y Proyecto (diseño arquitectónico).
Mi enfoque y formación siempre se ha inclinado por el diseño, así que me desempeñé en el área de “Proyecto”, entrando con la propuesta de “Sonata Towers”. Mi puesto en un principio era de auxiliar del coordinador del proyecto.
Desempeñaba tareas de propuestas arquitectónicas, acabados, texturas, mobiliario, elaboración de planos arquitectónicos, instalaciones y planos para ejecución de obra; me encargaba en especial de la creación de renders o imágenes fotorealistas y daba visitas semanales de supervisión de obra con los arquitectos residentes.
Posteriormente ascendí al puesto de coordinador del proyecto, el cual involucraba toma de decisiones en el proyecto, presupuestos para ejecución de obra, definición de materiales, proveedores, acabados, etcétera.
Una vez culminado “Sonata Tower“, se presentó el proyecto “Nvbola” una torre residencial de gran altura, la cual se buscó que fuera un nuevo ícono para la ciudad, gracias a su diseño, la vanguardia y la dimensión del proyecto; es así como se proyectó “la torre más alta de Puebla.”
“Nvbola” es la torre residencial más alta de Puebla, la torre con una altura de más de 180 m. Cuenta con departamentos, amenidades, servicios, roof garden, helipuerto y plaza comercial en la parte inferior. La exclusiva torre tiene como concepto principal la vanguardia y el diseño, enfocada para un mercado de nivel socioeconómico alto.
Para este proyecto y por sus proporciones se contó con dos coordinadores del proyecto.
Se necesitó una gran coordinación entre proyecto y obra, ya que día con día se presentaban situaciones extraordinarias a lo planeado en proyecto, así como requerimientos especiales para la construcción de tales magnitudes, las cuales se resolvían principalmente en proyecto y después se ejecutaban en obra.
Nvbola, la torre más alta de Puebla
Edificios de Usos Mixtos
En este capítulo se presenta el contexto histórico donde se expone la tipología de arquitectura del proyecto que se presentará, en este caso edificios de usos mixtos. Se hace la mención de algunos antecedentes de edificaciones de este tipo, casos análogos nacionales, cuál es su evolución a lo largo de la historia y una línea del tiempo.
Nvbola, la torre más alta de Puebla


El crecimiento desmedido de los núcleos urbanos obligó a los urbanistas a creas soluciones para el mejoramiento urbano, sin embargo existen algunas ideas antepasadas que se están actualizando y renovando para emplearlas efectivamente.
Los grandes proyectos urbanísticos o de vivienda de usos múltiples se remontan a la antigüedad. Hoy en día casi ningún gran proyecto se limita a diseñar un edificio exclusivo para oficinas o solo para vivienda, ofrecen a los habitantes de las ciudades integrar todo en un mismo lugar.
Este no es un concepto innovador. Tradicionalmente las comunidades se han asentado siguiendo líneas del uso mixto, es decir, que reúnen todos los recursos en un área centralizada. Un ejemplo de esto son las plazas de mercado de la antigua Roma, donde las tiendas, las viviendas, la administración y a menudo las bibliotecas estaban entremezcladas en el mismo sitio.
Con la Revolución Industrial aparecieron nuevas leyes de urbanismo donde contemplan una separación más estricta entre el trabajo y los espacios para vivir. La aparición del automóvil reforzó esta tendencia industrial apoyando la aceptación de largos desplazamiento para ir al trabajo o a realizar compras, así como el éxodo del centro de la ciudad a las periferias.
Actualmente, están retomando los proyectos urbanísticos de usos múltiples ya que las personas pasan mucho más tiempo en la ciudad y los grandes proyectos están a la vanguardia. Además, desde los 90´s las leyes de urbanismo son más laxas en cuanto a la utilización y combinación de usos para los edificios. Con ello, los desarrolladores han encontrado un camino para crear conceptos que satisfagan, en una única zona, diversas necesidades de los habitantes.
Edificios de Usos Mixtos
Edificio de usos mixtos Al Faisaliyah Center, situado en el distrito financiero de Riad, Arabia Saudita.
Caso México
En México el concepto de edificaciones de usos mixtos es donde se incluye vivienda, área comercial, área de negocios, amenidades, hotel, áreas verdes, salones de eventos, etc. Se detonó a gran escala en el año 2000 con las primeras edificaciones que se arriesgaban en traer este mercado, influenciados por la globalización y las grandes metrópolis donde estos edificios dan una solución a una necesidad urbana por aprovechar al máximo la tierra y el espacio donde se construye.
Hace 20 años era poco factible encontrar departamentos de 40 m2. Hoy en día existen muchos desarrollos que los ofrecen debido a que el uso mixto les brinda todo necesario: restaurante, servicios para el hogar, tiendas, bares, gimnasio, amenidades, incluso áreas de trabajo tipo business center o home office para no tener que desplazarse hacia su oficina o trabajo fuera del edificio.
Con el tiempo las necesidades de las personas han cambiado y al tener todo en un mismo lugar las personas cambian sus actividades y están menos en su departamento, por eso actualmente los espacios en los departamentos han reducido hasta un 30%.
Nvbola, la torre más alta de Puebla
También ofrecen un beneficio a la movilidad, evitando usar el automóvil, y se desplazan peatonalmente debido a la cercanía o falta de traslados de largas distancias por la concentración de servicios que ofrece el mismo edificio o los edificios contiguos.
En su mayoría los primeros en interesarse por estos edificios eran personas mayores por tener en la planta baja un supermercado o tienda de conveniencia para no tener que salir de su propio edificio, sin embargo actualmente muchas personas influenciadas por el ritmo de vida y los cambios de movilidad optan por este tipo de complejos habitacionales.
En cuanto al sentido estético los usos mixtos ofrecen mayor calidad en los acabados en sus fachadas, lo que eleva la plusvalía del entorno. Actualmente se ofrecen áreas ajardinadas y fuentes, espacios al aire libre, de recreación y ocio con áreas infantiles equipadas. Los estacionamientos ofrecen espacio para todo tipo de vehículos para su resguardo, la seguridad incluye accesos monitoreados las 24 horas así como entradas independientes para los diferentes usos del edificio: área residencial, de negocios, comercial, etc.

Skyline CDMX, México.


CASOS ANÁLOGOS
Edificios de usos mixtos en México
Nacional Reforma 222
Este referente tiene gran importancia por ser uno de los primeros edificios de uso mixto en México, arriesgando y trayendo este nuevo “boom” en las construcciones modernas, debido a la influencias de nuevas construcciones de las grandes ciudades en el mundo.
El diseño de este proyecto corre a cargo del arquitecto mexicano Teodoro Gonzáles de León, mediante un concurso que ganó compitiendo con las más prestigiadas firmas del país.
Este conjunto está conformado por 3 edificios: una torre para oficina, otra torre de uso residencial y una plaza comercial con tiendas de moda, decoración, área de comida rápida, restaurantes, cine con 11 salas, plazoleta y paseos comerciales con fuentes y espejos de agua, todo ello bajo una gran cubierta de cristal que llega hasta la entrada y acceso principal al área comercial de este gran proyecto.
Debido a su ubicación en la Zona Rosa, sus fachadas con dirección hacia Reforma y Avenida Insurgentes, este complejo es unos de los sitios más concurridos y neurálgicos de la zona.
La Torre 1 es una edificación de 31 pisos, con una altura de 125.8 m y con un área total de 41,000 m2 de construcción, con entrepisos con altura libre de 3.67 m. Su forma de espiral le ha ganado el apodo por su peculiar diseño. El edificio está cubierto con una fachada de cristal templado de 20 milímetros de cristal extra claro, con dos capas de cristales que lo envuelven y le dan una efectividad superior ya que controlan los rayos UV y provocan un ahorro de energía, así como también obtiene beneficios acústicos. Tiene un sistema anti sismo que cubren altas normas de seguridad, con 50 amortiguadores sísmicos en la estructura del edificio y 78 pilotes de acero de 50 m de profundidad en su cimentación.
Nvbola, la torre más alta de Puebla
La Torre 2 cuenta con 25 pisos para uso de oficinas, su forma tiene una inclinación posterior que brinca la integración de los demás edificios del proyecto. Un vestíbulo con una doble altura es el que recibe y conduce mediante 6 elevadores de alta velocidad a las oficinas en los diferentes pisos; estas oficinas tienen aproximadamente 800 m2, con luz natural y vistas hacia la ciudad en la mayoría de sus lados. El sistema de aire acondicionado que se ocupa en todo el complejo también funciona para esta torre.
Debido a la zona sísmica en la que se ubica esta torre, cuenta con 50 amortiguadores sísmicos, 78 pilotes que llegan a los 60 m de profundidad en su cimentación. Incluye equipo sanitario de bajo consumo, colectores pluviales, una planta de tratamiento de aguas residuales además de un uso eficiente de agua no potable.
La Torre 3 tiene una altura de 93 m y agrupa 19 niveles de departamentos sobre una plaza comercial. Cuenta con 98 locales a lo largo de todo el desplante del edificio y repartidos en 3 niveles, conectados por puentes por los que se accesa mediante escaleras eléctricas y elevadores panorámicos. Un cuarto nivel tiene un cine que contiene 11 salas. Tiene 5 niveles de estacionamiento subterráneo, el cual tiene la capacidad para albergar más de 2000 automóviles, con cajones de uso especial para personas con capacidades diferentes, cajones para motocicletas y bicicletas.

Fotografía de edificio de usos múltiples Reforma 222 ubicado en Paseo de la Reforma #222 en la Ciudad de México.

Este complejo de edificaciones corresponde a un claro cambio de siglo dentro de la arquitectura en México, así como el método de construcción y materiales innovadores aplicados para ese tiempo. El complejo de edificios Roma 222 es tan importante para la Ciudad de México que impactó en el panorama de la ciudad, muchas veces fue y es tomado como ícono para identificar a la avenida Reforma.
Nvbola, la torre más alta de Puebla
Complejo de edificios Reforma 222, Ciudad de México.
Regional
Sonata Towers
Un conjunto de torres con la característica de ser un edificio de usos múltiples. Se encuentra ubicado en Lomas de Angelópolis en San Andrés Cholula, Puebla y se desplanta sobre un terreno de 8,0000 m2. Cuenta con un total de 59,000 m2 de construcción en 3 torres de 18 niveles, una plaza comercial y área de oficinas dentro de 3 niveles; hay 2 niveles de estacionamiento subterráneo divididos en área residencial y comercial.
El basamento o planta baja se encuentra a nivel de la calle. Ambas áreas residencial y comercial cuentan con acceso propio y rampas de acceso a sótanos. Para el área comercial se contemplan tres niveles divididos de la siguiente forma: planta baja comercial para restaurantes, café, bar o locales con giro gastronómico. El primer nivel comercial se ubica locales de ropa, estéticas, lavanderías, servicios, paquetería, boliche, etc.
El segundo nivel comercial se destina exclusivamente para oficinas, salas de juntas, áreas de trabajo y un Work Center para aquellas personas que necesiten rentar un espacio para trabajar a distancia o remotamente. Esta plaza está rodeada por terrazas para los propios locales, área ajardinada y una fuente que enmarca y resalta el acceso principal a la plaza comercial.
Para el área residencial el acceso independiente para residentes, cuenta con caseta de seguridad y vigilancia las 24 horas para acceso peatonal y vehicular. Al ingresar directamente al motor lobby se encuentra una fuente danzante que engalardona este conjunto habitacional. Las tres torres cuentan con su propio Lobby con doble altura, recepción, servicio de “Conserh” y servicio de Car-wash para residentes.

Fotografía de Motor Lobby de complejo habitacional Sonata Towers

Las torres se desarrollan de la siguiente manera:
Torre Nueve: Torre residencial de 18 pisos con altura de 72 m. En cada nivel se desplantan 4 departamentos tipo de 148 m2. Estos departamentos incluyen 2 recámaras con baño completo, sala, comedor, cocina, baño de visitas, cuarto de servicios y terrazas. En el nivel 3 se encuentra el roof garden que comparte con las demás torres y se encuentran los vestidores y regaderas de la alberca. Y en planta baja está con su lobby de doble altura con acceso al cine, una amenidad exclusiva para los residentes; este cine está equipado con butacas reclinables, proyectos de alta calidad, pantalla de proyección tipo cine y sonido Dobly Surround
Torre Allegra: Torre residencial de 18 pisos con altura de 72 m. En cada nivel se desplantan 4 departamentos tipo de 148 m2. Estos departamentos incluyen 2 recámaras con baño completo, sala, comedor, cocina, baño de visitas, cuarto de servicios y terrazas. En el nivel 3 contempla 2 amenidades: un área de Home Office espacial para los residentes que lo necesiten para trabajar o tener una sala de juntas privadas en su propio edificio; también se ubica el Kids Club un amenidad para que los residentes dejen a sus hijos pequeños en un área recreativa y lúdica para su cuidado y estancia.

Torre Doce: Torre residencial de 18 pisos con altura de 72 m. En cada nivel se desplantan 4 departamentos tipo de 148 m2. Estos departamentos incluyen 2 recámaras con baño completo, sala, comedor, cocina, baño de visitas, cuarto de servicios y terrazas. En planta baja se ubican varias amenidades; en el mezzanine del lobby está el gimnasio, un área equipada con pesas, aparatos multifuncionales, caminadoras, bicicletas, salón de yoga, área de regaderas y sanitarios con su propio cuarto de vapor. En la misma planta mezzanine comparte área con el spa, área diseñada para el uso de los residentes donde pueden tomar diversos tratamientos, masajes, terapias, etc. En planta baja y dentro del lobby de esta torre se da acceso al night club, un salón de usos múltiples que funciona como bar, karaoke o salón de eventos. Cuenta con su propia cocina industrial y terraza tipo lounge.
Nvbola, la torre más alta de Puebla
Fotografía de terraza en el roof garden del nivel 3 en Sonata Towers
Fotografía de andadores en el roof garden del nivel 3 en Sonata Towers
En el nivel 3 es donde las torres se intercomunica mediante el roof garden con más de 3,000 m2, con pasto natural, andadores, mobiliario, vegetación y árboles de mediana altura. Este espacio cuenta con un mini-golf completamente equipado, área de asadores al aire libre, área de albercas y asoleaderos. La terraza tipo bar ubicada en este jardín está cubierta por una pérgola metálica y cubierta de vidrio templado con película contra rayos UV que minimiza y regula la temperatura. Este roof garden fue y sigue siento uno de los más grandes de Puebla, siendo un parteaguas en este tipo de edificaciones, un lugar que los residentes agradecen mucho y por lo tanto, de los más concurridos en este complejo.
Proyectos de este estilo están marcando la pauta en las construcciones modernas para la ciudad de Puebla. Desde hace unos años hacia acá Puebla se está desarrollando exponencialmente. No hay desarrollo actualmente que no se construya pensando en los usos mixtos. Esta tendencia continúa y ha tenido un gran éxito para las desarrolladoras de estos proyectos, ya que actualmente siguen surgiendo nuevos proyectos de esta índole por toda la ciudad.

Conjunto de torres y plaza comercial Sonata Towers, Lomas de Angelópolis, San Andrés Cholula, Puebla.
Nvbola, la torre más alta de Puebla
Análisis de Sitio
En este capítulo se expone de manera clara la descripción del sitio, con un análisis urbano normativo en donde se ubica el proyecto Nvbola y de nivel biótico de la zona.
Urbano Normativo Localización
El predio se encuentra ubicado al Sur-Oeste en la zona periférica de la ciudad de Puebla, en un distrito llamado “Lomas de Angelópolis”, que se encuentra sobre la Vía Atlixcáyolt donde se une con la Carretera Federal Atlixco-Puebla.
La Vía Atlixcáyotl es el eje rector del crecimiento. Es actualmente cruzada por tres vialidades (Blvd. del Niño Poblano, Av. de las Torres y el Periférico Ecológico), que son el complemento junto con sus franjas laterales y sus espacios sub urbanizados para la ubicación de nuevos desarrollos, con equipamientos escolares, universitarios, culturales, para la salud, gestión gubernamental, así como para el establecimiento de edificaciones para el comercio, habitación, oficinas corporativas, entre otros, además de la mejor infraestructura en servicios, adquiriendo la plusvalía que la distingue del resto de la ciudad.
El terreno cuenta con una superficie de 8,996.80m2, se encuentra con un desnivel referido por la vialidad de tal forma que cuenta con una pendiente de forma descendente hacia el fondo del terreno.

Nvbola, la torre más alta de Puebla
Ubicación del distrito Lomas de Angelópolis en la ciudad de Cholula, Puebla.

Localización del proyecto Nvbola, Lomas de Angelópolis, San Andrés Cholula, Puebla.
Las colindacias viales con las que cuenta son: en el norte encontramos la Carretera Federal Atlixco-Puebla, al Este con el Boulevard Interamericano, al Oeste con la avenida Artántida y al Sur con el boulevard Europa.
El proyecto Nvbola se encuentra ubicado sobre el Boulevard América y Avenida Antártida, ambos de dos carriles y un solo sentido. La avenida Antártida conecta al Boulevard América y tiene comunicación con puente San Martinito y Blvd. de los Reyes, como vía de acceso principal al desarrollo de lomas de Angelópolis II y al boulevard Europa dentro del área de Sonata.
Estructura Urbana
En el entorno del predio se encuentra la Carrertera Federal AtlixcoPuebla una carretera importante con pavimento asfáltico que comunica a dos ciudades vecinas. Esta carretera se considera de gran flujo debido a la cantidad de vehículos por hora que llegan a trasitar.
El uso de suelo para esta zona dentro de Lomas de Angelópolis es de uso mixto. Esta zona comenzó siendo un anexo a la mancha urbana existente. Funcionaba en conjunto de colonias integrado hacia el interior sobre una zona ejidal agricola donde existia grandes terrenos para el desarrollo urbano de la ciudad y su área metropolitana. Al principio fue concebida como una supermanzana, estructurada a partir de ejes y avenidas transverales cuyo impulso serían centros comerciales y clústers de viviendas de nivel medio-alto y alto, aislados y amurrallados con casetas de acceso para cada uno de ellos.

Estructura urbana en lomas de Angelópolis conformada por diversos edificios y plazas comerciales.
Pero esta zona en la práctica fue rebasada por su extensión original a lo planteado, lo que la convirtió en una zona diferente a cualquiera de toda la ciudad. Actualmente encontramos equipamientos sociales y culturales, diversas instituciones de educación privada, gran cantidad de edificaciones y en su mayoría clústers.
Nvbola, la torre más alta de Puebla
Infraestructura y servicios
Esta zona y su periferia cuenta con todos los servicios a su disposición como es agua potable, electricidad, telefonía, sistemas de televisión por cable, ducterias subterraneas de gas natural y drenaje. Las carretera que colinda con esta zona tiene carpeta asfaltica, las avenidas y boulevares que rodean al terreno cuentan con pavimento hidráulico, señalamientos en letreros y en piso, alumbrado público de energía solar, estaciones de emergencia, red de telecomunicaciones, centro integral de monitoreo, semáforos y cruces peatonales, banquetas delimitadas con pequeñas jardineras y un camellón central.
El servicio de recolección de basura pasa por los clústers y por las avenidad brindando este servicio con normalidad dos veces por semana y se ubican unos contenedores para depósitos de basura. La vigilancia y seguridad en esta zona se realiza por medio de la policia municipal y por la seguridad del distrito “Lomas de Angelópolis” ya que cuenta con su propia administración y seguridad interna. También ofrecen cámaras de video vigilancias las 24 hrs en puntos estratégicos del distrito.

Los accesos a esta zona pueden realizarse mediante vehiculo particular, transporte público o peatonalmente. El distrito cuenta con sus propios transportes internos los cuales ofrecen un precio más económico para los usuarios al transporte público tradicional. Dentro del distrito es muy recurrido el uso de la bicicleta ya que se cuenta espacios destinados para su uso y carriles especiales para este medio de transporte alternativo.
Gran Boulevard Lomas de Angelópolis, San Andrés Cholula, Puebla.
Restricciones
Siendo un distrito con su propia andministación interna conlleva ciertas normas y restricciones para cuidar la imagen urbana y seguir con patrones generales para las construcciones y áreas colindantes como banquetas, camellones, jardineras, etcétera.
En las banquetas se debe respetar una anchura de 1.60 m con el mismo tipo de adoquín que se ocupa para todo el distrito; se considera una pequeña jardinera de 40 cm y la terminación debe estar boleada. Los accesos del proyecto en donde intercepten con la banqueta se pide señalética para indicar el cruce de peatones y alto total por parte de los vehiculos.
Este predio se sitúa lejos de algún factor que pudiera evitar la construcción hacia abajo o arriba del predio. Esto facilita la proyección del proyecto como se tiene concebido.
El distrito exige para proyectos de este tipo un área libre de 5 metros perimetral libres de construcción de cubiertas, siendo permitidos los pergolados, techumbres y aleros.
En cuanto a restricciones y reglamentacion de servicios de drenaje, agua y electricidad se toman los mismos establecidos por las instituciones que suministran estos servicios a toda la ciudad.

Nvbola, la torre más alta de Puebla
Baqueta, calle y vitapista de Lomas de Angelópolis, San Andrés Cholula, Puebla.
Imagen urbana
Dentro del distrito Lomas de Angelópolis aledaño al predio, se encuentra una urbanizacion habitacional con edificios de usos mixtos y también algunas instituciones educativas colindando directamente con un conjunto de 3 torres habitacionales y plaza comercial por un lado está una institución educativa llamada “Colegio México Nuevo”, un conjunto de edificios de 10 m de altura. En el entorno se encuentran más desarolllos similares donde contemplan torres departamentales con áreas comerciales y otras instituciones educativas de nivel universitario.
Siendo una zona en desarrollo existen grandes terrenos en donde no se han visto intervenidos, pero siendo la tendencia de la zona se planea en un futuro que todos esos terrenos se proyecten más edificios de usos múltiples, plazas comerciales o culturales.

Center Town de Lomas de Angelópolis, San Andrés Cholula, Puebla.
Un punto de gran congestionamiento vehicular se genera precisamente en el Boulevard América, ya que éste se conecta con el puente que es uno de los accesos al distrito y tiene un flujo de 300 automóviles/hora en horas pico. Afortunadamente esta zona cuenta con una muy buena imagen urbana. Con apoyo de la administración encargada se da mantenimiento constantemente a las avenidas, calles, vegetación, señalética y mobiliario urbano del distrito, manteniando una estética siempre agradable. Esto genera plusvalía, lo que la ha convertido en una las zonas nuevas y más exlusivas de Puebla.

Nvbola, la torre más alta de Puebla
Distrito Lomas de Angelópolis, San Andrés Cholula, Puebla.
Descripción
del proyecto
En este apartado se explica y se justifica de manera clara el objetivo de este proyecto, también explica por qué este proyecto se desarrolló así y por qué se eligió esta tipología de vivienda. Finalmente nos habla sobre porqué cada día se opta en proyectos de este tipo para futuros proyectos en las grandes ciudades o ciudades en desarrollo.
Nvbola, la torre más alta de Puebla
Justificación
Puebla una ciudad histórica, rica en cultura, población, lugares, industria y actualmente destacándose por ser un gran lugar de desarrollo.
Los hitos históricos arquitectónicos en Puebla están bien definidos. Debido a su historia e importancia para la sociedad, el crecimiento de la ciudad hacia el Sur-Poniente está obligando la necesitad de expandir sus terrenos habitacionales y ante la llegada de más habitantes temporales o permanente que buscan viviendas cada vez con mejores servicios y calidad. A su vez, se crean nuevos centros comerciales, servicios, espacios para el ocio, recreación, cultura y deporte.
La demanda desmedida para la obtención de terrenos y el crecimiento horizontal de la ciudad, obliga a las personas a situarse en las periferias.
“Nvbola” plantea un proyecto arquitectónico de gran ambición, por las características propias de su altura; busca integrarse de manera amigable al entorno, siguiendo diseños de arquitectura contemporánea a base de un conjunto de formas curvas y euclidianas que conforman el edificio.
Se busca también la concentración de servicios, áreas comerciales y residenciales en un mismo lugar donde una gran cantidad de personas puedan ubicarse y vivir sin la necesidad de desplazarse a grandes distancias. Se pretende convertir en un complejo habitacional de usos mixtos donde debido a sus dimensiones sea un moderno hito urbano para la ciudad. Un nuevo símbolo para una ciudad que combina historia y modernidad.

Contexto urbano e hitos hacia el sur-poniente de Puebla.
Descripción general
La torre Nvbola surge para crear nuevos símbolos en la ciudad de Puebla, una ciudad donde se combina historia, cultura y modernidad. Este gran proyecto busca ser un nuevo símbolo para la ciudad, dar orientación urbana y formar un hito en la zona donde el crecimiento de la cuidad está floreciendo.
Un edificio se plantea con un total de 40 niveles y 198 metros de altura en su punto más alto, convirtiéndolo en el más alto de Puebla. Será un edificio de usos mixtos ya que se combinan departamentos con amenidades para el área residencial y locales, tiendas, área de oficinas y business center para el área comercial.
Será la torre más exclusiva de puebla con helipuerto de uso comercial, la alberca semi-olímpica más alta del país y una de las más altas del mundo, cancha de pádel, restaurante a más de 150 metros de alto, entre muchos otros sevicios.

Nvbola, la torre más alta de Puebla
Render de torre Nvbola, vista desde el Boulevard Europa en Lomas de Angelópolis ll
Diagrama de funcionamiento
























































Programa arquitectónico
A continuación se muestra cada planta arquitectónica apoyada de una imagen referente a su plano de manera simplificada. Se incluye la descripción puntal de cada uso en ellas y el orden en el que están constituidas; las áreas se distribuyen y se ordenan de la siguiente manera:
• Subterráneo 4
• Subterráneo 3
• Subterráneo 2
• Subterráneo 1
• Planta baja comercial / Motor lobby residencial
• Nivel 1 Comercial
• Nivel 2 Comercial
• Nivel 3, 4 y 5 Oficinas
• Nivel 6 a 37 Departamentos
• Nivel 38 Oficinas / night club / spa
• Nivel 39 Gym / karaoke / oficinas / caída de alberca infinita
• Nivel 40 Alberca infinita / restaurante
• Nivel 41 Sala de helipuerto / Cancha de pádel
• Azotea helipuerto

Torre “Nvbola” fachada esquemática de niveles y ocupación.
Nvbola, la torre más alta de Puebla
/ Subterráneos
- SUBTERRÁNEO 4: Tiene cabida para 47 cajones de estacionamiento destinados para uso residencial; se comunica a subterráneo 3 por medio de unas escaleras peatonales y una rampa vehicular.
- SUBTERRÁNEO 3: Está destinado a zona comercial, con 263 cajones de estacionamiento; en este nivel inicia el recorrido de elevadores de servicio y residenciales, así como el núcleo de escaleras de servicio que comunican a toda la torre. Las cisternas y cuartos de máquinas de bombeo se encuentran por debajo de este nivel a una profundidad de 5 m con respecto al nivel.
- SUBTERRÁNEO 2: 258 cajones de estacionamiento se alojan en este subnivel, siendo 200 para uso comercial y 58 para uso residencial. Tiene acceso al núcleo de elevadores y escaleras de servicio. En este nivel se encuentra ubicado la planta de emergencia eléctrica, así como el inicio de las escaleras eléctricas hacia subterráneo 1 y zona comercial.
- SUBTERRÁNEO 1: Cuenta con 155 cajones de estacionamiento comercial y 38 de uso residencial. El motor lobby de zona residencial se encuentra en este nivel, el cual presenta una doble altura de 15 m y un área de vacío. Se comunica con los demás niveles por medio del núcleo de elevadores y escaleras de servicio, así como por escaleras eléctricas que van hacia la planta baja. Contiguo al muro perimetral de la av. Antártida se sitúa el cuarto de transformadores eléctricos, que se comunican horizontalmente en el mismo plano con el “site” del edificio y cuarto de tableros de distribución, próximo al núcleo central de elevadores y escaleras de servicio. Cuenta con dos accesos al subterráneo 1, uno de uso comercial y otro de uso residencial, a los cuales se accede a través de una rampa comunicada al boulevard Europa. En este mismo nivel se localiza el control de vigilancia, también están concentrados los servicios de carga y descarga de la torre. La capacidad de cajones de estacionamiento de los 4 subterráneos es de 761 cajones totales.

Ubicación de los subterráneos

/ Planta baja
NPT=+0.90 M (+ Mezzanine)
El basamento o planta baja cuenta con acceso peatonal con bahía vehicular equipada con escalones y rampa para salvar la altura con respecto al nivel de calle. Remata la plaza explanada con accesos múltiples a la zona comercial con equipamiento arquitectónico como áreas ajardinadas, circulaciones peatonales, bancas, y una fuente tipo espejo de agua. A demás cuenta con terrazas de uso comercial contiguas a los locales comerciales del interior. En zona comercial se establecerán 17 locales comerciales con un nivel de mezzanine para cada uno, un local de servicios sanitarios, escaleras eléctricas, núcleo de escaleras y elevadores de la torre con vestíbulos de recepción para las amenidades de los niveles superiores. En la parte posterior de la planta baja se ubica un acceso de servicios, con área de recolección de residuos, patio de maniobras, vialidad de servicio y rampa de acceso a av. Antártida.

/ Primer nivel
NPT=+8.50
M (+ Mezzanine)
De igual forma que en planta baja se establecen 17 locales comerciales, con un nivel de mezzanine para cada uno, locales de servicios sanitarios y de recolección de residuos, escaleras eléctricas, núcleo de escaleras de servicio y elevadores de la torre.
Nvbola, la torre más alta de Puebla
Torre “Nvbola” fachada esquemática de planta baja de la torre.
Ubicación en corte transversal del primer nivel en la torre Nvbola
/ Nivel 2 NPT=+16.00 M
Este es el último nivel de superficie horizontal con mayor amplitud que el del cuerpo de la torre con el cual se termina el bloque base del edificio. Se accede a este nivel por medio de las escaleras de servicio y los elevadores. En este nivel al exterior de cuerpo de la torre se encuentra un roof garden circundante donde estarán algunas amenidades para los residentes como alberca, cancha de básquetbol, pista de trote y área de fogata, así como un módulo de sanitarios, con regaderas y vestidores para uso de la alberca, así como áreas de servicio de la zona comercial. Al interior del edificio y divididos por el eje de escaleras y elevadores de la torre se emplaza las amenidades de kids club y home office. La superficie restante será destinada como local para oficina con acceso al Roof garden.

Ubicación en corte transversal del nivel 2 en la torre Nvbola
Niveles
3, 4 y 5 NPT=+20.00 A +28.00 M
Son tres plantas tipo destinadas a 9 locales de oficinas con acceso a los demás niveles por medio de las escaleras de servicio y elevadores. Presentan cancelerías en fachada de piso a techo y rejillas tipo louver para permitir la ventilación natural, con una altura entre losas de 4 m. y servicios de instalaciones hidrosanitarias, eléctricas y de voz y datos a pie de local. Tiene acabados aparentes al interior para permitir el adecuado acondicionamiento según cada necesidad.

Torre “Nvbola” fachada esquemática de niveles 3 , 4 y 5 de la torre

Ubicación en corte transversal del nivel seis al treinta y siete en la torre Nvbola.
Niveles 6 A 37
NPT=+32.00 A +152.00 M
Son 31 niveles de departamentos distribuidos 6 departamentos por nivel. Los departamentos cuentan con baño de visitas, 2 baños completos, cuarto de lavado, sala, comedor, cocina, 2 recámaras, terraza en perimetría hacia fachada con cancelería de piso a techo y ventanas de proyección. Los departamentos están divididos por muros de block con aislamiento térmico y acústico; los pisos y muros de los baños serán forrados con loseta de mármol y/o piso cerámico; los pisos de las recámaras son cerámicos. Plafones y cajillos son estilo retro iluminados fabricados con panel de yeso en todos los espacios. La carpintería en puertas y armarios tienen acabado en blanco al alto brillo. Los departamentos están equipados con todas las instalaciones necesarias.

Ubicación en corte transversal del nivel treinta y ocho al cuarenta en la torre Nvbola.
En los últimos tres niveles del edificio se encontraran las amenidades: una alberca semi-olímpica en el nivel 40, con un muro llorón el cual rematar en una alberca menor en el nivel 39. Se ubican los módulos de elevadores y escaleras. La cancelería en fachada de esos tres niveles en el sentido longitudinal presenta una inclinación de la base hacia el interior, misma que será resultante del trazo curvo de la fachada y los elementos que la envuelven. Se emplea cancelería de cristal templado de 12mm con refuerzos de estructura metálica. Los acabados de los espacios destinados para amenidades dependerán del diseño de cada una, contemplando el uso de recubrimientos cerámicos, muros de panel de yeso y/o cemento, pastas y pinturas tanto en muros y plafones.
Nvbola, la torre más alta de Puebla
/ Nivel 41 y Helipuerto
NPT=+177.00 Y +181.00 M
Se accede a este nivel por medio de un módulo de escaleras de servicio y un elevador. En el nivel 41 de azotea se encuentra un helipuerto con roof garden de espera bajo la losa, y el equipamiento necesario para su funcionamiento. En este nivel rematan los elementos envolventes de la fachada. Se sitúan también, las coladeras del sistema de instalación pluvial que se conectan hasta el nivel de subterráneo.
El punto más elevado de la torre es el nivel de piso terminado del helipuerto con 181 metros de altura con respecto a nivel de calle con acceso al roof garden.

Ubicación en corte transversal del nivel 41 y helipuerto en la torre Nvbola
Conceptos de diseño
Para el proceso de diseño de este gran proyecto era inevitable tomar los conceptos de diseño básico, los cuales son una gran herramienta para la creación de cualquier diseño arquitectónico. Es la transición de una idea subjetiva donde una metáfora proyectada da pie a un sentido arquitectónico. Teniendo un concepto claro los conceptos guían una función y da valor estético al proyecto, evitando caer en el manierismo.
A lo largo de la formación académica para los estudiantes de la Universidad Gestalt de Diseño se nos explica, enseña y valora con estos conceptos para aplicarlos en nuestro trabajo profesional. Este proyecto no fue la excepción. A continuación se muestran algunos conceptos de diseño básico aplicados en la torre Nvbola.
Desde los primeros bocetos que surgieron para la idea de la torre se optó por un diseño que sobresaliera de los demás edificios en su contexto, esto es no recurrir a formas regulares o paralelepípedos rectangulares, siendo este tipo de geometrías muy recurrentes en su contexto. Otro de los factores por el cual no se optó por estas geometrías fue por la magnitud y la intensión es que con este proyecto se formará un nuevo hito de la ciudad.
- Fachadas principales
Movimiento. Este concepto ofrece dinamismo en objetos estáticos sin que realmente se desplacen. Para simular movimiento en un objeto estático se puede emplear la diferencia gradual y como en este caso con una repetición presentada.
Debido a su gran altura la torre se tomó este concepto, para lograr este efecto en la fachada: se emplearon terrazas voladas con diferentes dimensiones, las cuales aumentan y disminuyen su tamaño para que en conjunto y a lo largo de toda la verticalidad de la torre, se perciba movimiento.

Nvbola, la torre más alta de Puebla
Concepto de movimiento aplicado en el diseño y forma de la torre.
Ritmo. Consiste en una repetición en forma consecutiva, donde la regla es que por lo menos dos elementos interactúen de forma continua; va de la mano con el concepto de movimiento.
Se aplica en las terrazas de la fachada ya que son un conjunto de elementos similares que van aumentado y disminuyendo para crear la forma de la torre.
Direccionalidad: Es un movimiento orientado o guiado hacia un punto de interés específico.
La torre Nvbola está encausada hacia el cielo. El concepto de esta torre, es enfatizar su altura y diseño que el usuario sienta que alcanza las nubes y tener vistas de toda la ciudad por encima de todas las demás edificaciones.

Render de torre Nvbola, niveles departamentales, penthouse y amenidades.
- Fachadas laterales
Continuidad. Es la cualidad de un elemento para no se interrumpirse y dar integración total en cualquier dirección de los espacios.
Este concepto se acentúa en cada fachada lateral por la gran estructura de acero, recubierta con paneles de alucobond que dan seguimiento a la línea formada de todas las terrazas desde el nivel 2 hasta la azotea de la torre, unificando y acentuando el concepto que da forma y fue empleado para el diseño de la torre en general. Esta gran grapa a base de un bastidor metálico y recubierto de alucobond, le da la forma a la torre.

Esquema de “grapa” de la torre, vista lateral, frontal e isométrica.
Nvbola, la torre más alta de Puebla
- Fachadas de plaza comercial
Repetición. Para llevar a cabo este concepto es necesario determinar un elemento principal el cual será repetido más de una vez en un conjunto, donde cada elemento presenta una forma idéntica a los demás, únicamente cambiando su dirección, ubicación o color.
Los muros laterales de la plaza comercial se revistieron con piezas de alucobond moldeados con formas triangulares. Ésta es la forma principal que se repite para todo el conjunto.
Modulación. Se presenta cuando existe una repetición de elementos o ritmos obteniendo una red o trama, en cualquier formato.
Es empleado en los elementos triangulares que recubren los muros que en su conjunto forman una especie de trama.

Movimiento. Se da un sensación de desplazamiento o actividad dinámica sin que los elementos realmente lo hagan.
El movimiento se percibe debido a su variabilidad en la colocación y juego de aumento o disminución de los volúmenes. Otro factor importante es la sustitución de algunas piezas triangulares por ventanales; esto acentúa el concepto dando mayor profundidad al elemento.
Vista de fachada lateral para la plaza comercial
- Interior de la plaza comercial
Continuidad. Este concepto es utilizado en otros elementos. Se presenta cuando un elemento se encuentra interrumpido y generalmente cambia de dirección para hacer su trayecto más largo.
Se aplica en el interior de la plaza comercial en el diseño de las luminarias que se integran al plafón, las cuales son orgánicas por sus formas irregulares y curvas marcadas por la planta de cada local. Estas luminarias son elementos continuos como líneas que asemejan trazos que acompañan todo el pasillo comercial.


También se incluyen algunos elementos de fachadas interiores de los locales comerciales, por ejemplo, un muro-mueble donde un muro o elemento de fachada interior que rodea el acceso del local se convierte en un elemento de mobiliario para el público.
Nvbola, la torre más alta de Puebla
Muro-mueble al interior de la plaza comercial.
Render de pasillos interiores de la plaza comercial.
- Acceso principal plaza comercial
Ritmo. Concepto que se basa en la repetición sucesiva de varios elementos similares o distintos en una secuencia.
Movimiento. Se presenta en diferentes puntos del proyecto creando dinamismo en los elementos.
Repetición. Consiste en que varios elementos se multiplican en conjunto los cuales toman un elemento principal de replica para formar un elemento constante.
Para el acceso principal de la plaza comercial se proyectó una fachada de cancelería con una sobre-estructura. Ésta tiene función estética en brindar una sensación dinámica a la fachada, basada en conceptos de ritmo y movimiento, pero también otorga una funcionalidad climática.
Las estructuras verticales se repiten a lo largo y por enfrente de la fachada del acceso principal. Estos elementos tiene una pequeña rotación y dan el efecto de movimiento. La repetición de estos elementos y una rotación variable de formas continuas brinda en su conjunto un ritmo.

Concepto de repetición y ritmo aplicado en el diseño de fachada de la plaza comercial.
Además, estos elementos sirven para controlar la temperatura en esta fachada, teniendo la misma función que un pergolado tradicional, pero en este caso es vertical.
- Plafones en amenidades
Penetración. Se define como la relación entre dos o más elementos que interactúan entre sí, estos elementos pueden o no tener contacto.
En las amenidades, específicamente en los plafones, se cuenta con elementos que apoyan este concepto que aun sin tocarse dan este efecto visual. En el caso del restaurante, el plafón en color blanco es el elemento principal donde se ve intersectado por grandes elementos oscuros que son utilizados como pantallas para las luminarias en el área de los comensales.

Nvbola, la torre más alta de Puebla
Render de restaurante de torre Nvbola, referencia de un concepto de diseño en plafón.
- Gimnasio
Continuidad. Los elementos pasan ininterrumpidamente y cambiando de dirección en el espacio para brindar la sensación de amplitud o, en este caso, que los espacio no se vean delimitado por los muros divisorios.
En los pisos se maneja este concepto. Ayuda a delimitar espacios o como ayuda visual indicándonos o guiando algunos trayectos. Esto es el caso del gimnasio, donde la línea del piso da una sensación de amplitud en el espacio, empezando en el acceso del gimnasio y conduciéndo por todo el lugar comunicándose con las diferentes áreas dentro de esta amenidad.


Renders del interior del gimnasio de la torre Nvbola, acentuando el concepto de continuidad en los pisos.
- Gimnasio mezzanine (área de spinning)
Velocidad. Es una composición de varios conceptos donde se incluye movimiento, repetición y direccionalidad. Es el conjunto de varios elementos en diferentes direcciones los cuales ofrecen en su conjunto una espacialidad y movimiento a un elemento fijo.
En el gimnasio se ocupa este mismo concepto para el plafón de madera en el segundo nivel, utilizando líneas de tablones colocados uno junto a otro en secciones continuas y de forma horizontal que cubren toda el área de bicicletas y suben de forma vertical en donde termina el mezzanine, llegando hasta el punto más alto de la losa de este nivel.

Render de mezzanine del gimnasio de la torre Nvbola, acentuando el diseño en plafón.
Nvbola, la torre más alta de Puebla
- Nvbola en su contexto urbano
Ritmo. Es la repetición regular o armónica de elementos, líneas, formas o colores para formar un elemento de mayores dimensiones mediante la unión de todos ellos.
La torre de Nvbola se encuentra ubicada en una zona en desarrollo, donde se están edificando y desarrollando la mayoría de los nuevos conjuntos habitacionales y comerciales en la ciudad de Puebla, esto debido al crecimiento de la ciudad y demanda de la población, incrementando plusvalía a la zona. Debido a esto, en el contexto donde Nvbola se construyó, existe un gran número de edificaciones generalmente de menor altura a la de esta torre. Todo el conjunto de edificaciones pequeñas y medianas mantienen la perspectiva urbana de un ritmo constante. Nvbola se suma y acentúa por sus dimensiones. Tomando así un concepto de diseño básico a nivel urbano al contextualizar el volumen en su espacio.

Render de Nvbola en su contexto, Lomas de Angelópolis ll, Chola Puebla.
Descripción arquitectónica por nivel
Subterráneos tipo
En la planta tipo de estacionamiento subterráneo se pueden apreciar los diferentes tipos de cajones por sus dimensiones y necesidades. Hay cajones exclusivos para personas con capacidades diferentes, cajones para automóviles, cajones para automóviles compactos, áreas para aparcar motocicletas y bicicletas. Los 4 niveles de estacionamiento se encuentran destinados según su ocupación, ya sea residencial o comercial.

Nvbola, la torre más alta de Puebla
Planta tipo de los niveles subterráneos
Para el estacionamiento residencial, cada propietario tiene derecho a 1 ó 2 cajones por departamento que se conectan a los departamentos directamente desde los elevadores o escaleras de servicio que se encuentran en los lobbies residenciales mediante un acceso controlado en el núcleo de la torre.

Lobby residencial para los estacionamientos subterráneos.

Interior de lobby residencial en niveles subterráneos.
Para la zona comercial, también se cuenta con un elevador y escaleras de servicio ubicados en el cada nivel subterráneo con acceso al área comercial.
Planta baja + mezzanine comercial y motor lobby residencial
En el área comercial de la planta baja tiene el acceso principal a la plazoleta y terrazas comerciales, áreas ajardinadas, espejos de agua y una fuente, bahía vehicular de ascenso y descenso dirigida directamente en la escalinata principal.

Nvbola, la torre más alta de Puebla
Planta baja comercial y lobby residencial
La plazoleta cuenta con una bahía vehicular de acceso y descenso integrada a la vialidad, presenta señalética, cebras para pasos peatonales, rampas de acceso, para no afectar la vialidad del boulevard ya que generalmente es muy transitada.

Dibujo esquemático de plazoleta.
La fachada lateral de la plaza comercial se encuentra seccionada en figuras triangulares de alucobond sobre los muros perimetrales de la plaza. Algunas piezas son de vidrio con acabado natural de 9mm para proveer iluminación natural al interior de la plaza.

Render de fachada lateral y terrazas de plaza comercial.
Amplios pasillos con piso cerámico de alto impacto y tráfico pesado rodean a los locales comerciales, salas de estar para uso común, sanitarios públicos, elevadores, escaleras de servicio, escaleras eléctricas, pasillo de servicios y acceso de proveedores; el área de carga y descarga de insumos se encuentran también en este nivel y dentro del área comercial.
Nvbola, la torre más alta de Puebla

Los locales comerciales mantienen una línea estética similar en toda la plaza, así como puertas, cancelerías, aparadores incluso una tipografía uniforme para los letreros.
En el área residencial el acceso principal es al motor lobby. Un gran árbol ubicado en una jardinera que separa la bahía de ascenso y descenso de los residentes. El arroyo se dirige a las rampas con dirección los estacionamientos subterráneos. El lobby residencial cuenta con una altura de 11 metros, considerada como triple altura. Este imponente lobby recibe a los residentes dando una impresión de altitud, vanguardia y modernidad, misma sensación que genera todo el desarrollo. El lobby cuenta con recepción y atención las 24 horas, diversos elevadores y escaleras de servicio que dirigen directamente hasta los departamentos de los residentes o a las amenidades en los niveles superiores de la torre.

Render pasillos y áreas comunes en planta baja.
Render de lobby principal para área residencial.
Nivel 1
Plaza comercial
El nivel 1 es completamente comercial con diversos locales comerciales. Se accede desde planta baja mediante escaleras eléctricas, elevador o escaleras de servicio. En este nivel el pasillo es cíclico y comunica a todos los locales; cada local cuenta con doble altura y mezzanine para su máximo aprovechamiento, así como sanitarios. Se maneja el mismo tipo de cancelería, acabados, letreros, etc. para mantener la misma línea de diseño en todo la plaza.

Planta nivel 1 plaza comercial
Nivel 2
Roof garden y oficinas
El área de oficinas al interior de la torre se distribuye para oficinas, salas de juntas, business center, etc. Las oficinas cuentan con todos los servicios, cancelería de piso a techo con vistas hacia los volcanes y la ciudad. Su acceso es mediante los elevadores de la plaza comercial.

Planta Nivel 2 oficinas y roof garden.
En el nivel 2 del área residencial se encuentra el roof garden. Esta amenidad exclusiva para residentes cuenta más de 300 m2 de área ajardinada con pasto natural, árboles, caminos, andadores, mobiliario para exterior, cancha de usos múltiples, muro de escalar, área de asadores y fogatas, área de juegos para niños, alberca con asoleaderos y un área para sanitarios, regaderas y vestidores.

Roof garden, área de fogatas.

La alberca al aire libre se encuentra en el roof garden. Cuenta con un área de asoleadero recubierta con piso tipo deck de madera y equipada con mobiliario adecuado para disfrute de los residentes. Roof garden, alberca y asoleaderos.
Nvbola, la torre más alta de Puebla
Nivel 3 al 5
Planta tipo de oficina
En esta planta se encuentra dividida en 6 espacios para oficinas. También pertenece al área comercial/business center. Se accesa desde los elevadores o escaleras de servicios de la zona comercial.
Estos espacios cuentan cancelería de piso a techo, cuentan con todos los servicios e instalaciones para su adecuación, con vistas hacia los volcanes y la ciudad de Puebla. Los espacios de las oficinas son de 135 m2 y 200 m2

Planta tipo de nivel 3 a 5 para oficinas
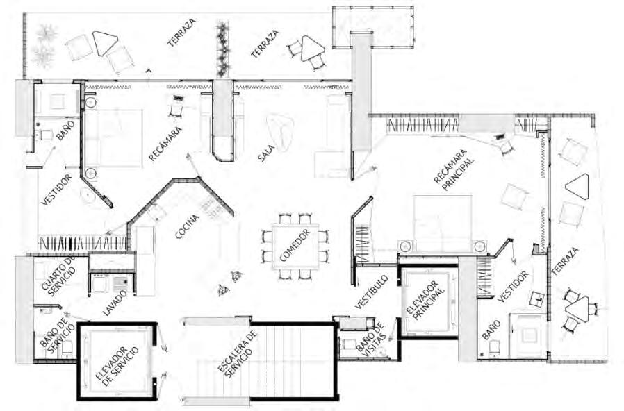
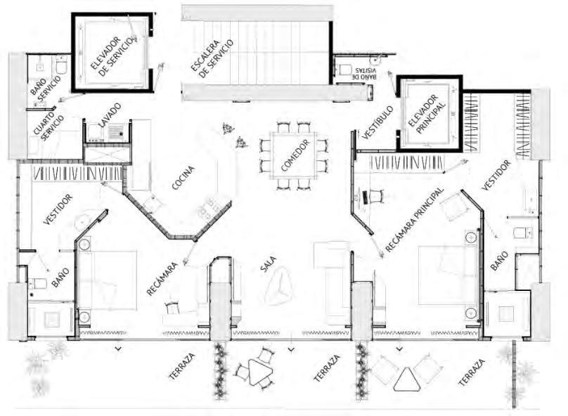
Nivel 6 a 35
Planta tipo departamentos
La planta general de los departamentos se divide en 6 departamentos: 4 laterales de 172 m2 y 2 centrales de 155 m2, más los m2 de terraza con la variante ya que crece o disminuye el área dependiendo su ubicación en el nivel de la torre; todo esto debido a la forma curveada de la torre generada por la variación de las terrazas. Todos los departamentos cuentan con los siguientes espacios:
- Recibidor
- ½ Baño
- Cocina
- Comedor
- Sala
- Terraza
- Recámara principal con baño y vestidor
- Recámara secundaria con baño
- Área de lavado
- Cuarto de servicio con baño

Esquema de planta tipo en niveles de departamentos.
Nvbola, la torre más alta de Puebla
Para accesar a los departamentos se hace directamente desde el elevador residencial, el cual tiene acceso controlado únicamente hasta el departamento o amenidades de uso común.

Planta tipo de departamentos
Los departamentos tipo presentan dos distribuciones y se catalogan en departamentos centrales y departamentos laterales.
Departamentos laterales

Nvbola, la torre más alta de Puebla
Planta de departamentos tipo “A” (departamentos laterales)
Departamentos centrales

Planta de departamentos tipo “B” (departamentos centrales)
El interior los departamentos cuenta con acabados de primera: pisos cerámicos y mármol, plafones según diseño vanguardista, luz indirectas y cajillos con iluminación led, cocina integral y equipada con muebles de línea blanca modernos que conjugan perfectamente con el diseño general; las habitaciones también se encuentran equipadas con mobiliario, armarios, muebles de baño, persianas eléctricas tipo black out, luminarias, contactos, apagadores y muebles de carpintería con acabados de alta calidad.
Las vistas de las terrazas son espectaculares con dirección hacia los volcanes o hacia la ciudad de Puebla gracias a su altura.
La altura libre de los departamentos al interior es de 3.60 m. Esta escala del espacio interior provoca amables sensaciones en la transición entre el interior y exterior
Departamentos centrales
Los últimos dos niveles de departamentos en la torre son para departamentos tipo dúplex. Se desplanta en el nivel 36 y continúan al nivel 37.
Los dos niveles se conectan mediante una escalinata de acero. En cuanto a los acabados de estos departamentos siguen la misma línea de diseño de los otros departamentos, sólo se agrega 1 recámara más y crece el área de sala-comedor de la planta original. Los espacios con los que cuentan estos departamentos son:
Planta baja:
- Recibidor
- ½ Baño
- Cocina
- Comedor
- Sala
- Terraza
- Recámara secundaria con baño
- Cuarto de servicio con baño
Planta alta:
- Recámara secundaria con baño
- Terrazas
- Recámara principal con baño
- Área de lavado
Nvbola, la torre más alta de Puebla
Fotografías del departamento muestra
Departamento tipo A lateral

Fotografía del departamento muestra, área de comedor

Fotografía del departamento muestra, área de sala.
Nvbola, la torre más alta de Puebla

del

Fotografía del departamento muestra, área de lavado y acceso a cuarto de servicios.
Fotografía
departamento muestra, área de cocina.

Fotografía del departamento muestra, recámara principal.

Fotografía del departamento muestra, vestidor de recámara principal.
Nvbola, la torre más alta de Puebla

Fotografía del departamento muestra, baño de recámara principal.

Fotografía del departamento muestra, recámara secundaria.

Fotografía del departamento muestra, baño de recámara secundaria

Fotografía del departamento muestra, terraza de nivel 18.
Nvbola, la torre más alta de Puebla
Nivel 38
Oficinas, night club y spa
En este nivel se ubican las primeras amenidades de la torre, exclusivas para los residentes, a las cuales se comunican con el resto de la torre mediante el cubo de escaleras de servicios y elevadores.

Planta nivel 38 oficinas, night club y spa.
El spa es una amenidad donde los residentes pueden disfrutar de los beneficios de cualquier terapia spa en su propio edificio: camas de masajes, áreas de relajación, tratamientos de belleza, aromaterapia, venta de productos, etc. El spa tiene una propuesta vanguardista: plafones de tablaroca con diseño innovador, pisos de mármol y recubrimientos de madera que dan una sensación de calidez y confort en este espacio donde lo más importante es la relajación.

Render de spa, amenidad de Nvbola.
Esta amenidad cuenta con su propia área de regaderas y sanitarios, vapor, área de guardado y casilleros.
Nvbola, la torre más alta de Puebla

Como parte de amenidades para mayores de edad, el night club está destinada para los residentes que desean tomar una copa, convivir con sus amigos o familiares o simplemente pasar un rato de diversión. Este espacio se conecta con el karaoke ubicado en el nivel superior exactamente sobre del night club. Su diseño está adaptado al ambiente nocturno, con iluminaciones en columnas y plafones que cambia al ritmo de la música, mobiliario acorde al diseño sin dejar a un lado las vistas desde esta gran altura.
Estas amenidades comparten espacio con un área destinada para oficinas privadas, que serán destinadas para los desarrolladores de este edificio, pero que no se comunican con el área residencial, ya que su acceso está controlado por elevador desde la plaza comercial.

Render de espacio para oficinas en la torre Nvbola
Render de spa, área de regaderas, amenidad de Nvbola.
Nivel
39
Planta de gimnasio, karaoke, caída de alberca infinita y oficinas
En este nivel se desplantan varias amenidades y continúan las oficinas del nivel inferior.

Planta nivel 39 gimnasio, karaoke, caída de alberca infinita y oficinas.
Nvbola, la torre más alta de Puebla
El karaoke es una amenidad que se comunica con el restaurante que se encuentra en el nivel inferior, mediante un elevador de alimentos para platillos tipo snacks. Esta amenidad es un lugar de diversión y convivencia para residentes mayores de edad donde pueden ir a cantar, tomar un trago o simplemente un punto de encuentro. Acompañados de un gran diseño moderno, iluminaciones que cambian según el ritmo de la música, pantallas, mobiliario conforme al concepto del lugar y vistas a la ciudad de Puebla.

Render de karaoke night club, amenidad de torre Nvbola.
El gimnasio es otra amenidad que comparte este nivel. En él los residentes cuentan con un área con equipos profesionales para ejercitarse, equipos multifuncionales, caminadoras y equipo de pesas con un diseño moderno y tendencia industrial.

Render de gimnasio, amenidad de torre Nvbola.

Render de gimnasio, amenidad de torre Nvbola.
El gimnasio cuenta con doble altura, mezzanine donde se encuentran áreas de bicicletas, elípticas y caminadoras. El plafón de madera brinda una sensación de calidez y lujo, un concepto que se ofrece en toda la torre.
Aprovechando la doble altura, de la zona, se instaló un muro de escalar en donde las personas puedan practicar esta actividad.
Nvbola, la torre más alta de Puebla

Render de gimnasio, amenidad de la torre Nvbola.

Render de muro de escalar en el gimnasio, amenidad de la torre Nvbola.
En este nivel también se comparte espacio con una pequeña alberca y área de asoleaderos. Esta alberca es la caída de agua de la alberca infinita ubicada en el nivel superior.

Corte esquemático de alberca infinita
Nivel 39
Planta de alberca infinita y restaurante
En el nivel más alto de amenidades dentro de la torre se encuentran el restaurante y la alberca infinita de tamaño semi-olímpica.

Nvbola, la torre más alta de Puebla
Planta nivel 39 de alberca infinita y restaurante
Con vistas espectaculares debido a la altura y del nivel en el que se ubica dentro de la torre, este restaurante es un espacio gastronómico y de encuentro por excelencia. El diseño moderno con plafones y luminarias contemporáneas, mobiliarios diseñados para la conjugación de todo el ambiente hace que esta amenidad sea un punto de encuentro constante para los residentes y visitantes de la torre.
Los acabados son de primera: piso de mármol en área de sanitarios, muebles hechos a la medida con textiles de la mejor calidad. El juego de alturas mediante plafones de tablaroca convierte a este restaurante en el más alto de la ciudad y sin duda con la mejor vista.

La alberca semi-olímpica con vista infinita es la amenidad más atractiva de este proyecto, ya que se encuentra a una altura de 174 metros de altura; esto la convierte en la alberca más alta del país y una de las más altas en el mundo. Presenta una cascada que desemboca en el nivel inferior y ya que cada nivel tiene 6 metros de altura, se crea el efecto conocido como “alberca infinita”.
Render de restaurante, amenidad de la torre Nvbola.
Éste es un gran atractivo para todos los residentes ya que se distribuye la riqueza de la vista más alta que su propio edificio tiene y no como tradicionalmente se plantea con penthouses en el último nivel. Todos los residentes pueden disfrutar de este gran panorama.
En la fachada de la caída de agua de la alberca se tiene una fachada de piso a techo a base de cristal templado tipo cortina de 12 milímetros unida mediante nodos metálicos.
La alberca está acondicionada con pisos anti-derrapantes, un diseño moderno, plafones espectaculares con cajillos de tira led y luminarias constelaciones, carriles de nado, alberca iluminada y climatizada.
En un área aparte se encuentran las bombas y equipos técnicos para el funcionamiento de la alberca, donde se controla la temperatura del agua, iluminación, drenado y llenado.

Render de alberca semi-olímpica, amenidad de la torre Nvbola.
Nvbola, la torre más alta de Puebla
Nivel 40
Sala de helipuerto y cancha de pádel
En este nivel se desplanta la última amenidad al aire libre de la torre; prácticamente en la azotea se encuentra una cancha de pádel, con las medidas oficiales para lo que los residentes puedan realizar esta actividad en completo disfrute de las vistas más espectaculares. Esta cancha tiene protecciones y está perimetrada por paneles de acrílico de 12 mm, los cuales impiden accidentes.

Planta nivel 40 sala de helipuerto y cancha de pádel
La cancha considera el equipamiento necesario para realizar este deporte: luminarias, marcadores y área para espectadores.
Las gradas están ubicadas a un costado de esta cancha para los espectadores o visitantes. Es muy llamativa para los habitantes por su ubicación en la torre.

Render de cancha de pádel, amenidad de la torre Nvbola.
Esta amenidad comparte espacio en planta con la sala de estar del helipuerto. Esta sala es un área de espera o recepción para las personas que requieran de este servicio, ya se residente o visitante. El acceso está controlado por un elevador.
Nvbola, la torre más alta de Puebla

Render de sala del helipuerto.
El diseño de la sala de estar del helipuerto tiene plafones de madera, pisos de mármol, acabados cálidos en los muros y mobiliario con diseño moderno, para provocar una sensación de confort para las personas.

Render de sala del helipuerto.
Azotea
Planta de helipuerto
En la azotea se encuentra el helipuerto, una estructura de acero que se eleva sobre el último nivel de la torre para recibir a las aeronaves que aquí despegarán o aterrizarán.

Nvbola, la torre más alta de Puebla
Planta azotea helipuerto
Este helipuerto cumple con toda la reglamentación de aeronáutica y normas para su funcionamiento. Debido a que es un servicio de uso comercial requiere un diseño de plataforma, dimensiones, equipamiento y reglamentación oficial.
De la plataforma del helipuerto se conecta a la sala de estar mediante unas escaleras metálicas donde los pasajeros esperan su vuelo o se reciben al aterrizar.

Render de plataforma de helipuerto.
Descripción estructural
La estructura de la torre Nvbola considera 4 sótanos, planta baja con doble altura, 1 nivel de comercios también con doble altura, 4 niveles de oficinas y 34 niveles de departamentos y áreas comunes, azotea y helipuerto.
El diseño de las estructuras se realizó de acuerdo con los requisitos de los siguientes documentos:
a) Reglamento de Construcción para el Municipio de Puebla. 1994.
b) Normas Técnicas Complementarias para Diseño por Sismo. 2004.
c) Normas Técnicas Complementarias para Diseño y Construcción de Cimentaciones. 2004.
d) Normas Técnicas Complementarias para Diseño y Construcción de Estructuras de Concreto. 2004.
Cimentación
El sistema de cimentación está basado en 84 pilas de 33 m de largo, cada una con un armado de varilla metálica que pesa 5 y media toneladas y 49 m3 de concreto para dar forma a estas grandes pilas, distribuidas en la planta de la torre.

Planta de ubicación de pilas en cimentación.
Nvbola, la torre más alta de Puebla

Fotografía de armado de pilas de acero para cimentación.
Para amarrar todas estas pilas se incluye un gran dado que las une. Este dado de concreto armado mide 55 metros por 25 metros con una altura de 3 metros. Para realizar este gran colado de manera correcta, se seccionó en 3 partes, donde los colados se realizaron de manera segmentada y en diferentes días.

Corte longitudinal de dado de cimentación.

Fotografía de dado de cimentación, sobre las pilas anteriormente colocada y desplante de columnas principales.
Sumando, el concreto armado que se ocupó para la cimentación llega a una cifra aproximada de 9,400 m3
El sistema vertical de soporte está formado por columnas y muros de concreto reforzado sobre los que se apoyan trabes del mismo material. Sistema estructural

Fotografías de armado de columnas y muros de carga, algunos con cimbras preparados para colarse.
Nvbola, la torre más alta de Puebla
El sistema de piso está constituido por una losa de concreto reforzado aligerada de 27 cm de peralte en estacionamientos subterráneos y 25 cm de peralte en el resto de los niveles, con nervaduras postensadas en una sola dirección con una separación a ejes de 125 cm entre ellas, apoyadas en trabes de concreto reforzado y/o postensado.

Losas de entrepiso
Las losas postensadas coladas en sitio son armadas principalmente con acero de presfuerzo formado por “torones” (agrupaciones de alambres de acero de alta resistencia) que se colocan al mismo tiempo que el acero de refuerzo común y se tensan cuando el concreto llega al 70 u 80% de su resistencia. Por su trazo parabólico con que se coloca el acero de presfuerzo, su tensado ejerce una fuerza interna en la estructura que se opone al sentido de aplicación de las cargas, reduciendo los efectos de éstas.
Fotografías de colado de losas tipo de los siguientes niveles, mediante bomba mecánicas para alcanzar esas alturas.

Presfuerzo aplicado en las nervaduras de las losas.
En cambio el “presfuerzo” comprime la sección transversal de la losa reduciendo los esfuerzo de tensión en el concreto y por lo tanto, la cantidad de acero de refuerzo necesario. Con este sistema es posible tener menores espesores de losa que los requeridos en losa de concreto reforzado tradicional, mayores claros entre los apoyos y se disminuye la fisuración y las deflexiones.
Este sistema resulta muy efectivo y recurrido en obras de gran y mediano tamaño de unas décadas a la fecha, por lo tanto existen varios capítulos dedicados a ellos en cuanto a reglamentación internacional.

Concepto gráfico de sistema de concreto armado postensado.
Nvbola, la torre más alta de Puebla
El sistema sismo-resistente está formado por marcos de concreto reforzado y muros de cortante. La transmisión de fuerzas a los marcos se realiza por medio de la losa que actúa como un diafragma rígido. Se considera que la acción accidental más desfavorable a la que estará sometida la estructura durante su vida útil corresponde a la acción sísmica. En este proyecto se utilizó el método dinámico modal-espectral para obtener las fuerzas horizontales producidas por sismo actuando en dos direcciones perpendiculares.
Para el análisis estructural se utilizó un modelo tridimensional basado en hipótesis de comportamiento lineal correspondiente a una relación lineal entre esfuerzo y deformación. Para el análisis de usó el programa de computadora “RCBuildings”, respetando las restricciones establecidas en el Reglamento del municipio de Puebla, el RCDF 2004 y sus Normas Técnicas Complementarias.
Los elementos estructurales reforzados fueron dimensionados conforme a los criterios de estados límite de falla y de servicio, especificados en las Normas Técnicas Complementarias del Reglamento de Construcciones para el D.F.
El diseño de las columnas en cuanto el refuerzo longitudinal y el transversal, fueron determinados los capítulos 2, 3 y 6.2 de las Normas Técnicas Complementarias para Diseño y Construcción de Estructuras de Concreto.
Para el diseño de los muros sus refuerzos fueron determinados de acuerdo a lo establecido en los capítulos 2, 3 y 6.5 de las Normas Técnicas Complementarias para Diseño y Construcción de Estructuras de Concreto.
Por su parte, el dimensionamiento de las trabes reforzadas se realizó de acuerdo a lo establecido en los capítulos 2, 3 y 6.1 de las Normas Técnicas Complementarias para Diseño y Construcción de Estructuras de Concreto.
Las losas postensadas se diseñan de acuerdo al capítulo 9.7 de las mismas normas. El criterio adoptado en el diseño del presfuerzo,
considera como una fuerza reactiva en la estructura que equilibra la acción de las demás fuerzas. El criterio de diseño de los entrepisos se realiza utilizando el presfuerzo como carga reactiva a las cargas verticales; no se toma en cuenta la compresión debido a que se mantiene en niveles bajos de esfuerzo, de otra manera este esfuerzo produciría acortamientos importantes que no son deseables en una estructura continua.

Planta estructural de losas de entrepiso tipo (niveles de departamentos).
Adicionalmente al presfuerzo, todas las nervaduras y las trabes postensadas llevarán refuerzo que, además de lo establecido en el capítulo 7.7 de las normas, cumple con las siguientes condiciones:
- Refuerzo mínimo por temperatura en cualquier zona de los elementos estructurales postensados.
- Refuerzo en cuñas que resulten con tensión; este refuerzo se calcula con un esfuerzo de tensión máximo en el acero de 1100 kg/cm2
- Refuerzo en cantidad de 0.004Ac en zonas de momento máximo, donde Ac es el área de concreto en tensión a partir del eje neutro.
Nvbola, la torre más alta de Puebla
- Refuerzo suficiente para soportar un momento último igual a la suma de la carga muerta y la carga viva, multiplicada por un factor de carga de 1.4 menos el presfuerzo por un factor unitario.
- Refuerzo en anclajes mono-torón consistente en 2 varillas del # 3 con longitud de 30 cm.
- Refuerzo en zonas de gran concentración de anclajes cuyo objeto es conducirlos evitando fisuras producidas por esfuerzos cortantes.
Cuando por razones de construcción sea necesario realizar el postensado en un lugar intermedio, se elegirá el corte de colado en el lugar donde la traza de los cables coincida con el centro de gravedad de la sección. Se colocará un anclaje intermedio que permita postensar la fracción colada y después continuar dicho presfuerzo en el resto del elemento por colar.
El diseño contempla sobretensar los cables hasta una tensión instantánea del 80% del esfuerzo de fluencia del cable para absorber pérdidas por fricción, acuñamiento, acortamiento diferido del concreto y relajación del acero. El acortamiento elástico se absorbe instantáneamente.
El coeficiente de fricción se determinó en la obra al comparar dos cables de la misma longitud, uno de ellos con traza recta y el otro con la traza curva de diseño. Al darles la misma tensión, los alargamientos no son iguales, esto debido a la diferencia de fricción entre ellos. Esta prueba permite afinar y ajustar el diseño y determinar los alargamientos probables del resto de los cables en función del esfuerzo de tensado.
Para la aplicación y distribución del presfuerzo se utilizaron cables monotorones formados por 7 alambres engrasados dentro de una funda de PVC, que garantiza el aislamiento del cable contra elementos exteriores y elimina el riesgo de corrosión al evitar el contacto de los alambres con las sales del concreto y con la intemperie.
Cable monotoron

Esquema
El diseño de los entrepisos postensados se realizó para una flecha máxima de L/800, donde “L” es el claro libre entre paños de apoyos, para las diferentes combinaciones de carga que se utilizan en los entrepisos en condiciones de servicio. Las combinaciones de carga usadas para el diseño son las siguientes:
1. Peso propio de la estructura más presfuerzo.
2. Carga muerta más carga viva máxima más presfuerzo.
3. La flecha máxima en obra no excederá L/500.

Nvbola, la torre más alta de Puebla
Composición de monotoronto con recubrimiento PVC
Fotografía de estructura de la torre finalizada.
de monotoron con recubrimiento de PVC.
Descripción del criterio y cálculo de instalaciones
En este apartado se muestran los cálculos necesarios para el criterio, dimensionamiento y de las instalaciones sanitarias, pluviales e hidráulicas de la torre, todos ellos basados en los reglamentos de construcción de la Ciudad de México, para cumplir con la normatividad.
El proyecto fue ejecutado sobre los lineamientos y especificaciones para las instalaciones hidráulicas y sanitarias, dictadas por las Normas Técnicas para el Diseño y Ejecución de Obras Hidráulicas en el Distrito Federal, El Estado de Jalisco y Estado de Puebla, así como de los lineamientos de la CNA para la elaboración de proyectos de agua potable y alcantarillado.
En los cálculos realizados se utilizó un conteo de muebles de baño, salidas y se consideró empíricamente la cantidad de agua que se va a consumir o cantidad de aguas negras que se van a generar. Esto puede variar dependiendo del tipo de consumo que se tenga por construcción, en nuestro caso se consideró como un edificio residencial y plaza comercial, debido a ellos este estudio se hace por cada nivel de la torre para determinar con más precisión el dimensionamiento de las instalaciones necesarias.
Instalaciones sanitarias
CRITERIO DE CÁLCULO. Para el dimensionamiento de las tuberías y asignación de gastos en cada una de ellas se emplea el gasto máximo instantáneo aprobado por las autoridades, esto para los alimentadores a muebles sanitarios (ramaleos). Para columnas de alimentación se toma en cuenta los factores derivados de estudios llevados a cabo. Basados en la asignación de un gasto por salida o alimentación obteniéndose así el gasto de alimentación principal.
CONSUMO DIARIO O DOTACIÓN. En instalaciones hidráulicas, dotación significa la cantidad de agua que consume en promedio una persona o un determinado servicio durante un día. El valor de la dotación (cantidad en litros), incluye la cantidad necesaria para su aseo personal, alimentos y demás necesidades o satisfacer un servicio en particular.

Íconos de elementos de uso doméstico utilizados para el cálculo de consumo de agua diario.
Por lo anterior, para proyectar una instalación hidráulica, es imprescindible determinar la cantidad de agua que ha de consumirse de acuerdo al tipo de construcción, servicio que debe prestar y considerando el número de muebles que puedan o deban trabajar simultáneamente.
Nvbola, la torre más alta de Puebla
Las dotaciones que se asignan según se indica en la siguiente tabla, no son resultado de una ciencia ni cálculo específico sino son determinadas empíricamente, por lo tanto, en algunos casos los valores de las dotaciones difieren mucho aún para un mismo tipo de local, pero debe comprenderse que el criterio interviene directamente y éste no es universal.
El cálculo de la toma domiciliaria está sujeto al cálculo del gasto máximo horario y para su obtención se recurre a los siguientes conceptos establecidos por parte de la CNA. En cuanto al gasto medio diario se define como la cantidad de agua requerida, para satisfacer las necesidades de una población en un día de consumo promedio.
En cuanto al gasto máximo horario se define como el mayor caudal que se presenta durante la hora de máximo consumo del día de máximo consumo durante el año y, se calcula afectando al gasto máximo diario por un coeficiente de variación horaria.







El suministro de agua para las zonas comercial y de oficinas será proporcionado por un equipo de bombeo exclusivo para estas zonas, desde la casa de máquinas hasta el nivel 5 de oficinas. El equipo estará formado por dos bombas que proporcionaran gasto y carga para el núcleo comercial y de oficinas.








El edificio cuenta con una cisterna con un almacenamiento con capacidad de:
AGUA CRUDA ____________________ 577 M³
AGUA SUAVIZADA ________________ 1,216 M³

Nvbola, la torre más alta de Puebla

Planta de cisterna de la torre.
ABASTECIMIENTO DE AGUA. Dada la altura del edificio, será abastecido por un sistema de bombeo formado por cinco conjuntos de bombas conectados en escalera para suministrar el servicio a cinco zonas de presión como se describe a continuación:
El edificio se ha dividido en dos zonas; zona 1 de baja presión y ésta a su vez se divide en dos sub-zonas una de “baja presión” y una de “alta presión”
La zona 2 del edificio se subdivide en tres sub-zonas: la sub-zona 1 de “baja presión”, la sub-zona 2 de “mediana presión” y la sub-zona 3 de “alta presión”.
La distribución quedará como se muestra en el siguiente esquema:
Zona 1 / baja presión
- Subzona 1 baja presión – del nivel S4 al 14
- Subzona 1 alta presión – del nivel 15 al 22
Zona 2 / alta presión.
- Subzona 2 baja presión – del nivel 23 al 29
- Subzona 2 media presión - del nivel 30 al 36
- Subzona 2 alta presión - del nivel 37 a nivel azotea
Nvbola, la torre más alta de Puebla


Corte de Nvbola, esquema de distribución de agua por bombeo.
Sistema de bombeo
ZONA 1: El primer equipo formado por tres bombas suministrara el gasto y carga para los niveles desde el sótano 4, hasta el nivel 14 (zona 1 BP sub-zona 1 baja presión) iniciando el suministro en el Nivel 6. Estas bombas suministrarán también el gasto para los niveles 15 al 22 (sub-zona 1 alta presión). Un segundo conjunto de tres bombas impulsarán el agua hasta el nivel 22 proporcionando la carga requerida entre el nivel 15 y 22.
ZONA 2: La zona 2 del edificio será abastecida por dos conjuntos de tres bombas cada uno y uno con dos bombas. Los niveles abastecidos serán del 23 al 29 de la sub-zona 2; del nivel 30 al 36 y del nivel 37 a nivel de azotea.

Referencia análoga de un sistema de bombeo con varios equipos.
El primer conjunto de bombas suministrara el gasto total para las tres sub-zonas y la carga requerida para impulsar el agua hasta el nivel 29, el segundo conjunto de bombas recibirá del primer conjunto, el gasto requerido para para la sub-zona 2 (N 30 a N36) y el gasto requerido para la sub-zona 3 (N 37 a N azotea). La carga que proporcionará este equipo será la requerida para alcanzar el nivel 36. El tercer equipo recibirá el gasto requerido para la sub-zona 3 y la carga para alcanzar el nivel de azotea.
Nvbola, la torre más alta de Puebla

RED DE DISTRIBUCIÓN DE LA TORRE. En este caso la red de distribución se considera como del tipo secundaria ya que es para uso interno y exclusivo del edificio.
Debido a que la distribución será por medio de bombeo directo a la red a partir de la cisterna de almacenamiento de agua potable, la operación consistirá en un sistema que garantice la carga hidráulica adecuada para el suministro, considerando equipos que puedan trabajar bajo un variado régimen de la demanda que pueda presentarse durante las 24 horas de un día normal garantizando que la presión sea constante en la red y que el gasto sea de acuerdo a la demandada.
La torre tiene 3 ductos verticales que son las que alimentan y desahogan las instalaciones desde el subterráneo hasta la azotea. En estos ductos pasan las instalaciones sanitarias, hidráulicas, protección de sistema contra incendios, eléctricas y especiales. Estos ductos atraviesan todos los niveles, por lo tanto se encargan de proveer de servicios a cada nivel.

Detalle de ductos principales para instalaciones.
Corte esquemático de cisterna con cuarto de máquinas.

Detalle de ductos principales para instalaciones.
Nvbola, la torre más alta de Puebla
En el caso de los niveles subterráneos estos solo cuentan con alguna toma de agua para uso comercial, se ocupa para limpieza u otros servicios. Se derivan de la toma principal del agua para usos propios y comunes de la torre que viene desde la vertical de la cisterna.
En la planta baja, nivel 1 y 2 el agua, se abastece mediante la derivación de la vertical que viene desde el subterráneo. Las instalaciones van ocultas por el plafón de los pasillos o suben mediante alguna de los 3 ductos verticales. Cabe mencionar que cada local comercial cuenta con su punta hidráulica y medidor.

En el nivel 3 al 5 continúan las verticales comerciales. En el Nivel 5 culminan la dotación hidráulica de área comercial y comienza el área residencial. Al igual que en los locales comerciales, cada oficina cuenta con su punta hidráulica y medidor. En los plafones de los pasillos se ocultan estas instalaciones.
Tuberías ocultas por plafones de pasillos y áreas comunes.
Los niveles 6 al 37, son los departamentos tipo, se utilizó el mismo ramaleo para todos los niveles, tomando también la vertical principal de los ductos y haciendo derivaciones para cada departamentos. En los ductos se encuentran concentrados los medidores y llaves para cierre de agua de cada departamento por nivel en caso de cualquier emergencia. Cada departamento cuenta con su calentador de agua ubicado en el cuarto de servicios.
En el nivel 38 el agua se obtiene de la misma forma: sube por los ductos principales, se deriva y distribuye en toda la planta. En este caso, sólo se encuentran amenidades para uso exclusivo de residentes, por lo tanto esta agua es tomada de los usos propios y comunes de la torre. En los ductos se encuentran ubicados las llaves para el corte de este servicio en caso de reparación o emergencia. Las tuberías van ocultas sobre los plafones y se distribuyen a la planta mediante las columnas o muros.
El nivel 39 es una planta importante para las instalaciones hidráulicas, aquí se encuentra la alberca semi-olímpica, que se abastece mediante la dotación del agua de la cisterna, a través de la red de ductos principales de la torre. Una vez que llegar hasta esta altura es dirigida al cuarto de máquinas de la alberca, donde el agua se filtra y pasa por unas bombas de calor para regular la temperatura de la alberca. En este cuarto también se encuentran las llaves para el cierre de este servicio.

Cuarto de máquinas para una alberca semi-olímpica.
Nvbola, la torre más alta de Puebla
Para este caso la tubería que dirige al agua a la alberca no baja de los plafones sino que llega a través del lecho bajo de la losa del piso 39, es decir por debajo de la losa de este nivel, ya que el cuarto de máquinas se encuentra en un punto medio entre el nivel 38 y 39, ya que por especificación técnica el cuarto de máquinas y de bombeo debe de encontrarse por debajo del nivel de la alberca.
En el cuarto de máquinas de la alberca se encuentran los equipos para su correcto funcionamiento. Estos son:
- Filtro: Por aquí pasa el agua que llega de la cisterna o la que se encuentra ya en la alberca y a través de este equipo se limpia la basura o suciedad que exista. Este filtro también requise mantenimiento de limpieza o “retrolavado” cada determinado tiempo para quitar la suciedad acumulada.
- Motobomba: Este es el motor de la alberca y es un equipo primordial para su funcionamiento. Su función es recircular el agua filtrada y resiste los químicos que le aplican a el agua para mantenerla limpia.
- Generador de cloro: Este equipo dosifica la cantidad de cloro que se le aplica a el agua de la alberca de manera automática, cada determinado tiempo.
- Timer: Sirve para controlar de manera automática el tiempo en que la motobomba estará encendida, estableciendo un tiempo según las dimensiones de la alberca.
- Conexiones: Estas son las válvulas, también llamadas anti-retorno, donde las uniones dejan pasar agua, pero no permiten regresarla.

Planta 39 de la torre Nvbola, con ubicación del cuarto de máquinas para la alberca.
Para el último nivel 40 y helipuerto, el agua sube como en toda la torre por los ductos de servicios. Para estos niveles se distribuye de manera similar a las plantas de amenidades, ocultas por plafón y bajan por columnas o muros, con sus correspondientes llaves para cerrar la dotación de este servicio de ser así necesario.
DOTACIONES MÍNIMAS DE AGUA POTABLE. Como consecuencia de la reducción en el número de litros de agua por descarga en algunos muebles sanitarios (W.C., mingitorios y en casos especiales lavabos) y el uso más racional de fregaderos, regaderas, llaves manguera y demás, se ha logrado reducir el valor de las dotaciones en algunos servicios específicos.
En el Distrito Federal, la norma no autoriza dotación de agua potable para riego de áreas verdes, por lo que se pretende recurrir al empleo de aguas pluviales.
Nvbola, la torre más alta de Puebla
En el caso del diseño y el cálculo de los diferentes diámetros de proyecto, es aconsejable que las velocidades reales de flujo estén comprendidas entre 0.60 a 1.50 m/seg, para evitar problemas hidráulicos en las tuberías.
Con base a lo anterior, se asignará provisionalmente una velocidad de diseño de 1.0 m/seg.
Una vez definidos el gasto y la velocidad de diseño, aplicamos la ecuación de continuidad, para determinar el diámetro teórico.

Instalaciones sanitarias
El cálculo para las descargas sanitarias se realizó muy similar al cálculo hidráulico, tomando el número de muebles y puntas sanitarias. Basados en una tabla donde se indican las cantidades, este resultado no es de una ciencia ni cálculo específico sino que se determinan empíricamente, por lo tanto, en algunos casos los valores de las dotaciones difieren, pero debe comprenderse que el criterio interviene directamente. Posteriormente y basados en ese criterio y capacidades, se hacen los cálculos necesaritos para indicar diámetros, ángulos de inclinación, trayectos, ángulos de codos permitidos y dimensionamiento de tuberías.
En la torre de Nvbola encontramos los siguientes datos:











En función del número de Unidades Mueble y considerando un factor de simultaneidad del 80% = 5591.2
Podemos decir que:
255 U.M. 4.71 Lps.
5591.2 U.M. 103.27 Lps.
El diámetro de la tubería de desagüe será de:
D= 296.075042 mm
En diámetros comerciales correspondería a 300 mm o 12 pulgadas para las verticales principales.
Nvbola, la torre más alta de Puebla
La tubería indicada para el manejo del gasto total de aguas negras es de un diámetro de 30 cm o 12 pulgadas con una pendiente de inclinación del 2%. Las demás tuberías de utilizan los diámetros y restricciones en cualquier construcción.
El resultado de esta ecuación da el diámetro que se utilizó para en las verticales sanitarias ubicadas en los 3 ductos de instalaciones de la torre. Cada nivel tiene su ramaleo por planta dependiendo de la ubicación de sus puntas sanitarias, pero todos los recorridos se dirigen hacia estos tubos de 12 pulgadas de los ductos.
En cada nivel de la torre se encuentra un registro de mantenimiento o servicio para las instalaciones sanitarias en los ductos principales, estos ductos llegan hasta el subterráneo donde se conecta con la red de drenaje municipal.
Los ramaleos o recorridos de instalaciones sanitarias de cada planta se encuentran por debajo de la losa correspondiente y se encuentran ocultos por los plafones del nivel inferior, es decir, las tuberías de instalaciones sanitarias de la planta del Nivel 1 en zona comercial se encuentran en los plafones de la planta baja y así sucesivamente; únicamente se encuentra la punta sanitaria al nivel de piso terminado de cada mueble sanitario mediante la perforación de la losa y siempre y cuando no interfiera con algún elemento estructural horizontal.

Esquema de instalaciones sanitaria por debajo de la losa.
Instalaciones pluviales
La precipitación pluvial o caída del agua en forma de lluvia, se expresa en mm/hr, considerando en promedio de una hora su duración y de 5 minutos como su máximo valor.
Para el Distrito Federal y lugares con clima similar, se consideran valores de 100 mm/hr, 150 mm/hr y 200 mm/hr, pero ¿qué significan tales valores?
Significa, que si se habla de precipitaciones pluviales de 100 mm/hr, 150 mm/hr y 200 mm/hr y las áreas en estudio se dividen en cuadrados perfectos de 1.0 m. por lado; en cada cuadro la altura del agua alcanza 100 mm. (10 cm.), 150 mm. (15 cm.) y 200 mm. (20 cm.) respectivamente. Traducido en volúmenes, equivalen a 100 Lts., 150 Lts. y 200 Lts. por metro cuadrado.
En cuanto a la pendiente hidráulica se obtiene dividiendo la diferencia de nivel entre la longitud del tramo de la tubería en estudio. Para bajadas de aguas pluviales (B.A.P.), la pendiente hidráulica es igual a la unidad, porque la diferencia de nivel y la longitud del tramo de tubería son iguales.
Para una precipitación pluvial de 150 mm/hr, una B.A.P. de PVC. de 4 pulgadas de diámetro ya que tiene capacidad para evacuar hasta 160 m2 de azotea. Este resultado coincide con el cálculo que se hace en forma práctica al considerar un diámetro de 4 pulgadas y una precipitación pluvial de 150mm/hr. El Reglamento de Construcciones para el Distrito Federal recomienda, por seguridad considerar; una B.A.P. de 4 pulgadas por cada 100 m2 de área tributaria.
Nvbola, la torre más alta de Puebla

Esquema básico para la captación de agua pluvial.
La torre de Nvbola cuenta con un sistema de recolección de aguas pluviales con la finalidad de contribuir con el impacto generado y a su vez utilizar este recurso natural para cubrir algunas necesidades de la torre, como el riego de vegetación en el área del roof garden, para limpieza o inclusive para el abastecimiento de la cisterna del sistema contra incendios.
El sistema está basando en puntos de recolección pluvial ubicados en la azotea de la torre y en las terrazas de los niveles habitacionales. A base de canaletas y coladeras, el agua se recolecta en estos puntos a lo largo de toda la torre y se dirige hacia la cisterna. Esta cisterna se encuentra seccionada por compuertas que dividen el agua dependiendo el uso que se le va a dar. El agua captada se dirige a la sección de cisterna para sistema contra incendios, ya que el agua pluvial no es recomendable para consumo.
Por nivel, y dependiendo de la ubicación de los puntos de recolección de agua, se encuentra configurado un sistema de ramales de tuberías que direccionan estos recorridos hacia 4 ductos verticales que llevan el agua pluvial hasta el subterráneo donde se encuentra la cisterna.

Planta de azoteas, ubicación de ductos verticales para instalaciones pluviales.
Se aprovecha el vacío que existe en la estructura interna de la grapa que envuelve a la torre para que en su interior pueda guiar las verticales pluviales y aprovechar este espacio, dejando libre los 3 ductos principales de la torre para ocuparlos con otras instalaciones.
Nvbola, la torre más alta de Puebla

Una vez que llegan al nivel 2 de la torre que es donde esta estructura finaliza, estos se dirigen a alguno de los ductos principales ubicados en el cuerpo de la torre y guiarse hasta el nivel subterráneo.
El agua recolectada es ocupada de 3 formas: la primera es para abastecimiento de la cisterna PCI (protección contra incendios) la cual abastece los puntos ubicados en la plaza y en cada nivel residencial en caso de ser necesario. La segunda es para el riego de las áreas verdes, macetones y principalmente el roof garden. Por último el agua restante se ocupa para limpieza en el mantenimiento de la torre o actividades que no involucren el consumo humano o contacto directo.
Detalle de ductos verticales para instalaciones pluviales.
Instalaciones eléctricas
Para las instalaciones eléctricas de la torre debido a su magnitud y consumo de ésta, fue necesario contar con un trasformador de tipo pedestal en media tensión para uso exterior de 750 KVA con relación de transformación 13.2 KV/480-277V operación en radial delta-estrella.

Este transformador es subterráneo y está ubicado sobre la banqueta frente a la torre. Por reglamentación de CFE se pide que se encuentre a no más de 9 metros del tablero general. Antes de llegar este servicio tiene que pasar por un equipo de medición según las terminales que se requieran.
El tablero general se ubica en el subterráneo, en el cuarto para servicios eléctricos. Éste es un cuarto especial para equipos eléctricos basado en la normativa de CFE y de uso exclusivo de personal autorizado. En este cuarto también podemos encontrar la planta
Nvbola, la torre más alta de Puebla
Transformador tipo pedestal, de 750 kVA.
generadora de emergencia con un motor Cummis de capacidad continua en emergencia durante el tiempo en la falla de la red comercial hasta 2,250 M.S.N.M. 250 KW., 310 KVA de potencia máxima 1800RPM, con un tablero de transformación automática compuesto por enclavamientos capaces de soportar la carga destinada y con un interruptor termomagnético de 3X300 amperes en cabina de equipo con una relación de suministro 3F – 4H 480 – 277V, 60 HZ. Tambien aquí se encuentra la concentración de medidores comerciales y el medidor para usos propios y comunes comerciales. Este último se refiere a pasillos, letreros, área administrativa, escaleras eléctricas, elevadores comerciales o cualquier otro equipo que requiera electricidad en el área comercial y se de uso común.

Tablero de distribución de energía eléctrica en sector residencial y comercial.
Para el área comercial cada local cuenta con su propia toma eléctrica, donde cada locatario se encargará de conectarse para su suministro eléctrico, ellos también cuentan con su medidor independiente para luz comercial. Estos medidores se encuentran ubicados en la concentración de medidores comerciales en el cuarto eléctrico del subterráneo.
Toda la red eléctrica va oculta por los plafones de los pasillos comerciales de la plaza y sube a los siguientes niveles por los 3 ductos principales ubicados en el interior de la torre; solo cada determinados metros se consideran unos registros en el plafón para mantenimiento. Esta instalación también se encuentra contemplada para instalaciones de voz y datos, para las cámaras de seguridad, routers de Internet, puertas automatizadas, alarmas, sistemas de audio para la plaza, etcétera.
Para el área residencial, el servicio sube por los ductos de instalaciones de la torre desde el tablero principal y hasta cada nivel que lo requiera. Por cada nivel dentro del ducto se encuentran los medidores de cada planta de departamentos, es decir, 6 medidores por nivel, esto hasta llegar a las amenidades en el nivel 37. Las amenidades comparten el medidor de uso propio y comunes para el área residencial, ubicado en el cuarto eléctrico en subterráneo, así como el roof garden y las demás áreas residenciales de uso común a residentes.
Nvbola, la torre más alta de Puebla

Fotografía de ejemplo análogo de ducterias canalizadas.
Los recorridos en los departamentos y en las amenidades van ocultos en los plafones y se distribuyen a través de ductería canalizadas y colganteada a la losa. También comparte ducterías con todas las instalaciones de voz y datos de la torre.
Cada departamento cuanta con las preparaciones anticipadas para la instalación de aires acondicionados y calefacción o alguna otra instalación especial, pero la instalación de estos equipos depende completamente de cada residente.
Descripción sustentabilidad
La torre Nvbola, siendo una torre basada en la vanguardia e innovación, tiene la obligación de tener características sustentables, que contribuyan al medio ambiente o disminuyan el impacto generado por esta gran obra.
Siendo el agua el único recurso fundamental para todas las formas de vida conocidas en este planeta, el ser humano ha aprovechado desde siempre todos los recursos hídricos disponibles, entre ellos el agua proveniente de lluvia. El consumo de agua ha aumentado exponencialmente con el paso del tiempo y el uso de sistemas de captación y aprovechamiento de aguas pluviales ha sido esencialmente minoritario hasta hace muy poco tiempo.
Agua concesionaria

Dibujo esquemático del funcionamiento en la captación pluvial de un edificio.
Nvbola, la torre más alta de Puebla
Lluvia
Filtro Cisterna
Bomba de recalque
La instalación para aprovechamiento de aguas pluviales a grandes rasgos consta de una serie de elementos esenciales: una superficie de recolecta, un depósito de acumulación (con bomba de presión y rebosadero) y las canalizaciones que conectan la zona de recolecta con el depósito y con los puntos de consumo.
Los puntos de recolecta están situados en azoteas y en grandes explanadas el agua y se destina al riego o sistema contra incendios, mientras que está destinada también ser “consumida” en lavadoras, cisternas, limpieza, etc.
En este proyecto la captación pluvial proveniente de la azotea y las terrazas de todos los departamentos, se reutilizara para fines de riego principalmente en el roof garden ubicado en el nivel 2 y en jardineras de la plazoleta en planta baja del área comercial.
Otro de los usos que se le dará a la recolección de agua pluvial será para una sección de la cisterna PCI (Protección Contra Incendios).
Esta cisterna se encuentra seccionada en 2 partes, una la suministra la cisterna general y otra el agua captada: ya que no se puede depender únicamente de la captación por ser utilizada durante alguna emergencia.
Dentro de los materiales sustentables también se menciona la cancelería, en específico la utilización de cristal filtrasol. Este cristal tiene una película gris que lo ayuda a reducir más del 40% del calor radiado al interior de los departamentos; esto lo convierte en un producto de control ambiental, mejorando la temperatura del departamento evitando el uso de aire acondicionado o climas artificiales.

Vidrio “Filtrasol” utilizado para cancelería de la torre.
La orientación y vientos dominantes que inciden en Nvbola también se tomaron en cuenta para el diseño del proyecto y correcta ubicación de la torre, siendo un punto más en tema de eco-tecnias utilizadas. La importancia de la iluminación natural que se conjuga con la utilización del cristal filtrasol amalgama perfectamente la reducción de equipos o electricidad para todos los departamentos.
Nvbola, la torre más alta de Puebla

Esquema de orientación para vientos dominantes e iluminación.
El roof garden ubicado en la azotea de la plaza comercial, ayuda a reducir la temperatura del interior debido a que reduce el efecto de isla térmica, un fenómeno producido por los autos, las grandes planchas de concreto y los rayos solares al reflejarse en superficies de las losas y en las azoteas. Esta gran azotea un poco más de 3000 m2 de área ajardinada genera un micro-clima dentro y fuera de la torre.
En esta área prácticamente se creará todo un ecosistema que convivirá con los residentes y visitantes de esta azotea, siendo una amenidad muy atractiva y sobre todo en el beneficio para el medio ambiente.
Actualmente es indispensable para cualquier tipo de proyecto y mayormente para los de grandes dimensiones que sean conscientes de la retribución al medio para minimizar el impacto que genera su construcción.
Nvbola, la torre más alta de Puebla
Conclusiones
El presente trabajo tuvo como objetivo el exponer uno de los proyectos arquitectónicos en los que participé a lo largo de mis años de experiencia laboral tras la culminación de mi ciclo universitario.
A lo largo de los capítulos anteriores se presentó el proyecto denominado “Nvbola” que se desarrolló en la ciudad de Cholula, Puebla. Esta gran obra por su diseño y dimensiones, me deja una gran experiencia laboral la cual consideré prudente seleccionarla para obtener mi título profesional en la licenciatura en arquitectura a través de la modalidad de Memoria de Trabajo Profesional.
En este proyecto como en todos los demás en los cuales he participado dentro de la empresa “Blue Icon” a lo largo de estos 5 años, me aportaron una gran cantidad conocimientos para futuros proyectos, tomando los conocimientos adquiridos en mis estudios universitarios como base de mi formación profesional.
Para finalizar este trabajo y a manera de conclusiones he llegado a los siguientes puntos:
• Proyectos de innovadores para ciudades en desarrollo. En general proyectos de esta magnitud, calidad y novedad son de gran aceptación en las ciudades que se encuentran en un punto de modernización o ciudades ya desarrolladas que tienden a crecer su población debido a su economía, la industria, sobrepoblación o que no cuentan con extensión territorial tan amplia, con la creación de nuevas formas de construcción, las conocidas “ciudades verticales”.
• Tendencia en nuevas formas de construcciones basadas en la aceptación. Tanto es el éxito obtenido por este tipo de construcciónes que actualmente la ciudad de Puebla se encuentran múltiples proyectos de similares características en construcción o ya construidas. Como experiencia propia con este proyecto se logró que en la pre-venta se vendiera el 80% de los departamentos de esta torre, medio año antes de comenzar la construcción. Esto evidencia la aceptación del público por esta forma en la que estos nuevos desarrollos están implementando el crecimiento vertical y edificios de
usos mixtos. Debido al paso en el que crece la ciudad y la modalidad de uso de suelo que se le da a estos nuevos desarrollos indudablemente es acertado, la tendencia de edificios de usos mixtos como este proyecto y muchos proyectos aledaños o cercanos en la zona indica que el mercado y la demanda de este tipo de vivienda son modelo para el futuro.
• En edificios de usos múltiples para el aprovechamiento de espacios. En este tipo de proyectos llamados “Edificios de usos múltiples” donde se concentran vivienda, comercio y oficinas, se otorga beneficios a las ciudades tanto en movilidad urbana, crecimiento horizontal desmedido, aprovechamiento para área verdes o recreación, etc. Estos desarrollos brindan beneficios al cambiar de dirección el crecimiento de la ciudad y concentrar algunas necesidades.
• Uso de eco-tecnias o materiales nuevos. Cada vez las construcciones se van innovando, adquiriendo materiales modernos y de menor impacto con el medio ambiente. Estos hacen a los proyectos más atractivos para los beneficiarios. Al diseñar edificios que tengan materiales o eco-tecnias que minimicen el impacto ambiental se crean las bases para el uso de estas herramientas en los futuros proyectos, hasta llegar al punto es que no sólo sea una opción, sino una obligación para los edificios de mediana y grandes dimensiones al contribuir con disminuir el impacto ambiental generado por la construcción.
• Manejo de espacios y necesidades. Como experiencia personal siendo de mis primeros proyectos de gran escala, aprendí la importancia de los espacios y las necesidades básicas de una vivienda. Para este caso en particular, hablando de temas de costos, estando como proyectista entendí que cada línea que se dibuja o se plantea sobre papel tiene una gran repercusión tanto en la obra, como en el presupuesto, en tiempos de entregas, etc. Con esto me refiero a que en un plano pueden ser un simple par de líneas, pero en la realidad es un muro el cual requiere de materiales, acabados, mano de obra, costo de materiales, tiempo de ejecución, etc. Si a esto sumamos el factor de repetirlo en los 198 departamentos del edificio todos estos valores se multiplican y principalmente en el factor económico, siendo ahí donde las empresas que se dedican
Nvbola, la torre más alta de Puebla
a la construcción luchan para obtener más ganancias a menor costo. El proyectista tiene que discernir entre lo que es necesario y lo que no. Y es ahí cuando un buen diseño juega un papel muy importante.
• Aportaciones y aprendizajes profesionales. El ritmo de trabajo y las fechas de entregas puntuales son otra gran aportación que me dejó este proyecto, ya que el más mínimo desplazamiento de entregas de trabajos se ven reflejadas en todo el proyecto. El compromiso personal que tenía con este proyecto era muy grande. Entre otros aprendizajes que me dejó este y otros proyectos en los que he participado es el trabajo en equipo, el contar con un equipo de trabajo que te apoye, asesore y retroalimente. Es casi imposible pensar que proyectos de gran escala se encargue o sea creado por una sola persona. En mi caso particular y mi equipo de trabajo contábamos con especialistas para cada área, en los que se encontraba un área de ingenierías, área de instalaciones, área de diseño, área de costos, área de ejecución de obra, etc. Todos formamos y unimos perfectamente para llevar a cabo este y otros proyectos a la realidad. El aprendizaje durante todo este proceso fue tan extenso y de gran ayudan para mi formación como profesional. Haber participado en este proyecto me deja gran experiencia, conocimientos adquiridos pero al mismo tiempo una gran satisfacción al aportar mis conocimientos y habilidades adquiridas a lo largo de mi preparación universitaria, para un proyecto de esta escala e importancia para la ciudad, que sin duda deja una huella y transcendencia a nivel regional y nacional.
Nvbola, la torre más alta de Puebla
Glosario
Business center: Se le conoce también como centro de negocios, es un destinado a proporcionar a las organizaciones todos los servicios que necesitan para desarrollar su actividad profesional. Dichos servicios van desde el alquiler de oficinas y despachos, salas de reunión y aulas de formación hasta la atención telefónica, el secretariado, la oficina virtual o la mensajería; en este espacio también se ubica una concentración de empresas ya sea dentro de una plaza comercial, edificio o alguna área específica destinada para ese uso.
Car wash: Establecimiento dedicado a la limpieza de automóviles, mediante equipos o de manera manual. El costo de estos servicios depende de cada establecimiento.
Clúster: Se le llama así en el ramo habitacional al grupo de pequeñas privadas o fraccionamientos interrelacionados que componen un mismo distrito y que colaboran estratégicamente para obtener beneficios comunes.
Conserh: Los servicios de conserh o consejería consisten en mantener el estado correcto de un edificio o una comunidad de vecinos. Estos servicios dependen de las necesidades que tengan los integrantes de dicho edificio ya sea un conjunto de oficinas o un bloque de pisos.
Dolby surround: Es un sistema cuyo objetivo consiste en enriquecer la calidad de la reproducción sonora de una fuente de audio con canales adicionales provenientes de altavoces que envuelven al oyente (canales envolventes), proveyendo sonido en un radio de 360° en el plano horizontal (2D), a diferencia del que se obtiene por medio de canales en pantalla (canal central, canal izquierdo y canal derecho), los cuales se encuentran solo al frente del oyente.
Home office: Esta área es llamada así ya que ofrece y presta todos los servicios de una oficina pero desde la comodidad de tu casa o conjunto habitacional; el trabajar a distancia reemplaza la actividad de transportarte de un punto a otro.
Kids club: Se le llama así a las guarderías ubicadas en conjuntos residenciales o comerciales, donde las personas puedes llevar a sus niños por un determinado tiempo; en este lugar generalmente cuentan área de juegos, área de descanso, área de tareas o recreación, entre otras más áreas.
Lobby bar: Área de bar para residentes o visitantes de torres residenciales o conjuntos habitacionales, donde se venden bebidas alcohólicas y/o alimentos.
Losas postensadas: Las losas postensadas coladas en sitio son realizadas principalmente con acero de presfuerzo formado por torones (agrupaciones de alambres de acero de alta resistencia) que se colocan al mismo tiempo que el acero de refuerzo tradicional y se tensan cuando el concreto llega al 70% u 80% de su resistencia. Debido al trazado parabólico con que se coloca el acero de presfuerzo, su tensado ejerce una fuerza interna en la estructura que se opone al sentido de aplicación de las cargas, reduciendo así los efectos de éstas.
Lounge: El término podría traducirse al castellano como vestíbulo o salón de descanso; el lugar de un hotel donde las personas pueden sentarse a beber algo, conversar y escuchar música suave.
Mini golf: Es por tanto una práctica derivada del golf convencional; la gran diferencia que éste posee es que su práctica se hace en una escala mucho menor, tanto en área como en campo activo de golf.
Motor lobby: Vestíbulo exterior generalmente de un conjunto habitacional, hotel o residencial.
Night club: Área destinada dentro de algún conjunto habitacional o plaza comercial para referirse a algún tipo de bar o restaurante para mayores de edad. Generalmente se venden y consumen bebidas alcohólicas y alimentos. El uso de estas instalaciones es por las tardes y noches.
Pádel: Es un deporte de raqueta de origen mexicano. Se juega en parejas y consta de tres elementos fundamentales para su desarrollo: la pelota, la pala y el campo de juego o pista.
Nvbola, la torre más alta de Puebla
Penthouse: Último piso de un edificio, generalmente construido sobre la cornisa y un poco retirado del nivel de la fachada.
Spa: Establecimiento dotado de instalaciones apropiadas para someterse a tratamientos medicinales con agua, que generalmente ofrece otros servicios como alojamiento o instalaciones deportivas.
Town center: Es una construcción que consta de uno o varios edificios, por lo general de gran tamaño, que albergan servicios, locales y oficinas comerciales aglutinados en un espacio determinado concentrando mayor cantidad de clientes potenciales dentro del recinto.
Work center: Es un espacio destinado dentro de un centro comercial o conjunto de edificios, donde se concentra oficinas, salas de juntas, áreas de trabajo o corporativos.
Nvbola, la torre más alta de Puebla
Bibliografía
Broto Carles. (2017). Innovación en vivienda colectiva. Barcelona, España: Links Internacional Barcelona.
De Garrido Luis. (2012). Un nuevo paradigma en arquitectura Valencia, España: Instituto Monsa de Ediciones, S.A.
De Haro Fernando. (2013). Arquitectos mexicanos: espacios con estilo. Cd. De México: AM Editores.
Meade Grace. (1999). Arquitectura Mexicana Proyecto 2000 Mexican Architectures. Cd. de México: McGraw-Hill Companies.
Ortiz Isabel. (2012). Rascacielos: Los 101 edificios más altos. Madrid, España: Tikal Ediciones.
Terranova Antonio. (2008). Nuevos gigantes urbanos. Barcelona, España: Ediciones Librería Universitaria de Barcelona.
Nvbola, la torre más alta de Puebla
Agradecimientos
En primer lugar deseo expresar mi agradecimiento a la Universidad Gestalt de Diseño, institución que me brindó los estudios y conocimientos para poder desarrollarme en un ambiente laboral al concluir mi carrera universitaria. Al apoyo que me dieron al darme esta oportunidad y facilidades de concretar mis estudios obteniendo el título en licenciado en Arquitectura mediante la presentación de un trabajo profesional exponiendo mi experiencia profesional que he adquirido a lo largo de estos años.
También deseo agradecer a la empresa “Blue Icon” en la cual he laborado por casi 5 años, la cual confió en mí y me dio la oportunidad de participar y formar parte de su gran equipo de trabajo para crear todos los proyectos en los cuales he participado. La experiencia laboral, conocimientos y crecimiento personal que me han dejado ha sido lo más valioso que he tenido para mi formación como profesional. Agradezco a todo el gran equipo de trabajo que forma parte de esta empresa, pero especialmente al departamento de arquitectura que más que compañeros de trabajo se volvieron de mis grandes amigos.
Y por supuesto, el agradecimiento más profundo y sentido va para mi madre, por el gran amor y devoción que tiene hacia sus hijos, por el apoyo ilimitado e incondicional que siempre nos ha dado, por darme la fortaleza para salir adelante, por los consejos, sus valores pero más que nada por haberme formado como un hombre de bien y ser la mujer que me dio la vida y me enseñó a vivirla.
A mi hermano por ser el ejemplo de un hermano mayor del cual aprendí aciertos en momentos difíciles. A mis familiares, mis tíos que sin su apoyo, colaboración, inspiración, palabras de aliento y buenos deseos no habría sido posible llevar a cabo mis estudios.
Gracias.

