
P T L O F I R O O FALL 2024
![]()

P T L O F I R O O FALL 2024
150+ employees 300+ design awards 57 leed certified projects 1968 established
TVS creates high performance, high impact environments that help individuals, businesses and communities thrive. Our team of experts listens intently, solves creatively and delivers reliably to make remarkable design easy. TVS engages honed perspectives across multiple markets with public, private and institutional clients to deliver design solutions that meet the complex challenges of the 21st century.



We listen closely. We work to know your business deeply to see your vision clearly and understand the potential in the work we do together. Listening leads to inspiring conversations, the foundations of remarkable design.
We solve creatively. Achieving your aspirations and meeting your needs require great imagination. We love partnering with you to find solutions that push us to create remarkable design.
We deliver reliably. We know you need to be able to count on a partner that has your back and gets it done. We’re really easy to work with, even on the toughest projects. Trusted relationships make remarkable design possible.

TVS has helped clients benefit from many aspects of sustainable design since the firm’s inception in 1968. Our staff of LEED and WELL Accredited Professionals works to find a balance of social, environmental and economic factors in our projects drawing from our experience in LEED Platinum and WELL certified projects. As a leader in the integration of sustainable practices with client satisfaction and design innovation, TVS has the capacity to develop any project according to the client’s desired level of environmental responsibility. With over 57 LEED Certified projects we’ve received countless awards for creating remarkable designs for our clients and communities.
We have pursued the Living Building Challenge 4.0 on several projects at a conceptual level, but those projects did not continue with the program.


Our green roofs include farm to table urban roof gardens, extensive and intensive vegetated roofs.
We use climate responsive passive design strategies to reduce water demand on our projects.
We use passive design strategies to reduce energy demand on our projects.
Our designs promote healthy habits.
We specify low carbon materials.
Work with client to develop equitable access to, and protections from negative impacts.
Design to include elements that nurture the innate human/nature connection.
TVS was recognized by United States Green Building Council (USGBC) and the International Well Building Institute (IWBI) as the first organization ever to achieve both LEED and WELL Platinum through a streamlined, dual track. This path encourages and simplifies the process for both certifications and for TVS to have achieved the highest level of both standards speaks to the firm’s commitment to embracing human and planetary health.
The design team’s focus wasn’t necessarily to pursue points to certification. It was to do the best job possible across all aspects of the projects , given very challenging budgetary and time constraints. When considering design options, the team weighed them for their near- and long-term impact on the firm’s collective wellbeing – what solution would be the most equitable, provide the best environment to do good work, use resources most effectively and sustainably?

Ultimately, these certifications were achieved through initiatives like:
- Reuse of 60% of furniture plus ceiling systems and lighting
- A scrappy, DIY sensibility – in house 3D printed signage
- Carbon negative and recycled materials
- Daylighting studies
- Connection to nature via terrace
- Biophilia
As the team approached the end of the project it became clear that, with a small push, they could meet the Platinum requirements for LEED and WELL. The new streamlined process made that possible and this new approach is strongly recommended.



We design spaces with the intention to inspire and encourage people to become the best they can be. An innovative and successful educational setting allows for life and learning to exist in a symbiotic relationship that aligns students, faculty and the overall goals of the institution. Respecting existing traditions, yet understanding the need for adaptable and sustainable solutions, our team creates the context for memorable learning experiences. We believe in a holistic campus approach, realizing the potential of every aspect to nurture a climate for educational success by stimulating imaginations.






Auburn | Alabama












Marietta | Georgia









Lawrenceville | Georgia




Valdosta | Georgia




Atlanta | Georgia




Carrollton | Georgia





Macon | Georgia




Macon | Georgia





Kennesaw | Georgia





















Rome | Georgia






Mableton | Georgia












Kennesaw | Georgia


Johns Creek | Georgia










TVS created 250,000 sf of hospitality-inspired premium clubs, suites and concourse zones that reinvented the game day experience. The client wanted an iconic, unparalleled fan experience that would get fans off their sofas and away from the convenience of their home environments. The new stadium had to be compelling enough to keep the fan coming back. The result more than met the client’s desire – guests are arriving early to the game and leaving late, enjoying all the stadium has to offer. A testament to this response is that more food and beverage is sold now before the beginning of the game than was sold during the entire game at the old Georgia Dome.
The stadium’s distinct hospitality-driven spaces provide options that appeal to a variety of demographics, serving as multifunctional alternative revenue streams and elevate the guest experience. The client wanted these premium spaces to become the benchmark for best in class spaces, not only in the sports and entertainment industry, but across all luxury guest services industries. Today’s stadium-goers are seeking memorable, authentic and highly personalized experiences that deliver the unexpected.
AREA + ATTRIBUTES
- 71,000 seat
- 1,800,000 sf
- 16 End zone suites; 152 luxury suites; 29
VIP owner’s suites; five super suites; seven premium clubs
- LEED BD+C v3 Platinum




Nashville | Tennessee

AREA + ATTRIBUTES
- 60,000 seats
- 1,800,000 sf facility
- 12,000 sf community spaces

is Lead Design Architect in partnership with TVS as Architect of Record.
The Tennessee Titans will have a new, enclosed stadium in Nashville nestled along the East Bank of the Cumberland River. The new stadium will host Titans games, TSU football games, and community activities, while also attracting the world’s largest and most prestigious events such as Super Bowls and Final Four tournaments. It will encompass 1.8 million sf with a capacity of approximately 60,000. The project will also include a 12,000 sf community space to host classes for local schools, job trainings, and other community-minded events.
The stadium architecture is inspired by the city of Nashville and is complementary to the broader East Bank development plan led by the City of Nashville. The design gives attention to multipurpose function in order to maximize the number and types of events that will take place in the building. The new stadium design will maximize sustainability to minimize waste, net energy and net water status while pursuing U.S. Green Building Council LEED Gold certification.




With the completion of the new softball facility, the Pace Academy Riverview Road Sports Complex consolidates all of the Pace Academy Knights’ competition facilities for football, soccer, baseball and softball into a singular athletic campus. To make room for the new facility, an existing pre-engineered building was demolished, and modular block retaining walls were added to provide level grade for a Georgia High School Sports Association (GHSA) compliant competition facility.
Included in the facility are an artificial turf field, covered ADA accessible bleacher seating for 360 spectators, dugouts, field lighting, electronic scoreboard and perimeter netting. In addition to the field, a new 5,000 sf training building was constructed, providing indoor batting cages, restrooms, locker rooms, storage and training space clad with a detail and material palette consistent with the established athletic campus building standard.
AREA + ATTRIBUTES
- Athletic training building
- Indoor batting cages
- Locker rooms
- Equipment storage
- New competition softball fields with bleachers, dugouts, shade canopy, and turf field



College Park | Georgia


AREA + ATTRIBUTES
- 100,000 sf
- 5,000 seats for concerts / convocations
- 3,500 seats for basketball games



Gateway Center Arena @ College Park is a new multipurpose arena that represents a solution for mid-market municipalities and universities with a need for an indoor venue to host a variety of public assembly events like live entertainment, corporate meetings, athletics, esports, trade shows and convocations. With the Atlanta Hawks G League team as the destination’s anchor tenant and serving as home to the WNBA’s Atlanta Dream, the venue is projected to be a significant economic driver for the area.

Marietta | Georgia





The newly established Atlanta United Football Club needed a home base for its players and employees, fans and community members. The team vision of inclusion and excellence guided the design of the facility which serves as not just the training grounds for the team, but also a home for the youth team, corporate workforce, and community events.
The client commissioned the designers to create a custom facility from the ground up, with avant-garde amenities to make this training facility much more than a locker room, but an inspirational, united wellness and fitness center that would attract future talent. The training gym was designed to be interconnected, featuring bestin-class equipment, a garage door that opens to the fields, and a second level observation window. It is adjoined by a series of rooms dedicated to on-site sports medicine, including a physiotherapy room with exam tables, a hydrotherapy room, and a sauna. The first team’s locker room is located at the heart of the facility, giving the players a communal place to prepare for training. The upper level dining area has an open kitchen to train the players in how and what to cook and eat, and long communal tables allow the team to eat together and spend time together off of the field. Connecting these player spaces to the corporate office spaces in the facility is an open, two-story lobby with full windows facing the fields which doubles as a private event space and reinforces the focus on providing a hospitality-driven atmosphere that encourages gathering, conversation, team bonding, and community participation.



- 33 acres
- 30,000 sf
- Six playing fields
- 2,500-seat show pitch
- Six academy locker rooms
- 3,000 sf dining room and terrace
- Recovery area and hydrotherapy room
- Media room



The Chengdu International Sports Campus will act as a catalyst for the north Chengdu area and will foster cultural and economic growth for the local community. The roots of this landmark development are a world-class football stadium and a multipurpose arena. Complementing these entertainment venues is a mixed-use campus that offers a dynamic collection of residential, commercial office, hotels, retail, conference center and performance theater.

The campus is organized into three zones. The sports complex is located on the West end of the site. The supporting mixed-use development is located on the east side of the site. This ‘Sports City’ is an abundant collection of retail, commercial office, residential development. The sports complex and mixed-use development are then stitched together with a shared recreational park we call ‘Sports Valley.’
AREA + ATTRIBUTES
- 450,000 sf
- Master plan of campus
- Client experience center
- Cafeteria and coffee bar
- Conference center
- Fitness center and putting green
- Activity based work environments
- Wellness clinic
- Holistic integrated branding and graphics
- Outdoor meeting environments
- Broadcast studio
- LEED Gold and Net-Zero Water










Given a challenging 90 acre site with rolling topography and an existing lake, our design team worked to develop a sense of place via several alternatives centered about a new 8,000 seat, 18 suite, 140,000 sf indoor arena and attached two-sheet ice practice facility with a variety of retail, dining and residential elements.
The first approach is a more urban, energized plan that brings program components together on a pedestrian street called URBAN PROMENADE. Another approach brings all functions together around the lake in a design called THE BOARDWALK. THE PAVILION IN THE PARK is an approach that celebrates the natural contours and forest, bringing customers and visitors an increased sense of wellbeing that nature provides. And, lastly we have the FRONT ROW, that puts the Hockey brand right up front, creating an identity for the development that is bold and forever joined with the team and the venue experience.
Each scheme has strengths and potential challenges, depending on the vision and circumstances, that recommend them. All schemes create an unforgettable experience and capitalize on the natural amenities present at the Lakefront site.


AREA + ATTRIBUTES
- 90 acres
- 8,000 seat
- 18 suite
- 140,000 sf indoor arena
- Two sheet ice practice facility
- Retail, food and beverage
- Residential









Duluth | Georgia


The 2017 NLL World Champion, Georgia Swarm, sought a new, state-of-the-art office that would enhance the franchise’s brand and ethos, and expand their organizational footprint. The goal was for the new headquarters to match the collaborative culture of the team, and give employees an energizing work environment that encourages communication and teamwork. The office complex features an open floor plan that showcases their brand, and embodies their core values of teamwork and their commitment to excellence and professionalism as a league leading, championship franchise. Their sales force, graphics, marketing, coaches and players can now operate under one roof, and the space provides a welcoming environment that will foster stronger relationship with partners and stakeholders.


AREA + ATTRIBUTES - 3,000 sf


AREA + ATTRIBUTES
- 27,100 sf new construction
8,800 sf renovation
290 space parking structure (future)
- New competition gymnasium
- Two multiuse community rooms
- New entrance lobby
- Training room
- Weight training
- Administrative offices




Auburn | Alabama




AREA + ATTRIBUTES
- One-story facility
- 12,000 sf enclosed
- Full sized infield
- Synthetic turf
- Batting tunnels
- Retractable netting
- Club space
- Multi-floor press box









Memphis | Tennessee


AREA + ATTRIBUTES
- 550,000 sf
- 300,000 sf flexible meeting, exhibit and prefunction
- 46 flexible meeting rooms
- 118,000 sf column-free exhibit hall
- 28,000 sf ballroom
- 2,000 seat performing arts theater
- 460,000 annual visitors
The fully transformed Renasant Convention Center has debuted in Memphis, Tennessee. The $200M modernization includes a total transformation of the footprint of the building, enabling it to meet the demands of meeting planners and groups for hotel-quality meeting space and give Memphis a competitive edge for attracting more regional meetings and conventions business.
The convention center, formerly known as the Memphis Cook Convention Center, originally opened along the city’s riverfront in 1974. A highly competitive meetings and event market drove massive change for the center and city. In 2018, the city announced the decision to embark on a renovation and total transformation of the convention center that would enhance the space and feature upgrades that include hotel-quality finishes and amenities throughout. With the aging and land-locked convention center nearing the end of its useful lifespan, the goal of the site selection study was to evaluate all the available site opportunities in the city for a new state of the art convention center.
The team studied multiple site options and ranked them based on a clear set of criteria established by the stakeholders. Each site was evaluated to see if the program and future expansion would fit. At the end of this process, two sites were shortlisted for further development and testing: a site adjacent to the existing center and a site along Beale Street in the center of the tourist/entertainment district. Concept designs were developed for both options to show the layout of the center and its massing and design potential. The resulting report identified the cost, logistics and schedule for both options and became the starting point for a more focused discussion on the future of conventions in Memphis.







Nashville | Tennessee





Located along Fifth Street, just a few blocks from the historic Ryman Auditorium and numerous other music and cultural venues, the Music City Center, opened in 2013, and brought new life to the South of Broadway (SOBRO) neighborhood of Nashville.
The design team of TVS/Tuck-Hinton Architects/Moody Nolan, Inc. Architects studied the underutilized area of SOBRO and gave careful consideration to the placement of the facility’s many functional elements that affect the surrounding area. The design turns a positive face to surrounding neighborhoods by concealing service areas and placing potential commercial or cultural venues with lively public concourses along main pedestrian and vehicular corridors. The planned extension of Korean Veterans Boulevard has also taken place to enhance cross-city connectivity along KVB.
The plan for the Music City Center was to serve as a catalyst for new business by respecting the surrounding neighborhood and turning a welcoming face to the community. It also connects the rich music history of Nashville to a new home for expositions, meetings and tourism.




AREA + ATTRIBUTES
- 1,200,000 sf
- 350,000 sf exhibit halls
- 58,000 sf ballrooms
- 120,000 sf meeting rooms
- 1,800 space parking garage


Savannah | Georgia


The Savannah Convention Center is located on Hutchinson Island across the river from the downtown Savannah Historic Landmark District. The existing facility opened in 2000 with 100,000 sf of exhibit space, 13 meeting rooms, a 25,000 sf ballroom, 367 seat auditorium and four boardrooms. The SCC is experiencing growth in the convention market. To facilitate this growth and continue to be competitive in the market, they are expanding their facility by doubling the size of the existing center.
New entry plazas and arrival zones with monumental facades will greet visitors arriving from the north and east. New registration lobbies serving the expanded exhibition space will be located adjacent to the entry plazas. The new ballroom will be placed on the third floor directly above the northernmost new exhibit hall. It will have prefunction space along the north and east side. A large roof terrace providing views to the city will be adjacent to the east prefunction. The new meeting rooms will be located on levels one and two along the new extension of the east concourse. The new parking garage has five levels and will be placed directly above the exhibit loading area.


AREA + ATTRIBUTES
- 100,000 sf of exhibit space (in two divisions)
- 65,000 sf ballrooms
- 23,000 sf meeting rooms (15 total)
- 950 space parking garage
- Rooftop terrace




The Charlotte Convention Center, designed by TVS, originally opened in 1995. Since then the needs of meeting planners and convention attendees have evolved, requiring investment in the facility to deliver a competitive experience. Based on recommendations from a market study commissioned by the Charlotte Regional Visitors Authority, TVS explored a series of potential improvements, and together with the staff, developed a master plan for expanding and enhancing the facility.
A major need identified by the study was for additional meeting space. Since there is no available land adjacent to the center, it was not possible to expand beyond the existing building’s footprint to create this space. TVS investigated and found ways to expand the building vertically by adding new floor space above the existing exhibit halls. This additional space provides 26,000 sf of new meeting space. This new area also creates a new public concourse façade along Stonewall Street, the previously neglected backside of the building, greatly improving the center’s connectivity to the city.


AREA + ATTRIBUTES
- 860,000 sf convention center
- 275,000 sf exhibit hall
- 35,000 sf ballroom
- 58,000 sf meeting space
RENOVATION AND EXPANSION
- 76,000 sf total
- 26,100 sf total meeting room area








AREA + ATTRIBUTES
- 284,000 sf total construction
- 148,000 sf new construction
- 136,000 sf renovation Includes:
- 20,000 sf new ballroom
- 11,000 sf new meeting rooms
- 8,400 sf new kitchen
- 15,000 sf new arena lobby
- LEED Certified
Inspired by the nearby Kanawha River and its historic role as a social organizing link within the rugged landscape that defines the region, the project’s design features three large glass-enclosed lobby nodes, corresponding to each of the building’s major program elements. These iconic spaces instill a navigational clarity to the complex and help to define a unique Charleston event campus.
The formal language of the design draws on the uniqueness of the local geography, and specifically the cut rock faces that line the excavated throughways which connect various population centers in the state. The interior palette draws its inspiration from the various mineral and other extractive resources which are the lifeblood of the state.
A new 15,000 sf entry lobby along Clendenin Street provides a much needed front door for the existing arena and establishes an active link to urban retail at the adjacent Charleston Town Center. A new lobby entry on the south side of the building redefines the main vehicular drop-off for the convention center, while at the west end of the campus, the new 20,000 sf ballroom extends the building footprint to the edge of the Elk River.


Milwaukee | Wisconsin





The Wisconsin Center District (WCD) is a quasi-governmental body that operates the Wisconsin Center, which in 2021 began undergoing an expansion to double its size; UW Milwaukee Panther Arena; and Miller High Life Theatre in downtown Milwaukee. The WCD venues are within walking distance of leading hotels, retail establishments, attractions, dining, nightclubs and transportation. This project adds 112,000 sf to the facility’s main exhibition hall for a total of 300,000 sf. It also creates a second ballroom with an outdoor terrace and add meeting rooms, indoor parking spaces and loading docks.


AREA + ATTRIBUTES
- 673,000 sf
- 300,000 sf exhibition hall
- 112,000 sf exhibition
- 30,000 sf ballroom
- 35,000 sf meeting
- 15,000 outdoor roof terrace
- 24 meeting rooms
- Employee locker rooms, break, training and briefing rooms
- Gender-neutral bathrooms
- Quiet rooms and nursing mother’s rooms
- Outdoor patio spaces
- Visit Milwaukee Visitor Center
- Six loading docks
- 400 parking spaces
- LEED Silver








AREA + ATTRIBUTES
- 87,000 sf
- 1,150-seat theater
- 350-seat lecture hall
- Broadcast auditorium
- Fly loft
- Orchestra pit and lift
- Complete back of house
- Catering kitchen
- Broadcast control room
- VIP room
- Under street tunnel to parking structure
This 1,150 seat multipurpose theater is located in the Levine Center for the Arts, an arts district located in downtown Charlotte, North Carolina. This city-owned theater is designed for local art groups such as the North Carolina Dance Company, Charlotte Symphony Youth Orchestra, chamber music for the Charlotte Philharmonic Orchestra and other touring shows. The theater is physically connected and shares a prefunction space with the 35,000 sf Bechtler Modern Art Museum, one of three newly developed museums in this art district, all master planned by TVS.
The Knight Theater is part of a large urban cultural and business district development spearheaded by Wachovia Bank and developed by Childress Klein Properties.


Mumbai | India





AREA + ATTRIBUTES
- 192,500 sf
- 2,000 seat Grand Theatre
- 250 seat Studio Theatre
- 125 seat Cube
- 16,000 sf exhibition space
The overall design of the Grand Theatre and all its intricate layers celebrates the luxurious level of craft and design that reflects the richness of color, detail and pattern of India making this a singular world experience.
The Grand Theatre features exquisite jewel-toned Sicis mosaic glass tiles from Italy; customized laser-cut meta jaali screens from Dubai; acoustic micro-perforated walnut wood with the ability to absorb sound from Greece; handrails, door frames and millwork from Muscat; custom-colored fabric from Germany and walnut clad seating from Italy.
The stand-out feature of this world-class hall is the bespoke ceiling. Custom-built in Austria, 17 lotus petals with arabesque perforated pattern studded with 8,400 Swarovski crystals individually programmable and illuminated transform this remarkable ceiling into a theatrical performance element by itself. Its ability to change in color and pattern integrated into theatre events make this unique in the world.
The other two theatres are 250 and 125 seats, are more subtle and subdued than the main theatre but designed with the same warmth in mind. These spaces are the backbone of the center providing special performances of very intimate, small-scale works.
All patterns, profiles and detail development of features were created by the design firm.








Atlanta | Georgia

Working with Theatre Projects and Talaske (acoustical consultants), TVS developed a fresh new configuration in keeping with the Alliance Theater’s inclusive, community-building philosophy and importance as a social voice in the Atlanta Arts Community.
The redesigned Alliance Theater offers an intimate configuration where patrons can see one another enjoying the theater experience. Warm wood railings, seatbacks and panels create a comfortable and inviting group setting. Architectural lighting washes walls and coordinates with performances to develop a sense of spatial drama. And detailed catwalks and lighting positions express the technical craft of the theater. On the exterior, the project developed a greater street presence for the Alliance Theater through the creation of a new entrance, development of supplementary meeting and performance venues, and the expansion of the Woodruff Arts Center’s shared lobby.
In the Symphony Hall Renovation and Redesign Study, TVS worked with Aurerbach Pollock Friedlander (theater consultant) and Threshold Acoustics (acoustic consultants). The 46-year-old Symphony Hall would be completely transformed through this redesign, which includes dramatically improving the acoustic performance of the hall to serve the needs of the classical symphonic repertoire of the Atlanta Symphonic Orchestra (ASO) and the active, diverse presentations that appeal to younger audiences of the ASO Presents program. In addition to transforming the hall’s acoustic performance and design, this renovation and expansion study also addressed the development of support and rehearsal space. A new glass enclosed wing would allow the public to observe rehearsals in a new rehearsal hall and would provide a meet and greet space for performers and patrons after events.
The addition also highlights the Woodruff Arts Center’s symphonic functions with an enhanced entrance and redesigned lobbies and public spaces.


Macon | Georgia


The amphitheater stage sits on the southeast corner of the site and faces Rocky Creek and Mercer University Drive. It holds three distinct seating areas: 2,500 fixed seats in a stepped seating bowl, 1,500 temporary seats on a flat floor between the fixed seats and stage, and 6,000 lawn seats outside of the bowl and roof structure. VIP seating are in 10 ‘boxes’ between the pit and fixed seating. Two entrance plazas have concessions, retail amenities, and restrooms, as well as overlooks providing additional VIP opportunities. There will be other concession and retail options around the amphitheater, and future plans could include the construction of a full-service restaurant.
Performers enjoy a 55’ deep by 70’ wide performance stage with 20’ wide wings. A 12–15’ deep loading dock is being designed to accommodate eight truck bays covered with a canopy to better serve the performers and crews. There are separate men’s and women’s dressing rooms, star dressing rooms, a green room, catering area and a crew locker room.
The master plan also includes sites for future retail, restaurant, hotel, and park/festival space. The amphitheater is intended to be a catalyst for the redevelopment of Macon Mall, taking advantage of underutilized parking while revitalizing a static section of suburban Macon, Georgia.

AREA + ATTRIBUTES
- 10,000 person capacity
- Artists’ dressing rooms
- Green room
- Ticket booths, vendor and event areas
- Retail areas






The Van Wezel Performing Arts Hall in Sarasota, Florida hired TVS to study the viability of their existing facility. This design exercise is as a due diligence effort to support their potential development of an adjacent, new indoor performance facility. Key features of the study included measuring the existing building for seating expansion and storm resiliency.
TVS also investigated the property for future-use following plans for a new performing arts center. Reuse focused on alterations to create an outdoor amphitheater, which would not compete for events with the new performing arts center. An outdoor amphitheater would enhance the larger, future arts and park campus development. The study is ongoing and is meant to supplement the client’s decision making for the performing arts center.
AREA + ATTRIBUTES
- 1,600 seat grand auditorium

Atlanta | Georgia


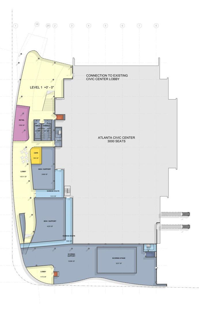
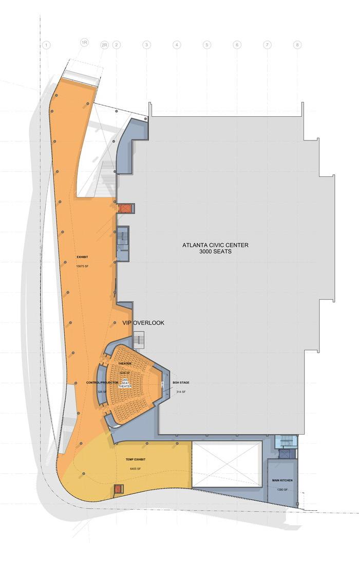
TVS leads the cultural concept design and planning portions of a larger SOM/GVS led master planning effort for the redevelopment of the historic Atlanta Civic Center campus.
The repositioning of the Atlanta Civic Center will leverage a symbiotic partnership with a renovated performing arts venue to celebrate and grow Atlanta and Georgia’s music industry. The expansion is envisioned as a sensitive addition to the west and south of the civic center, one that reinforces the landmark’s relationship to the large public plaza to the north, while providing an iconic street presence along both Piedmont and Ralph McGill.
The expansion building is imagined as a lacy steel/glass wrapper that will contrast against and highlight the existing masonry façade of the civic center. The building façade is envisioned as a custom curtainwall system that takes inspiration from the keys of a piano, using varied mullion sizes (width and depths) and color to create a melodic visual effect as the eye moves across the length of the building. This curtainwall system terminates at a higher roof zone, which steps down to a lower roof that acts as a respectful reveal between the existing civic center and the new glass museum wrapper.
The team aspires to preserve the entry lobby experience of the civic center, along with the monumental façade facing the plaza. Similarly, the expansion is planned with its primary exhibit entrance to the north, off of the grand plaza. By orienting the new expansion lobby directly adjacent to the civic center lobby, we envision robust cohosting of events that can flow across seamlessly.








Palmetto | Florida


The Bradenton Area Convention Center, hotel, amphitheater and retail redevelopment is a project for two clients – Manatee County and a local hotel developer. Their partnership envisions and renovated and expanded regional convention center together with a hotel, hotel ballroom, retail, 5,000 seat amphitheater, restaurant and retail village.
As design lead, TVS partnered with Fawley Bryant on the convention center project before joining the hotel team to provide the amphitheater design, restaurant and retail master planning.
The amphitheater incorporates a flexible stage for yoga as well as live performances. The stage is supported by spaces within the hotel as well as a green room and studio adjacent to the performance platform.




