TYLER C. HINSON
SELECTECED WORKS: 2022-2025
“The ache for home lives in all of us. The safe place where we can go as we are and not be questioned.“
-Maya Angelou
As Maya Angelou stated, every person, regardless of race, religion, gender, or sexual orientation, craves the safety and comfort of a home. Growing up in Charlotte, NC, I have become too familiar with communities that lack this comfort. Various neighborhoods in Charlotte have the resources and spaces to provide safe, permanent homes, yet the city lacks the motivation to design and create these spaces. While I find these communities to be beautiful, cultural centers unique to their areas, it is heartbreaking to see many of them succumb to the lack of sustainable, urban development that would keep these communities moving forward. Through gaining my education at North Carolina State University my passion to design spaces that are a safe, equitable, and beautiful for all people is still hoping to ease their “ache for home.”
PORTFOLIOARCHITECTURE
TYLER C. HINSON
tylerchinson@gmail.com (704)794-5213
SHE/HER
EDUCATION
North Carolina State University Raleigh, NC
Bachelors of Enviornmental Design in Architecture
Expected Graduation: 05.2026
Current Cumulative GPA: 3.6
William Amos Hough High School Cornelius, NC
High School Diploma as of 05.2022
EXPERIENCE
Nicole Perri Architecture Davidson, NC- Architectural Intern
Record notes for client meetings
Help organize office supplies, tools and materials
Organize and process drawings
Observe the process and work of a registered architect
Red Rocks Cafe in Birkdale Huntersville, NC - Hostess
Greet and seat guests
Take online/over-the-phone orders
Provide excellent service to customers
Manage front of house area
Design Ambasssador Raleigh, NC - Intern/Tour Guide
NC State College of Design Ambassador
September 2021-January 2022
May 2021-July 2024
August 2023-May 2025
LEADERSHIP & INVOLVEMENT
NC State National Organization of Minority Architecture Students
Chapter Secretary
NC State College of Design Student Council Council Member
HONORS
Faculty Honors and Dean’s List Scholar (5x)
Shawcroft Drawing Competition Nominee
BLOCKFEST Competition
SKILLS & TOOLS
Proficient in AUTODESK Softwares
RevitCAD, AutoCAD
Proficient in SKETCHUP
Proficient in ADOBE CREATIVE SUITE
Photoshop, Illustrator, Acrobat, InDesign,
Proficient in MICROSOFT OFFICE
Powerpoint, Excel, Word
Proficient in GOOGLE APPLICATIONS
Google Drive, Google Slides, Google Docs, Google Sheets
Intermediate in RHINO
Hand drafting skills, laser cutting, 3D printing
August 2023-May 2025
August 2023-May 2025
March 2024 2024
EDUCATION DEVELOPMENT
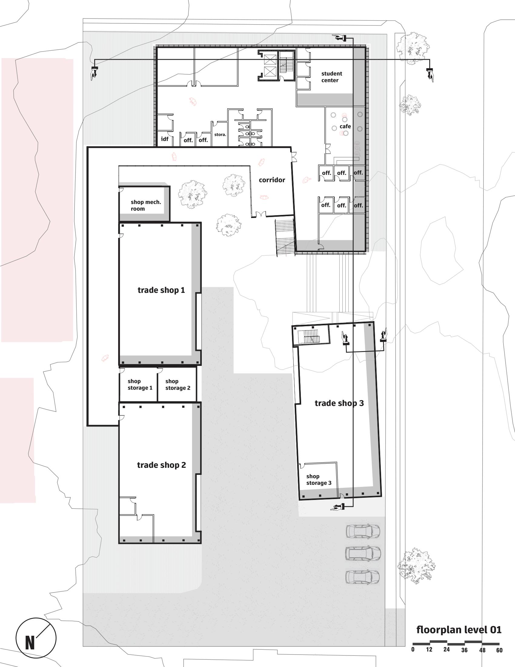
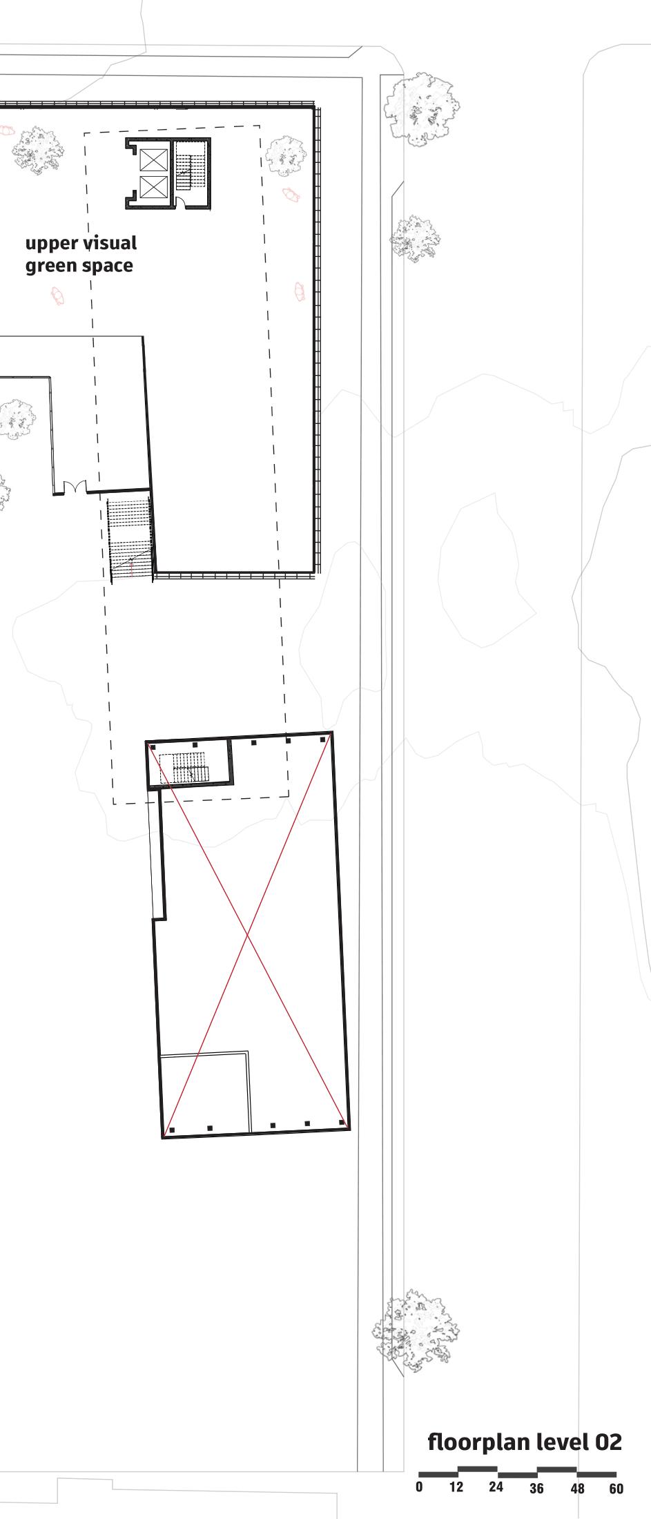
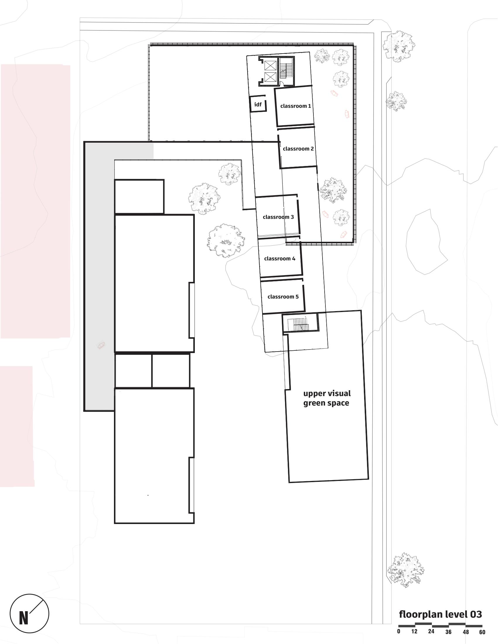
DOwntown raleigh trade School
Location:Raleigh,NorthCarolina
ARC301Tectonics
Instructor:ElizabethMitchell Fall2024

The Downtown Trade School project is a visionary architectural endeavor that bridges Raleigh’s industrial and historical identities. Inspired by the juxtaposition of downtown’s steel skyscrapers and the enduring charm of brick homes across the train tracks,; the design harmonizes contrasting materials to symbolize connection and continuity.
The structure serves as both a viewing platform and a creative space, offering sweeping vistas that frame this dichotomy while inspiring students to reflect on their role in shaping the city’s architectural future. By blending steel and brick in its construction, the building itself becomes a tangible manifestation of its concept, emphasizing the transformative power of design in uniting past and future. This dynamic interplay of form and function encapsulates the mission of the trade school, fostering a new generation of makers who will redefine the urban landscape.






AXONOMETRIC

SECTION 1/4”-1’




SECTION(S)



FLOORPLAN(S)



RESEARCH & STUDY
SCOTTSDALE , AR. “ARABIAN PUBLIC LIBRARY” precedent study
Location:Scottsdale,Arizona
ARC302Tectonics
Instructor:BillyAskey&EdwinHarris Spring2025
In studying the Arabian Public Library in Scottsdale, Arizona, the project allowed for an eye opening dive into a new perspective on library design. Unlike your typical library brick and mortar concepts, the Arabian Public Library follows a design that skillfully integrates materials like corten steel and glass, creating a tactile connection to the surrounding desert environment. Its exterior features a striking balance of shadow and light, with the play of natural sunlight through carefully placed openings highlighting the geometric design and creating a dynamic, shifting atmosphere throughout the day. This connection between traditional design and modern techniques exemplifies how architecture can honor the past while evolving to meet present-day needs.





While studying the Arabian Public Library, I was able to immerse myself within the layers of the structure and grasp rewarding and helpfful task as this felt like most clear way to process what the designers was aiming for along with

the principal goals being reached by the Richard Kennedy Design Team. I found the rendering process to be a potential issues faced by the architect.


CRAFT
DIVERSE 3-D modeled PIECES
D104,ARC202,ARC301
Fall2022-Fall2024
As I continue my journey in architecture, I have come to realize that the process of modeling and crafting is not just an essential aspect of my ability to design, but also a deeply therapeutic and enriching part of my creative process. It has become a vital tool for bringing my ideas to life, bridging the gap between abstract concepts and tangible realities. Through this hands-on approach, I’ve discovered that modeling allows me to engage more intimately with my designs, offering a physical, interactive experience that helps me understand scale, proportion, and spatial relationships in ways that digital tools alone cannot. Over time, I’ve made it a priority to integrate physical modeling into the forefront of every project I work on, ensuring that it is not merely an afterthought but an essential step in the development of my ideas.
This commitment to crafting models has proven invaluable in solving design challenges. When faced with obstacles such as spatial constraints, material considerations, or conceptual clarity, I’ve found that physical models give me the freedom to experiment, iterate, and visualize solutions more effectively. The tangible nature of the models allows me to quickly assess how certain design elements interact, and I can make adjustments on the fly, testing out various configurations without the limitations of a digital screen.




In the process of the design above, I focused on illustrating the main parti of the design to create a simplistic yet direct image to the viewer of circular motion and centrality.

In the creating this wall section design, I focused on utilizing the proper materials to illustrate the intended realistic materiality. In this design, created a polycarbonate glazing system along with using 12” concrete masonry to support the overall system. Further details of this wall section are provided earlier in the portfolio on page 09.


foot contoured layerd equaling up to around 60 layers. While this process was quite strenuous, it was a rewarding experinearly as understood through digital technique as apposed to this hands-on process.

The North Carolina State University College of Design curriculum has a requirement for have students of all four disciplines start off the designers ability to create under such conditions. For my design on the top left, I created an expandable bodice piece that excentuated tion to exploring how modulars can be used to create sophisticated, interesting design concepts.


off with learning skills in hand crafting with using paper to create these wearable structures with kinetic aspects to challenge the ability of excentuated the seperation of the arm from the ribcage using a honeycomb pattern. The design on the right was created soon after in rela-


In my design process, I often still enjoy the connection of hand and pencil in either presenting my work or in the design process. slight changes and alters in iterating. Overall, I feel as though the use of hand and pencil should never be lost in architects




process. I often sketch to be able to process what I am thinking along with layering pieces of trace to be able to make architects as that is how we can illustrate our most innovative and unique of concepts


Photography is also something I will always feel drawn to. Whether through the use of film or digital,
STUDY

the artform of photography can capture so much just through the still of an image.
SchoolofArchitecture
tylerchinson@gmail.com
UNIVERSITY
Architecture
Secretary