TYLER C. HINSON
SELECTECED WORKS: 2022-2025
“The
ache for home lives in all of us. The safe place where we can go as we are and not be questioned.“
-Maya Angelou
As Maya Angelou said, everyone, regardless of race, religion, gender, or sexual orientation, deserves the safety and comfort of a home. Growing up in Charlotte, NC, I’ve seen communities lacking that comfort, despite having the resources for safe, permanent housing. While these neighborhoods are rich in culture, it’s heartbreaking to watch them suffer from a lack of sustainable development. At North Carolina State University, my passion for creating safe, equitable, and beautiful spaces drives me to help ease their “ache for home.”
PORTFOLIOARCHITECTURE
EDUCATIONAL DEVELOPMENT
DOWNTOWRALEIGHTRADESCHOOL
RESEARCH & STUDY
SCOTTSDALE,ARIZONA‘ARABIAN
PUBLIC LIBRARY‘
CRAFT
NCSTATESPRINGHILLBUSSTOP
DOWNTOWNRALEIGHTRADESCHOOL
DORTHEADIXPAVILLIONINSTALLATION
DOWNTOWNRALEIGHTRADESCHOOL1/4”-1’ WALLSECTION
DOWNTOWNRALEIGHTRADESCHOOLSITEMODEL
FYEMODELING:FYEPAPERPROJECT
FYEMODELING:FYE3DIMENSIONAL FORMSTUDY
OTHER WORKS
HANDDRAWING/SKETCHING
PHOTOGRAPHYSTUDY
TYLER C. HINSON
tylerchinson@gmail.com (704)794-5213
SHE/HER
EDUCATION
North Carolina State University Raleigh, NC
Bachelors of Enviornmental Design in Architecture
Expected Graduation: 05.2026
Current Cumulative GPA: 3.6
William Amos Hough High School Cornelius, NC
High School Diploma as of 05.2022
EXPERIENCE
Nicole Perri Architecture Davidson, NC- Architectural Intern
Record notes for client meetings
Help organize office supplies, tools and materials
Organize and process drawings
Observe the process and work of a registered architect
Red Rocks Cafe in Birkdale Huntersville, NC - Hostess
Greet and seat guests
Take online/over-the-phone orders
Provide excellent service to customers
Manage front of house area
Design Ambasssador Raleigh, NC - Intern/Tour Guide
NC State College of Design Ambassador
September 2021-January 2022
LEADERSHIP & INVOLVEMENT
NC State National Organization of Minority Architecture Students
Chapter Secretary
NC State College of Design Student Council
Council Member
HONORS
Faculty Honors and Dean’s List Scholar (5x)
Shawcroft Drawing Competition Nominee
BLOCKFEST Competition
May 2021-July 2024
SKILLS & TOOLS
Proficient in AUTODESK Softwares
RevitCAD, AutoCAD
Proficient in SKETCHUP
Proficient in ADOBE CREATIVE SUITE
Photoshop, Illustrator, Acrobat, InDesign,
Proficient in MICROSOFT OFFICE
Powerpoint, Excel, Word
Proficient in GOOGLE APPLICATIONS
Google Drive, Google Slides, Google Docs, Google
Sheets
Intermediate in RHINO
Hand drafting skills, laser cutting, 3D printing
August 2023-May 2025
August 2023-May 2025
August 2023-May 2025
March 2024 2024
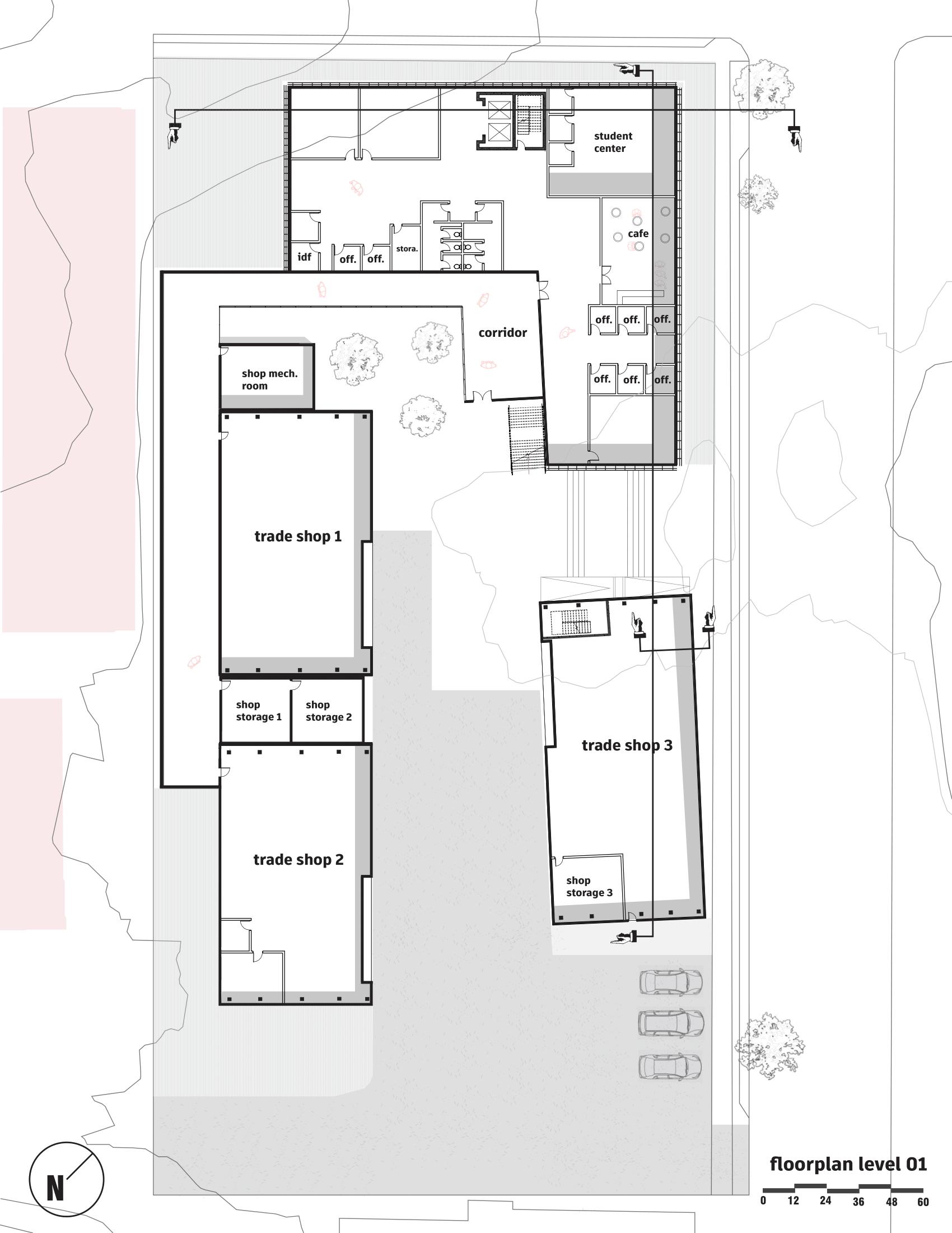
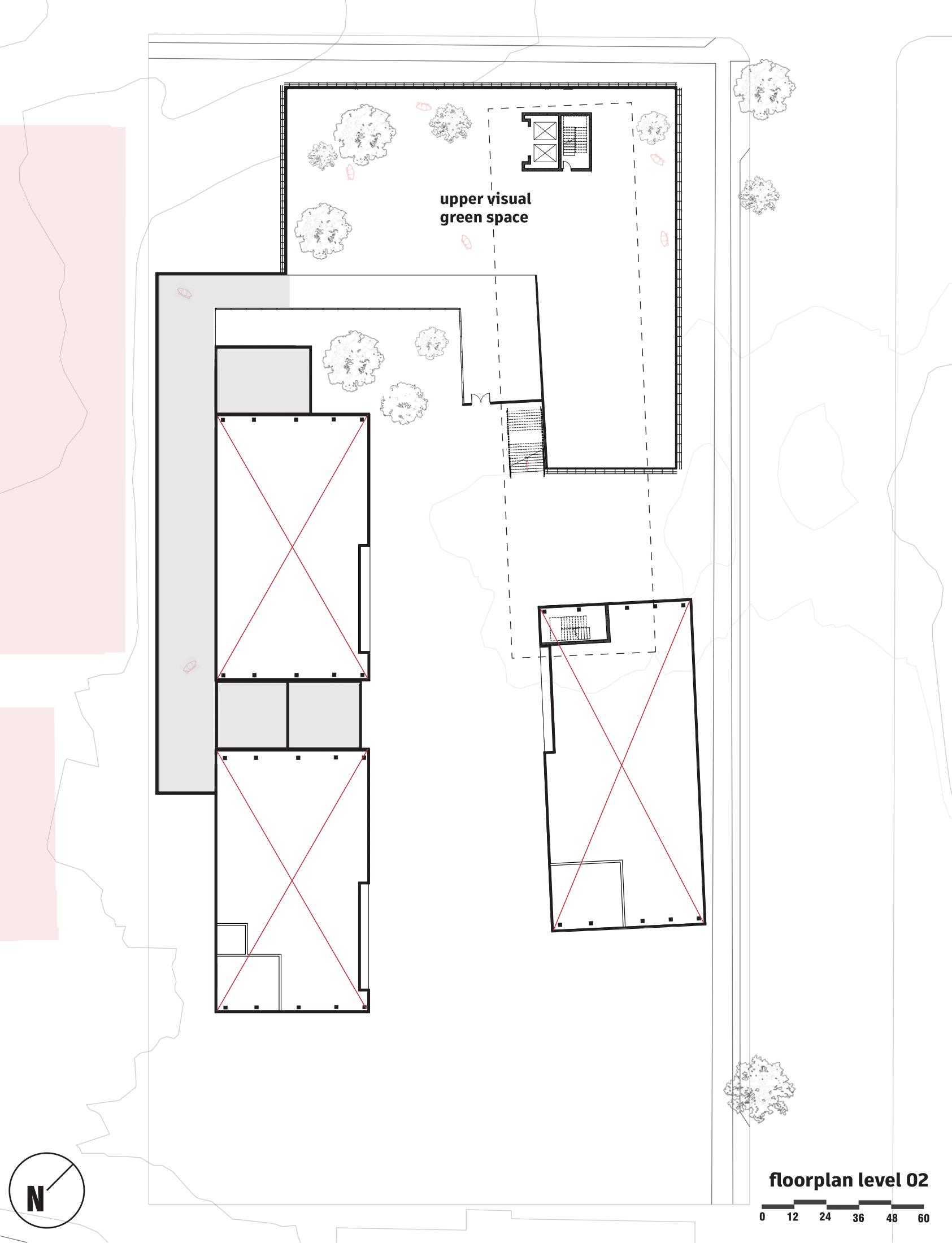
DOWNTOWN RALEIGH TRADE
Location:Raleigh,NorthCarolina
ARC301Tectonics
Instructor:ElizabethMitchell
Fall2024

The Downtown Trade School project is a visionary architectural endeavor that bridges Raleigh’s industrial and historical identities. Inspired by the juxtaposition of downtown’s steel skyscrapers and the enduring charm of brick homes across the train tracks,; the design harmonizes contrasting materials to symbolize connection and continuity.
The structure serves as both a viewing platform and a creative space, offering sweeping vistas that frame this dichotomy while inspiring students to reflect on their role in shaping the city’s architectural future. By blending steel and brick in its construction, the building itself becomes a tangible manifestation of its concept, emphasizing the transformative power of design in uniting past and future. This dynamic interplay of form and function encapsulates the mission of the trade school, fostering a new generation of makers who will redefine the urban landscape.













RESEARCH & STUDY
SCOTTSDALE , AR.
“ARABIAN PUBLIC LIBRARY”
PRECEDENT STUDY
ArchitectureFirm:RichardKellyArchitecture
Location:Scottsdale,Arizona
ARC302Tectonics
Instructor:BillyAskey&EdwinHarris
Spring2025
In studying the Arabian Public Library created by Richard Kennedy Architecture in 2007 in Scottsdale, Arizona, the project allowed for an eye opening dive into a new perspective on library design. Unlike your typical library brick and mortar concepts, the Arabian Public Library follows a design that skillfully integrates materials like corten steel and glass, creating a tactile connection to the surrounding desert environment. Its exterior features a striking balance of shadow and light, with the play of natural sunlight through carefully placed openings highlighting the geometric design and creating a dynamic, shifting atmosphere throughout the day. This connection between traditional design and modern techniques exemplifies how architecture can honor the past while evolving to meet present-day needs.





CRAFT
DIVERSE 3-D MODELED PIECES
D104,ARC202,ARC301
Fall2022-Fall2024
As I continue my journey in architecture, I have come to realize that the process of modeling and crafting is not just an essential aspect of my ability to design, but also a deeply therapeutic and enriching part of my creative process. It has become a vital tool for bringing my ideas to life, bridging the gap between abstract concepts and tangible realities. Through this hands-on approach, I’ve discovered that modeling allows me to engage more intimately with my designs, offering a physical, interactive experience that helps me understand scale, proportion, and spatial relationships in ways that digital tools alone cannot. Over time, I’ve made it a priority to integrate physical modeling into the forefront of every project I work on, ensuring that it is not merely an afterthought but an essential step in the development of my ideas.
This commitment to crafting models has proven invaluable in solving design challenges. When faced with obstacles such as spatial constraints, material considerations, or conceptual clarity, I’ve found that physical models give me the freedom to experiment, iterate, and visualize solutions more effectively. The tangible nature of the models allows me to quickly assess how certain design elements interact, and I can make adjustments on the fly, testing out various configurations without the limitations of a digital screen.





In the process of the design above, I focused on illustrating the main parti of the design to create a simplistic yet direct image to the viewer of circular motion and centrality. In the creating this wall section design, I focused on utilizing the proper materials to illustrate the intended realistic materiality. In this design, created a polycarbonate glazing system along with using 12” concrete masonry to support the overall system. Further details of this wall section are provided earlier in the portfolio on page 09.










In my design process, I often still enjoy the connection of hand and pencil in either presenting my work or in the design process. I often sketch to be able to process what I am thinking along with layering pieces of trace to be able to make slight changes and alters in iterating. Overall, I feel as though the use of hand and pencil should never be lost in architects as that is how we can illustrate our most innovative and unique of concepts



Photography is also something I will always feel drawn to. Whether through the use of film or digital, the artform of photography can capture so much just through the still of an image.
TYLER C. HINSON
tylerchinson@gmail.com
NORTHCAROLINASTATEUNIVERSITY
SchoolofArchitecture
NCStateNOMASChapterSecretary