Analisis Taller_ T2

Page 1

RURAQ MAKI

CENTRO DE FORMACIÓN ARTESANAL

UNIVERSIDAD PRIVADA DEL NORTE ARQUITECTURA Y DISEÑO

S A N M A R C O S

TEMA: Anteproyecto

ARQUITECTOS:

Mario Sergio Sanchez Urrelo

Cesar Víterman Edquen Regalado

ESTUDIANTES: Idrugo Diaz, Stefany Carranza Ramos, Anny

CURSO

Taller de Arquitectura 7

EVALUACIÓN Pre entrega T2

FECHA: 20/05/24

ANNY CARRANZA STEFANY IDRUGO

Datos y contacto

+51-958-227-022

Anny Pao a/ Carranza Ramos

Edad: 20 Años

Estudiante de Arquitectura y Diseño de Inter ores

annyramos2730@gmail com

annypao 17

Jr Amazonas #131 - CAJ PERÚ

Estudios Software

Secundaría IEE Santa Teresita

Superior: Universidad Privada del Norte - Facultad

Arquitectura y Diseño de Interiores

Proyectos de carrera

Residencial Las Terrazas

Casa Cumbe

Scketchup + V-ray

Photoshop Enscape

Datos y contacto

Stefany Nico le / Idrugo Diaz

Edad: 20 Años

Estud ante de Arquitectura y Diseño Urbano

Estudios

Secundaría: IEE Santa Teresita

Superior: Universidad Privada del Norte - Facultad

Arquitectura y Urbanismo

+51-968-663-857

StefaniIdrugo@gmail com

Stefanyid21

Av Vida Gaitan M-E L-3 - CAJ PERÚ

Software

Autocad

Revit Autocad Oficce Revit

Photoshop Oficce

Scketchup + V-ray Twinmottion

Casa GM centro Comuna Horizontes

Proyectos de carrera

Residencial os pinos Casa Molina

Intervención interior de museo Etno óg co K’us llu

CONTEXTO

análisis de casos

06 Renders - volumen final

concepto

Universidad Privada del Norte
01
02
03
04
05
INDICE USUARIO
ZONIFICACIÓN

RURAQ MAKI

CENTRO DE FORMACIÓN ARTESANAL

Este centro de formación artesanal está orientado a la creación, Producción y promoción de las artes elaboradas por pobladores de San Marcos, preservando las actividades y mejorando la elaboración, comercio y distribución

UBICACIÓN MACRO

País Perú

UBICACION MICRO

754 HAB/AÑO

- 24 AÑOS

Provincia Cajamarca

Distrito San Marcos

VIAS CERCANAS

AV. Vía de evitamiento

VÍA PAVIMENTADA: En buen estado

VÍA PAVIMENTADA: En buen estado

CONTEXTO Ubicación 02
USUARIO
Universidad Privada del Norte ARTESANOS 100 HAB 76 34 % APRENDICES 25 HAB 19 08 % VENDEDORAS 25 HAB 4 58 % TURISTAS
62
Internacional 38 % 56 % Varones Mujeres 44%
% Nacional JÓVENES 17
2683 HAB
r
B o l o g n e s i
J
.

PREEXISTENCIAS

SAUCE

CEDRO Altura: 10 m

Altura 20 m

Absorción de oxígeno 12 Kg

CO₂ al año

PENCA

1 J r . B o l o g n e s i
AV. Vía de evitamiento 01 02 03 04 CONTEXTO Terreno 02 VISUALES 01 02 03 04 VISTA EN PLANTA CORTES
Áreadecultivo
2244 mnsm 2245 m.ns.m 22455 mnsm 2244 mnsm.
Altura:0 30 m Universidad Privada del Norte

ANÁLISISDECASO

CASO 1

CENTRO DE FORMACIÓN AGRARIA

GENERALIDADES

Proyecto: CENTRO DE FORMACIÓN AGRARIA

Ubicación Ciudad de Osorno, Chile- 2012

Arquitectos Fernando Sánchez

Tipo De Proyecto: Centro de Formación Agraria

Área De Terreno: 15000 m²

Área Construida: 5000 m²

Área Libre: 10 000 m²

CONTEXTO

EMPLAZAMIENTO Y POSICIONAMIENTO

La intervención se posiciona en la ciudad transformándose en un catalizador de relaciones sociales en torno a un ámbito educativo, haciendo énfasis en el enseñanza técnica; el sector determinado para el proyecto es una zona en actual deterioro (barrios en su mayoría de ancianos que migración desde el campo a la ciudad) contrastado con una zona aún no habitada en la periferia de la ciudad. Distante 400 metros al centro de la ciudad.

El proyecto se denomina Centro

El proyecto reconoce la configuración física y geográfica del lugar para adaptarse a ésta de manera progresiva, dando una respuesta a la problemática económica, social, urbana, arquitectónica observada y estudiada.

El espacio rural en el sur de Chile es un espacio rico en relaciones de contraste, concentrado lo lo VS disperso, lo dinámico vs lo estático, racionalista VS lo lo orgánico, y esto entrega un exquisita gama de posibles relaciones espaciales, volumétricas y de programa.

02
a , R e a , , , s e l a a l o
Universidad Privada del Norte

ANÁLISISDECASO

CASO 1

CENTRO DE FORMACIÓN AGRARIA

ANÁLISIS DE FUNCIÓN ARQUITECTÓNICA

2 3

1 5

Viveros e invernaderos de cultivo en laderas

Zona de huertos comunitarios

Acceso principal

4

Estacionamiento

1. VOLÚMEN DE ADMINISTRACIÓN (recibe y conecta desde la ciudad al campo)

2. VOLÚMEN AULA/ TALLER, ALBERGA AULAS, AUDITORIO Y BIBLIOTECA

3 VOLUMEN INVERNADERO / SE CONCENTRA EN EL ÁREA DE VIVERO (como aula) y se desprende por medio de plataformas cultivables en los faldeos de la ladera Taller de Tecnología, alberga el área de maquinaria

4. Espacio multipropósito verde, desde lo deportivo a lo ferial (agrario)

5. Terrazas de cultivo, integración social y aprendizaje informal

Explanada verde multipropósito Parque

Estacionamientos Control Acceso

Zona administrativa Zona multipropósito Zona educativa

Zona de viveros Zona de cultivo e integración social

02
Universidad Privada del Norte

ANÁLISISDECASO

CASO 1

CENTRO DE FORMACIÓN AGRARIA

ANÁLISIS DE ESTRUCTURAL ARQUITECTÓNICO

El proyecto se compone de sistemas constructivos mixtos utilizando en su mayoría las estructuras metálicas y placas de concreto armado prefabricado

Además se utilizan materiales como la madera y cristal para los cerramientos

02
D1 D2 D3
D1 D2 D3
Universidad Privada del Norte

ANÁLISISDECASO

CASO 2

GENERALIDADES

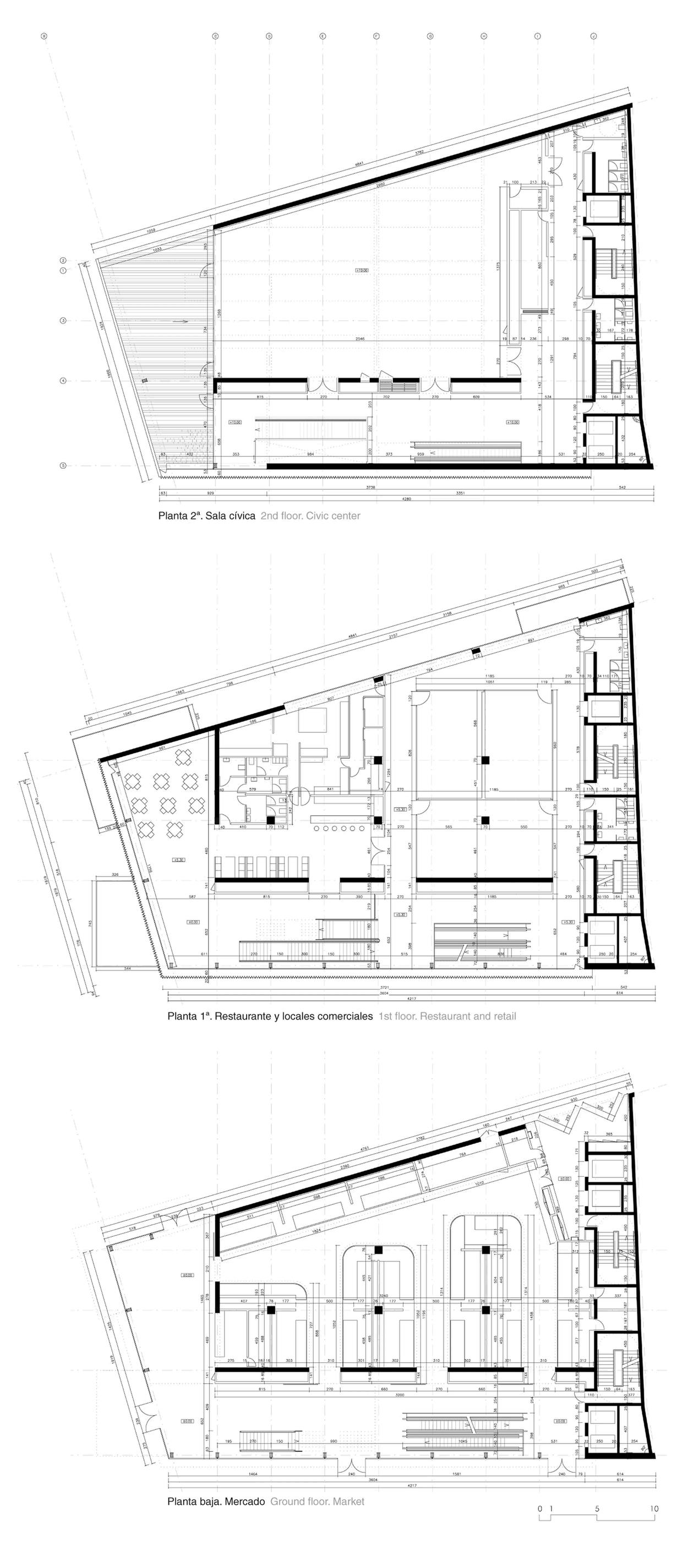
Proyecto: Mercado y Sala Cívica

Ubicación: Torrent, España

Arquitectos: Vázquez Consuegra

Equipo De Diseño Vázquez Consuegra Vázquez Consuegra

Tipo De Proyecto Espacio cultural comunitarioMercado

Área De Terreno: 6700 m²

Año: 2015

CONTEXTO

Usos de suelo (ZRP) restaurantes tiendas de conveniencia jardines plazas áreas de juegos infantiles

Mercado y sala

Flujo peatonal alto Flujo peatonal medio Vía flujo medio Viviendas

Entrada peatonal

Comercio

El Mercado y Sal espacio multifu combina un tradicional con u para la realizació actividades cultu es un lugar d donde se participación ciu promueve la cultu

Dirección del sol

Dirección de los vientos

Flujo peatonal bajo

02
A' v2 A
v1
v1 Corte de vía A-A` v2
Universidad Privada del Norte

ANÁLISISDECASO

CASO 2

MERCADO Y SALA CÍVICA

ANÁLISIS DE FORMA ARQUITECTÓNICA

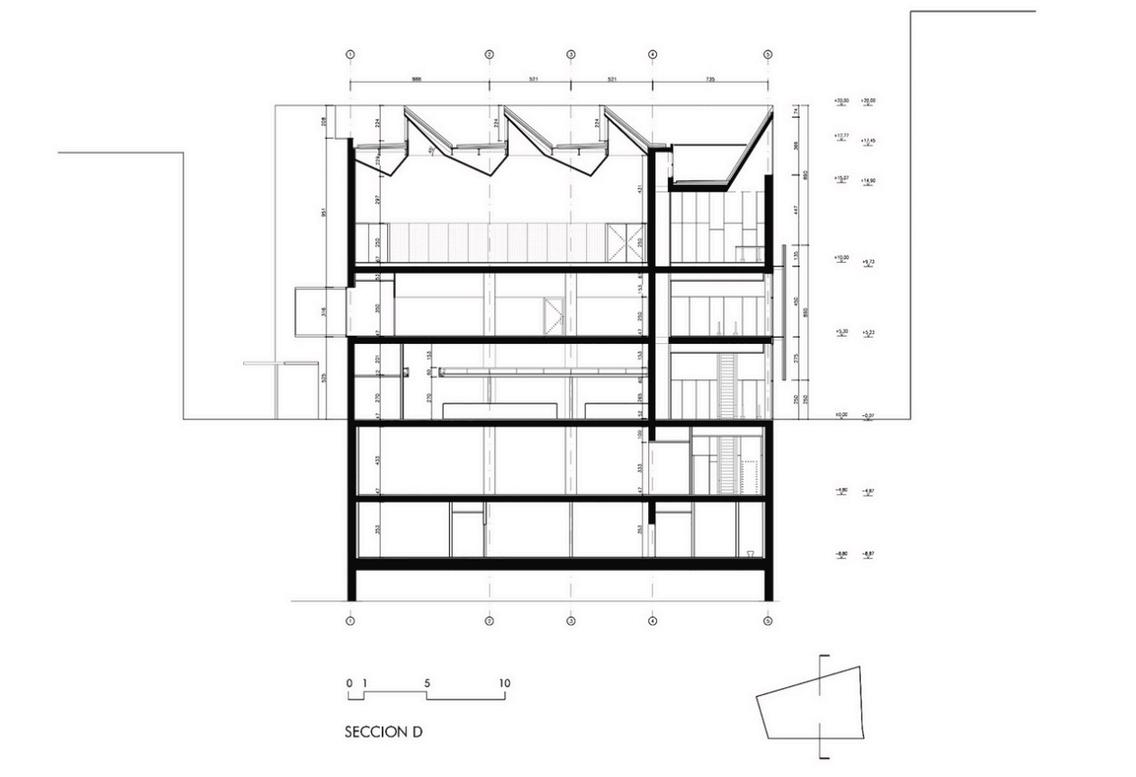
Un edificio de base trapezoidal, adosado a una pared medianera y con tres fachadas,

COMPOSICIÓN DE LA FORMA

Luz y estructura se acomodan para resolver los requerimientos precisos. En efecto, amplios lucernarios abiertos a Norte, forman parte de una estructura reticular de grandes luces.

Tratando de conseguir una trabazón armoniosa con las preexistencias una relación de continuidad física e histórica en la ciudad

El volumen inicial nace a partir de un volumen cuadrangular

Se va adecuando para tener una armonía con las preexistencias

Transformándola luego en un trapecio

Puntos de ingreso Visuales

02 Universidad Privada del Norte

ANÁLISISDECASO

ANÁLISIS DE FUNCIÓN ARQUITECTÓNICA

ZONIFICACIÓN DE USOS CON SUS AMBIENTES Y , CIRCULACIONES GENERALES

Zona Comercial

Zona

Zona Cultural Sala cívica 1 Terraza 2 Leyenda NCV

Escaleras1. Ascensor 2

Circulación

Pasadizo 1

Leyenda

Ingreso peatona prncpa

Ingreso peatona secundaro

Crculacón peatona a ta Crculacón vehcu ar Crculacón peatona baa

1 1 NCV Escaleras
Ascensor
Circulación Pasadzo
1
2
1
CIRCULACIÓN VERTICAL Y HOR ZONTAL CORTE TRANSVERSAL D
DE FLUJO PLANTA BAJA - COMERCIO
Restaurante
Almacén
3. Cocina 4 SS HH comensales 5 SS HH trabajadores 6 Sala de reuniones 7 NCV Escaleras 1 Ascensor2. Zona intima SS HH discapacitados 1 SS HH público 2 SS.HH trabajadores 3. Circulación Pasadizo 1
AGRAMA
1
2 Tiendas
Y CIRCULACIONES GENERALES Leyenda 1 2 1 1 3 7 2 3 5 4 6
C rcu ac ón
alta C rcu ac ón peatonal ba a Leyenda
ZONIFICACIÓN DE USOS CON SUS AMBIENTES
Ingreso peatona secundar o
peatonal
TERCERA PLANTA- SALA C VICA
1 2 3 1
intima SS.HH discapacitados 1. SS HH público 2 SS HH trabajadores 3
CASO
02
bulo
SS HH 4
Almacén
de
Leyenda 244 m 134 89 m 157 39 m 49 26 92 96 m 65 25 m 100.47 m 36.26m 200 17 m Universidad Privada del Norte
2
Zona Comercial Tienda de abastos 1 Cafetería 2 Vest
3
Zona administrativa
1 Almacén
limpieza 2

CONCEPTO

Idea rectora

TEXTILES (FORMAS)

03
TALLADO DE CUCHARAS TALLADO DE CUCHARAS
Universidad Privada del Norte
TALLADO DE CUCHARAS

CONCEPTO Espacio-función

ACCESOS AL PROYECTO

TERRENO COLINDANTE

El proyecto considerará los accesos en su distribución

ESPACIO ORGANIZADOR

TERRENO COLINDANTE

A partir de este espacio se organizaran las áreas que ocupara el proyecto

ÁREAS DESIGNADAS PARA EL PROYECTO

Acceso principal

Acceso secundario

Acceso principal

Acceso secundario

Patiode descarga

EL PROYECTO CONSIDERA:

Zona de talleres

Zona de investigación

Zona complementaria

Zona de formación

Zona administrativa

zona de comercio

Estacionamiento

Patio de descarga

Zona descarga

Zona de recreación

Zona conectora

03
T E R R E N O C O L I N D A N T E
VOLUMETRIA
FINAL - FORMA + FUNCION
NIVEL 1° NIVEL 2° Z. deformacion Z. detalleres E s t a c i o n a m i e n t o
VOLUMEN
FUNCION
VOLUMEN
EN ACOPLO
ESTIMADA
FINAL
T E R R E N O C O L I N D A N T E Universidad Privada del Norte

CONCEPTO

El volumen se ha creado pensándose como un espacio integrado a la naturaleza que busca adaptarse al terreno, configurando la forma para abrirse a un area libre recreativa

IMPLANTACIÓN DE VOLUMEN EN EL TERRENO

El espacio considera una jerarquía volumétrica en intersección de sus accesos principales, abriendo sus otros dos volúmenes, rotando sobre un eje central, respetando las preexistencias.

Sustracción de parte del volumen para creacion de formas

Posición del volumen jerárquico hacia accesos ( Vias)

Establecimiento de un eje central para su transformación y volumen predominante jerárquico

INCORPORACION DE ELEMENTOS A MODO SIMÉTRICO

Los elementos están alineados y ubicados siguiendo el eje

ROTACION DESDE EL EJE PARA ADAPTAR EL VOLUMEN AL TERRENO

Fijación desde el volumen jerárquico + creación de volumen par mostrar continuidad de volumenes.

INCORPORACION DE ELEMENTOS A MODO SIMÉTRICO

VOLUMETRIA FINAL CORTE

Unión de volúmenes mediante envolventes

1 Idea rectora 03
CONCEPTO
Universidad Privada del Norte

Macro 04

ZONIFICACIÓN

ZONAS EN VOLUMEN GENERALES

Volúmenes emplazados en el terreno

ZONAS PRIMER NIVEL

TERRENO COLINDANTE

Zona de comercio

EL PROYECTO CONSIDERA:

Zona de talleres

Zona de comercio

Zona complementaria

Zona conectora

EXTERIOR

Zona de estacionamiento de descarga

Zona recreativa

Estacionamiento

Patio de estacionamiento

ZONAS SEGUNDO NIVEL

TERRENO COLINDANTE

LEYENDA LEYENDA

Zona conectora Zona complementaria

Zona Administrativa Zona de talleres

Ingreso P Ingreso S

Zona de formación Zona de investigación

Zona conectora

Ingreso P. Ingreso S.

T E R R E N O C O L I N D A N T E
T E R R E N O C O L I N D A N T E
Universidad Privada del Norte

ZONAS EN VOLUMEN GENERALES

Volúmenes emplazados en el terreno

EL PROYECTO CONSIDERA:

Zona de talleres Zona de comercio

Zona complementaria Zona conectora

ZONAS PRIMER NIVEL

Ss hh

Ss.hh 8 Ofi Administrativa

Ofi Gerència

de reunión

Hall de espera

ZONAS - SOTANO

COLINDANTE

ZONA DE SERVICIO

Cuarto de maquinas 1

2 Cuarto de bombas

3 Cuarto de reciclaje

ZONAS SEGUNDO NIVEL

Taller de textilería en telar

Almacén

Taller de cerámica

Taller de tallado

Ss hh

Zona Wi-Fi

Mirador 23. Biblioteca

Universidad Privada del Norte
ZONIFICACIÓN Micro 04
Cafetería 1. Stand
2
3.
4
comercial
Ss.hh
Tópico
TERRENO
T E R R E N O C O L I N D A N T E
5.
6
1 2 2 2 2 2 2 2 2 2 2 2 3 3 4 5 5 5 6 6 12 Aula polivalente/ multifuncional 13 Anfiteatro 14 Aula de exposición 15 Auditorio 7 8 9 10 11 12 13
16
18
19.
20
14 15 17 17 18 20 19 16 20 17 21
22
24
visual 25
21 22 23 24 24 25 Circulación vertical 1 2 3 TERRENO COLINDANTE T E R R E N O C O L I N D A N T E TERRENO COLINDANTE T E R R E N O C O L I N D A N T E
Aula de formación
7.
9
10.Sala
11
17
Sala de áudio
Hemeroteca
RNDERS Volumen 05 Universidad Privada del Norte

Turn static files into dynamic content formats.

Create a flipbook
Issuu converts static files into: digital portfolios, online yearbooks, online catalogs, digital photo albums and more. Sign up and create your flipbook.