Portafolio Académico_Stefany Mulford_2024

Page 1


INFORMACIÓN PERSONAL / PERSONAL INFORMATION

INFORMACIÓN PERSONAL / PERSONAL INFORMATION

EDUCACIÓN PRIMARIA

PRIMARY EDUCATION

institución Educativa Compartir Suba Bogotá D.C 2012

EDUCACIÓN SECUNDARIA

SECONDARY EDUCATION

institución Educativa Compartir Suba Bogotá D.C 2018

Titulo / Title: Bachiller académico/Academic Bachelor

LOGROS / NOTABLE ACHIEVEMENTS

CURSOS Y SEMINARIOS

COURSES AND SEMINARS

Universidad Pedagógica

English course

Bogotá D.C - 2019

ESTUDIOS UNIVERSITARIA

UNIVERSITY STUDIES

Universidad Católica de Colombia

Pregrado de Arquitectura - Bogotá

Semillero de Investigación:

1. Confort Ambiental / Bioclimática Diseño Solar Pasivo

2. Análisis del Ciclo de Vida de los Materiales

Intercambio Académico:

Universidad Francisco de Vitoria - 8vo Semestre Madrid - España

FECHA DE NACIMIENTO BIRTHDAY NÚMERO TELEFÓNICO

05 - 03 - 2002

BOGOTÁ - COLOMBIA

Dig 146 # 128 - 70

IDIOMAS / LENGUAGE

PHONE NUMBER

COL - (+57) 316 055 44 24

EMAIL

stefany9927@gmail.com smulford58@ucatolica.edu.co

Español - Nativo Inglés - Alto

PERFIL / PORFILE

Arquitecta con una formación integral que combina conocimientos técnicos y competencias interpersonales, enfocada en la resolución creativa de problemas y la innovación en proyectos de diseño. Tengo experiencia en el uso de diversas herramientas y software especializados, lo que me permite gestionar y desarrollar proyectos arquitectónicos con eficiencia. Mi capacidad para trabajar en equipo, junto con una actitud flexible y orientada al aprendizaje, me permite enfrentar desafíos de manera efectiva y contribuir al éxito de cada proyecto.

Architect with a comprehensive education that combines technical knowledge and interpersonal skills, focused on creative problem-solving and innovation in design projects. I have experience using various tools and specialized software, allowing me to efficiently manage and develop architectural projects. My ability to work in a team, along with a flexible attitude and a commitment to learning, enables me to effectively face challenges and contribute to the success of each project.

Segundo lugar en la XI Jornada de InvestigaciónUniverisdad Católica de Colombia Investigación y análisis mediante problemáticas y estrategias enfocadas en el control solar pasivo.

Ponencia para la Universidad Científica del SurPerú, Semillero de control solar - Presentación del resultado de estrategias de diseño.

Durante el intercambio a Madrid, participé en un WORKSHOP en conjunto con la Universidad de Manchester (Manchester School of Architecture), donde obtuve un certificado de este. 2020 2021 2023

Ponencia de poster en la XIII Jornada de Investigación - Universidad Católica de Colombia -Presentación del análisis y propuesta de la doble fachada.

EXPERIENCIA LABORAL / WORK EXPERIENCE

Concurso Premio Corona Pro Hábitat, Bogotá D.C. - Colombia

Proyecto INHOME, Bogotá D. C. Colombia

Proyecto Restaurante Hípica, La Pradera de Potosí, Calera, Cundinamarca - Colombia

2022 Concurso Capital Tower, Bogotá D.C. -Colombia

SOFTWARE

Proyecto Barcelona Cajicá, Cundinamarca Colombia

Proyecto Hotel Aeropuerto, Rionegro, Antioquia - Colombia

Proyecto Hotel Fany Li, Bogotá D.C. - Colombia

Ponencia de poster en la XV Jornada de Investigación - Universidad Católica de Colombia

2024 Actualmente: EMME

OCTAVO SEMESTRE

OCTAVO SEMESTRE

INTERCAMBIO

NOVENO SEMESTRE DECIMO SEMESTRE

NOVENO SEMESTRE

PROYECTO OASIS SKY
PROYECTO TEATRO METROPOLITANO CHISAKUÏ
DECIMO SEMESTRE
PROYECTO RIACHO EJIDA
ACADÉMICO - MADRID

PROYECTO RIACHO EJIDA

Mulford (Colombia) + Lena Geffroy (Francia)

El proyecto Riacho Ejida, Localizado en Madrid, España; se plantea cómo propuesta para Madrid Playa, entendiendo la necesidad de un lugar en la ciudad para aquellos quienes, principalmente, no pueden salir de Madrid en verano, buscando un espacio recreativo, de descanso y aunque sea momentáneo, escapar del ajetreo de la ciudad; por lo cual se trabaja con los conceptos de "Riacho" y "Ejida", del cual viene el título del proyecto, entendiéndolos en conjunto como un cuerpo continuo de agua que permite proximidad, seguridad y comodidad para todos, dónde se desarrolla múltiples actividades, permitiendo escenarios flexibles y dinámicos para la comunidad.

PLANTA GENERAL

PROCESO COMPOSITIVO

Estructura Inicial Proyección - Radialidad

Elevación de Zonas Cubiertas Centralidad del proyecto Eje de diseño

Cambios de Niveles Depresiones del proyecto Formación de Piscinas Exteriores y Mirador

Adición Elemento Transversal Localización del Restaurante Circulación General del Proyecto

RioManzanares
RioManzanares
El Matadero Edi cio Patrimonial)
Parque Madrid Rio

Riacho Ejida, está planteado mediante una radialidad, logrando consigo, una relación espacial y visual entre los diferentes escenarios de la propuesta, logrando un espacio fluido con diferentes actividades dentro del lugar; se dividen entre escenarios exteriores e interiores; contando con un mirador hacia el Río Manzanares y el proyecto en general, un escenario urbano para actividades recreativas y culturales, una cafetería, vestuarios y piscinas exteriores; por otro lado, se encuentra los elementos de las edificaciones principales del proyecto, conformados por las piscinas climatizadas, con salida hacia una playa privada, interna del proyecto y un restaurante con vistas panorámicas. Se articulan elementos vegetales existentes y propuestos como estrategias pasivas de diseño, donde no solo incluye el confort del espacio con su control de incidencia solar, sino que, consigo, delimitan los espacios de privacidad y generan una división de actividades espaciales.

PLANTA PRIMER NIVEL
0.0
PLANTA SEGUNDO NIVEL N. 3.00
Corte B - B’
Alzado Norte

AXONOMETRÍA EXPLOTADA

1 - Cubierta de graba - Paneles fotoboltáicos, funete principal de producción energética.

2 - Cubierta verde - Paneles fotoboltáicos

3 - Profundidad de las edificaciones de 8 metros, permitiendo el acceso de luz directa a todo el edificio

4 - Fachadas completamente acristalada, localización de voladizos para control solar en la fachada sur.

Piscinas Interiores
Restaurante
Piscinas Exteriores
Vestuarios Públicos
Escenario
Cafetería
Mirador

MATERIALIDAD

Materiales utilizados locales / Españoles, con el fin de limitar el transporte.

SUELO MADERA

Localización de este tipo de suelo en la permanencia puntual del escenario y del mirador, certificando previamente el origen de esta, y su aptitud para ocupar un flujo constante de personas, su mantenimiento y la durabilidad del mismo.

La certificación de la madera interior tambien se realiza previament a su compra y uso, buscando que al final de su ciclo de vida puedad ser implementado en otro uso para su posterior aprovechameinto.

PAVIMENTO PERMEABLE

Permiten la filtración y aprovechamiento del agua, al ser retenida en capas internas para luego ser expulsadas o evacuadas, lo que permite trabajar con la durabilidad de los materiales y el aprovechamiento de los mismos.

En lugar a la toxicidad de algunos materiales, se priorizará materiales certificados no tóxicos para el respeto del medio ambiente y la salud de los usuarios (y trabajadores).

SUELO

El edificio no se apoya en el suelo en toda la superficie para el restaurante, y la mayoría para la piscina, entonces la pérdida de calor por el suelo no es una gran preocupación, aun así, aislaremos obviamente esta losa, a priori sólida (hormigón armado) desde un punto de vista externo, pero en realidad hueco en un cierto punto para permitir la instalación de aislamiento.

VENTANAS

Todas las fachadas de nuestro proyecto son de cristal, por lo que hay que tener mucho cuidado con el aislamiento de estas ventanas; optando así, por vidrios dobles aislantes a la conducción (la cámara de aire separando las dos lunas permite el aislamiento térmico) y también que son aislantes a la radiación: reducen las pérdidas de calor desde el interior en invierno, y disponen de un control solar para reducir su factor solar.

Productos de madera certificados FSC comprobando la procedencia de estos.

CUBIERTA

El sistema de aislamiento de la losa de cubierta sigue siendo el mismo que el de la losa de piso (suelo).

La cubierta verde de la piscina, vestuarios públicos y cafetería permite un aislamiento adicional.

El aprovechamiento del mismo con paneles solares se usa para generar la producción de energía para las edificaciones.

El hormigón compuesto de cenizas volantes o escoria como sustituto del cimento 30% minimo

PUERTAS

Las puertas que dan al exterior también son acristaladas, se aplican los mismos criterios que para las ventanas, con el añadido de una especial atención a la estanqueidad del aire para evitar puentes térmicos a través de ellas, buscando que tengan una buena elección de materiales y durabilidad. las puertas interiores podemos reciclar puertas preconsumo o postconsumo siempre que cumplan con ciertos criterios.

PROYECTO OASIS SKY

PLAN DE MEJORAMIENTO INGRAL

Desarrollo de un plan maestro en el barrio de Altos de San Luis, en San Isidros Patios UPZ 89, Localidad Chapinero (UPL 9), Bogotá D.C. donde se plantea la primera fase del plan de mejoramiento integral para el barrio focalizando aspectos como lo son la movilidad, equipamientos y vivienda, así mismo recuperar y reintegrar el sistema verde colindante dentro del sector generando recorridos y una recuperación de las rondas de quebrada en el sector.

PLANTA PROPUESTA GENERAL

PLANTA PROPUESTA ESPECÍFICA

RioManzanares
RioManzanares

PLANTA SEXTO NIVEL DEL PROYECTO OASIS SKY

CONCEPTUALIZACIÓN PROBLEMÁTICA

DÉFICIT HABITACIONAL > ENFOQUE VIVIENDA

CUALITATIVOS

- Insuficiencia de viviendas adecuadas / vulnerabilidad del hábitat

- Condiciones deficientes de vivienda:

- Estructura y paredes en materiales inestables y sin consideraciones técnicas.

- Materiales poco adecuados de construcción que presentan una permeabilidad.

- Hacinamiento no mitigable.

- Viviendas con suelo inadecuado (tierra).

- Condiciones deficientes del vecindario:

- Ausencia de agua potable con acceso por tubería

- Ausencia de sisrenas de disposición de aguas servidas Alcantarillado.

- Ausencia de iluminación pública adecuada

- Accesos sin condiciones adecuadas.

CONCEPTOS

CUANTITATIVOS

- Insuficiente

- Condiciones económicas de

-

CONCEPTOS ABSTRACTOS:

ASEQUIBILIDADHABITABILIDADACCESIBILIDAD

ONU

Directrices de la OMS sobre vivienda y salud El costo de la vivienda debe ser tal que todas las personas puedan acceder a ella sin poner en peligro el disfrute de otros satisfactores básicos el ejercicio de sus derechos humanos.(ONU, 2018). vivienda no es asequible si su costo pone en peligro o compromete el goce de otros derechos humanos por parte de los ocupantes; La vivienda no puede considerarse asequible si un hogar gasta más del 30% de su ingreso disponible en costos de alquiler, funcionamiento mantenimiento más, en conexión con su factor de sostenibilidad rácter del bien que adquiere un habitante [lo cual] cobra importancia cuando evaluamos la conveniencia inconveniencia social de los enfoques que adoptan las fuerzas del mercado.

Son las condiciones que garantizan la seguridad física de sus habitantes y les proporcionan un espacio habitable suficiente, así como protección contra el frío, la humedad, el calor, la lluvia, el viento u otros riesgos para la salud y peligros estructurales. Espacio habitable deficiente (hacinamiento) Las definiciones medidas del hacinamiento utilizadas en los estudios incluidos variaron se basaron, ejem., en el número de personas por habitación, el número de habitaciones por vivienda, los metros cuadrados de espacio habitable que ésta no se produce exclusivamente como físicos, técnicos, funcionales incluso de salubridad predefinidos, sino que está fuertemente ligada a las relaciones que se establecen entre los sentidos de vida de los habitantes y las capacidades que tiene un hábitat para albergar, construir y realizar sus imaginarios, expectativas, necesidades y demandas. El diseño materialidad de la vivienda

CONCEPTO ARQUITECTÓNICO: VIVIENDA PROGRESIVA

VIVIENDA PROGRESIVA

Arq. Alejandro Aravena

- Beneficiarios de viviendas sociales completan sus casas por sus propios medios.

- Participación activa de beneficiarios (proceso de diseño construcción)

- Reducción del precio final

- Intrumento complementario de política habitacional

- Principios: Credito para la adquisición de materiales de construcción. Ampliación con seguimiento técnico (calidad constructiva). Facil acceso mediante el transporte público.

DIFERENCIA A TRAVÉS DE LA REPETICIÓN

VIVIENDA EVOLUTIVA CON TRABAJO COLECTIVO

Arq. Andres Manuel Abondano Universidad Nacional de Colombia Arq. Escobar, Echeverría, Huertas Universidad Nacional de Colombia

- Variación arquitectónica como mecanismo para construir identidad, individualy colectiva dentro del marco de la vivienda social.

- Dar a sus habitantes la posibilidad de expresarse, de ser individuos dentro de una colectividad.

- El trabajo pretende recuperar el valor de la repetición como herramienta para construir ciudad comunidad, entendiendo la repetición con un ritmo susceptible de ser alterado (variación) sin alterar la estructura formal.

- Estrategía de producción de vivienda: Proceso que partiendo de una unidad basica, debidamente habilitada para alojar una familia, supliendo todas sus necesidades y susceptible a expanción en x tiempo.

1 Proceso de crecimiento a partir del núcleo básico.

2 Fase 1 de vivienda terminada

3 Núcleo con diferentes posibilidades de crecimiento.

4 Prefabricación potenciada

5 Trabajo colectivo (participativo)

6 Proceso productivo por etapas.

ETAPA 1 AXONOMETRÍA

Se entrega Primer nivel construido en su totalidad y la estructura del segundo nivel para posible futuro desarrollo.

ETAPA 2

Construcción de la mitad del segundo Nivel, y escaleras de acceso para este.

ETAPA 3

Construcción total de la vivienda.

AXONOMETRÍA EXPLOTADA CORTE FACHADA

FACHADA Desarrollo de macetas donde se encuentra la vegetación de fachada, sistema de riego por goteo especie, enrredaderas.

CUBIERTA VERDE - Suelo de siembra / Composta - Tierra abonada - Capa de arena

- Piedra de rio / Material granulado

- Sustrato base: Roca

- Tela anti raíz - 0.03

Cubierta Verde Transitable

Cubierta de Paneles Fotovoltáicos No Transitable

Módulos Prefabricados Acabado en fachada Color de fachada Jerarquía

Estructura Metalica Cubierta de escaleras

Nivel B1 +16.50

Nivel B1 +7.50

CARPINTERIA METALICA Ventana con cámara de aire aluminio incluye rejilla de ventilación. Perfil metalico de la ventana de acero inoxidable con acabado negro.

ACABADO DE PISOS Piso Laminado 8mm Oak Brown Instalado sobre mortero de nivelación capa de Yumbolon.

ESTRUCTURA Viga principal 20 x 40, en concreto reforzado con varilla de ½” resistencia 3000 psi (21mpa)

ESTRUCTURA METALICA Vigueta perfil en 10 35, Desarrollo de la etapa 2 de la vivienda progresiva, anclaje por pernos a las estrustura de riostras metálicas en el segundo nivel del Duplex.

ESCALERA Huella en madera de 40 mm de grosor anclado la estructura de la escalera por pernos.

ESCALERA Estructura metálica por una zarpa centrica para las escaleras internas de los duplex.

ESTRUCTURA Viga de borde 0.30 x 0.15 en concreto reforzado con varilla de ½” resistencia 3000 psi (21mpa).

ESTRUCTURA Placa de entrepiso aligerado en concreto reforzado con parrilla superior de 10x10cms en varilla de ½” resistencia 3000 psi (21mpa).

CARPINTERIA METALICA Ventana con cámara de aire aluminio incluye rejilla de ventilación. Perfil metalico de la ventana de acero inoxidable con acabado negro.

ESTRUCTURA Alfajías prefabricadas en concreto 3000 psi

MAMPOSTERIA Ladrillo Prensado Liviano cm Coral H, 24.5 12 6,

ACABADOS PISOS Concreto pulido y endurecido con helicóptero con resina epóxica 4mm.

ESPACIO URBANO Adoquin A25

ESPACIO URBANO Mortero de pega 0.04

ESPACIO URBANO Concreto MR 4.0 MPa

ESTRUCTURA

Viga de cimentación 0.20 0.40 x 4.60 en concreto reforzado con varilla de ½” y 5/8” resistencia 3500 psi (21mpa).

ESTRUCTURA zapata de cimentacion 1.00 x 1.00 0.30 m en concreto reforzado con parrilla de 15x15cms en varilla de ½” resistencia 3500 psi (21mpa). Elementos estructurales de cimentacion.

Enredaderas internas, vegetación en fachada Estructura metálica anclada

Estructura Nivel 3 Entrepiso: Segundo nivel de Duplex Etapa 2 de construcción - Medio Nivel con Viguetas

Carpintería Metalica Perfil metálico de las ventanas y puertas de acero inoxidable con acabado negro.

Elemento de fachada acabado concreto y Celosía en madera Plastica WPC Ekowood

Estructura Nivel 3 Entrepiso: Segundo nivel de Duplex Etapa 2 de construcción - Medio Nivel con Viguetas Tanques de Agua 12m3

Estructura Metálica Vigas, Viguetas y Riostras

Estructura Nivel 2 Entrepiso: Combinación de estructura en concreto con estructura Metálica

Primer Nivel Comercial de los Bloques de vivenda MAMPOSTERIA Ladrillo Prensado Liviano 6 cm Coral H, 24.5 x 12 x 6, a la vista

Cimentación: Zapatas aisladas, Vigas de Cimentación y Zapatas Corridas del Muro de Contención

Escalonamiento del terreno natural

ESTRAT4EGÍAS IMPLEMENTADAS EN EL PROYECTO

IMPLEMENTACIÓN DE PANELES FOTOVOLTÁICOS EN CUBIERTAS NO TRANSITABLES

DESARROLLO DE CUBIERTA Y FACHADAS VERDE

AHORRO DE ENERGÍA POR PANELES FOTOVOTÁICOS

APROVECHAMIENDO DE AGUAS LLUVIAS

AHORRO AGUA TRABAJO DE AGUA LLUVIAS

46% 88.83%

TEATRO METROPOLITANO CHISAKUÏ

En el vibrante corazón de Bogotá, el Teatro Metropolitano

Chisakuï emerge como un tributo a las raíces culturales y artísticas de la ciudad, fusionando modernidad con tradición ancestral. Inspirado en la lengua muisca, su diseño refleja la esencia del arte y la creatividad, convirtiéndolo en un santuario para la celebración auténtica de las artes.

Este espacio no solo rinde homenaje a la historia y a los artistas de Bogotá, sino que también actúa como un faro de inspiración y preservación de la memoria cultural para las generaciones presentes y futuras.

ESTRATEGIAS DE DISEÑO IMPLEMENTADAS

Movilidad sostenible

Fomentar el uso de bicicletas, transporte público y caminar, en lugar del uso de vehículos privados.

Zonas multifuncionales

Promover áreas donde se combinen actividades comerciales, y de permanencia pasiva y activa.

Áreas verdes y parques urbanos

Integrar parques, jardines y corredores verdes que mejoren la calidad del aire y la salud pública.

Innovaciones tecnológicas:

Fomentar la implementación de tecnologías como paneles solares en el mobiliario urbano.

Diseño inclusivo

Asegurar que todos los espacios públicos y edificaciones sean accesibles para personas con discapacidades.

PLANTA URBANA

SOTERRADO

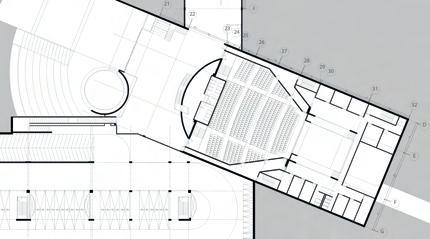
PLANTA TERCER NIVEL

ESC 1:250

PROGRAMA TERCER NIVEL

1. Zona Lobby

2. Circulaciones verticales - escaleras

3. Zona de auditorio

4. Módulo de educación complementario

5. Módulo de restaurante - complementario

6. Zona de circulación y conexión entre modulos complementarios y el teatro

7. Mirador

8. Cubierta transitable

9. Cuarto Técnico proyección

10. Salidas de emergencia

11. Zona Permamencia, Lobby

12. Rampa peatonal

Amplitud y Espacio Libre del Lobby:

El lobby presenta una gran amplitud y espacio libre, diseñado para responder adecuadamente al aforo del teatro. El mobiliario se ubica estratégicamente en áreas que no interrumpan la circulación, garantizando así un flujo continuo y cómodo de personas.

CORTE A - A’ ESC 1:250

CORTE B - B’ ESC 1:250

Triple Altura y Confort Térmico:

El lobby del teatro cuenta con una triple altura, y su materialidad está diseñada para generar un efecto invernadero que garantiza el confort térmico. Este diseño permite aprovechar al máximo la luz natural y mantener una temperatura agradable dentro del espacio.

Relación Visual con el Entorno:

El proyecto destaca por su relación visual interna y con el contexto urbano inmediato, utilizando grandes ventanales y una disposición abierta. Se integran elementos vegetales para reforzar la conexión con el entorno natural, añadiendo frescura al interior del lobby.

PLANTA ACCESO ANÁLISIS NSR - 10

ESC 1:250

Número Salidas Emergencia - 3 (Tabla K. 3.4.1)

LOCALIZACIÓN ESCALERAS DE EMERGENCIA

CIRCULACIÓN DE EMERGENCIA

> Recorrido hasta salidas de emergenciaMáximo permitido por norma 60m

CIRCULACIÓN DEL AUDITORIO

> Dimensión - 1.20 m

>Cantidad de personas en el auditorio (AFORO MAXIMO) = 950 personas

ACCESOS HACIA EL AUDITORIO (ZONA 1)

RAMPA

CUARTOS TECNICOS

ESPECIFICACIÓN DE LAS GRADAS DEL AUDITORIO

PLANTA TERCER NIVEL ANÁLISIS NSR - 10 ESC 1:250

GRUPO DE OCUPACIÓN: L (REUNIÓN)

SUBGRUPO: L2 (SALAS DE TEATRO)

ANÁLISIS

CONFORT TÉRMICO

LOBBY - VESTÍBULO

TEATRO PRINCIPAL

METÁLICA Cubierta Abovedada VACIOS ESTRUCTURALES Respuesta a las graderias del auditorio del teatro

Estructura

Turn static files into dynamic content formats.

Create a flipbook
Issuu converts static files into: digital portfolios, online yearbooks, online catalogs, digital photo albums and more. Sign up and create your flipbook.
Portafolio Académico_Stefany Mulford_2024 by Stefany.Mulford - Issuu