Portafolio Laboral_Stefany Mulford

Page 1

PORTAFOLIO PRACTICAS EMPRESARIALES STEFANY MULFORD PEÑA 1106858 e e e e e e e emme e emme e

PORTAFOLIO

PRACTICAS EMPRESARIALES

UNIVERSIDAD CATÓLICA DE COLOMBIA FACULTAD DE DISEÑO

PROGRAMA DE ARQUITECTURA

AUTORA: STEFANY MULFORD PEÑA 1106858 EMME S.A.S ARQ. MANUEL MORENO contacto@emme.co TUTORA ACADÉMICA: ARQ. LUZ DARY ABRIL BOGOTÁ D.C - COLOMBIA 2022
e emme e emme e e e emme

SOBRE EMME

ENSAYO SOBRE LAS PRÁCTICAS

PROFESIONALES

LABORES ASIGNADAS

PLAN DE TRABAJO ¿QUÉ SE REALIZÓ?

PROYECTOS TRABAJADOS

PROYECTO DE INHOME

PROYECTO RESTAURANTE HÍPICA

CONCURSO CAPITAL TOWER

PROYECTO BARCELONA CAJICA

PROYECTO HOTEL AEROPUERTO

ANEXO - SALIDAS

ANÁLISIS DEL PROCESO

1 2 3 4 5

CONCLUSIÓN EMME S.A.S. ENSAYO

emme

“SOMOS UNA OFICINA ESPECIALIZADA EN ESTRUCTURAR, DISEÑAR, DESARROLLAR, GERENCIAR Y CONSTRUIR PROYECTOS INMOBILIARIOS, OFRECIENDO UN ESQUEMA DE TRABAJO EN DONDE DIVERSAS RAMAS DEL CONOCIMIENTO SE ORGANIZAN PARA

CREAR UN PROYECTO INMOBILIARIO EXI -

TOSO DE INICIO A FIN, SATISFACIENDO LAS NECESIDADES ECONÓMICAS, TÉCNI -

CAS, ESPACIALES Y COMERCIALES QUE EXIGE LA CONCEPCIÓN Y CONSTRUCCIÓN DE LA ARQUITECTURA CONTEMPORÁNEA”.

EMME S.A.S

ENSAYO LA RELEVANCIA DE LAS PRACTICAS

Realizar las practicas profesionales genera una comprensión de la realidad para la profesión, lo cual permite que los estudiantes comprendan la relevancia del proceso en la concepción y realización de la imagen del lugar y del cómo se ve influenciado la vida en el sector, entendiendo el aspecto multiescalar que es el proceso de desarrollo y construcción de un proyecto que se realizan.

El tener un primer acercamiento para ejercer la carrera mediante las practicas, es un proceso donde sea afianza en mayor medida los conocimientos previamente adquiridos y se aprenden muchos otros más, donde el hecho de no saber algo, es un motor para querer buscar acerca de ello y comprender como se aplicaría eso al proyecto, y donde se puede aprender de forma multidimensional, entendiendo estas como la conjunción de diferentes disciplinas que tienen una incidencia directa e indirecta en la elaboración de un proyecto.

Al tener la posibilidad de realizar las prácticas profesionales en la empresa EMME, es una experiencia sumamente enriquecedora, al estar desde el proceso de diseño y planificación de los proyectos, supervisar el proceso constructivo y la entrega de los proyectos, cuando se ve a las personas habitando los proyectos y apropiándose de ellos; y no solo está el hecho del proceso conceptual netamente del proyecto, sino que tener a posibilidad de trabajar de la mano con el jefe, es decir el Arquitecto Manuel Moreno, donde se aprende todos los días algo nuevo y se resalta el aspecto de que en una oficina, todos los integrantes trabajan de la mano, en equipo, para sacar adelante un proyecto de la mejor forma posible, donde se conoce a muchas personas de la profesión y fuera de ella que influyen el proceso de diseño y resalta la importancia de generar una red de contactos, es igual de importante que tu trabajo como individuo.

2

Las practicas desarrollaron la posibilidad de reconocer de forma más tangible y real la importancia de la concurrencia de la disciplina, donde un proyecto depende de múltiples factores que afectan el proceso de este, uno de los que resalta es el aspecto de la rentabilidad para los proyectos, porque como estudiantes, nos enfrentamos a la posibilidad de un proyecto sin presupuesto donde las posibilidades son variadas y donde el desarrollo del proyecto no tiene en cuenta la factibilidad del mismo muchas veces; en la realidad el aspecto económico determina muchas condicionantes para cualquier proyecto desde aspectos como la planificación y diseño hasta la propia construcción, por lo cual es importante abrir el espectro en el cual se encuentra la visión de un estudiante para comprender la influencia de múltiples aspectos en la concepción y desarrollo de un ejercicio arquitectónico.

Se logró elaborar y comprender la importancia de realizar las practicas profesionales de la carrera, donde como se ha mencionado previamente que es un acercamiento a la realidad de la profesión y a la importancia de comprender el trabajo cooperativo que tiene esta, no solo con profesionales de la misma carrera, si no que con múltiples disciplinas y donde es indispensable comprender la visión y las necesidades del cliente y por ende del proyecto en cuestión para desarrollar un proyecto optimo, adecuado y eficiente para las necesidades y requerimiento que cada uno de estos requiera.

3 LABORES ASIGNADAS

PLAN DE TRABAJO

ACTIVIDADES QUE SE ACORDÓ A REALIZAR DURANTE LAS

PRACTICAS:

La practicante Stefany Mulford nos apoya en el desarrollo de los diferentes proyectos de la oficina desde su conceptualización desarrollo de cada una de las fases del diseño arquitectónico así como en la supervisión arquitectónica de los

MIERCOLES JUEVES VIERNES

OBSERVACIONES:

-La practicante tiene que asistir a la universidad los lunes y los miercoles, por lo cual se le permite salir antes de la oficina.

- La practicante pidió permiso de salir a las 2:00pm un martes cada 15 días, esto debido a que pertenece a un equipo de bienestar universitario.

proyectos
tenemos en construcción.
que
HORA 7:00
8:00 am 8:00 - 9:00 am 9:00 - 10:00 am Hora Entrada Hora Almuerzo Hora Salida Hora Entrada Hora Almuerzo Hora Salida Hora Entrada Hora Almuerzo Hora Salida Hora Entrada Hora Almuerzo Hora Salida Hora Entrada Hora Almuerzo Hora Salida 10:00 - 11:00 am 11:00 - 12:00 m 12:00 - 1:00 pm 1:00 - 2:00 pm 2:00 - 3:00 pm 3:00 - 4:00 pm 4:00 - 5:00 pm LUNES
-
MARTES

¿QUÉ SE REALIZÓ?

ACTIVIDADES

REALIZADAS - GENERAL

DESARROLLO DE PLANIMETRÍA

Trabajar el diseño planimétrico técnico y de venta bidimensional para los proyectos que tiene la oficina.

DESARROLLO DE MODELO TRIDIMENSIONAL

Comprender, trabajar el desarrollo de un modelo tridimensional para comprender los espacios, tomar decisiones, modificaciones y entender su relevancia para mostrar al cliente.

ANÁLISIS Y APLICACIÓN DE NORMATIVA

Normativa para las edificaciones de la norma NSR - 10 primordialmente que influye en las decisiones de diseño.

SUPERVISIÓN ARQUITECTÓNICA

Ir a supervisar el desarrollo de la obra de los proyectos.

e e emme e emme e emme e

PROYECTOS TRABAJADOS 4

PRO YEC T O INHOME

PROYECTO INHOME - BOGOTÁ

LOCALIZACIÓN: Chapinero Occidental, Bogotá, Colombia

Proyecto de aparta estudios entendiendo el dinamismo y la proximidad de diferentes centros universitarios, realizado de proceso de diseño mediante un modulo tipo buscando el aprovechamiento del lote donde se ubica, donde presenta a parte de los módulos habitacionales, espacios de coworking y una terraza transitable.

FACHADA DEL PROYECTO

Terraza Transitable

AXONOMETRÍA EXPLOTADA

Proyecto de apartaestudios, edificio de 5 plantas.

Piso tipo

Modulos

habitacionales

Zona coworking

Primer

Piso

Control

Espacios comunales

e emme e emme e emme
Punto Fijo
e em m e PROYECTO HÍPICA

PROYECTO HÍPICA - LA CALERA

LOCALIZACIÓN: Club residencial La Pradera de Potosí en la Calera Cundinamarca, Colombia

Diseño del restaurante de carnes en el Club residencial La Pradera de Potosí, enfocado en la remodelación y aumentar la capacidad para los residentes.

PLANTA DEL PROYECTO

e emme e emme C O C I N A A C C E S O R E S T A U R A N T E V I S U A L A L L A G O A C C E S O S S O C I O S Z O N A R E S E R V A D A T E R R A Z A T E R R A Z A
C O C I N A S A L Ó N R E S E R V A D O e emme e emme e emme e emme e emme C O C I N A Z O N A D E B A R T E R R A Z A e emme CORTE A-A’
B-B’ PERSPECTIVAS
CORTE
e emme e emme e emme e emme e e e e e e

CAPITAL TOWER

e em m e CONCURSO

LOCALIZACIÓN: Chapinero, Bogotá D.C., Colombia

Concurso para el diseño de los baños comunales de toda la edificación Capital Tower que involucran las torres a, b y c.

BAÑOS PERSONAS MOBILIDAD REDUCIDA

BAÑOS DE MUJERES

BAÑOS DE HOMBRES

CAMBIADOR DE BEBES

COCINETAS / ESTACIÓN BEBIDAS

POCETAS

CORTE BAÑO DE HOMBRES Y MUJERES – TORRE A CORTE BAÑO DE HOMBRES – ORRE B ALZADO ACCESO BAÑOS – TORRE B ZONA COC NETA ZONA BAÑOS ALZADO ACCESO BAÑOS – TORRE A ZONA COC NETA ZONA BAÑOS CORTE BAÑO DE HOMBRES – ORRE C ALZADO ACCESO BAÑOSTORRE C Ñ BAÑO HOMBRES BAÑO MUJERE e emme e emme e emme e emme e emme e emme e
P LA NT A D EL PRO YEC T O TORR E A TORR E B TORR E C
CAPITAL TOWER

BARCELONA

e em m e PROYECTO

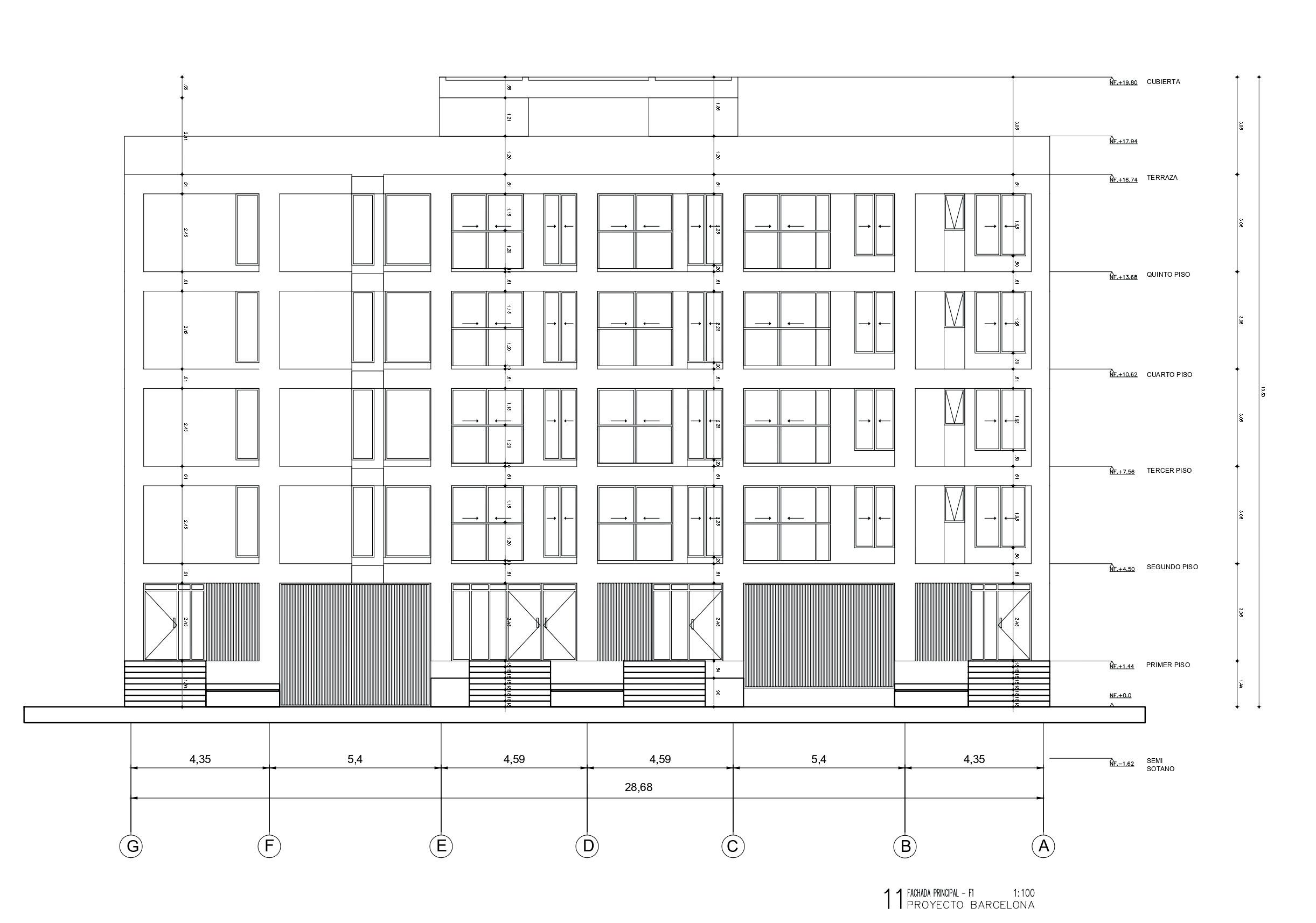
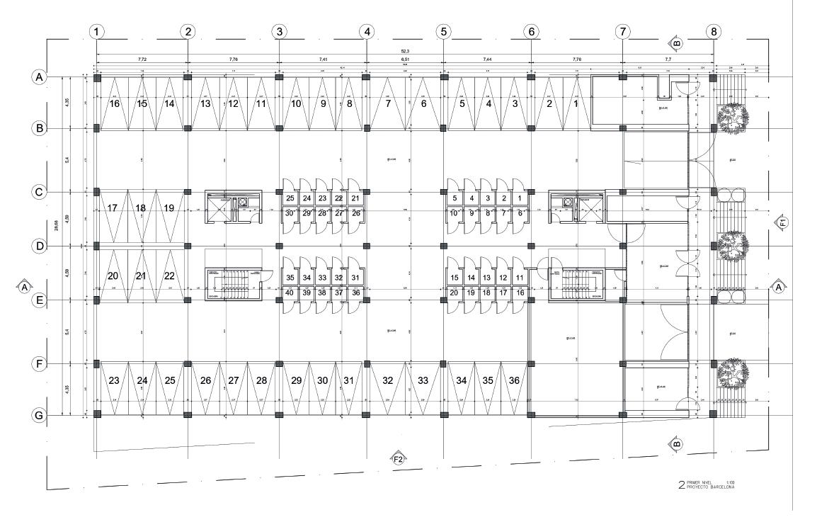
PROYECTO BARCELONA

LOCALIZACIÓN: Cajicá, Cundinamarca, Colombia.

Proyecto de vivienda ubicado en un municipio de cajica donde se trabaja un proyecto tipo bloque, que posee 6 tipos de apartamentos por piso, aspecto que se ve reflejado en el diseño de la fachada irregular.

MODELO DEL PROYECTO

AXONOMETRÍA

FACHADA PRINCIPAL DEL PROYECTO

e emme e emme e emme
DE LA PLANTA TIPO

PLANTA PRIMER NIVEL

PLANTA PRIMER NIVEL
ALZADO FACHADA PRINCIPAL CORTE B - B’
ALZADO FACHADA POSTERIOR CORTE A - A’

H. AEROPUERTO

e em m e PROYECTO

PLAN DE TRABAJO

LOCALIZACIÓN: Rionegro, Antioquia, Colombia.

El proyecto del Hotel Aeropuerto enfrenta múltiples desafíos, no solo por la concepción del mismo, donde se comprende que al ser un proyecto con características hoteleras hay que cumplir con ciertos estándares para este, sino la complejidad normativa que este conlleva, entendiendo la proximidad del aeropuerto por lo que hay unos límites con la parte Aerocivil que influye en la construcción del mismo.

A su vez se debe tener en cuenta en el diseño las necesidades y espacios solicitados por el operador del hotel, buscando suplir las necesidades de este, sino que sea un edificio rentable, confortable y sostenible tanto para el lugar como para los huéspedes que allí se hospeden.

ESTADO:

Actualmente esta en proceso de desarrollo el proyecto.

OPERADOR CON EL QUE SE ESTÁ REALIZANDO EL DISEÑO DEL PROYECTO
e emme

PRIMERAS APROXIMACIONES DE PLANTAS

MODULO TIPO DE HABITACIONES

MODELO DEL PROYECTO

e emme e emme e emme e emme
e emme e emme e emme

ANEXOS - SALIDAS

PRADERA DE POTOSI - LA CALERA, CUNDINAMARCA, COLOMBIA

CONFERENCIA LAMITECH - MATERIALES DE ACABADOS

e emme e emme e emme e emme e emme e emme e emme e emme e emme e emme e emme e emme

UNIVERSIDAD JAVERIANA - CONFERENCIAS - CELEBRACIÓN ANIVERSARIO

DE RECONOCIMIENTO HOTEL COURTYARD, MARRIOTT,
e emme e emme e emme e emme e emme e emme e emme e emme e emme e emme e emme e emme
VISITA
BOGOTÁ D.C.

ANÁLISIS DE PROCESO 5

e emme e emme e emme e emme

CONCLUSIONES

El realizar lar practicas profesionales es un ejercicio que te acerca a la realidad de la profesión y comprendes de mayor forma la importancia, el carácter diligente y con un pensamiento sensitivo y social que consiste el trabajar un proyecto para las personas. Es un proceso donde te enfrentas con la realidad multidisciplinaria de la arquitectura y que es indispensable trabajar en conjunto y llegar a consensos siempre buscando la sustentabilidad, sostenibilidad y desarrollo confortable de cada proyecto, para todos los entes que trabajamos en la creación del mismo; por lo cual es necesario e indispensable el comprender que el proceso de aprendizaje en las practicas es un factor que aumenta el espectro visible que tenemos los estudiantes a la hora de enfrentar la realidad de la profesión.

BITACORA REALIZADA DURANTE EL PROCESO

PORTAFOLIO PRACTICAS EMPRESARIALES STEFANY MULFORD PEÑA 1106858 BOGOTÁ - 2022

Turn static files into dynamic content formats.

Create a flipbook
Issuu converts static files into: digital portfolios, online yearbooks, online catalogs, digital photo albums and more. Sign up and create your flipbook.
Portafolio Laboral_Stefany Mulford by Stefany.Mulford - Issuu