06_Unbound

Page 1

P1A SITE ANALYSIS & SITE

AbstractModel

This abstract model is showing the over developement in the cities. We take the resources from the earth without conservation and build the high rise on top of the ground which will cause ecological unbalance when the time passing.

CatalogueofPeopleandCulturewithintheConfluenceofKualaLumpur
Catalogueof UnitCsites Catalogueof BuildingsandLandscapes Catalogueof HistoryandCrises

DESIGN PROPOSAL

P1B LORONG

With the rising number of homeless people in KL due to numerous factors, the Homeless Project aims to provide these street friends a home equipped with basic needs without interfering the daily routine of others. With the aim to create a cleaner KL by eradicating littering issue in KL, the Homeless Project introduces bartering system into the scheme to create a win-win situation for our street friends, and also the citizen of KL. Under-utilized rooftop spaces will be re-purposed for the homeless to stay while also not forgetting to provide benefit to the existing shop-owners. The Homeless Project main purpose is to revitalize abandon streets in KL by designing a solution to tackle local issues while incorporating budget and environmentally friendly elements. Materials used for the elements are also recycled from the goods provided by our fellow street friends, creating a cleaner, greener environment. Hence, in a way, they are also building their own home piece by piece.

LITERATURE REVIEW

P2A

Frame 01 :

Interact with Animals

People in the cities are facing the mental issue like loneliness, depression and anxiety. From the base layer, it shown the darkness of the city users . By interacting with animals, their life become more brightness like feeding the strays. Is like a inter-healing process between both human and strays.

Frame 03 : Living with Animals

The city users are facing economy difficulities. Hence, they have no extra money for social gathering and entertainment which will cause loneliness. By cuddling and petting animals, one’s basic human need of touch and contact comfort can be fulfilled. The top layer shown a imagination of coexist between wildlife and human.

Frame 02 : Friendly with Animals

There are many existing city issues which I would say is the cracks of the city. For examples, the city users chase away the strays unfriendly. The homeless may affect our society especially those who having drug abuse. In fact, the homeless and the strays can interdependent and show their friendly with each others.

Frame 04 : Coexist with Animals

Nowadays, hunting had been seriously disrupts the ecological balance which will alternately destroy our living environment like flash flood due to the over cutting down of trees, the increasing number of endangered spesies. By sharing the landscapes with wildlife that lost their home, we can heal the city from over development as well.

P2B
MICRO SITE ANALYSIS

User Group targeting on the office workers and homeless in KL especially the migrants from other states. Besides, the nearby families are also welcomed to the site so that they no need to travel a long distance to the forest for a natural experience. Especially the children in the cities are rarely able to interact with animals.

Targeting companion and non-companion animals especially the rare animals in cities.

To increase animals’ living quality...
To help our street friends and strays animals...

The main income of our site due to the free entrance as our main users are facing financial issues.

The animal boarding service is offered in our site. Theofficeworkersmaydropbytheirpetsinoursite before work and pick up them after work. So that they can straight to walk their pet after work and without stucking in the daily traffic jam routine.

DESIGN DEVELOPMENT

P3
MainEntrance
Animals’Shelter
Pavilion
FoodStall
ReceivingRoom
HygienePurpose
TherapeuticWaitingArea
AccommodationCommunalArea
Sketches
FinalPresentationBoard THANK YOU
PLANNING
& BUILDING GUIDELINES
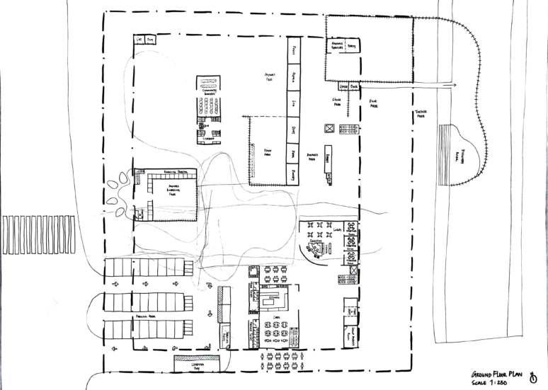
GROUND FLOOR PLAN 6000 4350 10350 6500 5500 21850 3000 6850 3800 3050 16850 8150 3200 13850 2500 5500 3850 9350 6350 5500 17850 6000 5925 7925 13850 5500 13850 4500 15 14 13 12 11 10 16 17 18 4850 16850 6150 5850 7100 16950 5850 4000 3925 5000 5000 J K L M 9 R U T S N O P Q E F G H I 8 7 6 3 2 1 A B C D 5 4 Services Room Loading Bay Boarding Shelter Boarding Free Counter Cat Dog PonnyAlpaca Deer Goat Donkey Cow Rabbit Duck Chick Animal Services Medicine Center Lobby Locker Reception Nursery Room Female Public Toilet Male Public Toilet Kitchen Cafe Staff Area Animals Free Discovery River Meet & Greet Receiving Room Meeting Room Meeting Room Tortoise Free Duck Free Chick Free Animals Free Community Garden Storage BOUNDARY LINE 50' SETBACK LINE 20' SETBACK LINE BOUNDARY LINE 20' SETBACK LINE 20' SETBACK LINE BOUNDARY LINE 97°24'18'' 95.00m 277°24'18'' 95.00m 172°35'42'' 85.00m STAIRCASE 01 STAIRCASE 01 STAIRCASE 01 STAIRCASE 02 STAIRCASE 03 LIFT 01 LIFT 01 CAR PARK DRIVE WAY MH. 7 EL EL EL EL EL EL EL EL EL EL EL EL K FA FA FA DP HR H FA DP HR DP HR DP HR S S S S S S S S S S R30000 [ R98'-5"] R30000 [ R98'-5"] R30000 [ R98'-5"] R30000 [ R98'5"] LEGEND VERTICAL EXIT EXIT PATH DEAD END EMERGENCY LIGHT KELUAR SIGN FIRE ALARM 9KG. ABC DRY POWDER FIRE EXTINGUISHER HOSE REEL HYDRANT SPRINKLE EL K FA DP HR S H
FIRST FLOOR PLAN Shelter Bath Laundry Shelter Bath Family Interview Room Grooming Office Animal Medical Room Volunteer Flexitime Waiting Area Therapeutic Kitchen Therapy Room Cafe Private Toilet Homeless Shelter Homeless Shelter Shop Pantry Private Toilet Private Toilet Therapy Room Therapy Room VR Room 6000 4350 10350 6500 5500 21850 3000 6850 3 3800 3050 16850 2 1 A B C 8150 3200 13850 2500 D 5500 3850 9350 6350 5500 17850 6000 5925 7925 13850 5500 13850 4500 15 14 13 12 11 10 16 17 18 4850 16850 6150 5850 R U 7100 16950 T 5850 S 4000 3925 5 4 5000 5000 J K L M 9 N O P Q E F G H 8 7 6 EL EL EL EL EL EL EL EL EL EL EL EL K K K K K FA DP HR FA FA DP HR DP HR FA DP HR FA DP HR DP DP DP S S S S S S S S S S S S S S S S S S S S S S S S S S S S S S S S S S S S S S S S S S LEGEND VERTICAL EXIT EXIT PATH DEAD END EMERGENCY LIGHT KELUAR SIGN FIRE ALARM 9KG. ABC DRY POWDER FIRE EXTINGUISHER HOSE REEL HYDRANT SPRINKLE EL K FA DP HR S H
SECOND FLOOR PLAN Surau Male Female Communal Space Art Room Volunteer Hostel Monthly Shelter Monthly Shelter Monthly Shelter Monthly Shelter Art Room Art Room Art Room 8 6000 4350 10350 7 6 E F G H I 6500 5500 21850 3000 6850 5500 3850 9350 6350 5500 17850 6000 5500 13850 4500 15 14 13 12 11 10 9 4850 16850 6150 5850 3925 J K L M N O P Q EL EL EL EL EL EL EL EL K K FA DP HR FA DP HR FA DP HR S S S S S S S S S S S S S S S S S S S S S S S S S K LEGEND VERTICAL EXIT EXIT PATH DEAD END EMERGENCY LIGHT KELUAR SIGN FIRE ALARM 9KG. ABC DRY POWDER FIRE EXTINGUISHER HOSE REEL HYDRANT SPRINKLE EL K FA DP HR S H

LEGEND

THIRD FLOOR PLAN Inpatient Bedroom 5500 3850 9350 J K 5500 25850 L 4500 M 15 14 13 N O 4850 12000 P 6150 Q 5850 3925 7075 EL EL EL EL EL EL FA DP HR S S S S S S S K
VERTICAL EXIT EXIT PATH DEAD END EMERGENCY
SIGN FIRE
9KG.
EL K FA DP HR S H
LIGHT KELUAR
ALARM
ABC DRY POWDER FIRE EXTINGUISHER HOSE REEL HYDRANT SPRINKLE
BUILDING CONS & BUILDING TECH

24. 25.

SITE PLAN

S06/2022/10/GA/101FIRST FLOOR PLAN

S06/2022/10/GA/102SECOND FLOOR PLAN

S06/2022/10/GA/103THIRD FLOOR PLAN

S06/2022/10/GA/104ROOF PLAN

S06/2022/10/GA/201SECTION X-X

S06/2022/10/GA/202SECTION Y-Y

S06/2022/10/GA/301NORTH ELEVATION

S06/2022/10/GA/302 EAST ELEVATION

S06/2022/10/GA/303SOUTH ELEVATION S06/2022/10/GA/304WEST ELEVATION

S06/2022/08/CD/101

S06/2022/08/CD/201

S06/2022/08/CD/301

S06/2022/08/CD/401 S06/2022/08/AD/501 S06/2022/08/AD/601

S06/2022/08/CD/701

S06/2022/08/CD/702 S06/2022/08/CD/703

S06/2022/08/CD/704

WALL

ACCOMMODATION

DETAILS - PLANTER BOX DETAIL

MISCELLANEOUS DETAILS - SLIDING GLASS DOOR DETAIL

MISCELLANEOUS DETAILS - FOLDING PARTITION WALL DETAIL

SKETCHES DESIGN DETAIL

00 00

A1 A1 A1 A1 A1 A1 A1 A1 A1 A1 A1 A1 A1 A1

1 : 200 1 : 200 1 : 200 1 : 200 1 : 200 1 : 200 1 : 200 1 : 200 1 : 200 1 : 200

00A3 00A3 00A3

PROJECT TITLE:

PROPOSED CONSTRUCTION OF A TWO STOREY STUDIO ON LOT 57410, JALAN KLANG LAMA, MUKIM KUALA LUMPUR, WILAYAHPERSEKUTUANKUALALUMPUR. UNTUKTETUAN:UNITB2STUDIO

CLIENT: LAND OWNER:

Dewan Bandaraya Kuala Lumpur, Menara DBKL 1, Jalan Raja Laut, 50350 Kuala Lumpur Tel: 1 800 88 3255

CLIENT:

Unit B2 Studio No 9, Jalan 4 / 142 Taman Orkid Desa Cheras 56000 Kuala Lumpur Tel: 012 - 878 9311 Email: unitb2.s@gmail.com

LAND CONSULTANT: 5A, Bangunan Allied Group, Jalan 19/29, 46300 Petaling Jaya, Selangor Darul Ehsan. Tel: 03-7966 5533 Email: alliedgroup316@gmail.com

ARCHITECT: Ar. LONG PUI PUI A R K T E K P R O F E S I O N A L Reg. Lam No. A/C 215 No. 35, Jalan 15, Taman Midah, Cheras 56000, Kuala Lumpur. Tel. :603-9521 5378 / 012-878 9311

C&S ENGINEER: MES Innovation Sdn Bhd 13A, 13B & 13C Jalan Kenari 2, Bandar Puchong Jaya, Puchong, Malaysia Tel: 03-5885 1250

NA

AS SHOWN 1 : 5 1 : 10

1 : 15 AS SHOWN AS SHOWN AS SHOWN

NA 1 : 20 AS SHOWN NA

M&E ENGINEER: PH M&E Engineering THE GAMUDA BIZ SUITES, S-7-06, No.12, Jalan Anggerik Vanilla 31/99, 40460 Shah Alam, Selangor Tel: 03-5879 7929

NOTE:

1.ALL DRAWING ARE TO BE READ IN CONJUNCTION WITH C&S AND M&E DRAEINGS 2.CONTRACTOR IS TO CHECK AND VERIFY ALL THE DRAWINGS (INCLUDING ALL C&S AND M&E DRAWINGS) BEFORE COMMENCEMENT OF WORK. 3.ANY DISCREPANCY BETWEEN THE DRAWINGS ARCHITECT MUST BE INFORMED IMMEDIATELY

DRAWING TITLE

GROUNDFLOORPLAN

DRAWN BY : SEAW ZHI CHING

SCALE AS SHOWN

DATE NOV 2022 CHECK BY MR BAKHTIAR AMIR AR HISHAM SAIHARI DRAWING NO : S06/2022/11/GA/0001

UNIT B2 STUDIO
FILE NO : /Users/ALPP/Documents/Projects/038/CD/WD-22-038-CD-1000.dwg DRAWING LIST NO.DRAWING NUMBERDRAWING NAMEREVISION NO.PAPER SIZESCALE
00A1
DRAWING STATUS: SD SCHEMATIC DESIGN DD DESIGN DEVELOPMENT TD TENDER DOCUMENTS CD CONSTRUCTION REVISION: REV. DATE. DESCRIPTION.
01. S06/2022/08/GA/100DRAWING LIST
00 00 00 00 00 00 00 00 00 00 00 00 02. 03. 04. 05. 06. 07. 08. 09. 10. 11. 12. 13.
S06/2022/11/GA/0001 S06/2022/10/GA/100 KEY PLAN LOCATION PLAN GROUND FLOOR PLAN NTS 1 : 200 NTS 1 : 500 14. 15. 16. 17. 18. 19. 20. 21. 22. 23. 00A3 00A3 00A3 00A3 00A3 00A3 00A3 00A3 00A3
TO SLAB TO CEILING DETAILS
UNIT PLAN
TO RAILING DETAIL
GARDEN DETAIL
S06/2022/08/AD/705 S06/2022/08/GA/801 DETAIL
STAIRCASE
WALL, SLAB TO ROOFTOP
FACADE ASSEMBLY
OVERALL TYPICAL DETAIL - GROUND TO ROOF
MISCELLANEOUS DETAILS - BALCONY DETAIL
MISCELLANEOUS
MISCELLANEOUS DETAILS - FENCING DETAIL

CLIENT:

PROJECT TITLE:

PROPOSED CONSTRUCTION OF A TWO STOREY STUDIO ON LOT 57410, JALAN KLANG LAMA, MUKIM KUALA LUMPUR, WILAYAHPERSEKUTUANKUALALUMPUR. UNTUKTETUAN:UNITB2STUDIO

Dewan Bandaraya Kuala Lumpur, Menara DBKL 1, Jalan Raja Laut, 50350 Kuala Lumpur Tel: 1 800 88 3255

CLIENT:

Unit B2 Studio No 9, Jalan 4 / 142 Taman Orkid Desa Cheras 56000 Kuala Lumpur Tel: 012 - 878 9311 Email: unitb2.s@gmail.com

LAND CONSULTANT: 5A, Bangunan Allied Group, Jalan 19/29, 46300 Petaling Jaya, Selangor Darul Ehsan. Tel: 03-7966 5533 Email: alliedgroup316@gmail.com

ARCHITECT: Ar. LONG PUI PUI A R K T E K P R O F E S O N A L Reg. Lam No. A/C 215 No. 35, Jalan 15, Taman Midah, Cheras 56000, Kuala Lumpur. Tel. :603-9521 5378 012-878 9311

C&S ENGINEER: MES Innovation Sdn Bhd 13A, 13B & 13C Jalan Kenari 2, Bandar Puchong Jaya, Puchong, Malaysia Tel: 03-5885 1250

M&E ENGINEER: PH M&E Engineering THE GAMUDA BIZ SUITES, S-7-06, No.12, Jalan Anggerik Vanilla 31/99, 40460 Shah Alam, Selangor Tel: 03-5879 7929 NOTE:

1.ALL DRAWING ARE TO BE READ IN CONJUNCTION WITH C&S AND M&E DRAEINGS

LAND OWNER: DRAWING TITLE

IS TO CHECK AND VERIFY ALL THE DRAWINGS (INCLUDING ALL C&S AND M&E DRAWINGS) BEFORE COMMENCEMENT OF WORK.

DISCREPANCY BETWEEN THE DRAWINGS ARCHITECT MUST BE INFORMED IMMEDIATELY

GROUNDFLOORPLAN

DATE : NOV 2022

SCALE : AS SHOWN

CHECK BY : MR BAKHTIAR AMIR AR HISHAM SAIHARI DRAWING NO : S06/2022/11/GA/0001

DRAWN BY : SEAW ZHI CHING

Services Loading Bay Boarding Shelter Boarding Counter Dog Donkey DuckChick Animal Services Medicine Center Lobby Locker Reception Female Public Toilet Male Public Toilet Kitchen Cafe Staff Area Animals Discovery Meeting Room Meeting Room Animals Free Community Garden Storage Horse Arena Y Y X X BOUNDARY LINE 50' SETBACK LINE BOUNDARY LINE 20' SETBACK LINE BOUNDARY LINE 20' SETBACK LINE 20' SETBACK LINE BOUNDARY LINE 97°24'18'' 95.00m 352°35'42'' 85.00m 277°24'18'' 95.00m 172°35'42'' 85.00m AGRO BANK DAYABUMI COMPLEX JALAN SULTAN HISHAMUDDIN SUNGAI KELANG
UNIT B2 STUDIO
DRAWING
SD SCHEMATIC
DD DESIGN
TD
CD
REV.
FILE NO : /Users/ALPP/Documents/Projects/038/CD/WD-22-038-CD-1000.dwg PROPOSED SITE KEY PLAN JALAN SULTAN HISHAMUDDIN SUNGAI KELANG LEBOH PASAR BESAR JALANTUNTAHCN AMAN JALANHANGKASTURI JAL LEBOH PUDU PROPOSED SITE LOCATION PLAN SITE PLAN
2.CONTRACTOR
3.ANY
STATUS:
DESIGN
DEVELOPMENT
TENDER DOCUMENTS
CONSTRUCTION REVISION:
DATE. DESCRIPTION.

CLIENT: LAND OWNER:

PROJECT TITLE:

CLIENT:

Dewan Bandaraya Kuala Lumpur, Menara DBKL 1, Jalan Raja Laut, 50350 Kuala Lumpur Tel: 1 800 88 3255

Unit B2 Studio No 9, Jalan 4 / 142 Taman Orkid Desa Cheras 56000 Kuala Lumpur Tel: 012 - 878 9311 Email: unitb2.s@gmail.com

LAND CONSULTANT: 5A, Bangunan Allied Group, Jalan 19/29, 46300 Petaling Jaya, Selangor Darul Ehsan. Tel: 03-7966 5533 Email: alliedgroup316@gmail.com

ARCHITECT: Ar. LONG PUI PUI A R K T E K P R O F E S O N A L Reg. Lam No. A/C 215 No. 35, Jalan 15, Taman Midah, Cheras 56000, Kuala Lumpur. Tel. :603-9521 5378 012-878 9311

C&S ENGINEER: MES Innovation Sdn Bhd 13A, 13B & 13C Jalan Kenari 2, Bandar Puchong Jaya, Puchong, Malaysia Tel: 03-5885 1250

M&E ENGINEER: PH M&E Engineering THE GAMUDA BIZ SUITES, S-7-06, No.12, Jalan Anggerik Vanilla 31/99, 40460 Shah Alam, Selangor Tel: 03-5879 7929

DRAWING TITLE

PROPOSED CONSTRUCTION OF A TWO STOREY STUDIO ON LOT 57410, JALAN KLANG LAMA, MUKIM KUALA LUMPUR, WILAYAHPERSEKUTUANKUALALUMPUR. UNTUKTETUAN:UNITB2STUDIO GROUNDFLOORPLAN

SCALE : 200

DRAWN BY SEAW ZHI CHING

DATE : NOV 2022 CHECK BY : MR BAKHTIAR AMIR AR HISHAM SAIHARI

DRAWING NO : S06/2022/10/GA/100

UNIT B2 STUDIO 1.ALL DRAWING ARE TO BE READ
WITH C&S AND
2.CONTRACTOR IS TO
THE
3.ANY
DRAWING STATUS: SD SCHEMATIC DESIGN DD DESIGN DEVELOPMENT TD TENDER DOCUMENTS CD CONSTRUCTION REVISION: REV. DATE. DESCRIPTION. FILE NO : /Users/ALPP/Documents/Projects/038/CD/WD-22-038-CD-1000.dwg GROUND FLOOR PLAN 6000 4350 10350 6500 5500 3000 6850 3800 3050 16850 8150 3200 13850 2500 5500 3850 9350 6350 5500 17850 6000 5925 7925 13850 5500 13850 4500 15 14 13 12 11 10 16 17 18 4850 16850 6150 5850 7100 16950 5850 4000 3925 5000 5000 J K L M 9 R U T S N O P Q E F G H 8 7 6 3 2 1 A B C D 5 4 Services Room Loading Bay Boarding Shelter Boarding Free Counter Cat Dog PonnyAlpaca Deer Goat Donkey Cow Rabbit Duck Chick Animal Services Medicine Center Lobby Locker Reception Nursery Room Female Public Toilet Male Public Toilet Kitchen Cafe Staff Area Animals Free Discovery River Meet & Greet Receiving Room Meeting Room Meeting Room Tortoise Free Duck Free Chick Free Animals Free Community Garden Storage Y Y X X BOUNDARY LINE 50' SETBACK LINE BOUNDARY LINE 20' SETBACK LINE BOUNDARY LINE 20' SETBACK LINE 20' SETBACK LINE BOUNDARY LINE 97°24'18'' 95.00m 352°35'42'' 85.00m 277°24'18'' 95.00m 172°35'42'' 85.00m D1 D1 D1 D2 D2 D2 D2 D2 D2 D2 D2 D2 D3 W1 D5 W3 W3 D4 D4 D6 D1 D1 D1 W4 W4 D5 D7 W4 W4 W4 PC PT PP PC PP PC CR PP PC CR PP PC CR PC PP PC PT PCC PP PC PP PC PP PC PP STAIRCASE 01 STAIRCASE 01 STAIRCASE 01 STAIRCASE 02 STAIRCASE 03 LIFT 01 LIFT 01 CAR PARK DRIVE WAY 110MM THK. BRICK WALL WITH 20MM CEMENT PLASTER AND PAINTED ON INTERNAL SIDE 3000MM (W) X 3500 (H) POWDER COATED 100MM FRAME FIXED GLASS WINDOW TO MANUF’S DETAIL 1000MM (W) X 2500MM (H) WITH 50MM THK. TIMBER SHADING DEVICE RC LIFT CORE TO ENGR'S DETAIL 375MM DIA. STAINLESS STEEL COLUMN TO ENGR'S DETAIL RC STAIRCASE WITH CABLE RAILING SYSTEM ALUMINUM HANDRAIL 150MM (W) X 150MM (L) TIMBER COLUMN TO ENGR'S DETAIL
NOTE:
IN CONJUNCTION
M&E DRAEINGS
CHECK AND VERIFY ALL
DRAWINGS (INCLUDING ALL C&S AND M&E DRAWINGS) BEFORE COMMENCEMENT OF WORK.
DISCREPANCY BETWEEN THE DRAWINGS ARCHITECT MUST BE INFORMED IMMEDIATELY

PROJECT TITLE:

PROPOSED CONSTRUCTION OF A TWO STOREY STUDIO ON LOT 57410, JALAN KLANG LAMA, MUKIM KUALA LUMPUR, WILAYAHPERSEKUTUANKUALALUMPUR. UNTUKTETUAN:UNITB2STUDIO

CLIENT: LAND OWNER:

Dewan Bandaraya Kuala Lumpur, Menara DBKL 1, Jalan Raja Laut, 50350 Kuala Lumpur Tel: 1 800 88 3255

CLIENT:

Unit B2 Studio No 9, Jalan 4 142 Taman Orkid Desa Cheras 56000 Kuala Lumpur Tel: 012 878 9311 Email: unitb2.s@gmail.com

LAND CONSULTANT: 5A, Bangunan Allied Group, Jalan 19/29, 46300 Petaling Jaya, Selangor Darul Ehsan. Tel: 03-7966 5533 Email: alliedgroup316@gmail.com

ARCHITECT: Ar. LONG PUI PUI A R K I T E K P R O F E S I O N A L Reg. Lam No. A/C 215 No. 35, Jalan 15, Taman Midah, Cheras 56000, Kuala Lumpur. Tel. :603-9521 5378 012-878 9311

C&S ENGINEER: MES Innovation Sdn Bhd 13A, 13B & 13C Jalan Kenari 2, Bandar Puchong Jaya, Puchong, Malaysia Tel: 03-5885 1250

M&E ENGINEER: PH M&E Engineering THE GAMUDA BIZ SUITES, S-7-06, No.12, Jalan Anggerik Vanilla 31/99, 40460 Shah Alam, Selangor Tel: 03-5879 7929

DRAWING TITLE

GROUNDFLOORPLAN

DRAWN BY : SEAW ZHI CHING

SCALE : 200

DATE : NOV 2022 CHECK BY : MR BAKHTIAR AMIR AR HISHAM SAIHARI DRAWING NO : S06/2022/10/GA/200

NOTE: UNIT B2 STUDIO 1.ALL DRAWING ARE TO BE READ IN CONJUNCTION WITH C&S AND M&E DRAEINGS 2.CONTRACTOR IS TO CHECK AND VERIFY ALL THE DRAWINGS
ALL
AND M&E
3.ANY DISCREPANCY
THE
MUST
DRAWING STATUS: SD SCHEMATIC DESIGN DD DESIGN DEVELOPMENT TD TENDER DOCUMENTS CD CONSTRUCTION REVISION: REV. DATE. DESCRIPTION. FILE NO /Users/ALPP/Documents/Projects/038/CD/WD-22-038-CD-1000.dwg 6000 4350 10350 3800 3050 16850 5500 3850 9350 15 14 13 5000 5000 8 7 6 3 2 1 5 4 BOARDING SHELTER ANIMAL NURSERY COMMUNAL AREA OFFICE VOLUNTEER SHELTER ANIMAL SHELTER ANIMAL FREE ZONE INTERACTION AREA THERAPY ROOM ART ROOM INPATIENT BEDROOM COMMUNAL AREA COMMUNAL AREA WAITING AREA FIRST FLOOR LEVEL FIRST FLOOR LEVEL GROUND FLOOR LEVEL SECOND FLOOR LEVEL THIRD FLOOR LEVEL ROOF LEVEL ROOF LEVEL ROOF LEVEL 1600 3440 20100 1260 3700 5000 1000 4100 SECTION A-A SECTION B-B 5500 13925 4500 4850 16850 6150 5850 3925 J K L M N O P Q FIRST FLOOR LEVEL GROUND FLOOR LEVEL SECOND FLOOR LEVEL THIRD FLOOR LEVEL ROOF LEVEL ROOF LEVEL 5040 20100 1260 3700 4100 900 5100 ROOF LEVEL RECEIVING ROOM INPATIENT ROOM BATH ROOM INPATIENT ROOM INPATIENT ROOM BATH ROOM BATH ROOM MEETING ROOMMEETING ROOMMEDICINE CENTER WAITING ROOM FAMILY INTERVIEW ROOM THERAPY ROOM THERAPY ROOM THERAPY ROOM VR ROOM SHORT-TERM HOMELESS SHELTER SHORT-TERM HOMELESS SHELTER LONG-TERM HOMELESS SHELTER LONG-TERM HOMELESS SHELTER ART ROOMART ROOMART ROOMART ROOM
(INCLUDING
C&S
DRAWINGS) BEFORE COMMENCEMENT OF WORK.
BETWEEN
DRAWINGS ARCHITECT
BE INFORMED IMMEDIATELY

CLIENT: LAND OWNER:

PROJECT TITLE:

CLIENT:

Dewan Bandaraya Kuala Lumpur, Menara DBKL 1, Jalan Raja Laut, 50350 Kuala Lumpur Tel: 1 800 88 3255

Unit B2 Studio No 9, Jalan 4 142 Taman Orkid Desa Cheras 56000 Kuala Lumpur Tel: 012 - 878 9311 Email: unitb2.s@gmail.com

LAND CONSULTANT: 5A, Bangunan Allied Group, Jalan 19/29, 46300 Petaling Jaya, Selangor Darul Ehsan. Tel: 03-7966 5533 Email: alliedgroup316@gmail.com

ARCHITECT: Ar. LONG PUI PUI A R K I T E K P R O F E S O N A L Reg. Lam No. A/C 215 No. 35, Jalan 15, Taman Midah, Cheras 56000, Kuala Lumpur. Tel. :603-9521 5378 / 012-878 9311

C&S ENGINEER: MES Innovation Sdn Bhd 13A, 13B & 13C Jalan Kenari 2, Bandar Puchong Jaya, Puchong, Malaysia Tel: 03-5885 1250

M&E ENGINEER: PH M&E Engineering THE GAMUDA BIZ SUITES, S-7-06, No.12, Jalan Anggerik Vanilla 31/99, 40460 Shah Alam, Selangor Tel: 03-5879 7929

DRAWING TITLE

PROPOSED CONSTRUCTION OF A TWO STOREY STUDIO ON LOT 57410, JALAN KLANG LAMA, MUKIM KUALA LUMPUR, WILAYAHPERSEKUTUANKUALALUMPUR. UNTUKTETUANUNITB2STUDIO GROUNDFLOORPLAN

SCALE 200

DRAWN BY : SEAW ZHI CHING

DATE : NOV 2022 CHECK BY : MR BAKHTIAR AMIR AR HISHAM SAIHARI DRAWING NO : S06/2022/10/GA/300

NOTE: UNIT B2 STUDIO 1.ALL DRAWING ARE TO BE READ
2.CONTRACTOR IS TO
3.ANY
DRAWING STATUS: SD SCHEMATIC DESIGN DD DESIGN DEVELOPMENT TD TENDER DOCUMENTS CD CONSTRUCTION REVISION: REV. DATE. DESCRIPTION. FILE NO /Users/ALPP/Documents/Projects/038/CD/WD-22-038-CD-1000.dwg 5500 13925 4500 4850 16850 6150 5850 3925 J K L M N O P Q FIRST FLOOR LEVEL GROUND FLOOR LEVEL SECOND FLOOR LEVEL THIRD FLOOR LEVEL ROOF LEVEL ROOF LEVEL 5040 20100 1260 3700 4100 900 5100 ROOF LEVEL 6000 4350 10350 3800 3050 16850 5500 3850 9350 15 14 13 5000 5000 8 7 6 3 2 1 5 4 FIRST FLOOR LEVEL FIRST FLOOR LEVEL GROUND FLOOR LEVEL SECOND FLOOR LEVEL THIRD FLOOR LEVEL ROOF LEVEL ROOF LEVEL ROOF LEVEL 1600 3440 20100 1260 3700 5000 1000 4100 SOUTH ELEVATION EAST ELEVATION
IN CONJUNCTION WITH C&S AND M&E DRAEINGS
CHECK AND VERIFY ALL THE DRAWINGS (INCLUDING ALL C&S AND M&E DRAWINGS) BEFORE COMMENCEMENT OF WORK.
DISCREPANCY BETWEEN THE DRAWINGS ARCHITECT MUST BE INFORMED IMMEDIATELY

CLIENT: LAND OWNER:

PROJECT TITLE:

CLIENT:

Dewan Bandaraya Kuala Lumpur, Menara DBKL 1, Jalan Raja Laut, 50350 Kuala Lumpur Tel: 1 800 88 3255

Unit B2 Studio No 9, Jalan 4 142 Taman Orkid Desa Cheras 56000 Kuala Lumpur Tel: 012 - 878 9311 Email: unitb2.s@gmail.com

LAND CONSULTANT: 5A, Bangunan Allied Group, Jalan 19/29, 46300 Petaling Jaya, Selangor Darul Ehsan. Tel: 03-7966 5533 Email: alliedgroup316@gmail.com

ARCHITECT: Ar. LONG PUI PUI A R K T E K P R O F E S O N A L Reg. Lam No. A/C 215 No. 35, Jalan 15, Taman Midah, Cheras 56000, Kuala Lumpur. Tel. :603-9521 5378 012-878 9311

C&S ENGINEER: MES Innovation Sdn Bhd 13A, 13B & 13C Jalan Kenari 2, Bandar Puchong Jaya, Puchong, Malaysia Tel: 03-5885 1250

M&E ENGINEER: PH M&E Engineering THE GAMUDA BIZ SUITES, S-7-06, No.12, Jalan Anggerik Vanilla 31/99, 40460 Shah Alam, Selangor Tel: 03-5879 7929

DRAWING TITLE

PROPOSED CONSTRUCTION OF A TWO STOREY STUDIO ON LOT 57410, JALAN KLANG LAMA, MUKIM KUALA LUMPUR, WILAYAHPERSEKUTUANKUALALUMPUR. UNTUKTETUAN:UNITB2STUDIO GROUNDFLOORPLAN

SCALE : 200

DRAWN BY SEAW ZHI CHING

DATE : NOV 2022 CHECK BY : MR BAKHTIAR AMIR AR HISHAM SAIHARI DRAWING NO : S06/2022/10/GA/104

UNIT B2 STUDIO
2.CONTRACTOR
DRAWING STATUS: SD SCHEMATIC DESIGN DD DESIGN DEVELOPMENT TD TENDER DOCUMENTS CD CONSTRUCTION REVISION: REV. DATE. DESCRIPTION. FILE NO /Users/ALPP/Documents/Projects/038/CD/WD-22-038-CD-1000.dwg 6000 4350 10350 6500 5500 21850 3000 6850 3800 3050 16850 8150 3200 13850 2500 5500 3850 9350 6350 5500 17850 6000 5925 7925 13850 5500 13850 4500 15 14 13 12 11 10 16 17 18 4850 16850 6150 5850 7100 16950 5850 4000 3925 5000 5000 J K L M 9 R U T S N O P Q E F G H I 8 7 6 3 2 1 A B C D 5 4 Y Y X X BOUNDARY LINE 50' SETBACK LINE BOUNDARY LINE 20' SETBACK LINE BOUNDARY LINE 20' SETBACK LINE 20' SETBACK LINE BOUNDARY LINE 97°24'18'' 95.00m 352°35'42'' 85.00m 277°24'18'' 95.00m 172°35'42'' 85.00m LIFT 01 2° 2° 2° 15° 15° 15° 15° 15° 15° 15° 15° 2° BALCONY WITH CONCRETE RAILING TIMBER FLAT ROOF TO ENGR'S DETAIL POLYCARBONATE ROOF WITH TIMBER STRIPS TO ENGR'S DETAIL GLASS ROOF TO ENGR'S DETAIL ROOF GARDEN WITH PARAPET WALL ROOF PLAN
NOTE:
1.ALL DRAWING ARE TO BE READ IN CONJUNCTION WITH C&S AND M&E DRAEINGS
IS TO CHECK AND VERIFY ALL THE DRAWINGS (INCLUDING ALL C&S AND M&E DRAWINGS) BEFORE COMMENCEMENT OF WORK. 3.ANY DISCREPANCY BETWEEN THE DRAWINGS ARCHITECT MUST BE INFORMED IMMEDIATELY
BUILDING SERVICES LIGHTING & VENTILATION
BUILDING SERVICES WATER SUPPLY
6000 4350 10350 6500 5500 21850 3000 6850 3800 3050 16850 8150 3200 13850 2500 5500 3850 9350 6350 5500 17850 6000 5925 7925 13850 5500 13850 4500 15 14 13 12 11 10 16 17 18 4850 16850 6150 5850 7100 16950 5850 4000 3925 5000 5000 J K L M 9 R U T S N O P Q E F G H I 8 7 6 3 2 1 A B C D 5 4 Services Room Loading Bay Boarding Shelter Boarding Free Counter Cat Dog PonnyAlpaca Deer Goat Donkey Cow Rabbit Duck Chick Animal Services Medicine Center Lobby Locker Reception Nursery Room Female Public Toilet Male Public Toilet Kitchen Cafe Staff Area Animals Free Discovery River Meet & Greet Receiving Room Meeting Room Meeting Room Tortoise Free Duck Free Chick Free Animals Free Community Garden Storage BOUNDARY LINE 50' SETBACK LINE 20' SETBACK LINE BOUNDARY LINE 20' SETBACK LINE 20' SETBACK LINE BOUNDARY LINE 97°24'18'' 95.00m 277°24'18'' 95.00m 172°35'42'' 85.00m STAIRCASE 01 STAIRCASE 01 STAIRCASE 01 STAIRCASE 02 STAIRCASE 03 LIFT 01 LIFT 01 CAR PARK DRIVE WAY MH. 7 GROUND FLOOR PLAN M LEGEND LOCKABLE VALVE STOPCOCK WATER METER RISER TAP WC WATER CLOSET B BASIN SH SHOWER BT BATHTUB S SINK M SC RISER AND INCOMING PIPE DOWN PIPE AND DISTRIBUTION PIPE
Shelter Bath Laundry Shelter Bath Family Interview Room Grooming Office Animal Medical Room Volunteer Flexitime Waiting Area Therapeutic Kitchen Therapy Room Cafe Private Toilet Homeless Shelter Homeless Shelter Shop Pantry Private Toilet Private Toilet Therapy Room Therapy Room VR Room 6000 4350 10350 6500 5500 21850 3000 6850 3 3800 3050 16850 2 1 A B C 8150 3200 13850 2500 D 5500 3850 9350 6350 5500 17850 6000 5925 7925 13850 5500 13850 4500 15 14 13 12 11 10 16 17 18 4850 16850 6150 5850 R U 7100 16950 T 5850 S 4000 3925 5 4 5000 5000 J K L M 9 N O P Q E F G H 8 7 6 FIRST FLOOR PLAN LEGEND LOCKABLE VALVE STOPCOCK WATER METER RISER TAP WC WATER CLOSET B BASIN SH SHOWER BT BATHTUB S SINK M SC RISER AND INCOMING PIPE DOWN PIPE AND DISTRIBUTION PIPE
Surau Male Female Communal Space Art Room Volunteer Hostel Monthly Shelter Monthly Shelter Monthly Shelter Monthly Shelter Art Room Art Room Art Room 8 6000 4350 10350 7 6 E F G H I 6500 5500 21850 3000 6850 5500 3850 9350 6350 5500 17850 6000 5500 13850 4500 15 14 13 12 11 10 9 4850 16850 6150 5850 3925 J K L M N O P Q SECOND FLOOR PLAN LEGEND LOCKABLE VALVE STOPCOCK WATER METER RISER TAP WC WATER CLOSET B BASIN SH SHOWER BT BATHTUB S SINK M SC RISER AND INCOMING PIPE DOWN PIPE AND DISTRIBUTION PIPE
Inpatient Bedroom 5500 3850 9350 J K 5500 25850 L 4500 M 15 14 13 N O 4850 12000 P 6150 Q 5850 3925 7075 THIRD FLOOR PLAN
LOCKABLE VALVE STOPCOCK WATER METER RISER TAP WC WATER CLOSET B BASIN SH SHOWER BT BATHTUB S SINK M SC RISER AND INCOMING PIPE DOWN PIPE AND DISTRIBUTION PIPE
LEGEND
SCHEMATIC DIAGRAM
FLOOR LEVEL GROUND FLOOR LEVEL SECOND FLOOR LEVEL THIRD FLOOR LEVEL (25MM STAINLESS STEEL) SC GV BV Private Toilet Grooming GV BV GV BV SC WC WC WC WC WC WC WC WC WC WC WC Female Public ToiletMale Public Toilet Nursery Room Kitchen SC SC SC SC GV BV GV BV SC Kitchen BathroomBathroomBathroom SC SC SC SC SC SC Private Toilet Pantry GV BV GV BV GV BV Kitchen Bathroom BathroomBathroomBathroom BathroomBathroom Art Room Surau FIRST FLOOR LEVEL GROUND FLOOR LEVEL SECOND FLOOR LEVEL THIRD FLOOR LEVEL SC M (25MM STAINLESS STEEL) SH SH SH WBDRYER WB DRYER SH SH Therapeutic Kitchen Shelter Bath Shelter Bath LaundryPrivate Toilet LOCKABLE VALVE 32MM DIA. P.V.C. SCOUR PIPE 32MM DIA. P.V.C. OVERFLOW PIPE CLASS D/E PIPE CLASS D/E PIPE 13MM DIA. U.P.V.C. CLASS D/E PIPE 13MM DIA. U.P.V.C. CLASS D/E PIPE 13MM DIA. U.P.V.C. CLASS D/E PIPE 13MM DIA. U.P.V.C. CLASS D/E PIPE SHSH 32MM DIA. P.V.C. SCOUR PIPE 300 GALS. NOS) STAINLESS STEEL 13MM DIA. P.V.C. VENT PIPE BathroomBathroom
LEGEND LOCKABLE VALVE STOPCOCK WATER METER RISER TAP WC WATER CLOSET B BASIN SH SHOWER BT BATHTUB S SINK M SC RISER AND INCOMING PIPE DOWN PIPE AND DISTRIBUTION PIPE
FIRST
SCHEMATIC DIAGRAM
BUILDING SERVICES SEWERAGE
GROUND FLOOR PLAN 6000 4350 10350 6500 5500 21850 3000 6850 3800 3050 16850 8150 3200 13850 2500 5500 3850 9350 6350 5500 17850 6000 5925 7925 13850 5500 13850 4500 15 14 13 12 11 10 16 17 18 4850 16850 6150 5850 7100 16950 5850 4000 3925 5000 5000 J K L M 9 R U T S N O P Q E F G H I 8 7 6 3 2 1 A B C D 5 4 Services Room Loading Bay Boarding Shelter Boarding Free Counter Cat Dog PonnyAlpaca Deer Goat Donkey Cow Rabbit Duck Chick Animal Services Medicine Center Lobby Locker Reception Nursery Room Female Public Toilet Male Public Toilet Kitchen Cafe Staff Area Animals Free Discovery River Meet & Greet Receiving Room Meeting Room Meeting Room Tortoise Free Duck Free Chick Free Animals Free Community Garden Storage BOUNDARY LINE 50' SETBACK LINE 20' SETBACK LINE BOUNDARY LINE 20' SETBACK LINE 20' SETBACK LINE BOUNDARY LINE 97°24'18'' 95.00m 277°24'18'' 95.00m 172°35'42'' 85.00m STAIRCASE 01 STAIRCASE 01 STAIRCASE 01 STAIRCASE 02 STAIRCASE 03 LIFT 01 LIFT 01 CAR PARK DRIVE WAY MH. 7 MH. 1 MH. 2 MH. 3 MH. 4 MH. 5 MH. 6 MH. 8 MH. 9 MH. 10 MH. 11 MH. 12 MH. 13 MH. 17 MH. 16MH. 15 MH. 14 MH. 18 MH. 19 TO MAIN SEWER LEGEND MANHOLE STACK DRAIN SOIL PIPE FLOOR TRAP FT GULLY TRAP GT WC WATER CLOSET B BASIN SH SHOWER BT BATHTUB S SINK
FIRST FLOOR PLAN Shelter Bath Laundry Shelter Bath Family Interview Room Grooming Office Animal Medical Room Volunteer Flexitime Waiting Area Therapeutic Kitchen Therapy Room Cafe Private Toilet Homeless Shelter Homeless Shelter Shop Pantry Private Toilet Private Toilet Therapy Room Therapy Room VR Room 6000 4350 10350 6500 5500 21850 3000 6850 3 3800 3050 16850 2 1 A B C 8150 3200 13850 2500 D 5500 3850 9350 6350 5500 17850 6000 5925 7925 13850 5500 13850 4500 15 14 13 12 11 10 16 17 18 4850 16850 6150 5850 R U 7100 16950 T 5850 S 4000 3925 5 4 5000 5000 J K L M 9 N O P Q E F G H I 8 7 6 LEGEND MANHOLE STACK DRAIN SOIL PIPE FLOOR TRAP FT GULLY TRAP GT WC WATER CLOSET B BASIN SH SHOWER BT BATHTUB S SINK
SECOND FLOOR PLAN Surau Male Female Communal Space Art Room Volunteer Hostel Monthly Shelter Monthly Shelter Monthly Shelter Monthly Shelter Art Room Art Room Art Room 8 6000 4350 10350 7 6 E F G H 6500 5500 21850 3000 6850 5500 3850 9350 6350 5500 17850 6000 5500 13850 4500 15 14 13 12 11 10 9 4850 16850 6150 5850 3925 J K L M N O P Q LEGEND MANHOLE STACK DRAIN SOIL PIPE FLOOR TRAP FT GULLY TRAP GT WC WATER CLOSET B BASIN SH SHOWER BT BATHTUB S SINK
THIRD FLOOR PLAN Inpatient Bedroom 5500 3850 9350 J K 5500 25850 L 4500 M 15 14 13 N O 4850 12000 P 6150 Q 5850 3925 7075 LEGEND MANHOLE STACK DRAIN SOIL PIPE FLOOR TRAP FT GULLY TRAP GT WC WATER CLOSET B BASIN SH SHOWER BT BATHTUB S SINK
SCHEMATIC DIAGRAM
FLOOR LEVEL GROUND FLOOR LEVEL SECOND FLOOR LEVEL THIRD FLOOR LEVEL WC WC WC WC WC WC WC WC WC WC WC WC SH WC SH WC WC SH WC SH WC SH WC SH WC SH SH SH SH FT FT GT GT 70MM STACK DRAIN FT FT FT FT FT FT FT FT FT FT MANHOLE 19 MANHOLE 17 MANHOLE 12 MANHOLE 10 MANHOLE MANHOLE 4MANHOLE MANHOLE MANHOLE 75MM DIA. UPVC SOIL PIPE 75MM DIA. UPVC SOIL PIPE 75MM DIA. UPVC SOIL PIPE 75MM DIA. UPVC SOIL PIPE 75MM DIA. UPVC SOIL PIPE 70MM STACK DRAIN 100MM DIA. UPVC SOIL PIPE 75MM DIA. UPVC SOIL PIPE 75MM DIA. UPVC SOIL PIPE 75MM DIA. UPVC SOIL PIPE 75MM DIA. UPVC SOIL PIPE 75MM DIA. UPVC SOIL PIPE 150MM DIA. EFFLUENT PIPE TO BE DISCHARGED TO ROADSIDE DRAIN TO MAIN SEWER Female Public ToiletMale Public Toilet Nursery Room Kitchen Animal Services Private Toilet Grooming Therapeutic Kitchen Shelter Bath Shelter Bath LaundryPrivate Toilet Private Toilet Pantry BathroomBathroomBathroom BathroomBathroom Art Room Surau KitchenBathroomBathroomBathroom Kitchen Bathroom Bathroom Bathroom LEGEND MANHOLE STACK DRAIN SOIL PIPE FLOOR TRAP FT GULLY TRAP GT WC WATER CLOSET B BASIN SH SHOWER BT BATHTUB S SINK
FIRST

Turn static files into dynamic content formats.

Create a flipbook
Issuu converts static files into: digital portfolios, online yearbooks, online catalogs, digital photo albums and more. Sign up and create your flipbook.