PROPUESTA URBANA EN LA VICTORIA.CHICLAYO

Page 1

REVISTA 2022-II ROGGER MONTENEGRO SHERILYN QUILICHE TATIANA SANTISTEBAN CATEDRA: ARQ. MG. CARLOS GERMAN PAREDES GARCIA ARQ. MG. TADEO WILFRODO MARCIAL GUARDERAS

Facultad de Ingeniería, Sistemas y Arquitectura

Universidad Nacional Pedro Ruiz Gallo Alumnos: Montenegro Morocho Rogger Quiliche Aldana Sherilyn Santisteban Masquez Tatiana

Curso: Diseño Arquitectónico 8

Docente:

Mg. Arq. Carlos German Paredes García Arq. Tadeo Marcial Guarderas

2022-II Chiclayo-Perú
REVISTA 2022-II

INTRODUCCION

La Victoria es un distrito que en estos últimos años ha tenido una fluctuación de cambios con respecto al área urbana y el crecimiento a gran escala de las diferentes problemáticas existentes, sin embargo en no habido ningún cambio con respecto a la seguridad, observamos que día a día la delincuencia crece, la contaminación existente en las vías publicas es cada vez mas notorio, consecuencias por falta de la capacidad de gestión de las ultimas autoridades que han pasado al sillón municipal sino también por la inconciencia de los pobladores quienes indiscriminadamente realizan arrojo de basura a la vía publica, quema de la misma, la banalización de elementos que forman pare de vías principales, etc.

Sin duda existe un sinnúmero de problemáticas que se podrían mencionar y debatir, dichas problemáticas podrían evitarse de alguna manera teniendo organización y planificación que inmerse no solo a autoridades correspondientes ni tampoco solo a los profesionales del caso sino también que se incluya a la población, con capacitaciones y campañas de concientización, cosa que hasta el momento no se ha realizado, debido a la falta de planificación es que hasta la actualidad la presencia de problemáticas en el distrito de La Victoria no es algo novedoso ni sorprendente.

Debido a ello se ha seleccionado cierta sectorización la cual será analizada y abordada en esta revista, con la finalidad de dar a conocer al lector la presencia de las diferentes problemáticas enmarcadas en el área de estudio, asi como los puntos críticos presentes en ella, esto mediante la presentación de planos temáticos con el fin de poder llegar al lector y generar conciencia en él con respecto a la presencia de estas problemáticas que día a día afectan a la población en diferentes aspectos como la salud, seguridad, transporte seguro, escases de mantenimiento a áreas verdes, etc.

La diferente data, presentación de planos temáticos, gráficos y recopilación fotográfica que se llegara a mostrar forma parte de un recorrido, estudio y análisis el cual a sido realizado por el equipo de trabajo a cargo de esta revista.

° ASPECTOS GENERALES MARCO TEORICO MARCO HISTORICO MARCO NORMATIVO MARCO REFERENCIAL ANALISIS FISICO NATURAL UBICACIÓN Y LOCALIZACION MORFOLOGIA DEL AREA DE ESTUDIO ANALISIS CLIMATOLOGICO ASPECTO SOCIOECONOMICO POBLACION Y DINAMICA GEOGRAFICA GRUPOS SOCIALES ACTIVIDADES ECONOMICAS POBREZA SALUD EDUCACION ASPECTO FISICO URBANO USO DE SUELOS ZONIFICACION EQUIPAMIENTO URBANO VIALIDAD Y TRANSPORTE ALTURA DE EDIFICACIONES VACIOS URBANOS SERVICIOS BASICOS
ASPECTOS AMBIENTAL VEGETACION CONTAMINACION ASPECTOS PELIGRO Y VULNERABILIDAD VULNERABILIDAD Y RIESGOS MAPA DE INUNDACIONES VULNERABILIDAD POR INTENSAS LLUVIAS ANALISIS FODA SINTESIS DE DIAGNOSTICO ° AREA DE ESTUDIO NOMBRE DEL PROYECTO DELIMIITACION DEL AREA DE ESTUDIO TERRITORIO VOCACION TERRITORIAL VISION DE DESARROLLO
INTERVENCION ESTRATEGIAS DE INTERVENCION OBEJTIVOS METAS REFERENTES Y NORMATIVIDAD REFERENTES TIPOLOGICOS PARAMETROS URBANISTICOS Y EDIFICATORIOS PROGRAMAS Y PROYECTOS DESARROLLO DE EJES MASTER PLAN URBANO 2D 3D EJES DE PROPUESTA ESPECIFICA COMERCIAL FINANCIERA CENTRO EMPRESARIAL STREP CENTER °
SALUD CLINICA ONCOLOGICA TIPO II-E CULTURAL CENTRO CULTURAL PARQUE BIBLIOTECA EDUCATIVO COLEGIO TECNOLOGICO-POLITECNICO ESCUELA DE BELLAS ARTES RECREATIVO Y OCIO POLIDEPORTIVO PARQUE ZONAL MATRICES
°

URBANISMO SOSTENIBLE

Consiste en planificar y diseñar las ciudades teniendo en cuenta principios ecológicos. También proporciona recursos urbanísticos suficientes dándole valor al medio ambiente.

LA CIUDAD COMO LUGAR DE ENCUENTRO

LA ESCALA HUMANA

CIUDAD VITAL, SEGURA Y SOSTENIBLE

Para Jacobs las aceras deben ser, a toda costa, lo que se presenta solemnemente como "espacios públicos de calidad”

Las calles de una gran ciudad, deben controlar no solamente el comportamiento de sus moradores sino también el de los visitantes, que provienen de barriadas periféricas y ciudades provinciales,

Los parques son lugares volubles. Acusan tendencias extremas de popularidad o impopularidad, su comportamiento no es en absoluto simple.

“Ciudad para la gente” JAN GEHL (2014)

•La calidad de la vida urbana es esencial para que las ciudades prosperen.

“Muerte y vida de las grandes ciudades” JANE JACOBS(1961)

•“Tiene que haber ojos en las calles, ojos pertenecientes a los que podríamos llamar los propietarios naturales de la calle.

•Las urbes que logran mejorar las condiciones de vida para sus ciudadanos

•Experimentan mayores

•Niveles de prosperidad.

Los edificios deben estar orientados hacia la calle para garantizar la seguridad de los residentes y extranjeros. No pueden dar la espalda o tener lados en blanco y dejarlos ciegos”.

MARCO TEORICO
PERSONALIDADES DEL URBANISMO CONTEMPORANEO

¿ QUE ES OCIO?

SEGÚN EL SOCIÓLOGO

FRANCÉS JOFFRE DUMAZEDIER:

Conjunto de ocupaciones a las que el individuo puede entregarse de manera voluntaria tras haberse liberado de sus obligaciones profesionales, familiares, y sociales, para descansar o divertirse.

ARQUITECTURA PARA EL OCIO

La necesidad de entretenimiento es una constante en el ser humano, el tipo de entretenimiento varia de acuerdo:

“El ajetreo de la vida cotidiana, la falta de espacios públicos para la socialización, y el miedo a lo desconocido hacen que la gente no tenga contacto con sus vecinos y vecinas” (Jacobs,2011, p. 9)

MARCO TEORICO
CULTURA CLASE SOCIAL RELIGION POLITICA
ARQUITECTURA DESTINADA AL OCIO ES CONSTANTE TANTO PARA DEMANDAS PASIVAS
ACTIVAS • COMPLEJOS DEPORTIVOS • ACONTECIMIENTOS MUSICALES • MUSEOS • TEATROS • BIBLIOTECAS • CINE • ACTIVIDADES TURISTICAS • SALONES
DEPORTIVOS •
• SALAS
Y/O
DE FIESTA
CLUBES
CASINOS
GIMNASIOS
ESTADIOS
CLUBES
IGLESIAS
DE EXPOSICION

REGENERACION URBANA

Consiste en la remodelación de áreas urbanas consolidadas en el centro de la ciudad y se utiliza como un mecanismo para invertir un proceso de decadencia económica, demográfica y social.

La regeneración urbana ha sido una herramienta fundamental para la transformación y desarrollo de las ciudades de finales del siglo xx.

Estas reformas urbanas y de transformación se realizan en áreas completas, poniendo en valor zonas con disfuncionalidades y con un alto grado de complejidad, por la intervención de múltiples actores.

MARCO TEORICO

La regeneración urbana se presenta en la actualidad como epicentro de una nueva generación de políticas urbanísticas. El gran reto de la regeneración urbana está en hacer compatible la mejora de las condiciones de vida del tejido urbano existente, donde se desarrolla actividad social y económica, sin provocar el desplazamiento forzoso de la población como si fuera un efecto colateral inevitable.

Aparece con frecuencia, confundida con términos como rehabilitación, renovación, remodelación, revitalización, reestructuración u otros aplicados a iniciativas y proyectos urbanos muy diversos con el denominador común de referirse a espacios ya urbanizados..

La regeneración urbana integrada es por el contrario, una noción que viene siendo impulsada por la que desde hace décadas y que ha tenido una práctica efectiva. No obstante, aunque el neologismo es relativamente reciente, el interés de los gobiernos por dirigir la transformación de la ciudad existente no lo es en absoluto. Por el contrario, constituye uno de los ejes constantes de la historia del urbanismo

Merece la pena, por tanto, detenernos brevemente para mirar al pasado, lejano y reciente, explorar algunos ejemplos y tendencias precedentes con el fin de comprender a qué imperativos han obedecido este tipo de medidas, qué contextos sociales, económicos y disciplinares las han propiciado y, sobre todo, para mostrar algunas de sus repercusiones sobre la ciudad que heredamos.

MARCO TEORICO

REAJUSTE DE SUELOS

Recomposición de predios urbanos o rústicos de distintos propietarios, modificando la estructura predial para fines urbanísticos, mediante la acumulación y nueva subdivisión de lotes o independización de parcelas, la demolición de edificaciones, construcción o cambios en los equipamientos y la infraestructura de servicios, y la construcción, reubicación o redimensionamiento de las vías o espacios públicos.

El reajuste de terrenos con reparto de cargas y beneficios (conocido también como reparcelimiento) es una herramienta de desarrollo urbanístico y construcción de ciudad, que consiste en la definición de los limites prediales (formas de los lotes) con el fin de mejorar la estructura urbana, hacerla mas funcional, aumentar el espacio publico existente y mejorar la provisión de servicios

El reparto con cargas y beneficios permite distribuir las ganancias de la operación urbana entre los propietarios con el objetivo valorizar el suelo y evitar expropiaciones.

.En caso el Reajuste de Suelo incluya inmuebles integrantes del Patrimonio Cultural de la Nación se requerirá, adicionalmente, la autorización sectorial correspondiente.

MARCO TEORICO

El Reajuste de Suelo se puede ejecutar por iniciativa pública o privada mediante acuerdo o acuerdos entre los titulares de los predios involucrados, pudiendo establecer una Unidad de Gestión Urbanística para la planificación urbana y gestión urbana del área comprendida dentro de este proceso El Reajuste de Suelo podrá originarse también en un Plan Específico aprobado por la Municipalidad Provincial en las áreas que establezca el Plan de Desarrollo Metropolitano o el Plan de Desarrollo Urbano, según corresponda.

Al final de la operación, el área total muestra una trama vial diferente y las rentas de la operación se reparten proporcionalmente entre los dueños de terreno.

Tiene por finalidad optimizar la rentabilidad del suelo y la distribución de las cargas y beneficios urbanísticos, estableciendo una nueva estructura urbana acorde con la planificación urbana; siendo aplicable en los procesos de habilitación urbana, renovación urbana, regeneración urbana, entre otros.

El Reajuste de Suelo se puede ejecutar por iniciativa pública o privada mediante acuerdo o acuerdos entre los titulares de los predios involucrados, pudiendo establecer una Unidad de Gestión Urbanística para la planificación urbana y gestión urbana del área comprendida dentro de este proceso. El Reajuste de Suelo podrá originarse también en un Plan Específico aprobado por la Municipalidad Provincial en las áreas que establezca el Plan de Desarrollo Metropolitano o el Plan de Desarrollo Urbano, según corresponda.

Se realiza previo acuerdo de las y los propietarias/ os involucradas/os en el proyecto, bastando la aprobación de las y los propietarias/os o de las y los titulares de derechos que representen, por lo menos, el 60% (sesenta por ciento) de la superficie total involucrada en el reajuste de suelos.

Esquema inicial antes del reajuste Al incorporarlos en el proceso de escala intermedia, mediante el reajuste se borran los límites prediales
MARCO TEORICO

MARCO

HISTORIA DE LA VICTORIA

1950

Primeras familias en Fundo Chacupe, distrito de Reque, a un lado de la Panamerican a Sur

1956 Se hizo el trabajo de parcelación y manzaneo, donde se determino 62 manzanas, cada una con un área de 6720m2

1961

La Victoria nació oficialmente con el nombre de barriada a través de la Resolución Nº 131 de la Corporación Nacional de Vivienda.

1972

1978 Se cambio gobierno generó de invasiones terrenos nacional

La Victoria dejó de ser un barrio marginal y pasó a ser un pueblo joven

HISTORICO

A TRAVES DEL TIEMPO

1978 produjo el cambio de gobierno. Esto generó una oleada invasiones de terrenos a nivel nacional.

1984

Creación del distrito de La Victoria, y promulgada por el presidente Fernando Belaúnde Terry.

1980

El Rotary Club de Santa Victoria solicitó al Min. del Interior la creación del distrito urbano de Santa Victoria, el cual tendría como extensión 2087 hectáreas.

1989-1990

Se desalojan 700 familias, y en 1990 otras 700 fam. Invaden el extremo sur de la victoria, hoy Pueblo joven 1 de Junio.

1986

Se ocupan los terrenos ubicados al lado noroeste del Parque Zonal, originándose los asentamientos humanos Naylamp y Andrés Avelino Cáceres.

MARCO HISTORICO

REGLAMENTO DE ZONIFICACION URBANA:

MARCO NORMATIVO

PDU CHICLAYO

Es la sinopsis del proceso técnico participativo realizado conforme a la norma D.S. 027 – Reglamento de Acondicionamiento Territorial y de Desarrollo Urbano

Artículo 1º.- El Reglamento de Zonificación Urbana constituye el instrumento legal para la aplicación de las propuestas técnicas normativas regulando el régimen jurídico, administrativo y urbanístico orientado al ordenamiento urbano de la Metrópoli de Chiclayo 2011-2016

Artículo 6º.- ZONAS Para los efectos del presente Reglamento, identifica zonas que por sus características físico-espaciales, de tendencia, compatibilidad y de planificación han sido clasificadas dentro del suelo urbanizable de acuerdo a sus condiciones específicas de uso:

RESIDENCIAL:

SALUD: MARCO NORMATIVO
COMERCIO: EDUCATIVO:

PLAN

ESPECIFICO

Instrumento técnico normativo mediante el cual se desarrollan y complementan las disposiciones del Plan de Acondicionamiento Territorial

Facilitando la actuación o intervención urbanística en un sector de un área urbana y urbanizable en el PDU, cuyas dimensiones y condiciones ameritan un tratamiento integral especial.

AMBITO DE APLICACIÓN DEL PE

Calificar como centros históricos o zonas monumentales 02

01 03

Construir espacios de recuperación, de protección o de conservación

Los objetivos respecto a la optimización del uso del suelo y de la propiedad predial; y, la dotación, ampliación o mejoramiento de los espacios y servicios públicos y la calidad del entorno.

El tipo de intervención urbana a desarrollar: Habilitación urbana, Renovación urbana o Reurbanización.

La propuesta de zonificación y vías.

La ubicación de equipamientos urbanos (educación, salud, recreación).

Construir espacios cuyo mejor uso y optimización pueden generar posibilidades de renta a los propietarios e inversionistas CONTENIDO DEL PE MARCO NORMATIVO

LEY DE DESARROLLO URBANO SOSTENIBLE

SECCIÓN IV DESARROLLO URBANO SOSTENIBLE

Artículo 19. Acondicionamiento territorial:

Organizar el espacio, las actividades, recursos naturales e intervenciones en el territorio, en armonía con las actividades económicas de la ciudadanía, el ambiente, cultura e historia; a través del conjunto de políticas, planes y acciones político administrativas llevadas a cabo por los Gobierno

Artículo 20. Planificación urbana sostenible

• Comprende el proceso a través del cual los Gobiernos locales y la ciudadanía deciden la organización espacial de la ciudad o centro poblado.

• Lograr el desarrollo urbano en armonía con su territorio y ambiente, articulado a las expectativas económicas, productivas y sociales del conjunto de agentes de una sociedad,

MARCO NORMATIVO

PUERTO VIEJO

PROBLEMATICA

•CALLES DESTRUIDAS POR TODOS LADOS, SATURACIÓN EN EL TRÁNSITO;

•DESEMPLEO ANGUSTIANTE Y SIN ESTÍMULOS DE EMPRENDIMIENTO;

•SERVICIOS BÁSICOS CON LIMITADA COBERTURA E INSATISFECHOS PARA AMPLIOS SECTORES;

•DESORDEN URBANO, ZOZOBRA ANTE EL ATAQUE DELINCUENCIAL.

MARCO REFERENCIAL

Más modernas de Manabí. Es la capital de la provincia de Manabí, se la conoce también como “la ciudad de los reales tamarindos”, porque en ella había árboles de estas especies. Entre sus atractivos principales están las playas de crucita, la laguna el encanto en san plácido, el estadio reales tamarindos, la iglesia catedral metropolitana y la casa del seminario mayor "san pedro", consideradas como una de las obras arquitectónicas

Reconstruirse como una ciudad inteligente y socialmente cohesionada, participativa, inclusiva y económicamente sustentable, que da cabida al rescate de la cultura como elemento cohesionador de la sociedad y que permite el máximo aprovechamiento del espacio público disponible al servicio de la ciudadanía, planificando y reestructurando el ordenamiento territorial a nivel local, con un enfoque del bien común.

El plan piloto de regeneración cubre 8,6 hectáreas que contienen 11 manzanas que conforman el centro histórico de Portoviejo y busca conseguir:

•Un centro sostenible ambiental y económicamente que contribuya al mejoramiento de las condiciones de vida de sus ciudadanos.

Un centro que realce los valores culturales de la región presentando una imagen urbana rica en identidades..

MARCO NORMATIVO

Conexión directa con el centro de Chiclayo.

Nodos de articulación principal

Ubicada en todo el eje de la autopista GRAUMONSEFÚ

Ubicación estratégica, relacionándose de forma directa con las principales vías de acceso.

La AV. Los Incas conecta al sector de forma directa con el resto del distrito hacia el sur

Tanto la AV. Chinchaysuyo como la AV Unión tienen salida directa hacia el este –oeste, lo que permite fluidez de circulaciones

UBICACIÓN Y LIMITES
AEREOPUERTO JOSE A. QUIÑOÑES GONZALES REAL PLAZA

Tramo de la avenida asfaltada y en buen estado, con paseo peatonal y vegetación

AV. CHINCHAYSUYO (TRAMO) PASEO YORTUQUE

Tramo de la av. sin asfaltar, con basura, y en mal estado.

Y LIMITES
UBICACIÓN
ESQUINA AV. UNIÓN E INCAS VÍA ASFALTADA VÍA SIN ASFALTAR NORTE: AV. Chinchaysuyo SUR: AV. Unión ESTE: AV. Los Incas OESTE: AV. Colectora AV. UNIÓN PARQUE MIGUEL GRAU LIMITES

• El diagrama de Chiclayo muestra vientos fuertes y regulares de Diciembre a Abril y vientos tranquilos de Junio a Octubre.

• Los vientos alcanzarán una velocidad de 5 a 12km/h.

• La Rosa de los Vientos para Chiclayo muestra que el viento está soplando desde el Suroeste (SO) para el Noreste (NE).

Sol

Nublado

Parcialmente nublado

Días de precipitación

El diagrama de Chiclayo muestra que entre nov. y dic. El cielo estará parcialmente nublado pocos día de sol

CLIMA
CIELO NUBLADO, SOL Y DÍAS DE PRECIPITACIÓN

CANTIDAD DE PRECIPITACIÓN

El diagrama de Chiclayo muestra que entre nov. y dic. serán DÍAS SECOS.

TEMPERATURAS MÁXIMAS

El diagrama de Chiclayo muestra que entre nov. y dic. Tendrá temperaturas que irán desde 25° a 30°

CLIMA

ASPECTO SOCIOECONOMICO

POBLACION:

La población del distrito a La Victoria estimada al 2019 es de: 92 655 hab. Según el Plan de Desarrollo Urbano Ambiental al 2015 de Chiclayo; y es esta cifra la que nos ayudará a estimar la cantidad para la muestra

Población

DINAMICA DEMOGRAFICA

A la fecha se estima que el área Metropolitana de Chicalyo viven unos 716,732 habitantes, concentrándose cerca de las ¾ partes de la población en los distritos de Chiclayo (36.9%),J.LO (25.4%) y la Victoria (11.2%)

La dinámica demográfica presenta una importante reducción en la concentración poblacional en Chiclayo, afectada inicialmente por la creación del distrito La Victoria en la década de los ochenta, que mantiene un casi constante 10% desde su creación

Población por sexo Urbano Rural Varones Mujeres
48%
52% 94.4% 3.76%
Víctor Raúl Haya
POBLACIONSEGÚNEDAD 0-19AÑOS 20-54AÑOS 55AÑOSAMAS 0.00% 10.00% 20.00% 30.00% 40.00% 50.00% 60.00% 0-19años 20-54años 54añosamas 0-19años 20-54años 54añosamas 0-19 años 20-54 años 55 a más 50% 35% 15%
ASPECTO SOCIOECONOMICO
de la Torre
La Victoria

POBREZA:

GRUPO 1 GRUPO 02

De acuerdo a un muestreo realizado para la elaboración del Diagnóstico Situacional del distrito de La Victoria correspondiente al año 1999, en lo que respecta a la Población Económicamente Activa (PEA) de 15 años a más se observa que la Actividad Económica más representativa es la de Servicios 61.1%, sigue Transformación 33.4% y la Extractiva 5.5%

Fuente: Encuestas estudio Diagnóstico Situacional del Distrito de La Victoria

ASPECTO SOCIOECONOMICO

RANGODEPOBREZANOMONETARIA(%)

DEPARTAMENTO PROVINCIA DISTRITO

Nacional Departamento Provincia Distrito

LAMBAYEQUE CHICLAYO LA VICTORIA

ASPECTO SOCIOECONOMICO

RANGODEPOBREZANOMONETARIA(%)

Nacional Departamento Provincia Distrito

25.3% 20.5% 15.8% 14.4%

RANGO DE POBREZA MONETARIA

25.3% 20.5% 15.8% 14.4%

Fuente:INEI-CensosNacionales2017:XIIdepoblaciónyVIIde Vivienda.

Fuente:INEI-CensosNacionales2017:XIIdepoblaciónyVIIde Vivienda.

Según el Estudio de Igualdad de Oportunidades para un Desarrollo Sostenido una Estrategia Focalizada de Lucha Contra la Pobreza Extrema 1996 al 2000 en el Departamento de Lambayeque, existen 15 distritos con una población total de 149,492 en situación de pobreza extrema, correspondiéndoles al distrito de La Victoria 12,035, ocupando el tercer lugar después de Chiclayo y José Leonardo Ortiz.

(%) GRUPO 1 GRUPO 2 12.2 - 18.87 5.9 - 9.5

SALUD:

En el distrito de la Victoria el acceso a los servicios de salud no son tan frecuente, los familiares que no se han afiliado a algún tipo de seguro de salud equivale a un 42.30%

CUADRO Nº 1: POBLACIÓN CENSADA, POR AFILIACIÓN A ALGÚN TIPO DE SEGURO DE SALUD, SEGUN DISTRITO

DISTRITO LA VICTORIA

TOTAL SIS ESSALUD SEFURO DE FA O POLICIA

SEGURO PRIVADO DE SALUD OTRO SEGURO NINGUNO 90912 37531 26502 2315 1879 806 22475

Menores de 1 año 1442 855 431 27 28 2 112

ASPECTO SOCIOECONOMICO

De 1 a 14 años 22293 11006 6952 448 404 103 3506 De 15 a 29 años 23159 10074 4453 572 496 202 7454 De 30 a 44 años 19487 6903 6380 297 496 162 5429 De 45 a 64 años 17241 6076 5431 742 335 200 4597 De 65 años a mas 7290 2617 2855 229 120 137 1377 30.5% 35.5% 25.7% 12.8%

El área de estudio presenta una escasez de equipamientos de salud, sin embargo los pocos que existen son de carácter privado , lo cual no permite estar al alcance de todos los ciudadanos de la zona. Frecuentemente se suelen hacer actividades sanitarias, en las que se ofrece atención médica gratuita, con médicos que vienen desde Lima

ASPECTO SOCIOECONOMICO
15.0% 14.7%
Desnutrición crónica 20.6 19.8% 15.8% 17.1% Anemia en gestantes Porcentaje del personal de Salud
Fuente:
-Censos
de
yVIIde
Anemiaenniñosde6a36meses
11.0% 8.1%
27.0% 37.8% 29.2% 23.6%
INEI
Nacionales2017:XII
población
Vivienda. Nacional Depto Provincia Distrito En el ultimo censo en el sector salud se hizo una evaluación de enfermedades, identificando algunas como:
HOSPITAL JUAN PABLO II Av. Miguel Grau 1461- La Victoria Especialidades: 13 Creado:2007 ESTABLECIMIENTOS DE SALUD HOSPITAL JUAN PABLO II CENTRO MEDICO NORLAR. Av. Union 1690 pertenecen a la jurisdicción de la Dirección de Salud DISA Lambayeque CENTRO MEDICO SAN FELIPE. Av. Los incas 194. 60 años de experiencia ofreciendo servicio social USO DE MASCARILLA FUMIGACION DISTANCIAMIENTO SOCIAL LIMPIEZA DE MANOS ASPECTO SOCIOECONOMICO CENTRO MEDICO SAN FELIPE PANDEMIA DATOS COVID CENTRO MEDICO NORLAR TOTAL DE CASOS: 2009 MUERTES: 166

EDUCACION:

Actualmente el distrito de la victoria cuenta con un total de 175 alumnos matriculados en el sistema educativo estatal. lo que representa el 67% del total de alumnos que figuran como matriculados en el año estudiantil. el 33% restante se encuentran matriculados en el sistema educativo privado siento un total de 4524 alumnos

S.E PRIVADO

S.E ESTATAL

También encontramos la modalidad de educación básica regular, con sus cuatro niveles; el nivel inicial, PRONOEI, primario y secundario. graficaremos cuantitativamente el número de alumnos por nivel educativo tanto en estatal como en privado S.E PRIVADO S.E ESTATAL

I.E ADEU

LOS ALAMOS

INICIAL

PRONOEI PRIMARIA SECUNDARIA

La zona norte de todo el sector es la que presenta menor presencia de colegios tanto estatales como particulares, esto debido a que toda esa zona está ocupada mayormente por lotes vacíos, sin uso, pero que poco a poco empiezan a tener uso a través de residencias que se instalan por el lugar. tarde o temprano toda esa zona tendrá uso de vivienda y será necesario mayor presencia de colegios

ASPECTO SOCIOECONOMICO
I.E SAGRADO MAESTRO ASPECTO SOCIOECONOMICO I.E ADEU NIVEL PRIMARIA DOCENTES 16 ALUMNOS: 147 NIVEL: PRIMARIA DOCENTES: 9 ALUMNOS: 61 I.E RAYMOND SHREVE NIVEL PRIMARIA DOCENTES 11 ALUMNOS: 250 11026 MARISCAL ANDRÉ AVELINO CACERES NIVEL: INICIALJARDIN DOCENTES: 32 ALUMNOS: 773 I.E SAGRADO MAESTRO NIVEL PRIMARIA DOCENTES 11 ALUMNOS: 245 I.E RAYMOND SHREVE 11026 MARISCAL ANDRES AVELINO CACERE I.E JOYITAS DEL REY I.E JOYITAS DEL REY INICIALJARDIN DOCENTES 4 ALUMNOS: 512

USO DE SUELOS

ANALISIS FISICO URBANO ASPECTO FISICO URBANO
USO
ventaja
del
92% RESIDENCIAL 3.5% COMERCIAL 0.60% RECREACION 1.60% EDUCACION 0.10% SALUD 3.20% OTROS USOS LEYENDA RESIDENCIAL COMERCIAL EDUCACIÓN SALUD RECREACION OTROS USOS COMPATIBILIDAD CON PDU DE LA VICTORIA LEYENDA RESIDENCIAL densidad media R4 C. INTERDISTRITAL-C9 C. DISTRITAL-C5 EDUCACION BASICA-E1 CENTRO DE SALUD-H RECREACION PUBLICA-R OTROS USOS C. INTERDISTRITAL-CE
usos
Se observa en su mayoría al
RESIDENCIAL, este uso pertenece a la zonificación que es compatible según el PDU de La Victoria. Además se puede observar que no se cuenta con un uso de salud, lo cual no es una
a los pobladores
lugar.
Todo uso de suelo debe de cumplir de acuerdo al PDU del Distrito de La Victoria. Según Zon. del PDU, debería consolidarse como eje comercial, hoy con más uso residencial y otros

ASPECTO FISICO URBANO

En el AREA DE ESTUDIO encontramos edificios tanto comerciales como residenciales de 1 a 5 pisos, quiere decir que esta dentro de la zonificación planteada en el PDU Prevalece “otros usos” en una zona que debería ser de usos comercial, los lotes son usados como almacenes o talleres

Según Zon. del PDU, debería consolidarse como comercio distrital, y hay uso de viviendas comercio.

ZONIF ZU DENS. MIN. RESID. ALT. MAX. ZU DENS. MIN. COM. COMER. ALTURA MAX. SECTOR VII R4 1300 HAB/HA 3-6 PISOS(3MXPISO) C5-CEC9 2250 HAB/HA METROP. Y REGIONA L SOBRE CORREDORS(5-15
PISOS) Las zonas recreacionales propuestas en el PDU como el Parque Zonal, han sido nulas o escasas en su implementación actualmente

USO DE SUELOS: COMERCIO

RUTA 6

RUTA 6: Con un horario de 6:00 a 11:30 de la noche, comercio de tipo bar, con mobiliario rústico

AVENTURA

AVENTURA: Con un horario de 7:00 a 3:30 de la noche, discoteca

El comercio en esta parte pertenece al sector de oficio constructivo, específicamente en melanina, generando un alto flujo durante el día

KIMBARA)

kimbara: Con un horario de 7:00 a 4:30 de la noche, salsodromo

Viviendas comercio, que generan un flujo durante el día

ASPECTO FISICO URBANO

ASPECTO FISICO URBANO

USO DE SUELOS

PARQUE ZONAL

Uno de los principales espacios de recreación en el distrito de la victoria es el Parque zonal de dicho distrito, el cual en la actualidad se encuentra en total abandono por descuido de las autoridades y población.

Era un lugar donde las familias pasaban horas y horas con sus hijos, haciendo uso de estos elementos de recreación y entretenimiento.

– USO RECREATIVO

Parte del terreno cuenta con una cancha de gras sintético, donde se realizan algunos campeonatos, sin embargo no está abierto al público

AREA LIBRE: 85.58%

DETERIORO Y ANTIGUO: 14.42% de no presenta ninguna a zona a conservar, por lo que se requeriría un diseño total

EDUCACION

1,- 008 NIÑO MENSAJEROS DE LA PAZ

Nivel / Modalidad Inicial / Jardín Género Mixto Tipo de Gestión Pública Turno Mañ. / Tar. Estado de infra. Muy Bueno Total alumnos 263 Total docentes 11

Nivel / Modalidad Inicial / Jardín

Género Mixto Tipo de Gestión Pública Turno Mañ. / Tar. Estado de infra. Bueno Total alumnos 627

Total docentes 32

SALUD

1,- CENTRO DE SALUD MANUEL SÁNCHEZ VILLEGAS

2,- 11026 MARISCAL ANDRES AVELINO CACERES Tipo de Establecimiento Est. de Salud sin Internamiento Categoría I-3 Tipo de Gestión Pública Ubicación Calle Virú s/n número Área de lote 2500 m2

El Centro de salud cuenta con la medida del terreno establecida por SISNE, sin embargo su infraestructura es deficiente y precaria.

EQUIPAMIENTOS
URBANOS
USOS ESPECIALES EQ. URB. COMERCIAL EQ. URB. EDUCACION EQ. URB. SALUD EQ. URB. RECREACION ASPECTO FISICO URBANO
MERCADO YORTUQUE COMERCIO Tipo de Establecimiento Mercado Minorista Clasificación C3 – Comercio Vecinal y de Serv. Tipo de Gestión Pública Ubicación Av. Chinchaysuyo s/n número Área de lote 950 m2 1,- MERCADO YORTUQUE USOS ESPECIALES Estado Muy bueno Ubicación Av. La Unión Área de lote 12900 m2 1,- MUNICIPALIDA DE LA VICTORIA RECREACIÓN PÚBLICA PARQUE MIGUEL GRAU COLEGIO 11026 MARISCAL ANDRE AVELINO CACERES CENTRO DE SALUD MANUEL SÁNCHEZ VILLEGAS PARQUE MIGUEL GRAU COLEGIO NIÑO MENSAJEROS DE LA PAZ ASPECTO FISICO URBANO
VIALIDAD Y TRANSPORTE CONECTIVIDAD EXTERNA RED VIAL NACIONAL VÍAS PRINCIPALES DE PRIMER ORDEN ASFALTADAS VÍAS PRINCIPALES DE PRIMER ORDEN SIN ASFALTAR MATERIALIDAD DE VIAS VÍAS DE ASFALTO VÍAS SIN ASFALTO VÍAS DE CONCRETO CON ASFALTO SIN ASFALTO DE CONCRETO 90 % 7 % 3 % ASPECTO FISICO URBANO

SISTEMA VIAL DEL DISTRITO

Las vías PRINCIPALES o de PRIMER ORDEN • AV. GRAU • AV. UNION • AV. CHINCHAYSUYO • AV. LOS INCAS Las vías SECUNDARIAS o de SEGUNDO ORDEN • AMAZÚA • CORICANCHA • ORFEBRES Las vías LOCALES o de TERCER ORDEN: • EL TUMI • LAS MINCAS • MITIMAES TRANSPORTE: Dentro del distrito se identifican 5 tipos de transportes: Mototaxis, combis, colectivos, taxis y bicicletas MOTOS COLECTIVOS TAXIS COMBIS TAXIS 40% 15% 20% 20% 5% ASPECTO FISICO URBANO

SECCIONES VIALES

AREA DE OCUP. DEL AUTO AREA DE OCUP. DE LA PERSONA

La proporción de circulación vehicular y peatonal es equitativa, teniendo áreas verdes e incluso una ciclovías.

AREA DE OCUP. DEL AUTO AREA DE OCUP. DE LA PERSONA

Hay una prioridad vehicular sobre el transito peatonal, las pistas tienen sardineles que definan sus bordes.

AREA DE OCUP. DEL AUTO AREA DE OCUP. DE LA PERSONA

Hay una prioridad vehicular sobre el transito peatonal, el jardín central no permite transito peatonal.

AREA DE OCUP. DEL AUTO AREA DE OCUP. DE LA PERSONA

Hay una prioridad vehicular sobre el transito peatonal, el jardín central no permite transito peatonal.

52% 48%
79% 21%
81% 19% 79% 23%
ASPECTO FISICO URBANO
ASPECTO FISICO URBANO
1 FLUJO VEHICULAR EN ESQUINA DE GRAU Y CHINCHAYSUYO MAÑANA 9:00AM GRAU CHINCHAYSUYO MEDIO DIA 12:00PM GRAU CHINCHAYSUYO NOCHE 7:00PM GRAU CHINCHAYSUYO 3 FLUJO VEHICULAR EN ESQUINA DE CHINCHAYSUYO Y LOS INCAS ASPECTO FISICO URBANO
3 4 FLUJO VEHICULAR EN ESQUINA DE GRAU Y AMAZUA MAÑANA 9:00AM GRAU AMAZUA MEDIO DIA 12:00PM GRAU CHINCHAYSUYO NOCHE 7:00PM GRAU CHINCHAYSUYO 2 4 FLUJO VEHICULAR EN ESQUINA DE UNION Y LOS INCAS MAÑANA 9:00AM INCAS CHINCHAYSUYO MEDIO DIA 12:00PM INCAS CHINCHAYSUYO NOCHE 7:00PM INCAS CHINCHAYSUYO MAÑANA 9:00AM UNION INCAS MEDIO DIA 12:00PM UNION INCAS NOCHE 7:00PM UNION INCAS ASPECTO FISICO URBANO

ALTURA DE VIVIENDAS

La zona de estudio comprende de edificaciones desde el primer nivel hasta el 5° nivel, identificado en su mayoría viviendas de 2 niveles.

1

Av. COLECTORA

En la esquina de la AV. Grau Y Unión encontramos edificios de 1 a 3 niveles, lo cual esta dentro de lo establecido en el PDU

1
2
3
4
5
GRAU Y UNION LEYENDA
NIVEL
NIVEL
NIVEL
NIVEL
NIVEL
ASPECTO FISICO URBANO
1
2
Av. GRAU 2
3
3 Av. UNION Av. UNION Av. CHINCHAYSUYO Y PROLONGACION LOS INCAS 4 Av. PROLONGACION LOS INCAS 5 4 5 3 3 ASPECTO FISICO URBANO
ASPECTO FISICO URBANO
BASICOS  Cuenta algunas pero  La iluminación pública luces principales secundarias.
SERVICIO

Cuenta con Hidrantes, algunas en mal estado, que se pueden usar. iluminación de la vía pública es buena, usando blancas en avenidas principales y amarillas en secundarias.

ASPECTO FISICO URBANO

VEGETACIÓN

En el distrito la victoria su flora está conservada en los parques y alrededores de la ciudad, y tienen acequias que riegan de agua sus cultivos, que se encuentran al extremo suroeste del distrito.

El índice de área verde en la victoria es de 0.64 m2/hab. estando muy por debajo de los estándares recomendados por la OMS; para lograr el área mínima recomendada (9 m2/hab.) el distrito debería contar con 0.74 km2 de áreas verdes.

TIPO DE ARBORIZACIÓN

Algarrobo Molle Palmeras
ASPECTO AMBIENTAL
AV. LUIS ALBERTO S. PROL.
CHINCHAYSUYO

Un total de 16 entre calles y Avenidas cuentan con arborización y jardineras

En la parte este de nuestra área de estudio que representa al casco urbano de la victoria se observan áreas verdes y espacios públicos muy bien conservados. Mientras que en el pueblo Joven, se observa una marcada escasez de áreas verdes y existentes pero descuidadas.

ASPECTO AMBIENTAL

En la zona hemos identificado 3 tipos de contaminación, Contaminación visual, contaminación sonora, y contaminación por residuos solidos.

25% 20%

55%

CONTAMINACION COLOR SONORA RESIDUOS SOLIDOS VISUAL

CONTAMINACION VISUAL

Este tipo de contaminación que mas abunda en la zona de estudio, que son los letreros , Paneles publicitarios, que generan una mala imagen de la ciudad y una distracción para los conductores.

El cableado, nos da una mala imagen de la ciudad y también puede ser peligroso para la población .

ANALISIS FISICO URBANO

En algunas zonas observamos Graffitis de bandas, que nos generan una percepción de inseguridad.

CONTAMINACION SONORA

El ruido esta mayormente vinculado a la gran frecuencia vehicular y al uso indiscriminado del claxon.

La ciudad se encuentra expuesta al ruido diariamente, donde los problemas, daños o enfermedades no se dan conocer de inmediato, si no tardan años en ser adquiridos.

Av. Miguel Grau
ASPECTO AMBIENTAL
Av. Miguel Grau

CONTAMINACION POR RESIDUOS SOLIDOS

La generación de agentes patógenos in situ como son los puntos de basura propician el deterioro de la calidad del suelo y aire ocasionando la contaminación ambiental del área.

Algunos puntos permanecen limpios en el día y al anochecer se convierten en puntos de Basura.

Yahuar Huaca
AMBIENTAL
Chinchaysuyo
ASPECTO

GEODINAMICA INTERNA

Vulnerabilidad

Según el Indeci, en la zona, se presentan tres situaciones de vulnerabilidad marcadas:

- Sismos - Licuación de Suelos - Suelos Expansivos

GEODINAMICA EXTERNA

SISMOS

La Victoria se ve afectada principalmente por el Fenómeno de “El Niño”

- Expansibilidad - Saturación de suelos.

- Erosión de suelos.

- Incremento de la napa freática

Media Vulnerabilidad Media Alta Vulnerabilidad Media Alta +
Vulnerabilidad Baja Vulnerabilidad alta Vulnerabilidad alta +
ASPECTO VULNERABILIDAD Y RIESGOS

EXPANSIBILIDAD

MAPA DE INUNDACIONES

INUNDACIONES

Inundaciones sin posibilidad de drenaje natural

• Zonas donde las inundaciones no se producen ya que se cuenta con un drenaje natural de aguas pluviales en la parte norte.

• La zona sur presenta una pendiente menor presentaría inundaciones críticas al no contar con un sistema de drenaje de estas aguas.

ASPECTO VULNERABILIDAD Y RIESGOS

FORTALEZAS

• Cuenta con diversos equipamientos educativos

• Cuenta con zona residencial

• Presencia de múltiples vacíos urbanos, que se pueden aprovechar para un buen planteamiento urbano.

DEBILIDADES

• Mobiliario urbano escaso y en pésimo estado de conservación.

• Pocos espacios públicos

• Falta equipamiento recreativo, zonas de reposo y equipamiento de salud.

• Existe un gran porcentaje de contaminación tanto visual y atmosférica.

• Mobiliario urbano muy deteriorado debido a su antigüedad

• Poca área para el peatón

• Vías en mal estado

ANALISIS FODA

OPORTUNIDADES

• Óptima ubicación

• Cuenta con todos los servicios básicos, agua, luz y desagüe

Cuenta con 4 avenidas importantes las cuales funcionan como vías articuladoras enriqueciendo a los proyectos a futuro en esta área de estudio tanto en lo económico y arquitectónico

AMENAZAS

• Una marcada división o sectorización que puede beneficiar a un sector y perjudicar a otro

• El área de estudio es un sector crítico tanto por presentar zona de inundación crítica

• Falta de financiamiento en espacios recreativos.

SINTESIS DE DIAGNOSTICO
SINTESIS DE DIAGNOSTICO
°

LA VICTORIA URBAN LAB!

Ubicado en el departamento de Lambayeque, al suroeste del Perú.

Situada en la provincia de Chiclayo

Distrito La Victorial

UBICACIÓN Y LIMITES

Tramo de la avenida asfaltada y en buen estado, con paseo peatonal y vegetación

AV. CHINCHAYSUYO (TRAMO) PASEO YORTUQUE

Tramo de la av. sin asfaltar, con basura, y en mal estado.

Y LIMITES
UBICACIÓN
ESQUINA AV. UNIÓN E INCAS VÍA ASFALTADA VÍA SIN ASFALTAR NORTE: AV. Chinchaysuyo SUR: AV. Unión ESTE: AV. Los Incas OESTE: AV. Colectora AV. UNIÓN PARQUE MIGUEL GRAU LIMITES
VOCACION

A partir de diagnostico y caracterización del sector “ LA VICTORIA URBAN LAB” con las intervenciones adecuadas puede llegar transformarse en un sector con gran aporte para el desarrollo del distrito de La Victoria.

Sin intervención:

Con Intervención:

.Predominancia de áreas residencia Nueva LA VICTORIA URBAN LAB!

.Barreras urbanas muros ciegos deficiti de movilidad peatonal y vehicular.

.Sin señalética viales problemática peatonal.

.Sin conservación de materialidad de vías, sin asfaltar ausencia de veredas

Mayor impulso cultural y turístico a partir de equipamientos.

.Crecimiento económico a partir de equipamientos y turismo.

.Aumento de movilidad peatonal.

Desarrollo de corredores peatonales y ecológicos tanto como de áreas verdes impulsando la movilidad peatonal

Con iluminación baja publica en algunas zonas

.Contaminación auditiva ,de gases combustibles de autos y de residuos solidos por periferia de la zona.

.Concientización ambiental uso de energía solar.

.Equilibrada densificación

.Nueva imagen urbana con visuales paisajistas.

VOCACION
VISION Regeneracion Imagen Movilidad Desarrollo socioeconómico cultural Medio Ambiental

En el año 2032 el “Complejo Urbano La VictoriaVive!”…..

Ambiental

Es un distrito con un ambiente urbano armonioso y saludable que hace usos sostenible de sus recursos, con ciudadanos integrados culturalmente, que promueven el desarrollo, economía y recreación, posicionándola como un distrito importante en la actividad económica y turística, donde existen espacios urbanos moderno seguro y ordenado con mobiliario adecuado, cuyo transporte es sostenible generando un impacto positivo en las condiciones del medio ambiente. Se tiene un distrito regenerado en su totalidad maximizando la calidad y bienestar poblacional.

VISION
Regeneracion Urbana Urbana Movilidad Sostenible Desarrollo socioeconómico

REGENERACION DEL CENTRO DE SAN JOSE, PUERTO RICO:

CAUSAS COMUNES PROBLEMAS CAUSAS ESPECIFICAS

Los principales retos que afrontan los 4DC son complejos y presentan algunas causas comunes, interrelacionadas, y otras especificas, tal y como se sintetiza en el siguiente grafico.

REFERENTES

1) Simulación urbanística de reactivación de espacios públicos, repoblamiento inclusivo, promoción de la movilidad sostenible, accesible y segura, y fomento a la competitividad del cantón con la generación de nueva oferta de base tecnológica

2) La peatonalización como elemento clave en la regeneración urbana: Plan Maestro para el centro de San José, Costa Rica

REFERENTES
REFERENTES
REFERENTES

REGENERACION URBANA DEL TECNOLOGICO DE MONTERREY:

DistritoTec es un proyecto que surge a partir de la necesidad que encontró el Tecnológico de Monterrey de tomar acción para combatir algunas problemáticas urbanas que enfrentaba la comunidad vecina de su campus insignia al sur de la ciudad de Monterrey. La iniciativa está proyectada a 15 años y opera bajo tres grandes ejes: La evolución del campus Monterrey, la integración de un clúster de investigación, y la conformación de un mejor entorno urbano.

El crecimiento acelerado de la población urbana, aunado a las políticas nacionales de vivienda y de desarrollo urbano que han favorecido el desarrollo de fraccionamientos alejados de los sitios de trabajo y de esparcimiento, han provocado una expansión desordenada de las zonas metropolitanas del país. Monterrey no fue la excepción: de 1980 a 2010, la población se duplico y la mancha urbana se quintuplico, lo cual se ha reflejado en el abandono de actividades de todo tipo en las zonas más céntricas de la ciudad.

El crecimiento acelerado de la población urbana, aunado a las políticas nacionales de vivienda y de desarrollo urbano que han favorecido el desarrollo de fraccionamientos alejados de los sitios de trabajo y de esparcimiento, han provocado una expansión desordenada de las zonas metropolitanas del país. Monterrey no fue la excepción: de 1980 a 2010, la población se duplico y la mancha urbana se quintuplico, lo cual se ha reflejado en el abandono de actividades de todo tipo en las zonas más céntricas de la ciudad.

REFERENTES

Con esta visión, se busca generar:

1. El entorno ideal para desarrollar grandes ideas. Se impulsa la investigación, innovación y emprendimiento a través de una vinculación productiva y creativa entre el mundo académico, las empresas y el sector publico

2. Acciones para una vida mejor. Se busca que la comunidad disfrute de una vida de ciudad con nuevos estándares, creando un distrito renovado, atractivo y bien conectado que atraiga al mejor talento y que ofrezca una experiencia cautivadora para vivir, estar y visitar.

3. Un nuevo modelo de ciudad basado en la corresponsabilidad. Es un espacio de innovación urbana desde donde se promueven ideas, acciones y normativas para generar valor compartido. Se cree que bajo un modelo de corresponsabilidad podemos mejorar la convivencia social e impulsar el desarrollo.

REFERENTES
REFERENTES
REFERENTES

CENTRO CULTURAL GABRIELA MISTRAL:

REFERENTES
REFERENTES

CENTRO CULTURAL GABRIELA MISTRAL:

Este edificio, como ningún otro, ha sido un actor relevante durante un período de nuestra historia reciente que se caracterizó por la polarización ideológica, política y la división social. El edificio se construyó como obra símbolo del “hombre nuevo” durante el gobierno de Salvador Allende y acto seguido, posterior al golpe de estado, se transformó en la sede de gobierno del régimen del General Pinochet, encarnando el “Poder Total”

El Edificio original se diseño y construyo en tiempo record. Como estrategia, los arquitectos concibieron una gran cubierta, de dimensiones monumentales para posteriormente ir instalando bajo ella los recintos que el programa iba definiendo durante la construcción de la obra. Desde un inicio el impacto urbano fue profundo, ya que se instalaba un enorme edificio de proporciones horizontales que por un lado prácticamente se posaba sobre la acera de la avenida principal

Desde el punto de vista urbano la forma de enfrentarnos al problema no fue desde el edificio mismo sino desde su entorno, es decir, el pedazo de ciudad que lo circunda y con el cual no se relaciona desde hace muchos años. Por lo tanto lo primero que nos interesó fue la manzana, sus edificaciones y sus alternativas de espacio público. Desde el punto de vista técnico-expresivo, la propuesta es simple en el sentido de que toma las ideas y cualidades arquitectónicas del proyecto original y las reinterpreta libremente de forma contemporánea para la construcción de un nuevo programa para el edificio.

REFERENTES

FICHA TÉCNICA

*orientado para público en general, dividiéndose este en: *usuario frecuente: asistente a biblioteca , hemeroteca y diferentes ambientes. *usuario esporádico: zona pública (cafetería, salas de exposición y auditorio, etc.

REFERENTES
cultural
AÑO
2008 PROMOTOR: Gobierno de Salvador Allende AUTORES: José copacetic, Hugo Gaggero, José medina, Juan Echenique y Sergio González Espinoza FILIACIÓN CULTURAL: contemporánea ÁREA CONSTRUIDA: 541000m2
NOMBRE: Gabriela Mistral TIPO: complejo
UBICACIÓN: Santiago de chile - chile DIRECCIÓN: Av Libertador Bernardo O'Higgins 227, barrio lastarria, Santiago, Santiago metropolitan region, Chile
DE CONSTRUCCIÓN:
usuarios:
ZONIFICACION GENERAL. A B C D E LEYENDA- ESPACIOS MINISTERIO DE CULTURA BIBLIOTECA DE ARTES CENTRO DE ARTES VISULAES CENTRO DE DEBATE Y ENCUENTRO A B C D E CENTRO ACINAL DE ARTES ESCENICAS Y MUSICA

CENTRO EMPRESARIAL JUAN DE ARONA:

REFERENTES
REFERENTES

CENTRO EMPRESARIAL JUAN DE ARONA:

El proyecto se desarrolla en tres lotes ubicados en la Avenida Juan de Arona. Este edificio de oficinas grandes empresas goza de un emplazamiento privilegiado en esta vía, una de las más importantes del distrito de San Isidro

Considerando la actual escasez y los altos precios de los terrenos en esta zona consolidada, el edificio JDA 700 se convierte en una alternativa de inversión diferenciada.

Además de contar con todos los beneficios de un edificio Premium, el proyecto ofrece la gran oportunidad de ganar valor en el mediano plazo por encontrarse ubicado en la zona con mayor potencial de desarrollo dentro del distrito de San Isidro.

Dispone de gran conectividad con el transporte público: Estación Metropolitano Canaval y Moreyra, Corredor Azul, Corredor Morado, Corredor Rojo, entre otros. Y está situado cerca de importantes y amplias avenidas que le permiten gozar de una vasta interconexión vehicular tales como la Av Javier Prado, Av. Juan de Arona, Av. Arequipa, Av Canaval y Moreyra , Av Aramburú y Av Paseo de la República.

REFERENTES

Además de contar con todos los beneficios de un edificio Premium, el proyecto ofrece la gran oportunidad de ganar valor en el mediano plazo por encontrarse ubicado en la zona con mayor potencial de desarrollo dentro del distrito de San Isidro.

El edificio cuenta con seis sótanos de estacionamientos y once pisos de oficinas; teniendo en el primer piso una tienda independiente.

Estos seis niveles bajo rasante albergan 268 estacionamientos, incluyendo cinco para personas con discapacidad y los correspondientes estacionamientos para visitas. Estos niveles dedicados a estacionamiento vehicular presentan conexión con el nivel de ingreso y con los pisos de oficinas mediante el núcleo de comunicación central Este núcleo de comunicación único presenta cuatro ascensores y una escalera en los niveles de estacionamiento. Añade una segunda escalera desde el piso primero hasta la azotea

En los pisos de oficinas se han proyectado dos grandes oficinas, cada una diseñada con salas de espera, recepción, corredor, sala de reuniones y oficinas. También se han propuestos servicios higiénicos comunes diferenciados entre hombres y mujeres en cada una de estas oficinas; aunque el locatario decidirá la distribución final.

En el último piso se ubica la azotea, que consiste en un área amplia con jardineras que puedan dotar de áreas verdes al edificio. Asimismo, estas áreas de terraza podrán utilizarse como zonas de descanso de trabajadoras. Adicionalmente, en este nivel se han ubicado cinco salas de reuniones para uso exclusivo de trabajadores del edificio. La sala de mayores dimensiones tiene capacidad para 54 personas

REFERENTES

REFERENTES

PARQUE DE BIBLIOTECA SAN JAVIER

REFERENTES

REFERENTES

San Javier es el nombre con el que se conoce localmente esta biblioteca, en referencia a la comuna en donde se localiza; también denominada comuna 13, ésta fue una de las más estigmatizadas durante los tiempos de la toma de barrios por parte de las milicias.

Sitio y paisaje (reino público)

Como parte del plan de reinserción social del gobierno local, en esta área se construyó el segundo metro cable, cuya primera estación está situada a metros de la biblioteca y se conecta con un área peatonal por medio de explanadas verdes que siguen la pendiente natural del terreno.

El lote, que se encontraba vacío, está delimitado en su borde sur por una cárcel; desarrollándose y abriéndose hacia el lado opuesto, la biblioteca retoma la topografía del lugar y se apoya en la pendiente que desciende en sentido sur-norte. De este modo, el proyecto se conforma como una arquitectura de ladera y genera conexiones con el entorno

Este circuito y explanadaparque puede tomarse también desde la terraza escalonada que acompaña el perfil de la fachada occidental. Conectada con la expansión sobre la fachada norte, esta explanada se desarrolla mayormente con superficies pavimentadas y abraza unos pequeños jardines elevados sobre los que rematan los cuatro bloques de la biblioteca.

REFERENTES

Arquitectura (reino privado)

El edificio está configurado con unos bloques de concreto que contienen las diferentes salas y funciones de la biblioteca, tales como computación, kínder, talleres y ludoteca, y que se alternan con una serie de espacios lineares de circulación. Estos bloques contenedores se localizan a 1,5 metro por encima del otro, siguiendo el corte natural del terreno, y se perciben como cajas que sobresalen de la línea de fachada, al tiempo que generan los accesos independientes. A manera de gran cubierta, un plano inclinado cubre la totalidad de la superficie sirve como acondicionador térmico y acústico.

En el acceso principal, el espacio se materializa a manera de ágora, con escalinatas que sirven como gradería, área de congregación y descanso; iluminado cenitalmente, este espacio funciona como salón de exhibición y se comunica directamente con el auditorio. Sobre este acceso se localizan también las oficinas de acción para la comunidad.

Lo que se percibe en el exterior como bloque contenedor o caja se define en el interior como una serie de salas, en tanto que lo que se materializa como frentes vidriados en las fachadas oriental y occidental corresponde a las circulaciones internas; al igual que los bloques, todas las circulaciones corren en sentido esteoeste. Esto garantiza la iluminación natural de los corredores internos y la diferenciación espacial entre función y circulación; tanto dentro como desde afuera de la biblioteca, la identificación de unos y otros espacios es clara y concisa.

REFERENTES

STRIP CENTER PLAZA QUIL, ECUADOR

UBICACIÓN

• Datos del Proyecto:

✓ Inicio de la construcción : 1989

✓ Inauguración : 1989

✓ Arquitecto : Alfredo Gregor D

✓ Niveles : 2 Niveles + Sótano

✓ Área Construida : 22 780m2

Este tipo de centro comercial está situado en una zona altamente comercial en donde se ubican 90 locales comerciales, dentro de ellas 2 tiendas anclas: Mi Comisariato y Kentucky Fried Chicken- KFC.

CONTEXTO

ESPACIALIDAD

El centro comercial está situado en una zona comercial de nivel medio- alto; además, cerca de ello se encuentran importantes hitos como el edificio público del sector social, el esterosalado, la clínica Kennedy y el C.C. San Marino. Cuenta con una vegetación y fauna que predominante haciéndolo más integro con la naturaleza. Tiene ingresos diferenciados para vehículos y peatón. Además, existe un puente peatonal que conecta directamente con la Plaza Quil.

integración de la plaza comercial con el estero salado. Su volumetría fue diseñada en forma de “U” compuesta por 5 bloques y fue concebida de forma clara y de fácil identificación, esto se representa en su circulación que permite que los usuarios locales puedan movilizarse fácilmente a otros lugares.

DESCRIPCIÓN

Sus locales comerciales están compuestos en las dos plantas arquitectónicas siendo conectadas mediante escaleras en forma de caracol para acceder a un área de mezanine. Dentro de estos locales se encuentran 2 tiendas anclas: “Mi Comisariato” y la conocida tienda de comida rápida KFC Este Strip Center o centro comercial abierto está compuesto por 90 locales comerciales y también de 21 áreas de oficinas.

REFERENTES

REGLAMENTO DE ZONIFICACION URBANA:

PARAMETROS
URBANISTICOS

PDU CHICLAYO

Es la sinopsis del proceso técnico participativo realizado conforme a la norma D.S. 027 – Reglamento de Acondicionamiento Territorial y de Desarrollo Urbano

Artículo 1º.- El Reglamento de Zonificación Urbana constituye el instrumento legal para la aplicación de las propuestas técnicas normativas regulando el régimen jurídico, administrativo y urbanístico orientado al ordenamiento urbano de la Metrópoli de Chiclayo 2011-2016

Artículo 6º.- ZONAS Para los efectos del presente Reglamento, identifica zonas que por sus características físico-espaciales, de tendencia, compatibilidad y de planificación han sido clasificadas dentro del suelo urbanizable de acuerdo a sus condiciones específicas de uso:

RESIDENCIAL:

COMERCIO: EDUCATIVO:

SALUD:
URBANISTICOS
PARAMETROS
INTERVENCION

REGENERACION URBANA DEL P.J. VICTOR RAUL HAYA DE LA TORRE

Se plantea la regeneración urbana como un enfoque hacia la planificación del Pueblo Joven Víctor Raúl Haya de la Torre, con el objetivo de solucionar la problemática de este sector de manera que pueda integrarse al casco urbano del distrito de la victoria.

Mediante el reajuste de suelos se pretende realizar una regeneración urbana, como una forma de integración inmobiliaria, mejorando la dotación de infraestructura, en equipamientos urbanos como transporte, escuelas, centros de salud, hospitales, parques u otros equipamientos, mejoramiento e integración de vías, través de ciclo vías y corredores verdes. Todo este proceso de regeneración a través de un proyecto integral, social y sustentable que pueda crear imagen urbana donde no la hay.

INTERVENCION
INTERVENCION

IMAGEN URBANA

Esta estrategia plantea generar espacios públicos de calidad, lugares de estar, lugares de encuentro, donde las personas puedan socializar y en consecuencia mejorar su calidad de vida.

En el área de intervención se diseñaran espacios públicos, proyección de alamedas, implementación de corredores y lugares que puedan ser puntos de interacción social, que inviten a las personas a salir y caminar, sin sentirse inseguras.

Es necesario que estos espacios estén correctamente equipados con mobiliario urbano, que se adapte a distintos climas y que el usuario pueda brindar diferente uso.

INTERVENCION
INTERVENCION

GESTION E IMPULSO DE MOVILIDAD URBANA

Para captar la atención de las personas mientras se desplazan, de manera estratégica se plantea corredores peatonales, calles en las que la gente pueda movilizarse lentamente observando mientras se dirigen a su destino. Estos tramos deben contar con ciertas características que hagan atractivo el trayecto, donde puedan encontrar zonas de socialización.

Generar infraestructura para el peatón, con espacios de reunión, modificar las secciones de vías principales, dando prioridad al peatón, equipándolas con ciclovías, completando la inclusión de todo tipo de movimiento urbano, tanto peatonal, ciclista y vehicular, siempre diferenciando el recorrido de los diferentes tipos con tonos y texturas

INTERVENCION
INTERVENCION

D. DESARROLLO SOCIAL, CULTURAL Y ECONOMICA Y APOYO AL CIUDADANO

Los procesos participativos y principalmente la participación de la gente todavía no adquieren un papel dominante en la gestión de las ciudades. Debido a ello se propondrá diversos proyectos que ayuden e incentiven a los pobladores a una participación activa en el sector y la vez formen parte de los cambios que irán en progreso.

permitirá la recuperación y mejoramiento de áreas verdes cuya ubicación de cada una permite crear un sistema articulador de las diferentes zonas que conforman este sector, además de servir como vinculador entre los diferentes equipamientos existentes así como los propuestos en la zona

INTERVENCION
INTERVENCION

MEDIOAMBIENTAL

Los ciudadanos como protagonistas son los principales gestores del desarrollo progresivo de las ciudades, ello mediante su apoyo concientizado en el ámbito de la mitigación de contaminantes ambientales y apoyo comunitario para el desarrollo de la seguridad ciudadana

Se plantea la creación de acopios para puntos de basura y centros de acopio para reciclaje, al igual que la creación de biohuertos, corredores ecológicos e implementar programas de limpieza como participación en comunidad.

Además del uso de movilidad sostenible que ya se viene desarrollando es uno de los factores de gran importancia en las propuestas.

Se impulsaran campañas de arborización a través de un proceso de plantación de arboles dentro de su barrio Logrando generar conciencia y un cambio de conducta en el ciudadano además de generar un interés en temas ambientales.

INTERVENCION

Realizar un reajuste de suelos para lograr una regeneración urbana, como una forma de integración inmobiliaria, mejorando la dotación de infraestructura, de equipamientos urbanos, espacios públicos y servicios.

Trabajar en los siguientes aspectos:

• las vías principales en mal estado,

• Mobiliario urbano

• Remodelación de las fachadas, y la ornamentación de vegetación en las áreas públicas

Se propondrá que las vías de circulación y su funcionamiento brinden mejores oportunidades para el peatón o para vehículos como bicicletas y motocicletas, que es un tipo de transporte menos contaminante y que a la vez permite al usuario desplazarse en un lugar seguro y favorable a sus condiciones

• Mejorar del nivel de vida de la población: educación, salud, consumo de alimentos, vivienda, seguridad social» empleo y condiciones de trabajo, recreación y derechos humanos.

• Mejorar la distribución del ingreso y participación popular.

• Implementar un programa de recojo de desechos por horario

• Colocar estratégicamente de basureros en las calles que conforman el sector.

• Incorporar el mobiliario urbano necesario para mantener el orden y limpieza dentro del sector

INTERVENCION

• Se creó 1 parque acuático en el sector Victor Raúl haya de la Torre

• Se generó un total de 3.32 km de corredor verde y ciclovía

Se implementó

• Un total de 0.715 km de alameda en la Av. Grau

• 0.57 km de corredor verde en la Av. Colectora Se asfaltaron 2 vías, la Av. Colectora y la prolongación Chinchaysuyo

Se creó 10 estacionamientos para bicicleta y 8 paraderos para transporte publico. Se implementó 01 ciclovia en la av. Colectora. Tambien se implementó 4 corredores peatonales en las 4 vías principales.

Se estableció:

centros de Ocio

centros comunales de apoyo al ciudadano

Se

1 Centro cultural
5
2
2 Establecimientos educativos,
1 centro empresarial • 1 Establecimiento de salud
INTERVENCION
implementó • 01 biohuerto • 13 contenedores de basura alrededor del área de estudio • 01 planta para el procesamiento de residuos solidos

A. REGENERACION URBANA DEL PJ. VICTOR RAUL HAYA DE LA TORRE

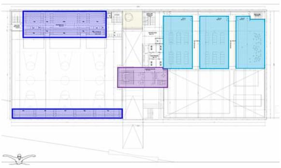
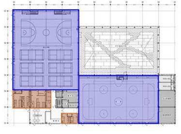
PROGRAMAS PROYECTOS

PROGRAMA DE ACTIVACIÓN DE ÁREAS VERDES

PROYECTOS:

• Reajuste de suelos del PJ Víctor Raúl Haya de la Torre

• Creación de parque acuático Víctor Raúl Haya de la Torre

PROGRAMA DE INTEGRACIÓN URBANA

PROYECTOS:

• Creación de circuito de ciclovías que integre toda la zona de estudio

• Corredores verdes

PROGRAMA RENOVACIÓN ESPACIO PÚBLICO

PROYECTOS :

• Diseñar espacios pasajes de transición

• Proyectar alameda Grau

• Implementar Corredor en todo el tramo que implica el sector

• Regeneración urbana la Av. Chinchaysuyo avenidas Colectora

PROGRAMA

PUBLICA

PROYECTOS :

• Diseño de mobiliario para que se implementen sector, y complementar espacios públicos.

• Iluminación íntegra estudio a través de luces que permitan en horas de la noche.

EJES ESTRATEGICOS
B.
3.PROGRAMA
4.
1. PROGRAMA DE ACTIVACIÓN DE ÁREAS VERDES 2.PROGRAMA DE INTEGRACIÓN URBANA
IMAGEN
RENOVACIÓN ESPACIO PÚBLICO
PROGRAMA PUBLICA

DE EQUITACIÓN

RENOVACIÓN DEL PÚBLICO

C. GESTION E IMPULSO DE MOVILIDAD URBANA

5. PROGRAMA DE GENERACIÓN Y RECUPERACIÓN DE INFRAESTRUCTURA PARA EL PEATÓN

6. PROGRAMA DE SISTEMA DE MOVILIDAD SUSTENTABLE Y ACCESIBLE URBANA VIAL

PROGRAMA DE GENERACIÓN Y RECUPERACIÓN DE INFRAESTRUCTURA PARA EL PEATÓN

PROYECTOS :

• Creación y mejora de corredores peatonales

• Recuperación de paraderos

• Creación y ampliación de infraestructura peatonal

DE EQUITACIÓN PUBLICA

espacios públicos como transición e integración. alameda en toda la Av. Corredor verde activo de Av Colectora sector de estudio. urbana del tramo de Chinchaysuyo entre las Colectora y Grau mobiliario urbano adecuado implementen en todo el complementar el uso de los públicos.

íntegra de todo el sector de de postes y juego de permitan el uso de los espacios noche.

PROGRAMA DE SISTEMA DE MOVILIDAD SUSTENTABLE Y ACCESIBLE URBANA VIAL

PROYECTOS :

• Ampliación de circuito de ciclo vías en el tramo de la Av. Chinchaysuyo entre las avenidas Colectora y Grau

• Implementación de circuito de ciclovías en las avenidas Grau, Unión, Los incas y Colectora

EJES ESTRATEGICOS
URBANA
IMAGEN
RENOVACIÓN DEL
EJES ESTRATEGICOS
PROYECTOS
DESARROLLO SOCIAL, CULTURAL Y ECONOMICA Y APOYO AL CIUDADANO 7.PROGRAMA DE NUEVOS ESPACIOS PÚBLICOS CULTURALES 8.PROGRAMA DE ESPACIOS DE OCIO Y RECREACION 9.PROGRAMA DE IMPLEMENTACIÓN ARQUITECTÓNICA ECONÓMICA 10.PROGRAMA DE IMPLEMENTACIÓN ESTRUCTURAL DE APOYO AL CIUDADANO 11.PROGRAMA DE IMPLEMENTACIÓN DE EQUIPAMIENTOS URBANOS PROGRAMA DE NUEVOS ESPACIOS PÚBLICOS CULTURALES
Centro de integración cultural
• Escuela de bellas artes
Bowling
Strep center • Complejo gastronómico
Centro
Inspark
ARQUITECTÓNICA
Centro Empresarial • Estación intermodal • Clínica oncológica tipo II-E
IMPLEMENTACIÓN
APOYO
PROGRAMAS
D.
PROYECTOS: •
y turística
PROGRAMA DE ESPACIOS DE OCIO Y RECREACIÓN PROYECTOS: •
de recreación para adulto mayor •
realidad virtual PROGRAMA DE IMPLEMENTACIÓN
ECONÓMICA PROYECTOS: •
PROGRAMA DE
ESTRUCTURAL DE
AL CIUDADANO
Local
Centro
IMPLEMENTACIÓN
EQUIPAMIENTOS
Colegio tecnológico-politécnico
Mercado interdistrital
Parque zonal
PROYECTOS: •
comunal •
comunitario y asesoría al ciudadano PROGRAMA DE
DE
URBANOS PROYECTOS: •
EJES ESTRATEGICOS
E. MEDIOAMBIENTAL 12. PROGRAMA DE HUMANIZACIÓN DE PARQUES 13. PROGRAMA DE NUEVOS ESPACIOS ECOLÓGICOS 14. PROGRAMA DE LIMPIEZA
Corredor
Creación
PROGRAMA DE HUMANIZACION DE PARQUES PROYECTOS: • Espacios verdes PROGRAMA DE NUEVOS ESPACIOS ECOLÓGICOS PROYECTOS: •
ecológico •
de un biohuerto • Planta de procesamiento de residuos solidos
urbanos
Implementación
PROGRAMA DE LIMPIEZA PROYECTOS: •
de puntos de acopio para basura

ESTRATEGICOS

EJE ESTRATEGICO A: REGENERACION URBANA DEL P.J VICTOR RAUL HAYA DE LA TORRE

Este eje estratégico mediante el reajuste de suelos pretende realizar una inmobiliaria, mejorando la dotación de infraestructura, implementando equipamientos parques u otros equipamientos, en el mejoramiento e integración de vías a través de ciclovías

EJES

regeneración urbana, como una forma de integración urbanos como transporte, escuelas, centros de salud, hospitales, ciclovías y corredores verdes.

EJES ESTRATEGICOS

EJE

ESTRATEGICO

B: IMAGEN URBANA

En este eje se plantea estratégicamente generar espacios públicos como también la corredores, proyección de alamedas, y lugares que puedan ser puntos de interacción las personas a salir y caminar, sintiéndose seguras.

CORREDOR VERDE EN TRAMO DE AV. CHINCHAYSUYO

la intervención parte desde la avenida Grau hasta la avenida colectora, y se centra específicamente en recuperar esa avenida, hoy en día muy en el olvido, lleno de basura, que solo genera inseguridad y contamina toda esa zona tomando en cuenta la sequia existente.

El límite por la avenida colectora hoy en día está sin asfaltar por lo que se propone continuar el circuito de corredor verde, instaurando alamedas lineales como el del paseo Yortuque, espacios públicos que acompañen la circulación peatonal por esa zona y mejor la calidad de vida urbana

EJES ESTRATEGICOS
CORREDOR VERDE EN AV. COLECTORA

implementación de social, que inviten a

ALGARROBO

ALTURA: 8metros DIÀMETRO DE FUSTE: 8cm COPA: Semiesfèrica frondosa diàmetro de 15 RAMAS: Retorcida, algunas llegan al suelo.

RAÌCES: Raìses laterales de 60cm a una profundidad de 15 - 25cm.

FOLLAJE: Perenne.

EJES ESTRATEGICOS

MOLLE

ALTURA: 10 - 12metros, hasta 25m. DIÀMETRO DE FUSTE: 8cm 2m. (fuste bifurcado)

COPA: Tipo pendular diàmetro de 6 - 10m.

RAMAS: Casi erectas, ramif. irregular RAÌCES: Flotantes o rastreras. Sistema radical y extendido. FOLLAJE: Perenne.

ALTURA: 6 - 9 metros. DIÀMETRO DE FUSTE: 25CM. COPA: Extendida RAMAS: Ramas fructificadas. RAÌCES: Raíses primarias y secundarias gruesas y lignificadas. Relativamente superficial.

SUELO-CLIMA: Fértiles, bien drenados, cálidos, sin heladas.

EJES ESTRATEGICOS

EJE ESTRATEGICO C: GESTION E IMPULSO DE MOVILIDAD URBANA

En una época de cambio climático, de aumento del precio de la energía y de otros movemos. Hoy en día, la mayoría de nosotros vivimos en ciudades y nos desplazamos en tema del calentamiento a nivel mundial, debemos cambiar nuestros hábitos. Este lineamiento serie de cuestiones que se inscriben en los ámbitos del transporte, el medio ambiente, el el modo de establecer objetivos claros para reducir la contaminación del tráfico, la congestión,

La propuesta de ciclovías comprende las avenidas de primer orden y de segundo orden, ya que son las que conectan con todo el sector. Los anchos de ciclovías serán de 3m, 2m y 1.5m dependiendo las vías por donde se ubicaran

En la Av. Colectora se propone las ciclovías en cada lado de los sentidos viales, respetando el diseño de jardín central que viene realizándose tramo por tramo en su construcción.

otros problemas, necesitamos nuevas perspectivas de cómo vivimos y de cómo nos en coche; sin embargo, somos cada vez más conscientes de que, si queremos tratar el lineamiento trata de lo que llamamos movilidad urbana. La movilidad urbana engloba una el desarrollo social y económico, el urbanismo, el empleo y la vivienda, y se centra en congestión, los ruidos y los accidentes de tráfico urbano.

PARADEROS FORMALES

Se tomaron en cuenta 8 paraderos públicos, distribuidos conforme a la ubicación de los iconos sobre el mapa

La zona como zona de mayor intervención vial, se a proyectado una intervención total con una unas longitud de vías intervenidas

ESTACIONAMIENTO DE CICLOVIAS

Como parte de la prop ciclovías, también se proponen estacionamientos para el uso de las bicicletas, es imprescindible proporcionar espacios adecuados para que las bicicletas puedan estar estacionadas en ciertos puntos del recorrido.

EJES ESTRATEGICOS

ESTRATEGICOS

EJE ESTRATEGICO D: DESARROLLO SOCIAL, CULTURAL, ECONOMICA Y APOYO AL CIUDADANO

Estas propuestas tienen la característica de proveer múltiples funciones y nuevos usos servicios con la finalidad de consolidar una estructura urbana mas compacta, además comunitario a escala zonal y local. Estos nuevos espacios públicos potencian la actividad consolidar un mayor sentido de participación e interacción social con el lugar.

PARQUE BIBLIOTECA

AREA DE TERRENO: 8400 m2

DIRECCION: Av. Chinchaysuyo

La propuesta tratara de cambiar en su totalidad la imagen urbana que hoy en día tiene el PJ Víctor Raúl, proporcionando zonas de áreas verdes y un espacio de recreación publica y dialéctica, generando vida urbana que en la actualidad no existe.

PARQUE ZONAL

AREA DE TERRENO: 6 5 HA

DIRECCION: Av. Grau

La propuesta tratara de cambiar en su totalidad la imagen urbana que hoy en día tiene el PJ Víctor Raúl, proporcionando zonas de áreas verdes y un espacio de recreación publica y dialéctica, generando vida urbana que en la actualidad no existe.

ESTACION INTERMODAL

AREA DE TERRENO: 5 400 m2

DIRECCION: Av. Grau

CENTRO EMPRESARIAL

AREA DE TERRENO: 4 000 m2

DIRECCION: Calle Orfebres 125

Cuenta con dos frentes principales, tiene directo hacia las Av. Chinchaysuyo ubicada al lado de una residencial de 5 pisos

Ubicada en la 5ta avenida de la Av. Grau, una amplia avenida que permitirá el alto flujo del transporte fuera de la estación.

COLEGIO TECNOLOGICO POLITECNICO

AREA DE TERRENO: 4 000 m2

DIRECCION: Calle Orfebres 130 NIVEL: Primaria/Secundaria TURNO: Mañana/Tarde

Cuenta con un frente principal y esta ubicado frente a un edificio residencial de 5 pisos y tiene salida directa hacia la Av Chinchaysuyo

LEYENDA

EJES
RECREACION SALUD OTROS USOS
COMERCIO SALUD

a los espacios propuestos que poseen diferente presentación de se configura una red interconectada de áreas y espacios de uso actividad cultural, recreativa y de ejercicio, con la finalidad de

CENTRO CULTURAL

AREA DE TERRENO: 4 600 m2

tiene acceso y estará pisos.

DIRECCION: Ama Llulla 130 Cuenta con un frente principal, se pretende cambiar la imagen de la zona y generar concurrencia popular, porque en la actualidad es una zona que esta en buen estado pero no hay demasiado flujo peatonal

STREP CENTER

AREA DE TERRENO: 3 000 m2

DIRECCION: Encuentro entre Av. Los Incas y Coricancha

Cuenta con todas las visuales posibles,. Se eligió la ubicación por la misma demanda del proyecto ya que por su tipología se ubican en su mayoría en esquinas, para poder ser vistas y genere el movimiento peatonal necesaria

CLINICA ONCOLOGICA

AREA DE TERRENO: 2 400 m2

DIRECCION: Encuentro entre Calle Coricancha y Yahuarhuaca Ubicada en la esquina por lo que todo tiene visuales, tiene salida directa hacia la Av. Chinchaysuyo a través de la Av. Yahuarhuaca o hacia Av. Los Incas por la calle Coricancha

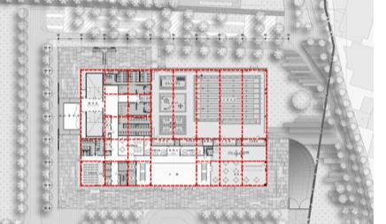
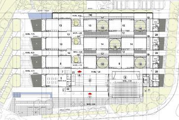
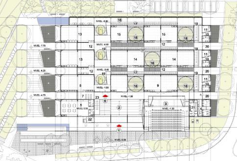
AREA TOTAL: 715769.24 m2

AREA DE INTERVENCION: 109845.35 m2

EQUIPAMIENTOS

Estos proyectos propuestos se dinamizan entre si, con los proyectos de mayor importancia en el sector, de tal manera que se forma una cadena que permite la integración de estos proyectos Se intervendrá el conjunto de calles sin tratamiento alguno con la finalidad de darles el tratamiento correspondiente mediante su asfaltado, mobiliario urbano y áreas verdes, etc.

EJES ESTRATEGICOS
intervencion

EJES ESTRATEGICOS

EJE ESTRATEGICO E: MEDIOAMBIENTAL

Los ciudadanos como protagonistas son los principales gestores del desarrollo progresivo su apoyo concientizado en el ámbito de la mitigación de contaminantes ambientales desarrollo de la seguridad ciudadana.

CENTOS DE ACOPIO DE RECICLAJE

El pueblo joven de Víctor Raúl se caracterizaba principalmente por ser una de las zonas más contaminadas por el exceso de basura en la calles y el olvido de sus autoridades, necesitando esta de una tratamiento especial, no sólo se necesitada de pistas asfaltadas o jardines, sino de que se establezca una cultura diferente de vida, por lo que se propone instalar zonas de acopio en este sector y a su vez, crear charlas comunitarias encargadas por la municipalidad, para que se puedan instruir los mismos pobladores sobre como usar estos centros de acopio y como revertir poco a poco su situación.

Parte de la propuesta consiste en equipar con mobiliario urbano los espacios públicos que se diseñen estos mobiliarios pueden ser fabricados también con el mismo material reciclado, aportando una estética moderna y elegante.

Basura en la casa Contenedor selectivo

EJES ESTRATEGICOS

Creación de biohuertos, corredores ecológicos e implementar programas de limpieza como participación en comunidad.

A su vez estas estrategias estarán acompañadas de otras intervenciones como un diseño de estos espacios públicos con la presencia de amplias aceras y espacios en la vía, que interconecten a parques, plazas, escuelas y a otros espacios públicos importantes.

Camión reciclador Centro de acopio Mobiliario urbano

MASTER PLAN
MASTER PLAN
MASTER PLAN
MASTER PLAN
°

CENTRO EMPRESARIAL

Es un área de terreno donde varios edificios de oficinas están agrupados. El trabajo que se realiza es de carácter comercial-administrativo, no industrial ni residencial. A menudo están situadas en los puntos más accesibles de la red vial metropolitana.

El objetivo es facilitar la puesta en marcha de una actividad empresarial, para ello ofrecen infraestructura y servicios adecuados a las necesidades de los negocios emergentes, servicios operativos y profesionales, con instalaciones amuebladas listas para laborar.

N O R M A T

ART. 6 ART. 7 ART. 8

CAPITULO II CONDICIONES DE HABITABILIDAD Y FUNCIONALIDAD

El número de ocupantes de una edificación de oficinas se calculará a razón de una persona cada 9.5 m2.

La altura libre mínima de piso terminado a cielo raso en las edificaciones de oficinas será de 2 40 m

Los proyectos de edificios corporativos o de oficinas independientes con mas de 5,000 m2 de área útil deberán contar con una solución que resuelva el acceso y salida de vehículos

Norma A.080 OFICINAS

CAPITULO III CARACTERISTICAS DE LOS COMPONENTES

ART.

Las edificaciones para oficinas, independientemente de sus dimensiones deberán cumplir con la norma A.120 «Accesibilidad para personas con discapacidad»

Los anchos mínimos de los vanos en que se instalarán puertas serán:

Ingreso Principal 1.00 m Dependencias interiores 0.90 m Servicios Higiénicos 0.80 m

Las escaleras estarán aisladas del recinto desde el cual se accede mediante una puerta a prueba de fuego, con sistema de apertura a presión (barra antipánico)

COMERCIAL FINANCIERA
D
D
I V I
A
COMERCIAL FINANCIERA
1L, 1u, 1i 1L, 1i 2L, 2u, 2i 2L, 2i 3L, 3u, 3i 3L, 3i 1L, 1u, 1i 1L, 1i 1L, 1u, 1i
L= lavatorio U= urinario i=
De 1 a 6 empleados De 7 a 20 empleados De 21 a 60 empleados De 61 a 150 empleados Por cada 60 empleados adicionales Las edificaciones para oficinas, estarán provistas de servicios sanitarios para empleados, según lo que se establece a continuación: ART. 15 CAPITULO IV DOTACIÓN DE SERVICIOS
Hombres Mujeres Mixto
inodoro

EDIFICIO PITÁGORAS

COMERCIAL FINANCIERA
COMERCIAL FINANCIERA
COMERCIAL FINANCIERA
COMERCIAL FINANCIERA
COMERCIAL FINANCIERA
KRONOS
COMERCIAL FINANCIERA
COMERCIAL FINANCIERA
COMERCIAL FINANCIERA
COMERCIAL FINANCIERA
COMERCIAL FINANCIERA

STREP CENTER

Los Strip Centers o Strips Malls son uno de los tipos de desarrollo comerciales más populares en la actualidad. Esta propuesta de centro comercial apuesta por colocar las tiendas dispuestas en una fila con una acera al aire libre. Por supuesto, se dota con un amplio estacionamiento al frente. Este concepto propone la experiencia de compra rápida, donde los caminos para llegar a las tiendas se utilizan solo para transitar y no como un punto de encuentro Todas las tiendas, locales o negocios en un Strip Center deben encontrarse a la vista y con un fácil acceso, lo que las hace más llamativas y evita las distracciones del usuario.

COMERCIAL FINANCIERA
N O R M A T I V I D A D
A070 COMERCIO CAPITULO II CONDICIONES DE HABITABILIDAD Y FUNCIONALIDAD NUMERO DE OCUPANTES ANCHO MINIMO DE LOS PASAJES DE CIRCULACION
NORMA
COMERCIAL FINANCIERA
75
de servicios
establecido
CAPITULO
SERVICIOS 1L, 1u, 1i 1L, 1i 2L, 2u, 2i 2L, 2i 3L, 3u, 3i 3L, 3i 1L, 1u, 1i 1L, 1i 1L, 1u, 1i
Mujeres L= lavatorio U= urinario i= inodoro
De 1 a 6 empleados De 7 a 25 empleados De 26 a
empleados De 76 a 200 empleados Por cada 100 empleados adicionales Las edificaciones para tiendas comerciales estarán provistas
sanitarios para empleados, según lo
a continuación: ART. 15
IV DOTACIÓN DE
Hombres

DATOS

LOCALIZACION

La fachada superior trama que proyecta sombra en su transcurso del día los arboles , los noche , con una ventilada cubre edificio de oficinas poniente. Las segundo y tercer solo hacia el norte hacia el buen hacia los jardines cordillera.

COMERCIAL FINANCIERA
VIAL
ARQUITECTOS
GENERALES FICHA TECNICA NOMBRE STRIP CENTER TIPO COMERCIAL UBICACION SANTIAGO DE CHILE DIRECCION EL RODEO, BARNECHEA, REGION METROPOLITANA CHILE AÑO DE CONSTRUCCION 2008 PROMOTOR
AG
STREP CENTER: EL RODEO

En una de las esquinas de mayor visibilidad y flujo vehicular de La Dehesa se nos encargó este proyecto de un centro comercial. La Dehesa es un vecindario en cambio permanente adaptándose a nuevos usos donde el comercio y servicios son la demanda actual

Se propuso un edificio con una volumetría fuerte y contemporánea donde la unidad no se perdiera en una multiplicidad de locales y el abuso de la señalética que hoy se acostumbra.

superior es una proyecta cual levedad el día , la luz entre colores dela una doble piel y protege el oficinas del sol oficinas del piso se abren norte y oriente sol y la vista jardines y la

COMERCIAL FINANCIERA

PLANIMETRIA

GALERIAS COMERCIALES

La fachada acristalada del primer nivel es la piel que cubre los locales, todo elemento comercial o letrero debe de ubicarse tras esta fachada manteniendo la unidad, se quiere controlar el impacto que en la arquitectura tiene la voluntad contumaz de la promoción comercial

La fachada superior es una trama que proyecta cual sombra en su levedad el transcurso del día , la luz entre los arboles , los colores dela noche , con una doble piel ventilada cubre y protege el edificio de oficinas del sol poniente. Las oficinas del segundo y tercer piso se abren solo hacia el norte y oriente hacia el buen sol y la vista hacia los jardines y la cordillera.

COMERCIAL FINANCIERA STREP CENTER: EL POLO DATOS GENERALES FICHA TECNICA NOMBRE STRIP CENTER EL POLO TIPO COMERCIAL UBICACION DIST. SANTIAGO DE SURCO- PERU DIRECCION AV EL POLO AÑO DE CONSTRUCCION 2005 PROMOTOR VIAL AG ARQUITECTOS AUTORES VERTICE ARQUITECTOS FILIACION CULTURAL CONTEMPORANEA AREA CONSTRUIDA 1700 M2 CAPACIDAD LOCALIZACION

CONTEXTO

Ubicado perpendicular en la av. el polo con un alto flujo vehicular. Funciona como un complemento del centro comercial el polo y rodeado de bancos, clínicas, centros educativos y de extensas áreas verdes

COMERCIAL FINANCIERA

STREP CENTER: EL POLO

ESPACIALIDAD

COMERCIAL FINANCIERA
Concepto de integridad, trasparencia y fluidez
Edificio de tres bloques superpuestos pero con diferentes usos

PLANTAS

CORTE ARQUITECTONICO

Edificio comercial que incluye un restaurante italiano que es punto de anclaje para las demás tiendas

ELEVACION

Una arquitectura contemporánea sin mucho detalle arquitectónico como elementos rectos y voluminosos en forma de u como atracción para el usuario

INTERIOR

Uso de concreto en diferentes tonos, vidrio y madera a manera de cerramientos

FACHADA

Concreto liso, elementos electrónicos para iluminación de noche

COMERCIAL FINANCIERA
1 2
3
4 5
6 restaurante 7
8
ARQUITECTONICAS Agencia bancaria
Sala de reuniones
Área verde Acceso peatonal
Tienda de ropa
cocina Restaurante comida rápida

FICHA TECNICA – STREP CENTER EL RODEO

DATOS ESPECIFICOS

Localización: SANTIAGO DE SURCO, LIMA, PERU

Tipología: Comercio Finalización: 2005

Superficie construida: 1 700m2

Autor: Vértice Arquitectos

Edificio comercial que incluye un restaurante italiano que es punto de anclaje para las demás tiendas Una arquitectura contemporánea sin mucho detalle arquitectónico como elementos rectos y voluminosos en forma de u como atracción para el usuario INTERIOR Uso de concreto en diferentes tonos, vidrio y madera a manera de cerramientos

Agencia bancaria

Sala de reuniones

Área verde Acceso peatonal

Tienda de ropa

cocina Restaurante comida rápida

COMERCIAL FINANCIERA
3
4 5
6
7
8
1 2
restaurante

DATOS ESPECIFICOS

Localización: SANTIAGO DE CHILE, CHILE Tipología: Comercio Finalización: 2008 Superficie construida: 6 476m2 Autor: Carlos Vial Ercilla

Se maximizo comerciales además niveles superiores subterráneo Como características normativas a ser definición arquitectónico Se propuso volumetría donde la una multiplicidad abuso de acostumbra

SEGUNDO
ZONA
COMERCIO COMERCIAL FINANCIERA
SOTANO
NIVEL TERCER NIVEL
DE SERVICIOS

TIPOLOGÍA SALUD: Normativa

SALUD

TIPOLOGÍA SALUD: Normativa

SALUD

HOSPITAL DE MOLLET

SALUD
SALUD
SALUD
SALUD

HOSPITAL REUS

SALUD
SALUD
SALUD
SALUD
SALUD
SALUD

N O R M A T I V I D A D

CENTRO CULTURAL

Es el espacio que permite participar de actividades culturales. Estos centros tienen el objetivo de promover la cultura entre los habitantes de una comunidad.

La estructura de un centro cultural puede variar según el caso. Los centros más grandes tienen auditorios con escenarios, bibliotecas, salas de computación y otros espacios, con la infraestructura necesaria para dictar talleres o cursos y ofrecer conciertos, obras de teatro, proyección de películas, etc.

NORMA A090 SERVICIOS COMUNALES

CAPITULO II CONDICIONES DE HABITABILIDAD Y FUNCIONALIDAD

ART. 7

. - El ancho y número de escaleras será calculado en función del número de ocupantes. Las edificaciones de tres pisos o mas y con plantas superiores a los 500.00 m2 deberán contar con una escalera de emergencia adicional a la escalera de uso general ubicada de manera que permita una salida de evacuación alternativa. Las edificaciones de cuatro o más pisos deberán contar con ascensores de pasajeros

ART. 11

El cálculo de las salidas de emergencia, pasajes de circulación de personas, ascensores y ancho y número de escaleras se hará según la siguiente tabla de ocupación:

Ambientes para oficinas administrativas

10.0 m2 por persona Asilos y orfanatos 6 0 m2 por persona Ambientes de reunión 1.0 m2 por persona Área de espectadores de pie 0,25 m2 por persona Recintos para culto 1.0 m2 por persona Salas de exposición 3 0 m2 por persona Bibliotecas. Área de libros 10.0 m2 por persona Bibliotecas. Salas de lectura 4.5 m2 por persona Estacionamientos de uso general 16,0 m2 por persona

CULTURAL

ART. 9

CAPITULO IV DOTACIÓN DE SERVICIOS

Número de empleados Hombres Mujeres De 1 a 6 empleados

1L, 1 u, 1I De 7 a 25 empleados

1L, 1u, 1I 1L,1I De 26 a 75 empleados 2L, 2u, 2I 2L, 2I De 76 a 200 empleados 3L, 3u, 3I 3L, 3I Por cada 100 empleados adicionales

1L, 1u, 1I 1L,1I

CULTURAL
CULTURAL
CENTRO CULTURAL: GABRIELA MISTRAL
FICHA TÉCNICA NOMBRE: Gabriela Mistral TIPO: complejo cultural UBICACIÓN: Santiago de chile - chile
CONSTRUIDA:
usuarios: *orientado para público dividiéndose este en *usuario frecuente biblioteca ,
ambientes. *usuario
(cafetería,
auditorio, etc
DIRECCIÓN: Av. Libertador Bernardo O'Higgins 227, barrio lastarria, Santiago, Santiago metropolitana región, Chile AÑO DE CONSTRUCCIÓN: 2008 PROMOTOR: Gobierno de Salvador Allende AUTORES: José copacetic, Hugo Gaggero, José medina, Juan Echenique y Sergio González Espinoza FILIACIÓN CULTURAL: contemporánea ÁREA
541000m2
hemeroteca
esporádico
salas

CONCEPTO

El GAM destaca la transparencia y organización que proyecta la vida interior del edificio hacia el exterior fundiéndose con su entorno

se conecta con la ciudad pero a la vez es capaz de acoger realidades autónomas para la creación y el silencio

El edificio se abre hacia el barrio cultural y articula nuevos espacios públicos

público en general, en: frecuente: asistente a hemeroteca y diferentes esporádico: zona pública de exposición y

CULTURAL
IMAGEN URBANA Áreas verdes que rodean el C.C Actúa como nodo Espacios públicos Transparencia y organización volumétrica Flujos peatonales

1

2

TRES VOLUMENES QUE SE UNEN A TRAVEZ DE UN SUBTERRANEO Y CONFORMAN UN SOLO EDIFICIO

CENTRO CULTURAL: GABRIELA MISTRAL 1 2 3

EDIFICIO 1 EDIFICIO 2 EDIFICIO 3

Museo de arte popular, salón de exposiciones, sala de convenciones y 6 salas de ensayo

Biblioteca de las artes y 2 salas con capacidad para 300 espectadores

El Edificio original se diseño y construyo en tiempo record. Como estrategia, los arquitectos concibieron una gran cubierta, de dimensiones monumentales para posteriormente ir instalando bajo ella los recintos que el programa iba definiendo durante la construcción de la obra. Desde un inicio el impacto urbano fue profundo, ya que se instalaba un enorme edificio de proporciones horizontales que por un lado prácticamente se posaba sobre la acera de la avenida principal

Sala de audiencia para 2000 pers.

CULTURAL
1 2 3 3 2 1

ZONIFICACION GENERAL

Horizontalmente se organiza en base a 3 volúmenes que contienen las 3 principales áreas del programa

1

2 3 4 5

6 Biblioteca

PROGRAMA

CULTURAL
NUEVAS PLAZAS Paseo lastaría Plaza el Biograto Plaza el parque forestal Plaza memorial incendio Plaza alameda Paseo Universidad Católica de las artes Centro de artes escénicas y música Centro de artes visuales Centro de debate y encuentro
Biblioteca Sala de teatro Sala de danza Cafetería y restaurante oficinas estacionamientos auditorio salas
 Biblioteca  Sala de artes escénicas y música(salas
y
exposición)  Sala
A B C D E
PROGRAMA Y ORGANIZACION
de ensayo, museos
salas de
de audiencias ( 2000 personas)

CENTRO CULTURAL:

FICHA TECNICA

ENTORNO

Emplazado edificaciones Cuenta con acceso principal diferentes por los cuales puede llegar lugar

CULTURAL
NOMBRE TIPO UBICACION DIRECCION AÑO DE CONSTRUCCION PROMOTOR AUTORES FILIACION CULTURAL

PLANTA 1

PLANTA SOTANO

PLANTA 2

PLANTA 3

CIRCULACION:

PLANTA 4

Funcionalmente el centro cultural esta distribuido en relación al tipo de usuario visitante: los espacios de mayor flujo de actividad se encuentran en los primeros niveles (auditorio, sala de exposiciones, librería, cafetería) están en el ultimo nivel y los dedicados a oficinas ocupan una posición intermedia

CIRCULACION VERTICAL RECORRIDOS
VISITANTES RECORRIDOS DE SERVICIO ACCESO PEATONAL SALA DE EXPOSICION TEMPORAL HALL SS.HH ADMINISTRACION DEPOSITOS AUDITORIO SERVICIO DE AUDITORIO HEMEROTECA BIBLIOTECA CAFETERIA
DE

Planta asimétrica, compuesta por un solo volumen, en lote medianero

En composición de la fachada se aprecia juego volumétrico para marcar la entrada a los usuarios

ESPACIO CENTRAL ORGANIZADOR

ESTRUCTURA

El proyecto se trabajo con concreto y ladrillo siendo estos el material primordial. Se uso el sistema constructivo convencional, columnas y vigas para la estructura del centro cultural, además también se usaron para reforzar la resistencia de la estructura

CULTURAL
Se caracteriza por sus espacios a doble altura y el pórtico en la fachada que marca el ingreso a los visitantes, para darle mas imponencia al espacio.

FICHA TECNICA – CENTRO CULTURAL GABRIELA MISTRAL

DATOS ESPECIFICOS

Localización: SANTIAGO DE CHILE, CHILE

Tipología: Cultural Finalización: 2008

Superficie construida: 54100m2

Autor: José copacetic, Hugo Gaggero, José medina, Juan Echenique y Sergio González Espinoza

Se conecta con la ciudad pero a la vez es capaz de acoger realidades autónomas para la creación y el silencio

El Edificio original se diseño y construyo en tiempo record. Como estrategia, los arquitectos concibieron una gran cubierta, de dimensiones monumentales para posteriormente ir instalando bajo ella los recintos que el programa iba definiendo durante la construcción de la obra Desde un inicio el impacto urbano fue profundo, ya que se instalaba un enorme edificio de proporciones horizontales que por un lado prácticamente se posaba sobre la acera de la avenida principal.

PROGRAMA CULTURAL

Centro de debate y encuentro

Biblioteca de las artes

Centro de artes visuales

Biblioteca

Centro de artes escénicas y música

 Sala de audiencias ( 2000 personas)

Sala de artes escénicas y música(salas de ensayo, museos y salas de exposición)

PROGRAMA Y ORGANIZACION Biblioteca Sala de teatro Sala de danza Cafetería y restaurante

oficinas estacionamientos 
auditorio 
salas

FICHA TECNICA – CENTRO CULTURAL RICARDO PALMA

DATOS ESPECIFICOS

Localización: MIRAFLORES, LIMA, PERU

Tipología: Cultural Finalización: 1994

Superficie construida: 2 700m2

Autor: JUAN CARLOS DOBLADO

Presenta un solo ingreso a través de un hall receptivo

Presenta un hall central que concentra que concentra la circulación vertical, dos escaleras y ascensores

La circulación de servicios se encuentra dispersa en donde es necesario su transito como en el auditorio Característica importante es la conexión que existe en todo los pisos gracias a este espacio central abierto hasta el techo donde hay una teatina mismo que sirve para iluminar de forma natural a gran parte del proyecto

SALA DE EXPOSICION TEMPORAL HALL SS.HH ADMINISTRACION DEPOSITOS AUDITORIO SERVICIO DE AUDITORIO HEMEROTECA BIBLIOTECA CAFETERIA

ESPACIO CENTRAL ORGANIZADOR

CULTURAL
PLANTA 1 PLANTA SOTANO PLANTA 2 PLANTA 3
PLANTA 4

PARQUE BIBLIOTECA LEÓN DE GRIEFF

ARQUITECTO: GIANCARLO MAZZANTI AREA:6800M2 AÑO: 2007

INGENIERO: SERGIO TOBÓN CIUDAD: MEDELLIN, COLOMBIA

CONCEPTUALIZACIÓN

El relieve y los espacios fluyen en horizontal, destacando una sucesión de volúmenes, que surgen del cerro como miradores, hacia el centro de la urbe, que contiene una serie de terrazas que se las utiliza como miradores; a la edificación la sostienen 3 módulos plataforma

ANALISIS FUNCIONAL

CULTURAL

Sistema conformado por 3 módulos contenedores rotados (cuadrados) que giran adaptándose a la topografía y las vistas uno curvo que los une y relaciona entre si; y que además permite otros usos. Es un paisaje que le da continuidad a la geografía urbana a través de los senderos y la construcción de espacio publico en la cubierta.

CULTURAL
1. ACCESO 2. SALA DE COMPUTO 3. ESTAR 4. SERVICIOS 5. GYM 6. SALA DE REUNIONES 7. LOCAL 8. LUDOTECA 9. BIBLIOTECA 10. PATIO 11. CIRCULACION 12. AUDITORIO 13. AULAS MULTIPLES 14. CAFETERÍA 15. PISO TECNICO 16. TALLERES SUBSUELO PRIMERA PLANTA ALTA 1. ACCESO 2. SALA DE COMPUTO 3. ESTAR 4. SERVICIOS 5. GYM 6. SALA DE REUNIONES 7. LOCAL 8. LUDOTECA 9. BIBLIOTECA 10 PATIO 11. CIRCULACION 12. AUDITORIO 13 AULA MULTIPLES 14. CAFETERÍA 15. PISO TECNICO 16. TALLERES CULTURAL ZONIFICACION PARQUE BIBLIOTECA
PARQUE BIBLIOTECA
Circulación h. de publico Circulación h. Artistas Circulación h. de servicio. Circulación vertical LEYENDA INGRESO PRINCIPAL INGRESO SECUNDARIO PROGRAMA PARQUE BIBLIOTECA CULTURAL
CIRCULACIÓN
LEYENDA

PARQUE BIBLIOTECA SAN JAVIER

Arquitecto: Javier Vera

Localización: Comuna San Javier, AREAS:

Área del lote: 15 500m2

Área construida: 5.600m2

Fecha del proyecto: JunioDiciembre 2005

Fecha finalizada: Marzo 2008

IMPLANTACIÓN

El reto de este Parque Biblioteca, localizado frente a la cárcel de mujeres ha sido el de fortalecer el componente cultural, educativo, y de transformación de hábitos de vida, pero su labor ha tenido un débil impacto debido a la situación de violencia que afecta constantemente a la comunidad.

VAGONES ESCALINADOS

ILUMINACION NATURAL CULTURAL

PUENTES

NORMATIVIDAD a.0.90 SE SERVICIOS COMUNALES

CAP.II-ART. 5

Deberán existir accesos separados para publico, personal, actores, deportistas.

El numero de ocupantes se determinara por la siguiente tabla:

La simplicidad de la arquitectura, su relación con el entorno y su esencia de “gran contenedor” inspiran en el edificio, un recorrido de cuatro piezas que continúan la huella de la topografía, unidas por circulaciones que se extienden (rampas) entre patios vinculando cada espacio con el terreno y el paisaje

Los accesos a las edificación para espectáculos deportivos serán distribuidos e identificables en forma clara , habiendo cuando menos uno por cada sector de tribuna.

El ancho mínimo de un pasaje de circulación de acceso a los asientos son de 1.20m

El ancho de los pasajes y de las bocas de salida serán múltiplos de .60m

ACONDICIONADOR TERMICO
CULTURAL
1. ACCESO PRINCIPAL 2. EL AGORA 3. AUDITORIO 4. BAÑOS AUDITORIO 5. SALON MI BARRIO 6. ACCESO BIBIOTECA 7. OBJETOS PERSONALES 8. CIRCULACION Y PESTAMO 9. AREA ADMINISTRATIVA 10. BAÑOS 11. DEPOSITO Y ASEO 12. SALAS DE LECTURA 13. SALAS MULTIMEDIA 14. SALAS INFANTIL 15. SALAS MULTIPLES 16. CORREDOR DE LECTURA 17. RAMPAS DE CONEXIÓN 18. VACIO HACIA PATIOS 19. ESCALERAS 20. SALIDAS DE EERGENCIA 21. CAMERINOS 22. ESCALERA SALON EXPOSICIONES 23. PORTENIA – CENTRO DE CONTROL PLANTA GENERAL ORGANIGRAMA ZONIFICACION Auditorio Talleres Agora CULTURAL

PROGRAMA ARQUITECTONICO

SECCIONES
Patio interior CULTURAL
Auditorio

FICHA

DATOS ESPECIFICOS

Localización: MEDELLIN, COLOMBIA

Tipología: Cultural Finalización: 2007

Superficie construida: 6 800m2

Autor: GIANCARLO MAZZANTI

El relieve y los espacios fluyen en horizontal, destacando una sucesión de volúmenes, que surgen del cerro como miradores, hacia el centro de la urbe, que contiene una serie de terrazas que se las utiliza como miradores; a la edificación la sostienen 3 módulos plataforma

Sistema conformado por 3 módulos contenedores rotados (cuadrados) que giran adaptándose a la topografía y las vistas uno curvo que los une y relaciona entre si; y que además permite otros usos.

TECNICA
BIBLIOTECA
– PARQUE
LEON DE GRIEFF CULTURAL
1. ACCESO 2. SALA DE COMPUTO 3. ESTAR 4. SERVICIOS 5. GYM 6. SALA DE REUNIONES 7. LOCAL 8. LUDOTECA PRIMERA PLANTA ALTA 9 BIBLIOTECA 10. PATIO 11 CIRCULACION 12. AUDITORIO 13. AULAS MULTIPLES 14 CAFETERÍA 15. PISO TECNICO 16 TALLERES 1. ACCESO 2. SALA DE COMPUTO 3. ESTAR 4. SERVICIOS 5. GYM 6. SALA DE REUNIONES 7 LOCAL 8 LUDOTECA 9. BIBLIOTECA 10 PATIO 11. CIRCULACION 12. AUDITORIO 13. AULA MULTIPLES 14 CAFETERÍA 15. PISO TECNICO 16. TALLERES

FICHA

DATOS ESPECIFICOS

Localización: MEDELLIN, COLOMBIA

Tipología: Cultural Finalización: 2005

Superficie construida: 5 600m2

Autor: JAVIER VERA

La simplicidad de la arquitectura, su relación con el entorno y su esencia de “gran contenedor” inspiran en el edificio, un recorrido de cuatro piezas que continúan la huella de la topografía, unidas por circulaciones que se extienden (rampas) entre patios vinculando cada espacio con el terreno y el paisaje

TECNICA – PARQUE BIBLIOTECA SAN JAVIER
CULTURAL 1. ACCESO PRINCIPAL 2. EL AGORA 3. AUDITORIO 4. BAÑOS AUDITORIO 5. SALON MI BARRIO 6. ACCESO BIBIOTECA 7. OBJETOS PERSONALES 8. CIRCULACION Y PESTAMO 9. AREA ADMINISTRATIVA 10. BAÑOS 11. DEPOSITO Y ASEO 12. SALAS DE LECTURA 13. SALAS MULTIMEDIA 14. SALAS INFANTIL 15. SALAS MULTIPLES 16. CORREDOR DE LECTURA 17. RAMPAS DE CONEXIÓN 18. VACIO HACIA PATIOS 19. ESCALERAS 20. SALIDAS DE EERGENCIA 21. CAMERINOS 22. ESCALERA SALON EXPOSICIONES 23. PORTENIA – CENTRO DE CONTROL PLANTA GENERAL
ZONIFICACION

ESCUELAS

Los colegios son establecimientos de alta complejidad de diseño para los arquitectos. Normalmente porque deben albergar una gran diversidad de programas y porque además, deben considerar áreas libres para juegos y actividades de esparcimiento Pero más allá de su tamaño o superficie, el desafío está en generar espacios educativos que afecten positivamente el escenario pedagógico de los niños

NORMA A040 EDUCACION

N O R M A T I

ART. 7

CAPITULO II CONDICIONES DE HABITABILIDAD Y FUNCIONALIDAD

Las edificaciones de uso educativo deben cumplir con las siguientes condiciones:

a) Ubicación conforme a lo indicado en los instrumentos de Acondicionamiento Territorial y Desarrollo Urbano de los gobiernos locales.

b) Ubicación evitando las incompatibilidades de uso establecidas en la normativa vigente y/o adoptar las alternativas de solución, respecto de su ubicación

c) Las vías de acceso deben prever el ingreso de vehículos para la atención de emergencias.

d) En caso que se ubiquen en áreas rurales, donde no existan servicios públicos (sistemas de agua de consumo humano, aguas residuales domésticas, energía eléctrica y drenaje pluvial) se debe recurrir a soluciones alternativas que garanticen condiciones de servicio salubre, confortable, funcional y sostenible.

ART. 9

9.1 La altura libre mínima de los ambientes no debe ser menor a 2.50 m, medido desde el nivel del piso terminado hasta la parte inferior del techo (cielo raso, falso cielo, cobertura o similar). 9.2 La altura libre mínima desde el nivel de piso terminado hasta el fondo de viga y dintel no debe ser menor a 2.10 m.

EDUCATIVO
V I D A D
EDUCATIVO ART. 20 CAPITULO IV DOTACIÓN DE SERVICIOS DOTACION DE APARATOS SANITARIOS: EDUCACION BASICA REGULAR NIVEL INICIAL PRIMARIA/SECUNDARIA APARATOS NIÑOS NIÑAS HOMBRES MUJERES Inodoro 1 C/25 1 C/25 1C/60 1 C/30 Lavatorios 1 C/25 1 C/25 1C/30 1 C/30 Urinario 1 C/25 1 C/60

COLEGIO TECNOLOGICO POLITECNICO: JOSE DE SAN MARTIN

EDUCATIVO
NOMBRE INSTITUCION EDUCATIVA JOSE DE SAN MARTIN TIPO COLEGIO UBICACION PISCO, PERU DIRECCION ICA, PERU AÑO DE CONSTRUCCION 2007 PROMOTOR MINISTERIO DE EDUCACION AUTORES JUAN CARLOS CONSTRUCTORA LUREN FILIACION CULTURAL CONTEMPORANEA AREA CONSTRUIDA 7656M2 CAPACIDAD 1000M2 LOCALIZACION ICA-PISCO

La destrucción ocasionada por el terremoto de agosto del 2007, en las ciudades de la región Ica (región al sur de Lima), nos ponía enfrente la oportunidad de repensar los espacios educativos desde un enfoque crítico, en un plazo de tiempo cortísimo y en una situación muy especial por tratarse de los colegios del estado.

La imagen que se tiene de los colegios estatales en las ciudades peruanas es la de un gran muro casi siempre opaco y de unos pabellones detrás del muro, casi siempre iguales; esta imagen se repite en casi todas las ciudades peruanas; es la imagen que tenemos de la relación del estado peruano con los niños y los jóvenes, y con la educación y la cultura. Los colegios estatales son casi iguales estén en la ciudad donde estén. Los colegios están planteados como cuarteles siempre organizados alrededor de un patio central, a modo de patio de revista militar La idea arquitectónica del colegio estatal peruano siempre ha estado ligada a la idea del convento o del cuartel militar.

EDUCATIVO

COLEGIO TECNOLOGICO POLITECNICO: JOSE DE SAN MARTIN

2.- el CONTEXTO de la institución educativa, este principio se refiere a la condición de especificidad de cada proyecto respecto a su emplazamiento y los rasgos tanto topográficos, climáticos y constructivos como a los históricos y culturales de la comunidad para la que se diseña dicho proyecto, lo que significa que esta propuesta no se plantea como un modulo sistémico repetitivo, sino como un edificio único, de modo que el carácter de prototipo en base al cual se desarrollarían otros proyectos es el concepto en si (todos estas ideas o principios de diseño) mas no el edificio;

EDUCATIVO

1.- PERMEABILIDAD del colegio hacia la ciudad, lo que determina el cuestionamiento de la relación entre el espacio educativo y la ciudad a través de un muro de cerco, lo que consideramos necesario cambiar, llevando ciertos elementos del programa arquitectónico a los bordes del colegio, lo que nos permitió orientar, tanto hacia el colegio como hacia la ciudad, la apertura de elementos como el auditorio, la mediática o los talleres. Esto a su vez permite al colegio desarrollar fuentes de ingreso alternativas que posibilitarían solventar los gastos de mantenimiento de su nueva infraestructura;

3.- CONTINUIDAD planteada en términos de accesibilidad y unidad con el entorno urbano, el colegio ya no puede ser un espacio encerrado dentro de la ciudad, su diseño debe responder a la necesidad de desarrollar relaciones de intercambio activas con la comunidad a la que sirve.

EDUCATIVO

COLEGIO

EDUCATIVO
COLEGIO LVC/NOMENA TIPO COLEGIO UBICACION CHORRILLOS, PERU
LIMA, PERU AÑO DE CONSTRUCCION 2013 PROMOTOR LIMA VILLA COLLEGE AUTORES JUAN CARLOS PATRICO BRYCE FILIACION CULTURAL CONTEMPORANEA AREA CONSTRUIDA 4000M2 CAPACIDAD
TECNOLOGICO POLITECNICO: LIMA VILLA NOMBRE
DIRECCION
LOCALIZACION

El COLEGIO LIMA VILLA explora la idea de la “casa patio” o vacío central, pero a una escala de carácter público. Si entendemos que el TIPO es una idea sin escala, forma o función específica, entonces una misma idea puede ser repetida independientement e de sus condiciones.

El terreno se ubica en medio de unos pantanos en los suburbios de la capital. La propuesta educativa busca que cada alumno reconozca sus habilidades y explore sus capacidades individuales y colectivas. Entendemos que existe una diferencia entre el conocimiento y el aprendizaje. El primero es información determinada, son datos que se transmiten en las aulas. Pero el aprendizaje es una experiencia dinámica que se da de manera espontanea. Es justamente en los corredores y en los espacios informales donde aparece la posibilidad del cuestionamiento.

EDUCATIVO

COLEGIO TECNOLOGICO POLITECNICO: LIMA VILLA

Una planta cuadrada un vacío central definida por un edificio se compone de una grilla estructural que responde a la del aula. El patio pública (50m x distintas capas superponen una superficies y texturas nuevas diagonales alterna dentro perímetro del patio través de los espacios del primer nivel donde se reúnen informalmente establece entonces entre lo espacialmente lo programáticamente indeterminado.

En el segundo nivel estos espacios informales están anexos a los corredores y no vinculados al patio. Estas circulaciones dejan de ser sólo espacios de transito y se convierten en espacios de estar que sirven a los alumnos para que la espontaneidad sea la manera correcta de ser utilizados.

EDUCATIVO

cuadrada de 70m con Su periferia está edificio lineal que la repetición de estructural de 6m x 7m, la unidad mínima patio tiene escala 35m) y contiene capas donde se grilla de arboles, texturas. Estas generan diagonales de circulación del colegio. El patio está dilatado a espacios ambiguos donde los alumnos informalmente Se entonces un dialogo espacialmente definido y programáticamente

Estos espacios permiten el ingreso de la luz y de la sombra a distintas horas del día, dinamizando el espacio interior aún más. Se trata de incorporar riqueza espacial a los corredores lineales que no cuenten con los espacios de estar. Una diagonal espacial que vincula el cielo con el suelo, haciendo constante el flujo de aire natural.

Las aulas típicas son simples, con especial énfasis en la ventilación natural y control solar para las condiciones de habitabilidad óptimas. Al evitar las rejas de cerramiento se logra un espacio semi-público al ingreso El acceso pretende generar sorpresa al revelarse sólo cuando uno penetra en el edificio. Utiliza una escuadra compuesta entre el techo y el muro que nos ayuda a controlar el espacio interior formando un umbral entre el exterior y el interior. Los elementos perpendiculares a la transparencia del ingreso servirán como lienzos o murales donde los niños pueden intervenirlos libremente.

EDUCATIVO

FICHA TECNICA – COLEGIO JOSE DE SAN MARTIN

DATOS ESPECIFICOS

Localización: PISCO, ICA, PERU

Tipología: Educativo Finalización: 2007

Superficie construida: 7 656m2

Autor: JUAN CARLOS CONSTRUCTORA LUREN

La idea que se tiene de la imagen que debe tener un colegio estatal es algo así como la imagen de la sociedad democrática, los espacios para la educación pública deberían ser los de la reconciliación social.

La propuesta arquitectónica respondió al requerimiento de plantear un nuevo prototipo de infraestructura educativa pública, que reemplace la idea tradicional de colegio por el concepto de “espacio educativo”

el CONTEXTO de la institución educativa, este principio se refiere a la condición de especificidad de cada proyecto respecto a su emplazamiento y los rasgos tanto topográficos, climáticos y constructivos como a los históricos y culturales de la comunidad para la que se diseña dicho proyecto, lo que significa que esta propuesta no se plantea como un modulo sistémico repetitivo, sino como un edificio único, de modo que el carácter de prototipo en base al cual se desarrollarían otros proyectos es el concepto en si (todos estas ideas o principios de diseño) mas no el edificio;

EDUCATIVO

FICHA TECNICA – COLEGIO VILLA LIMA

DATOS ESPECIFICOS

Localización: CHORRILLOS, LIMA, PERU

Tipología: Educativo

Finalización: 2013

Superficie construida: 4 000m2

Autor: JUAN CARLOS PATRICO BRYCE

El COLEGIO LIMA VILLA explora la idea de la “casa patio” o vacío central, pero a una escala de carácter público Si entendemos que el TIPO es una idea sin escala, forma o función específica, entonces una misma idea puede ser repetida independientemente de sus condiciones

Estos espacios permiten el ingreso de la luz y de la sombra a distintas horas del día, dinamizando el espacio interior aún más Se trata de incorporar riqueza espacial a los corredores lineales que no cuenten con los espacios de estar Una diagonal espacial que vincula el cielo con el suelo, haciendo constante el flujo de aire natural

PLANIMETRIA

PRIMER NIVEL

SEGUNDO NIVEL

EDUCATIVO

ESCUELA DE ARTES CARGASSONNE

UBICACIÓN GEOGRAFICA

Esta escuela ubicada en el suroeste de Carcassonne (Francia), tiene una forma de concha y está modulada por una fachada curva que forma un teatro al aire libre.

DATOS GENERALES

Programa: Escuela de artes

Arquitecto: Jacques Ripault Architecture Área construida: 5700 m2

ANÁLISIS ESPACIAL

El conjunto está dividido por zonas permitiendo una jerarquía a cada edificio y especialidad. Y aunque los edificios están separados en conjunto estos se relacionan mediante espacios contiguos dinámicos y se organizan de manera central en torno a un teatro al aire libre. Además, al interior del edificio se creó una rampa que son accesibles a los salones de baile.

EDUCATIVO

Expresión del Espacio:

En los ambientes emplearon colores blancos para generar amplitud y naranjas para saturar el espacio

Jerarquía:

Cada especialidad posee ambientes principales con una jerarquía que se visualiza en las dobles alturas como el salón de percusión y la gran sala de orquesta, el cual funciona como un espacio ancla cerca del vestíbulo.

Los salones de baile, de la altura del edificio, son accesibles a través de una rampa que sirve también a la coreografía de los bailarines. Las salas de música se disponen a lo largo de la concha acústica, generando habitaciones trapezoidales.

Figura: Fachada Escuela Carcassonne
EDUCATIVO

EDUCATIVO

ANALISIS FUNCIONAL

LEYENDA

Artes dramáticas Documentación

Artes plásticas Arte y música Área de información Servicios

SEGUNDO NIVEL

PRIMER NIVEL

1. Sala de percusión

2. Sala del Coro público. 3. Estudio de repetición acústica 4. Reserva de instrumentos 5. Cuarto del coro 6. Estudio de canto 7. Salon de formacion musical 8. Estudio de opera 9. Salon de instrumentos de viento 10. Salon de piano 11. Sala de modelo común 12. Almacén 13. Sala de temperatura 14. Sala de volumen 15. Sala de Práctica colectiva 16. Baños 17. Hall 18. Vestuario del auditor io 19. Oficina de asociados 20. Mediateca 21. Reserva 22.Documentación 23.Escenario 24.Vestuarios 25.Salón pre 26.Salón de ensayo 27.Almacén 28.1nstalaciones

LEYENDA

Administración

Art. musical Área teatro Danza Art. plásticas Logística

1 Salan de Arte 2 Vestidor de profesores 3.Almacén 4.Salon de formacion musical 5. Sala de práctica individual 6.Aula de cuerdas 7.Mantenimiento local 8.Reserva de instrumentos 9 Archivo 1O Sala de reuniones 11.Secretaria 12.Dirección 13.Director de escuela 14 .0ficinas administrativas 15.Baños 16.Cuarto de servicio 17 Fotocopia 18 Salon de profesores 19.Oficina de profesores

20.Salon de danza 21 Vestuario 22.Salón de danza publica 23.Sala del coro público 24.Sala de Percusión

REFERENTES
DE ARTES EN OAXACA ANALISIS CONTEXTUAL OAXACA, MEXICO •Arquitectos: Mauricio Rocha •Área : 2270 m² •Año : 2008 ANALISIS FUNCIONAL PLANTA UNICA 1. ACCESO PRINCIPAL 2. GALERIA 3. ADMINISTRACION 4. MEDIATECA 5. TALLER 6. PATIO 7. AULA TEORICA 8. AREA DE ESTAR/ AULA MAGNA ARRIBA 9. TALLER DE TÉSIS 10. CUARTO DE MAQUINAS Acceso principal Circulación Horizontal 1. AREA VERDE 2. ADMINISTRACION TALLERES 3. AULAS TEORICAS 4. GALERIAS 5. SERVICIO LEYENDA
ESCUELA

La decisión de elevar el aula magna incluyen la formación de un patio por debajo y crea la idea principal del proyecto. Este espacio suprimido, se accede mediante una pequeña rampa por ambos lados opuestos

LEYENDA

Ingreso principal Circulación Horizontal Accesos internos Escaleras y rampa

ANÁLISIS ESPACIAL

ORGANIZACIÓN ESPACIAL

La distribución del espacio se organiza de manera lineal, generando una serie de recorridos que conectan a un área de estar en común que se dispone en el centro del conjunto.

ESPACIO ABIERTO (PATIOS)

La configuración de los patios refleja una planta ajedrezada donde ¨masa-vacío¨ se convierte en una conformación de fugas y recorridos visuales

A partir de su organización, los talleres se disponen en forma de ¨U¨ con orientación al norte

LEYENDA

Patio Circulación Área de estar

ESPACIO CERRADO (AMBIENTES)

Al interior los espacios son transparentes (ventanales), receptores de luz natural y con visuales hacia sus propios patios.

EXPRESIÓN DEL ESPACIO

Desde el exterior, muestra una lectura distorsionada (escala aparentemente pequeña que finalmente a través del recorrido muestra una escala de 4, 5 y 6 metros de altura, siendo flexible a su uso y generando distintas percepciones de la volumetría

SECCIONES

Relaciones entre ambientes: PONDERACIÓN: 0: Sin relación 1: Relación 2: Relación estrecha
MATRIZ DE RELACIONES
GALERIAS CUARTO DE MAQUINAS MEDIATECA
PATIO TALLER DE TESIS AULA TEORICO AREA DE ESTAR

FICHA TECNICA – ESCUELA DE ARTES CARGASSONE

DATOS ESPECIFICOS

Localización: CARCASSONE, FRANCIA

Tipología: Educativo Superficie construida: 5 700m2

Autor: JACQUES RIPAULT ARCHITECTURE

El conjunto está dividido por zonas permitiendo una jerarquía a cada edificio y especialidad. Y aunque los edificios están separados en conjunto estos se relacionan mediante espacios contiguos dinámicos y se organizan de manera central en torno a un teatro al aire libre. Además, al interior del edificio se creó una rampa que son accesibles a los salones de baile.

LEYENDA

Artes dramáticas

Documentación

Artes plásticas Arte y música Área de información Servicios

SEGUNDO NIVEL

PRIMER NIVEL

LEYENDA

Administración

Art. musical Área teatro Danza Art. plásticas Logística

EDUCATIVO

FICHA TECNICA – ESCUELA DE ARTES OAXACA

DATOS ESPECIFICOS

Localización: OAXACA, MEXICO

Tipología: Educativo

Finalización: 2008

Superficie construida: 2 270m2

•Autor: MAURICIO ROCHA

La distribución del espacio se organiza de manera lineal, generando una serie de recorridos que conectan a un área de estar en común que se dispone en el centro del conjunto.

ESPACIO ABIERTO (PATIOS)

La configuración de los patios refleja una planta ajedrezada donde ¨masa-vacío¨ se convierte en una conformación de fugas y recorridos visuales

A partir de su organización, los talleres se disponen en forma de ¨U¨ con orientación al norte

EDUCATIVO
FUNCIONAL PLANTA UNICA 1. ACCESO PRINCIPAL 2. GALERIA 3. ADMINISTRACION 4. MEDIATECA 5. TALLER 6. PATIO 7. AULA TEORICA 8. AREA DE ESTAR/ AULA MAGNA ARRIBA 9. TALLER DE TÉSIS 10. CUARTO DE MAQUINAS Acceso principal Circulación Horizontal 1. AREA VERDE 2. ADMINISTRACION TALLERES 3. AULAS TEORICAS 4. GALERIAS 5. SERVICIO LEYENDA
ANALISIS

TIPOLOGÍA RECREATIVA: Normativa

Los Parques Zonales se crean en el marco del Plan de Desarrollo Metropolitano de Lima Callao 1967-1980 como un intento de solucionar las deficiencias equipamentales y de áreas verdes de las nuevas urbanizaciones que se venían desarrollando, formal e informalmente, en la ciudad, es así que se definen como áreas encargadas de prestar servicios de recreación activa y pasiva, y culturales. Esta definición se ha mantenido en esencia en las siguientes décadas, siendo su definición más reciente la de la Ordenanza Metropolitana 1852MML/2014, en la que se aclara que podrán contar con instalaciones e infraestructuras destinadas al deporte y la cultura.

Los Parques Zonales no solo son “refugios ecológicos, centros de esparcimiento y recreacionales”, una de sus funciones fundamentales es la de aportar a la construcción de mejores ciudadanos desde el deporte y la cultura. Reducir el componente cultural (CREA) a ser una copia de los Parques Biblioteca de Medellín es obviar el trasfondo social que dio origen a estos grandes equipamientos urbanos.

Esa aparente defensa de lo “ecológico” se contradice automáticamente con la sustitución áreas verdes por enormes piscinas abiertas que solo son usadas unos pocos meses del año, como es el caso del Parque Zonal Flor de Amancaes, en el que se mutiló cerca del 25% del parque central.

RECREATIVO Y OCIO

TIPOLOGÍA RECREATIVA: Normativa (PDU)

RECREATIVO Y OCIO

PARQUE ZONAL SANTA ROSA

RECREATIVO Y OCIO
RECREATIVO Y OCIO
RECREATIVO Y OCIO
RECREATIVO Y OCIO
RECREATIVO Y OCIO

PARQUE FLOR DE AMANCAES

RECREATIVO Y OCIO
RECREATIVO Y OCIO
RECREATIVO Y OCIO
RECREATIVO Y OCIO
RECREATIVO Y OCIO
CENTRO COMUNITARIO SAN CRISTOBAL, COLOMBIA RECREATIVO Y OCIO EMPLAZAMIENTO PLANO DE UBICACION TRANSFORMACION DEL MODULO

ZONIFICACION

ESTRATEGIAS ADAPTAR

RECREATIVO Y OCIO

CENTRO COMUNITARIO SPRINGVALE

DATOS GENERALES

CONCEPTO Y VOLUMETRIA

Se inspiró en el viaje de los inmigrantes, presentándose en capas de historia, con paisaje fluido, camino continuo, lugar ceremonial indígena y un jardín representativo

Un solo volumen tiene forma de un prisma con formas ondulantes, por el concepto de “derecho verde comunitario” y el respeto a los arboles existentes

En un edificio permeable y la cubierta es escalonada con un corte tipo sierra, que va descendiendo en altura hacia la fachada sur.

RECREATIVO Y OCIO

LEYENDA

Ingreso vehicular

Ingreso principal general Circulación horizontal principal

Circulación horizontal secundaria

LEYENDA

SS.HH JARDIN

JUEGOS INFANTILES ZONA MUSICA

PICNIC

SEGUNDO NIVEL

Circulación vertical primaria ANFITEATRO AREA VERDE

LEYENDA

RECREATIVO Y OCIO
ACCESO Y CIRCULACION
NIVEL SEGUNDO NIVEL ZONIFICACION
PRIMER
Circulación Vertical secundaria Circulación Horizontal primaria Circulación Horizontal secundaria PLANTA GENERAL
DATOS ESPECIFICOS
EMPLAZAMIENTO
FICHA TECNICA- CENTRO COMUNITARIO SAN CRISTOBAL, COLOMBIA
ZONIFICACIÓN
ESTRATEGIAS Adaptar

FICHA TECNICA- CENTRO COMUNITARIO SPRINGVALE

DATOS ESPECIFICOS ZONIFICACIÓN

DATOS GENERALES

CONCEPTO Y VOLUMETRIA

Se inspiró en el viaje de los inmigrantes, presentándose en capas de historia, con paisaje fluido, camino continuo, lugar ceremonial indígena y un jardín representativo

En un edificio permeable y la cubierta es escalonada con un corte tipo sierra, que va descendiendo en altura hacia la fachada sur.

GENERAL

NIVEL

PLANTA
ANFITEATRO AREA VERDE PICNIC JUEGOS INFANTILES ZONA MUSIC A SS.HH JARDIN
SEGUNDO
Q-LAB ARQUITECTOS
CENTRO DEPORTIVO TUCHENG
COMPLEJO DEPORTIVO
CONCRETO, VIDRIO
RECREATIVO Y OCIO
POLIDEPORTIVO TUCHENG ARQUITECTOS:
PROYECTO:
TIPOLOGÍA:
MATERIALES:
ÁREA: 13 791 m2 AÑO: 2014 CIUDAD: NUEVO TAIPE, TAIWAN ANÁLISIS
ZONIFICACIÓN Recepción Deporte SS.HH/ Vestidores Comercio Sala de reuniones PRIMERA PLANTA RECREATIVO Y OCIO

CAP.II-ART. 5

Deberán existir accesos separados para publico, personal, actores, deportistas.

El numero de ocupantes se determinara por la siguiente tabla:

Los accesos a las edificación para espectáculos deportivos serán distribuidos e identificables en forma clara , habiendo cuando menos uno por cada sector de tribuna.

NORMATIVIDAD a.100
Deporte Estacionamiento SS.HH/ VESTIDORES SEGUNDA PLANTA TERCERA PLANTA
SS.HH/ VESTIDORES Deporte SS.HH/ VESTIDORES RECREATIVO Y
Deporte
OCIO

El ancho mínimo de un pasaje de circulación de acceso a los asientos son de 1.20m

El ancho de los pasajes y de las bocas de salida serán múltiplos de .60m

Las escaleras para publico deberán tener un paso mínimo de 0 30m

Las salidas de emergencia deben contar con las características de : el numero y dimensiones de las puertas de escape depende del numero de ocupante y de la necesidad de evacuar la sala en un máximo de 3 min.

SISTEMA Y MODULACION ESTRUCTURAL

ASPECTO FORMAL

El sistema constructivo aplicado en el centro deportivo es de concreto armado. La modulación de las columnas forma una grilla de 8x8m aproximadamente.

SEPARACIÓN PRAGMÁTICA

COMPACTACION EN UN PARALELEPIPEDO DISTRIBUCION EN 3 VOLUMENES INTERCEPTADOS
Y OCIO
RECREATIVO

POLIDEPORTIVO VALLEHERMOSO

ARQUITECTOS: ABM ARQUITECTOS

ÁREA DEL TERRENO: 44, 760 m2

ÁREA TECHADA: 23000 m2

ÁREA OCUPADA DEL EDIFICIO: 5160 m2

AÑO: 2013

CIUDAD: MADRID ESPAÑA

Descripción del proyecto

Edificio de uso deportivo desarrollado en 3 plantas de altura sobre rasante y 2 plantas de sótano. Compuesto por pabellón polideportivo con capacidad para 1.000 espectadores, zona de piscinas cubiertas: piscinas de nado, de enseñanza y área de hidroterapia, 4 salas polivalentes, 1 sala exterior, sala fitness de 1 380 m², sala de armas y espacios auxiliares para esgrima, pistas de pádel, zona de fisioterapia, vestuarios y locales auxiliares y técnicos, 2 plantas de aparcamientos en sótano y 1 en superficie, con capacidad para un total de 410 vehículos.

Forma

La planta es esencialmente rectangular y se relaciona actividades del exterior, que mayoría son deportivas

Figura N°13 Ubicación del Complejo Deportivo Vallehermoso Figura N°14 Planta del complejo Deportivo Vallehermoso
RECREATIVO Y OCIO

esencialmente relaciona con las que en su Vallehermoso

ZONIFICACIÓN

Recepción Deporte Comercio
SUM
LEYENDA
SS.HH./ Vestidores
Administración Estacionamiento
Figura N°15 Planta 1 del Complejo Deportivo Vallehermoso Figura N°16 Planta 2 del Complejo Deportivo Vallehermoso
N°17 Zonificación del Complejo Deportivo Vallehermoso
Corte
RECREATIVO Y OCIO
Figura
-

FICHA TECNICA- POLIDEPORTIVO DE VALLEHERMOSO

DATOS ESPECIFICOS

ARQUITECTOS: ABM ARQUITECTOS

ÁREA DEL TERRENO: 44, 760 m2

ÁREA TECHADA: 23000 m2

ÁREA OCUPADA DEL EDIFICIO: 5160 m2 AÑO: 2013

CIUDAD: MADRID ESPAÑA

Edificio de uso deportivo desarrollado en 3 plantas de altura sobre rasante y 2 plantas de sótano. Compuesto por pabellón polideportivo con capacidad para 1.000 espectadores, zona de piscinas cubiertas: piscinas de nado, de enseñanza y área de hidroterapia, 4 salas polivalentes, 1 sala exterior, sala fitness de 1 380 m², sala de armas y espacios auxiliares para esgrima, pistas de pádel, zona de fisioterapia, vestuarios y locales auxiliares y técnicos, 2 plantas de aparcamientos en sótano y 1 en superficie, con capacidad para un total de 410 vehículos.

Deporte Comercio
SUM
ZONIFICACIÓN PRIMERA PLANTA SEGUNDA PLANTA SECCION RECREATIVO Y OCIO
Recepción
SS.HH./ Vestidores
Administración Estacionamiento
FICHA TECNICA- POLIDEPORTIVO DE TUCHENG DATOS ESPECIFICOS ARQUITECTOS: Q-LAB ARQUITECTOS PROYECTO: CENTRO DEPORTIVO TUCHENG TIPOLOGÍA: COMPLEJO DEPORTIVO MATERIALES: CONCRETO, VIDRIO ÁREA: 13 791 m2 AÑO: 2014 CIUDAD: NUEVO TAIPE, TAIWAN ZONIFICACIÓN Recepción Deporte SS.HH/ Vestidores Comercio Sala de reuniones PRIMERA PLANTA SEGUNDA PLANTA TERCERA PLANTA PLANTA LEYENDA RECREATIVO Y OCIO
MATRICES COMERCIAL-FINANCIERA C E N T R O E M P R E S A R I A L S T R E P C E N T E R TIPOLOGIA: COMERCIO REFERENTE 1 REFERENTE 2 ZONAS COMUNES STRIP CENTER EL RODEO STREP CENTER EL POLO ADMINISTRACION ADMINISTRACION ADMINISTRACION LOCALES COMERCIALES LOCALES COMERCIALES LOCALES COMERCIALES AGENCIAS BANCARIAS AGENCIA BANCARIA AGENCIAS BANCARIAS OFICINAS SALA DE REUNIONES FARMACIA LIBRERIAS CAFETERIA FARMACIA FARMACIA RESTAURANTE RESTAURANTE RESTAURANTE ESTACIONAMIENTO ESTACIONAMIENTO ESTACIONAMIENTO TIPOLOGÍA :OFICINAS KRONOS EDIFICIO PITÁGORAS ZONAS COMUNES ZONAS ZONAS ZONAS ESTACINAMIENTO ESTACIONAMIENTO ESTACIONAMIENTO SERVICIOS SERVICIOS SERVICIOS COMERCIO CAFETERÍA – REST. OFICINAS OFICINAS OFICINAS AUDITORIO ESCALERAS Y ASCENSORES AUDITORIO RESTAURANTE RECEPCIÓN RECEPCIÓN RECEPCIÓN
MATRICES SALUD C L I N I C A O N C O L O G I C A CULTURAL C E N T R O C U L T U R A L TIPOLOGIA: CULTURAL REFERENTE 1 REFERENTE 2 ZONAS COMUNES CENTRO CULTURAL GABRIELA MISTRAL CENTRO CULTURAL RICARDO PALMA ADMINISTRACION ADMINISTRACION ADMINISTRACION AUDITORIO AUDITORIO AUDITORIO BIBLIOTECA BIBLIOTECA BIBLIOTECA SALA DE TEATRO SALA DE AUDIOVISUALES SALA DE EXPOSICIONES TALLERES SALA DE MUSICA SALA DE EXPOSICIONES CAFETERIA CAFETERIA CAFETERIA TIENDAS SERVICIOS GENERALES SERVICIOS GENERALES SERVICIOS GENERALES TIPOLOGÍA DE SALUD HOSPITAL MOLLET HOSPITAL REUS ZONAS COMUNES ZONAS ZONAS ZONAS CIRUJÍA CUIDADOS INTENSIVOS CIRUJÍA ÁREA DE ESPERA ÁREA DE ESPERA ÁREA DE ESPERA CONSULTA EXTERNA CONSULTA EXTERNA CONSULTA EXTERNA HOSPITAL DE DÍA HOSPITAL DE DÍA HOSPITAL DE DÍA FARMACIA / ALMACENES FARMACIA / ALMACENES FARMACIA / ALMACENES SERVICIOS E INSTALACIONES SERVICIOS E INSTALACIONES SERVICIOS E INSTALACIONES COMEDOR / COCINA COMEDOR / COCINA COMEDOR / COCINA HOSPITALIZACION HOSPITALIZACION HOSPITALIZACION REHAB.Y RECUP. FÍS. REHAB.Y RECUP. FÍS. REHAB.Y RECUP. FÍS.
MATRICES CULTURAL P A R Q U E B I B L I O T E C C O L E G I O T E C N O L O G I C TIPOLOGIA: EDUCTIVO REFERENTE 1 REFERENTE 2 ZONAS COMUNES JOSE DE SAN MARTIN VILLA LIMA ADMINISTRACION ADMINISTRACION ADMINISTRACION RECEPCION RECEPCION RECEPCION RECREACION RECREACION RECREACIOM ACADEMICA ACADEMICA ACADEMIA LIBRERIAS LIBRERIA COMPLEMENTARIOS COMPLEMENTARIO COMPLEMENTARIODEPORTIVO DEPORTIVA SERVICIOS GENERALES SERVICIOS GENERALES SERVICIOS GENERALES EDUCATIVO TIPOLOGIA CULTURAL REFERENTE 1 REFERENTE 2 ZONAS COMUNES PARQUE BIBLIOTECA LEÓN DE GRIEFF PARQUE BIBLIOTECA SAN JAVIER AUDITORIO AUDITORIO AUDITOIRO AULAS MULTIPLES SALAS MULTIPLES AULAS MULTIPLES TALLERES TALLERES TALLERES BIBLIOTECA BIBLIOTECA BIBLIOTECA SALA MULTIMEDIA MEDIATECA SALA MULTIMEDIA PATIO PATIO PATIO
MATRICES RECREATIVO Y OCIO P O L I D E P O R T I V O E S C U E L A D E B E L L A S A R T E S EDUCATIVO TIPOLOGIA EDUCATIVO REFERENTE 1 REFERENTE 2 ZONAS COMUNES ESCUELA DE ARTES CARGASSONNE ESCUELA DE ARTES VISUALES EN OAXACA MEDIATECA MEDIATECA MEDIATECA ACCESO PRINCIPAL ACCESO ACCESO TALLERES TALLERES TALLERES ALMACEN ALMACEN ALMACEN GALERIAS GALERIAS GALERIAS TIPOLOGIA RECREACION Y OCIO POLIDEPORTIVO VALLEHERMOSO PLIDEPORTIVO TUCHENG ZONAS COMUNES REFERENTE 1 REFERENTE 2 RECEPCION RECEPCION RECEPCION SALAS MULTIPLES SALAS MULTIPLES SALAS MULTIPLES SS.HH VESTIDORES SS.HH VESTIDORES SS.HH VESTIDORES ZONA DEPORTIVA ZONA DEPORTIVA ZONA DEPORTIVA COMERCIO COMERCIO (CAFETERIA) COMERCIO SALA DE REUNIONES SALA DE REUNIONES SALA DE REUNIONES

BIBLIOGRAFIA

 Jacobs J. (1969) Muerte y Vida de las Grandes Ciudades. Editorial: Entrelineas. 1961

 Muxí, J. B.–Z. (2000). El espacio público, ciudad y ciudadanía.

 Gehl, J. (2014). Ciudades para la gente. - 1a ed. - Ciudad Autónoma de Buenos Aires : Infinito, 2014.

LINKOGRAFIA

https://repositorio.unprg.edu.pe/bitstream/handle/20.500.12893/3314 /BC-TES-TMP-2168.pdf?sequence=1&isAllowed=y

https://www.youtube.com/watch?v=dlwOxQfrP2Y&ab_channel=Cua ndolaspiedrashablan

https://repository.ucatolica.edu.co/bitstream/10983/25138/1/4Articulo%20Trabajo%20de%20grado%20ARQUITECTURA%20DEL%20OCIO%2816-10-2020%29MESA-FINAL.pdf

Turn static files into dynamic content formats.

Create a flipbook
Issuu converts static files into: digital portfolios, online yearbooks, online catalogs, digital photo albums and more. Sign up and create your flipbook.