Architecture Portfolio_2025

Page 1


I believe that the study and practice of architecture is an intricate fusion of multiple disciplines. It extends beyond the mere consideration of form and function, encompassing the surrounding environment, cultural ideologies, and the deeper narratives that shape design. True architectural vision lies in the ability to analyze, visualize, and create spaces that not only fulfill their purpose but also resonate with their context, embodying a holistic approach to the built environment.

SHAMITA HONAWAR

honawar2@illinois.edu | (217)974-8026 | LinkedIn | Champaign IL

EDUCATION

Master of Architecture (NAAB Accredited)

August 2023 - Present University of Illinois Urbana-Champaign, IL

Bachelor of Architecture

Savitribai Phule Pune University, Pune, India | GPA 3.9/4

WORK EXPERIENCE

August 2016 - May 2021

Facilities and Services at UIUC, Champaign, IL January 2025 – Present

Architectural Intern (Capital Program Planning Division)

Developed and analyzed campus classroom layouts and renovation projects using AutoCAD and Revit.

UIUC School of Architecture, Champaign IL August 2024 – December 2024

Teaching Assistant (Introduction to Design | College of Fine and Applied Arts)

Mentored 16 students, strengthening their understanding of design principles, processes, and architectural terminology. Enhanced technical skills through advanced hand sketching, model making, and digital design using InDesign, Illustrator, and Photoshop.

Facilities and Services at UIUC, Champaign, IL May 2024 – August 2024

Architectural Intern (Capital Program Planning Division)

Assessed 300+ classrooms, providing data-driven insights for strategic facility improvements and renovations. Collaborated with contractors to execute a major renovation and developed wayfinding solutions using Bluebeam. Photoshop, and AutoCAD, enhancing campus navigation.

MIX-Design Studio, India

Architect | Licensed in India

(Architectural Design and Project Management)

August 2022 - June 2023

Optimized workflow efficiency in residential and commercial projects in Pune by integrating advanced design technologies and collaborating with clients, MEP, HVAC, and landscape consultants to deliver innovative solutions.

Developed detailed architectural models and drawings in Revit, enhancing project visualization and presentation using InDesign and Photoshop for residential designs.

The OPUS Design Studio, India

Architect | Licensed in India

(Healthcare Architecture and Project Management)

August 2021 - August 2022

Led design development and construction drawings for a hospital and diagnostics center in Pune, ensuring compliance with healthcare standards while collaborating with the Projects Department at Ruby Hall Clinic using Revit and BIM. Assisted the Principal Architect at Infiiloom Pvt. Ltd. in project management, optimizing operations, overseeing deadlines, and contributing to concept development, technical documentation, and stakeholder communication for large-scale projects.

SKILLS

Software Skills: Revit, BIM, Rhino, AutoCAD, SketchUp, Photoshop, Illustrator, InDesign, Lumion, Enscape, Twinmotion, Microsoft Office Suite, Cove Tool, Bluebeam.

Design and Fabrication skills: Conceptual Design, Design Development, Construction Drawings, Graphic Presentations, 3D Modelling, Model Making, Concrete casting, 3D Printing, Fabrication Drawings, Laser cutting.

AWARDS AND ACHIEVEMENTS

Spectacular Studio Award – Honorable Mention | UIUC January 2025

Earl Prize, Graduate Design Excellence Award – Honorable Mention | UIUC January 2024 Design Excellence Award – Winner | ETSAB University, Barcelona November 2017

CONTENTS

Illinois Rowing Center & Community Boathouse

Fall 2024 | Intergrative Design Studio | UIUC

Clintin Lake, Illinois

Eco-Genesis | Wellness Hub

Fall 2023 | Detail and Fabrication Studio |UIUC

Chicago, Illinois

Oasis of Calm | Meditation Retreat

Spring 2021 | Undergarduate Thesis Project

Goa, India

Bijou Dwellings | Micro-Housing Project

Spring 2020 | Studio+US Competition Project Mumbai, India

RHC Hospital | Multi-Specialty Hospital

Professional Work | OPUS Design Studio

Pune, India

Facade Developement Project | At RHC Hospital

Professional Work | OPUS Design Studio

Pune, India

Transformable Model

Planning and Design of Structural System | UIUC

Illinois Rowing Center

& Community Boathouse | Clinton Lake, IL

Fall 2024 | Integrative Design Studio at UIUC

Team: Shamita Honawar and Gayatri Pandkar

Instructor: Prof. Scott Murray

Spectacular Studio Award 2025 | Honorable Mention

Software used: Revit, SketchUp, Lumion, Photoshop

The Illinois Rowing Center and Community Boathouse unifies a Rowing Center and Boathouse Storage into a single, functional space that serves both the University Rowing Club and the local community. Designed to foster training, competition, and recreation, the facility strengthens the connection between sport, architecture, and nature. The structure features dedicated training spaces, an ergometer room, and stepped seating that provides scenic views of Clinton Lake, enhancing the overall experience for athletes and visitors. A distinctive sawtooth roof optimizes natural light and ventilation, creating a comfortable and energy-efficient environment. Thoughtfully integrated with its surroundings, the project blends modern design with contextual sensitivity, offering a space that is both functional and inspiring.

View from the Boat Dock looking towards the Illinois Rowing Center and the Viewing Deck
View of the entrance

Concept Developement

Concept 1

Illinois Boathouse+Community Boathouse

Floating Roof

Illinois Rowing Center

A glass wall blurs indoor-outdoor boundaries, a floating roof echoes the lake’s fluidity, and a linear layout strengthens the connection to the landscape.

Concept 2

Illinois Boathouse+Community Boathouse

Illinois Rowing Center

The Community and Illinois Boathouses form a unified composition with sloping roofs that echo the landscape, framing Clinton Lake as the central focus with uninterrupted views.

Concept 3

Illinois Boathouse

Illinois Rowing Center

Community Boathouse

Central Canopy Interactive Space

Three distinct blocks, connected by a central canopy, create an interactive hub where architecture and sport converge, fostering community engagement and a shared passion for rowing.

Illinois Rowing Center & Community Boathouse

Program Diagram: Spatial Organization and Functional Layout of the Illinois Rowing Center and Community Boathouse.
Main Isometric Diagram

North Elevation

Section AA’

Structural System Design

The design maximizes structural efficiency without extra bracing, while Verendal trusses enhance natural light and reduce energy use. Sustainable materials like wood panels, triple-pane glass, and a metal roof deck ensure durability, insulation, and harmony with nature. Mineral fiber insulation boosts energy efficiency, and wooden railings enhance safety. This integration of eco-friendly materials and a strong structure creates a sustainable, visually striking rowing center for the community.

Roof Assembly

3/4” Wood Cladding

3/4” Wood Sleeper

Waterproofing

Sheathing

3/4” Cover Board

12” Rigid Insulation

Metal Decking

Girder - W12x16
Concrete Slab with Foundation Wall and Footing
Beam - W12x16
Column - W10X10
Virendeel Truss Vertical Mmember - W12x16
Beam - W12x16
Virendeel Truss Vertical Mmember - W12x16
Double Pane Glass with Low-E Coating
(R-60)
Double Pane Glass with Low-E Coating

Detailed Wall Section

WALLASSEMBLY(R-15)

3/8”WOODPANEL

12”MINERALFIBERINSULATION

AIRSPACE

WATERPROOFING

3/4”WOODRAIL

3/4”FINISHWOODPANEL

WIDEFLANGEBEAM W12x18

AIRSUPPLYDUCT

SUSPENDEDLIGHT

12”x4”MULLION

TRIPLEPANELGLASS W/LOW-ECOATING

CONCRETESLAB ONGRADE

WATERPROOFING

12”CONCRETE FOUNDATIONWALL

12”x36” CONCRETEFOOTING

ROOFASSEMBLY(R-60)

3/4”WOODCLADDING 3/4”WOODSLEEPER WATERPROOFING SHEATHING

3/4”COVERBOARD 12”RIGIDINSULATION METALDECKING FACIA

ROOFLEVEL 15ft 35ft

The detailed wall section through the Ergometer Training Room showcases the facade and roof assembly

GROUND 0ft

MULLION

Energy Analysis | Software used: Covetool

EUI Breakdown

The Illinois Rowing Center meets the energy code requirements with an EUI of 65.29, standard R-values and U-values, and a VAV system with a gas boiler and water-cooled chiller.

Daylighting Analysis of Illinois Rowing Center

Enhanced insulation, high-performance glazing, and efficient skylights reduce the EUI to 39.43, achieving a 39.61% reduction from the baseline while maintaining the same building system.

North Side
South Side
78% SDA
76% ASE
Test 1: Base Design
Test 2: Improved Design

Illinois Rowing Center & Community Boathouse |

HVAC System | Software used: Revit

Area Zoning

Duct Layout
View of Illinois Rowing Center and Community Boathouse from the viewing Deck
View of stepped seating along the Clinton Lake
View of Community Boathouse

Eco-Genesis | Wellness Hub in Chicago

Fall 2023 | Detail and Fabrication Studio

Instructor: Prof. Kelly Bair

Graduate Excellence Award | Honorable Mention

Software used: Rhino, AutoCAD, Photoshop, Indesign

Eco Genesis pioneers innovative, eco-conscious design by integrating 3D-printed Mycelium wall panels, a mass timber structure, and a concrete plinth utilizing waste as a lightweight aggregate. The project harnesses Mycelium fungus, a renewable material derived from agricultural waste, fostering its growth within scalloped facade panels designed for both aesthetics and sustainability. Programmatically, the building highlights mushroom-based medicinal benefits, featuring a ground-floor pharmacy and natural remedies shop, while the upper levels house residential units. This project exemplifies a commitment to sustainable construction, demonstrating the transformative potential of organic materials in functional, built environments.

3D-Printed Model

Concept Developement

Growth utilizes Mycelium and pulped paper cups to create biodegradable architectural components. Modularity enables interlocking panels as a sustainable alternative to petrochemical materials. Integration enhances fire resistance, acoustics, and adaptability, advancing eco-conscious construction.

Self-growing, mortar-free Mycelium material

Interlocking panels for flexible use

Assembled system with insulation & acoustics

Partial Models developed in Rhino
3D-Printed models
Ground Floor Plan
First Floor Plan

ARhino-generated work desk assembly, showcasing the construction of the Mycelium-based modular system in progress

Oasis of Calm | Goa, India

Meditation Retreat | Undergraduate Thesis Project | 2021

Instructor: Prof. Poorva Pulkarni

Software used: Revit, SketchUp, Lumion, Photoshop

Located in Goa, India, this meditation center is designed to alleviate stress and promote well-being for individuals of all ages. By harmonizing architecture with nature, the project creates a tranquil sanctuary that fosters mindfulness and mental health. Thoughtful spatial organization, material selection, and natural light integration enhance the sense of serenity, while landscaped spaces provide a seamless connection to the lush Goan environment. More than just a retreat, this center highlights architecture’s potential to nurture the mind, body, and spirit, crafting spaces that inspire relaxation, contemplation, and rejuvenation.

View of the Meditation Retreat: Stay Cottages

Concept Framework

The Meditation Retreat provides a wholesome experience for:

Contemplation

Spaces designed for solitude and deep reflection, fostering mindfulness and inner peace.

Interaction

Environments that encourage dialogue and learning, where visitors can engage in guided meditation and knowledge exchange.

Congregation

Areas for communal meditation and discourse, supporting shared spiritual growth and the implementation of meditative practices.

Focus

A central space that anchors the retreat, drawing attention to key elements of mindfulness and tranquility.

Open to sky

Semi-open courtyards and verandahs that offer transitional spaces for quiet contemplation or group activities.

Mutual Shading

Shaded retreats integrated with nature, providing thermal comfort and serene outdoor meditation areas in response to the climate.

Connection

A seamless transition between the built and unbuilt environment, guiding visitors through an immersive journey that enhances their engagement with nature and meditation.

Hierarchy

A progression of spatial experiences, using cascading forms to transition from private reflection zones to communal gathering areas.

Site Overview | Mordol, South Goa

The 32,000 sq.m site in Mordol, South Goa, 21 km from Panaji, features a 7,187 sq.m built-up area.

Design Framework

View of the entrance and drop-off point
View of theAmphitheater
Section FF’
Section BB’
Administration Block
Floor Plan
View of the theAdministration block from parking space
Amphitheater
Section EE’ Floor Plan
View of theAmphitheater

Guided Meditation Units

Section HH’
Floor Plan
View of the Guided Meditation Units

Bijou Dwellings | Mumbai, India

Micro-Housing | Competion Work + Academic Project | 2020 Studio+US Competition | Honorable Mention

Software used: AutoCAD, SketchUp, Enscape, Photoshop

In the densely populated landscape of Mumbai, where space is a luxury, this Micro-Housing project presents an innovative and adaptable approach to urban living. Addressing the challenge of spatial constraints, the design maximizes efficiency, flexibility, and sustainability, ensuring that compact dwellings provide both functionality and comfort. Each unit is carefully designed to optimize every square foot, integrating smart technology, multifunctional furniture, and modular layouts that adapt to residents’ evolving needs. Passive design strategies, such as natural ventilation, daylight optimization, and mutual shading, contribute to a more sustainable urban habitat while ecofriendly materials minimize environmental impact. Beyond just housing, Bijou Dwellings redefines urban compact living, demonstrating how architectural ingenuity can transform even the most constrained spaces into highquality, livable environments. By seamlessly blending innovation, adaptability, and sustainability, this project offers a vision for the future of urban housing—one that is efficient, responsive, and human-centered.

Living Room Kitchen
Bedroom
Towards the Bedroom

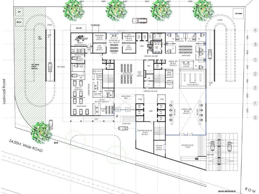
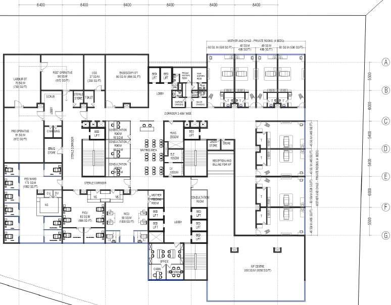
RHC Hospital | Pune, India

Professional Work | OPUS Design Studio

Guided by Ar. Ashit Ashok Parekh

Software used: AutoCAD, SketchUp, Lumion, Photoshop

This 150-bed multi-specialty hospital integrates advanced medical facilities with a focus on efficiency, patient well-being, and sustainability. Key departments, including Nuclear Medicine, an OT Complex, ICUs, and a Mother & Child Center, are designed for optimal functionality and seamless healthcare delivery. The basement level houses diagnostic imaging services such as CT and MRI, strategically positioned to enhance operational flow. Patient rooms prioritize comfort, hygiene, and healing environments, incorporating thoughtful design elements that support recovery. A notable feature is the penthouse-level “Premium Platinum Designation” patient rooms, offering private garden terraces that introduce a connection to nature, elevating the patient experience. This design balances technological advancement, spatial efficiency, and patient-centered care, setting a standard for modern healthcare environments.

View of the proposed Hospital

PROPOSED BUILDING

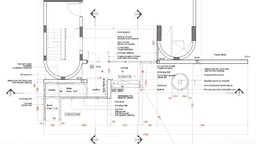
Facade Development Project | RHC Hospital Pune, India

Professional Work | OPUS Design Studio

Guided by Ar. Ashit Ashok Parekh

Software used: AutoCAD, SketchUp, Lumion, Photoshop

Led the Facade Development Project, overseeing the design development, material selection, and execution strategy to ensure a high-performance, aesthetically cohesive facade system. Responsibilities included coordinating with consultants, contractors, and the hospital’s projects department, facilitating seamless communication to align architectural intent with technical feasibility. The project emphasized sustainability, durability, and efficiency, integrating context-appropriate materials that balanced aesthetic appeal with functional resilience. Managed workflow optimization, compliance with hospital standards, and quality control, ensuring the facade met both environmental and operational requirements while enhancing the overall architectural identity of the building.

View of the proposed Facade

Transformable Model | UIUC

Planning and Design of Structural Systems | Group Project

Instructor: Prof. Sudarshan Krishnan

Software used: AutoCAD, SketchUp, Rhino (Model was laser cut)

This project was developed as a distinguished independent initiative at the University of Illinois UrbanaChampaign, where our team was granted the opportunity to conceptualize and execute a transformative architectural model. Working in a collaborative team of four, we integrated diverse skill sets and creative methodologies, navigating both design challenges and technical execution. This endeavor served as a platform for innovation, interdisciplinary problem-solving, and professional growth, reinforcing our ability to translate conceptual ideas into a tangible architectural expression.

Dodecahedron transformable model

Decahedron of dia. 3’

Considered one of the triangles and calculated value of alpha and length of triangle

Divided the triangle into two triangles

Progress diagram of the model
Scissor unit
Images of transformable model in process
Images of transformable model in process

Turn static files into dynamic content formats.

Create a flipbook
Issuu converts static files into: digital portfolios, online yearbooks, online catalogs, digital photo albums and more. Sign up and create your flipbook.