
Fairway on the 4 th Green
![]()

Fairway on the 4 th Green
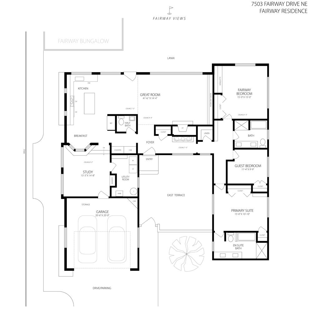
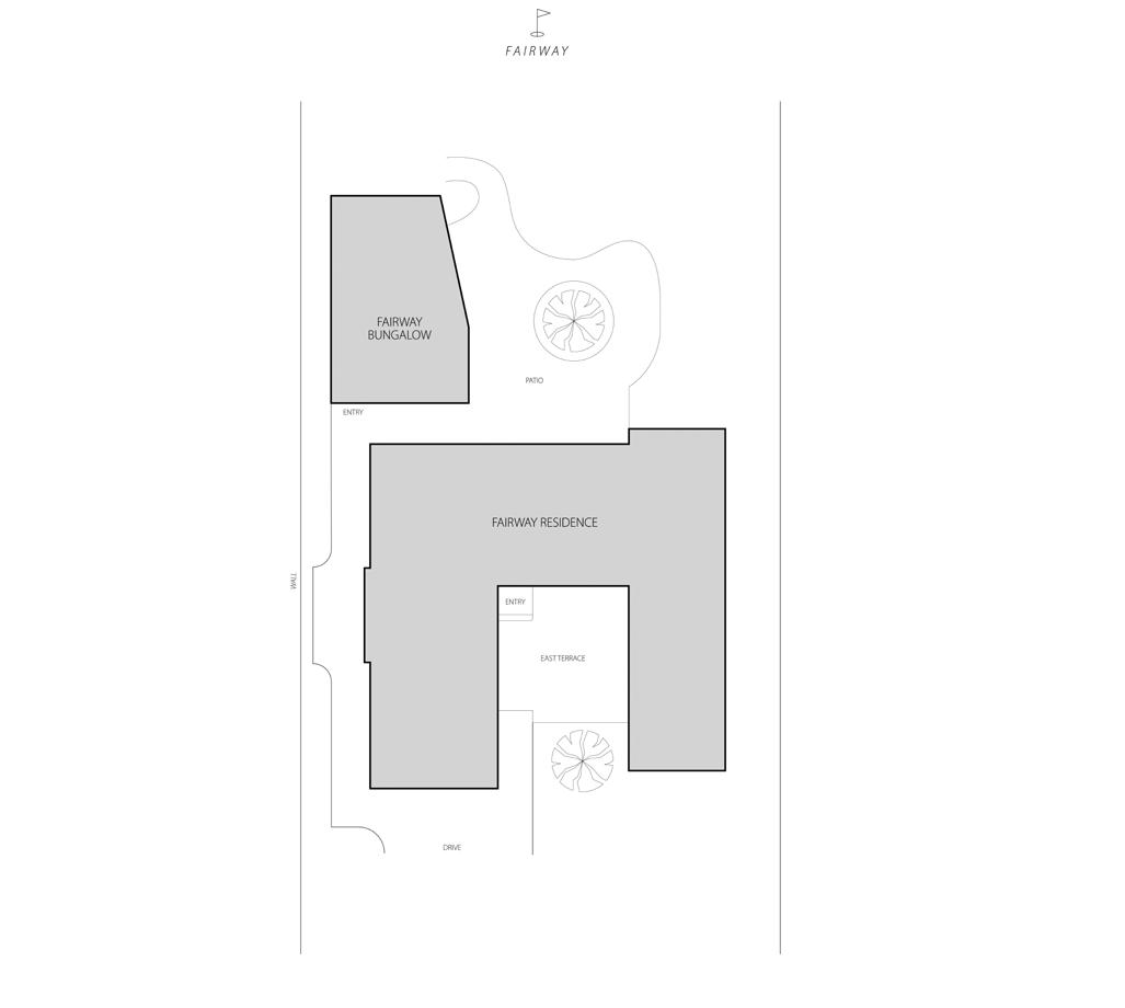
Streamlined form, high-performing function, and a tranquil setting unite in this quietly luxurious compound – featuring the 2,500sf early midcentury Fairway Residence, thoughtfully and durably rebuilt with the finest materials in 2008, and the aesthetically integrated, newly constructed Fairway Bungalow, sited on 10,000sf landscaped grounds with multiple terraces for intimate and large-scale gatherings, steps from a serene, manicured putting green. All the long, hard work of planning, permitting and building has been done for you! Simply move in and enjoy superbly designed one-level living and entertaining; versatile, accessible accommodation for long-term guests or short-term visitors; the peace of mind of a secure community; and convenient proximity to some of Seattle’s best recreation, shopping and dining.
7503 Fairway Drive NE, Seattle
$2,800,000
Versatile one-level living
700+ SF Fairway Bungalow
500 SF 2-car heated garage
Fairway Bungalow 2 BR 1 BA
Fairway Residence 3 BR 2.5 BA
Indoor-outdoor connections
2,500+ SF Fairway Residence
Meticulously documented rebuild
Built 1949, rebuilt from the studs 2008
Two of only 8 residences on the 4th green
Edward Krigsman • 206-387-6789 • ekreg.com


A visionary rebuild preserves the best features of the 1949 rambler – the U shape configured around a lushly planted courtyard terrace, the convivial open floor plan, expansive steel-framed windows more commonly found in commercial buildings – and updates the residence with completely new electrical, plumbing and insulation. Skillful use of a restrained palette of rich materials and handcrafted elements – African and Honduran mahogany, custom millwork by local artisans, herringbone brickwork, softly glowing Venetian plaster, copper and polished stainless steel, honed limestone, granite and Carrara marble – draws on decades of design connoisseurship and a gift for creative collaboration.
All-copper plumbing
Rich finishing materials
Venetian plaster walls
Wall & door of original steel-framed windows retrofitted with tempered glass
Sleek Italian cabinetry
Complete features list available
Bullnose countertops of honed black granite
Custom millwork by SODO-based OB Williams




A high-ceilinged, light-filled jewel box crowned with a roof of imported green glazed tilework, the 2023 Fairway Bungalow cheerfully defies all expectations for an accessory dwelling unit. (It is already a rare gem, the only known DADU at Sand Point Country Club.) Elegant materials, high-end fixtures and considered design assure continuity with the Fairway Residence. Wide passageways and completely level, unobstructed transitions – no barriers, no stairs – grant mobility to people of all abilities. Ideal for multigenerational living, the bungalow offers flexible use as a luxurious guesthouse, studio or work-from-home office space. Like the Fairway Residence, the Fairway Bungalow enjoys wide, soul-soothing views of the 4th green.
10 ft ceilings
Radiant-heated mahogany floors
Venetian plaster walls and ceilings
Copper exterior canopy and gutters
Gaggenau and Smeg kitchen appliances
Separate systems from Fairway Residence
Oculus window / Air conditioning
Verdant fairway views
Complete features list available
Designed for universal accessibility




Wellbeing is fostered by the cohesive and functional built environment. Every need has been anticipated and provided for; no detail has been overlooked nor expense spared to create comfort and sensory harmony. Custom light fixtures – some with hand-perforated shades that twinkle like a starry sky – on Lutron dimmers. A water-resistant, hand-poured terrazzo floor in the utility room. A restorative steam shower. Sculptural, ergonomic bathroom fittings. Silent underfloor radiant heating. All supported by super-efficient infrastructure, from HVAC to irrigation to EV charging to a back-up generator.
Calming green outlooks
T Steam shower in primary bath
Top-of-the-line bathroom fittings
Custom and hand-modified light fixtures
California Closets
Full features list available
HVAC, irrigation,back-up generator
Heated garage with Level 2 EV charger




Seattle businessman Marius Glerup (1905-2001) lived at the Fairway Residence for 40 years. He had earned recognition as captain of UW’s crew team in 1926-28 – a precursor of the heroic UW 1936 Olympic gold-winning team memorialized in Daniel James Brown’s 2013 nonfiction classic The Boys in the Boat and the 2023 film of the same name, directed by George Clooney. Glerup founded the MJ Glerup Company in 1938, supplying ingredients and packaging to the confectionery industry. His son-in-law Bill Revere joined the business in 1961. The Revere Group, which includes Glerup Revere Packaging and Revere Flexpak, is now a flourishing fourth-generation family business that has counted among its customers Costco, Dick’s Drive In, and Seattle Chocolate/Maeve.
The current seller, also a UW alum (with a bachelor’s degree in Fine Arts), is a highly successful Northwest designer-builder. He has brought to Fairway on the 4th Green his inspired artistic vision and lavish attention to detail.
Live at the Fairway Residence and inherit the legacy of local entrepreneurs and creators.




Comfortable, spacious and stylish, Fairway on the 4th Green presents you with a complete, cocooning world, created with intention and generosity. Should you feel the need to expand the compound, your purchase includes approved permits for a second-story addition. You will also receive steel-framed windows for the addition, already fabricated to match the originals. Or consider putting in an in-ground, midcentury-coded, kidney-shaped swimming pool on the lanai; the ultra-large gas meter has capacity to accommodate it. Host a nostalgic poolside tropical cocktail party overlooking the putting green!




Take advantage of the opportunity to join the waitlist for amenity-rich Sand Point Country Club (SPCC). Tiered membership levels provide access to social, swim and tennis, and members-only golf on the hilly, challenging 1927 18-hole course perched above Lake Washington. The junior Olympic pool, open year-round, hosts swim teams in season. The handsome Clubhouse, with sweeping views of the lake and the Cascade Mountains, offers dining, special events, and facility rental. The lower-level fitness club is open to members 24-7.
Catch the Burke-Gilman Trail and join the many joggers and cyclists who commute to UW, area hospitals, and the Fremont and South Lake Union tech hubs on the scenic 18-mile rail to trail. Or head further east to 350-acre Warren G. Magnuson Park with its mile of Lake Washington waterfront.
Tennis courts
Junior Olympic pool
Tiered membership at SPCC
Varied recreation at Magnuson Park
24-7 fitness center
Hilly 18-hole golf course
Clubhouse for dining and events
Proximity to scenic Burke-Gilman Trail










ekreg.com



Tune in to Power of
of the Pacific Northwest An audio storybook hosted by Edward – honoring places that matter and the people who steward, protect or celebrate them. In Episode 59, A Carpenter’s Covenant, Edward chats with craftsman and caretaker extraordinaire Scott Dolfay about the storied Loch Kelden, a Denny Blaine mansion built of

