
[SERINA SONG] PORTFOLIO 2024
E-mail: hszsong8@gmail.com / hszsong8@upenn.edu
Phone: +1(267)402-0407
Hi,
empathizes
and








![]()

[SERINA SONG] PORTFOLIO 2024
E-mail: hszsong8@gmail.com / hszsong8@upenn.edu
Phone: +1(267)402-0407
Hi,
empathizes
and








Group Work
Teammate: Douglas Wong; Instructor: Dorian Booth
University of Pennsylvania | Graduate School Y2 ARCH 602 Studio Project
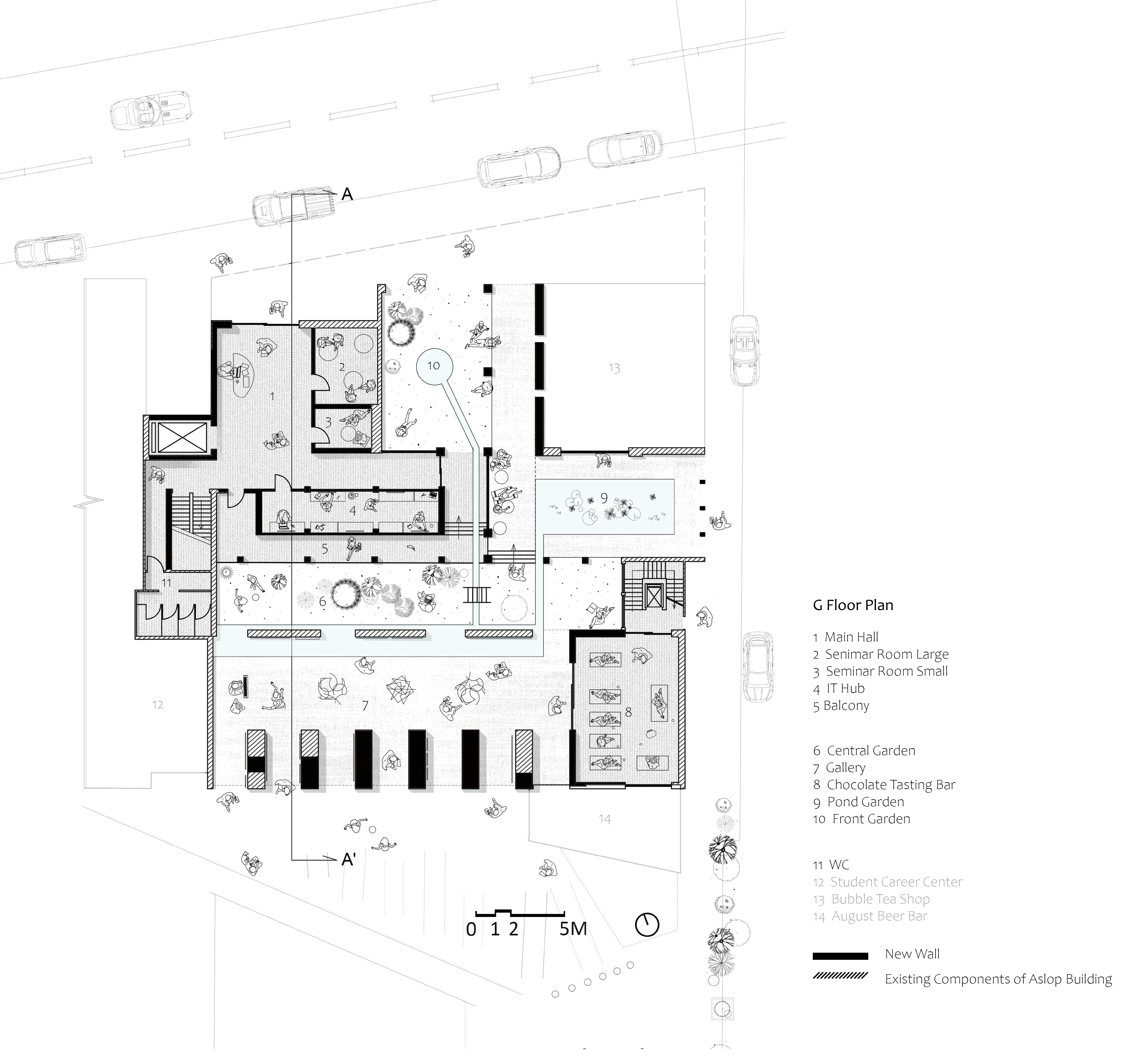
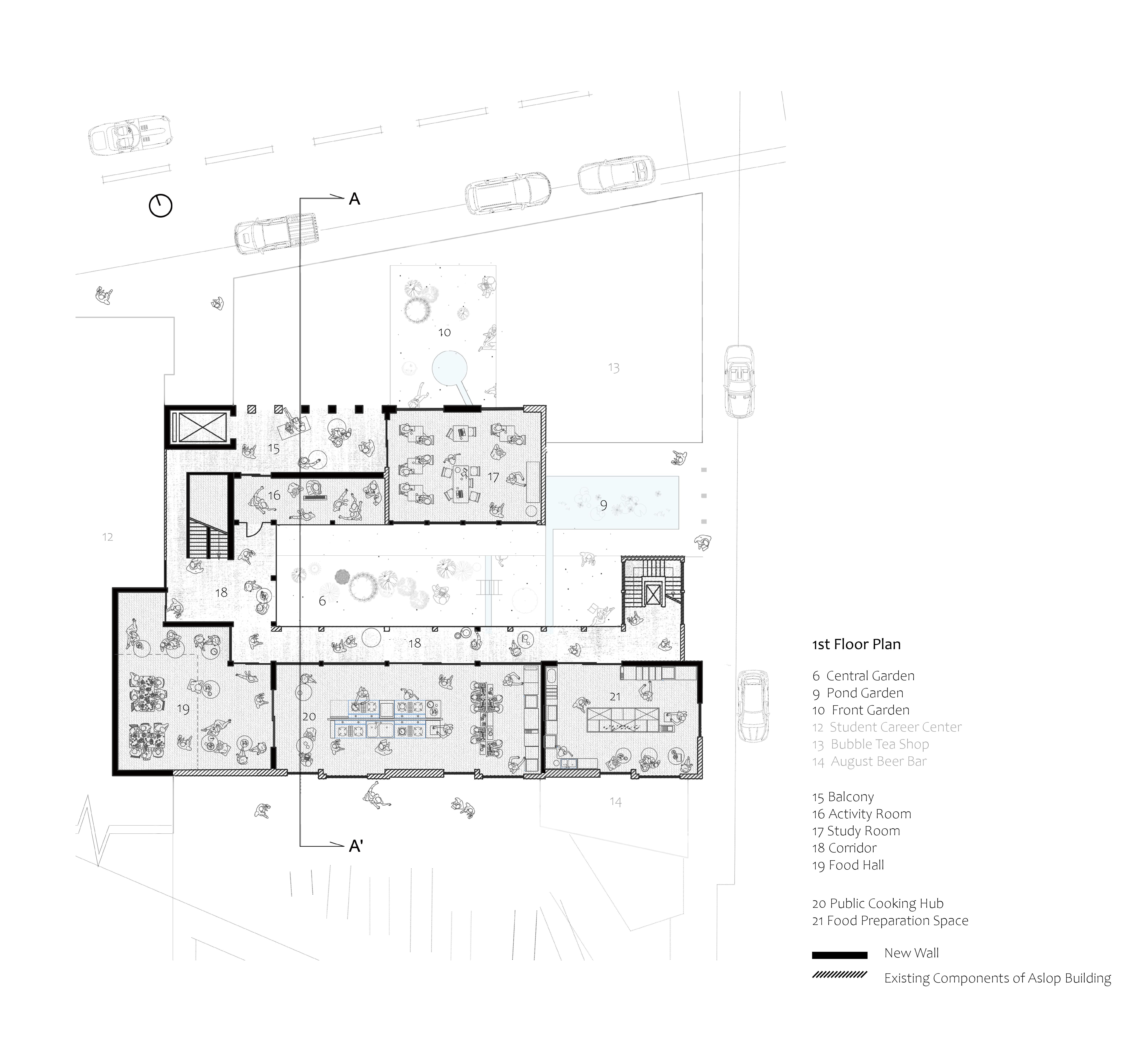
Project Location: College Point Boulevard, Flushing, Queens, New York
This project is located in Flushing, Queens , New York, which is designed to be a composite of ' clean water access centre' and ' community related program'. The 35,000 sq.ft. center contains both the equipment and mechanical spaces necessary for water filtration, as well as community related program such as spaces for accessing and distributing drinking water, bathing facilities, washing facilities, offices, events spaces, and educational areas.
The project began with researching the various technologies associated with water treatment and filtration which helps understand the basic mechanics and requirements of the various processes. Far from an autonomous system, the project also considered the relationship between the spaces meant for those that are servicing and maintaining the water filtration systems and the areas to be accessed by the broader public. Positioned on the border of heavy industrial, commercial, and residential urban fabric, the center also managed to negotiate between the specialized equipment and forms of water filtration systems while also creating accessible and engaging public spaces. The Industrial Assemblage are also reconsidered in the context of the program, hybridizing the infrastructural systems with a public facing community-based program.





















































Teammate: Wenny Tu; Instructor: Karel Klein
Every building is a camera, and every beam of light that penetrates a building’s window brings with it the tapestry of images from the world outside. When focused, this light discloses the urban narrative as an image, as a picture. This phenomenon finds resonance in Leonardo’s belief that all worldly things possess an inherent aesthetic capacity that allows them to generate images of themselves. He writes, “Every body fills the surrounding air with infinite images of itself.” The walls, floors, and ceilings of our buildings are imprinted with these infinite images, installing the city’s essence within their structure. We move within these spaces, unaware of the occluded visual symphony surrounding us, yet it is there, a secret gallery of the city’s soul.
In this project we used the ideas of architecture as camera and the Situationist dérive as techniques to re-see and re-engage the city. Utilizing several AI network types – StyleGANs, Diffusion networks, style transfer neural networks, etc., we experimented with the ways in which training, and particularly mis-training artificial intelligence produces a kind of image-rich “knowledge” that appears more like an AI subconscious than our familiar, everyday reality. The images that come from this artificial subconscious are oneiric and strange yet have a photographic precision that allows us to see beyond the limits of our own aesthetic reality with great fidelity. And despite the AI networks being used as tools for us to produce images, they persist in having a kind of intelligent and creative autonomy outside of our control.









Design Concept: Archive of Culture & History
The top half is designed to be a gallery that stores time, history, and the memory of downtown LA. The interior design of the gallery space is a mixture of shapes and geometries found in the district. We utilized AI to collect and regenerate a visual symphony that encapsulates the city's soul. Later on, we drew inspiration from the arrangement of space and depth in the AI image for the section design of the Apple Tower Theatre.
The bottom half of this project is designed as an actual archive of books, a library. This forms a contrast of abstraction and concreteness to the time capsule gallery above.



































In this phase, we applied the AI Seed (the final outcome from last page) to the interior wall of Apple Tower Theatre. By doing this, the richness of spaces was taken to the extreme (left image). In the next step, we extracted the spatial qualities and spatial relations in the top image, and kept the richness in our design (bottom image).
Left: AI image overlayed on original section Bottom: New design inspired by AI






“The city is my orchard” is a quote from Dan Haslerfounder ofthe The Moss Cider Project. This SocialEnterprise was based in the neighbourhood of Moss Sideclose to Manchester city centre. Apple trees are commonplace in suburban gardens in the city andwhen there is an abundant crop fruit is oftenleft to fall and rot on the ground, going to waste. This project allowed residents to donate their cropof apples to the project, receiving in exchange a highquality,hand made,cider or non-alcoholic juice. Theapples were pressed by volunteers and a proportion of theproduct was sold wholesale to local stockists, providing a desirable artisanal product, supporting the local economy and reducing waste. In spite of being small in scale, projects such as this start to challenge established models of food production, reconnecting food to its locale and with a focus on quality over profit. This design project is conducted in the background ofthe Moss Cider Project, Unlike traditional wine factory, inthis program, the author tried to exposed all the machinesand the working fows to the building utilizers. lt wouldbe like an museum exhibiting the cider-making process. Moreover,the gradual process of exposing themachinery monsters would bring an extrodinaryexperience to the visitors, Starting from showing the footof the iceberg, the space will ultimately put people in ansurreal space with machines surrounding the 3d space.At the same time, people could grab a bottle of cider andgather together with the community.








Individual Work Instructor: Anna
University of Liverpool | Undergraduate School
Project Location: Mossley Hill, Liverpool, UK, L188BX
Project Type: Nursery School
This project is an exploration of aggregated polyhedra which form an infinite field. Through iterating upon the original infinite polyhedra by applying transformations such as stretching and shifting units, we produced a new and dynamic infinite field. By cutting this field using curved faces and the chamber envelope, we created a series of anomaly pieces in the aggregation’s resulting form as well as finalized the separation of two materials: shrink wrap and wood.

Before designing this nursery school, we noticed that various activities with facilities already exist on this site: a community football field, a public art center, and leisure facilities, among others, are already benefiting the well-being of the surrounding district. Our project is not here to disrupt the peace and balance of the existing harmony, but to complement the community. Therefore, this new project is designed to be semi-underground, creating a new center for this area without disturbing the current ecology.


Typology: Openings for Light
As this building is designed as a semi-underground project, the light becomes the most essential element. This page records a series of typology test for openings which aim to let more sunlight to get inside.







Individual Work
Critic: Dr. Franca Trubiano; Patrick Morgan; Ryan Palide
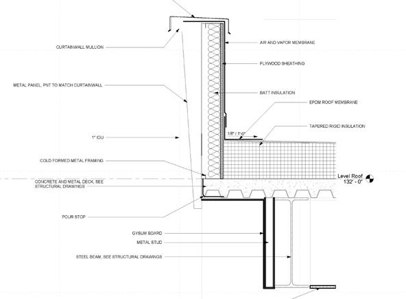
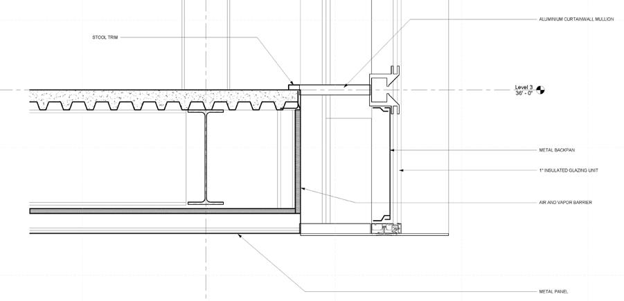
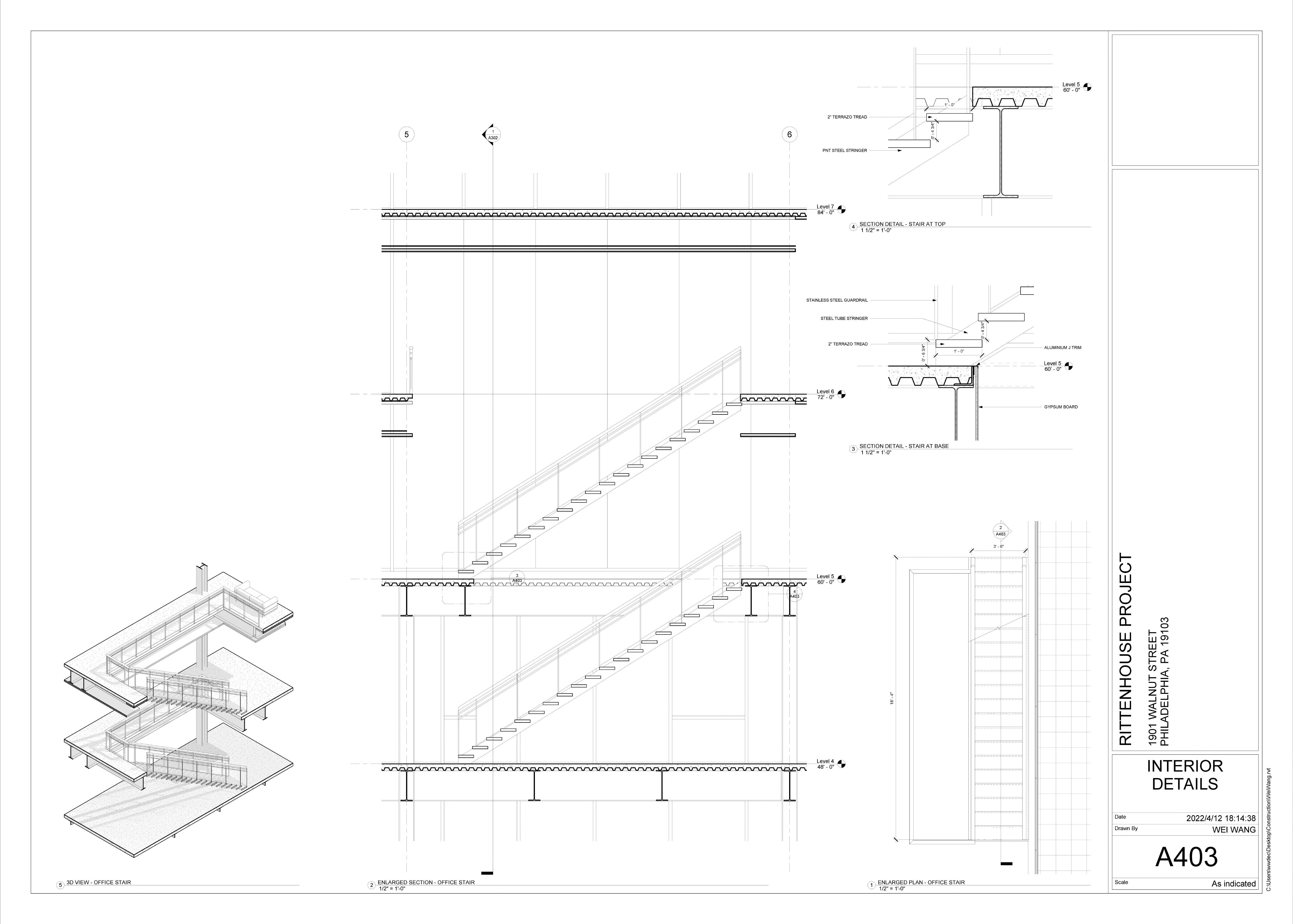
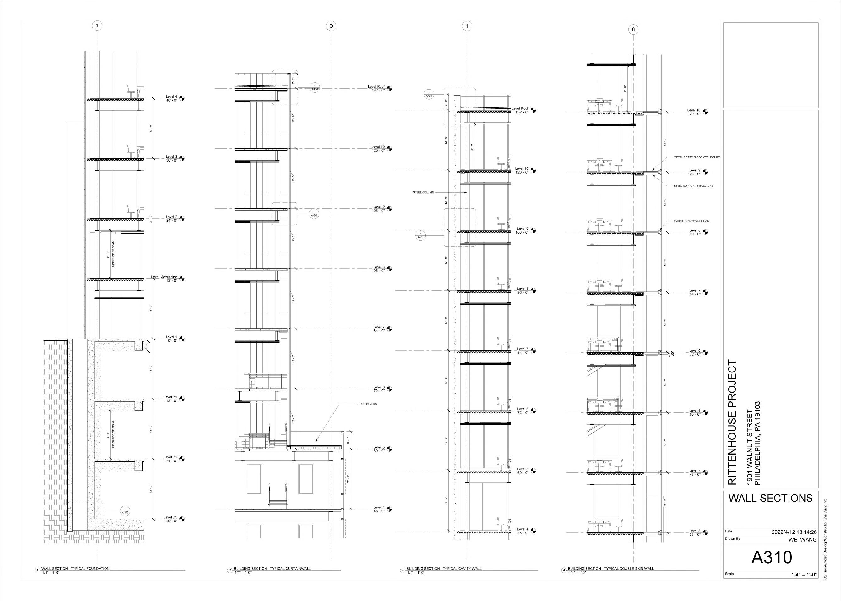
University of Pennsylvania |Graduate School 2022 Spring ARCH 532 Construction II


Left: Building Section - East/West Looking South 1/8" = 1'- 0"
Up: Outside Rendering View from Rittenhouse Square
Right: 3D View - Office Stair


















Collaborate with Ross Mackenzie & Siqi (Finale) Yao
Critic: José Aragüez
University of Pennsylvania | Graduate School Y1 ARCH 502 Studio Hyperlapse Chamber
Website Link: https://www.501curiouscabinets.com/projects-2021#/2021-hc-2/

This project is an exploration of aggregated polyhedra which form an infinite field. Through iterating upon the original infinite polyhedra by applying transformations such as stretching and shifting units, we produced a new and dynamic infinite field. By cutting this field using curved faces and the chamber envelope, we created a series of anomaly pieces in the aggregation’s resulting form as well as finalized the separation of two materials: shrink wrap and wood.








For 2022 HOK Competition | 2022 Spring Team:

























