Serina Song 2024 Portfolio

Page 1

[SERINA SONG] PORTFOLIO 2024

E-mail: hszsong8@gmail.com / hszsong8@upenn.edu

Phone: +1(267)402-0407

Hi,

INDEX 01 AquaFusion 02 AI Camera Obscura 03 Dinoysus 05 Carving Concavity 06 A Sip of Surreality 07 Wildest Echoes 04 The Shuffle Tower Clean Water Access Centre Community Space Machine Learning & AI Archive & Library & Art Gallery HOK Competition 2022 Revit Office Buidling Installation Design Cider Workshop Community Center Nusery School
power of design to bring a more dynamic and healthier living space for human.
I am Serina, an architect who empathizes with users and clients, utilizing the

AquaFusion - Clean Water Access Center

Group Work

Teammate: Douglas Wong; Instructor: Dorian Booth

University of Pennsylvania | Graduate School Y2 ARCH 602 Studio Project

Project Location: College Point Boulevard, Flushing, Queens, New York

This project is located in Flushing, Queens , New York, which is designed to be a composite of ' clean water access centre' and ' community related program'. The 35,000 sq.ft. center contains both the equipment and mechanical spaces necessary for water filtration, as well as community related program such as spaces for accessing and distributing drinking water, bathing facilities, washing facilities, offices, events spaces, and educational areas.

The project began with researching the various technologies associated with water treatment and filtration which helps understand the basic mechanics and requirements of the various processes. Far from an autonomous system, the project also considered the relationship between the spaces meant for those that are servicing and maintaining the water filtration systems and the areas to be accessed by the broader public. Positioned on the border of heavy industrial, commercial, and residential urban fabric, the center also managed to negotiate between the specialized equipment and forms of water filtration systems while also creating accessible and engaging public spaces. The Industrial Assemblage are also reconsidered in the context of the program, hybridizing the infrastructural systems with a public facing community-based program.

Factory Construction Site Retails no sense of belonging upset about physical working condition feel depressed in poor living environment missing public gathering space Hide & Seek Water Treatment Plant Office/Community Space Raw Water Backwash Water Clean Water
Georges Braque, Bottle of Rum, 1914
missing healthy working environment missing stress reliefing facilities 01 02 03 73.2% 85.7% 82% Survey inside the neighbourhood Design Strategy Water Treatment Stages 3 Main Problems Site +
Georges Braque, The Clarinet, 1913
1 1 A B C D 2 2 3 3 4 4 5 5 6 7 8 9 10 West-East Section 1-8"=1' 1. Classroom 2. Public Meeting Area 3. Stairway Commucating Space 4. Bar 5. Community Multimedia Center 6. Clean Water Access Center Exhibition Space I 7. Clean Water Access Center Exhibition Space II 8. Conference Room 9. Clean Water Access Center Exhibition Space III 10. Phase III Water Pond public gathering space stress reliefing area healthy environment community leisuring space
2nd Floor Plan 1-8"=1' 1. Phase I Plant-Pretreatment Equipment Plant 2. Phase II Plant-Membrane Filtration Equipment 3. Phase III Plant-Wastewater Treatment System 4. Community Multimedia Center 5. Private Meeting Room 6. Clean Water Access Center Exhibition Space I 7. Clean Water Access Center Exhibition Space II 8. WC 9. Kitchen + Dining Space 10. Office 1 4 5 6 7 8 9 10 2 3
Detailed Section Interior Renderings Water Access Glass Metal Mesh Steel Pipe Metal Plate
Physical Model Photograph 1 Physical Model Photograph 2

Group Work

Teammate: Wenny Tu; Instructor: Karel Klein

Every building is a camera, and every beam of light that penetrates a building’s window brings with it the tapestry of images from the world outside. When focused, this light discloses the urban narrative as an image, as a picture. This phenomenon finds resonance in Leonardo’s belief that all worldly things possess an inherent aesthetic capacity that allows them to generate images of themselves. He writes, “Every body fills the surrounding air with infinite images of itself.” The walls, floors, and ceilings of our buildings are imprinted with these infinite images, installing the city’s essence within their structure. We move within these spaces, unaware of the occluded visual symphony surrounding us, yet it is there, a secret gallery of the city’s soul.

In this project we used the ideas of architecture as camera and the Situationist dérive as techniques to re-see and re-engage the city. Utilizing several AI network types – StyleGANs, Diffusion networks, style transfer neural networks, etc., we experimented with the ways in which training, and particularly mis-training artificial intelligence produces a kind of image-rich “knowledge” that appears more like an AI subconscious than our familiar, everyday reality. The images that come from this artificial subconscious are oneiric and strange yet have a photographic precision that allows us to see beyond the limits of our own aesthetic reality with great fidelity. And despite the AI networks being used as tools for us to produce images, they persist in having a kind of intelligent and creative autonomy outside of our control.

University of Pennsylvania | Graduate School Y3 ARCH 701 Studio Project Project Location: Apple Tower Theatre, Downtown LA, California AI with its Camera Obscura

The top half is designed to be a gallery that stores time, history, and the memory of downtown LA. The interior design of the gallery space is a mixture of shapes and geometries found in the district. We utilized AI to collect and regenerate a visual symphony that encapsulates the city's soul. Later on, we drew inspiration from the arrangement of space and depth in the AI image for the section design of the Apple Tower Theatre.

The bottom half of this project is designed as an actual archive of books, a library. This forms a contrast of abstraction and concreteness to the time capsule gallery above.

Image taken in downtown LA Adjust AI image training Exsting building section Left: Chunk model front site Right: Chunck model back side New section design inspired by AI Image training using StyleGan AI Archive of time & space for DTLA Time capsule gallery Physical library Archive of books Final output from AI Space design ideas drawn from AI Further development of plan Design Timeline & Strategy Design Concept
Ostagram AI Training Final Output
AI Training Seeds Input for Stylgan AI Machine Learning AI Machine Learning Curve 01 (Top Images) 02
03
04 05
Stylgan
(Right Images) (Bottom Images)
AI Image Training
Stylegan in Google Colab Notebook

From AI Image to Space Design

In this phase, we applied the AI Seed (the final outcome from last page) to the interior wall of Apple Tower Theatre. By doing this, the richness of spaces was taken to the extreme (left image). In the next step, we extracted the spatial qualities and spatial relations in the top image, and kept the richness in our design (bottom image).

Left: AI image overlayed on original section Bottom: New design inspired by AI

2nd Floor Plan 1.
2.
I 3.
4.
5.
6.
7.
I 8. Storage II 9. Archive II 10. Reading Area 1 2 3 5 6 4 7 8 10 9
Gallery
Archive
Mechanism Room
Meeting Room
Bleacher steps
Leisuring Area
Storage
Left: G Floor Plan
2.
3.
4.
5.
6.
7.
8.
9.Female
10.Reading
11.
12.
13.
14.
1 2 3 4 5 7 8 9 12 10 11 13 14 6
Top Right: Interior Closeup Bottom: Chunk Models 1. Reception Gallery I Main Gallery Stage Archive I Archive II Meeting Room Male WC WC Area Archive III Mechanism Room Bar Waiting Space

For 2022 HOK Competition | 2022 Spring Team:

DINOYSUS Serina Song; Ross Meckenzie

THE SHUFFLE TOWER

Individual Work

Critic: Dr. Franca Trubiano; Patrick Morgan; Ryan Palide

University of Pennsylvania |Graduate School 2022 Spring ARCH 532 Construction II

Left: Building Section - East/West Looking South 1/8" = 1'- 0"

Up: Outside Rendering View from Rittenhouse Square

Right: 3D View - Office Stair

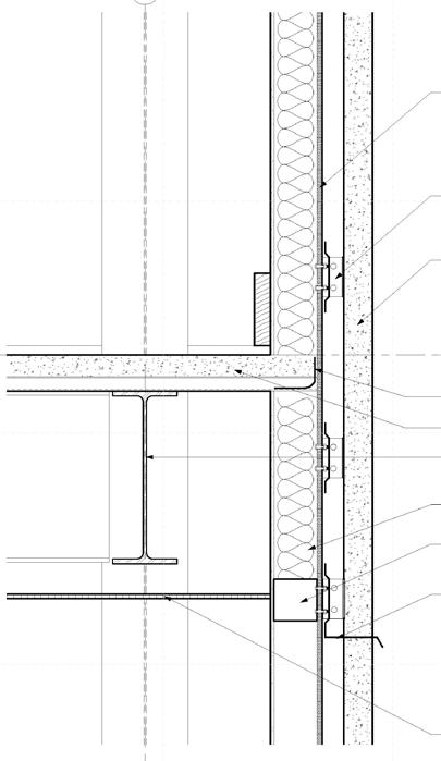
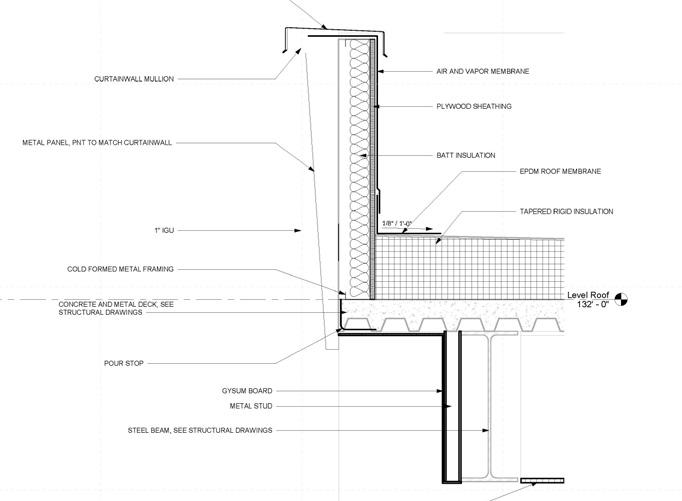
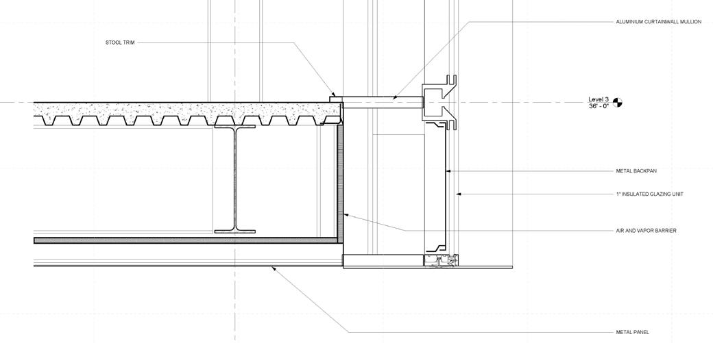
Reflected Ceiling Plan - Mezzanine 1/8" = 1'- 0" Section Detail-Parapet at Curtainwall 1 1/2"= 1'-0" Section Detail - Typical Soffit 1 1/2"= 1'-0"
Wall 1
Section Destail - Floor at Cavity Wall 1 1/2"= 1'-0"
Section Destail - Parapet at Cavity 1/2"= 1'-0" Reflected Ceiling Plan - Mezzanine 1/8" = 1'- 0"

CARVING CONCAVITY

Collaborate with Ross Mackenzie & Siqi (Finale) Yao

Critic: José Aragüez

University of Pennsylvania | Graduate School Y1 ARCH 502 Studio Hyperlapse Chamber

Website Link: https://www.501curiouscabinets.com/projects-2021#/2021-hc-2/

This project is an exploration of aggregated polyhedra which form an infinite field. Through iterating upon the original infinite polyhedra by applying transformations such as stretching and shifting units, we produced a new and dynamic infinite field. By cutting this field using curved faces and the chamber envelope, we created a series of anomaly pieces in the aggregation’s resulting form as well as finalized the separation of two materials: shrink wrap and wood.

variations anomalies material distribution
shrink wrap acrylic frames Inner Structure: MDF Frames Outer Skin: Wood Veneer Inner Structure: Acrylic Frames Outer Skin: Shrink Wrap

A Sip of Surreality

“The city is my orchard” is a quote from Dan Haslerfounder ofthe The Moss Cider Project. This SocialEnterprise was based in the neighbourhood of Moss Sideclose to Manchester city centre. Apple trees are commonplace in suburban gardens in the city andwhen there is an abundant crop fruit is oftenleft to fall and rot on the ground, going to waste. This project allowed residents to donate their cropof apples to the project, receiving in exchange a highquality,hand made,cider or non-alcoholic juice. Theapples were pressed by volunteers and a proportion of theproduct was sold wholesale to local stockists, providing a desirable artisanal product, supporting the local economy and reducing waste. In spite of being small in scale, projects such as this start to challenge established models of food production, reconnecting food to its locale and with a focus on quality over profit. This design project is conducted in the background ofthe Moss Cider Project, Unlike traditional wine factory, inthis program, the author tried to exposed all the machinesand the working fows to the building utilizers. lt wouldbe like an museum exhibiting the cider-making process. Moreover,the gradual process of exposing themachinery monsters would bring an extrodinaryexperience to the visitors, Starting from showing the footof the iceberg, the space will ultimately put people in ansurreal space with machines surrounding the 3d space.At the same time, people could grab a bottle of cider andgather together with the community.

Individual Work
Project
University of Liverpool | Undergraduate School Y3 Studio Project
Location: Sefton Park, Liverpool, UK L171AP
Site Analysis

Wildest Echoes

Individual Work Instructor: Anna Gidman

University of Liverpool | Undergraduate School

Project Location: Sefton Park, Liverpool, UK, L188BX

Project Type: Nursery School

This project is an exploration of aggregated polyhedra which form an infinite field. Through iterating upon the original infinite polyhedra by applying transformations such as stretching and shifting units, we produced a new and dynamic infinite field. By cutting this field using curved faces and the chamber envelope, we created a series of anomaly pieces in the aggregation’s resulting form as well as finalized the separation of two materials: shrink wrap and wood.

Activities on Site

Before designing this nursery school, we noticed that various activities with facilities already exist on this site: a community football field, a public art center, and leisure facilities, among others, are already benefiting the well-being of the surrounding district. Our project is not here to disrupt the peace and balance of the existing harmony, but to complement the community. Therefore, this new project is designed to be semi-underground, creating a new center for this area without disturbing the current ecology.

Typology: Openings for Light

As this building is designed as a semi-underground project, the light becomes the most essential element. This page records a series of typology test for openings which aim to let more sunlight to get inside.

1. Male Toilet 2. Store 3. Office 4. Female WC 5. Staff WC 6. Laundary Room 7. Meeting Room 8. Showering Room 9. Pram Store 10. Archive 11. Parents Room 12.Staff Room 13.Kitchen 14. Changing Room 15. WC 16. Classroom 17. Balcony 18. Store Room 19. Reception 20.Main Hall 21. Storage for Community 22. Outdoor Playing Store

Other Works

Top Left: Material Test Recipie: Water Plastic + Rockied + Pigment Bottom Left: Chunk Model in 2 Scales Top Right: Rendering Drawing Bottom Right: Rendering Drawing

Turn static files into dynamic content formats.

Create a flipbook
Issuu converts static files into: digital portfolios, online yearbooks, online catalogs, digital photo albums and more. Sign up and create your flipbook.
Serina Song 2024 Portfolio by Serina Song - Issuu