Architectural Portfolio of Serap Doglarlioglu

Page 1


ARCHITECTURAL PORTFOLIO

BY SERAP DOGLARLIOGLU

CONTENTS

00. About Me

01. Beltur Hotel - Interior Design Project, Freelance 2024

02. Noah’s Arc Bar - Interior Design Project, Freelance 2024

03. History & Theory: Book Artefact, MArch Year 1

04. Contemporary Art Museum, BArch Year 4

05. Quality of Life Pavilion, BArch Year 4

06. Made in Italy Design Museum, BArch Year 3

Design, art and fashion are at the core of my soul. am always striving to find creative solutions while doing a detailed research. Collaboration, inspiration, and innovation are the foundation of my work.

Besides Turkey, I lived in Spain, England, Italy and Canada for my education. I believe that living in different countries, meeting with locals and learning about their cultures can expand our vision. Also, getting into new environments and socialising with a range of diverse people made me more adaptable and a quick problem-solver. I am a cheerful, humanitarian and outgoing person who has excellent communication skills.

My approach is giving the necessary importance to the conceptual phase of the design journey, trying to underline the design problems while never forgetting about the relation between space and human psychology.

I am passionate about making people smile and I do my work with my full capacity.

SERAP DOGLARLIOGLU

Beltur Hotel - Interior Design Project

Location: Antalya, Turkey / Client: Beltur Hotel / Freelance Project - 2024

EFFICIENT USE OF RESTRICTED SPACE

The Beltur Hotel Interior Design Project involved designing the interiors of 55 hotel rooms, balancing cost efficiency with a modern aesthetic. The client required a contemporary yet budget-conscious design that would enhance guest experience while adhering to financial constraints.

One of the key challenges was maximizing functionality in compact spaces. Thoughtful spatial planning, multi-functional furniture, and strategic material selections were essential to creating a sense of openness and comfort within the limited room sizes.

Additionally, the project required working within an aging building, necessitating significant renovations while ensuring that all upgrades remained within the budget. Efficient use of resources, careful selection of durable yet affordable materials, and a smart renovation strategy were critical to revitalizing the space while maintaining cost-effectiveness.

This project showcases my ability to navigate design challenges, optimize small spaces, and create modern, functional interiors within real-world budgetary and structural constraints.

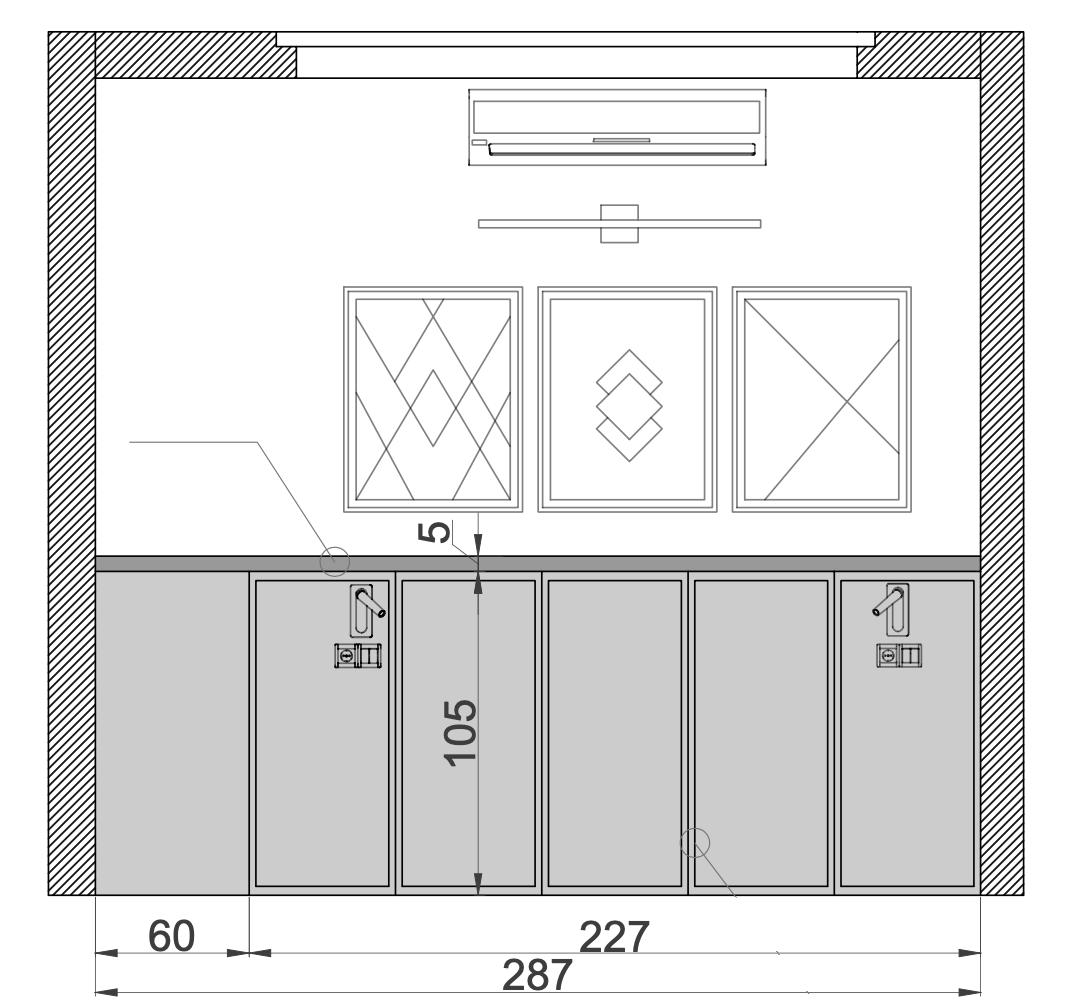
DARK GRAY CROWN MOLDING & PLINTH
SLIDING DOOR
SLIDE RAIL
LED CHANNEL
WARDROBE & MAKE-UP UNIT

CONSTRUCTION PROCESS & ON-SITE SUPERVISION

The construction phase provided valuable hands-on experience in site supervision and project execution. Overseeing the implementation of my design, closely monitored construction progress to ensure that every detail aligned with the original vision while staying within budget and timeline constraints. This process required effective leadership on-site, coordinating with contractors, craftsmen, and furniture makers to translate design concepts into reality.

Clear and continuous communication with the construction team was essential in addressing unforeseen challenges, making real-time adjustments, and maintaining efficiency Collaborating with furniture manufacturers also played a crucial role in customizing space-saving solutions that fit the compact rooms while ensuring durability and aesthetics. This experience strengthened my ability to bridge the gap between design and execution, problem-solve in real time, and lead a multidisciplinary team toward a shared goal.

Noah’s Ark Bar - Interior Design Project

Location: Antalya, Turkey / Client: Kot Building Company / Freelance Project - 2024

CONCEPTUAL DESIGN

The Noah’s Ark Bar project was a unique opportunity to blend luxury interior design with a strong thematic concept. The client envisioned an upscale venue inspired by Noah’s Ark, where the design would symbolize a place of gathering, connection, and contrast. The challenge was to create a space that seamlessly combined a relaxed lounge area with an energetic dance floor and DJ booth, all within a cohesive aesthetic.

In addition to the thematic inspiration, the client requested an industrial aesthetic as the foundation of the design. The venue’s rectangular space posed an interesting challenge, as the client desired a curvilinear lounge seating unit to anchor the interior, integrating both the DJ booth and seating into a single, fluid structure. To complement this design choice, introduced a series of arches along the back wall, reinforcing the curvature of the seating while adding depth and continuity to the space.

A distinctive element of the project was the inclusion of ancient Greek architectural and sculptural references. The client wanted to incorporate classical Greek columns, which were strategically placed to create a striking juxtaposition against the industrial materials. Additionally, introduced two Greek sculptures - one male and one female - to symbolize the pairs of animals in Noah’s Ark, bridging the biblical theme with a refined classical aesthetic. This fusion of narratives allowed the space to feel both mythological and modern, creating an immersive experience where history storytelling, and contemporary nightlife intersect.

SYMBOLIC VESSEL

The exterior design of the Noah’s Ark Bar was shaped by both functional and conceptual considerations. One of the key requests from the client was to conceal the existing old brick roof, as it did not align with the envisioned aesthetic. To achieve this, we leveraged the rectangular form of the building and designed an elevated façade that wraps around the rooftop, creating the illusion of a floating structure. The chosen material—rusted metal panels— enhances the industrial aesthetic while reinforcing the metaphor of an aged ship, tying back to the theme of Noah’s Ark.

Strategically placed vertical lights along the parapet further evoke the image of a historic vessel, giving the building a fortress-like presence. Below, floor-to-ceiling glass walls allow glimpses of the rich interior, creating a visual contrast between the solid, industrial exterior and the inviting atmosphere within. The entrance, marked by a dramatic, sculptural relief, serves as a focal point, hinting at the thematic fusion of biblical and classical references that continue inside. Additionally, a series of lush, linear planters along the perimeter soften the industrial materials, adding an organic element that subtly nods to the story’s connection with nature and renewal.

UNDER THE DECK

A key atmospheric element of the Noah’s Ark Bar was the interplay of light and shadow, designed to evoke the feeling of being beneath the deck of a ship. At the heart of this concept is a sculptural installation mounted on the wall, which interacts dynamically with a carefully designed lighting effect. The shadow cast on the sculpture mirrors the pattern of a wooden hatch cover commonly found on boats, reinforcing the illusion of filtered moonlight streaming through the gaps above.

This detail transforms the space into an immersive experience, transporting guests into a setting reminiscent of the Ark’s lower deck. The interplay of solid and void, darkness and illumination, strengthens the thematic connection while also adding depth and drama to the interior. By merging architecture, lighting, and symbolism, this design choice creates a compelling narrative moment within the space, enhancing the venue’s overall concept.

The patio features an aged oak wood finish, symbolizing the weathered deck of an old ship and enhancing the venue’s nautical theme. This rich texture adds warmth while reinforcing the Noah’s Ark concept.

To maintain openness, the client opted to forgo traditional entrance doors, using sliding windows instead. This design choice removes boundaries between inside and outside, creating a fluid transition that encourages movement and connection - key themes of the project.

AN OPEN DECK

LUXURIOUS THEMATIC INTERIOR DESIGN

To achieve a seamless fusion of luxury, function, and storytelling, designed a custom lounge couch with a built-in DJ booth, allowing the space to transition effortlessly between an intimate social setting and a dynamic nightlife experience. The exterior façade, inspired by the ark itself, creates a bold first impression, while the interior balances contrast and cohesion—reflecting the diverse energy of guests seeking both relaxation and movement.

The material palette further reinforces this duality. The patio features aged dark oak, symbolizing the weathered deck of an old ship, while the interior adopts a lighter, industrial aesthetic with grey tiles and softer wood finishes, creating a refined yet raw ambiance. Decorative patterned tiles around the bar draw attention to it as the heart of the space, anchoring the design with a visually rich focal point. The careful interplay of textures—warm wood, cool stone, and metal accents—ensures an atmosphere that is both inviting and sophisticated.

This project required a meticulous balance between industrial materials, luxurious finishes, and immersive storytelling. Every element, from bespoke furniture to architectural details, was designed to create a one-of-a-kind environment that elevates the guest experience, seamlessly blending theme, function, and atmosphere.

INTERIOR FINISHES: to create the industrial aestheic
KITCHEN
BATHROOM MEN BATHROOM WOMEN
CLOSED PATIO
LOUNGE
bar stools- gray fabric cover rough wall finish & metal details
MULTIPURPOSE
CLOSED PATIO
KITCHEN
DJ BOOTH

History&Theory:Artefact

Tutor: Willem de Bruijn/AUB Masterof Architecture ARB, RIBA Part 2: Year 1

Fall Term Project

DESCRIPTION

I created this artefact as a response to ‘The Gray Cloth with Ten Percent White’ by Paul Scheerbart. I wanted the movie poster to look like an image from the 1950s, but we had to photoshoot with contemporary cameras which produce very high-resolution results. According to my researches, movie posters from 1950’s were usually from hand sketches and oil paintings. In order to recreate the visual effect watched many tutorials. applied 10 different combination of filters to create an oil painting effect.

The male character’s posture was an important detail, he must stand tall, self-confident and selfish. Inspired by the architect’s stance on the Fountainhead movie posters, made my model fit into that pose.

COLLABORATION

I collaborated with people from other departments. I worked with a photographer, (Siyuan Xin from MA Commercial Photography) a make-up artist (Rita Haddad from the Makeup Short Course), and two models to act Clara (Elif Ara from MA Graphic Design) and Herr Krug. (Adrian Finn from Master of Architecture)

The most challenging part of the photoshoot was the preparation phase. tried to find a costume that matches the style of the 1950’s. personally talked to the Historical Costume Department to borrow gray clothes for Clara’s role. Unfortunately, they were already busy with costumes for the theatre department. convince them to give me at least a hat for some hours. could not figure out a gray outfit for Clara then decided to go with black and white format for Clara’s part in poster.

POSTER DESIGN

The poster is structured by^ grid system and is divided into three parts.

Herr Krug is in the middle part between his architectural work and his marriage. Clara emerges from her husband’s shadow and totally black and white. Herr Krug’s face looks towards to his glass architecture and she is always behind him, in his shadow. She has to travel everywhere with him all around the world like his shadow. The gray look of her represents how her husband steal colours from her life. The appearance of Clara’s part in the poster is 10% white and the gray shadow become her dress. The third part of poster contains Herr Krug’s glass architecture. The image refers to Taut’s Glass Pavilion from the Glass! Love!! Perpetual Motion!!!.

“Frontspiece: Josiah McElheny, Scheerbart Hand-Colors Taut’s Glass House,2014.

During the shoot, I read quotes from the book to the models to help them to connect with their character. Elif told me that the way direct them helped her a lot to feel the character and change the mimics accordingly. That four hours of photoshoot were quite fun and great experience for all of us, but it also helped me to design the poster in my mind as I spent four hours to imagine the chapters and characters turned into real life, after this practice the story of book was much clear than before.

Contemporary Art Museum

Location: Sisli, Istanbul, Turkey / Tutor:

DESCRIPTION

The project site is located in Şişli, between Maçka Democracy Park, which is important for the nature in a cosmopolitan city like Istanbul and also for Kadırgalar road which is busy and noisy because of the city’s traffic density. The site is surrounded by hotels, schools, congress centre, stadium, many luxury shops and restaurants.

Due to its topographic condition, the site is located in the lowland which transforms the roof into the fifth facade of the building.The challenge of the project is designing a building in between a natural, peaceful area and a chaotic, man-made area.The questions asked myself before starting the conceptual process are:

Will the design of the museum follow the chaos or tranquillity?

How will the fifth facade affect the form of the museum?

Will the form of the museum be fragmented or one mass?

legibility map of Macka
historic gasometer & the site of the museum view from Macka Democrasy Park

The north-east facade is designed with maximum transparency in order to pull the green area inside of the museum.

FACADE GAMES

DAY AND NIGHT

QUALITY OF LIFE PAVILION

Location: New Walk, Leicester, UK / Tutor: Vasilena Vassilev / DMU Bachelor of Architecture Year 4 Fall Term Project

DESCRIPTION

The aim of the project is changing the identity of parks in Leicester The site of the project is located in New Walk which is surrounded by trees, parks, historical buildings, cafes and one linear pedestrian way. The problem which was detected in the neighbourhood is that parks and green spaces are passive. There are only trees and grass, which causes a lack of dynamism in the area. Water elements are missing if we consider the importance of the River Soar in Leicester. New Walk is closer to the train station than to the river, so water elements would help to keep the overall balance of the city. The challenge is designing a pavilion next to the New Walk Museum. The most important design question for me was: Will the design be dug into the ground in order to preserve the silhouette of the area or will the design be over the ground?

Columns (which you can sit on as a bench) create a connection between museum and pavilion, they take people from museum to pavilion.

The big tree in the centre is replaced by a fountain to create dynamism. Trees are located randomly around the pavilion to strengthen that aim. The project is dug into the earth, so the pavilion does not change the identity of the urban context. Circulation is clear with two separate ramps. The pavilion keeps preserves the idea of the park. For example, there is a small café which allows you to take your coffee out but not to sit inside, so you need to use stairs or semi-open resting places. The green roof keeps the grass pattern of the park. Level difference and blanks between buildings make the

Shelters and columns are made from lumber which is water resistance wood.

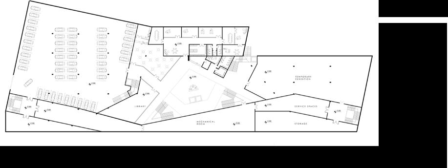
Made In Italy Design Art Museum

Location: Giardino, Rome, Italy / Tutor: Dr. Hicran Topcu Campagna / International Academy of Rome: Year 3 Fall Term Project

DESCRIPTION

Rome is a city defined by its ancient architecture, making the integration of contemporary design a significant challenge. This project focuses on designing a museum dedicated to showcasing ‘Made in Italy’ products in the design category.

My approach emphasizes the dynamic level differences of the surrounding buildings, translating this instability into the museum’s form. By drawing inspiration from the architectural characteristics of the neighborhood, the design ensures a seamless integration while also critically engaging with the unbalanced heights of the context. This contrast introduces a sense of dynamism, enriching both the museum and its surroundings.

At the core of the concept is the idea of using contrast to create harmony. The site is fully utilized, with a circulation system woven through uninterrupted building blocks, offering visitors a sense of openness without stepping outside. Transparency and spatial flow reinforce the conceptual vision, enhancing the museum’s connection to its environment.

The centrally located entrance divides the site into private exhibition spaces and public social areas. Within these zones, buildings are separated by resting and circulation areas, ensuring a functional flow based on their intended purposes.

TR ANSPARENT CONNECTIONS

The main circulation system is designed within enclosed atrium spaces, ensuring clarity and ease of access. The use of transparent glass enhances this experience, creating an open atmosphere that gives visitors the sensation of being outdoors.

WHEN ARTIFICAL LIGHTING TAKES

THE DAY LIGHT’S ROLE

Turn static files into dynamic content formats.

Create a flipbook
Issuu converts static files into: digital portfolios, online yearbooks, online catalogs, digital photo albums and more. Sign up and create your flipbook.