NYUMBAMBU - Les cahiers de la permanence #5

Page 1

VENEZ NOUS RENDRE VISITE ! Permanence Rue Cavani Bé, Chirongui (entre le Pôle Culturel et le Lycée) Lundi - Mercredi - Vendredi 8h30-12h00 et 13h30-17h LYCÉE TANI MALANDI CHIRONGUI LYCÉE TANI MALANDI THÉMATIQUE DU MOIS : La maison du ProjetLES CAHIERS DE LA PERMANENCE WORK IN PROCESS LA MAISON DU PROJET #5 Permanence Architecturale NYU MBA MBU

INTRODUCTION

Cette nouvelle édition commence par un retour sur la phase APD qui a engendré des modifications significatives. En effet, le projet s’est adapté à des demandes spécifiques et a subi la crise des prix ac tuelle. Cette situation exceptionnelle a contraint l’équipe de Maîtrise d’œuvre à rechercher des pistes d’économies, et malheureusement à revoir certaines prestations à la baisse. On vous explique tout dans ce numéro.

La PERMANENCE revient sur l’exposition sur le réemploi qui s’est déroulée du 4 avril jusqu’au va cances scolaires. Si la fin d’année était chargée, les permanences de Tsimkoura (Atelier Piya) et de Longoni (YaHazi) nous ont aidé à monter cette ex position. Elle présente le Faré de Longoni, réalisé à partir de la déconstruction de la mairie de Sada, les projets de réemploi envisagés lors de la future déconstruction du collège de Tsimkoura et les éléments qui seront réemployés après la décon struction du lycée de Chirongui. Trois sites, trois approches et plusieurs projets et propositions.

Comme à chaque édition, nous vous présentons l’avancement des recherches sur le BAMBOU à Mayotte et le développement de la filière.

Cette nouvelle année scolaire est pour nous l’oc casion de planifier des ateliers participatifs avec les élèves le lycée général et la section d’enseigne ment professionnel.

A cette occasion nous vous parlerons de la MAI SON DU PROJET.

Enfin nous vous présenterons les RENCONTRES du mois.

BONNE LECTURE

! La Permanence
PAGE 2 01. Les optimisations de l’APD PAGE 12 02. EXPOSITION Retour sur le réemploi 03. Le Bambou Dernières actualités PAGE 20 04. La MAISON du PROJET « Vers une construction participa tive de la maison des lycéens » SOMMAIRE EN IMAGES PAGE 26 05. RENCONTRES Artisans, artistes et Partenaires culturels PAGE 28 1

01L’ACTUALITÉ DU LYCÉE

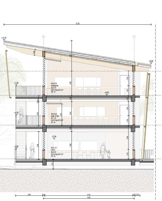
Suite aux différents événements internationaux, dont la crise énergétique et l’inflation post-covid, le monde subit une flambée des prix. Mayotte n’est pas épargnée, au contraire, elle qui est dépendante des importations.

À la restitution de la phase APD, l’estimation du coût des travaux a été mise à jour et le résultat est plutôt conséquent. Si bien que le rectorat qui a un budget défini ne peut pas assumer l’augmentation des matières premières et rallonger son enveloppe initiale.

La solution retenue a été de revoir le projet afin de réduire le coût global actuel afin de garantir la construction du futur lycée.

Dans cette recherche de pistes d’économies, les architectes, sous le contrôle du rectorat, sont allés à l’essentiel.

Ainsi, les principales modifications affectent le hall d’entrée qui se réduit d’une trame de préau ; la toiture qui ne sera plus recouverte de bardeaux ; la restauration qui perd ses façades pour s’ouvrir telle une halle et l’internat qui est remanié.

Les solutions adoptées ont limité l’emploi du bois pour les coursives ou optimisé les réseaux électriques ou encore le traitement paysager.

Certains éléments sont remplacés par des solutions moins onéreuses comme les BTC en pignon, qui sont remplacés par des voiles béton isolés par l’extérieur ; ou encore certaines parois vitrées remplacées par des résilles métalliques.

D’autres prestations sont simplement supprimées comme la pergola des bus ou la rénovation des stades de l’autre côté de la Nationale.

En résumé, le projet n’est pas dénaturé, il se simplifie et offre des prestations moins luxueuses qui répondent utilement et efficacement aux besoins.

Sur la question du confort, il n’y a pas eu de débat, cela reste au cœur du projet et l’isolation acoustique n’a pas été dévaluée, ni la ventilation naturelle.

On remarquera que la dimension écologique a été impactée par ces choix budgétaires : le traitement des eaux usées et le photovoltaïque ont été abandonnés pour le moment.

LES OPTIMISATIONS DE L’ APD
01.
2

Comme tout projet en architecture, de l’esquisse du concours à la réalisation, le projet est voué à s’améliorer. Dans le contexte actuel, il a plus été question de ne pas dénaturer le projet et de conserver ses qualités.

Suppression de coursives Optimisation 5: Suppression de coursives (Vestiaires au RDJ)Optimisations 1/2 : Hall d’entrée, préau et portail 20/07/2022 Lycée Tani Malandi-Carnet de repérage des optimisations -APD 1
Optimisation 15: Variante des jalousies de grande hauteur Ajout lisse horizontale et panneau ajouré 20/07/2022 15Lycée Tani Malandi-Carnet de repérage des optimisations -APD 3

02LES DÉTAILS DU LYCÉE

ARCHITECTURAL

- UNE IMPLANTATION DENSE -

Les bâtiments, quasiment parallèles entre eux, sont répartis perpendiculairement à la pente du terrain depuis les collines vers la mer, de façon à installer les façades principales dans une orientation nord-sud. Cette implantation favorise la ventilation naturelle générée par les vents de mer et de terre, en fonction de la journée.

Le programme se découpe en entités distinctes et clairement lisibles : à l’entrée le bâtiment principal accueillant l’administration en proue puis les enseignements professionnels, le gymnase et la restauration sur la droite du plan masse qui ferme la cour et créé une interface avec la rue. Les bâtiments d’enseignement général répartis en peigne, en fond de parcelle l’internat, et enfin en relation avec l’accès secondaire les logements de fonction.

L’écoulement de l’eau et les déplacements des élèves s’inscrivent naturellement entre les bâtiments. Lien symbolique entre mer et colline, une longue galerie nord-sud constitue la colonne vertébrale sur laquelle se greffent les éléments du projet – un lieu fonctionnel de circulation mais aussi social, d’échange et de convivialité, identifié par sa toiture en écailles.

LE PARTI
01.
4

CIMETIÈRE

COLLINE

AMBIANCES

MUR DE SOUTENEMENT POINTS CHEMINEMENTS TRAVERS COURS ESPACE JARDINS LE LAGON LA MANGROVE UN AUTRE MONDE NOURRICIER LE
/ LE CALME LA
L´ARRIÈRE PAYS FORRESTIER: UNE CULTURE / UN MONDE NOURRICIER L´ARBORESCENCE LA PENTE L´ENSEIGNEMENT / LE SAVOIR INTERNAT / INTIMITÉ
LA VIE DES ÉLÈVES / LA RENCONTRE LES ATELIERS / LA VITRINE
LES
STATIONNEMENTS / LE FILTRE
LE
SPORT
PLAN MASSE 1:500
ENVIRONNEMENT PROFESSIONNEL POLYVALENTE ADMINISTRATION L´ÉLÈVE CDI PROFESSEURS SCIENTIFIQUE INTERNAT 5

mis à jour

Au regard de la situation actuelle, la phase APD n’a pu être validée sans certaines modifications qui ont eu pour conséquence de repenser les espaces.

modifications nécessaires ont interféré dans le planning initial.

LEXIQUE

Avant-Projet

Avant-Projet

Permis de Construire

études de Projet

Dossier de Consultation

Ordre de Service

LE PLANNING
Ces
01. 03LES DATES DU LYCÉERendu ESQUISSE Mars 2021 Rendu APD Février 2022 Rendu APS Septembre 2021 Dépôt PC Avril 2022 Démarrage ÉTUDES Janvier2021 Modification APD Juillet 2022 Rendu PRO Novembre 2022 APPEL OFFRE Février 2023 PHASE CONCEPTION / 24 mois NOUS SOMMES ICI
APS :
Sommaire APD :
Définitif PC :
PRO :
DCE :
des Entreprises OS :
Rendu DCE Janvier 2023 MARCHÉ 6
RÉALISATION - TRAVAUX / 42 mois Notification MARCHÉS Juillet 2023 OS TRAVAUX Juillet 2023 Phase 1 TRAVAUX Aout 2023 Phase 2 TRAVAUX Aout 2025 Fin TRAVAUX Janvier 2027 MARCHÉ TRAVAUX / 5 mois Le démarrage des travaux est prévu pour Septembre 2023 7

01.

DOSSIER SPÉCIAL

PHASAGE

Un nouveau phasage a été proposé pour la réalisation du lycée. En effet, le rectorat soucieux de limiter les nuisances du chantier a demandé au groupement de maîtrise d’œuvre de réfléchir à une solution plus efficace en termes de phasage.

Il en ressort deux phases de travaux au lieu de trois précédemment proposées. Ce choix n’est pas sans conséquence sur les opérations de déménagement des salles de cour.

Comparaison entre le phasage initial et le phasage revu suite à la demande du Maître d’ouvrage :

Phasage Initial

Le déroulement des travaux se décompose en plusieurs étapes : - La période de préparation. - La 1ere phase des travaux sur une zone hors emprise du périmètre du lycée existant. - Une 2éme phase transition ou les utilisateurs transfèrent l’activité dans les locaux fraîchement livrés.

- La 3ème phase des travaux dans le périmètre actuel du lycée. A l’issue de cette phase 80% des nouveaux locaux du lycée seront mis à disposition des utilisateurs.

- La 4éme phase des travaux où sera réalisé le bâtiment 6 et les derniers aménagements extérieurs.

Durée totale des travaux : 38 mois.

Nouveau Phasage

- Déménagement préalable de certains modulaires. - 1ère phase:

Tranche ferme : Bâtiments 2 et 3 (enseignement général et technologique, CDI, vie scolaire)

Tranche optionnelle 1 : Bâtiments 4 et 5 (Internat et logements de fonction)

- 2ème phase :

Tranche optionnelle 2 : Bâtiment 1 (enseignement professionnel et administration)

Tranche optionnelle 3 : Bâtiment 6 (Restauration et sport)

Durée des travaux : 42 mois.

DOSSIER
04 -
8

Déplacement des salles de cour

Phase 1

Durée 23 mois

2.PHASE 2 TRANSITION DEMENAGEMENT / DECONSTRUCTION

Réception de la phase 1.

Déménagement du lycée polyvalent existant dans les deux bâtiments construits (en phase provisoire): Bâtiment enseignement et internat (voire correspondance des locaux ci après).

Démontage de lycée existant et récupération matériaux qui seront réutilisés (planches de bois , charpente bois, grilles...).

Les bâtiments existants démontés seront remis à la disposition du Rectorat pour réutilisation

Durée de cette phase : 2 mois

Phase 2

Durée 18 mois

4.PHASE 4-BATIMENT 6 ET ENTREE

Le bâtiment 6pourra commencer après livraison de la zone bus et sécurisation du cheminement des élèves

Construction du bâtiment 6: Réfectoire/EPS et gymnase. Finition des aménagements

Durée de cette phase de travaux : 8mois e de cette phase la configuration définitive du lycée sera livrée au rectorat

APD Février 2022 LTM CHIRONGUI / PHASAGE page4 APD Février 2022 LTM CHIRONGUI / PHASAGE page5
APD Février 2022 LTM CHIRONGUI / PHASAGE page7
9

05LES ACTEURS DU LYCÉE

LES PRÉSENTATIONS

Ce mois-ci nous vous présentons :

OTEIS , INGÉNIEURS FLUIDES, VRD, OPC, SYN

Créée fin 2015, OTEIS est une marque jeune mais notre histoire repose sur plusieurs décennies d’ex cellence. Nos racines nationales ou régionales ont eu pour noms GINGER, BECET, BEFS, ETCO, FACADES 200, ISATEG, SECHAUD-BOSSUYT, SUDE QUIP et récément SOCETEM. C’est du rassemble ment de ces équipes et savoir-faire qu’est né le groupe OTEIS et son ambition d’être un acteur « Green & Digital » incontournable du conseil et de l’ingénierie au service de la construction.

Proche de ses clients et de ses collaborateurs, OTEIS valorise l’esprit d’entreprendre, l’engage ment et le travail d’équipe, la culture du résultat et l’excellence. Nous avons rebâti ce groupe sur ces 4 valeurs en tenant compte des histoires très riches des anciennes sociétés auxquelles nous suc cédons.

Nos valeurs se déclinent concrètement dans nos relations quotidiennes avec nos clients et parties prenantes. Elles guident nos échanges internes et induisent notre comportement comme notre ré flexion d’entreprise et d’employeur.

Depuis 5 ans, OTEIS fait évaluer ses performances RSE par l’agence externe de notation Ecovadis. Avec un score de 66/100 obtenu en septembre 20121, nous recevons une médaille d’or Ecovadis plaçant OTEIS au 92ème percentile des entreprises tous secteurs confondus évaluées et dans le top 5% des sociétés architecture-ingénierie.

« Valoriser les savoir-faire et la capacité d’innovation de nos équipes est l’une de nos priorités. Nous vou lons offrir des solutions novatrices, attractives et dif férenciantes à nos clients et partenaires.

Sur un secteur en pleine transformation comme celui de la construction, l’Innovation est essentielle mais elle n’est pourtant pas suffisamment portée par l’in génierie ; d’où cette ambition forte d’Oteis de s’im poser comme un réel partenaire créateur de valeur pour ses clients et les exigences de leurs projets ». Rafi Kouyoumdjian, PDG d’Oteis

01.
10
11

L’ACTUALITÉ DE LA PERMANENCE

EXPOSITION

LE RÉEMPLOI À MAYOTTE

Dans la continuité des expositions sur les matériaux de construction utilisés pour le futur lycée, la permanence s’est intéressée au réemploi.

Les permanences Atelier YaHazi et Atelier Piya nous ont montré leurs travaux sur cette question du réemploi. L’un en envisageant la construction du faré du futur lycée de Longoni, l’autre en proposant plusieurs solutions sous forme de micro-architectures, de mobilier et d’installations. Leurs travaux sont à découvrir dans leurs éditos respectifs.

A Chirongui le lycée actuel est composé de modulaires, qui seront démontés. Toutefois, si les modulaires seront réimplantés sur un autre site scolaire du rectorat, beaucoup d’éléments ne pourront pas être remontés en l’état car leur conception ne le permet pas. Par contre les matériaux les constituant peuvent être réemployés.

Pour ce faire la permanence a réalisé un « diagnostic réemploi », sorte d’inventaire de l’existant permettant de quantifier les linéaires et les volumes de matières disponibles.

En résumé, nous avons dénombré une grande quantité de bois disponible sous diverses sections.

Ce gisement constitue actuellement les coursives et les sur-toitures des modulaires, ainsi que les préaux.

L’intérêt du diagnostic est de pouvoir recenser l’ensemble des éléments pouvant être réutilisés ou réemployés. Cette démarche s’inscrit dans une volonté de réduire l’impact environnemental du projet car rappelons-le le secteur du bâtiment représente 40% des consommations mondiales de ressources.

De plus, étant donné que Mayotte est un territoire fini et isolé, il est fondamental de considérer le recyclage, la limitation des déchets et par extension des importations sur l’île.

Le réemploi s’insère dans cette dynamique vertueuse mais essentielle pour l’équilibre de Mayotte.

N’oublions pas que les déchets ont un cycle de vie et d’assimilation par l’environnement, si cet équilibre est rompu, tels que les scientifiques le supposent, l’île sera submergée ... par nos déchets.

02. 01 -
12

Le lycée présente une multitude d’éléments potentiel lement réutilisables. Cependant les réglementations ne per mettent pas toujours de les inté grer dans un nouveau projet.

L’alternative la plus répandue étant de passer par une ressour cerie qui validera la conformité des matériaux et les mettra à nouveau sur le marché.

La démarche de réemploi :
Diagnostiquer Imaginer / Intégrer Déposer / Démonter Stocker / Protéger Réemployer
13

LA VIE DE LA

PERMANENCE ARCHITECTURALE

Créée à l’initiative du Rectorat la permanence architecturale joue un rôle de trait d’union entre différents publics. Elle est le lieu où s’articulent les dynamiques liées à la construction du lycée.

Pensée comme un lieu de découverte et de partage elle se définie selon quatre points clés !

La MÉDIATION, la PÉDAGOGIE, le DÉVELOPPEMENT et la COMMUNICATION.

A la fin de l’année scolaire, nombreux sont les élèves en recherche de stages et pour nous en plus de leur permettre de valider leur diplôme cela représente une dimension pédagogique et une aide certaine.

Ainsi nous avons accueilli Astiana en seconde professionnelle dans la section signalétique, cela nous a donné l’occasion de repenser la façade de la permanence.

La deuxième personne en stage provient de la classe de première année en BTS Agricole du lycée de Coconi option Développement et Animation des Territoires Ruraux. Maïriana cette deuxième stagiaire nous a sollicité dans son désir de découvrir le métier d’architecte. Partie pour un stage de découverte, elle a pu nous aider dans nos ateliers pédagogiques mais également dans la réalisation de la maquette du futur lycée à l’échelle 1/200e, qui est toujours en cours de réalisation.

La permanence continue donc d’évoluer et outre son aménagement intérieur qui s’enrichit au fil des expositions, la permanence a repeint sa façade pour être plus visible et surtout identifiable.

Bien qu’elle soit déjà connue des lycéens et du corps enseignant, peu nombreux sont les habitants à franchir le pas de porte. L’objectif de cette nouvelle façade est d’interloquer les passants et les faire venir nous rencontrer.

Enfin, la permanence a continué son travail sur le bambou et est partie chercher les chaumes qui avaient été coupés en novembre, traités jusqu’en mars puis sécher jusqu’alors.

Déposés à la maison des Apprentis d’Auteuil, ils vont pouvoir servir à la construction de la clôture comme nous l’envisagions. Nous reviendrons sur ce chantier au fur et à mesure de son avancement.

LA
02. 02 -
PERMANENCE14

Quelques aménagements de la permanence

A venir voir !

Les 200 chaumes récoltés, traités et nettoyés avec Tep des apprentis d’Auteuil!

15

DE LA

RÉEMPLOI

Réalisée à des fins pédagogiques, la dernière exposition sur le réemploi a reçu la classe de première de STD2A. En plus de discuter de la thématique, les élèves ont également vu l’avancement du lycée et ont commenté la maison du projet qui est en cours de conception.

Si cette thématique de la récupération et de la réutilisation semble conditionner le quotidien à Mayotte, sa définition dans un usage à grande échelle permet de comprendre les mécanismes de la construction.

En effet si l’on démoli, c’est souvent pour reconstruire mais comment fonctionne ce processus ?

Comme toute action, elle est réglementée et rentre dans un cadre spécifique difficile à comprendre ici où la fin justifie les moyens.

Même si l’approche du réemploi dans la construction semble être une approche « bobo » pour ceux dont c’est la norme, il est intéressant de noter qu’effectivement tout part de la base. Et si souvent la précarité et la modestie sont à l’origine de la démarche, aujourd’hui le sujet est plus préoccupant. En effet, à l’heure de l’épuisement des ressources, il est fondamental de limiter l’entropie actuelle, et le principe de réemploi devient une nécessité face à la demande toujours croissante qui se confronte au jour du dépassement. Ainsi réemployer c’est limiter les déchets mais pas uniquement.

La démarche permet en général de faire des économies. Elle peut aussi favoriser une nostalgie ou faire référence à la mémoire, donnant une dimension poétique au nouvel objet créé.

Ainsi elle permet une créativité nouvelle car précontrainte, les architectes Encore Heureux parlent de transformer « l’énergie grise en matière grise ».

Dans cet exercice de gymnastique mentale, visant à trouver des solutions avec des contraintes préexistantes (forme, texture, connotation, etc.), la matière « réemploi » devient une ressource nouvelle. Et pour la rendre légitime aux yeux des utilisateurs, elle doit se structurer en filière et trouver une législation appropriée. Le réemploi cherche à créer des cycles et à revaloriser les rebuts en re-matière.

ATELIER SUR LE
02. 03LES ACTIVITÉS
PERMANENCE16

PrototypeLancementCroissanceMaturité Déclin

VENTES TEMPS
Courbe
du cycle de vie d’un produit
17
FABRICATION TRANSPORT DISTRIBUTION UTILISATION EXTRACTION CONCEPTION ÉVACUATION USINE RECYCLAGE TRANSFORMATION PRINCIPE SCHÉMATIQUE DU CYCLE DE VIE ET DE RÉEMPLOI MATIÈRE PREMIÈRE Cycle de vie d’un produit 18
ATELIER RÉEMPLOI COLLECTE CONDITIONNEMENT ENFOUISSEMENT INCINÉRATION DÉCONSTRUCTION RESSOURCERIE ÉVACUATION Principe de réemploi UTILISATION 19

01LE BAMBOU ET LE LYCÉE

& DES BAMBOUS

La phase APD a précisé l’emploi du bambou sur les façades du lycée. Les trames, les récurrences et les systèmes d’assemblages ont été présentés au rectorat.

Dans un souci de faisabilité, la permanence a réalisé plusieurs prototypes qui visent à définir les systèmes d’assemblage définitifs des bambous en façade.

Plusieurs hypothèses en termes de fixation ont déjà été éprouvées. Que ce soit par des colliers de serrage, des cordes ou des feuillards, les assemblages envisagés ne sont pas encore choisis de manière définitive. Ils vont encore passer quelques tests de résistance mécanique avant de les optimiser et finalement de les éprouver à « l’épreuve du sac ».

Sur un autre plan la permanence réalise des tests de traitement des bambous à l’eau salée afin de savoir si cette méthode permet réellement d’augmenter la tenue dans le temps des chaumes tels que les Fundis nous l’ont suggéré.

Pour ce faire, un protocole de coupe et d’immersion est mis en place afin d’obtenir des résultats comparables.

En plus de cette démarche sur les assemblages, la MOE travaille avec le Bureau d’Études C&E Ingénierie pour nous accompagner sur l’aspect normatif et protocolaire afin de pouvoir caractériser le bambou mahorais et établir sa tenue au feu.

Travaillant de longue haleine et partis de la base, nous continuons avec envie de trouver les solutions les plus efficaces dans l’utilisation du bambou mahorais. Convaincus de son potentiel économique, écologique et social, nous nous associons à une série d’autres acteurs tels que des confrères, des artisans, des passionnés, des entreprises, des associations et des ingénieurs.

Avec toute cette dynamique, le bambou mahorais finira bien par gagner son statut de matériau de construction locale !

UN LYCÉE
03.
20

Le Saviez-vous ?

Connaissez-vous le paradoxe du bambou ? C’est d’être la plus ancienne plante à la durée de vie très courte !

Et oui ! Aujourd’hui, artisans, designers, ingénieurs, chimistes et autres chercheurs tentent d’améliorer la durée de vie naturelle du bambou - qui varie de 2 à 5 ans une fois coupé- et pourtant cette plante est

21

DOSSIER LE BAMBOU

02LE BAMBOU ET LA RECHERCHE -

En parallèle des collectes régulières d’information auprès de Fundis locaux sur les pratiques de coupe, de traitement et de séchage ; nous avons mis en place un protocole de suivi de l’évolution de la dégradation des chaumes de bambou. Le but est d’expérimenter tout en ayant une approche scientifique sur les actions menées.

Nous avons donc depuis plusieurs mois débuté des essais de coupe, traitement et séchage de bambous complétés par un protocole de suivi. Ce suivi prend en compte premièrement l’environnement dans lequel le bambou se déploie : le type de sol et son humidité, l’exposition du lieu, puis l’état du bosquet, qu’il soit plus ou moins entretenu, fermé ou non. Les informations collectées concernent ensuite le bambou coupé : âge, poids, diamètre et épaisseur de la paroi. Identifié par un marquage unique, chaque bambou possède sa propre carte d’identité.

Ainsi cette identification nous permet de le suivre et voir les différentes évolutions selon les différents traitements appliqués, la durée ou le type de séchage en relevant de nouveau à chaque étape ses dimensions, son poids et son aspect général. Avec l’ensemble de ces données, l’objectif est de définir un processus de coupe, traitement et séchage, optimal pour le Bambusa Vulgaris de Mayotte et d’en tirer le meilleur résultat.

Dans la continuité de ce protocole, nous avons débuté la réalisation d’un prototype de brisesoleil en bambou. Disposé sur une façade d’un nouveau bâtiment de la Section d’Enseignement Professionnel de Chirongui, il nous permet d’expérimenter des solutions d’assemblages des tiges tout en préfigurant l’aspect du futur Lycée. D’expliquer et d’observer son évolution au fil du temps et de considérer les facteurs naturels et extérieur participant à des changements. Cet outil de recherche nous a notamment permis de trouver une solution d’attache très intéressante : un collier antivibratile, utilisé pour les descentes d’eau de pluie. Ses points forts sont : la possibilité d’accueillir des bambous de différents diamètres, le joint en caoutchouc supprimant les possibles vibrations ainsi que les mouvements de rotations et verticaux, la simplicité de démontage du système pour la maintenance.

03.
22
23

03LE BAMBOU ET LES ACTIVITÉS

ACTUALITÉ

LA CONSTRUCTION EN BAMBOU

Dans notre quête d’informations sur le bambou, après avoir répertorié les différentes espèces présentes à Mayotte, nous sommes partis à la découverte des constructions en bambou.

Clôtures, mobiliers, décorations ou structures, la permanence réalise un inventaire des constructions en bambou à Mayotte.

De Petite Terre à Sada et de Bouéni à Mtsamboro, toute l’île est arpentée à la recherche des utilisations du bambou. Quelles soient traditionnelles ou contemporaines ces réalisations nous permettent de rencontrer leurs créateurs et de recenser leurs pratiques en termes de récolte, de traitement et de mise en œuvre.

Outre renforcer ou infirmer des hypothèses, ces créations permettent également de valoriser la ressource par des acteurs locaux afin que le plus grand nombre puisse observer les possibilités qu’offre ce matériau.

Dans cette recherche, nous avons rencontré un bon nombre d’acteurs et travaillons en parallèle de l’association BAM ! (qu’on ne présente plus) qui réalise un recensement des techniques et des savoir-faire traditionnels de l’utilisation du bambou à Mayotte.

Ce travail sur la durée tente d’être exhaustif et renforce l’intérêt porté à ce matériau.

03.
24
De haut en bas : Le MARACANA Le CHISSIOUA Le JARDIN MAORÉ Le GITE DU MONT COMBANI 25

EXPOSITION ET ATELIERS THÉMATIQUES

LA M AISON DU P ROJET

Dans ce nouveau numéro nous vous présentons l’avancement de la Maison du Projet et les ateliers réalisés avec les élèves de la SEP.

Sans revenir sur ce qui a été présenté en détail dans l’Atelier de la permanence #5, nous vous présentons la démarche entreprise lors de cet atelier avec les élèves de la section d’enseignement professionnel.

Convaincus que la Maison du Projet doit se faire pour mais surtout avec les élèves, nous sommes partis à leur rencontre afin d’identifier leurs besoins. Armés de maquettes d’études et de questions, nous avons engagé un dialogue sur leur quotidien et les besoins et envies qui en sont la conséquence. C’est ainsi que le pour devint une réalité contextualisée avec des problématiques à résoudre. En effet, la question des trajets, du repos et de l’alimentation reste la principale préoccupation des élèves.

Envisager les envies et les possibilités que pourra offrir un tel espace a permis de commencer à bâtir l’avec. En effet, depuis l’origine, la permanence cherche à co-construire la maison du projet. Etant très attachée à la dimension participative elle propose un design simple comme base de dialogue et tente de répondre à plusieurs enjeux : respecter le site, intégrer la culture locale, faciliter l’appropriation par les élèves, rendre accessible la construction techniquement, valoriser le bambou, invoquer le futur lycée comme inspiration et modèle.

Autant de volontés comme de premières empreintes sur cette carte blanche.

04. -
26

Les élèves du lycée professionnel découvrant et participant à la conception de la maison du projet

27

LES RENCONTRES

Toujours prêts à partager et communiquer sur les actions de la permanence, nous avons rencontrés d’autres acteurs agissant dans les thématiques explorées par la permanence.

Du côté de Tsondzou, nous sommes allés à la rencontre de l’association Kaja Kaona. Kaja Kaona développe un lieu-ressource producteur d’activité économique, à vocation sociale, solidaire et culturelle. Ce lieu de vie se veut être un espace convivial, collaboratif, participatif et ouvert à tous.

Le projet repose sur les principes de l’Économie Sociale et Solidaire et de la permaculture humaine : prendre soin de l’humain, prendre soin de la terre et partager équitablement.

En faisant appel aux traditions locales d’entraide « musada », de mutualisation de moyens « shikoa » ou de transmission de savoirs « fundi », nous espérons transformer en richesses les difficultés sociales auxquelles nous sommes confrontés et ainsi contribuer à l’amélioration de la qualité de vie de notre territoire.

A Chirongui nous avons rencontré Loutfi, un artiste passionné et inspiré par la culture et la nature de Mayotte. Il est aujourd’hui un de nos principaux relais dans le secteur de Chirongui, nous entraînant hors des sentiers battus pour aller découvrir des constructions bambous au cœur de la malavoun. D’ailleurs la permanence organise une exposition sur ces travaux à partir du 19 septembre et jusqu’au 14 octobre.

Nous avons également rencontré l’association Li koli Dago à Tsingoni.

Likoli Dago, qui signifie « école de la ville, du quar tier et de la maison », est une équipe pluridisci plinaire qui mêle pratiques d’aménagement du territoire, architecture, interventions en milieux insalubres et zones à risques, sociologie urbaine, arts appliqués, enseignement et botanique. Parmi ses membres elle compte des citoyen·ne·s, profes sionnel·le·s, artisan·e·s, artistes, architectes, pay sagistes, médiateur·trice·s, entrepreneur·euse·s, chercheur·euse·s, étudiant·e·s, associations...

05.RENCONTRES ET PARTENARIATS28

Kaja Kaona

« Celui qui ne vient pas ne voit pas ! », soyons curieux et acteurs ensemble d’un renouveau économique respectueux de la nature, de la culture et des solidarités humaines !

VENEZ NOUS RENDRE VISITE !

Permanence

Rue Cavani Bé, Chirongui (entre le Pôle Culturel et le Lycée) Lundi - Mercredi - Vendredi 8h30-12h00 et 13h30-17h

Likoli Dago

Est une association qui a pour volonté de porter des démarches de construction responsable et d’aménagement adapté au territoire de Mayotte. Likoli Dago répond à des problématiques locales dans les domaines de l’architecture, de l’urbanisme, du paysage et de l’art. L’association développe un échange de savoirs et met en œuvre des projets d’excellence adaptés, pour faire rayonner Mayotte au monde et le monde à Mayotte. Comme une école rapprochant l’enseignement de la pratique, la recherche de l’action, Likoli Dago développe des activités dans les domaines de la formation, de la diffusion et de la construction dans un but d’intérêt général intégré au territoire mahorais et ses habitants.

Loutfi

Les œuvres du peintre mahorais sont une invitation au voyage où l’imaginaire se confond à la réalité. Inspiré par la nature qui fait la beauté et le charme de l’île, Loutfi est un véritable touche à tout. Sa production artistique comporte un travail pictural, la mise en valeur des savoir-faire locaux et plus particulièrement celui des pirogues traditionnelles avec des petites maquettes en bois. Enfin il nous invite à découvrir son univers articulé, fait de maquettes en fibre végétale venant s’ouvrir et se refermer en fonction des interactions avec le visiteurs.

OBJECTIFS !

Les partenariats ont plusieurs objectifs importants, à savoir : Créer une synergie autour de projets pédagogiques et culturels Partager les connaissances, moyens et outils Élargir et améliorer la communication et la visibilité de chacun Optimiser les actions par la mutualisation des efforts

29

haut

Crédits photographiques

(04)

Iwan Baan

UVD

et en haut au mi

et quatrième

couverture

Atelier Piya

crédits

Endémik Mayotte

Adresse: 2a Rue Cavani Bé (entre le pôle culturel et le lycée) 97620 Chirongui Tel : 06 39 09 09 09 Mail : lapermanence@lycée-chirongui.fr NyumbambuPermanence Architecturale
: page 01
©
page 9 © www.boudot-forage.com page 11 ©
page 15 (en
à gauche
lieu)
de
©
autres
©
NYU MBA MBU

Turn static files into dynamic content formats.

Create a flipbook
Issuu converts static files into: digital portfolios, online yearbooks, online catalogs, digital photo albums and more. Sign up and create your flipbook.