Schooldomein 5: Vanzelfsprekend verbinden

Page 1

SPORTDOMEIN ZORGDOMEIN WIJKDOMEIN Magazine voor de perfecte leer-, werken leefomgeving no.5 jaargang 35 mei 2023 Vanzelfsprekend verbinden SCHOOL DOMEIN GROOT INTERVIEW LOES YPMA Een toegangsrecht voor alle kinderen voor opvang en onderwijs KLAAR VOOR DE TOEKOMST Slim ontwerp vernieuwbouw Koning Willem II College verbindt omgeving DE NIEUWE HANDREIKING IHP Hij ligt er eindelijk en hoe actueel is hij eigenlijk? UNIEKE SPORTBELEVING IN STEDELIJK COLLEGE EINDHOVEN Met plezier de eigen grenzen ontdekken

Geluidsisolerende schuifwanden tussen lokalen en grote gezamenlijke ruimte.

Alkmaar

Mobiele paneelwanden, geluidsisolerende schuifwanden, mobiele glaswanden of vouwwanden. Onze producten hangen op honderden scholen in Nederland en België.

Basisschool Paneelwanden Schuifwanden Glaswanden Vouwwanden

VERMENIGVULDIGEN door te DELEN

Vermenigvuldig de mogelijkheden van uw ruimte door deze te delen met BREEDVELD wanden. Denk aan een klaslokaal waarin u twee groepen dankzij een mobiel wandsysteem zowel gemeenschappelijk als apart kunt doceren. Wij delen in ieder geval graag onze verfijnde kennis en ons vakmanschap met u. Ook voor bijhorende bouwkundige oplossingen.

Meer informatie: www.breedveld.com – T 0487 542888

SCHOOLDOMEIN 3 mei 2023

Onze adviseurs en bouwprojectmanagers brengen ambities tot leven op het gebied van zorg, onderwijs, sport en welzijn.

ADV

Bevlogen huisvestingsadviseurs sinds 1955

ICSadviseurs biedt huisvestingsadvies en projectmanagement voor maatschappelijk vastgoed.

Ruim tachtig professionals werken vanuit Amsterdam, Rotterdam, Zwolle en Eindhoven aan efficiënte, duurzame en inspirerende omgevingen.

Fijne plekken om naar hartenlus t te leren, le ven, spelen, werken, zorgen en on tmoeten.

Vestiging Amsterdam

Contactweg 66 1014 BW Amsterdam

Vestiging Eindhoven

Klokgebouw 263

6e verdieping

5617 AC Eindhoven

Vestiging Zwolle

Burgemeester Roelenweg 13H

The Mayor

8021 EV Zwolle

Vestiging Rotterdam

Van Nelleweg 1

Ingang 1 | Unit 2.4

3044 BC Rotterdam

088 235 04 27

icsadviseurs.nl

mei 2023 SCHOOLDOMEIN 4

VANZELFSPREKEND VERBINDEN

Wat een feestelijke periode ligt achter ons. Op 20 april werd tijdens het symposium Kindcentra in hun Omgeving het gelijknamige inspiratieboek gelanceerd. U kunt het vanaf nu bestellen en onderstaand is de link opgenomen.

Voorzitter Freddy Weima van de PO-Raad benadrukte in zijn inleiding dat een kind dat pas op zijn vierde levensjaar met onderwijs in aanraking komt eigenlijk al een belangrijke kans heeft gemist. Landelijk zien we een enorme toename van kindcentra en bestuurder Ad Vos van PIT kinderopvang & onderwijs en de Vereniging Netwerk Kindcentra benadrukte nogmaals dat we met een totaal andere bril naar de ontwikkeling en opvoeding van kinderen moeten kijken: “Elk kind heeft een ontwikkelrecht.” Mooi was dat Loes Ypma van de Branchevereniging Maatschappelijke Kinderopvang en haar collega Emmeline Bijlsma ook aanwezig waren en het belang van de vorming van integrale kindcentra benadrukten. In dit nummer vertelt Loes meer over haar visie op de ontwikkeling van het kind en noodzakelijke veranderingen binnen het stelsel, waarbij onderwijs en opvang gescheiden zijn. In dit nummer ook het beloofde debat over systeembouw, waarin verschillende experts de degens kruisten. Misschien is het antwoord wel dat ook bij systeembouw de opgave uniek kan blijven en de architect met zijn ontwerp de verbinding met de omgeving kan maken. Mariken Brink-van Helden van de SCOPE

ONZE VISIE

Schooldomein is een verrassend magazine voor managers en beleidsmakers die relevante beleidsinformatie, praktijkvoorbeelden en productinformatie vertalen in een optimale leer-, werk- en leefomgeving. Schooldomein biedt informatie rond de infrastructuur, organisatie en huisvesting van instellingen.

Schooldomein is bedoeld voor iedereen die op het niveau van overheid,

instellingen, bedrijfsleven en maatschappelijke organisaties betrokken is bij het vinden van oplossingen voor samenhangende vraagstukken in de non profit en profit sector.

HET NETWERK

Schooldomein wordt zes keer per jaar gratis verstrekt aan alle onderwijsinstellingen en gemeenten in Nederland. Het blad wordt gefinancierd uit de exploitatie van advertenties, advertorials, artikelen en de bijdragen

wordt mede mogelijk gemaakt door:

Onderwijsgroep stelde daarbij dat het delen van goede en foute voorbeelden essentieel is. Het schoolvoorbeeld van duurzaamheid voor Amsterdamse scholen sluit daar goed op aan. Om niet voor elk te ontwikkelen IKC opnieuw het wiel te hoeven uitvinden, koos de gemeente met een nieuwe manier van aanbesteden voor drie consortia die in elk geval de eerste negen IKC’s realiseren. Een mooi voorbeeld is zeker de vernieuwbouw van het Koning Willem 2 College in Tilburg, waar de bestaande architectuur werd doorgetrokken in de nieuwbouw en op een duurzame en groene manier de twee omliggende wijken worden verbonden. Het nieuwe Stedelijk Lyceum in Eindhoven kent een prachtig sportconcept, waarbij in de vier themazalen het plezier in bewegen centraal staat. Ook bijzonder is de met algoritmes ontworpen gevel in het nieuwe Gilde College in Roermond. De mogelijkheden van kunstmatige intelligentie vertaald naar de natuurlijke potentie van de gebouwde omgeving. Een mooi voorbeeld van adaptief bouwen is tenslotte het nieuwe kindcentrum Workum, waar de opvang voor de jongsten centraal in het gebouw een plek heeft gekregen. Kortom; een heel mooi gevuld nummer en bestelt u vooral het geweldige boek over Kindcentra in hun Omgeving. Een must voor elke wethouder, beleidsambtenaar, opdrachtgever, directeur en partijen binnen de ontwerp-, bouw- en inrichtingsbranche: www.tenbrinkuitgevers.nl/product/kindcentra-in-hun-omgeving. Veel leesplezier toegewenst.

van partners. Schooldomein fungeert als een netwerk, waarbij partijen een meerwaarde genereren door een samenhangend product te bieden. Schooldomein fungeert als een platform voor alle partijen die een bijdrage willen leveren aan de kwaliteit van de onderwijsinfrastructuur.

UW MENING

Wij stellen uw mening zeer op prijs. Voor reacties kunt u mailen naar sibo.arbeek@schooldomein.nl.

U kunt ook reageren via de site www.schooldomein.nl. Praktische informatie vindt u in het colofon.

INTERNET

Voor meer informatie over Schooldomein en dit nummer kunt u kijken op www.schooldomein.nl. Via deze site kunt u onder meer alle artikelen van de afgelopen jaargangen opvragen, winkelen in onze rubrieken en relevante marktinformatie zoeken.

Als maatschappelijk verantwoorde onderneming stimuleert Schooldomein doelen die goed zijn voor mens en milieu:

VAN DE REDACTIE
5

Vanzelfsprekend verbinden

Steeds vaker wordt vanuit de omgeving gekeken naar een huisvestingsvraagstuk in een bredere context en dat is een goede zaak. Een school(gebouw) staat niet op zichzelf maar vormt onderdeel van een breder maatschappelijk en ruimtelijk vraagstuk. De kunst is een gebouw te ontwerpen en te realiseren dat vanzelfsprekend verbindt met de omgeving. Dat betekent dat het duurzaam is op alle niveaus en adaptief in het programma, waardoor het kan blijven veranderen, ongeacht de visie op dat moment. Voorwaarde is ook dat het proces van ontwerp tot en met realisatie integraal wordt ingericht en partijen met elkaar vanuit dezelfde overtuiging en ambitie samenwerken. Dan ontstaat vanzelf een voorziening die vanzelfsprekend verbindt en daarmee een gezonde exploitatie kent.

BESTUUR EN BELEID

8

12

17

Groot interview Loes Ypma

Een toegangsrecht voor alle kinderen voor opvang en onderwijs

Standaardisatie in scholenbouw

Debat over visie en uitgangspunten in de scholenbouw

De nieuwe handreiking IHP

Hij ligt er eindelijk en hoe actueel is hij eigenlijk?

ONDERZOEK EN BEDRIJFSVOERING

26

Het schoolvoorbeeld van duurzaamheid

Innovatiepartnerschap bij scholenbouw Amsterdam

VISIE EN ONTWERP

28

Een nieuwe school voor inclusief onderwijs

Elk kind is welkom in Kindcentrum De Kroevendonk

32

34

36

Klaar voor de toekomst

Slim ontwerp vernieuwbouw Koning Willem II College verbindt omgeving

Synergie creëren op een campus

Verbinding moet je organiseren

Schakelen tussen stakeholders en processen

Voorwaarde voor toekomstbestendige onderwijshuisvesting

38

Een kindcentrum met een verbindend centrum

Licht, warm en op alle plekken zichtbaar

40

Zichtbaar onderwijs op een bijzondere plek

De beste verhoudingen in een parametrisch ontwerp

42

44

Voor de wetenschap komt willenschap

De ambities van een duurzaamheidsadviseur

Positieve gezondheid stimuleren

De Componist is er voor iedereen

SCHOOL DOMEIN 6 mei 2023
25
INHOUD
THEMA
Foto KC Workum Fotografie Daan Josee | Maas Kristinsson Architecten

26

BOUW EN INRICHTING

46 Unieke sportbeleving in Stedelijk College Eindhoven

Met plezier de eigen grenzen ontdekken

BELEVING EN BEHEER

48 Gezond binnenklimaat voor School met de Bijbel

Decentrale ventilatie voor een gezonde leer- en werkomgeving

50 De veerkracht van Zuid Limburg Adelante Zorggroep put kracht uit de overstromingen

52 Kleinschalige leeromgeving in grootschalig gebouw Nieuwe Rodenborch-College overtuigt in inrichting en exploitatie

RUBRIEKEN

21 Kort nieuws

21 Column Adri Pijnenburg

54 Column Wubbo Haaijer

56 Kort nieuws

58 Vooruitblik Schooldomein 6

33

38 45

41

Een toegangsrecht voor alle kinderen

mei 2023 SCHOOLDOMEIN 8

“Schaf de inkomensafhankelijke Kinderopvangtoeslag af en kies voor een toegangsrecht voor kinderopvang voor álle kinderen van 0 tot en met 12 jaar met rechtstreekse financiering aan kinderopvangorganisaties”, vindt directeur Loes Ypma van de Branchevereniging Maatschappelijke Kinderopvang (BMK).

“Hiermee geven we alle kinderen een eerlijke kans op een goede start, bestrijden we de groeiende tweedeling in onze samenleving en realiseren we ontspanning voor ouders die werk en de zorg voor kinderen combineren.” Loes Ypma is een bevlogen pleitbezorger en sinds januari 2021 voorzitter van de BMK. Daarvoor was zij zes jaar actief als Tweede Kamerlid voor de Partij van de Arbeid en als voorzitter van de vereniging van scholen Verus. Ook was zij zes jaar lang wethouder in Woerden en Almere. Loes: “Onlangs schreven we samen met onze partners van de PO-raad, VO-raad, MBOraad en VNG een visie – https://vng.nl/nieuws/ naar-een-sterke-pedagogische-basis-voorkinderen-en-jongeren – waarin we gezamenlijk pleiten voor collectief gefinancierde, integrale basisvoorzieningen (school- én kinderopvang) waar iéder kind en iedere jongere kan meedoen aan sport, cultuur en andere activiteiten. Met een toegangsrecht voor alle kinderen. Ons huidige systeem leidt tot kansenongelijkheid en segregatie, al voor het vierde en tot het twaalfde levensjaar. Dat moet anders, de tijd is rijp voor inclusieve kindvoorzieningen, waarbij ieder kind recht heeft op een optimale ontplooiing van zijn of haar talenten. De eerste levensjaren zijn daarvoor van cruciaal belang. Geef álle jonge kinderen een goede start. Dat kan door ieder kind toegang te geven tot pedagogische voorzieningen van een hoge kwaliteit, met extra aandacht waar dat nodig is.”

BETEKENISVOLLE INTERACTIES

“De kinderopvang is een prachtige sector om in te werken omdat een pedagogische professional echt het verschil kan maken in het leven van kinderen. Kinderopvang draagt bij aan de taal-, talent- en sociale ontwikkeling van álle kinderen. De pedagogische professionals bieden kinderen

door hun betekenisvolle interacties een taalrijke, stimulerende en veilige omgeving waarin ze zich optimaal ontwikkelen en samen leren en spelen. Een goede omgeving is een voorwaarde voor een doorlopende leer- en ontwikkellijn, waarbij het gebouw de vierde pedagoog is. Je ziet dat in veel scholen de klassen kleiner worden en kinderen uitgedaagd worden op verschillende manieren individueel en samen te leren. Ik geloof in de ontwikkeling van kindcentra waar kinderen van 0 tot 12 jaar en verder zich op een natuurlijke manier kunnen ontwikkelen. De 0-4-jarigen horen er gewoon bij en van 4-7 jaar zou het goed zijn als de kinderen op of dichtbij school een rijk ontwikkelaanbod krijgen op de BSO. Vanaf 7 jaar zie je dat kinderen ook buiten de school of het kindcentrum gestimuleerd worden om te spelen, te bewegen en zich breed te ontwikkelen. Het is in het belang van de kinderen dat school en kinderopvang verbinding zoeken met maatschappelijk vastgoed zoals sportverenigingen muziekscholen, scoutingverenigingen en bibliotheken. Door die samenwerking ontstaat een uitdagend aanbod met kansen voor een brede talentontwikkeling. Door kinderopvang vanuit een maatschappelijke opdracht te organiseren zijn maatschappelijke kinderopvangorganisaties de vanzelfsprekende partner voor scholen, jeugdhulp, sportverenigingen en de gemeente.”

OPTIMALE ONTWIKKELINGSKANSEN

“Als volwassenen zijn we ervoor verantwoordelijk dat elk kind optimale ontwikkelingskansen krijgt. Bestuurder Ad Vos van PIT noemt dat terecht ontwikkelrecht voor ieder kind. Als je het kind centraal stelt haal je de zorg erbij in plaats van andersom. Je ziet nu vaak dat kinderen van de kinderopvang naar de basisschool en vervolgens naar de BSO en de sportvereniging gaan. Bij iedere

BESTUUR EN BELEID SCHOOLDOMEIN 9
mei 2023
Tekst Sibo Arbeek Fotografie Paula Bouman

wisseling ontstaan potentieel problemen en vallen kinderen af, omdat er door ouders en begeleiders veel geregeld moet worden. Het is veel beter en efficiënter om al die verschillende professionals vanuit één visie en vanuit één team met verschillende professionals, in dezelfde omgeving te laten werken aan het stimuleren van de brede ontwikkeling van kinderen. Dan kun je het kind het beste volgen en helpen waar dat nodig is en ontstaat ook pedagogisch partnerschap voor ouders en sluiten we beter aan bij de thuissituatie. Daarbij moet een samenhangende pedagogische didactische visie centraal staan, waarbij een team van professionals met verschillende achtergronden en opleidingsniveaus voor die rijke ontwikkeldag van 0-18 jaar zorgen. Dat betekent ook dat je kunt differentiëren, al naar gelang de talenten van kinderen.”

SAMENHANGENDE LEEROMGEVINGEN

“Er zijn gelukkig al hele mooie voorbeelden van samenhangende leeromgevingen, zoals bijvoorbeeld het Speelleercentrum De Wijde Wereld in Uden. Het motto van De Wijde Wereld is: tijd en ruimte voor ieder kind. Ontwikkeltijd en onderwijstijd wisselen elkaar af, waardoor een rijk dagprogramma ontstaat. Onderwijs en opvang zijn met elkaar geïntegreerd en het kind mag kind zijn. Het centrum heeft een groot speel- en sportplein zodat kinderen er spelend kunnen leren. Kinderen van 4-13 jaar hebben een dagarrangement, waarbij onderwijs en opvang met elkaar verweven zijn. Ze werken met wereldtijd (BSO), eigentijd, sporttijd en etenstijd. Die thema’s vormen de rode draad bij de verschillende activiteiten. Dan zie je wat een gebouw in een groene omgeving kan doen en hoe belangrijk het is dat een directeur een brede visie heeft op de ontwikkeling van de kinderen in de omgeving. Het uitgangspunt was: wat hebben de kinderen in onze wijk nodig om bij te kunnen dragen aan de wereld van morgen; samen opgroeien met responsief onderwijs.”

OPVANG EEN BASISVOORZIENING

“Zo’n rijke ontwikkelomgeving waarbij onderwijs en opvang geïntegreerd zijn gunnen wij ieder kind van Nederland. Het huidige stelsel leidt tot kansenongelijkheid voor kinderen en straft de zwakste groepen in de samenleving, die immers geen opvang kunnen betalen. Samen met het brede veld van maatschappelijke partijen pleiten wij voor een eenvoudig kinderopvangstelsel zonder gedoe voor ouders dat op termijn toegang biedt aan alle kinderen. Ook aan kinderen van niet-werkende ouders. Wij streven een samenhangend systeem rondom het kind na met ondersteuning rond de ontwikkeling van kinderen en een samenhangend aanbod. Maatschappelijke kinderopvang is hierbinnen een vanzelfsprekende gesprekspartner omdat

onze maatschappelijke opdracht - waarbij geld altijd terugvloeit in de organisatie - die structurele en stabiele samenwerking waarborgt met scholen, gemeenten en andere partijen. Daarom vinden wij dat kinderopvang een basisvoorziening voor iedereen moet worden en niet alleen voor werkende ouders. Het kabinet heeft een aantal scenario’s ontwikkeld om het huidige stelsel te optimaliseren en een duidelijke keuze gemaakt om de financiering te veranderen. Die financiering loopt nu rechtstreeks via de ouders met een inkomensafhankelijke complexe en foutgevoelige toeslag. Vanaf 2025 komt er een eenvoudige inkomensonafhankelijke financiering die rechtstreeks via de kinderopvangorganisatie gaat lopen. In 2025 wordt de kinderopvang voor alle werkende ouders bijna gratis. Dat is in dit coalitieakkoord opgenomen. Minister Wiersma heeft aangegeven dat een ‘realistisch ingroeipad’ is dat vanaf 2028 kinderopvang ook voor de niet werkende ouders gratis en bereikbaar is. Dat wordt de opgave voor het volgende kabinet. Dit kabinet legt de basis voor de basisvoorziening met de rechtstreekse financiering en een hele kleine ouderbijdrage; een volgend kabinet kan dit uitbreiden naar alle ouders en volledig gratis maken. En dan is opvang net als onderwijs publiek gefinancierd.”

mei 2023 SCHOOLDOMEIN 10
“Organiseer kinderopvang vanuit een maatschappelijke opdracht, publiek gefinancierd en met een focus op innovatie en duurzame kwaliteitsverbetering”

PERSONEELSKRAPTE

“Die ontwikkeling motiveert ons om oplossingen te vinden voor de grote personeelskrapte in het onderwijs en de opvang. Uit onderzoek weten we dat ouders meer uren gaan werken als kinderopvang gratis wordt. Bovendien heeft gratis kinderopvang een stabiliserend effect op de sector en biedt perspectief voor en toestroom van nieuwe medewerkers. De maatschappelijke kinderopvang is hierin de voorloper. Tenslotte maakt één Pedagogisch Medewerker het mogelijk dat elf ouders kunnen werken! De oplossing ligt deels in combinatiebanen en combinatielocaties, waardoor er aantrekkelijke arbeidscontracten ontstaan voor met name de BSO medewerkers.

De BMK is opgericht in april 2016 door ruim veertig kinderopvangorganisaties vanuit een gedeelde visie op kinderopvang. Inmiddels vertegenwoordigt de BMK bijna 35% van de markt en heeft 125 actieve, betrokken leden. Deze maatschappelijke ondernemers bieden kinderopvang op ongeveer 5.000 locaties door heel Nederland waar 200.000 ouders gebruik van maken. De BMK verenigt deze maatschappelijke ondernemers die 100% van de rendementen terug laten vloeien naar de (kwaliteit van de) kinderopvang.

richten we ons op mensen uit andere sectoren die we snel kunnen omscholen en inzetten. Ook zien we mogelijkheden in de grote groep hbo’ers met specifieke opleidingen. Zij vormen een groot onbenut potentieel, net als de groep hbo’ers/mbo’ers met een achtergrond in Sport en Cultuur. We zijn onlangs begonnen met Het Potentieel Pakken en daaruit blijkt dat ruim 40% van de professionals bij het kinderdagverblijf en 66% bij de BSO, meer uren willen werken. En ook echt substantieel meer: 4 uur bij het KDV en 7 uur bij de BSO. Gezamenlijk met het onderwijs kunnen we deze professionals aantrekkelijke contracten en perspectief bieden. Anders samenwerken, anders organiseren en anders opleiden is dé sleutel hebben we onlangs samen met de onderwijsraden en VNG geconcludeerd in onze visie over het versterken van de pedagogische basis.”

DUURZAME VEREENVOUDIGING

Hierdoor kunnen wij kinderopvangmedewerkers aantrekkelijker contracten bieden in plaats van de ‘sprokkelcontracten’ die BSO-medewerkers nu soms hebben. Ook bieden deze contracten medewerkers een beter loopbaanperspectief en meer doorgroeimogelijkheden. En tegelijkertijd betekent dit extra medewerkers voor het onderwijs. Als we in staat zijn om die banen te creëren, kunnen professionals als onderwijs assistent in de klas blijven werken en zijn ze ‘s middags de vertrouwde gezichten voor de kinderen op de BSO. Daarnaast

“Gratis kinderopvang is niet alleen goed voor de kwaliteit, het is ook nog eens goed voor onze economie. Je kunt je dus afvragen of het in de toekomst nog maatschappelijk verantwoord is dat er buitenlandse investeerders zijn die in kinderopvang investeren en er commercieel rendement uit halen. Een deel van de organisaties heeft grote belangen en verdienen via bijvoorbeeld sale lease back constructies aan het vastgoed. Ik ben groot voorstander van maatschappelijk ondernemers in de kinderopvang. Het is prima wanneer organisaties een mooie boterham aan hun dienstverlening verdienen, maar het uitgangspunt moet zijn dat winst weer in de kwaliteit van de opvang en dus het kind wordt geïnvesteerd. Dan is het ook mogelijk om bijvoorbeeld verliesgevende vestigingen in dunbevolkte gebieden open houden, omdat het belangrijk voor het kind is en het perspectief van de ouders. Ik zie steeds meer kansrijke fusies en intensieve samenwerkingsafspraken tussen onderwijs en opvang en dat is een goede zaak. De volgende stap gaat richting integrale voorzieningen, met één CAO voor alle medewerkers en een integrale aansturing op basis van dezelfde visie.”

mei 2023 SCHOOLDOMEIN 11
BESTUUR EN BELEID

Standaardisatie in scholenbouw

Standaardisatie kan scholenbouw aanzienlijk versnellen. Elke opgave is echter uniek en elk schoolbestuur wil een uniek gebouw. Kunnen die twee uitersten samengaan of moet er een keuze worden gemaakt? Schooldomein ging aan de hand van prikkelende stellingen met enkele experts in debat over dit actuele thema.

Standaardisatie kan prima samengaan met ruimte voor de architect om de school op de gebruikerswensen aan te passen.

André: “Standaardisatie is natuurlijk al in grote mate aanwezig in de bouw, in systemen. Maar bij scholenbouw heb je wel nadrukkelijk rekening te houden met de context in de wijk en met de specifieke identiteit van de school. Belangrijke factoren die meespelen in het ontwerp van een schoolgebouw. We moeten scholen niet als strak maatpak ontwerpen, maar als structuren die flexibiliteit bieden. Structuren die toekomstbestendig zijn en aanpasbaar.”

Mariken: “Op het gebied van programma’s van eisen kunnen we veel meer standaardiseren. Daar steken we nu vaak nog veel tijd in, terwijl 80% van zo’n programma van eisen voor iedere school identiek is. Als er voor die 80% een goed standaard plan in de kast ligt dat voor iedereen toegankelijk is, kunnen we ons concentreren op die overige 20% waar de unieke opgave in zit. Daarmee kunnen we processen versnellen en dat is nodig ook, want we lopen enorm achter met scholenvernieuwing.” Jan vult aan: “In mijn ogen kunnen we op heel veel punten naar

De deelnemers aan het debat:

André van der Slik Architectenbureau De Zwarte Hond

Jeroen Paas SME

Jan Remijnse ICSadviseurs

Winifred van den Bosch HEVO | Experts in Huisvesting en Vastgoed

Mariken Brink SCOPE Scholengroep

Sibo Arbeek Moderator Schooldomein

Tekst Ivo van der Hoeven Fotografie Kees Rutten Fotografie
mei 2023 SCHOOLDOMEIN 12

standaardisatie toe. Maar dat moeten we wel breed aanvliegen. Ook de verduurzamingsopgave moet daarin meegenomen worden, naast denken in total cost of ownership en losmaakbaarheid. We moeten standaardisatie combineren met structuurdenken waarbij we onderwijsconcepten flexibel in die structuren kunnen inbrengen. En dat moeten we al vroeg in het proces vormgeven, al bij de IHP’s die gemeenten en schoolbesturen opstellen. Als we dat doen, dan hebben we een prima basis om vanuit verder te werken.”

“We moeten ook goed naar de geschiedenis kijken, naar het ontstaan van standaardisatie”, reageert Jeroen; “we hebben natuurlijk al eerder standaardisatie van scholenbouw gehad met de wederopbouwscholen. Dat zijn fijne scholen met veel licht, ruimte en lucht. Deze scholen werden gebouwd in een tijd dat er nog centrale regie was op onderwijshuisvesting. Die regie is mede door de decentralisatie weggevallen. Daar zit volgens mij ook een deel van het probleem.”

We vinden nu bij scholenbouw het wiel telkens opnieuw uit, meer standaardisatie is nodig. Jeroen opent: “Ik zie een diversiteit aan schoolgebouwen met ook een diversiteit aan problemen. Soms zie je in één wijk verschillende

scholen die met dezelfde problemen kampen. Ze spreken elkaar te weinig en leren niet van elkaars fouten. Daar zit duidelijk een regievraagstuk achter. We moeten zaken weer meer centraal gaan regelen.” “Volgens mij kunnen we dit probleem ondervangen

SCHOOLDOMEIN 13 mei 2023 BESTUUR EN BELEID
“Ook de verduurzamingsopgave moet daarin meegenomen worden, naast denken in total cost of ownership en losmaakbaarheid”

door in de IHP-trajecten al de juiste standaarden mee te nemen”, nuanceert Jan; “we moeten daarbij kiezen voor bewezen technieken; er zijn al veel goede, bewezen technieken. Daar moeten we veel meer gebruik van maken.”

Mariken aanvullend: “Het IHP is gemeentelijk georiënteerd, we kunnen dat ook landelijk regelen. Anders houden we nog steeds al die verschillen in aanpak per regio. Als we een goede school ontwikkelen die we in vijf verschillende steden neerzetten, dan besparen we een heleboel op ontwerp- en engineeringskosten. Deze scholen

opeens muren gesloopt worden. We hebben helaas te veel gebouwen neergezet die moeite hebben om met die veranderende onderwijskundige visie mee te veranderen. Toch denk ik dat het wel degelijk mogelijk is om te standaardiseren en tegelijkertijd flexibele en adaptieve gebouwen te realiseren. Dan denk ik bijvoorbeeld aan mass costumization, herhalend maatwerk. In het scholenbouwprogramma in België zie je dat dit werkt. Daar hebben scholen ondanks herhalend maatwerk toch allemaal een eigen onderwijskundige visie en een eigen look and feel.” Winifred: “Ik denk dat het goed is om eisen te standaardiseren, waarbij je wel uitzonderingen mogelijk maakt. Elk schoolgebouw heeft iets unieks en staat in een andere wijk. Het is daarom belangrijk om de creativiteit van architecten en adviseurs goed in te zetten. Het zou zonde zijn als we die expertise niet meer gebruiken door alleen nog maar in standaarden te denken. Maar ik denk zeker dat er veel mogelijkheden zijn om op eisen, productniveau en in concepten te standaardiseren. Dat zie je in de bouw ook al gebeuren.” “We worden daarbij wel belemmerd door de Europese Aanbestedingsverplichting en de financiering waardoor we weer andere partijen moeten selecteren, waardoor we niet kunnen doorontwikkelen met partners waarmee we langer kunnen samenwerken”, reageert Mariken. Verder zie ik dat door de wijze van

kunnen we vervolgens een uniek karakter geven door ze qua ontwerp aan te laten sluiten bij de specifieke kenmerken in de betreffende omgeving. Niemand die dan nog ziet dat de nieuwe school in Amsterdam lijkt op de nieuwe school in Rotterdam.”

Winifred scherpt aan: “We hebben het nu heel sterk over de standaardisatie van de eisen, een belangrijk onderwerp. Het zou raar zijn als we dat niet over heel Nederland kunnen uitrollen. Niet enkel voor nieuwbouw, maar ook voor het aanpassen, verbeteren en renoveren van schoolgebouwen. Daarvoor hebben we op het abstracte niveau echt goede eisen nodig. Vervolgens is het aanpakken van die scholen wel echt maatwerk, met een eigen onderwijskundig programma van eisen.”

Elke opgave is uniek en dat moet vooral zo blijven. Jeroen verduidelijkt: “De functionaliteiten van een gebouw moeten ten dienste staan van het onderwijs en de onderwijskundige visie. Maar de vraag is hoe lang een onderwijskundige visie meegaat. Komt er een nieuwe directeur, dan komt er al snel een nieuwe onderwijskundige visie. Dan moeten er

mei 2023 SCHOOLDOMEIN 14
Mariken Brink Jan Remijnse

financiering we, vaak op korte termijn beslissingen nemen waarvan we weten dat ze op de lange termijn niet oké zijn wat betreft duurzaamheid, circulariteit of een TCO-benadering. We gaan daarmee akkoord omdat we nu eenmaal concessies moeten doen vanwege de krappe budgetten. Maar daardoor zetten we schoolgebouwen neer die op termijn weer aangepast moeten worden, onnodig kostbaar of minder duurzaam zijn. Dan kost het ons dubbel zo veel geld en wordt het milieu onnodig belast en dat vind ik zo zonde.”

We moeten op een andere manier gaan ontwerpen. Super technisch, energieneutraal en biofysisch.

Mariken: “Daar schuilt een wezenlijk gevaar in, omdat de kennis bij schoolbesturen vaak beperkt is en de techniek snel ontwikkelt. Besturen gaan daarom mee in de adviezen van installatieadviseurs en dan gaat het nog regelmatig mis. Systemen blijken in de praktijk niet te functioneren zoals vooraf geschetst of blijken vreselijk duur in de exploitatiefase. Ook weet het personeel vanwege de complexiteit er vaak niet goed mee om te gaan. Ik vraag me af of we niet gezamenlijk een installatieconcept kunnen bedenken dat goed werkt en betaalbaar is. En dat we dat vervolgens kopiëren.”

Jan knikt: “Bij installatieconcepten moeten we veel meer denken in bewezen technieken. En in lowtech.

Dat is heel belangrijk, want zeker de kleinere scholen hebben niet de kennis in huis om met ingewikkelde systemen om te gaan. We moeten daarom systemen inbrengen, die passen bij maatschappelijk vastgoed en in het bijzonder scholen en kindcentra. Dat gebeurt nu nog te weinig.” Jeroen herkent de stelling: “In de praktijk zie ik nog veel scholen waar bouwfysica en installaties niet goed op elkaar afgestemd zijn. Ze worden nog te vaak gescheiden, los van elkaar, ontworpen. Terwijl het juist belangrijk is om gebouwen te laten ademen. Passief als het kan, technisch als het moet. We zullen echt meer regie moeten pakken op dit soort zaken. Want ook de professionals, en dat zijn de zogenaamde experts, laten steken vallen.”

De oplossing zit vooral in standaardisatie van bouwfysische aspecten en constructies.

André vanuit zijn ervaring: “We moeten op zoek naar iets dat zo min mogelijk verandert. Lokalen zijn bijvoorbeeld zo’n vaste factor. Daarmee kunnen we naar een soort maatsysteem en vandaaruit naar meer standaardisatie. Dat kan het begin van het leggen van de puzzel zijn.” Jeroen reageert: “We moeten volgens mij vooral kijken naar processtandaardisatie. Maar daarbij moeten we wel de vrijheid houden om een school te laten passen in de omgeving en te laten passen bij het onderwijs. Dan kun je nog steeds een groot gedeelte van het gebouw standaardiseren, zoals bijvoorbeeld het casco. Maar dan haal je de rol van de architect niet weg.” Jan: “Het ontwikkelen van een school duurt gemiddeld zeven tot twaalf jaar. De grootste winst qua versnelling kunnen we volgens mij vooral halen in het voortraject. In de discussie met de gemeente en in het vrijmaken van het budget. In het daadwerkelijke bouwproces, van het opstellen van het programma van eisen tot aan de oplevering, kunnen we hooguit een paar maanden winnen. Daar zit echt niet de grote winst.”

SCHOOLDOMEIN 15 mei 2023
BESTUUR EN BELEID
Jeroen Paas Winifred van den Bosch

Mariken: “Binnen het normbudget kunnen we binnen veel gemeenten niet meer goed bouwen. Budgetten zijn zowel bij het rijk, gemeenten en besturen beperkt. Vandaar dat we vanuit de Kopgroep de vraag stellen aan alle partijen: kunnen jullie meedenken hoe we het slimmer kunnen organiseren, hoe we slimmer kunnen bouwen? We hebben daarbij echt alle partijen nodig. De vraag is of iedereen bereid is om aan de voorkant te investeren in een optimale oplossing die ook nog eens betaalbaar is. In het begin kost dat extra geld, maar daarna kunnen we die standaard honderd keer uitrollen en verdienen we ons geld weer terug.”

De regie moet meer bij één partij komen te liggen. Dat vraagt om een stelselwijziging. Winifred is het daar niet mee eens: “Ik ben niet dogmatisch voor een stelselwijziging, dat is niet de oplossing. Wel denk ik dat er voor sommige zaken meer algemene eisen opgesteld moeten worden, bijvoorbeeld voor het binnenklimaat in scholen. Dat moeten we niet aan gemeenten overlaten, daar moeten duidelijke landelijke eisen voor zijn. Waarom een onderscheid in Frisse Scholen A, B en C en niet een eenduidig kwaliteitsniveau? En daar moet vervolgens voldoende budget voor vrijgemaakt worden.” Jan knikt: “Een ander stelsel is volgens mij niet de oplossing. Voordat we een nieuw stelsel hebben, zijn we zo weer jaren verder. Als we willen versnellen met scholenbouw, dan moeten we niet opeens andere dingen gaan doen. Wel moeten we goed kijken waar nu precies het probleem zit in het huidige stelsel.

Waarom werkt het in de ene gemeente wel en in de andere gemeente niet? En waarom denken we niet meer vanuit total cost of ownership, vanuit restwaarde en vanuit circulair bouwen? Als we daar meer op gaan focussen, dan krijgen we een logischer systeem. Dan kan het stelsel prima functioneren.” Jeroen: “Toch ben ik wel kritisch op het huidige stelsel. Het zorgt voor een enorme hoeveelheid belangenbehartigers die voor hun eigen belang aan het lobbyen zijn. Waarom hebben we bijvoorbeeld zoveel techniek in onze scholen?

Het stelsel maakt het heel diffuus om hier regie in te krijgen. Die regie is vanuit overheidswege onvoldoende geborgd. Een gezamenlijke zorgplicht is niet verkeerd, maar dat vraagt wel om betere kwaliteitsborging vanuit het Rijk.”

Mariken tenslotte: “We moeten niet blijven denken vanuit problemen en beperkingen, we moeten denken in oplossingen. Wat kunnen wij als schoolbestuurders binnen de beperkte mogelijkheden en binnen het huidige stelsel wel doen? Waar hebben we invloed op?

En aan welke knoppen kunnen we draaien om zaken te versnellen? Het is daarbij wel heel belangrijk dat het geld voor de huisvesting van scholen vanuit het Rijk wordt geoormerkt. Daar heeft het in het verleden aan ontbroken, waardoor elke gemeente op een andere manier de randvoorwaarden kan bepalen en schoolbesturen daar te veel afhankelijk van zijn. Het zou mooi zijn als we ook scholen kunnen bouwen op basis van werkelijke kosten in plaats van op een normbudget. Gemeenten doen dit tenslotte ook voor de gebouwen die ze zelf ontwikkelen zoals een gemeentehuis, sporthal of zwembad.”

mei 2023 SCHOOLDOMEIN 16
André van der Slik en Mariken Brink

De nieuwe Handreiking IHP

De nieuwe handreiking IHP beschrijft de verschillende fases van een Integraal Huisvestingsplan. In hoeverre dekt hij alle vragen en ambities?

Bij de uitwerking van deze handreiking hebben de sectororganisaties PO-Raad, VO-raad, de VNG, Kenniscentrum Ruimte-OK nauw samengewerkt met het ministerie van OCW, zodat er een breed gedragen handreiking ligt. Het penvoerderschap lag voor een belangrijk deel bij ICSadviseurs, in nauwe samenwerking met een werkgroep, waarin het gemeentelijk veld ook betrokken was. Wat is de regel; in beginsel dienen gemeenten voor alle onderwijssoorten (bao, sbo, so, vso, vo) en ook voor het bewegingsonderwijs een, bij voorkeur samenhangend, IHP te ontwikkelen. Hiermee kunnen alle gemeenten zich optimaal voorbereiden op de aanstaande wetwijziging. Het opstellen van een IHP is straks dus een verplichting voor elke gemeente en daar hoort strategisch overleg met en goedkeuring van de schoolbesturen ook bij.

VAN CAPACITEIT NAAR GEBIED

Veel voornamelijk oudere IHP’s richten zich, overigens deels in lijn met de vigerende verordening, hoofdzakelijk op het capaciteitsvraagstuk. Zijn er voldoende lokalen? Het beter in beeld krijgen

van die capaciteit was immers de aanleiding voor de decentralisatie in 1997 van huisvestingstaken vanuit het rijk naar de gemeenten. Tegenwoordig wordt deze invulling van een IHP als te beperkt beschouwd, mede gezien het feit dat naast capaciteit ook functionele kwaliteit onder de taken en verantwoordelijkheden vallen. In deze handreiking is dit type IHP daarom niet verder uitgewerkt. De afgelopen jaren worden aanvullend op het capaciteitsvraagstuk steeds vaker ook het kwaliteitsaspect en een visie toegevoegd aan het IHP. In sommige gemeenten ontstaat de behoefte om nog integraler naar onderwijshuisvesting te kijken en ook andere kindvoorzieningen mee te nemen of onderwijshuisvesting onderdeel te laten zijn van gebiedsplannen, of te koppelen aan bijvoorbeeld de energietransitie. Het is daarbij belangrijk om vooraf de beoogde scope van het IHP aan te geven. De vraag bij het bepalen van de scope is: ‘Hoe integraal maken we het huisvestingsplan?’ De handreiking onderscheidt vier typen IHP’s, waarbij elk type zowel voor de visie op onderwijs als de visie op huisvesting eigen afwegingen en procesafspraken vraagt. In schema:

mei 2023 SCHOOLDOMEIN 17 mei 2023 SCHOOL
Tekst Sibo Arbeek
HIJ LIGT ER EINDELIJK! BESTUUR EN BELEID

In een zogenaamd Kindvoorzieningenplan en Integraal Gebiedsplan worden dus aanvullend op het Onderwijskwaliteitsplan - met aandacht voor het capaciteitsvraagstuk, visie en ambitie, kwaliteit en exploitatie - thema’s toegevoegd. Het is goed dat

krijgen en te houden, met brede schoolgebouwen als basis. Maarten Groenen van ICSadviseurs: “Op die strategische vraag dient een IHP antwoord te geven. Maar het IHP kan ook meer beogen. Het opstellen van IHP’s is tevens één van de afspraken uit het Klimaatakkoord (d.d. 28 juni 2019). Met deze afspraken dient de onderwijshuisvesting CO2-arm gemaakt te worden. Hieraan levert het IHP dus ook een bijdrage. Momenteel is het nog niet duidelijk welke eisen in de toekomst vanuit de wet worden gesteld aan een IHP, maar we doen in deze handreiking wel een aanzet. Daarnaast zien we het als een kans dat het IHP ook een routekaart kan worden om het onderwijsvastgoed de komende decennia te verduurzamen, om daarmee te kunnen voldoen aan de klimaatdoelstellingen van 2030 (55% CO2-reductie) en 2050 (95% CO2-reductie).”

dit uitgebreide type benoemd wordt, omdat veel gemeenten in afstemming met onderwijs en opvang kindcentra ontwikkelen, waarbij de bredere behoefte vanuit de omgeving leidend is.

AMBITIES VOOR DE TOEKOMST

De kern van een IHP is hoe je de bestaande voorzieningenstructuur transformeert naar de toekomst. Welke interventies gaan gemeente, schoolbesturen en maatschappelijke instellingen doen, rekening houdend met de benodigde capaciteit, de individuele en gezamenlijke beleidsambities, de maatschappelijke ontwikkelingen en stedenbouwkundige ontwikkelingen. Als je door die bril van ambities, doelstellingen, knelpunten en vraagstukken kijkt is de vraag welke transformaties nodig zijn om in de komende jaren de voorzieningenstructuur kwalitatief op orde te

DOELEN VAN HET MEERJARIGE IHP

Het IHP moet leiden tot goede schoolgebouwen. Goede schoolgebouwen zijn cruciaal voor goed onderwijs. Beleidsmedewerker onderwijs en vastgoed van de gemeente Meierijstad Geert van Etten: “ We willen toe naar onderwijsadaptieve, gezonde, toegankelijke en duurzame schoolgebouwen waarin het fijn is om te leren en te werken. In het IHP worden duidelijke afspraken gemaakt over verantwoordelijkheden en geldstromen, in gelijkwaardigheid en vanuit gezamenlijke ambities, passend bij de lokale opgave. Geldstromen worden bijeengebracht voor de levenscyclusbenadering van het gebouw (Total Cost of Ownership). Schoolbesturen en gemeenten krijgen beter inzicht in de huidige staat van de schoolgebouwen en wat ervoor nodig is om naar de gewenste gebouwen

mei 2023 SCHOOLDOMEIN 18
“De vraag bij het bepalen van de scope is: ‘Hoe integraal maken we het huisvestingsplan?’”

te komen. Het IHP leidt tot meer zekerheid voor zowel schoolbesturen als gemeenten, en overstijgt de jaarcyclus van de verordening.” Maarten knikt: “Het landelijk verplicht stellen van IHP’s geeft de mogelijkheid om lokaal te monitoren en inzicht te krijgen in de staat van schoolgebouwen. Daarbij is het van belang de brede kwaliteit van de schoolgebouwenportefeuille in beeld te brengen aan de hand van het Kwaliteitskader onderwijshuisvesting.

HELDER STAPPENPLAN

Voor het ontwikkelen van een IHP biedt de handreiking een stappenplan. Maarten: “Dat is de basis van elk IHP. We hebben per fase de onderdelen (producten) uitgewerkt. Elk onderdeel is toegelicht en er wordt beschreven hoe dit tot stand komt en kan worden uitgewerkt.

VISIEDOCUMENT

Om tot planvorming voor de onderwijshuisvesting te komen is het belangrijk dat de gemeente en schoolbesturen gezamenlijk een visie formuleren ten aanzien van onderwijs én onderwijshuisvesting. In het startdocument is de keuze gemaakt of deze gezamenlijke visie wel/niet voorafgaand aan het IHP wordt opgesteld en vastgesteld. De visie op onderwijs schetst het beoogde perspectief en/of concrete doelstellingen voor het onderwijslandschap binnen de gemeente. De visie op onderwijshuisvesting schetst het beoogde perspectief en/ of doelstellingen voor de ontwikkeling en instandhouding van alle schoolgebouwen binnen de gemeente. De visie dient te worden vertaald naar concrete uitgangspunten en spelregels, zodat deze in de planvorming en bij

de realisatie kunnen worden toegepast. De scope van het IHP bepaalt mede de thema’s waarover visie moet worden geformuleerd. In het geval van een Kindvoorzieningenplan of Integraal Gebiedsplan dient de koppeling te worden gemaakt met andere beleidsterreinen, maar blijft de visie op onderwijs en onderwijshuisvesting centraal staan.

CONCRETE VOORSTELLEN

Als de planvorming gereed is, dient een samenhangende rapportage te worden opgesteld waarin de resultaten van de visie, inventarisatie & analyse en planvorming worden verwerkt. Deze rapportage, het definitieve IHP, neemt de lezer stapsgewijs en met onderbouwing naar concrete voorstellen per school. Het definitieve IHP schetst een helder meerjarenperspectief voor alle schoolgebouwen binnen de gemeente (voor de komende 16 jaar) waarbij de financiële consequenties en beoogde planning inzichtelijk zijn. Op basis van het definitieve IHP kunnen concrete voorstellen aan college van B&W en/of gemeenteraad worden gedaan én kan worden besloten om het IHP door middel van bijvoorbeeld een convenant nog extra juridische status te geven. Als een voorstel ingediend wordt dat aansluit bij een vastgesteld IHP, wordt dit in principe goedgekeurd.

Samenvattend biedt deze nieuwe handreiking een praktisch en handzaam kader om zowel ambitie als proces en uitvoering op een heldere en samenhangende manier vorm te geven.

Kijk voor meer informatie op www.icsadviseurs.nl of mail met de opsteller Maarten Groenen: maarten.groenen@icsadviseurs.nl.

SCHOOLDOMEIN 19 mei 2023 BESTUUR EN BELEID

Maak nu kennis met het vernieuwde Van12tot18 magazine!

Van 12tot18 is een magazine voor leraren en leidinggevenden in het voortgezet onderwijs. Het magazine besteedt aandacht aan leren en onderwijzen, de leerling en de leraar en aan maatschappelijke ontwikkelingen waar het onderwijs mee te maken heeft. Van12tot18 is een onmisbaar magazine, waarin informatie, inspiratie en ontspanning samenkomen. Gun jezelf, of een ander een abonnement op Van12tot18.

Introductie abonnement

• Je maakt via een introductie abonnement kennis met Van12tot18.

• Je ontvangt maandelijks het magazine behalve in zomermaanden.

• Je krijgt toegang tot alle artikelen op de site van Van12tot18.

• Je ontvangt als nieuwe abonnee een welkomstgeschenk.

mei 2023 SCHOOLDOMEIN 20 NIEUW! NIEUW! NIEUW
www.tenbrinkuitgevers.nl
Scan de QR-code voor het introductie abonnement

Kort nieuws

meer mensen hebben door de inflatie moeite om rond te komen. De prijzen voor groenten rijzen inmiddels de pan uit. Bloemkolen, paprika’s en komkommers zijn stuk voor stuk fors duurder dan voorheen en dat baart zorgen. IVN Natuureducatie vindt dat iedereen in staat zou moeten zijn om zijn eigen voedsel te verbouwen en vindt daarom dat er veel meer moet worden geïnvesteerd in schooltuinieren.

Steeds

Schooltuin

Weten hoe je eten groeit en hoe je je eigen voedsel kunt verbouwen zou een basisvaardigheid moeten zijn. IVN roept daarom niet alleen volwassenen op om zelf aan de slag te gaan met een moestuin, maar wil ook dat hier op scholen meer aandacht voor komt. Iedere school zou over een schooltuin moeten beschikken, die dan ook meteen een buurtfunctie heeft. Nu zie je al dat scholen de groenten die ze telen uitdelen aan de leerlingen of mensen in de wijk. Om het moestuinieren meer op de kaart te zetten, vindt eind mei de Week van de Schooltuin plaats, georganiseerd door de Alliantie Schooltuinen, waarvan ook IVN deel uitmaakt. Nu heeft slechts een op de vijf basisscholen een schooltuin, terwijl moestuinieren kinderen juist zoveel te bieden heeft. Lekker buiten aan de slag, met de handen in de aarde, zien hoe alles groeit en bloeit, echt ergens voor leren zorgen en dan als beloning voor al het werk een heerlijke maaltijd met verse groente uit de schooltuin. Winst op allerlei fronten: het bespaart geld en zorgt voor een gezonde ontwikkeling van onze kinderen. www.ivn.nl

ESTLAND PISA-LIJST, ZELFS NOG HOGER DAN FINLAND!

Estland ontwikkelt zich razendsnel en behoort tot de top van Europa. Nu blijkt dat deze Baltische staat ook nog eens de slimste pubers van Europa heeft. Wat zijn de geheimen van dit schoolsysteem? Heel eenvoudig; de mensen in Estland zijn trots! Sinds 1991 is het land onafhankelijk geworden na jaren van communisme onder de Sovjet-Unie. Deze trots is terug te zien in de samenleving en het onderwijs. De Estlanders zijn volhoudend en gedreven in wat ze in recordtempo bereikt hebben. Estland wilde na de onafhankelijkheid zo snel mogelijk een Westers land worden met lidmaatschap van de EU en de NAVO. Voor het onderwijs keken ze naar Finland. Hoe ziet het onderwijs eruit? Estland betaalt alle onderwijskosten voor iedereen, dus is er voor iedereen kansengelijkheid. Ouders kunnen gebruik maken van 18 maanden volledig doorbetaald ouderschapsverlof. Ook kinderopvang (uiteraard al vanaf de Kindergarten met een curriculum) is bijna gratis, maar niet verplicht. Toch gaat ruim 90% van de kinderen al eerder dan hun zevende naar school. In Estland volgen leerlingen vanaf hun zevende levensjaar een basisopleiding, opgebouwd uit de eerste vier jaar primary education en de volgende vier jaar de basic education. Daarna, op hun zestiende, kiezen leerlingen voor een gymnasium- of beroepsopleiding.

Het Nederlandse systeem met een selectie op 12-jarige leeftijd kennen ze in Estland niet.

Het doorbetaalde ouderschapsverlof van 18 maanden is meteen een goed voorbeeld van beleid op basis van wetenschap. De wetenschappelijke en data-gedreven beslissingen vertaalt zich ook door in de onderwijs-interventies. In Estland blijft bijna nooit iemand zitten, omdat wetenschap aantoont dat het geen positief effect heeft. Integendeel zelfs.

De scholen hebben allemaal een beleid dat moet zorgen voor inclusief onderwijs. Alle scholen zorgen ervoor dat leerlingen gratis gebruik kunnen maken van extra ondersteuning, zoals psychologen, sociale pedagogen en spraaktherapeuten. Dit kan gewoon zonder doorverwijzing dus ook op het initiatief van een leerling, ouder of docent zelf.

Scholen in Estland zijn autonoom. De onderwijsteams die uit de schoolleiding en docenten bestaan, bepalen wat er op school gebeurt. Daarbij probeert iedere school zijn eigen identiteit vorm te geven. De onderwijsinspectie bestaat hier niet en het toezicht wordt geregeld vanuit de gemeente.

Iets om over na te denken dus. Volgens mij kan het bij ons beter en slimmer. De bron van dit stuk is de inspiratiereis die ik recent naar Estland heb gemaakt.

mei 2023 SCHOOLDOMEIN 21
‘Schooltuin oplossing voor hoge groenteprijzen’
Adri Pijnenburg | Pijnenburg Techniek Scouting
Column
Trendontwikkelaars en innovatieversnellers vmbo & mbo Techniek

Het nieuwe Inspiratieboek Kindcentra in hun omgeving is uit.

Op 20 april werd het boek Kindcentra in hun omgeving tijdens het gelijknamige symposium gelanceerd en aangeboden aan de voorzitter van de PO-Raad Freddy Weima, de voorzitter van de BMK Loes Ypma, de directeur van de BK Emmeline Bijlsma en de bestuurder van de VNK Ad Vos.

Het centrale thema van het boek is dat kindcentra vanzelfsprekend verbinden met hun omgeving, zowel maatschappelijk als ook ruimtelijk. Dat levert gebouwen op met een groene omgeving, waarin kinderen zich op een natuurlijke manier ontwikkelen en van en met elkaar leren en spelen. Een goed kindcentrum verbindt het gebied met het gebouw en de inrichting ervan. Dat begint al bij de visie op een kindcentrum, waarbij het gebouw in zijn omgeving de organisatie rond het kind stimuleert en faciliteert en de natuurlijke ontwikkeling niet belemmert. Waarom is dit boek belangrijk:

• Het beschrijft 50 adaptieve en duurzame kindcentra en speel- en leercentra

• Waarbij de omgeving meedoet met groene pleinen om te leren en te spelen

• Elk project is prachtig gedocumenteerd met verhalen, foto’s en plattegronden

• De gebruikers komen aan het woord en vertellen over hun ervaringen

• Het boek bevat facts and figures en een uitgebreid overzicht van alle programma’s.

Meer nog dan een inspiratieboek is dit boek een manifest en een aansporing om vooraf goed na te denken over de impact van het gebouw in zijn omgeving op de organisatie van het kindcentrum en de vanzelfsprekende ontwikkeling van het kind in verbinding met zijn omgeving. Het is daarom een must voor bestuurders, beleidsambtenaren, directeuren en alle partners in het proces van ontwerpen, bouwen, inrichten en beheren.

Bestel het boek nu via de QR-code:

BESTELLEN KAN NU!

Vanzelfsprekend verbinden is het thema van deze Schooldomein. In de rubriek Architectuur en Verbeelding geven architecten, ontwerpers en inrichters beeldende voorbeelden.

MFA De Botter in Lelystad is een multifunctionele accommodatie in de wijk De Botter. Het gebouw bundelt voorzieningen van een Christelijke basisschool voor 270 leerlingen (De Schakel), een kinderdagverblijf met 4 stamgroepen en een BSO (beide GO!), een sportzaal, een consultatiebureau (Icare) en een wijkcentrum (Gemeente Lelystad).

Het gebouw is nadrukkelijk als een eenheid ontworpen en stimuleert de verschillende gebruikers om elkaars ruimten en faciliteiten te delen en te gebruiken. Door functionele uitwisselbaarheid, een heldere routing en samenhang in de kleur- en materiaalstelling in interieur en exterieur. Hierdoor worden de gebruikers met elkaar in verbinding gebracht zonder dat dit ten koste gaat van hun eigen identiteit.

Met de omliggende woonwijk heeft het gebouw een enigszins vergelijkbare strategie: de kwetsbare buitenruimten voor de allerkleinsten (KDV/BSO en onder/middenbouw basisschool) zijn gecombineerd in beschutte tuinen aan de binnenzijde van het ge-

bouw. De buitenruimten voor de bovenbouw en het wijkcentrum liggen tegen het gebouw en zijn robuust vormgegeven waardoor ze ook buiten de openingstijden van de MFA als wijkvoorziening kunnen dienen. Daarmee wil het gebouw nadrukkelijk de verbinding met de wijk en het wijkcentrum aangaan.

www.iaa-architecten.nl

www.avecodebondt.nl

SCHOOLDOMEIN 23 mei 2023 ARCHITECTUUR EN VERBEELDING
IAA ARCHITECTEN I.S.M. AVECO DE BONDT MFA DE BOTTER, HET SOCIALE HART VAN DE WIJK AFBEELDINGEN: IAA ARCHITECTEN

MONIQUE GROENEN - GLS ARCHITECTUUR| INTERIEUR TILBURG|EINDHOVEN

FOTOGRAFIE: EEKELAAR FOTOGRAFIE

Midden in woonwijk de Blaak in Tilburg, tussen twee bestaande basisscholen in, is de nieuwbouw gerealiseerd van de kinderopvanglocatie Grebbe om zo een integraal kindcentrum te realiseren. Gls architectuur|interieur kreeg hiervoor de opdracht nadat ze een kleine 15 jaar eerder één van de basisscholen, de Borne, had gerealiseerd.

Tussen het sterk sculpturale 2-laagse schoolgebouw van de Borne en het 1-laagse gebouw van OBS de Blaak was nog net ruimte voor een nieuw gebouw. De grootste uitdaging was om een verbinding te maken tussen de beide scholen en de nieuwbouw, zowel in functionele zin als qua architectuur. Beide scholen hadden zo’n verschillende architectuur, dat is besloten om qua vormgeving niet aan te sluiten bij één van de gebouwen, maar duidelijk een ander herkenbaar gebouw met eigen vorm en materialisatie

ertussen te voegen. Het duurzame pand is ontworpen in de vorm van 3 ‘huisjes’ en aan de buitenzijde bekleed met bamboe stroken in combinatie met gemêleerd metselwerk.

De verbinding is letterlijk gemaakt met de ene school op de begane grond en met de andere school op de verdieping. Functioneel is er een bijzondere verbinding gemaakt met de Borne. Op de verdieping loopt het onderwijs naadloos over in de ruimtes van de BSO. In de ruimtes van de BSO wordt overdag gewoon les gegeven in een creatieve omgeving; een studio, keuken, bewegingsruimte en atelier. Op de begane grond zijn de babygroepen van het kinderdagverblijf. Aan de achterzijde van het gebouw bevindt zich een buitenruimte op de begane grond, maar ook in de vorm van een dakterras op de verdieping. Middels een trap en glijbaan is hier de verbinding met de tuin gemaakt.

www.glsarchitectuurinterier.nl

mei 2023 SCHOOLDOMEIN 24

MARGRIET EUGELINK – EUGELINK ARCHITECTUUR

I.S.M. PAUWERT ARCHITECTUUR

Kindcentrum Platijn Maatstok 1 Best

Opgeleverd in 2021

Design and Build: Giesbers Wychen

Fotografie: Merijn Koelink

Midden in de groene wig van de in aanbouw zijnde nieuwbouwwijk Dijkstraten mocht een fraai ankerpunt voor de wijk gebouwd worden: het kindcentrum Platijn met daarop 24 appartementen.

Kindcentrum Platijn is een school die zelf graag een sterke verbinding legt met ouders en omwonenden. Een spil en ankerpunt, waar van meet af aan duidelijk was dat de verschillende ruimtes van de school in de avonduren ter beschikking staan aan de buurt. Om die verbinding ook ruimtelijk gestalte te geven is er een compacte carré-vorm gemaakt met een centraal plein. Over de diagonaal kom je het gebouw binnen en word je automatisch naar de centrale ruimte geleid.

Er zijn 4 entrees, aan elke zijde 1 (voor de kinderdagopvang, de school, de wijk en de bewoners). Op deze manier heeft de school voor iedereen een eigen plek aan de gevel: de dagopvang, de onder, midden en bovenbouw, en is er meteen een heldere indeling van het in tweeën gesplitste school plein. De woningen liggen rond een hof gegroepeerd, waardoor in het midden daglicht kan toetreden in het centrale hart van de school via de dakramen. In het ontwerp van dit gebouw is gekozen om school en woningen als een architectonisch geheel te ontwerpen. De school vormt een brede plint, waarop -terugliggend- het blokje van de woningen is ontworpen.

Een zonnige kleurstelling met groen en okergeel. De bijzondere witte banden van Tribar-staal pakken het spel van de balkons en dakranden samen en brengen geleding aan. Het gebouw is een echte blikvanger waarbij het groene speelplein moeiteloos opgaat in de grotere groene ruimte van de wijk. Om maximaal de ruimte te geven aan het groene schoolplein is er gekozen om het parkeren van de bewoners in de appartementen op de school te delen met een langzaam ‘zoen en zoef’ erf voor het halen en brengen van kinderen met de auto.

www.eaoa.nl

ARCHITECTUUR EN VERBEELDING SCHOOLDOMEIN 25 mei 2023

Het schoolvoorbeeld van duurzaamheid voor Amsterdamse scholen

Veel steden in Nederland maken een grote groei door. Naast de bouw van nieuwe woningen is de bouw van maatschappelijke voorzieningen, zoals integrale kindcentra (IKC), dan ook hard nodig. De gemeente Amsterdam bouwt de komende tien jaar negen tot dertig IKC’s in de Metropoolregio Amsterdam, in opdracht van de schoolbesturen en binnen een raamovereenkomst met de gemeente Amsterdam.

Hiervoor komt de gemeente met een innovatieve aanbestedingsmethode, het Innovatiepartnerschap (IPS).

Deze methode betekent een efficiënte en kostenbesparende manier van bouwen voor IKC’s met hoge ambities op het gebied van duurzaamheid en energieprestatie. Dit is nodig door de kloof tussen beschikbare bouwcapaciteit en de huidige bouwopgave. Hierdoor ontstaan structureel stijgende prijzen in de bouwmarkt. Met het IPS is het mogelijk innovatieve projecten voor een lagere kostprijs te realiseren. Een interessante ontwikkeling voor schoolbesturen die nieuw willen bouwen, omdat het verrassingen voorkomt en voordelen oplevert op meerdere vlakken.

SAMENWERKING EN INNOVATIE

Om niet voor elk IKC opnieuw het wiel te hoeven uitvinden, koos de gemeente met deze nieuwe manier van aanbesteden drie consortia die in elk geval de eerste negen IKC’s realiseren. Deze consortia werken samen met de gemeente en betrokken schoolbesturen aan bouwconcepten voor duurzame, flexibele en kwalitatief hoogwaardige scholen. Door samenwerking, schaalgrootte en ontwerpvrijheid kan het consortium innoveren en industrialiseren en daarmee IKC’s van hogere kwaliteit realiseren. De concepten zijn zo flexibel dat ze geschikt zijn voor elk onderwijsconcept.

Tekst Sara van Wifferen
mei 2023 SCHOOLDOMEIN 26

Voor ieder schoolgebouw doet elk van de consortia een voorstel, de schoolbesturen kiezen het bij hen passende ontwerp. Dit zorgt ervoor dat de consortia meerdere schoolgebouwen tegelijk kunnen bouwen binnen budget. Een ander belangrijk punt is dat de consortia het concept blijven ontwikkelen en verbeteren, dit komt het bouwen van volgende IKC’s steeds ten goede.

GENERIEK ONTWERP

Het best beoordeelde consortium bestaat uit Hegeman Bouw & Infra, Rudy Uytenhaak +Partners architecten en ingenieurs en adviesbureau DGMR. Dit consortium werkt samen met Pieters Bouwtechniek, de Groot Installatietechniek en Alba Concepts. De intensieve samenwerking tussen deze partijen

en aannemer Hegeman ook belangrijk. De indeling, het ontwerp, de gevelbekleding is allemaal vrij aanpasbaar en flexibel naar wens. Het schoolbestuur geeft hun wensen aan, deze passen dan binnen dit generieke bouwsysteem. Thomas: “Het mooie van deze manier van bouwen is dat wij schoolbesturen en gebruikers een prominente plek geven bij het maken van (ontwerp)keuzes. Sterker nog: We laten zien hoe we hen meenemen naar hun meest gepersonaliseerde school ooit!”

Het werken in een consortium bevalt de partners goed. Vanaf de start bundelen zij hun kennis en ervaring en is er ruimte voor ieders expertise. Het gebouw begint niet bij een ontwerp van de architect, maar het is een combinatie van ontwerp (van Rudy Uytenhaak + Partners architecten), oplossingen voor bouwfysica, brandveiligheid en duurzaamheid (van DGMR) en de praktische maakbaarheid (van Hegeman Bouw). Zo versterken deze partijen elkaar. Dit levert energie, betrokkenheid en daardoor uiteindelijk een optimaal en kostenefficiënt ontwerp voor scholen op. Een gebouw dat in welke vorm dan ook steeds optimale prestaties levert. Dit is bijvoorbeeld te zien bij de samenwerking aan bouwfysica en installaties. Door meteen in het begin goede bouwfysische keuzes te maken, zijn minder uitgebreide installaties nodig. Dit geeft de installateur tijd en ruimte in het project om innovaties en personalisaties specifiek voor schoolbesturen en gebruikers te ontwikkelen.

LEREN VAN HET CONCEPT

leverde volgens de gemeente de beste aanbieding op; het schoolvoorbeeld. Het consortium maakt in deze fase een generiek ontwerp, omdat er nog geen locatie bepaald is. Het consortium staat voor een uitdagende opdracht. Duurzaamheid, flexibiliteit en circulariteit zijn voor schoolbesturen steeds belangrijker. En een schoolgebouw moet ook bijdragen aan de gezondheid en het comfort van medewerkers en leerlingen. In dit ontwerp kan een schoolbestuur ervan uitgaan dat hun nieuwe schoolgebouw een hoge prestatie heeft op het gebied van milieu, energie en circulariteit. Bas Hasselaar van DGMR vertelt: “Wij maken hiervoor gezamenlijk een innovatief ontwerp en toetsen de haalbaarheid om het ontwerp en de oplossingen concreet te maken.”

CIRCULAIR EN BIOBASED HOUTEN IKC

Het ontwerp is een circulair en biobased houten gebouw, met veel vrijheid voor het schoolbestuur. Dat vindt Thomas Kraesgenberg van ontwikkelaar

Bas geeft aan: “Het mooie van deze constructie is dat de verbeterslag blijft doorgaan. Los van precieze vorm en inhoud zie je welke technieken zich bewijzen en welke we verder moeten ontwikkelen. Wij maken nu bijvoorbeeld berekeningen op het gebied van daglicht en toetsen deze in een echt schoolontwerp. Deze ervaringen nemen wij mee in de verbetering van het concept. Alles wat wij leren nemen wij mee naar het volgende schoolgebouw. Daar ga je dan uit van bewezen technieken en dat maakt het proces sneller, beter en goedkoper. Op termijn zien wij ook mogelijkheden dit concept breder in te zetten voor bijvoorbeeld kantoor- en woongebouwen.”

Geïnteresseerde schoolbesturen en gemeenten binnen de metropoolregio Amsterdam kunnen nog toetreden tot de raamovereenkomst. Maar ook gemeenten en schoolbesturen daarbuiten kunnen gebruik maken van dit aanbod voor duurzame en flexibele schoolgebouwen.

Amsterdam stelt gestandaardiseerde conceptaanbestedingsdocumenten beschikbaar voor andere overheden om zelfstandig (Europese) aanbestedingen uit te voeren.

Kijk voor meer informatie op www.dgmr.nl.

ONDERZOEK EN BEDRIJFSVOERING SCHOOLDOMEIN 27 mei 2023
“Het mooie van deze manier van bouwen is dat wij schoolbesturen en gebruikers een prominente plek geven bij het maken van (ontwerp) keuzes. Sterker nog: We laten zien hoe we hen meenemen naar hun meest gepersonaliseerde school ooit!”
IKC De Kreek Architect rudy uytenhaak + partners architecten Fotograaf Pieter Kers

Een nieuwe school voor inclusief onderwijs

Kindcentrum De Kroevendonk in Roosendaal krijgt deze zomer een gloednieuw gebouw. Het gebouw is inclusief, geschikt voor alle kinderen ongeacht hun achtergrond, cognitieniveau of eventuele beperkingen. Elk kind is hier welkom.

De Kroevendonk is een inclusief kindcentrum. Wat voor soort kinderen komen hier, is een vraag die directeur-bestuurder Teun Dekker vaak hoort. Resoluut zegt hij: “De kinderen die naar De Kroevendonk komen zijn kinderen. Gewoon kinderen. In De Kroevendonk zijn regulier basisonderwijs, een peuterspeelzaal, kinderopvang en buitenschoolse opvang ondergebracht. Ook is er een klas van Stichting Wij Samen, waarin met name kinderen met een meervoudige handicap zitten. Veel van deze kinderen hebben ontheffing van de leerplicht waardoor het ene kind in Nederland wél een plicht heeft tot leren en het andere kind niet. Wij zeggen liever: elk kind heeft leerrecht. Wij geloven erin dat elk kind altijd ontwikkelingsmogelijkheden heeft. Alleen ziet de ontwikkeling er bij verschillende kinderen verschillend uit. Met een hele groep professionals werken wij hier keihard om te zorgen dat elk kind verder komt in zijn ontwikkeling. Deze attitude is voor ons de basis van inclusief onderwijs.”

EEN GEWONE SCHOOL, MAAR DAN ANDERS

Het oude gebouw van De Kroevendonk was niet meer geschikt om deze inclusieve ambitie optimaal waar te

maken. Daarom komt er een nieuw gebouw, dat rond de zomer wordt opgeleverd. HEVO is nauw betrokken bij de ontwikkeling van de nieuwbouw. HEVO vertaalde onder meer de visie van De Kroevendonk naar een Programma van Eisen en begeleidde de aanbesteding. Gerhard Jacobs, partner bij HEVO: “Dit gebouw voelt en oogt als een gewone school, maar als je wat beter kijkt, zie je dat het geschikt is gemaakt voor alle kinderen. Zo is het hele gebouw rolstoeltoegankelijk. Er zijn dus geen drempels maar wel brede deuren, een lift, een mindervalidentoilet en ruimte voor de draaicirkel van een rolstoel in de keuken. Dus ook als je in een rolstoel zit, kun je alles zelf doen.” Die filosofie wordt ook doorgetrokken naar de inrichting van het schoolplein. Daar komen bijvoorbeeld netschommels waarin kinderen kunnen liggen en een schaaktafel waar je met een rolstoel makkelijk kunt aanschuiven.

EEN TOEGANKELIJKE SCHOOL VOOR IEDEREEN Ook op akoestisch gebied zijn er specifieke maatregelen genomen, met name in de wanden, de plafonds en de gymzaal. “Het verminderen van geluidsprikkels is in het bijzonder belangrijk voor kinderen met een stoornis in het autistisch spectrum,

Tekst -Bron: Naar School – VOSABB
mei 2023 SCHOOLDOMEIN 28

waren gericht op het creëren van de best denkbare inclusieve leeromgeving. Het team van HEVO heeft van begin af aan bij het verkrijgen van de bouwkredieten, het bedenken van het concept en nu bij de realisatie - dit doel voor ogen gehad.

maar niemand zit graag in een betonnen bak waar het geluid alle kanten op galmt. Die akoestische maatregelen zijn dus voor iedereen goed. We noemen dat universal design”, legt Teun uit. In het aparte speellokaal is ook vloerverwarming aangebracht, omdat daar ook motorische therapie zal worden gegeven.“ Gerhard vult aan: “Wat ik een mooi aspect vind: het nieuwe gebouw stelt elk kind in de

gelegenheid om zijn weg te vinden. Het gebouw is heel logisch gestructureerd en heeft dus ook geen lange of doorlopende gangen. Het gebouw is compact en helder van opzet, met een duidelijk hart waar alle voorzieningen en lokalen omheen liggen. Wie dat wil, kan een beetje dwalen maar zal nooit verdwalen. De kleuren doen ook mee. Door het kleurgebruik kunnen ook slechtzienden makkelijker hun weg vinden.”

VISIE EN ONTWERP SCHOOLDOMEIN 29 mei 2023
“De visie van De Kroevendonk en haar kindpartners zoals Stichting Wij Samen, heeft richting én snelheid gegeven in dit project. Gesprekken met de leerlingen, leerkrachten en medewerkers én met de omgeving
Een sterke visie op onderwijs leidt tot een sterk huisvestingsconcept”
Gerhard Jacobs - partner HEVO

PARTICIPATIE

Om het gebouw optimaal geschikt te maken voor elk kind en elke ouder, is in de ontwerpfase goed geluisterd naar kinderen en ervaringsdeskundigen. Teun: “Als lopend mens kun je bepaalde dingen best beoordelen, maar als je zelf in een rolstoel zit, kijk je met andere ogen. Daarom is het ontwerp gescreend door ervaringsdeskundigen en het Roosendaals Gehandicapten Platform (RoGeP). Dat hebben we dus heel pragmatisch benaderd.” Wat bijzonder is: de leerlingenraad heeft ook een paar ontmoetingen met de architect gehad. Dat heeft impact gehad op het ontwerp. In het oorspronkelijke Programma van Eisen was bijvoorbeeld geen snoezelruimte opgenomen: een ruimte met minimale zintuigelijke prikkeling. Teun: “De kinderen gaven aan dat zo’n snoezelruimte er wél moet komen, want sommige van hun vriendjes en vriendinnetjes moeten soms

Teun Dekker - directeur-bestuurder

gewoon eventjes helemaal rust om zich heen hebben.” Dit mooie verzoek illustreert dat je zo’n nieuw gebouw echt met elkaar ontwikkeltálle niveaus zijn betrokken.

FINANCIERING

Gerhard over de financiering: “Veel onderwijsmensen en beleidsmakers hebben het idee dat inclusief onderwijs ingewikkeld en duur is. Ik zal niet zeggen dat inclusief onderwijs eenvoudig is, maar het is niet zo dat een gebouw duurder wordt omdat je rekening houdt met alle mogelijkheden van de kinderen die er les krijgen en worden opgevangen. Dat is gewoon niet zo”. Teun is het daar mee eens, maar stelt tegelijkertijd dat de budgetten best wat ruimer zouden mogen zijn voor een gebouw als dit. In De Kroevendonk komt bijvoorbeeld een lift waarmee in principe geen rekening wordt gehouden in het reguliere huisvestingsbudget.

DUURZAAM GEBOUW

De Kroevendonk is niet alleen een gebouw voor inclusief onderwijs, maar ook een duurzaam schoolgebouw. “HEVO maakt uitsluitend duurzame schoolgebouwen. De Kroevendonk wekt bijvoorbeeld zelf energie op met zonnepanelen en voldoet aan alle energie-eisen”, legt Gerhard uit. Omdat in de plattegrond een slimme en speelse verschuiving zit, ontstaan er natuurlijke overstekken die klimaattechnisch gunstig zijn. Het compacte karakter van het gebouw, met relatief veel binnenruimte ten opzichte van gevel en dak, draagt ook bij aan de duurzaamheid. “De gemeente Roosendaal heeft eigen ambities geformuleerd op het gebied van duurzaamheid van schoolgebouwen. Zij heeft in het voortraject goed meegedacht en was ook bereid een bovennormatief budget ter beschikking te stellen voor het verbeteren van de duurzaamheid. Ook zij begrijpt dat dit gebouw zeker zestig jaar blijft staan.”

HEVO Experts in huisvesting | www.hevo.nl | 073-6409409 | info@hevo.nl

mei 2023 SCHOOLDOMEIN 30
“Als je verwacht dat kinderen in de samenleving ook daadwerkelijk samen leren leven, moet je ze in de schoolse periode niet apart zetten maar juist die brede diversiteit omarmen”

EEN SCHONE LUCHT MET NORA VLOEREN

CO2 -neutrale rubber vloerbedekking voor een gezonde leefomgeving

Een schoon binnenklimaat en een rustige leeromgeving zijn van groot belang in kinderdagverblijven, scholen en universiteiten. Onze CO2-neutrale rubber vloerbedekkingen zijn slijtvast en contactgeluiddempend, en daarmee bestand tegen intensief gebruik.

www.nora.com

VERBINDENDE BLOKKEN MET EIGEN PROFIEL

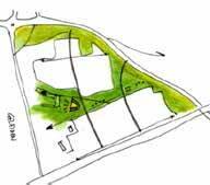
Geslaagde vernieuwbouw Koning Willem II College

Het Koning Willem II College in Tilburg wordt ingrijpend vernieuwd, om zo het onderwijs weer toekomstbestendig te maken. De reden was dat zowel de onderwijskundige functionaliteit als ook de technische kwaliteit van een aantal gebouwdelen te wensen overliet.

“In 2016 waren we al betrokken bij het opstellen van een programma van eisen voor de school”, opent Frans Benjamins van Architecten|en|en; “het gebouw was door de jaren heen uitgebreid met een hegemonie aan gangen en

lokalen en vier losse gymzalen. De opdrachtgever wilde een ander onderwijsconcept en dat kon niet in het bestaande gebouw. De gemeente wilde eerst het hele gebouw transformeren, maar wij konden aantonen dat de structuur van een aantal delen economisch en technisch echt verouderd was. Het resultaat was een mooi plan met een hergebruik van twee bestaande blokken met in het hart nieuwbouw. Om dat scenario uit te kunnen voeren was tijdelijke huisvesting nodig en dat bleek te kostbaar. Dat gegeven resulteerde in een nieuw plan waarbij we het bestaande ontwerp als het ware omgeklapt hebben en de nieuwbouw op het bestaande parkeerterrein hebben geprogrammeerd, met als voordeel dat het onderwijs tijdens de bouw gewoon door kon gaan. Het nieuwe plan pakte stedenbouwkundig zelfs beter uit.” Jeffrey Sonnema: “Het gebouw heeft meerdere kanten en ligt straks op het scharnierpunt van twee wijken; aan de rechterkant ligt de aandachtswijk Groenewoud, een wijk die een facelift krijgt; aan de andere kant de wijk Zuiderpark met meer woningen in het hogere huur- en koopsegment. Met het nieuwe ontwerp ontstaat letterlijk meer lucht tussen de twee wijken. De ontstane ruimte wordt benut door de bestaande groen- en bomenstructuur te intensiveren met

Tekst Sibo Arbeek
mei 2023 SCHOOLDOMEIN 32
“Op de kruising van de assen ligt de aula, een dynamisch hart waar alles levendig samenkomt”
Jeffrey Sonnema (l) en Frans Benjamins

PROJECTINFORMATIE

Project

Vernieuwbouw Koning Willem II College Tilburg

Opdrachtgever

Sovot, stichting openbaar voortgezet onderwijs

Tilburg

Architect

Architecten|en|en

Landschapsarchitect mtd landschapsarchitecten

Aannemer

Mertens Bouw

Bvo

15.715 m2

Oplevering

2024, gefaseerd opgeleverd

een ecologische parkrand en wijkveld. Dit concept hebben we samen met MTD landschapsarchitecten opgezet en uitgewerkt, waardoor het gebouw door zijn alzijdigheid aansluiting vindt met de directe omgeving.”

ORIËNTATIE TUSSEN DE VOLUMES

Frans: “De verschijningsvorm van de twee te behouden bouwblokken vormt de basis voor het architectonisch concept van de totale vernieuwbouw. De karakteristieke vormentaal en materialisering van de bestaande blokken hebben we doorgetrokken in de drie nieuwe blokken van de nieuwbouw, met wit metselwerk in de gevels en verdiepte verticale strookramen. Door de positionering van de metselwerk blokken ontstaan logische assen die het schoolgebouw verbinden met de omgeving, waarbij de hoofdas de oostelijke met de westelijke zijde verbindt. Op vanzelfsprekende wijze liggen hieraan de hoofdentrees. Tegelijk structureert deze as de interne routing en voorziet in oriëntatie tussen de volumes. De familie van blokken die hiermee ontstaat zorgt voor een samenhangend beeld, waarin bestaand en nieuw niet meer van elkaar te onderscheiden zijn. Bijkomend voordeel is dat het geheel een menselijke maat krijgt; het is wel een grote school met 1.650 leerlingen en twee sporthallen,

maar je ervaart het als een overzichtelijke verzameling van kleinere blokken.”

VERBINDENDE HOUTEN LAAG

“Tussen de metselwerkblokken zit een verbindende houten laag”, legt Jeffrey uit; “deze markeert twee prominente momenten: de aula als hart van de school en de brug tussen de sportfaciliteiten. De hellende dakvorm biedt de mogelijkheid om aan de noordzijde licht binnen te halen en de zuidzijde in te zetten voor de plaatsing van zonnepanelen. Op de kruising van de assen ligt de aula, een dynamisch hart waar alles levendig samenkomt. Met een meer dan dubbele verdiepingshoogte en grote glaspuien aan de noord- en zuidzijde staat de aula in open verbinding met de buitenwereld. Doordat de materialisatie van hout en metselwerk door loopt van binnen naar buiten, ontstaat het gevoel van een overdekte buitenruimte als onderdeel van het prachtige park. De installaties worden in de houten volumes opgenomen in plaats van ze in het zicht op de daken te plaatsen.”

BIJZONDER PROFIEL

Frans: “De twee sporthallen benadrukken het sportprofiel, maar daarnaast zijn ook muziek en dans belangrijk. Wist je dat de bandleden van Krezip hier op school hebben gezeten? De school is een vooropleiding voor de Fontys dansacademie. Op de hoek komen twee dansstudio’s te liggen en op de begane grond de muziekstudio’s, met aan de andere kant de dramaruimte die via een dubbele wand met de aula is verbonden. Daar vinden straks de toneelvoorstellingen plaats. De loopbrug op de tweede verdieping biedt toegang tot het lokaal voor beeldende vorming, waarbij ook buiten les gegeven kan worden.” “We wilden niet een school met los daarvan twee traditionele sporthallen, met een aanbouw met onder de kleedkamers een bergruimte en daarboven de tribunes”, legt Jeffrey uit; “we hebben in de beide sporthallen de bergingen en kleedruimtes gecombineerd en op de verdieping lokalen gelegd. Daardoor ervaar je aan de buitenzijde een gewone gevel en zie je de leerlingen in hun lokalen zitten. De tweede sporthal hebben we gespiegeld, waardoor je een hele fraaie omkering van de beide volumes krijgt, met elk een levendige gevel. Op die manier hebben we de twee lange gevels geactiveerd en verbonden met het groen. Het mooie is dat de sporter door het mooie buitenlicht ook verbonden is met die buitenomgeving. Met in- en uitspringen wordt hiërarchie aangebracht tussen de volumes en worden entrees geaccentueerd. Zo ontstaat een verbindende houten kroon die het Koning Willem II College een krachtige identiteit geeft.”

Kijk voor meer informatie op www.architecten-en-en.nl.

VISIE EN ONTWERP SCHOOLDOMEIN 33 mei 2023

SYNERGIE CREËREN OP EEN CAMPUS

Verbinding moet je organiseren

Synergie ontstaat door echt samen te organiseren. Volgens Jan Joost Flim, directeur van Draaijer bestaat ‘vanzelfsprekend verbinden’ niet. “In een multifunctioneel gebouw komen meerdere gebruikers bij elkaar omdat er iets is dat elkaar verbindt. Als je meer wilt zijn dan buren, moet je organisatiekracht toevoegen zodat de gewenste verbinding ontstaat.”

EEN CAMPUS VERBINDT

Met de vele onderwijscampussen die momenteel gerealiseerd worden, is deze zoektocht naar verbinding aan de orde van de dag. Nieuwe onderwijsvormen, samenwerking met het bedrijfsleven, een multifunctionele omgeving en een levendig gebied waar mensen graag zijn en blijven. De toename van het aantal campussen in Nederland is goed te verklaren. Onderwijscampussen worden vaak georganiseerd rondom universiteiten en hbo’s. Er wordt gewerkt aan verbinding tussen onderwijs, onderzoek en wonen. Maar campussen kunnen ook kleinschaliger zijn en alleen voortgezet onderwijs bevatten. Wat ze gemeen hebben, is dat de instellingen impact willen maken op hun omgeving en dat kan zowel lokaal als regionaal zijn. In essentie is de behoefte hetzelfde: instellingen met elkaar verbinden, zodat er een aangename, multifunctionele omgeving ontstaat die bijdraagt aan sociale lokale thema’s of aan grotere maatschappelijke thema’s.

ORGANISEREN EN SAMENWERKEN

Vanzelfsprekend verbinden bestaat niet. Partijen moeten dit echt samen organiseren, anders zijn ze niet meer dan buren. De Vitaliteitscampus in Groningen is hier een mooi voorbeeld van. Het gezamenlijke doel van alle betrokkenen daar is om impact te maken op vitaliteit in de omgeving. Om een plek te creëren waar reuring is, waar studenten en andere gebruikers graag komen. Hoewel de campus pas over een paar jaar klaar is, zoeken partijen nu al naar mogelijkheden om samen te werken. Er wordt gekeken naar gezamenlijke initiatieven ter versterking van de omgeving. Synergie ontstaat niet door samen te zitten, maar ontstaat door organisatiekracht. Dat kan ook bij een kleine campus.

TIJD VOOR VERKENNING EN INSPIRATIE

Om een campus te creëren, willen partijen zo snel mogelijk een helder plan definiëren om een Programma van Eisen te kunnen maken. Wat wij bij Draaijer willen: eerst breeduit inventariseren. Welke ambities zijn er? Wat zijn de mogelijkheden? Wij willen inspireren als het gaat om het combineren van meerdere functies en voorzieningen. We gaan op zoek naar raakvlakken.

De grootste valkuil in een dergelijk traject is dat de vraag te snel wordt afgebakend; dat er te snel een project van gemaakt wordt. Wij vinden die eerste fase de belangrijkste fase en proberen opdrachtgevers en andere bouwpartijen hier meer bewust van te maken. Dit wordt wat ons betreft onderschat. We moeten echt de tijd nemen voor inspiratie en ambitievorming; doorleven wat de beoogde wens is en onszelf hierin uitdagen. Niemand wil tijdens de realisatie vastlopen op dingen die in de beginfase niet goed doordacht zijn. We zien regelmatig dat opdrachtgevers te snel kaders stellen en zekerheden willen inbouwen. Begrijpelijk, maar het is onze rol als adviseur om

Tekst: Linda Steehouwer, Draaijer, Beelden: Draaijer
mei 2023 SCHOOLDOMEIN 34
VO Campus Eemsdelta (Bron: De Unie Architecten)

opdrachtgevers te verrassen en te verwonderen. En om aanvullende mogelijkheden te verkennen. Door anders te denken, kun je de lat ook hoger leggen.

EEN LEVENDIGE CAMPUS

Hoe groot of klein een campus ook is, het heeft een betekenis in de omgeving. De verbinding van instanties heeft impact op de mensen die er verblijven, leren en zich ontwikkelen. Het is een verblijfsgebied. Niet een plek waar je even komt en gaat, zoals bij een tandarts. Je wilt er blijven en naar terugkomen. Beleving van de gestelde ambities is hierbij essentieel. Dit willen we structureel in het concept inbouwen. Het is van belang dat er een organisatie is die in

staat is om evenementen en acties te initiëren die de aantrekkingskracht van de omgeving vergroten. Hiermee wordt een plek gecreëerd die een positieve invloed heeft op de omgeving.

We kunnen met z’n allen pas echt trots zijn op het resultaat als de ambitie niet eindigt bij de ingebruikname van de campus, maar blijvend terug te vinden is in de gehele bedrijfsvoering. Een ambitieuze omgeving beleef je sterker als het al je zintuigen prikkelt. Dit willen we ook voor campussen creëren: een levendige en aangename omgeving.

EFFICIËNTE BEDRIJFSVOERING

Als de ambities geformuleerd zijn, hoeven organisaties niet te wachten tot het gebouw er staat. Ze kunnen dan al nadenken over de werking van het gebouw en hoe ze daar organisatiekracht bij kunnen zetten om de ambities te versterken. Vanuit Draaijer stimuleren we dit proces. We denken al vroeg mee over een goede beheersorganisatie. Hiermee voorkomen we dat instanties te laat ontdekken dat er in het begin keuzes zijn gemaakt die achteraf niet handig blijken te zijn. Ook in de exploitatiefase is de verbinding tussen de gezamenlijke gebruikers essentieel. Dit zorgt uiteindelijk voor een efficiënte bedrijfsvoering en lagere beheerskosten.

Kijk voor meer informatie op www.draaijerpartners.nl.

“Het is onze rol om opdrachtgevers te inspireren en aanvullende mogelijkheden te verkennen.
Door anders te denken, kun je de lat hoger leggen.”
VISIE EN ONTWERP SCHOOLDOMEIN 35 mei 2023
Jan Joost Flim, Directeur bij Draaijer
Op een campus vinden meerdere gebruikers elkaar voor onderwijs, onderzoek en gezamenlijke initiatieven die de fysieke en mentale gezondheid van de omgeving versterken. Jan Joost Flim, Directeur bij Draaijer

Voorwaarde voor toekomstbestendige onderwijshuisvesting

“Ons uitgangspunt is dat we bouwen voor de toekomst en voor toekomstige generaties. En dat geldt zéker ook voor onderwijsgebouwen. Om dat te doen zoeken wij continu de verbinding met de eindgebruikers en met de omgeving.” Dat zegt Esther Akkerman-Dwars, Sector Leader bij Drees & Sommer Netherlands.

“Een project moet daadwerkelijk landen en zijn afgestemd op degenen die er wonen en werken, nu en in de toekomst. Dat we daarbij rekening houden met het kostenaspect, materiaalgebruik en de inpassing van slimme technologie spreekt voor ons voor zich.” In zijn traditionele rol van projectmanager en construction manager is projectmanagement- en vastgoedadviesbureau Drees & Sommer veelal de verbinder.

“Opdrachtgevers zien ons veelal als linking pin tussen de stakeholders, omwonenden en de betrokken ontwerp- en bouwpartijen. En als schakel om draagvlak te creëren”, ziet projectmanager Kübra Öztürk. Zij werkt momenteel in opdracht van de Rotterdamse Stichting BOOR aan de nieuwbouw van OLS de Recon VSO, de school voor voortgezet onderwijs die specialistische zorg en ondersteuning biedt aan studenten die regulier onderwijs niet kan bieden. “De Recon werkt heel erg vanuit het proces. Ik merk hoe belangrijk het dan is snel

te schakelen; hoe waardevol het is je in te leven in een schooldirectie. Flexibiliteit en empathie maken de verbinding gemakkelijker en beter.”

STERKE REGIE, STERKE KOSTENEFFICIËNTIE

Hoe vroeger we in het proces worden betrokken, hoe meer we kunnen coördineren, aldus senior projectmanager Marcel van Erven. “Dat hoeft niet per definitie meer te kosten. Sterker nog: wanneer de regie bij één partij ligt, is er meer flexibiliteit om in te spelen op nieuwe ontwikkelingen en verbetervoorstellen te doen waar mogelijk.” Van Erven werkt onder meer aan het deze zomer op te leveren Academie Tien, een school voor MAVOHAVO-VWO in Utrecht. Drees & Sommer is pas sinds de aanbesteding bij dit project betrokken. “Het ontwerp is vijf jaar geleden gemaakt en is altijd zo gebleven. De school heeft vanwege nieuwe onderwijsinzichten wijzigingen nodig in het ontwerp. Deze moeten wij nu in de uitvoering proberen te implementeren. Waren wij eerder in het traject aan tafel gekomen, dan hadden we de vinger aan de pols

mei 2023 SCHOOLDOMEIN 36 © De Architekten Cie
SCHAKELEN TUSSEN STAKEHOLDERS EN PROCESSEN

kunnen houden, ‘on the job’ kunnen adviseren en veel natuurlijker kunnen meebewegen.”

ACTUELE DUURZAAMHEIDSKENNIS

Die flexibiliteit geldt ook voor duurzaamheid, een belangrijk onderwerp bij zowel nieuwbouw als bij renovatie. In het geval van Academie Tien heeft de architect nagedacht over de toepassing van Cradle to Cradle materialen in de nieuwbouw. Van Erven:

“De aanbesteding is ook van een paar jaar geleden. De kennis en beschikbaarheid van materialen was toen aanzienlijk beperkter, evenals de aandacht voor duurzaamheid. We werken nauw samen met onze zustermaatschappij EPEA, één van de grondleggers van de Cradle to Cradle ontwerpfilosofie. De collega’s van EPEA hebben de beste en meest actuele kennis in huis over bijvoorbeeld circulaire en gifvrije bouwmaterialen. We kunnen onze opdrachtgevers dus ook daarin heel goed adviseren over welke gezonde materialen we kunnen omschrijven in het bestek.”

NIEUWBOUW MET KLIMAATPOSITIEVE IMPACT

“Uit verscheidene wetenschappelijke onderzoeken blijkt dat de materiaalkeuze in scholen een directe invloed kan hebben op de leerprestaties van kinderen”, zegt Vince Limpens, Real Estate Consultant bij EPEA. “En daarnaast is het van een bijzonder maatschappelijk belang dat wij onze kinderen het goede voorbeeld geven. De Cradle to Cradle methodiek helpt om de risico’s en kansen in kaart te brengen en beter te sturen op wat er echt toe doet. “Er zijn al goede voorbeelden te vinden van onderwijsprojecten die, gestoeld op Cradle to Cradle, streven naar een positieve impact. Dit in tegenstelling tot het sec minimaliseren van de negatieve impact zoals het reduceren van schadelijke emissies en andere afvalstromen. Je hoeft als schoolbestuur echt niet meer het wiel uit te vinden.”

GEBRUIKERSGERICHTE WERKMETHODE

Toekomstbestendig ontwikkelen en bouwen is méér dan uitsluitend letten op duurzaamheid in milieutechnische zin. Akkerman: “We zien meer en meer dat er bij nieuwe opdrachten voor wordt gekozen om écht te verbinden met de gebruikers: wie zijn de gebruikers en hoe gebruiken zij de locatie, nu en in de toekomst? Vanuit onze UX (User Experience) werkmethode halen we bovendien strategische, tactische en operationele informatie op bij de verschillende lagen in een organisatie.”

TECHNOLOGISCHE ONTWIKKELING

De verwachting is dat technologie de komende decennia een vlucht zal nemen. Drees & Sommer onderzoekt op internationaal niveau welke pijnpunten er zijn en hoe digitalisering daarop kan

inspelen. Slimme technologie kan daarnaast ook gebouwbeheer intelligenter maken en daarmee duurzamer. “Een duurzaam gebouw met complexe installaties wil je goed kunnen besturen en beheren”, vertelt projectmanager Michel van Gageldonk. Hij deed een mooie smart ervaring op bij de realisatie van faculteitsgebouw LAB42 van de Universiteit van Amsterdam. “Van tevoren moet je eigenlijk al weten hoe je het gebouw wilt inregelen en wilt gaan gebruiken. In de praktijk is het gedrag van de gebruikers lastig te voorspellen. Iedereen verlangt iets anders van een installatie en ruimte. Het slimme van dit gebouw zit in de data die het gebouw genereert. Het gebouw levert een immense hoeveelheid data waarmee je het gebouw beter kunt beheren én die bovendien veel wetenschappelijke informatie geeft.“

“Alleen wanneer je zowel de user journeys als de organisatievisie goed in beeld hebt, kun je onderwijshuisvesting ontwikkelen die perfect past bij het gebruik en de gebruikers”, zo concludeert Akkerman. “De optimale bruikbaarheid van een gebouw maakt een plan al future-proof. Passen we dan ook nog duurzame, gezonde materialen en slimme technologie toe, dan maken we vastgoed toekomstbestendig.”

Kijk voor meer informatie op www.dreso.nl.

SCHOOLDOMEIN 37 mei 2023 VISIE EN ONTWERP
“Stem je de huisvesting af op de gebruikers, dan is dat een eerste stap naar toekomstbestendigheid”
© RoosRos Architecten © Beeam

IEDEREEN IS ZICHTBAAR

Nieuwbouw Kindcentrum Workum stimuleert delen

Het nieuwe Kindcentrum Workum is op allerlei manieren inclusief; de beide scholen ontmoeten elkaar in het middengebied, het groene plein wordt gezamenlijk gebruikt en de kinderen sporten samen op het multifunctionele sportveld.

Het nieuwe Kindcentrum Workum is een mooi initiatief van de besturen van stichting Kyk, stichting Nijegaast, Kinderopvang Kidsfirst en de gemeente Súdwest Fryslân. Daan Josee van architectenbureau Maas Kristinsson begreep het beste wat de visie was van beide scholen, met als resultaat een transparant en vooral verbindend gebouw. Schooldomein sprak met adviseur huisvesting van de stichting samenwerkingsbestuur Kyk Rein Brandsma, directeur Fimke Wind van CBS It Finster, directeur Jella van Seters van OBS De Pipegaal en architect Daan Josee. Jella: “De aanleiding was dat It Finster toe was aan nieuwbouw. De gemeente wilde dat de twee basisscholen samen gehuisvest zouden worden in de nabijheid van de katholieke basisschool en de gemeentelijke sportaccommodatie (sporthal, zwembad en sportvelden) aan de Weverswei en op basis daarvan heeft Daan het eerste ontwerp gemaakt. Later kwam het idee om ook de kinderopvang in het nieuwe gebouw te huisvesten, zodat we een echt kindcentrum voor 0-12 jaar zouden worden. Onze

Tekst Sibo Arbeek
Fotografie Daan Josee | Maas Kristinsson Architecten
mei 2023 SCHOOLDOMEIN 38
“Het gebouw leent zich ervoor om twee verschillende visies te accommoderen, zonder dat de samenhang onderbroken wordt”
vlnr Fimke Wind, Rein Brandsma, Jella van Seters en Daan Josee

PROJECTINFORMATIE

Project

Nieuwbouw Kindcentrum Workum

Opdrachtgevers

Gemeente Súdwest Fryslan i.s.m. Stichting Kyk en Stichting Nijegaast

Architect

Maas Kristinsson Architecten

Pleinontwerp

Donker Groep Sneek

Adviseur

LindHorst huisvestingsadviseurs i.s.m.

De Mevrouwen

Aannemer

Bouwcollectief Sneek

Installaties

Pranger-Rosier Installaties

Adviseur Installaties

INNAX

Constructeur

Ingenieursburo Meijer en Joustra

Bouwkosten

€ 4,8 mio incl. btw

BVO

1.940 m²

Ingebruikname

1 november 2022

gedachte was dat er niet alleen maar afgescheiden ruimtes zouden komen, maar dat het een beetje in elkaar zou overlopen. Geen dikke muren tussen de scholen, maar een centraal gebied in het midden waar de ontmoeting plaatsvindt, iedereen zichtbaar is en elkaar kan zien. Daar staat nu ook de gezamenlijke koffietafel, waar ouders koffie drinken, mensen even met hun laptop kunnen werken en collega’s even wat met elkaar doorspreken.”

GROEN SPEELPLEIN

Het nieuwe kindcentrum heeft een prachtig groen speelplein. Jella: “In de pauze gaan de kinderen naar buiten; het plein delen we en wordt op leeftijd gebruikt. Naast ons ligt een multifunctioneel sportveld, waar kinderen van de drie basisscholen samen met elkaar kunnen sporten. We wilden dat de kinderen elkaar in de pauzes op de tribunetrap en op het schoolplein zouden kunnen ontmoeten. Ze spelen en sporten immers ook samen na schooltijd.”

COMPACT GEBOUW

Daan: “Het is een compact en rechthoekig gebouw in twee lagen, waarbij de beide scholen aan de zijkant zijn geplaatst en de kinderopvang centraal in het midden ligt. Links en rechts liggen de twee domeinen met de onderbouw beneden en de bovenbouw boven. Constructief gezien is de opbouw van het casco links en rechts precies hetzelfde, maar de scholen hebben het elk anders ingevuld. Het gebouw leent zich ervoor om twee verschillende visies te accommoderen, zonder dat de samenhang onderbroken wordt. Als je uitzoomt zie je één leeromgeving en kom je dichterbij dan onderscheid je de kleuren en de verschillende inrichtingen. De ontsluiting binnen vindt plaats langs twee garderobelijnen, zodat kinderen altijd de lokalen kunt bereiken zonder dat ze door een leerplein hoeven te lopen. Rein vult aan: “Omdat de beide scholen afzonderlijk groeien en krimpen ligt er al wel weer een capaciteitsvraag. Dan is het jammer dat je precies op de norm hebt gebouwd.” Daan knikt: “Eigenlijk moet je net als bij een puzzelspel een wit vlakje overhouden, zodat je altijd naar een ideale positie kunt schuiven.”

VARIËTEIT AAN WERKPLEKKEN

Fimke: “Wij hebben voor makkelijk wisselbare werkplekken gekozen, zonder vaste tafels en

werkplekken. De kinderen beginnen in hun thuisbasis, maar waaieren dan uit over de leerpleinen, om individueel of in groepjes aan de slag te gaan. We hebben mooie schuifdeuren tussen de ruimten, zodat we kunnen variëren in grootte en werkvormen.” Jella vult aan: “Bij ons vind je ook geen lokalen en gangen, maar wij gebruiken de instructieruimte als een stamgroep, waarna de kinderen op de leerpleinen aan de slag gaan. Wij werken met Jeelo, waarbij onze leerlingen schoolbreed van groep 1 t/m 8 aan maatschappelijk relevante projecten werken. De projecten vormen de kapstok voor al het leren. Je kunt er wereldoriëntatie, kunstzinnige oriëntatie, burgerschap, verkeer en EHBO, techniek en digitale geletterdheid geïntegreerd mee aanbieden.”

VERANDA VAN PV-PANELEN

Het bouwvlak in Workum lag met de korte zijde naar de openbare straat. Daan: “Dat was niet logisch, want je wilt in het midden van de lange zijde binnenkomen, aan de straatkant. Ik bedacht toen een veranda die als een arcade de straatkant met de ingangszijde verbindt. De veranda is van PV-panelen gemaakt, waardoor je duurzaamheid aansprekend maakt voor kinderen. Verder liggen er 212 panelen op het dak en werkt het plafond als een koelelement. Overdag is het element koud en neemt warmte op. Als het ’s avonds kouder wordt in het gebouw, straalt het plafond de warmte terug. Het is een innovatie die geen geld kost in exploitatie, maar die wel degelijk wat doet. Het is duurzaamheid waarvoor je geen stekker in het stopcontact hoeft te steken. Om het kindcentrum energieneutraal op te leveren, was ook luchtdicht bouwen een hot item. Alle kieren en naden moeten dicht om een positieve score te krijgen op de luchtdichtheidstest.”

Rein vult aan: “Het ontwerpteam en de uitvoering waren hier goed op elkaar afgestemd, dat merkte je. De samenwerkende aannemers maakten gebruik van vaste onderaannemers en leveranciers, veelal uit de regio. Iedereen wilde echt bouwen aan een mooi gebouw. Die kwaliteit zie je terug.” Daan

tenslotte: “Het is ook een adaptief gebouw met een kolommenstructuur, zodat het makkelijk aanpasbaar is voor toekomstige ontwikkelingen. Dat maakt het helemaal duurzaam.”

Kijk voor meer informatie op www.ma-kr.nl.

VISIE EN ONTWERP SCHOOLDOMEIN 39 mei 2023

ZICHTBAAR

ONDERWIJS OP EEN BIJZONDERE PLEK

Beste verhoudingen in geslaagd ontwerp

Gilde Opleidingen realiseert op de Marathonlaan in Roermond een nieuw onderwijsgebouw. Op deze locatie komen praktijk- en sportlokalen en ruimtes voor ICT- en theorieonderwijs. Bijzonder is dat het gebouw met algoritmes wordt ontworpen.

Gilde Opleidingen heeft opleidingslocaties in Horst, Nuth, Weert, Roermond, Venlo, Venray en Sittard-Geleen en kent daardoor een grote regionale spreiding. Voor de locatie Marathonlaan was vervangende nieuwbouw noodzakelijk en dat wordt de unilocatie van Gilde in Roermond. Dit betekent dat de huidige overige locaties in Roermond samengevoegd worden naar één nieuw bouwlocatie. Het nieuwe ROC Gilde College Roermond ligt in een groene omgeving op de campus van Roermond. Martijn van Leeuwen van RoosRos Architecten en Lennaert van Capelleveen

van The ArchiTech Company ontwierpen in cocreatie de nieuwbouw van ROC Gilde in Roermond in drie lagen. Martijn: “Het schetsontwerp voor de gewonnen architectenselectie was een passend antwoord op de vraag naar een flexibel, gezond en kleinschalig gebouw. Een gebouw dat ruimte biedt voor eigen identiteit van de opleidingen, maar ook multifunctionaliteit en uitwisselbaarheid faciliteert. Zichtbaar onderwijs en een uitdagend buitengebied.”

DATA GESTUURD ONTWERP

Lennaert knikt: “We zijn een jong ontwerpbureau en delen met RoosRos de fascinatie voor licht en welzijn. De opdrachtgever koos dan ook voor ons, omdat we de gezondheid en het welzijn van leerlingen en docenten centraal stelden. We hebben dat in een duurzaam en gezond gebouw vertaald dat optimaal presteert. Om dat te kunnen realiseren is al in de eerste schetsen gebruik gemaakt van parametrisch of geïnformeerd ontwerpen. Parametrisch ontwerp is gebaseerd op data, creativiteit en nieuwe technologie. De voordelen zijn de meetbare ontwerpvoordelen, de mogelijkheid om de keuzen in elke fase van het proces te meten en te checken. Dat levert een vormentaal op waarbij we objectieve en subjectieve waarden combineren. Bij dit gebouw sluit het exterieur naadloos aan bij de natuurlijke en groene leeromgeving. We hebben de gevel als een meanderende luifel vormgegeven die oriëntatieafhankelijk de beste verhouding levert tussen daglichttoetreding en warmtewering. Het is eigenlijk een driedimensionale kromming en de vorm van de luifel komt voort uit het geïnformeerd model, waarbij je zoveel mogelijk daglicht binnen krijgt met zo weinig mogelijk zonwarmte. Elk seizoen berekent het gebouw wat de beste verhouding is ten opzichte van het zonlicht buiten. De luifel gaat in de noordkant op in het gebouw, omdat de gevel daar alleen de open dicht verhouding nodig heeft. Naar de zuidkant toe

Tekst Sibo Arbeek
mei 2023 SCHOOLDOMEIN 40

PROJECTINFORMATIE

Project

Nieuwbouw Gilde College

Opdrachtgever

Gilde Opleidingen Roermond

Architect

RoosRos Architecten & ArchiTech Company

Aannemer

BINX Smartility

Adviseur

bbn

Landschapsarchitect

BoschSlabbers Landschapsarchitecten

Omvang

circa 12.000 m2 bvo

Ingebruikname

2024

krijgt de zon meer invloed en daar zie je dan ook de luifelvorm verbuigen. Het algoritme sluit aan op hoe de natuur werkt en adviseert zelf hoe de gevel het beste de natuur kan volgen. Het begint bij de plek en het serieus nemen van de bouwfysische aspecten. Je werkt naar een optimum toe, dat leidt in samenhang tot meer natuurlijk daglicht en comfort.”

FLEXIBEL GEBOUW

Het gebouw bestaat uit drie bouwlagen in een lang gerekt noord-zuid georiënteerd volume langs de Oranjelaan. Martijn: “Binnen vind je drie centrale ruimtes met een centraal atrium en een routing die past bij de omgeving. Het heeft een centraal hart dat in verschillende niveaus de verticale verbinding tussen de verdiepingen maakt. In het trappenhuis hebben we hoge lichtkappen aangebracht met daglicht van boven in de lokalen. Op die manier komt het daglicht vanuit twee kanten binnen. We hebben de kostbare gevel zoveel mogelijk voor het programma uitgenut en de tappenhuizen intern opgelost. Het gebouw heeft een duidelijke opbouw vertaald in een levendige, contextrijke omgeving van beroepsonderwijs op de begane grond en een generieke structuur van lokalen en kantoren op de eerste en tweede verdieping, die uitbreidbaar en aanpasbaar zijn. Er zijn geen opleiding gebonden lokalen, maar het onderwijs deelt samen de flexibel te gebruiken ruimtes om zo tot een ruimte reductie te komen. De begane grond is licht en flexibel van vorm en de constructie leent zich uitstekend voor de wisselende ruimtevraag van de praktijkvoorzieningen van de verschillende opleidingen. De efficiënt ontworpen lagen kunnen

ingedeeld worden als theorielokalen en als kantoren. Het is in functionele opzet bijna een prototype voor beroepsonderwijs.”

CONTEXTRIJKE OMGEVING

Martijn: “Het landschapsplan rondom het gebouw krijgt een groene campusuitstraling en wordt ontworpen door BoschSlabbers

Landschapsarchitecten. Het project is inmiddels aanbesteed en als een engineer-build-maintain constructie op de markt gezet op basis van de Best Value Methodiek. BINX Smartility heeft een integrale kijk op het bouwproces en het is leuk om te zien dat ze het integraal oppakken.”

Lennaert tenslotte: “Het is een volledig houten gevelopbouw met een houtskelet. De luifels zijn ook in hout uitgevoerd. We hebben gekozen voor circulaire aluminium kozijnen en hebben verder keramische tegels toegepast. Alle materialen hebben een lage footprint en zijn herbruikbaar. In het parametrisch model kun je precies aan de aannemer doorgeven hoe het gebouw gemaakt moet worden. Ik vind het inspirerend en verrijkend om in elkaars keuken te kijken. Als je gezamenlijk een open ontwerphouding hebt kom je tot mooie resultaten. Ik sprak laatst op een symposium van Architectenweb rond digitalisering in de architectuur. Dat thema staat echt op de agenda en verandert het werkveld in hoge mate. Het vraagt een nieuwe ontwerp souplesse om data gestuurd met elkaar samen te werken.”

Kijk voor meer informatie op www.roosros.nl of www.architechcompany.com.

VISIE EN ONTWERP SCHOOLDOMEIN 41 mei 2023
“De vorm van de luifel komt voort uit het ontwerpmodel, waarbij je zoveel mogelijk daglicht binnen krijgt met zo weinig mogelijk zonwarmte”

VOOR DE WETENSCHAP KOMT WILLENSCHAP

De ambities van duurzaamheidsadviseur Wim Verheul

bbn was verantwoordelijk voor een bijzonder installatieconcept in de nieuwbouw aan de Marathonlaan van Gilde Opleidingen in Roermond. Wim Verheul: “Ik ben altijd op zoek naar oplossingen om de doelstelling van opdrachtgevers of gebouwgebruikers te realiseren, waarbij de gebruiker altijd centraal staat.”

Wim: “Waar anderen eerder naar gebouwen kijken, kijk ik eerst naar de gebruikers. Het leven en de leef- en werkomgeving van de gebruiker staat immers centraal. Mijn ambitie is dan ook om wensen van gebouweigenaren en gebouwgebruikers in een integraal gebouwontwerp te vertalen met optimale aandacht voor een optimaal binnenklimaat met toekomstwaarde. Ik heb vaker met Gilde Opleidingen projecten mogen doen en we werken altijd goed samen. Gilde Opleidingen hanteert een zeer hoge standaard met betrekking tot het binnenklimaat in de verschillende ruimten. Voor de nieuwbouw Marathonlaan heb ik in concurrentie de vraag gekregen, waarbij bbn adviseurs mede op het aspect samenwerking is geselecteerd. De voor de nieuwbouw gehanteerde aanbestedingsmethode was een design, build en maintain uitvraag en dat is in de scholenbouw bijzonder. Meestal maken de ontwerpende partijen ook het bestek en wordt het aanbestedingsgereed

in de markt gezet. Traditioneel voeren uitvoerende partijen het werk uit zoals in het bestek en tekeningen is voorgeschreven. Je maakt dan mee dat er een discussie komt over de interpretatie van welke kwaliteit uitgevoerd moet worden, met als gevolg een meerwerk discussie die je eigenlijk niet wilt. Gilde Opleidingen wilde dat de ontwerpende en uitvoerende partijen samen zouden meedenken in de uitvoering van het ontwerp. Het voordeel is dat aspecten als scope, kwaliteit en toekomstbestendigheid in de ontwerpfase integraal, worden vormgegeven binnen de eisen en wensen van de werkomschrijving. In de uitvoeringsfase is dan een gecoördineerd model beschikbaar waardoor problemen naar aanleiding van voortschrijdend inzicht en nadere detaillering tot een minimum beperkt worden.”

MOGELIJKE UITWERKINGEN

“Ik heb de werkomschrijving van het installatieconcept voorzien van een aantal mogelijke uit-

Tekst Sibo Arbeek Beelden RoosRos Architecten
mei 2023 SCHOOLDOMEIN 42

werkingen. In de fase van concretisering ga ik al met de geselecteerde ontwerpende en uitvoerende partijen in overleg. Je kunt theoretisch aangeven welke kwaliteit je wilt hebben, maar dat moet je vervolgens in de praktijk wel waarmaken. Het mooie is dat in het contract voor de nieuwbouw Marathonlaan ook 15 jaar onderhoud is opgenomen. Dat betekent dat je een partij selecteert die zowel goed is in ontwerpen, realiseren en beheren als het onderhouden van het gebouw. BINX installaties is als contractpartner geselecteerd voor de technische installaties en heeft betreffende het toekomstig onderhoud van de installaties in het ontwerp hele slimme dingen kunnen aangeven. Onderhoud kan daardoor makkelijker plaatsvinden, zonder dat het onderwijsproces verstoord wordt. Dat is ook het unieke in deze uitvraag; de nauwe integrale samenwerking in de ontwerpfase en daarmee een integrale verantwoordelijkheid in de uitvoeringsfase.”

Ik voorspel dat deze werkwijze in de toekomst veelvuldiger gebruikt zal worden.”

GEBRUIKER CENTRAAL

“Voor Gilde Opleidingen staat de gebruiker centraal en daar is onder meer ook de architect op geselecteerd. Een gezond binnenklimaat was een absolute voorwaarde; Gilde Opleidingen eist een kwaliteit conform Klasse A Frisse Scholen en dat betekent bijvoorbeeld voor de ventilatiekwaliteit in het gebouw dat de hoogste normen qua reinheid en luchthoeveelheid gelden. Om die kwaliteit voor een energieneutraal gebouw te halen, heb je een duurzame luchtbehandelingsinstallatie nodig en dus een behoorlijk ruimtelijk volume qua kanalen en kasten. RoosRos heeft dat heel mooi verwerkt in het totale ontwerp. Dan zie je dat de gewenste kwaliteit in combinatie met verduurzaming en een mooi ontwerp al in het voortraject hand in hand gaan.”

VERFRISSENDE IDEEËN

PARAMETRISCHE GEVEL

“Een mooi onderdeel in dit ontwerp is natuurlijk de parametrische gevel, waardoor je een hoog duurzaamheidsniveau kunt bereiken. Gilde Opleidingen krijgt straks een gevel waar zo min mogelijk energie van buiten naar binnen instraalt. Alles wat aan energie binnenkomt kan namelijk het binnenklimaat verstoren. Dit gebouw kent grote overstekken, een mooi grasdak met daarnaast veel zonnepanelen en een hele hoge gebouwschil isolatiewaarde. Een ultiem begin naar een energieneutraal gebouw. Het mooie is dat het ontwerp is gebaseerd op bouwfysische berekeningen, ondersteund met installatietechnische berekeningen die tot een heel fijn binnenklimaat leiden. Ik kan me goed voorstellen dat het ook architectonisch voordelen heeft; je gaat iets ontwerpen dat tegelijk bouwfysisch onderbouwd is. Ik kom ook wel ontwerpen tegen die naar detaillering en uitvoering niet ideaal blijken en daardoor zeer moeilijk uitvoerbaar zijn. Met parametrisch modelleren haal je besluitvorming en inzicht naar voren.

“We zitten nu in de fase van het definitief ontwerp, zowel bouwkundig als installatietechnisch, waar alle lijntjes bij elkaar komen. In de bouw wordt veel opgehangen aan wetenschap, maar daarvoor ligt willenschap. Dat betekent dat je elkaar in de ontwerp- en uitvoeringsfase nodig hebt om de gewenste kwaliteit te halen. Van de visiefase naar ontwerpfase en daarop volgende uitvoeringsfase zie ik als een trein die vloeiend moet rijden. Door tijdens de visiefase, in de werkomschrijving, al denkrichtingen op te nemen en in de ontwerpfase inhoudelijk met elkaar te bespreken krijg je leuke en verfrissende ideeën waarbij iedereen een bepaalde verantwoordelijkheid voelt om die wensen te vertalen in de praktijk. Dan creëer je willenschap en dan komt de wetenschap er vanzelf achteraan. Voor de nieuwbouw Marathonlaan wenst Gilde Opleidingen een optimaal binnenklimaat voor zowel de collega’s als de leerlingen van het schoolgebouw. Iedereen moet vrij, blij , goed en gezond kunnen werken om de gewenste leer- en werkprestatie te kunnen leveren.”

Kijk voor meer informatie op www.bbn.nl.

VISIE EN ONTWERP SCHOOLDOMEIN 43 mei 2023
“Van de visiefase naar ontwerpfase en daarop volgende uitvoeringsfase zie ik als een trein die vloeiend moet rijden”
Wim Verheul

POSITIEVE GEZONDHEID STIMULEREN

De staatComponist voor verbinden en ontmoeten

Aan de Diepenbrocklaan in Nieuwegein opende in 2022 het nieuwe gezondheidshuis de Componist haar deuren. Iedere inwoner van Nieuwegein is er welkom voor ontspanning of juist om energie op te doen. De kernwoorden zijn verbinden en ontmoeten.

Begin 2022 werd het Gezondheidshuis

De Componist geopend. Huisarts en initiatiefnemer Erik Asbreuk vertelt hoe het allemaal begon: “Onze praktijk aan de Mondriaanlaan werd te klein en in 2012 besloten we op zoek te gaan naar een geschikte kavel voor nieuwbouw. Ik wilde graag welzijn en zorg combineren, want meer welzijn betekent minder medische zorg en juist meer ontmoeting. Na veel gesprekken met de gemeente en andere partijen zoals de fysiotherapeut, apotheek en welzijn kreeg het wijkgericht samenwerken vorm in het ontwerp. We wilden de schotten tussen zorg en welzijn weghalen. Daarom hebben we de bewoners en toekomstige gebruikers van het Gezondheidshuis vanaf het begin betrokken bij de ontwikkeling van het nieuwe gebouw en de invulling van de activiteiten in en rond het gebouw. In de Componist staat positieve gezondheid centraal en dat betekent dat het optimaal functioneren van individuen en relaties centraal staat in plaats van de focus op alleen maar een medische aanpak. Ook wonen, werk, inkomen, zingeving en verbinding

met anderen bepalen hoe gezond iemand zich voelt.” Partner Michiel Wijnen van Zenzo: “Wij waren verantwoordelijk voor de ontwikkeling en de bouw van het nieuwe Gezondheidshuis. Door zoveel mogelijk diensten onder één dak aan te bieden, kunnen inwoners beter ondersteund worden. Inmiddels staat er een prachtig pand met een vernieuwend concept voor zorg en welzijn. Erik over het gebouw: “De berk is het uitgangspunt van het gebouw en verwijzingen naar de natuur vind je overal in het gebouw terug, in de vloeren, wanden en visuals. Als de zon aan de parkzijde schijnt en de bomen werpen hun schaduwen dan valt het gebouw weg. Dat verbeeldt onze natuurlijke verbondenheid met de omgeving. Het terras zit aan de parkkant en daar word je op mooie dagen verleid om even in het park te lopen.”

VERBINDEN EN ONTMOETEN

Erik verder: “In de Componist werken in totaal 150 professionals. ZorgSpectrum verhuisde als eerste naar het nieuwe pand, waarna ook de apotheek en overige gebruikers volgden. Ons gezamenlijke doel is dat

Tekst Sibo Arbeek
mei 2023 SCHOOLDOMEIN 44
“We hebben één koffiepunt, waar iedereen koffie moet halen. Dat betekent soms even wachten en dat biedt de mogelijkheid om met elkaar in gesprek te komen”

PROJECTINFORMATIE

Project

Nieuwbouw De Componist Nieuwegein

Opdrachtgever

De coöperatie Zorggroep Gezondheidshuis de Componist

Projectmanagement

Zenzo Maatschappelijk Vastgoed

Architect

SW architecten

Adviseur

BbDW

Ingebruikname

Januari 2022

inwoners zo lang mogelijk zelfstandig kunnen wonen en leven. Uit onderzoek in Nieuwegein blijkt dat 43% van de inwoners tussen 23 tot 65 jaar aangeeft wel eens eenzaam te zijn. Dan is zo’n buurtplein waar je elkaar ongedwongen kunt ontmoeten heel belangrijk. Komen de medische zorgverleners er in het gesprek achter dat er mogelijk iets anders nodig is, dan lopen ze samen naar beneden en stellen die persoon voor aan de zogenaamde Buurtverbinder of een andere hulpverlener. Verbinden en ontmoeten vormen het centrale thema van het centrum en daarom is het koffiepunt zo belangrijk. Op een centrale plek beneden moet iedereen koffie halen. Dat betekent soms even wachten en dat biedt de mogelijkheid om met elkaar in gesprek te komen. Collega’s en bezoekers lopen door elkaar, waardoor mensen als vanzelfsprekend met elkaar contact hebben. De mensen die hier werken vinden het leuk om over het buurtplein te lopen en gasten kunnen je

dan aanschieten; het gaat bijna nooit over medische zaken. Mensen die hier op het buurtplein hun plek vinden, komen minder bij de huisarts. Als mensen zelf de regie over hun leven hebben, vergroot dat hun eigenwaarde en zelfredzaamheid. Sociale contacten zijn daarvoor heel belangrijk.”

LAAGDREMPELIG CONTACT

Erik: “Als je in hetzelfde gebouw werkt is het een stuk makkelijker om contact te leggen. De lijnen tussen wijkverpleging en casemanagers zijn in De Componist veel korter geworden. Door het laagdrempelige contact tussen alle professionals op deze locatie kunnen ze steeds beter integraal werken. Voor inwoners betekent dit betere hulpverlening; het is nogal een verschil of je belt met een huisarts of persoonlijk met elkaar kunt afstemmen.” Het buurtplein in de Componist valt onder welzijnsorganisatie Movactor uit Nieuwegein. Bewoners hebben in een meedenkgroep het hele proces naar de bouw toe input mogen geven.

Uit die groep bewoners zijn er een aantal ook een inwonersinitiatief gestart en hieruit is ook een Gastenteam ontstaan.

Femke van Vliet is buurtverbinder van Buurtplein

De Componist: “Ik zorg dat zowel de initiatieven, het Gastenteam, de bezoekers en organisaties het naar hun zin hebben, elkaar (leren) kennen en elkaar versterken waar nodig. Want samen staan we sterker! Verbinden is dan ook het hoofddoel en daarnaast dat het buurtplein daaromheen ook reilt en zeilt.”

Michiel vult aan: “In de algemene ruimte, vind je flexruimtes om bijvoorbeeld een overleg te houden, een grote keuken, een bibliotheekfunctie en een koffiecorner. Dat is het sociale hart van De Componist. En wie kan de activiteiten daarin beter organiseren dan de eigen bewoners: de mensen die hier daadwerkelijk voor hun ontspanning, ontmoeting, gezondheid en hulp zullen komen. Deze groep gaat zelf plannen maken en als ze ondersteuning nodig hebben of even willen sparren, kunnen ze een beroep doen op de eigen Buurtverbinder. Die zorgt samen met de bewoners dat het buurtplein een echte ontmoetingsplek wordt.” Erik tenslotte: “Heel veel groepen ontmoeten elkaar hier al, maar ik mis alleen nog de relatie met scholen. Die weten als eerste wanneer er problemen in de thuissituatie zijn. Door goed samen te werken kunnen we veel preventiever het welzijn van mensen bevorderen, waardoor er uiteindelijk minder zorg nodig is.”

In De Componist zijn naast de bekende zorgverleners zoals huisartsen, fysiotherapeuten, diëtisten, apotheek of psychologen, AMW, psychologie, verslavingszorg, chronische psychiatrie en ergotherapie ook de diensten van de gemeente op het terrein van WMO en welzijn te vinden. Kijk voor meer informatie op www.zenzo-mv.nl.

VISIE EN ONTWERP SCHOOLDOMEIN 45 mei 2023

UNIEKE SPORTBELEVING IN STEDELIJK COLLEGE EINDHOVEN

Met plezier de eigen grenzen ontdekken

Het traditionele programma van eisen voor de nieuwe sporthal werd opzij gelegd. De sectie sport vertaalde de ambitie in een eigen binnen- en buitensportomgeving, waarbij plezier centraal staat en iedereen de eigen grenzen mag opzoeken. Daarbij gaat het om uitdagen, uitdagen en nog eens uitdagen.

Schooldomein sprak met manager beheer en services voor het bestuur Stichting Internationaal en Lokaal Funderend

kom je door schuifdeuren binnen. Links loop je de school binnen en rechts vervolg je je weg naar het sportdomein.”

PROJECTINFORMATIE

Project

Nieuwbouw Stedelijk College Eindhoven

Opdrachtgever

SILFO i.s.m. de gemeente Eindhoven

Vloeren

Sika Nederland B.V. - Pulastic sportvloeren

Architect

DP6

Aannemer

BINX Smartility

Ingebruikname

Laatste fase gereed in 2023

Onderwijs (SILFO) Ruud Jansen en Account Manager Sport Milan Hoekman van Sika. Ruud: “We zijn erg blij met ons moderne schoolgebouw voor Stedelijk College Eindhoven aan de Henegouwenlaan, dat inmiddels ruim 1.500 leerlingen huisvest. Het gebouw is in verschillende fasen gerealiseerd, waarbij de laatste fase in de zomer van 2023 wordt afgerond. Belangrijk uitgangspunt is dat het nieuwe gebouw minder op een school, maar meer op het ‘echte leven’ moet lijken. Het oude schoolgebouw sloot aan bij traditioneel onderwijs, waardoor het niet meer paste bij het huidige onderwijs waarbij de leerling centraal staat. Het nieuwe gebouw heeft een zeer flexibele indeling, zodat het aansluit bij het eigentijds onderwijs. Er zijn veel werkplekken in het hele gebouw, waar je kunt werken en leren. De mediatheek staat centraal op de 1e verdieping. Het is een bijzondere ruimte waar alle leerlingen zelfstandig kunnen leren, of met een groep kunnen samenwerken. Leerlingen en docenten geven aan dat onderwijs volgen zeer prettig is in een licht, open en ruim gebouw. In de centrale hal van Stedelijk College Eindhoven

GEEN CIJFERS

Ruud: “Op Stedelijk College Eindhoven is sport een examenvak. Bewegen staat centraal en vormt de kern van alles wat hier gebeurt. Toen we deze sporthal mochten bouwen begonnen we met een standaard programma van eisen gebaseerd op NOC*NSF en de KVLO. Onze sportsectie heeft die snel weggelegd en de eigen ambitie vervolgens vertaald in een document van dertig pagina’s waarbij natuurlijk

Tekst Sibo Arbeek
mei 2023 SCHOOLDOMEIN 46
Ruud Jansen (l) en Milan Hoekman

bewegen centraal staat en niet meer de normen van de standaard verenigingssporten. De achterliggende gedachte is dat in veel binnensportomgevingen enorm veel lijnen liggen waarbij het bewegen altijd sport- en competitiegericht is. Met dertig leerlingen over een kast springen en daar dan een cijfer voor krijgen. Hier is het plezier uitgangspunt en leren leerlingen hun grenzen te verleggen binnen de eigen mogelijkheden. We doen dus niet aan cijfers.”

TOEKOMSTGERICHT BEWEGEN

Ruud: “Onze docenten hebben toekomstgericht nagedacht over het bewegen binnen het onderwijs. Het probleem van veel georganiseerde sportverenigingen is dat de leden gemiddeld steeds ouder worden en de jeugd afhaakt. Daarom hebben ze goed rond gekeken wat er in Eindhoven en landelijk speelt, dus je vindt hier urban sports, free running of fitness, maar ook inspelen op gezondheidsproblemen en obesitas. We willen ook leerlingen die wat gevoelig zijn aan het bewegen krijgen. We bieden een grote variëteit aan beweegmogelijkheden, waarbij docenten met groepen leerlingen gebruik kunnen maken van de hele zaal of juist met gemengde groepen in een deel ervan bewegen of spelen. Elke leerling is bezig met iets anders, hoepelen, turnen, de klimwand of de wandtrampoline. We zien een enorme spin off; mensen willen hier allemaal sporten. We zijn nu met de buurt bezig om het gebruik nog verder te optimaliseren, want iedereen is welkom.”

VIER THEMAZALEN

Ruud: “Er zijn vier themazalen met elk een omvang van 13 bij 26 meter. Door de flexibiliteit kunnen er ook grotere sportruimten gemaakt worden. De eerste themazaal is gericht op calisthenics en ninjatechnieken, de tweede op sport en spel met een high rope parcours, de derde is meer gericht op turnen en buitelen en de vierde op klimmen en klauteren. We vinden de combinatie binnen en buiten erg belangrijk en om die reden kan de transparante gevel ook geopend worden. We willen ongeacht het

weer het hele jaar door ook buiten kunnen bewegen. De omgeving van de school is dan ook ingericht als een natuurlijke beweegomgeving. Er liggen twee bergen met zand die worden aangekleed met een brug waar je overheen kunt klauteren. Tussen de bomen komt ook weer een high rope.”

VOORBEELDPROJECT

Milan is enthousiast over de visie en natuurlijk de vloeren: “Dit is voor ons een prachtig voorbeeldproject en het grootste LedCourt project tot nog toe. We werken al vanaf 1976 samen met het bestuur en op de locaties van dezelfde stichting lagen al Pulastic vloeren. Juist vanuit de behoefte om natuurlijk en spontaan bewegen centraal te stellen hebben we hier in overleg met de sectie sport voor de Pulastic LedCourt gekozen. Deze vloer verhoogt de kwaliteit van het bewegingsonderwijs en is flexibel door de vrije indeling van de vloer. Het is bovendien een multifunctionele vloer die goed tegen een stootje kan. Je kunt voor verschillende activiteiten en sporten patronen programmeren en belijning selecteren. In een traditionele vloer zie je een wirwar aan lijnen, terwijl deze vloer mooi rustig oogt. Je kunt op deze vloer dus veel meer dan alleen de traditionele sporten toepassen. Bedenk een trainingsvorm en zoek de belijning die daarbij past.” Ruud: “Zo’n omgeving kun je niet uit je reguliere middelen financieren. We hebben een aparte stichting voor het beheer en de exploitatie van de hal opgericht. Op stichting-scope.nl is alle informatie te vinden over ons sportdomein. Vervolgens hebben we een mooi bedrag aan subsidie via BOSA ontvangen, waardoor onder andere ook deze mooie vloer gelegd kon worden.”

Kijk voor meer informatie op www.pulastic.com.

BOUW EN INRICHTING SCHOOLDOMEIN 47 mei 2023
“Hier is het plezier uitgangspunt en leren kinderen hun grenzen te verleggen binnen de eigen mogelijkheden”

Gezond binnenklimaat voor School met de Bijbel

De recente renovatie van de School met de Bijbel in Nieuw-Beijerland was de aanleiding om ook het binnenklimaat aan te pakken. Onderdeel was het installeren van tien decentrale, energiezuinige en stille ventilatie-units in tien lokalen.

Phillip Spencer Davies is area sales manager bij Airmaster: “We merken dat de vraag naar goede ventilatiesystemen enorm is toegenomen. Iedereen wil het CO 2 niveau terugdringen, zeker nu de overheid subsidies vrijmaakt voor het verbeteren van het binnenklimaat in scholen. In juli 2022 werd 140 miljoen euro extra vrijgemaakt om scholen met hardnekkige ventilatieproblemen te ondersteunen. Dankzij de vangnetsubsidie kunnen scholen onder bepaalde omstandigheden 60% subsidie krijgen voor de werkzaamheden die nodig zijn om de luchtkwaliteit in hun klaslokalen te verbeteren. Airmaster biedt al meer dan 30 jaar decentrale ventilatie-oplossingen voor scholen aan. De enige manier om energiezuinig te ventileren is door een vraaggestuurde ventilatie-installatie met warmteterugwinning te voorzien. We zien dat het lastig is om een centrale ventilatie-installatie in een bestaand gebouw te integreren. De luchtgroep neemt veel plaats in en vaak is er weinig ruimte voor het kanalennetwerk. De kosten lopen dan snel hoog op. Wij willen een optimaal binnenklimaat creëren zonder daarbij het budget uit het oog te verliezen. Een decentrale ventilatie-installatie is een energiezuinige en flexibele totaaloplossing die in om het even welk type gebouw past. De units van Airmaster hebben bovendien een warmteterugwinning van meer dan 80%, en hun CO 2 uitstoot is maar liefst 52% minder dan bij een centrale ventilatie-installatie!

MINDER GEZONDHEIDSKLACHTEN

In De School met de Bijbel werd in tien klaslokalen een decentrale ventilatie-unit AM 800 geplaatst door het installatiebedrijf Vlielander, inclusief het registratiesysteem. Marco Vlielander: “Ons bedrijf ligt om de hoek dus dat is handig. We zijn

Tekst Sibo Arbeek
mei 2023 SCHOOLDOMEIN 48

de tussenpersoon tussen het schoolbestuur, de school en betrokken bedrijven, zoals Airmaster. Wij doen voor meerdere scholen in de regio het onderhoud en nemen dan het binnenklimaat ook mee. De vier gebouwen waarmee we nu werken zijn elk anders, maar allemaal verouderd wat HVAC installatie en isolatie betreft. We pakken meestal gelijk de luchtkwaliteit aan en hebben hiervoor Airmaster gekozen omdat dit ventilatiesysteem past bij de wensen, de wet- en regelgeving en bovendien een goede prijs-kwaliteit verhouding heeft. De School met de Bijbel had geen ventilatiesysteem, maar wel airco’s die sterk verouderd waren. Er waren niet echt klachten, maar nu we de tien units hebben geplaatst melden de gebruikers dat ze minder gezondheidsklachten zoals hoofdpijn en vermoeidheid hebben. Dat is mooi om te zien.”

SNEL BEDRIJFSKLAAR

“Bouwkundig lukt het met een goed team om twee units per dag te monteren”, legt Marco uit; “je ziet een flinke unit, maar als je hem eenmaal gemonteerd hebt ziet het er keurig uit en valt het niet echt op.” Philip knikt: “Airmaster ventilatieunits zijn beschikbaar met muur-, plafond- en zij-aansluitingen en met combinaties hiervan. De AM 1000 wordt in vier aparte modules geleverd, waardoor hij gemakkelijk te vervoeren, te hanteren en te installeren is. Het systeem vereist geen kanalennetwerk en is in enkele uren tijd geplaatst. Twee gaten in het dak of de gevel voor de aan- en afvoer, het toestel ophangen en het toestel is bedrijfsklaar. Het is perfect mogelijk om tijdens een schoolvakantie een volledige school van een nieuwe ventilatie – installatie te voorzien.”

BEHEER OP AFSTAND

Airmaster heeft een eigen online platform voor bediening en beheer op afstand. “De eindgebruiker

heeft het in beheer,” legt Phillip uit, “maar kan bijvoorbeeld de aannemer toestemming geven om er mee te werken. Het onlinesysteem geeft aan wanneer er onderhoud nodig is en registreert gegevens zoals het CO2 niveau en het energieverbruik. Het systeem past ook binnen de doelstelling van de opdrachtgever om duurzaam te willen renoveren. Door de installatie continu te monitoren, kunnen parameters aangepast worden om zowel de werking als het energieverbruik te optimaliseren. Het systeem corrigeert zichzelf, zijn er vervuilde filters dan meldt het systeem dat. Het ventilatiesysteem ververst automatisch de lucht. Op deze manier garandeert Airmaster voldoende frisse lucht voor elk kind zonder dat de energierekening hoog oploopt. Het mooie is dat alles vanzelf gaat, waardoor het binnenklimaat is geregeld, de leerkracht is ontzorgd en de schoolleiding idem dito.”

CIRCULAIRE ECONOMIE

Philip verder: “Nog een voordeel van decentrale ventilatie is dat deze installaties weinig onderhoud vragen. De filters moeten hoogstens twee keer per jaar vervangen worden. In tegenstelling tot centrale systemen zijn er geen kanalen die gereinigd moeten worden. Een ander belangrijk voordeel van decentrale ventilatie is dat deze makkelijk geïntegreerd kan worden in bestaande gebouwen. En als het gebouw een andere bestemming krijgt, kunnen de Airmaster units makkelijk gedemonteerd of verplaatst worden. Deze oplossing past daarom perfect binnen de principes van de circulaire economie.” Marco tenslotte: “ Airmaster is altijd prima bereikbaar en een fijne partij om mee samen te werken. Als er wat is wordt het opgelost.” Philip knikt: “Dat is wederzijds; dit is de eerste school die Marco voor ons deed en de samenwerking liep perfect. Op naar de volgende.”

Kijk voor meer informatie op www.airmaster-bv.nl.

SCHOOLDOMEIN 49 mei 2023
BELEVING EN BEHEER
“Op deze manier garandeert Airmaster voldoende frisse lucht voor elk kind zonder dat de energierekening hoog oploopt”

Over hoe Adelante Zorggroep de schouders eronder zette na de overstromingen

In 2015 renoveerde Adelante Zorggroep hun locatie in Houthem (Valkenburg aan de Geul). De indeling en het interieur werden vernieuwd. In coronatijd werden CO2 meters toegepast om de luchtkwaliteit op orde te krijgen. Het pand, dat stamt uit 1969, was weer gereed gemaakt voor de komende 40 jaar.

Niets bleek minder waar toen in de zomer van 2021 Zuid Limburg overstroomde. Adelante greep de watersnood aan om een verduurzamingsslag te maken. Ondanks alles hebben zij het beste van de situatie gemaakt, niet alleen herstellen maar ook verduurzamen.

PUIN RUIMEN EN PLANNEN MAKEN

Toen het water was gezakt, hebben Miriam Voncken, teammanager Civiel Technische Dienst bij Adelante Zorggroep en haar collega’s direct een opname van de schade gedaan: “We gingen direct in de actiemodus: wat nu; wat is er nog te redden; wat moet afgevoerd worden; wat moet er gebeuren om weer les te kunnen geven? Alle natte troep moest eruit. Deuren, vloeren, alles was volgezogen met water. De egaline onder de vloer moest er worden uitgefreesd. We hebben gekeken hoever het water in de muren zat en tot die hoogte de gipsmuren verwijderd. Ondertussen

moest er een alternatieve locatie worden gevonden en aangepast om het komende schooljaar weer les te kunnen geven. We pakten 27 zeecontainers vol spullen die nog bruikbaar waren. En ruimden de aangespoelde vissen van het terrein op.”

KANS OM TE VERDUURZAMEN

“De installaties stonden in het souterrain en waren volledig ondergelopen,” gaat Miriam verder. “Die moesten dus vervangen worden. We wilden al verduurzamen en hebben toen direct de kans gegrepen om die extra slag te maken. Ons gebouw is uitgestrekt, zo’n 8.000 m2 op de begane grond, en het gebruik is niet zoals een standaard school. We hebben maximaal 12 kinderen in de klas en de kinderen bewegen anders. We hebben op advies van Curvers Raadgevende Ingenieurs de installaties zo duurzaam mogelijk ingezet, met behoud van CV als achterwacht. We hebben nu een zo duurzaam mogelijk pand: warmtepompen, hydrokits en de Scholen°Concept units van Klimaatgroep Holland. Later worden er nog zonnepanelen geplaatst.

FRISSE SCHOOL

“We hadden afzuiging via het dak en ventileerden door open ramen”, vertelt Miriam over de situatie voor de overstroming. “We hadden overal CO2 meters, met daarbij een helder instructieblad zodat

mei 2023 SCHOOLDOMEIN 50
DE VEERKRACHT VAN ZUID LIMBURG

medewerkers precies wisten wanneer ze wat konden doen om voldoende te ventileren. Zo zijn we de coronatijd goed doorgekomen. Maar nu we toch nieuwe installaties nodig hadden, wilden we direct een verbeterslag maken wat betreft de ventilatie in lokalen. Voor de klaslokalen kozen we voor het Scholen°Concept die op basis van behoefte ventileert, verwarmt en koelt.”

ANDERE KEUZES

De overstromingen hebben veel impact gehad. Voor het pand heeft Adelante dan ook andere keuzes gemaakt. Miriam: “We hebben hier veel maatwerk materiaal zoals kapstokken, kasten en keukentjes. Tijdens de renovatie hebben we andere keuzes gemaakt, zodat als het water ooit weer komt, we er beter tegen bestand zijn. Zo zijn de kasten waar mogelijk nu op hoogte en zijn de kapstokken in

Op donderdag 29 september is Adelante locatie Kind & Jeugd in Valkenburg a/d Geul feestelijk heropend met alle kinderen en medewerkers.. Deze speciale gebeurtenis is meteen aangegrepen om een nieuwe naam te onthullen voor de mytylschool van Adelante: Encanto, (voortgezet) speciaal onderwijs. Een mooie nieuwe start op een locatie die voldoet aan alle eigentijdse wensen en eisen, passend bij de speciale doelgroep.

onderdelen te demonteren. Stopcontacten zijn hoger geplaatst. De technische ruimte hebben we verplaatst van de kelder naar buitenpandig. Het technische gebouw staat op een halve meter hoogte en de installaties zijn bijna allemaal op hoogte aan de wand bevestigd.”

SCHOUDERS ERONDER

Vlak voor de zomer van 2022, een jaar na dato, is het pand weer opgeleverd. Hoe het er nu bij ligt, doet niks vermoeden van de staat waar het in geweest is. Miriam vertelt over de vele hulp die ze hebben gehad: “Veel vrijwilligers en bedrijven hebben ons geholpen om zo snel weer terug naar normaal te kunnen. Van militairen die hielpen om het pand leeg te maken, tot vrijwilligers die hielpen om de kinderen hun weg te laten vinden in de tijdelijke gebouwen. Het was behelpen maar we zijn zo trots op wat we hebben neergezet. Er is niet alleen hersteld wat stuk was, we hebben ook een enorme duurzaamheidsslag kunnen maken.”

Kijk voor meer informatie op www.klimaatgroepholland.nl.

BELEVING EN BEHEER SCHOOLDOMEIN 51 mei 2023
“We hebben andere keuzes gemaakt, zodat we beter tegen het water zijn bestand”
Miriam Voncken

RODENBORCH-COLLEGE VERBINDT VANZELFSPREKEND

Bewuste vloerkeuze draagt bij aan sfeer en gezond binnenklimaat

Het nieuwe Rodenborch-College in Rosmalen verrast door de ruimtelijke kwaliteit en het fijne binnenklimaat. Daar is van tevoren goed over nagedacht, waardoor schoonheid en efficiency in de inrichting hand in hand gaan.

“Een fijn en gezond leer- en werkklimaat voor onze leerlingen en medewerkers was het belangrijkste uitgangspunt in het programma van eisen”, vertelt directeur bedrijfsvoering Roland Littooij; “we hebben bewust gekozen voor een open gebouw, met veel natuurlijk daglicht. Dat wordt nog eens versterkt door de prachtig vormgegeven dakramen, waardoor het licht van boven heel warm binnenvalt.

Bij een bepaalde temperatuur gaan de dakramen automatisch open en is het buiten te warm dan blijven ze dicht. Verder hebben we ook goed naar de akoestiek gekeken; in de aula zijn alle plafonds akoestisch en ook in de leerpleinen hangen akoes tische plafonddelen in verschillende vormen, al naar gelang het type ruimte. Je vindt hier meubilair met warme en zachte materialen; dat werkt akoestisch beter en zit ook lekkerder.

Bij de keuze van het meubilair hebben we leerlingen en medewerkers betrokken met wie we de leveranciers hebben bezocht, want ik wil graag zelf zien wat ik koop. Duurzaamheid ervaar je ook in de aula, waar veel planten voor een natuurlijke en rustige sfeer zorgen. Dat uitgangspunt komt ook weer terug in de inrichting van de domeinen, waar de lokalen rondom een leerplein liggen en er een mooie interactie mogelijk is tussen de leerlingen en de docenten. Docenten kunnen een groepje leerlingen iets uit laten werken en tegelijk doorgaan met de les; dat was op de oude locatie niet mogelijk.”

KLEINSCHALIG

Het nieuwe Rodenborch-College ligt in de wijk De Groote Wielen en huisvest ongeveer 2.300 leerlingen in het vmbo-t, havo en vwo. Het hoofdgebouw bestaat uit een aantal vleugels met ieder een eigen

plek voor de leerlingen, ingedeeld in domeinen. Roland: “Een belangrijke uitdaging was het combineren van de beleving van kleinschaligheid met de voordelen die een groot gebouw kan hebben, waarin ook nog eens twee sporthallen zijn ondergebracht. Het centrale atrium met trappen en podium wordt als pauzeruimte gebruikt. Er is niet één grote centrale aula, maar er kan gepauzeerd worden in een aantal pauzeruimten op de diverse verdiepingen. De kleinschaligheid van het gebouw komt naar voren doordat er in verschillende domeinen gewerkt wordt, zoals het talendomein en de domeinen, die onderverdeeld zijn in onderbouwen bovenbouwdomeinen. De onderbouwdomeinen zijn weer anders vormgegeven dan de bovenbouwdomeinen, juist om ervoor te zorgen dat leerlingen vanaf de basisschool niet ineens in een grootschalige leeromgeving komen. Dat krijgen we ook terug van ouders en leerlingen; dat het gebouw van de buitenkant groot oogt, maar van binnen kleinschalig aanvoelt.”

BEWUST MARMOLEUM

“We hebben bewust voor Marmoleum gekozen vanuit het onderhoud en de exploitatie”, legt Roland verder uit; “daarbij kenden we Forbo al uit van onze vorige locatie, dus we kenden de kwaliteit van deze vloeren. Je vindt hier dus overal Marmoleum, behalve in de overlegruimtes en onze collegezaal, waar tapijttegels liggen.” “Marmoleum is duurzaam en milieuvriendelijk, omdat het van natuurlijke materialen is gemaakt”, vertelt Segmentmanager Onderwijs Marieke Meulman van Forbo Flooring Systems; “hier heeft de school overwegend gekozen voor lichte en neutrale grijstinten. In de klaslokalen ligt een Marmoleum Cocoa; dit is een heel eigentijds Marmoleum waar cacaoschillen aan toegevoegd zijn, waardoor een totaal nieuwe oppervlaktestructuur wordt gecreëerd.

Tekst Sibo Arbeek Fotografie Lucas van der Wee
mei 2023 SCHOOLDOMEIN 52
Roland Littooij (l) en Marieke Meulman

Opvallend is ook dat je hier geen lasnaden ziet, omdat de banen tegen elkaar liggen. Dat geeft een mooi doorlopend vloerbeeld zonder onderbrekingen. En over duurzaam gesproken; Marmoleum kan aan het eind van de levensduur volledig worden teruggenomen en gerecycled tot nieuwe grondstof.” Roland knikt: “We hebben bewust in de inrichting voor een lichte kleurstelling gekozen, waardoor je een rustige uitstraling ervaart. Een rustige uitstraling is ook duurzaam, omdat je makkelijker iets kunt vervangen, zonder dat je de hele ruimte hoeft aan te pakken. De leerpleinen daarentegen hebben elk hun eigen uitstraling. Herkenbaar aan een speciaal voor Rodenborch ontworpen kleur blauw en geel Marmoleum op de vloer en mooie visuals op de wanden.”

DUURZAME GEDACHTE

“We hebben ook steeds naar de exploitatiekosten gekeken. Je kunt wel goedkope materialen aanschaffen, maar dat komt terug in je beheer en is bovendien niet duurzaam. Op het dak liggen bijna 1.000 zonnepanelen en dan moet je die duurzame lijn ook in het gebouw doortrekken; we willen zuinig met materialen en grondstoffen omgaan. Dat betekent onder andere ook dat we afval scheiden en ook

voorkomen dat we veel afval krijgen. Als je eens wist hoeveel papier er bij de verhuizing de papierbak in gegaan is. Dat is een proces van bewustwording en slimme keuzen maken; zo hebben alle domeinen een eigen domeinkamer met daarachter een kastenwand, waar het materiaal van hele domein kan liggen. Dit voorkomt dubbele aanschaf van lesmateriaal. Verder zijn de bureaus in de kantoorruimtes, domeinkamers en in de leslokalen in hoogte verstelbaar. Elk leerplein heeft vergelijkbaar meubilair, waardoor we makkelijk kunnen schuiven en voorkomen dat gelijk nieuw meubilair aangeschaft moet worden. Ook op ICT gebied hebben docenten met één snoertje verbinding met het activebord, zodat ze makkelijk overal kunnen werken. De verschillende leerpleinen zijn herkenbaar aan een eigen wallprint die we na een paar jaar kunnen vervangen zonder dat de gehele ruimte direct aangepast hoeft te worden.” Marieke vult aan: “Alle meubilair in de lokalen heeft zachte doppen, zodat de vloer niet beschadigd raakt. Dat is een hoofdpijndossier in veel scholen. Ook mooi om te zien zijn de goed ingerichte entreezones, met matten binnen en buiten, zodat het vuil buiten blijft.” Roland tenslotte: “Alles past binnen de duurzame visie van de school, waarbij het uitgangspunt was dat we mooie ruimtes wilden maken waar medewerkers en leerlingen trots op zijn.”

Ga voor meer informatie over vloeren in het onderwijs naar www.forbo-flooring.nl/onderwijs.

BELEVING EN BEHEER SCHOOLDOMEIN 53 mei 2023
“Marmoleum kan aan het eind van de levensduur volledig worden teruggenomen en gerecycled tot nieuwe grondstof”

ACHT NIEUWE SCHOLEN IN VIJF JAAR TIJD

In Noord-Groningen is sprake van geïndiceerde aardbevingen ten gevolge van de aardgaswinning. Een van de gevolgen is dat veel gebouwen niet voldoen aan de veiligheidsnorm en daarom moeten worden versterkt. Voor de versterking van de schoolgebouwen is vanaf 2016 een sectoraal programma ontwikkeld: het scholenprogramma Groningen.

De regionale opgave was de aanpak van 101 schoolgebouwen binnen een tijdsbestek van 5 jaar. Hoe aanpakken? Eén bouwstroom met één organisatie voor alle gemeenten? Een aanbesteding voor één conceptschool om die uit te rollen over alle gemeenten? De financiering van het geheel was deels met middelen van de gemeenten, dus de gemeenteraden waren aan zet over de budgetten. De uitvoering van het programma is mogelijk geworden om te schuiven met budgetten en deze te verdelen over de verschillende projecten. Door een goede planning op te stellen kon worden bespaard op tijdelijke huisvesting. De hierdoor vrijvallende middelen konden worden toegevoegd aan het nieuwbouwbudget. Binnengemeentelijk was dit geen punt, maar budgetten over de gemeentegrens schuiven? Zowel politiek als regeltechnisch onhaalbaar. Omdat besluitvorming per gemeente en per schoolbestuur nodig is, is vanwege de snelheid en vanuit pragmatisch oogpunt uiteindelijk gekozen voor zelfstandige trajecten per gemeente.

“De kracht van de organisatie was dat de uitvoering van het scholenprogramma ongehinderd is doorgegaan”

Aanpak gemeente Het Hogeland

De start van de uitvoering was in 2016. Door de gemeenteraden van de (toen nog) afzonderlijke aardbevingsgemeenten Bedum en Eemsmond werden zogenaamde ‘programmaplannen’ vastgesteld. Per 1 januari 2019 leidde de gemeentelijke herindeling met de gemeenten Winsum en De Marne tot de nieuwe gemeente Het Hogeland. De kracht van de organisatie was dat de uitvoering van het scholenprogramma ongehinderd is doorgegaan. Samenwerking tussen de schoolbesturen was een randvoorwaarde. Bijvoorbeeld daar waar in een dorp nu twee afzonderlijke scholen aanwezig zijn, zou één nieuw integraal kindcentrum wenselijk zijn. Hiermee kon meteen ingespeeld worden

Scholenprogramma Groningen: hoe een bedreiging een kans werd Aardbevingen in Noord-Groningen. Kinderen in onveilige scholen? Onbestaanbaar! Zo ontstond vanaf 2014 het scholenprogramma Groningen. Een aanpak van 101 schoolgebouwen (ongeveer 185.000 m2) en verwachte investering van ruim 400 miljoen euro. Vanuit de regionale samenwerking werden met zowel NAM als Rijk en gemeenten afspraken gemaakt over de uitvoering en de financiële middelen. Tijdens het gehele proces werd een gemeentelijke herindeling doorgevoerd: uit de bij aanvang aanwezige 11 gemeenten ontstonden 4 nieuwe gemeenten. NAM was bereid om de voor de versterking van een gebouw geraamde middelen inclusief de raming voor tijdelijke huisvesting beschikbaar te stellen als bouwbudget voor vervangende nieuwbouw. Het Rijk was overtuigd van de meerwaarde om niet alleen te gaan versterken van de (veelal) oude gebouwen maar om aan te haken in het toekomstbestendig maken van de schoolgebouwen zodat dit in een beperkt aantal jaren gerealiseerd kon worden in plaats van een proces dat anders 30 tot 40 jaren zou duren. Uiteindelijk resteren van de 101 gebouwen nu 63 gebouwen waarvan 43 nieuw en 20 versterkt/vernieuwd. Wat begon als een sterke dreiging (scholen die niet bestand waren tegen aardbevingen), is opgepakt als een kans met als resultaat een prachtige vernieuwing van het onderwijs en een belangrijke impuls voor de leefbaarheid in Noord-Groningen.

op de demografische krimp. De status quo werd op zijn kop gezet en in een sneltreintempo werd de samenwerking geïntensiveerd. Om tempo te maken en vooral ook vanwege de financiële dekkingsmogelijkheden, is de gemeente aangewezen als bouwheer. Hierdoor kon een programmaorganisatie ingericht worden. Achteraf een van de succesfactoren om de opgave daadwerkelijk binnen de gestelde tijd en binnen de beschikbare budgetten af te ronden. De opgave binnen de gemeente was transitie van 22 gebouwen met als resultaat:

mei 2023 SCHOOLDOMEIN 54
Nieuwbouw Togtemaarschool in Bedum Architect Team 4 uit Groningen

Renovatie en versterking met uitbreiding schoolgebouw Regenboog in

- 8 nieuwbouw

- 3 bouwkundig versterkt/vernieuwd inclusief gedeeltelijk sloopnieuwbouw (waarvan 1 rijksmonument) en - 5 versterkt/vernieuwd.

Door samenvoeging en sluiting een netto afname van 6 gebouwen. Het totaal beschikbaar budget was ruim 50 miljoen euro.

Goede basis

Ondanks de tijdsdruk is begonnen met het leggen van een goede basis: het opstellen van een gemeentelijke visie op de spreiding van onderwijs om de transitie vorm te kunnen geven. Daarnaast is ieder project uitgevoerd als maatwerk. Input voor het programmatisch programma van eisen is het opstellen van een visie over hoe de nieuwe school zou moeten functioneren (door het schoolbestuur, schoolteam, ouders en leerlingen met behulp van een extern adviesbureau). Voor het technisch programma van eisen is een standaardpakket samengesteld dat per project op maat werd gemaakt. Door dit per project steeds met dezelfde adviseurs uit te voeren ontstond een versnelling. Per project werd een architectenselectie en aanbesteding georganiseerd. De nieuwe schoolgebouwen zijn daarmee uniek en passen binnen de ruimtelijke kaders per locatie en per dorp. De grote mate van participatie in het opstellen van het ontwerp maakt dat de gebruikers de gebouwen beschouwen als van zichzelf.

Herhaling aanpak?

JA! Door te werken met een betrokken programmaorganisatie met veel mandaat en voldoende middelen voor het realiseren van de projecten, is het een zelfontwikkeld proces geweest waardoor steeds meer snelheid gemaakt kan worden. Vooral door aan de start van ieder project tijd in te ruimen voor participatie is sprake van ‘samen maken’. Een randvoorwaarde voor de uitvoering. Deze aanpak kan ook op andere terreinen worden gevolgd.

Het scholenprogramma in de gemeente Het Hogeland is een succes, omdat:

- er vanuit één programmaorganisatie met voldoende mandaat en middelen werd gewerkt;

- er samenwerking was tussen betrokken partijen (gemeente, schoolbesturen en besturen kinderopvangorganisaties);

- het vertrouwen gaandeweg is gegroeid;

- er per locatie maatwerk is geleverd;

- met de (financiële) kaders rekening is gehouden;

- en natuurlijk: urgentie/veiligheid als gezamenlijke drijfveer gold.

Wubbo Haaijer

Programmamanager gemeente Het Hogeland www.hethogeland.nl

55 SCHOOL DOMEIN mei 2023
Bedum (Rijksmonument) Fotografie Nienke Maat – Architect Adema Architecten
Column
Nieuwbouw IKC Warffum Architect De Unie uit Groningen

Kort nieuws

RobotWise en TNO onderzoeken rol van robots

bij het welzijn van kinderen op school

RobotWise en TNO bundelen hun krachten om de potentie van robots te onderzoeken voor het welbevinden van kinderen, waarbij de ontwikkeling van communicatieve en sociaal-emotionele vaardigheden centraal staan. Dat doen zij met het vandaag in Amstelveen gestarte gezamenlijke schoolkamp “Robot Playground”, drie dagen waarin basisschoolleerlingen spelenderwijs ontdekken en leren over technologie, robotica en programmeren. Het kamp dient ook als onderzoek om te kijken hoe een persoonlijk robotvriendje het welzijn van alle schoolgaande kinderen kan bevorderen, met een extra oog voor kwetsbare kinderen.

Nederland

kent veel kinderen met beperkingen in communicatieve en sociaal-emotionele vaardigheden. Leerkrachten en zorgprofessionals hebben vaak moeite om deze kinderen voldoende ondersteuning te bieden, en ouders voelen zich soms niet genoeg betrokken. RobotWise, TNO, TU Delft, Therapieland, Interactive Robotics en Topicus werken in het kader van het ePartners4All-project samen om deze uitdaging aan te pakken. Het team gelooft dat robots een belangrijke rol kunnen spelen bij het helpen van deze kinderen en hun welzijn en ontwikkeling kunnen verbeteren.

21st Century Skills

Het robotkamp wordt georganiseerd door RobotWise en is mede financieel mogelijk gemaakt door het Innovatiefonds Zorg & Welzijn

Amstelveen en Health Holland. RobotWise heeft ervoor gekozen om het 3-daags kamp bij het hoofdkantoor van Hewlett- Packard (HP) in Amstelveen plaats te laten vinden, waarbij HPvrijwilligers ook een bijdrage leveren gedurende deze dagen. Tijdens het kamp leren kinderen communiceren en omgaan met anderen met behulp van de activiteiten van RobotWise en een persoonlijk robotvriendje. Hierbij staan 21st Century Skills centraal, denk naast samenwerken aan communiceren, kritisch en creatief denken, probleemoplossend vermogen en zelfregulering. Gedurende de onderzoeken praten de kinderen met de robot over hun keuzes en voorkeuren in de klas, zoals de keuze om al dan niet deel te nemen aan activiteiten met andere kinderen. Dit geeft de kinderen de mogelijkheid om te oefenen met belangrijke sociale vaardigheden.

Bovendien wordt er gebruik gemaakt van een speciaal tabletspel om te onderzoeken waar het kind zijn of haar aandacht op richt. Deze informatie wordt gebruikt om de robot te verbeteren en beter aan te passen aan de behoeften van het kind.

Potentieel Marx Neerincx, professor Human-Centered Computing TU Delft and principal scientist TNO, benadrukt het potentieel van robots om kinderen te motiveren om te leren en nieuwe vaardigheden te ontwikkelen. Hij zegt: “Robots oordelen niet en bieden een veilige omgeving om te leren. Uit onderzoek blijkt dat kinderen vaak een band krijgen met een robotmaatje. Wij verwachten dat de kinderen ook in dit kamp dergelijke positieve leerervaring zullen opdoen.”

mei 2023 SCHOOLDOMEIN 56

AL 60 JAAR THUIS IN HET ONDERWIJS

Onderwijs Huisvesting

• Algeco adviseert, ontwerpt en bouwt graag uw onderwijsgebouw

• Design en Build, Engineer en Build, Bouwteam

• Keuzevrijheid voor wat betreft ontwerp, indeling en installaties

• Snelle bouwtijd

• Onze gebouwen zijn flexibel herindeelbaar bij toekomstige veranderingen

• Toekomstbestendig en energiezuinig bouwen, altijd flexibel

• BENG, ENG, nul-op-de-meter. Wij realiseren het!

algeco.nl/nl/branches/onderwijs

no.6

Integraal inrichten

Integraal inrichten is het thema van nummer 6, dat begin juli 2023 weer in uw bus valt. De woorden integraliteit en verduurzaming gaan vaak hand in hand. Logisch; want nadenken over het toekomstig gebruik verlengt de levensduur van het gebouw. Dat vraagt om een brede visie op de ontwikkeling, het gebruik en de inrichting van maatschappelijk vastgoed.

Hieronder een greep uit de artikelen:

Groot interview met de algemeen directeur van de VNG Leonard Geluk: Gemeenten moeten een stap naar voren zetten.

Openbare Jenaplanschool Fridtjof Nansen: Een geweldig gebouw na jarenlang wachten. Kindcentrum De Marke in Roden: Een verbindend project met oog voor een groene inrichting.

IKC De Parelburcht in Oost Souburg: Ieder kind heeft talent, ieder kind telt. Verslag debat symposium Kindcentra in hun omgeving: pleidooi voor het ontwikkelrecht van kinderen.

Cluster Zuid Universiteit Leiden: Ontwerp en inrichting sluiten aan op de korrel van de stad.

Daylight visualizer tools/e-books: Natuurlijk daglicht op maat van VELUX Commercial.

Trivium College Amersfoort: De wijk doet mee in het creëren van betekenisvol onderwijs. Nieuwbouw voorzieningencluster Donker Curtius: Verbinding centraal in allesomvattend gebouw.

Schooldomein

Magazine voor de perfecte leef-, leer- en werkomgeving sinds 1988. Schooldomein verschijnt zes keer per jaar. Op internet: www.schooldomein.nl.

Uitgever

Schooldomein is een uitgave van Schooldomein B.V. en Ten Brink Uitgevers

Redactie

Sibo Arbeek, Natascha Bruinstroop, Brenda Breems Vaste medewerkers

Adri Pijnenburg, Anje Romein, Kees Rutten (fotografie), en Martine Sprangers (fotografie).

Redactieraad

De redactie en de partners van Schooldomein onder voorzitterschap van Edward van der Zwaag.

Redactieadres

Contactweg 66, 1014 BW Amsterdam, tel 06-82548370

E-mail: info@schooldomein.nl

Arrangementen partners Schooldomein. Voor het plaatsen van artikelen, advertenties of advertorials in het magazine Schooldomein, kunt u contact opnemen met Brenda Breems van Schooldomein B.V., Contactweg 66, 1014 BW Amsterdam, telefoon 06-82548370, brenda.breems@schooldomein.nl. Voor de online activiteiten van Schooldomein (website en sociale media) kunt u contact opnemen met Natascha Bruinstroop, natascha@fizz.nl.

De advertentietarieven en arrangementen van Schooldomein vindt u op www.schooldomein.nl.

Abonnementen

Betaling, opgave, abonnement, opzegging en adreswijziging kunt u doorgeven aan Administratie Schooldomein, Postbus 1064, 7940 KB Meppel, tel (085) 27 36 36 7, e-mail: sdo@tenbrinkuitgevers.nl.

Schooldomein verschijnt zes keer per jaar in controlled circulation voor alle instellingen in het primair-, voortgezet-, middelbaar- (ROC’s) en hoger onderwijs (hbo en wo). Elke instelling krijgt op instellingsnaam een exemplaar toegestuurd. Daarnaast krijgen alle gemeenten Schooldomein toegestuurd. Voor meerdere exemplaren alsmede voor abonnementen voor particulieren, instellingen en bedrijven geldt een abonnementsprijs van e 46,20 voor losse nummers e 8,20 incl. verzendkosten.

Abonnementen kunnen schriftelijk tot uiterlijk 1 september van het lopende abonnementsjaar worden opgezegd bij de administratie van drukkerij Ten Brink. Bij niet tijdige opzegging wordt het abonnement automatisch met een jaar verlengd.

Productie

Vormgeving en website: FIZZ | Digital Agency – fizz.nl Schooldomein wordt mede mogelijk gemaakt door een groot aantal partners. Een overzicht daarvan vindt u op pagina 5.

mei 2023 SCHOOLDOMEIN 58
colofon
Donker Curtius Den Haag

GISPEN CREËERT FLEXIBELE LEEROMGEVINGEN

VERMENIGVULDIGEN door te DELEN

Een prettige fysieke ruimte is dé basis voor een inspirerende onderwijsomgeving. Gispen voegt daar flexibiliteit, ergonomie en een eigen identiteit aan toe. Zo creëren we een prikkelende en effectieve leeromgeving, waar iedereen het beste uit zichzelf haalt: leerlingen, studenten, docenten en staf.

Gispen ontwerpt en realiseert vanuit visie en jarenlange ervaring onderwijsomgevingen. We richten leer- en werkruimtes optimaal, duurzaam én toekomstbestendig in voor verschillende activiteiten: samenwerken en ontmoeten, studeren, individueel werken, concentreren, overleggen, les volgen en geven. Gispen heeft hiervoor een gespecialiseerd Onderwijsteam. Onze interieurarchitecten, accountmanagers en projectleiders werken samen met veel verschillende onderwijsinstellingen. Dat doen we van creatie en realisatie tot en met beheer en revitalisatie van bestaand meubilair.

Laat u inspireren en maak een afspraak met ons Onderwijsteam via info@gispen.nl

Vermenigvuldig de mogelijkheden van uw ruimte door deze te delen met BREEDVELD wanden.

Denk aan een klaslokaal waarin u twee groepen dankzij een mobiel wandsysteem zowel gemeenschappelijk als apart kunt doceren. Wij delen in ieder geval graag onze verfijnde kennis en ons vakmanschap met u. Ook voor bijhorende bouwkundige oplossingen.

Meer informatie: www.breedveld.com

www.gispen.com/nl/onderwijs

Onderwijsgroep Tilburg Rijn IJssel Wageningen Koning Willem I College Christelijk Lyceum Veenendaal Fontys Hogescholen

Turn static files into dynamic content formats.

Create a flipbook
Issuu converts static files into: digital portfolios, online yearbooks, online catalogs, digital photo albums and more. Sign up and create your flipbook.