HISTORIAL DE CONCURSOS BOGOTA Y CUNDINAMARCA

Page 1


FICHA TÉCNICA DE CONCURSOS SCA BC

1996-2024

COORDINACIÓN: ARQ. MARIA MERCEDES CIFUENTES QUIÑONEZ

SUPERVISIÓN: ARQ JAVIER JIMÉNEZ CUERVO

VERSIÓN MODIFICADA ABRIL 2025

FICHA TÉCNICA DE CONCURSOS

SOCIEDAD COLOMBIANA DE ARQUITECTOS BOGOTÁ D.C. Y CUNDINAMARCA

NOMBRE DEL CONCURSO:

CONCURSO PÚBLICO MOBILIARIO URBANO EN SANTAFE DE BOGOTÁ

GANADOR:

Arq. DANIEL BONILLA RAMÍREZ

AÑO 1239-1996

ENTIDAD PROMOTORA

FECHA DE APERTURA

No. Contrato SCA BC - EP 1996

INSTITUTO DISTRITAL DE CULTURA Y TURISMO, MUSEO DE DESARROLLO URBANO DEPARTAMENTO DE ADMINISTRACIÓN DE PLANEACIÓN DISTRITAL PROGRAMA CULTURA Y CIUDADANÍA

2 DE SEPTIEMBRE DE 1996

PRIMERA RONDA 5 DE NOVIEMBRE DE 1996

FECHA DE PROCLAMACIÓN

9 DE DICIEMBRE DE 1996

OBJETO DEL CONCURSO

Selección de una firma, arquitecto o diseñador industrial, que mediante contrato de consultoría con el Instituto Distrital de Cultura y Turismo a través de la O.E.I. diseñe el mobiliario urbano de Santafé de Bogotá. El concurso promovido por el Instituto Distrital de Cultura y Turismo se desarrollara en dos rondas. En la primera ronda, los participantes diseñaran a nivel de anteproyecto los siguientes diez items: Paradero de bus, banca, caseta telefónica, bolardos, caneca, protector de árbol, reloj, luminaria, mogador y cartelera de referencia. En la segunda ronda, a cada uno de los cinco finalistas seleccionados, el instituto les asignara la suma de $5.000.000 (cinco millones de pesos m/cte), para la elaboración de los modelos a escala 1.1

COORDINADOR DE LA SCA BC Arq. Dicken Castro Duque

LOCALIZACIÓN UBICACIÓN

Bogotá D.C. En las diferentes zonas del espacio público de Bogotá. ÁREA INTERVENCIÓN

N° DE PROCESO SECOP -

COORDINADOR ENTIDAD PROMOTORA Arq. William H. Alfonso P.

ASESORES TEMÁTICOS ASESOR JURÍDICO SCA BC

ASESOR JURÍDICO E P

Elaboró JURADOS

Arq. Alejandro Cardenas

Arq. Fernando Correa Muñoz

Diseñador Ind. Jaime Gutiérrez Lega

Arq. Jaime Barrero Fandiño

Arq. Santiago Moreno

Arq. Maria Mercedes Cifuentes Quiñones

Dr. Guillermo Vargas Ayala

PREMIOS OTORGADOS

2do PUESTO

3er PUESTO

4o PUESTO

4o PUESTO

Arq Adriana Isabel Gutierrez

Arq. Alexander Sarmiento H.

Tectus Ltda. y Arq. Alberto Miani Uribe

Arq. Pablo Moreno Escobar y Arq. Tatiana Held

Aprobó

Arq. Paola Puche Bravo

SOCIEDAD COLOMBIANA DE ARQUITECTOS BOGOTÁ D.C. Y CUNDINAMARCA

CONCURSO PÚBLICO

MOBILIARIO URBANO EN SANTAFE DE BOGOTÁ

FICHA TÉCNICA DE CONCURSOS
Aprobó
Elaboró Arq. Maria Mercedes Cifuentes Quiñones
Arq. Paola Puche Bravo

SOCIEDAD COLOMBIANA DE ARQUITECTOS BOGOTÁ D.C. Y CUNDINAMARCA

NOMBRE DEL CONCURSO:

CONCURSO ARQUITECTÓNICO Y DE MÉRITOS ESQUEMA BÁSICO PLAN MAESTRO PARQUE EMBALSE SAN RAFAEL

GANADOR:

ECOTONO LTDA. Arq. ROSWELL GARAVITO PEARL

1996

No. Contrato SCA BC - EP

AÑO T-005-96

ENTIDAD PROMOTORA EMPRESA DE ACUEDUCTO Y ALCANTARILLADO DE BOGOTÁ - ESP

FECHA DE APERTURA 2 DE SEPTIEMBRE DE 1996

FECHA DE PROCLAMACIÓN 29 DE NOVIEMBRE DE 1996

OBJETO DEL CONCURSO

Formulación a nivel de esquema básico, de la propuesta urbanística, arquitectónica y paisajista.

A) Zonificación temática, ambiental y funcional de áreas

B) Articulación interna del plan (accesos, elementos y sistemas de articulación y circulación interna)

C) Plan paisajístico

D) Plan arquitectónico (programa general de edificaciones y sus correspondientes áreas, lenguaje arquitectónico)

COORDINADOR DE LA SCA BC Arq. Mónica Gómez De Espinosa

LOCALIZACIÓN La Calera, Cundinamarca

UBICACIÓN La Calera, margen izquierda de la vía que conduce de Santafé de Bogotá a la cabecera municipal. ÁREA INTERVENCIÓN 2 Ha. Aproximadamente

N° DE PROCESO SECOP

COORDINADOR ENTIDAD PROMOTORA Arq. Martha Lucia Bueno

ASESORES TEMÁTICOS

ASESOR JURÍDICO SCA BC Dr. Guillermo Vargas Ayala

ASESOR JURÍDICO E P

JURADOS

Arq. Julián Guerrero Borrero

Arq. Lyda Caldas de Borrero

Arq. Orlando Rocha

Arq. Carlos Alfonso Cubillos Camacho

Arq. Gabriel Anzola Wills

Elaboró Arq. Maria Mercedes Cifuentes Quiñones

PREMIOS OTORGADOS

2do PUESTO

3er PUESTO

4o PUESTO

Grupo Verde

Arq. Martha C. Fajardo

Arq. Fernando Alberto Cortes Larreamendy

Arq. Carlos Alberto Gómez

Aprobó

Arq. Paola Puche Bravo

SOCIEDAD COLOMBIANA DE ARQUITECTOS BOGOTÁ D.C. Y CUNDINAMARCA

CONCURSO

ARQUITECTÓNICO Y DE MÉRITOS ESQUEMA BÁSICO

PLAN MAESTRO PARQUE

EMBALSE SAN RAFAEL

Aprobó
Elaboró Arq. Maria Mercedes Cifuentes Quiñones
Arq. Paola Puche Bravo

SOCIEDAD COLOMBIANA DE ARQUITECTOS BOGOTÁ D.C. Y CUNDINAMARCA

NOMBRE DEL CONCURSO:

CONCURSO DE ARQUITECTURA NUEVA SEDE IMPRENTA NACIONAL DE COLOMBIA

AÑO

M.V. ARQUITECTOS

GANADOR:

Arq. JAVIER VERA LONDOÑO 1996

No. Contrato SCA BC - EP

ENTIDAD PROMOTORA IMPRENTA NACIONAL DE COLOMBIA

FECHA DE APERTURA 17 DE OCTUBRE DE 1996

FECHA DE PROCLAMACIÓN 20 DE DICIEMBRE DE 1996

053-1996

OBJETO DEL CONCURSO

Escoger un anteproyecto arquitectónico cuyo autor, mediante contrato de consultoría con la Imprenta Nacional de Colombia, elabore el proyecto arquitectónico, desarrolle los estudios técnicos completos y ejerza la supervisión arquitectónica para la construcción de la nueva sede de la Imprenta Nacional de Colombia, en Santafé de Bogotá D.C.

COORDINADOR DE LA SCA BC Arq. Konrad Brunner Von Lehenstein

LOCALIZACIÓN Bogotá D.C.

UBICACIÓN Carrera 6 N° 24-09, Localidad de Teusaquillo ÁREA INTERVENCIÓN 19.027 m²

N° DE PROCESO SECOP -

COORDINADOR ENTIDAD PROMOTORA Arq. Mauricio Achury Montalvo

ASESORES TEMÁTICOS -

ASESOR JURÍDICO SCA BC Dr. Guillermo Vargas Ayala

ASESOR JURÍDICO E P

JURADOS

Arq. Octavio Moreno Amaya

PREMIOS OTORGADOS

2do PUESTO

Codintec Ltda.

Arq. Germán Castellanos

Arq. Enrique Silva Gil Nagui Sabet y Asociados

Arq. Carlos Gabriel Campuzano Castello

Arq. Carlos Niño Murcia

Arq. Ricardo Leguizamo Romero

Elaboró Arq. Maria Mercedes Cifuentes Quiñones

3er PUESTO

4o PUESTO

5o PUESTO

Consorcio A.I.A. Convel

Arq. Cantalicio Pérez Zorro

Arq. Diego López Zorro

Aprobó

Arq. Paola Puche Bravo

SOCIEDAD COLOMBIANA DE ARQUITECTOS BOGOTÁ D.C. Y CUNDINAMARCA

CONCURSO DE ARQUITECTURA NUEVA SEDE IMPRENTA NACIONAL DE COLOMBIA

Aprobó
Elaboró Arq. Maria Mercedes Cifuentes Quiñones
Arq. Paola Puche Bravo

SOCIEDAD COLOMBIANA DE ARQUITECTOS BOGOTÁ D.C. Y CUNDINAMARCA

CONCURSO PÚBLICO DE ANTEPROYECTO

NOMBRE DEL CONCURSO:

AÑO

ARQUITECTÓNICO CENTRO DISTRITAL DE LA SALUD SEDE CENTRAL-LABORATORIO DE SALUD PÚBLICA-HEMOCENTROCENTRO REGULADOR DE URGENCIAS

1997

ENTIDAD PROMOTORA

GANADOR:

LONDOÑO Y MARTÍNEZ ARQUITECTOS

No. Contrato SCA BC - EP

SECRETARIA DISTRITAL DE SALUD DE BOGOTÁ D.C. FONDO FINANCIERO DISTRITAL DE SALUD

FECHA DE APERTURA 23 DE ABRIL DE 1997

FECHA DE PROCLAMACIÓN 18 DE JULIO DE 1997

232-1997

OBJETO DEL CONCURSO

El proyecto que se pretende desarrollar, objeto del presente Concurso Arquitectónico, alberga la Sede Administrativa de la Secretaría de Salud y las siguientes Entidades adscritas a ellas: Laboratorio Distrital de Salud Pública, Centro Regulador de Urgencias y Hemocentro. Si bien se trata de un conjunto arquitectónico, los concursantes deben preveer el funcionamiento autónomo de las mencionadas unidades, inclusive en sus accesos.

COORDINADOR DE LA SCA BC Arq. Christian Binkele Peluffo

LOCALIZACIÓN Bogotá D.C.

UBICACIÓN Esquina Carrera 32 con Calle 13 ÁREA INTERVENCIÓN 12.500 m² aproximadamente

N° DE PROCESO SECOP

COORDINADOR ENTIDAD PROMOTORA

ASESORES TEMÁTICOS

ASESOR JURÍDICO SCA BC

ASESOR JURÍDICO E P

Arq. Arturo Londoño Domínguez

Dr. Guillermo Vargas Ayala

JURADOS PREMIOS OTORGADOS

Arq. Alfonso García Galvis

Arq. Carlos Guillermo Fischer Muñoz

Arq. Carlos Gabriel Campuzano Castello

Arq. Ernesto Jiménez Lozada

Arq. Willy Drews Arango

Elaboró Arq. Maria Mercedes Cifuentes Quiñones

2do PUESTO

3er PUESTO

4o PUESTO

5o PUESTO

Arq. Mauricio Rojas Vera

Arq. Ricardo La Rotta Caballero

Arq Jaime Cardenas Matallana

Arq. Leonardo Alvarez Yepes

Aprobó

Arq. Paola Puche Bravo

SOCIEDAD COLOMBIANA DE ARQUITECTOS BOGOTÁ D.C. Y CUNDINAMARCA

CONCURSO PÚBLICO DE ANTEPROYECTO

ARQUITECTÓNICO CENTRO DISTRITAL DE LA SALUD SEDE CENTRAL-LABORATORIO DE SALUD PÚBLICAHEMOCENTRO-CENTRO REGULADOR DE URGENCIAS

Aprobó
Elaboró Arq. Maria Mercedes Cifuentes Quiñones
Arq. Paola Puche Bravo

FICHA TÉCNICA DE CONCURSOS

SOCIEDAD COLOMBIANA DE ARQUITECTOS BOGOTÁ D.C. Y CUNDINAMARCA

CONCURSO PÚBLICO DE ANTEPROYECTO

NOMBRE DEL CONCURSO:

ARQUITECTÓNICO HOSPITAL DE SUBA II NIVEL

AÑO

ENTIDAD PROMOTORA

GANADOR:

Arq. WILLEM GOEBERTUS BEJARANO 1997

No. Contrato SCA BC - EP

SECRETARIA DISTRITAL DE SALUD DE SANTAFÉ DE BOGOTÁ D.C.

FONDO FINANCIERO DISTRITAL DE SALUD

FECHA DE APERTURA 8 DE AGOSTO DE 1997

FECHA DE PROCLAMACIÓN 14 DE OCTUBRE DE 1997

546-1997

OBJETO DEL CONCURSO

Se ha conseguido un terreno amplio en el cual se pueda proveer la construcción futura de algunos servicios complementarios al Hospital, Es importante que los participantes al concurso planteen el futuro desarrollo de dichos servicios. Es importante también, que ofrezca adicionalmente aporte al espacio publico y calidad urbana a la ciudad con arquitectura bella que cumpla con todos los requerimientos funcionales, técnico y técnico - económicos, para su optima operación.

COORDINADOR DE LA SCA BC Arq. María Constanza Núñez Trujillo

LOCALIZACIÓN Bogotá D.C.

UBICACIÓN Avenida de Las Mercedes entre carreras 103 y 106 o Avenida Ciudad de Cali ÁREA INTERVENCIÓN 1.241 m²

N° DE PROCESO SECOP -

COORDINADOR ENTIDAD PROMOTORA

ASESORES TEMÁTICOS

ASESOR JURÍDICO SCA BC

ASESOR JURÍDICO E P

Arq. Arturo Londoño Domínguez

Dr. Guillermo Vargas Ayala

JURADOS PREMIOS OTORGADOS

Arq. Camilo Espinosa de Francisco

Arq. Diego Suárez Betancourt

Arq. Juan Ignacio Muñoz Tamayo

Arq. Álvaro Archilla Cubillos

Arq. Carlos Martínez Berna

2do PUESTO

3er PUESTO

4o PUESTO

MENCIÓN

MENCIÓN

MENCIÓN

Aprobó

Duran Mondragón & Cia Ltda

Inver Hábitat Ltda

Arq. Jaime Cárdenas Matallana

Arq. Leonardo Álvarez Yépes

Arq. Mauricio Pinilla Acevedo

Arq. Javier Vera Londoño

Arq. Paola Puche

Elaboró Arq. Maria Mercedes Cifuentes Quiñones
Bravo

SOCIEDAD COLOMBIANA DE ARQUITECTOS BOGOTÁ D.C. Y CUNDINAMARCA

CONCURSO PÚBLICO DE ANTEPROYECTO ARQUITECTÓNICO

HOSPITAL DE SUBA II NIVEL

Aprobó
Elaboró Arq. Maria Mercedes Cifuentes Quiñones
Arq. Paola Puche Bravo

FICHA TÉCNICA DE CONCURSOS

SOCIEDAD COLOMBIANA DE ARQUITECTOS BOGOTÁ D.C. Y CUNDINAMARCA

NOMBRE DEL CONCURSO:

AÑO

CONCURSO DE ANTEPROYECTO ARQUITECTÓNICO NUEVA SEDE DE CÁMARA DE COMERCIO DE BOGOTÁ

1997

GANADOR:

U.T. A.I.A. S.A. CONVEL S.A. Arq. GABRIEL JAIME ARANGO VILLEGAS

No. Contrato SCA BC - EP

ENTIDAD PROMOTORA CÁMARA DE COMERCIO DE BOGOTÁ

FECHA DE APERTURA 11 DE AGOSTO DE 1997

FECHA DE PROCLAMACIÓN 22 DE NOVIEMBRE DE 1997

CPS-1997

OBJETO DEL CONCURSO

El objetivo del concurso es la selección de la mejor solución urbana y arquitectónica para la “Nueva Sede de la Cámara de Comercio de Bogotá”. Este es un concurso privado de convocatoria pública, a través del cual la Cámara de Comercio de Bogotá está depositando todas sus expectativas y aspiraciones para poder acomodar las instalaciones de su sede central en una nueva área de desarrollo de la ciudad y poder ofrecer así un mejor servicio a la ciudadanía y a sus afiliados y brindarle el mejor espacio de trabajo a sus empleados.

El proyecto ganador del concurso proveerá a la empresa un edificio insignia que lo convertirá en un punto de referencia obligado dentro del paisaje urbano de la ciudad y un modelo en el manejo del espacio público.

COORDINADOR DE LA SCA BC Arq. Philip Eugene Weiss Salas

LOCALIZACIÓN Bogotá D.C.

UBICACIÓN Avenida El Dorado N° 68D-35, Localidad de Fontibón ÁREA INTERVENCIÓN 5.703 m²

N° DE PROCESO SECOP N/A

COORDINADOR ENTIDAD PROMOTORA Arq. Alfonso Delgado Velez

ASESORES TEMÁTICOS

ASESOR JURÍDICO SCA BC

ASESOR JURÍDICO E P

Dr. Guillermo Vargas Ayala

JURADOS PREMIOS OTORGADOS

Arq. Arq. Enrique Triana Uribe

Arq. Hernando Vargas Caicedo

2do PUESTO

3er PUESTO

Aníbal López Trujillo y Cia S. en C. Adolfo González Márquez

U.T. Vieira Posada Hernán Vieira Posada

Arq. Carlos Gabriel Campuzano Castello Jaime Cardenas Matallana

Arq. Carlos Julio Calle Jaramillo

Arq. Carlos Alfonso Cubillos Camacho

Elaboró Arq. Maria Mercedes Cifuentes Quiñones

4o PUESTO

5o PUESTO

Jiménez & Cortes Boshell Ltda Ernesto Jiménez

Aprobó

Arq. Paola Puche Bravo

SOCIEDAD COLOMBIANA DE ARQUITECTOS BOGOTÁ D.C. Y CUNDINAMARCA

CONCURSO DE ANTEPROYECTO ARQUITECTÓNICO NUEVA SEDE DE CÁMARA DE COMERCIO DE BOGOTÁ

Aprobó
Elaboró Arq. Maria Mercedes Cifuentes Quiñones
Arq. Paola Puche Bravo

FICHA TÉCNICA DE CONCURSOS

SOCIEDAD COLOMBIANA DE ARQUITECTOS BOGOTÁ D.C. Y CUNDINAMARCA

NOMBRE DEL CONCURSO:

AÑO

SISTEMA DISTRITAL DE BIBLIOTECAS CONCURSO PÚBLICO PARA LA ELABORACIÓN DE ANTEPROYECTOS DE LAS SEDES TUNAL Y TINTAL

ENTIDAD PROMOTORA

GANADOR:

1998

SEDE EL TUNAL TECTUS LTDA. Arq. MANUEL ANTONIO GUERRERO

No. Contrato SCA BC - EP

ALCALDÍA MAYOR DE SANTA FE DE BOGOTÁ

SECRETARÍA DE EDUCACIÓN DEL DISTRITO

FECHA DE APERTURA 4 DE DICIEMBRE DE 1998

FECHA DE PROCLAMACIÓN 3 DE MARZO DE 1999

OBJETO DEL CONCURSO

552-1998

El Plan de Desarrollo Económico, Social y de Obras Públicas de Santa Fe de Bogotá D.C. “Por la Bogotá que queremos" del Alcalde Mayor de Santa Fe de Bogotá, esté orientado a la integración de una sociedad más justa y más igualitaria, que facilite a sus miembros desarrollar su potencial humano.En relación con el ámbito social, la estrategia busca básicamente ampliar la infraestructura y con el la cobertura de atención a la población más vulnerable en especial la infantil, en materia de salud, educación y bienestar social.

Así las Bibliotecas Públicas que busca construir el Distrito, son una respuesta fundamental a estos criterios, teniéndose como metas: 1) Aumentar la oferta de espacios culturales y mejorar las condiciones del espacio público 2) Mejorar las condiciones del espacio público y de equipamiento en los barrios, 3) Intensificar y mejorar el rendimiento de los estudiantes, 4) Elevar los indices de permanencia en el sistema educativo, 5) ampliar la vinculación de grupos vulnerables a proyectos de economía solidaria.

COORDINADOR DE LA SCA BC Arq. Luis Manuel Briceño Triana

LOCALIZACIÓN Bogotá D.C.

UBICACIÓN Parque Metropolitano el Tunal y Avenida Ciudad de Cali al sur occidente de la ciudad ÁREA INTERVENCIÓN 12.000 m²

N° DE PROCESO SECOP -

COORDINADOR ENTIDAD PROMOTORA

ASESORES TEMÁTICOS

ASESOR JURÍDICO SCA BC

ASESOR JURÍDICO E P

JURADOS

Arq. Rafael Maldonado Tapias

Arq. Carlos Guillermo Fischer Muñoz

Arq. Javier Vera Londoño

Arq. Silvia Arango Jaramillo

Arq. Patricia Torres Arzayús

Elaboró Arq. Maria Mercedes Cifuentes Quiñones

Arq. Hernán Vieira Posada

Dr. Guillermo Vargas Ayala

PREMIOS OTORGADOS

2do PUESTO

3er PUESTO

MENCIÓN

1o y 2do PUESTO

3er PUESTO

MENCIÓN

MENCIÓN

Aprobó

Sede El Tunal Gamboa-La Rotta-Ovalle

Sede El Tunal

Arq. María Lucia Barreto Ospina

Sede El Tunal

Arq. Luis Calderón y Arq. Enrique Gómez Grau

Sede El Tintal Desierto

Sede El Tintal

Arq. Luis Enrique Reyes Beltrán

Sede El Tintal

Padilla Trujillo & Cia Ltda

Sede El Tintal

Arq. Norberto Aristizabal, Arq. Ramiro Ospina

Arq. Harold Hugo González

Arq. Paola Puche Bravo

SOCIEDAD COLOMBIANA DE ARQUITECTOS BOGOTÁ D.C. Y CUNDINAMARCA

SISTEMA DISTRITAL DE BIBLIOTECAS CONCURSO PÚBLICO PARA LA ELABORACIÓN DE ANTEPROYECTOS DE LAS SEDES TUNAL Y TINTAL

Aprobó
Elaboró Arq. Maria Mercedes Cifuentes Quiñones
Arq. Paola Puche Bravo

FICHA TÉCNICA DE CONCURSOS Versión

SOCIEDAD COLOMBIANA DE ARQUITECTOS BOGOTÁ D.C. Y CUNDINAMARCA

NOMBRE DEL CONCURSO:

CONCURSO PÚBLICO DE CUATRO ANTEPROYECTOS ARQUITECTÓNICOS

DOS JARDINES SOCIALES Y DOS CENTROS AMAR

GANADOR:

Arq. WILLIAM BASTIDAS 1998

No. Contrato SCA BC - EP

AÑO 476-1998

ENTIDAD PROMOTORA DEPARTAMENTO ADMINISTRATIVO DE BIENESTAR SOCIAL ALCALDÍA MAYOR DE SANTA FE DE BOGOTÁ D.C.

FECHA DE APERTURA 7 DE NOVIEMBRE DE 1998

FECHA DE PROCLAMACIÓN 17 DE DICIEMBRE DE 1998

OBJETO DEL CONCURSO

Mediante el presente concurso serán seleccionados cuatro anteproyectos arquitectónicos correspondientes a dos Jardines Sociales y dos Centros Amar, los cuales deben concebirse como imagen corporativa del D.A.B.S, ya que son los primeros de una serie de edificios, que el D.A.B.S planea construir en los barrios menos favorecidos de Bogotá.

COORDINADOR DE LA SCA BC Arq. Iliana Wiesner Echeverry

LOCALIZACIÓN Bogotá D.C.

UBICACIÓN Lote Usaquen, Lote El Paraíso y Lote El Tesoro ÁREA INTERVENCIÓN Jardin Social 1.303 m² aproximadamente Centro Amar 1.862 m² aproximadamente

N° DE PROCESO SECOP -

COORDINADOR ENTIDAD PROMOTORA Arq. Sandra Patricia Caicedo

ASESORES TEMÁTICOS

ASESOR JURÍDICO SCA BC Dr. Guillermo Vargas Ayala

ASESOR JURÍDICO E P

JURADOS PREMIOS OTORGADOS

Arq. Germán Samper Gnecco

Arq. Cecilia Cifuentes de Caro

Arq. Rafael Vega Rosas

Arq. Fernando Forero Ramírez

Arq. Laura Fernanda Patiño Ramírez

Elaboró Arq. Maria Mercedes Cifuentes Quiñones

2do PUESTO

3er PUESTO

4o PUESTO

MENCIÓN

Consorcio Preciado y Arenas

Arq. Ricardo Arenas

Pinto y Gómez Arqs Ltda.

Arq. Luisa Amelia Pinto

Motta Rodriguez Arqs Asoc Ltda.

Arq. Mario Daniel Motta Beltrán

Arq. Jaime Cardenas Matallana

Aprobó

Arq. Paola Puche Bravo

SOCIEDAD COLOMBIANA DE ARQUITECTOS BOGOTÁ D.C. Y CUNDINAMARCA

CONCURSO PÚBLICO DE CUATRO ANTEPROYECTOS ARQUITECTÓNICOS

DOS JARDINES SOCIALES Y DOS CENTROS AMAR

Aprobó
Arq. Paola Puche Bravo
Elaboró Arq. Maria Mercedes Cifuentes Quiñones

FICHA TÉCNICA DE CONCURSOS

SOCIEDAD COLOMBIANA DE ARQUITECTOS BOGOTÁ D.C. Y CUNDINAMARCA

NOMBRE DEL CONCURSO:

AÑO

CONCURSO PÚBLICO DEL PROYECTO ARQUITECTÓNICO DEL PLAN MAESTRO DEL PARQUE EMBALSE DE TOMINÉ Y EL DISEÑO DE SU PRIMERA ETAPA

1998

GANADOR:

Versión

ARTURO LONDOÑO ÁNGEL D. Y CÍA. LTDA. Arq. FELIPE LONDOÑO ÁNGEL

No. Contrato SCA BC - EP

ENTIDAD PROMOTORA EMPRESA DE ENERGÍA DE BOGOTÁ - ESP

FECHA DE APERTURA 9 DE AGOSTO DE 1998

FECHA DE PROCLAMACIÓN 18 DE DICIEMBRE DE 1998

7939-1998

OBJETO DEL CONCURSO

El Parque debe presentar una variedad de actividades de fácil acceso para todos los grupos sociales y satisfacer la necesidad de recreación de todas las edades, previendo diseños de áreas exteriores que representen facilidad y bajos costos en su mantenimiento. Otro aspecto fundamental dentro de la concepción del proyecto es el desarrollo de programas que tiendan a la protección y recuperación de cuencas, revegetalización, mejoramiento de suelos y manejo paisajístico. Deberán definirse las acciones de manejo tendientes a la conservación, rehabilitación y enriquecimiento de las especies.

COORDINADOR DE LA SCA BC Arq. Mónica Gómez de Espinosa

LOCALIZACIÓN Nororiente de la Sabana

UBICACIÓN El sistema Tominé esta ubicado al nororiente de la Sabana, a 50 km de Bogotá ÁREA INTERVENCIÓN 50’360.000 m²

N° DE PROCESO SECOP -

COORDINADOR ENTIDAD PROMOTORA Arq. Daniela Mazzino

ASESORES TEMÁTICOS

ASESOR JURÍDICO SCA BC

ASESOR JURÍDICO E P

JURADOS

Arq. Lyda Caldas de Borrero

Arq. Beatriz Estrada de Nova

Arq. Fernando Montenegro

Arq. Eduardo Samper Martínez

Arq. Camilo Santamaría

Dr. Guillermo Vargas Ayala

PREMIOS OTORGADOS

2do PUESTO

3er PUESTO

4o PUESTO

MENCIÓN

Ecotono Ltda.

Arq. Roswell Garavito, Arq. Pablo Gamboa

Arq. Fernando Alberto Cortes Larreamendy

Arq. Daniel Bonilla Ramirez

K.B. Arqs Ltda. Essere Ltda. V.O.A. Associates Incorporated

Aprobó

Elaboró Arq. Maria Mercedes Cifuentes Quiñones
Arq. Paola Puche Bravo

SOCIEDAD COLOMBIANA DE ARQUITECTOS BOGOTÁ D.C. Y CUNDINAMARCA

CONCURSO PÚBLICO DEL PROYECTO ARQUITECTÓNICO DEL PLAN MAESTRO DEL PARQUE EMBALSE DE TOMINÉ Y EL DISEÑO DE SU PRIMERA ETAPA

Aprobó
Arq. Paola Puche Bravo
Elaboró Arq. Maria Mercedes Cifuentes Quiñones

SOCIEDAD COLOMBIANA DE ARQUITECTOS BOGOTÁ D.C. Y CUNDINAMARCA

CONCURSO PÚBLICO DE ANTEPROYECTO

NOMBRE DEL CONCURSO:

AÑO

ARQUITECTÓNICO CENTRO DE INFORMACIÓN TURÍSTICA Y CULTURAL PARA BOGOTÁ

GANADOR:

ARQUIGRAFICA LTDA. ARQ. MAURICIO BERNAL 1998

No. Contrato SCA BC - EP

ENTIDAD PROMOTORA INSTITUTO DISTRITAL DE CULTURA Y TURISMO DE SANTA FE DE BOGOTÁ

392-1998

FECHA DE APERTURA 3 DE AGOSTO DE 1998

FECHA DE PROCLAMACIÓN 18 DE DICIEMBRE DE 1998

OBJETO DEL CONCURSO

El proyecto a realizar será un centro en donde el intercambio cultural es el eje central de la organización del edificio, al igual que todo tipo de información a nivel turístico que se pueda dar al público en general.

COORDINADOR DE LA SCA BC Arq. Eduardo Samper Martínez

LOCALIZACIÓN Bogotá D.C.

UBICACIÓN Calle 26 con Carrera 7a ÁREA INTERVENCIÓN 1.500 m²

N° DE PROCESO SECOP

COORDINADOR ENTIDAD PROMOTORA

ASESORES TEMÁTICOS

ASESOR JURÍDICO SCA BC

ASESOR JURÍDICO E P

JURADOS

Arq. Santiago Caicedo Rico

Arq. Sergio Trujillo Jaramillo

Arq. Daniel Bonilla Ramírez

Arq. Sandra Consuelo Forero Ramírez

Arq. Fernando Correa Muñoz

Elaboró Arq. Maria Mercedes Cifuentes Quiñones

Arq. Celia María Saavedra

Dr. Guillermo Vargas Ayala

PREMIOS OTORGADOS

2do PUESTO

3er PUESTO

4o PUESTO

5o PUESTO

Arq. Rodrigo Tascón Barrera

Arq. Juan David Machado

Arq. Gloria Amparo Santamaría

Arq. Ramón Villamarin Leaño

Aprobó

Arq. Paola Puche Bravo

SOCIEDAD COLOMBIANA DE ARQUITECTOS BOGOTÁ D.C. Y CUNDINAMARCA

CONCURSO PÚBLICO DE ANTEPROYECTO ARQUITECTÓNICO CENTRO DE INFORMACIÓN TURÍSTICA Y CULTURAL PARA BOGOTÁ

Aprobó
Arq. Paola Puche Bravo
Elaboró Arq. Maria Mercedes Cifuentes Quiñones

FICHA TÉCNICA DE CONCURSOS

SOCIEDAD COLOMBIANA DE ARQUITECTOS BOGOTÁ D.C. Y CUNDINAMARCA

NOMBRE DEL CONCURSO:

AÑO

CONCURSO DE DISEÑO URBANÍSTICO Y ARQUITECTÓNICO DEL SISTEMA DE TRANSPORTE PUBLICO COLECTIVO DE BUSES DE TRANSMILENIO

ENTIDAD PROMOTORA

GANADOR:

1998

Versión 1.0

U.T. GUÍA ASOCIADOS LTDA Arq. FERNANDO LEÓN TORO

No. Contrato SCA BC - EP

0079-1998

FONDO DE EDUCACIÓN Y SEGURIDAD VIAL FONDATT DE LA SECRETARÍA DE TRÁNSITO Y TRANSPORTE

ALCALDÍA MAYOR DE SANTAFÉ DE BOGOTÁ D.C.

FECHA DE APERTURA 5 DE AGOSTO DE 1998

FECHA DE PROCLAMACIÓN 6 DE NOVIEMBRE DE 1998

El sistema "Transmilenio" se diseñó conceptualmente para ofrecerle a la ciudadanía un nuevo servicio de transporte público para el Nuevo Milenio. Por lo tanto, este sistema de transporte será un sistema novedoso, moderno que le proporcionará al usuario un transporte con una nueva tecnología, que facilite la prestación del servicio, que mejore la calidad de la prestación del mismo y que promueva así el uso del transporte colectivo en la ciudadanía.

OBJETO DEL CONCURSO

El sistema será operado técnicamente, desarrollará e impulsará el uso de tecnologías modernas de cobro y de venta del servicio de transporte, puesto que separa la prestación del servicio de transporte (actividad del conducto propiamente dicha) del manejo de dinero dentro del vehículo.

COORDINADOR DE LA SCA BC Arq. Germán Castellanos Rodriguez

LOCALIZACIÓN Bogotá D.C.

UBICACIÓN Inicialmente: Eje Troncal Autopista Norte: desde Calle 170 a Calle 80 y Avenida Caracas: desde Calle 80 a sector Molinos Sur ÁREA INTERVENCIÓN Molinos sur a Calle 80 y Auto Norte a calle 170 aprox 26 Km. Terminales en lotes aprox 2,5 Ha.; área construida 500 m²

N° DE PROCESO SECOP -

COORDINADOR ENTIDAD PROMOTORA Arq. Alvaro Sandoval Reyes

ASESORES TEMÁTICOS

ASESOR JURÍDICO SCA BC

ASESOR JURÍDICO E P

JURADOS

Arq. Pedro Alberto Mejia Londoño

Arq. Clemencia Escallón Gatner

Arq. Claudia Carrizosa Ricaurte

Arq. Ana María Valenzuela

Arq. Gabriel Nagy Patiño

Dr. Guillermo Vargas Ayala

PREMIOS OTORGADOS

2do PUESTO

3er PUESTO

4o PUESTO

Aprobó

Arias Serna y Saravia Arquitectos-Ingenieros

Arq. Luis Fernando Serna

U.T. Arqs. Juan Guillermo Cleves y Christian Binkele

Civilia Ltda. Ingenieros Civiles

Elaboró Arq. Maria Mercedes Cifuentes Quiñones
Arq. Paola Puche Bravo

SOCIEDAD COLOMBIANA DE ARQUITECTOS BOGOTÁ D.C. Y CUNDINAMARCA

CONCURSO DE DISEÑO URBANÍSTICO Y ARQUITECTÓNICO DEL SISTEMA DE TRANSPORTE PUBLICO COLECTIVO DE BUSES DE TRANSMILENIO

Aprobó
Arq. Paola Puche Bravo
Elaboró Arq. Maria Mercedes Cifuentes Quiñones

FICHA TÉCNICA DE CONCURSOS Versión

SOCIEDAD COLOMBIANA DE ARQUITECTOS BOGOTÁ D.C. Y CUNDINAMARCA

NOMBRE DEL CONCURSO:

AÑO

CONCURSO DE ARQUITECTURA EN LA MODALIDAD DE IDEAS PARA LA ELABORACIÓN DEL PROYECTO

ARQUITECTÓNICO Y DISEÑO PAISAJÍSTICO

DEL PARQUE TERCER MILENIO EN SANTAFÉ DE BOGOTÁ

1999

GANADOR:

Arq. JUAN GUILLERMO PEREIRA MÉNDEZ

No. Contrato SCA BC - EP

ENTIDAD PROMOTORA INSTITUTO DE DESARROLLO URBANO - IDU, RENOVACIÓN URBANA Y ALCALDÍA MAYOR DE SANTA FE DE BOGOTÁ

FECHA DE APERTURA 21 DE SEPTIEMBRE DE 1999

FECHA DE PROCLAMACIÓN 30 DE NOVIEMBRE DE 1999

487-1999

OBJETO DEL CONCURSO

El concurso busca recibir ideas para un proyecto de enorme impacto social, cultural, emblemático y urbano que implante en el centro una actividad fuerte y atractiva capaz de llevar gentes de toda la ciudad y a donde todos los visitantes de la ciudad quieran ir. Un lugar que se convierta en símbolo de la capital del país en el siglo XXI y que por su impacto impulse y potencie la rehabilitación del sector y de toda la ciudad central. Bogotá requiere concretar proyectos urbanos que le permitan afrontar mejor el futuro: enormes cantidades de población, nuevos sistemas de comunicación, economía globalizada y competitividad, una movilidad eficiente, accesibilidad fluida y un mejor ambiente, lo mismo que los requerimientos masivos de recreación y servicios.

COORDINADOR DE LA SCA BC Arq. Carlos Niño Murcia

LOCALIZACIÓN Bogotá D.C.

UBICACIÓN Carrera 10ª y Avenida Caracas y calles 6ª y 10ª ÁREA INTERVENCIÓN 20 Ha. Aproximadamente

N° DE PROCESO SECOP

COORDINADOR ENTIDAD PROMOTORA Arq. Juan Carlos Bolaños

ASESORES TEMÁTICOS

ASESOR JURÍDICO SCA BC

ASESOR JURÍDICO E P

Dr. Guillermo Vargas Ayala

JURADOS PREMIOS OTORGADOS

Arq. Willy Drews Arango

Arq. Giorgio Lombardi

Arq. Fernando Jimenez Mantilla

Arq. Claudia Carrizosa Ricaurte

Arq. Lorenzo Castro Jaramillo

2do PUESTO

3er PUESTO

Aprobó

Arq. Fernando Alberto Cortes Larreamendy

Arq. Giancarlo Mazzanti

Elaboró Arq. Maria Mercedes Cifuentes Quiñones
Arq. Paola Puche Bravo

SOCIEDAD COLOMBIANA DE ARQUITECTOS BOGOTÁ D.C. Y CUNDINAMARCA

CONCURSO DE ARQUITECTURA EN LA MODALIDAD DE IDEAS PARA LA ELABORACIÓN DEL PROYECTO

ARQUITECTÓNICO Y DISEÑO

PAISAJÍSTICO DEL PARQUE TERCER MILENIO EN SANTAFÉ DE BOGOTÁ

Aprobó
Arq. Paola Puche Bravo
Elaboró Arq. Maria Mercedes Cifuentes Quiñones

SOCIEDAD COLOMBIANA DE ARQUITECTOS BOGOTÁ D.C. Y CUNDINAMARCA

NOMBRE DEL CONCURSO:

AÑO

CONCURSO NACIONAL DE ANTEPROYECTO ARQUITECTÓNICO PARA LA INTERVENCIÓN DE LAS TERRAZAS DEL PALACIO DE SAN FRANCISCO

GANADOR:

U.T. CAICEDO Y GÓMEZ ARQS LTDA. JUAN FERNANDO FORERO ARQS.

No. Contrato SCA BC - EP 2000

692-98

ENTIDAD PROMOTORA

FECHA DE APERTURA

FECHA DE PROCLAMACIÓN

OBJETO DEL CONCURSO

GOBERNACIÓN DE CUNDINAMARCA

18 DE ENERO DE 2000

30 DE MARZO DE 2000

La implementación de las Terrazas del Palacio de San Francisco permitirá intervenir el Monumento Nacional de manera adecuada, con un proyecto de arquitectura contemporánea, que se adapte a las necesidades actuales y futuras, respetuoso de los valores históricos y arquitectónicos del Monumento Nacional.

El concurso pretende rescatar y valorar el espacio de la terraza para su disfrute cotidiano, brindándole un uso que garantice la afluencia de público y que responda a la singularidad del lugar, que tiene unas condiciones del paisaje y de entorno destacables, que le imprimen una identidad muy definida.

El objeto del concurso deberá desarrollarse teniendo en cuenta tres áreas o sectores definidos por características propias a saber:

1) La terraza jardín

2) Área nueva

3) Recuperación de estructuras existentes.

COORDINADOR DE LA SCA BC Arq. Enrique Silva Gil

LOCALIZACIÓN UBICACIÓN

Bogota D.C. Avenida Jiménez con Carrera 7ª 2.469 m² ÁREA INTERVENCIÓN

N° DE PROCESO SECOP -

COORDINADOR ENTIDAD PROMOTORA

ASESORES TEMÁTICOS

ASESOR JURÍDICO SCA BC

ASESOR JURÍDICO E P

JURADOS

Arq. Julian Guerrero Borrero

Arq. Hernando Vargas Caicedo

Arq. Germán Suarez Betancourt

Arq. Claudia Carrizosa Ricaurte

Arq. Jacques Mosseri Hane

Arq. Maria Mercedes Cifuentes Quiñones

Arq. Rafael Guzmán Pulido

Dr. Guillermo Vargas Ayala

PREMIOS OTORGADOS

2do PUESTO

3er PUESTO

4o PUESTO

Arq. Rodrigo Velasco

Tectus Ltda.

Arq. Manuel Antonio Guerrero

Arq. Juan García Wernher

Aprobó

Arq. Paola Puche Bravo

Elaboró

SOCIEDAD COLOMBIANA DE ARQUITECTOS BOGOTÁ D.C. Y CUNDINAMARCA

CONCURSO NACIONAL DE ANTEPROYECTO ARQUITECTÓNICO PARA LA INTERVENCIÓN DE LAS TERRAZAS DEL PALACIO DE SAN FRANCISCO

Aprobó
Elaboró Arq. Maria Mercedes Cifuentes Quiñones
Arq. Paola Puche Bravo

FICHA TÉCNICA DE CONCURSOS

SOCIEDAD COLOMBIANA DE ARQUITECTOS BOGOTÁ D.C. Y CUNDINAMARCA

NOMBRE DEL CONCURSO:

AÑO

CONCURSO PÚBLICO PARA LA ELABORACIÓN DEL ANTEPROYECTO ARQUITECTÓNICO DEL ARCHIVO CENTRAL DE LA SECRETARÍA DE HACIENDA DE SANTAFÉ DE BOGOTÁ DISTRITO CAPITAL

GANADOR:

Versión

Arq. FELIPE ANTONIO ROLLANO ESPINOSA

2000 No. Contrato SCA BC - EP

ENTIDAD PROMOTORA SECRETARÍA DE HACIENDA

FECHA DE APERTURA 15 DE JUNIO DE 2000

FECHA DE PROCLAMACIÓN 4 DE AGOSTO DE 2000

076-2000

OBJETO DEL CONCURSO

La Secretaría de Hacienda se ha propuesto diseñar y construir una edificación que albergue su Archivo Central, en un ambiente moderno y transparente que genere en quienes lo conozcan, lo visiten y lo consulten imágenes de cultura archivística, respeto por la memoria documental e iniciación y desarrollo de una cultura tributaria capaz de crear una relación reciproca de compromiso entre el distrito y el contribuyente convirtiéndose por lo tanto en un escenario ejemplar de la administración pública.

El proyecto cumplirá con su objetivo de conservación y consulta del acervo documental, garantizando simultáneamente a los ciudadanos su derecho de acceso a la información consagrado en la Constitución Política y generando una actitud positiva hacia el cumplimiento de las obligaciones tributarias.

COORDINADOR DE LA SCA BC Arq. Luis Manuel Briceño Triana

LOCALIZACIÓN Bogota D.C.

UBICACIÓN Carrera 32 N° 12-45

ÁREA INTERVENCIÓN 3.657 m²

N° DE PROCESO SECOP

COORDINADOR ENTIDAD PROMOTORA Arq. Mauricio Valbuena León

ASESORES TEMÁTICOS

ASESOR JURÍDICO SCA BC

ASESOR JURÍDICO E P

JURADOS

Arq. Juan Guillermo Cleves Infante

Arq. Eduardo Angulo Florez

Arq. Luis Fernando Mecha Ochoa

Arq. Patricia Torres Navarro

Arq. Fernando Penagos Zapata

Dr. Guillermo Vargas Ayala

PREMIOS OTORGADOS

2do PUESTO

3er PUESTO

Aprobó

R.E.C. Arquitectos

Arq. Oswaldo Escobar Gómez

U.T. A.I.A. S.A. & Convel S.A.

Arq. Gabriel Jaime Arango

Elaboró Arq. Maria Mercedes Cifuentes Quiñones
Arq. Paola Puche Bravo

SOCIEDAD COLOMBIANA DE ARQUITECTOS BOGOTÁ D.C. Y CUNDINAMARCA

CONCURSO PÚBLICO PARA LA ELABORACIÓN DEL ANTEPROYECTO ARQUITECTÓNICO DEL ARCHIVO

CENTRAL DE LA SECRETARÍA DE HACIENDA DE SANTAFÉ DE BOGOTÁ

DISTRITO CAPITAL

Aprobó
Arq. Paola Puche Bravo
Elaboró Arq. Maria Mercedes Cifuentes Quiñones

SOCIEDAD COLOMBIANA DE ARQUITECTOS BOGOTÁ D.C. Y CUNDINAMARCA

NOMBRE DEL CONCURSO:

AÑO

CONCURSO PÚBLICO NO. 001 DE 2000 PARA LA ELABORACIÓN DEL ANTEPROYECTO ARQUITECTÓNICO DEL ARCHIVO GENERAL DEL DISTRITO CAPITAL

GANADOR:

Arq. JUAN PABLO ORTIZ SUAREZ 2000

No. Contrato SCA BC - EP

ENTIDAD PROMOTORA SECRETARIA GENERAL ALCALDÍA MAYOR DE BOGOTÁ

FECHA DE APERTURA 30 DE JUNIO DE 2000

FECHA DE PROCLAMACIÓN 31 DE AGOSTO DE 2000

161-1997

OBJETO DEL CONCURSO

El Plan de Desarrollo Económico, Social y de Obras Públicas de Bogotá, D.C. "Por la Bogotá que queremos" del Alcalde Mayor de Bogotá, está orientado a la integración de una sociedad más justa y más igualitaria, que facilite a sus miembros desarrollar su potencial humano.

En respuesta a lo anterior y específicamente en relación con el acceso a la información que debe tener el ciudadano, el Proyecto Archivo General del Distrito Capital recoge las inquietudes en la materia y propone las directrices para que se mejore la producción, uso y disposición documental; se adecuen los espacios de archivo en los diferentes organismos del distrito; se cree el ente que fije las políticas en materia archivística; se construya y dote la sede del Archivo General del Distrito Capital, observando los requerimientos técnicos, administrativos y ambientales, y utilizando la tecnología apropiada para la preservación y custodia del patrimonio documental y para la eficiente prestación del servicio a su cargo.

COORDINADOR DE LA SCA BC Arq. Santiago Murcia García

LOCALIZACIÓN Bogota D.C.

UBICACIÓN Manzana No 7, Calle 4ª N° 5-10, del proyecto de renovación urbana de la Nueva Santa Fe ÁREA INTERVENCIÓN 24.950m²

N° DE PROCESO SECOP -

COORDINADOR ENTIDAD PROMOTORA Arq. Diego Luis Angulo Martinez

ASESORES TEMÁTICOS

ASESOR JURÍDICO SCA BC

ASESOR JURÍDICO E P

Dr. Guillermo Vargas Ayala

JURADOS PREMIOS OTORGADOS

Arq. Nicolás Rueda García Arq. Andrés Orrantia Herrera

Arq. Philip Eugene Weiss Salas

2do PUESTO

3er PUESTO

Iván Baquerizo & Cia Ltda

Arq. Sara María Giraldo Mejia -

Arq. Claudia Rodríguez Canal

Arq. Claudia Carrizosa Ricaurte

Aprobó

Elaboró Arq. Maria Mercedes Cifuentes Quiñones
Arq. Paola Puche Bravo

SOCIEDAD COLOMBIANA DE ARQUITECTOS BOGOTÁ D.C. Y CUNDINAMARCA

CONCURSO PÚBLICO NO. 001 DE 2000 PARA LA ELABORACIÓN DEL ANTEPROYECTO ARQUITECTÓNICO

DEL ARCHIVO GENERAL DEL DISTRITO CAPITAL

general del

Aprobó
Arq. Paola Puche Bravo
Elaboró Arq. Maria Mercedes Cifuentes Quiñones
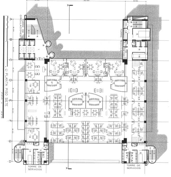
Implantación
edificio. Revista Escala, Número 196, Soportes Urbanos, 2004, página 34

SOCIEDAD COLOMBIANA DE ARQUITECTOS BOGOTÁ D.C. Y CUNDINAMARCA

NOMBRE DEL CONCURSO:

AÑO

CONCURSO PÚBLICO PARA LA SELECCIÓN DE CONSULTORES DE DISEÑO ARQUITECTÓNICO PARA LA INTERVENCIÓN DEL CENTRO DE ZIPAQUIRÁ

GANADOR:

Arq. LORENZO CASTRO JARAMILLO

2001 No. Contrato SCA BC - EP

ENTIDAD PROMOTORA ALCALDÍA DE ZIPAQUIRÁ

FECHA DE APERTURA 1 DE NOVIEMBRE DE 2001

FECHA DE PROCLAMACIÓN 20 DE DICIEMBRE DE 2001

144-2001

OBJETO DEL CONCURSO

LA ALCALDÍA DE ZIPAQUIRA llevará a cabo el Concurso Publico para La selección de Consultores de Diseño Arquitectónico para la intervención del Centro de Zipaquirá, el cual tiene como objetivo seleccionar una propuesta a nivel anteproyecto, para contratar la elaboración final del proyecto Arquitectónico, del diseño del espacio público y paisajístico definitivo de las áreas

COORDINADOR DE LA SCA BC Arq. Enrique Silva Gil

LOCALIZACIÓN Zipaquirá - Cundinamarca

UBICACIÓN La Plaza de los Comuneros, Parque zonal, Parque de la Estación, Vía 1, Vía 2 y Vía 3 ÁREA INTERVENCIÓN 54.696 m²

N° DE PROCESO SECOP

COORDINADOR ENTIDAD PROMOTORA Arq. Sofía Cintura Yépes

ASESORES TEMÁTICOS

ASESOR JURÍDICO SCA BC

ASESOR JURÍDICO E P

Dr. Guillermo Vargas Ayala

JURADOS PREMIOS OTORGADOS

Arq. Juan Guillermo Cleves Infante

Arq. Felipe Gonzalez - Pacheco Mejia

Arq. Camilo Salazar Ferro

Arq. Camilo Esguerra Solano

Arq. Alberto Corradine Angulo

Elaboró Arq. Maria Mercedes Cifuentes Quiñones

2do PUESTO

3er PUESTO

4o PUESTO

5o PUESTO

MENCIÓN

Arq. Fernando Allberto Cortes Larreamendy

Cuellar Serrano Gómez S.A.

Arq. Carlos Botero Iriarte

Arq. Manuel Carrizosa Ricaurte

Arq. Jacques Mosseri Hane

Arq. Ricardo La Rotta Caballero

Aprobó

Arq. Paola Puche Bravo

SOCIEDAD COLOMBIANA DE ARQUITECTOS BOGOTÁ D.C. Y CUNDINAMARCA

CONCURSO PÚBLICO PARA LA SELECCIÓN DE CONSULTORES DE DISEÑO ARQUITECTÓNICO PARA LA INTERVENCIÓN DEL CENTRO DE ZIPAQUIRÁ

FICHA TÉCNICA DE CONCURSOS
Aprobó
Arq. Paola Puche Bravo
Elaboró Arq. Maria Mercedes Cifuentes Quiñones

SOCIEDAD COLOMBIANA DE ARQUITECTOS BOGOTÁ D.C. Y CUNDINAMARCA

NOMBRE DEL CONCURSO:

AÑO

CONCURSO PÚBLICO PARA LA ELABORACIÓN DEL EDIFICIO DEL CENTRO SOCIAL DEL ADULTO MAYOR Y DEPENDENCIAS DE SALUD NIVEL 1 Y ADMINISTRATIVAS DE LA CAJA DE COMPENSACIÓN COMPENSAR

2002

ENTIDAD PROMOTORA COMPENSAR

FECHA DE APERTURA 18 DE OCTUBRE DE 2002

PRIMERA RONDA 8 DE DICIEMBRE DE 2002

GANADOR:

Arq. RICARDO LA ROTTA CABALLERO

No. Contrato SCA BC - EP

FECHA DE PROCLAMACIÓN 20 DE ENERO DE 2003

OBJETO DEL CONCURSO

El concurso se desarrolla en la PRIMERA RONDA como anteproyecto entendiéndose que el nivel de alcance con los proyectos debe permitir obtener un resultado que ilustre suficientemente sobre la respuesta urbanística general y la actitud frente a la ciudad, el aspecto funcional interno, el lenguaje arquitectónico propuesto y la filosofía estructural.

COORDINADOR DE LA SCA BC Arq. Carlos Hernando Carrillo Arango

LOCALIZACIÓN Bogota D.C.

UBICACIÓN Calle 94 con Autopista Norte, Localidad de Chapinero

ÁREA INTERVENCIÓN 16.000 m² N° DE PROCESO SECOP -

COORDINADOR ENTIDAD PROMOTORA Arq. Alberto Miani Uribe

ASESORES TEMÁTICOS

ASESOR JURÍDICO SCA BC

ASESOR JURÍDICO E P

JURADOS

Arq. Jacques Mosseri Hane

Arq. Sandra Consuelo Forero Ramírez

Arq. Gustavo Perry Torres

Arq. Willy Drews Arango

Arq. Germán Suarez Betancourt

Elaboró Arq. Maria Mercedes Cifuentes Quiñones

Dr. Guillermo Vargas Ayala

PREMIOS OTORGADOS

2do PUESTO

3er PUESTO

4o PUESTO

5o PUESTO

U.T. MB + PG

Arq. Luis Manuel Briceño Triana

U.T.MosqueraOsunaRubioCruz

Arq. Mauricio Mosquera

Arq. Juan Carlos Correa Trujillo

Arq. Juan Pablo Ortiz Suárez

Aprobó

Arq. Paola Puche Bravo

SOCIEDAD COLOMBIANA DE ARQUITECTOS BOGOTÁ D.C. Y CUNDINAMARCA

CONCURSO PÚBLICO PARA LA ELABORACIÓN DEL EDIFICIO DEL CENTRO SOCIAL DEL ADULTO MAYOR Y DEPENDENCIAS DE SALUD NIVEL 1 Y ADMINISTRATIVAS DE LA CAJA DE COMPENSACIÓN COMPENSAR

FICHA TÉCNICA DE CONCURSOS
Aprobó
Arq. Paola Puche Bravo
Elaboró Arq. Maria Mercedes Cifuentes Quiñones

FICHA TÉCNICA DE CONCURSOS

SOCIEDAD COLOMBIANA DE ARQUITECTOS BOGOTÁ D.C. Y CUNDINAMARCA

NOMBRE DEL CONCURSO:

AÑO

CONCURSO PRIVADO DE ANTEPROYECTO ARQUITECTÓNICO PARA EL DISEÑO DEL ACUARIO EN LA CIUDAD DE BOGOTÁ

GANADOR:

2002

MGP ARQUITECTURA Y URBANISMO Arq. FELIPE GONZÁLEZ-PACHECO Arq. JUAN IGNACIO MUÑOZ

No. Contrato SCA BC - EP

ENTIDAD PROMOTORA GRUPO PROMOTOR ACUARIO DE BOGOTÁ

FECHA DE APERTURA 28 DE NOVIEMBRE DE 2002

FECHA DE PROCLAMACIÓN 18 DE ENERO DE 2003

CPS 12 DE DICIEMBRE DE 2002

OBJETO DEL CONCURSO

Mediante el presente concurso será seleccionado un anteproyecto arquitectónico, cuyo autor suscribirá posteriormente un contrato con el GRUPO PROMOTOR ACUARIO DE BOGOTÁ, para elaborar el proyecto arquitectónico definitivo, ejercer la supervisión arquitectónica de la construcción del Acuario de Bogotá en el parque Salitre Mágico y la posibilidad de hacer una ampliación en la minuta del contrato en lo referente a estudios y diseños técnicos que se requieran para la ejecución del mismo.

COORDINADOR DE LA SCA BC Arq. Jorge Pardo Castro

LOCALIZACIÓN Bogota D.C.

UBICACIÓN Parque Salitre Mágico, Avenida 68 Calle 63, Localidad Barrios Unidos ÁREA INTERVENCIÓN 2.256 m²

N° DE PROCESO SECOP N/A

COORDINADOR ENTIDAD PROMOTORA

ASESORES TEMÁTICOS

ASESOR JURÍDICO SCA BC

ASESOR JURÍDICO E P

Dr. Guillermo Vargas Ayala

JURADOS PREMIOS OTORGADOS

Arq. Gonzalo Vanegas Camacho

Arq. Leonardo Álvarez Yépez

Arq, Gonzalo Vargas Ayala

2do PUESTO 3er PUESTO

Aprobó

Motta & Rodríguez Arquitectos Asociados

Arq. Mario Daniel Motta Beltrán

Willy Drews y Cia Ltda.

Arq. Willy Drews Arango

Elaboró Arq. Maria Mercedes Cifuentes Quiñones
Arq. Paola Puche Bravo

SOCIEDAD COLOMBIANA DE ARQUITECTOS BOGOTÁ D.C. Y CUNDINAMARCA

CONCURSO PRIVADO DE ANTEPROYECTO ARQUITECTÓNICO PARA EL DISEÑO DEL ACUARIO EN LA CIUDAD DE BOGOTÁ

Aprobó
Arq. Paola Puche Bravo
Elaboró Arq. Maria Mercedes Cifuentes Quiñones
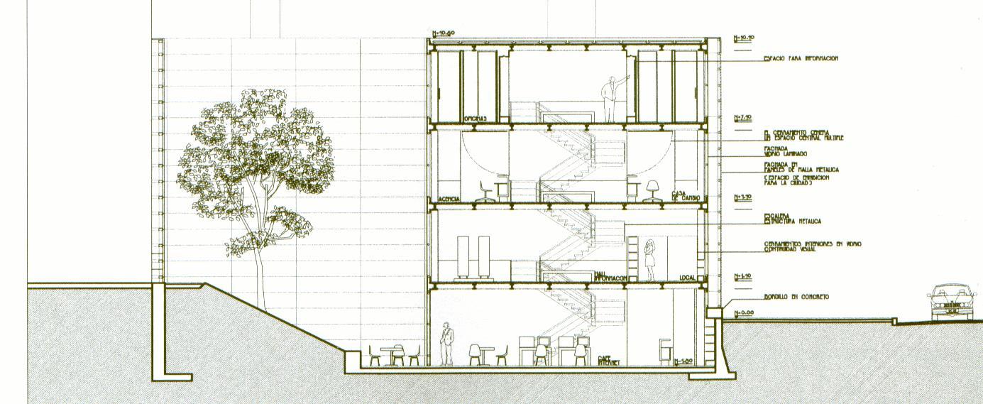
1.Perspectiva implantación edificio, 2. Vista edificio, 3. Perspectiva general, 4. Vista edificio, 5. Perspectiva de acceso Revista Escala, Número 196, Soportes Urbanos, 2004, página 71

FICHA TÉCNICA DE CONCURSOS

SOCIEDAD COLOMBIANA DE ARQUITECTOS BOGOTÁ D.C. Y CUNDINAMARCA

NOMBRE DEL CONCURSO:

AÑO

CONCURSO PÚBLICO PARA LA ELABORACIÓN DEL ANTEPROYECTO ARQUITECTÓNICO DEL COMPLEJO ACUÁTICO SIMÓN BOLÍVAR DE BOGOTÁ

GANADOR:

2003

Versión 1.0

ARIAS SERNA Y SARAVIA S.A. Arq. ÁLVARO JOSÉ ARIAS C.

No. Contrato SCA BC - EP

ENTIDAD PROMOTORA INSTITUTO DISTRITAL DE RECREACIÓN Y DEPORTE - IDRD

FECHA DE APERTURA 15 DE AGOSTO DE 2003

FECHA DE PROCLAMACIÓN 30 DE SEPTIEMBRE DE 2003

399-2003

OBJETO DEL CONCURSO

Teniendo en cuenta el compromiso adquirido con la realización de los XVII Juegos Deportivos Nacionales Bogotá y Cundinamarca 2004, a celebrarse del 27 de Noviembre al 8 de Diciembre de 2004, en las cuales Bogotá será sede de las justas deportivas relacionadas con la natación y todas sus disciplinas; que actualmente no existe en el Distrito un equipamiento acuático reglamentario adecuado y auto sostenible económica y socialmente, que permita desarrollar competiciones para los principales deportes acuáticos, como la natación, los saltos de trampolín, el nado sincronizado, clavados, etc.; que es preciso constituir un centro para el desarrollo deportivo olímpico, el esparcimiento y la recreación con un carácter aparte de competitivo, recreativo, que sea frecuentado por un gran número de usuarios, permitiendo el acercamiento entre lo oficial y lo popular, reuniendo todas las condiciones técnicas y estéticas y que se constituya en un aporte urbano y arquitectónico para la ciudad.

COORDINADOR DE LA SCA BC Arq. Luis Manuel Briceño Triana

LOCALIZACIÓN Bogota D.C.

UBICACIÓN Sector Los Novios-Palacio de los Deportes, parte integral del Parque Metropolitano Simón Bolivar, Calle 63 ÁREA INTERVENCIÓN 8.866 m²

N° DE PROCESO SECOP

COORDINADOR ENTIDAD PROMOTORA

ASESORES TEMÁTICOS

ASESOR JURÍDICO SCA BC

ASESOR JURÍDICO E P

Arq. Olga Lucia Silva Gutierrez

Dr. Guillermo Vargas Ayala

JURADOS PREMIOS OTORGADOS

Arq. Willy Drews Arango

Arq. Juan Carlos Rojas Iragorri

Arq. Leonardo Alvarez Yepes

Arq. Alejandro Ocampo Mora

Arq. Olga Lucia Silva Gutierrez

2do PUESTO

3er PUESTO

Aprobó

Elaboró Arq. Maria Mercedes Cifuentes Quiñones
Arq. Paola Puche Bravo

SOCIEDAD COLOMBIANA DE ARQUITECTOS BOGOTÁ D.C. Y CUNDINAMARCA

CONCURSO PÚBLICO PARA LA ELABORACIÓN DEL ANTEPROYECTO ARQUITECTÓNICO DEL COMPLEJO ACUÁTICO SIMÓN BOLÍVAR DE BOGOTÁ

Aprobó
Arq. Paola Puche Bravo
Elaboró Arq. Maria Mercedes Cifuentes Quiñones

FICHA TÉCNICA DE CONCURSOS

SOCIEDAD COLOMBIANA DE ARQUITECTOS BOGOTÁ D.C. Y CUNDINAMARCA

CONCURSO PÚBLICO PARA LA SELECCIÓN DE CONSULTORES DE DISEÑO

NOMBRE DEL CONCURSO:

AÑO

ARQUITECTÓNICO PARA LA SEDE

CAMPESTRE DE FUNDAMORSUBACHOQUE

GANADOR:

Arq. NÉSTOR MEDINA AGUILAR 2003

No. Contrato SCA BC - EP

ENTIDAD PROMOTORA FUNDACIÓN DAR AMOR – FUNDAMOR

FECHA DE APERTURA 14 DE OCTUBRE DE 2003

FECHA DE PROCLAMACIÓN 24 DE NOVIEMBRE DE 2003

CPS 25 DE AGOSTO DE 2003

OBJETO DEL CONCURSO

La Fundación Dar- Amor FUNDAMOR BOGOTÁ, es un hogar para bebés y niños que viven con el vih/sida que son huérfanos, abandonados o de bajos recursos. Entidad sin ánimo de lucro cuyo objetivo es brindar una atención integral de alta calidad donde cubrimos sus necesidades físicas, psicológicas, sociales, educativas y espirituales que les permite una vida digna y humana.

FUNDAMOR llevará a cabo el “Concurso Público para la Selección de Consultores de Diseño Arquitectónico para la Sede Campestre de Fundamor - Subachoque” el cual tiene como objetivo seleccionar una propuesta a nivel de anteproyecto, para contratar la elaboración final del proyecto arquitectónico, del diseño de la Sede Campestre de Fundamor.

COORDINADOR DE LA SCA BC Arq. Carlos Hernando Carrillo Arango - Arq. Enrique Silva Gil

LOCALIZACIÓN Subachoque - Cundinamarca

UBICACIÓN Subachoque ÁREA INTERVENCIÓN 1.428 m²

N° DE PROCESO SECOP N/A

COORDINADOR ENTIDAD PROMOTORA Arq. Jorge Cerón Santamaría

ASESORES TEMÁTICOS

ASESOR JURÍDICO SCA BC

ASESOR JURÍDICO E P

JURADOS

Dr. Guillermo Vargas Ayala

PREMIOS OTORGADOS

Arq. Emese Ijjasz de Murcia Arq. Santiago Murcia García

Arq. Alberto Miani Uribe

Arq. Mónica Gómez de Espinosa

2do PUESTO

3er PUESTO

Aprobó

Tectus Ltda Arq. Manuel Antonio Guerrero

Elaboró Arq. Maria Mercedes Cifuentes Quiñones
Arq. Paola Puche Bravo

SOCIEDAD COLOMBIANA DE ARQUITECTOS BOGOTÁ D.C. Y CUNDINAMARCA

CONCURSO PÚBLICO PARA LA SELECCIÓN DE CONSULTORES DE DISEÑO ARQUITECTÓNICO PARA LA SEDE CAMPESTRE DE FUNDAMORSUBACHOQUE

Aprobó
Arq. Paola Puche Bravo
Elaboró Arq. Maria Mercedes Cifuentes Quiñones

FICHA TÉCNICA DE CONCURSOS Versión

SOCIEDAD COLOMBIANA DE ARQUITECTOS BOGOTÁ D.C. Y CUNDINAMARCA

NOMBRE DEL CONCURSO:

AÑO

CONCURSO PÚBLICO PARA LA ELABORACIÓN DEL ANTEPROYECTO DEL PRIMER CENTRO DE RECICLAJE DE BOGOTÁ, D.C. SUBA/USAQUÉN

GANADOR:

Arq. JUAN PABLO ORTIZ SUAREZ

No. Contrato SCA BC - EP

ENTIDAD PROMOTORA UNIDAD EJECUTIVA DE SERVICIOS PÚBLICOS – UESP

FECHA DE APERTURA 14 DE NOVIEMBRE DE 2003

FECHA DE PROCLAMACIÓN 22 DE DICIEMBRE DE 2003

088-2003

OBJETO DEL CONCURSO

La Unidad tiene por objeto la planeación, coordinación, supervisión y control de la prestación de los servicios públicos de aseo; cementerios, hornos crematorios; plazas de mercado y alumbrado público en Bogotá Distrito Capital.

Un objetivo prioritario de la Administración Distrital, a través de la UESP, es la implementación del Sistema Operativo de Reciclaje para la ciudad -SOR-.

El objeto del presente concurso es seleccionar al arquitecto contratista que suscribirá el contrato de consultoría con la UNIDAD EJECUTIVA DE SERVICIOS PÚBLICOS -UESP- derivado de este concurso, para elaborar el proyecto arquitectónico definitivo del “Centro de Reciclaje SubaUsaquen".

COORDINADOR DE LA SCA BC Arq. Mario Mendoza Tolosa

LOCALIZACIÓN Bogota D.C.

UBICACIÓN Suba/Usaquen ÁREA INTERVENCIÓN 9.952 m²

N° DE PROCESO SECOP

COORDINADOR ENTIDAD PROMOTORA

ASESORES TEMÁTICOS

ASESOR JURÍDICO SCA BC

ASESOR JURÍDICO E P

Dr. Guillermo Vargas Ayala

JURADOS PREMIOS OTORGADOS

Arq. Leonardo Álvarez Yépez

Arq. Benjamín Herazo Cueto

Arq. Juan García Wernher

Arq. Martha Farfan Patiño

Arq.Clemencia Escallón Gertner

2do PUESTO

3er PUESTO

Aprobó

Arq. Fernando Perea Sabogal

Tectus Ltda

Arq. Manuel Antonio Guerrero

Elaboró Arq. Maria Mercedes Cifuentes Quiñones
Arq. Paola Puche Bravo

SOCIEDAD COLOMBIANA DE ARQUITECTOS BOGOTÁ D.C. Y CUNDINAMARCA

CONCURSO PÚBLICO PARA LA ELABORACIÓN DEL ANTEPROYECTO DEL PRIMER CENTRO DE RECICLAJE DE BOGOTÁ, D.C. SUBA/USAQUÉN

Aprobó
Arq. Paola Puche Bravo
Elaboró Arq. Maria Mercedes Cifuentes Quiñones

FICHA TÉCNICA DE CONCURSOS

SOCIEDAD COLOMBIANA DE ARQUITECTOS BOGOTÁ D.C. Y CUNDINAMARCA

NOMBRE DEL CONCURSO:

AÑO

CONCURSO PÚBLICO DE ANTEPROYECTO ARQUITECTÓNICO DE LOS MÓDULOS BÁSICOS PARA LOS PUNTOS DE ENCUENTRO EN BOGOTÁ D.C.

GANADOR:

Arq. MARÍA ALEXANDRA SINISTERRA CASTRO 2004

No. Contrato SCA BC - EP

ENTIDAD PROMOTORA INSTITUTO DE DESARROLLO URBANO IDU

FECHA DE APERTURA 11 DE OCTUBRE DE 2004

FECHA DE PROCLAMACIÓN 15 DE DICIEMBRE DE 2004

023-2004

OBJETO DEL CONCURSO

El objeto de este concurso es seleccionar a los arquitectos para que desarrollen el diseño urbano, arquitectónico y técnico de los equipamientos y demás elementos constitutivos de los Puntos de Encuentro a partir de un sistema modular, así como el diseño de cinco espacios urbanos en Bogota D.C., la implantación en los mismos de los equipamientos del Punto de Encuentro y los trámites y permisos necesarios para su construcción.

COORDINADOR DE LA SCA BC Arq. Enrique Silva Gil

LOCALIZACIÓN Bogota D.C.

UBICACIÓN Enlaces intermodales en espacios libres del sistema y la Red de Ciclorutas ÁREA INTERVENCIÓN 113,50 m²

N° DE PROCESO SECOP -

COORDINADOR ENTIDAD PROMOTORA Arq. María Victoria Villamil

ASESORES TEMÁTICOS

ASESOR JURÍDICO SCA BC

ASESOR JURÍDICO E P

Dr. Guillermo Vargas Ayala

JURADOS PREMIOS OTORGADOS

Arq. Harry Child Williamson

Arq. Santiago Murcia García

Arq. Pablo Gamboa Samper

Arq. Andres Calderon Madero

Arq. Claudia Carrizosa Ricaurte

2do PUESTO

3er PUESTO

Aprobó

Arq. Luis Humberto Duque Gómez

U.T. Ricardo Cruz Mantilla-Juan Camilo Santamaría

Elaboró Arq. Maria Mercedes Cifuentes Quiñones
Arq. Paola Puche Bravo

SOCIEDAD COLOMBIANA DE ARQUITECTOS BOGOTÁ D.C. Y CUNDINAMARCA

CONCURSO PÚBLICO DE ANTEPROYECTO ARQUITECTÓNICO DE LOS MÓDULOS BÁSICOS PARA LOS PUNTOS DE ENCUENTRO EN BOGOTÁ D.C.

Aprobó
Arq. Paola Puche Bravo
Elaboró Arq. Maria Mercedes Cifuentes Quiñones

FICHA TÉCNICA DE CONCURSOS Versión

SOCIEDAD COLOMBIANA DE ARQUITECTOS BOGOTÁ D.C. Y CUNDINAMARCA

NOMBRE DEL CONCURSO:

CONCURSO PÚBLICO PARA EL MODELO DE SISTEMA DE DISEÑO PARA LAS INSTITUCIONES EDUCATIVAS DISTRITALES

GANADOR:

ÁLVARO RIVERA R. & ASOCIADOS LTDA. Arq. ÁLVARO RIVERA ROJAS

2004

No. Contrato SCA BC - EP

AÑO 133-2004

ENTIDAD PROMOTORA SECRETARIA DE EDUCACIÓN DE BOGOTÁ

FECHA DE APERTURA 22 DE OCTUBRE DE 2004

FECHA DE PROCLAMACIÓN 15 DE DICIEMBRE DE 2004

OBJETO DEL CONCURSO

El objeto del presente concurso es seleccionar modelos de anteproyectos arquitectónicos y urbanísticos para la construcción inicial de 18 colegios distritales en Bogotá, dentro de lo establecido por el Plan Sectorial de Educación.

COORDINADOR DE LA SCA BC Arq. Gonzalo Navarro Sandino - Arq. Ruth Domínguez Amorocho

LOCALIZACIÓN Bogota D.C.

UBICACIÓN Los proyectos serán implantados en las diferentes localidades de Bogotá D.C. ÁREA INTERVENCIÓN Modelo de Colegio 1: 7.199 m² - Modelo de Colegio 2: 5.196 m²

N° DE PROCESO SECOP -

COORDINADOR ENTIDAD PROMOTORA Arq. Oscar Vasquez Cuervo - Ing. Orlando Peña Rodríguez

ASESORES TEMÁTICOS

ASESOR JURÍDICO SCA BC Dr. Guillermo Vargas Ayala

ASESOR JURÍDICO E P

JURADOS PREMIOS OTORGADOS

Arq. Manuel Carrizosa Ricaurte

Arq. Ricardo Daza Caicedo

Arq. Pedro Juan Bright Samper

Arq. Carlos Alberto Benavides Suescún

2do PUESTO

3er PUESTO

4o PUESTO

5o PUESTO

Consorcio Arquitectura y Educación Urbana

Arq. Javier Vera Londoño

Motta Rodríguez Arqs Asoc Ltda.

Arq. Mario Daniel Motta Beltrán

Arq. Giancarlo Mazzanti

Arq. Katya Gonzalez Ripoll-

Elaboró Arq. Maria Mercedes Cifuentes Quiñones

Aprobó

Arq. Paola Puche Bravo

SOCIEDAD COLOMBIANA DE ARQUITECTOS BOGOTÁ D.C. Y CUNDINAMARCA

CONCURSO PÚBLICO PARA

EL MODELO DE SISTEMA DE DISEÑO PARA LAS

INSTITUCIONES

EDUCATIVAS DISTRITALES

Aprobó
Arq. Paola Puche Bravo
Elaboró Arq. Maria Mercedes Cifuentes Quiñones

FICHA TÉCNICA DE CONCURSOS

SOCIEDAD COLOMBIANA DE ARQUITECTOS BOGOTÁ D.C. Y CUNDINAMARCA

NOMBRE DEL CONCURSO:

AÑO

CONCURSO DE ANTEPROYECTO ARQUITECTÓNICO PARA EL COLISEO CUBIERTO DEL GIMNASIO DE LOS ANDES

GANADOR:

MOTTA RODRÍGUEZ ARQUITECTOS ASOCIADOS LTDA. Arq. MARIO DANIEL MOTTA BELTRÁN

No. Contrato SCA BC - EP

ENTIDAD PROMOTORA SOCIEDAD EDUCACIONAL ANDINA S.A.

FECHA DE APERTURA 27 DE JUNIO DE 2005

FECHA DE PROCLAMACIÓN 2 DE AGOSTO DE 2005

0105-2005

OBJETO DEL CONCURSO

El objeto del presente concurso es seleccionar al arquitecto contratista que suscribirá el contrato de consultoría con la Sociedad Educacional ANDINA S.A. para elaborar el diseño arquitectónico y la supervisión arquitectónica del coliseo cubierto del Gimnasio Los Andes.

COORDINADOR DE LA SCA BC Arq. Luis Manuel Briceño Triana

LOCALIZACIÓN Bogota D.C.

UBICACIÓN Km. 14 de la Autopista del Norte, Vía a Los Arrayanes en Bogotá, área libre en las canchas de básquetbol del colegio ÁREA INTERVENCIÓN 2.356 m²

N° DE PROCESO SECOP N/A

COORDINADOR ENTIDAD PROMOTORA

ASESORES TEMÁTICOS

ASESOR JURÍDICO SCA BC

ASESOR JURÍDICO E P

Dr. Guillermo Vargas Ayala

JURADOS PREMIOS OTORGADOS

Arq. Jaime Camacho Fajardo

Arq. Fernando Montenegro Lizarralde

Arq. Sergio Trujillo Jaramillo

2do PUESTO

3er PUESTO

Arq. Philip Weiss Salas

Arq. Santiago Murcia García

Aprobó

Arq. Paola Puche Bravo

Elaboró Arq. Maria Mercedes Cifuentes Quiñones

SOCIEDAD COLOMBIANA DE ARQUITECTOS BOGOTÁ D.C. Y CUNDINAMARCA

CONCURSO DE ANTEPROYECTO ARQUITECTÓNICO PARA EL COLISEO CUBIERTO DEL GIMNASIO DE LOS ANDES

Aprobó
Arq. Paola Puche Bravo
Elaboró Arq. Maria Mercedes Cifuentes Quiñones

FICHA TÉCNICA DE

SOCIEDAD COLOMBIANA DE ARQUITECTOS BOGOTÁ D.C. Y CUNDINAMARCA

NOMBRE DEL CONCURSO:

AÑO

CONCURSO PÚBLICO PARA LA SELECCIÓN DEL ANTEPROYECTO ARQUITECTÓNICO DE LA MANZANA LIÉVANO

ENTIDAD PROMOTORA

GANADOR:

TECTUS LTDA. Arq. MANUEL ANTONIO GUERRERO

No. Contrato SCA BC - EP

ALCALDÍA MAYOR DE BOGOTÁ

SECRETARÍA GENERAL

FECHA DE APERTURA 4 DE OCTUBRE DE 2005

FECHA DE PROCLAMACIÓN 15 DICIEMBRE DE 2005

2211100-82-2005

OBJETO DEL CONCURSO

Seleccionar una propuesta arquitectónica a nivel de anteproyecto para el desarrollo constructivo de la Manzana Liévano, proyecto que tiene como objetivo concentrar la actividad del Despacho del Alcalde Mayor de Bogotá, la Secretaría General y la Secretaría de Gobierno.

COORDINADOR DE LA SCA BC Arq. Enrique Silva Gil

LOCALIZACIÓN Bogota D.C.

UBICACIÓN Manzana ubicada entre las calles 10ª y 11 carreras 8ª y 9ª ÁREA INTERVENCIÓN 12.450 m²

N° DE PROCESO SECOP -

COORDINADOR ENTIDAD PROMOTORA

ASESORES TEMÁTICOS

ASESOR JURÍDICO SCA BC

ASESOR JURÍDICO E P

JURADOS

Arq. German Samper Gnecco

Arq. Rodolfo Ulloa Vergara

Arq. Willy Drews Arango

Arq. Gabriel Pardo García Peña

Arq. Leonor I. Gómez Hernández

Arq. Amparo Pérez Azuero

Dr. Guillermo Vargas Ayala

PREMIOS OTORGADOS

2do PUESTO

3er PUESTO

Aprobó

Consorcio O.M.A.

Arq. Mauricio Mosquera Rodríguez

Inversiones INCOL

Arq. Carlos E. Pacheco Montes

Elaboró Arq. Maria Mercedes Cifuentes Quiñones
Arq. Paola Puche Bravo

SOCIEDAD COLOMBIANA DE ARQUITECTOS BOGOTÁ D.C. Y CUNDINAMARCA

CONCURSO PÚBLICO PARA LA SELECCIÓN DEL ANTEPROYECTO ARQUITECTÓNICO DE LA MANZANA LIÉVANO

Aprobó
Arq. Paola Puche Bravo
Elaboró Arq. Maria Mercedes Cifuentes Quiñones

FICHA TÉCNICA DE CONCURSOS

SOCIEDAD COLOMBIANA DE ARQUITECTOS BOGOTÁ D.C. Y CUNDINAMARCA

NOMBRE DEL CONCURSO:

AÑO

CONCURSO DE ANTEPROYECTO ARQUITECTÓNICO PARA EL DISEÑO DEL CENTRO DEPORTIVO Y EMPRESARIAL CALLE 53

GANADOR:

VIVIENDAS PLANIFICADAS S.A. Arq. ANDRÉS ESCOBAR URIBE

No. Contrato SCA BC - EP

ENTIDAD PROMOTORA CAJA COLOMBIANA DE SUBSIDIO FAMILIAR

FECHA DE APERTURA 24 DE JULIO DE 2006

FECHA DE PROCLAMACIÓN 14 DE SEPTIEMBRE DE 2006

OBJETO DEL CONCURSO

El objeto del concurso es seleccionar el mejor anteproyecto para elaborar el diseño arquitectónico del Centro Deportivo y Empresarial calle 53, de propiedad de COLSUBSIDIO.

COORDINADOR DE LA SCA BC Arq. Ruth Estella Domínguez Amorocho

LOCALIZACIÓN Bogota D.C.

UBICACIÓN Carrera 30 N° 52 A - 77

ÁREA INTERVENCIÓN 23.876 m²

N° DE PROCESO SECOP N/A

COORDINADOR ENTIDAD PROMOTORA Arq. Cristina Neira de Fonseca

ASESORES TEMÁTICOS

ASESOR JURÍDICO SCA BC

ASESOR JURÍDICO E P

JURADOS

Arq. Juan Carlos Rojas Iragorri

Arq. José Daniel Lehoucq Angulo

Arq. Víctor Manuel Salazar Romero

Arq. Pedro Juan Jaramillo Carling

Dr. Guillermo Vargas Ayala

PREMIOS OTORGADOS

2do PUESTO

3er PUESTO

4o PUESTO

MENCIÓN

Arq. Carlos Arturo Buritacá

Arq. Daniel Bonilla Ramírez

Arq. William Páez Patiño

Ariporo Ltda.

Arq. Mauricio Pinilla Acevedo

Arq. Cristina Neira de Fonseca- -

Aprobó

Elaboró Arq. Maria Mercedes Cifuentes Quiñones
Arq. Paola Puche Bravo

SOCIEDAD COLOMBIANA DE ARQUITECTOS BOGOTÁ D.C. Y CUNDINAMARCA

CONCURSO DE ANTEPROYECTO ARQUITECTÓNICO PARA EL DISEÑO DEL CENTRO DEPORTIVO Y EMPRESARIAL CALLE 53

Aprobó
Arq. Paola Puche Bravo
Elaboró Arq. Maria Mercedes Cifuentes Quiñones

FICHA TÉCNICA DE CONCURSOS Versión

SOCIEDAD COLOMBIANA DE ARQUITECTOS BOGOTÁ D.C. Y CUNDINAMARCA

NOMBRE DEL CONCURSO:

CONCURSO PÚBLICO DE ANTEPROYECTOS URBANÍSTICOS, NORMATIVOS Y PAISAJÍSTICOS PARA EL PARQUE URBANO DEL MERCADO Y PUERTO DE GIRARDOT SOBRE EL RÍO MAGDALENA, DEPARTAMENTO DE CUNDINAMARCA

GANADOR:

U.T. ARQUITECTURA Y URBANISMO Arq. PATRICIA MOLINA FONSECA

2006

No. Contrato SCA BC - EP

AÑO 266-2005

ENTIDAD PROMOTORA GOBERNACIÓN DE CUNDINAMARCA - SECRETARÍA DE OBRAS PÚBLICAS

FECHA DE APERTURA 23 DE JULIO DE 2006

FECHA DE PROCLAMACIÓN 5 DE OCTUBRE DE 2006

OBJETO DEL CONCURSO

El objeto del concurso es seleccionar el mejor anteproyecto para la gobernación de Cundinamarca, suscriba con su autor el respectivo contrato de consultoría para elaborar los diseños urbanístico, normativo y paisajístico para el Parque Urbano del Mercado y Puerto de Girardot sobre el Río Magdalena, en sus centro fundacional, Departamento de Cundinamarca, que incluye intervención normativa e intervención para construcción.

COORDINADOR DE LA SCA BC Arq. Álvaro Suárez Zúñiga

LOCALIZACIÓN Girardot - Cundinamarca

UBICACIÓN Entre quebradas El Coyal al norte, Chócala al sur, alrededores Plaza la Constitución al occidente y limite sobre Río Magdalena ÁREA INTERVENCIÓN 219.343 m²

N° DE PROCESO SECOP -

COORDINADOR ENTIDAD PROMOTORA Arq. Rafael Guzmán

ASESORES TEMÁTICOS

ASESOR JURÍDICO SCA BC Dr. Guillermo Vargas Ayala

ASESOR JURÍDICO E P -

JURADOS PREMIOS OTORGADOS

Arq. Fernando Montenegro Lizarralde

Arq. Daniel Ochoa Romero

2do PUESTO

3er PUESTO

Arq. Carlos Iván Cardozo Isaza

Arq. Andrés E. Satizabal Villegas

Arq. Germán Suárez Betancourt -

Arq. Orlando Barragán Bergaño

Arq. Julio N. Pinedo

Aprobó

Elaboró Arq. Maria Mercedes Cifuentes Quiñones
Arq. Paola Puche Bravo

SOCIEDAD COLOMBIANA DE ARQUITECTOS BOGOTÁ D.C. Y CUNDINAMARCA

CONCURSO PÚBLICO DE ANTEPROYECTOS

URBANÍSTICOS, NORMATIVOS Y PAISAJÍSTICOS PARA EL PARQUE URBANO

DEL MERCADO Y PUERTO DE GIRARDOT

SOBRE EL RÍO MAGDALENA, DEPARTAMENTO DE CUNDINAMARCA

Aprobó
Arq. Paola Puche Bravo
Elaboró Arq. Maria Mercedes Cifuentes Quiñones

FICHA TÉCNICA DE CONCURSOS

SOCIEDAD COLOMBIANA DE ARQUITECTOS BOGOTÁ D.C. Y CUNDINAMARCA

CONCURSO PÚBLICO DE ANTEPROYECTOS ARQUITECTÓNICOS

NOMBRE DEL CONCURSO:

AÑO

PARA EL DISEÑO DE CUATRO JARDINES

SOCIALES Y DEL CONJUNTO CENTRO DE DESARROLLO Y JARDÍN SOCIAL LOS PINOS EN BOGOTÁ D.C.

2006

GANADOR:

Versión

POLANCO BERNAL ARQS LTDA Arq. ARCADIO POLANCO PIÑEROS

No. Contrato SCA BC - EP

ENTIDAD PROMOTORA DEPARTAMENTO ADMINISTRATIVO DE BIENESTAR SOCIAL DEL DISTRITO FONADE

2061162-2006

FECHA DE APERTURA 6 DE SEPTIEMBRE DE 2006

FECHA DE PROCLAMACIÓN 1 DE NOVIEMBRE DE 2006

OBJETO DEL CONCURSO

El objeto del concurso es seleccionar los mejores anteproyectos para que Fonade suscriba con el arquitecto o los arquitectos autores, los respectivos contratos de consultoría, para elaborar los diseños arquitectónicos, la coordinación de estudios técnicos, la supervisión arquitectónica, el estudio de suelos, el cálculo estructural, el diseño hidráulico, sanitario y de gas, el diseño eléctrico y de la red de voz y datos y el presupuesto para cuatro jardines sociales y para el conjunto centro de desarrollo comunitario y jardín social Los Pinos en Bogotá D.C.

COORDINADOR DE LA SCA BC Arq. Luis Manuel Briceño Triana

LOCALIZACIÓN Bogota D.C.

UBICACIÓN Uval puerta al llano - Usme, San Eugenio - Bosa, El Porvenir - Bosa, Tibabuyes - Suba, los Urapanes del Sur - Ciudad Bolívar ÁREA INTERVENCIÓN Jardín: 1.154,75 m², Área Recreativa: 840 m² - Centro de Desarrollo Comunitario: 3.932 m², Área exterior: 1.040 m²

N° DE PROCESO SECOP -

COORDINADOR ENTIDAD PROMOTORA Arq. Yolanda Rodríguez

ASESORES TEMÁTICOS

ASESOR JURÍDICO SCA BC

ASESOR JURÍDICO E P

Dr. Guillermo Vargas Ayala

JURADOS PREMIOS OTORGADOS

Arq. Juan Pablo Ortiz Suárez

Arq. Willy Drews Arango

Arq. Aída Ileana Molina Rojas

Arq. Efraín Amaya Chitiva

2do PUESTO

3er PUESTO

4o PUESTO

Giancarlo Mazzanti & Arqs. Arq. Giancarlo Mazzanti

Arq. Néstor Medina Aguilar

Ioannis-Aris Alexious Arqs.

Arq. Ionnis -Aris Alexious

Aprobó

Elaboró Arq. Maria Mercedes Cifuentes Quiñones
Arq. Paola Puche Bravo

SOCIEDAD COLOMBIANA DE ARQUITECTOS BOGOTÁ D.C. Y CUNDINAMARCA

CONCURSO PÚBLICO DE ANTEPROYECTOS ARQUITECTÓNICOS PARA EL DISEÑO DE CUATRO JARDINES

SOCIALES Y DEL CONJUNTO CENTRO DE DESARROLLO Y JARDÍN SOCIAL LOS PINOS EN BOGOTÁ D.C.

FICHA TÉCNICA DE CONCURSOS
Aprobó
Arq. Paola Puche Bravo
Elaboró Arq. Maria Mercedes Cifuentes Quiñones

FICHA TÉCNICA DE CONCURSOS Versión

SOCIEDAD COLOMBIANA DE ARQUITECTOS BOGOTÁ D.C. Y CUNDINAMARCA

NOMBRE DEL CONCURSO:

CONCURSO PÚBLICO DE ANTEPROYECTO DE DISEÑO URBANO Y PAISAJÍSTICO DEL NODO DE EQUIPAMIENTOS URBANOS Y DE LOS ANTEPROYECTOS ARQUITECTÓNICOS PARA LA SALA DE USO MÚLTIPLE Y LA BIBLIOTECA PÚBLICA MUNICIPAL DE CHÍA, CUNDINAMARCA

GANADOR:

Arq. ANDRÉS EDUARDO SATIZABAL VILLEGAS 2006

No. Contrato SCA BC - EP

AÑO 110-2006

ENTIDAD PROMOTORA ALCALDÍA MUNICIPAL DE CHÍA

FECHA DE APERTURA 4 DE SEPTIEMBRE DE 2006

FECHA DE PROCLAMACIÓN 7 DE NOVIEMBRE DE 2006

OBJETO DEL CONCURSO

Seleccionar la mejor propuesta para celebrar con su autor un contrato de consultoría para elaborar el diseño urbano y paisajístico del nodo de equipamientos urbanos y los proyectos arquitectónicos para la sala de uso múltiple y la biblioteca pública municipal de Chia, Cundinamarca.

COORDINADOR DE LA SCA BC Arq. Gonzalo Correal Ospina

LOCALIZACIÓN Chía - Cundinamarca

UBICACIÓN AvPradilla inters. con Anillo Vial hasta P Ospina; Cra 9 entre P Ospina y Cl 19; Cl 19 entre Cra 9 y Cra 5; Cra 5 entre Cl 19 y Av Pradilla. ÁREA INTERVENCIÓN Construida 3.000 m2 - Espacio Público 32.203 m2

N° DE PROCESO SECOP -

COORDINADOR ENTIDAD PROMOTORA Arq. Clara Luz Botello Arciniegas

ASESORES TEMÁTICOS

ASESOR JURÍDICO SCA BC Dr. Guillermo Vargas Ayala

ASESOR JURÍDICO E P -

JURADOS PREMIOS OTORGADOS

Arq. Fernando Jiménez Mantilla

Arq. Rodolfo Mestre Gutiérrez

2do PUESTO

3er PUESTO

Diseñadores Urbanos Ltda.

Arq. Felipe Van Cotthem Villa

U.T. Diana Wiesner - Quintero Ltda.

Arq. Diana Wiesner Ceballos

Arq. Germán Guerrero Díaz -

Arq. Luis Fernando Mojica Rivadeneira -

Arq. Alex Barahona Forero

Arq. Maria Mercedes Cifuentes Quiñones

Aprobó

Arq. Paola Puche Bravo

Elaboró

SOCIEDAD COLOMBIANA DE ARQUITECTOS BOGOTÁ D.C. Y CUNDINAMARCA

CONCURSO PÚBLICO DE ANTEPROYECTO DE DISEÑO URBANO Y PAISAJÍSTICO DEL NODO DE EQUIPAMIENTOS URBANOS Y DE LOS ANTEPROYECTOS ARQUITECTÓNICOS PARA LA SALA DE USO MÚLTIPLE Y LA BIBLIOTECA PÚBLICA MUNICIPAL DE CHÍA, CUNDINAMARCA

Aprobó
Arq. Paola Puche Bravo
Elaboró Arq. Maria Mercedes Cifuentes Quiñones

FICHA TÉCNICA DE CONCURSOS

SOCIEDAD COLOMBIANA DE ARQUITECTOS BOGOTÁ D.C. Y CUNDINAMARCA

CONCURSO DE ANTEPROYECTO

NOMBRE DEL CONCURSO:

AÑO

Versión

ARQUITECTÓNICO PARA EL DISEÑO DEL CENTRO DE CONVENCIONES Y EVENTOS

HOTEL PEÑALISA - MUNICIPIO DE RICAURTE VÍA MELGAR - GIRARDOT

COLSUBSIDIO

2006

GANADOR:

Arq. CARLOS ARTURO BURITICÁ

No. Contrato SCA BC - EP

ENTIDAD PROMOTORA CAJA COLOMBIANA DE SUBSIDIO FAMILIAR - COLSUBSIDIO

FECHA DE APERTURA 28 DE SEPTIEMBRE DE 2006

FECHA DE PROCLAMACIÓN 14 DE NOVIEMBRE DE 2006

PSP-00159-2006

OBJETO DEL CONCURSO

El objeto del concurso es seleccionar el mejor anteproyecto arquitectónico del Centro de Convenciones y Eventos Hotel Peñalisa - Municipio de Ricaurte - Vía Melgar - Girardot, de propiedad de Colsubsidio.

COORDINADOR DE LA SCA BC Arq. Ruth Estella Domínguez Amorocho

LOCALIZACIÓN Ricaurte - Cundinamarca

UBICACIÓN Eje turístico de Colsubsidio, localizado en el eje Melgar-Ricaurte-Girardot, a 120 km de Bogotá. ÁREA INTERVENCIÓN 9.083 m²

N° DE PROCESO SECOP

COORDINADOR ENTIDAD PROMOTORA Arq. Cristina Neira Fonseca

ASESORES TEMÁTICOS

ASESOR JURÍDICO SCA BC

ASESOR JURÍDICO E P

JURADOS

Arq. Manuel Antonio Guerrero Sandoval

Arq. Jorge Ramírez Fonseca

Arq. Felipe Gonzalez-Pacheco

Arq. Pedro Juan Jaramillo Carling

Dr. Guillermo Vargas Ayala

PREMIOS OTORGADOS

2do PUESTO

3er PUESTO

4o PUESTO

MENCIÓN

Daniel Bonilla Asociados

Arq. Daniel Bonilla Ramírez

Motta & Rodríguez Arqs

Arq. Mario Daniel Motta Beltrán

U.T Ramón Quevedo y Juan M López Arqs Asociados

Arq. Juan Felipe Uribe de Bedout

Arq. Cristina Neira Fonseca -

Elaboró Arq. Maria Mercedes Cifuentes Quiñones

Aprobó

Arq. Paola Puche Bravo

SOCIEDAD COLOMBIANA DE ARQUITECTOS BOGOTÁ D.C. Y CUNDINAMARCA

CONCURSO DE ANTEPROYECTO

ARQUITECTÓNICO PARA EL DISEÑO DEL CENTRO DE CONVENCIONES Y EVENTOS

HOTEL PEÑALISA - MUNICIPIO DE RICAURTE VÍA MELGAR - GIRARDOT COLSUBSIDIO

Aprobó
Arq. Paola Puche Bravo
Elaboró Arq. Maria Mercedes Cifuentes Quiñones

FICHA TÉCNICA DE CONCURSOS Versión

SOCIEDAD COLOMBIANA DE ARQUITECTOS BOGOTÁ D.C. Y CUNDINAMARCA

NOMBRE DEL CONCURSO:

AÑO

CONCURSO PÚBLICO DE IDEAS Y DE ANTEPROYECTO ARQUITECTÓNICO PARA EL DISEÑO URBANO DE LA PLAZA "LUIS CARLOS GALÁN" DEL MUNICIPIO DE COTA Y SU ÁREA DE INFLUENCIA

GANADOR:

2006

ARIPORO LTDA. Arq. FELIPE BERMÚDEZ DURANA

No. Contrato SCA BC - EP

ENTIDAD PROMOTORA ALCALDÍA MUNICIPAL DE COTA

FECHA DE APERTURA 27 DE NOVIEMBRE DE 2006

FECHA DE PROCLAMACIÓN 14 DE FEBRERO DE 2007

130-2006

OBJETO DEL CONCURSO

El objeto del concurso es seleccionar el mejor anteproyecto arquitectónico para el diseño de la plaza principal de Municipio de Cota. El proyecto debe constituirse en un marco de actividades múltiples, capaz de formar una imagen urbana y de generar sentido de pertenencia. Por ello, las acciones estarán complementadas con actividades recreativas, culturales y educativas coherentes con el carácter de Plaza y propias de la cotidianidad de Cota.

COORDINADOR DE LA SCA BC Arq. Gonzalo Correal Ospina

LOCALIZACIÓN Cota - Cundinamarca

UBICACIÓN Plaza Municipal de Cota y su área de influencia ÁREA INTERVENCIÓN 6.400 m²

N° DE PROCESO SECOP -

COORDINADOR ENTIDAD PROMOTORA Arq. José María Cifuentes

ASESORES TEMÁTICOS

ASESOR JURÍDICO SCA BC

ASESOR JURÍDICO E P

JURADOS

Arq. Felipe Gonzalez-Pacheco

Arq. German Ricardo Camacho

Dr. Guillermo Vargas Ayala

PREMIOS OTORGADOS

2do PUESTO

3er PUESTO

Arq. Sergio Trujillo Jaramillo

M & C Consultoria Diseños Ltda

Arq. Hector Marino Ruano Bustos

Arq. Mauricio Rojas Vera -

Arq. Carlos Niño Murcia

Arq. Ramon Gustavo Urquijo Castro

Aprobó

Arq. Paola Puche Bravo

Elaboró Arq. Maria Mercedes Cifuentes Quiñones

SOCIEDAD COLOMBIANA DE ARQUITECTOS BOGOTÁ D.C. Y CUNDINAMARCA

CONCURSO PÚBLICO DE IDEAS Y DE ANTEPROYECTO ARQUITECTÓNICO PARA EL DISEÑO URBANO DE LA PLAZA "LUIS CARLOS GALÁN" DEL MUNICIPIO DE COTA Y SU ÁREA DE INFLUENCIA

Aprobó
Arq. Paola Puche Bravo
Elaboró Arq. Maria Mercedes Cifuentes Quiñones

SOCIEDAD COLOMBIANA DE ARQUITECTOS BOGOTÁ D.C. Y CUNDINAMARCA

NOMBRE DEL CONCURSO:

AÑO

CONCURSO PÚBLICO PARA EN DISEÑO Y MONTAJE DEL PABELLÓN "BOGOTÁ CAPITAL MUNDIAL DEL LIBRO 2007" EN LA FERIA INTERNACIONAL DEL LIBRO DE BOGOTÁ

GANADOR:

2007

ENTIDAD PROMOTORA

DOS DISEÑO LTDA. Arq. EFRÉN ALBA SOTO

No. Contrato SCA BC - EP

SECRETARÍA DISTRITAL DE CULTURA, RECREACIÓN Y DEPORTE

SECRETARÍA DISTRITAL DE EDUCACIÓN

BIBLORED

FECHA DE APERTURA 26 DE FEBRERO DE 2007

FECHA DE PROCLAMACIÓN 20 DE MARZO DE 2007

CPS-000019-2006

OBJETO DEL CONCURSO

El objeto del concurso es seleccionar la mejor propuesta, para que las entidades estatales promotoras suscriban con el arquitecto o los arquitectos autores, el respectivo contrato de diseño arquitectónico y gráfico, y de montaje del pabellón" Bogota Capital Mundial Del Libro 2007" en la feria internacional del libro de Bogotá.

COORDINADOR DE LA SCA BC Arq. Luis Manuel Briceño Triana

LOCALIZACIÓN Bogota D.C.

UBICACIÓN Espacio para diseño y montaje del pabellón Bogotá capital mundial del libro 2007, Pabellón N° 12 de Corferias ÁREA INTERVENCIÓN 1.100 m²

N° DE PROCESO SECOP -

COORDINADOR ENTIDAD PROMOTORA

ASESORES TEMÁTICOS

ASESOR JURÍDICO SCA BC

ASESOR JURÍDICO E P

JURADOS

Arq. Luis Humberto Duque Gómez

Arq. Juan Carlos Rojas Iragorri

Arq. Celia María Saavedra

Dr. Guillermo Vargas Ayala

PREMIOS OTORGADOS

2do PUESTO

3er PUESTO

Delphos Arquitectos Ltda. Arq. William Eduardo Cabrera Cabrera

Inter Expo Ltda Arq. Andrés Ortiz

Arq. Daniel Bonilla Ramírez -

Arq. Miguel Ángel Villamizar Vega

Arq. Ilona Graciela Murcia Ijjasz -

Elaboró Arq. Maria Mercedes Cifuentes Quiñones

Aprobó

Arq. Paola Puche Bravo

SOCIEDAD COLOMBIANA DE ARQUITECTOS BOGOTÁ D.C. Y CUNDINAMARCA

CONCURSO PÚBLICO PARA EN DISEÑO Y MONTAJE DEL PABELLÓN "BOGOTÁ

CAPITAL MUNDIAL DEL LIBRO 2007" EN LA FERIA INTERNACIONAL DEL LIBRO DE BOGOTÁ

Aprobó
Elaboró

SOCIEDAD COLOMBIANA DE ARQUITECTOS BOGOTÁ D.C. Y CUNDINAMARCA

NOMBRE DEL CONCURSO:

AÑO

CONCURSO PÚBLICO DE ANTEPROYECTO ARQUITECTÓNICO PARA LA AMPLIACIÓN Y DESARROLLO DEL CEMENTERIO CENTRAL DE BOGOTÁ D.C.

GANADOR:

2007

Arq. ANDRÉS RODRÍGUEZ CABRA

No. Contrato SCA BC - EP

ENTIDAD PROMOTORA UNIDAD ADMINISTRATIVA ESPECIAL DE SERVICIOS PÚBLICOS

ALCALDÍA MAYOR DE BOGOTÁ

FECHA DE APERTURA 17 DE ENERO DE 2007

FECHA DE PROCLAMACIÓN 27 DE MARZO DE 2007

OBJETO DEL CONCURSO

Seleccionar el mejor Anteproyecto, para elaborar el diseño arquitectónico de la Ampliación y desarrollo del Cementerio Central de Bogotá D.C.

Adecuar el espacio público en el entorno inmediato del Cementerio Central con base en el proyecto del mejoramiento de espacios peatonales adyacentes a edificios públicos y grandes equipamentos establecidos en el articulo 239 del POT.

COORDINADOR DE LA SCA BC Arq. Luis Felipe Cristancho Romero

LOCALIZACIÓN Bogota D.C.

UBICACIÓN Globo A del Cementerio: costado Sur sobre Calle 24 entre Cras 17 y 20 costado occidental sobre Cra 20 entre Calles 24 y 26 ÁREA INTERVENCIÓN Edificio 9.630 m² - Espacio público. 4.070 m²

N° DE PROCESO SECOP -

COORDINADOR ENTIDAD PROMOTORA Arq. María Claudia Vargas Martínez

ASESORES TEMÁTICOS -

ASESOR JURÍDICO SCA BC Dr. Guillermo Vargas Ayala

ASESOR JURÍDICO E P

JURADOS

Arq. Francisco Javier Jácome Lievano

PREMIOS OTORGADOS

2do PUESTO

Arq. Daniel Bonilla Ramírez

Arq. Gustavo Perry Torres Arq. Alberto José Aranda

3er PUESTO

Arq. María Claudia Lopez Sorzano -

Arq. Gabriel Pardo García Peña

Arq. Ángela Aranzazu Montoya -

Elaboró Arq. Maria Mercedes Cifuentes Quiñones

Aprobó

Arq. Paola Puche Bravo

SOCIEDAD COLOMBIANA DE ARQUITECTOS BOGOTÁ D.C. Y CUNDINAMARCA

CONCURSO PÚBLICO DE ANTEPROYECTO ARQUITECTÓNICO PARA LA AMPLIACIÓN Y DESARROLLO DEL CEMENTERIO CENTRAL DE BOGOTÁ D.C.

Aprobó
Arq. Paola Puche Bravo
Elaboró Arq. Maria Mercedes Cifuentes Quiñones

SOCIEDAD COLOMBIANA DE ARQUITECTOS BOGOTÁ D.C. Y CUNDINAMARCA

CONCURSO DE ANTEPROYECTO

NOMBRE DEL CONCURSO:

AÑO

ARQUITECTÓNICO PARA EL DISEÑO DEL CENTRO DE CONVENCIONES, EVENTOS Y SERVICIOS HOTEL LANCEROS COLSUBSIDIO Y PLAN DE ZONIFICACIÓN RED DE HOTELES MUNICIPIO DE PAIPA - BOYACÁ

GANADOR:

ESTUDIO MAS ARQUITECTURA

Arq. CARLOS ARTURO BURITACÁ

No. Contrato SCA BC - EP

ENTIDAD PROMOTORA CAJA COLOMBIANA DE SUBSIDIO FAMILIAR - COLSUBSIDIO

FECHA DE APERTURA 26 DE MARZO DE 2007

FECHA DE PROCLAMACIÓN 22 DE MAYO DE 2007

302020-PSO-007

OBJETO DEL CONCURSO

El objeto del concurso es seleccionar el mejor anteproyecto para elaborar el diseño arquitectónico del Centro de convenciones, Eventos y Servicios Hotel Lanceros Colsubsidio y plan de zonificación Red de Hoteles Municipio de Paipa - Boyacá, de propiedad de Colsubsidio

COORDINADOR DE LA SCA BC Arq. Ruth Estella Domínguez Amorocho

LOCALIZACIÓN Paipa - Boyacá

UBICACIÓN Sector turístico del lago Sochagota, a 184 Km de Bogotá y 40 Km de Tunja ÁREA INTERVENCIÓN Hotel Lanceros 50.440 m² - Hotel Colonial 43.350 m²

N° DE PROCESO SECOP -

COORDINADOR ENTIDAD PROMOTORA

ASESORES TEMÁTICOS

ASESOR JURÍDICO SCA BC

ASESOR JURÍDICO E P

JURADOS

Arq. Mauricio Pinilla Acevedo

Arq. Edgar Alfonso Solano Romero

Arq. Sara Liliana Zamora Sarmiento

Arq. José Leopoldo Cerón Méndez

Arq. Cristina Neira Fonseca

Dr. Guillermo Vargas Ayala

PREMIOS OTORGADOS

2do PUESTO

3er PUESTO

4o PUESTO

Arq. Patricia Molina Fonseca

Consorcio Preciado & Arenas Arquitectos

Arq. Germán Preciado Achury

U.T. Ramón Quevedo-Juan Manuel López Arquitectos Asociados

Arq. Cristina Neira Fonseca -

Elaboró Arq. Maria Mercedes Cifuentes Quiñones

Aprobó

Arq. Paola Puche Bravo

SOCIEDAD COLOMBIANA DE ARQUITECTOS BOGOTÁ D.C. Y CUNDINAMARCA

CONCURSO DE ANTEPROYECTO

ARQUITECTÓNICO PARA EL DISEÑO DEL CENTRO DE CONVENCIONES, EVENTOS Y SERVICIOS HOTEL LANCEROS COLSUBSIDIO Y PLAN DE ZONIFICACIÓN RED DE HOTELES MUNICIPIO DE PAIPA - BOYACÁ

Aprobó
Arq. Paola Puche Bravo
Elaboró Arq. Maria Mercedes Cifuentes Quiñones

SOCIEDAD COLOMBIANA DE ARQUITECTOS BOGOTÁ D.C. Y CUNDINAMARCA

CONCURSO PÚBLICO DE ANTEPROYECTO

NOMBRE DEL CONCURSO:

ARQUITECTÓNICO Y PAISAJÍSTICO PARA EL CENTRO INTERNACIONAL DE COMERCIO POPULAR SAN VICTORINO (CENTRO

COMERCIAL DE CIELOS ABIERTOS Y CENTRO DE SERVICIOS LOGÍSTICOS EN BOGOTÁ)

GANADOR:

U.T. QUINTERO WIESNER Arq. DIANA WIESNER CEBALLOS

2007

No. Contrato SCA BC - EP

AÑO 028-2007

ENTIDAD PROMOTORA EMPRESA DE RENOVACIÓN URBANA

FECHA DE APERTURA 12 DE JUNIO DE 2007

FECHA DE PROCLAMACIÓN 4 DE SEPTIEMBRE DE 2007

OBJETO DEL CONCURSO

El Objeto del concurso es seleccionar la mejor propuesta, para que FIDUBOGOTA, suscriba con el arquitecto o los arquitectos autores, el respectivo contrato de consultaría para adelantar los diseños urbanísticos, paisajísticos y arquitectónicos, la coordinación arquitectónica, y los estudios técnicos de el centro internacional de comercio popular San Victorino, en centro de cielos abiertos y el centro de servicios logísticos localizados en las manzanas números 3 y 22 del barrio Santa Inés.

COORDINADOR DE LA SCA BC Arq. Luis Manuel Briceño Triana

LOCALIZACIÓN Bogota D.C.

UBICACIÓN Centro de Bogotá: Avenida Caracas y Carrera 11 y Parque Tercer Milenio, Calle 9ª y Calle 10ª, barrio Santa Inés ÁREA INTERVENCIÓN Área Edificio 125.679,47 m² - Área parqueadero 57.573,47 m²

N° DE PROCESO SECOP

COORDINADOR ENTIDAD PROMOTORA Arq. Antonio Velandia Clavijo

ASESORES TEMÁTICOS

ASESOR JURÍDICO SCA BC

ASESOR JURÍDICO E P

JURADOS

Arq. David Burbano González

Arq. Jorge Alberto Pérez Jaramillo

Arq. Claudia Carrizosa Ricaurte

Arq. Augusto Salazar López

Dr. Guillermo Vargas Ayala

PREMIOS OTORGADOS

2do PUESTO

3er PUESTO

4to PUESTO

Arq. Diego Suárez Betancourt

Arq. Sergio Trujillo Jaramillo

U.T. Gustavo Perry Arqs Asocs Ltda y K.B. Arquitectos Ltda

Arq. Arturo Fernando Rojas -

Elaboró Arq. Maria Mercedes Cifuentes Quiñones

Aprobó

Arq. Paola Puche Bravo

SOCIEDAD COLOMBIANA DE ARQUITECTOS BOGOTÁ D.C. Y CUNDINAMARCA

CONCURSO PÚBLICO DE ANTEPROYECTO ARQUITECTÓNICO Y PAISAJÍSTICO PARA EL CENTRO INTERNACIONAL DE COMERCIO POPULAR SAN VICTORINO (CENTRO COMERCIAL DE CIELOS ABIERTOS Y CENTRO DE SERVICIOS LOGÍSTICOS EN BOGOTÁ)

Aprobó
Arq. Paola Puche Bravo
Elaboró Arq. Maria Mercedes Cifuentes Quiñones

SOCIEDAD COLOMBIANA DE ARQUITECTOS BOGOTÁ D.C. Y CUNDINAMARCA

NOMBRE DEL CONCURSO:

AÑO

CONCURSO PRIVADO DE ANTEPROYECTO ARQUITECTÓNICO PARA EL EDIFICIO DEL BANCO GNB SUDAMERIS

GANADOR:

ESTUDIO MAS ARQUITECTURA LTDA. Arq. ANDRÉS AMAYA SOLANO

2007 No. Contrato SCA BC - EP

ENTIDAD PROMOTORA BANCO GNB SUDAMERIS

FECHA DE APERTURA 17 DE SEPTIEMBRE DE 2007

FECHA DE PROCLAMACIÓN 29 DE OCTUBRE DE 2007

Contrato de Prestación de Servicios

OBJETO DEL CONCURSO

El objeto del concurso es premiar los tres (3) mejores anteproyectos arquitectónicos, escogidos por el Jurado de acuerdo con estas bases, referentes a la elaboración del diseño arquitectónico de la sede del EDIFICIO Banco GNB SUDAMERIS, en el lote ubicado en la cra 7ª con calle 76, de Bogotá D.C. de su propiedad.

COORDINADOR DE LA SCA BC Arq. Rodrigo Carrizosa Ricaurte

LOCALIZACIÓN Bogota D.C.

UBICACIÓN Carrera 7ª N° 75 – 85/87 ÁREA INTERVENCIÓN Edificio 10.000 m2 - Parqueaderos 4.300 m2

N° DE PROCESO SECOP N/A

COORDINADOR ENTIDAD PROMOTORA

ASESORES TEMÁTICOS

ASESOR JURÍDICO SCA BC

ASESOR JURÍDICO E P

JURADOS

Arq. Julián Guerrero Borrero

Arq. Mauricio López

Arq. Manuel Guerrero Sandoval

Asesor Jurado Ing. Jaime Roa Piñeros

Asesor Jurado Dr. José Molano Hencker

Elaboró

Arq. Maria Mercedes Cifuentes Quiñones

Dr. Guillermo Vargas Ayala

PREMIOS OTORGADOS

2do PUESTO

3er PUESTO

MENCIÓN

MENCIÓN

MENCIÓN

Consorcio Oficinas 2010

Arq. Daniel Lehoucq Angulo

Arq. Juan Pablo Ortiz Suárez

MC Arquitectos S.A.

Arq. Mario Cabrera Manrique

Rafael Esguerra Arquitectos

Arq. Rafael Esguerra Cleves

Gustavo Perry Arqs Asocs Ltda

Arq. Gustavo Perry Torres

Aprobó

Arq. Paola Puche Bravo

SOCIEDAD COLOMBIANA DE ARQUITECTOS BOGOTÁ D.C. Y CUNDINAMARCA

CONCURSO PRIVADO DE ANTEPROYECTO ARQUITECTÓNICO PARA EL EDIFICIO DEL BANCO GNB SUDAMERIS

Aprobó
Arq. Paola Puche Bravo
Elaboró Arq. Maria Mercedes Cifuentes Quiñones

SOCIEDAD COLOMBIANA DE ARQUITECTOS BOGOTÁ D.C. Y CUNDINAMARCA

NOMBRE DEL CONCURSO:

AÑO

CONCURSO PÚBLICO PARA EL DISEÑO, CONSTRUCCIÓN, SUMINISTRO E INSTALACIÓN DE LOS MÓDULOS DE VENTA PARA LA PLAZA DE MERCADO LAS CRUCES BOGOTÁ D.C.

GANADOR:

DOS DISEÑO LTDA. Arq. EFRÉN A. ALBA SOTO

2007 No. Contrato SCA BC - EP

ENTIDAD PROMOTORA INSTITUTO DISTRITAL DE PATRIMONIO CULTURAL

FECHA DE APERTURA 3 DE SEPTIEMBRE DE 2007

FECHA DE PROCLAMACIÓN

OBJETO DEL CONCURSO

El objeto del concurso es seleccionar la mejor propuesta, para que la entidad estatal promotoras suscriba con el arquitecto o los arquitectos autores, el respectivo contrato de diseño construcción, suministro e instalación de los puestos de mercado para la plaza de mercado de las Cruces.

COORDINADOR DE LA SCA BC Arq. Diana Wiesner Ceballos

LOCALIZACIÓN Bogota D.C.

UBICACIÓN Plaza de Mercado del Barrio de las Cruces, Calle 1ª F N° 4 - 60, Localidad de Santa Fe. ÁREA INTERVENCIÓN Lote 3.398 m² - Construido 2.211 m²

N° DE PROCESO SECOP

COORDINADOR ENTIDAD PROMOTORA Arq. Miguel Ángel Villamizar

ASESORES TEMÁTICOS

ASESOR JURÍDICO SCA BC Dr. Guillermo Vargas Ayala ASESOR JURÍDICO E P

JURADOS

Arq. María Isabel Tello Fernandez

Arq. Guillermo Fischer Muñoz

Arq. Henry Osorio Campillo

Arq. María Claudia Vargas Martinez

Arq. Doris Patricia Noy Palacios

Elaboró Arq. Maria Mercedes Cifuentes Quiñones

PREMIOS OTORGADOS

2do PUESTO

3er PUESTO

Aprobó

Arq. Paola Puche Bravo

SOCIEDAD COLOMBIANA DE ARQUITECTOS BOGOTÁ D.C. Y CUNDINAMARCA

CONCURSO PÚBLICO PARA EL DISEÑO, CONSTRUCCIÓN, SUMINISTRO E INSTALACIÓN DE LOS MÓDULOS DE VENTA PARA LA PLAZA DE MERCADO LAS CRUCES BOGOTÁ D.C.

FICHA TÉCNICA DE CONCURSOS
Elaboró

SOCIEDAD COLOMBIANA DE ARQUITECTOS BOGOTÁ D.C. Y CUNDINAMARCA

NOMBRE DEL CONCURSO:

AÑO

CONCURSO PÚBLICO DE ANTEPROYECTO ARQUITECTÓNICO PARA EL DISEÑO DEL CENTRO DE DESARROLLO COMUNITARIO EL PORVENIR EN BOSA Y EL CENTRO CRECER EN FONTIBÓN

GANADOR:

2008

POLANCO BERNAL ARQUITECTOS LTDA. Arq. ARCADIO POLANCO PIÑEROS

No. Contrato SCA BC - EP

ENTIDAD PROMOTORA SECRETARIA DE INTEGRACIÓN SOCIAL FONADE

FECHA DE APERTURA 12 DE ENERO DE 2008

FECHA DE PROCLAMACIÓN 19 DE FEBRERO DE 2008

2072088-2008

OBJETO DEL CONCURSO

Seleccionar los mejores anteproyectos, para que FONADE suscriba con el arquitecto o los arquitectos autores, los respectivos contratos de consultoría, para elaborar los diseños arquitectónicos, la coordinación de estudios técnicos, la supervisión arquitectónica durante el proceso de construcción, acompañamiento en el proceso de licitación de construcción, y estudios técnicos para el Centro de Desarrollo Comunitario El Porvenir y para el Centro Crecer de Fontibón.

COORDINADOR DE LA SCA BC Arq. Luis Manuel Briceño Triana

LOCALIZACIÓN Bogota D.C.

UBICACIÓN

CDC El Porvenir en Bosa, Calle 52 Sur Carrera 115 - CC Urbanización La Giralda en Fontibón, Calle 32 N° 103-22. ÁREA INTERVENCIÓN CDC: 3.595 m² incluidas áreas recreativas y exteriores - CC: 932 m² incluye áreas recreativas

N° DE PROCESO SECOP -

COORDINADOR ENTIDAD PROMOTORA Arq. Leonardo Alfonso Martínez Otero - Ing. Luis Antonio Pinzón Parra

ASESORES TEMÁTICOS

ASESOR JURÍDICO SCA BC

ASESOR JURÍDICO E P

JURADOS

Arq. Nicolás Rueda García

Arq. María Lucía Ortega García

Arq. Jaime Eduardo Beltrán Venegas

Arq. Gabriel Pardo García Peña

Arq. Efrain Amaya Chitiva

Elaboró Arq. Maria Mercedes Cifuentes Quiñones

Dr. Guillermo Vargas Ayala

PREMIOS OTORGADOS

2do PUESTO

3er PUESTO

Arq. Leonardo Rodríguez Peña

Arq. German Obdulio Moreno

Aprobó

Arq. Paola Puche Bravo

SOCIEDAD COLOMBIANA DE ARQUITECTOS BOGOTÁ D.C. Y CUNDINAMARCA

CONCURSO PÚBLICO DE ANTEPROYECTO ARQUITECTÓNICO PARA EL DISEÑO DEL CENTRO DE DESARROLLO COMUNITARIO EL PORVENIR EN BOSA Y EL CENTRO CRECER EN FONTIBÓN

Aprobó
Arq. Paola Puche Bravo
Elaboró Arq. Maria Mercedes Cifuentes Quiñones

SOCIEDAD COLOMBIANA DE ARQUITECTOS BOGOTÁ D.C. Y CUNDINAMARCA

NOMBRE DEL CONCURSO:

AÑO

CONCURSO PRIVADO DE ANTEPROYECTO ARQUITECTÓNICO PARA EL PARQUE ACUÁTICO CAFAM MELGAR

GANADOR:

2008

CONSORCIO 4HLW

Arq. DANIEL LEHOUCQ ANGULO

No. Contrato SCA BC - EP

ENTIDAD PROMOTORA CAJA DE COMPENSACION FAMILIAR CAFAM

FECHA DE APERTURA 22 DE ABRIL DE 2008

FECHA DE PROCLAMACIÓN 18 DE JULIO DE 2008

SP 200614046-1

OBJETO DEL CONCURSO

CAFAM está interesada en realizar un concurso privado, abierto, de diseños de anteproyecto arquitectónico para el Parque Acuático CAFAM ubicado en un lote de su propiedad ubicado en el municipio de Melgar, Departamento del Tolima, para celebrar con el ganador el respectivo contrato de consultoría que abarque, los diseños urbanísticos, paisajísticos, la obtención de licencia de construcción y en la anterior etapa de construcción.

COORDINADOR DE LA SCA BC Arq. Mónica Gómez Espinosa - Arq. José Miguel Alba Castro

LOCALIZACIÓN Melgar - Tolima

UBICACIÓN Calle 8ª con Carrera15 (Avenida CAFAM) ÁREA INTERVENCIÓN 22.59 ha. de 114 ha.

N° DE PROCESO SECOP N/A

COORDINADOR ENTIDAD PROMOTORA Arq. Alberto Tenjo Galarza

ASESORES TEMÁTICOS

ASESOR JURÍDICO SCA BC Dr. Guillermo Vargas Ayala ASESOR JURÍDICO E P

JURADOS

Arq. Beatriz Estrada de Nova

Arq. Fernando de la Carrera

PREMIOS OTORGADOS

2do PUESTO

3er PUESTO

Rocha & Roca Arquitectos Constructores Arq.Carolina Rocha Díaz

Rodríguez Valencia Arquitectos Ltda. Arq. Ivonne Ana María Valencia Gómez

Arq. Pablo Gamboa -

Arq. Alberto Tenjo Galarza

Arq. Gonzálo Hoyos Prieto -

Elaboró Arq. Maria Mercedes Cifuentes Quiñones

Aprobó

Arq. Paola Puche Bravo

SOCIEDAD COLOMBIANA DE ARQUITECTOS BOGOTÁ D.C. Y CUNDINAMARCA

CONCURSO PRIVADO DE ANTEPROYECTO ARQUITECTÓNICO PARA EL PARQUE ACUÁTICO CAFAM MELGAR

Aprobó
Arq. Paola Puche Bravo
Elaboró Arq. Maria Mercedes Cifuentes Quiñones

SOCIEDAD COLOMBIANA DE ARQUITECTOS BOGOTÁ D.C. Y CUNDINAMARCA

CONCURSO PRIVADO DE CARÁCTER

NOMBRE DEL CONCURSO:

NACIONAL PARA EL ANTEPROYECTO DE LA SEDE SOCIAL SUBA DE LA CAJA DE COMPENSACIÓN COMPENSAR Y LA EPS COMPENSAR

GANADOR:

Arq. DANIEL BONILLA RAMÍREZ

2008

ENTIDAD PROMOTORA COMPENSAR

FECHA DE APERTURA 23 DE SEPTIEMBRE DE 2008

No. Contrato SCA BC - EP

AÑO C284-2008

FECHA DE PROCLAMACIÓN 12 DE NOVIEMBRE DE 2008

OBJETO DEL CONCURSO

El Proyecto Busca dar cumplimiento a la misión y visión de COMPENSAR y contempla el diseño, construcción y puesta en marcha de la nueva sede en Suba, orientada a proveer servicios de bienestar, salud y crédito con una infraestructura propia que permita atender a los afiliados a la caja de Compensación y a la EPS Compensar.

COORDINADOR DE LA SCA BC -

LOCALIZACIÓN Bogota D.C.

UBICACIÓN Calle 140 Carrera 94 A ÁREA INTERVENCIÓN 17.224 m²

N° DE PROCESO SECOP N/A

COORDINADOR ENTIDAD PROMOTORA

Arq. Alberto Miani Uribe

ASESORES TEMÁTICOS -

ASESOR JURÍDICO SCA BC

Dr. Guillermo Vargas Ayala

ASESOR JURÍDICO E P -

JURADOS

Arq. Lorenzo Castro Jaramillo

Arq. Jorge Pardo Castro

Arq. Juan Felipe Mesa Rico

Arq. Daniel Bermúdez Samper

PREMIOS OTORGADOS

2do PUESTO

3er PUESTO

4o PUESTO

4o PUESTO

Arq. Juan Bautista Castrillon Arenas

M.C. Arquitectos S.A

Arq. Mario Raúl Cabrera Manrique

Arq. Gabriel Jaime Martínez Rodas

U.T. Noviembrecuatro

Arq. Camilo Avellaneda

Arq. Rafael Enrique Villazón Godoy -

Elaboró Arq. Maria Mercedes Cifuentes Quiñones

Aprobó

Arq. Paola Puche Bravo

SOCIEDAD COLOMBIANA DE ARQUITECTOS BOGOTÁ D.C. Y CUNDINAMARCA

CONCURSO PRIVADO DE CARÁCTER

NACIONAL PARA EL ANTEPROYECTO DE LA SEDE SOCIAL SUBA DE LA CAJA DE COMPENSACIÓN COMPENSAR Y LA EPS COMPENSAR

Aprobó
Arq. Paola Puche Bravo
Elaboró Arq. Maria Mercedes Cifuentes Quiñones

SOCIEDAD COLOMBIANA DE ARQUITECTOS BOGOTÁ D.C. Y CUNDINAMARCA

NOMBRE DEL CONCURSO:

CONCURSO PÚBLICO ABIERTO DE ANTEPROYECTO ARQUITECTÓNICO PARA LOS DISEÑOS DEFINITIVOS DEL CENTRO

GANADOR:

Arq. JUAN PABLO ORTIZ SUAREZ

BICENTENARIO: MEMORIA, PAZ Y RECONCILIACIÓN

2008

No. Contrato SCA BC - EP

AÑO 1566-2008

ENTIDAD PROMOTORA SECRETARIA DISTRITAL DE GOBIERNO

FECHA DE APERTURA 27 DE NOVIEMBRE DE 2008

FECHA DE PROCLAMACIÓN 29 DE DICIEMBRE DE 2008

OBJETO DEL CONCURSO

El objeto del concurso es seleccionar el mejor anteproyecto arquitectónico para los diseños definitivos del Centro del Bicentenario: Memoria, Paz y Reconciliación de Bogotá D.C, la coordinación de los estudios técnicos y la posterior supervisión arquitectónica durante el proceso de la construcción.

COORDINADOR DE LA SCA BC Arq. Ruth Estella Dominguez Amorocho

LOCALIZACIÓN Bogota D.C.

UBICACIÓN Parque Metropolitano La Reconciliación, Globo B del Cementerio Central, Calle 26 entre Carreras 20 y Carrera 22 ÁREA INTERVENCIÓN 4.160 m²

N° DE PROCESO SECOP -

COORDINADOR ENTIDAD PROMOTORA

ASESORES TEMÁTICOS

Arq. Raul Padilla Diaz

ASESOR JURÍDICO SCA BC Dr. Guillermo Vargas Ayala

ASESOR JURÍDICO E P

JURADOS

Arq. Mauricio Pinilla Acevedo

Arq. Lorenzo Castro Jaramillo

Arq. Gabriel Pardo García Peña

Arq. Liliana Ricardo Betancourt

PREMIOS OTORGADOS

2do PUESTO

3er PUESTO MENCIÓN

Arq. Juan Bautista Castrillón

Arq. Juan Felipe Mesa Rico

Arq. Edgar Ignacio Mazo Zapata

Asesora Jurado Arq. Piedad Romero de Méndez -

Elaboró Arq. Maria Mercedes Cifuentes Quiñones

Aprobó

Arq. Paola Puche Bravo

SOCIEDAD COLOMBIANA DE ARQUITECTOS BOGOTÁ D.C. Y CUNDINAMARCA

CONCURSO PÚBLICO ABIERTO DE ANTEPROYECTO ARQUITECTÓNICO PARA LOS DISEÑOS DEFINITIVOS DEL CENTRO BICENTENARIO: MEMORIA, PAZ Y RECONCILIACIÓN

Aprobó
Arq. Paola Puche Bravo
Elaboró Arq. Maria Mercedes Cifuentes Quiñones

SOCIEDAD COLOMBIANA DE ARQUITECTOS BOGOTÁ D.C. Y CUNDINAMARCA

CONCURSO PÚBLICO ABIERTO PARA LA SELECCIÓN DEL ANTEPROYECTO

NOMBRE DEL CONCURSO:

AÑO

ARQUITECTÓNICO DEL DISEÑO DE LA INFRAESTRUCTURA REQUERIDA PARA EL ESTADIO NEMESIO CAMACHO EL CAMPIN DE BOGOTÁ Y DE IDEAS PARA LA REMODELACIÓN DE LAS FACHADAS DEL ESTADIO

2009

GANADOR:

ATICA PROYECTOS E.U. Arq. MANUEL VILLA LARGACHA

No. Contrato SCA BC - EP

ENTIDAD PROMOTORA INSTITUTO DISTRITAL PARA LA RECREACIÓN Y EL DEPORTE

FECHA DE APERTURA 12 DE MAYO DE 2009

FECHA DE PROCLAMACIÓN 26 DE JUNIO DE 2009

OBJETO DEL CONCURSO

Seleccionar el mejor anteproyecto arquitectónico y de ideas para contratar con su autor el proyecto arquitectónico definitivo de la “Infraestructura Complementaria requerida para el Estadio Nemesio Camacho El Campín”, contratar los estudios técnicos requeridos y ejercer la supervisión arquitectónica de la construcción de la Infraestructura Complementaria requerida para el estadio Nemesio Camacho El Campín, previa aprobación del IDRD.

COORDINADOR DE LA SCA BC Arq. Jaime Beltrán Venegas

LOCALIZACIÓN Bogota D.C.

UBICACIÓN Estadio Nemesio Camacho El Campin Carrera 30 N° 57 - 60 ÁREA INTERVENCIÓN Edificio Complementario 7.800 m² - Remodelación Fachadas: 13.702 m²

N° DE PROCESO SECOP -

COORDINADOR ENTIDAD PROMOTORA

ASESORES TEMÁTICOS

ASESOR JURÍDICO SCA BC

ASESOR JURÍDICO E P

JURADOS

Arq. Alejandro José Ocampo Mora

Arq. Olga Lucia Silva Gutiérrez

Arq. Javier Vera Londoño

Arq. Daniel Lehoucq Angulo

Arq. Gian Carlo Mazzanti

Elaboró Arq. Maria Mercedes Cifuentes Quiñones

Arq. Norman Díaz Castro

Dr. Guillermo Vargas Ayala

PREMIOS OTORGADOS

2do PUESTO

3er PUESTO

MENCIÓN

Montenegro Lizarralde y Cia Ltda.

Arq. Verónica Perfetti del Corral

Arq. Ramón Augusto Quevedo Rengifo

Arq. William Horacio Castaño Velásquez

Aprobó

Arq. Paola Puche Bravo

SOCIEDAD COLOMBIANA DE ARQUITECTOS BOGOTÁ D.C. Y CUNDINAMARCA

CONCURSO PÚBLICO ABIERTO PARA LA SELECCIÓN DEL ANTEPROYECTO ARQUITECTÓNICO DEL DISEÑO DE LA INFRAESTRUCTURA REQUERIDA PARA EL ESTADIO NEMESIO CAMACHO EL CAMPIN DE BOGOTÁ Y DE IDEAS PARA LA REMODELACIÓN DE LAS FACHADAS DEL ESTADIO

Aprobó
Arq. Paola Puche Bravo
Elaboró Arq. Maria Mercedes Cifuentes Quiñones

SOCIEDAD COLOMBIANA DE ARQUITECTOS BOGOTÁ D.C. Y CUNDINAMARCA

NOMBRE DEL CONCURSO:

AÑO

CONCURSO DE ANTEPROYECTO ARQUITECTÓNICO PARA EL DISEÑO DE LA SEDE DE LA UNIVERSIDAD DISTRITAL FRANCISCO JOSÉ DE CALDAS EN LA CIUDADELA EDUCATIVA EL PORVENIRBOSA

GANADOR:

2009

GUSTAVO PERRY ARQUITECTOS ASOCIADOS LTDA. Arq. GUSTAVO PERRY TORRES

No. Contrato SCA BC - EP

ENTIDAD PROMOTORA UNIVERSIDAD DISTRITAL FRANCISCO JOSÉ DE CALDAS

FECHA DE APERTURA 12 DE MAYO DE 2009

FECHA DE PROCLAMACIÓN 6 DE JULIO DE 2009

UD-SCA

OBJETO DEL CONCURSO

El Objetivo del concurso es el de Seleccionar el mejor anteproyecto arquitectónico PARA LOS DISEÑOS ARQUITECTÓNICO Y URBANO DEFINITIVOS Y LOS ESTUDIOS TÉCNICOS DE LA SEDE DE LA UNIVERSIDAD DISTRITAL FRANCISCO JOSÉ DE CALDAS EN LA CIUDADELA EL PORVENIR en la Localidad de Bosa, Bogotá D.C, y la supervisión arquitectónica durante el proceso de la construcción; así como también la elaboración de los diferentes estudios para la sede.

COORDINADOR DE LA SCA BC Arq. Ruth Estella Domínguez Amorocho

LOCALIZACIÓN Bogota D.C.

UBICACIÓN Límites del Río Bogotá con en el perímetro urbano,Ciudadela el Porvenir Localidad de Bosa ÁREA INTERVENCIÓN 30.147.95 m²

N° DE PROCESO SECOP -

COORDINADOR ENTIDAD PROMOTORA Arq. Nelson Mora Fonseca

ASESORES TEMÁTICOS -

ASESOR JURÍDICO SCA BC Dr. Guillermo Vargas Ayala ASESOR JURÍDICO E P -

JURADOS

Arq. Noe González Bonilla

Arq. Claudia López Borbón

PREMIOS OTORGADOS

2do PUESTO

3er PUESTO

Consorcio Campus Ciudadela Porvenir

Arq. Verónica Perffetti del Corral

Arq. Juan Pablo Ortiz Suarez

Arq. Juan Manuel Peláez -

Arq. Álvaro Botero Escobar -

Arq. Diego Suárez Betancourt -

Elaboró Arq. Maria Mercedes Cifuentes Quiñones

Aprobó

Arq. Paola Puche Bravo

SOCIEDAD COLOMBIANA DE ARQUITECTOS BOGOTÁ D.C. Y CUNDINAMARCA

CONCURSO DE ANTEPROYECTO ARQUITECTÓNICO PARA EL DISEÑO DE LA SEDE DE LA UNIVERSIDAD DISTRITAL FRANCISCO JOSÉ DE CALDAS EN LA CIUDADELA EDUCATIVA EL PORVENIR - BOSA

Aprobó
Arq. Paola Puche Bravo
Elaboró Arq. Maria Mercedes Cifuentes Quiñones

SOCIEDAD COLOMBIANA DE ARQUITECTOS BOGOTÁ D.C. Y CUNDINAMARCA

LOTE SUBA

U.T. ML-JAY 2009

NOMBRE DEL CONCURSO:

AÑO

CONCURSO PÚBLICO DE ANTEPROYECTOS ARQUITECTÓNICOS PARA SEIS JARDINES SOCIALES

GANADOR:

Arq. VERÓNICA PERFETTI DEL CORRAL

LOTE SAN CRISTÓBAL

Arq. CARLOS MARIO RODRÍGUEZ O. 2009

No. Contrato SCA BC - EP

ENTIDAD PROMOTORA SECRETARIA DE INTEGRACIÓN SOCIAL - SDIS - FONADE

FECHA DE APERTURA 30 DE SEPTIEMBRE DE 2009

FECHA DE PROCLAMACIÓN 12 DE NOVIEMBRE DE 2009

2091887-2009

OBJETO DEL CONCURSO

El objeto del concurso es seleccionar los mejores anteproyectos, para que FONADE suscriba con el arquitecto o los arquitectos autores, los respectivos contratos de consultaría, para elaborar los diseños arquitectónico, la coordinación de estudios técnicos, la supervisión arquitectónica, el estudio de suelos, el calculo estructural, el diseño hidráulico, sanitario y de gas, el diseño eléctrico y de la red de voz y datos y el presupuesto para seis jardines en Bogotá, D.C.

COORDINADOR DE LA SCA BC Arq. Luis Manuel Briceño Triana

LOCALIZACIÓN Bogota D.C.

UBICACIÓN Suba (Aures) - Calle 130B N 96-57 - San Cristóbal - Calle 27A sur N 2-67 ÁREA INTERVENCIÓN Suba 3.551 m² - Cobertura (niños): 800 - San Cristóbal 1.650 m² - Cobertura (niños): 300

N° DE PROCESO SECOP -

COORDINADOR ENTIDAD PROMOTORA Arq. Leonardo Martínez

ASESORES TEMÁTICOS

ASESOR JURÍDICO SCA BC

ASESOR JURÍDICO E P

JURADOS

Arq. Felipe Florián Rodríguez

Arq. Juan Guillermo Cleves Infante

Arq. María del Rosario Vivas

Arq. Andrea Amaral Ceballos

Arq. Gian Carlo Mazzanti

Elaboró Arq. Maria Mercedes Cifuentes Quiñones

Dr. Guillermo Vargas Ayala

PREMIOS OTORGADOS

2do PUESTO

2do PUESTO

3er PUESTO

3er PUESTO

Lote Suba PSA Proyectos y Soluciones Arquitectónicas

Arq. José David González Canal

Lote San Cristóbal

Arq. Miguel Angel Ceballos Castillo

Lote Suba

URB-PLAN Proyectos y Estudios del Territorio Ltda.

Arq. Guillermo E. Avilan Barragán

Lote San Cristóbal

Intricon S.A.

Arq. Edison Geovanni Patiño Torres

Aprobó

Arq. Paola Puche Bravo

SOCIEDAD COLOMBIANA DE ARQUITECTOS BOGOTÁ D.C. Y CUNDINAMARCA

CONCURSO PÚBLICO DE ANTEPROYECTOS ARQUITECTÓNICOS PARA SEIS JARDINES SOCIALES

LOTE SUBA

LOTE SAN CRISTÓBAL

Aprobó
Arq. Paola Puche Bravo
Elaboró Arq. Maria Mercedes Cifuentes Quiñones

SOCIEDAD COLOMBIANA DE ARQUITECTOS BOGOTÁ D.C. Y CUNDINAMARCA

NOMBRE DEL CONCURSO:

AÑO

CONCURSO PÚBLICO DE ANTEPROYECTOS ARQUITECTÓNICOS PARA SEIS JARDINES SOCIALES

GANADOR:

LOTE SANTA FE

Arq. LEONARDO BOHÓRQUEZ LARA

LOTE ENGATIVÁ

Arq. ROBERTO ROESEL

No. Contrato SCA BC - EP

ENTIDAD PROMOTORA SECRETARIA DE INTEGRACIÓN SOCIAL - SDIS - FONADE

FECHA DE APERTURA 30 DE SEPTIEMBRE DE 2009

FECHA DE PROCLAMACIÓN 12 DE NOVIEMBRE DE 2009

2091887-2009

OBJETO DEL CONCURSO

El objeto del concurso es seleccionar los mejores anteproyectos, para que FONADE suscriba con el arquitecto o los arquitectos autores, los respectivos contratos de consultaría, para elaborar los diseños arquitectónico, la coordinación de estudios técnicos, la supervisión arquitectónica, el estudio de suelos, el calculo estructural, el diseño hidráulico, sanitario y de gas, el diseño eléctrico y de la red de voz y datos y el presupuesto para seis jardines en Bogotá, D.C.

COORDINADOR DE LA SCA BC Arq. Luis Manuel Briceño Triana

LOCALIZACIÓN Bogota D.C.

UBICACIÓN Santa Fe - Carrera 2 N° 03 - 00 - Engativa - Calle 69 N° 121 - 29 ÁREA INTERVENCIÓN Santa Fe 1.792 m² - Cobertura (niños): 300 - Engativa 1.480 m² - Cobertura (niños): 300

N° DE PROCESO SECOP -

COORDINADOR ENTIDAD PROMOTORA Arq. Leonardo Martínez

ASESORES TEMÁTICOS

ASESOR JURÍDICO SCA BC Dr. Guillermo Vargas Ayala

ASESOR JURÍDICO E P

JURADOS

Arq. Felipe Florián Rodríguez

Arq. Juan Guillermo Cleves Infante

Arq. María del Rosario Vivas

Arq. Andrea Amaral Ceballos

PREMIOS OTORGADOS

2do PUESTO

2do PUESTO

3ro PUESTO

3ro PUESTO

Lote Santa Fe U.T. ML-JAY 2009 Arq. Verónica Perfetti del Corral

Lote Engativá

Arq. Leonel José Velandia Poveda

Lote Santa Fe

Arq. Jaime Orlando Acosta Ríos

Lote Engativá

U.T. Bogotá 2009 Arq. Liliana Bonilla

Arq. Gian Carlo Mazzanti -

Elaboró Arq. Maria Mercedes Cifuentes Quiñones

Aprobó

Arq. Paola Puche Bravo

SOCIEDAD COLOMBIANA DE ARQUITECTOS BOGOTÁ D.C. Y CUNDINAMARCA

CONCURSO PÚBLICO DE ANTEPROYECTOS ARQUITECTÓNICOS PARA SEIS JARDINES SOCIALES

LOTE SANTA FE

LOTE ENGATIVÁ

Aprobó
Arq. Paola Puche Bravo
Elaboró Arq. Maria Mercedes Cifuentes Quiñones

SOCIEDAD COLOMBIANA DE ARQUITECTOS BOGOTÁ D.C. Y CUNDINAMARCA

LOTE BOSA

GÓMEZ NIETO LTDA.

Arq. CARLOS A. GÓMEZ CHACÓN

NOMBRE DEL CONCURSO:

AÑO

CONCURSO PÚBLICO DE ANTEPROYECTOS ARQUITECTÓNICOS

PARA SEIS JARDINES SOCIALES

2009

GANADOR:

LOTE KENNEDY

EL JURADO RECOMENDÓ OTORGAR EL 1ER PUESTO A CUBICAR GRUPO INMOBILIARIO CARLOS RAFAEL JIMÉNEZ L. (SEGUNDO PUESTO DE BOSA)

No. Contrato SCA BC - EP

ENTIDAD PROMOTORA SECRETARIA DE INTEGRACIÓN SOCIAL - SDIS - FONADE

FECHA DE APERTURA 30 DE SEPTIEMBRE DE 2009

FECHA DE PROCLAMACIÓN 12 DE NOVIEMBRE DE 2009

2091887-2009

OBJETO DEL CONCURSO

El objeto del concurso es seleccionar los mejores anteproyectos, para que FONADE suscriba con el arquitecto o los arquitectos autores, los respectivos contratos de consultaría, para elaborar los diseños arquitectónico, la coordinación de estudios técnicos, la supervisión arquitectónica, el estudio de suelos, el calculo estructural, el diseño hidráulico, sanitario y de gas, el diseño eléctrico y de la red de voz y datos y el presupuesto para seis jardines en Bogotá, D.C.

COORDINADOR DE LA SCA BC Arq. Luis Manuel Briceño Triana

LOCALIZACIÓN Bogota D.C.

UBICACIÓN Bosa - Carrera 92 N° 70 - 15 - Kennedy (El Caracol) - Calle 38 sur N° 93B - 02 ÁREA INTERVENCIÓN Bosa 2.655 m² - Cobertura (niños): 600 - Kennedy 2.978 m² - Cobertura (niños): 600

N° DE PROCESO SECOP -

COORDINADOR ENTIDAD PROMOTORA Arq. Leonardo Martínez

ASESORES TEMÁTICOS

ASESOR JURÍDICO SCA BC

ASESOR JURÍDICO E P

JURADOS

Arq. Felipe Florián Rodríguez

Arq. Juan Guillermo Cleves

Arq. María del Rosario Vivas

Arq. Andrea Amaral Ceballos

Arq. Gian Carlo Mazzanti

Elaboró Arq. Maria Mercedes Cifuentes Quiñones

Dr. Guillermo Vargas Ayala

PREMIOS OTORGADOS

2do PUESTO

3er PUESTO

MENCIÓN

2do PUESTO

Lote Bosa

Cubicar Grupo Inmobiliario Ltda.

Arq. Carlos Rafael Jimenez Lemos

Lote Bosa

Arq. Orlando Ordoñez Rocha

Lote Bosa

Arq. Juan Carlos Carvajal Ramírez

Lote Kennedy Desierto

El Jurado recomendó otorgar el Segundo Puesto a Orlando

Ordoñez Rocha el 3er Puesto de Bosa

Aprobó

Arq. Paola Puche Bravo

SOCIEDAD COLOMBIANA DE ARQUITECTOS BOGOTÁ D.C. Y CUNDINAMARCA

CONCURSO PÚBLICO DE ANTEPROYECTOS ARQUITECTÓNICOS PARA SEIS JARDINES SOCIALES

LOTE BOSA

LOTE KENNEDY

Aprobó
Arq. Paola Puche Bravo
Elaboró Arq. Maria Mercedes Cifuentes Quiñones

SOCIEDAD COLOMBIANA DE ARQUITECTOS BOGOTÁ D.C. Y CUNDINAMARCA

NOMBRE DEL CONCURSO:

AÑO

CONCURSO PÚBLICO DE ANTEPROYECTOS ARQUITECTÓNICOS PARA EL DISEÑO DEL CENTRO CRECER EL PORVENIR Y EL CENTRO DE ATENCIÓN INTEGRAL (AMAR Y CRECER) TIBABITÁ

2009

GANADOR:

CENTRO CRECER Arq. WILLIAM ESTEBAN MARTÍNEZ FARIAS

CENTRO AMAR Arq. WILLIAM ESTEBAN MARTÍNEZ FARIAS

No. Contrato SCA BC - EP

ENTIDAD PROMOTORA SECRETARIA DISTRITAL DE INTEGRACIÓN SOCIAL - SDIS

FECHA DE APERTURA 6 DE NOVIEMBRE DE 2009

FECHA DE PROCLAMACIÓN 16 DE DICIEMBRE DE 2009

OBJETO DEL CONCURSO

El objeto del concurso es seleccionar los mejores anteproyectos, para que la SDIS suscriba con el arquitecto o los arquitectos autores, los respectivos contratos de consultoría, para elaborar los diseños arquitectónicos, la coordinación de estudios técnicos, la supervisión arquitectónica, el estudio de suelos, el cálculo estructural, el diseño hidráulico, sanitario y de gas, el diseño eléctrico y de la red de voz y datos y el presupuesto para un centro crecer y un Centro de atención integral en Bogotá D.C.

COORDINADOR DE LA SCA BC Arq. Luis Manuel Briceño Triana

LOCALIZACIÓN Bogota D.C.

UBICACIÓN

Centro Crecer: Bosa (El Porvenir) - Cll 57 A Sur N 92A-30 - Centro Amar: Usaquén (Tibabitá) - Cra 11 N 183-90 ÁREA INTERVENCIÓN Centro Crecer: Bosa (El Porvenir) 1.311 m² - Centro Amar: Usaquén (Tibabitá) 867 m²

N° DE PROCESO SECOP -

COORDINADOR ENTIDAD PROMOTORA Arq. Javier Orlando Cardenas Rincón

ASESORES TEMÁTICOS

ASESOR JURÍDICO SCA BC Dr. Guillermo Vargas Ayala ASESOR JURÍDICO E P

JURADOS

Arq. Javier Orlando Cárdenas Rincón

Arq. Sergio Trujillo Jaramillo

Arq. Julián Andrés Martínez Chávez

Arq. Natalia López Aguilar

Arq. Luis Roberto Villamil Puentes

Elaboró Arq. Maria Mercedes Cifuentes Quiñones

PREMIOS OTORGADOS

2do PUESTO

2do PUESTO

Centro Crecer Arq. Santiago Motoa Solarte

Centro Amar Arq. Ramón Augusto Quevedo Rengifo

Aprobó

Arq. Paola Puche Bravo

SOCIEDAD COLOMBIANA DE ARQUITECTOS BOGOTÁ D.C. Y CUNDINAMARCA

CONCURSO PÚBLICO DE ANTEPROYECTOS

ARQUITECTÓNICOS PARA EL DISEÑO DEL CENTRO CRECER EL PORVENIR Y EL CENTRO DE ATENCIÓN INTEGRAL (AMAR Y CRECER)

TIBABITÁ

CENTRO CRECER

CENTRO AMAR

Aprobó
Arq. Paola Puche Bravo
Elaboró Arq. Maria Mercedes Cifuentes Quiñones

FICHA TÉCNICA DE CONCURSOS Versión

SOCIEDAD COLOMBIANA DE ARQUITECTOS BOGOTÁ D.C. Y CUNDINAMARCA

NOMBRE DEL CONCURSO:

AÑO

CONCURSO PÚBLICO ABIERTO PARA LA SELECCIÓN DEL ANTEPROYECTO ARQUITECTÓNICO DE LA SEDE DE FUSAGASUGÁ PARA LA CÁMARA DE COMERCIO DE BOGOTÁ

2011

GANADOR:

CONSORCIO AIA- STUDIO ÁREA 4 Arq. CARLOS MAURICIO CÓRDOBA

No. Contrato SCA BC - EP

ENTIDAD PROMOTORA CÁMARA DE COMERCIO DE BOGOTÁ

FECHA DE APERTURA 13 DE ABRIL DE 2011

FECHA DE PROCLAMACIÓN 23 DE JUNIO DE 2011

4500054994/2010-1

OBJETO DEL CONCURSO

Selección de la propuesta más adecuada de acuerdo al jurado designado, para la ejecución del Anteproyecto Arquitectónico para el diseño de la sede Fusagasugá de la CCB para que la Entidad Promotora suscriba con su autor el contrato de consultoría

COORDINADOR DE LA SCA BC Arq. Jaime Beltrán Venegas

LOCALIZACIÓN Fusagasugá, Cundinamarca

UBICACIÓN Avenida de las Palmas N° 21 -35 ÁREA INTERVENCIÓN 820 m²

N° DE PROCESO SECOP N/A

COORDINADOR ENTIDAD PROMOTORA Arq. Rafael Guzmán Pulido

ASESORES TEMÁTICOS

ASESOR JURÍDICO SCA BC

Dr. Guillermo Vargas Ayala ASESOR JURÍDICO E P

JURADOS

Arq. José Daniel Lehoucq

Arq. Carlos Campuzano Castello

Arq. Daniel Bonilla Ramírez

PREMIOS OTORGADOS

2do PUESTO

3er PUESTO MENCIÓN

Estudio MAS Arquitectura Ltda.

Arq. Carlos Buriticá

Unión Temporal Bassico M.V.U.T.

Arq. Gabriel Martínez

Daniels y Lozano Arquitectos Asociados Ltda.

Arq. Rene Javier Daniels

Aprobó

Elaboró Arq. Maria Mercedes Cifuentes Quiñones
Arq. Paola Puche Bravo

SOCIEDAD COLOMBIANA DE ARQUITECTOS BOGOTÁ D.C. Y CUNDINAMARCA

ONCURSO PÚBLICO ABIERTO PARA LA SELECCIÓN DEL ANTEPROYECTO ARQUITECTÓNICO DE LA SEDE DE FUSAGASUGÁ PARA LA CÁMARA DE COMERCIO DE BOGOTÁ

Aprobó
Arq. Paola Puche Bravo
Elaboró Arq. Maria Mercedes Cifuentes Quiñones

FICHA TÉCNICA DE CONCURSOS

SOCIEDAD COLOMBIANA DE ARQUITECTOS BOGOTÁ D.C. Y CUNDINAMARCA

CONCURSO PÚBLICO DE ANTEPROYECTO

NOMBRE DEL CONCURSO:

AÑO

ARQUITECTÓNICO PARA EL DISEÑO DE LA NUEVA SEDE DE LA ALCALDÍA LOCAL DE USME

GANADOR:

MOTTA & RODRÍGUEZ ASOCIADOS LTDA. Arq. MARIO DANIEL MOTTA BELTRÁN

No. Contrato SCA BC - EP 2011

1209 - 2010

ENTIDAD PROMOTORA

FECHA DE APERTURA

FECHA DE PROCLAMACIÓN

OBJETO DEL CONCURSO

SECRETARÍA DISTRITAL DE GOBIERNO

9 DE MAYO DE 2011

27 DE JULIO DE 2011

El Objetivo del concurso se fundamenta en la selección de la mejor propuesta de anteproyecto arquitectónico para que el Distrito Capital SDG suscriba con su autor contrato de consultoría de diseño arquitectónico de la Nueva Sede de la Alcaldía Local de Usme, incluye la contratación de los estudios técnicos básicos para el desarrollodel proyecto

COORDINADOR DE LA SCA BC Arq. Martha Cecilia Gonzalez Ocampo

LOCALIZACIÓN UBICACIÓN

Bogotá D.C. Carrera 3ª Bis A N° 137B-32 Sur y Calle 137B Sur N° 3-24 -SIC (Sector Interés Cultural), Localidad de Usme 3.770 m² ÁREA INTERVENCIÓN

N° DE PROCESO SECOP -

COORDINADOR ENTIDAD PROMOTORA Arq. Eduardo Vargas Bermúdez

ASESORES TEMÁTICOS

ASESOR JURÍDICO SCA BC

ASESOR JURÍDICO E P

JURADOS

Arq. Pedro Jaime Garzón Roncancio

Arq. Jorge Bateman Barros

Arq. Gabriel Campuzano Otero

Arq. Maria Elvira Madriñan Saa

Arq. Alvaro Botero Escobar

Elaboró

Arq. Maria Mercedes Cifuentes Quiñones

Dr. Guillermo Vargas Ayala

PREMIOS OTORGADOS

2do PUESTO

3er PUESTO

Taller 301

Arq. Julián Restrepo Molina

Arq. Franco Ernesto Rodríguez Zambrano

Aprobó

Arq. Paola Puche Bravo

SOCIEDAD COLOMBIANA DE ARQUITECTOS BOGOTÁ D.C. Y CUNDINAMARCA

CONCURSO PÚBLICO DE ANTEPROYECTO ARQUITECTÓNICO PARA EL DISEÑO DE LA NUEVA SEDE DE LA ALCALDÍA LOCAL DE USME

Aprobó
Elaboró Arq. Maria Mercedes Cifuentes Quiñones
Arq. Paola Puche Bravo

FICHA TÉCNICA DE CONCURSOS Versión

SOCIEDAD COLOMBIANA DE ARQUITECTOS BOGOTÁ D.C. Y CUNDINAMARCA

CONCURSO PÚBLICO DE ANTEPROYECTO

NOMBRE DEL CONCURSO:

AÑO

ARQUITECTÓNICO PARA EL DISEÑO DE MÓDULOS COMERCIALES INDIVIDUALES EN INMUEBLES A CARGO DEL IPES EN LAS LOCALIDADES DE BOSA, LOS MÁRTIRES Y SAN CRISTÓBAL DE BOGOTÁ D.C.

GANADOR:

OBRAESTUDIO ARQUITECTURA S.A.S. Arq. JUAN MELO LOZANO

No. Contrato SCA BC - EP

ENTIDAD PROMOTORA INSTITUTO PARA LA ECONOMÍA SOCIAL - IPES

FECHA DE APERTURA 24 DE OCTUBRE DE 2011

FECHA DE PROCLAMACIÓN 13 DE DICIEMBRE DE 2011

1983-2010

OBJETO DEL CONCURSO

El objeto principal de concurso es la selección de la mejor propuesta de anteproyecto para el diseño urbano, arquitectónico y técnico de un Sistema o conjunto de Módulos comerciales individuales para vendedores informales beneficiarios de la entidad acogidos por las alternativas comerciales, así como la implantación de los mismos en Inmuebles a cargo del IPES en 3 Espacios Análogos en las localidades de Bosa, Los Mártires y San Cristóbal de Bogotá D.C. y los demás elementos constitutivos.

COORDINADOR DE LA SCA BC Arq. Luis Felipe Cristancho Romero

LOCALIZACIÓN Bogotá D.C.

UBICACIÓN 3 Espacios Análogos, en las Localidades de Bosa, Los Mártires y San Cristóbal ÁREA INTERVENCIÓN Bosa: 32 módulos de 22m2 por módulo. Mártires: 25 de 21 m2 por módulo. San Cristóbal: 700 módulos de 2.8 m2 por módulo.

N° DE PROCESO SECOP

COORDINADOR ENTIDAD PROMOTORA Arq. Carlos Gordillo Corredor

ASESORES TEMÁTICOS

ASESOR JURÍDICO SCA BC

ASESOR JURÍDICO E P

Dr. Guillermo Vargas Ayala

JURADOS PREMIOS OTORGADOS

Arq. Suely Vargas Nóbrega

Arq. Daniel Bonilla Ramírez

Arq. Diana Wiesner Ceballos

Arq. Carmenza Orjuela Hernández

Arq. Gabriel Córdoba

2do PUESTO

3er PUESTO

Aprobó

Rodríguez Cabra & Pizano Arquitectura Ltda. Arq. Andrés Rodríguez Cabra

Arq. Alejandro Rogelis Terán

Elaboró Arq. Maria Mercedes Cifuentes Quiñones
Arq. Paola Puche Bravo

SOCIEDAD COLOMBIANA DE ARQUITECTOS BOGOTÁ D.C. Y CUNDINAMARCA

CONCURSO PÚBLICO DE ANTEPROYECTO ARQUITECTÓNICO PARA EL DISEÑO DE MÓDULOS

COMERCIALES INDIVIDUALES EN INMUEBLES A CARGO DEL IPES EN LAS LOCALIDADES DE BOSA, LOS MÁRTIRES Y SAN CRISTÓBAL DE BOGOTÁ D.C.

Aprobó
Arq. Paola Puche Bravo
Elaboró Arq. Maria Mercedes Cifuentes Quiñones

FICHA TÉCNICA DE CONCURSOS

SOCIEDAD COLOMBIANA DE ARQUITECTOS BOGOTÁ D.C. Y CUNDINAMARCA

NOMBRE DEL CONCURSO:

AÑO

CONCURSO DE ANTEPROYECTO PARA EL DISEÑO DE UN DOTACIONAL PÚBLICO DE SERVICIOS SOCIALES DE EDUCACIÓN, CULTURA E INTEGRACIÓN SOCIAL DE ESCALA ZONAL EN LA LOCALIDAD DE USME, BOGOTÁ D.C.

GANADOR:

2011

ENTIDAD PROMOTORA

MGP ARQUITECTURA Y URBANISMO LTDA. Arq. FELIPE GONZÁLEZ-PACHECO Arq. ÁLVARO BOHÓRQUEZ R

No. Contrato SCA BC - EP

1696-2011

SECRETARÍA DE CULTURA RECREACIÓN Y DEPORTE, FONADE, METROVIVIENDA

SECRETARÍA DISTRITAL DE INTEGRACIÓN SOCIAL Y SECRETARÍA DE EDUCACIÓN DEL DISTRITO

FECHA DE APERTURA 8 DE NOVIEMBRE DE 2011

FECHA DE PROCLAMACIÓN 20 DE DICIEMBRE DE 2011

OBJETO DEL CONCURSO

El objeto principal del concurso es la selección de la mejor propuesta de anteproyecto para el diseño arquitectónico y técnico de un dotacional público de servicios sociales de educación, cultura e integración social, de escala zonal dentro de la unidad de gestión 1 del Plan parcial TRES QUEBRADAS en la localidad de Usme, Bogotá DC., que permita la integración y complementariedad entre los equipamientos Educativos, de Bienestar Social y de Cultura, Recreación y Deporte, permitiendo que los mismos compartan locaciones que sean comunes al desarrollo de sus actividades.

COORDINADOR DE LA SCA BC Arq. Luis Manuel Briceño Triana

LOCALIZACIÓN Bogotá D.C.

UBICACIÓN El área está dentro de la zona Operación Estratégica Nuevo Usme, Localidad Usme, área de cesión para equipamientos ÁREA INTERVENCIÓN 18.150 m²

N° DE PROCESO SECOP MV-CM-005-2011

COORDINADOR ENTIDAD PROMOTORA Arq. Edgar Duarte Quiroga - Arq. Catalina Martínez Castillo

ASESORES TEMÁTICOS -

ASESOR JURÍDICO SCA BC

Dr. Guillermo Vargas Ayala

ASESOR JURÍDICO E P -

JURADOS

Arq. Mauricio Pinilla Acevedo

PREMIOS OTORGADOS

2do PUESTO

Juan Pablo Ortiz Arquitectos Consultores Ltda.

Arq. Juan Pablo Ortiz Suarez Arq. Julián Restrepo Molina

Arq. Pablo Forero Quintero

Arq. Mauricio Rojas Vera Arq. Miguel Santiago Motoa Solarte

Arq. Lorenzo Castro Jaramillo

Arq. Nestor Francisco Hernández Álvarez

3er PUESTO

MENCIÓN

MENCIÓN

Consorcio Arquitectura y Espacio Urbano

Arq. Verónica Alejandra Ortiz Murcia

Arq. Javier Esteban Henao Herrera

Motta Rodríguez Arquitectos Asociados Ltda.

Arq. Mario Daniel Motta Beltrán

Arq. Fernando Rodríguez Bonilla

Arq. María Claudia Ferrer Rojas -

Arq. Humberto Amaya Espinosa -

Arq. Felipe Florián Rodríguez -

Elaboró Arq. Maria Mercedes Cifuentes Quiñones

Aprobó

Arq. Paola Puche Bravo

SOCIEDAD COLOMBIANA DE ARQUITECTOS BOGOTÁ D.C. Y CUNDINAMARCA

CONCURSO DE ANTEPROYECTO PARA EL DISEÑO DE UN DOTACIONAL PÚBLICO DE SERVICIOS SOCIALES DE EDUCACIÓN, CULTURA E INTEGRACIÓN SOCIAL DE ESCALA ZONAL EN LA LOCALIDAD DE USME, BOGOTÁ D.C.

FICHA TÉCNICA DE CONCURSOS
Aprobó
Arq. Paola Puche Bravo
Elaboró Arq. Maria Mercedes Cifuentes Quiñones

FICHA TÉCNICA DE CONCURSOS Versión

SOCIEDAD COLOMBIANA DE ARQUITECTOS BOGOTÁ D.C. Y CUNDINAMARCA

NOMBRE DEL CONCURSO:

CONCURSO DE ANTEPROYECTO ARQUITECTÓNICO PARA LA READECUACIÓN FÍSICA DEL CENTRO DE CONTROL DE TRANSMILENIO S.A.

GANADOR:

STUDIO ÁREA 4 S.A.S. Arq. ALEJANDRO GONZÁLEZ JARAMILLO

2012

No. Contrato SCA BC - EP

AÑO 217 de 2011

ENTIDAD PROMOTORA EMPRESA DE TRANSPORTE DEL TERCER MILENIO TRANSMILENIO S.A.

FECHA DE APERTURA 8 DE NOVIEMBRE DE 2012

FECHA DE PROCLAMACIÓN 20 DE DICIEMBRE DE 2012

OBJETO DEL CONCURSO

Seleccionar la mejor propuesta de anteproyecto arquitectónico, cuyo diseñador suscribirá posteriormente un contrato con TRANSMILENIO S.A., para elaborar el proyecto arquitectónico definitivo y ejercer la supervisión arquitectónica del Concurso de Anteproyecto Arquitectónico para la Readecuación Física del Centro de Control de Transmilenio S.A.

COORDINADOR DE LA SCA BC Arq. Luis Felipe Cristancho Romero

LOCALIZACIÓN Bogotá D.C.

UBICACIÓN Centro de Control de la Operación ubicado en la Avenida El Dorado N° 66-63 ÁREA INTERVENCIÓN 394 m²

N° DE PROCESO SECOP TMSA-CM-06-2012

COORDINADOR ENTIDAD PROMOTORA Ing. Fredy Alberto Rodríguez Diaz

ASESORES TEMÁTICOS

ASESOR JURÍDICO SCA BC

ASESOR JURÍDICO E P

JURADOS PREMIOS OTORGADOS

Arq. Carlos Alberto Barreto Guerrero

Arq. Becket Hamilton Ulloa Forero

Arq. Felipe Van Cotthem Villa

Arq. Enrique Silva Gil

Arq. José Antonio Velandia Clavijo

2do PUESTO

3er PUESTO

Aprobó

Cubicar Grupo Inmobiliario Ltda. Arq. Diego Valencia García

Elaboró Arq. Maria Mercedes Cifuentes Quiñones
Arq. Paola Puche Bravo

SOCIEDAD COLOMBIANA DE ARQUITECTOS BOGOTÁ D.C. Y CUNDINAMARCA

CONCURSO DE ANTEPROYECTO ARQUITECTÓNICO PARA LA READECUACIÓN FÍSICA DEL CENTRO DE CONTROL DE TRANSMILENIO S.A.

Aprobó
Arq. Paola Puche Bravo
Elaboró Arq. Maria Mercedes Cifuentes Quiñones

SOCIEDAD COLOMBIANA DE ARQUITECTOS BOGOTÁ D.C. Y CUNDINAMARCA

NOMBRE DEL CONCURSO:

AÑO

CONCURSO DE DISEÑO PARA UNA PROPUESTA DE VIVIENDA DE INTERÉS PRIORITARIO (VIP) Y USOS COMPLEMENTARIOS EN EL MARCO DE UNA INTERVENCIÓN URBANA INTEGRAL DE LA MANZANA DENOMINADA PLAZA DE LA HOJA

GANADOR:

MGP ARQUITECTURA Y URBANISMO S.A.S. Arq. FELIPE GONZÁLEZ-PACHECO Arq. ÁLVARO BOHÓRQUEZ R.

Contrato SCA BC - EP

ENTIDAD PROMOTORA METROVIVIENDA Y SECRETARÍA DISTRITAL DE AMBIENTE

FECHA DE APERTURA 18 DE ENERO DE 2013

FECHA DE PROCLAMACIÓN 15 DE MARZO DE 2013

OBJETO DEL CONCURSO

El objeto principal del concurso es seleccionar la mejor propuesta de diseño arquitectónico, para un proyecto de vivienda de interés prioritario (VIP) y usos complementarios, en el marco de la intervención integral de la manzana denominada Plaza de la Hoja.

COORDINADOR DE LA SCA BC Arq. Mauricio Rojas Vera

LOCALIZACIÓN Bogotá D.C.

UBICACIÓN Avenida Calle 19 y Avenida del Ferrocarril y Avenida Ciudad de Quito y Carrera 32, Manzana Plaza de la Hoja. ÁREA INTERVENCIÓN 9.653,12 m²: Vivienda VIP (50 m2 Un) y VIS; 2.298,70 m²: Equipamiento; 1.457,46 m² Dotacional

N° DE PROCESO SECOP MV-CMA-024-2012

COORDINADOR ENTIDAD PROMOTORA Arq. Andrés Serrano - Arq. Andrea Tatiana Ortegón Ortegón

ASESORES TEMÁTICOS

ASESOR JURÍDICO SCA BC Dr. Carlos Andrés Gacha Dávila ASESOR JURÍDICO E P

JURADOS PREMIOS OTORGADOS

Arq. Carlos Cubillos Camacho

Arq. Mauricio Pinilla Acevedo

Arq. Josep María Montaner

Arq. Ana Elvira Vélez

Arq. Camilo Santamaría Gamboa

2do PUESTO

3er PUESTO

MENCIÓN

MENCIÓN

MENCIÓN

Arq.Mario Fernando Camargo Gómez

Arq. David Humberto Delgado Rodríguez

Matiz Arquitectura S.A.

Arq. Diego Alberto Rayo Morales

Motta Rodriguez Arquitectos Asociados Ltda.

Arq. Mario Daniel Motta

Manuel Villa Arquitectos

Arq. Manuel Villa

Aprobó

Elaboró Arq. Maria Mercedes Cifuentes Quiñones
Arq. Paola Puche Bravo

SOCIEDAD COLOMBIANA DE ARQUITECTOS BOGOTÁ D.C. Y CUNDINAMARCA

CONCURSO DE DISEÑO PARA UNA PROPUESTA DE VIVIENDA DE INTERÉS PRIORITARIO (VIP) Y USOS COMPLEMENTARIOS EN EL MARCO DE UNA INTERVENCIÓN URBANA INTEGRAL DE LA MANZANA DENOMINADA PLAZA DE LA HOJA

Aprobó
Arq. Paola Puche Bravo
Elaboró Arq. Maria Mercedes Cifuentes Quiñones

FICHA TÉCNICA DE CONCURSOS Versión

SOCIEDAD COLOMBIANA DE ARQUITECTOS BOGOTÁ D.C. Y CUNDINAMARCA

NOMBRE DEL CONCURSO:

CONCURSO PRIVADO ABIERTO DE ANTEPROYECTO ARQUITECTÓNICO PARA EL DISEÑO DE LAS ZONAS COMUNES DEL CENTRO EMPRESARIAL SANTA BÁRBARA P.H.

GANADOR:

OBRAESTUDIO ARQUITECTURA S.A.S. Arq. JUAN RAFAEL MELO LOZANO

AÑO 04.10.2013

2013 No. Contrato SCA BC - EP

ENTIDAD PROMOTORA CONJUNTO CENTRO EMPRESARIAL SANTA BÁRBARA PROPIEDAD HORIZONTAL

FECHA DE APERTURA 15 DE JULIO DE 2013

FECHA DE PROCLAMACIÓN 5 DE SEPTIEMBRE DE 2013

OBJETO DEL CONCURSO

El objeto principal de El Concurso es la selección de la mejor propuesta de anteproyecto arquitectónico, para que el Conjunto Centro Empresarial Santa Bárbara P.H., suscriba con su autor el contrato de consultoría de Diseño Arquitectónico para el Diseño de las Zonas Comunes del Centro Empresarial Santa Bárbara P.H.

COORDINADOR DE LA SCA BC Arq. Jaime Eduardo Beltrán Venegas

LOCALIZACIÓN Bogotá D.C.

UBICACIÓN Avenida Carrera 7ª y Avenida Carrera 9ª entre Calles 113 y 116 ÁREA INTERVENCIÓN 7.952 m²

N° DE PROCESO SECOP N/A

COORDINADOR ENTIDAD PROMOTORA María del Pilar Castillo Gutiérrez

ASESORES TEMÁTICOS

ASESOR JURÍDICO SCA BC

Dr. Carlos Andrés Gacha Dávila

ASESOR JURÍDICO E P -

JURADOS PREMIOS OTORGADOS

Arq. Diana Wiesner Ceballos

Arq. José Daniel Lehoucq Ángulo

2do PUESTO

3er PUESTO

Espacio Colectivo Arquitectos S.A.S.

Arq. Carlos Hernán Betancourt Niño

U.T. Epanca

Camilo Pinilla Castro-Concepto Verde S.A.S.

Arq. Ricardo La Rotta Caballero -

Aprobó

Elaboró Arq. Maria Mercedes Cifuentes Quiñones
Arq. Paola Puche Bravo

SOCIEDAD COLOMBIANA DE ARQUITECTOS BOGOTÁ D.C. Y CUNDINAMARCA

CONCURSO PRIVADO ABIERTO DE ANTEPROYECTO ARQUITECTÓNICO PARA EL DISEÑO DE LAS ZONAS COMUNES DEL CENTRO EMPRESARIAL SANTA BÁRBARA

P.H.

FICHA TÉCNICA DE CONCURSOS
Aprobó
Arq. Paola Puche Bravo
Elaboró Arq. Maria Mercedes Cifuentes Quiñones

FICHA TÉCNICA DE CONCURSOS

SOCIEDAD COLOMBIANA DE ARQUITECTOS BOGOTÁ D.C. Y CUNDINAMARCA

CONCURSO PÚBLICO DE ANTEPROYECTO

NOMBRE DEL CONCURSO:

ARQUITECTÓNICO PARA EL DISEÑO DE COLEGIOS Y UN EQUIPAMIENTO

CULTURAL - TEATRO, EN BOGOTÁ D.C.

AÑO

ENTIDAD PROMOTORA

LOTE EL ENSUEÑO (CIUDAD BOLÍVAR) ANFER INGENIERÍA EU Arq. CARLOS ANDRÉS GARCÍA BENÍTEZ

Versión

GANADOR:

LOTE LA FELICIDAD (FONTIBÓN) Arq. IVÁN LEONARDO FORGIONI FLOREZ 2013

No. Contrato SCA BC - EP

SECRETARÍA DE EDUCACIÓN DEL DISTRITO SECRETARÍA DE CULTURA, RECREACIÓN Y DEPORTE

FECHA DE APERTURA 18 DE NOVIEMBRE DE 2013 FECHA DE PROCLAMACIÓN 27 DE DICIEMBRE DE 2013

2704-2013 (SED) Y 246-2013 (SDCRD)

OBJETO DEL CONCURSO

El objeto del CONCURSO es la selección de las mejores propuestas de anteproyecto arquitectónico para que la Secretaría de Educación del Distrito y la Secretaría Distrital de Cultura Recreación y Deporte suscriban con sus autores los correspondientes contratos de consultoría para la elaboración del diseño arquitectónico (en los términos del reglamento de la Sociedad Colombiana de Arquitectos) y los estudios y diseños técnicos de unos colegios en Bogotá y un Equipamiento Cultural – Teatro, en la localidad de Ciudad Bolívar.

COORDINADOR DE LA SCA BC Arq. Luis Manuel Briceño Triana

LOCALIZACIÓN Bogotá D.C.

UBICACIÓN El Ensueño (Ciudad Bolívar): Trv. 70D Dg 67 A sur - La Felicidad (Fontibón): Calle 13 con Av. Agoberto Mejía ÁREA INTERVENCIÓN El Ensueño: colegio 6.233 m² y equipamiento cultural 3.013 m²-La Felicidad: 7.303 m²

N° DE PROCESO SECOP SED-CM-DCCEE-101-2013

COORDINADOR ENTIDAD PROMOTORA Arq. Carlos Alberto Benavides S. (SED) Arq. Paola Andrea Pinto Sayo (SDCRD)

ASESORES TEMÁTICOS

ASESOR JURÍDICO SCA BC Dr. Carlos Andrés Gacha Dávila ASESOR JURÍDICO E P

JURADOS PREMIOS OTORGADOS

Arq. Carlos Gabriel Campuzano Castello

Arq. Carlos Mauricio Rojas Vera

Arq. Daniel Bonilla Ramírez

Arq. Enrique Bolívar Guzmán

Arq. Luis Eduardo Calderon García

2do PUESTO

3er PUESTO

4to PUESTO

2do PUESTO

3er PUESTO

4to PUESTO

Aprobó

El Ensueño (Ciudad Bolívar) MGP Arquitectura y Urbanismo Arq. Felipe Gonzalez-Pacheco

El Ensueño (Ciudad Bolívar)

Arq. María Paula Vallejo

El Ensueño (Ciudad Bolívar)

JAC Arquitectos SAS Arq. Javier Andrés Cardenas

La Felicidad (Fontibón)

Consorcio La Felicidad A&J Arq. Julian Carmona

La Felicidad (Fontibón)

Arq. Alejandro Rogelis Terán

La Felicidad (Fontibón)

Matiz Arquitectura S.A. Arq. Diego Alberto Rayo Morales

Arq. Paola Puche

Elaboró Arq. Maria Mercedes Cifuentes Quiñones
Bravo

SOCIEDAD COLOMBIANA DE ARQUITECTOS BOGOTÁ D.C. Y CUNDINAMARCA

CONCURSO PÚBLICO DE ANTEPROYECTO ARQUITECTÓNICO PARA EL DISEÑO DE COLEGIOS Y UN EQUIPAMIENTO CULTURAL - TEATRO, EN BOGOTÁ D.C.

LOTE EL ENSUEÑO

LOTE LA FELICIDAD

Aprobó
Arq. Paola Puche Bravo
Elaboró Arq. Maria Mercedes Cifuentes Quiñones

FICHA TÉCNICA DE CONCURSOS

SOCIEDAD COLOMBIANA DE ARQUITECTOS BOGOTÁ D.C. Y CUNDINAMARCA

CONCURSO PÚBLICO DE ANTEPROYECTO

NOMBRE DEL CONCURSO:

AÑO

ARQUITECTÓNICO PARA EL DISEÑO DE LA SEDE DE LA ALCALDÍA LOCAL DE TEUSAQUILLO

GANADOR:

2014

ANFER INGENIERÍA EU Arq. CARLOS ANDRÉS GARCÍA BENÍTEZ

No. Contrato SCA BC - EP

ENTIDAD PROMOTORA FONDO DE DESARROLLO LOCAL DE TEUSAQUILLO

FECHA DE APERTURA 17 ENERO DE 2014

FECHA DE PROCLAMACIÓN 7 DE MARZO DE 2014

044-2013

OBJETO DEL CONCURSO

El objeto principal de EL CONCURSO se fundamenta en: “Seleccionar la propuesta de anteproyecto arquitectónico para que el FONDO DE DESARROLLO LOCAL DE TEUSAQUILLO suscriba con su autor el contrato de consultoría de Diseño Arquitectónico, estudios técnicos y coordinación de los mismos y la supervisión arquitectónica de la Sede de la Alcaldía Local de Teusaquillo.

COORDINADOR DE LA SCA BC Arq. Ruth Estella Domínguez Amorocho

LOCALIZACIÓN Bogotá D.C.

UBICACIÓN Avenida Carrera 30 N° 40A - 14/24/34/38, Localidad de Teusaquillo

ÁREA INTERVENCIÓN 3.940 m²

N° DE PROCESO SECOP FDLT-CPA-001-2014

COORDINADOR ENTIDAD PROMOTORA Arq. Andrés Crovo Jiménez

ASESORES TEMÁTICOS -

ASESOR JURÍDICO SCA BC

ASESOR JURÍDICO E P

Dr. Carlos Andrés Gacha Dávila

Dr. Moises Carreño

JURADOS PREMIOS OTORGADOS

Arq. Felipe González-Pacheco

Arq. Ximena Samper de Neu

Arq. William Hernán Rodríguez García

Arq. Pablo Emilio Forero Quintero

Arq. Miguel Hincapié

Elaboró Arq. Maria Mercedes Cifuentes Quiñones

2do PUESTO

3er PUESTO

MENCIÓN

MENCIÓN

MENCIÓN

Unión Temporal Proceso Urbano

Arq. Néstor Gualteros

Espacio Colectivo Arquitectos S.A.S.

Arq. Carlos Hernán Betancourt Niño

Arq. Alejandro Rogelis Terán

Studio Área 4

Arq. Alejandro González Jaramillo

Contrapunto Taller de Arquitectura S.A.S.

Arq. Gustavo Bautista Moros

Aprobó

Arq. Paola Puche Bravo

SOCIEDAD COLOMBIANA DE ARQUITECTOS BOGOTÁ D.C. Y CUNDINAMARCA

CONCURSO PÚBLICO DE ANTEPROYECTO ARQUITECTÓNICO PARA EL DISEÑO DE LA SEDE DE LA ALCALDÍA LOCAL DE TEUSAQUILLO

Aprobó
Arq. Paola Puche Bravo
Elaboró Arq. Maria Mercedes Cifuentes Quiñones

FICHA TÉCNICA DE CONCURSOS

SOCIEDAD COLOMBIANA DE ARQUITECTOS BOGOTÁ D.C. Y CUNDINAMARCA

NOMBRE DEL CONCURSO:

AÑO

CONCURSO PÚBLICO DE ANTEPROYECTO ARQUITECTÓNICO PARA EL DISEÑO DEL TROPICARIO DEL JARDÍN BOTÁNICO DE BOGOTÁ, JOSÉ CELESTINO MUTIS

GANADOR:

U. T. DE ARQUITECTURA Y PAISAJE Arq. JORGE EMILIO BUITRAGO GUTIÉRREZ Arq. JAIME EDUARDO CABAL MEJÍA

No. Contrato SCA BC - EP

ENTIDAD PROMOTORA JARDÍN BOTÁNICO JOSÉ CELESTINO MUTIS

FECHA DE APERTURA 2 DE ABRIL DE 2014

FECHA DE PROCLAMACIÓN 16 DE MAYO DE 2014

JBB 016-2014

OBJETO DEL CONCURSO

El objeto principal de EL CONCURSO se fundamenta en: “Seleccionar la propuesta de anteproyecto arquitectónico para que el Jardín Botánico José Celestino Mutis suscriba con su autor el contrato de consultoría de Diseño Arquitectónico e Ingeniería estructural, y la posterior coordinación arquitectónica para el diseño del Tropicario del Jardín Botánico de Bogotá, José Celestino Mutis.

COORDINADOR DE LA SCA BC Arq. Juan Pablo Ortiz Suárez

LOCALIZACIÓN Bogotá D.C.

UBICACIÓN Avenida Calle 63 N° 98-95 ÁREA INTERVENCIÓN 2.250 m²

N° DE PROCESO SECOP I DISEÑO TROPICARIO

COORDINADOR ENTIDAD PROMOTORA Arq. Hamilton Barrios Ordóñez

ASESORES TEMÁTICOS

ASESOR JURÍDICO SCA BC

Dr. Carlos Andrés Gacha Dávila ASESOR JURÍDICO E P

Dra. Clara María Mojica

JURADOS PREMIOS OTORGADOS

Arq. Lorenzo Castro Jaramillo

Arq. Diana Wiesner Ceballos

Arq. Felipe González-Pacheco

Arq. Juan Manuel Hoyos Mora

2do PUESTO

3er PUESTO

MENCIÓN

MENCIÓN

Arq. Edgar Ignacio Mazo Zapata

Terrara S.A.S.

Arq. John Daniel Oberlaender

Obraestudio Arquitectura S.A.S.

Arq. Juan Rafael Melo Lozano

Size Arquitectos S.A.S.

Arq. Rene Javier Daniels Ayala

Arq. Pedro Juan Jaramillo Carling -

Elaboró Arq. Maria Mercedes Cifuentes Quiñones

Aprobó

Arq. Paola Puche Bravo

SOCIEDAD COLOMBIANA DE ARQUITECTOS BOGOTÁ D.C. Y CUNDINAMARCA

CONCURSO PÚBLICO DE ANTEPROYECTO ARQUITECTÓNICO PARA EL DISEÑO DEL TROPICARIO DEL JARDÍN BOTÁNICO DE BOGOTÁ, JOSÉ CELESTINO MUTIS

Aprobó
Arq. Paola Puche Bravo
Elaboró Arq. Maria Mercedes Cifuentes Quiñones

SOCIEDAD COLOMBIANA DE ARQUITECTOS BOGOTÁ D.C.

Y CUNDINAMARCA

NOMBRE DEL CONCURSO:

AÑO

CONCURSO PÚBLICO DE ANTEPROYECTO ARQUITECTÓNICO PARA EL DISEÑO DE PROTOTIPOS DE JARDINES INFANTILES DE PRIMERA INFANCIA, EN BOGOTÁ D.C.

GANADOR:

2014

COLECTIVO 720 S.A.S. Arq. MARIO FERNANDO CAMARGO GÓMEZ

No. Contrato SCA BC - EP

ENTIDAD PROMOTORA SECRETARÍA DISTRITAL DE INTEGRACIÓN SOCIAL

FECHA DE APERTURA 4 DE AGOSTO DE 2014

FECHA DE PROCLAMACIÓN 30 DE SEPTIEMBRE DE 2014

OBJETO DEL CONCURSO

El objeto principal de EL CONCURSO se fundamenta en: “Seleccionar la propuesta de anteproyecto arquitectónico para que LA SECRETARÍA DISTRITAL DE INTEGRACIÓN SOCIAL suscriba con su autor el contrato de consultoría de Diseño Arquitectónico, estudios técnicos, la posterior coordinación arquitectónica y técnica, así como la Implantación definitiva de cada uno de los prototipos de Jardines Infantiles primera infancia (A, B y C), en un lote escogido para cada caso, en la ciudad de Bogotá D.C.

COORDINADOR DE LA SCA BC Arq. Carlos Hernando Carrillo Arango

LOCALIZACIÓN Bogotá D.C.

UBICACIÓN Por tratarse de un prototipo no hay localización específica ÁREA INTERVENCIÓN 240 niños 2.231,99 m²; 150 niños 1.518,01m² y 80 niños 900,02 m²

N° DE PROCESO SECOP SDIS-CMSCA-001

COORDINADOR ENTIDAD PROMOTORA Arq. Carlos Hernando Carrillo Arango

ASESORES TEMÁTICOS -

ASESOR JURÍDICO SCA BC

ASESOR JURÍDICO E P

JURADOS

Arq. Pedro Juan Jaramillo Carling

Arq. Juan Pablo Ortíz Suárez

Arq. Fernando De La Carrera

Arq. Saúl Cortés Salamanca

Dr. Carlos Andrés Gacha Dávila

Dra. Raquel Lucía Cepeda de la Espriella

PREMIOS OTORGADOS

2do PUESTO

3er PUESTO

MENCIÓN

MENCIÓN

Arq. Edgar Ignacio Mazo Zapata

Studio Área 4 S.A.S.

Arq. Alejandro Gonzalez Jaramillo

Eje Arquitectura y Urbanismo

Arq. Joan Ferney Zuleta Gaviria

MGP Arquitectura y Urbanismo S.A.S.

Arq. Felipe Gonzalez-Pacheco

Arq. Claudia Stella Celis Vásquez -

Elaboró Arq. Maria Mercedes Cifuentes Quiñones

Aprobó

Arq. Paola Puche Bravo

SOCIEDAD COLOMBIANA DE ARQUITECTOS BOGOTÁ D.C. Y CUNDINAMARCA

CONCURSO PÚBLICO DE ANTEPROYECTO ARQUITECTÓNICO PARA EL DISEÑO DE PROTOTIPOS DE JARDINES INFANTILES DE PRIMERA INFANCIA, EN BOGOTÁ D.C.

Aprobó
Arq. Paola Puche Bravo
Elaboró Arq. Maria Mercedes Cifuentes Quiñones

FICHA TÉCNICA DE CONCURSOS Versión

SOCIEDAD COLOMBIANA DE ARQUITECTOS BOGOTÁ D.C. Y CUNDINAMARCA

NOMBRE DEL CONCURSO:

AÑO

CONCURSO PÚBLICO DE ANTEPROYECTO ARQUITECTÓNICO PARA EL DISEÑO DE LA NUEVA CINEMATECA BOGOTÁ

GANADOR:

COLECTIVO 720 S.A.S.

Arq. MARIO FERNANDO CAMARGO GÓMEZ 2014

No. Contrato SCA BC - EP

ENTIDAD PROMOTORA EMPRESA DE RENOVACIÓN URBANA

FECHA DE APERTURA 18 DE SEPTIEMBRE DE 2014

FECHA DE PROCLAMACIÓN 10 DE NOVIEMBRE DE 2014

076-2014

OBJETO DEL CONCURSO

El objeto principal de EL CONCURSO se fundamenta en: Seleccionar la propuesta de anteproyecto arquitectónico para que LA EMPRESA DE RENOVACION URBANA suscriba con su autor el contrato de consultoría de Diseño Arquitectónico, estudios técnicos, la posterior coordinación arquitectónica y técnica, en la ciudad de Bogotá D.C.

COORDINADOR DE LA SCA BC Arq. Ruth Estella Dominguez Amorocho

LOCALIZACIÓN Bogotá D.C.

UBICACIÓN Manzana 5 del Barrio las Aguas, Calles 19 y 20y carrera 3ª y Eje Ambiental Avenida Jiménez, Localidad de Santa Fe ÁREA INTERVENCIÓN 6.264,75 m²

N° DE PROCESO SECOP I 076-2014

COORDINADOR ENTIDAD PROMOTORA Arq. Cesar Augusto Marín Clavijo

ASESORES TEMÁTICOS -

ASESOR JURÍDICO SCA BC Dr. Carlos Andrés Gacha Dávila ASESOR JURÍDICO E P -

JURADOS

Arq. Octavio Moreno Amaya

Arq. Carlos Campuzano Castello

Arq. Fernando Ospina Varón

PREMIOS OTORGADOS

2do PUESTO

3er PUESTO MENCIÓN

Eje Arquitectura y Urbanismo

Arq. Esteban Alvarez Paredes

MGP Arquitectura y Urbanismo S.A.S.

Arq. Felipe González-Pacheco Mejía

M.C. Arquitectos S.A.

Arq. Mario Andrés Cabrera Pinzón

Arq. Carlos Alberto Montoya Correa -

Arq. Gerardo Manuel Salinas Van Orman -

Elaboró Arq. Maria Mercedes Cifuentes Quiñones

Aprobó

Arq. Paola Puche Bravo

SOCIEDAD COLOMBIANA DE ARQUITECTOS BOGOTÁ D.C. Y CUNDINAMARCA

CONCURSO PÚBLICO DE ANTEPROYECTO ARQUITECTÓNICO PARA EL DISEÑO DE LA NUEVA CINEMATECA BOGOTÁ

Aprobó
Arq. Paola Puche Bravo
Elaboró Arq. Maria Mercedes Cifuentes Quiñones

SOCIEDAD COLOMBIANA DE ARQUITECTOS BOGOTÁ D.C. Y CUNDINAMARCA

NOMBRE DEL CONCURSO:

AÑO

CONCURSO PÚBLICO DE ANTEPROYECTO ARQUITECTÓNICO PARA LA SEDE DE LA ALCALDÍA LOCAL DE CIUDAD BOLÍVAR

GANADOR:

2014

Arq. NÉSTOR MEDINA AGUILAR

No. Contrato SCA BC - EP

ENTIDAD PROMOTORA FONDO DE DESARROLLO LOCAL DE CIUDAD BOLÍVAR

FECHA DE APERTURA 10 DE OCTUBRE DE 2014

FECHA DE PROCLAMACIÓN 27 DE NOVIEMBRE 2014

CPS-061-2014

OBJETO DEL CONCURSO

El objeto principal de EL CONCURSO se fundamenta en: “Seleccionar la propuesta de anteproyecto arquitectónico para que el FONDO DE DESARROLLO LOCAL DE CIUDAD BOLIVAR, suscriba con su autor el contrato de consultoría de Diseño Arquitectónico, estudios técnicos, y la posterior supervisión arquitectónica del proyecto en la ciudad de Bogotá D.C.”

COORDINADOR DE LA SCA BC Arq. Ruth Estella Dominguez Amorocho

LOCALIZACIÓN Bogotá D.C.

UBICACIÓN Avenida 60 Sur (Av.Villavicencio) N° 20 F – 33 / Nueva Dirección: Dg 62 Sur N° 20 F - 20, Localidad Ciudad Bolívar ÁREA INTERVENCIÓN 4.509,2 m²

N° DE PROCESO SECOP I FDLCB-CM-005-2014

COORDINADOR ENTIDAD PROMOTORA Arq. Ferney Caviedes Pérez

ASESORES TEMÁTICOS

ASESOR JURÍDICO SCA BC

Dr. Carlos Andrés Gacha Dávila ASESOR JURÍDICO E P

JURADOS

Arq. Juan Pablo Ortíz Suárez

Arq. Jorge Gutierrez Martinez

Arq. Mauricio Pinilla Acevedo

Arq. Julio Alvaro Forigua García

PREMIOS OTORGADOS

2do PUESTO

3er PUESTO

MENCIÓN

MENCIÓN

Obraestudio Arquitectura S.A.S.

Arq. Juan Rafael Melo Lozano

Arq. Daniel Santiago Herrera Diez

Arq. Diego Chavarro Ayala

LM Arquitectos S.A.S

Arq. Nathali Montoya Arango

Arq. José Gabriel Molina Lago -

Elaboró Arq. Maria Mercedes Cifuentes Quiñones

Aprobó

Arq. Paola Puche Bravo

SOCIEDAD COLOMBIANA DE ARQUITECTOS BOGOTÁ D.C. Y CUNDINAMARCA

CONCURSO PÚBLICO DE ANTEPROYECTO ARQUITECTÓNICO PARA LA SEDE DE LA ALCALDÍA LOCAL DE CIUDAD BOLÍVAR

Aprobó
Arq. Paola Puche Bravo
Elaboró Arq. Maria Mercedes Cifuentes Quiñones

SOCIEDAD COLOMBIANA DE ARQUITECTOS BOGOTÁ D.C. Y CUNDINAMARCA

NOMBRE DEL CONCURSO:

CONCURSO PÚBLICO DE ANTEPROYECTO ARQUITECTÓNICO PARA EL DISEÑO DEL AUDITORIO Y CAFETERÍA DE LA INSTITUCIÓN EDUCATIVA DEPARTAMENTAL POMPILIO MARTÍNEZ

GANADOR:

STUDIO ÁREA 4 S.A.S. Arq. ALEJANDRO GONZÁLEZ JARAMILLO

2014

No. Contrato SCA BC - EP

AÑO 255 -2014

ENTIDAD PROMOTORA ALCALDÍA MUNICIPAL DE CAJICÁ

FECHA DE APERTURA 19 DE NOVIEMBRE DE 2014

FECHA DE PROCLAMACIÓN 23 DE DICIEMBRE DE 2014

OBJETO DEL CONCURSO

El objeto principal de EL CONCURSO se fundamenta en: Seleccionar la propuesta de anteproyecto arquitectónico para que LA ALCLADÍA MUNICIPAL DE CAJICÁ suscriba con su autor el contrato de consultoría de Diseño Arquitectónico, estudios técnicos, la posterior coordinación arquitectónica y técnica, en el Municipio de Cajicá.

COORDINADOR DE LA SCA BC Arq. Luis Felipe Cristancho Romero

LOCALIZACIÓN Cajicá - Cundinamarca

UBICACIÓN Carrera 6ª N° 1-47 Sur ÁREA INTERVENCIÓN 1.166,5 m²

N° DE PROCESO SECOP I CONCURSO ARQUITECTÓNICO

COORDINADOR ENTIDAD PROMOTORA Arq. Juan Carlos Hernández

ASESORES TEMÁTICOS

ASESOR JURÍDICO SCA BC

Dr. Carlos Andrés Gacha Dávila ASESOR JURÍDICO E P

JURADOS

Arq. Sergio Trujillo Jaramillo

Arq. Daniel Bonilla Ramírez

Arq. Suely Vargas Nobrega

Arq. Yanira Navarrete Moyano

PREMIOS OTORGADOS

2do PUESTO

3er PUESTO

MENCIÓN

MENCIÓN

T1 Arquitectura S.A.S.

Arq. Javier Augusto Aristizabal

Arq. Luis Eduardo Calderón García

Proceso Urbano S.A.S.

Arq. Wilson Salvador Gamba

Artek S.A.S.

Arq. Juan Fernando Valencia G.

Arq. Zulma Marcela Santos Santos -

Elaboró Arq. Maria Mercedes Cifuentes Quiñones

Aprobó

Arq. Paola Puche Bravo

SOCIEDAD COLOMBIANA DE ARQUITECTOS BOGOTÁ D.C. Y CUNDINAMARCA

CONCURSO PÚBLICO DE ANTEPROYECTO ARQUITECTÓNICO PARA EL DISEÑO DEL AUDITORIO Y CAFETERÍA DE LA INSTITUCIÓN

EDUCATIVA DEPARTAMENTAL POMPILIO MARTÍNEZ

Aprobó
Arq. Paola Puche Bravo
Elaboró Arq. Maria Mercedes Cifuentes Quiñones

SOCIEDAD COLOMBIANA DE ARQUITECTOS BOGOTÁ D.C. Y CUNDINAMARCA

COLEGIO LA PRADERA DEL VOLCÁN

COLECTIVO 720 S.A.S.

NOMBRE DEL CONCURSO:

AÑO

CONCURSO PÚBLICO DE ANTEPROYECTO ARQUITECTÓNICO PARA EL DISEÑO DE COLEGIOS Y JARDINES INFANTILES DISTRITALES EN BOGOTÁ D.C.

GANADOR:

Arq. MARIO FERNANDO CAMARGO GÓMEZ

JARDÍN SABANA DE TIBABUYES

FP OFICINA DE ARQUITECTURA S.A.S.

Arq. JOSÉ ARNULFO PUENTES PABÓN 2015 No. Contrato SCA BC - EP

ENTIDAD PROMOTORA SECRETARÍA DE EDUCACIÓN DEL DISTRITO

FECHA DE APERTURA 22 DE ABRIL DE 2015

FECHA DE PROCLAMACIÓN 5 DE JUNIO DE 2015

OBJETO DEL CONCURSO

COORDINADOR DE LA SCA BC

LOCALIZACIÓN Bogotá D.C.

El objeto del presente concurso es la selección de las mejores propuestas de anteproyectos arquitectónicos para que la Secretaría de Educación del Distrito suscriba con sus autores los correspondientes contratos de consultoría para la elaboración del diseño arquitectónico (en los términos del decreto 2090 de 1989) y los estudios y diseños técnicos para los predios El Volcán La Pradera (Bosa) y Sabana de Tibabuyes (Suba).

Arq. Luis Manuel Briceño Triana

UBICACIÓN Bosa Lote La Pradera del Volcán Carrera 92 N° 73 – 50 Sur - Suba Lote Sabana de Tibabuyes Calle 142 N° 128 - 02 ÁREA INTERVENCIÓN La Pradera del Volcán (Bosa) 7.973 m² - Sabana de Tibabuyes (Suba) 1.359 m²

N° DE PROCESO SECOP I SED-CM-DCCEE-025-2015

COORDINADOR ENTIDAD PROMOTORA Arq. Carlos Alberto Benavides Suescún

ASESORES TEMÁTICOS -

ASESOR JURÍDICO SCA BC

ASESOR JURÍDICO E P

JURADOS

Arq. Antonio Manrique Gutiérrez

Arq. Juan José Márquez Osorio

Arq. José Daniel Lehoucq Angulo

Arq. Clemencia Escallón Gartner

Dr. Carlos Andrés Gacha Dávila

Dr. Helbert Alfonso Suárez Gómez

PREMIOS OTORGADOS

2do PUESTO

3er PUESTO

2do PUESTO

3er PUESTO

Colegio La Pradera del Volcán Anfer Ingeniería E.U. Arq. Andrés Fernando Rosero

Colegio La Pradera del Volcán -Inversiones Antri S.A.S. Arq. Miguel Eduardo Angulo Escrucería

Jardín Sabana de Tibabuyes

Espacio Colectivo Arq. Carlos Hernán Betancourt Niño

Jardín Sabana de Tibabuyes

Arq. Billy Andrés Hurtado García

Arq. María Eugenia Martínez Delgado -

Elaboró Arq. Maria Mercedes Cifuentes Quiñones

Aprobó

Arq. Paola Puche Bravo

SOCIEDAD COLOMBIANA DE ARQUITECTOS BOGOTÁ D.C. Y CUNDINAMARCA

CONCURSO PÚBLICO DE ANTEPROYECTO ARQUITECTÓNICO PARA EL DISEÑO DE COLEGIOS Y JARDINES INFANTILES DISTRITALES EN BOGOTÁ D.C.

LOTE LA PRADERA DEL VOLCÁN

LOTE JARDÍN SABANA DE TIBABUYES

Aprobó
Arq. Paola Puche Bravo
Elaboró Arq. Maria Mercedes Cifuentes Quiñones

SOCIEDAD COLOMBIANA DE ARQUITECTOS BOGOTÁ D.C. Y CUNDINAMARCA

CONCURSO PÚBLICO DE ANTEPROYECTO

NOMBRE DEL CONCURSO:

AÑO

ARQUITECTÓNICO PARA EL DISEÑO DEL MUSEO NACIONAL DE MEMORIA EN BOGOTÁ

GANADOR:

MGP ARQUITECTURA Y URBANISMO S.A.S. Arq. FELIPE GONZÁLEZ-PACHECO

2015 No. Contrato SCA BC - EP

ENTIDAD PROMOTORA CENTRO NACIONAL DE MEMORIA HISTÓRICA

FECHA DE APERTURA 27 DE MAYO DE 2015

FECHA DE PROCLAMACIÓN 13 DE AGOSTO DE 2015

543-2014

OBJETO DEL CONCURSO

El objeto principal de EL CONCURSO se encamina a seleccionar la propuesta de anteproyecto arquitectónico para que el CENTRO NACIONAL DE MEMORIA HISTORICA suscriba con su autor el contrato de consultoría para la ejecución del diseño arquitectónico, los estudios técnicos, la coordinación arquitectónica y técnica y demás labores inherentes a los alcances y etapas de referencia de los servicios profesionales de diseño arquitectónico.

COORDINADOR DE LA SCA BC Arq. Sergio Trujillo Jaramillo

LOCALIZACIÓN Bogotá D.C.

UBICACIÓN Calle 26 o Avenida Jorge Eliécer Gaitán, la Carrera 29, la Avenida Américas y el límite norte del Box Coulvert de la Calle 26 ÁREA INTERVENCIÓN 15.879,59 m²

N° DE PROCESO SECOP 543-2014

COORDINADOR ENTIDAD PROMOTORA Arq. Fernando Viviescas Monsalve

ASESORES TEMÁTICOS -

ASESOR JURÍDICO SCA BC

ASESOR JURÍDICO E P

JURADOS

Arq. Juan Pablo Ortíz Suarez

Arq. Clemencia Escallón Gartner

Arq. Mauricio Pinilla Acevedo

Arq. Mario Arturo Figueroa Rosales

Arq. Efraín Riaño Lesmes

Elaboró Arq. Maria Mercedes Cifuentes Quiñones

Dr. Carlos Andrés Gacha Dávila

Dr. Cesar Rincón

PREMIOS OTORGADOS

2do PUESTO

3er PUESTO

MENCIÓN

MENCIÓN

MENCIÓN

Taller Sintesis Arquiettura S.A.S.

Arq. Farhid Maya

David Delgado Arquitectos S.A.S.

Arq. David Humberto Delgado Rodríguez

Consorcio Arquitectos Latinoamericanos

García Estefan - Monoblock

Fernando y Ricardo Rincón Arquitectos S.A.S.

Arq. Juan Ricardo Rincón

Estudio Altiplano S.A.S.

Arq. Alejandro Pinyol

Aprobó

Arq. Paola Puche Bravo

SOCIEDAD COLOMBIANA DE ARQUITECTOS BOGOTÁ D.C. Y CUNDINAMARCA

CONCURSO PÚBLICO DE ANTEPROYECTO ARQUITECTÓNICO PARA EL DISEÑO DEL MUSEO NACIONAL DE MEMORIA EN BOGOTÁ

Aprobó
Arq. Paola Puche Bravo
Elaboró Arq. Maria Mercedes Cifuentes Quiñones

SOCIEDAD COLOMBIANA DE ARQUITECTOS BOGOTÁ D.C. Y CUNDINAMARCA

NOMBRE DEL CONCURSO:

CONCURSO PÚBLICO DE IDEAS PARA LA FORMULACIÓN DEL PLAN ESTRATÉGICO DE INTERVENCIÓN INTEGRAL Y

GANADOR: AÑO

MULTISECTORIAL PARA EL RÍO FUCHA Y SU ÁREA DE INFLUENCIA

UNIÓN TEMPORAL MOBO + ECOPOLIS Arq. ALEX JIMÉNEZ 2015

No. Contrato SCA BC - EP

ENTIDAD PROMOTORA SECRETARÍA DISTRITAL DE PLANEACIÓN

FECHA DE APERTURA 8 DE SEPTIEMBRE DE 2015

FECHA DE PROCLAMACIÓN 19 DE NOVIEMBRE DE 2015

OBJETO DEL CONCURSO

El objeto principal de EL CONCURSO se orienta a seleccionar la propuesta del presente CONCURSO PÚBLICO DE IDE AS PAR A L A FORMUL ACIÓN DEL PL AN ESTRATÉGICO DE INTERVENCIÓN INTEGRAL Y MULTISECTORIAL PAR A EL RIO FUCHA Y SU ÀREA DE INFLUENCIA, se fundamenta en: “Seleccionar la propuesta de ideas para que el DISTRITO CAPITAL SECRETARIA

DISTRITAL DE PL ANE ACION suscriba con su suscriba con su autor, el contrato de consultoría para la ejecución del diseño arquitectónico, los estudios técnicos, la coordinación arquitectónica y técnica y demás labores inherentes a los alcances y etapas de referencia de los servicios profesionales de diseño arquitectónico.

COORDINADOR DE LA SCA BC Arq. Ruth Estella Dominguez Amorocho

LOCALIZACIÓN Bogotá D.C.

UBICACIÓN Con un recorrido de aproximado de 22 km desde la Hacienda el Delirio, Localidad de San Cristóbal, 17 km.

ÁREA INTERVENCIÓN 3.955 Ha

N° DE PROCESO SECOP I SDP-CM-0011-2015

COORDINADOR ENTIDAD PROMOTORA

ASESORES TEMÁTICOS

ASESOR JURÍDICO SCA BC

ASESOR JURÍDICO E P

JURADOS

Arq. Claudia Carrizosa Ricaurte

Arq. Beatriz Estrada de Nova

Arq. Julio Cesar Gómez Sandoval

Arq. Otto Francisco Quintero Arias

Arq. Adriana Isabel Gutierrez

Dr. Carlos Andrés Gacha Dávila

Dr. Juan Pablo Salinas

PREMIOS OTORGADOS

2do PUESTO

3er PUESTO

MENCIÓN

MENCIÓN

Enalto Espacio y Territorio S.A.S.

Arq. Ivan Dario Solano

Latitud Taller S.A.S.

Arq. Juan David Hoyos

Arq. Edgar Ignacio Mazo Zapata

Colectivo 720 S.A.S.

Arq. Mario Fernando Camargo Gómez

Arq. Pedro Eliseo Sánchez Baracaldo -

Elaboró Arq. Maria Mercedes Cifuentes Quiñones

Aprobó

Arq. Paola Puche Bravo

SOCIEDAD COLOMBIANA DE ARQUITECTOS BOGOTÁ D.C. Y CUNDINAMARCA

CONCURSO PÚBLICO DE IDEAS PARA LA FORMULACIÓN DEL PLAN ESTRATÉGICO DE INTERVENCIÓN INTEGRAL Y MULTISECTORIAL PARA EL RÍO FUCHA Y SU ÁREA DE INFLUENCIA

Aprobó
Arq. Paola Puche Bravo
Elaboró Arq. Maria Mercedes Cifuentes Quiñones

FICHA TÉCNICA DE CONCURSOS

SOCIEDAD COLOMBIANA DE ARQUITECTOS BOGOTÁ D.C. Y CUNDINAMARCA

NOMBRE DEL CONCURSO:

AÑO

CONCURSO PÚBLICO DE ANTEPROYECTO ARQUITECTÓNICO PARA EL DISEÑO DE LA SEDE SECTOR INTEGRACIÓN SOCIAL SDIS EN BOGOTÁ, D.C.

GANADOR:

MOBO ARCHITECTS S.A.S. Arq. GIORGIO BADALACCHI MONCADA

2015 No. Contrato SCA BC - EP

ENTIDAD PROMOTORA SECRETARÍA DISTRITAL DE INTEGRACIÓN SOCIAL

FECHA DE APERTURA 23 DE NOVIEMBRE DE 2015

FECHA DE PROCLAMACIÓN 23 DE DICIEMBRE DE 2015

10234-2013

OBJETO DEL CONCURSO

COORDINADOR DE LA SCA BC

LOCALIZACIÓN Bogotá D.C.

El objeto principal de EL CONCURSO se orienta a seleccionar la propuesta de anteproyecto arquitectónico para que LA SECRETARÍA DISTRITAL DE INTEGRACIÓN SOCIAL Suscriba con su autor, el contrato de consultoría para la ejecución del diseño arquitectónico, los estudios técnicos, la coordinación arquitectónica y técnica y demás labores inherentes a los alcances y etapas de referencia de los servicios profesionales de diseño arquitectónico.

UBICACIÓN Carrera 32 N° 12 - 55 ÁREA INTERVENCIÓN 17.973 m²

N° DE PROCESO SECOP I SDIS-CMAA-001-2015

Arq. Carlos Hernando Carrillo Arango

COORDINADOR ENTIDAD PROMOTORA Arq. María Victoria Barrera Bernal

ASESORES TEMÁTICOS

ASESOR JURÍDICO SCA BC

ASESOR JURÍDICO E P

Dr. Carlos Andrés Gacha Dávila

Dr. Mauricio Barragán Moreno

JURADOS PREMIOS OTORGADOS

Arq. Gustavo Perry Torres

Arq. Sara María Giraldo Mejía

Arq. Antonio Velandia Clavijo

Arq. Gisela Tamasco Torres

Arq. Catalina Camargo Ospina

2do PUESTO

3er PUESTO

Aprobó

Taller Sintesis Arquitectura S.A.S.

Arq. Farhid Maya Ramírez

De Arquitectura y Paisaje

Arq. Jaime Eduardo Cabal Mejía

Elaboró Arq. Maria Mercedes Cifuentes Quiñones
Arq. Paola Puche Bravo

SOCIEDAD COLOMBIANA DE ARQUITECTOS BOGOTÁ D.C. Y CUNDINAMARCA

CONCURSO PÚBLICO DE ANTEPROYECTO ARQUITECTÓNICO PARA EL DISEÑO DE LA SEDE SECTOR INTEGRACIÓN SOCIAL SDIS EN BOGOTÁ, D.C.

Aprobó
Arq. Paola Puche Bravo
Elaboró Arq. Maria Mercedes Cifuentes Quiñones

FICHA TÉCNICA DE CONCURSOS

SOCIEDAD

COLOMBIANA DE ARQUITECTOS BOGOTÁ D.C. Y CUNDINAMARCA

NOMBRE DEL CONCURSO:

AÑO

CONCURSO DE ANTEPROYECTO ARQUITECTÓNICO PARA EL DISEÑO DE LA NUEVA SEDE DE UNIANDINOS EN BOGOTÁ D.C.

GANADOR:

2015

U T UNIANDES2016 CONVEL-JAVIER VERA Arq. JAVIER VERA LONDOÑO

No. Contrato SCA BC - EP

CPS AGOSTO 2015

ENTIDAD PROMOTORA ASOCIACIÓN DE EGRESADOS DE LA UNIVERSIDAD DE LOS ANDES - UNIANDES

FECHA DE APERTURA 22 DE OCTUBRE DE 2015

FECHA DE PROCLAMACIÓN 28 DE ENERO DE 2016

OBJETO DEL CONCURSO

COORDINADOR DE LA SCA BC

LOCALIZACIÓN Bogotá D.C.

El objeto principal de EL CONCURSO es seleccionar la mejor propuesta del CONCURSO PRIVADO DE ANTEPROYECTO ARQUITECTONICO PARA EL DISEÑO DE LA NUEVA SEDE DE UNIANDINOS EN BOGOTÁ D.C., con el propósito de “Seleccionar la propuesta arquitectónica para que UNIANDINOS suscriba con su autor, el contrato de consultoría para la ejecución del diseño arquitectónico, los estudios técnicos, la coordinación arquitectónica y técnica y demás labores inherentes a los alcances y etapas de referencia de los servicios profesionales de diseño arquitectónico.

Arq. Sergio Trujillo Jaramillo

UBICACIÓN Carrera 16 al oriente y carrera 17 al occidente y las calles 92 al norte y 91 al sur ÁREA INTERVENCIÓN 11.826 m²

N° DE PROCESO SECOP N/A

COORDINADOR ENTIDAD PROMOTORA Arq. Alfonso Guzmán Pinto

ASESORES TEMÁTICOS

ASESOR JURÍDICO SCA BC

ASESOR JURÍDICO E P

Dr. Carlos Andrés Gacha Dávila

Dra. Laura Rodríguez

JURADOS PREMIOS OTORGADOS

Arq. Eduardo Mazuera Nieto

Arq. Ricardo Navarrete Jiménez

Aqr. Alberto Miani Uribe

2do PUESTO

3er PUESTO MENCIÓN

Arq. Luis Eduardo Calderón García

Rojas Iragorri Arquitectos S.A.S.

Arq. Juan Carlos Rojas Iragorri

Arpro Arquitectos ingenieros S.A.S.

Arq. Juan Sebastián Matamala Urrea

Arq. Maria Mercedes Cifuentes Quiñones

Aprobó

Arq. Paola Puche Bravo

Elaboró

SOCIEDAD COLOMBIANA DE ARQUITECTOS BOGOTÁ D.C. Y CUNDINAMARCA

CONCURSO DE ANTEPROYECTO ARQUITECTÓNICO PARA EL DISEÑO DE LA NUEVA SEDE DE UNIANDINOS EN BOGOTÁ D.C.

Aprobó
Arq. Paola Puche Bravo
Elaboró Arq. Maria Mercedes Cifuentes Quiñones

FICHA TÉCNICA DE CONCURSOS

SOCIEDAD COLOMBIANA DE ARQUITECTOS BOGOTÁ D.C. Y CUNDINAMARCA

NOMBRE DEL CONCURSO:

AÑO

Versión

CONCURSO PÚBLICO DE IDEAS PARA LA REALIZACIÓN DEL PROYECTO URBANO

VOTO NACIONAL Y LA ESTANZUELA

2016

GANADOR:

Arq. CESAR AUGUSTO SALDARRIAGA OSPINA

No. Contrato SCA BC - EP

ENTIDAD PROMOTORA EMPRESA DE RENOVACIÓN Y DESARROLLO URBANO DE BOGOTÁ

FECHA DE APERTURA 3 DE NOVIEMBRE DE 2016

FECHA DE PROCLAMACIÓN 16 DE NOVIEMBRE DE 2016

134-2016

OBJETO DEL CONCURSO

COORDINADOR DE LA SCA BC

LOCALIZACIÓN Bogotá D.C.

El objeto principal de EL CONCURSO se orienta a seleccionar la propuesta de esquema básico urbanístico para que la EMPRESA DE RENOVACIÓN Y DESARROLLO URBANO DE BOGOTÁ D.C cuente con los lineamientos para formular el instrumento de planeamiento que permita un proyecto para mejorar las condiciones urbanas, ambientales, sociales y económicas del sector a intervenir, a par tir de un modelo de ocupación que garantice la mejor utilización y aprovechamiento del territorio, estructurado a par tir de elementos urbanos de calidad que permitan una intervención cualificada, sostenible y organizada del territorio.

Arq. Sergio Trujillo Jaramillo

UBICACIÓN Localidad Los Mártires: Barrios Voto Nacional y Estanzuela: Av Los Comuneros y Av Colón y entre Av Caracas y Cra 18 ÁREA INTERVENCIÓN Número de Manzanas 41, Área Bruta 43,10 Ha aprox

N° DE PROCESO SECOP I CONCURSO ARQUITECTONICO 01-2016

COORDINADOR ENTIDAD PROMOTORA Arq. Juan Pablo Zorro Pinzón

ASESORES TEMÁTICOS

ASESOR JURÍDICO SCA BC

ASESOR JURÍDICO E P

Dr. Carlos Andrés Gacha Dávila

JURADOS PREMIOS OTORGADOS

Arq. Pablo Emilio Forero Quintero

Arq. Camilo Santamaría Gamboa

Arq. Carlos Andres Betancur Cifuentes

Arq. Diana Covaleda Salas

Arq. Martín Anzellini García-Reyes

Elaboró Arq. Maria Mercedes Cifuentes Quiñones

2do PUESTO

3er PUESTO

1a MENCIÓN

2a MENCIÓN

3a MENCIÓN

4a MENCIÓN

5a MENCIÓN

Aprobó

Arq. Fernando Cortes Larreamendy

Arq. Billy Andres Hurtado García

Colectivo 720 S.A.S.

Arq. Mario Fernando Camargo Gómez

Arq. Andres Ortiz Samper

Arq. Felipe Andres Bermúdez Durana

Arq. Laura Patricia Muñeton

C.A.U Compañía de Arquitectura Urbanismo y Planeación Arq. Juan Jacobo Molina Restrepo

Arq. Paola Puche Bravo

SOCIEDAD COLOMBIANA DE ARQUITECTOS BOGOTÁ D.C. Y CUNDINAMARCA

CONCURSO PÚBLICO DE IDEAS PARA LA REALIZACIÓN DEL PROYECTO URBANO VOTO NACIONAL Y LA ESTANZUELA

Aprobó
Arq. Paola Puche Bravo
Elaboró Arq. Maria Mercedes Cifuentes Quiñones

FICHA TÉCNICA DE CONCURSOS Versión

SOCIEDAD COLOMBIANA DE ARQUITECTOS BOGOTÁ D.C. Y CUNDINAMARCA

NOMBRE DEL CONCURSO:

AÑO

CONCURSO PRIVADO DE ANTEPROYECTO PARA EL DISEÑO ARQUITECTÓNICO DE LA NUEVA SEDE DEL CELAM EN BOGOTÁ

GANADOR:

CAMILO ESGUERRA S.A.S. Arq. CAMILO ESGUERRA SOLANO 2017

No. Contrato SCA BC - EP

ENTIDAD PROMOTORA CONSEJO ESPISCOPAL LATINOAMERICANO - CELAM

FECHA DE APERTURA 17 DE MARZO DE 2017

FECHA DE PROCLAMACIÓN 4 DE MAYO DE 2017

CPS CELAM-SCA

OBJETO DEL CONCURSO

COORDINADOR DE LA SCA BC

LOCALIZACIÓN Bogotá D.C.

El objeto principal de EL CONCURSO se orienta a seleccionar la propuesta de anteproyecto arquitectónico para que el CELAM suscriba con su autor, el contrato de consultoría para la ejecución del diseño arquitectónico, los estudios técnicos, la coordinación arquitectónica y técnica y demás labores inherentes a los alcances y etapas de referencia de los servicios profesionales de diseño arquitectónico.

Arq. Suely Vargas Nobrega

UBICACIÓN Avenida Boyacá N°169 – 75 Localidad de Suba ÁREA INTERVENCIÓN 13.525,93 m²

N° DE PROCESO SECOP I N/A

COORDINADOR ENTIDAD PROMOTORA

ASESORES TEMÁTICOS

ASESOR JURÍDICO SCA BC

Dr. Carlos Andrés Gacha Dávila ASESOR JURÍDICO E P

JURADOS

Arq. Carlos Alberto Hernández Correa

Arq. Beatriz Estrada de Nova

Arq. Octavio Moreno Amaya

PREMIOS OTORGADOS

2do PUESTO

3er PUESTO

Aprobó

G.X. Samper Arquitectos

Arq. Germán Samper Gnecco

Elaboró Arq. Maria Mercedes Cifuentes Quiñones
Arq. Paola Puche Bravo

SOCIEDAD COLOMBIANA DE ARQUITECTOS BOGOTÁ D.C. Y CUNDINAMARCA

CONCURSO PRIVADO DE ANTEPROYECTO PARA EL DISEÑO ARQUITECTÓNICO DE LA NUEVA SEDE DEL CELAM EN BOGOTÁ

Aprobó
Arq. Paola Puche Bravo
Elaboró Arq. Maria Mercedes Cifuentes Quiñones

FICHA TÉCNICA DE CONCURSOS Versión

SOCIEDAD COLOMBIANA DE ARQUITECTOS BOGOTÁ D.C. Y CUNDINAMARCA

NOMBRE DEL CONCURSO:

CONCURSO PÚBLICO DE IDEAS PARQUE COLSUBSIDIO - PARQUE JUAN AMARILLO

AÑO

GANADOR:

Arq. ALEX RICARDO JIMÉNEZ CRUZ

No. Contrato SCA BC - EP

ENTIDAD PROMOTORA INSTITUTO DISTRITAL DE RECREACIÓN Y DEPORTE - IDRD

FECHA DE APERTURA 25 DE ABRIL DE 2017

FECHA DE PROCLAMACIÓN 16 DE JUNIO DE 2017

4137 DE 2016

OBJETO DEL CONCURSO

COORDINADOR DE LA SCA BC

LOCALIZACIÓN Bogotá D.C.

Se orienta a seleccionar la propuesta de esquema básico urbanístico y paisajístico para que el INSTITUTO DISTRITAL DE RECREACION Y DEPORTE (IDRD) cuente con lineamientos para generar una posterior implementación y diseño detallado en anteproyecto y proyecto del parque con la estructura base de las ideas que en el concurso se generen.

Arq. Iván Dario Solano Doncel

UBICACIÓN Al occidente de Bogotá: límite con la Ciudadela Colsubsidio y límite con los bordes ecológicos de los sistemas de humedales de los ríos Salitre y Bogotá ÁREA INTERVENCIÓN 187.252 m²

N° DE PROCESO SECOP I IDRD-STC-CARQ-003-2017

COORDINADOR ENTIDAD PROMOTORA Arq. OlgaLucia Silva Gutierrez

ASESORES TEMÁTICOS

ASESOR JURÍDICO SCA BC

ASESOR JURÍDICO E P

Dr. Carlos Andrés Gacha Dávila

Dr. Carlos González

JURADOS PREMIOS OTORGADOS

Arq. Diana Wiesner Ceballos

Arq. Stella Herrera Hurtado

Arq. Sergio Trujillo Jaramillo

Arq. Pedro Orlando Molano

2do PUESTO

3er PUESTO

MENCIÓN

MENCIÓN

U.T. Mayorga Fontanar & Altiplano

Arq. Miguel Yury Mayorga Cardenas

Colectivo 720

Arq. Mario Fernando Camargo Gómez

Arq. Sebastian Monsalve Gómez

De Arquitectura y Paisaje S.A.S.

Arq. Jaime Eduardo Cabal Mejía

Arq. Andrés Ortiz Gómez -

Aprobó

Elaboró Arq. Maria Mercedes Cifuentes Quiñones
Arq. Paola Puche Bravo

SOCIEDAD COLOMBIANA DE ARQUITECTOS BOGOTÁ D.C. Y CUNDINAMARCA

CONCURSO PÚBLICO DE IDEAS PARQUE COLSUBSIDIOPARQUE JUAN AMARILLO

Aprobó
Arq. Paola Puche Bravo
Elaboró Arq. Maria Mercedes Cifuentes Quiñones

FICHA TÉCNICA DE CONCURSOS Versión

SOCIEDAD

COLOMBIANA DE ARQUITECTOS BOGOTÁ D.C. Y CUNDINAMARCA

NOMBRE DEL CONCURSO:

CONCURSO PÚBLICO DE IDEAS PARQUE METROPOLITANO TERCER MILENIO

AÑO

GANADOR:

COLECTIVO 720 Arq. MARIO FERNANDO CAMARGO GÓMEZ

No. Contrato SCA BC - EP

ENTIDAD PROMOTORA INSTITUTO DISTRITAL DE RECREACIÓN Y DEPORTE - IDRD

FECHA DE APERTURA 26 DE ABRIL DE 2017

FECHA DE PROCLAMACIÓN 29 DE JUNIO DE 2017

4137 DE 2016

OBJETO DEL CONCURSO

COORDINADOR DE LA SCA BC

LOCALIZACIÓN Bogotá D.C.

Seleccionar la propuesta para que el INSTITUTO DISTRITAL DE RECREACIÓN Y DEPORTE cuente con los lineamientos para formular el instrumento de planeamiento que permita definir un proyecto de lineamientos deportivos activos, recreativos y de nuevas tendencias deportivas para mejorarlas condiciones urbanas, culturales, ambientales, sociales del sector a intervenir teniendo como base el paisaje natural y cultural del contexto patrimonial donde se encuentra.

Arq. Pedro Juan Jaramillo Carling

UBICACIÓN Calle 6ª hasta la Calle 9ª entre Carrea 10ª y Avenida Caracas ÁREA INTERVENCIÓN 16,5 Ha

N° DE PROCESO SECOP I IDRD-STC-CARQ-004-2017

COORDINADOR ENTIDAD PROMOTORA

ASESORES TEMÁTICOS

ASESOR JURÍDICO SCA BC

ASESOR JURÍDICO E P

Arq. OlgaLucia Silva Gutierrez

Dr. Carlos Andrés Gacha Dávila

Dr. Carlos González

JURADOS PREMIOS OTORGADOS

Arq. José Daniel Lehoucq Angulo

Arq. Carlos Mario Rodríguez Osorio

Arq. Elly Burckhardt de Echeverry

Arq. Pedro Orlando Molano

Arq. Andrés Ortiz Gómez

Elaboró Arq. Maria Mercedes Cifuentes Quiñones

2do PUESTO

3er PUESTO

MENCIÓN

Arq. Sergio Trujillo Jaramillo

U.T. Macias y Rodríguez

David Macias Arquitectura y Urbanismo SAS

De Arquitectura y Paisaje

Arq. Jaime Eduardo Cabal Mejía

Aprobó

Arq. Paola Puche Bravo

SOCIEDAD COLOMBIANA DE ARQUITECTOS BOGOTÁ D.C. Y CUNDINAMARCA

CONCURSO PÚBLICO DE IDEAS PARQUE METROPOLITANO TERCER

Aprobó
Arq. Paola Puche Bravo
Elaboró Arq. Maria Mercedes Cifuentes Quiñones

FICHA TÉCNICA DE CONCURSOS

SOCIEDAD COLOMBIANA DE ARQUITECTOS BOGOTÁ D.C. Y CUNDINAMARCA

CONCURSO PÚBLICO DE ANTEPROYECTO

NOMBRE DEL CONCURSO:

AÑO

ARQUITECTÓNICO CDRC PARQUE METROPOLITANO EL TUNAL

2017

GANADOR:

FP OFICINA DE ARQUITECTURA SAS Arq. JOSÉ ARNULFO PUENTES PABÓN

No. Contrato SCA BC - EP

ENTIDAD PROMOTORA INSTITUTO DISTRITAL DE RECREACIÓN Y DEPORTE - IDRD

FECHA DE APERTURA 9 DE JUNIO DE 2017

FECHA DE PROCLAMACIÓN 17 DE AGOSTO DE 2017

4136 DE 2016

OBJETO DEL CONCURSO

COORDINADOR DE LA SCA BC

LOCALIZACIÓN Bogotá D.C.

Seleccionar la propuesta de anteproyecto arquitectónico para que EL INSTITUTO DISTRITAL DE RECREACIÓN Y DEPORTE – IDRD – suscriba con su autor, el contrato de consultoría para la ejecución del diseño arquitectónico, los estudios técnicos, la coordinación arquitectónica y técnica y demás labores inherentes a los alcances y etapas de referencia de los servicios profesionales de diseño arquitectónico.

Arq. Ricardo La Rotta Caballero

UBICACIÓN Parque Metropolitano el Tunal, específicamente en el sector sur- occidental del mismo ÁREA INTERVENCIÓN 9.793,55 m²

N° DE PROCESO SECOP I IDRD-STC-CARQ-005-2017

COORDINADOR ENTIDAD PROMOTORA

ASESORES TEMÁTICOS

ASESOR JURÍDICO SCA BC

ASESOR JURÍDICO E P

Arq. OlgaLucia Silva Gutierrez

Dr. Carlos Andrés Gacha Dávila

Dra. Claudia Hernández

JURADOS PREMIOS OTORGADOS

Arq. Daniel Bonilla Ramírez

Arq. Mauricio Otero Lavado

Arq. Leonardo Alvarez Yepes

Arq. Pedro Orlando Molano

Arq. Andrés Ortiz Gómez

2do PUESTO

3er PUESTO

MENCIÓN

MENCIÓN

MENCIÓN

Unión Temporal 720-SMG

Colectivo 720 - Sebastian Monsalve Gómez

Estudio Mas Arquitectura Ltda.

Arq. Carlos Arturo Buritica Jiménez

Unión Temporal Mobo Sintesis

Mobo Architects SAS - Taller Sintesis S.A.S.

Taller 301 S.A.S.

Arq. Julian Andres Restrepo Molina

Arq. Alejandro Rogelis Teran

Aprobó

Arq.

Elaboró Arq. Maria Mercedes Cifuentes Quiñones
Paola Puche Bravo

SOCIEDAD COLOMBIANA DE ARQUITECTOS BOGOTÁ D.C. Y CUNDINAMARCA

CONCURSO PÚBLICO DE ANTEPROYECTO ARQUITECTÓNICO CDRC

PARQUE METROPOLITANO EL TUNAL

Aprobó
Arq. Paola Puche Bravo
Elaboró Arq. Maria Mercedes Cifuentes Quiñones

FICHA TÉCNICA DE CONCURSOS Versión

SOCIEDAD COLOMBIANA DE ARQUITECTOS BOGOTÁ D.C. Y CUNDINAMARCA

NOMBRE DEL CONCURSO:

AÑO

CONCURSO PÚBLICO DE ANTEPROYECTO ARQUITECTÓNICO CDRC PARQUE FONTANAR DEL RÍO

GANADOR:

Arq. SEBASTIAN MONSALVE GÓMEZ 2017

No. Contrato SCA BC - EP

ENTIDAD PROMOTORA INSTITUTO DISTRITAL DE RECREACIÓN Y DEPORTE - IDRD

FECHA DE APERTURA 9 DE JUNIO DE 2017

FECHA DE PROCLAMACIÓN 17 DE AGOSTO DE 2017

4136 DE 2016

OBJETO DEL CONCURSO

COORDINADOR DE LA SCA BC

LOCALIZACIÓN Bogotá D.C.

Seleccionar la mejor propuesta de anteproyecto arquitectónico para que el IDRD suscriba con su autor, el contrato de consultoría para la ejecución del diseño arquitectónico, los estudios técnicos, la coordinación arquitectónica y técnica y demás labores inherentes a los alcances y etapas de referencia de los servicios profesionales de diseño arquitectónico.

Arq. Luis Manuel Briceño Triana

UBICACIÓN Esquina sur occidental del parque Fontanar del Río, Localidad de Suba ÁREA INTERVENCIÓN 9.296 m²

N° DE PROCESO SECOP I IDRD-STC-CARQ-006-2017

COORDINADOR ENTIDAD PROMOTORA Arq. OlgaLucia Silva Gutierrez

ASESORES TEMÁTICOS

ASESOR JURÍDICO SCA BC

ASESOR JURÍDICO E P

Dr. Carlos Andrés Gacha Dávila

Dra. Claudia Hernández

JURADOS PREMIOS OTORGADOS

Arq. Lorenzo Castro Jaramillo

Arq. Rodrigo Carrizosa Ricaurte

Arq. Camilo Santamaría Gamboa

Arq. Pedro Orlando Molano

Arq. Andrés Ortiz Gómez

Elaboró Arq. Maria Mercedes Cifuentes Quiñones

2do PUESTO

3er PUESTO

1a MENCIÓN

2a MENCIÓN

3a MENCIÓN

4a MENCIÓN

5a MENCIÓN

Aprobó

Colectivo 720

Arq. Mario Fernando Camargo Gómez

Constructora Obreval

Arq. Fernando Zarama Urdaneta

Taller 301

Arq. Julian Andres Restrepo Molina

Unión Temporal Mobo Sintesis

Mobo Architects SAS - Taller Sintesis S.A.S.

Coninsa Ramon H.

Arq. Juan Felipe Hoyos Mejía

De Arquitectura y Paisaje S.A.S.

Arq. Jaime Eduardo Cabal Mejía

Estudio Mas Arquitectura Ltda.

Arq. Carlos Arturo Buritica Jiménez

Arq. Paola Puche Bravo

SOCIEDAD COLOMBIANA DE ARQUITECTOS BOGOTÁ D.C. Y CUNDINAMARCA

CONCURSO PÚBLICO DE ANTEPROYECTO ARQUITECTÓNICO CDRC PARQUE FONTANAR DEL RÍO

Aprobó
Arq. Paola Puche Bravo
Elaboró Arq. Maria Mercedes Cifuentes Quiñones

FICHA TÉCNICA DE CONCURSOS

SOCIEDAD COLOMBIANA DE ARQUITECTOS BOGOTÁ D.C. Y CUNDINAMARCA

CONCURSO PÚBLICO DE ANTEPROYECTO

NOMBRE DEL CONCURSO:

AÑO

INTEGRAL DE ARQUITECTURA Y URBANISMO COLEGIO ARGELIA II Y CENTRO DE LA BICI

2017

GANADOR:

DAVID DELGADO ARQUITECTOS S.A.S. Arq. DAVID HUMBERTO DELGADO RODRÍGUEZ

No. Contrato SCA BC - EP

ENTIDAD PROMOTORA SECRETARÍA DE EDUCACIÓN DEL DISTRITO

FECHA DE APERTURA 9 DE AGOSTO DE 2017

FECHA DE PROCLAMACIÓN 3 DE OCTUBRE DE 2017

1874-2017

OBJETO DEL CONCURSO

Seleccionar la propuesta de anteproyecto arquitectónico para que la SECRETARÍA DE EDUCACIÓN DEL DISTRITO – SED suscriba con su autor, el contrato de consultoría para la ejecución del diseño arquitectónico, los estudios técnicos, la coordinación arquitectónica y técnica y demás labores inherentes a los alcances y etapas de referencia de los servicios profesionales de diseño arquitectónico.

COORDINADOR DE LA SCA BC Arq. Philip Weiss Salas

LOCALIZACIÓN Bogotá D.C.

UBICACIÓN Carrera 81A N° 58J-45 Sur, Barrio Argelia II, Borde de la Localidad de Bosa ÁREA INTERVENCIÓN 10.676,2 m²

N° DE PROCESO SECOP I SED-CM-DCCEE-104-2017

COORDINADOR ENTIDAD PROMOTORA Arq. Jhonny Edward Padilla Ariza

ASESORES TEMÁTICOS

ASESOR JURÍDICO SCA BC

ASESOR JURÍDICO E P

Dr. Carlos Andrés Gacha Dávila

Dra. Claudia Cecilia Cárdenas Sánchez

JURADOS PREMIOS OTORGADOS

Arq. Fernando Montenegro Lizarralde

Arq. Camilo Ernesto Zambrano Román

Arq. Luis Ardila Cancino

Arq. Alejandro Puentes Amézquita

Arq. Andrés Ortiz Gómez A

Elaboró Arq. Maria Mercedes Cifuentes Quiñones

2do PUESTO

3er PUESTO

1a MENCIÓN

2a MENCIÓN

3a MENCIÓN

U.T. Arquitectura en Estudio + Nomena

Arquitectura en Estudio SAS - Nomena Arquitectos SAC

Espacio Colectivo Arquitectos S.A.S.

Arq. Carlos Hernan Betancourt Niño

Arq. Sergio Trujillo Jaramillo

FP - Oficina de Arquitectura S.A.S.

Arq. Jose Arnulfo Puentes Pabón

Arq. Santiago Augusto Rivera Cala

Aprobó

Arq. Paola Puche Bravo

SOCIEDAD COLOMBIANA DE ARQUITECTOS BOGOTÁ D.C. Y CUNDINAMARCA

CONCURSO PÚBLICO DE ANTEPROYECTO INTEGRAL DE ARQUITECTURA Y URBANISMO COLEGIO ARGELIA II Y CENTRO DE LA BICI

Aprobó
Arq. Paola Puche Bravo
Elaboró Arq. Maria Mercedes Cifuentes Quiñones

FICHA TÉCNICA DE CONCURSOS Versión

SOCIEDAD COLOMBIANA DE ARQUITECTOS BOGOTÁ D.C. Y CUNDINAMARCA

CONCURSO PÚBLICO DE ANTEPROYECTO

NOMBRE DEL CONCURSO:

AÑO

ARQUITECTÓNICO PARA EL SUPERCADE MANITAS EN CIUDAD BOLÍVAR

2017

ENTIDAD PROMOTORA SECRETARÍA GENERAL

FECHA DE APERTURA 3 DE OCTUBRE DE 2017

GANADOR:

ARQUITECTURA EN ESTUDIO S.A.S. Arq .CAMILO ERNESTO GARAVITO GARCÍA

No. Contrato SCA BC - EP

FECHA DE PROCLAMACIÓN 1 DE DICIEMBRE DE 2017

4220000-609-2017

OBJETO DEL CONCURSO

El objeto del presente Concurso es: Seleccionar una propuesta arquitectónica, a nivel de anteproyecto, para un nuevo punto de atención a la ciudadanía: SuperCADE Manitas, ubicado en la localidad Ciudad Bolívar, estación Manitas del proyecto TransMiCable.

COORDINADOR DE LA SCA BC Arq. Suely Vargas Nobrega

LOCALIZACIÓN Bogotá D.C.

UBICACIÓN Manzana comprendida entre carreras 18K y 18I y entre calles 70B sur y 70G sur en Ciudad Bolívar.

ÁREA INTERVENCIÓN 3.484,24 m²

N° DE PROCESO SECOP I CONCURSO DE ARQUITECTURA DE ANTEPROYECTO MANITAS

COORDINADOR ENTIDAD PROMOTORA Arq. Amparo Perez Azuero

ASESORES TEMÁTICOS -

ASESOR JURÍDICO SCA BC

ASESOR JURÍDICO E P

Dr. Carlos Andrés Gacha Dávila

Dra. Erika Johanna Rochel Picon

JURADOS PREMIOS OTORGADOS

Arq. Enrique Uribe Botero

Arq. Pedro José Ibarra Jiménez

Arq. Rafael Sompolas Castillo

Arq. Martín Anzellini García-Reyes

Arq. Andrés Trujillo Mosquera

2do PUESTO

3er PUESTO

1a MENCIÓN

2a MENCIÓN

3a MENCIÓN

Estudio Más Arquitectura Ltda

Arq. Carlos Arturo Buritica Jiménez

David Macias Arquitectura y Urbanismo S.A.S.

Arq. David Esteban Macías Rubio

Colectivo 720 S.A.S.

Arq. Mario Fernando Camargo Gómez

Javier Londoño S.A.S.

Arq. Luis Ignacio Mesa Londoño

Arq. Jose Yezid Ropero Triviño

Aprobó

Arq. Paola Puche Bravo

Elaboró Arq. Maria Mercedes Cifuentes Quiñones

SOCIEDAD COLOMBIANA DE ARQUITECTOS BOGOTÁ D.C. Y CUNDINAMARCA

CONCURSO PÚBLICO DE ANTEPROYECTO ARQUITECTÓNICO PARA EL SUPERCADE MANITAS EN CIUDAD BOLÍVAR

Aprobó
Arq. Paola Puche Bravo
Elaboró Arq. Maria Mercedes Cifuentes Quiñones

FICHA TÉCNICA DE CONCURSOS

SOCIEDAD COLOMBIANA DE ARQUITECTOS BOGOTÁ D.C. Y CUNDINAMARCA

CONCURSO PÚBLICO DE DISEÑO

NOMBRE DEL CONCURSO:

AÑO

ARQUITECTÓNICO EL CAMINO UNIDAD OPERATIVA PARA LA ATENCIÓN DE PERSONA MAYOR Y DE HABITANTE DE CALLE EN LA CIUDAD DE BOGOTÁ D.C.

GANADOR:

FP OFICINA DE ARQUITECTURA S.A.S.

No. Contrato SCA BC - EP

ENTIDAD PROMOTORA SECRETARÍA DISTRITAL DE INTEGRACIÓN SOCIAL

FECHA DE APERTURA 10 DE NOVIEMBRE DE 2017

FECHA DE PROCLAMACIÓN 20 DE DICIEMBRE DE 2017

8237-2017

OBJETO DEL CONCURSO

COORDINADOR DE LA SCA BC

LOCALIZACIÓN Bogotá D.C.

El objeto principal de EL CONCURSO se orienta a seleccionar la propuesta de anteproyecto a rquitectónico para que LA SECRETARIA DISTRITAL DE INTEGRACION SOCIAL suscriba con su autor, el contrato de consultoría para la ejecución del diseño arquitectónico, los estudios técnicos, la coordinación arquitectónica y técnica y de más labores inherentes a los alcances y etapas de referencia de los servicios profesionales de diseño arquitectónico.

Arq. Carlos Hernando Carrillo Arango

UBICACIÓN Carrera 69 A N° 47 - 43, Barrio Bosque Popular, Localidad de Engativá ÁREA INTERVENCIÓN 9.554,05 m²

N° DE PROCESO SECOP I SDIS-CMA-025-2017

COORDINADOR ENTIDAD PROMOTORA Arq. Mónica Marcela López Aya

ASESORES TEMÁTICOS

ASESOR JURÍDICO SCA BC

ASESOR JURÍDICO E P

JURADOS

Arq. Javier Andrés Cárdenas Gómez

Arq. Eduardo Mendez Castillo

Arq. Adolfo Schlegel Verano

Arq. José Alfredo Soto Torres

Arq. Martín Anzellini García-Reyes

Dr. Carlos Andrés Gacha Dávila

PREMIOS OTORGADOS

2do PUESTO

3er PUESTO

1a MENCIÓN

2a MENCIÓN

3a MENCIÓN

4a MENCIÓN Aprobó

Diseño Concreto S.A.S.

Arq. Diego Humbero Rodrigurez

Consorcio RCJN Arquitectos

Nieto Arquitectos SAS - Rch Arquitectos SAS

Taller 301 S.A.S.

Arq. Julian Andres Restrepo Molina

Arquitectura Mas Urbanismo S.A.S.

Arq. Camilo Pinilla Castro

MC Arquitectos S.A.S.

Arq. Mario Andres Cabrera Pinzón

Opus Oficina de Proyectos Urbanos S.A.S.

Arq. Manuel José Jaen Posada

Elaboró Arq. Maria Mercedes Cifuentes Quiñones
Arq. Paola Puche Bravo

SOCIEDAD COLOMBIANA DE ARQUITECTOS BOGOTÁ D.C. Y CUNDINAMARCA

CONCURSO PÚBLICO DE DISEÑO ARQUITECTÓNICO EL CAMINO UNIDAD OPERATIVA PARA LA ATENCIÓN DE PERSONA MAYOR Y DE HABITANTE DE CALLE EN LA CIUDAD DE BOGOTÁ D.C.

Aprobó
Arq. Paola Puche Bravo
Elaboró Arq. Maria Mercedes Cifuentes Quiñones

FICHA TÉCNICA DE CONCURSOS Versión

SOCIEDAD COLOMBIANA DE ARQUITECTOS BOGOTÁ D.C. Y CUNDINAMARCA

NOMBRE DEL CONCURSO:

CONCURSO PÚBLICO DE ANTEPROYECTO ARQUITECTÓNICO PARA EL DISEÑO DE LA NUEVA SEDE DE LA ALCALDIA LOCAL DE SANTA FE

GANADOR:

TALLER 301 S.A.S. Arq. JULIAN ANDRÉS RESTREPO MOLINA

AÑO 119-2017

2018 No. Contrato SCA BC - EP

ENTIDAD PROMOTORA FONDO DE DESARROLLO LOCAL DE SANTA FE

FECHA DE APERTURA 30 DE ENERO DE 2018

FECHA DE PROCLAMACIÓN 23 DE MARZO DE 2018

OBJETO DEL CONCURSO

COORDINADOR DE LA SCA BC

LOCALIZACIÓN Bogotá D.C.

El objeto principal de EL CONCURSO se orienta a seleccionar la propuesta de anteproyecto arquitectónico para que EL FONDO DE DESARROLLO LOCAL DE SANTA FE suscriba con su autor, el contrato de consultoría para la ejecución del diseño arquitectónico, los estudios técnicos, la coordinación arquitectónica y técnica y demás labores inherentes a los alcances y etapas de referencia de los servicios profesionales de diseño arquitectónico.

Arq. Luis Felipe Cristancho Romero

UBICACIÓN Calle 20 N° 2 – 44, Localidad Santa Fe ÁREA INTERVENCIÓN 4.782,33 m²

N° DE PROCESO SECOP I FDLSF-CMA-043-2017

COORDINADOR ENTIDAD PROMOTORA Arq. Jorge Castillo Cendales

ASESORES TEMÁTICOS

ASESOR JURÍDICO SCA BC

ASESOR JURÍDICO E P

Dr. Carlos Andrés Gacha Dávila

Dr. Sebastián Garces

JURADOS PREMIOS OTORGADOS

Arq. Carlos Guillermo Fischer Muñoz

Arq. Alberto Saldarriaga Roa

Arq. Darío Gómez Hoyos

Arq. Iván Arturo Vargas

2do PUESTO

3er PUESTO

MENCIÓN

MENCIÓN

Arquitectura en Estudio S.A.S.

Carlos Ernesto Garavito García

IMAIO S.A.S.

Arq. Eduardo Varela

Arq. Camilo Arenas Salazar

Constructora Obreval S.A.

Arq. Fernando Zarama Urdaneta

Arq. Esteban Castro Izquierdo -

Aprobó

Arq. Paola Puche Bravo

Elaboró Arq. Maria Mercedes Cifuentes Quiñones

SOCIEDAD COLOMBIANA DE ARQUITECTOS BOGOTÁ D.C. Y CUNDINAMARCA

CONCURSO PÚBLICO DE ANTEPROYECTO ARQUITECTÓNICO PARA EL DISEÑO DE LA NUEVA SEDE DE LA ALCALDIA LOCAL DE SANTA FE

Aprobó
Arq. Paola Puche Bravo
Elaboró Arq. Maria Mercedes Cifuentes Quiñones

FICHA TÉCNICA DE CONCURSOS Versión

SOCIEDAD COLOMBIANA DE ARQUITECTOS BOGOTÁ D.C. Y CUNDINAMARCA

NOMBRE DEL CONCURSO:

CONCURSO PÚBLICO ANTEPROYECTO PARA EL DISEÑO DEL COLEGIO LOMBARDÍA

GANADOR:

CONVEL S.A.S. Arq. MAURICIO VÉLEZ ESCOBAR 2018

No. Contrato SCA BC - EP

AÑO 1170-2018

ENTIDAD PROMOTORA SECRETARÍA DE EDUCACIÓN DISTRITAL

FECHA DE APERTURA 19 DE JULIO DE 2018

FECHA DE PROCLAMACIÓN 5 DE SEPTIEMBRE DE 2018

OBJETO DEL CONCURSO

COORDINADOR DE LA SCA BC

LOCALIZACIÓN Bogotá D.C.

El objeto principal del CONCURSO se orienta a seleccionar la propuesta de anteproyecto arquitectónico para que LA SECRETARÍA DE EDUCACIÓN DEL DISTRITO suscriba con su autor, el contrato de consultoría para la ejecución del diseño arquitectónico, los estudios técnicos, la coordinación arquitectónica y técnica y demás labores inherentes a los alcances y etapas de referencia de los servicios profesionales de diseño arquitectónico.

Arq. Mauricio Pinilla Acevedo

UBICACIÓN Avenida Calle 145 con Avenida Carrera 104, Localidad de Suba. ÁREA INTERVENCIÓN 4.388,2 m²

N° DE PROCESO SECOP II SED-CM-A-DCCEE-081-2018

COORDINADOR ENTIDAD PROMOTORA Arq. María Carolina Camargo

ASESORES TEMÁTICOS

ASESOR JURÍDICO SCA BC

ASESOR JURÍDICO E P

Dr. Carlos Andrés Gacha Dávila

Dra. Claudia Cecilia Cardenas

JURADOS PREMIOS OTORGADOS

Arq. Enrique Silva Gil

Arq. Jorge Luis Fernández Pinedo

Arq. Alejandro Restrepo Montoya

Arq. Martín Anzellini García-Reyes

Arq. Esteban Castro Izquierdo

2do PUESTO

3er PUESTO

MENCIÓN

MENCIÓN

MENCIÓN

Arquitectura en Estudio S.A.S.

Arq. Camilo Ernesto Garavito Garcia

Quicazan Taller S.A.S.

Arq. Adriana Herández Quicazán

De Arquitectura y Paisaje S.A.S.

Arq. Jaime Eduardo Cabal Mejía

Fundación Laboratorio de Arquitectura

Arq. María Paula González Bozzi

Arq. Manuel Alejandro Rogelis Teran

Aprobó

Elaboró Arq. Maria Mercedes Cifuentes Quiñones
Arq. Paola Puche Bravo

SOCIEDAD COLOMBIANA DE ARQUITECTOS BOGOTÁ D.C. Y CUNDINAMARCA

CONCURSO PÚBLICO

ANTEPROYECTO PARA EL DISEÑO DEL COLEGIO LOMBARDÍA

Aprobó
Arq. Paola Puche Bravo
Elaboró Arq. Maria Mercedes Cifuentes Quiñones

FICHA TÉCNICA DE CONCURSOS

SOCIEDAD COLOMBIANA DE ARQUITECTOS BOGOTÁ D.C. Y CUNDINAMARCA

CONCURSO PÚBLICO DE ANTEPROYECTO

NOMBRE DEL CONCURSO:

AÑO

ARQUITECTÓNICO DEL CEFE CHAPINERO CENTRO FELICIDAD PARA LA LOCALIDAD DE CHAPINERO EN LA CIUDAD DE BOGOTA D.C.

2018

GANADOR:

Arq. MANUEL ALEJANDRO ROGELIS TERAN

No. Contrato SCA BC - EP

ENTIDAD PROMOTORA SECRETARÍA DISTRITAL DE CULTURA, RECREACIÓN Y DEPORTE

FECHA DE APERTURA 29 DE NOVIEMBRE DE 2018

FECHA DE PROCLAMACIÓN 4 DE FEBRERO DE 2019

201-2018

OBJETO DEL CONCURSO

COORDINADOR DE LA SCA BC

LOCALIZACIÓN Bogotá D.C.

El objeto principal del CONCURSO se orienta a seleccionar la propuesta de anteproyecto arquitectónico para que la SECRETARÍA DISTRITAL DE CULTURA, RECREACION Y DEPORTE-SDCRD suscriba con su(s) autor(es) el correspondiente contrato de consultoría para la elaboración del diseño arquitectónico y los estudios y diseños técnicos de un Equipamiento Cultural en la Localidad de Chapinero en el predio de la Calle 82 10-69 del Barrio El Retiro.

Arq. Phillip Weiss Salas

UBICACIÓN Calle 82 N° 10 - 69, Localidad de Chapinero ÁREA INTERVENCIÓN 9.809,47 m²

N° DE PROCESO SECOP II SCRD-CM-004-025-2018

COORDINADOR ENTIDAD PROMOTORA Arq. Iván Dario Quiñones Sánchez

ASESORES TEMÁTICOS

ASESOR JURÍDICO SCA BC

ASESOR JURÍDICO E P

Dr. Carlos Andrés Gacha Dávila

Dr. Brandon Pérez

JURADOS PREMIOS OTORGADOS

Arq. Leonardo Álvarez Yepes

Arq. Mauricio Otero Lavado

Arq. Giancarlo Mazzanti Sierra

Arq. María Claudia López Sorzano

Arq. Andrés Ortiz Gómez

2do PUESTO

3er PUESTO

1a MENCIÓN

2a MENCIÓN

3a MENCIÓN

Arquitectura en Estudio S.A.S.

Arq. Camilo Ernesto Garavito Garcia

Pacheco Estudio de Arquitectura S.A.S.

Arq. Felipe Gonzalez-Pacheco Mejía

Arq. Santiago Pradilla Hosie

David Delgado Arquitectos S.A.S.

Arq. David Humberto Delgado Rodriguez

Toro Posada Arquitectos S.A.S.

Arq. Alejandro Toro Escobar

Aprobó

Elaboró Arq. Maria Mercedes Cifuentes Quiñones
Arq. Paola Puche Bravo

SOCIEDAD COLOMBIANA DE ARQUITECTOS BOGOTÁ D.C. Y CUNDINAMARCA

CONCURSO PÚBLICO DE ANTEPROYECTO ARQUITECTÓNICO DEL CEFE

CHAPINERO CENTRO

FELICIDAD PARA LA LOCALIDAD DE CHAPINERO EN LA CIUDAD DE BOGOTA

Aprobó
Arq. Paola Puche Bravo
Elaboró Arq. Maria Mercedes Cifuentes Quiñones

FICHA TÉCNICA DE CONCURSOS

SOCIEDAD COLOMBIANA DE ARQUITECTOS BOGOTÁ D.C. Y CUNDINAMARCA

NOMBRE DEL CONCURSO:

AÑO

CONCURSO PÚBLICO DE IDEAS PARA EL DISEÑO DE PROTOTIPOS DE UNIDADES HABITACIONALES SOSTENIBLES Y PRODUCTIVAS PARA LA RURALIDAD DEL D.C.

2018

GANADOR:

FP OFICINA DE ARQUITECTURA S.A.S. Arq. JOSÉ ARNULFO PUENTES PABÓN

No. Contrato SCA BC - EP

ENTIDAD PROMOTORA SECRETARÍA DISTRITAL DE PLANEACIÓN

FECHA DE APERTURA 28 DE NOVIEMBRE DE 2018

FECHA DE PROCLAMACIÓN 20 DE FEBRERO DE 2019

282-2018

OBJETO DEL CONCURSO

COORDINADOR DE LA SCA BC

El objeto principal del CONCURSO PÚBLICO DE IDEAS ARQUITECTÓNICAS se orienta a seleccionar el esquema básico mejor diseñado, como PROTOTIPO DE UNIDAD HABITACIONAL SOSTENIBLE Y PRODUCTIVA PARA LA RURALIDAD DEL D.C., respondiendo a los criterios de diseño planteados por la Secretaría Distrital de Planeación y la Sociedad Colombiana de Arquitectos Bogotá D.C. y Cundinamarca.

LOCALIZACIÓN Ruralidad Bogotá D.C.

Arq. María Ximena Manrique Niño

UBICACIÓN Adaptar prototipo a 3 contextos: paisajísticos Cuencas Ríos Tunjuelo, Blanco y Sumapaz, pendientes paisaje andino y 3 microclimas hábitat rural ÁREA INTERVENCIÓN Habitación 27m² cant 3 espacios, Autosuficiencia doméstica 12m² cant 3 espacios y Productividad 16m² cant. 1 espacio

N° DE PROCESO SECOP II SDP-CM-011-2018

COORDINADOR ENTIDAD PROMOTORA Arq. Jaydi Milena Salazar

ASESORES TEMÁTICOS

ASESOR JURÍDICO SCA BC

ASESOR JURÍDICO E P

Confort Bioclimático EA Buildings - Caracterización Socioeconómica DEPROYECTOS

Dr. Carlos Andrés Gacha Dávila

Dr. Carlos Andrés Gacha Dávila

JURADOS PREMIOS OTORGADOS

Arq. Pedro Pablo Menendez Pla

Arq. Carlos Bell Lemus

Arq. Sebastián Serna Hosie

Arq. Esteban Castro Izquierdo

Arq. Martín Anzellini García Reyes

2do PUESTO

3er PUESTO

MENCIÓN

MENCIÓN

MENCIÓN

Espacio Colectivo Arquitectos S.A.S.

Arq. Carlos Hernán Betancourt Niño

Arq. Fabian Alonso Sarmiento Valdes

Arq. Oswaldo Escobar Gómez

Arq. Henry Augusto Medina Villareal

Estudio Territorios S.A.S.

Arq. Julian Esteban Castaño Ospina

Aprobó

Elaboró Arq. Maria Mercedes Cifuentes Quiñones
Arq. Paola Puche Bravo

SOCIEDAD COLOMBIANA DE ARQUITECTOS BOGOTÁ D.C. Y CUNDINAMARCA

CONCURSO PÚBLICO DE IDEAS PARA EL DISEÑO DE PROTOTIPOS DE UNIDADES

HABITACIONALES

SOSTENIBLES Y PRODUCTIVAS

PARA LA RURALIDAD DEL D.C.

Aprobó
Arq. Paola Puche Bravo
Elaboró Arq. Maria Mercedes Cifuentes Quiñones

FICHA TÉCNICA DE CONCURSOS Versión

SOCIEDAD COLOMBIANA DE ARQUITECTOS BOGOTÁ D.C. Y CUNDINAMARCA

CONCURSO PÚBLICO DE ANTEPROYECTO

NOMBRE DEL CONCURSO:

AÑO

ARQUITECTÓNICO PARA EL DISEÑO DE LA NUEVA SEDE DE LA ALCALDÍA LOCAL DE SAN CRISTÓBAL E INTERVENCIÓN DEL BIEN DE INTERÉS CULTURAL

GANADOR:

2019

ESTUDIO TERRITORIOS S.A.S. Arq. JULIAN CASTAÑO OSPINA

No. Contrato SCA BC - EP

ENTIDAD PROMOTORA FONDO DE DESARROLLO LOCAL DE SAN CRISTÓBAL

FECHA DE APERTURA 21 DE OCTUBRE DE 2019

FECHA DE PROCLAMACIÓN 3 DE DICIEMBRE DE 2019

213-2017

OBJETO DEL CONCURSO

Seleccionar la propuesta de anteproyecto arquitectónico para que el FONDO DE DESARROLLO LOCAL DE SAN CRISTÓBAL suscriba con su autor, el contrato de consultoría para la ejecución del diseño arquitectónico, los estudios técnicos, la coordinación arquitectónica y técnica y demás labores inherentes a los alcances y etapas de referencia de los servicios profesionales de diseño arquitectónico

COORDINADOR DE LA SCA BC Arq. Beatriz Estrada de Nova

LOCALIZACIÓN Bogotá D.C.

UBICACIÓN Avenida 1ª de Mayo N° 1 - 40 Sur, Localidad San Cristóbal ÁREA INTERVENCIÓN 7.324,15 m²

N° DE PROCESO SECOP II FDLSC-CMA-045- 2019

COORDINADOR ENTIDAD PROMOTORA Arq. Camilo Andrés Álvarez Gacharná

ASESORES TEMÁTICOS

ASESOR JURÍDICO SCA BC

ASESOR JURÍDICO E P

Valoración Patrimonial Arq. Rodolfo Ulloa Vergara

Dr. Carlos Andrés Gacha Dávila

Dra. Aleyra Capera Rodríguez

JURADOS PREMIOS OTORGADOS

Arq. Luis Eduardo Calderón García

Arq. Gonzalo Correal Ospina

Arq. Ricardo José Vives

Arq. Diego Parra Cortés

Arq.Mónica Ocampo Villegas

2do PUESTO

3er PUESTO MENCIÓN

FP Oficina de Arquitectura S.A.S.

Arq. Jose Arnulfo Puentes Pabón

E.M.S. Arquitectura S.A.S.

Arq. Gustavo Sarmiento Peñaranda

Studio Área 4 S.A.S.

Arq. Alejandro González Jaramillo

Aprobó

Elaboró Arq. Maria Mercedes Cifuentes Quiñones
Arq. Paola Puche Bravo

SOCIEDAD COLOMBIANA DE ARQUITECTOS BOGOTÁ D.C. Y CUNDINAMARCA

CONCURSO PÚBLICO DE ANTEPROYECTO ARQUITECTÓNICO PARA EL DISEÑO DE LA NUEVA SEDE DE LA ALCALDÍA LOCAL DE SAN CRISTÓBAL E INTERVENCIÓN DEL BIEN DE INTERÉS

Aprobó
Arq. Paola Puche Bravo
Elaboró Arq. Maria Mercedes Cifuentes Quiñones

FICHA TÉCNICA DE CONCURSOS

SOCIEDAD COLOMBIANA DE ARQUITECTOS BOGOTÁ D.C. Y CUNDINAMARCA

NOMBRE DEL CONCURSO:

AÑO

CONCURSO PÚBLICO PARA EL DISEÑO DEL ANTEPROYECTO ARQUITECTÓNICO DEL NUEVO MONUMENTO A LOS HÉROES

GANADOR:

2019

Versión 1.0

STUDIO ÁREA 4 S.A.S. Arq. ALEJANDRO GONZÁLEZ JARAMILLO

No. Contrato SCA BC - EP

ENTIDAD PROMOTORA EMPRESA METRO DE BOGOTÁ S.A.

FECHA DE APERTURA 22 DE OCTUBRE DE 2019

FECHA DE PROCLAMACIÓN 6 DE DICIEMBRE DE 2019

025-2019

OBJETO DEL CONCURSO

COORDINADOR DE LA SCA BC

LOCALIZACIÓN Bogotá D.C.

Seleccionar la propuesta de anteproyecto arquitectónico para que la EMPRESA METRO DE BOGOTÁ S.A. suscriba con su autor, el contrato de consultoría para la ejecución del diseño arquitectónico, los estudios técnicos, la coordinación arquitectónica y técnica, y demás labores inherentes a los alcances y etapas referidos a los servicios profesionales de diseño arquitectónico del NUEVO MONUMENTO A LOS HÉROES, DEL MUSEO DEL BICENTENARIO Y DEL ESPACIO PÚBLICO relacionado con este equipamiento, requerido por la afectación del trazado de la PLMB sobre el Conjunto Monumental los Héroes.

Arq. José Daniel Lehoucq Angulo

UBICACIÓN Av Caracas y Cra 15 y Cll 72 y Cll 73, costado sur de manzana Av Caracas y Cra 15 y Cll 73 y Cll 74 y vía vehicular Cll 73, en Cra 15 y Av Caracas. ÁREA INTERVENCIÓN ANDENES: 1.274.74 m² - EQUIPAMIENTO CULTURAL: 4.947.84 m²

N° DE PROCESO SECOP II GDI-CMA-001-2019

COORDINADOR ENTIDAD PROMOTORA Arq. Sebastián Herrán Mejía

ASESORES TEMÁTICOS

ASESOR JURÍDICO SCA BC

ASESOR JURÍDICO E P

Derecho y Patri. Cult. Dra. Yolanda Sierra, Valor. Patri. B M Resta. Hellen Quiroga, Valor. Patri. B I Arq. Rodolfo Ulloa

Dr. Carlos Andrés Gacha Dávila

Dra. Martha Sánchez Ortiz

JURADOS PREMIOS OTORGADOS

Arq. Carlos Gabriel Campuzano Castello

Arq. Carlos Niño Murcia

Arq. Samuel Esteban Padilla Llano

Arq. Andrés Ortiz Gómez

Arq. Mauricio Uribe González

2do PUESTO

3er PUESTO

Aprobó

Martínez Arquitectura S.A.S.

Arq. Carlos Alberto Martínez Valencia

Colectivo 720 SAS

Arq. Mario Fernando Camargo Gómez

Elaboró Arq. Maria Mercedes Cifuentes Quiñones
Arq. Paola Puche Bravo

SOCIEDAD COLOMBIANA DE ARQUITECTOS BOGOTÁ D.C. Y CUNDINAMARCA

CONCURSO PÚBLICO PARA EL DISEÑO DEL ANTEPROYECTO ARQUITECTÓNICO DEL NUEVO MONUMENTO A LOS HÉROES

Aprobó
Arq. Paola Puche Bravo
Elaboró Arq. Maria Mercedes Cifuentes Quiñones

FICHA TÉCNICA DE CONCURSOS Versión

SOCIEDAD COLOMBIANA DE ARQUITECTOS BOGOTÁ D.C. Y CUNDINAMARCA

NOMBRE DEL CONCURSO:

AÑO

CONCURSO PÚBLICO DE ANTEPROYECTO ARQUITECTÓNICO PARA EL DISEÑO DEL COLEGIO HIPOTECHO

GANADOR:

MARTÍNEZ ARQUITECTURA S.A.S. Arq. CARLOS ALBERTO MARTÍNEZ VALENCIA

2019 No. Contrato SCA BC - EP

ENTIDAD PROMOTORA SECRETARÍA DE EDUCACIÓN DISTRITAL

FECHA DE APERTURA 2 DE DICIEMBRE DE 2019

FECHA DE PROCLAMACIÓN 23 DE DICIEMBRE DE 2019

2365-2019

OBJETO DEL CONCURSO

COORDINADOR DE LA SCA BC

LOCALIZACIÓN Bogotá D.C.

Seleccionar la propuesta de anteproyecto arquitectónico para que LA SECRETARIA DE EDUCACION DISTRITAL suscriba con su autor, el contrato de consultoría para la ejecución del diseño arquitectónico, los estudios técnicos, la coordinación arquitectónica y técnica y demás labores inherentes a los alcances y etapas de referencia de los servicios profesionales de diseño arquitectónico.

Arq. Maximiliano Garzón Díaz

UBICACIÓN Calle 1ª N° 69A-07, Barrio Hipotecho Occidental, Localidad de Kennedy ÁREA INTERVENCIÓN 7319,61 m²

N° DE PROCESO SECOP II SED-CM-A-DCCEE-142-2019

COORDINADOR ENTIDAD PROMOTORA Arq. Johnny Padilla Ariza

ASESORES TEMÁTICOS

ASESOR JURÍDICO SCA BC

ASESOR JURÍDICO E P

Dr. Carlos Andrés Gacha Dávila

Dra. Claudia Cecilia Cardenas

JURADOS PREMIOS OTORGADOS

Arq. Philip Weiss Salas

Arq. Enrique Silva Gil

Arq. Fernando Montenegro Lizarralde

Arq. Iván Dario Quiñonez Sanchez

Arq. Esteban Castro Izquierdo

Elaboró Arq. Maria Mercedes Cifuentes Quiñones

2do PUESTO

3er PUESTO

1a MENCIÓN

2a MENCIÓN

MC construcciones y Consultorías S.A.S.

Arq. Mauricio Chavez Calle

David Delgado Arquitectos S.A.S.

Arq.David Humberto Delgado Rodriguez

Arllanos Ingeniería S.A.S.

Arq. Alfonso Rafael LLanos Millan

Estudio Territorios S.A.S.

Arq. Julian Castaño Ospina

Aprobó

Arq. Paola Puche Bravo

SOCIEDAD COLOMBIANA DE ARQUITECTOS BOGOTÁ D.C. Y CUNDINAMARCA

CONCURSO PÚBLICO DE ANTEPROYECTO ARQUITECTÓNICO PARA EL DISEÑO DEL COLEGIO HIPOTECHO

Aprobó
Arq. Paola Puche Bravo
Elaboró Arq. Maria Mercedes Cifuentes Quiñones

SOCIEDAD COLOMBIANA DE ARQUITECTOS BOGOTÁ D.C. Y CUNDINAMARCA

NOMBRE DEL CONCURSO:

AÑO

CONCURSO PÚBLICO DE DISEÑO DE ANTEPROYECTO ARQUITECTÓNICO DE UN PROTOTIPO DE ESPACIO DEPORTIVO DE DESARROLLO INTEGRAL EDDI - RETO

2020

ENTIDAD PROMOTORA MINISTERIO DEL DEPORTE

FECHA DE APERTURA 26 DE OCTUBRE DE 2020

GANADOR:

Arq. ANA MARÍA ESTRADA GIL

No. Contrato SCA BC - EP

FECHA DE PROCLAMACIÓN 9 DE DICIEMBRE DE 2020

CPSP-503-2020

OBJETO DEL CONCURSO

COORDINADOR DE LA SCA BC

LOCALIZACIÓN Colombia

El objeto principal de EL CONCURSO se orienta a seleccionar la propuesta de anteproyec to arquitectónico para que EL MINIS TERIO DEL DEPORTE suscriba con su autor, el contrato de consultoría para la ejecución del diseño arquitec tónico, los estudios técnicos, la coordinación arquitectónica y técnica y demás labores inherentes a los alcances y etapas de referencia de los ser vicios profesionales de diseño arquitectónico.

Arq. María Ximena Manrique Niño

UBICACIÓN Los Prototipo EDDI – RETO deben tener Adaptabilidad Geotécnica y paisajística a tres (3) tipos de entornos

ÁREA INTERVENCIÓN 2.500 m²

N° DE PROCESO SECOP II CMA-18-2020

COORDINADOR ENTIDAD PROMOTORA

ASESORES TEMÁTICOS

ASESOR JURÍDICO SCA BC

ASESOR JURÍDICO E P

JURADOS

Arq. Andrés Bernal Bernal

Arq. Carlos Hernando Carrillo Arango

Arq. Ximena Samper de Neu

Arq. Liz Mary Sandoval López

Arq. Andrés Díaz López

Educación Física Víctor Franco Botero - Ingeniería Ing. Diego Narváez Sánchez

Dr. Carlos Andrés Gacha Dávila

Dr. Juan Carlos Delgado

PREMIOS OTORGADOS

2do PUESTO

3er PUESTO

MENCIÓN

MENCIÓN

MC Construcciones y Consultorías S.A.S.

Arq. Mauricio Chavez Calle

Mobo Architects S.A.S.

Arq. Giorgio Badalacchi Moncada

MT5 Estudio de Arquitectura S.A.S.

Arq. Jorge Alexis Viveros López

Arq. Andrés Felipe Hincapié Sánchez

Arq. Andrés Felipe Salazar Valencia-- -

Elaboró Arq. Maria Mercedes Cifuentes Quiñones

Aprobó

Arq. Paola Puche Bravo

SOCIEDAD COLOMBIANA DE ARQUITECTOS BOGOTÁ D.C. Y CUNDINAMARCA

CONCURSO PÚBLICO DE DISEÑO DE ANTEPROYECTO ARQUITECTÓNICO DE UN PROTOTIPO DE ESPACIO DEPORTIVO DE DESARROLLO INTEGRAL EDDI - RETO

Aprobó
Arq. Paola Puche Bravo
Elaboró Arq. Maria Mercedes Cifuentes Quiñones

SOCIEDAD COLOMBIANA DE ARQUITECTOS BOGOTÁ D.C. Y CUNDINAMARCA

NOMBRE DEL CONCURSO:

CONCURSO PRIVADO ABIERTO DE ARQUITECTURA PARA EL DISEÑO DE PROYECTOS EMBLEMÁTICOS DE ESPACIO PÚBLICO Y JARDINES INTERIORES DEL CONJUNTO HOSPITALARIO SAN JUAN DE DIOS BIEN DE INTERÉS CULTURAL, LEY 735 2002

GANADOR:

DE ARQUITECTURA Y PAISAJE S.A.S. Arq. JAIME EDUARDO CABAL MEJÍA

2021

No. Contrato SCA BC - EP

AÑO 053-2020

ENTIDAD PROMOTORA EMPRESA DE RENOVACION Y DESARROLLO URBANO DE BOGOTA D.C.

FECHA DE APERTURA 10 DE JUNIO DE 2021

FECHA DE PROCLAMACIÓN 11 DE AGOSTO DE 2021

OBJETO DEL CONCURSO

COORDINADORES DE LA SCA BC

LOCALIZACIÓN Bogotá D.C.

Se orienta a seleccionar la mejor propuesta de esquema básico y anteproyecto arquitectónico para que, la FIDUCIARIA COLPATRIA S.A. en calidad de Vocera y Administradora del Patrimonio Autónomo Derivado FC San Juan de Dios ERU, según instrucción dada por el FIDEICOMITENTE GESTOR Y APORTANTE (EMPRESA DE RENOVACIÓN Y DESARROLLO URBANO DE BOGOTÁ D.C.), suscriba con su autor el contrato de consultoría para la ejecución del diseño arquitectónico para realizar la administración y coordinación arquitectónica y técnica de los estudios y diseños técnicos, respecto de las plazoletas Concepción Villaveces de Acosta (Cra.10a.), de La Hortúa, la Alameda de La Hortúa, el Jardín del Núcleo Fundacional y el Jardín entre Pabellones del Complejo Hospitalario de San Juan de Dios (CHSJD), de conformidad con lo que se estipula en las presentes bases del concurso.

Se pretende que el concurso sea el punto de partida del proceso orientado a la conservación y puesta en valor del sistema patrimonial constituido por el CHSJD, Bien de Interés Cultural de Carácter Nacional y Distrital, y a su rehabilitación y adecuación funcional, en cumplimiento del Plan Especial de Manejo y Protección (PEMP), y en coordinación con los instrumentos de planeamiento y de gestión vigentes, apoyando la revitalización del centro de Bogotá, para el beneficio de los habitantes del sector, de las comunidades asociadas y de la ciudadanía en general.

Arq. Gonzalo Correal Ospina 1a etapa - Arq. Javier Jiménez Cuervo 2a etapa

UBICACIÓN Entre calle 1ª Avenida de la Hortúa y la Calle 2ª sur, entre la Carrera 10ª y la Carrera 14

ÁREA INTERVENCIÓN Anteproyecto Arquitectónico: Espacios Emblemáticos 25.310 m² - Ideas: 55.000 m²

N° DE PROCESO SECOP II PAD-SJD-CMA-01-2021

COORDINADOR ENTIDAD PROMOTORA

Arq. Giovanna Vittoria Spera Velásquez

ASESORES TEMÁTICOS -

ASESOR JURÍDICO SCA BC

ASESOR JURÍDICO E P

JURADOS

Arq. Mauricio Uribe González

Arq. Diana Wiesner Ceballos

Arq. Suely Vargas Nobrega

Arq. María Claudia Vargas Martínez

Dr. Carlos Andrés Gacha Dávila

Dr. Vladimir Castro Ardila

PREMIOS OTORGADOS

2do PUESTO

3er PUESTO

MENCIÓN

MENCIÓN

Arquitectura en Estudio S.A.S.

Arq. Camilo Ernesto Garavito García

Martínez Arquitectura S.A.S.

Arq. Carlos Alberto Martínez Valencia

LAND7 S.A.S.

Arq. Juan David Hoyos

Arq. Diego Alonso López Chalarca

Arq. María Mercedes Jaramillo Garcés- -

Elaboró Arq. Maria Mercedes Cifuentes Quiñones

Arq. Paola Puche Bravo -

Aprobó

SOCIEDAD COLOMBIANA DE ARQUITECTOS BOGOTÁ D.C. Y CUNDINAMARCA

CONCURSO PRIVADO ABIERTO DE ARQUITECTURA PARA EL DISEÑO DE PROYECTOS EMBLEMÁTICOS DE ESPACIO PÚBLICO Y JARDINES INTERIORES DEL CONJUNTO HOSPITALARIO SAN JUAN DE DIOS BIEN DE INTERÉS CULTURAL, LEY 735 2002

Aprobó
Arq. Paola Puche Bravo
Elaboró Arq. Maria Mercedes Cifuentes Quiñones

SOCIEDAD COLOMBIANA DE ARQUITECTOS BOGOTÁ D.C. Y CUNDINAMARCA

NOMBRE DEL CONCURSO:

AÑO

CONCURSO PÚBLICO DE ANTEPROYECTO ARQUITECTÓNICO: ESTRUCTURA ESCOLAR SOSTENIBLE PARA EL SIGLO XXI

2021

GANADOR:

MARTÍNEZ ARQUITECTURA S.A.S. Arq. CARLOS ALBERTO MARTÍNEZ VALENCIA

No. Contrato SCA BC - EP

ENTIDAD PROMOTORA SECRETARÍA DE EDUCACIÓN DEL DISTRITO

FECHA DE APERTURA 4 DE NOVIEMBRE DE 2021

FECHA DE PROCLAMACIÓN 10 DE DICIEMBRE DE 2021

CO1PCCNTR 2713541 DE 2021

OBJETO DEL CONCURSO

COORDINADOR DE LA SCA BC

LOCALIZACIÓN Bogotá D.C.

El objeto principal del CONCURSO se orienta a seleccionar la propuesta de anteproyecto arquitectónico para que SECRETARÍA DE EDUCACIÓN DISTRITAL SED suscriba con su autor, el contrato de consultoría para la ejecución del diseño arquitectónico, los estudios técnicos, la coordinación arquitectónica y técnica y demás labores inherentes a los alcances y etapas de referencia de los servicios profesionales de diseño arquitectónico.

Arq. María Ximena Manrique Niño

N° DE PROCESO SECOP I SED-CM-A-DCCEE-080-2021

COORDINADOR ENTIDAD PROMOTORA

Arq. José Mauricio Baquero Beltrán UBICACIÓN Avenida Carrera 58 N° 167 - 20, Localidad de Suba ÁREA INTERVENCIÓN 15.492,32 m²

ASESORES TEMÁTICOS -

ASESOR JURÍDICO SCA BC

Dr. Carlos Andrés Gacha Dávila

ASESOR JURÍDICO E P -

JURADOS

Arq. Rene Javier Daniels Ayala

Arq. Jaime Gutiérrez Paz

PREMIOS OTORGADOS

2do PUESTO

3er PUESTO

De Arquitectura y Paisaje S.A.S.

Arq. Jaime Eduardo Cabal Mejía

Arquitectura en Estudio S.A.S.

Arq. Camilo Ernesto Garavito García

Arq. Juan Pablo Aschner Rosselli -

Arq. Jose Alfredo Soto Torres -

Arq. Felipe Alberto Morales Sánchez- -

Elaboró Arq. Maria Mercedes Cifuentes Quiñones

Arq. Paola Puche Bravo -

Aprobó

SOCIEDAD COLOMBIANA DE ARQUITECTOS BOGOTÁ D.C. Y CUNDINAMARCA

CONCURSO PÚBLICO DE ANTEPROYECTO ARQUITECTÓNICO: ESTRUCTURA

ESCOLAR SOSTENIBLE PARA EL SIGLO XXI

Aprobó
Arq. Paola Puche Bravo
Elaboró Arq. Maria Mercedes Cifuentes Quiñones

SOCIEDAD COLOMBIANA DE ARQUITECTOS BOGOTÁ D.C. Y CUNDINAMARCA

CONCURSO DE ANTEPROYECTO

NOMBRE DEL CONCURSO:

AÑO

ARQUITECTÓNICO PARA EL DISEÑO DE UN VELÓDROMO EN EL PARQUE

GIBRALTAR EN LA LOCALIDAD DE KENNEDY EN BOGOTA D.C.

2021

GANADOR:

PARALELOo 621 GERENCIA, DISEÑO Y CONSTRUCCIÓN S.A.S.

Arq. JUAN CAMILO ARANGO RESTREPO

No. Contrato SCA BC - EP

ENTIDAD PROMOTORA INSTITUTO DISTRITAL PARA LA RECREACIÓN Y EL DEPORTE

FECHA DE APERTURA 11 DE NOVIEMBRE DE 2021

FECHA DE PROCLAMACIÓN 20 DE DICIEMBRE DE 2021

IDRD-CTO-2439-2021

OBJETO DEL CONCURSO

COORDINADOR DE LA SCA BC

LOCALIZACIÓN Bogotá D.C.

El objeto principal de EL CONCURSO se orienta a seleccionar una propuesta de anteproyecto arquitectónico para que El INSTITUTO DISTRITAL PARA LA RECREACIÓN Y EL DEPORTE ( suscriba con su autor, el contrato de consultoría para la ejecución del diseño arquitectónico, los estudios técnicos, la coordinación arquitectónica y técnica y demás labores inherentes a los alcances y etapas de referencia de los servicios profesionales de diseño arquitectónico.

Arq. Luis Manuel Briceño Triana

UBICACIÓN Esquina suroriental del predio del Parque Metropolitano Gibraltar, Carrera 91 y Calle 49 sur ÁREA INTERVENCIÓN Total programa 11.212,49 m² - Exteriores 9.056 m²

N° DE PROCESO SECOP I IDRD-SG-CM-067-2021

COORDINADOR ENTIDAD PROMOTORA Arq. Alejandro Ocampo Mora

ASESORES TEMÁTICOS -

ASESOR JURÍDICO SCA BC

Dr. Carlos Andrés Gacha Dávila

ASESOR JURÍDICO E P -

JURADOS

Arq. Leonardo Álvarez Yepes

Arq. María Elvira Madriñan Saa

Arq. Fernando Montenegro Lizarralde

Arq. Nelson Yovany Jiménez

Arq. Felipe Alberto Morales Sánchez

PREMIOS OTORGADOS

2do PUESTO

3er PUESTO

1a MENCIÓN

2a MENCIÓN

3a MENCIÓN

4a MENCIÓN

LAND7 S.A.S.

Arq. Juan David Hoyos Taborda

Arquitectura en Estudio

Arq. Camilo Ernesto Garavito García

Consorcio Arquitectura y Espacio Urbano

Arq. Mario Fernando Camargo Gómez

Consorcio Espacio Colectivo + Colectivo 720

Arq. Mario Fernando Camargo Gómez

Consorcio Niro y 57Uno

Arq. Jheny Nieto Ropero

U.T. Arco

Arq. Paola Puche Bravo -

Aprobó

Arq. Alberto José Aranda Lozano

Elaboró Arq. Maria Mercedes Cifuentes Quiñones

SOCIEDAD COLOMBIANA DE ARQUITECTOS BOGOTÁ D.C. Y CUNDINAMARCA

CONCURSO DE ANTEPROYECTO ARQUITECTÓNICO PARA EL DISEÑO DE UN VELÓDROMO EN EL PARQUE

GIBRALTAR EN LA LOCALIDAD DE KENNEDY EN BOGOTA D.C.

Aprobó
Arq. Paola Puche Bravo
Elaboró Arq. Maria Mercedes Cifuentes Quiñones

SOCIEDAD COLOMBIANA DE ARQUITECTOS BOGOTÁ D.C. Y CUNDINAMARCA

NOMBRE DEL CONCURSO:

AÑO

CONCURSO PÚBLICO DE ANTEPROYECTO ARQUITECTÓNICO: AMBIENTES INNOVADORES Y SOSTENIBLES PARA EDUCACIÓN INICIAL DE LA SECRETARÍA DE EDUCACIÓN DEL DISTRITO

2022

GANADOR:

FP – OFICINA DE ARQUITECTURA S.A.S. Arq. JOSÉ ARNULFO PUENTES PABÓN

No. Contrato SCA BC - EP

ENTIDAD PROMOTORA SECRETARIA DE EDUCACIÓN DEL DISTRITO

FECHA DE APERTURA 20 DE MAYO DE 2022

FECHA DE PROCLAMACIÓN 7 DE JULIO DE 2022

CO1.PCCNTR.2713541

OBJETO DEL CONCURSO

COORDINADOR DE LA SCA BC

LOCALIZACIÓN Bogotá D.C.

El objeto principal del CONCURSO se orienta a seleccionar la propuesta de anteproyecto arquitectónico para que SECRETARÍA DE EDUCACIÓN DEL DISTRITO, suscriba con su autor, el contrato de consultoría para la elaboración de estudios y diseños requeridos para la obtención de licencias de construcción en cualquiera de sus modalidades y/o licencia de urbanismo, junto con los permisos y aprobaciones necesarios para la construcción de una infraestructura educativa para atención de primera infancia en los predios designados por la SED en el Distrito Capital, los estudios técnicos, la coordinación arquitectónica y técnica y demás labores inherentes a los alcances y etapas de referencia de los servicios profesionales de diseño arquitectónico.

Arq. Ruth Domínguez Amorocho

UBICACIÓN AK 96 N° 70 – 35 IN 4, urbanización Plazuela de Álamos, barrio Santa Mónica, Localidad Engativá ÁREA INTERVENCIÓN 2.430 m²

N° DE PROCESO SECOP I SED-CM-A-DCCEE-016-2022

COORDINADOR ENTIDAD PROMOTORA

ASESORES TEMÁTICOS

ASESOR JURÍDICO SCA BC

ASESOR JURÍDICO E P

JURADOS

Arq. Juan Pablo Ortiz Suarez

Arq. José Mauricio Baquero Beltrán

Dr. Carlos Andrés Gacha Dávila

PREMIOS OTORGADOS

2do PUESTO

Quicazán Taller S.AS.

Arq. Adriana Hernández Quicazán

Arq. Pablo Emilio Forero Quintero UT-MCTM

3er PUESTO

Arq. Nicolás Mujica Pereira

Arq. Francisco Ramírez Potes

Arq. José Alfredo Soto Torres -

Arq. Carlos Alberto Benavides Suescun -

Elaboró Arq. Maria Mercedes Cifuentes Quiñones

Arq. Paola Puche Bravo -

Aprobó

SOCIEDAD COLOMBIANA DE ARQUITECTOS BOGOTÁ D.C. Y CUNDINAMARCA

CONCURSO PÚBLICO DE ANTEPROYECTO ARQUITECTÓNICO:

AMBIENTES INNOVADORES Y SOSTENIBLES PARA EDUCACIÓN INICIAL DE LA SECRETARÍA DE EDUCACIÓN DEL DISTRITO

Aprobó
Arq. Paola Puche Bravo
Elaboró Arq. Maria Mercedes Cifuentes Quiñones

SOCIEDAD COLOMBIANA DE ARQUITECTOS BOGOTÁ D.C. Y CUNDINAMARCA

NOMBRE DEL CONCURSO:

AÑO

CONCURSO PÚBLICO DE ANTEPROYECTO ARQUITECTÓNICO PARA EL BIEN DE INTERÉS CULTURAL TEATRO AL AIRE LIBRE LA MEDIA TORTA Y CASONA DE LA DANZA

GANADOR:

2022

MARTÍNEZ ARQUITECTURA S.A.S. Arq. CARLOS ALBERTO MARTÍNEZ VALENCIA

No. Contrato SCA BC - EP

ENTIDAD PROMOTORA INSTITUTO DISTRITAL DE LAS ARTES

FECHA DE APERTURA 20 DE SEPTIEMBRE DE 2022

FECHA DE PROCLAMACIÓN 8 DE NOVIEMBRE DE 2022

1746-2022

OBJETO DEL CONCURSO

COORDINADOR DE LA SCA BC

LOCALIZACIÓN Bogotá D.C.

El objeto principal de EL CONCURSO se orienta a seleccionar la propuesta de anteproyecto arquitectónico para que IDARTES suscriba con su autor, el contrato de consultoría para la ejecución de los diseños integrales, los estudios técnicos, la coordinación arquitectónica y técnica y demás labores inherentes a los alcances y etapas de referencia de los servicios profesionales de diseño arquitectónico incluyendo todas aquellas gestiones, permisos y licenciamientos que se requieran para posibilitar la posterior ejecución del proyecto.

UBICACIÓN Carrera 5ª Este N° 17-1

ÁREA INTERVENCIÓN 4.066 m²

Arq. Iván Darío Solano Doncel

N° DE PROCESO SECOP I IDARTES-CMA-002-2022

COORDINADOR ENTIDAD PROMOTORA

ASESORES TEMÁTICOS

Arq. Marco Alejandro Chavistad Penagos

Asesoría en Paisajismo Arq. Carlos Eduardo Sabogal Florez ASESOR JURÍDICO SCA BC

Dr. Carlos Andrés Gacha Dávila

ASESOR JURÍDICO E PJURADOS

Arq. Jorge Enrique Caballero Leguizamón

Arq. Daniel Bonilla Ramírez

PREMIOS OTORGADOS

2do PUESTO

3er PUESTO

Taller 301 S.A.S.

Arq. Julián Andrés Restrepo Molina

Colectivo 720 SAS

Arq. Mario Fernando Camargo Gómez

Arq. Wilfredo Argüelles Alarcón -

Arq. Angélica Victoria Rodríguez de Narváez -

Arq. Ricardo de Jesús Escobar Álvarez- -

Elaboró Arq. Maria Mercedes Cifuentes Quiñones

Arq. Paola Puche Bravo -

Aprobó

SOCIEDAD COLOMBIANA DE ARQUITECTOS BOGOTÁ D.C. Y CUNDINAMARCA

CONCURSO PÚBLICO DE ANTEPROYECTO ARQUITECTÓNICO

PARA EL BIEN DE INTERÉS CULTURAL

TEATRO AL AIRE LIBRE LA MEDIA

TORTA Y CASONA DE LA DANZA

Aprobó
Arq. Paola Puche Bravo
Elaboró Arq. Maria Mercedes Cifuentes Quiñones

SOCIEDAD COLOMBIANA DE ARQUITECTOS BOGOTÁ D.C. Y CUNDINAMARCA

CONCURSO PÚBLICO DE ANTEPROYECTO ARQUITECTÓNICO:

NOMBRE DEL CONCURSO:

AÑO

AMBIENTES INNOVADORES Y SOSTENIBLES PARA LA EDUCACIÓN EN LA RURALIDAD DE BOGOTÁ D.C.

2022

GANADOR:

PINILLA ARQUITECTOS S.A.S.

Arq. MAURICIO PINILLA ACEVEDO

No. Contrato SCA BC - EP

ENTIDAD PROMOTORA SECRETARIA DE EDUCACIÓN DEL DISTRITO

FECHA DE APERTURA 4 DE OCTUBRE DE 2022

FECHA DE PROCLAMACIÓN 25 DE NOVIEMBRE DE 2022

CO1.PCCNTR.2713541

OBJETO DEL CONCURSO

COORDINADOR DE LA SCA BC

LOCALIZACIÓN Bogotá D.C.

El objeto principal de EL CONCURSO se orienta a seleccionar la propuesta de anteproyecto arquitectónico para que LA SECRETARIA DE EDUCACION DEL DISTRITO suscriba con su autor, el contrato de consultoría para la ejecución del diseño arquitectónico, los estudios técnicos, la coordinación arquitectónica y técnica y demás labores inherentes a los alcances y etapas de referencia de los servicios profesionales de diseño arquitectónico.

Arq.Maximiliano Garzón Díaz

UBICACIÓN KM 13 vía Choachí,actualmente funciona el colegio Distrital El Verjon Alto, lote en su totalidad en la zona rural.

ÁREA INTERVENCIÓN 2.762,86 m² N° DE PROCESO SECOP I SED-CM-A-DCCEE-070-2022

COORDINADOR ENTIDAD PROMOTORA

ASESORES TEMÁTICOS

ASESOR JURÍDICO SCA BC

ASESOR JURÍDICO E P

JURADOS

Arq. Pedro Juan Jaramillo Carling

Arq.Fernando de la Carrera Ruan

Arq. Sebastián Serna Hosie

Arq. José Alfredo Soto Torres

Arq. Juan Guillermo Jiménez Gómez

Elaboró Arq. Maria Mercedes Cifuentes Quiñones

Arq. José Mauricio Baquero Beltrán

Dr. Carlos Andrés Gacha Dávila

PREMIOS OTORGADOS

2do PUESTO

3er PUESTO

MENCIÓN

MENCIÓN

MENCIÓN

EMS Arquitectura S.A.S.

Arq.Gustavo Sarmiento Peñaranda

Colectivo 720 S.A.S.

Arq. Mario Fernando Camargo Gómez

Consorcio Land/Entropía

Arq. Juan David Hoyos T.

Taller Espacio Colectivo S.A.S.

Arq. Aldo Marcelo Hurtado Mora

Estudio Territorios S.A.S.

Arq. Julián Esteban Castaño Ospina

Aprobó

Arq. Paola Puche Bravo

SOCIEDAD COLOMBIANA DE ARQUITECTOS BOGOTÁ D.C. Y CUNDINAMARCA

CONCURSO PÚBLICO DE ANTEPROYECTO ARQUITECTÓNICO:

AMBIENTES INNOVADORES Y SOSTENIBLES PARA LA EDUCACIÓN EN LA RURALIDAD DE BOGOTÁ D.C.

Aprobó
Arq. Paola Puche Bravo
Elaboró Arq. Maria Mercedes Cifuentes Quiñones

SOCIEDAD COLOMBIANA DE ARQUITECTOS BOGOTÁ D.C. Y CUNDINAMARCA

NOMBRE DEL CONCURSO:

AÑO

CONCURSO PÚBLICO DE ANTEPROYECTO ARQUITECTÓNICO PARA UN COLEGIO EN VILLAS DEL PROGRESO EN BOGOTÁ. INNOVACIÓN, SOSTENIBILIDAD, ADAPTABILIDAD

2022

GANADOR:

DAVID DELGADO ARQUITECTOS S.A.S Arq. DAVID HUMBERTO DELGADO RODRÍGUEZ

No. Contrato SCA BC - EP

ENTIDAD PROMOTORA SECRETARÍA DE EDUCACIÓN DEL DISTRITO

FECHA DE APERTURA 11 DE OCTUBRE DE 2022

FECHA DE PROCLAMACIÓN 5 DE DICIEMBRE DE 2022

CO1.PCCNTR.2713541- Mod. 1

OBJETO DEL CONCURSO

El objeto principal de EL CONCURSO se orienta a seleccionar la propuesta de anteproyecto arquitectónico para que LA SECRETARIA DE EDUCACIÓN DEL DISTRITO suscriba con su autor, el contrato de consultoría para la ejecución del diseño urbanístico, arquitectónico, los estudios técnicos, la coordinación arquitectónica y técnica y demás labores inherentes a los alcances y etapas de referencia de los servicios profesionales de diseño arquitectónico.

COORDINADOR DE LA SCA BC Arq. Luis Manuel Briceño Triana LOCALIZACIÓN Bogotá D.C.

UBICACIÓN Carrera 89 N° 74 A - 27 Sur, Localidad de Bosa

ÁREA INTERVENCIÓN 9.335,9 m²

N° DE PROCESO SECOP I SED-CM-A-DCCEE-076-2022

COORDINADOR ENTIDAD PROMOTORA

ASESORES TEMÁTICOS

ASESOR JURÍDICO SCA BC

ASESOR JURÍDICO E P

JURADOS

Arq. Eduardo Rocha Tamayo

Arq. María Carrizosa Aparicio

Arq. Alfredo Gómez Villanueva

Arq. José Alfredo Soto Torres

Arq. Juan Guillermo Jiménez Gómez

Elaboró Arq. Maria Mercedes Cifuentes Quiñones

Arq. José Mauricio Baquero Beltrán

Dr. Carlos Andrés Gacha Dávila

PREMIOS OTORGADOS

2do PUESTO

3er PUESTO

1a MENCIÓN

2a MENCIÓN

3a MENCIÓN

UT Kit

Arq. Mariana Restrepo Gómez

Roho + Tau S.A.S.

Arq. Robert Hoyos Giraldo

FP Oficina De Arquitectura S.A.S.

Arq. José Arnulfo Puentes Pabón

Arq. Andrés Rodríguez Cabra

Arquitectura Más Urbanismo S.A.S.

Arq. Camilo Pinilla Castro

Aprobó

Arq. Paola Puche Bravo

SOCIEDAD COLOMBIANA DE ARQUITECTOS BOGOTÁ D.C. Y CUNDINAMARCA

CONCURSO PÚBLICO DE ANTEPROYECTO ARQUITECTÓNICO

PARA UN COLEGIO EN VILLAS DEL PROGRESO EN BOGOTÁ. INNOVACIÓN, SOSTENIBILIDAD, ADAPTABILIDAD

Aprobó
Arq. Paola Puche Bravo
Elaboró Arq. Maria Mercedes Cifuentes Quiñones

SOCIEDAD COLOMBIANA DE ARQUITECTOS BOGOTÁ D.C. Y CUNDINAMARCA

NOMBRE DEL CONCURSO:

AÑO

CONCURSO PRIVADO DE IDEAS Y ANTEPROYECTO ARQUITECTÓNICO PARA LA RIBERA DEL MAGDALENA EN LA CIUDAD DE NEIVA

GANADOR:

2024

LEONARDO ÁLVAREZ YEPES ARQUITECTOS S.A.S. Arq. LEONARDO ÁLVAREZ YEPES

No. Contrato SCA BC - EP

ENTIDAD PROMOTORA OLAVE GLOBAL INVESTMENTS S.A.S.

FECHA DE APERTURA 29 DE ENERO DE 2024

FECHA DE PROCLAMACIÓN 9 DE MAYO DE 2024

CPS 01-2023

OBJETO DEL CONCURSO

COORDINADOR DE LA SCA BC

LOCALIZACIÓN Neiva, Huila

El objeto principal del concurso es seleccionar el esquema urbanístico y el anteproyecto arquitectónico que sirva de base al desarrollo arquitectónico e inmobiliario de los predios ubicados en la ribera del río Magdalena en ciudad de Neiva, de propiedad de OLAVE GLOBAL INVESTMENTS S.A.S.

Arq. Fernando Montenegro Lizarralde

UBICACIÓN En la desembocadura del río del Oro y la quebrada Matamundo sobre el río Magdalena sobre la Av Inés García de Duran que conecta con la carretera RN - 45 que conecta con la salida hacia el sur del país y la Av Circunvalar.

ÁREA INTERVENCIÓN 186,743.65 m2

N° DE PROCESO SECOP I -

COORDINADOR ENTIDAD PROMOTORA

ASESORES TEMÁTICOS

ASESOR JURÍDICO SCA BC

ASESOR JURÍDICO E P

Dr. Carlos Andrés Gacha Dávila

Dr. Alex Jamith Cano, asesor jurídico JURADOS PREMIOS OTORGADOS

Arq. Fernando de la Carrera Ruan

Arq. José Alejandro Gómez Suarez

2do PUESTO

3er PUESTO

Arq. Nelson Camilo Avellaneda Valcárcel

Mazzanti & Arquitectos S.A.S.

Arq. Gian Carlo Mazzantu Sierra

Arq. Rafael Pertuz Herrera -

Arq. Lorenzo Castro Jaramillo

Arq. Juan PabloOrtiz Suarez

Elaboró Arq. Maria Mercedes Cifuentes Quiñones

Aprobó

Arq. Paola Puche Bravo

SOCIEDAD COLOMBIANA DE ARQUITECTOS BOGOTÁ D.C. Y CUNDINAMARCA

CONCURSO PRIVADO DE IDEAS Y ANTEPROYECTO ARQUITECTÓNICO

PARA LA RIBERA DEL MAGDALENA EN LA CIUDAD DE NEIVA

Aprobó
Arq. Paola Puche Bravo
Elaboró Arq. Maria Mercedes Cifuentes Quiñones

SOCIEDAD COLOMBIANA DE ARQUITECTOS BOGOTÁ D.C. Y CUNDINAMARCA

NOMBRE DEL CONCURSO:

CONCURSO PUBLICO DE ANTEPROYECTO ARQUITECTÓNICO “PUEBLOS DORADOS” EN LOS MUNICIPIOS DE AGUA DE DIOS, GACHALÁ E INSPECCIÓN DE SAN JOAQUÍN DEL MUNICIPIO DE LA MESA, EN CUNDINAMARCA

GANADOR:

Arq. JUAN FERNANDO RUIZ GALEANO

2024

No. Contrato SCA BC - EP

AÑO 421 de 2024

ENTIDAD PROMOTORA INSTITUTO DE INFRAESTRUCTURA Y CONCESIONES DE CUNDINAMARCA - ICCU

FECHA DE APERTURA 13 DE NOVIEMBRE DE 2024

FECHA DE PROCLAMACIÓN 26 DE DICIEMBRE DE 2024

OBJETO DEL CONCURSO

COORDINADOR DE LA SCA BC

LOCALIZACIÓN Cundinamarca

El objeto principal de EL CONCURSO se orienta a seleccionar la propuesta de cualificación de espacio público y urbanismo táctico para que EL INSTITUTO DE INFRAESTRUCTURA Y CONCESIONES DE CUNDINAMARCA ICCU suscriba con su autor, el contrato de consultoría para la ejecución del diseño arquitectónico y urbanístico, los estudios técnicos, la coordinación arquitectónica y técnica y demás labores inherentes a los alcances y etapas de referencia de los servicios profesionales de diseño arquitectónico.

Arq.Maximiliano Garzón Díaz

UBICACIÓN Municipios de Agua de Dios, Gachalá e Inspección de San Joaquín del Municipio de La Mesa ÁREA INTERVENCIÓN Corresponden en cada municipio a las determinadas por la administración municipal y departamental. N° DE PROCESO SECOP I ICCU-CM-033 DE 2024

COORDINADOR ENTIDAD PROMOTORA

ASESORES TEMÁTICOS

ASESOR JURÍDICO SCA BC

ASESOR JURÍDICO E P

JURADOS

Arq. Waldo Yecid Ortiz Romero

Arq. Otto Federico Cala Ardila

Arq. Henry Gualdrón Velasco

Arq. Walter Raúl Parada Barajas

Arq. Juan Sebastián Rojas Castellanos

Elaboró Arq. María Mercedes Cifuentes Quiñones

Arq. Alejandra Pulido Salcedo

Dr. Carlos Andrés Gacha Dávila

Dr. Andrés Alberto Torres Maldonado

PREMIOS OTORGADOS

2do PUESTO

3er PUESTO

Consorcio ORIGEN-RO.AM Hugo Alejandro Botía Sanabria

Ingeniería Desarrollo y Consultoría INDESCO SAS BIC Julián Darío Ochoa Niño

Aprobó

Arq. Paola Puche Bravo

SOCIEDAD COLOMBIANA DE ARQUITECTOS BOGOTÁ D.C. Y CUNDINAMARCA

CONCURSO PUBLICO DE ANTEPROYECTO ARQUITECTÓNICO

“PUEBLOS DORADOS” EN LOS MUNICIPIOS DE AGUA DE DIOS, GACHALÁ E INSPECCIÓN DE SAN JOAQUÍN DEL MUNICIPIO DE LA MESA, EN CUNDINAMARCA

Aprobó
Arq. Paola Puche Bravo
Elaboró Arq. María Mercedes Cifuentes Quiñones

SOCIEDAD COLOMBIANA DE ARQUITECTOS BOGOTÁ D.C. Y CUNDINAMARCA

CONCURSO PUBLICO DE ANTEPROYECTO ARQUITECTÓNICO

NOMBRE DEL CONCURSO:

“PUEBLOS DORADOS” EN LOS MUNICIPIOS DE GUADUAS Y APULO, EN CUNDINAMARCA

GANADOR:

CONSORCIO PD Arq. CARLOS ANDRÉS PALACIO MEJÍA

2024

No. Contrato SCA BC - EP

AÑO 421 de 2024

ENTIDAD PROMOTORA INSTITUTO DE INFRAESTRUCTURA Y CONCESIONES DE CUNDINAMARCA

FECHA DE APERTURA 18 DE NOVIEMBRE DE 2024

FECHA DE PROCLAMACIÓN 27 DE DICIEMBRE DE 2024

OBJETO DEL CONCURSO

COORDINADOR DE LA SCA BC

LOCALIZACIÓN Cundinamarca

El objeto principal de EL CONCURSO se orienta a seleccionar la propuesta de cualificación de espacio público y urbanismo táctico para que EL INSTITUTO DE INFRAESTRUCTURA Y CONCESIONES DE CUNDINAMARCA ICCU suscriba con su autor, el contrato de consultoría para la ejecución del diseño arquitectónico y urbanístico, los estudios técnicos, la coordinación arquitectónica y técnica y demás labores inherentes a los alcances y etapas de referencia de los servicios profesionales de diseño arquitectónico.

UBICACIÓN Municipios de Guaduas y Apulo

Arq. Jorge Enrique Caballero Leguizamón

ÁREA INTERVENCIÓN Corresponden en cada municipio a las determinadas por la administración municipal y departamental. N° DE PROCESO SECOP I

COORDINADOR ENTIDAD PROMOTORA

ASESORES TEMÁTICOS

ASESOR JURÍDICO SCA BC

ASESOR JURÍDICO E P

JURADOS

Arq. Pedro Pablo Rojas Carrillo

Arq. María Isabel González Orozco

Arq. Alejandra Pulido Salcedo

Dr. Carlos Andrés Gacha Dávila

Dr. Andrés Alberto Torres Maldonado

PREMIOS OTORGADOS

2do PUESTO

3er PUESTO

Consorcio ORIGEN-RO.AM

Hugo Alejandro Botía Sanabria

Ingeniería Desarrollo y Consultoría INDESCO SAS BIC Julián Darío Ochoa Niño

Arq. Ricardo A. Zabaleta Puello -

Arq. Laura María Jiménez Guevara -

Arq. Fabian Camilo Bermúdez Campos

Elaboró Arq. María Mercedes Cifuentes Quiñones

Aprobó

Arq. Paola Puche Bravo

SOCIEDAD COLOMBIANA DE ARQUITECTOS BOGOTÁ D.C. Y CUNDINAMARCA

CONCURSO PUBLICO DE ANTEPROYECTO ARQUITECTÓNICO

“PUEBLOS DORADOS” EN LOS MUNICIPIOS DE GUADUAS Y APULO, EN CUNDINAMARCA

GUADUAS

Aprobó
Arq. Paola Puche Bravo
Elaboró Arq. María Mercedes Cifuentes Quiñones
APULO

Turn static files into dynamic content formats.

Create a flipbook
Issuu converts static files into: digital portfolios, online yearbooks, online catalogs, digital photo albums and more. Sign up and create your flipbook.