

TRAVAUX SELECTIONNÉS
JULIETTE RODRIGUEZ
TRAVAUX SÉLECTIONNÉS
JULIETTE RODRIGUEZ
2015-2020

JULIETTE RODRIGUEZ
Ingénieure ESTP
Architecte HMONP
CONTACT
06 52 46 62 80 32 Rue Pelleport, 75020, PARIS 20 juliettemsrodriguez@gmail.com
COMPÉTENCES
Anglais C1 - TOEFL ITP
ESPAGNOL B2
JAPONAIS JPLT N4
Suite ADOBE AUTOCAD REVIT ARCHICAD ENSCAPE
SKETCHUP
MS PROJECT
CENTRES D’INTÉRÊTS
Opéra
Cinéma
Course à pieds
Yoga
Littérature
EXPÉRIENCES
CORELO
MAITRE D’OEUVRE D’ÉXÉCUTION
Mai 2022-Ajd
TOUR HOPEN / Courbevoie - Mission MOEX + Mandataire en EXE
Restructuration lourde d’un IGH construit en 1998 par Andrault-Ayoub.
Réhabilitation et extension de la Tour existante de 59 000m² : surélévation sur 2 niveaux, extension sur 26 niveaux, réhabilitation complète de la tour avec refonte des noyaux, changement de façade, rénovation des plateaux de bureaux lots architecturaux et techniques. Création d’un rooftop paysager.
38 SENTIER / Paris 02 - Mission MOEX + OPC
Restructuration d’un ensemble immobilier 17éme, 18ème et 19ème avec renforcement des structures existantes et rénovation du clos et couvert, création d’une petite extension et d’une terrasse accessible aux usagers.
TVK
CHARGÉE DE SUIVI DE CHANTIER
Jan. 2021-Mai 2022
Ecoquartier Flaubert / Rouen - Mission complète / mandataire Création de 256 logements, de 9000m² de bureaux, de 300m² de commerces, de 600m² de RIE, organisés autour d’espaces paysagers.
Goujons / Bruxelles - Mission complète - Réhabilitation Extension et rénovation d’un bâtiment de 351 logements en site occupé.
Girondins / Lyon - DOE Création de 12000m² de bureaux et 3000m² de commerce.
STUDIO PETRA
ASSISTANTE ARCHITECTE
Juin 2020 - Sept. 2020
Réhabilitation et surrélévation en structure bois - école 42 (Paris 17) Production du dossier APD et incomplétude au PC. Conception maison individuelle pour particulier - Fontenay-aux-Roses : Constitution du PC.
LEON GROSSE
ASSISTANTE CONDUCTEUR DE TRAVAUX
Juin 2017-Sept. 2017
Chantier du théâtre de la Scala - Boulevard de Strasbourg (Paris 10) Suivi de travaux en phase démolition sur le projet de réhabilitation du Théâtre de la Scala. Suivi de consultations, du second oeuvre et lots techniques.
FORMATIONS
ENSAPLV
TITULAIRE DU DIPLOME D’ARCHITECTE HMONP
Janv. 2024 - Nov. 2024
Mémoire
« L’architecte et le chantier, une relation en mutation»
ESTP
INGÉNIEUR SPÉCIALITÉ BÂTIMENT
Sept. 2015 - Sept. 2020
ENSAPLV
TITULAIRE DU DIPLOME D’ARCHITECTE DIPLÔMÉE D’ÉTAT
Sept. 2015 - Sept. 2020
Mémoire
« L’enseignement des wedding chapels, la célébration du simulacre au Japon » Réflexions sur les enjeux croisés entre sémiotique et architecture.
Projet de fin d’étude
« Avant la ruine, déconstruction du modèle du centre commercial, reconstruction d’un lien à la ville»
KYOTO UNIVERSITY
MASTER 1 - ARCHITECTURE
Sept. 2018 - Sept. 2019
Échange universitaire
Formation en architecture, histoire de l’architecture et strucure anti-sismisque. Perfectionnement de mon niveau d’anglais et apprentissage du japonais.
LYCÉE MASSENA CLASSES PRÉPARATOIRES SCIENTIFIQUES
MPSI/MP
Sept. 2013 - Juillet 2015
Classe préparatoire aux grandes écoles en mathématiques, physique et sciences de l’ingénieur
Sujet de TIPE : «Comportement d’une ondeélectromagnétique à la rencontre d’un obstacle»

LA TOUR HOPEN
MAITRE D’OEUVRE D’EXECUTION - CORELO - 2022/2025
MOA : PRIMONIAL
MOD : ORFEO
ARCHITECTE : ATELIERS 2/3/4/
Le projet porte sur la restructuration lourde d’un immeuble de grande hauteur (IGH) réalisé en 1998 par Andrault-Ayoub, totalisant 59 000 m². Il comprend des travaux de surélévation, d’extension et de réhabilitation complète, visant à moderniser et adapter cet édifice aux nouveaux besoins fonctionnels. La tour existante est surélevée de deux niveaux et agrandie par une extension de 26 niveaux, augmentant significativement sa surface utile.
En tant que maître d’œuvre d’exécution et mandataire de l’opération, j’ai un rôle central dans la conduite des études d’exécution CEA et CET pour l’ensemble de la tour, y compris les zones décorées, tout en assurant le suivi de chantier spécifique à ces espaces. Ces interventions incluent la refonte complète des noyaux, le remplacement des façades, ainsi que la rénovation des plateaux de bureaux, intégrant des travaux architecturaux et techniques visant à moderniser l’édifice.
L’opération se distingue également par la création d’un rooftop paysager, offrant un espace extérieur accessible aux usagers et apportant une nouvelle fonctionnalité à la tour. Mon rôle sur ce projet implique d’assurer la coordination entre les différents intervenants, de garantir le respect des délais et des exigences qualitatives, et de veiller à la mise en œuvre rigoureuse des éléments architecturaux spécifiques, notamment dans les zones décorées.
Ce projet s’inscrit dans un contexte de transformation urbaine et technique, où la réhabilitation et l’extension d’un IGH représentent un défi majeur.

Photographie : Axel Dahl



Photographies : Axel Dahl
Photographie : Juliette Rodriguez


Photographies : Axel Dahl

38 SENTIER
MAITRE D’OEUVRE D’EXECUTION - CORELO - 2022
MOA : 6EME SENS
ARCHITECTE : VINCENT ESCHALIER
Ce projet de restructuration concerne un ensemble immobilier traversant les siècles, mêlant des architectures des 17ᵉ, 18ᵉ et 19ᵉ siècles. L’objectif principal est de préserver et valoriser ce patrimoine historique tout en l’adaptant aux usages contemporains, dans une démarche conciliant héritage architectural et modernité.
En tant que maître d’œuvre d’exécution et mandataire de l’opération, j’ai assuré l’intégralité du suivi d’exécution de ce projet, y compris la mission d’Ordonnancement, Pilotage et Coordination (OPC). Mon rôle a permis de garantir une coordination optimale entre les différents intervenants, un respect strict des délais, et une mise en œuvre conforme aux exigences patrimoniales et techniques.
Les interventions structurelles, notamment le renforcement des édifices et la rénovation du clos et couvert, ont été réalisées dans le respect de l’authenticité du bâti, avec des solutions adaptées à ses spécificités historiques. En parallèle, une petite extension a été créée pour répondre aux besoins actuels, tout en s’intégrant harmonieusement dans le contexte architectural. J’ai également supervisé l’aménagement d’une terrasse accessible, conçue pour offrir un espace de convivialité aux usagers et renforcer leur lien avec l’environnement extérieur.
Ce projet illustre une approche délicate et rigoureuse, où mon expertise en gestion d’exécution et en coordination a permis d’atteindre un équilibre entre préservation du patrimoine et adaptation fonctionnelle, offrant ainsi un nouveau souffle à cet ensemble immobilier emblématique.

Photographie : Axel Dahl




Photographies : Axel Dahl



































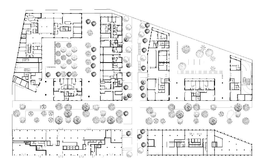
L’EVEIL DE FLAUBERT
ARCHITECTE CHARGÉE DU SUIVI D’EXECUTION - TVK - 2021
MOA : LINKCITY - SOGEPROM
ARCHITECTE ASSOCIÉ : AZ ARCHITECTES
Premier projet émergent de la ZAC Flaubert à Rouen, l’Éveil de Flaubert s’implante sur d’anciennes emprises ferroviaires en bordure de Seine, offrant un belvédère unique sur la ville et ses coteaux. À la jonction entre l’avenue Jean Rondeaux, récemment requalifiée, et le grand paysage ouvert de la vallée, le projet établit un dialogue entre l’urbain et le naturel.
Combinant logements et bureaux autour d’espaces paysagers communs, il favorise les interactions tout en respectant l’intimité des usagers. La volumétrie des îlots, à la fois poreuse et ancrée, articule le quartier avec son environnement élargi, intégrant des cœurs d’îlot généreux et une silhouette identifiable dans le grand paysage.
Une architecture élégante et diversifiée incarne l’équilibre entre unité et singularité, tandis que la conception ouverte et étagée optimise l’ensoleillement, la ventilation naturelle et l’intégration des vues. L’Éveil de Flaubert marque ainsi le passage d’un espace périphérique à un quartier métropolitain exemplaire.
En tant qu’architecte mandataire, j’ai assuré le suivi de chantier de ce projet ambitieux. Mon rôle a inclus la validation des documents d’exécution (visa), la conduite des réunions de chantier, l’établissement des situations de travaux, ainsi que la rédaction et le suivi des ordres de service (OS). Ces responsabilités m’ont permis de garantir la bonne mise en œuvre des intentions architecturales et le respect des objectifs qualitatifs, financiers et calendaires.

Photographie : Julien Hourcade





Photographies : Julien Hourcade

LES GIRONDINS
ARCHITECTE CHARGÉE DU SUIVI D’EXECUTION - TVK - 2021
MOA : 6EME SENS
ARCHITECTE ASSOCIÉ : CLÉMENT VERGELY
La ZAC des Girondins se situe à Gerland, territoire lyonnais en mutation qui sera connecté à Confluence par un nouveau pont. Le lot 01, situé au croisement entre deux axes majeurs, bénéficie d’une très belle visibilité.
L’ensemble est défini par un grand socle formant un rez-de-chaussée « actif » qui regroupe les commerces ou les fonctions collectives (halls, espaces communs). Sur ce rez-de-chaussée sont disposés des logements, des bureaux, des terrasses et un large jardin suspendu.
L’architecture de l’ensemble traduit une transition de l’espace de la rue à celui du jardin, permettant d’offrir une relation particulière à l’environnement. Les bâtiments se tournent vers le jardin à travers des variations de hauteurs et de volumes propices aux espaces extérieurs. L’ensemble architectural est traité avec un même matériau en terre cuite, qui donne à l’ouvrage un caractère intemporel.
L’expression de l’ordre structurel affirme la filiation avec « l’esprit de Gerland », marqué par ses grands vaisseaux industriels remarquables.
Dans le cadre de ce projet, en tant qu’architecte mandataire, j’ai participé au suivi de chantier en collaboration avec la MOEX, AIA. Mes responsabilités comprenaient la réalisation de visites de chantier, la validation des documents d’exécution (visa), ainsi que la reprise des plans, notamment pour l’établissement des DOE, tout en assurant la conformité entre la conception et la réalisation.

Photographie : Julien Hourcade





Photographies : Julien Hourcade

GOUJONS
ARCHITECTE CHARGÉE DU SUIVI D’EXECUTION - TVK - 2021/2022
MOA : FOYER ANDERLECHTOIS
ARCHITECTE MANDATAIRE : KARBON’
Le bâtiment existant, réalisé à la fin des années 60, se situe dans la commune d’Anderlecht à Bruxelles. Haut de 19 niveaux et mesurant 95 mètres de long, il se distingue par un plan linéaire à une inflexion. Le projet, piloté par l’agence Karbon’ en tant qu’architecte mandataire local, vise à intervenir en site occupé, en ajoutant une nouvelle épaisseur de loggia filante tout autour de l’édifice, en remplacement des balcons existants arrivés en fin de vie.
Cette nouvelle loggia, réalisée en béton préfabriqué, offre des espaces extérieurs supplémentaires, tout en apportant une nouvelle identité au bâtiment, un élément emblématique du paysage bruxellois, visible dès l’arrivée en Gare du Midi. En parallèle, l’ensemble des façades est rénové et les logements sont réorganisés afin d’optimiser l’usage de chaque espace.
La structure de la loggia suit une géométrie particulière : un plissé qui modifie progressivement la position du nu extérieur des allèges entre chaque poteau à chaque niveau. Ce mouvement crée une composition verticale qui produit un effet de tissage s’estompant au fur et à mesure de la montée du bâtiment. La loggia démarre avec une ligne brisée en bas et se rétablit parallèlement à la façade en haut, accentuant la verticalité du bâtiment et soulignant sa grande hauteur.
En tant qu’architecte en charge du suivi de chantier, mes missions comprenaient le suivi de chantier sur site, la validation des visas, la reprise des plans pour ajuster les détails en fonction des contraintes rencontrées, ainsi que le suivi des études d’exécution.

Photographie : Julien Hourcade




Plan d’étage courant
Coupe transversale



Photographies : Julien Hourcade

L’ANNEAU-MALIE
MASTER 2 | 2020
ENCADRANTS : P.LEITNER, D.FAGART
Ce projet, réalisé dans le cadre de mon projet de fin d’études, se situe sur le site du Millénaire à Aubervilliers et propose de répondre aux problématiques urbaines et sociales d’un quartier en déclin, en repensant la relation entre l’espace bâti et son environnement. Le site souffre d’un cloisonnement qui empêche une vue sur le canal et l’ouverture vers l’extérieur, alors que le rez-de-ville pourrait offrir une opportunité pour dynamiser la zone.
Pour pallier cette situation, j’ai choisi de revisiter la structure existante en conservant son squelette (poteaux, poutres et planchers en béton armé), tout en la redéfinissant par des découpes permettant de révéler une vision architecturale affirmée. Le béton brut et rugueux est laissé apparent, préservant ainsi une mémoire architecturale et une dimension de « ruine instantanée » inscrite dans le temps.
La forme du projet propose une organisation novatrice : le commerce s’implante au R+1 sous la forme d’un anneau, créant ainsi un espace fluide et ouvert à l’humain, qui se réapproprie le rez-de-chaussée. Ce dernier devient le terrain d’expression de trois places publiques, chacune définie et traitée de manière unique. L’ensemble des programmes, tels que la piscine, les bains, l’administration, le musée et la bibliothèque, se déploie en rez-de-chaussée, apportant une diversité d’usages qui contribuent à qualifier et dynamiser ces espaces publics.
Ce projet ambitionne de réintroduire une mixité fonctionnelle, tout en établissant un lien fort avec le territoire, réinvestissant et réactivant un espace longtemps figé, dans une démarche qui illustre mon engagement pour une architecture porteuse de transformation urbaine.

sur la page de gauche
1. plan RDC projet
2. coupe existant
sur la page de droite
3. axonométrie existant
4. suppression de la verrière
5. suppression de la structure et rajout de plancher
6. axonométrie programmatique

































sur la page de gauche
1. vue place principale
2. vue supermarché
sur la page de droite
3. axonométrie des parcours


2.
1.




LES MICROPOLARITÉS
MASTER 2 | 2019
ENCADRANTS : M.LOPEZ DIAZ, A.DURAND
Ce projet, réalisé dans le cadre de mon Master 2, se concentre sur l’analyse urbaine de Fontenay-aux-Roses, qui a révélé une centralité structurante poussant les habitants à utiliser leurs voitures comme principal moyen de locomotion. Ce phénomène, couplé à un manque de lieux de rencontre, contribue à un individualisme marqué au sein de la population, rendant difficile la communication et l’échange entre voisins. Face à ce constat, notre ambition a été de transformer l’ensemble de la commune en y introduisant des « micro-polarités », des nœuds dynamiques réduisant le temps de trajet pour atteindre ces nouveaux pôles, tout en atténuant l’impact de la pente, caractéristique forte de la ville.
Le projet repose sur l’idée de transition vers un esprit collectif, visant à créer des lieux de vie publics où les habitants peuvent se retrouver. En mutualisant certains espaces, nous proposons des zones de partage adaptées à différents contextes et typologies urbaines. L’intention est de renforcer les liens sociaux en offrant des espaces d’agrégation répondant aux besoins de la communauté. Par ailleurs, nous avons choisi de densifier la ville en surélevant certaines structures existantes, afin d’accueillir une population croissante en banlieue parisienne, sans sacrifier l’identité et la structure de ce qui est déjà là.
Dans une démarche concrète, nos interventions se concentrent sur la rue d’Estienne d’Orves, un axe stratégique entre la Coulée Verte, le Panorama et la Rue Boucicaut, pour définir une polarité forte et mettre en pratique nos intentions de revitalisation sociale et urbaine. Ce projet s’inscrit dans une volonté de rééquilibrer la ville, d’enrichir son tissu urbain et de reconnecter ses habitants autour de nouveaux espaces communs, tout en traduisant une approche engagée de l’urbanisme contemporain.


ÉLÉVATION DEPUIS LA RUE D’ESTIENNE D’ORVES - EXISTANT


ÉLÉVATION DEPUIS LA RUE D’ESTIENNE D’ORVES - EXISTANT
ÉLÉVATION

ÉLÉVATION DEPUIS LA


















1
2




















1 5 10




DES STRATÉGIES À REPRODUIRE EN
UTLISANT DIFFÉRENTES TYPOLOGIES
On a pris le parti ici de construire nos nouveaux bâtiments en orientant nos façades au Sud afin de profiter d’un confort thermique optimal dans un contexte de dévelopement durable. En effet, on souhaitera que d’ici à 2050, les logements autosuffisants énergétiquement se développe de plus en plus. Une réelle analyse quant à l’isolation doit alors se faire afin d’éviter tout pont thermique. On a donc créé cette densification en prenant comme partie de surrélever de cette manière. De plus, on mais en se dissociant de l’existant de par les matériaux. En effet, un bardage bois est appliqué sur la surrélévation et sur l’extension, et la structure utilisée est une ossature bois. Il permet de partager les espaces communs tels que la cuisine, la salle à manger et le salon tout en conservant une intimité au niveau des chambres et des salles de bains. Ce principe est appliqué sur deux logements un conçu pour des seniors et un autre pour deux familles afin de créer un lien social multigénérationel. Ces deux appartements possèdent une terrasse qu’ils partagent, qui est en fait la toiture du coliving senior. qui permet de créer un ieu d’aggrégation social sur la parcelle, avec qui s’inscrit dans cette transition écologique devant également se faire par les moyens de transports. Cette atelier pour cyclistes est également un espace de show-room pour les dernières nouveautés ainsi qu’un lieu d’informations sur les balades ’autre typologies associées aux micro-polarités peuvent également se démultiplier Par exemple,























