Rebecca Kemp | Virginia Tech Interior Design Portfolio | Spring 2024

Page 1

REBECCA KEMP

INTERIOR DESIGN

PORTFOLIO
2022-2024
3

FILTERED EFFECT

Using an existing 8,000 sqf building and it’s orig inal floor plan, located in Roanoke, VA, we were to create a workplace for a tech company of our choosing while also targetting a problem in current workplace design.

Mimicking the essence of movement, shape, and interchangeability that a camera inhabits, this project utilizes reflection and light to brighten spaces and create an euphoric effect. This further emphasizes the layout’s adaptability to fit the different work spaces and aid with worker’s focus. Attention is brought to the filter of a camera and its reaction to color and light.

PROBLEM:

Addressing the lack of support for neurodiversity among workers and how some people can focus better in different sensory spaces than another person does. The space uses light sound, and movement to tackle this problem.

LOCATION:

410 Jefferson St Roanoke, VA, 24011

WORKPLACE 2
4

FALL 2023 | 9 WEEKS

REVIT | ENSCAPE | PHOTOSHOP

3 4 5
5

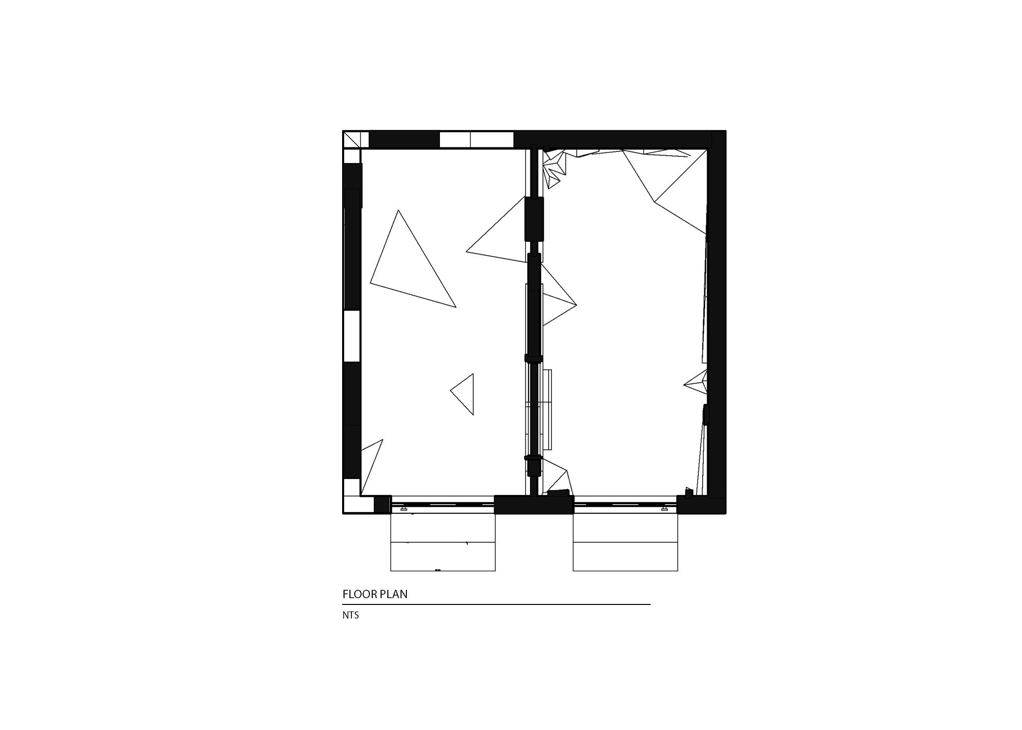
WORKPLACE 2

OFFICE FIRST FLOOR PLAN NTS
6
OFFICE SECOND FLOOR PLAN NTS

CROSS SECTION 1 NTS

CROSS SECTION 2 NTS

DIAGRAM:

Open to Close Workplace Area

Diversity in working spaces with more or less movement and noise that could become a distraction or motivation

3 4 5
7

WORKPLACE 2

PRIVATE OFFICES

Separate while still overseeing workers

8

COLLABORATION ROOMS

Example of diverse areas based on the employee’s needs. One is more open and moveable, the other is more closed off and private

W O R K A R E A
3 4 5 9

WORKPLACE 2

Exaggerated effect of light reflecting off mirrors and onto colored glass

W O R K C A F E
10

Reflection with light: Sunlight is redirected by a mirror into colored panels that create a filted effect

BATHROOM: NEGATIVE EFFECT

Contrasts the color and tone in the main rooms, as a relief to some, while still staying with the camera filter theme

S T A I R W A Y 3 4 5 11

BOUTIQUE your story

Given a floor plan, we were to design a boutique around products that promote sustainable living while also creating a brand identity. It included a mezzanine that uses 1/3 of the square footage.

Walking through the woods among the trees can create a euphoric and relaxing experience. For many, taking a book or journal outside can act as an escape. Using aspects of woodland areas like the circular movement of a stump, veins of a leaf, texture of bark, or light shining through the trees, can recreate this experience. A focus on recycled and reclaimed materials and products give a nod back to the trees and nature from which they came. From comforting greens to the natural light, Your Story will draw all booklovers and writers to this store in Seattle, Washington.

LOCATION:

Seattle, Washington, with it’s drizzy, coastal weather, and lower rents, attracts readers and writers to the aree. This provides a welcoming atmospher in which they can gather, work, and be inspired.

1
12

SPRING 2023 | 7 WEEKS

SKETCHUP | ENSCAPE | PHOTOSHOP

3 4 5
13
1
14
BOUTIQUE
3 4 5
BOUTIQUE SECOND FLOOR PLAN NTS
15
BOUTIQUE FIRST FLOOR PLAN NTS

BOUTIQUE

NTS

NTS

Reclaimed Grey

Medly Oak

Low Emitting

Reclaimed Wood

Wall Mural

Wide Plank Hickory - Oil

Low-emitting Material

Natural Leaves

Lumicor

Biomicicry

Damask Wallpaper

Contour Passageway

Tarkett

Low Emitting, Recyclable, Carbon Neutral

Pressed Glass: Aloe G60, Sea Mist, Butter Y18

3Form

Solid Color Flannel Standard Stool

Modern Style Simple Mushroom

Industrial Modern X Frame

Reclaimed Wood Table

Recycled Steel Base

CROSS SECTION 1 CROSS SECTION 2
1
16
17

THE CHOICE.

FALL 2024 | 3 WEEKS

SKETCHUP | ENSCAPE | PHOTOSHOP

In a 10x10 square foot space, we were asked to pick a song, dig deep into the meaning and create a showcase around it using conceptual form

In Edison Lighthouse’s song mary goes,” the singer tells of his infatuation with a girl who is free spirited and, from the song, makes decisions by following her heart, something most people able to do.

LOCATION:

Where we end up in life and how we get there is due to the choices and decisions we make on a whim or choosing what may be expected of that per son. This showcase represents simple as which door to go through, gives you a different experience or outcome. An installation in a museum or exhibit.

1 2
18
19

ABSTRACT DRAWINGS: PROCESS CONCEPT WORK

1 2 20

FLOOR PLAN

CROSS SECTIONS

EXPERIENCE 4 5
21

Carpets muffle sound, creating a peaceful, quiet, and relaxation. Or does it evoke isolation as one looks through the window to the outside.

carpet glass blue
1 2 22
CHOICE 1: LEFT SIDE

EXPERIENCE 4 5

concrete metal red

CHOICE 2: RIGHT SIDE

Concrete and metal create echos and noise. Harsh, 3-D triangles create points that cause anxiety, or for others, stimulation and excitement

23

ARTIST 1 2

24

3 ATELIER 5

Using five, 12 by 12 ft squares we were to create a layout with a living and work house for an artist. We were taskes to create our client, their identity, and art form that would influence the design and layout.

The space is a haven from the traveling and nonstop movement of the artist’s life demands. The design shows a separation of work and living while also bringing aspects of the client’s home country of Greece into the interior with blues, white, and tile. The design provides larger spaces for hosting while also including tucked away bedroom as a retreat. There is also a space to display her pieces with easy access to the studio.

LOCATION:

Right outside the town of Crested Butte, Colorado. Far enough away from the bustle of her travels, but still close to a city to promote her work.

25

ORGANIZATION

Using the five, 12 by 12 boxes, a separation of work and living space were created. The exhibit faces the street for easier access to guests, while the bedroom in the back proviedes isolation. A large kitchen was important for dietary needs and entertaining.

LIVING SPACE

EXHIBIT SPACE

STUDIO SPACE

1 2 26

CROSS SECTION

5 27
FLOOR PLAN NTS NTS 3 ATELIER
1 2 28
LIVING SPACE PERSPECTIVE
3 ATELIER 5 29

La Décadence Hotel and Casino

SPRING 2023 | 2 WEEKS

MIDJOURNEY | PHOTOSHOP

MOVEMENT REPETITION BOLD ILLUSIONS CURVES

This team project was to design a hotel lobby and luxury suite for a client that is inspired by three famous people; Andy Warhold, Harry Houdini, and Selena Quintanilla. Using midjourney, an AI program, we created images and designs for the rooms and spaces using keywords to describe what we pictured. We then took these designs to photoshop and shaped them into real spaces.

LOBBY

FIRST FLOOR

SECOND FLOOR

PENTHOUSE SUITE

30
1 2

3 4 GROUP

HEX

SPRING 2024 | 2 WEEKS

REVIT | ENSCAPE | PHOTOSHOP

SENSES - GROUNDING - FOCUS

Hex is a temporary restorative outdoor space with a connection to nature, that crafts a break from the day-today chaos that a college student typically endures.

Throughout this unique outdoor grounding experience, patterned apertures are intended to communicate with the movement of the sun, redirecting the user’s attention to the movement of light and shadow within the enclosure. The five hexagons represent the five senses and with materials, textures, sounds, and sight college students are provided with a serene space to take a step back and settle anxious thoughts by redirecting the mind’s focus to all five senses.

FLOOR PLAN:

EAST ELEVATION:

FORM & APERTURE CIRCULATION SEATING

31
(804) 442-8955 beccakemp314@gmail.com https://www.linkedin.com/in/beccakemp-b8b516220 THANK YOU

Turn static files into dynamic content formats.

Create a flipbook
Issuu converts static files into: digital portfolios, online yearbooks, online catalogs, digital photo albums and more. Sign up and create your flipbook.
Rebecca Kemp | Virginia Tech Interior Design Portfolio | Spring 2024 by rebeccatkemp - Issuu