

![]()



PROJECT 2: WORKPLACE PROJECT

PROJECT 3: BOUTIQUE PROJECT

PROJECT 4: ARTIST ARTELIER

PROJECT 5: SONG EXPERIENCE

PROJECT 6: GROUP PROJECTS



Route 66 takes travels all the way from Chicago to Santa Monica. One of the things that keeps this highway so famous is the strange but intriguing attractions along its 2,448 mile road. Thoiugh mostly in the middle of nowher the role and techniques of its advertising keeps attracting travelers. Next captures this idea through their own advertising.
To encourage productivity within their workplace, the desugn blends vintage aestheetics with modern principles. This will create a multi-sensory experience that captures the spirit of the road and the allure of the attractions that once lined it.




West Fulton Market
Chicago, IL 60607
Start of the nation’s firdt Federal highway system: route 66
- Established Novemeber 11, 1926

- The Great Depression spurred thousands to head west along route 66
- Interstate Act doomed route 66, made it not the national highway in 1985 Things that came from this route
- Deisgners wanted to make it modern with less curves, wider lanes
- Symbolized as “road to opportunity” Why Chicago
- Major city
- In 1920s it was one of the largest street railway systems in the world which became the perfect place to start a transnational US highway
BRANDING: Four top companies that NEXT advertises for




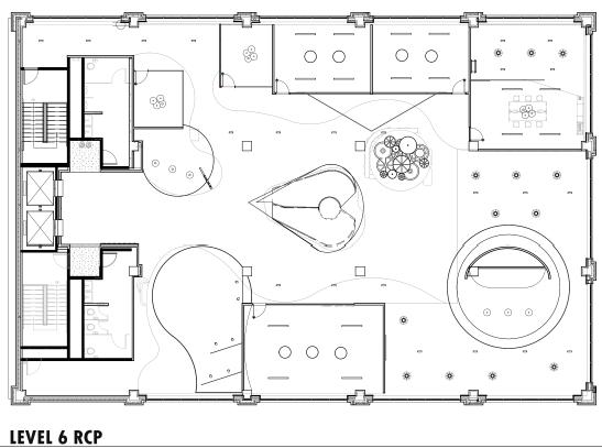
Roadtrip route with destinations and attractios along the way: represents the flow of the space

Room organization with main connection to the stairs and department connection and how to create productiveness

STAIRS: Starting and ending of attraction map route









SIERRA LUXXBOX

WAFFLE PENDANT DOWNLIT LUXXBOX

DASCH LUXXBOX


VAPOR ECHO LUXXBOX

GLIGHTING MEDI

BEAM 2 SQUARE PERIMETER AXIS LIGHTING




WEST ELM WORK KENT STEELCASE

POTRERO415 STEELCASE

OCULAR STEELCASE








variety of huddle rooms and lounge conversation areas



AMIA +AMIA AIR STEELCASE

TS SERIES SLIM MOBILE PEDESTAL STEELCASE

ACTIV-PRO 3-STAGE DESK STEELCASE

DANG CONSOLE STEELCASE


Using an existing 8,000 sqf building and it’s original floor plan, located in Roanoke, VA, we were to create a workplace for a tech company of our choosing while also targetting a problem in current workplace design.
Mimicking the essence of movement, shape, and interchangeability that a camera inhabits, this project utilizes reflection and light to brighten spaces and create an euphoric effect. This further emphasizes the layout’s adaptability to fit the different work spaces and aid with worker’s focus. Attention is brought to the filter of a camera and its reaction to color and light.
PROBLEM:
Addressing the lack of support for neurodiversity among workers and how some people can focus better in different sensory spaces than another person does. The space uses light, sound, and movement to tackle this problem.
LOCATION:
410 Jefferson St Roanoke, VA, 24011








Diversity in working with more or less movement and noise that could become a distraction or motivation



Separate while still overseeing workers


Example of diverse areas based on the employee’s needs. One is more open and moveable, the other is more closed off and


Exaggerated effect of light reflecting off mirrors and onto colored glass


Reflection with light: Sunlight is redirected by a mirror into colored panels that create a filted effect
5 6 S T A I R W A Y
Contrasts the color and tone in the main rooms, as a relief to some, while still staying with the camera filter









2 3
FALL 2024 | 3 WEEKS
SKETCHUP | ENSCAPE | PHOTOSHOP
LOCATION:
An installation in a museum or exhibit.
In a 10x10 square foot space, we were asked to pick a song, dig deep into the meaning and create a showcase around it using conceptual form.
In Edison Lighthouse’s song “Love grows where my rosemary goes,” the singer tells of his infatuation with a girl who is free spirited and, from the song, makes decisions by following her heart, something most people yearn to be able to do.
Where we end up in life and how we get ther is due to the choices and decisions we make along the way. To live life on a whim or choosing what may be expected of that person. This showcase represents how a choice, as simple as which door to go through, gives you a different expierence or outcome.









Using the five, 12 by 12 boxes, a separation of work and living space were created. The exhibit faces the street for easier access to guests, while the bedroom in the back proviedes isolation. A large kitchen was important for dietary needs and entertaining.


PARTI DIAGRAM:

Iterations:






2 3


