Architecture Portfolio (UG) - Selected works (2018 - 2022)

Page 1

Scan to access my portfolio on Issuu

2
3
01 06 16 02 03 CONTENTS......
SaMaGaMa
4
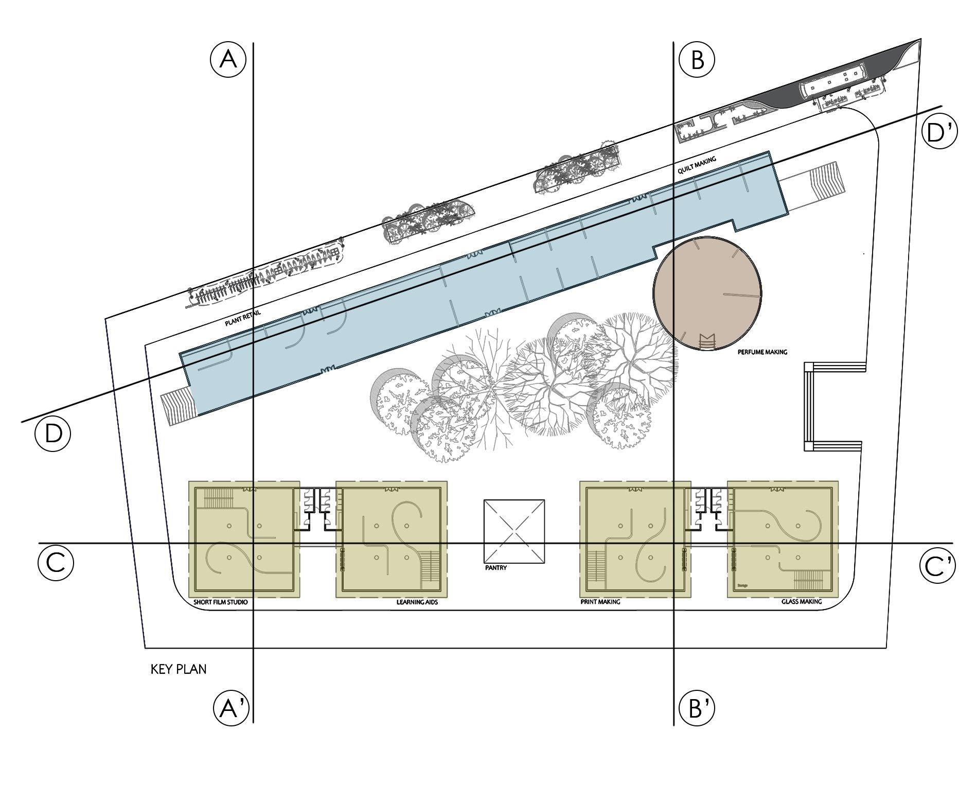
Karma Nagari Samsmruthi
26 Restrooms - Men LVL +12000 Lobby Space 300 300 500 1500 1500 1500 3520 1500 300 300 500 1500 1500 1200 1300 3272 3960 7500 7500 3520 Lobby Space Lobby Space 1200 1300 31500 7750 8000 8000 7750 Restrooms - Women 4440 1530 7850 3765 4037 900 4435 770 631 2500 3000 995 1030 1000 1050 800 800 1750 1750 1750 1560 1560 1750 1750 1750 1560 1560 1560 800 800 800 D2 D3 D5 D5 D6 D6 D6 Electrical shaft Reception 1000 3265 3150 1200 3270 2500 D7 D4 1000 1000 D4 2000 2000 D3 D8 D8 25 23 21 19 17 15 13 UP DOWN 25 23 21 19 UP DOWN 1000 1000 1000 D8 D8 Manager Cabin 1 Manager Cabin 2 Manager Cabin 3 1000 1400 2200 1700 2200 1700 1700 1900 1900 1900 1770 1600 1500 D3 Server Room 1200 Electrical Panel AHU 7600 7750 7750 B C D 23000 FIFTH FLOOR Pantry Area 04 05 Samsmruthi
5
Working Drawing Miscellaneous
6
8
9
11
SECTION CC’ SECTION DD’ 12
13
to access the walkthrough 14
Scan
15
16
18
19
22
23
1
24
Scan
to access the walkthrough
25
26
28
29

Scale - 1:200

Ground Floor Plan
LIG Individual Units HIG Individual Units MIG Individual Units 32
Cluster Level Plan Cluster Level Elevation Cluster Level Elevation
Level Plan 33
Cluster
Scan to access the walkthrough 34
35
36
7750 7750 7750 38750 7750 8000 8000 7750 50000 50000 40000 ENTRY ENTRY TO EXIT TO BASEMENT 4000 B C D Restrooms - Men Restrooms - Women LVL 0 Lobby Space Lobby Space 7850 770 1000 631 1200 1200 4000 2000 1500 3670 500 500 500 500 1200 7850 1750 1750 1750 1750 1000 3270 2500 300 500 1500 1500 3960 4320 1500 3500 7250 1500 D1 D2 D2 D3 D3 D4 D4 D5 D7 D6 D6 D6 D5 D6 D6 D6 D5 Electrical shaft ELV shaft PHE shaft 2000 1500 6000 D1 Billing Counter 2 Billing Counter 3 Billing Counter 1 Reception/ Help Desk 3400 2200 1700 Dairy Products Security Check Gents Cart / Trolley Storage 6000 2000 D1 A 1000 2000 1500 D3 800 800 800 800 800 800 800 800 1850 1850 Dry Groceries Canned Goods Health & Beauty Plastic products Housewares 6000 6000 1500 LVL +500 LVL +500 D3 1400 Fruits & Vegetables Fruits & Vegetables 1400 Baggage Claim / Drop 2500 1500 1679 1679 1000 1545 1545 1238 1300 1238 1300 1300 1400 1400 1400 1400 1200 1200 LVL +100 LVL +200 LVL +300 LVL +400 LVL +500 3500 3500 1500 7250 Security Check - Ladies Security Check - Gents Security Check - Ladies 300 500 1500 1500 7250 UP DOWN UP DOWN 4320 Non-vision door louver Non-vision door louver Non-vision door louver AHU Room D1 D1 D1 D1 D1 4435 1000 1400 1250 1250 1250 1500 1500 DG Yard 1500 1000 3000 2000 1200 1200 GATE HT Yard 6500 MS GATE GATE 1500 1200 1200 4500 8000 8000 4500 2400 1800 1800 1800 38

M WIDE ROAD

24 M WIDE ROAD

GROUND FLOOR

24 M WIDE ROAD

GROUND FLOOR

7852
ENTRY TO BASEMENT 4000 LVL -1000 LVL 0 Man-hole Fire Water Tank FIRE TRUCK ENTRY
FIRE TRUCK SHEET TITLE - WORKING DRAWINGS 2 DRAWING NO: CFP 101 DESIGN CONSULTANT LEGENDS: MATERIAL SCHEDULE DESIGN TEAM: PSK ARCHITECTS AND CONSULTANTS DRAWING DATE : 03.08.21 PRABODH KATGERI , 1RW18AT081, VI B RV COLLEGE OF ARCHITECTURE KEY PLAN 230mm BRICK WALL GYPSUM BOARD FALSE CEILING Restrooms Men LVL +12000 Lobby Space 300 1500 3520 300 1200 3960 7500 1500 3520 Lobby Space Lobby Space 1200 31500 7750 8000 8000 7750 1 2 3 4 5 Restrooms - Women 900 2500 995 1030 1000 1050 800 1750 1750 1560 1560 1560 800 800 D2 D3 D5 D5 D5 Electrical shaft Reception 1000 3150 1200 3270 2500 D7 D4 1000 1000 D4 D3 D8 D8 ELV shaft 13 13 1000 1000 1000 D8 D8 Manager Cabin 1 Manager Cabin 2 Manager Cabin 3 1700 2200 1700 1700 2200 1700 1900 1600 D3 Server Room Electrical Panel AHU 7600 7750 7750 B C D E 23000 FIFTH Pantry Area
ENTRY FIRE TRUCK 4000 KEY PLAN NOTES: RETAIL LAYOUT PLAN SCALE - 1 : 200 KEY PLAN DETAILS : "ONE RETAIL COORDINATED FLOOR PLAN
LVL 0 TRUCK
FIRE TRUCK KEY PLAN CONSTRUCTION DRAWING STRUCTURAL CONSULANT MEP CONSULTANTS LANDSCAPE CONSULTANT SHEET TITLE - WORKING DRAWINGS 2 DRAWING NO: CFP 101 DESIGN CONSULTANT DESIGN CONSULTANTS ENGINEERING TYPE LOCATION DESCRIPTION SCHEDULE OF OPENINGS: REVISIONS: LEGENDS: MATERIAL SCHEDULE DESIGN TEAM: NOTES: NOTES: RETAIL LAYOUT PLAN SCALE - 1 : 200 PSK ARCHITECTS AND CONSULTANTS DRAWING DATE : 03.08.21 PRABODH KATGERI , 1RW18AT081, VI B RV COLLEGE OF ARCHITECTURE KEY PLAN DETAILS : "ONE RETAIL COORDINATED FLOOR PLAN INTERIOR LAYOUT D1 D2 D3 D4 D5 D6 D7 W1 W2 Main Entrance Lobby area Staircase Washrooms Shafts Washrooms Skin of the building Wash rooms Aluminium Glazed Door Double leaf Fire exit Galvanized steel PVC doors MDF panel doors DA toilets Skin of the building Horizontal aluminium Louvered Fire exit Galvanized steel PVC doors 230mm BRICK WALL 200mm CONCRETE WALL 200mm CONCRETE SHEAR WALL MS GRILL LANDING GYPSUM BOARD FALSE CEILING CONCRETE SLAB BASE PLATFORM GRASS VEGETATION Restrooms - Men Lobby Space 300 500 1500 1500 1500 7250 Lobby Space 1500 31500 7750 8000 8000 7750 1 2 3 4 5 Restrooms - Women 4037 900 770 631 3150 3000 1750 1560 1560 1750 1750 800 800 D2 D3 D5 D5 D6 D6 D6 D5 Electrical shaft ELV shaft 1200 3270 D7 D4 1000 D6 D6 D6 SEVENTH FLOOR 1500 D3 DOWN 2700 Lobby Space 1500DOWN 1000 Pantry Area D3 Server Room 1000 1400 2200 1700 2200 1700 2200 1700 1700 1700 1900 1900 1600 D8 1000 1000 1000 D8 Manager Cabin 3 Manager Cabin 2 Manager Cabin 1 1200 7600 7750 7750 B C D E 23000 LED PANEL LED PANEL (Emergency) FUNCTIONAL 39
FIRST FLOOR SECOND FLOOR 4000mm FOURTH FLOOR FIFTH FLOOR SEVENTH FLOOR TERRACE 8000mm 12000mm 16000mm 20000mm 24000mm 28000mm 3200mm 1 2 3 4 5 6 7 8 3750 3750 3750 3750 3750 3750 3750 3750 FIRST FLOOR SECOND FLOOR FOURTH FLOOR FIFTH FLOOR SEVENTH FLOOR TERRACE 3750 3750 3750 3750 3750 3750 3750 3750 FIRST FLOOR SECOND FLOOR FOURTH FLOOR FIFTH FLOOR SEVENTH FLOOR TERRACE 3750 3750 3750 3750 3750 3750 3750 3750 FIRST FLOOR SECOND FLOOR FOURTH FLOOR FIFTH FLOOR SEVENTH FLOOR TERRACE 3750 3750 3750 3750 3750 3750 3750 3750 4000mm 8000mm 12000mm 16000mm 20000mm 24000mm 28000mm 3200mm 1 2 3 4 5 6 7 8 NORTH ELEVATION SOUTH ELEVATION EAST ELEVATION WEST ELEVATION KEY PLAN 4000mm 8000mm 12000mm 16000mm 20000mm 24000mm 28000mm 3200mm 1 2 3 4 5 6 7 8 SECOND FLOOR THIRD FLOOR FIFTH FLOOR SIXTH FLOOR 3750 3750 3750 3750 3750 3750 3750 3750 SECOND FLOOR 4000mm THIRD FLOOR FIFTH FLOOR SIXTH FLOOR 8000mm 12000mm 16000mm 20000mm 24000mm 28000mm 3200mm 1 2 3 4 5 6 7 8 3750 3750 3750 3750 3750 3750 3750 3750 4000mm 8000mm 12000mm 16000mm 20000mm 24000mm 28000mm 3200mm 1 2 3 4 5 6 7 8 4000mm 8000mm 12000mm 16000mm 20000mm 24000mm 28000mm 3200mm 1 2 3 4 5 6 7 8 SOUTH ELEVATION WEST ELEVATION CONSTRUCTION DRAWING STRUCTURAL CONSULANT MEP CONSULTANTS LANDSCAPE CONSULTANT SHEET TITLE - WORKING DRAWINGS 2 DRAWING NO: A201, A202 DESIGN CONSULTANT DESIGN CONSULTANTS ENGINEERING TYPE LOCATION DESCRIPTION SIZE SCHEDULE OF OPENINGS: REVISIONS: LEGENDS: DESIGN TEAM: NOTES: NOTES: ELEVATIONS SHOWN OF ALL FOUR DIRECTIONS WITH ITS MATERIALITY THROUGH DIFFERENT TYPES OF HATCHES PSK ARCHITECTS AND CONSULTANTS DRAWING DATE 03.08.21 PRABODH KATGERI , 1RW18AT081, VB N KEY PLAN ELEVATIONS SCALE - 1:250 USAGE OF GLAZED WINDOW WITH ALUMINIUM HORIZONTAL LOUVERS TO CUT OFF THE DIRECT SUN LIGHT. FIRST FLOOR SECOND FLOOR 4000mm FOURTH FLOOR FIFTH FLOOR SEVENTH FLOOR TERRACE 8000mm 12000mm 16000mm 20000mm 24000mm 28000mm 3200mm 1 2 3 4 5 6 7 8 3750 3750 3750 3750 3750 3750 3750 3750 FIRST FLOOR SECOND FLOOR FOURTH FLOOR FIFTH FLOOR SEVENTH FLOOR TERRACE 3750 3750 3750 3750 3750 3750 3750 3750 FIRST FLOOR SECOND FLOOR FOURTH FLOOR FIFTH FLOOR SEVENTH FLOOR TERRACE 3750 3750 3750 3750 3750 3750 3750 3750 FIRST FLOOR SECOND FLOOR FOURTH FLOOR FIFTH FLOOR SEVENTH FLOOR TERRACE 3750 3750 3750 3750 3750 3750 3750 3750 4000mm 8000mm 12000mm 16000mm 20000mm 24000mm 28000mm 3200mm 1 2 3 4 5 6 7 8 NORTH ELEVATION SOUTH ELEVATION EAST ELEVATION WEST ELEVATION 3 2 B C 1 3 5 7 9 11 13 25 23 21 19 17 15 13 UP DOWN TYPICAL FLOOR PLAN LVL -11800mm LVL -9850mm Well 3500 8000 1750 3900 2350 4300 8000 200 1000 200 1750 230 4600 1550 1550 300 300 300 300 300 300 300 300 300 300 300 300 300 Lift Lobby Space 1500 120min Fire safety wall black matt rough tiles Riser : 150mm Tread 300mm Staircase (ST1) Riser 150mm Tread 300mm Staircase (ST1) Riser 150mm Tread 300mm Staircase (ST1) Riser 150mm Tread 300mm Staircase (ST1) 120min Fire safety wall black matt rough tiles 200mm 120min Fire safety wall 15mm Nosing 15mm thick black matt rough tiles 1000 1000 Entrance Lobby SCALE - 1:100 3 2 B C 3500 8000 4300 8000 200 1000 200 4600 OVER HEAD TANK PLAN SCALE - 1:100 Over Head Tank 8000 1000 1000 1000 1000 A A A A 1500 BASEMENT 5 BASEMENT 4 BASEMENT 3 BASEMENT 2 BASEMENT 1 GROUND LEVEL FIRST FLOOR SECOND FLOOR THIRD FLOOR FOURTH FLOOR FIFTH FLOOR SIXTH FLOOR SEVENTH FLOOR TERRACE OVER HEAD TANK Mid Landing 1950 Mid Landing 3750 Mid Landing 3750 Mid Landing 3750 Mid Landing 3750 Mid Landing 3750 Mid Landing 3750 Mid Landing 3750 Mid Landing 3750 Mid Landing 3750 Mid Landing 3750 Mid Landing 3750 Mid Landing 3750 5900 C B OHT ROOF 8000 1750 2350 3900 2000 2000 2000 2000 2000 2000 2000 2000 2000 2000 2000 55330 LVL +1950mm FFL LVL +5700mm FFL LVL +9450mm FFL LVL +13200mm FFL LVL +16950mm FFL LVL +20700mm FFL LVL +24450mm FFL LVL +28200mm FFL LVL +31950mm FFL LVL +35700mm FFL LVL +39450mm FFL LVL +43200mm FFL LVL +46950mm FFL Riser 150mm Staircase (ST1) Staircase (ST1) Staircase (ST1) Staircase (ST1) Tread 300mm SECTION AA' SCALE - 1:150 150mm Waist Slab 10mm thick mortar 15mm thick black matt rough tiles 15mm Nosing 150 150 Detail A Scale 1:20 Detail B Scale 1:20 150mm Waist Slab 10mm thick mortar 50mm dia. MS Steel railing 15mm Nosing 20mm dia. MS Steel Balusters 40

No. of Floor Tiles used :

Tile dimension : 300x300mm

Total used : 660 tiles

Full tiles - 636 tiles

3/4th Tiles - 6 tiles

1/4th Tiles - 18 tiles

Wastage - 12 (3/4th tiles)

No. of Floor Tiles used :

Tile dimension : 300x300mm

Total used : 660 tiles

No. of Wall Tiles used :

Full tiles - 636 tiles

3/4th Tiles - 6 tiles

Tile dimension : 600x300mm

Total used : 984 tiles

1/4th Tiles - 18 tiles

Wastage - 12 (3/4th tiles)

Full tiles - 960 tiles

3/4th Tiles - 24 tiles

Wastage - 24 (1/4th tiles)

No. of Wall Tiles used :

Tile dimension : 600x300mm

Total used : 984 tiles

Full tiles - 960 tiles

3/4th Tiles - 24 tiles

Wastage - 24 (1/4th tiles)

1.Wall hung 360x360mm WC (Art no.7750)

2.FSS 460x120x460mm Wash basin (Art no.U541)

3.Urinals URS 615x350mm (Art no.0705)

1.Wall hung 360x360mm WC (Art no.7750)

4.Floor Trap 150x150mm (Art no.40892)

2.FSS 460x120x460mm Wash basin (Art no.U541)

3.Urinals URS 615x350mm (Art no.0705)

4.Floor Trap 150x150mm (Art no.40892)

5 4 B C CL CL CL CL CL RestroomsWomen RestroomsMen PHE Shaft CL 3 CL 3 10mm drop 10mm drop Slope Slope Slope Slope 10mm drop 10mm drop 10mm drop 10mm drop 10mm drop 10mm drop 5 Slope 1500 8000 8000 CL CL 1500 1500 1500 750 1500 750 850 850 850 850 630 630 630 630 963 979 963 450 450 2100 1000 900 3940 600 1000 1000 1000 600 2550 900 1000 800 800 800 600 GROUND FLOOR FIRST FLOOR 1900 1900 10300 9850 GROUND FLOOR FIRST FLOOR 3000 3000 900 3938 A' A B' B FLOOR PLAN 900 600 50 50
Restrooms - Physically Challenged SCALE - 1:75 5 4
CL 2 RestroomsMen CL CL 6 850 850 630 630 963 979 963 450 450 2100 900 3940 600 B C 1 2 GROUND FLOOR FIRST FLOOR 900 1500 1990 600 1900 1000 1000 1900 1000 2850 1500 600 150 917 600 500 500 300 600 600 2850 2850 500 700 500 500 250 250 1600 1600 10mm drop 10mm drop 1 2 GROUND FLOOR FIRST FLOOR 2412 963 5 4 979 963 450 930 875 2400 CL CL CL 2 2400 1600 4400 400 250 150 LVL - 0 4000mm LVL - 0 4000mm 3000 900 850 850 850 1030 1030 1040 SECTION AA' A' SECTION BB' 7750 450 : tiles) 600x300mm SCALE - 1:75 SCALE - 1:75 2400 1600 1 2 LVL - 0 4000mm GROUND FLOOR FIRST FLOOR 1 2 LVL - 0 4000mm CL CL CL 4000 1500 1575 1500 7750 2500 7750 1600 4 5 1500 2850 600 670 600 1000 600 600 3253 ELEVATION 2 SCALE - 1:75 5 CL 2 CL 2 CL 1 CL 1 CL 1 CL 1 RestroomsWomen RestroomsMen PHE Shaft CL 10mm drop 10mm drop 10mm drop 10mm drop 10mm drop 10mm drop 10mm drop 5 Slope 6 6 1500 8000 CL 2 4 6 1500 1500 1500 750 1500 750 850 850 850 850 630 630 630 630 963 979 963 450 3940 600 1000 1000 1000 600 2550 900 800 800 600 10300 GROUND FLOOR FIRST FLOOR 3000 3000 900 3938 A' A B' FLOOR PLAN 900 600 50 50 Restrooms Physically Challenged SCALE - 1:75 GROUND FLOOR FIRST FLOOR 2412 963 5 4 979 963 450 930 875 2400 CL 2 CL CL 2 2400 1600 4000 150 850 850 850 1030 1030 1040 ELEVATION 1 7750 450 SCALE - 1:75 1 2 LVL - 0 4000mm GROUND FIRST 780 940 FIRE TRUCK KEY PLAN -18800mm -5 -14800mm -10800mm -6800mm -2800mm LVL - 0 -1 -2 -4 -3 0 +4000mm +8000mm +12000mm +16000mm +20000mm +24000mm +28000mm +32000mm 1 2 3 4 5 6 7 8 +36000mm 9 4000 4000 2100 2100 4000 2100 4000 2100 4000 2100 4000 2100 4000 2100 4000 2100 4000 2100 4000 2100 4000 2100 4000 2100 4000 2100 4000 2100 500 +38000mm 10 2200 300 CONSTRUCTION DRAWING STRUCTURAL CONSULANT MEP CONSULTANTS LANDSCAPE CONSULTANT SHEET TITLE - WORKING DRAWINGS 1 SCHEMATIC DRAWINGS DRAWING NO: DESIGN CONSULTANT DESIGN CONSULTANTS ENGINEERING TYPE LOCATION DESCRIPTION SIZE SCHEDULE OF OPENINGS: REVISIONS: LEGENDS: DESIGN TEAM: NOTES: NOTES: Detailed Drawings of Staircase PSK ARCHITECTS AND CONSULTANTS DRAWING DATE 23.10.20 PRABODH KATGERI , 1RW18AT081, VB RV COLLEGE OF ARCHITECTURE N KEY PLAN Plans at various levels, Section through the staircase Detail of staircase 5 4 B C CL 2 CL 2 CL 2 CL CL RestroomsWomen RestroomsMen PHE Shaft 10mm drop 10mm drop Slope Slope Slope Slope 10mm drop 10mm drop 10mm drop 10mm drop 10mm drop 10mm drop 4 Slope 1500 8000 8000 5 1500 1500 1500 750 1500 750 850 850 630 630 2100 1000 1000 1000 1000 600 2550 900 1000 800 800 800 600 1900 1900 10300 9850 3000 3938 A B' B
PLAN 900 600 50 50 +150mm
FLOOR
+150mm
Physically Challenged
- 1:75 5 4 2400 7750
Restrooms
SCALE
41

SEVENTH FLOOR

SEVENTH FLOOR

SIXTH FLOOR

SIXTH FLOOR

FIFTH FLOOR

FIFTH FLOOR

FOURTH FLOOR

FOURTH FLOOR

THIRD FLOOR

SECOND FLOOR

SECOND FLOOR

FIRST FLOOR

FIRST FLOOR

PLINTH LEVEL

GROUND LEVEL

GROUND LEVEL

BASEMENT 1

BASEMENT 1

BASEMENT 2

BASEMENT 2

BASEMENT 3

BASEMENT 3

BASEMENT 4

BASEMENT 4

BASEMENT 5

BASEMENT 5

TERRACE RETAIL FLOOR OFFICE FLOOR RETAIL FLOOR RETAIL FLOOR OFFICE FLOOR OFFICE FLOOR OFFICE FLOOR OFFICE FLOOR C
A 4000 4000 4000 4000 4000 4000 4000 4000 4000 4000 4000 4000 4000 OHT 700 700 700 700 700 700 700 700 700 2600 700 2600 700 2600 700 2600 700 2600 3300 1500 3300 3300 TERRACE FLOOR UGT - Domestic, Flusing, Rain Water Tanks , STP , PUMP ROOM CHILLER PLANT ROOM Electrical Room 120 350 100 180
B
TERRACE RETAIL FLOOR OFFICE FLOOR RETAIL FLOOR RETAIL FLOOR OFFICE FLOOR OFFICE FLOOR OFFICE FLOOR OFFICE FLOOR C 4000 4000 4000 4000 4000 4000 4000 4000 4000 4000 4000 4000 4000 OHT 700 700 700 700 700 700 2600 700 700 2600 2600 2600 3300 1500 3300 TERRACE FLOOR UGT - Domestic, Flusing, Rain PHE SHAFT CHILLER PLANT ROOM Electrical Room 120 180 42

8

7

6

5

4

3

14800mm
6800mm 2800mm 1200mm LVL - 0
0 4000mm 8000mm 12000mm 16000mm 20000mm 24000mm 28000mm 3200mm
PASSENGER LIFT PASSENGER LIFT STAIRCASE HEADROOM LIFT MACHINE ROOM D E F OHT LIFT PIT Billing Counters Billing Counters Billing Counters CABLE TRAY - ELECTRICAL WIRES WATER PIPE - FOR SPRINKLER FRESH AIR SUPPLY DUCT SUPPLY DIFFUSER RETURN AIR DIFFUSER LIGHTING FIXTURES SPRINKLERS BELOW CEILING SMOKE DETECTOR ABOVE CEILING SMOKE DETECTOR BELOW CEILING PENDENT SPRINKLER ABOVE CEILING GYPSUM BOARD FALSE CEILING CONSTRUCTION STRUCTURAL MEP LANDSCAPE SHEET DRAWING DESIGN DESIGN ENGINEERING TYPE SCHEDULE REVISIONS: LEGENDS: DESIGN NOTES: NOTES: SECTION SCALE PSK DRAWING DETAILS SECTION D1 D2 D3 D4 D5 D6 D7 W1 W2 18800mm
10800mm 6800mm 2800mm 1200mm LVL - 0
12000mm
24000mm 28000mm
18800mm -5
10800mm
-1 -2 -4 -3
1 2 3 4 5 6 7 8
-5
-1 -2 -4 -3 0 PASSENGER LIFT PASSENGER STAIRCASE HEADROOM LIFT MACHINE ROOM OHT LIFT PIT Billing Counters Billing Counters Billing Counters WATER PIPE - FOR SPRINKLER FRESH AIR SUPPLY DUCT SUPPLY DIFFUSER RETURN AIR DIFFUSER LIGHTING FIXTURES SPRINKLERS BELOW CEILING SMOKE DETECTOR ABOVE CEILING PENDENT SPRINKLER ABOVE CEILING GYPSUM BOARD FALSE CEILING CONSTRUCTION STRUCTURAL MEP LANDSCAPE SHEET DRAWING DESIGN DESIGN ENGINEERING TYPE SCHEDULE REVISIONS: LEGENDS: DESIGN NOTES: NOTES: SECTION SCALE PSK DRAWING DETAILS D1 D2 D3 D4 D5 D6 D7 W1 W2 43
16000mm
3200mm 2
44
Rachakonda Fort, Hyderabad

It includes expression of art through various mediums like acrylic colour, poster colour, water colour, oil pastel etc.

Just the way a strata of colours add up to create a painting; various layers of memories, experiences, ideologies, thought processes and instincts, all contribute to mould one into an individual.

46
47

Design Model

EXPLORATION OF SPACES , LIGHT & SHADOW, SCALE , MOVEMENT PATTERNS, THROUGH FRAMEWORK OF THE CUBES OF DIFFERENT SIZES AND MATERIALITY OF THE ENCLOSURE.

Card
48
49
prabodhkatgeri@gmail.com 9063702610

Turn static files into dynamic content formats.

Create a flipbook
Issuu converts static files into: digital portfolios, online yearbooks, online catalogs, digital photo albums and more. Sign up and create your flipbook.