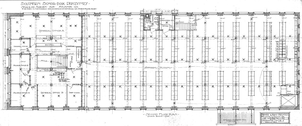
John Wesley Dobbs Building, Sweet Auburn

Page 1

Through His Eyes

Seeing the Stars

John Wesley Dobbs Building 135 Auburn Avenue NE Atlanta GA 30303 Patricia J Rangel ARCH 6105 Fall 2020


Turn static files into dynamic content formats.

Create a flipbook
Issuu converts static files into: digital portfolios, online yearbooks, online catalogs, digital photo albums and more. Sign up and create your flipbook.