


Property
Legal
Legal
Wordsearch:
Local
Local
PLUS:
By Mrs Jaimie Rice, Manager, Phoenix Estate Agents.
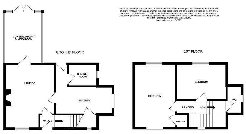
THE PROPERTY:
This semi detached property is situated in a semi rural location on the outskirts of Holbeach with a partial field view to the front and convenient for nearby Holbeach United Community Sports Academy. The property offers 2 double bedrooms and cloakroom on the first floor. On the ground floor there is a hallway, lounge with log burner, conservatory, kitchen and updated downstairs shower room. It also benefits from upvc double glazing and gas central heating with updated boiler in May 2023. Outside there is an extensive gravel driveway giving multi vehicle off road parking, a generous enclosed rear garden with lawn and patio features plus brick outbuilding with utility/store, coal store and outside cloakroom. Internal viewing is highly recommended to appreciate the location and property.
The seller purchased the property in 2016 and liked that it offered the family space they were needing. They were attracted to the size of the garden and how much off road parking came with the property. The vendor also likes the quiet location of where the property is situated. The property is now on the market due to separation circumstances.
ACCOMODATION COMPRISES:
HALLWAY:
LOUNGE: 15'1 x 12'0 (4.60m x 3.67m) max
CONSERVATORY: 12'3 x 7’8 (3.73m x 2.36m)
KITCHEN: 12'11 x 6'6 (3.94m x 2.00m) – excl. door recess
DOWNSTAIRS SHOWER ROOM: FIRST FLOOR LANDING:
BEDROOM 1: 15'1 x 10'1 (4.61m x 3.09m) max
BEDROOM 2: 11’5 x 8'11 (3.49m x 2.74m) max
UPSTAIRS CLOAKROOM: OUTSIDE: FRONT: Driveway giving off road parking. REAR: Enclosed rear garden.
DETACHED BRICK OUTBUILDING: OUTSIDE CLOAKROOM: COAL STORE: UTILITY STORE: 8’1 x 5’8 (2.48m x 1.75m)
SERVICES:
All mains services (water, drainage, gas & electricity). South Holland District Council tax band: A. EPC rating: D.
FOR MORE INFORMATION OR TO ARRANGE TO VIEW THIS PROPERTY PLEASE CALL US ON 01406 359131.
ORCHARD PARK, HOLBEACH
£100,000 EPC RATING: C
Leasehold ground floor apartment in a modern converted Grade II listed former Victorian Workhouse/Hospital convenient for town amenities. Offering open plan lshape lounge/kitchen/diner with integrated appliances, bedroom with ensuite shower room, allocated parking space & communal landscaped grounds..
LYNN ROAD, WALSOKEN
£120,000
EPC RATING: NA
Development opportunity. Residential building plot with full planning permission for a 3 bedroom detached house and single garage. Conveniently situated for nearby bus stops and amenities. Plot dimensions approx. 18.3m wide x 20.8m depth (stms). No upward chain.
LYNN ROAD, WALSOKEN
£120,000 EPC RATING: NA
Development opportunity. Residential building plot with full planning permission for a 3 bedroom detached house and single garage. Conveniently situated for nearby bus stops and amenities. Plot dimensions approx. 21.6m wide x 20.8m depth (stms). No upward chain.
GRANVILLE TERRACE, SUTTON BRIDGE
£120,000
EPC RATING: D
Terraced house in a side street location close to nearby bus stops & amenities offering 2 double bedrooms, open plan lounge/diner, modern kitchen, utility lobby, modern downstairs bathroom, upvc double glazing, gas central heating –updated boiler, enclosed garden with shed/workshop & no upward chain.
KING STREET, SUTTON BRIDGE
£130,000
EPC RATING: D
Mid terraced house in a side street location convenient for local amenities & bus stops offering 2 double bedrooms, open plan lounge & dining room, refitted kitchen, utility room, upstairs bathroom, upvc double glazing, gas central heating –updated boiler & enclosed rear garden. Internal viewing advised!
LIME STREET, SUTTON BRIDGE
£120,000 EPC RATING: C
2 Bedroom terraced cottage in a side street location close to nearby amenities offering lounge, dining room, kitchen, downstairs bathroom, enclosed low maintenance garden, workshop, upvc double glazing, gas central heating & no upward chain! Viewing recommended!
STANLEY DRIVE, SUTTON BRIDGE
£130,000
EPC RATING: D
Modern 1 bedroom semi detached bungalow in a popular residential area close to nearby health centre & amenities offering lounge, kitchen, shower room, upvc double glazing, gas central heating, rear garden, allocated parking space, plus no upward chain. Viewing recommended!
LYNN ROAD, WALSOKEN
£130,000 EPC RATING: NA
Development opportunity. Residential building plot with full planning permission for a 4 bedroom detached house and detached double garage conveniently situated for nearby bus stops and amenities. Plot dimensions approx. 20.7m wide x 22.4m depth (stms). No upward chain.
CHESTNUT TERRACE, SUTTON BRIDGE
£165,000 EPC RATING: D
3 Storey end terraced house in a side street location, recently renovated throughout, 3 double bedrooms, lounge, kitchen/diner, downstairs cloakroom, first floor bathroom, upvc double glazing, gas central heating - underfloor heating to ground floor, driveway, approx. 140ft/40m long (stms) rear garden & no upward chain.
By George Broughton, Family Department, MCP Solicitors.
When you’re planning a wedding, divorce is probably the last thing on your mind. But couples are increasingly turning to prenuptial and postnuptial agreements to set out ahead of time what will happen if they ever separate.
A nuptial agreement is a legal document which seeks to set out what will happen to a married couple’s assets if they separate There are broadly two types of nuptial agreement: a prenuptial agreement (“prenup”) and a postnuptial agreement (“postnup”). The difference is that prenups are entered into before the wedding, and postnups are entered into when you are already married.
Nuptial agreements are often viewed with scepticism. Some people view them as a sign that their future spouse doesn’t trust them, or that their heart isn’t fully in the marriage. However nuptial agreements also come with many benefits. Couples contemplating marriage should have regard to the following advantages and drawbacks.
1. Nuptial agreements help you protect your assets
If you are bringing your own assets into the marriage, a nuptial agreement could help to protect those assets against a claim from your spouse. This is part of what has led to the perception that nuptial agreements are only for rich people with millions of pounds of property or investments, but that isn’t always the case. Even if your assets are quite modest, you may want to protect them should the marriage break down. Nuptial agreements can also deal with assets you are yet to acquire, which may be helpful if you anticipate receiving an inheritance.
2. They can deal with debt as well
Even if you are not overly concerned about losing assets in the divorce, there is a possibility that you will be liable for your spouse’s debts. Nuptial agreements can help to decide in advance how debt will be dealt with and protect you against being liable for your spouse’s liabilities.
3. They can speed up the divorce process
Divorce can be lengthy, emotionally charged, and expensive. The point of a nuptial agreement is to agree most of the contentious points in advance. This can help to keep the cost and stress of divorce to the minimum.
4. They are not binding on a Court of law
Keep in mind that nuptial agreements cannot bind a Court of law. This means that if the agreement is unfair according to the considerations set out in the Matrimonial Causes Act 1973, a judge may decide not to uphold the agreement and to set it aside.
This is why it is important for any nuptial agreement to be carefully drafted by legal professionals. Careful consideration needs to be given to the provision that the agreement makes for your spouse and any minor children of the family. Both parties must have a full understanding of the terms of the agreement and the assets of the other. Both must have the opportunity of obtaining independent legal advice.
If you are considering a prenup or postnup, or if your partner has mentioned they might want one, the first step is to obtain legal advice from a family law specialist. If you need advice with a nuptial agreement please contact MCP’s Family Department.
ST MARKS ROAD, HOLBEACH ST MARKS
£169,995 EPC RATING: G
Detached cottage in a rural village location, recently renovated throughout, 2 double bedrooms, lounge, kitchen, upstairs shower room, upvc double glazing, modern electric boiler central heating, low maintenance courtyard garden, off road parking & no upward chain. Viewing recommended!
TOLLS LANE, HOLBEACH
£180,000 EPC RATING: D
Semi detached house on the outskirts of Holbeach with front field view, 2 double bedrooms, lounge with log burner, kitchen, conservatory, downstairs shower room, upstairs cloakroom, gas central heating –updated boiler, upvc double glazing, extensive off road parking, enclosed rear garden, brick utility store & wc. Viewing advised!
LONGDON CLOSE, SUTTON BRIDGE
£182,000 EPC RATING: D
Modern semi detached bungalow in a popular cul-de-sac offering 2 double bedrooms, lounge, conservatory, updated kitchen, updated shower room, upvc double glazing, gas central heating –updated boiler, enclosed garden, garage & driveway giving off road parking plus no upward chain. Internal viewing advised!
LONGDON CLOSE, SUTTON BRIDGE
£185,000 EPC RATING: C
Modern 2 bedroom semi detached bungalow in a popular cul-de-sac offering lounge, conservatory, modern kitchen, wet-room style shower room, additional cloakroom, garage plus driveway, enclosed rear garden, gas central heating with updated boiler, upvc double glazing & no upward chain. Viewing advised!
GEDNEY ROAD, LONG SUTTON
£215,000 EPC RATING: D
Period 3 bedroom semi detached house convenient for nearby bus stops and amenities, lounge, dining/sun room, kitchen, utility, bathroom, outbuilding with cloakroom, garage/workshop, multivehicle off road parking, approx. 150ft/46m long (stms) rear garden, gas central heating & part upvc double glazing.
IBSTOCK CLOSE, TYDD ST MARY
£235,000
EPC RATING: C
Modern 3 bedroom semi detached house in a popular cul de sac offering lounge, kitchen/diner, downstairs cloakroom, bathroom, en-suite shower room, upvc double glazing, oil central heating, garage plus driveway giving off road parking & enclosed rear garden. Internal viewing advised!
FALKLANDS ROAD, SUTTON BRIDGE
£240,000
EPC RATING: D
Modern 3 bedroom detached bungalow requiring modernisation in a sought after area with rear field view offering lounge, kitchen, shower room, cloakroom, upvc double glazing, gas central heating, garage with electric remote control entrance door, driveway giving off road parking, enclosed garden & no upward chain.
BRIDGE ROAD, SUTTON BRIDGE
£245,000 EPC RATING: B
Bespoke modern (2020) 3 bedroom detached house in a private driveway convenient for nearby amenities, lounge, kitchen/diner with integrated appliances, downstairs cloakroom, en-suite shower room, family bathroom, driveway giving off road parking, rear garden, upvc double glazing & gas central heating.
BOWTHORPE ROAD, WISBECH
£250,000
EPC RATING: D
Detached chalet bungalow in a side street close to town park & amenities, on an overall plot approx. 0.2 acre (stms), 3 double bedrooms, lounge, dining room, kitchen/breakfast room, bathroom, utility, garden room, majority upvc double glazing, gas central heating, garage, driveway, approx. 137ft long (stms) enclosed garden & no upward chain.
By Sarah Johnson, Chartered Legal Executive, Commercial Property Department.
The government has recently hiked up the rates of both Capital Gains Tax (CGT) and Stamp Duty, affecting those expanding or liquidating a property portfolio. The Stamp Duty payable on buy-to-let properties now starts at five percent and rises on higher value properties. Basic-rate taxpayers now pay CGT at 18% and higher-rate taxpayers at 24% on qualifying assets. However, for those who are not deterred from investing in property or who already have an established property portfolio, what are the current hot topics to consider?
Energy efficiency is rapidly becoming a key factor for buy-to-let landlords. The rules around property energy ratings continue to tighten and landlords will be expected to provide rental properties with meet minimum EPC standards. Ensuring that buy-to-let properties have effective insulation, double glazing and, potentially, solar panels will attract more tenants and enable landlords to charge higher rents as well as being compliant. Eco-friendly improvements are likely to be encouraged by future government incentives.
There are increasing trends in some areas of the country towards either Build-to-Rent or Co-Living properties. Both are purpose-built to appeal to potential renters who require good quality rental accommodation. At present these are mainly seen in rapidly expanding cities and towns.
Finding the right tenants is important for any landlord. However, new rules coming in, resulting from the Renters’ Rights Bill, are going to mean that landlords will have to avoid being discriminatory when seeking to attract new tenants, so ‘no children’ and ‘no pets’ will become a thing of the past. However, it will still be possible to turn away a potential tenant if the property is clearly not suitable for them, for example if a family of seven apply to live in a one-bedroom flat.
There will be the obvious restrictions about no antisocial behaviour or upsetting the neighbours. Following a recent High Court decision, a more interesting topic is whether you should give tenants permission to run a home-based business. There are some specific guidelines to explore about what is considered as ‘business occupation’ rather than just bringing work home or selling items on Vinted or Ebay. The bottom line is that, if you aren’t careful, you could find that your tenant ends up protected by legislation which is mainly designed to prevent commercial landlords jeopardising a business by asking a tenant to leave.
Long-term or short-term property investment?
Long term buy-to-lets have been popular for many years but there are now an increasing number of investors who are ‘flipping’ properties instead by buying them cheaply, doing them up quickly and selling them on. Also on the rise is the BRRR model where people Buy, Refurbish, Rent and Refinance.
Whatever your chosen property strategy, if you need help with buying or selling property or are a landlord facing issues with a tenant, the team at Fraser Dawbarns can help.
This article aims to supply general information, but it is not intended to constitute advice. Every effort is made to ensure that the law referred to is correct at the date of publication and to avoid any statement which may mislead. However, no duty of care is assumed to any person and no liability is accepted for any omission or inaccuracy. Always seek advice specific to your own circumstances. Fraser Dawbarns LLP are always happy to provide such advice.
By Chloe Abbott, Sales Negotiator, Phoenix Estate Agents.
INDOOR SPORTS ACTIVITIES
LASER STORM
MEAL OUT
MUSEUM
OUTDOOR SPORTS ACTIVITIES
PICNIC
SKATING
SOFT PLAY
VISIT A GARDEN CENTRE
VISIT A PARK
WALK AROUND COUNTRY HOUSES
WOODLAND WALK
ZOO DAY
DAWSMERE ROAD, GEDNEY DROVE END
OIEO
£250,000 EPC RATING: D
Refurbished modern detached bungalow in a rural village location with rear field view offering 2 double bedrooms, dual aspect lounge, updated kitchen open plan to dining room, refitted bathroom, garage, driveway giving off road parking, south facing low maintenance garden & upvc double glazing. Viewing advised!
CHALK LANE, SUTTON BRIDGE
£275,000 EPC RATING: D
1938 Detached bungalow in a rural country lane, overall plot approx. 0.2 acre (stms), field views, 3 double bedrooms, lounge, conservatory, kitchen/breakfast room, modern bathroom, upvc double glazing, oil central heating, southerly facing private gardens, carport, off road parking & brick outbuilding.
JOHN SWAINS WAY, LONG SUTTON
£280,000 EPC RATING: C
Individual modern detached bungalow in a popular cul-de-sac, lounge, dining room, kitchen/breakfast room, utility, 2 double bedrooms, ensuite & dressing room/study to master, bath/shower room, enclosed mature garden, driveway giving off road parking, upvc double glazing, gas central heating & no upward chain.
DARWIN CLOSE, SUTTON BRIDGE
£290,000
EPC RATING: C
Modern detached bungalow in a popular cul-de-sac, 4 double bedrooms, lounge with log burner, conservatory, kitchen/diner, updated utility room, refitted wet room style en-suite shower room, family bath/shower room, gas central heating, enclosed rear garden, garage & driveway giving off road parking.
GOLF COURT, SUTTON BRIDGE
£315,000
EPC RATING: C
Modern detached bungalow in a small private cul-de-sac with rear views of nearby Golf Course offering 3 double bedrooms, en-suite shower room, main shower room, lounge, conservatory, kitchen/diner, garden/games room, detached double garage, extensive driveway plus gardens front & rear.
STATION ROAD, WALPOLE ST ANDREW
£320,000
EPC RATING: D
Detached bungalow in a semi rural village location, 3 double bedrooms, lounge/diner with log burner, kitchen/diner, sun room, bath/shower room, upvc double glazing, oil central heating, garage/workshop plus additional workshop, extensive off road parking & enclosed gardens.
DUNLIN DRIVE, LONG SUTTON
£275,000 EPC RATING: D
Recently redecorated modern detached bungalow in a popular cul-de-sac with field view to the side, 3 double bedrooms, modern shower room, kitchen/diner, utility room, updated cloakroom, detached garage, driveway, low maintenance rear garden, upvc double glazing, gas central heating & no upward chain.
ROMAN BANK, LONG SUTTON
£295,000
EPC RATING: D
4 Bedroom detached bungalow in a popular location, lounge/diner, kitchen, sun room, modern bathroom, cloakroom, over 100ft/33m long (sts) southerly facing enclosed garden, extensive driveway giving multi vehicle off road parking, carport, garage, workshop/bar, upvc double glazing & gas central heating.
CARNOUSTIE COURT, SUTTON BRIDGE
£350,000
EPC RATING: C
Modern (2002) detached house in a sought after executive cul-de-sac, 4 double bedrooms, lounge, dining room, kitchen/breakfast room, utility, en-suite, bathroom, downstairs cloakroom, double garage, block paved driveway, enclosed garden, upvc double glazing, gas central heating & no upward chain
By Hayden Feetham, Receptionist, Long Sutton Market House.
The Market House Long Sutton is a multi-use Community Centre situated in the centre of Long Sutton for regular groups and activities, the Market House offers various rooms to hire suitable for events and functions, parties, wedding, receptions, and group classes and meetings. The corn exchange has a capacity of up to 100 people and has access through the wagon arch doors to our onsite private car park, we also offer hire of a PA system with the hire of the room. We also offer hirers to bring outside caterers and bars to booked functions. Our 2nd floor Friends Room has a comfortable capacity of 40 people for training and corporate meetings, conferences. The Citizens room on the ground floor is ideal for drop-in surgeries, meetings, 1 – 1 tuitions and interviews. Facilities include onsite parking from Bull Lane, Kitchen, Toilets, and disabled access throughout the building via a lift and staircase, Free Wi-Fi throughout the building.
WEEKLY
MONDAY Older Adults Fitness Class 9.30am - 10.30am Yoga Class 11.00am - 12.15pm
TUESDAY TSB DROP IN 9.30am – 4.00pm Yoga Class 10.00am - 11.30am Slimming World 5.30pm – 7.00pm
WEDNESDAY Craft Club 9.15am - 12.15pm
Choir Time 7.00pm – 8.00pm (Except Last Wednesday Of The Month)
THURSDAY Slimming World 9.15am – 12.00pm Citizens Advice 9.30am – 3.00pm
SATURDAY Now only open by special arrangements, please contact reception or email
MONTHLY
MONDAY Long Sutton & District Civic Society 7.00pm – 9.00pm (Every 3rd Monday of the month)
TUESDAY (Bi-monthly) 1st Tuesday Sutton Bridge & Long Sutton U3a 2.00pm – 4.00pm
WEDNESDAY Bingo (Every last Wednesday of the month) Eyes down at 7.30pm
FRIDAY Table Top Sale (Every first Friday of the month) 9.30am am to 12.30 pm
SATURDAY Cinema (Every last Saturday of the month) Film starts at 3.00pm
MARKET HOUSE MAY EVENTS – SO FAR:
Friday 2nd May 2025 Table Top Sale 9.30am – 12.30pm Friday 9th May 2025 Long Sutton Town Arts, Learning To Fly, 7.30pm, Tickets: £12.50 (Standard), £10.00 (Group), £10.00 (Student) Book Now: 01406 366767 or kayjenkinson@talk21.com or Market House Wednesday 28th May 2025 Bingo Night 6.30pm – 9.30pm
To find out more about booking one of our rooms for your function or regular classes/meeting here or to get more information, please contact us. To find out more about other events/activities that happens here, please contact us. Reception opening hours: Monday – Friday 9.30am - 4.00pm
LONG SUTTON MARKET HOUSE
9 MARKET STREET
LONG SUTTON SPALDING LINCOLNSHIRE PE12 9DD
TEL: 01406 366767
EMAIL: longsuttonmarkethouse@btinternet.com www.longsuttonmarkethouse.org https://www.facebook.com/p/LongSutton-Market-House-100081983003188/
£395,000
EPC RATING: D
Detached cottage, overall plot over ¼ acre (sts), private secluded established gardens, 2-3 bedrooms, 4 reception rooms, kitchen with integrated appliances, utility, upstairs bathroom, downstairs shower room, electric gated driveway giving extensive parking, carport & workshop, upvc double glazing & oil central heating.
£425,000
EPC RATING: D
Detached bungalow, field views, 6 bedrooms (4 in main area, 2 in annex), lounge/diner, kitchen/breakfast room, bath/shower room, integrated annex with own entrance, 2 bedrooms, lounge, study, conservatory & shower room, enclosed garden, workshop, summerhouse & extensive parking.
By Melvyn Philpott, Sutton Bridge Cinema Manager, The Curlew Centre.
A modern community centre hub for meetings, regular groups, and activities plus the base for the Sutton Bridge Library and Parish Council Office, The Curlew Centre in Sutton Bridge offers rooms of assorted sizes suitable for events, functions, parties, weddings, and group classes/meetings - whether big or small! The Diamond Hall has a capacity for 120 people. Fitted permanently with an indoor Marquee ceiling canopy and scalloped drape, with NEW under drape coloured lighting, giving your event a better atmosphere. Ideal for wedding receptions or a special occasion party, plus it has access to the kitchen, bar, and The Scramble Room - which is ideal for buffets or for small meetings. Upstairs The Jubilee Room has panoramic views of The Memorial Park and opens onto a balcony - an ideal room for Keep-Fit, Yoga, Line Dancing, Coffee Mornings, Social Evenings and Small Wedding Receptions. The Bridge Room ideal for training and corporate meetings, with Wi-Fi, Projector and Screen. Downstairs there is also The Farmers Room - ideal for drop-in surgeries and meetings. Facilities include ample parking, kitchen, toilets, disabled access including a lift.
COMMUNITY LIBRARY Monday 10.00am–12.00pm, Wednesday 2.00pm–4.00pm, Friday 10.00am-12.00pm, Saturday 10.00am12.00pm.
COMMUNITITY CONNECTION DROP-IN.
For more information, please contact Vanessa. slr@communityconnector.org.uk 07471444184
Community connector is a resource that anyone can benefit from to improve social connections, access services, or find out what is available locally. We are here to create a sense of belonging and support for all members of the community.
REGULAR EVENTS, CLUBS AND SOCIETIES
MONDAY
KICKBOXING 7.00pm–9.00pm Free first class, kickboxing trousers & T-shirt. Call/text Aaron Farr 07882 581347 or Ben Merson 07912 790988 www.starskickboxing.co.uk
BEGINNERS BELLY DANCE CLASS 6.30pm-7.30pm in the Jubilee room
TUESDAY
SUTTON BRIDGE ‘WELLBEING WALKS’ fortnightly; Starts at 10.30am 13th and 27th May
WEDNESDAY
SUTTON BRIDGE ART GROUP 2.00pm-4.00pm in the Jubilee room. Ring Jan on 07799896587 for further information
YOGA 6.00pm–8.00pm in the Jubilee room Instructor Jo Spink 07976354969
BALLROOM DANCING 7.00pm–8 30pm
WI – The Bridge Buns & Roses 7.30pm–9.30pm
THURSDAY
LORRAINE’S SUPPLE SENIORS with Lorraine 10.00am–11.00am Jubilee room AA 12 STEP FELLOWSHIP HOURLY GROUP 12.30pm-1.30pm. Doors open at 12.00pm. Jubilee room
AL-ANON FAMILY GROUP 12.30pm-1.30pm. Doors open at 12.00pm. Farmers room
ZUMBA WITH KIRSTY 7.00pm-8.00pm
FRIDAY
FRIENDLY CONNECT COFFEE MORNING 9.30am-11.30am. Relax and stop off for a coffee.
MONTHLY
SOUTH HOLLAND DISTRICT COUNCIL ELECTIONS 1st May
SUTTON BRIDGE MONTHLY LUNCH HUB Last orders 1.00pm. 29th May.
CURLEW SOCIAL AFTERNOON Free Entry 2.00pm–4.00pm. 9th May
CHARITY BINGO in the Diamond Hall at 6.30pm. 8th May
CINEMA 1: 31st May 1.00pm-4.00pm
CINEMA 2: 13th May 2.00pm–4.00pm
Please contact on email; admin@thecurlewcentre.co.uk Other contact details are set out below. We look forward to hearing from you.
Reception opening hours are Mondays 10.00am–12.00pm, Wednesdays 2.00pm–4.00pm & Fridays 10.00am-12.00pm.