PHOEBE GWYNDALE URBANO

Hello! I am a current fifth year architecture student at Cal Poly Pomona, pursuing my Bachelors Degree in Architecture. I envision myself pursuing a Master’s degree in Architecture as well. I will be graduating in May 2025 and am seeking an entry level position in an architecture firm that will help foster my growth, creativity, and create meaningful relationships with. Architecture, to me, is more than creating an aesthetically pleasing building; it is about creating spaces tailored to serving the human experience and its existing urban fabric. It requires a strong functional clarity to achieve a level of elegance that marries the building to its users.
pcurbano@cpp.edu
(408)386-6777
linkedin.com/in/phoebeurbano
https://issuu.com/phoebeurbano
EXPERIENCE
Summer Architectural Intern
Leddy Maytum Stacy Architects, San Francisco, CA
Mentor
Tau Sigma Delta Honor Society or Architecture and Allied Arts
First Year Teacher Assistant
Cal Poly Pomona - College of Environmental Design, Pomona, CA
EDUCATION
Cal Poly Pomona - Bachelor of Architecture Pomona, CA
- Prospective Summa Cum Laude Recipient
- Dean’s List & President’s List
- GPA: 3.86
- Active Member in Tau Sigma Delta Honor Society of Architecture and Allied Arts
- ENV Council Event Coordinator
ACCOMPLISHMENTS
Member of Tau Sigma Delta
- Invited Based on Academic Standing
Top 30 Finalist of the Jack and Marilyn Zuber Remembrance Award - 3rd Year Housing Project
Outstanding 1st Year Design Reward Recipient
- Presented Spring 2021 Final Project to Toyo Ito
Fall Interim Participant
- Showcased Fall 2021 Final Project
Spring Interim Participant
- Showcased Fall 2020 Final Project
EXPERTISE
RHINOCEROS 3D
ADOBE PHOTOSHOP
ADOBE ILLUSTRATOR
ADOBE INDESIGN
WOMEN’S SHELTER FOR VICTIMS OF DOMESTIC VIOLENCCE
SPRING 2025
PORTLAND, OREGON US FEDERAL COURTHOUSE
SPRING 2024
SANTA ANA MULTI-USE RESIDENTIAL BUILDING
SPRING 2023
ENV LIBRARY AND ARCHIVES
SPRING 2021
INTERNSHIP EXPERIENCE
SUMMER 2024
18-23 06-17
24-31
32-37
38-41


WOMEN’S SHELTER FOR VICTIMS OF DOMESTIC VIOLENCE
SPRING 2025
Situated along the corner of N Broadway and S Ave 18, this shelter will provide security and resources for victims of domestic abuse. With the support from community advocates, elected officials, and healthcare professionals, residents and visitors of this building will have their needs fulfilled through the help and care from case workers, trainers, educators, and cosmetologists. Aid in familial matters, confidence, financial concerns, etc. will be provided through access to a nursery, training rooms, retail stores, resource centers, classrooms, and computer labs. A sanctuary for victims and their children is of utmost importance. Access to counseling services, legal advocacy, safety planning, life development skills, an referrals will set a standard for victims and their families and provide a stepping stone for a better and safer future. Not only will this directly affect the victims and their families, but it will also cause a ripple affect in the community: improved public health outcomes and reduced burden on costs, reduced burden on law enforcement, increased socioeconomic productivity, increased aware in public education, and breaking the cycle of abuse.
RHINOCEROS 3D, ILLUSTRATOR, PHOTOSHOP, TWINMOTION

SECTION B
SCALE: 1/16” = 1’-0”







SOUTHEAST ELEVATION SCALE: 1/16” = 1’-0”
DETAILED WALL SECTION SCALE: 1/2” = 1’-0”
WALL SECTION
STEEL
SUBSTRUCTURE STANDOFF
METAL SCREEN PANELS
WEATHERPROOFING
GYPSUM SHEATHING
BATT INSULATION
OPERABLE FACADE PANELS
LAMINATE FLOORING
CONCRETE
STEEL DECKING
SUSPENDED CEILING





PORTLAND, OREGON US FEDERAL COURTHOUSE
SPRING 2024
Located along the coast of the Willametter River in Portland, Oregon, the US Federal Courthouse stands tall to symbolize a tower of significance. The curtain walls portray a level of transparency between the public and the law. This tower houses 15 levels of 2-courts per floor over a podium that houses service, offices, prisoners, and marshalls. There is a special moment on the third floor where the cafe and social spaces are located. The third floor is open to the exterior, allowing the courtrooms to appear elevated to indicate sacredness of the courtrooms. The building is oriented on two grids: the adjacent grid of the city and the federal grid of the city on the other side of the river. The decision to use two grids marries the city of both sides of the river, showing acknowledgment of the history of Oregon’s colonization.
REVIT, RHINOCEROS 3D, ILLUSTRATOR, TWINMOTION
SITE ANALYSIS
Site analysis of the Portland, Oregon US Federal Courthouse
courtroom floor plan
2nd floor plan
3rd floor plan
Ground floor plan
INITIAL MASSING
2-COURT PER FLOOR
FEDERAL ADJACENT
FEDERAL VS ADJACENT GRID SPLIT ROTATE
STACKING
PODIUM & CROWN
ELEVATING THE COURTROOMS A PODIUM GIVES IT SACREDNESS. ADDING A CROWN ADDS SIGNIFICANCE TO THE COURTROOM.
EXTEND THE PODIUM TOWARDS THE THE CITY TO CREATE MORE SPACE FOR EXTERIOR ACTIVITIES. ACTIVATE

SANTA ANA MULTI-USE RESIDENTIAL BUILDING
SPRING 2023
Located across from the Santa Ana Transportation center, this multi-use residential building is designed around the importance of community. The main circulation is located within the perimeter of the central courtyard. This creates the idea of a community within a community. The purposeful moves of pushing and pulling the corners off the corridors creates gathering spaces and opportunities for residents and visitors to interact and engage with one another. There is a total of 65 units that span 30ft from the entry door to the opposite window or balcony. The orientation of each building depends on where the balcony faces the area of most activity. The idea of community is further expressed in the facade. On ground level, the commercial spaces are surrounded with storefront windows and are covered by a thin wall of concrete with the intention of creating a large blank canvas. Local artists can paint murals on this wall, much like the works seen in Downtown Santa Ana.
REVIT, RHINOCEROS 3D, ILLUSTRATOR, TWINMOTION
1st floor plan
3rd floor plan
Double Bedroom







Scaled up model of structure layers





Exterior view of the ENV Library and Archives
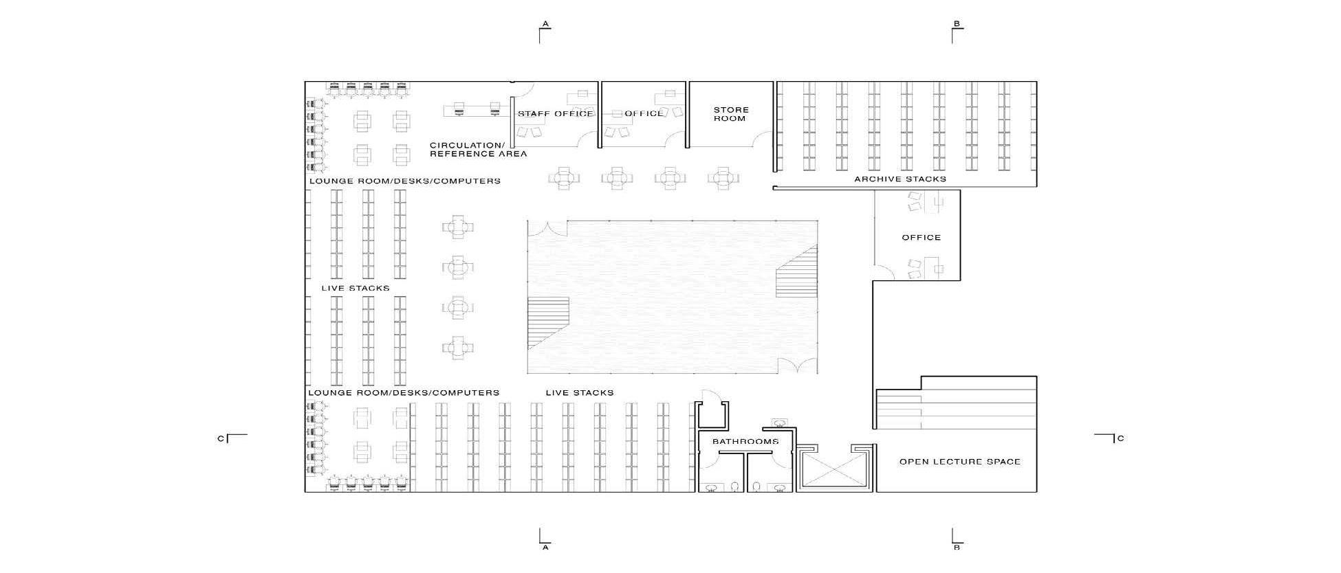
ENV LIBRARY AND ARCHIVES
SPRING 2021
The Site “B” ENV Archives and Library Proposal sits on a slight downwards slope south of Building 7. Its design is intended to respond to Building 7 programmatically and material-wise. The white concrete combined with the layers of glass and columns create a reflective transparency, allowing viewers to see through public spaces and themselves at the same time. The sunken courtyard leads to the main entrance to the library stacks, offering a unique spatial quality of entering into the ground, surrounded by more reflective glass. The modular circulation of this building proposal provides the traveller with a simple path of travel while allowing them to enjoy the spatial experience of traveling through each exciting space. The exhibition is surrounded with glass walls and includes an outdoor balcony to give the user an inviting experience of seeing through the building prior to entering it. The exterior space of the building is capped with a glass roof inspired by the Museum of Contemporary Arts in Los Angeles with the intention of maximizing the sunlight and filtering it through the spaces below it while also allowing the existing trees to have a spatial presence in the design.
RHINOCEROS 3D, ILLUSTRATOR, PHOTOSHOP











Parnasses PCSSI Team Model (Scale: 1’ = 10”)
INTERNSHIP EXPERIENCE
SUMMER 2024
I had a wonderful experience interning at Leddy Maytum Stacy Architects in San Francisco! My responsibilities included model making, rendering, LEED certifications, making material boards, editing graphics, and organizing the materials library-I enjoyed every single thing I was involved in! I most importantly cherished the opportunity to work in teams on real-world projects. I had the opportunity to work on large and exciting projects like UC Parnasses, UC Berkeley Dwinelle Annex and People’s Park, University High School, Stanford DAAAS, and 967 Mission. The exposure I got from this internship is certainly unmatched from what I learned in school. I was encouraged to learn from my colleagues. I greatly appreciate the opportunity to broaden/improve my communication skills, time management, and knowledge of on-site construction. I also really enjoyed the culture at LMS! The site visits, happy hours, bike rides, and overall social environment is what makes LMS a very special and fun place to work at. I admire the healthy work/life/social balance that LMS offers.
RHINOCEROS 3D, ILLUSTRATOR, PHOTOSHOP, REVIT, MODEL MAKING, LUMION


