PORTFOLIO PEDRO NUNES

Page 1

ESTUDANTE DE ARQUITETURA E URBANISMO 2024
PORTFOLIO | CURRICULO
PEDRO NUNES

Pedro Nunes

Estudante de arquitetura e urbanismo cursando o 9° período na PUC-Rio. Possuo facilidade de aprendizado, comunicação e organização, assim como o interesse por conhecer novas formas de pensar e de se ver o mundo. Busco desafios capazes de estimular minhas habilidades e conhecimentos. Tenho muito interesse em tecnologia e sustentabilidade.

pedropintonunes@msn.com

(21) 99912-7099

www.linkedin.com/in/pedropintomnunes

Barra da Tijuca, Rio de Janeiro, RJ

Portfolio | Pedro nunes 2

EXPERIÊNCIA PROFISSIONAL

Casa 3 Arquitetura Ltda. / Agosto 2022 - Dezembro 2023

Estagiário - Atividades realizadas:

- Levantamentos físicos, topográficos e digitalizações em AutoCAD - Elaboração de desenhos técnicos, executivos e detalhamentos em AutoCAD

- Elaboração de memorial descritivo de materiais com quantitativos

Instituto Casa Verde / Janeiro 2024

Co-fundador

EXPERIÊNCIA ACADÊMICA

Pontifícia Universidade Católica do Rio de Janeiro

Graduando em Arquitetura e Urbanismo - 9° período

Janeiro 2020 - Dezembro 2024

Escola Parque

Diploma de Ensino Médio

Janeiro 2017 - Dezembro 2019

Ibeu-Griggs American High School

Diploma de Ensino Médio Americano - Griggs American High School

Diploma de Curso de Inglês Completo - Ibeu

Intercâmbio de 1 mês - Highland View Academy, Maryland, E.U.A.

Janeiro 2016 - Dezembro 2018

CERTIFICADOS

Espaço Quatre Ensino Especializado

Curso de Revit para Arquitetura - Certificado pela Autodesk

Projetou - Plataforma de cursos online

Curso “Sketchup para Arquitetura e Interiores“

Curso “Photoshop para Arquitetura“

Curso “Masterclass de Neuroarquitetura“

Curso “Cidades Inteligentes“

Programa de Integração Universidade, Escola e Sociedade da PUC-Rio (PIUES)

Curso de Introdução ao Empreendedorismo

SOFTWARES

AutoCAD Avançado Adobe Photoshop Avançado

Sketchup Avançado Adobe InDesign Avançado

Revit Avançado Adobe Illustrator Intermediário

Enscape Avançado Pacote Office Avançado

V-ray Intermediário Ferramentas Google Avançado

3 CURRICULO

PROJETO DO ESPAÇO COLETIVO

Escola de Ensino Fundamental 4° período

PROJETO DE REVITALIZAÇÃO

Projeto de revitalização/restauração 5° período pág.10

PROJETO URBANO

São Cristóvão, Rio de Janeiro, RJ 6° período

pág.14

Portfolio | Pedro nunes 4
pág.6

pág.18

pág.22

PROJETO RESIDENCIAL II - SC1 Edifício Pedro II - 7° período

pág.26

PROJETO RESIDENCIAL II - SC2 Edifício Quadra - 7° período

PROJETO DE PAISAGISMO Campus Bosque - 8° período

5
INDICE

PROJETO DO ESPAÇO COLETIVO

4° período - 2021.2

ESCOLA DE ENSINO FUNDAMENTAL

Projeto de escola pública FDE em Engenho de Dentro, Rio de Janeiro, RJ.

A idealização deste projeto teve como elemento principal a biblioteca, por sua importância para a história e evolução da sociedade. Para isso, foi criada como um elemento de destaque, se sobressaindo ao resto do prédio, elevada e envidraçada Além disso, foi instalado um mezanino da bilbioteca, conectando seus espaços por uma escada helicoidal orientada para a vista principal do prédio.

Para as salas de aula manterem sua privacidade, elas foram todas elevadas para os pavimentos acima, liberando o térreo para os serviços necessários da escola e áreas de lazer e convivência. Também foram pensadas para um conforto térmico com ventilação cruzada e natural, por isso as salas voltadas para o exterior do prédio.

Pensando também nas atividades não convencionais que podem contribuir para o aprendizado dos alunos: área para horta ou agrofloresta, anfiteatro público e aberto, sala de artes/exposições envidraçada para dar destaque aos trabalhos dos estudantes.

Grupo: Pedro Nunes e Pedro Paulich

Portfolio | Pedro nunes 6

1. Secretaria

2. Sala de artes/ exposições

3. Banheiros

4. Refeitório

5. Cozinha

6. Quadra

7. Parquinho

8. Horta

9. Anfiteatro

7 ESCOLA | PROJETO ESPACO COLETIVO
PLANTA TÉRREO
8
PLANTA 1 PAV. PLANTA 2 PAV.
9
| PROJETO ESPACO COLETIVO
ESCOLA

PROJETO DE REVITALIZAÇÃO

5° período - 2022.1

CLÍNICA DA FAMÍLIA E PSICOSSOCIAL

Projeto de revitalização/restauração no Rio de Janeiro.

Para o projeto de revitalização foi dada a liberdade para cada aluno escolher seu terreno. Este projeto está localizado no Catete, Rio de Janeiro, e foi um hospital particular por muitos anos até que a família dona do terreno fechou o negócio; em 2010 pegou fogo no interior dos prédios, deixando-os como se encontram hoje. Prédios não são mais utilizados e o terreno desempenha a função de estacionamento hoje em dia.

Como pontos focais: projetamos para o bairro, agregando ao entorno e criando um espaço convidativo; manter o ideal de saúde já proposto, porém voltado para o público ao invés do privado; propor novos usos e atividades para o terreno em questão.

Optamos por preservar apenas as fachadas, por sua beleza e valor histórico, e alterar os interiores e exteriores dos prédios, para que se adequem aos novos conceitos e funcionalidades. O prédio acima da colina será utilizado como Clínica Psicossocial e o central como Clínica da Família. A região hoje utilizada como depósito e estacionamento será transformada em uma praça de alimentação, lazer e apoio para o público visitante e familiares.

Além disso, será idealizado também um núcleo de serviço entre os prédios, sendo utilizado como apoio logístico para funcionários.

Grupo: Pedro Nunes e Pedro Paulich

Portfolio | Pedro nunes 10
11 CLINICA DA Familia e pSIco. | PROJETO REVITALIZACAO IMPLANTAÇÃO 2 3 4 5 1 1
Portfolio | Pedro nunes 12 2 3
13
DA Familia e pSIco. | PROJETO REVITALIZACAO 4 5
CLINICA

PROJETO URBANO

6° período - 2022.2

LARGO DA CANCELA

Reestruturação de vias e espaços para a comunidade no bairro de São Cristóvão

O projeto se inicia a partir de uma análise aprofundada do bairro de São Cristóvão no Rio de Janeiro, RJ. O transporte por dentro do bairro é dificultado pela ineficiência da organização de fluxos e vias. O atravessamento no sentido Leste-Oeste se da apenas pela Rua São Luiz Gonzaga, incrementando ainda mais esta questão do transporte. Analisando esta via é possível perceber a forte influência do Largo da Cancela como área de convergência de fluxos das maiores cetralidades da região.

A síntese do projeto propõe a criação de ambientes mais confortáveis para pedestres, com a criação de um binário na São Luiz Gonzaga, reapropriação de terrenos subutilizados e revitalização do Largo da Cancela, visando legibilidade e relevância histórica.

Na Rua São Luiz Gonzaga, pretende-se criar um eixo comercial mais acessível e convidativo. Serão criadas largas calçadas, adotando o conceito de “calçada consciente” com piso podotátil vermelho para pessoas com deficiência visual, canteiros e plantação de árvores contribuirão para a permeabilidade do solo e o conforto térmico. Além disso, Parklets serão instalados como áreas de descanso para pedestres e pontos de ônibus com sombra e descanso. O projeto visa não apenas melhorar a mobilidade, mas também promover uma experiência mais agradável e sustentável na região

Grupo: Alexandre Magalhães, Pedro Bartholo e Pedro Nunes

Portfolio | Pedro nunes 14
15 LARGO DA CANCELA | PROJETO URBANO
MAPA - READEQUAÇÃO DE FLUXOS E VIAS (BINÁRIO) MAPA - REQUALIFICAÇÃO DE ESPAÇOS

PROPOSTA - LARGO DA CANCELA

PROPOSTA - VILA MISÉRIA

Portfolio | Pedro nunes 16

Grupo:13

17 LARGO DA CANCELA | PROJETO URBANO Corte da Rua São Luiz Gonzaga DEPOIS São PUC Sinalização tátil de alerta (mudança de direção) Sinalização tátil direc onal Sinalização tátil de alerta (faixa de pedestres) 1:250 Corte da Rua São Luiz Gonzaga ANTES Detalhe do uso de canteiros para o escoamento d àgua 4/5 Referência: UCLA Luskin School of Public Affairs Re-inventing the bus stop (re-inventando o ponto de ônibus) Corte da Rua São Luiz Gonzaga DEPOIS São Cristóvão - Largo da Cancela PUC-Rio
Alexandre Magalhães Pedro Bartholo Pedro Nunes
tátil de alerta (mudança de direção)
tátil direcional
tátil de alerta (faixa de pedestres) DETALHE SINALIZAÇÃO PODOTÁTIL 1:250 2 COMÉRCIO COMÉRC O Detalhe do uso de canteiros para o escoamento d àgua 4/5 Referência: UCLA Luskin School of Public Affairs Re-inventing the bus stop (re-inventando o ponto de ônibus)
RUA
GONZAGA
Sinalização
Sinalização
Sinalização
PROPOSTA -
SÃO LUIZ

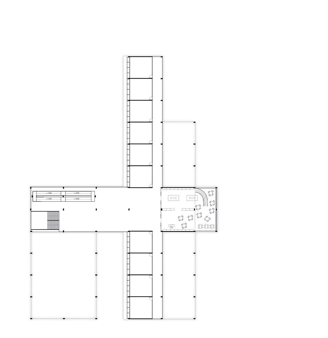
PROJETO RESIDENCIAL II - SC1 7° período - 2023.1

EDIFÍCIO PEDRO II

Projeto de edifício para habitação multifamiliar em São Cristóvão (individual)

Antes de se iniciar o projeto foi necessária uma análise do entorno para o entendimento das necessidades da região. Ao pesquisar sobre o bairro de São Cristóvão, Rio de Janeiro, percebe-se a presença marcante de prédios de universidades e muitas escolas também próximas ao lote. Tendo em vista esta forte influência da educação na região, e sua proximidade com diversos elementos culturais, foi decidido que o edificio residencial iria atender primordialmente aos estudantes.

A partir destas análises foi criado o conceito do prédio e seu público alvo. Sua identidade visual é percebida externamente por figuras lúdicas, remetendo à letras e números, na empena cega. A recepção é marcada por uma extensa biblioteca compartilhada entre os moradores, fomentando a troca de conhecimento e experiências.

Tendo em vista as necessidades que geralmente os estudantes possuem em comum, foram divididos 2 modelos de studio, diferenciados por seus tamanhos e valores. E também, para atividades que requerem mais espaço, foram instaladas uma sala de coworking, uma academia e um jardim aberto para os moradores.

Portfolio | Pedro nunes 18
19 EDIFICIO PEDRO II | PROJETO RESIDENCIAL II - SC1
20 Portfolio | Pedro nunes
1 - PÁTIO
CENTRAL
1
2 - JARDIM
2
21
PEDRO II | PROJETO RESIDENCIAL II - SC1
EDIFICIO
STUDIOS 02 E 03
STUDIOS 01 E 04

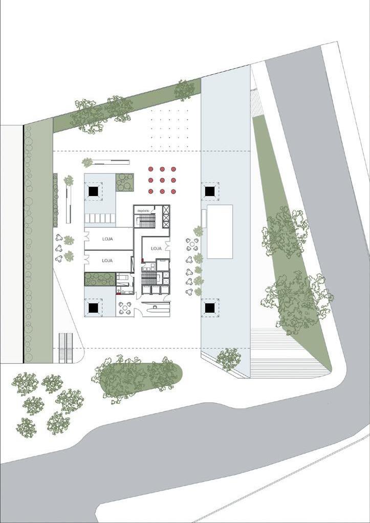
PROJETO RESIDENCIAL II - SC2

7° período - 2023.1

EDIFÍCIO QUADRA

Projeto de edifício para habitação multifamiliar em São Cristóvão em grupo

Para este projeto foi escolhido um terreno de esquina entre o Largo da Cancela e o Pavilhão de São Cristóvão no Rio de Janeiro. Analisando a região percebe-se um fluxo muito intenso de pedestres e carros, devido à sua localização no coração do bairro

Com a pesquisa realizada foram elaborados planos de como ocupar este espaço com um edifício residencial e manter sua origem comercial. Aproveitando o desnível de 3m do terreno foi criado um subsolo comercial aberto para o público, com a presença de mercados, quiosques e espaços para eventos gastronômicos. No térreo foram alocadas áreas de loja para vendedores locais e espaços de lazer e convivência.

Sua estrutura é de concreto armado e possui variações do 1 pavimento para cima. Todas arestas aparentes de lajes possuem um afinamento na ponta para uma aparência mais fina e elegante. No térreo e subsolos as lajes são nervuradas e pilares se constituem de apenas 4, ganhando área aberta

O acesso aos pavimentos elevados ocorre por elevadores separados apenas para os moradores, dentro da recepção. No primeiro pavimento estão no centro: lavanderia e academia (cobertura de vidro e espelho d’àgua acima para controle de temperatura); apartamentos, dispostos ao redor do prédio, criando varanda e vista para todos. Há também a cobertura, com um grande gramado verde e algumas áreas de convivência e confraternização.

Grupo: Antonio Pedro Sanches, Luiz Garambone e Pedro Nunes

Portfolio | Pedro nunes 22

Q U A D R A

Luiz Garambone Sydenstricker

Pedro Nunes

Antonio Pedro Sanches

23
| PROJETO RESIDENCIAL II - SC2
EDIFICIO QUADRA

Esquema de disposição dos apartamentos

Portfolio | Pedro nunes 24 3 quartos ( 90 m² Studio A 31m² ) 2 quartos ( 70m² Studio B ( 25 m² )
Planta pav. -1 Planta 1 pav. Planta pav. tipo
3 quartos ( 90 m² Studio A 31m² ) 2 quartos ( 70m² Studio B ( 25 m² )
25
RESIDENCIAL II - SC2
EDIFICIO QUADRA | PROJETO
Planta cobertura Studio menor APT. 2 quartos APT. 3 quartos Planta garagem Studio maior Vista 02 cobertura Vista 01 cobertura

PROJETO DE PAISAGISMO

8° período - 2023.2

CAMPUS BOSQUE

Como unificar e requalificar o campus da PUC-RIO

O projeto envolveu a análise dos principais fluxos e a realização de entrevistas com diversos usuários para identificar uma área central de convergência desses usos. A pesquisa também incluiu uma revisão histórica para identificar as principais funções do espaço ao longo do tempo.

A partir disso, foram identificados diferentes “distritos“ dentro do campus, classificados como: puc, esquecidos, isolados, pontos de interesse, oportunidades e ameaças. O objetivo era conectar esses pontos, criando um espaço comum e convidativo para otimizar a experiência do dia a dia.

A intervenção buscou trazer mais oferta de áreas de lazer, ao melhor planejar as áreas verdes, delimitando o fluxo de carros e de pedestres, sem que os carros “invadam” a área de lazer dos usuários - porém ainda permitindo acesso a todos os prédios - ao diferenciar esses fluxos através da mudança de pisos. A implementação de tipologias específicas para cada zona ocorreu a partir das necessidades encontradas, estas foram nomeadas Reserva e Gramadão. O projeto também visou ampliar o aproveitamento do rio nas áreas de lazer, propondo a criação de um deck que sirva de mirante para a paisagem

Grupo: Camila Gama, Luiza Palhares, Pedro Bartholo e Pedro Nunes

Portfolio | Pedro nunes 26
27 E S T A C I O N A M E N T O E S T A C O N A M E N T O N O V A I N C U B A D O R A G Ê N E S S E S T A C O N A M E N T O E D I F C O K E N N E D Y E D I F Í C I O C A R D E A L L E M E CAMPUS BOSQUE | PROJETO DE PAISAGISMO
Corte atual Corte proposta Mapa dos distritos
28 R E S E R V A N O V A I N C U B A D O R A G Ê N E S S G R A M A D Ã O E D F C O K E N N E D Y E D I F C O C A R D E A L L E M E R E S E R V A ARQ1111 PROJETO DE PAISAGISMO 2023 2 Grupo 8 Camila Gama Lu za Palhares Pedro Bartho o e Pedro Nunes PROPOSTA
29 ARQ1111 PROJETO DE PAISAGISMO 2023 2 Grupo 8 Cam la Gama Lu za Palhares Pedro Bartholo e Pedro Nunes

Turn static files into dynamic content formats.

Create a flipbook
Issuu converts static files into: digital portfolios, online yearbooks, online catalogs, digital photo albums and more. Sign up and create your flipbook.