Brent Cross Plot 14 Case Study - PCE Ltd

Page 1


Brent Cross Town - Plot 14

HybriDfMA hyTower® System

Structural Components

Design Phase

Supply Chain Mapping

Offsite Manufacture

Quality Control

Site Logistics

Architectural Façade Panels

Façade Panel Testing

Start of the Build

Site Safety

Completion

Our

PROJECT OVERVIEW

PCE Ltd was proud to be appointed as the superstructure and façade specialist for Plot 14 of the Brent Cross Town masterplan - a key residential phase of the £8bn regeneration project by Related Argent and Barnet Council. Once again working alongside main contractor Galliford Try, PCE delivered three high-rise Build to Rent blocks, rising up to 12 storeys and providing 286 high-quality build-to-rent apartments across a 25,000m² development.

The project was delivered using PCE’s hyTower® system - a HybriDfMA structural solution designed for safe, fast, and efficient construction. Over 4,300 pre-engineered components were digitally modelled by PCE’s inhouse design team, manufactured offsite by five specialist suppliers across the UK and Europe, and assembled on site by a multi-skilled 22-person PCE team.

The systemised ‘kit-of-parts’ included twin walls, sandwich panels, stair cores, hollowcore slabs, and composite steel-concrete beams - all precisely coordinated through PCE’s digital platforms. The result, a high-rise development that met the architectural vision of Allies and Morrison and Whittam Cox with outstanding quality, safety, and delivery performance.

Plot 14 adds to PCE’s growing portfolio of hyTower® projects across the UK, demonstrating the system’s ability to deliver repeatable, high-value outcomes in complex urban environments.

MAIN CONTRACTOR

ARCHITECT

M&E ENGINEERS

CONSULTING ENGINEERS

Matthew Pool, Managing Director of Galliford Try Building London and South East Commercial, commented:

“As we reach this key milestone with Plot 14, we are delighted to continue delivering high-quality build-to-rent homes and exceptional amenities for future residents. This is a significant step forward in the overall vision for Brent Cross Town, and we are proud to contribute to this vibrant, sustainable community.”

Galliford Try
Whittam Cox Architects
Briggs and Forester
Curtins

35% Reduction In Embodied Carbon

6 Different Façade Types

10 Days Per Level Installed

PROJECT METRICS

44 Weeks Constructing

6 Factories Used for Components

25,000 M² of Floor Space

22 Site Operatives

4,300 Off-site Manufactured Components

804 Product Deliveries

286 Build-to-Rent Apartments

3 Blocks up to 12 storeys

HYTOWER® SYSTEM

PCE’s hyTower® system is a fully integrated structural solution for tall buildings, designed to deliver speed, certainty, and scalability across every stage of construction. At the heart of hyTower® is PCE’s HybriDfMA methodology, blending preengineered components into a repeatable ‘Kit of Parts’, manufactured offsite, that can be tailored to suit unique architectural designs. Inspired by automotive production principles, the system enables smart, safe, and rapid assembly, with integrated fixings and coordinated M&E ensuring seamless on-site performance.

System Features

• Configurable to existing and bespoke designs

• Flexible structural grid with long-span options for adaptable layouts

• Kit-of-parts design with flexible material interchangeability

• Optimised component geometry for structural and carbon efficiency

• Seamless integration of façade, M&E, utility, balcony, and window elements

• Integrated, non-combustible (Class A1) façade system

• Smart connectivity for fast, accurate component interfacing

• Integrated MEP for efficient service coordination

• Fire-resistant system with excellent thermal and acoustic performance

• Digital twin and data-driven insight for precision and tracking

• Offsite manufacturing expertise ensures high-quality, controlled production

System Benefits & Value

• 50% faster construction programmes

• 80% fewer site personnel improve safety and productivity

• Early access for fit-out just two levels below active construction

• No back-propping or scaffolding required, reduces risks, improves access, and improves site efficiency

• 90% reduction in site waste and 80% fewer deliveries

• 30%+ lower embodied carbon thanks to smart design and material efficiency

• Predictable quality and performance due to repeatable, systemised assembly

• Faster weatherproofing with integrated façades accelerates fitout

• Better sales experience with clean, scaffold-free presentation of the structure

• Accelerated project completion allows earlier revenue generation and occupancy

STRUCTURAL COMPONENTS

PCE’s HybriDfMA Systems combine MMC and DfMA principles with modular construction and material flexibility. Systems are based optimised to offer high quality, repeatability, and enhanced predictability. Brent Cross Plot 14 was built using the hyTower® system by the client’s request. Over 4,300 components were produced across 8 factories in 4 countries, leveraging a flexible supply model materials. Windows, façades, and balconies were also fully integrated offsite for seamless installation.

Precast Structural Façade Panels Stairs and Landings

Precast structural façade panels are cast with a Reckli pattern finish or cut brick slips for the architectural intent. Large span windows and juliette balconies fixed at the manufacturing factory compliment the installed units.

Stair units are fitted with handrails prior to be installed on-site. These are connected to the landings up to 12 stories.

Twin wall Lift

Cores

Twin wall cores provide stair and lift shafts as well as structural stability. They provide a more efficient structural design over traditional solid wall precast units.

Composite Beam

Deltabeams were used compositely with reinforced structural to support the floor without the need for any stands, providing improved heights.

on standardised ‘kit of parts’, refined and system ‘kit of parts’ with bespoke alternations to source the highest-quality structural installation.

Precast Hollowcore Floor Unit

compositely structural concrete structure any downimproved soffit

250mm deep pre-stressed concrete hollowcore units, designed to work independently without structural topping.

DESIGN PHASE

Working with standardised components, PCE’s design team, alongside design experts Curtins, configured each component so that it algins with architectural vision of Allies and Morrison and Whittam Cox. Through targeted value engineering and component optimisation, the system was tailored to meet project-specific requirements, balancing structural performance, architectural intent, and sustainability goals. The result is a systemised ‘kit of parts’ that supports rapid on-site assembly and predictable outcomes.

As with all PCE’s systemised structural solutions, a series connection principles - referred to as ‘smart connectivity’ with hybrid structural flexibility, allowed the use of different the right places. This enabled the interchange of structural to maximise performance and sustainability across the

series of common connectivity’ - combined different materials in structural components the solution.

Early engagement and coordinated design enabled seamless integration of key interfaces, including M&E services, utilities, window systems, four different recon and brick-faced façades, and balconies. This approach added value across both offsite manufacture and onsite assembly.

SUPPLY CHAIN MAPPING

In line chain with manufacturers UK and its standardised for Brent

line with its flexible supply model, PCE engaged 6 offsite specialist manufacturers from across the and Europe to manufacture standardised components Brent Cross Plot 14.

OFFSITE MANUFACTURE

With offsite at the core of PCE’s systemised DfMA approach, quality control and certainty of cost, programme, and quality are all enhanced. Tapping into the technology across its European supply chain, Plot 14 benefited from modern automation and robotics, moulds, comprehensive QA/QC, reliable consistency, and improved efficiency.

Measures in place across Plot 14’s manufacturing enabled 90% waste reduction, reduced reworks, better coordinated on-site operations, and streamlined just-intime delivery.

QUALITY CONTROL

To ensure deliverance of the highest quality standards, all parties must have a clear, comprehensive, and agreed understanding of the specifications. In the initial stages, rigorous sampling was conducted involving representatives from Galliford Try, Related Argent, PCE and its supply chain. During this review, the aesthetic appearance, shape, and tolerances of the first cast units are agreed upon and signed off, setting a benchmark for all other units that will be manufactured. From there, constant communication is required between PCE and its supply chain to maintain the agreed quality and specification throughout.

Plot 14’s offsite strategy saw our dedicated team of supply chain quality controllers work directly within partner factories to:

• Briefing manufacturing teams on project-specific requirements

• Coordinate planning, programming, and mould setup

• Manage trials, samples, and first-off QA inspections

• Ensure clarity and accuracy of issued information

• Validate free-issue and integrated components for readiness

• Audit quality systems, including a minimum 10% QA/QC check of components

• Implement and support digital QA/QC reporting and progress tracking

• Coordinate logistics, load planning, and tracking

• Document and close out NCRs and observations

• Capture lessons learned and share best practice across all stakeholders

This integrated approach ensures our supply chain delivers to programme, meets specification, and supports just-in-time delivery— providing clients with assurance of quality, compliance, and efficiency.

PCE delivered a tightly controlled quality process on Plot 14, built on a fully integrated methodology that maintained accuracy, consistency, and traceability from design through to client handover.

Central to this approach was a fully coordinated 3D digital twin, connecting every unit and element to real-time quality data throughout the design, manufacturing, and assembly phases. This ensured a live, transparent, and auditable record of compliance accessible to the full project team.

Design Quality

• A coordinated 3D model incorporating both structural and M&E elements enabled early clash detection and design verification

• Fabrication data was directly derived from the model, supporting precise manufacture aligned with architectural requirements.

Manufacturing Control

• Each unit passed through stringent pre- and postpour inspections, with photographic evidence and dimensional checks captured in the digital environment.

• ‘First-off’ benchmark samples set the standard, with in-house QC inspectors and automated systems ensuring process repeatability.

• In addition, 10% of components were independently re-checked by PCE’s factory expeditors to confirm compliance.

Assembly and Site QA

• Every component was visually inspected upon arrival, with any transport-related damage digitally recorded. Site positioning was controlled by PCE engineers using reference grids, with actual positions logged to verify tolerance compliance.

• Key activities such as grouting and reinforcement required hold-point checks and multi-party sign-off.

• Approved benchmarks, finish samples, and documented quality standards helped drive a consistent site finish.

Final Handover

• A dedicated Handover Manager coordinated inspections, final detailing, and client engagement— delivering a robust, clearly evidenced quality closeout.

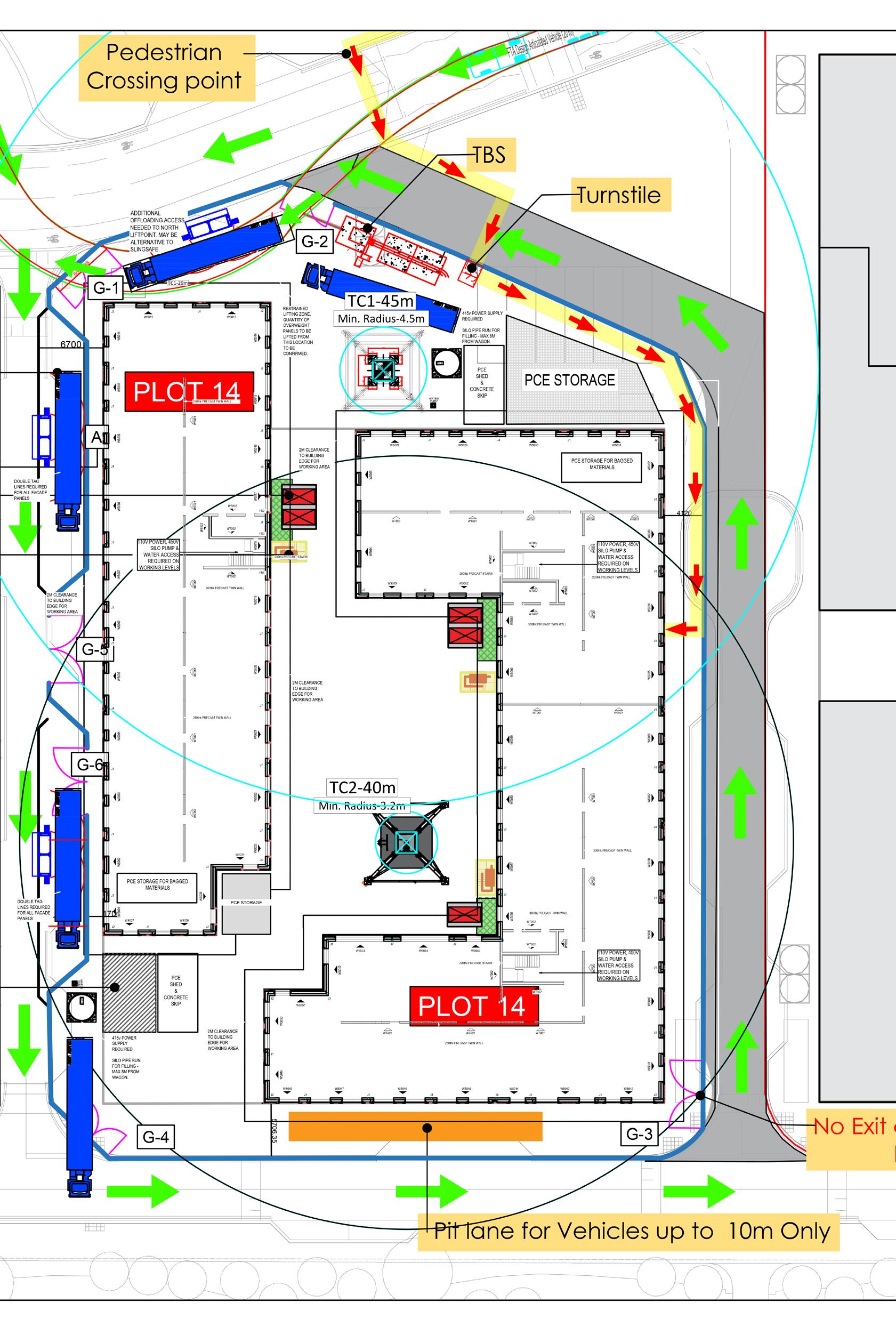
SITE LOGISTICS

Delivering Plot 14 at Brent Cross required a meticulous, just-in-time logistics strategy - a challenge PCE’s construction team is wellversed in managing on complex city-centre sites. With extremely limited space every structural unit was scheduled months in advance, coordinated with a detailed build sequence and load-by-load planning.

Success relied on early and continuous collaboration with offsite factories and suppliers. Some components were cast just two weeks before installation, with deliveries timed to arrive exactly when needed — maximising efficiency and minimising site congestion.

PCE’s digital twin technology provided full track-and-trace transparency across every stage — from design and manufacture to delivery and assembly. This real-time insight enabled the team to proactively manage risks, respond to changes, and keep the project moving with precision, speed, and control.

ARCHITECTURAL FAÇADE PANELS

A key feature of PCE’s system is the integrated façade, constructed concurrently with the structural frame. This enables the building to become weather-tight as it rises, allowing internal trades to begin just two levels below active construction - effectively removing the structure and envelope from the critical path much earlier, accelerating the programme.

With façades, windows, and balconies installed offsite, there is no need for scaffolding. This not only enhances safety by reducing work at height, but also improves the sales and customer experience by presenting the clean, finished architectural façade throughout construction.

Plot 14 features six façade colourways using a mix of brick and reconstructed stone. Many panels were cast with Reckli form liners to create ribbed textures, delivering a high-quality, exposed concrete finish that reflects the architectural vision.

FAÇADE PANEL TESTING

The Brent Cross Town Plot 14 façade system underwent an extensive programme of weathertightness, wind resistance, air permeability, and impact testing at VINCI Technology Centre UK.

Testing followed CWCT Standard Methods and confirmed the system’s strong performance:

• Air permeability: Achieved Class A4 at 600 Pa, demonstrating excellent airtightness.

• Watertightness: Attained Class R7 at 600 Pa under static and dynamic conditions, with successful hose testing.

• Wind resistance: Withstood serviceability pressures of ±1750 Pa and safety pressures of ±2625 Pa without damage, meeting stringent deflection limits.

• Impact resistance: Classified as Class 1 for serviceability (soft body) and negligible risk for safety, with minimal aesthetic damage under hard body tests.

The controlled dismantling phase revealed no water ingress or installation discrepancies, confirming the robustness of the design and installation.

Overall, the façade system demonstrated high levels of durability, safety, and weather performance—providing strong assurance of long-term reliability for the Brent Cross Town development, helping achieve CWCT Standard and NHBC warranty.

START OF THE BUILD

PCE’s Plot 14 assembly team consisted of 22 multi-skilled operatives, including installers, grouters, ancillary support, foreman, and supervisors.

Construction began from an in-situ podium deck delivered by others, with PCE working collaboratively with the wider design team to ensure all superstructure connection interfaces were fully coordinated and efficiently integrated.

Using standardised, repeatable installation methods, the team achieves rapid daily progress, installing up to 100 tonnes of hybrid components per day. With bathroom pods placed as part of the process, an optimised 10-day level cycle was achieved - safely, efficiently, and with precision.

SITE SAFETY

Safety was central to Plot 14’s delivery. PCE’s systemised approach meant components arrived pre-fitted with safety features like handrails, enabling safe, immediate assembly.

From the outset, safe access was a priority. In collaboration with access specialists PERI, PCE implemented a proprietary system through the lift cores, projecting above each working level to provide secure, progressive access as the structure rose. This allowed operatives to remove lifting gear at chest height, removing the need for extra platforms and reducing risk.

PCE also deployed its SlingSafe system for safe offloading. Featuring a gated access platform and a mobile boom, SlingSafe offers full fall arrest protection during unloading, securing operatives via an inertia reel and harness.

As part of its commitment to continual improvement, PCE engaged independent safety auditors throughout the project, ensuring the highest standards in health, safety, and best practice were upheld.

COMPLETION OF THE BUILD

Brent Cross Plot 14 is a standout example of what Modern Methods of Construction can deliver. In just 44 weeks from the first component installed, structural completion was achieved - bringing gains in safety, quality, speed, and sustainability.

PCE’s integrated hyTower® system added value across every stage. By the time the structure topped out, nearly two-thirds of apartments were already completed - thanks to a fully coordinated solution enabling faster fit-out and streamlined delivery.

DIGITAL DELIVERY

PCE’s Design Team laid the foundation for a faster, safer, and eco-friendlier London-based project, thanks to their Building Information Modelling (BIM) expertise. PCE’s BIM strategy guarantees unparalleled precision and information provision for both the manufacturing and erection processes.

Thorough using our Ynomia Platform, we are able to create a ‘linked’ Digital Twin representation of our BIM Model. This digital twin becomes the repository for all data associated with each individual component within the building. Unique location identifiers within the Digital Twin allow us to tag a component with relevant data throughout the lifecycle of the component.

Digital Visibility and Assurance

• Comprehensive QA/QC

• Single Source of Truth

• Defect/Observation Management

• 14-stage real-time tracking

• Lifecycle traceability

• Linked ancillary actions

• Provides true ‘As Built’ records

• Supports Golden Thread compliance

SUSTAINABLE DELIVERY

Sustainability is a key criteria to PCE and it’s client base. hyTower® offers 30%+ reduction in embodied carbon, and was key to helping Plot 14 hit key sustainability criteria, such as the build-to-rent homes achieving a 35% +reduction in CO2 emissions below Building Regulations Part L.

The project utilised a new carbon reduction process utilising composite reinforced concrete/steel beam construction, working in collaboration with Piekko’s DELTABEAM® technology. This steel Deltabeam is made using 90% recycled steel, helping to reduce plot 14’s overall carbon footprint.

Beyond material choices, PCE also employs electric-powered plant and equipment, such as electric tower cranes and pumps. This reduces noise pollution and on-site disturbances, whilst contributing to greener operations.

hyTower®’s systemised approach deployed at Plot 14 enable a reduction of workforce by 80%, traffic and deliveries reduction by 80%, and waste reduction by 90%.

OUR PEOPLE

Our highly trained, multi-skilled construction teams are committed to delivering the highest levels of professionalism, workmanship and quality in every aspect of what they do both on and offsite.

PCE’s delivery team for the project have continued to demonstrate the value of PCE’s HybriDfMA system build approach. Achieving such standards in a short period of time is no mean feat, especially considering the project site was on a large-scale and busy construction developmt site.

PCE’s is an Employee Ownership Trust, equally owned by all of its employees. This means our teams are personally invested in the company’s collective success - because when PCE succeeds, they directly share in the rewards.

This shared ownership drives a culture of accountability, innovation, and excellence. helping our business continually improve and deliver outstanding results for our clients.

Craig Billyeald, PCE Project Director, commented:

“It makes me immensely proud that PCE have reached the point of structural completion on Brent Cross Plot 14. The achievement has been a culmination of hard work, dedication and commitment from the PCE teams in all aspects of design, manufacture and assembly. The collaboration required with our client team and their design and extended supplier partners in order to deliver the architectural vision has seen new relationships grow through learning, aligned values and unrivalled commitment to overall project success, to enable a great sense of shared satisfaction in the result”

Turn static files into dynamic content formats.

Create a flipbook
Issuu converts static files into: digital portfolios, online yearbooks, online catalogs, digital photo albums and more. Sign up and create your flipbook.