Metamorphosis, grafos y huellas

Page 1

ÍNDICE

- E1 (pág 1- 2)

Aproximación al lugar: comarca de La Sagra Análisis del lugar Primeros tanteos sobre el sitio - E2 (pág 3- 18)

Proyectos robados Pruebas aumento de densidad Pruebas con formas existentes

- UNA SOLUCIÓN, DESARROLLO

- COLECCIÓN DE PLANOS-

Fase 1: descontrol

Fase 2: intento de ordenar

DE UNA PROPUESTA

FRACASO DESCARTADOS

(pág 8- 18)

(pág 19- 27)

Fase 3: el campo entra en juego

Evolución planos generales, plantas, secciones, imágenes y volumetrías

- E3 RESULTADO FINAL DE PROYECTO (pág 28- 54)

Planos de situación finales Desarrollo de vivenda Sección del conjunto Volumetría del conjunto Imágenes

APROXIMACIÓN AL LUGAR: LA COMARCA DE "LA SAGRA"

En este apartado, se analizará el lugar, la comarca de la Sagra. Se experimentará sobre las formas ya existentes, sobre las HUELLAS buscando leyes que ordenen el espacio (las formas de las parcelas, los caminos, las carreteras) puesto que se busca mejorar lo existente, trabajar sobre lo que hay.

E1
01 APROXIMACIÓN AL LUGAR: COMARCA DE LA SAGRA PAULA GRANDE BLÁZQUEZ P4 UNIDAD MARURI
GRÁFICOS DE ESTUDIO DEL LUGAR EJEMPLO DE PIXELIZACIÓN POR PARCELAS ANÁLISIS DE FOTOS TOMADAS DEL LUGAR
PARCELAS RÚSTICAS (COMPARACIÓN DE ESCALAS) PARCELAS DE FORMA IRREGULAR RECUENTO TOTAL DE TIPOS DEPARCELAS PARCELAS VACÍAS PARCELAS EN SERIE MODULACIÓN + REPETICIÓN LAS CONSTRUCCIONES NO SIGUEN NINGÚN TIPO DE PATRÓN DEJANDO UNA GRAN CANTIDAD DE ESPACIO INUTILIZADO PAULA GRANDE BLÁZQUEZ P4 UNIDAD MARURI APROXIMACIÓN AL LUGAR: PRIMEROS TANTEOS 02 RECOPILACIÓN DE TIPOS DE PARCELAS ORDENADAS SEGÚN FORMA

BUSCAR UNA SOLUCIÓN

Existe un importante problema de densidad para el que se pretende dar respuesta. Será necesario buscar leyes, unas normas que permitan ordenar tanto lo que ya existe, como lo que se vaya a implementar en el entorno sin perder de vista que es esencial que el campo forme parte del cambio, de la METAMORFOSIS.

E2

REFERENCIAS:

- Tokyo Bay Project, Kenzo Tange, 1959

- Agricultural city Kisho Kurokawa

- Planos de Constant

- Touluse le Mirail Candillis-Josic-Woods

- Bochum University Candillis-Josic_Woods

OTROS:

-PRUEBAS ESCALADO Y SUPERPOSICIÓN DE PARCELAS

- PRUEBAS AUMENTO DE DENSIDAD SIN ORDEN APARENTE

GRANDE BLÁZQUEZ P4 UNIDAD MARURI 03
PARA EL CASO DE AUMENTO DE DENSIDAD DESCONTROLADA
PROYECTOS ROBADOS: TRANSFORMAR EL SITIO PROYECTOS ROBADOS: PRUEBAS SOBRE EL LUGAR PAULA
EXPERIMENTO
PRUEBA: AUMENTO DE DENSIDAD PAULA GRANDE BLÁZQUEZ P4 UNIDAD MARURI 04 APLICACIÓN CASO DE AUMENTO DE DENSIDAD SOBRE EL SITIO
PRUEBAS SOBRE EL LUGAR A PARTIR DE FORMAS EXISTENTES PAULA GRANDE BLÁZQUEZ P4 UNIDAD MARURI 05 CLASIFICACIÓN DE PARCELAS DE TIPO AGRARIO Y ESQUEMAS INICIALES PARTIENDO DE ESAS FORMAS
PROPUESTA "GRIETA CONECTORA" PROPUESTA "PIEZA CURIOSA" PROPUESTA "TRAMA EGIPCIA" PROPUESTA "PASTILLAS MÓVILES"
TOLOUSE LE MIRAIL, CANDILLIS, JOSIC Y WOODS 1
PLANOS DE CONSTANT AGRICULTURAL CITY, KISHO KUROKAWA ESPONJAMIENTO DENSIDAD PLANO DE ANÁLISIS DEL EJERCICIO COMPACIDAD GEOMETRÍA ORDEN NÚCLEOS SUPERPOSICIÓN CONEXIÓN NODOS 06 PAULA GRANDE BLÁZQUEZ P4 UNIDAD MARURI RECOPILACIÓN DE PROPUESTAS POSIBLES MONTAJES A PARTIR DE PROYECTOS ROBADOS, REFERENCIAS
PUNTO DE PARTIDA: SELECCIÓN DE PROPUESTAS ESPONJAMIENTO DENSIDAD RELACIÓN CON EL ENTORNO AUTOSUFICIENCIA RITMO SOSTENIBILIDAD REPETICIÓN LIGEREZA COHESIÓN PROPUESTA "JUEGO DE BANDAS" BAHÍA DE TOKYO, KENZO TANGE PROPUESTA "MUELLE FRÁGIL" EXPERIMENTO DE AUMENTO DE DENSIDAD PROPUESTA "COMPRESIÓN" BOCHUM UNIVERSITY, CANDILLIS, JOSIC Y WOODS PROPUESTA INSPIRADA POR ARCHIKUBIK PROPUESTA "ESTRÍAS VERDES" RECOPILACIÓN DE PROPUESTAS POSIBLES 07 PAULA GRANDE BLÁZQUEZ P4 UNIDAD MARURI MONTAJES A PARTIR DE PROYECTOS ROBADOS, REFERENCIAS
08 PROPUESTA ELEGIDA PAULA GRANDE BLÁZQUEZ P4 UNIDAD MARURI SE PROPONE IMPLEMENTAR UN SISTEMA DE BANDAS QUE LLEGUEN HASTA EL CAMPO Y LLEGUEN A FORMAR PARTE DE ÉL
ESQUEMA EN PLANTA 09 PAULA GRANDE BLÁZQUEZ P4 UNIDAD MARURI
PRIMER DIAGRAMA DE CONCEPTO OCUPACIÓN EN BASE A PIEZAS CON EL MISMO LENGUAJE DEL LUGAR CLASIFICACIÓN DE PIEZAS
3B 4B 2E 2C 2B 2D 2A 2A 3F 4A 4D 4A 4B 4C 4E 4F 3E 3D 3C 3A MÍNIMA DENSIDAD----------------------------------------------------------MÁXIMA DENSIDAD--------------------------------------------MÍNIMA DENSIDAD DESPIECE CUERPO CENTRAL RAMAL IZQUIERDO RAMAL DERECHO ANÁLISIS DESPIECE 10 PAULA GRANDE BLÁZQUEZ P4 UNIDAD MARURI

IZQ

IZQ

IZQ

2A-IZQ 2B-IZQ 2C-IZQ 2D-IZQ 2E-IZQ 2A- DCHA SIN RAMAS (PARA ESPONJAR) EN FUNCIÓN DEL CUERPO AL QUE SE UNAN RACIONALIZACIÓN DE LAS RAMAS (POR BANDEJAS) RACIONALIZACIÓN DEL CUERPO PRINCIPIOS PARA ODERNAR EL SISTEMA: - MODULACIÓN - REPETICIÓN - COMBINACIÓN - ESPEJO CUERPO RAMAL IZQUIERDO RAMAL DERECHO 4 PIEZA CUERPO 3 PIEZA CUERPO 2 1 PIEZA CUERPO PIEZA CUERPO SE PARTE DE UN DIAGRAMA ALEATORIO Y SIN ORDEN RACIONALIZACIÓN DEL SISTEMA 11 PAULA GRANDE BLÁZQUEZ P4 UNIDAD MARURI
3A- IZQ 3B-
3C-
3F-
3E- IZQ 3D- IZQ 4B- IZQ 4A- IZQ 4F-DCHA 4A-DCHA 4B-DCHA 4C-DCHA 4D-DCHA 4E- DCHA
12
PLANTA GENERAL: SUPERPUESTA AL ENTORNO PAULA GRANDE BLÁZQUEZ
P4
UNIDAD MARURI
GRANDE BLÁZQUEZ P4 UNIDAD MARURI PROPUESTA ELEGIDA 13
PAULA
ESQUEMAS TIPO
DE CONJUNTO PAULA GRANDE BLÁZQUEZ P4 UNIDAD MARURI 14 SECCIONES PIEZAS CON VARIAS ALTURAS Y ENTRADAS DE LUZ
PROPUESTA ELEGIDA: PRIMEROS INTENTOS DE SECCIONES

OTROS INTENTOS

SE BUSCA LA ENTRADA DE LUZ HASTA EL ESTRATO MÁS BAJO SE TRATA DE PRESERVAR LO QUE YA HAY DEBAJO SECCIÓN LONGITUDINAL POR EL CUERPO CENTRAL (MÁS DENSIDAD, MÓDULOS MÁS ALTOS, MÁS COMPACTOS)
NUEVAS
SECCIÓN LONGITUDINAL CUALQUIERA (MENOS DENSIDAD, MÁS HORIZONTAL)
SECCIONES
PAULA GRANDE BLÁZQUEZ P4 UNIDAD MARURI 15
DEFINICIÓN DE DIFERENTES ALTURAS (MAYOR ALTURA AL CENTRO ALTURAS
AVANCES
EN SECCIÓN
ESQUEMA DE CONEXIONES Y CIRCULACIONES PAULA GRANDE BLÁZQUEZ P4 UNIDAD MARURI 16 RECORRIDOS, VÍAS

CIRCULACIÓN PÚBLICA

DIAGRAMAS DE RECORRIDOS PAULA GRANDE BLÁZQUEZ P4 UNIDAD MARURI 17
PRIMERA MAQUETA DE CONCEPTO PAULA GRANDE BLÁZQUEZ P4 UNIDAD MARURI 18

COLECCIÓN DE PLANOS-FRACASO DESCARTADOS PERO ESENCIALES EN EL

PROCESO

Se recoge en este apartado una selección de los planos de proceso de trabajo, planos de situación, plantas para viviendas, secciones tipo e imágenes que, aunque no se consideran resultado final del proyecto, permiten entender el curso como un proceso evolutivo de prueba y error, algunos mejores y otros peores, unos caóticos y otros más racionales, más o menos atractivos, empleando distintos lenguajes, diferentes GRAFOS pero todos con el mismo valor.

E3
PAULA GRANDE BLÁZQUEZ P4 UNIDAD MARURI
PAULA GRANDE BLÁZQUEZ P4 UNIDAD MARURI FASE 1 - DESCONTROL-PLANO GENERAL
EVOLUCIÓN PLANO GENERAL PAULA GRANDE BLÁZQUEZ P4 UNIDAD MARURI 19
AGRESIVIDAD EN EL TRAZO
EVOLUCIÓN PLANO GENERAL PAULA GRANDE BLÁZQUEZ P4 UNIDAD MARURI 20 EXCESO DE COMPLEJIDAD CAOS DELIVERADO TRAZADO AGRESIVO
EVOLUCIÓN PLANO GENERAL
NODOS PÚBLICO DE ENCUENTRO PAULA GRANDE BLÁZQUEZ P4 UNIDAD MARURI 21
CONEXIONES VERTICALES RECORRIDOS APROXIMACIÓN AL PROGRAMA COMÚN ILEGIBILIDAD DEL LENGUAJE GRÁFICO FALTA FLEXIBILIDAD, ADAPTACIÓN AL ENTORNO PRÓXIMO
FASE 2 - INTENTOS DE ORDENAR PAULA GRANDE BLÁZQUEZ P4 UNIDAD MARURI
EVOLUCIÓN PLANO GENERAL PAULA GRANDE BLÁZQUEZ P4 UNIDAD MARURI
22
AL IMPLEMENTAR EL MODELO CASA-PATIO EL CONJUNTO DE CIERRA SOBRE SÍ MISMO
EVOLUCIÓN PLANO GENERAL PAULA GRANDE BLÁZQUEZ P4 UNIDAD MARURI
ESQUEMAS LINEALES
23
PRUEBAS, ORDENAR LAS BANDAS EN UNA ÚNICA DIRECCIÓN PARA REDUCIR COMPLEJIDAD
FASE
EL
GRANDE BLÁZQUEZ P4 UNIDAD MARURI
3 -
CAMPO ENTRA EN JUEGO PAULA
EVOLUCIÓN PLANO GENERAL PAULA GRANDE BLÁZQUEZ P4 UNIDAD MARURI INTENTOS DE REPRESENTAR LA VEGETACIÓN Y EL ESPACIO PÚBLICO CON DISTINTOS GRAFOS 24
PLANTAS Y SECCIONES DESCARTADAS PAULA GRANDE BLÁZQUEZ P4 UNIDAD MARURI
25
PLANTAS MAL CONCEBIDAS, LA FORMA NO DEBE ENCERRAR LA CONFIGURACIÓN INTERIOR

SECCIÓN DEL PRINCIPIO DE CURSO

SECCIÓN 2

SECCIÓN 3

SECCIONES DESCARTADAS
PAULA GRANDE BLÁZQUEZ P4 UNIDAD MARURI 26
VOLUMETRÍAS DESCARTADAS PAULA GRANDE BLÁZQUEZ P4 UNIDAD MARURI 27

PLANOS FINALES

RESULTADO DEL PROCESO DE TRABAJO METAMORPHOSIS, GRAFOS Y HUELLAS

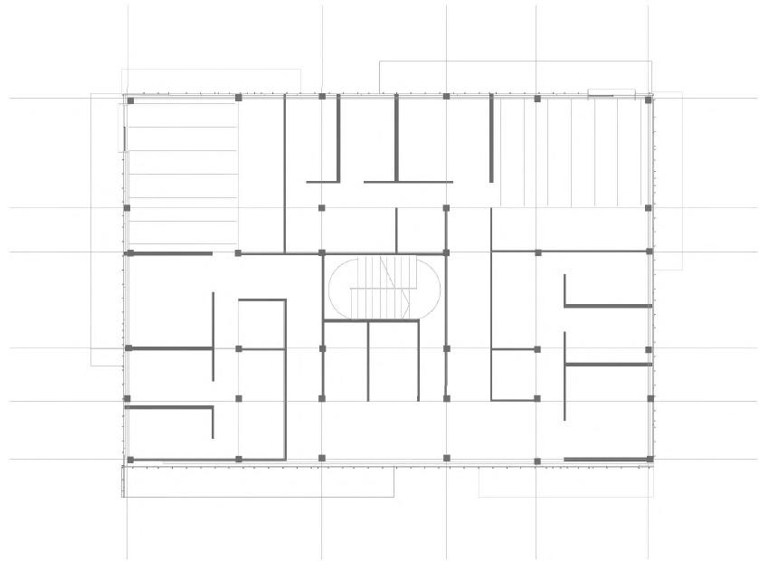
DIAGRAMAS QUE COMPONEN EL PLANO GENERAL PAULA GRANDE BLÁZQUEZ P4 UNIDAD MARURI
28
NUEVO PARCELARIO CONEXIONES EN VERTICAL Y EN HORIZONTAL
PLANO DE SITUACIÓN PAULA GRANDE BLÁZQUEZ P4 UNIDAD MARURI
29
ESQUEMAS GENERALES DE SITUACIÓN (EL SISTEMA FLEXIBLE SE ADAPTARÍA HASTA EXTENDERLO A LO LARGO DE TODA LA VÍA QUE RECORRE
30 PLANO DE SITUACIÓN PAULA GRANDE BLÁZQUEZ P4 UNIDAD MARURI ADAPTACIÓN A LO EXISTENTE FLEXIBILIDAD DEL ESPACIO
31 PLANO DE SITUACIÓN PAULA GRANDE BLÁZQUEZ P4 UNIDAD MARURI
32 PLANO DE SITUACIÓN PAULA GRANDE BLÁZQUEZ P4 UNIDAD MARURI
PLANO DE SITUACIÓN 33 PAULA GRANDE BLÁZQUEZ P4 UNIDAD MARURI

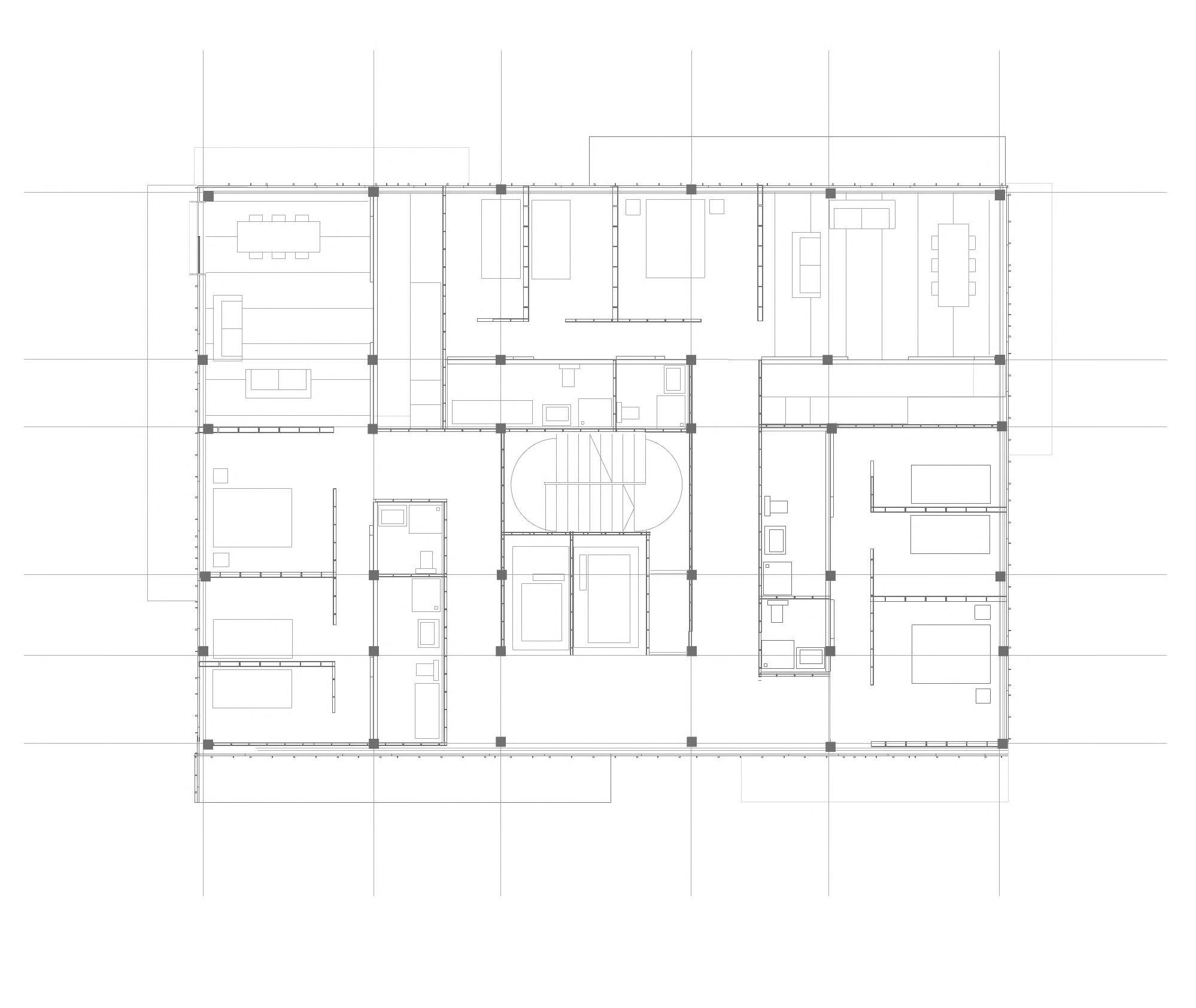
VIVIENDAS EN BASE A UNA DOBLE ALTURA EN EL ESPACIO PRINCIPAL DE LA CASA

SISTEMA PRACTICABLE QUE PERMITE CERRAR ESPACIOS SI FUERA NECESARIO PERO PLANTA LIBERADA

CADA VIVIENDA CUENTA CON UNA ZONA DE PRODUCCIÓN, INVERADERO O PATIO PROPIO

CRITERIO FORMAL: FOMA EN L

REFERENCIA DEL CURSO: CASAS PATIO MIES VAN DER ROHE

PLANTA TIPO 1 34 PAULA GRANDE BLÁZQUEZ P4 UNIDAD MARURI
PLANTA TIPO 2 35 PAULA GRANDE BLÁZQUEZ P4 UNIDAD MARURI
PLANTA TIPO 3 36 PAULA GRANDE BLÁZQUEZ P4 UNIDAD MARURI
DESARROLLO MÓDULOS DE VIVIENDA PAULA GRANDE BLÁZQUEZ P4 UNIDAD MARURI 37 ESQUEMAS Y VOLUMETRÍAS ESPACIOS TECHADOS, PATIOS

SE PRETENDE IMPLEMENTAR EL SISTEMA A LAS VIVIENDAS YA EXISTENTES DOTÁNDOLAS DE UN ESPACIO- INVERNADERO PROPIO QUE LAS INTEGRE EN EL PROYECTO Y VICEVERSA

DESARROLLO MÓDULOS DE VIVIENDA PAULA GRANDE BLÁZQUEZ P4 UNIDAD MARURI 38
COMPRENSIÓN DE LOS VOLÚMENES QUE CONFORMAN LOS MÓDULOS
PLANTA TIPO TORRES PAULA GRANDE BLÁZQUEZ P4 UNIDAD MARURI 39
TORRES RECTANGULARES PERMEABLES QUE VAN GIRANDO, DOTANDO DE DINAMISMO AL SISTEMA

ESQ1UEMAS DE VOLUMETRÍA

DESARROLLO TORRES PAULA GRANDE BLÁZQUEZ P4 UNIDAD MARURI 40
EN PLANTA BAJA Y DIFERENTES
DE ENCUENTRO CON EL SUELO DE DIFERENTES TORRES
ESPACIOS EN DOBRE ALTURA Y BANDAS EQUIPADAS CON ZONAS HÚMEDAS DIAFANIDAD
FORMAS

SECCIÓN HABITADA

SECCIÓN DE CONJUNTO 1 PAULA GRANDE BLÁZQUEZ P4 UNIDAD MARURI 41 SECCIÓN TRANSVERSAL

SECCIÓN POR PUENTES DE CONEXIÓN ENTRE TORRES

SECCIÓN DE CONJUNTO 2 PAULA GRANDE BLÁZQUEZ P4 UNIDAD MARURI 42

AXONOMETRÍAS, INCLUYENDO

SISTEMAS DE LAMAS QUE APORTAN SOMBRA AL SISTEMA DE ESPACIOS PÚBLICOS AL EXTERIOR. SE SOPORTAN SOBRE CADA UNO DE LOS LADOS DE LA BANDA APROVECHANDO LA ESTRUCTURA DE LOS INVERNADEROS PRIVADOS (SE PROLONGAN LAS ESTRUCTURAS HACIA EL OTRO EXTREMO)

VISTA FRONTAL, SISTEMA VERTICAL/ SISTEMA HORIZONTAL

VOLUMETRÍAS PAULA GRANDE BLÁZQUEZ P4 UNIDAD MARURI
43
VOLUMETRÍAS PAULA GRANDE BLÁZQUEZ P4 UNIDAD MARURI 44
GRANDE BLÁZQUEZ P4 UNIDAD MARURI 45
IMÁGEN LEJANA PAULA
46
VISTA TORRES/MUNDO HORIZONTAL PAULA GRANDE BLÁZQUEZ P4 UNIDAD MARURI
IMÁGENES:
47
P4
MARURI
PUENTES CON ESPACIOS PÚBLICOS Y VISTAS INTERIOR TORRES
PAULA GRANDE BLÁZQUEZ
UNIDAD
48 PAULA GRANDE BLÁZQUEZ P4 UNIDAD MARURI EJEMPLO, ESPACIOS INTERIOR TORRE
BLÁZQUEZ P4
49
PAULA GRANDE
UNIDAD MARURI
PRODUCCIÓN
VISTA INTERIOR TORRE, ESPACIOS PUBLICOS Y
DE
P4
50
PAULA GRANDE BLÁZQUEZ UNIDAD MARURI INETRIOR TORRE, DOBLES ALTURAS ESPACIOS PÚBLICOS INTERIOR TORRES Y CIRCULACIONES
P4
MARURI 51
PAULA GRANDE BLÁZQUEZ
UNIDAD
P4
PÚBLICO 52
PAULA GRANDE BLÁZQUEZ
UNIDAD MARURI VISTA EXTERIOR, BUSCANDO LA SOMBRA, ESTRUCTURAS Y ESPACIO
GRANDE BLÁZQUEZ P4 UNIDAD MARURI IMÁGENES INTERIORES VIVIENDAS 53
PAULA
RECOPILACIÓN DE MAQUETAS, INCLUYE LA FINAL 54 PAULA GRANDE BLÁZQUEZ P4 UNIDAD MARURI
RECOPILACIÓN DE MAQUETAS, INCLUYE LA FINAL PAULA GRANDE BLÁZQUEZ P4 UNIDAD MARURI 55
MAQUETA FINAL PAULA GRANDE BLÁZQUEZ P4 UNIDAD MARURI 56

Turn static files into dynamic content formats.

Create a flipbook
Issuu converts static files into: digital portfolios, online yearbooks, online catalogs, digital photo albums and more. Sign up and create your flipbook.