Skip to main content

Planning Portfolio

Page 1

PLANNING PORTFOLIO

SITE PLANNING STUDIO Individual Work [2021]

URBAN

COMMUNITY

COMMUNITY PLANNING STUDIO Individual Work [2022]

URBAN

URBAN DESIGN STUDIO Group Work [2022]

CONTENTS
UNIVERSITY OF CALGARY
02 03 04
REIMAGINING
CROSSING
CENTURY
TAPESTRY AT SHAGANAPPI
SELECTED WORKS 2021-2022
SITE PLANNING:
LOUISE
URBAN DESIGN ANALYSIS OF
GARDEN, CALGARY COMMUNITY PLANNING:
POINT
COMMUNITY PLANING: NODE DEVELOPMENT AT SHAGANAPPI
PLANNING STUDIO Group Work [2022]
DESIGN THEORY ASSIGNMENT Group Work [2021]
PART – 1 OF 2 05
DESIGN: A WHOLE LIFE COMMUNITY
01
SITE PLANNING 01
SITE PLANNING 01
02
CENTURY GARDEN
URBAN DESIGN ANALYSIS
02 URBAN DESIGN ANALYSIS
COMMUNITY PLANNING 03
COMMUNITY PLANNING 04
URBAN DESIGN 05
02 CONTENTS SELECTED WORKS 2016-2020 01 03 04 05 06 08 07 URBAN DESIGN: REIMAGINING THE URBAN LANDSCAPE OF TEKU MUSEUM OF CONTEMPORARY ART: A DESIGN FOR GLOBAL ART FORMS CONSERVATION OF SIMRAUNGADH RESTORATION OF HERITAGE AND SETTLEMENT RECONSTRUCT I-ON HOUSING OF TAUKHEL CONSERVATION DESIGN STUDIO Group Work [2019] FINAL YEAR RESEARCH AND DESIGN THESIS Individual Work [2019] RIVERFRONT DEVELOPMENT AND STREETSCAPES DESIGN Group Work [2018] REJUVINATING THE NEWAR COMMUNITY AFFECTED BY 2072 Group Work [2018] DESIGN OF PICNIC SPOT AND TEMPLE AREA INTEGRATED URBAN DEVELOPMENT PLAN (IUDP) Company Work [2020] KUBINDE MEMORIAL PARK DESIGN FOR TOURISM DEVELOPMENT Company Work [2020] CRAFT INDUSTRY DESIGN STUDIO PROJECT Individual Work [2017] BALEPHI-SUKUTE CORRIDOR PLAN: NEPAL WHITEWATER CENTER DESIGN FOR TOURISM DEVELOPMENT Company Work [2020] PART – 2 OF 2 https://issuu.com/pallavi.singh/docs/pallavi_singh_portfolio_2022_may

REIMAGINING THE

LANDSCAPE OF TEKU

STUDYING THE EXISTING CONTEXT

Location: Teku Kalimati, Bishnumati Bridge, Kathmandu

Area: 210000sq.m.

Stretch:250m from the Bishnumati Bridge along all the four directions

For the purpose of the study, the context site was divided into four distinct study areas plus the linear Teku-Kalimati road network. These areas reflect social and functional geographies.

A balance was struck between identifying the physical characteristics of a study area and making decisions based on its social identity. All of the study areas have different character areas within them for example, along the river, there is a historic core with a dense, heritage rich character.

FIGURE & GROUNDS ROAD NETWORK LAND USE LANDMARKS & MONUMENTS
FLOW NOLLI’S PLAN VEHICULAR FLOW
PEDESTRIAN
URBAN DESIGN
URBAN
01

DESIGN QUALITY CRITERIA

On site visits and analyzing the existing urban fabric of Teku, Kathnandu, are we moved on to categorize the design into number of criteria.

Character: A distinct sense of place responding to local context and history

Continuity and Enclosure: Continuity of Land use 

Quality of public realm: A place with safe, attractive, well used and successful outdoor areas.

Easy of movement: A place that is easy to get to, go through and move around. An accessible, well connected, pedestrian and cycle friendly environment

Legibility: A readily understandable, and easily navigable and enjoyable environment 

Adaptability: A place that can change easily to future needs and lifestyle demands

Resource efficiency: A place that works with the natural landscape, has a pleasant microclimate, utilizes solar potential, is comfortable to walk and cycle around, has low noise and pollution levels and is rich in biodiversity

Diversity and intensity: A varied, stimulating environment of uses, experiences and choice

URBAN DESIGN

REIMAGINING THE URBAN LANDSCAPE OF TEKU

My Contribution

Research and Field visit 

Site Study and Analysis 

Recommendation of land use policies 

Design of Street sections and Intersections 

Riverfront development design

PROPOSED DESIGN ELEMENTS
REIMAGINING THE URBAN LANDSCAPE OF TEKU REDEVELOPMENT OF HERITAGE ASSETS
STREETSCAPES
EXISTING SPACES
URBAN DESIGN
RETHINKING
AND
RIVERFRONT DEVELOPMENT WITH INTERACTIVE PUBLIC CONCOURSE CREATING LANDMARK PROPOSE OF A CONSISTENT SKYLINE

Problem Statements

MUSEUM OF CONTEMPORARY ART

A DESIGN FOR GLOBAL ART FORMS

My project intends to incorporate space for new art forms while providing meaningful experience to visitors through exploration and leaning a museum with distinct architectural identity The project is concerned with creating an interactive and educational environment for upcoming and professional artists, and general public of diverse interests and age groups, while engaging in the art that reflects the world around us  Museums aremostlyofadaptivelyreusedbuildings  InadequateresponsetoenvironmentalParametersofexistingmuseums  Gapintechnologicalandspatialadvancementsleadingtostagnantformofart In our country Nepal, well-known museums are limited to those built back some decades ago, dedicated mostly to history, heritage and locality. While there is no museum dedicated to modern or contemporary art, existing museums were lacking in different areas even today
Final Year Thesis on
02

JUSTIFICATION OF PROJECT

In the advancing world of technology and new generations – our country has numerous ground-breaking young artists coming up with unique materials which do not fit in the traditional exhibit.

 Lingering with the cultural ideas we have not been able to account an architecture entirely dedicated to the creativity of the presentday artists.

 Need of building museums acknowledging museum architecture, with proper design standards and considerations.

 Museum now should also incorporate technological advancements in terms of storage, display as well as learning

MUSEUM OF CONTEMPORARY ART

A

DEVELOPMENT OF FORM AND CONCEPT

DESIGN

FOR GLOBAL ART FORMS

Color is an essential component of almost every form of art and can be used to evoke a certain mood or to create a message or sharp response in the viewer. It can be used to set characters apart from one another, or bring them together. The colors of the color wheel is taken into account and the shape is remodeled into a compressed form.

Color Wheel

The color and form is imitated into Gallery and Rest areas The central focus an amphitheater radiating sense of spaces towards other functional areas

Location:Baluwatar,Kathmandu SiteArea:342,674sq.ft.(62-9-0-4)

CHOOSING AND ANALYSING THE SITE

• ‘Museum of Contemporary Art’ aims to house evolving contemporary art that targets users from a global perspective.

• Site - most suited in the Kathmandu valley - the capital of Nepal and the most forward city in recognizing global values. Studying the criterias of Physicalcharacteristics, visualquality , transportation,adjacent landuses, economicview , the site in Baluwatar was chosen as a suitable site.

INIITIAL SKETCHES

OF

MODERATE AND DIFFUSED NORTH LIGHT

1. BUILDING ORIENTATION

i. Building orientation: ample amount of sunlight is exposed in accordance to the building type and use.

To control light exposure in the gallery areas large building surface towards the north with moderate and diffused sunlight (with views of northern mountains and hills); smaller building surface area towards South controlled with passive solar techniques

The gallery are raised such that to allow better skylight angle from the sloped roofs

ii The prevailing wind from North West is allowed through the build forms

2. LOW SLOPE SKY LIGHTS FACING SOUTH

The low slope south facing roof with skylight openings allow diffused lighting into the gallery, hence maximum daylight can be used

Green areas scattered through the site as large landscapes and small courtyard spaces reduce heat island effect.

The green area on the north sets outdoor gallery within natural environment.

5. VISUAL ACESS FROM MAIN ROAD

The visual access from the main road is important to draw visitors into the museum. Passerby's are targeted to be drawn to the dynamic color and building form of the museum buildings.

3. CIRCULATION WITHIN THE GALLERY AREAS

Gallery Circulation is a chain type layout with sequence of display units with alternate resting areas while comb circulation is also possible.

NORTHEN VIEW
MUSEUM
CONTEMPORARY ART A DESIGN FOR GLOBAL ART FORMS
RECEPTION GALLERY BLOCK LIBRARY AND WORKSHOP BLOCK EVENT AREA CHILDREN’S AREA AUDITORIUM ADMIN BLOCK ARCHIVE BLOCK FOOD COURT GARDEN CAFE ENTRANCE PLAZA SCULPTURE COURT OPEN OUTDOOR EXHIBITION EXPANSION AREA Total Design Area Within Site: 18,264 Sq. m Ground Coverage: 4068 Sq. m GCR: 22.3% LEGEND INFO 1 3 2 6 5 9 4 10 8 12 11 13 14 7 MUSEUM OF CONTEMPORARY ART A DESIGN FOR GLOBAL ART FORMS

The museum complex is designed highlighting its main function the gallery with the concept of color and unique form Other building forms follow respective functions while merging the idea of contemporary architecture from around the world and that of Nepal by introducing modern and contemporary design elements such as large openings, use of glass to brick facades of the buildings While the brick façade gives the buildings its own identity and feeling of coziness the gallery block imparts a sense of contradiction and attempts play of color into the visitors’ eyes

The use of color induces a dynamic element and gives a sense of curiosity to the visitors even from afar. The chromatically arranged galleries are brought together while expressing uniqueness of its own. The arrangement brings in a sense of exploration to the model.

MUSEUM OF CONTEMPORARY ART

A DESIGN FOR GLOBAL ART FORMS

Simroungadh which inherits historic, cultural and archeological
SIMRAUNGADH RESTORATION
HERITAGE AND SETTLEMENT
03
importance from Karnatakperiod, is situated inBaradistrict of Narayanizone of mid Terai according to the political geography of Nepal It is also historically a fortified settlement during the period CONSERVATION OF
OF
In this project, along with land use mapping of the area, Conservation and Restoration Designs for Core Heritage and Settlement Area were done in order to preserve the existing heritage while increasing its tourism, economical and agricultural reach Architectural conservation solutions were carried out after appropriate land use planning of whole site
PROPOSED LONGITIDUAL STREET SECTION My Contribution  Research and Field visit  Perform Questionnaires  Detail Documentation  Land use mapping and street sections  Typical mixed use prototype designs
BARAM BABA MANDIR
PROPOSED RELIGIOUS AREAS
Restoration of
‘Ranibas’
and Kankali’ Temple Area and Adaptive Reuse of a Section for a Museum

CONSERVATION OF SIMRAUNGADH

SETTLEMENT
Use Prototype
of prototypes were designed
use zone.
essence was taken
RESTORATION OF HERITAGE AND
Mixed
No
based on architectural requirement of each land
Consideration of climatic conditions and indigenous Architectural and urban design
Proposed Cross Street Section
Eating/
View from Entrance Central Courtyard
Sitting Area
Typical Khapada House of Simraungadh Sketches showing building form with element

• Collaboration with Lumanti Support Group for academic housing reconstruction project in settlement of Taukhel , Chandragiri municipality which is 7 8 km from Kathmandu.

• Planning with community participation

MAJOR OBJECTIVES

• To reconstruct the housing to the modern needs while preserving its Newari essence

• To promote the creation and maintenance of an adequate supply of sound, affordable housing integrated throughout the region.

• To study the social and economic background of the people in Taukhel and provide the design solution as per the need.

My Contribution

Research and Field visit

Site Study and Analysis

Implementing relevant planning strategies, devising suitable plans for Jatra (Festival) road and the connecting the unused lands into the existing ones favoring easy visual access and balance in open spaces. Design of Street sections and Intersections 

Prototype development: I designed the segregated areas with prototypes and open spaces farthest from the existing major road – Jatra (Street Festival) road

FIGURE AND GROUND BUILDING USE

RECONSTRUCTION HOUSING OF TAUKHEL

FOR THE NEWAR COMMUNITY AFFECTED BY 2015

EARTHQUAKE

The planning was done considering the wind direction pattern and sun orientation, with

An organic pattern is created in relation to the existing major road, A linear spline providing visual opportunities through context site with rich pedestrian experiences

Concept of visual opportunities not only to the site but also from the site

WIND FLOW FROM SW SUN PATH

ORIENTATION

ROAD HYRARCHY

Use of gateways at the two ends of activity spline

Pedestrian oriented planning: Consistent with the principle of equity, particularly in communities with low levels of car ownership, public transport becomes a necessity once the pedestrian scale is exceeded

Use of a long staircase pattern to enhance the user experience as they walk by

Main commercial stretch with staggering type of built form on the either sides of the existing alleys to make a converging view

04 MAIN ROADS COLLECTOR ROADS PEDESTRIAN ROADS VEHICULAR ROADS
P1: RESIDENTIAL CUM COMMERCIAL P10: DUPLEX UNITS P2: RESIDENTIAL & WORKSHOP P7: RESIDENTIAL P9: RESIDENTIAL WITH SHOPS P4: RESIDENTIAL P6: RESIDENTIAL P5: RESIDENTIAL P8: RESIDENTIAL P3: DUPLEX UNITS COMMUNITY HALL RESIDENTIAL CUM COMMERCIAL IN THE FRONT STRETCH DUPLEX TRADITIONAL PROTOTYPES BUILDING AROUND EXISTING HERITAGE BUILDING PUBLIC ACCESSIBLE SPACES MASTERPLAN

RECONSTRUCTION HOUSING

KEY PLAN Mediums: Revit, Sketchup , V-Ray, Photoshop
space
P9: RESIDENTIAL WITH SHOPS
OF TAUKHEL FOR THE NEWAR COMMUNITY AFFECTED BY 2072 EARTHQUAKE
. The newer plots were designed in a post modern style while retaining the essence of a Newari household. Brick facade, emphasis on window openings and
planning were some of the characteristics considered

SITE BOUNDARY

Location:

On collaborative involvement with stakeholders and planning as per requirement of the municipality, the significance of the religious site was chosen to enhance tourism in the area.

This was the 1st project I was involved under the project Integrated Urban Development Project (IUDP.)

The site planning approach: Relies on rejuvenating the temple area by restoring its components, giving proper access from the main road and designing the picnic spot area for as a recreational area, which would benefit the areas in terms of tourism and economy.

The current user activities on the site guides number of design approach in terms of approach and continuation of user activity in the area while increasing the engagement of people by providing elements for recreation and relaxation that enhances the quality experience of the tourist visiting the site.

My Involvement

Research and Study

Site Analysis and Program Formulation

Concept and Design

Detail Drawings and 3D visualization

Report and Presentations

GOLMA DEVI
TEMPLE
BAJRAYOGINI SHANKARAPUR PUKHILACHHI SALI RIVER MAIN ROAD GOLMA DEVI TEMPLE Golma Devi, Bagmati Pradesh, Kathmandu
PICNIC SPOT AREA
SITE AREA: 1817.5
(3-9-0-2.5)
INTEGRATED URBAN DEVELOPMENT
(IUDP)
MASTERPLAN
SQ. M.
PICNIC SPOT AND TEMPLE AREA NEPAL ARCHITECTS CONSULT
PLAN
05

INTEGRATED URBAN DEVELOPMENT PLAN (IUDP)

PICNIC SPOT AND TEMPLE AREA NEPAL ARCHITECTS CONSULT

Temple Area

The temple area maintains its religious and cultural significance with restoration to the site and addition of design elements to increase use of area

Picnic Spot Area

The picnic spot is designed with necessary amenities for the visitors considering the natural landscape of the site and minimal intervention to the environment.

The site area has been fenced and resting shelters, view desks are also designed at different places overlooking the North West view The activities in and around are generally passive leisure activities like sight-seeing and picnic.

Picnic Spot Area
Mediums: AutoCAD, Sketchup, Lumion, Photoshop

In the context of the project,

DEPARTMENT OF TOURISM

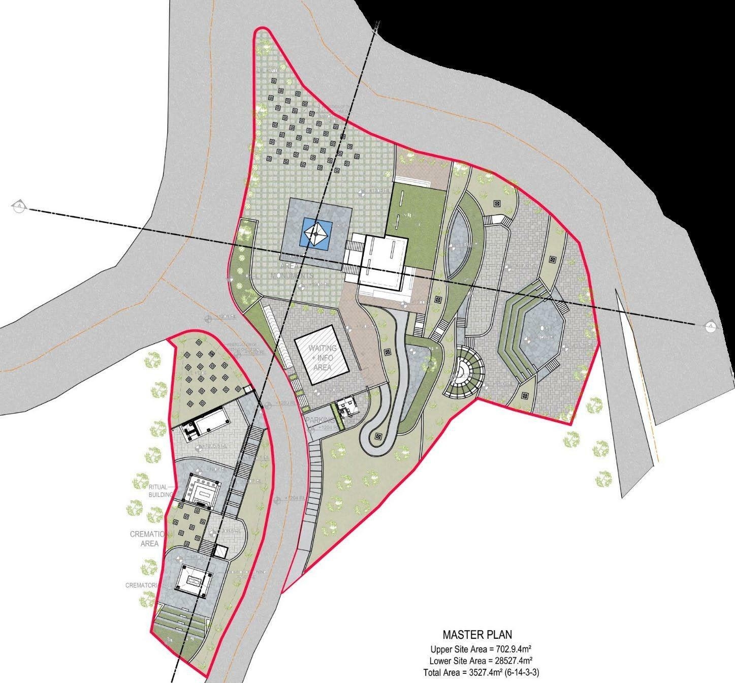
KUBINDE MEMORIAL PARK AND CREMATION AREA

06
a
In
the lower
is designed
a
NEPAL ARCHITECTS CONSULT and the upper part continues it s current use with a
memorial park is designed dedicated to the remembrance of the 22 martyrs of the Nepalese civil war. The site which was an originally a cremation ground for the Local Tamang community of the area is a point of departure for the concept of the project, given the existing components
the two part of the site,
part
for
memorial
well designed cremation area.
 Research and Study  Site Analysis and Program Formulation  Concept and Design  Detail Drawings and 3D visualization  Report and Presentations
My Involvement
MEMORIAL STRUCTURE WITH NEPAL FLAG ADMIN/ MUSEUM BUILDING ROAD FRONT LANDSCAPE OAT PARK KUBINDE MEMORIAL PARK AND CREMATION AREA NEPAL ARCHITECTS CONSULT DEPARTMENT OF TOURISM Intended users i. Memorial park visitors: People who come for the purpose of recreation and learning ii. Historians and enthusiasts: provision of museum and library for in dept learning iii. Local Public: A portion of the site is provided for the local public, which will also inject a sense of curiosity to the people passing by iv. Tamang (Indigenous) Community: The upper park is designed to be the cremation are for the Tamang community. 1. Memorial Monument 2. Entrance Signage 3. Admin/ Gallery 4. OAT 5. Public Resting Area 6. Ticket Counter 7. Resting Shed For Malami (Visitors) 8. Ritual Building 9. Cremation Area 10. Restoration of Chortens (Buddhist Shrine) LEGEND ENTRY 1 2 3 4 5 6 7 8 9 1 0 1 0 1 0 BHOTEK OSHI RIVER BHALEP HI JALBIRE ROAD KUBINDE SITE LOWE R SITE UPPER SITE BHOTEKOSHI RIVER BHALEPHI JALBIRE ROAD SITE NAUBIRE BRIDGE DADA DEVI TEMPLE LOWER SITE UPPER SITE Total Area = 3527.4m² (6-14-3-3)

KUBINDE MEMORIAL PARK AND CREMATION AREA

NEPAL ARCHITECTS CONSULT

Memorial Park

Divided into public and semi-public area limiting public access to the existing structure.

The highest level of the site is taken as a frontal focus where the memorial monument is proposed and the area will act as a viewing area. Designed with creation of peaceful space in mind without superstructures the area will focus on reflecting on peace with nature around The names of the martyrs will be carved into the stone built memorial muniment and will have the Nepal’s flag at height of 22 feet symbolizing the number of martyrs from the event of insurgency

Mediums: AutoCAD, Sketchup, Lumion, Photoshop
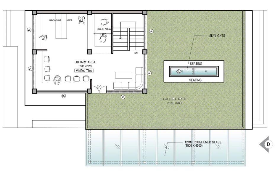
Ground Coverage: 112 Sq. m. Toilet Admin Pantry Staircase Reception / Info + Seating Gallery Storage Ground Floor Plan Stacking Area Issue Area Staircase Reading Area Top Floor Area KUBINDE MEMORIAL PARK AND CREMATION AREA NEPAL ARCHITECTS CONSULT DEPARTMENT OF TOURISM Roof Level Green Roof Sky Lighting Seating View Deck Memorial Monument

Trunksectionasbaseofconcept

Wood carving industry being the most prominent in the site area of Bungamati, the concept of wood as a raw material was taken.

GROUND FLOOR. FIRSTFLOOR .

This project started with sketching an element near to wooden craft. A section of a tree trunk was a start, which slowly modeled into a unique form aligning with the functional aspects of the project

Using hand drawing as a tool from start to finish I gained a sense of liberty into form building and put together my imagination into life.

The objective of this project is to design a craft industry for different forms – wooden, stone, Thanka, etc.

The viewing point is designed such that it generates view toward all working areas and the central gallery

FACTORY

Here visitors can simply observe the factory’s process.

CAFE

perspective allowing visitors to view selected parts of the craft process. The gallery as a base directs the visitors around and about it

production areas have individual outdoor and indoor work setting to expand function and workability Unique features of the section transform into open and built areas with central focus – a central gallery

The use of timber elevation treatment give a warmer tone to the otherwise concrete and cold factory setting of a traditional factory.

ADMIN CONFERERENCE AND MEETING CRAFT INDUSTRY DESIGN STUDIO PROJECT 3rd Year
FACTORY PRODUCTION AREA STORAGE
OVERHEAR
SEMI UNDERGROUND GALLERY
CAFE
CONNECTION – OPEN VIEWING ADMIN
CONCEPT AND FORM DEVELOPMENT
CONCEPTUAL PLAN SKETCH
07
FACTORY 1 FACTORY 3 FACTORY 2 FACTORY 4 ADMIN STORAGE
TOILET & CHANGING CLASSROOM RECEPTION & GALLERY ENTRY PLAZA MULTIPURPOSE HALL FITNESS & DINING ACCOMODATION PARKING 08 BALEPHI-SUKUTE CORRIDOR PLAN: NEPAL WHITEWATER CENTER NEPAL ARCHITECTS CONSULT DEPARTMENT OF TOURISM
for
My Involvement  Research and Study  Design  Detail Drawings and 3D visualization  Report and Presentations
This rafting school, which is a rafting hub comprising of functions primarily of rafting academy and other functions related to Whitewater sports such as hosting competitions, providing trainings for kayaking besides rafting, holding seminars and conference, providing outdoor activity area for professionals as well as amateurs, etc. Sindupalchowk district being home to the Bhote Koshi river, one of the prominent rivers
white water sports, and other rivers with high rapid was chosed by the Department of Tourism of Nepal as an appropriate destination for the white water sports in the country

The masterplan is developed with 3 major levels dividing the entrance area, accommodation and learning area

Passing through the parking on the immediate entry to the site, the pedestrian pathway guides the users to the entrance plaza giving public access to reception and galleries

Then the site is divided into the functions of 1 outdoor activity area, 2. class rooms and 3. accommodation.

Bracing the sloped site terrain the buildings are designed in a stepped sectional concept.

The site has been designed to face the river with each roof levels acting decks and viewing platform for spectators to watch rafting tournament

The riverfront has been integrated into the design by incorporation of ramps along the bank of the tier stretching next to the site

All the buildings area designed as semi recessed structures with green roofs over them that are directly accessible from the ground level at higher elevation, Buildings are designed as segregated compact structures to correspond to the step terrain and earthquake prone site

REGIONAL PLANNING OF BALEPHI SUKUTE STRETCH

The entire stretch of Balephi Sukute corridor is dedicated to water sports and water related tourism. Number of resorts lying on either side of Araniko highway that runs along this stretch host such activities and events The Balephi Sukute area is one of the prime destinations for white water related sports.

Rafting Academy (Nepal Whitewater Center) Suspension Bridge Suspension Bridge Suspension Bridge Starting Point Starting Point Camping Area Botanical Park End Point at Dolalghat Panchakanya Rock Cultural Stage Kapileshwor Mahadev
5m Wide Existing Road Balephi Khola Balephi Jalbire Road Site Boundary Site N FLOW THROUGH NATURAL DIRECT ACCESS 20 m SECTBACK FROM THE RIVER SETBACK LINE CLASSROOMS MULTIPURPOSE HALL FITNESS & DINING HALL ACCOMODATION VIEWING TERRACE 1. Accommodation 2. Dining and Fitness 3. Multipurpose Hall 4. Classrooms 5. Reception 6. Gallery 7. Toilet and Changing 8. Storage 9. Swimming pool LEGEND 1 2 3 4 5 6 7 8 9 1 2 3 4 5 6 7 8 9
BALEPHI-SUKUTE CORRIDOR PLAN: NEPAL WHITEWATER CENTER NEPAL ARCHITECTS CONSULT DEPARTMENT OF TOURISM
CITY BUS TERMINAL, DESIGN STUDIO 2017 INTERIOIR MODEL, Accessible and Culture Nepal (ACCAC) 2018 VAASTU MODEL, Accessible and Culture Nepal (ACCAC) 2018 RDF DESIGN COMPETITION, 2017 JIGYASA: EXHIBITION AT THAPATHALI CAMPUS, 2019 POST EARTHQUAKE RURAL HOUSE DEIGN MISCALLANEOUS MODEL MAKING AND OTHER WORKS LIVING ROOM INTERIOR, 2016

MAP MAKING AND OTHER WORKS

MISCALLANEOUS
PALLAVI SINGH ar.pallavisingh@gmail.com +1-825-439-8345 linkedin.com/in/pallavi-singh-in THANK YOU

Turn static files into dynamic content formats.

Create a flipbook
Planning Portfolio by Pallavi Singh - Issuu