PORTAFOLIO 2022 PROYECTO DE ARQUITECTURA III | EMERSON OSORIO

Page 1

PROYECTO DE ARQUITECTURA III

PORTAFOLIO

Facultad de Ingeniería y Arquitectura Carrera de Arquitectura Área de Diseño Arquitectónico Ciclo 2022 2

20215129 | EMERSON BARY OSORIO ROJAS
PROYECTO DE ARQUITECTURA III CICLO: 2022 2 PROFESOR: ANDRES MARTIN LIRA CHIRIF SECCIÓN: 324 TRABAJO 23/11/22 EMERSON BARY OSORIO ROJAS
TALLER: T4

TABLA DE CONTENIDOS

EC01

ESPACIO DE SOCIALIZACIÓN COMUNITARIA: TOMA DE PARTIDO

CG01 CG02 CG03 CG05

ESPACIO DE SOCIALIZACIÓN COMUNITARIA: ENTREGA FINAL CG01 CG03 CG05 CG08 CG09

EC02

BIBLIOTECA COMUNITARIA EN ATE: TOMA DE PARTIDA

CG01 CG02 CG05 CG06 CG07 CG08 CG09

BIBLIOTECA COMUNITARIA EN ATE: ENTREGA DE PLANOS

CG01 CG02 CG05 CG06 CG07 CG08 CG09

BIBLIOTECA COMUNITARIA EN ATE: ENTREGA FINAL CG01 CG02 CG05 CG06 CG07 CG08 CG09

PAG. 06

PAG. 20

PAG. 30

PAG. 46

PAG. 52

EC01

05 T4 | EMERSON BARY
OSORIO ROJAS
CG01 CG02 CG03 CG05
06
TOMA DE PARTIDO
ESPACIO DE SOCIALIZACIÓN COMUNITARIA
07
08

HUACA PALOMINO

TRABAJO EN GRUPO

El cuestionamiento del concepto de ciudadanía surge a partir de la experiencia de vida urbana y cotidiana, en el que este deja de ser entendido como una definición abstracta y pasa a ser un conjunto de prácticas sociales, culturales, económicas y políticas dentro del espacio público. En el sector elegido, encontramos distintas dinámicas urbanas, que nos llevan a pensar en los alrededores de la Huaca Palomino como una ciudad de 15 minutos, ya que los habitantes tienen acceso a la mayoría de sus necesidades esenciales dentro de la zona y además, construyen su vida bajo prácticas de apropiación espacial, desarrollando la singularidad y complejidad del barrio.

09 T4 | EMERSON BARY OSORIO ROJAS
10

ANÁLISIS DE ESCULTURAS

EC01

Esta actividad consiste en buscar información sobre el artista y hacer un análisis de la escultura elegida sobre las estrategias proyectuales.

11 T4 | EMERSON BARY OSORIO ROJAS

ANALISIS DE ESCULTURAS

12
EC01
13
T4 | EMERSON BARY OSORIO ROJAS

ANALISIS DE ESCULTURAS

14
EC01
15
T4 | EMERSON BARY OSORIO ROJAS
16

ESTRATEGIAS PROYECTALES

EC01

Ahora toca comenzar pensar sobre lo analizado para logar hacer espacios de socialización abiertos y/o semi cerrado y servicios higiénicos públicos.

17 T4 | EMERSON BARY OSORIO ROJAS
18
T4
ESTRATEGIAS PROYECTUALES EC01 MAQUETA
| EMERSON BARY OSORIO ROJAS

ESTRATEGIAS PROYECTUALES

19
| EMERSON
T4
BARY OSORIO ROJAS
EC01
EXPLICACIÓN
CG01 CG03 CG05 CG08 CG09 ESPACIO DE SOCIALIZACIÓN COMUNITARIA 20
ENTREGA FINAL
21
22

ENTREGA FINAL

23 T4 | EMERSON BARY OSORIO ROJAS
EC01
24 ENTREGA FINAL EC01 MAQUETA T4 | EMERSON BARY OSORIO ROJAS

ENTREGA FINAL

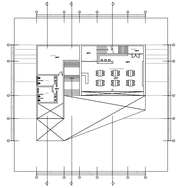
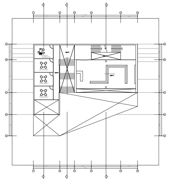
EC01 PLANTA 1

25 T4 | EMERSON BARY OSORIO ROJAS

ENTREGA FINAL

26 T4 | EMERSON BARY OSORIO ROJAS
EC01 PLANTA 2

ENTREGA FINAL

EC01 CORTE A A’ Y B B’

27 T4 | EMERSON BARY OSORIO ROJAS

ENTREGA FINAL

EC01 CORTE C C’ Y D D’

28 T4 | EMERSON BARY OSORIO ROJAS

EC02

29 T4 | EMERSON BARY
OSORIO ROJAS

TOMA DE PARTIDA

CG01 CG02 CG05 CG06 CG07 CG08 CG09 BIBLIOTECA COMUNITARIA EN ATE 30
31
32

BIBLIOTECA SANT MARTÍN SARROCA

TRABAJO EN GRUPO

33 T4 | EMERSON BARY OSORIO ROJAS

ANALISIS DE REFERENTES

EC02 34
35
T4 | EMERSON BARY OSORIO ROJAS

ANALISIS DE REFERENTES

EC02 36
37
T4 | EMERSON BARY OSORIO ROJAS

ANALISIS DE REFERENTES

EC02 38
39
T4 | EMERSON BARY OSORIO ROJAS

ANALISIS DE REFERENTES

EC02 40
41
T4 | EMERSON BARY OSORIO ROJAS
42

MAQUETA CONCEPTUAL

EC02

La actividad consiste en hacer una biblioteca en una pendiente que por un lado esta cercada y por el otro esta el rio.

Para lograr hacer esta maqueta, se tuvo en cuenta el análisis de la BIBLIOTECA SANT MARTÍN SARROCA

43 T4 | EMERSON BARY OSORIO ROJAS

MAQUETA CONCEPTUAL

44
EC02
MAQUETA
45
T4 | EMERSON BARY OSORIO ROJAS
CG01 CG02 CG05 CG06 CG07 CG08 CG09 BIBLIOTECA COMUNITARIA EN ATE 46
ENTREGA DE PLANOS
47

ENTREGA DE PLANOS

EC02 PLANTA 1 Y 2 ESC 1/100

48

| EMERSON BARY OSORIO ROJAS

49
T4

ENTREGA DE PLANOS

EC02 PLANTA 3 Y CORTES ESC 1/100

50
51
T4 | EMERSON BARY OSORIO ROJAS
CG01 CG02 CG05 CG06 CG07 CG08 CG09 BIBLIOTECA COMUNITARIA EN ATE 52
ENTREGA FINAL
53
54

ENTREGA FINAL

EC02

Este proyecto esta enfocado en el tema de la ciudad de 15 minutos, que es encontrar en una zona todo lo que una persona necesita para vivir cómodo. La biblioteca tiene una participación muy importante en esta zona de ate, ya que se ha hecho un estudio por esta parte , y se encontró que hay muchos colegios, pero no espacios fuera de la hora escolar para hacer las tareas.

Por ese motivo, hemos comenzado con este proyecto que beneficiara no solo a los escolares sino también a adultos o adultos mayores que estén haciendo una investigación, trabajo o también pasar el rato.

La biblioteca tiene como función acoger a las personas que requieran de un espacio apropiado para estas actividades.

55 T4 | EMERSON BARY OSORIO ROJAS
56 ENTREGA FINAL EC02 MAQUETA ESC 1/100 T4 | EMERSON BARY OSORIO ROJAS

ENTREGA FINAL

57
|
T4
EMERSON BARY OSORIO ROJAS
EC02 PANEL

Me llamo Emerson y tengo 17 años, de pequeño me gustaba jugar con la arena, formar como pistas para autos, luego la mojaba para poder hacer una cueva. Así es como nació mi interés a esta carrera, se fue formando desde mi infancia hasta ahora.

Luego cuando estaba en el colegio, empecé a participar en concursos de dibujo, no ganaba pero me gusta dibujar y en el salón que estaba apreciaban mi dibujo. Fuera del colegio, entre a un taller de manualidades, en el que me seleccionaron para exponer mis trabajos, fui uno de los ganadores de esa exposición. Estas experiencias llenaron por completo las ganas de seguir con esto y no dudar de que puedo ser capaz en lo que me planteo.

EMAIL
INSTAGRAM @emer.arqui FACEBOOK
Emerson Bary TELEFONO 936718311
osorioemerson392@Gmail.com
Osorio Rojas

Programas

Autocad 2018 Revit 2018

Adobe Illustrator Adobe Photoshop

Idiomas

Educación

2009 2015 Primaria Colegio Enrique Guzmán y Valle 2016 2020 SecundariaColegio Enrique Guzmán y Valle 2021 Actualidad Pre grado Universidad de Lima

Reconocimientos

Proyecto Final del taller de manualidades 2016 Seleccionado para exposición.

Inglés Francés Español Vóley Cine Dibujar y Pintar

Intereses

CV

INFORMACIÓN DEL CURSO

Nombre del curso Proyecto de arquitectura III

Sección 324

Nombre del profesor Andrés Martín Lira Chirif

Sumilla del curso Proyecto de arquitectura iii es una asignatura obligatoria teórico práctica, que forma parte del taller vertical. Su desarrollo temático gira en torno al diseño de un objeto arquitectónico dentro de un contexto natural.

Objetivo general Componer y elaborar un proyecto arquitectónico a partir de una propuesta conceptual vinculándolo con el contexto natural en el que se emplaza.

Objetivos específicos

1. Considerar las bellas artes como una influencia relevante en el diseño arquitectónico.

2. Incluir en el diseño, criterios de antropometría y ergonometría

3. Vincular la composición del objeto arquitectónico con la organización espacial y una lógica estructural, con especial énfasis en los aspectos estéticos.

4. Objetivos de desarrollo sostenible ods:

Objetivo 5: lograr la igualdad entre los géneros y empoderar a todas las mujeres y las niñas Objetivo 10: reducir la desigualdad en y entre los países

Objetivo 11: lograr que las ciudades sean más inclusivas, seguras, resilientes y sostenibles

CRITERIOS RIBA

CG 1 Habilidad para crear diseños arquitectónicos que satisfagan requerimientos técnicos y estéticos

CG 3 Conocimiento de las bellas artes, como una influencia sobre la calidad del diseño arquitectónico

CG 5 Comprensión de la relación entre las personas y las edificaciones y las edificaciones y su medio ambiente, y la necesidad de relacionar las construcciones y los espacios entre estas y las necesidades humanas y su escala

CG 8 Comprensión del diseño estructural y los problemas de construcción y de ingeniería asociados con el diseño de las edificaciones

CG 9 Adecuado conocimiento de los problemas físicos y tecnológicos y la función de las construcciones para dotarlas de condiciones internas de confort y protección en contra del clima, en el marco del desarrollo sostenible

CG 10 Habilidades de diseño necesarias para cumplir los requerimientos de los usuarios dentro de las restricciones impuestas por factores de costos y regulaciones.

Turn static files into dynamic content formats.

Create a flipbook
Issuu converts static files into: digital portfolios, online yearbooks, online catalogs, digital photo albums and more. Sign up and create your flipbook.
PORTAFOLIO 2022 PROYECTO DE ARQUITECTURA III | EMERSON OSORIO by Emerson Osorio - Issuu